Скачать Типовой проект 902-5-35.86 Альбом 5. Электротехническая часть. Автоматизация. Связь и сигнализация (из ТП 902-5-36.86)Дата актуализации: 01.01.2021
|
| Обозначение: | Типовой проект 902-5-35.86 |
| Обозначение англ: | 902-5-35.86 |
| Статус: | не определен законодательством |
| Название рус.: | Альбом 5. Электротехническая часть. Автоматизация. Связь и сигнализация (из ТП 902-5-36.86) |
| Дата добавления в базу: | 21.05.2015 |
| Дата актуализации: | 01.01.2021 |
| Дата введения: | 01.10.1986 |
| Дата окончания срока действия: | 30.06.2003 |
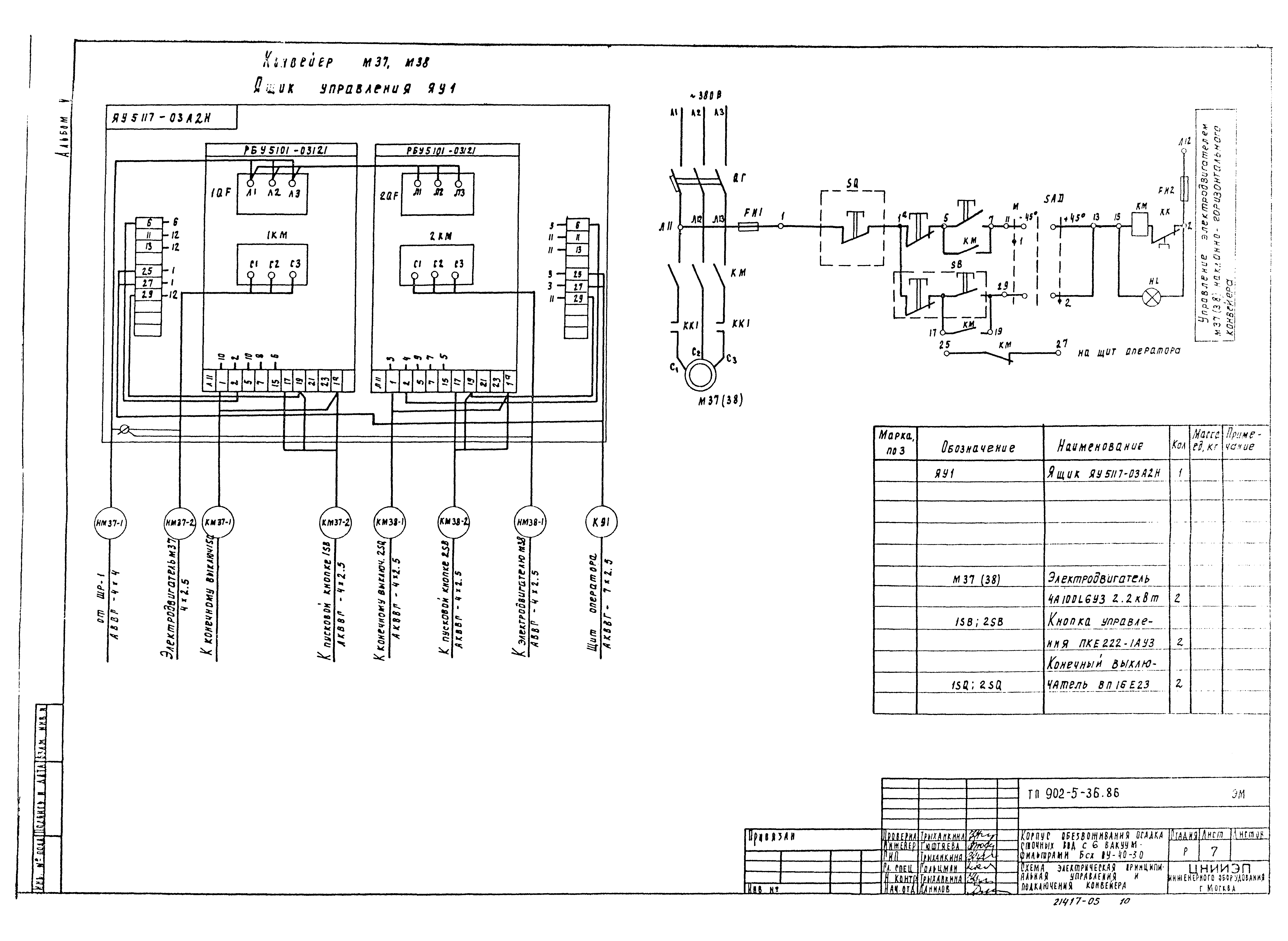
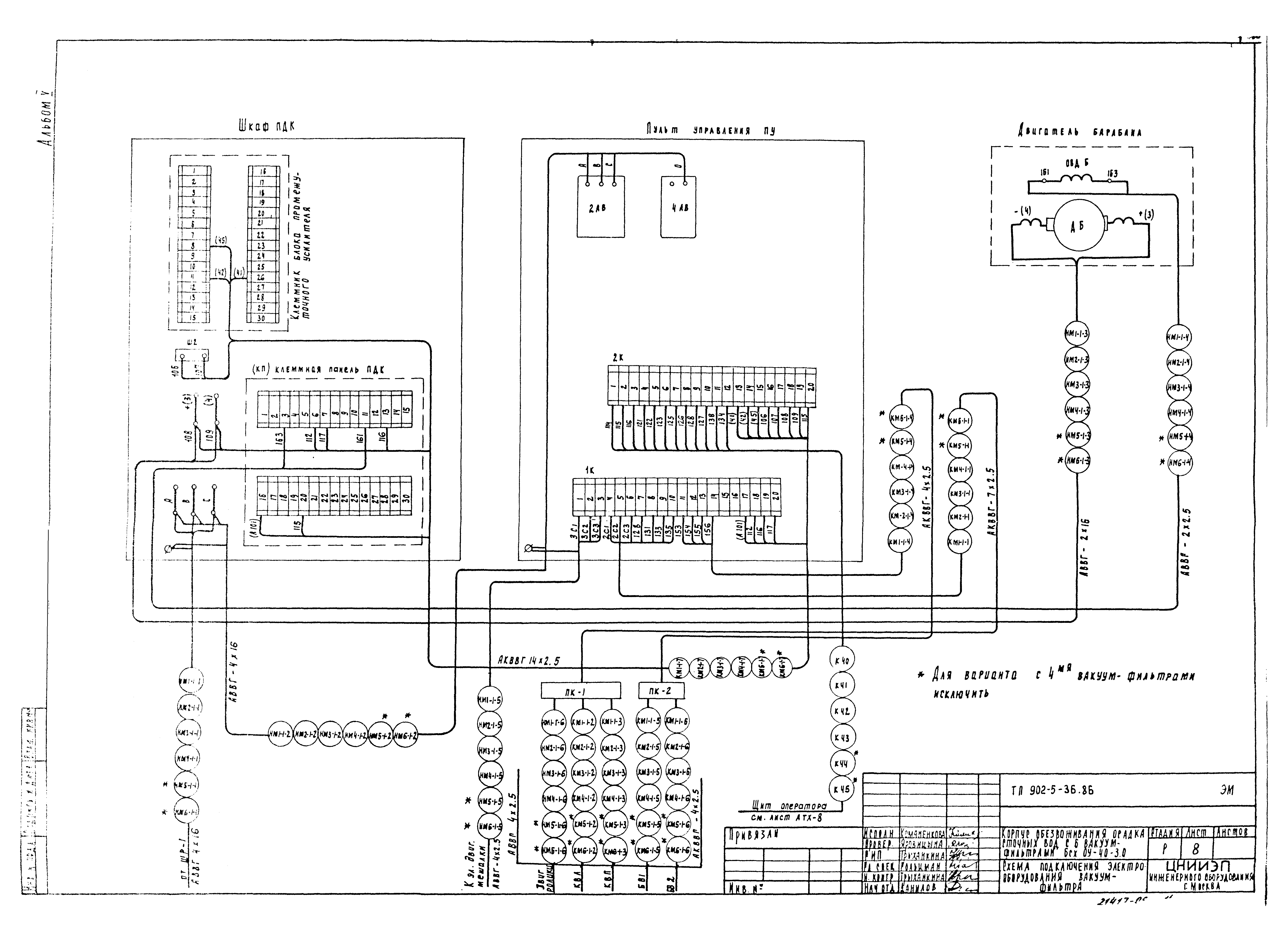
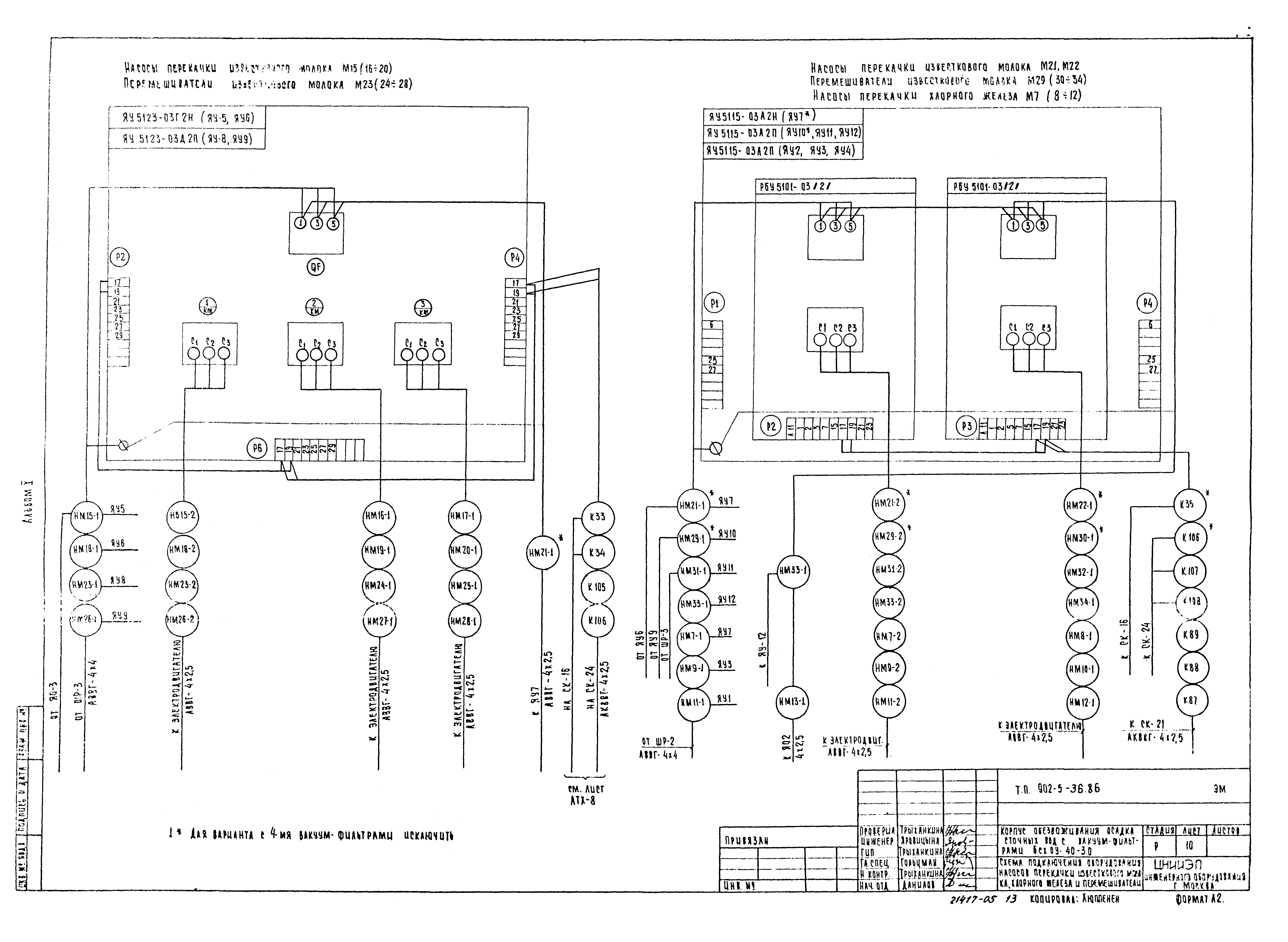
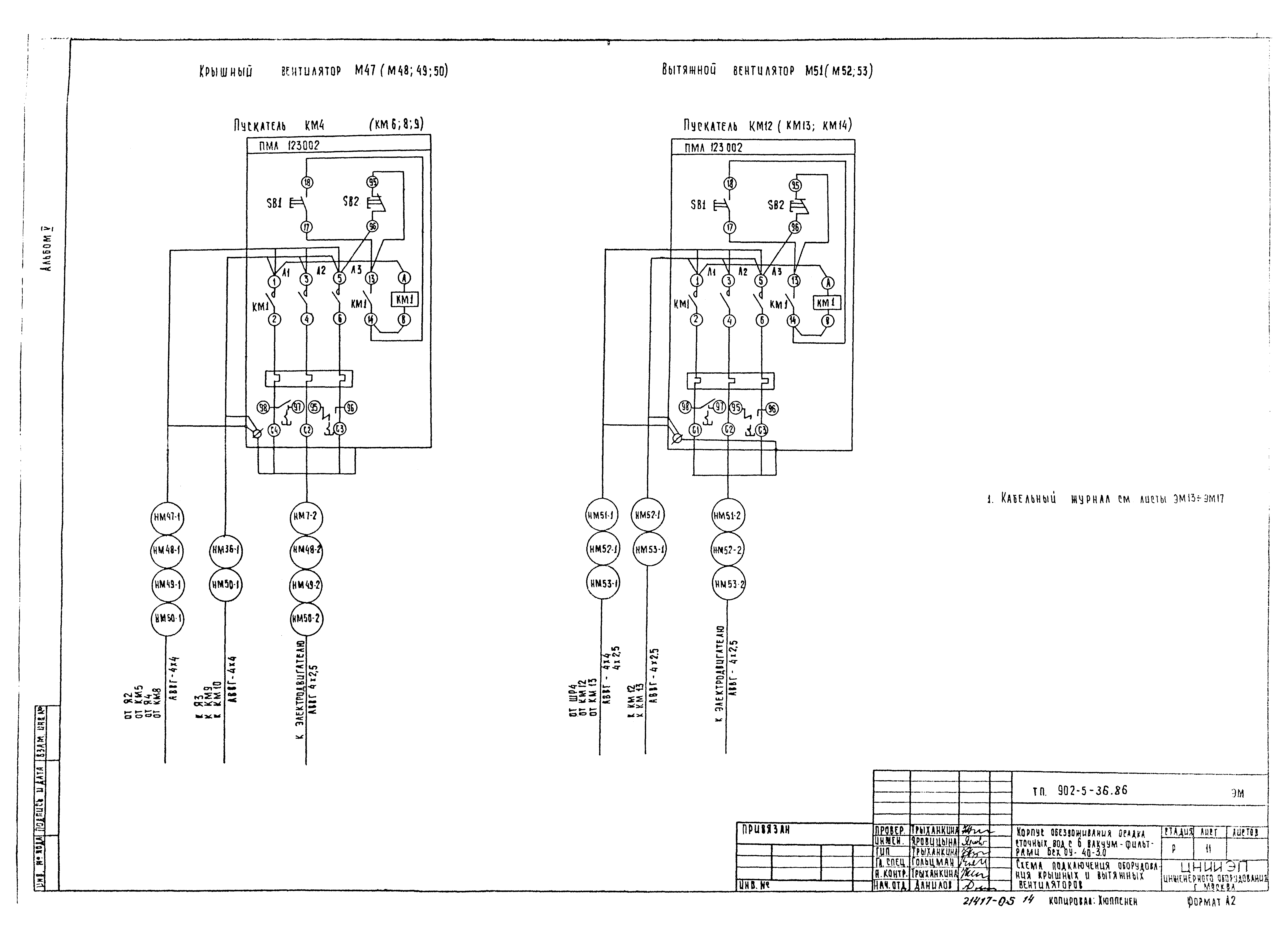
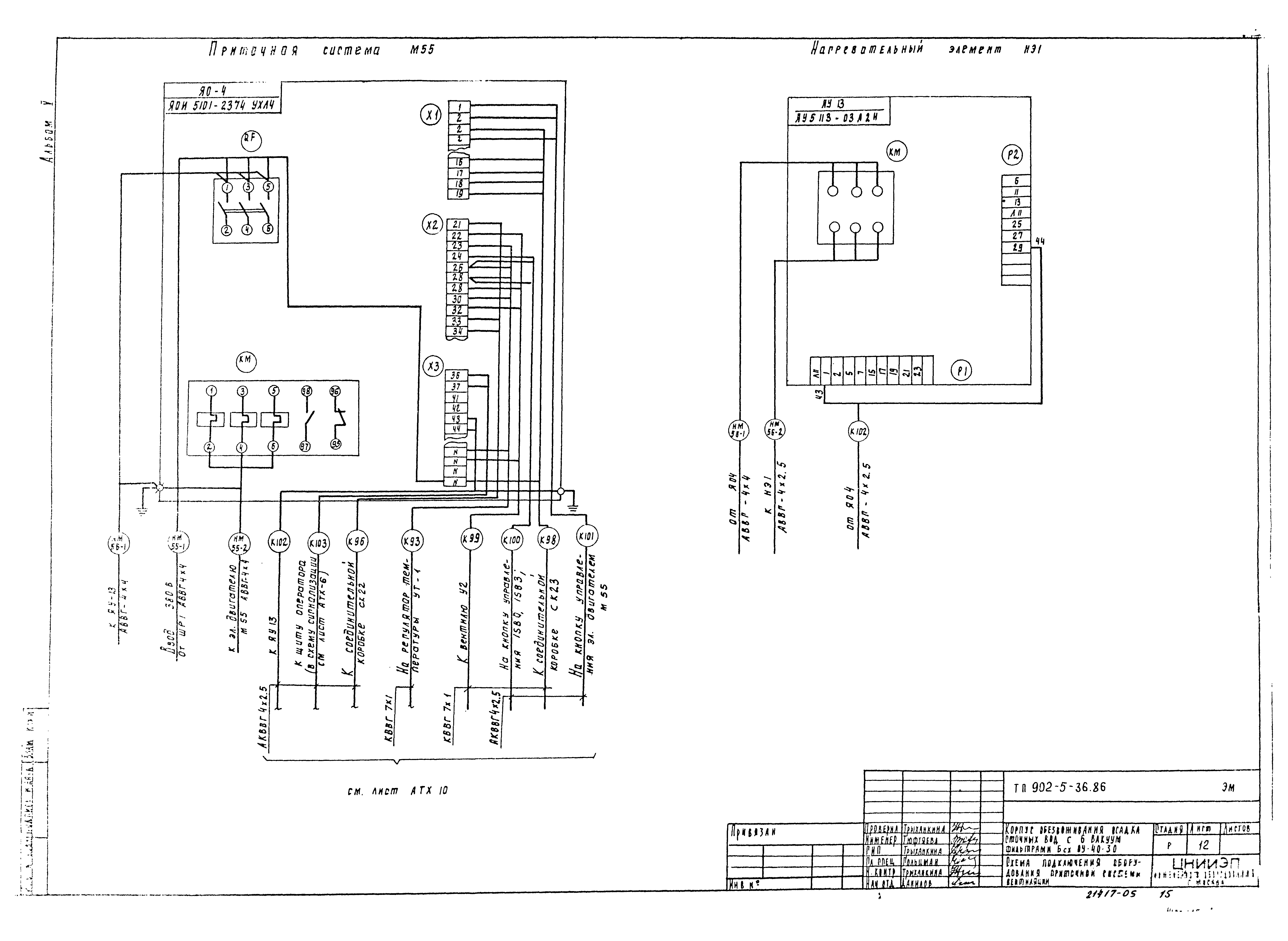
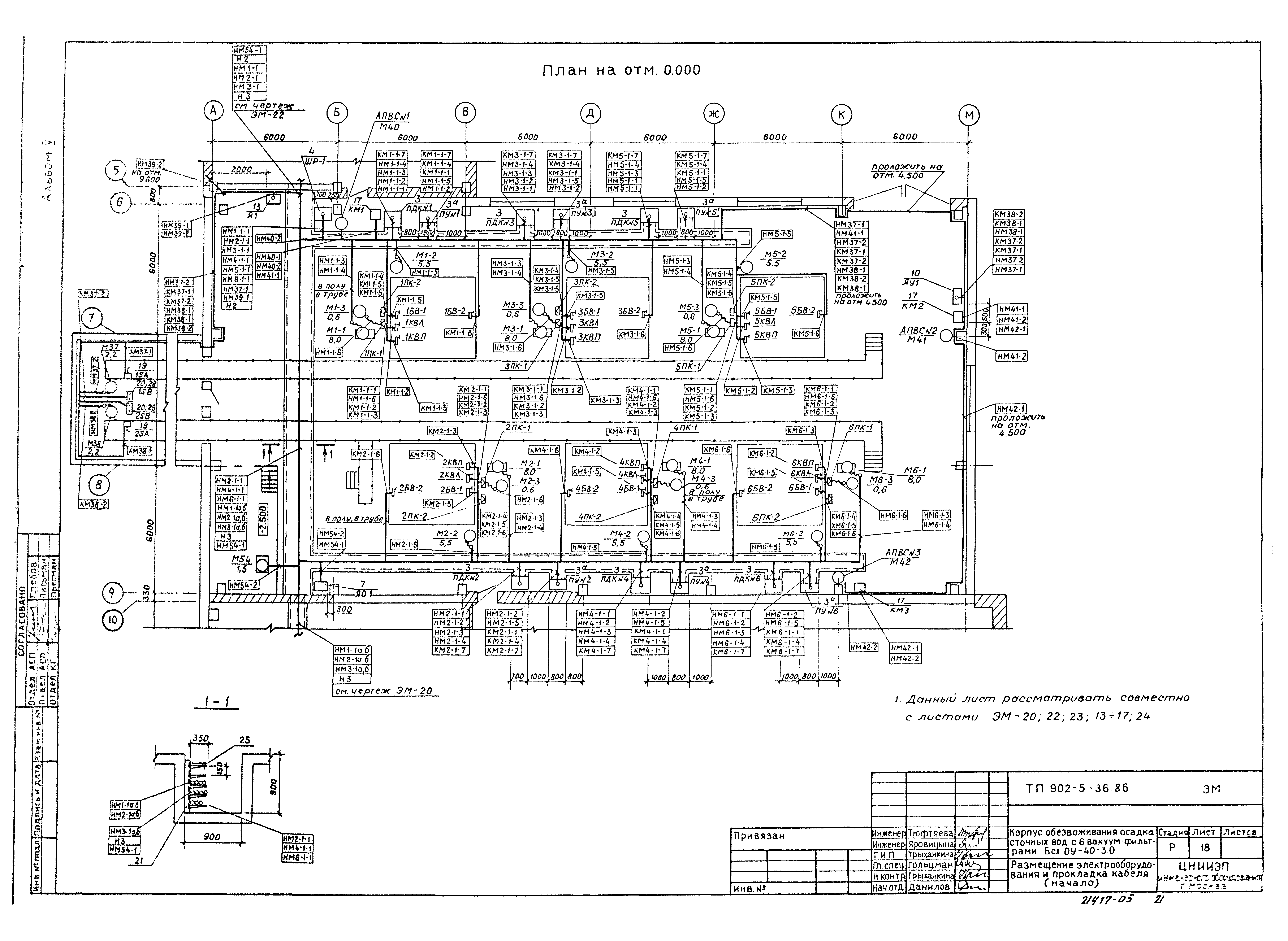
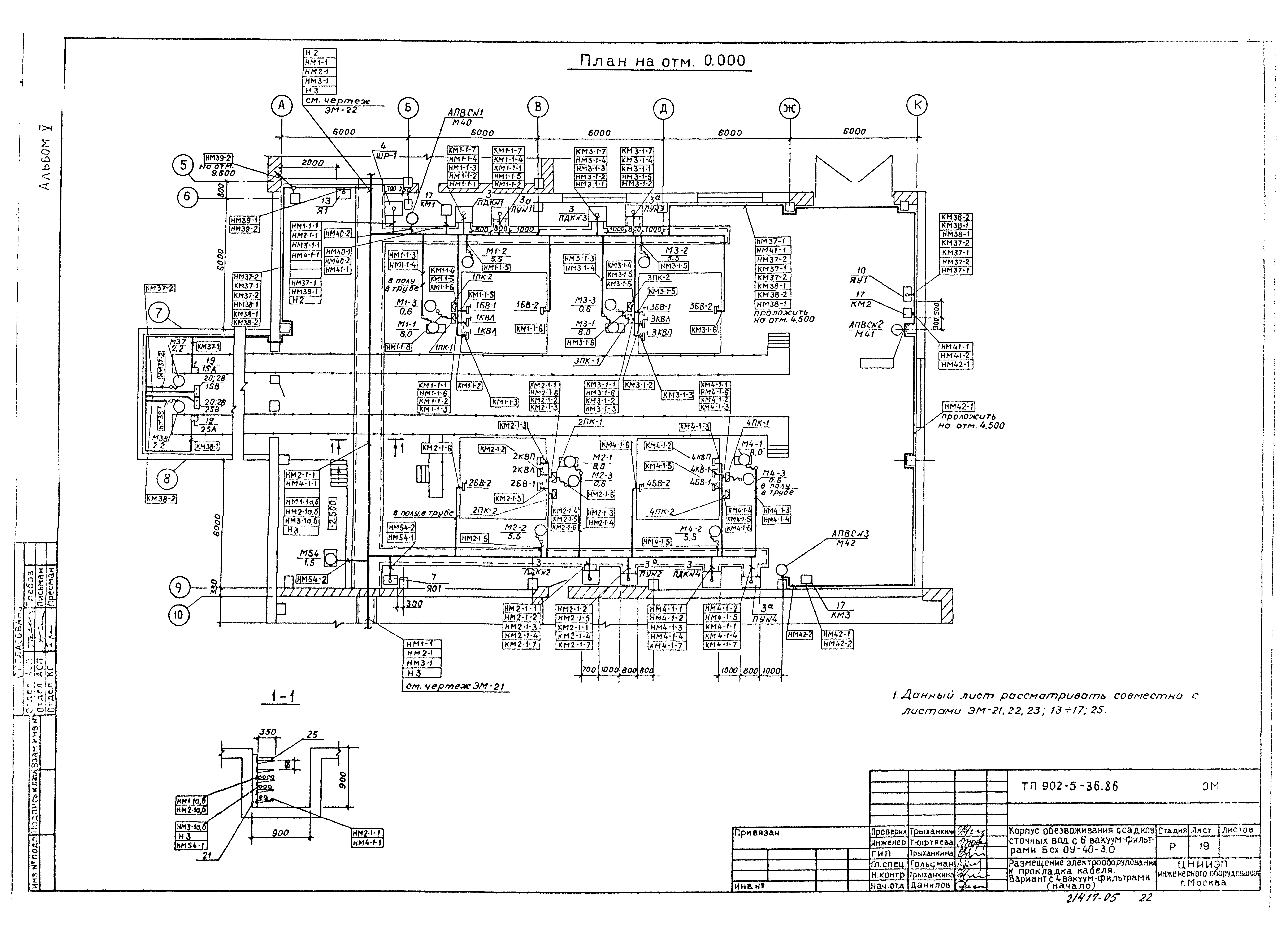
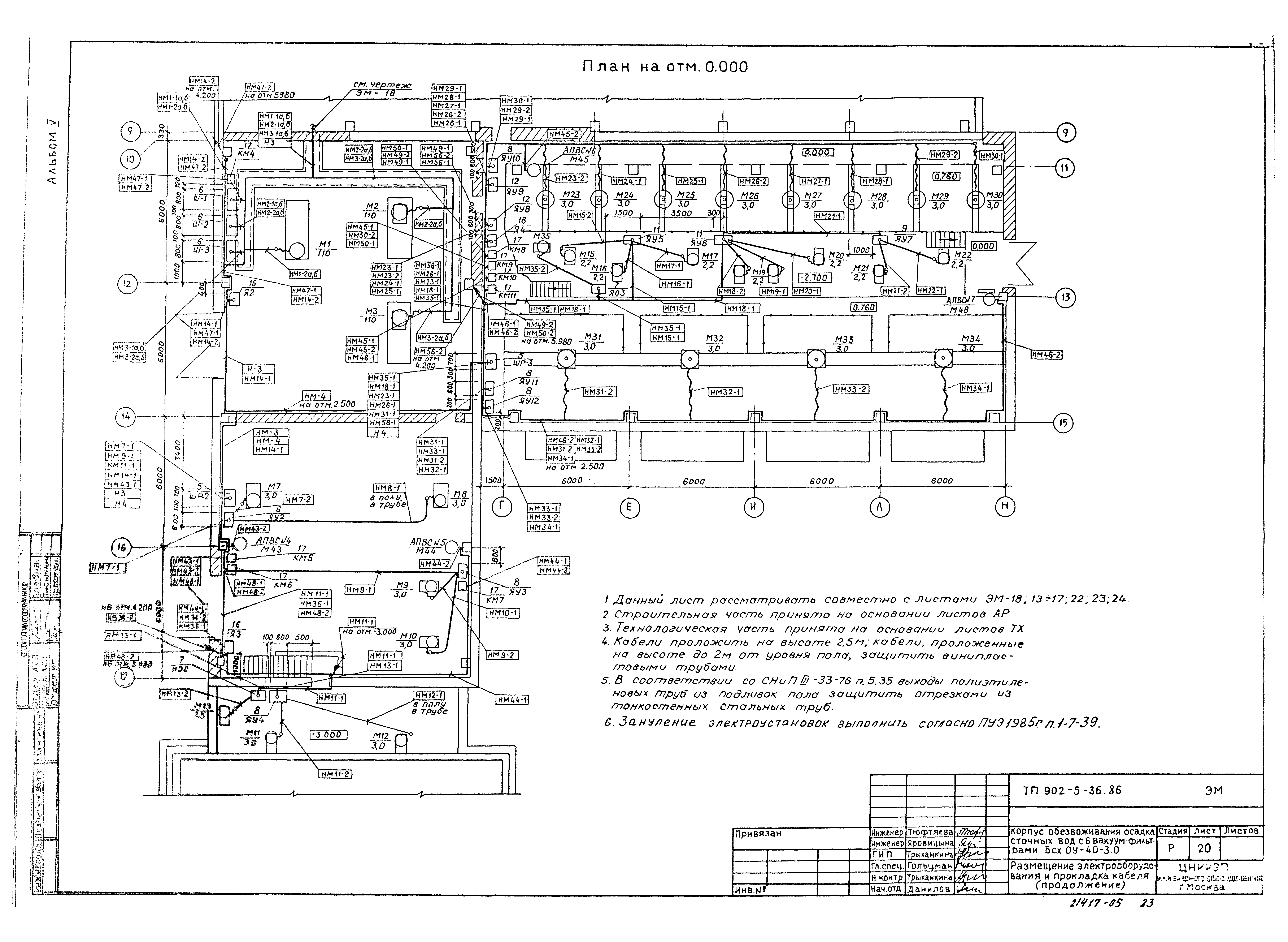
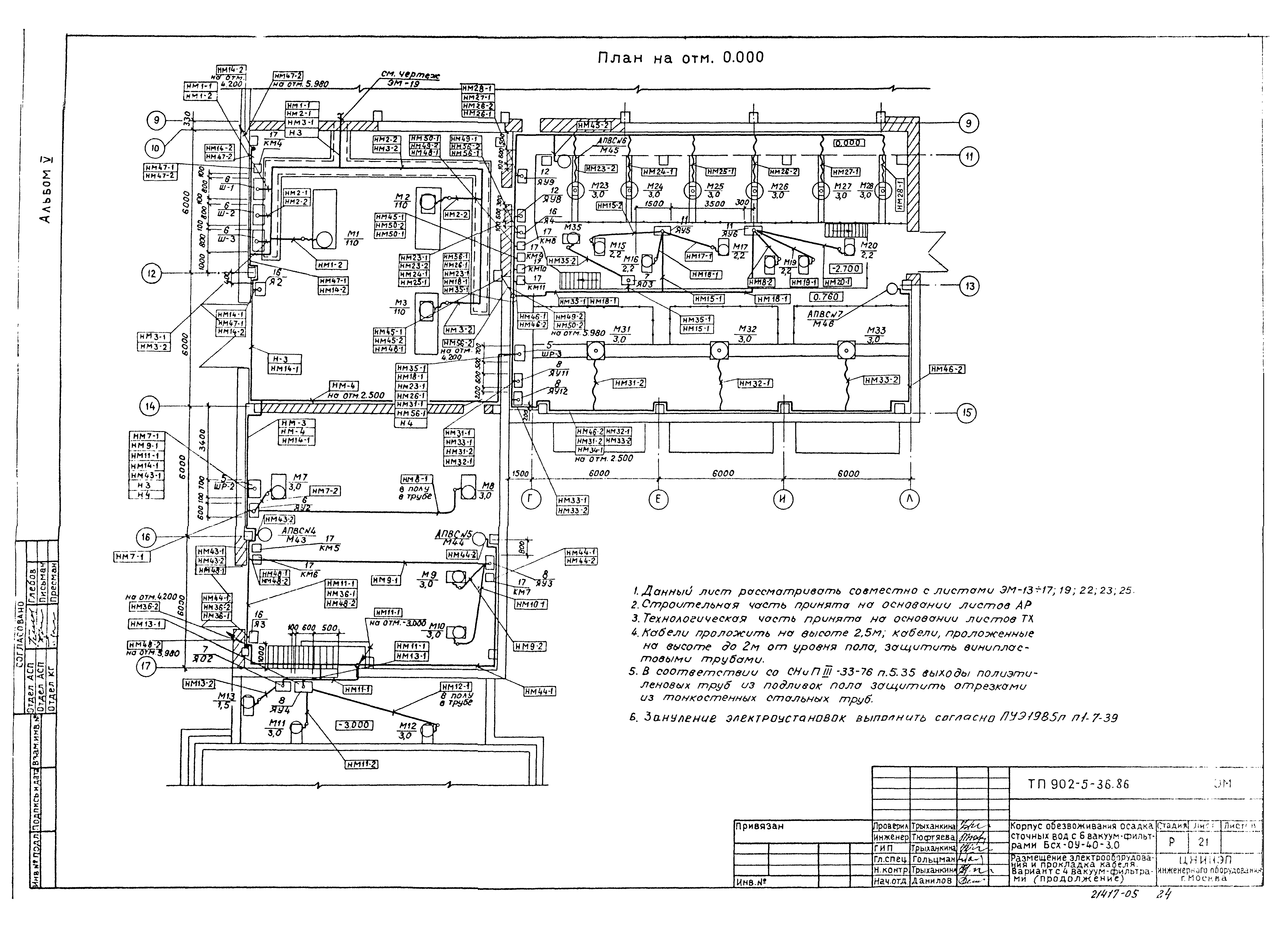
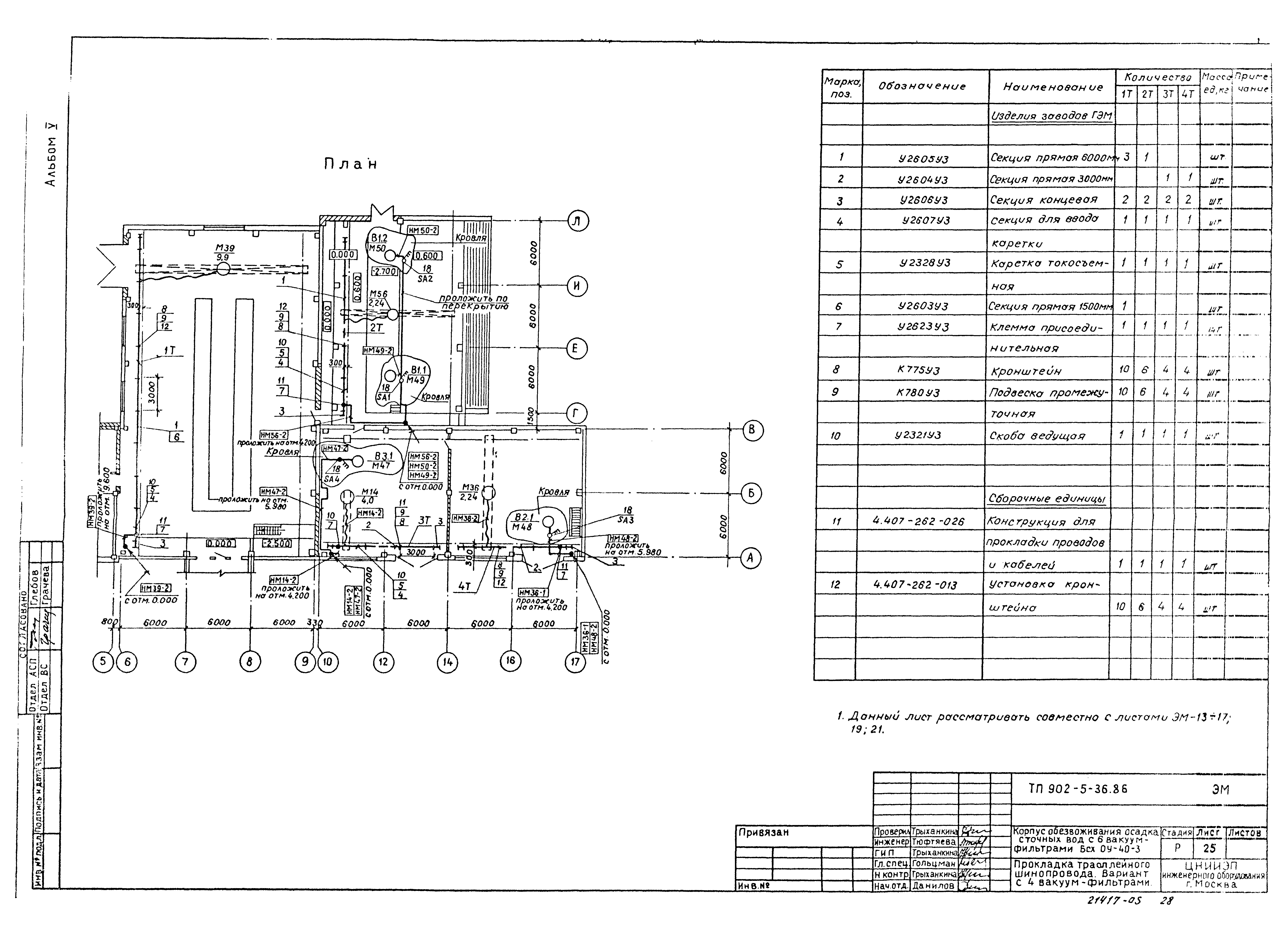
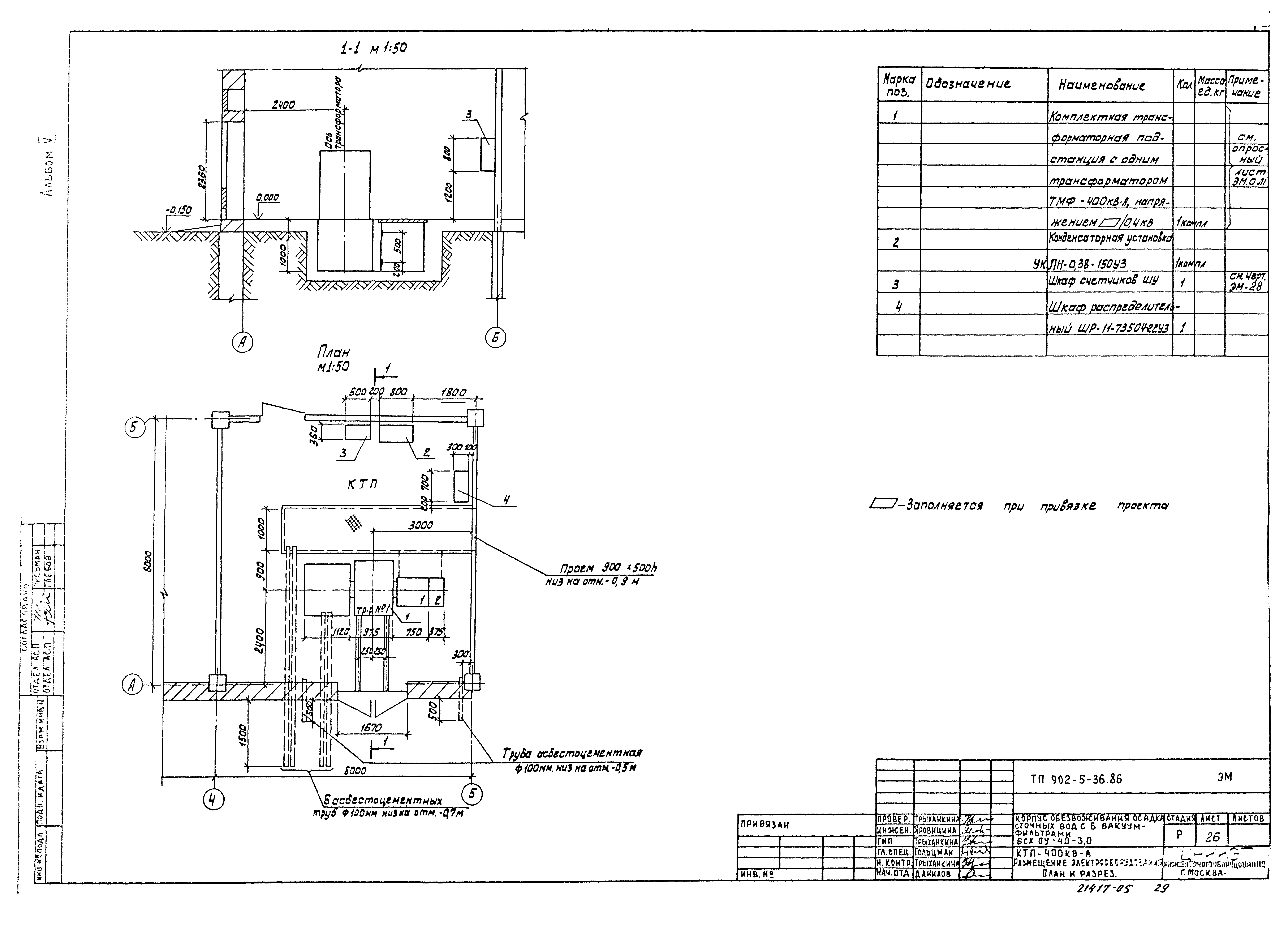
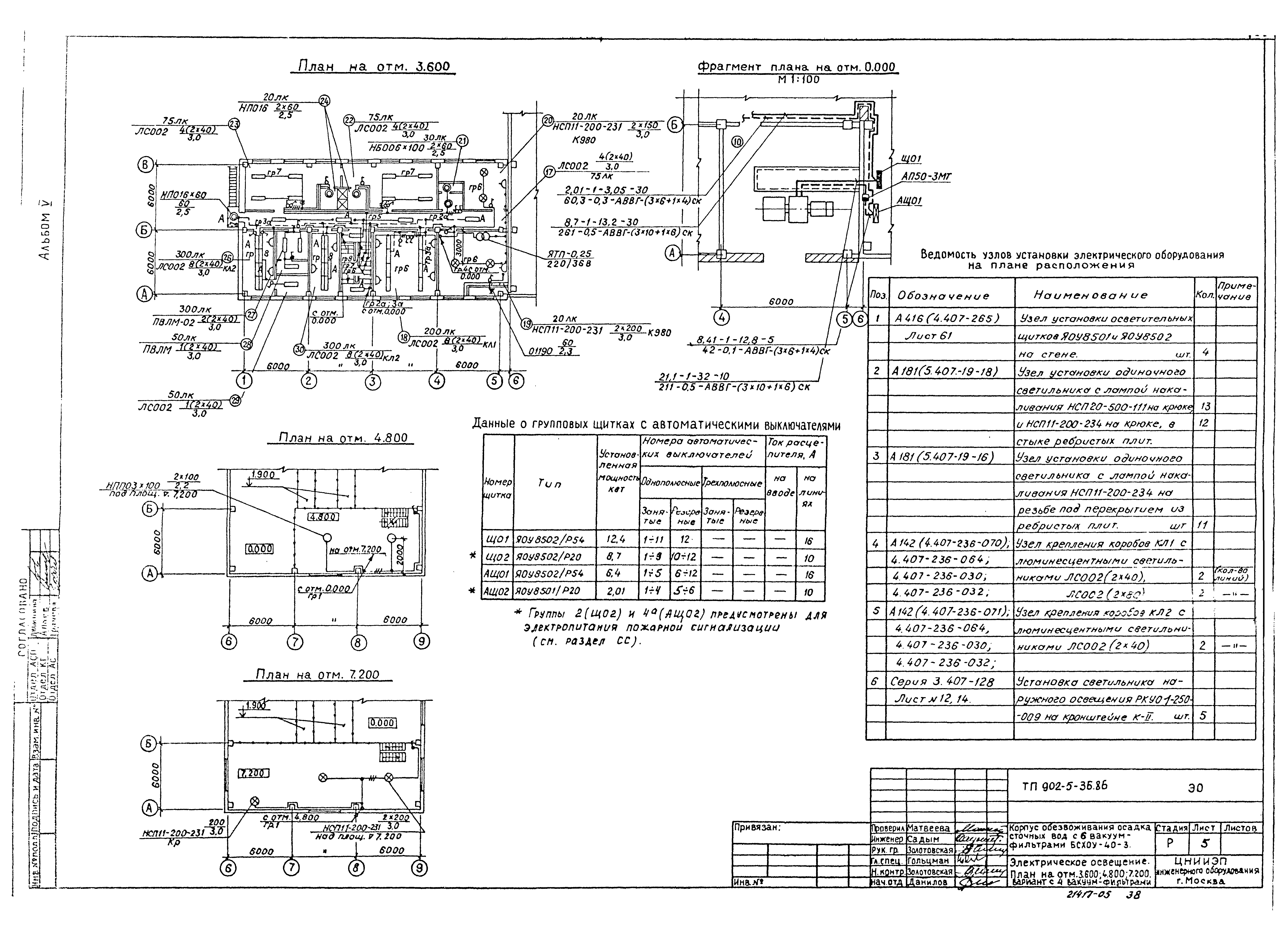
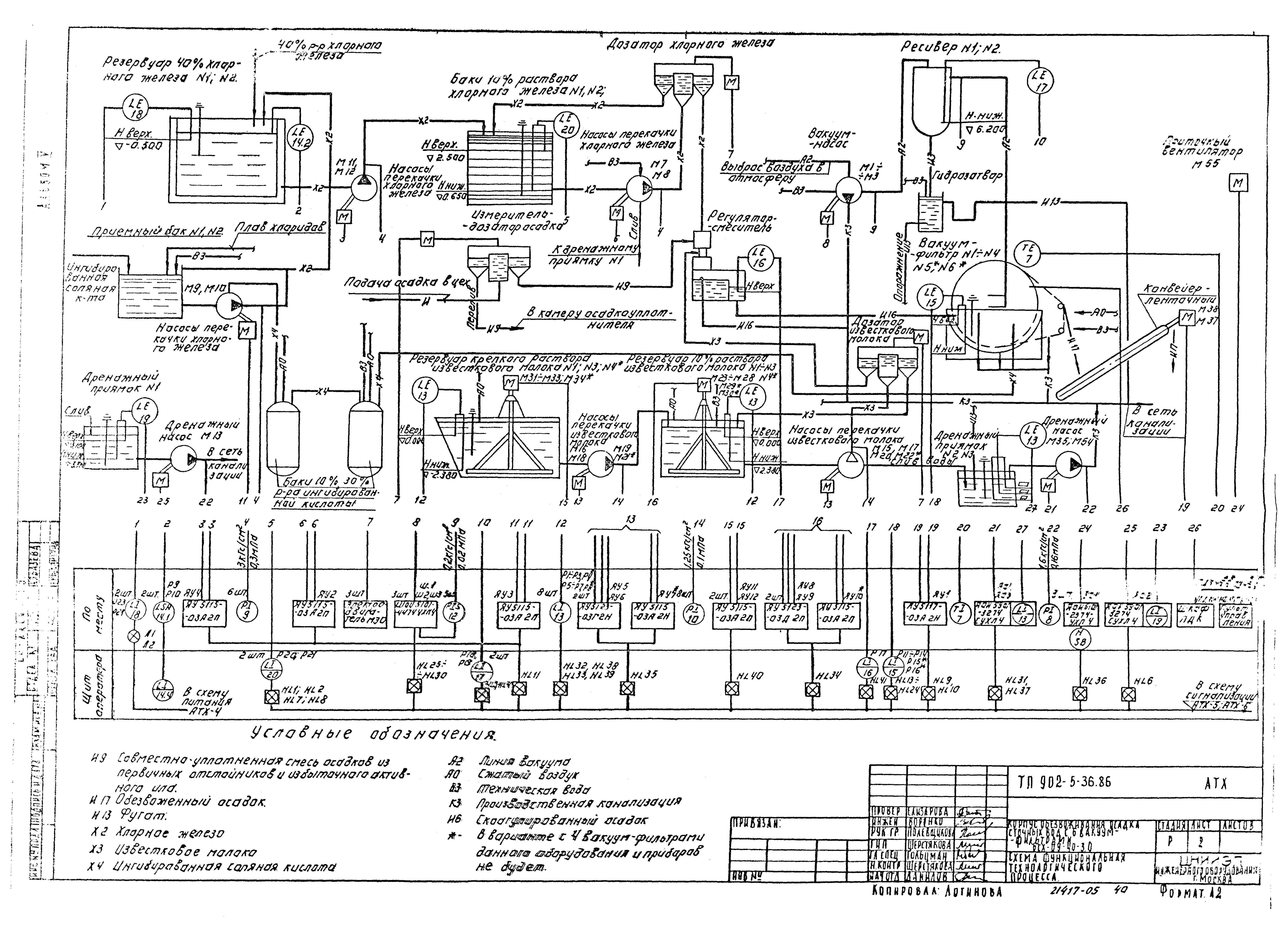
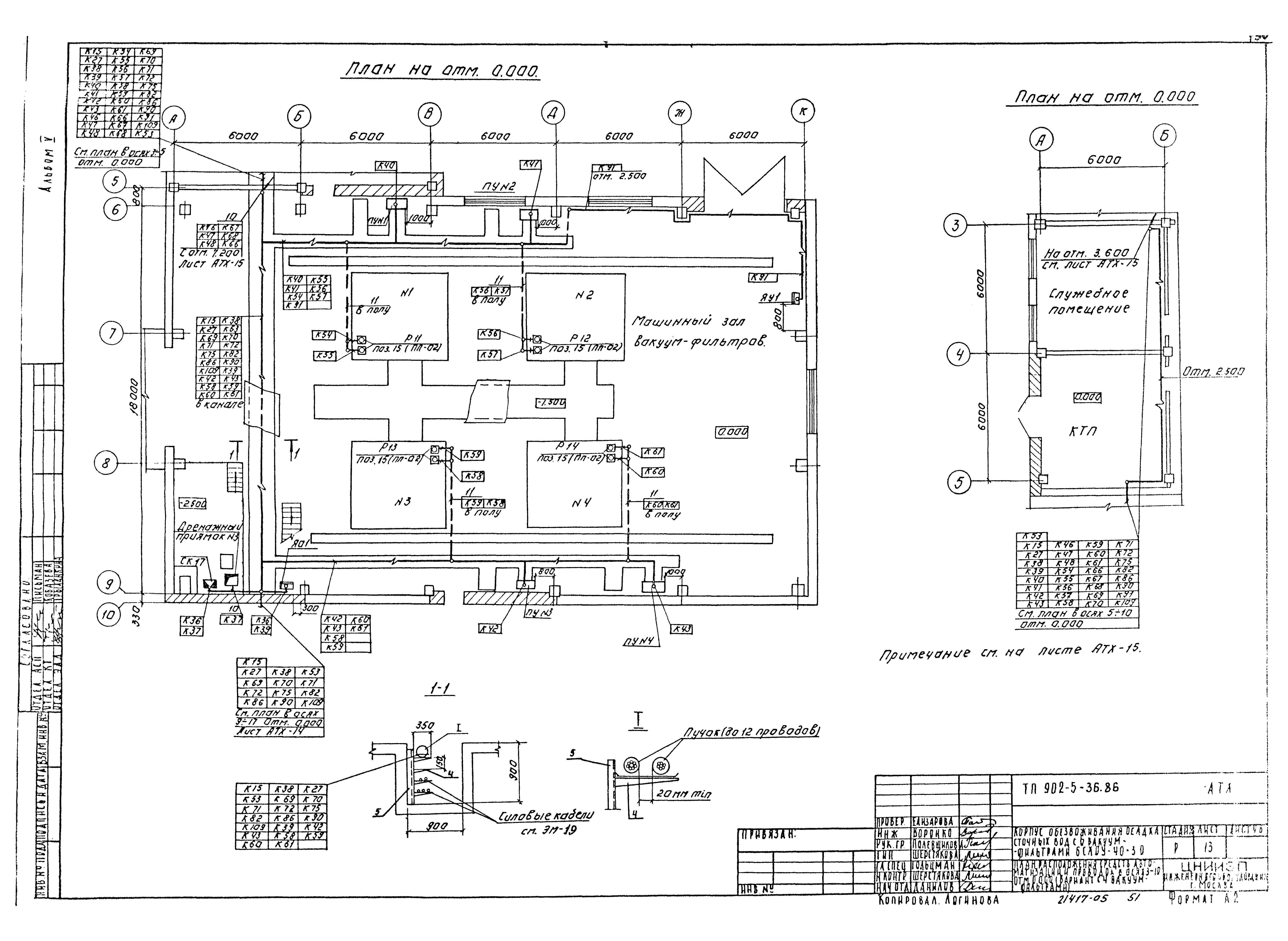
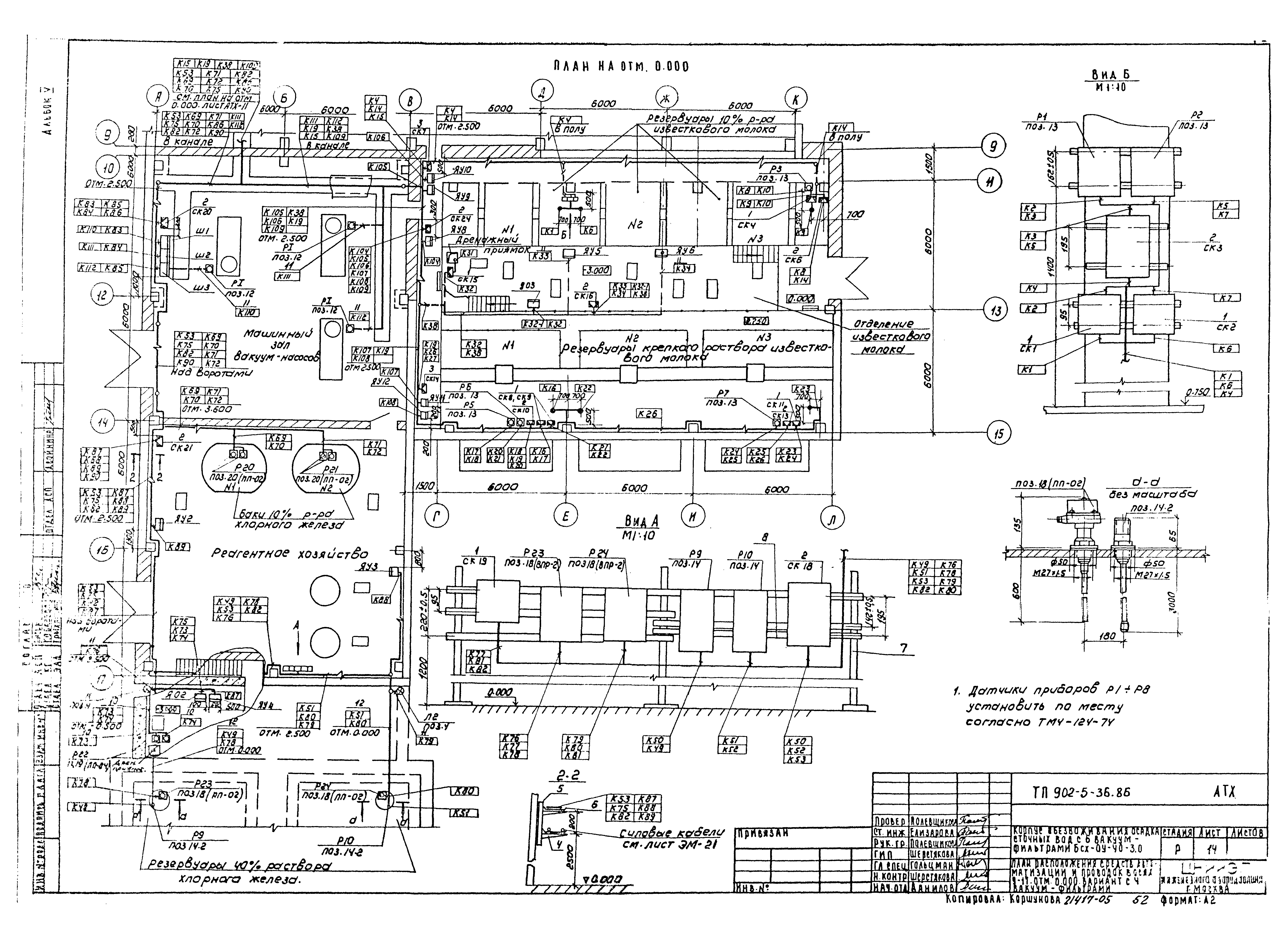
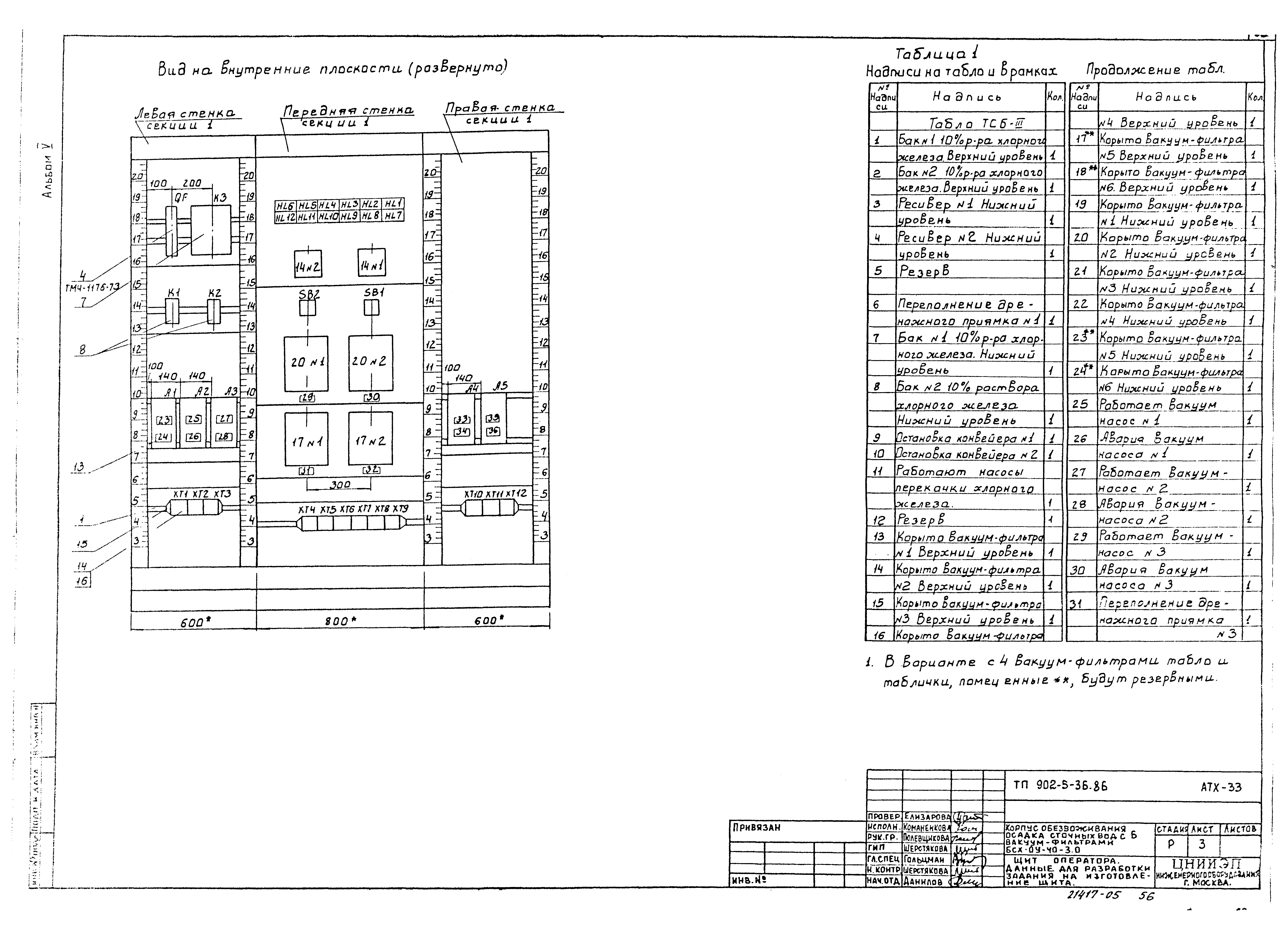
| Оглавление: | Электротехническая часть Общие данные КТП-400 кВА. Схема принципиальная электрическая 0,4 кВ Схема электрическая принципиальная питания электрооборудования Схема электрическая принципиальная управления и подключения конвейера Схема подключения электрооборудования вакуум-фильтра Схема подключения оборудования. Вакуум-насосы, дренажные насосы Схема подключения оборудования насосов перекачки известкового молока, хлорного железа и перемешиватели Схема подключения оборудования крышных и вытяжных вентиляторов Схема подключения оборудования приточной системы вентиляции Кабельный журнал Размещение электрооборудования и прокладка кабеля Размещение электрооборудования и прокладка кабеля. Вариант с 4 вакуум-фильтрами Прокладка троллейного шинопровода Прокладка троллейного шинопровода. Вариант с 4 вакуум-фильтрами КТП-400 кВА. Размещение электрооборудования. План и разрез КТП-400 кВА. Заземление. План Шкаф навесной счетчиков. Общий вид. Принципиальная схема. Схема соединений Опросный лист для заказа КТП-400 /0,4кВ. Армэлектрозавод Шкаф счетчиков ШУ Электрическое освещение Общие данные Электрическое освещение. План на отм. 0.000 Электрическое освещение. План на отм. 3.600; 4.800; 7.200 Электрическое освещение. План на отм. 0.000. Вариант с 4 вакуум-фильтрами Электрическое освещение. План на отм. 3.600; 4.800; 7.200. Вариант с 4 вакуум-фильтрами Автоматизация технологического процесса Общие данные. Схема функциональная приточной системы П1 Схема функциональная технологического процесса Схема электрическая принципиальная питания Схема электрическая принципиальная сигнализации Схема внешних проводок Приточная система План расположения средств автоматизации и проводок в осях 3 - 10. Отм. 0.000 План расположения средств автоматизации и проводок в осях 9 - 17. Отм. 0.000 План расположения средств автоматизации и проводок в осях 3 - 10. Отм. 0.000. Вариант с 4 вакуум-фильтрами План расположения средств автоматизации и проводок в осях 9 - 17. Отм. 0.000. Вариант с 4 вакуум-фильтрами План расположения средств автоматизации и проводок. Отм. 3.600; 4.800; 7.200 Щит оператора. Данные для разработки задания на изготовление щита Связь и сигнализация Общие данные. Спецификация. Экспликация помещений. Скелетная схема План на отм. 0.000 и 3.600 с сетями связи |
| Разработан: | ЦНИИЭП инженерного оборудования |
| Утверждён: | 14.03.1986 Госгражданстрой (Gosgrazhdanstroy 88) |
| Заменяет собой: |


























































