Скачать Типовой проект 902-5-35.86 Альбом 6. Нестандартизированное оборудование, нетиповые технологические конструкции (Эскизные чертежи общих видов). (из ТП 902-5-36.86)Дата актуализации: 01.01.2021
|
| Обозначение: | Типовой проект 902-5-35.86 |
| Обозначение англ: | 902-5-35.86 |
| Статус: | не определен законодательством |
| Название рус.: | Альбом 6. Нестандартизированное оборудование, нетиповые технологические конструкции (Эскизные чертежи общих видов). (из ТП 902-5-36.86) |
| Дата добавления в базу: | 21.05.2015 |
| Дата актуализации: | 01.01.2021 |
| Дата введения: | 01.10.1986 |
| Дата окончания срока действия: | 30.06.2003 |
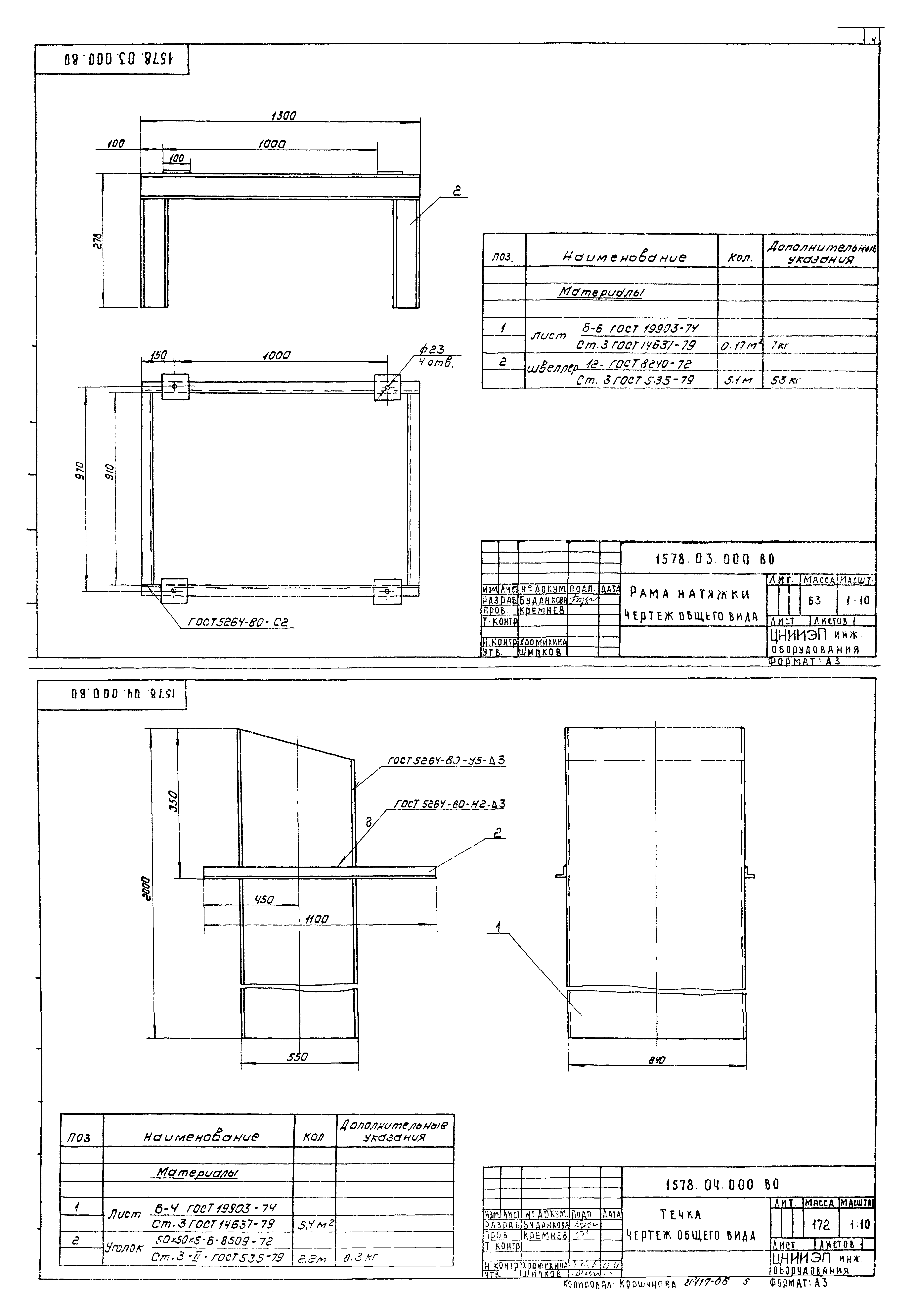
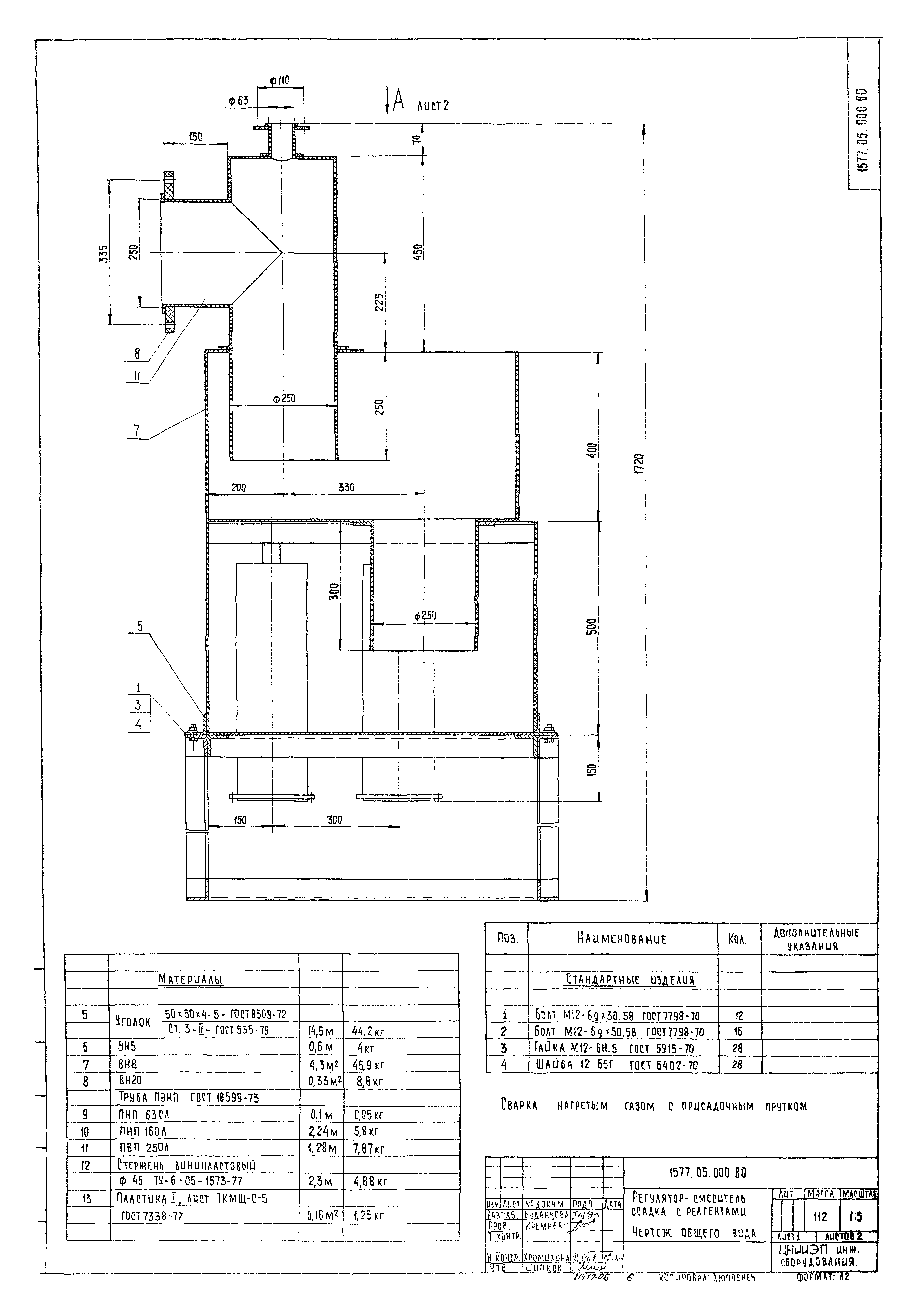
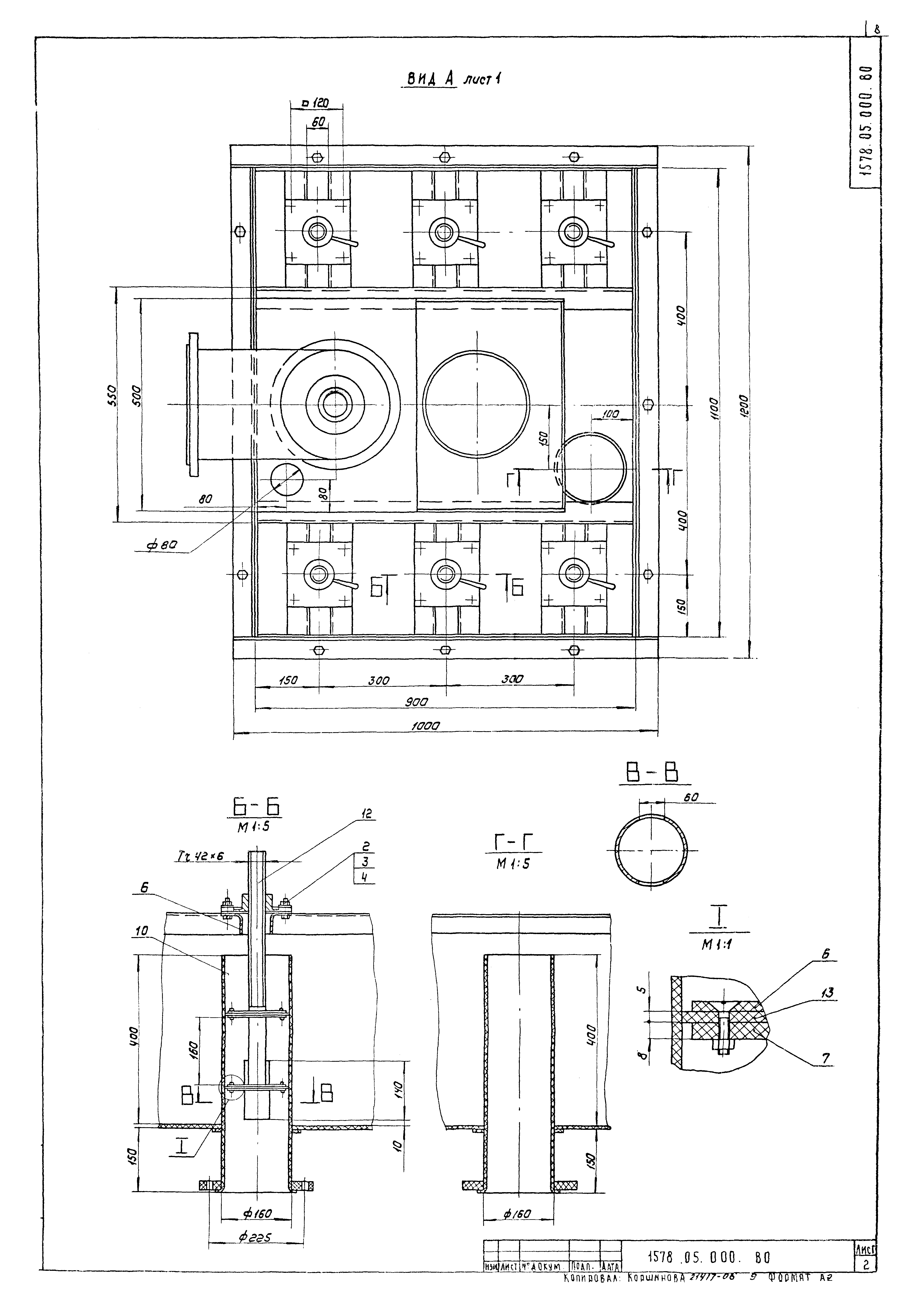
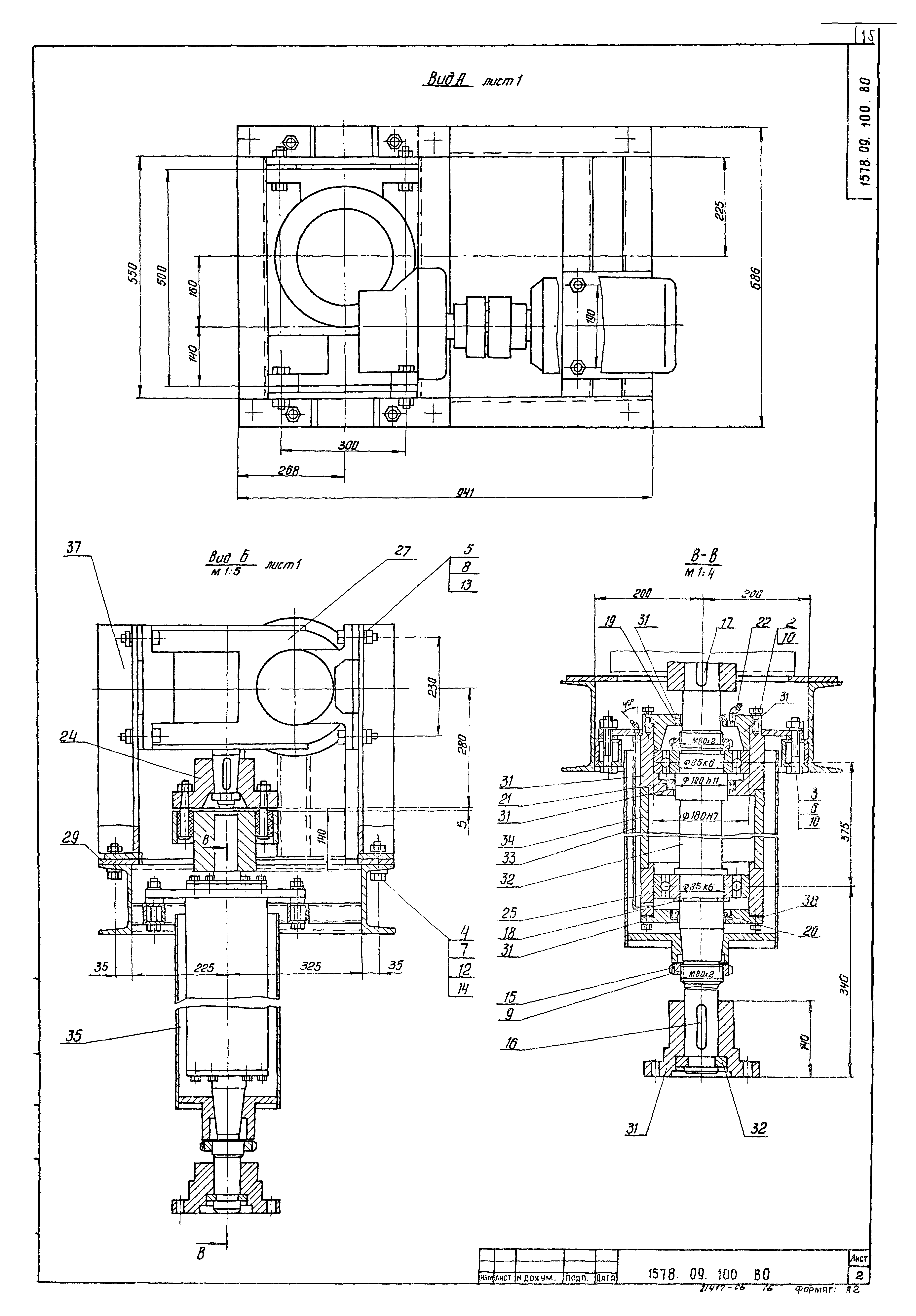
| Оглавление: | ТП 902-5-36.86 Обложка ТП 902-5-36.86 Титульный лист ТП 902-5-36.86 Содержание альбома ТП 902-5-36.86 1578.01.000 ВО Рама привода. Чертеж общего вида ТП 902-5-36.86 1578.02.000 ВО Рама привода. Чертеж общего вида ТП 902-5-36.86 1578.03.000 ВО Рама натяжки. Чертеж общего вида ТП 902-5-36.86 1578.04.000 ВО Течка. Чертеж общего вида ТП 902-5-36.86 1577.05.000 ВО Регулятор-смеситель осадка с реагентами. Чертеж общего вида. Лист 1 ТП 902-5-36.86 1577.05.000 ВО Регулятор-смеситель осадка с реагентами. Чертеж общего вида. Лист 2 ТП 902-5-36.86 1578.05.000 ВО Регулятор-смеситель осадка с реагентами. Чертеж общего вида. Лист 1 ТП 902-5-36.86 1578.05.000 ВО Регулятор-смеситель осадка с реагентами. Чертеж общего вида. Лист 2 ТП 902-5-36.86 1578.06.000 ВО Траверса. Чертеж общего вида ТП 902-5-36.86 1578.07.000 ВО Захват. Чертеж общего вида ТП 902-5-36.86 1578.08.000 ВО Измеритель - дозатор осадка. Чертеж общего вида. Лист 1 ТП 902-5-36.86 1578.08.000 ВО Измеритель - дозатор осадка. Чертеж общего вида. Лист 2 ТП 902-5-36.86 1578.09.000 ВО Перемешиватель. Чертеж общего вида ТП 902-5-36.86 1578.09.000-01ВО Перемешиватель. Чертеж общего вида ТП 902-5-36.86 1578.09.100 ВО Привод с рамой. Чертеж общего вида. Лист 1 ТП 902-5-36.86 1578.09.100 ВО Привод с рамой. Чертеж общего вида. Лист 2 ТП 902-5-36.86 1578.09.110 ВО Рама. Чертеж общего вида ТП 902-5-36.86 1578.09.300 ВО Мешалка. Чертеж общего вида ТП 902-5-36.86 1578.09.300-01ВО Мешалка. Чертеж общего вида ТП 902-5-36.86 1578.09.200 ВО Подпятник. Чертеж общего вида ТП 902-5-36.86 1578.10.000 ВО Гидрозатвор. Чертеж общего вида |
| Разработан: | ЦНИИЭП инженерного оборудования |
| Утверждён: | 14.03.1986 Госгражданстрой (Gosgrazhdanstroy 88) |
| Заменяет собой: |



















