Скачать Типовой проект 902-9-12 Альбом II. Технологическая, санитарно-техническая, архитектурно-строительная, электротехническая части, связь и сигнализацияДата актуализации: 01.01.2021
|
| Обозначение: | Типовой проект 902-9-12 |
| Обозначение англ: | 902-9-12 |
| Статус: | не определен законодательством |
| Название рус.: | Альбом II. Технологическая, санитарно-техническая, архитектурно-строительная, электротехническая части, связь и сигнализация |
| Дата добавления в базу: | 01.09.2013 |
| Дата актуализации: | 01.01.2021 |
| Дата введения: | 08.07.1981 |
| Дата окончания срока действия: | 30.06.2003 |
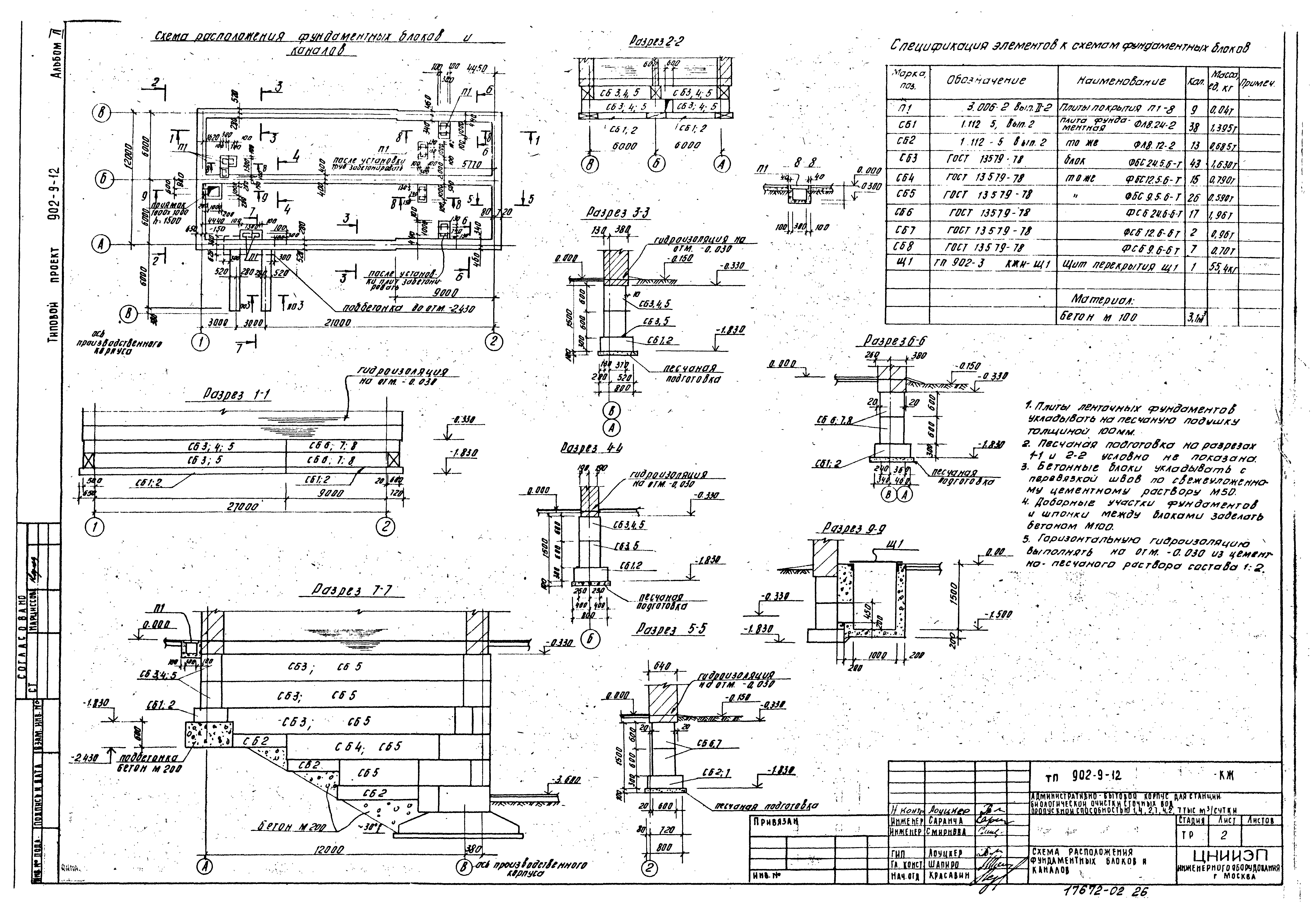
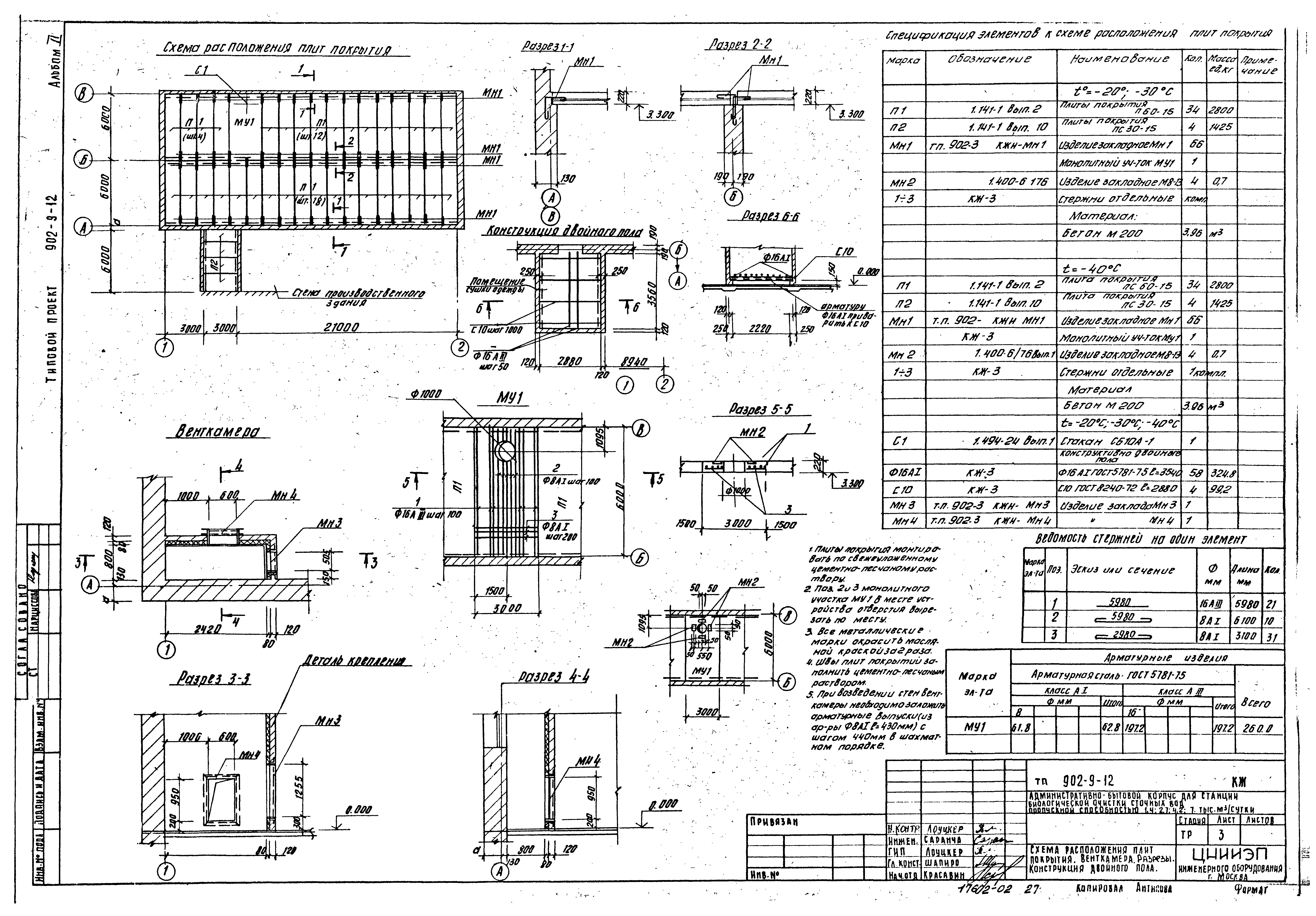
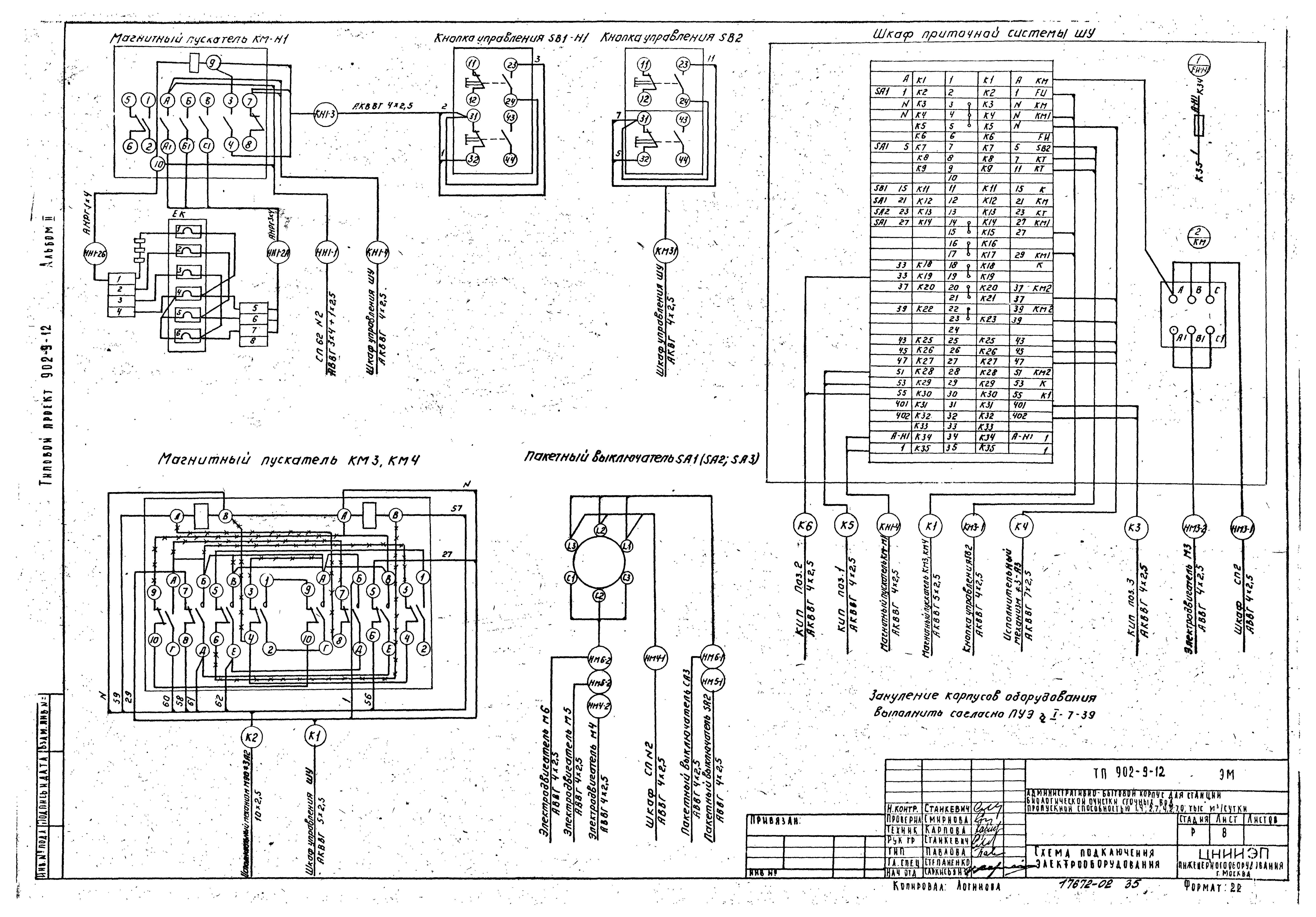
| Оглавление: | Чертежи основного комплекта марки ОВ Общие данные План на отм. 0.000 Схема системы отопления. План, разрез 1-1. Схема регистра помещения сушки одежды Схемы систем П-1; В-1; В-2; В-3 Венткамера. План. Разрезы 1-1; 2-2. Узел ввода для теплоносителя 95 - 70 градусов Цельсия Узел ввода для теплоносителя 150 - 70 градусов Цельсия. План. Разрезы Вытяжная венткамера. План. Разрез Звено прямого участка шовного асбестоцементного воздуховода Спецификация Чертежи основного комплекта марки ВК Общие данные План на отм. 0.000 Схемы систем В1 и Т3 Схема системы К1 Чертежи основного комплекта марки АР Общие данные Фасады 1-2; В-А. Разрезы 1-1; 2-2. План на отм. 0.000 Фрагмент 1: архитектурные детали Чертежи основного комплекта марки КМ Общие данные Схема расположения фундаментных блоков и каналов Схема расположения плит покрытия. Венткамера. Разрезы. Конструкция двойного пола Чертежи основного комплекта марки ЭМ Общие данные. Ведомость электрооборудования и материалов Схема электрическая принципиальная питания электрооборудования Схема электрическая принципиальная управления приточным вентилятором Схема электрическая принципиальная управления обогревом заслонки наружного воздуха Схема подключения электрооборудования Кабельный журнал Размещение электрооборудования и прокладка кабеля на отм. 0.000 Электрическое освещение. План на отм. 0.000 Чертежи основного комплекта марки АНК Общие данные. Схема подключения приборов технологического контроля Чертежи основного комплекта марки СС Общие данные. План на отм. 0.000 с сетями связи и сигнализации Чертежи основного комплекта марки КЖИ Изделия закладные МН-3, МН-4 Щит металлический Щ5. Изделие закладное МН-1 |
| Разработан: | ЦНИИЭП инженерного оборудования |
| Утверждён: | 20.02.1981 Госгражданстрой (Gosgrazhdanstroy 59) |
| Заменяет собой: |




































