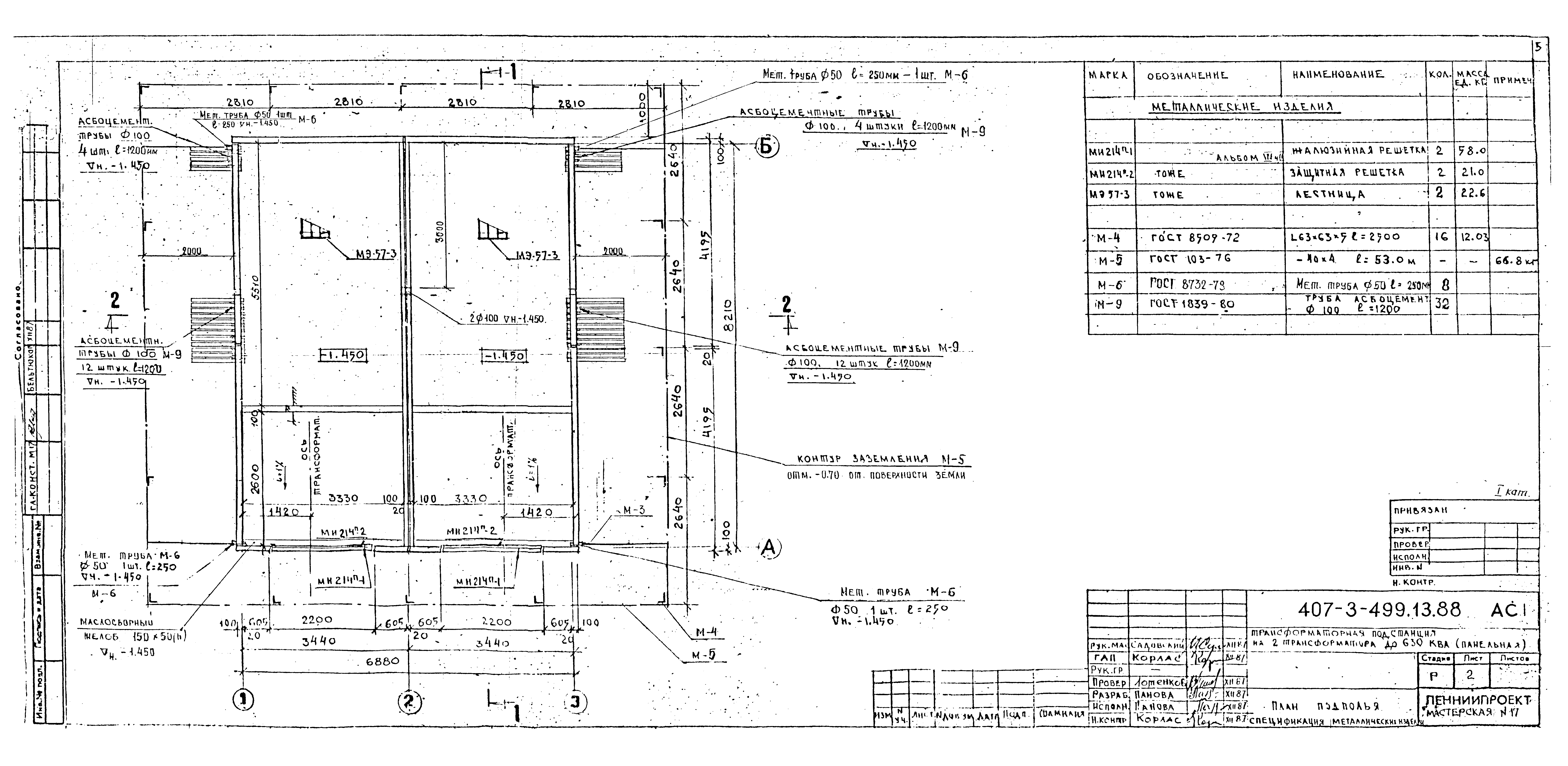
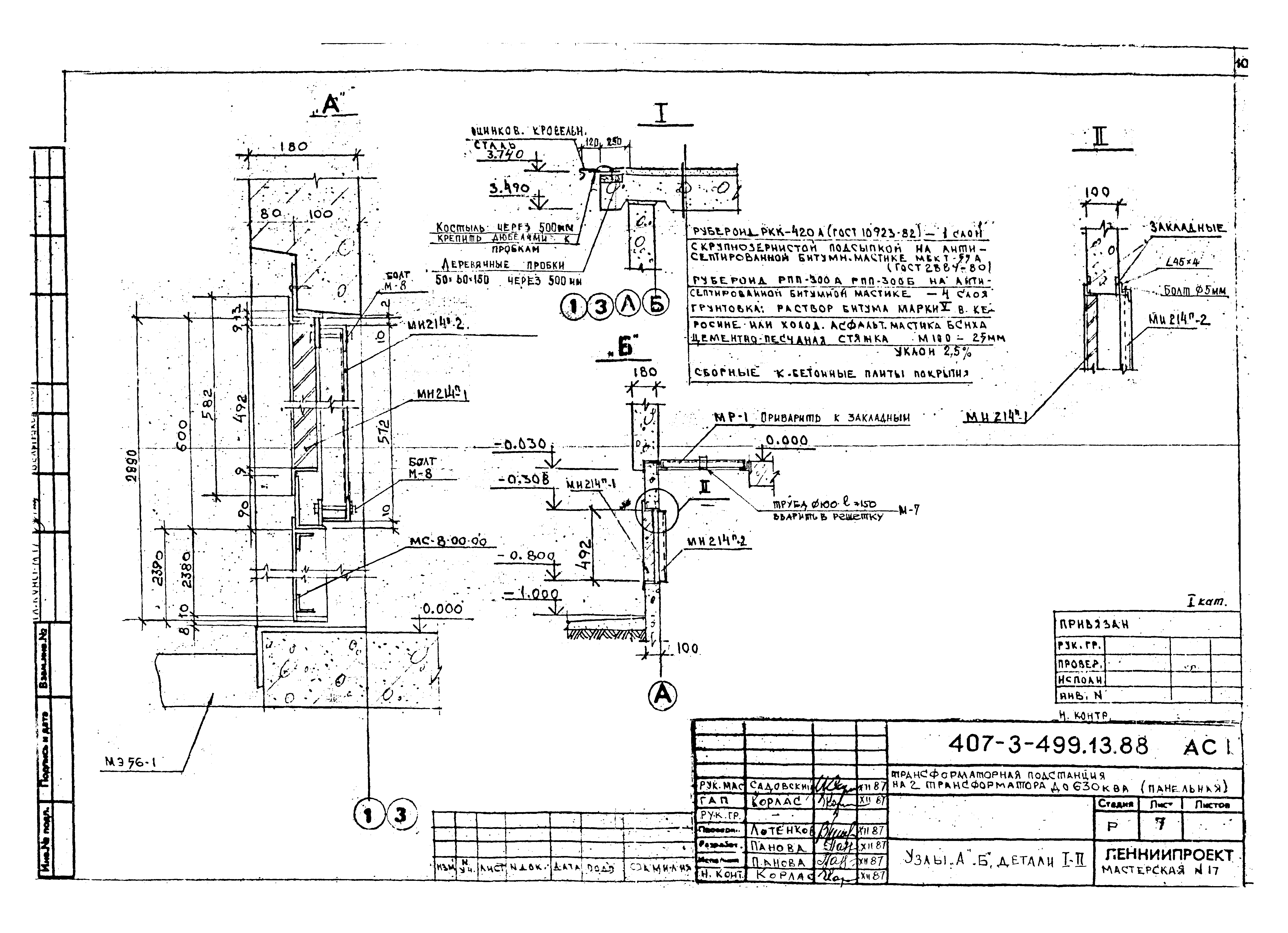
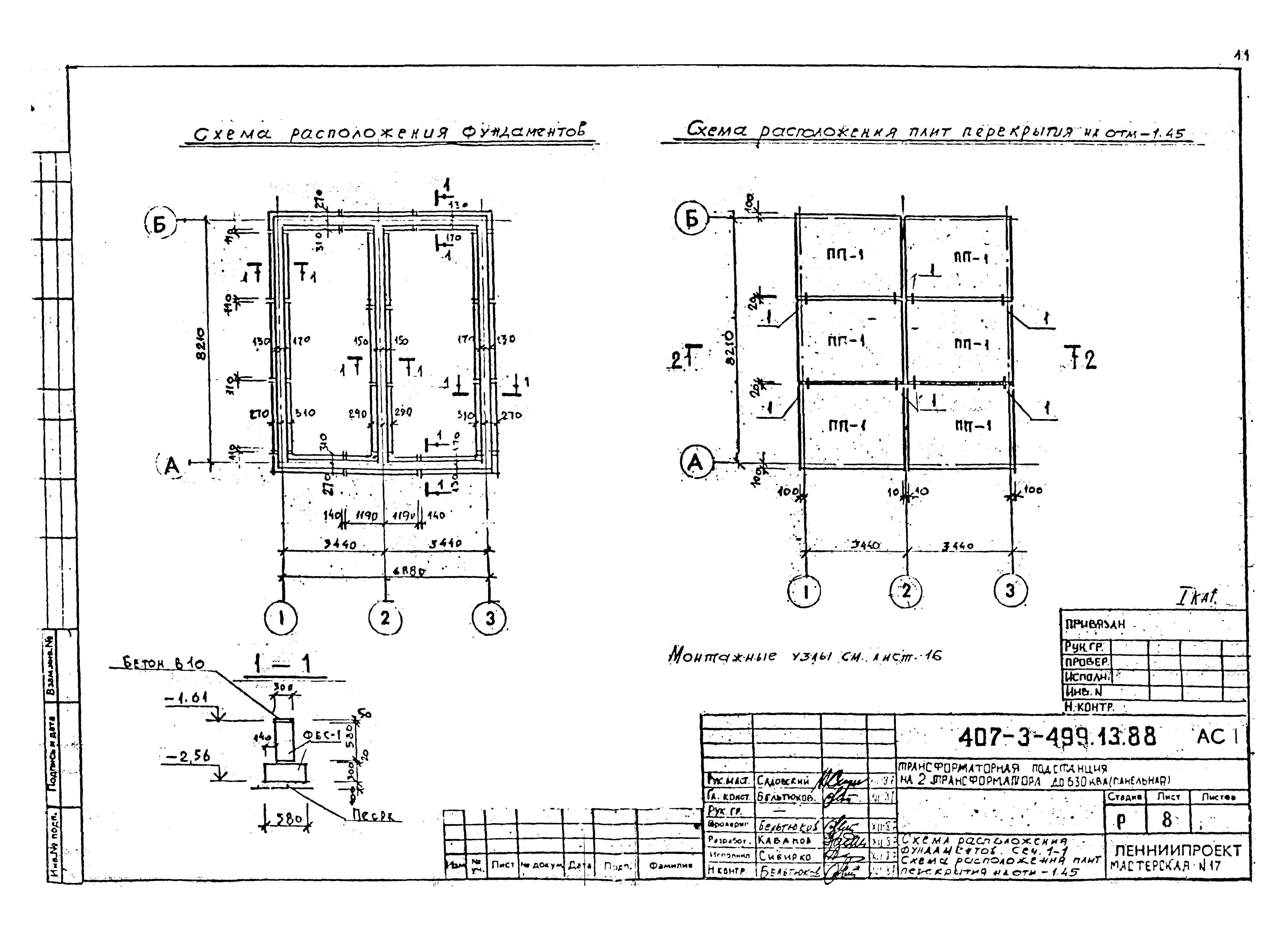
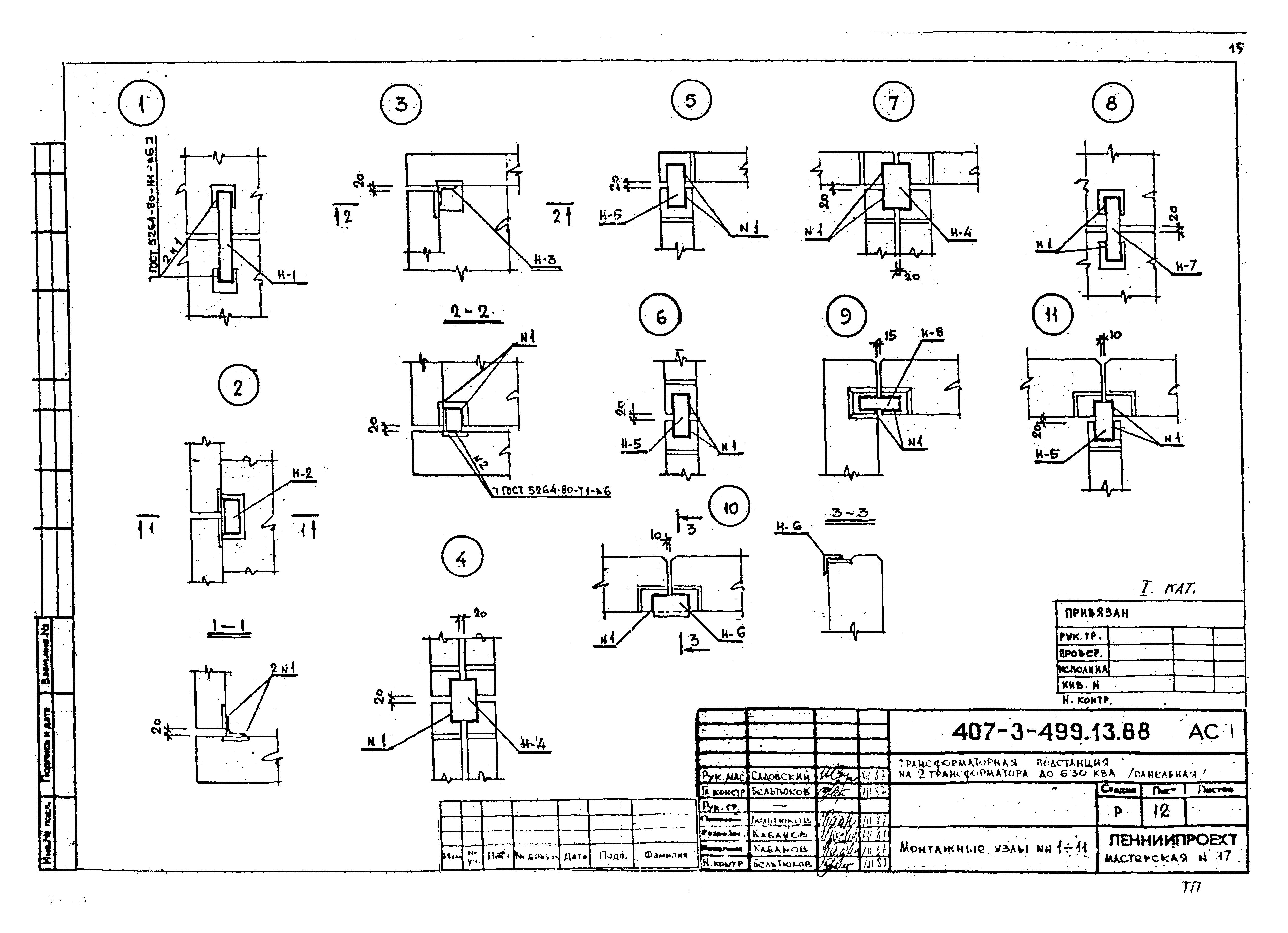
Скачать Типовой проект 407-3-499.13.88 Альбом II. Часть I. Архитектурно-строительная часть проекта. Трансформаторная подстанция I категорииДата актуализации: 01.01.2021
|
| Обозначение: | Типовой проект 407-3-499.13.88 |
| Обозначение англ: | 407-3-499.13.88 |
| Статус: | не определен законодательством |
| Название рус.: | Альбом II. Часть I. Архитектурно-строительная часть проекта. Трансформаторная подстанция I категории |
| Дата добавления в базу: | 01.09.2013 |
| Дата актуализации: | 01.01.2021 |
| Дата введения: | 06.07.1988 |
| Дата окончания срока действия: | 30.06.2003 |
| Разработан: | Ленниипроект |
| Утверждён: | 06.07.1988 Ленниипроект (351) |

















