Скачать Типовой проект 407-3-499.13.88 Альбом II. Часть II. Архитектурно-строительная часть проекта. Трансформаторная подстанция II категорииДата актуализации: 01.01.2021
|
| Обозначение: | Типовой проект 407-3-499.13.88 |
| Обозначение англ: | 407-3-499.13.88 |
| Статус: | не определен законодательством |
| Название рус.: | Альбом II. Часть II. Архитектурно-строительная часть проекта. Трансформаторная подстанция II категории |
| Дата добавления в базу: | 01.09.2013 |
| Дата актуализации: | 01.01.2021 |
| Дата введения: | 06.07.1988 |
| Дата окончания срока действия: | 30.06.2003 |
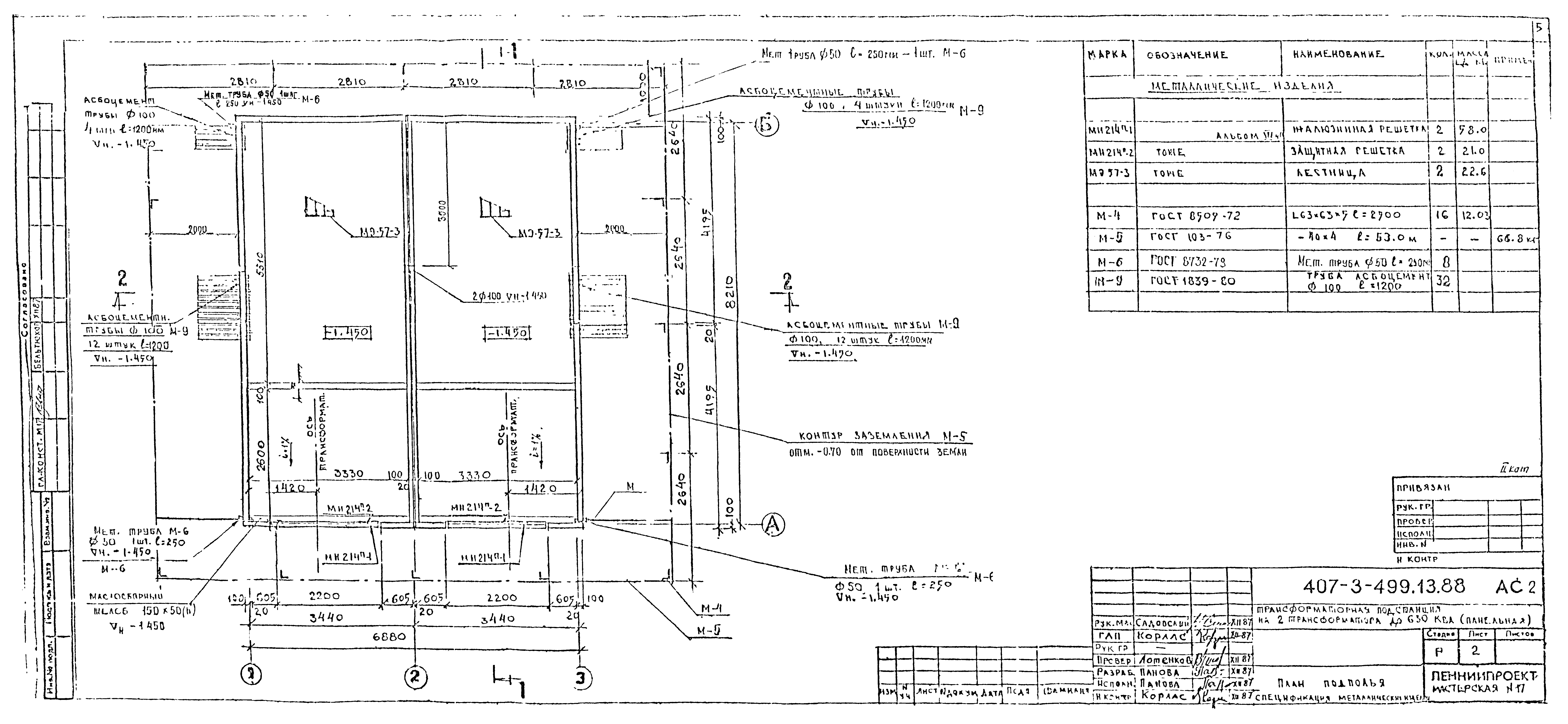
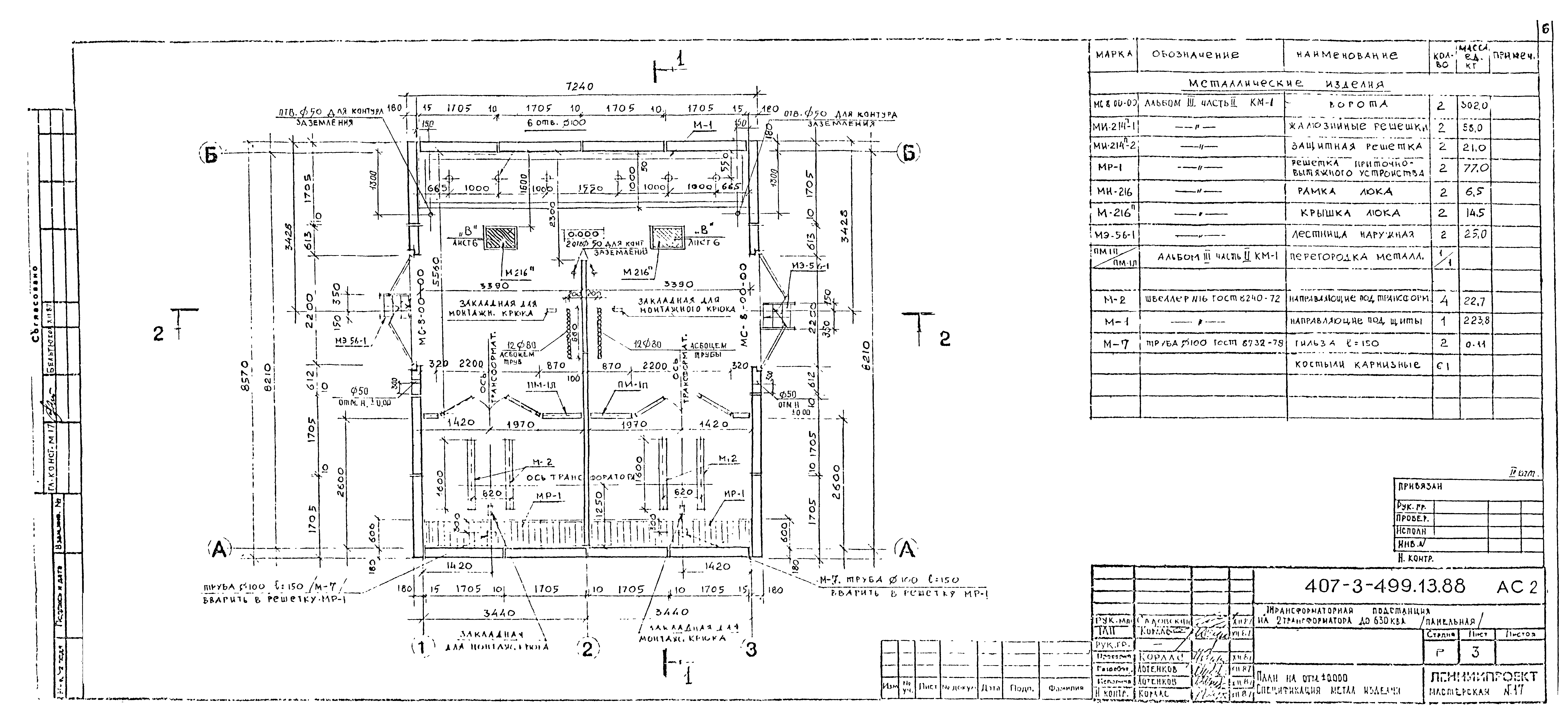
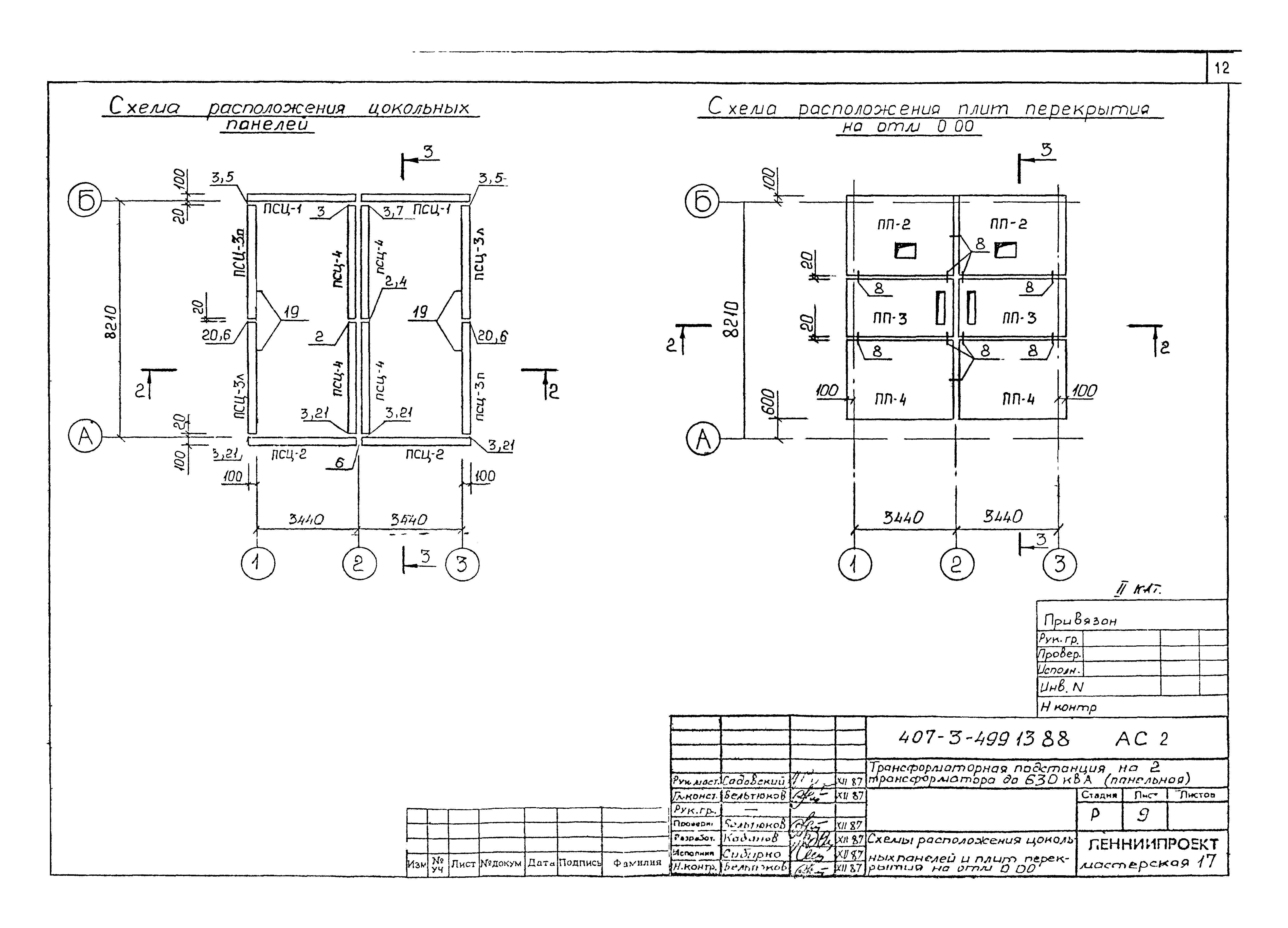
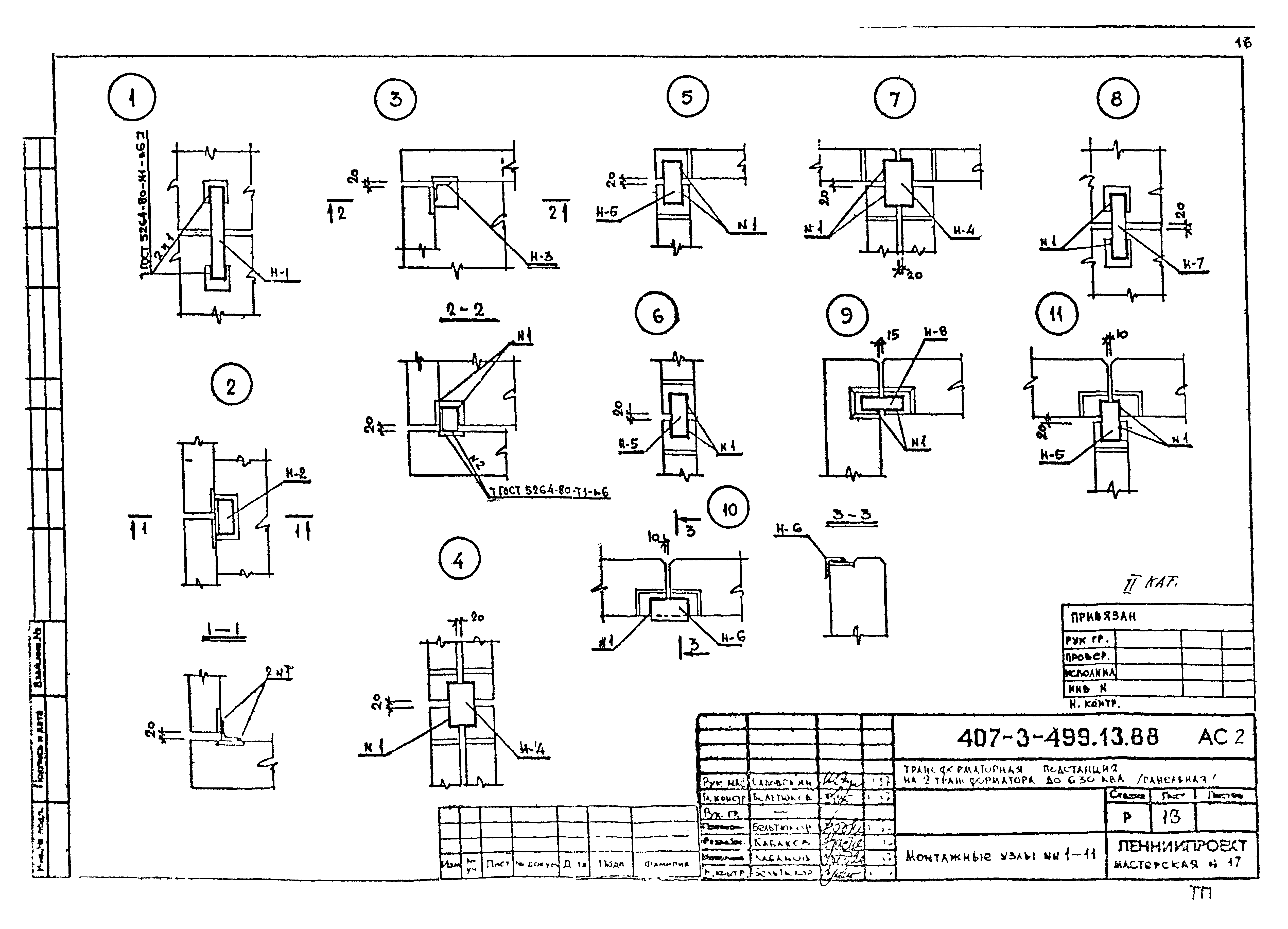
| Оглавление: | Титульный лист Общие данные План подполья, спецификация металлических деталей План на отм. 0.000, спецификация металлических изделий Разрез 1-1 Разрез 2-2 Фасады по осям "3", "А", "В", "I" Узлы "А", "Б", детали I - II Схема расположения фундаментов, сечение 1-1. Схема расположения плит перекрытия на отм. - 1.45 Схемы расположения цокольных панелей и пли перекрытия на отм. 0.000 Схема расположения стеновых панелей. Сечение 4-4 Схема расположения плит кровли. Сечение 2-2 Спецификация сборных ж/б изделий и металлических монтажных деталей Монтажные узлы №№ 1 - 11 Монтажные узлы №№ 12 - 17; 21 Монтажные узлы №№ 18 - 20. Детали стыков |
| Разработан: | Ленниипроект |
| Утверждён: | 06.07.1988 Ленниипроект (351) |


















