Скачать Типовой проект 320-066.84 Альбом IV. Игровая тематическая площадка ТранспортнаяДата актуализации: 01.01.2021
|
| Обозначение: | Типовой проект 320-066.84 |
| Обозначение англ: | 320-066.84 |
| Статус: | не определен законодательством |
| Название рус.: | Альбом IV. Игровая тематическая площадка "Транспортная" |
| Дата добавления в базу: | 01.09.2013 |
| Дата актуализации: | 01.01.2021 |
| Дата введения: | 30.01.1984 |
| Дата окончания срока действия: | 30.06.2003 |
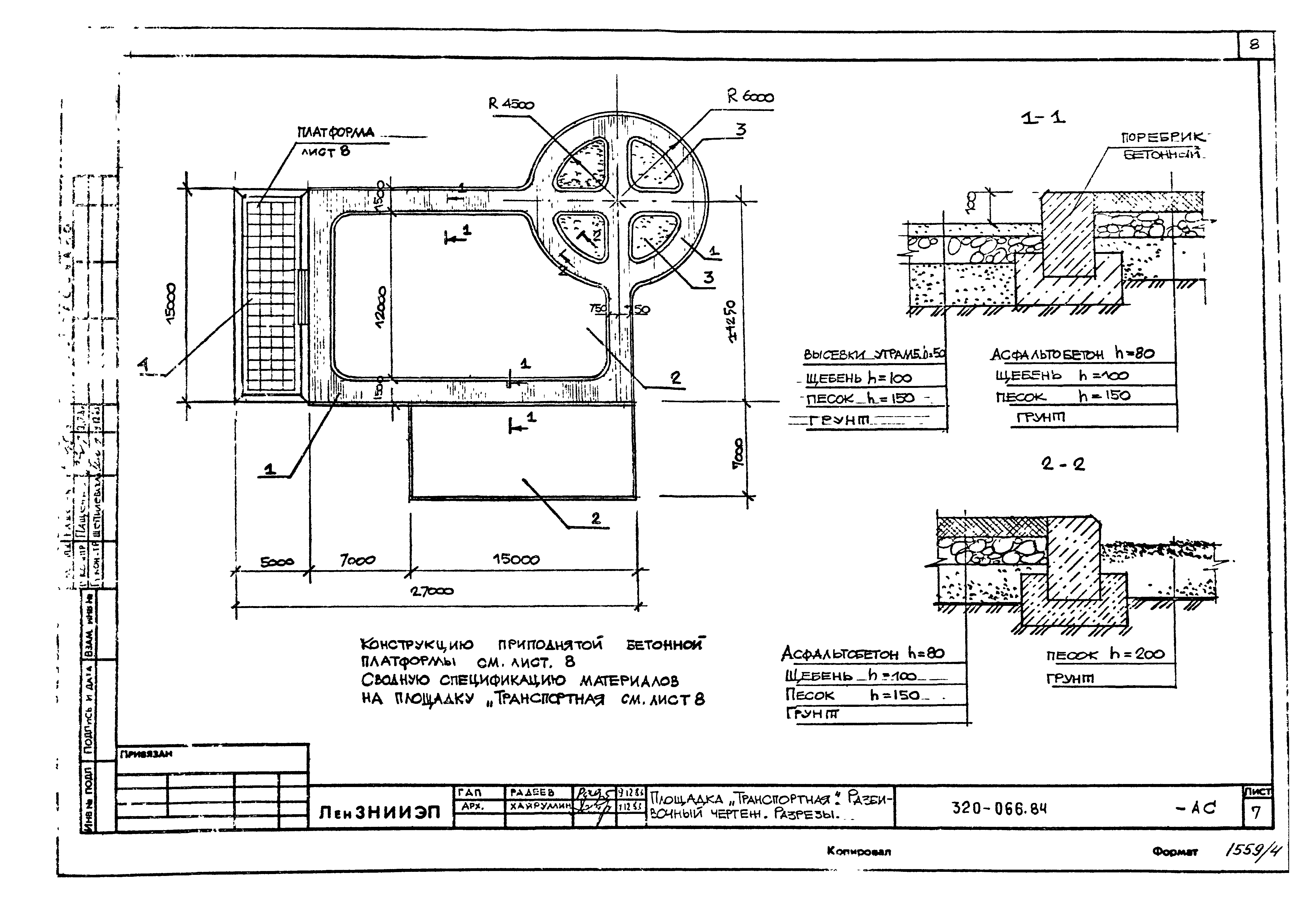
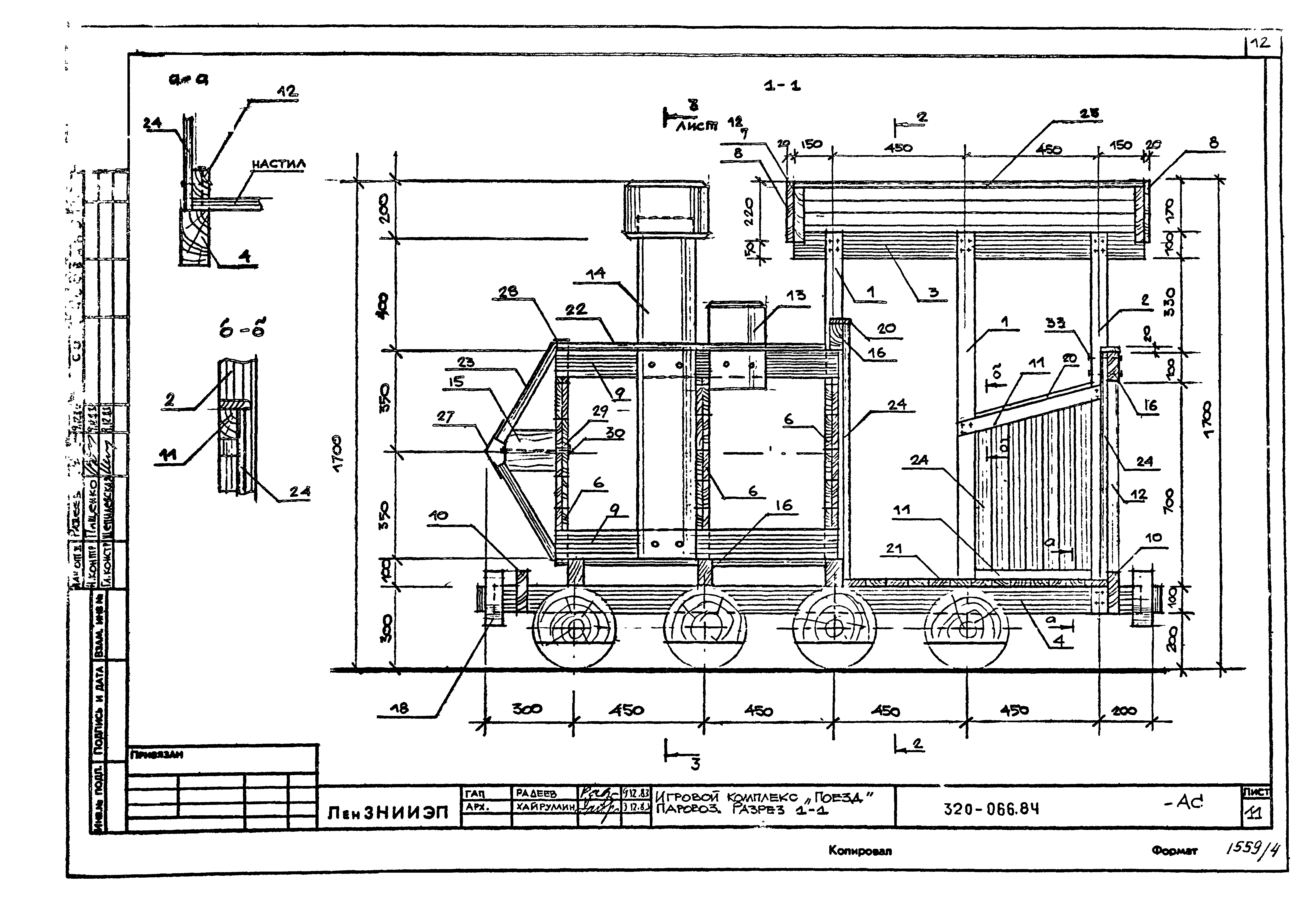
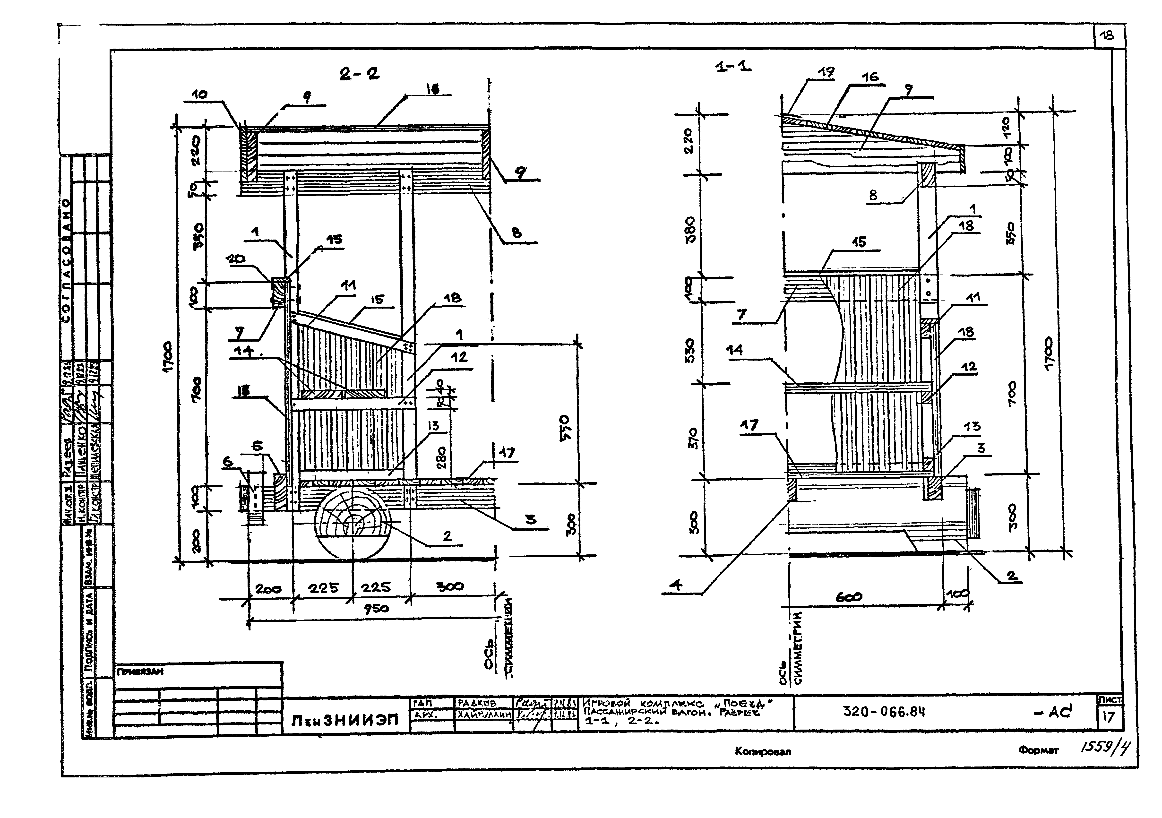
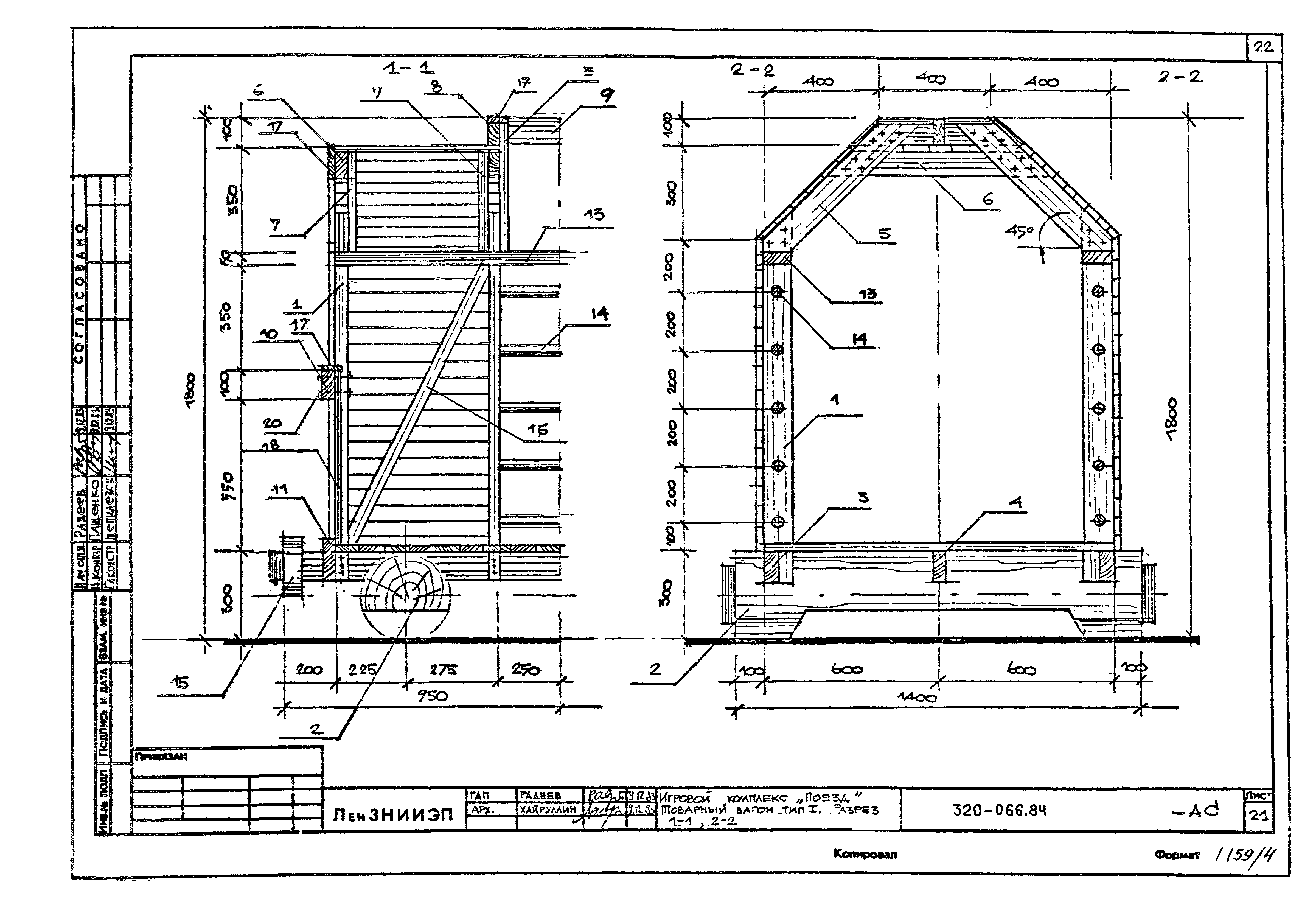
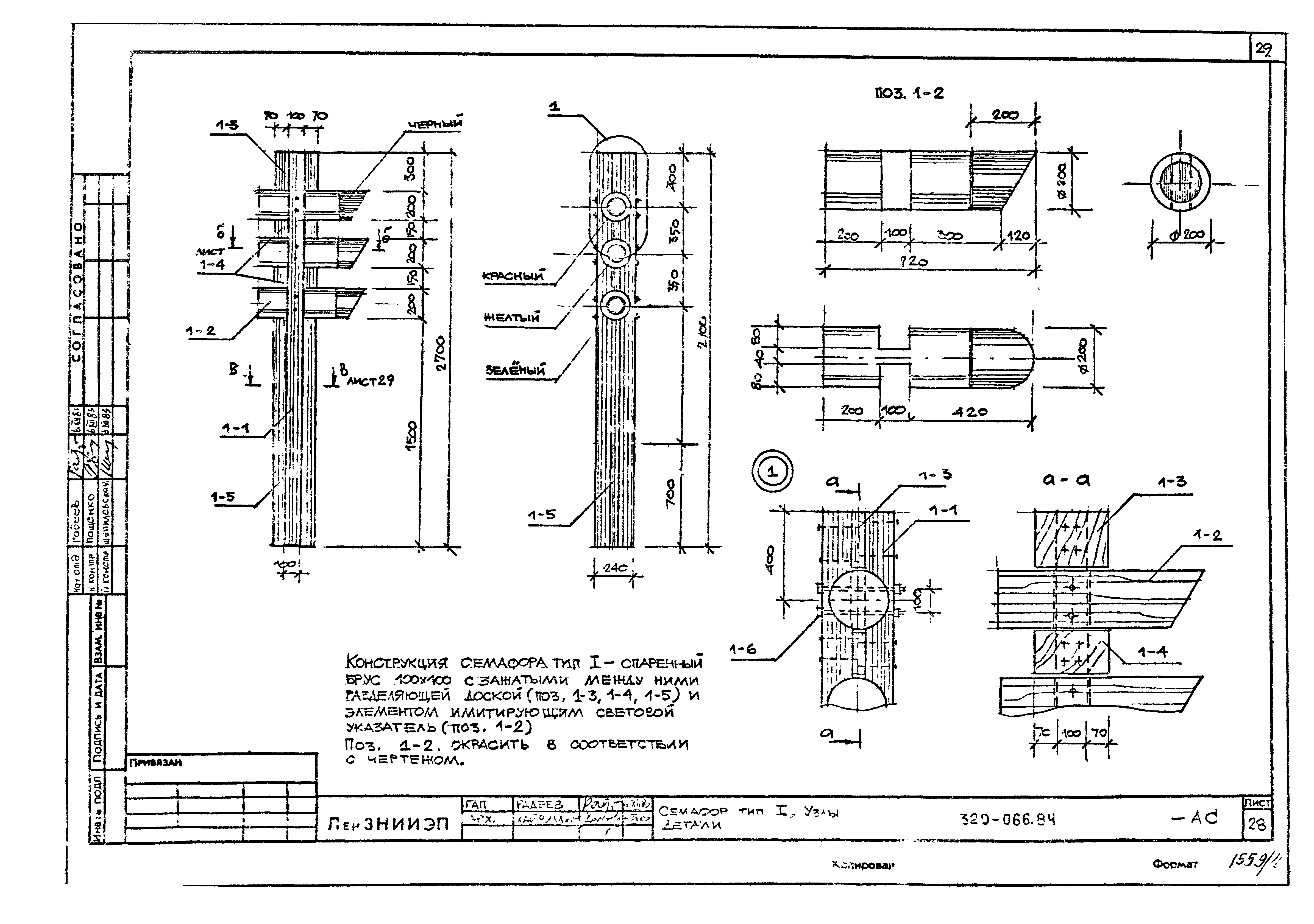
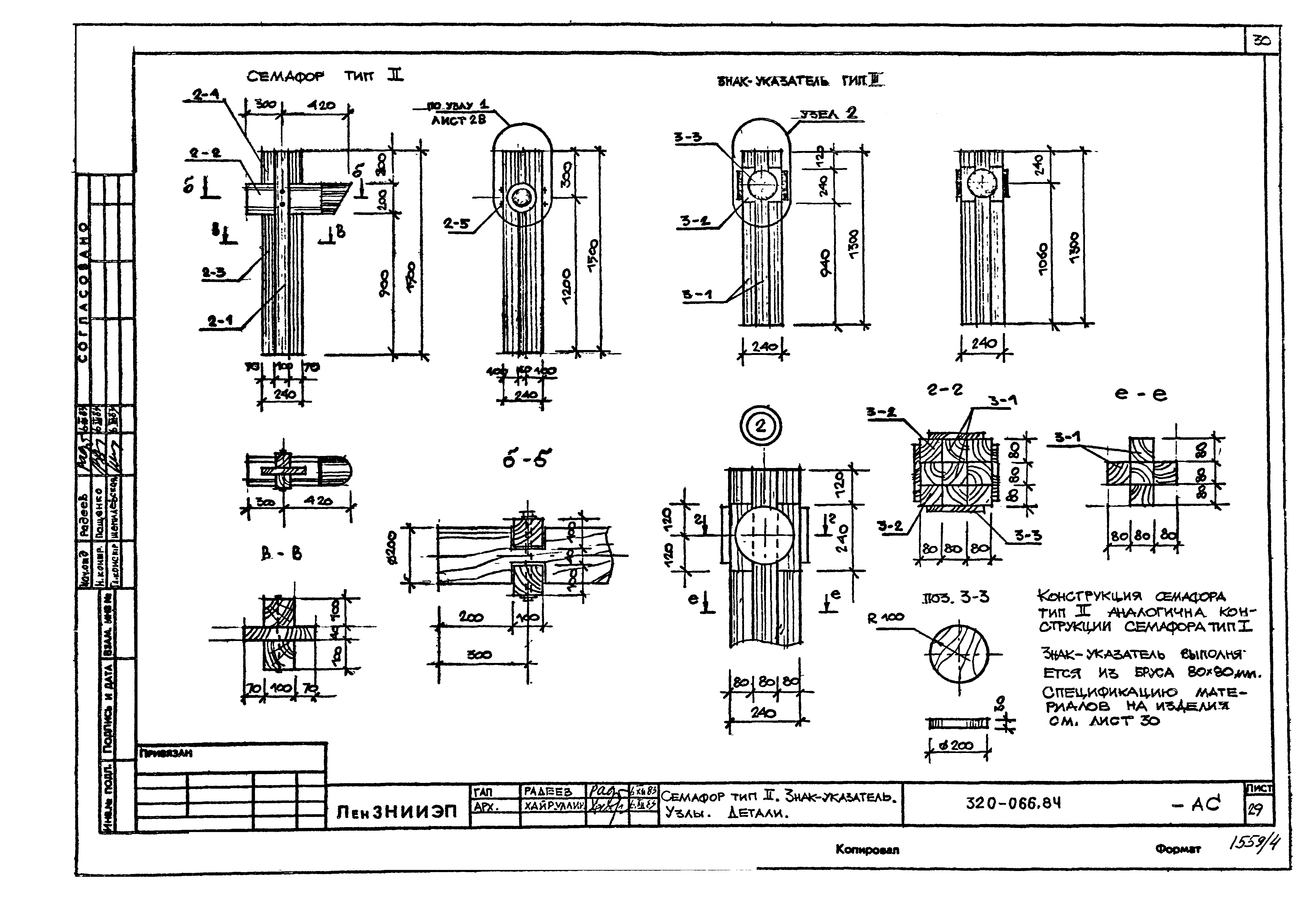
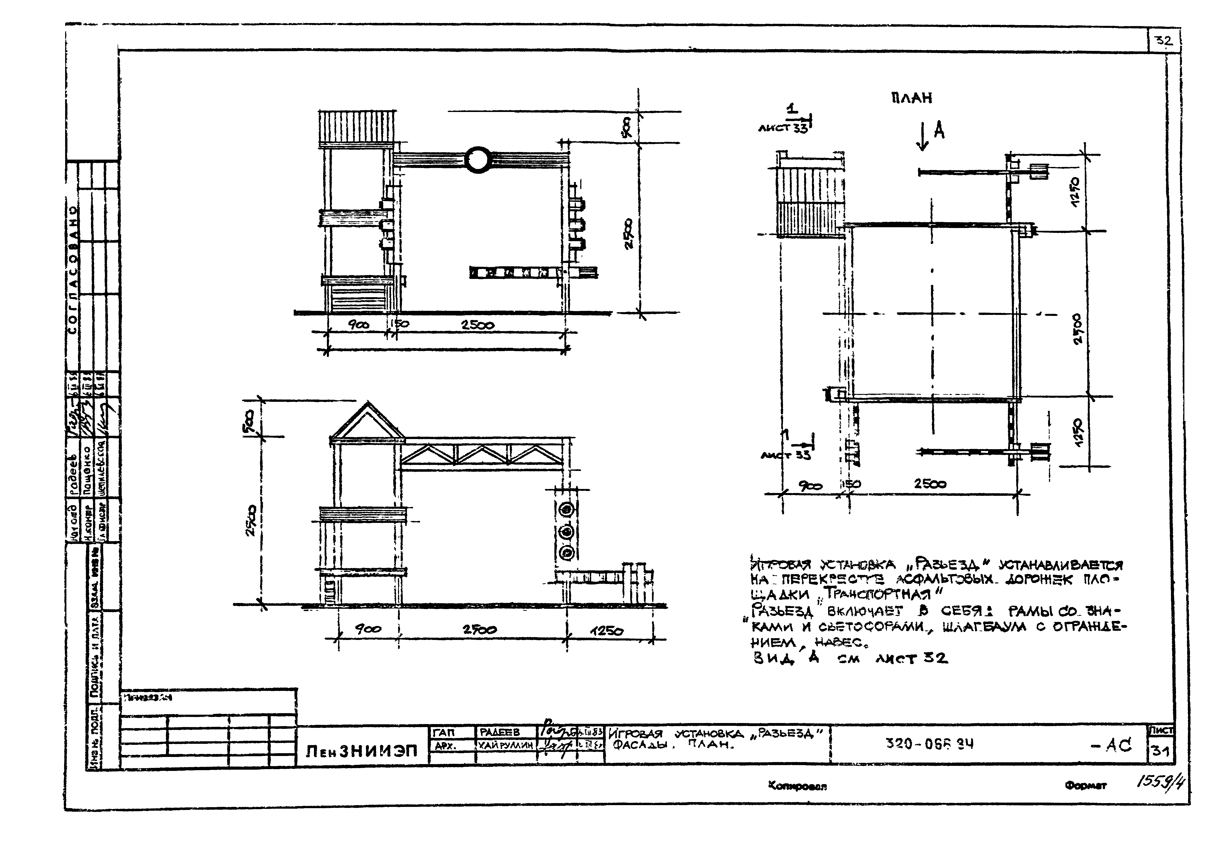
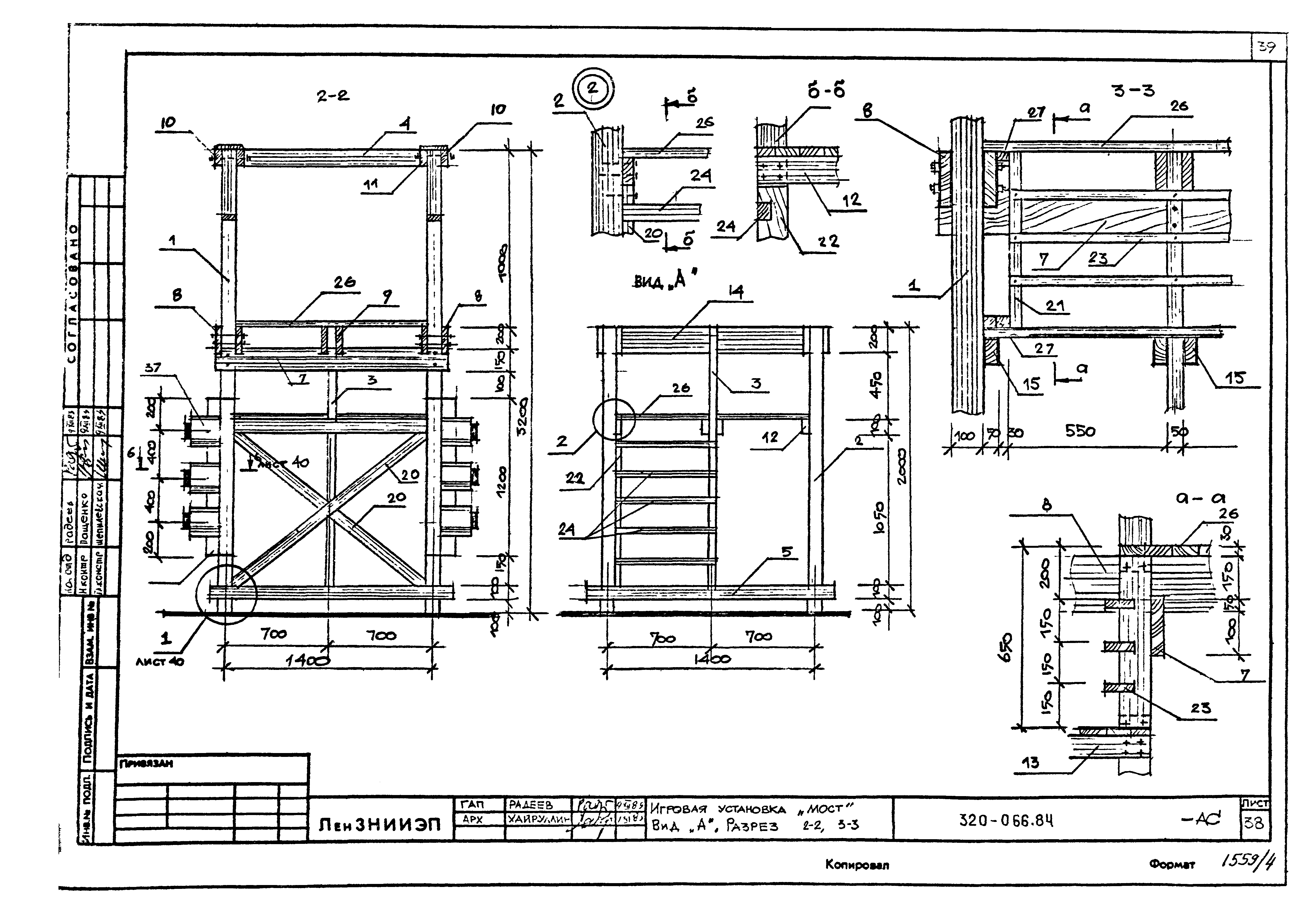
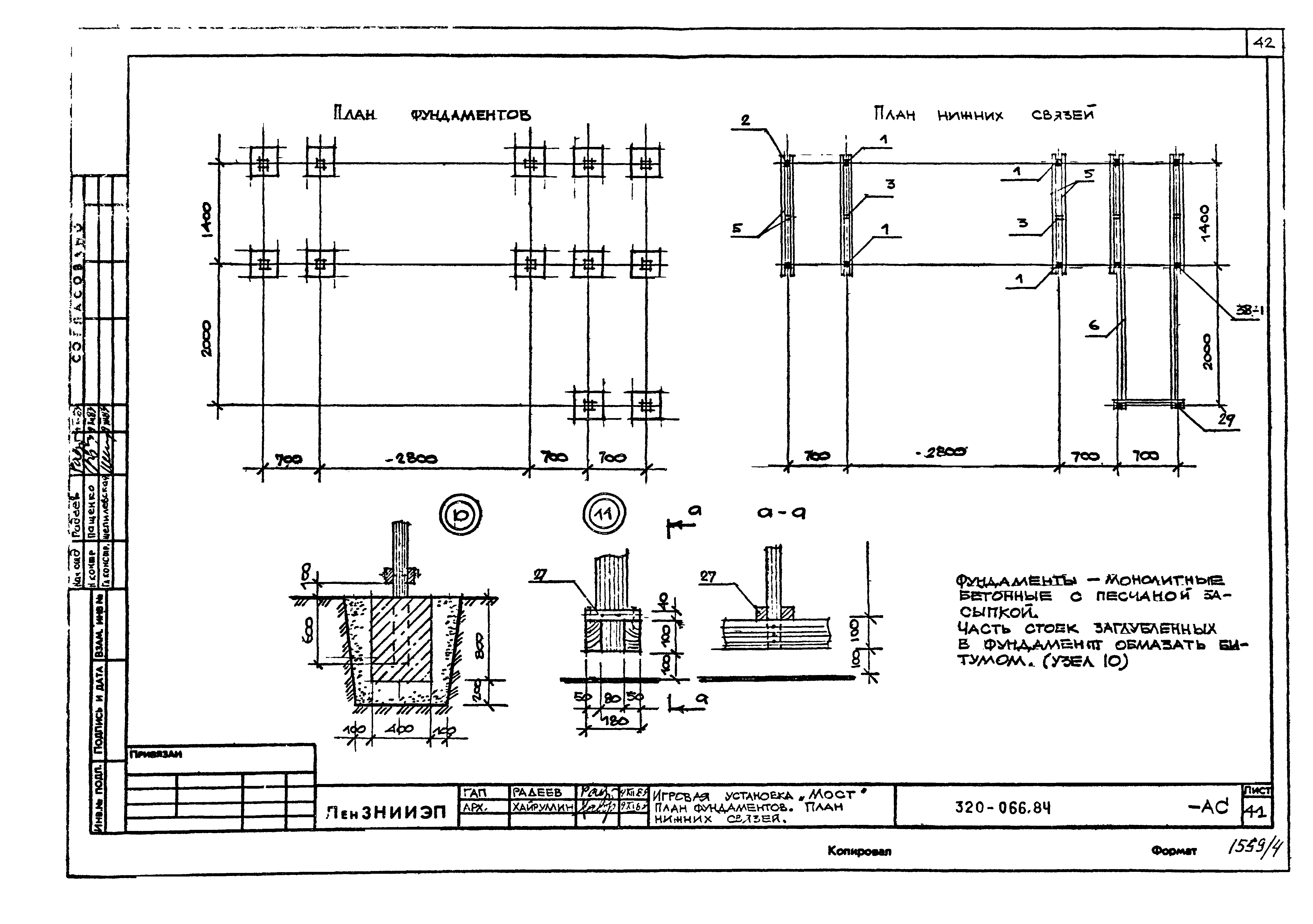
| Оглавление: | 1 Общие данные (начало) 2 Общие данные (продолжение) 3 Общие данные (окончание) 4 Номенклатура малых архитектурных форм (начало) 5 Номенклатура малых архитектурных форм (окончание) 6 Площадка "Транспортная". План. Спецификация оборудования 7 Площадка "Транспортная". Разбивочный чертеж. Разрезы 8 Площадка "Транспортная". Бетонная платформа. Спецификация материалов 9 Игровой комплекс "Поезд". Фасад. Спецификация элементов 10 Игровой комплекс "Поезд". Паровоз. Фасады. План 11 Игровой комплекс "Поезд". Паровоз. Разрез 1-1 12 Игровой комплекс "Поезд". Паровоз. Разрез 2-2, 3-3 13 Игровой комплекс "Поезд". Паровоз. Детали каркаса 14 Игровой комплекс "Поезд". Паровоз. Сборный каркас. Спецификация материалов (начало) 15 Игровой комплекс "Поезд". Паровоз. Сборный каркас. Спецификация материалов (окончание) 16 Игровой комплекс "Поезд". Пассажирский вагон. Фасады. План 17 Игровой комплекс "Поезд". Пассажирский вагон. Разрез 1-1, 2-2 18 Игровой комплекс "Поезд". Пассажирский вагон. Спецификация материалов (начало) 19 Игровой комплекс "Поезд". Пассажирский вагон. Спецификация материалов (окончание). Опорные каркасы 20 Игровой комплекс "Поезд". Товарный вагон тип I. Фасады. План 21 Игровой комплекс "Поезд". Товарный вагон тип I. Разрез 1-1, 2-2 22 Игровой комплекс "Поезд". Товарный вагон тип I. Разрез 3-3. Опорный каркас 23 Игровой комплекс "Поезд". Товарный вагон тип I. Спецификация материалов 24 Игровой комплекс "Поезд". Товарный вагон тип II. Фасады. План 25 Игровой комплекс "Поезд". Товарный вагон тип II. Разрез 1-1, 2-2 26 Игровой комплекс "Поезд". Товарный вагон тип II. Спецификация материалов 27 Семафор тип I, II. Знак-указатель. Фасады 28 Семафор тип I. Узлы. Детали 29 Семафор тип II. Знак-указатель. Детали 30 Семафор тип I, II. Знак-указатель. Спецификация материалов 31 Игровая установка "Разъезд". Фасады. План 32 Игровая установка "Разъезд". Вид "А". Сечения 33 Игровая установка "Разъезд". Разрез 1-1. Узел "1" 34 Игровая установка "Разъезд". Спецификация материалов (начало) 35 Игровая установка "Разъезд". Спецификация материалов (окончание). План фундаментов 36 Игровая установка "Мост". Фасады. План 37 Игровая установка "Мост". Разрез 1-1 38 Игровая установка "Мост". Вид А. Разрез 2-2, 3-3 39 Игровая установка "Мост". Разрез 4-4, 5-5. Узлы 40 Игровая установка "Мост". Узлы. Сечения 41 Игровая установка "Мост". План фундаментов. План нижних связей 42 Игровая установка "Мост". Спецификация материалов (начало) 43 Игровая установка "Мост". Спецификация материалов (окончание) 44 Игровая установка "Тоннель". Фасады. План 45 Игровая установка "Тоннель". Разрез 1-1, 2-2 46 Игровая установка "Тоннель". План каркаса. Узлы 1-9 47 Игровая установка "Тоннель". План фундаментов. Узел "10". Сечения 48 Игровая установка "Тоннель". Спецификация материалов |
| Разработан: | ЛенЗНИИЭП Госгражданстроя |
| Утверждён: | 29.07.1983 Госгражданстрой (Gosgrazhdanstroy 224) |


















































