Скачать Типовой проект 810-1-12.86 Альбом I. Пояснительная записка. Блочные теплицы и соединительный коридор. Технологические и архитектурно-строительные чертежиДата актуализации: 01.01.2021
|
| Обозначение: | Типовой проект 810-1-12.86 |
| Обозначение англ: | 810-1-12.86 |
| Статус: | не определен законодательством |
| Название рус.: | Альбом I. Пояснительная записка. Блочные теплицы и соединительный коридор. Технологические и архитектурно-строительные чертежи |
| Дата добавления в базу: | 01.09.2013 |
| Дата актуализации: | 01.01.2021 |
| Дата введения: | 01.08.1986 |
| Дата окончания срока действия: | 30.06.2003 |
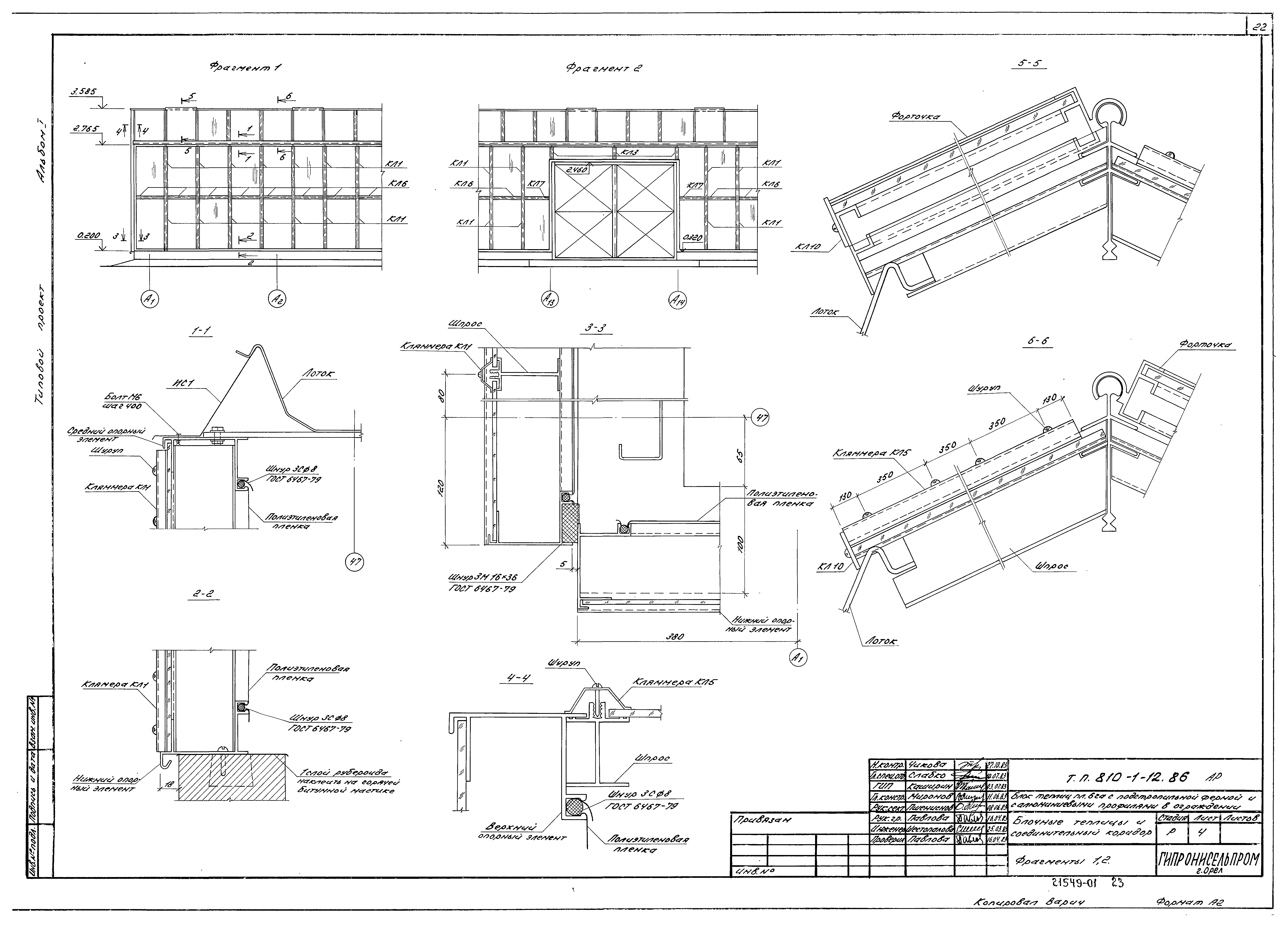
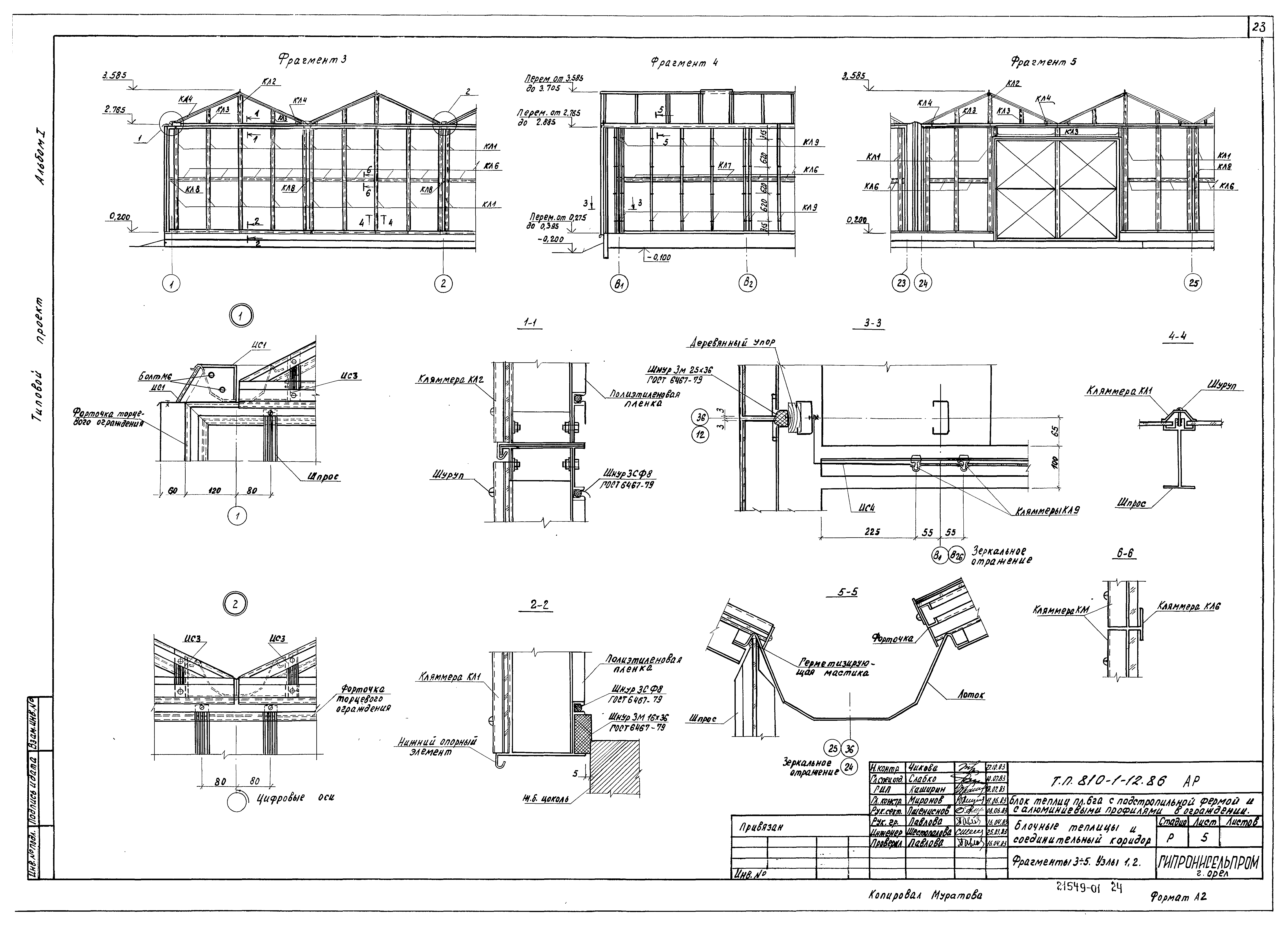
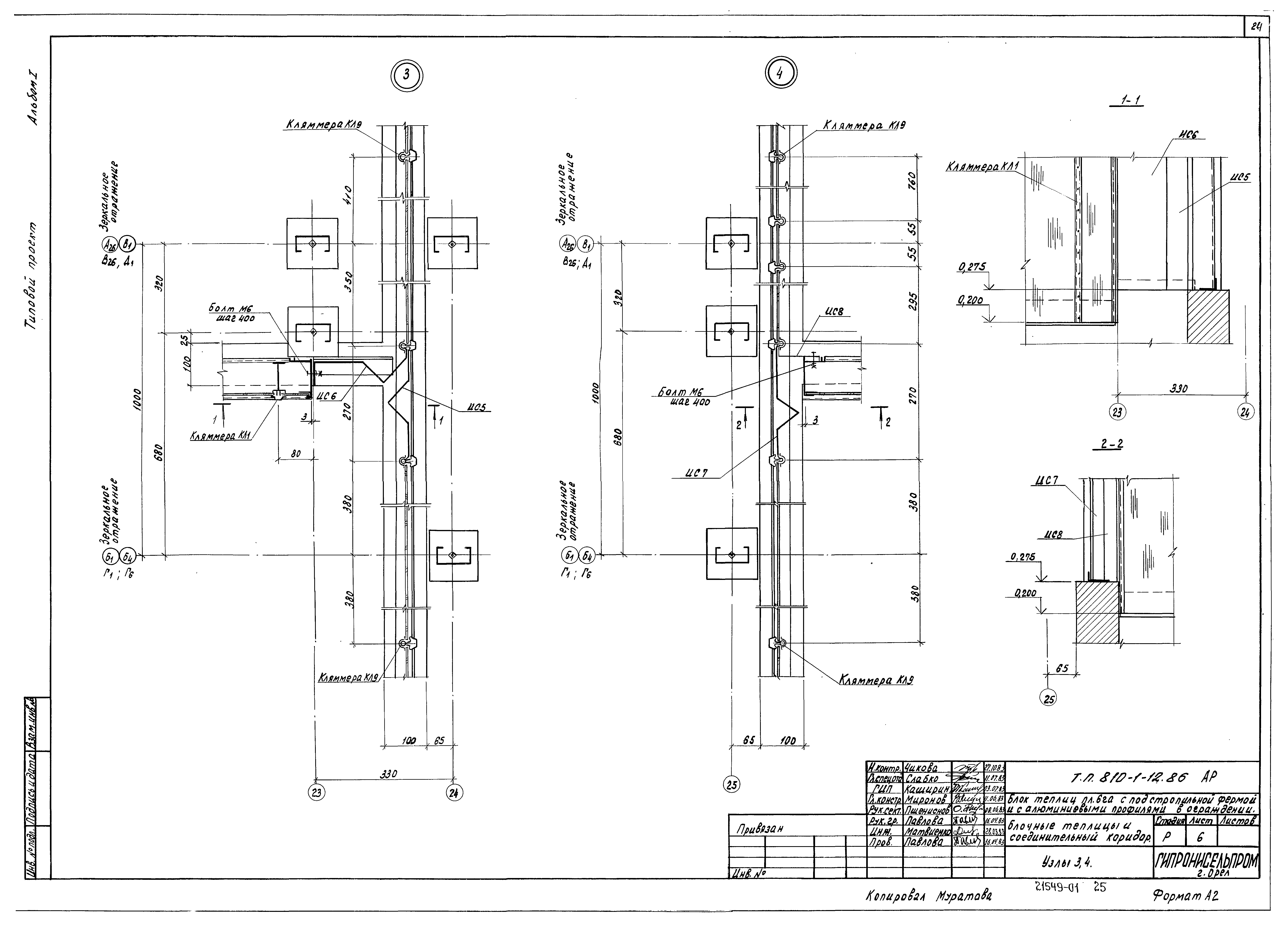
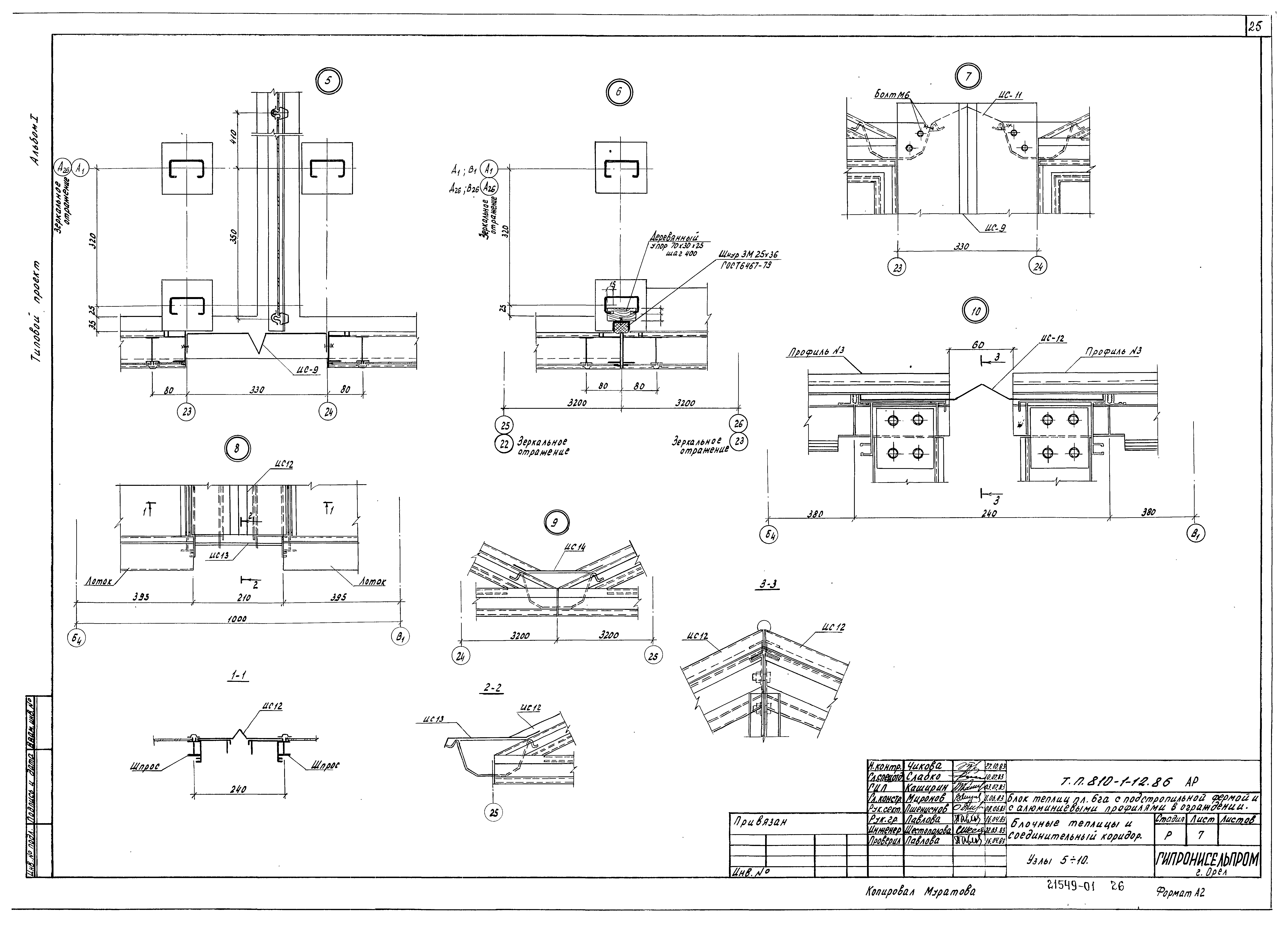
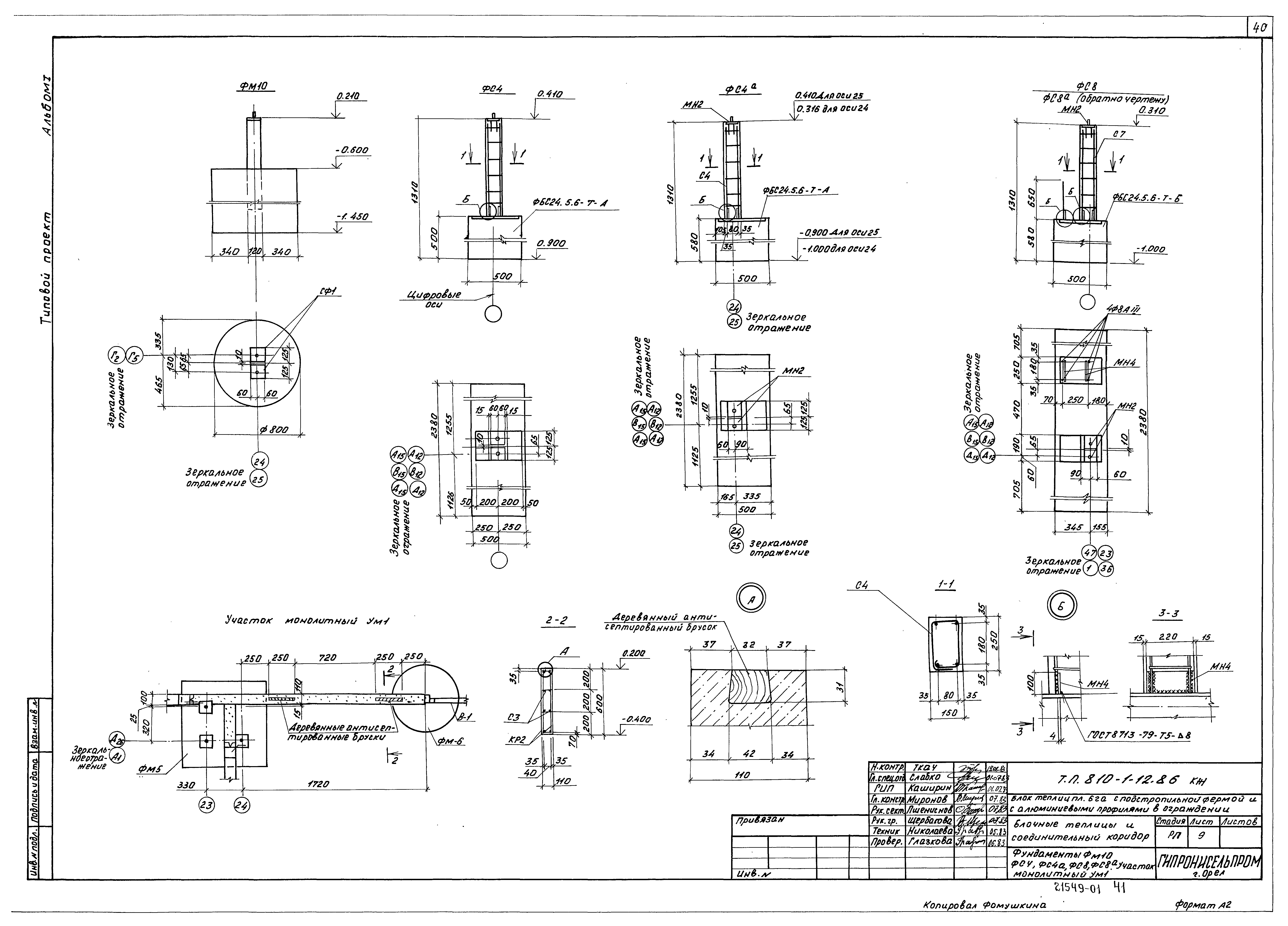
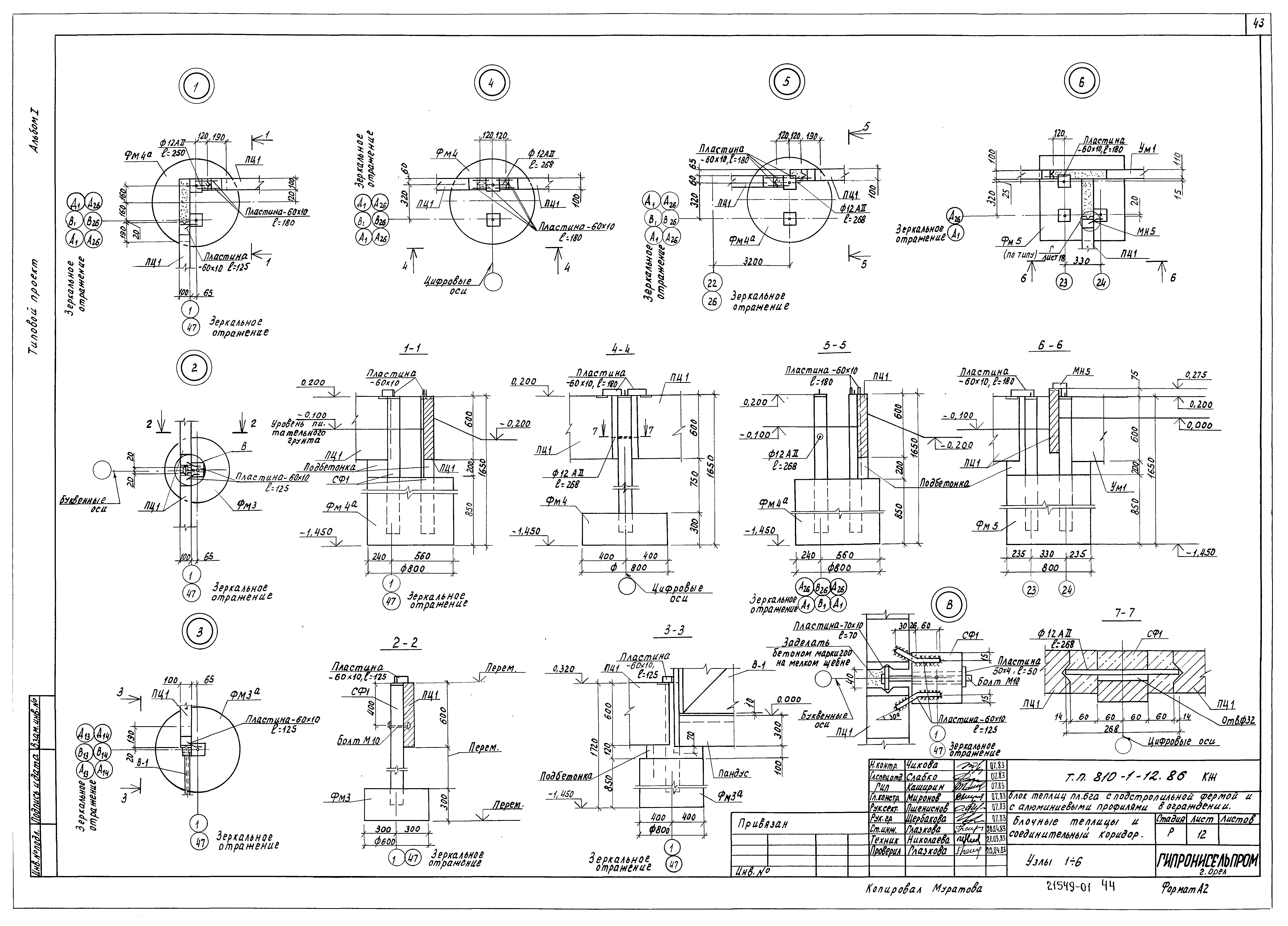
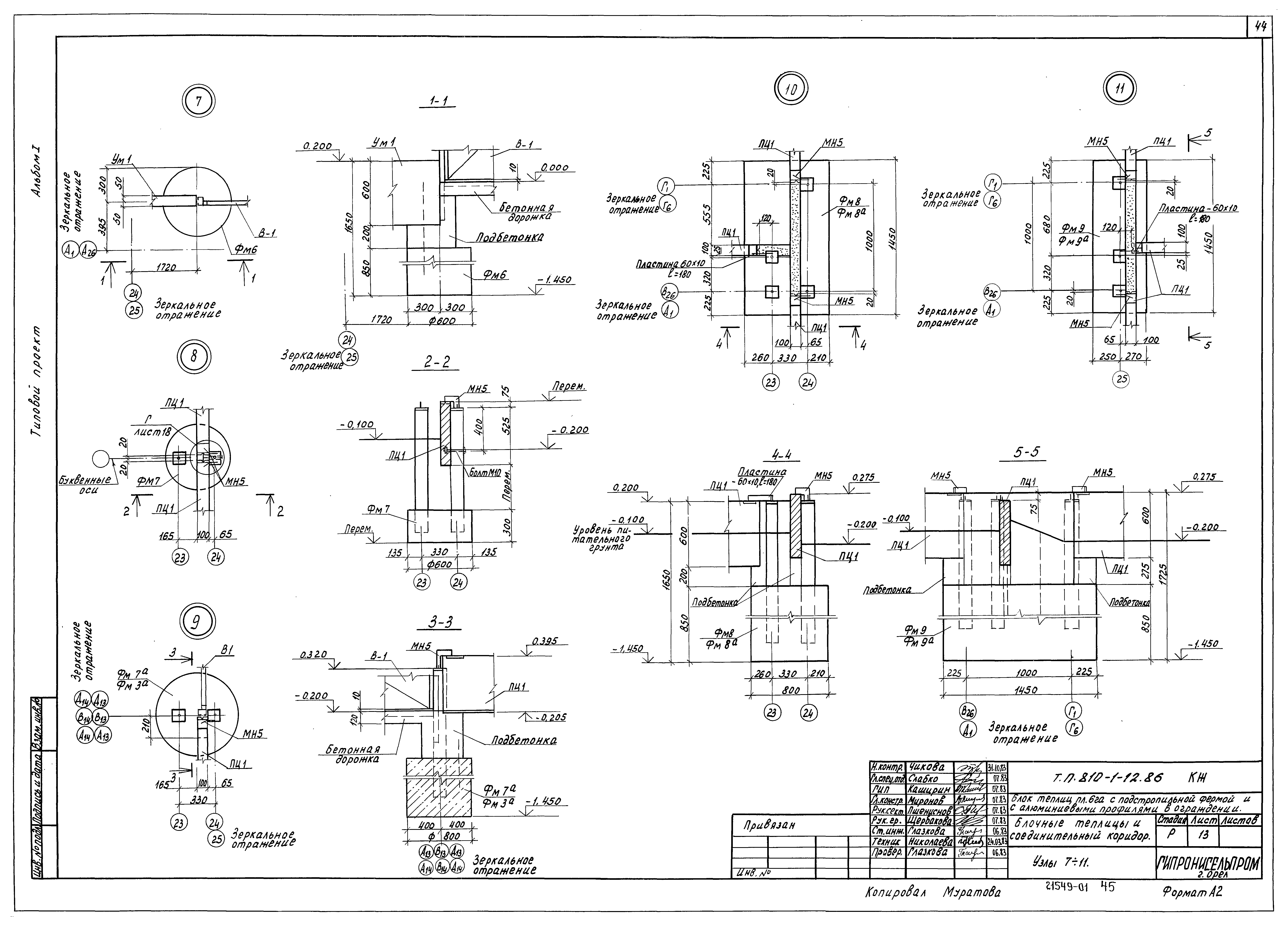
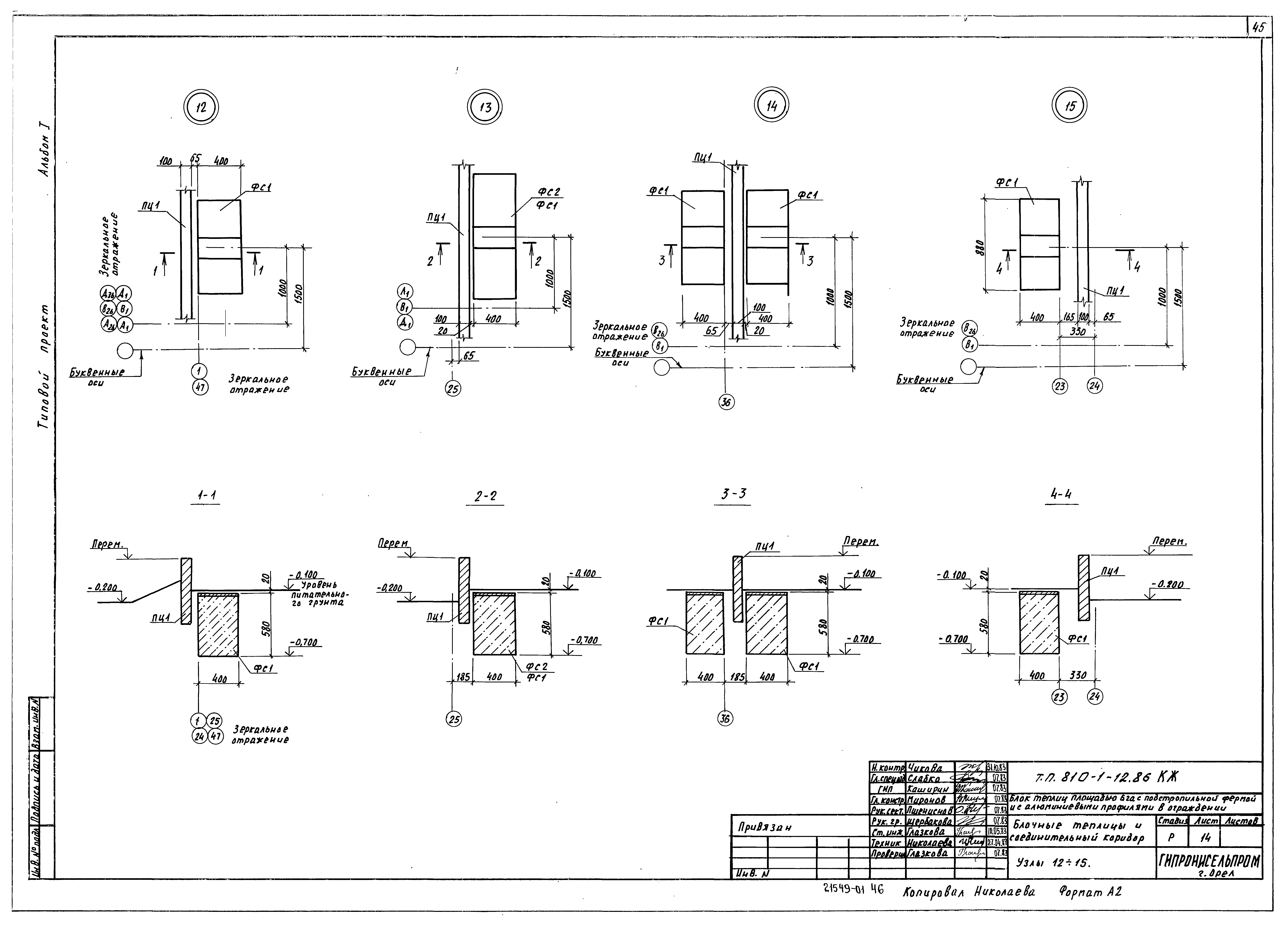
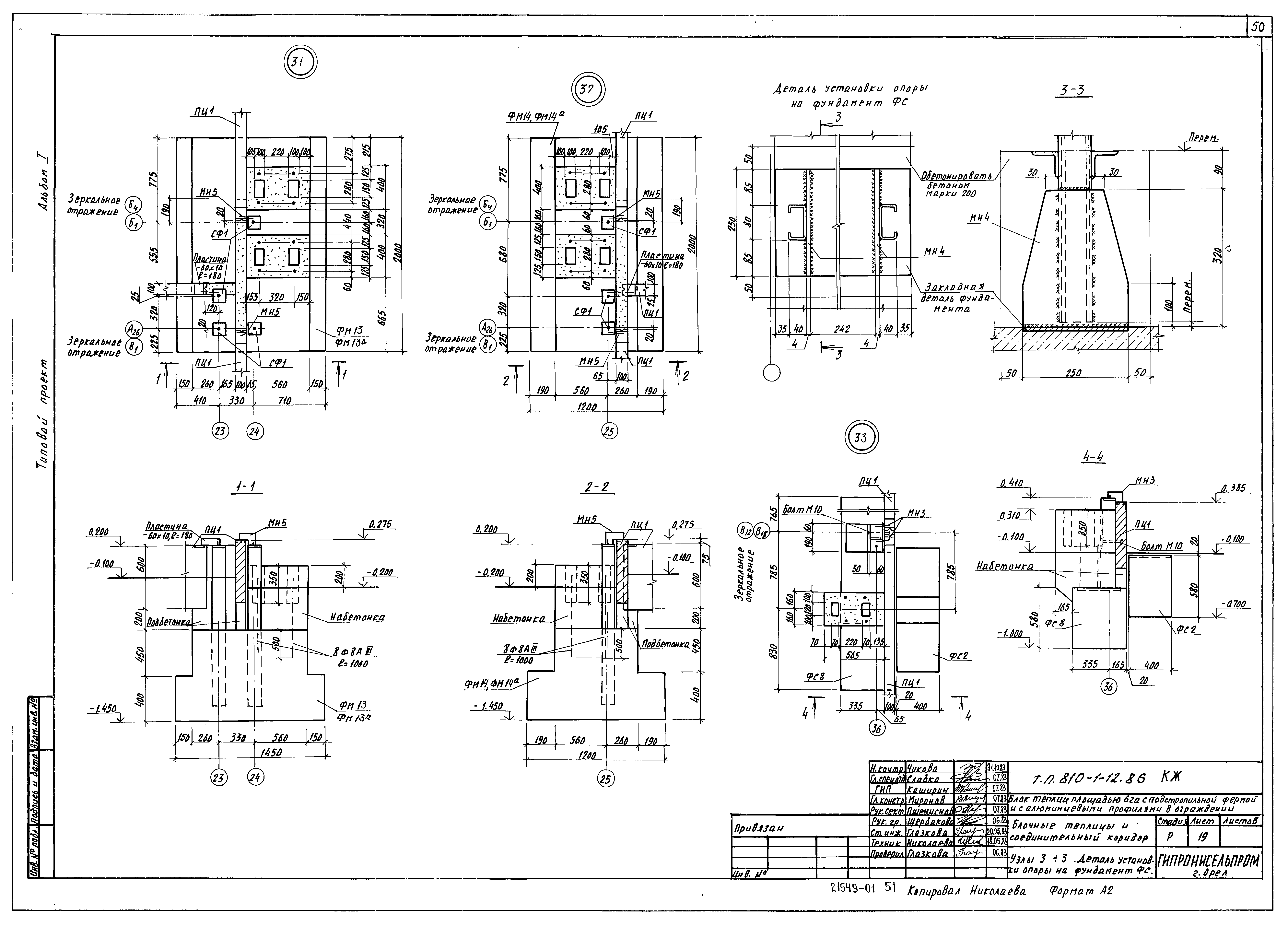
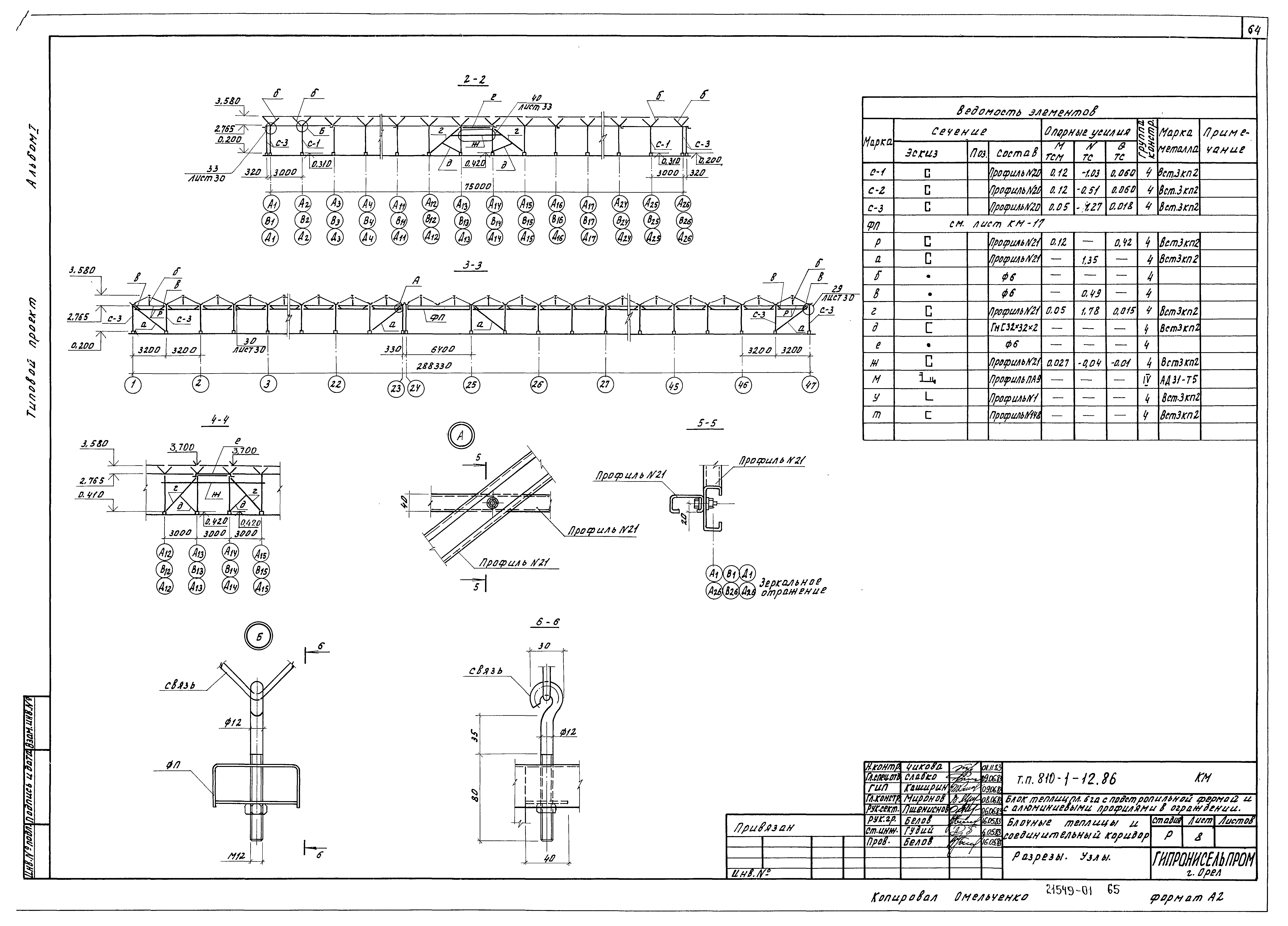
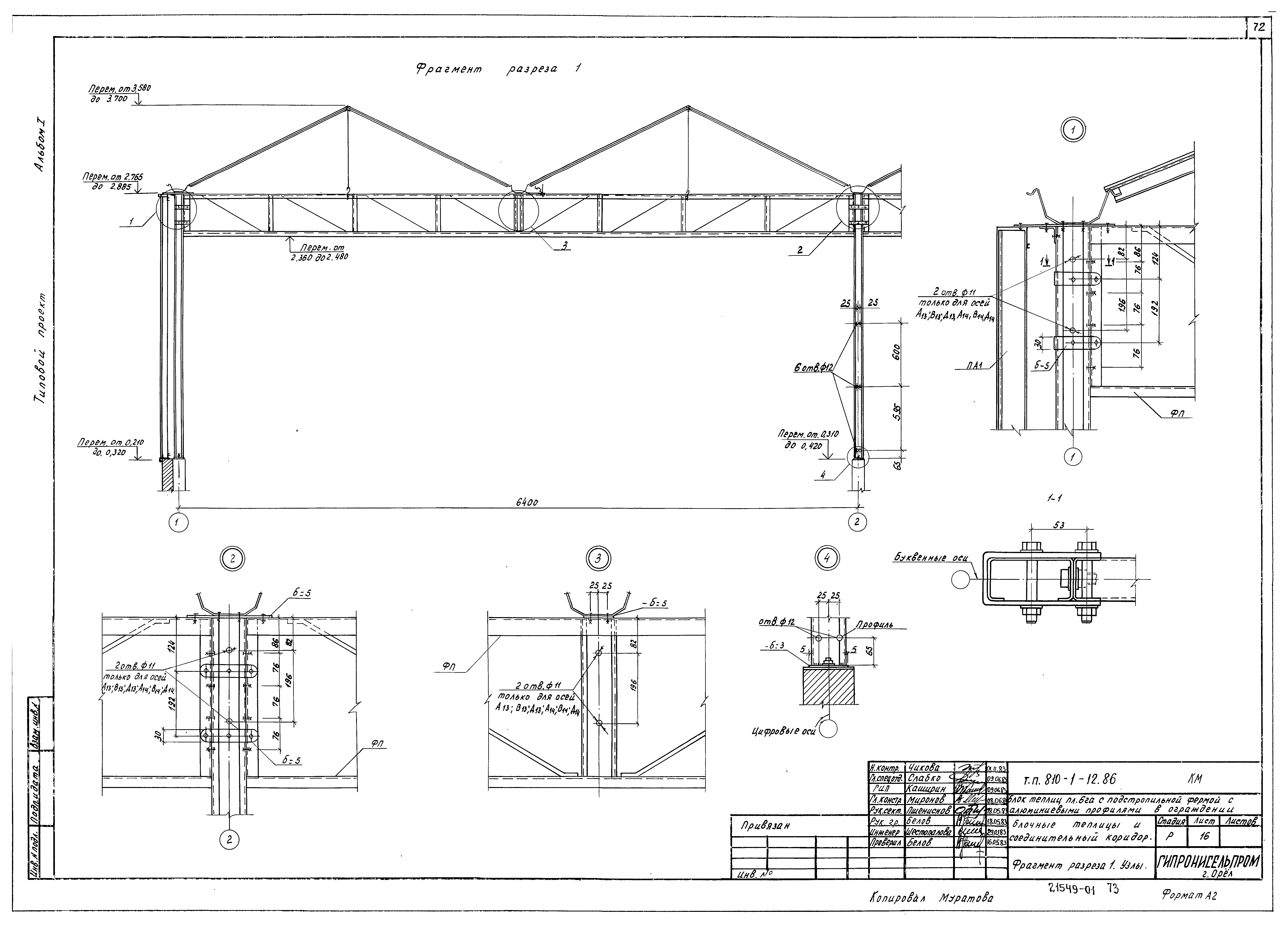
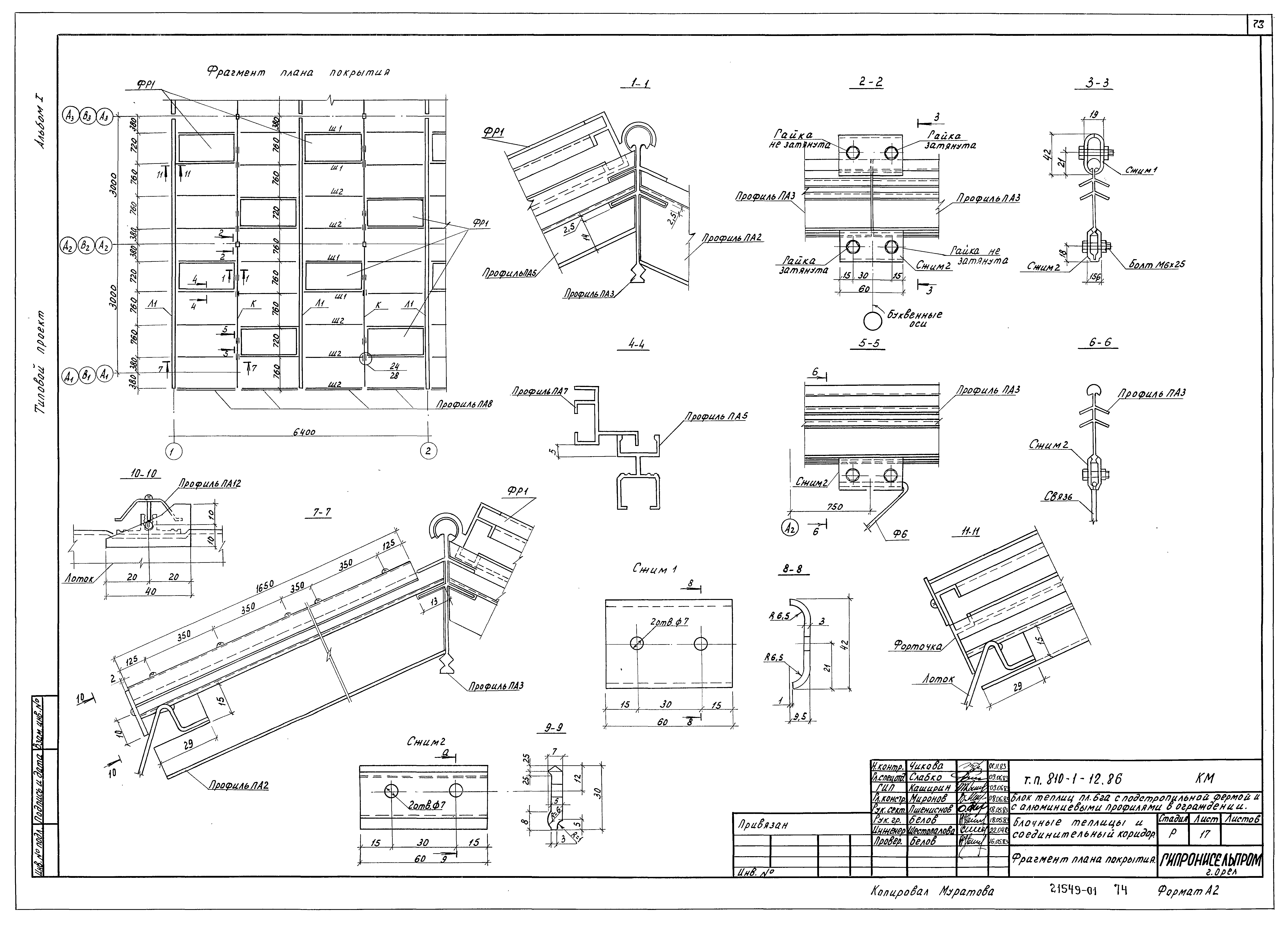
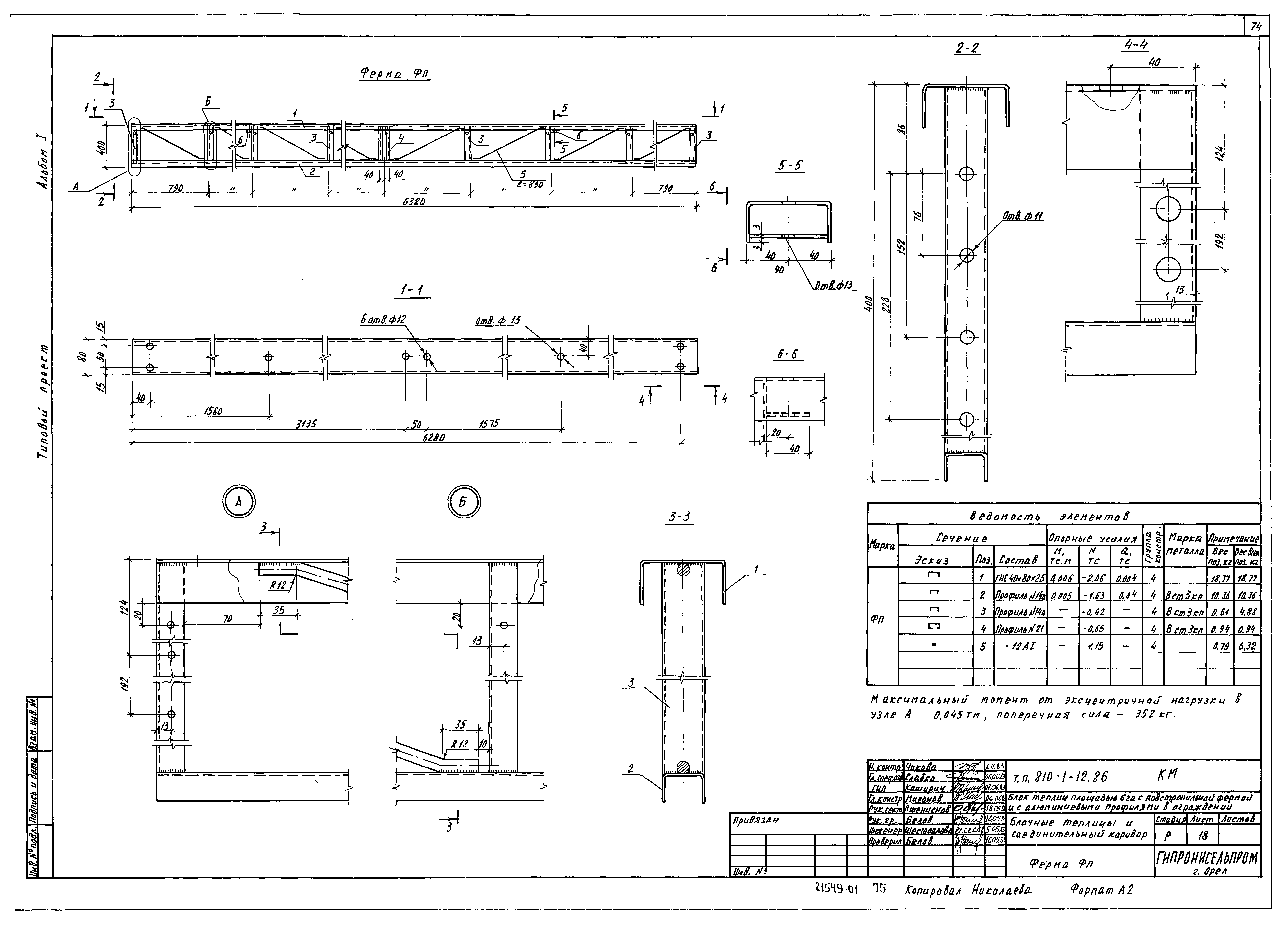
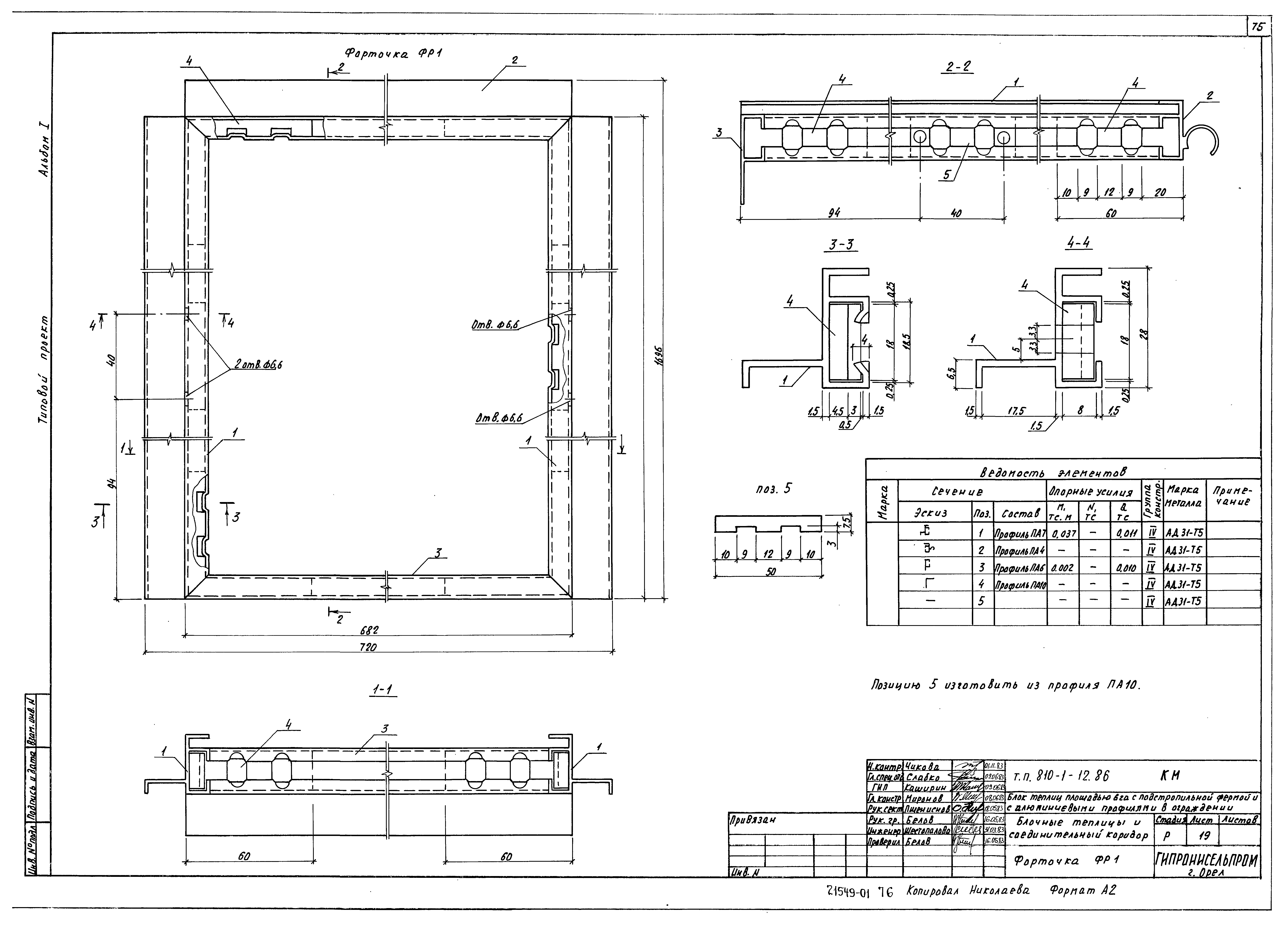
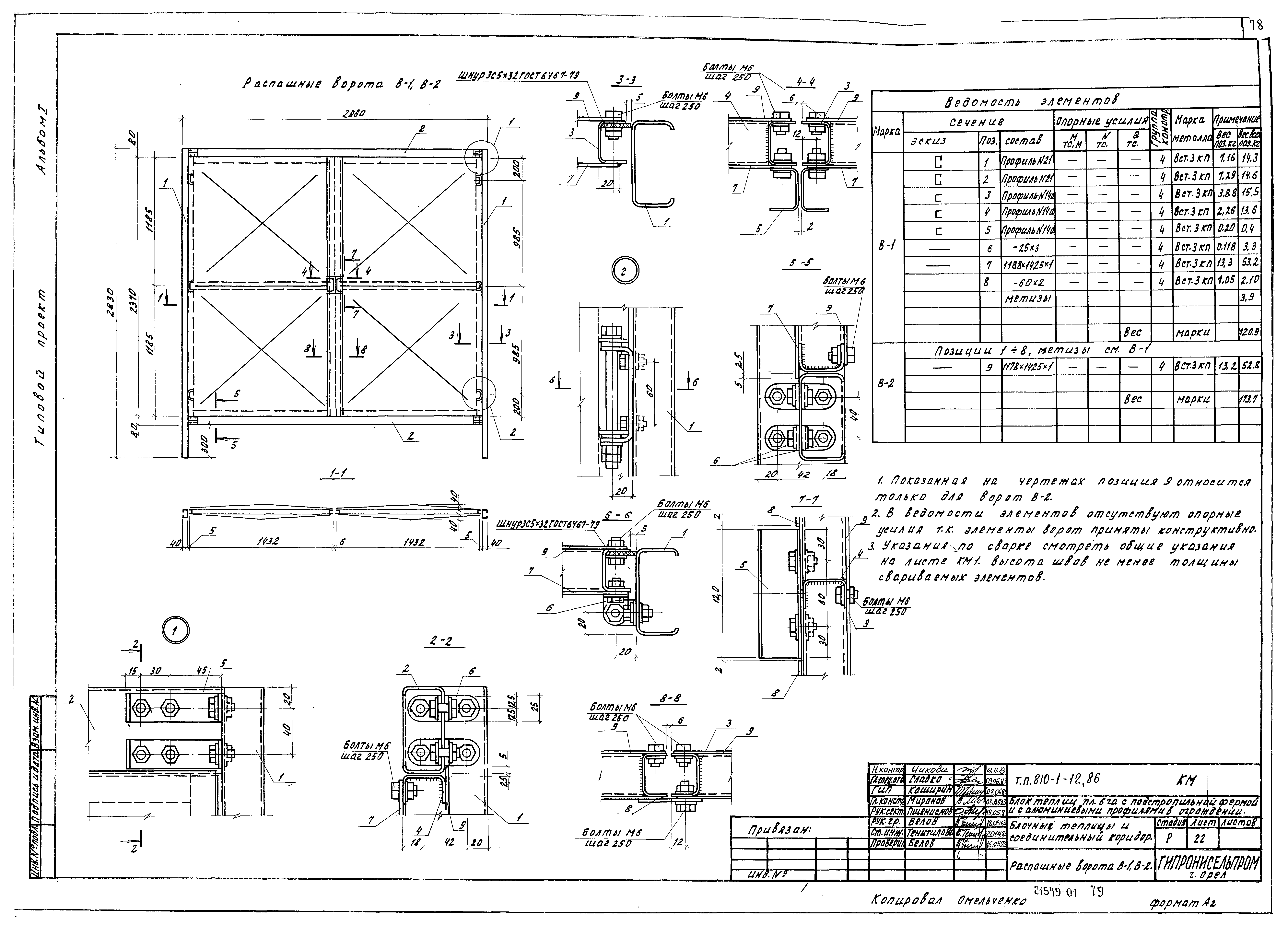
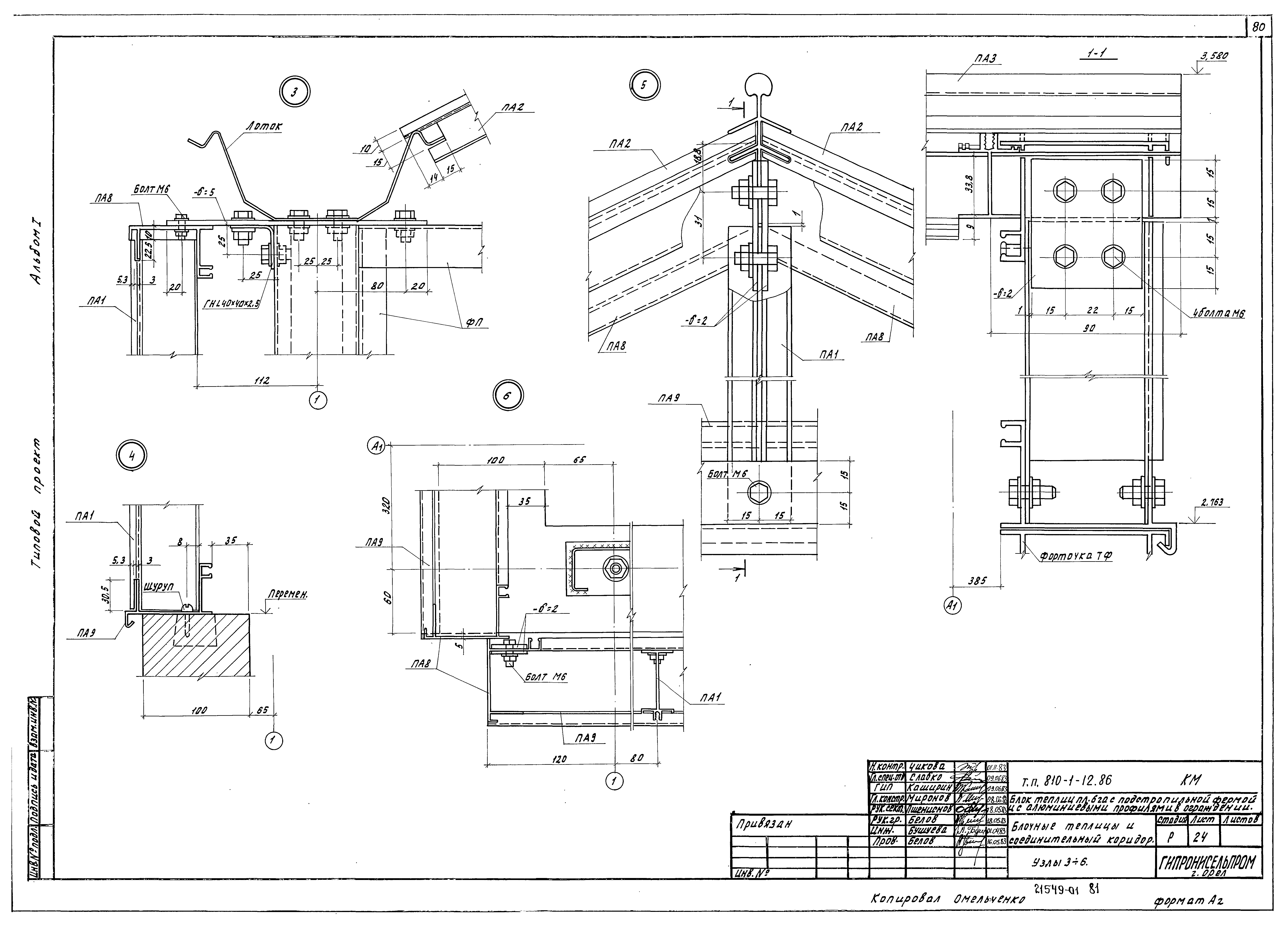
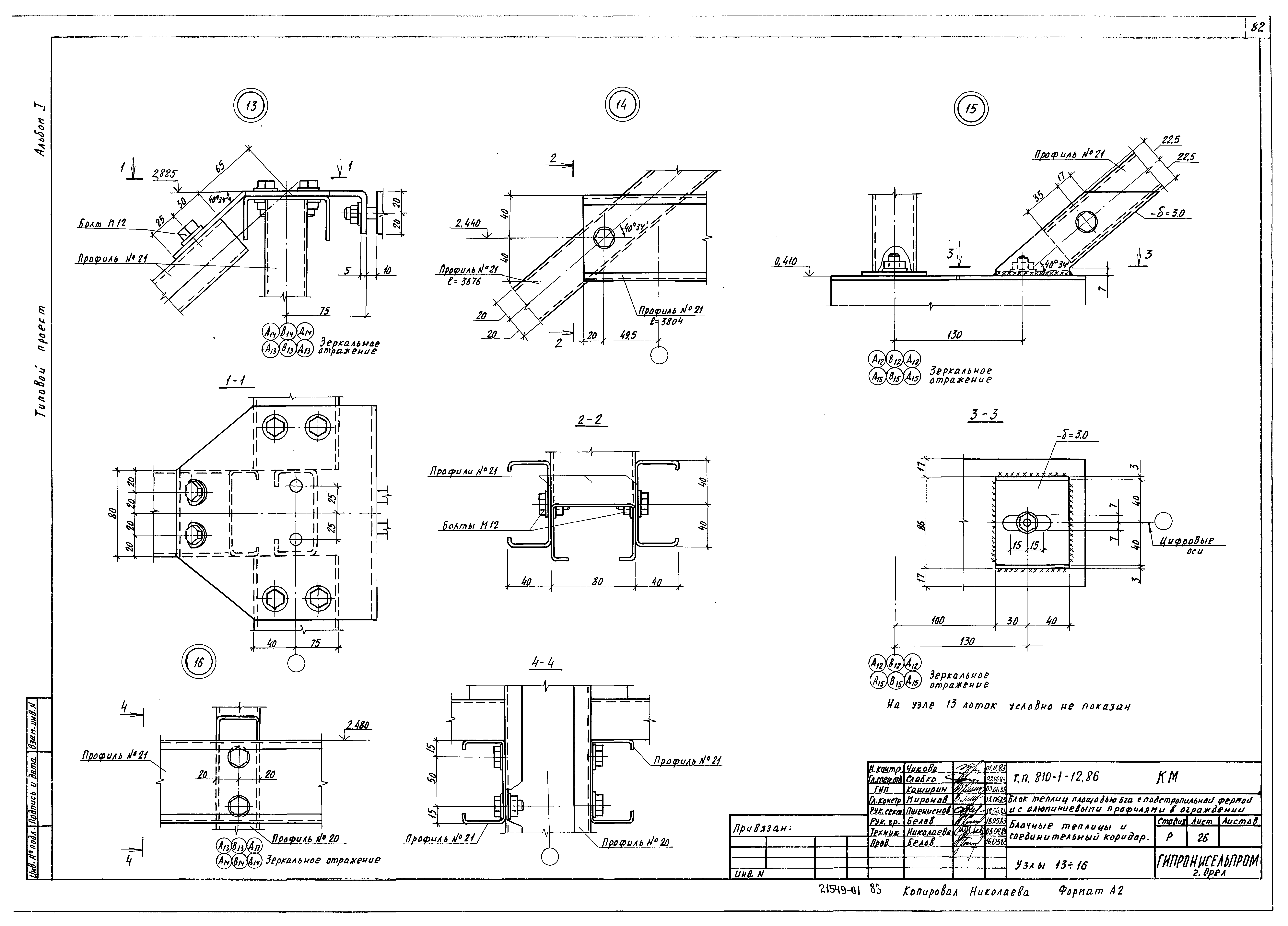
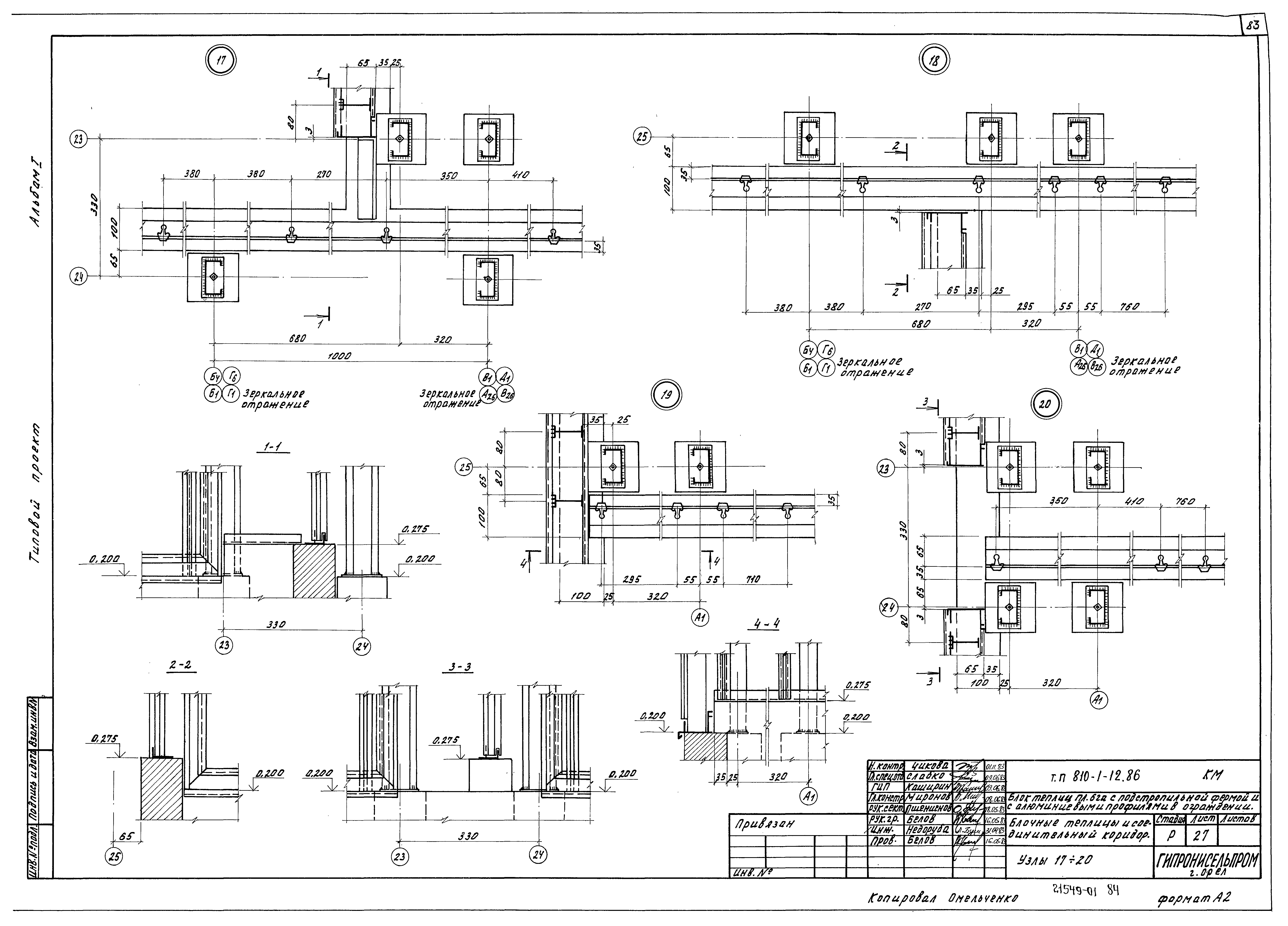
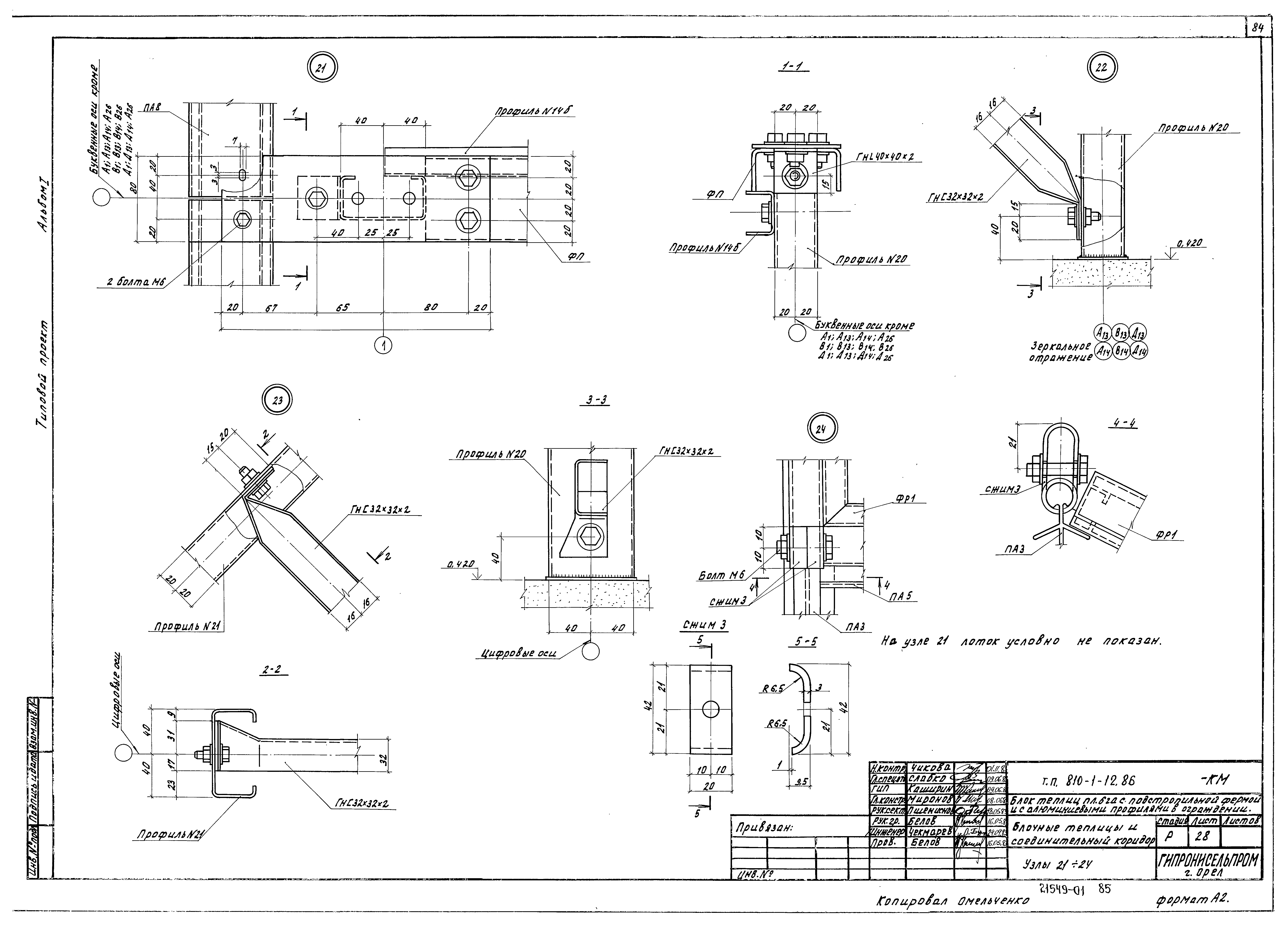
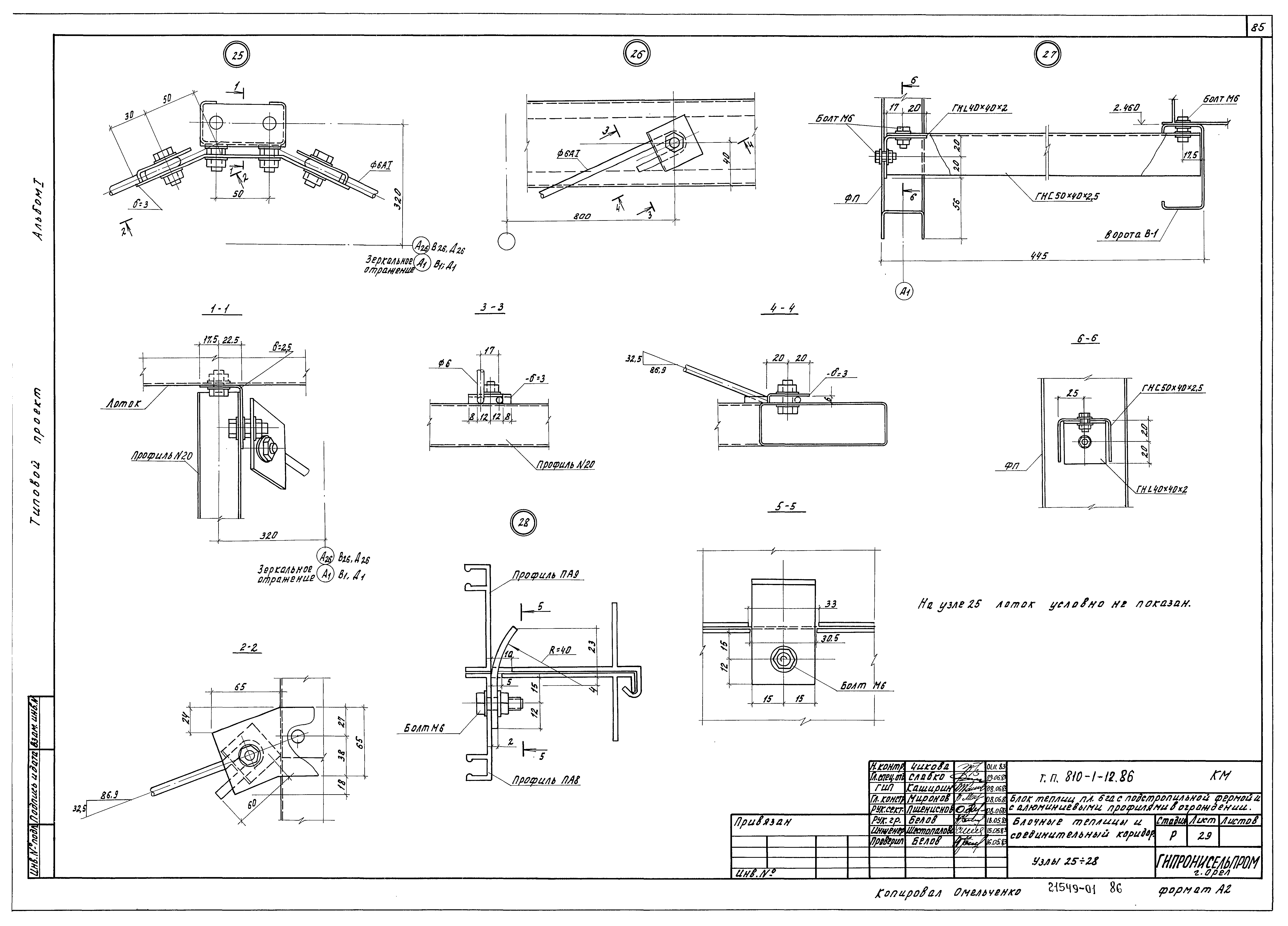
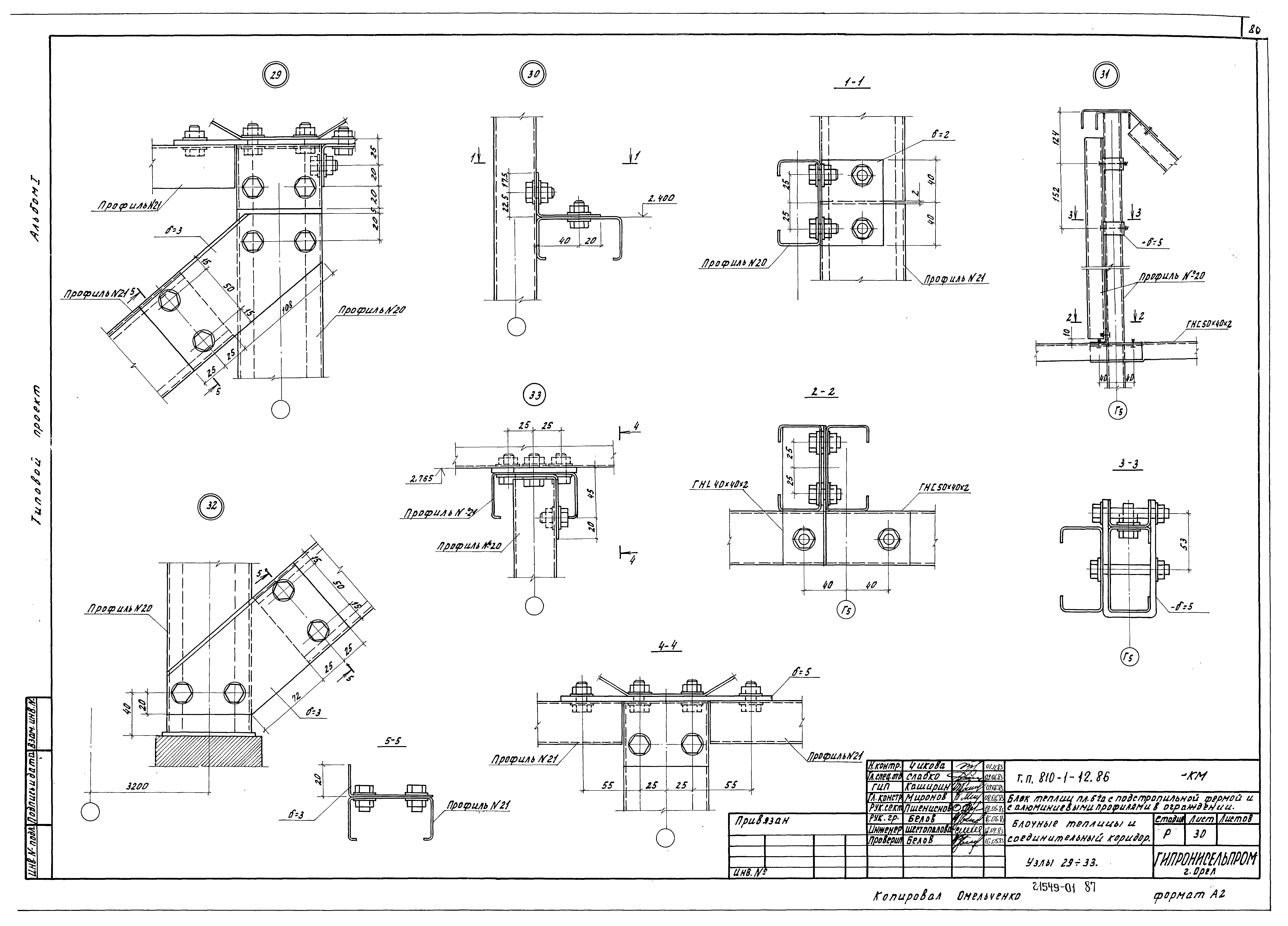
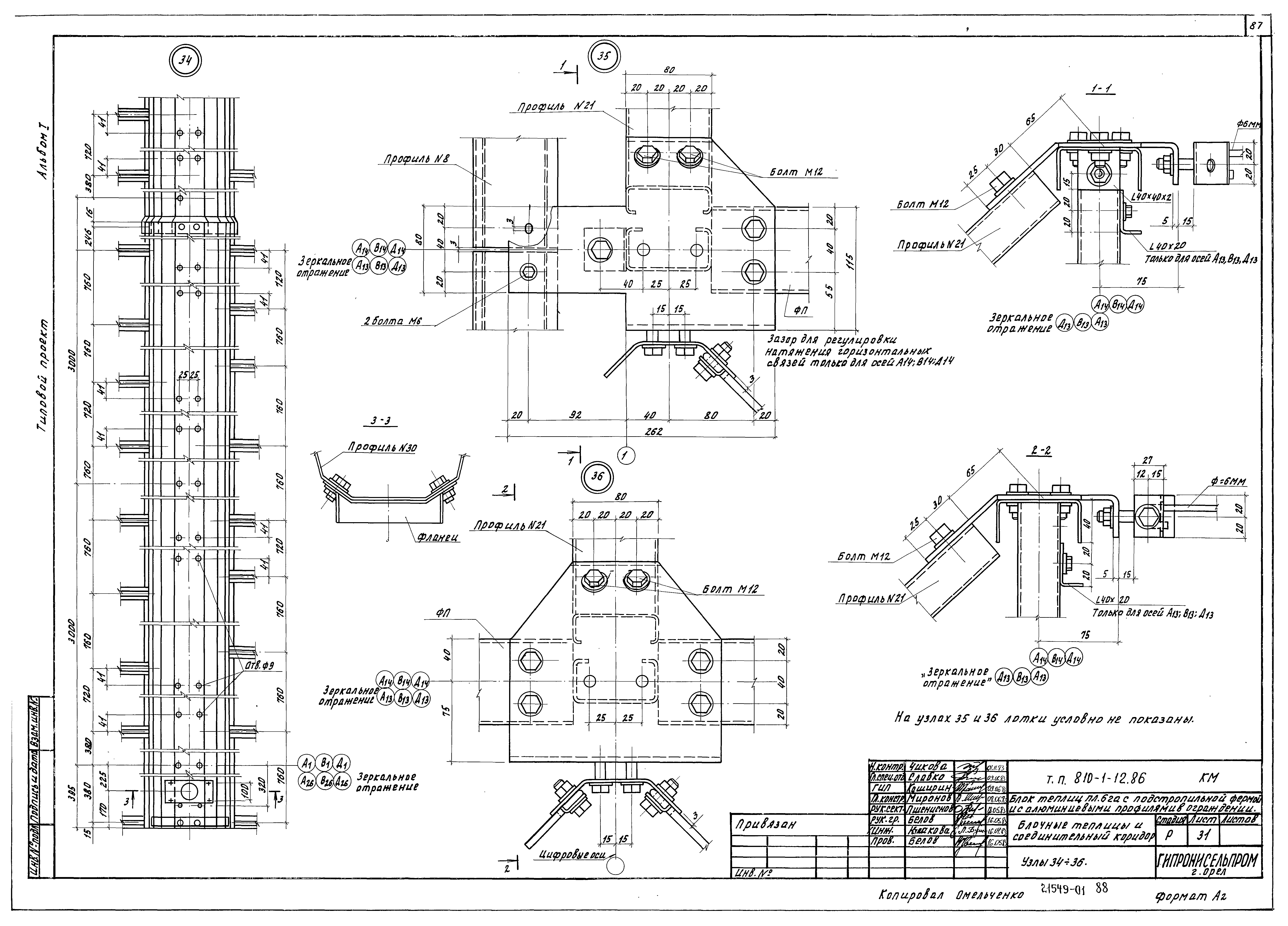
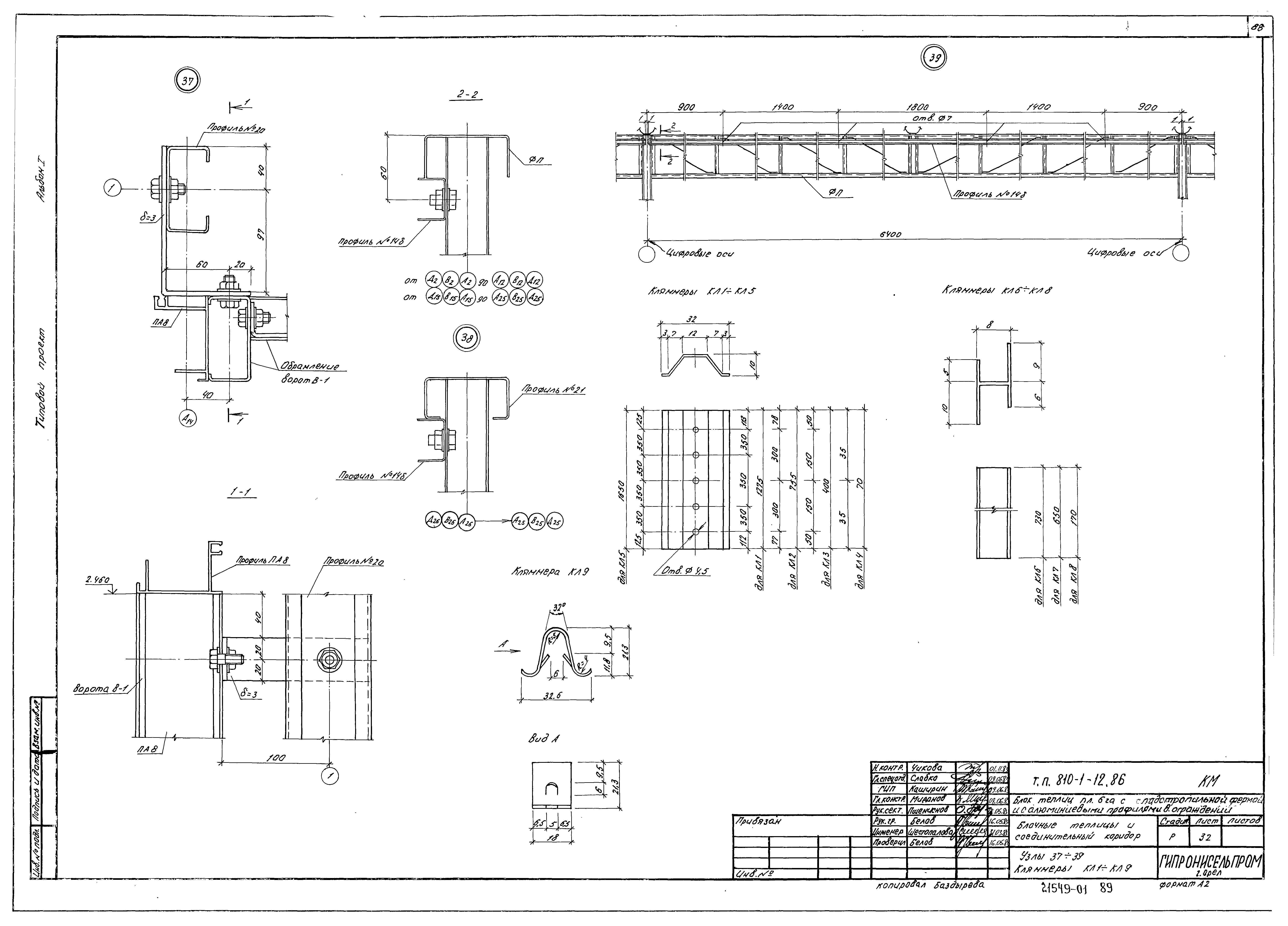
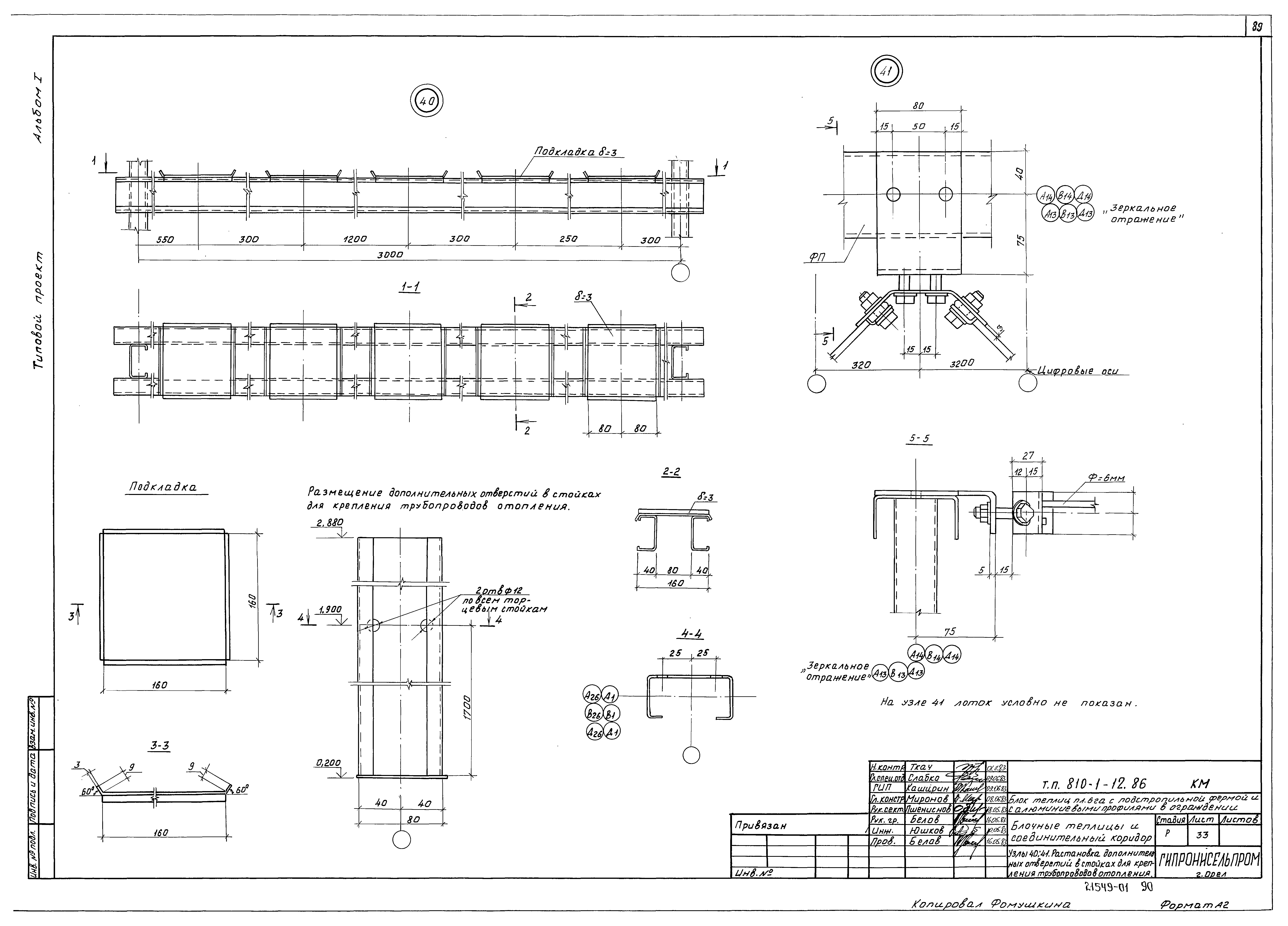
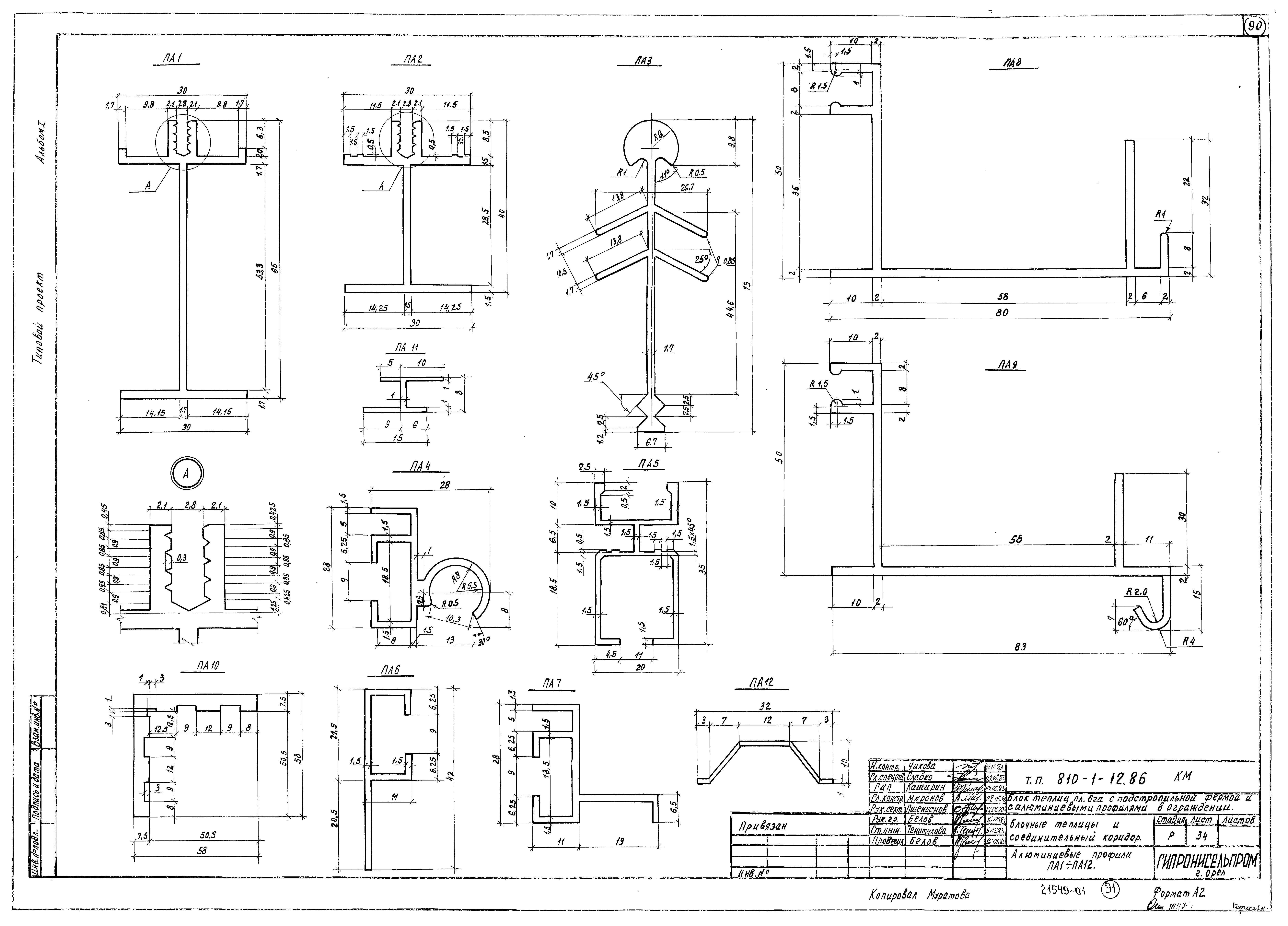
| Оглавление: | ТП 810-1-12.86 Содержание альбома (начало) ТП 810-1-12.86 Содержание альбома (окончание) ТП 810-1-12.86 ПЗ-1 Пояснительная записка (начало) ТП 810-1-12.86 ПЗ-2 Пояснительная записка (продолжение) ТП 810-1-12.86 ПЗ-3 Пояснительная записка (продолжение) ТП 810-1-12.86 ПЗ-4 Пояснительная записка (продолжение) ТП 810-1-12.86 ПЗ-5 Пояснительная записка (окончание) ТП 810-1-12.86 СК-1 Схема компоновки блока теплиц ТП 810-1-12.86 ТХ Технологические чертежи ТП 810-1-12.86 ТХ-1 Общие данные (начало) ТП 810-1-12.86 ТХ-2 Общие данные (продолжение) ТП 810-1-12.86 ТХ-3 Общие данные (продолжение) ТП 810-1-12.86 ТХ-4 Общие данные (продолжение) ТП 810-1-12.86 ТХ-5 Общие данные (окончание) ТП 810-1-12.86 ТХ-6 Схема стерилизации почвы паром. Разрезы. Вид ТП 810-1-12.86 ТХ-7 План расположения универсальных генераторов УГ-6. Разрез. Таблица площадей ТП 810-1-12.86 ТХ-8 Схемы размещения рядов растений и шпалерных опор ТП 810-1-12.86 ТХН-1 Узел подвески генератора УГ-6 ТП 810-1-12.86 ТХН-2 Труба парораспределительная ТП 810-1-12.86 АР Архитектурно-строительные чертежи ТП 810-1-12.86 АР-1 Общие данные ТП 810-1-12.86 АР-2 План на отм. 0.000 ТП 810-1-12.86 АР-3 Фасады. Разрезы ТП 810-1-12.86 АР-4 Фрагменты 1;2 ТП 810-1-12.86 АР-5 Фрагменты 3-5. Узлы 1;2 ТП 810-1-12.86 АР-6 Узлы 3;4 ТП 810-1-12.86 АР-7 Узлы 5;10 ТП 810-1-12.86 АР-8 Узлы 11;15 ТП 810-1-12.86 АР-9 Схема расположения изделий соединительных ТП 810-1-12.86 АРИ-01.00 Изделие соединительное ИС1 ТП 810-1-12.86 АРИ-02.00 Изделие соединительное ИС2 ТП 810-1-12.86 АРИ-03.00 Изделие соединительное ИС3 ТП 810-1-12.86 АРИ-04.00 Изделие соединительное ИС4 ТП 810-1-12.86 АРИ-05.00 Изделие соединительное ИС5 ТП 810-1-12.86 АРИ-06.00 Изделие соединительное ИС6 ТП 810-1-12.86 АРИ-07.00 Изделие соединительное ИС7 ТП 810-1-12.86 АРИ-08.00 Изделие соединительное ИС8 ТП 810-1-12.86 АРИ-09.00 Изделие соединительное ИС9 ТП 810-1-12.86 АРИ-10.00 Изделие соединительное ИС10 ТП 810-1-12.86 АРИ-11.00 Изделие соединительное ИС11 ТП 810-1-12.86 АРИ-12.00 Изделие соединительное ИС12 ТП 810-1-12.86 АРИ-13.00 Изделие соединительное ИС13 ТП 810-1-12.86 АРИ-14.00 Изделие соединительное ИС14 ТП 810-1-12.86 АРИ-15.00 Изделие соединительное ИС15 ТП 810-1-12.86 АРИ-16.00 Изделие соединительное ИС16 ТП 810-1-12.86 КЖ-1 Общие данные (начало) ТП 810-1-12.86 КЖ-2 Общие данные (окончание) ТП 810-1-12.86 КЖ-3 Схема расположения фундаментов и цокольных плит теплиц I и V ТП 810-1-12.86 КЖ-4 Схема расположения фундаментов и цокольных плит теплиц II;IV и VI ТП 810-1-12.86 КЖ-5 Схема расположения фундаментов и цокольных плит теплицы III ТП 810-1-12.86 КЖ-6 Схема расположения фундаментов и цокольных плит соединительного коридора ТП 810-1-12.86 КЖ-7 Спецификации к схемам расположения фундаментов и цокольных плит теплиц I-VI и соединительного коридора ТП 810-1-12.86 КЖ-8 Монолитные фундаменты ФМ1-ФМ9 ТП 810-1-12.86 КЖ-9 Фундаменты ФМ10;ФМ11;ФС4;ФС4ª;ФС8;ФС8ª. Участок монолитный УМ1 ТП 810-1-12.86 КЖ-10 Спецификация элементов монолитной конструкции (начало) ТП 810-1-12.86 КЖ-11 Спецификация элементов монолитной конструкции (окончание) ТП 810-1-12.86 КЖ-12 Узлы 1-6 ТП 810-1-12.86 КЖ-13 Узлы 7-11 ТП 810-1-12.86 КЖ-14 Узлы 12-15 ТП 810-1-12.86 КЖ-15 Узлы 16-19 ТП 810-1-12.86 КЖ-16 Узлы 20-23 ТП 810-1-12.86 КЖ-17 Узлы 24-27 ТП 810-1-12.86 КЖ-18 Узлы 28-31. Детали устройства деформационных швов. Узел 6 ТП 810-1-12.86 КЖ-19 Узлы 32-34. Детали устройства опоры на фундамент ФС ТП 810-1-12.86 КЖИ-17.00 СБ Плита цокольная ПЦ1. Сборочный чертеж ТП 810-1-12.86 КЖИ-17.00 Плита цокольная ПЦ1 ТП 810-1-12.86 КЖИ-18.00 Изделие соединительное МН1 ТП 810-1-12.86 КЖИ-17.10 СБ Каркас пространственный (КР1;КР2). Сборочный чертеж ТП 810-1-12.86 КЖИ-17.10 Каркас пространственный (КР1;КР2) ТП 810-1-12.86 КЖИ-17.20 СБ Сетка арматурная (С2;С3). Сборочный чертеж ТП 810-1-12.86 КЖИ-17.20 Сетка арматурная (С2;С3) ТП 810-1-12.86 КЖИ-19.00 СБ Столбик СФ1. Сборочный чертеж ТП 810-1-12.86 КЖИ-19.00 Столбик СФ1 ТП 810-1-12.86 КЖИ-19.10 Сетка арматурная С1 ТП 810-1-12.86 КЖИ-19.20 Изделие закладное МН2 ТП 810-1-12.86 КЖИ-20.00 Изделие закладное МН3(МН5) ТП 810-1-12.86 КЖИ-21.00 Изделие закладное МН4 ТП 810-1-12.86 КЖИ-22.00 Сетка арматурная С4 ТП 810-1-12.86 КЖИ-23.00 СБ Фундаментальные блоки ФБС9.4.Б-т-А, ФБС12.4.6-т-А. Сборочный чертеж ТП 810-1-12.86 КЖИ-23.00 Фундаментальные блоки ФБС9.4.Б-т-А, ФБС12.4.6-т-А ТП 810-1-12.86 КЖИ-24.00 СБ Фундаментальные блоки ФБС24.4.Б-т-А, ФБС24.5.6-т-А. Сборочный чертеж ТП 810-1-12.86 КЖИ-24.00 Фундаментальные блоки ФБС24.4.Б-т-А, ФБС24.5.6-т-А ТП 810-1-12.86 КЖИ-25.00 СБ Фундаментальный блок ФБС24.5.6-т-А. Сборочный чертеж ТП 810-1-12.86 КЖИ-25.00 Фундаментальный блок ФБС24.5.6-т-А ТП 810-1-12.86 КЖИ-24.10 СБ Сетка арматурная (С5;С6). Сборочный чертеж ТП 810-1-12.86 КЖИ-24.10 Сетка арматурная (С5;С6) ТП 810-1-12.86 КМ-1 Общие данные (начало) ТП 810-1-12.86 КМ-2 Общие данные (продолжение) ТП 810-1-12.86 КМ-3 Общие данные (продолжение) ТП 810-1-12.86 КМ-4 Общие данные (окончание) ТП 810-1-12.86 КМ-5 Схема расположения стоек, ферм, связей и подкосов для теплиц I и V ТП 810-1-12.86 КМ-6 Схема расположения стоек, ферм, связей и подкосов для теплицы III ТП 810-1-12.86 КМ-7 Схема расположения стоек, ферм, связей и подкосов для теплиц II;IV и VI ТП 810-1-12.86 КМ-8 Разрезы. Узлы ТП 810-1-12.86 КМ-9 Схемы расположения стоек, ферм, связей, лотков, шпросов покрытия, форточек соединительного коридора в осях Г1-Г6;Б1-Б4 ТП 810-1-12.86 КМ-10 Схема расположения лотков, шпросов покрытия, форточек и коньковых элементов ТП 810-1-12.86 КМ-11 Виды 1-1;2-2 ТП 810-1-12.86 КМ-12 Схема расположения элементов по осям 1;36 ТП 810-1-12.86 КМ-13 Схема расположения элементов по осям А1;А26;В1;В26;Д1;Д26. Разрезы ТП 810-1-12.86 КМ-14 Схема расположения элементов по осям 24 ТП 810-1-12.86 КМ-15 Схема расположения элементов по осям 25 ТП 810-1-12.86 КМ-16 Фрагмент разреза 1. Узлы ТП 810-1-12.86 КМ-17 Фрагмент плана покрытия ТП 810-1-12.86 КМ-18 Ферма ФП ТП 810-1-12.86 КМ-19 Форточка ФР1 ТП 810-1-12.86 КМ-20 Форточки ТФ-1;ТФ-1а;ТФ-2;ТФ-3;ТФ-4 ТП 810-1-12.86 КМ-21 Форточки. Позиции 1-3. Позиции 5-8 ТП 810-1-12.86 КМ-22 Распашные ворота В-1;В-2 ТП 810-1-12.86 КМ-23 Узлы 1;2 ТП 810-1-12.86 КМ-24 Узлы 3-6 ТП 810-1-12.86 КМ-25 Узлы 7-12 ТП 810-1-12.86 КМ-26 Узлы 13-16 ТП 810-1-12.86 КМ-27 Узлы 17-20 ТП 810-1-12.86 КМ-28 Узлы 21-24 ТП 810-1-12.86 КМ-29 Узлы 25-28 ТП 810-1-12.86 КМ-30 Узлы 29-33 ТП 810-1-12.86 КМ-31 Узлы 34-36 ТП 810-1-12.86 КМ-32 Узлы 37-39. Камеры Кл-Кл9 ТП 810-1-12.86 КМ-33 Узлы 40-41. Расстановка дополнительных отверстий в стойках для крепления трубопроводов отопления ТП 810-1-12.86 КМ-34 Алюминиевые профили ПА1-ПА12 |
| Разработан: | Гипронисельпром Минплодоовощхоза СССР |
| Утверждён: | 16.11.1984 Минплодоовощхоз СССР (03-7-52/6210) |


























































































