Скачать Типовой проект 810-1-12.86 Альбом II. Блочные теплицы и соединительный коридор. Чертежи по отоплению и вентиляцииДата актуализации: 01.01.2021
|
| Обозначение: | Типовой проект 810-1-12.86 |
| Обозначение англ: | 810-1-12.86 |
| Статус: | не определен законодательством |
| Название рус.: | Альбом II. Блочные теплицы и соединительный коридор. Чертежи по отоплению и вентиляции |
| Дата добавления в базу: | 01.09.2013 |
| Дата актуализации: | 01.01.2021 |
| Дата введения: | 01.08.1986 |
| Дата окончания срока действия: | 30.06.2003 |
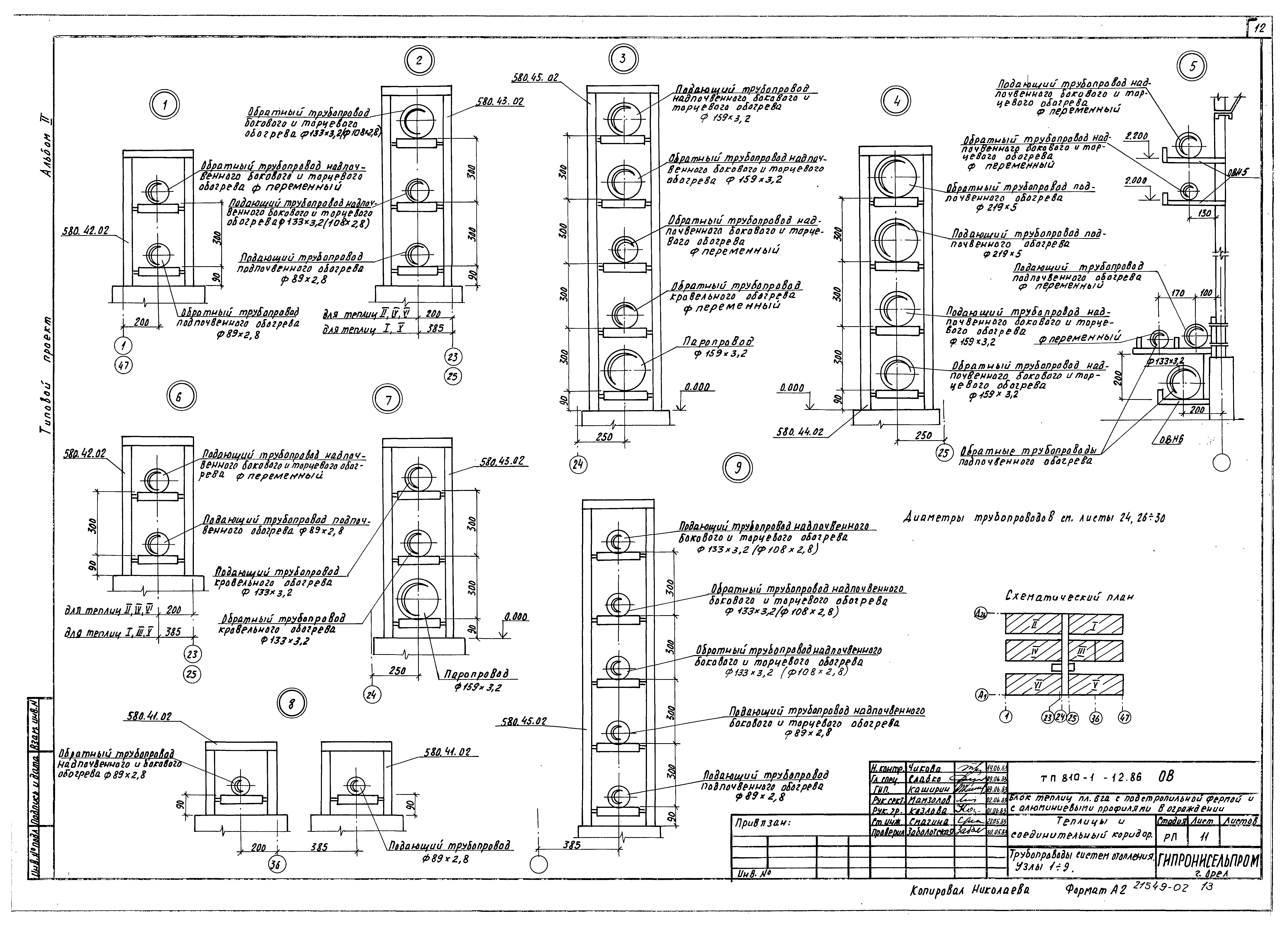
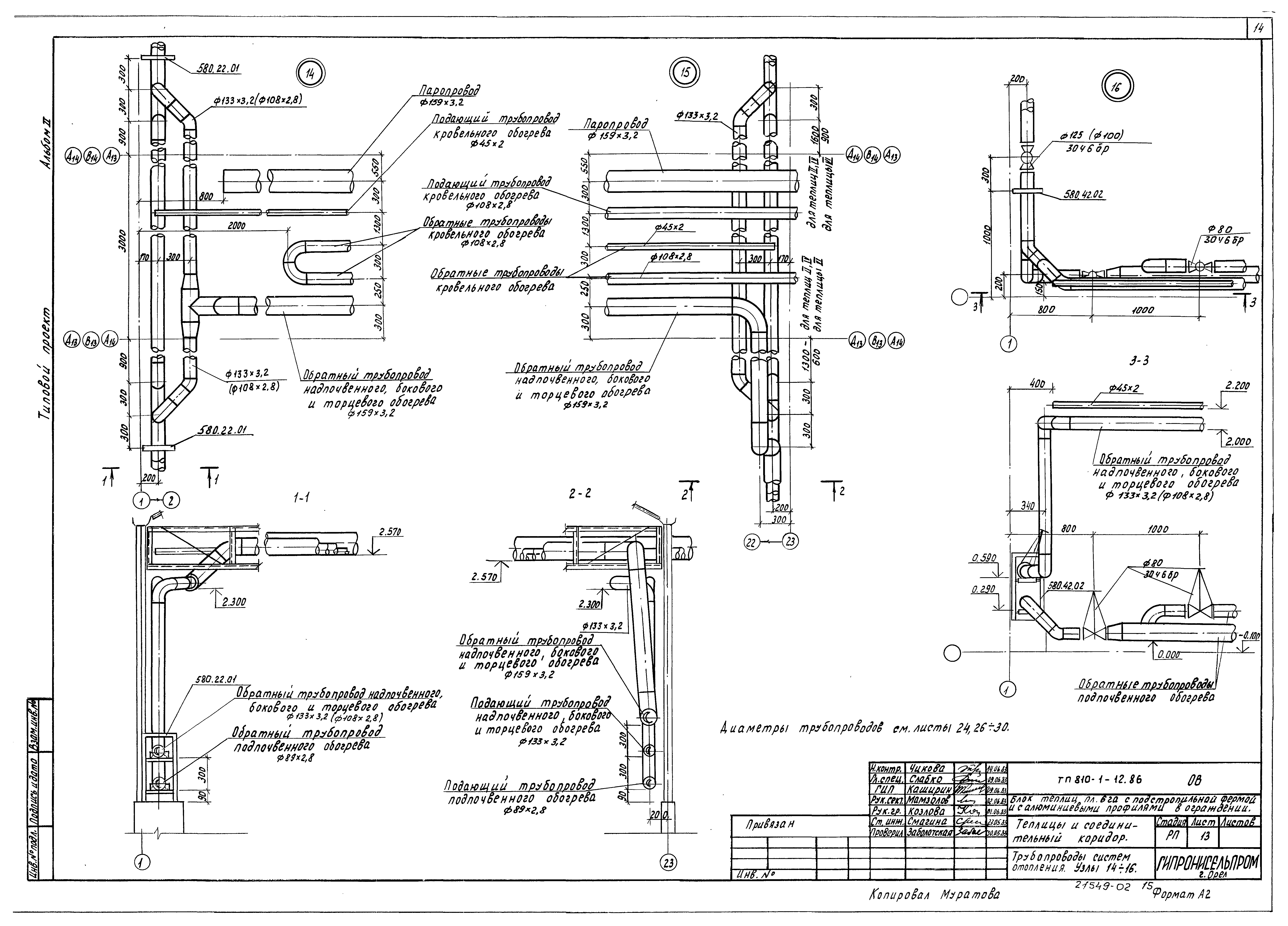
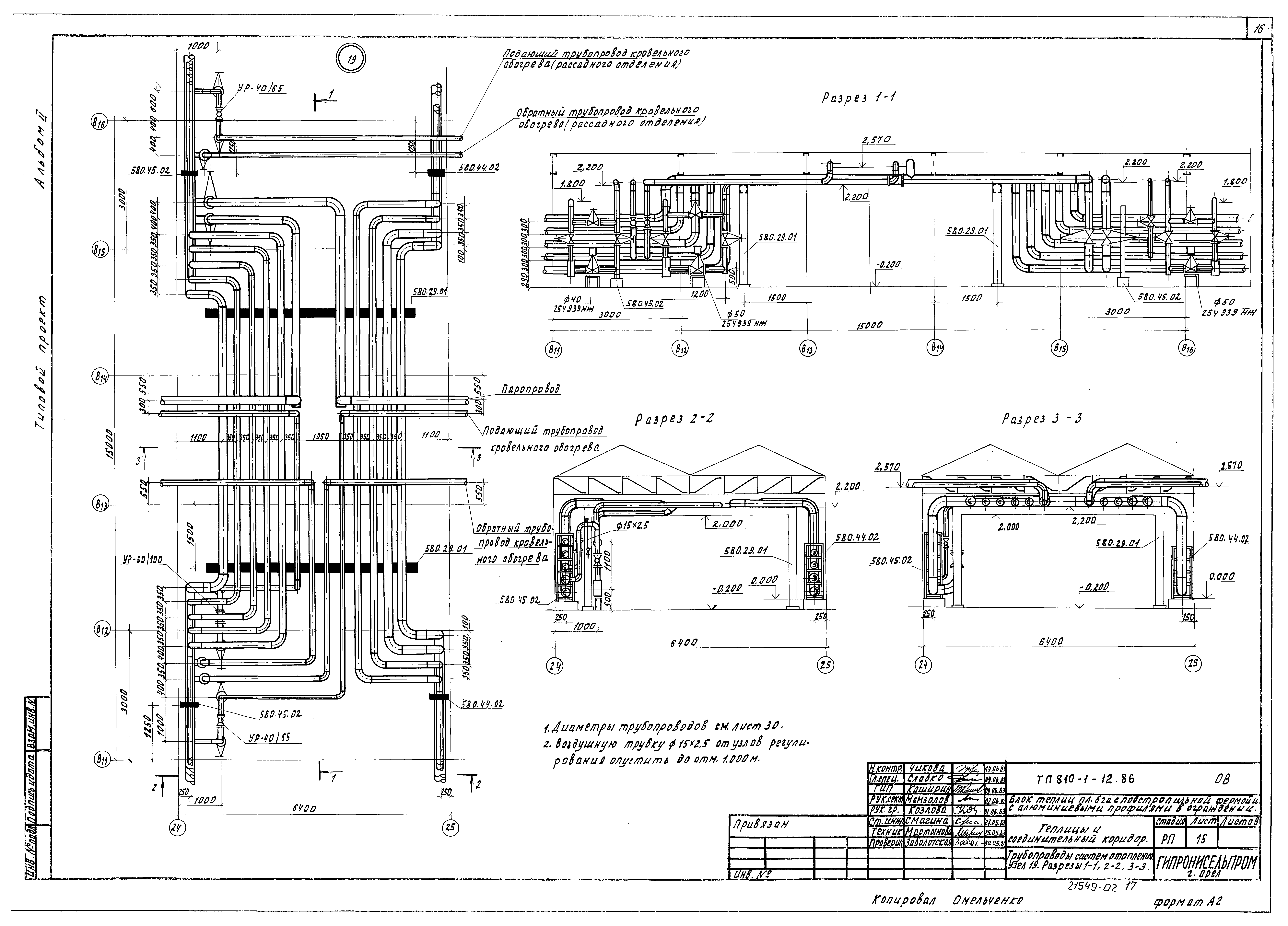
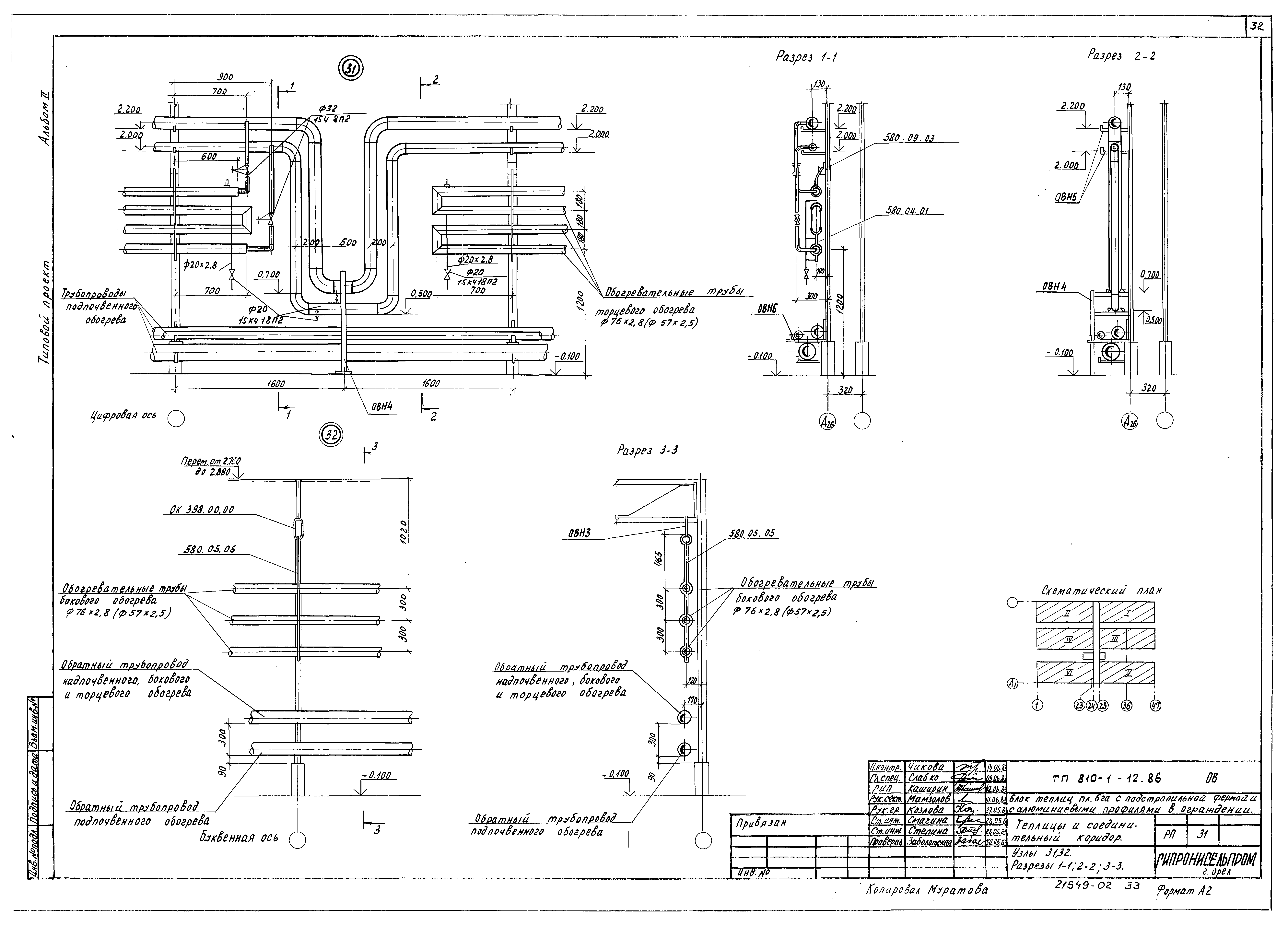
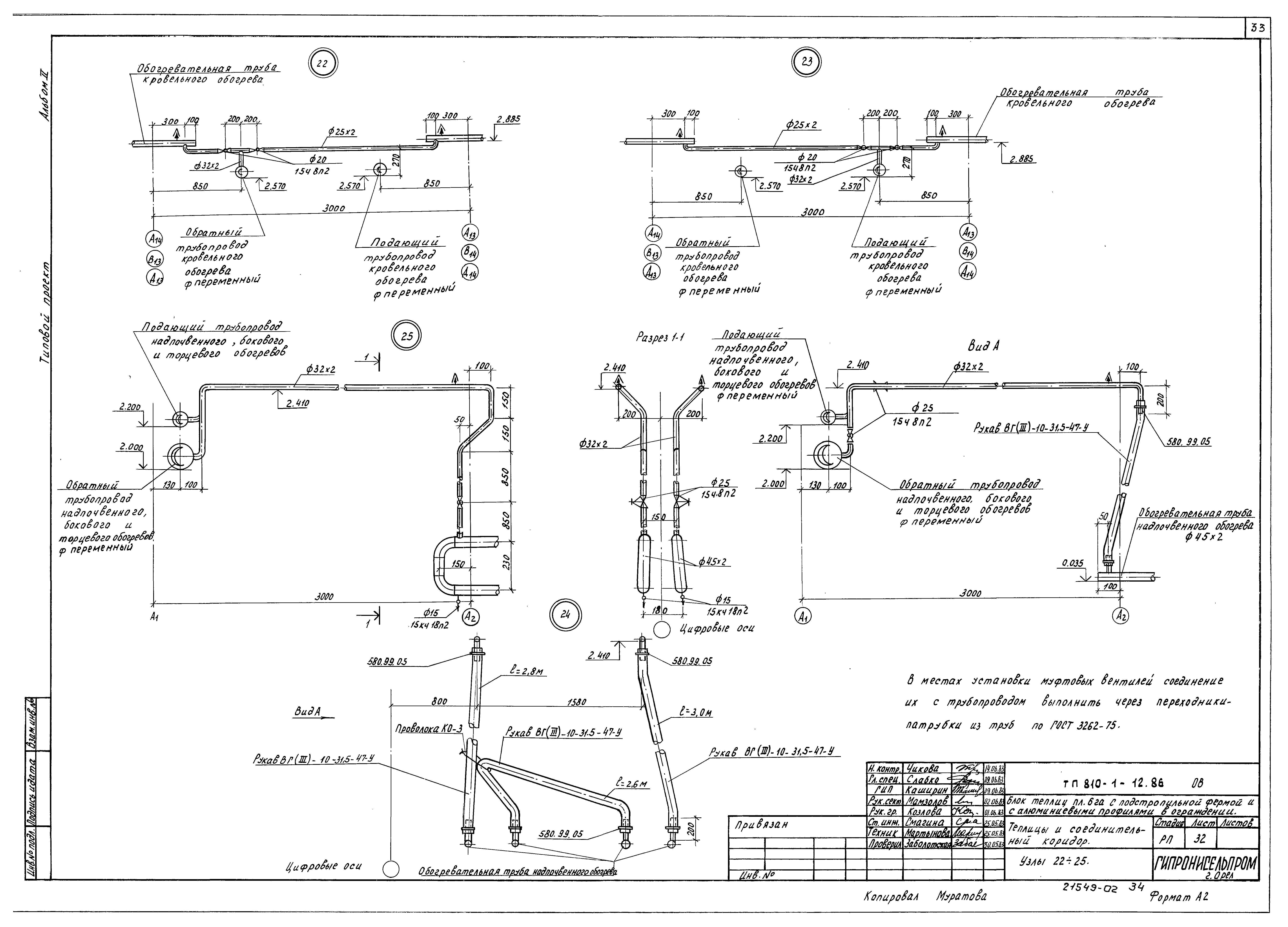
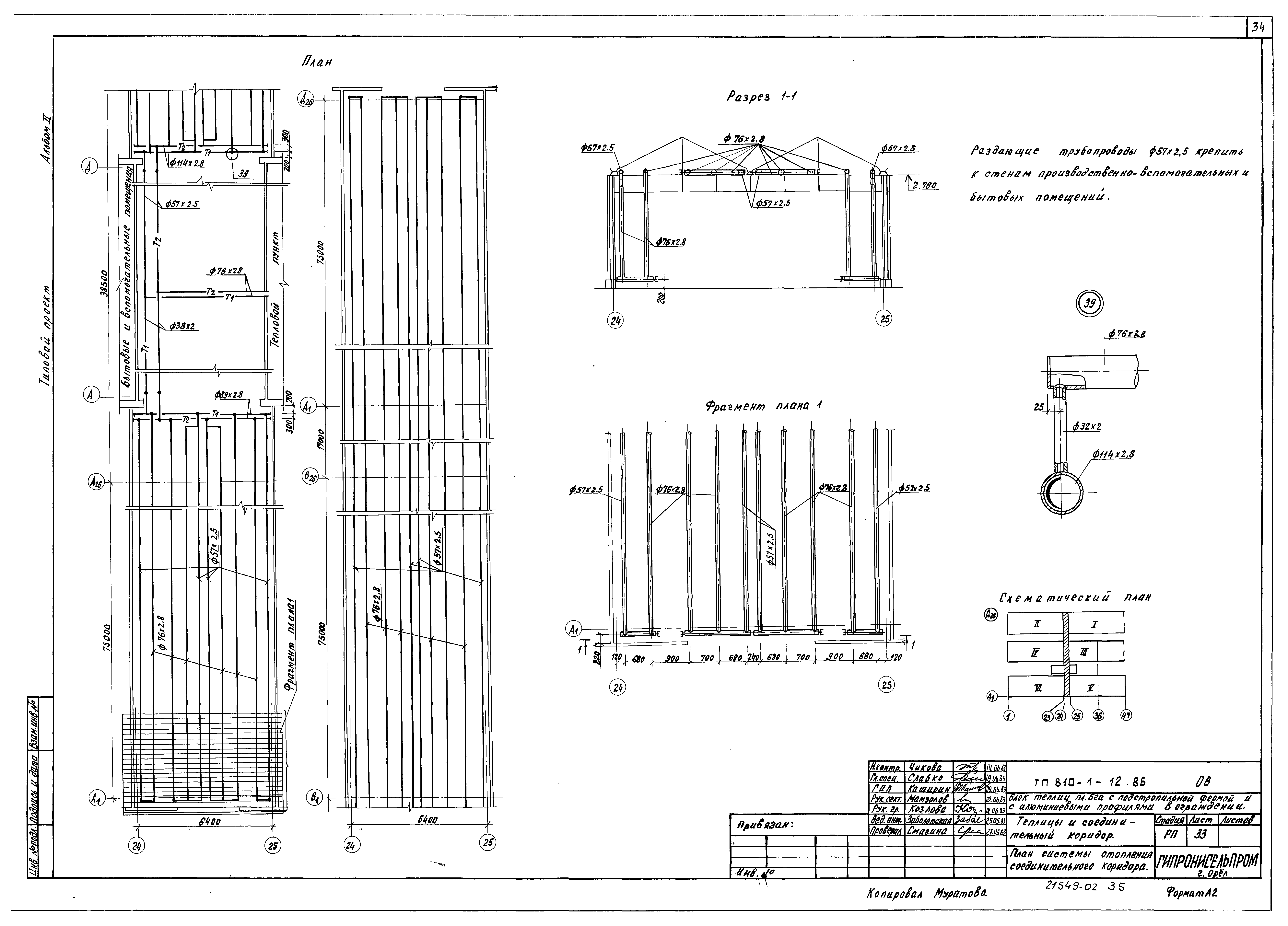
| Оглавление: | ТП 810-1-12.86-ОВ Общие данные (начало) ТП 810-1-12.86-ОВ Общие данные (продолжение) ТП 810-1-12.86-ОВ Общие данные (окончание) ТП 810-1-12.86-ОВ План трубопроводов отопления и опор теплицы 1 на отм.-0.100 ТП 810-1-12.86-ОВ План трубопроводов отопления и опор теплицы 2 на отм.-0.100 ТП 810-1-12.86-ОВ План трубопроводов отопления и опор теплицы 3 на отм.-0.100 ТП 810-1-12.86-ОВ План трубопроводов отопления и опор теплицы 4 на отм.-0.100 ТП 810-1-12.86-ОВ План трубопроводов отопления и опор теплицы 5 на отм.-0.100 ТП 810-1-12.86-ОВ План трубопроводов отопления и опор теплицы 6 на отм.-0.100 ТП 810-1-12.86-ОВ План трубопроводов отопления и опор в осях 24-25 на отм. 0.000 ТП 810-1-12.86-ОВ Трубопроводы систем отопления. Узлы 1-9 ТП 810-1-12.86-ОВ Трубопроводы систем отопления. Узлы 10-13 ТП 810-1-12.86-ОВ Трубопроводы систем отопления. Узлы 14-16 ТП 810-1-12.86-ОВ Трубопроводы систем отопления. Узлы 17,18. Разрезы 1-1;2-2 ТП 810-1-12.86-ОВ Трубопроводы систем отопления. Узел 19. Разрезы 1-1;2-2;3-3 ТП 810-1-12.86-ОВ Трубопроводы систем отопления. Узлы 20,21. Разрезы 1-1;2-2;3-3 ТП 810-1-12.86-ОВ План и схема системы кровельного обогрева. Разрез 1-1 (для районов с tн=минус 30ºС) ТП 810-1-12.86-ОВ План и схема системы кровельного обогрева. Разрез 1-1 (для районов с tн=минус 20ºС) ТП 810-1-12.86-ОВ План и схема системы надпочвенного обогрева (для районов с tн=минус 30ºС и tн-минус 20ºС) ТП 810-1-12.86-ОВ План и схема системы надпочвенного обогрева (стационарные трубы для районов с tн=минус 30ºС) ТП 810-1-12.86-ОВ План и схема системы подпочвенного обогрева (овощное отделение) ТП 810-1-12.86-ОВ План и схема системы подпочвенного обогрева (рассадное отделение) ТП 810-1-12.86-ОВ План и схема системы контурного обогрева ТП 810-1-12.86-ОВ Диаметры трубопроводов ТП 810-1-12.86-ОВ План подводок к обогревательным трубам ТП 810-1-12.86-ОВ Схема трубопроводов систем кровельного и надпочвенного обогрева ТП 810-1-12.86-ОВ Схема трубопроводов систем кровельного и надпочвенного обогрева овощного отделения теплицы 3 ТП 810-1-12.86-ОВ Схема трубопроводов систем кровельного и надпочвенного обогрева рассадного отделения теплицы 3 ТП 810-1-12.86-ОВ Схема трубопроводов систем подпочвенного обогрева и термической обработки почвы ТП 810-1-12.86-ОВ Схема трубопроводов в соединительном коридоре ТП 810-1-12.86-ОВ Узлы 31,32. Разрезы 1-1;2-2;3-3 ТП 810-1-12.86-ОВ Узлы 22-25 ТП 810-1-12.86-ОВ План системы отопления соединительного коридора ТП 810-1-12.86-ОВ Схема системы отопления соединительного коридора ТП 810-1-12.86-ОВН1 Коллектор распределительный ТП 810-1-12.86-ОВН2 Коллектор распределительный ТП 810-1-12.86-ОВН3 Подвеска ТП 810-1-12.86-ОВН4 Опора ТП 810-1-12.86-ОВН5 Кронштейн ТП 810-1-12.86-ОВН6 Опора ТП 810-1-12.86-ОВН7 Конструкция тепловой изоляции трубопроводов |
| Разработан: | Гипронисельпром Минплодоовощхоза СССР |
| Утверждён: | 16.11.1984 Минплодоовощхоз СССР (03-7-52/6210) |








































