Скачать Типовой проект 810-1-12.86 Альбом V. Блочные теплицы и соединительный коридор. Система теплозащитного шторного экранаДата актуализации: 01.01.2021
|
| Обозначение: | Типовой проект 810-1-12.86 |
| Обозначение англ: | 810-1-12.86 |
| Статус: | не определен законодательством |
| Название рус.: | Альбом V. Блочные теплицы и соединительный коридор. Система теплозащитного шторного экрана |
| Дата добавления в базу: | 01.09.2013 |
| Дата актуализации: | 01.01.2021 |
| Дата введения: | 01.08.1986 |
| Дата окончания срока действия: | 30.06.2003 |
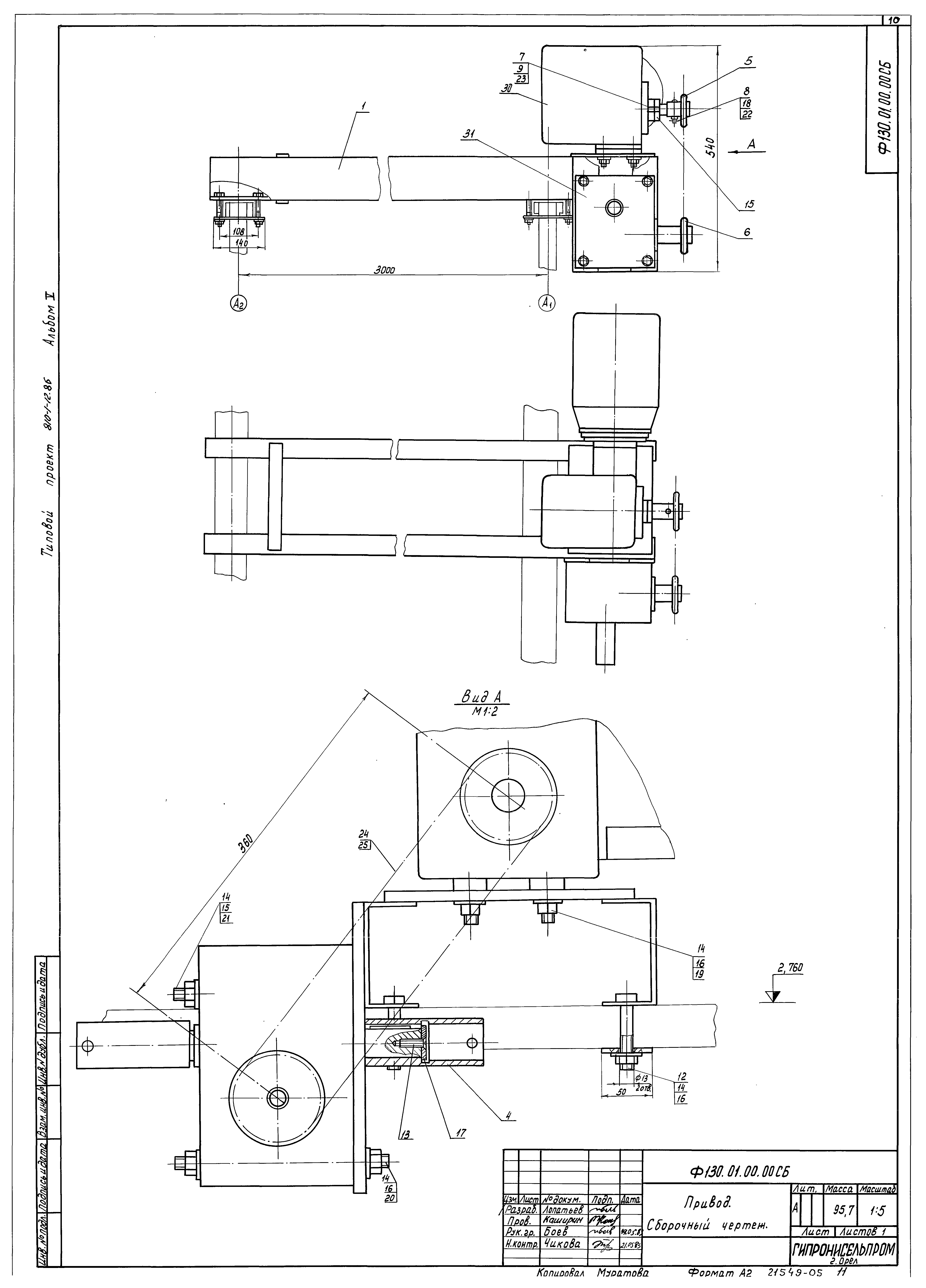
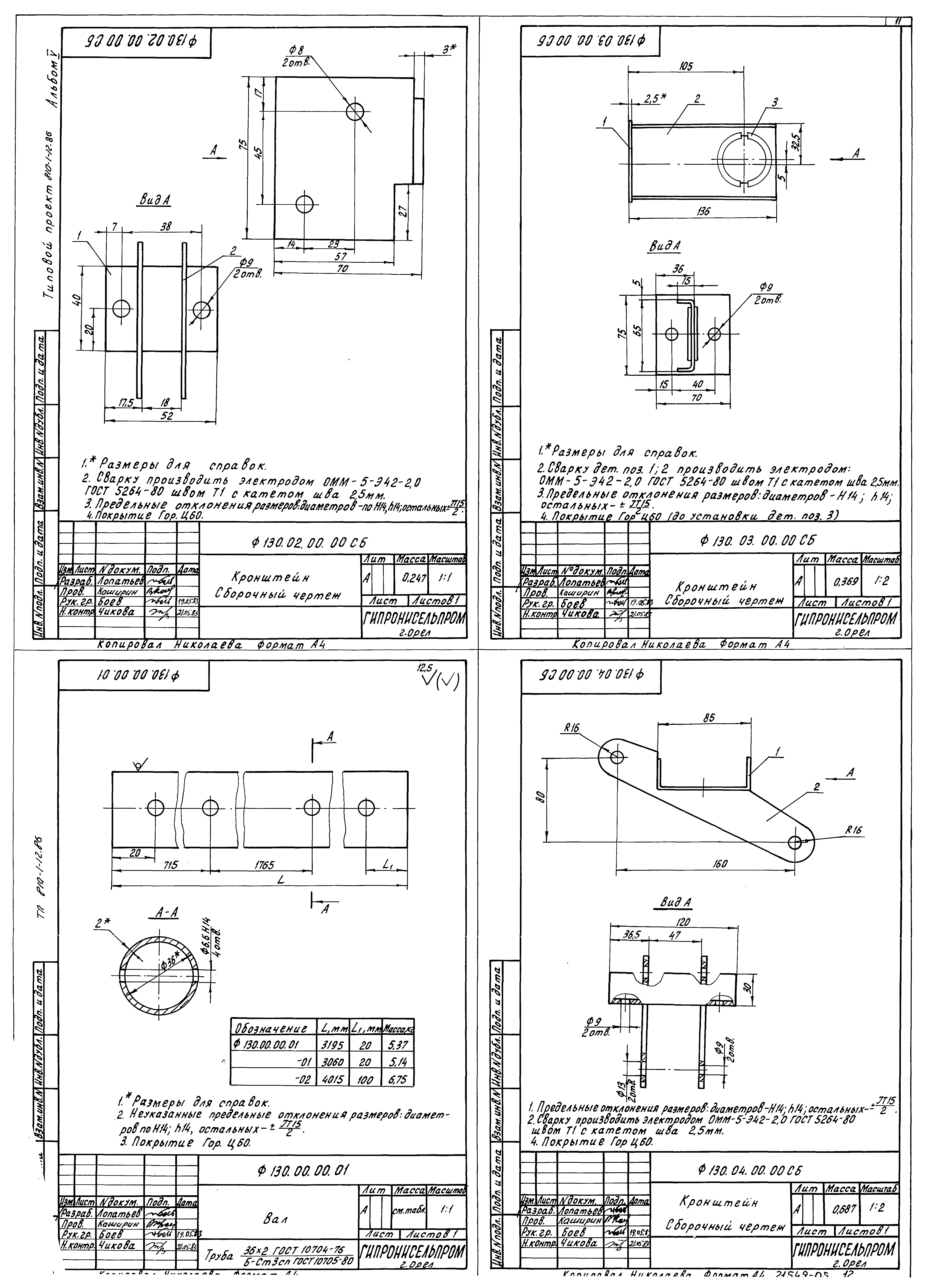
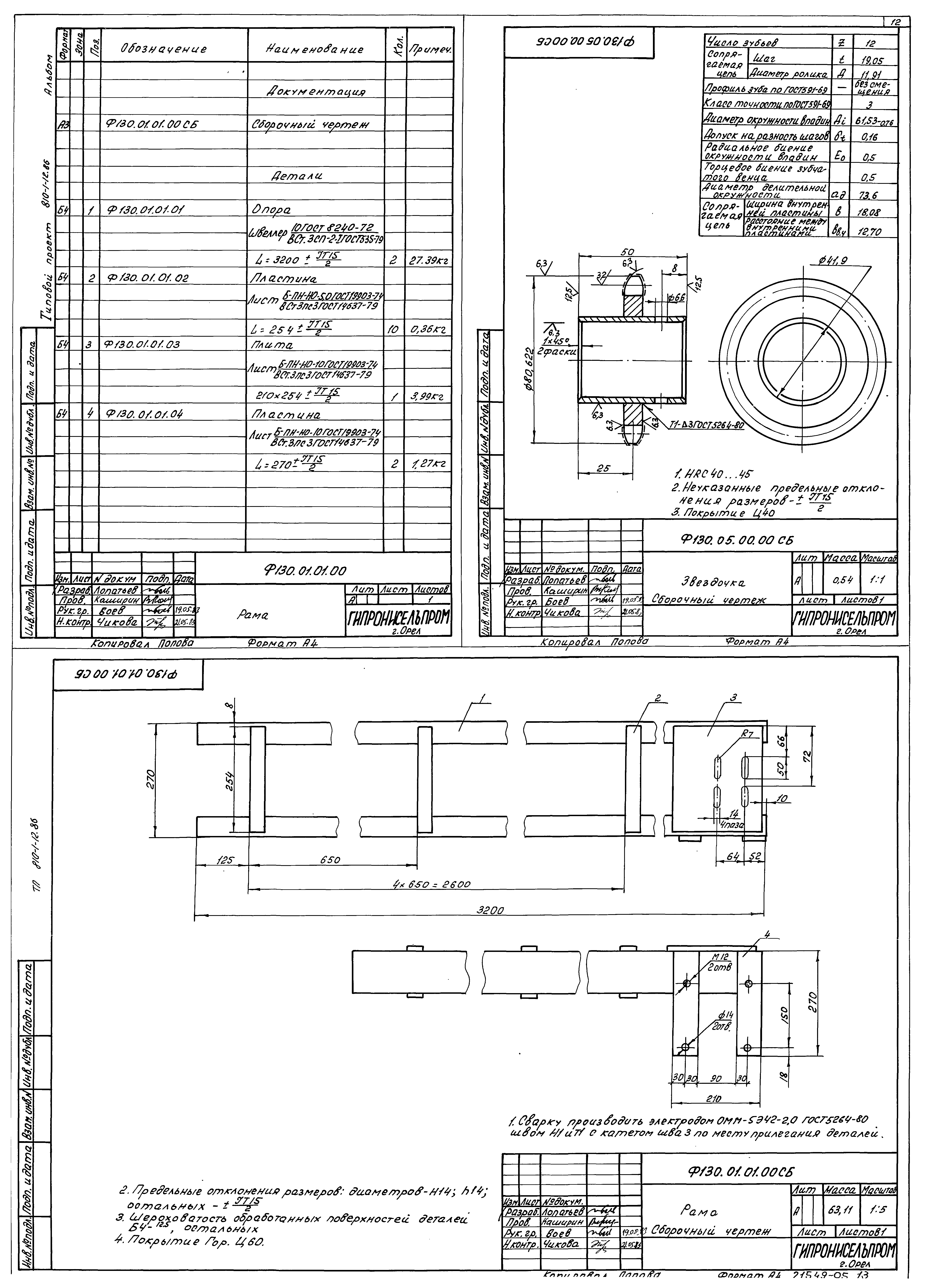
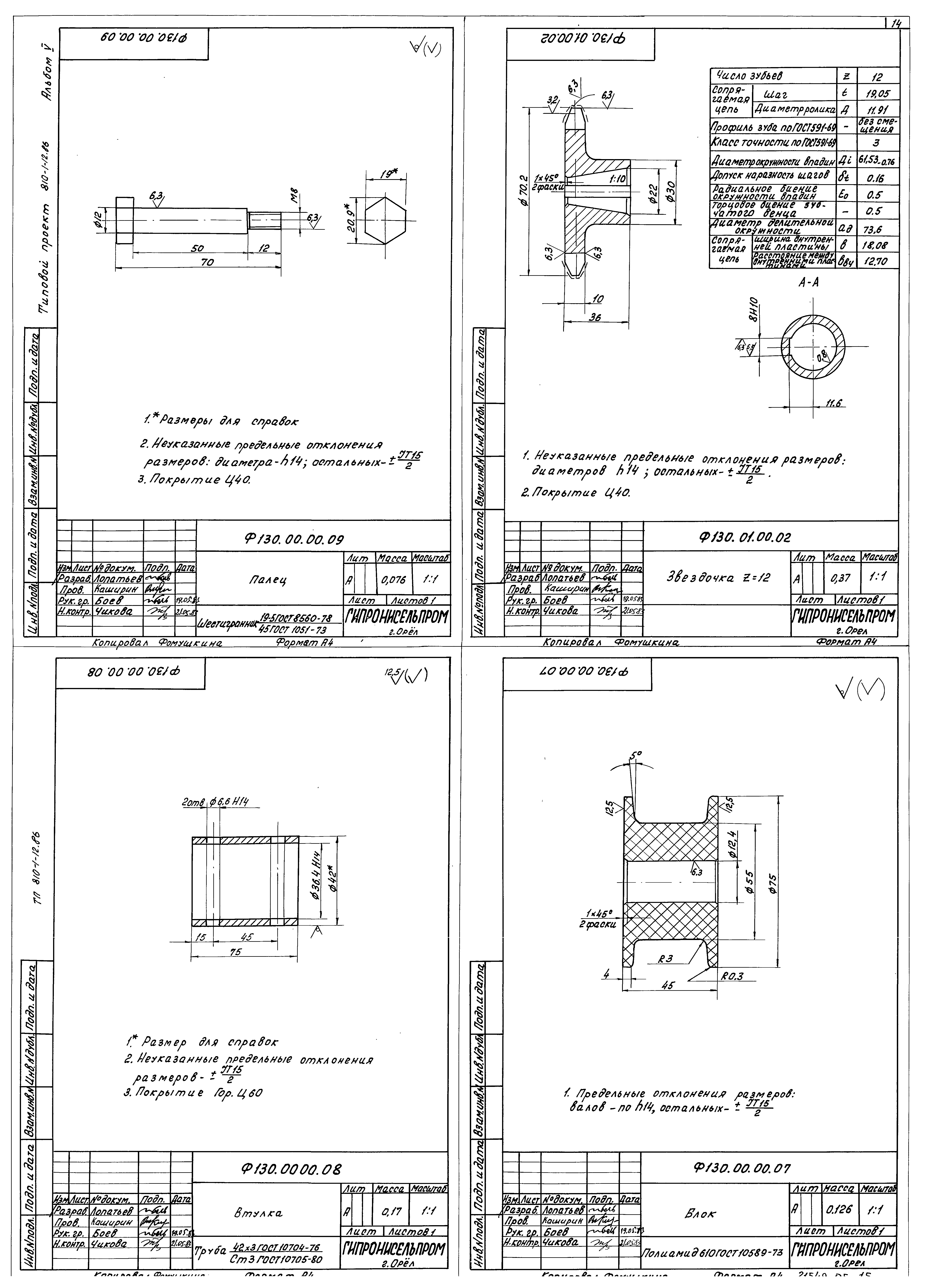
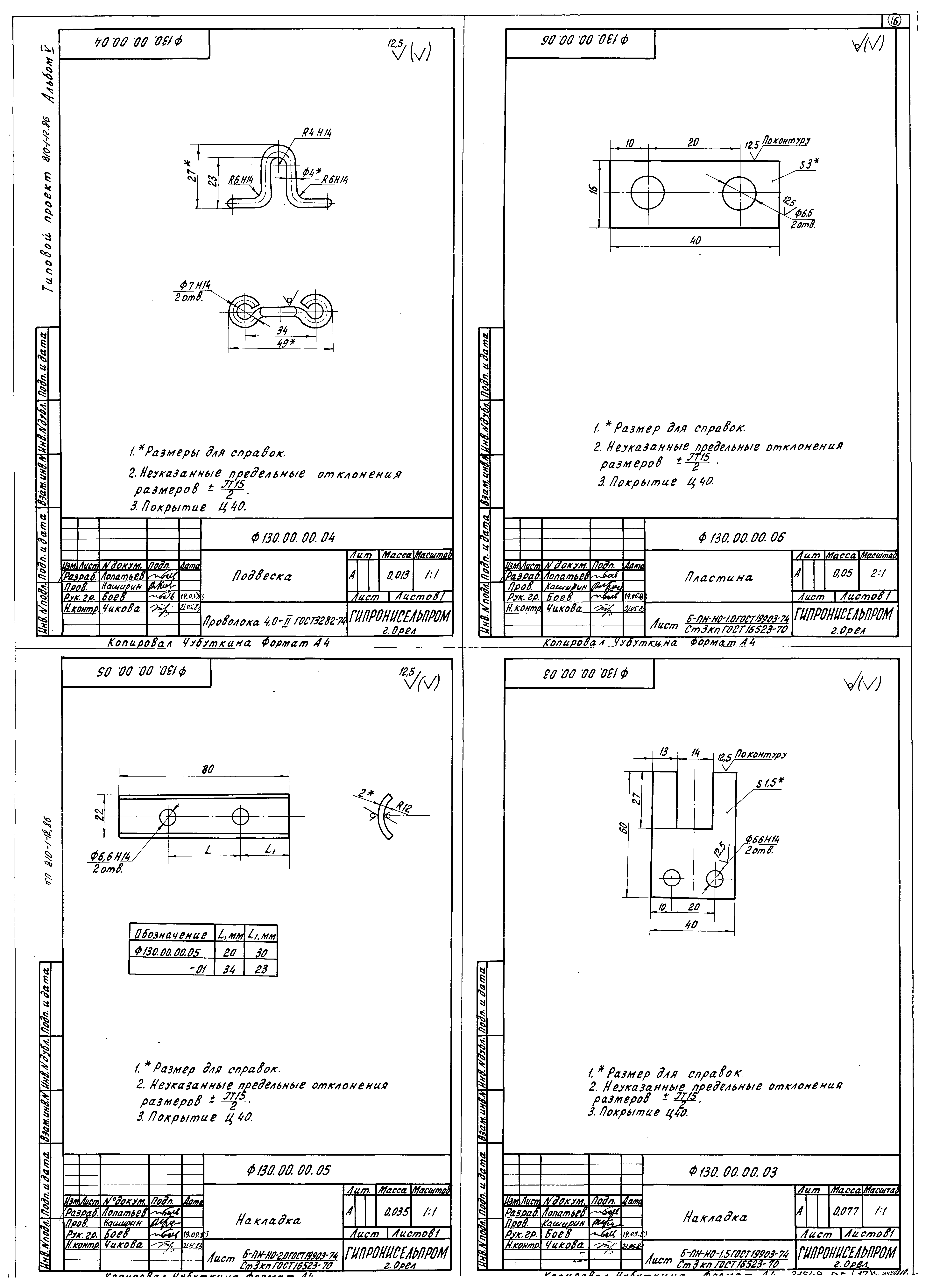
| Оглавление: | ТП 810-1-12.86 Содержание альбома ТП 810-1-12.86 Ф130.00.00.00 Система теплозащитного шторного экрана. Спецификация ТП 810-1-12.86 Ф130.02.00.00 Кронштейн. Спецификация ТП 810-1-12.86 Ф130.03.00.00 Кронштейн. Спецификация ТП 810-1-12.86 Ф130.04.00.00 Кронштейн. Спецификация ТП 810-1-12.86 Ф130.01.00.00 Привод. Спецификация ТП 810-1-12.86 Ф130.00.00.21 Зажим. Чертеж детали ТП 810-1-12.86 Ф130.05.00.00 Звездочка. Спецификация ТП 810-1-12.86 Ф130.00.00.00КЗ Система теплозащитного шторного экрана. Схема кинематическая ТП 810-1-12.86 Ф130.00.00.00СБ Система теплозащитного шторного экрана. Сборочный чертеж ТП 810-1-12.86 Ф130.01.00.00СБ Привод. Сборочный чертеж ТП 810-1-12.86 Ф130.02.00.00СБ Кронштейн. Сборочный чертеж ТП 810-1-12.86 Ф130.03.00.00СБ Кронштейн. Сборочный чертеж ТП 810-1-12.86 Ф130.00.00.01 Вал. Чертеж детали ТП 810-1-12.86 Ф130.04.00.00СБ Кронштейн. Сборочный чертеж ТП 810-1-12.86 Ф130.05.00.00СБ Звездочка. Сборочный чертеж ТП 810-1-12.86 Ф130.01.01.00 СБ Рама. Сборочный чертеж ТП 810-1-12.86 Ф130.00.00.10 Пластина. Чертеж детали ТП 810-1-12.86 Ф130.00.00.14 Пластина. Чертеж детали ТП 810-1-12.86 Ф130.00.00.13 Шайба. Чертеж детали ТП 810-1-12.86 Ф130.00.00.15 Штанга. Чертеж детали ТП 810-1-12.86 Ф130.00.00.09 Палец. Чертеж детали ТП 810-1-12.86 Ф130.01.00.02 Звездочка Z=12. Чертеж детали ТП 810-1-12.86 Ф130.00.00.08 Втулка. Чертеж детали ТП 810-1-12.86 Ф130.00.00.07 Блок. Чертеж детали ТП 810-1-12.86 Ф130.01.00.01 Втулка. Чертеж детали ТП 810-1-12.86 Ф130.00.00.02 Втулка. Чертеж детали ТП 810-1-12.86 Ф130.00.00.11 Петля. Чертеж детали ТП 810-1-12.86 Ф130.00.00.12 Пластина. Чертеж детали ТП 810-1-12.86 Ф130.00.00.04 Подвеска. Чертеж детали ТП 810-1-12.86 Ф130.00.00.06 Пластина. Чертеж детали ТП 810-1-12.86 Ф130.00.00.05 Накладка. Чертеж детали ТП 810-1-12.86 Ф130.00.00.03 Накладка. Чертеж детали |
| Разработан: | Гипронисельпром Минплодоовощхоза СССР |
| Утверждён: | 16.11.1984 Минплодоовощхоз СССР (03-7-58/6210) |
















