Скачать Типовой проект 810-1-12.86 Альбом VIII. Производственно-вспомогательные и бытовые помещения. Технологическая часть. Водопровод и канализация. Холодоснабжение. Электротехническая часть. Связь и сигнализацияДата актуализации: 01.01.2021
|
| Обозначение: | Типовой проект 810-1-12.86 |
| Обозначение англ: | 810-1-12.86 |
| Статус: | не определен законодательством |
| Название рус.: | Альбом VIII. Производственно-вспомогательные и бытовые помещения. Технологическая часть. Водопровод и канализация. Холодоснабжение. Электротехническая часть. Связь и сигнализация |
| Дата добавления в базу: | 01.09.2013 |
| Дата актуализации: | 01.01.2021 |
| Дата введения: | 01.08.1986 |
| Дата окончания срока действия: | 30.06.2003 |
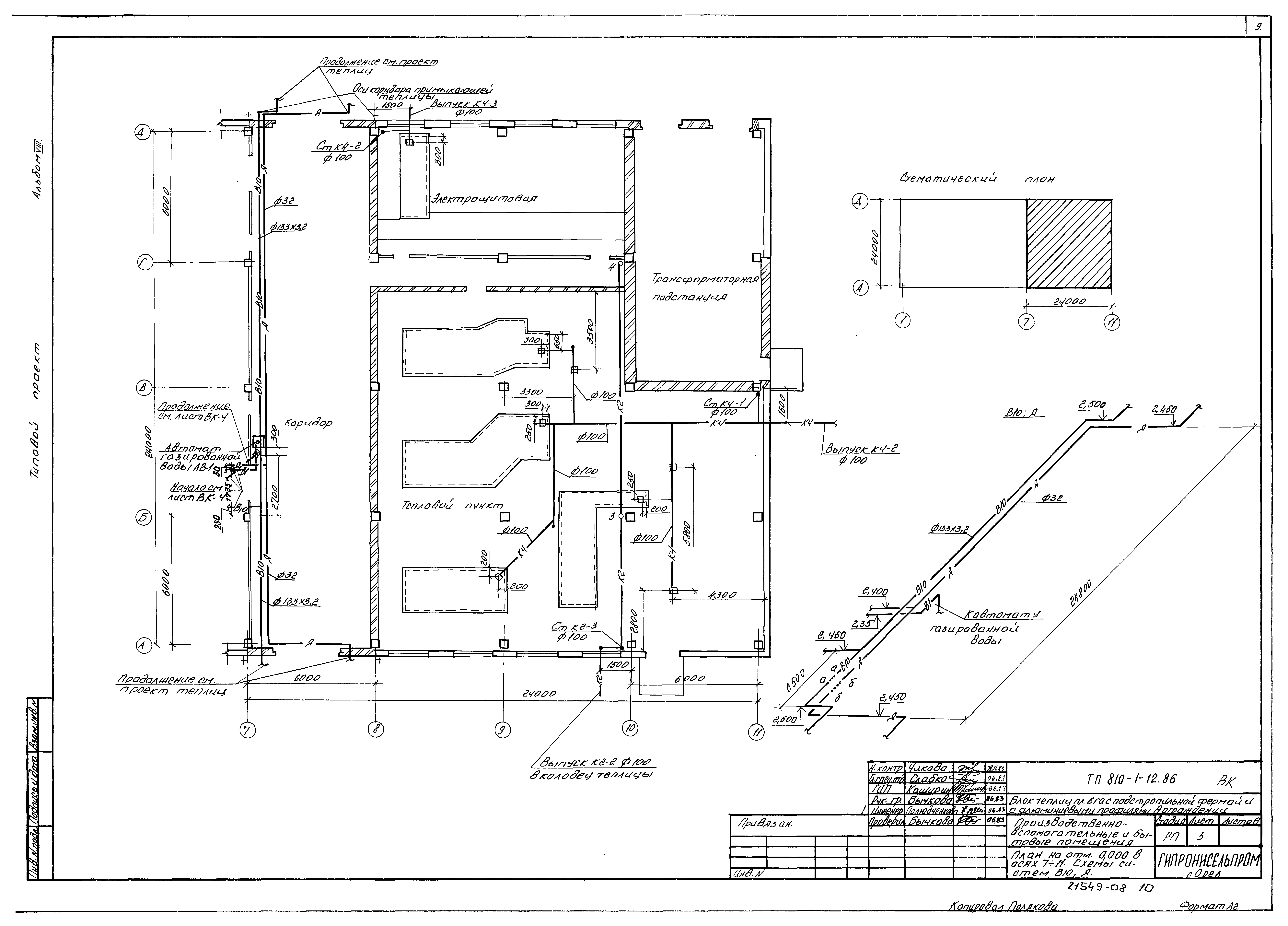
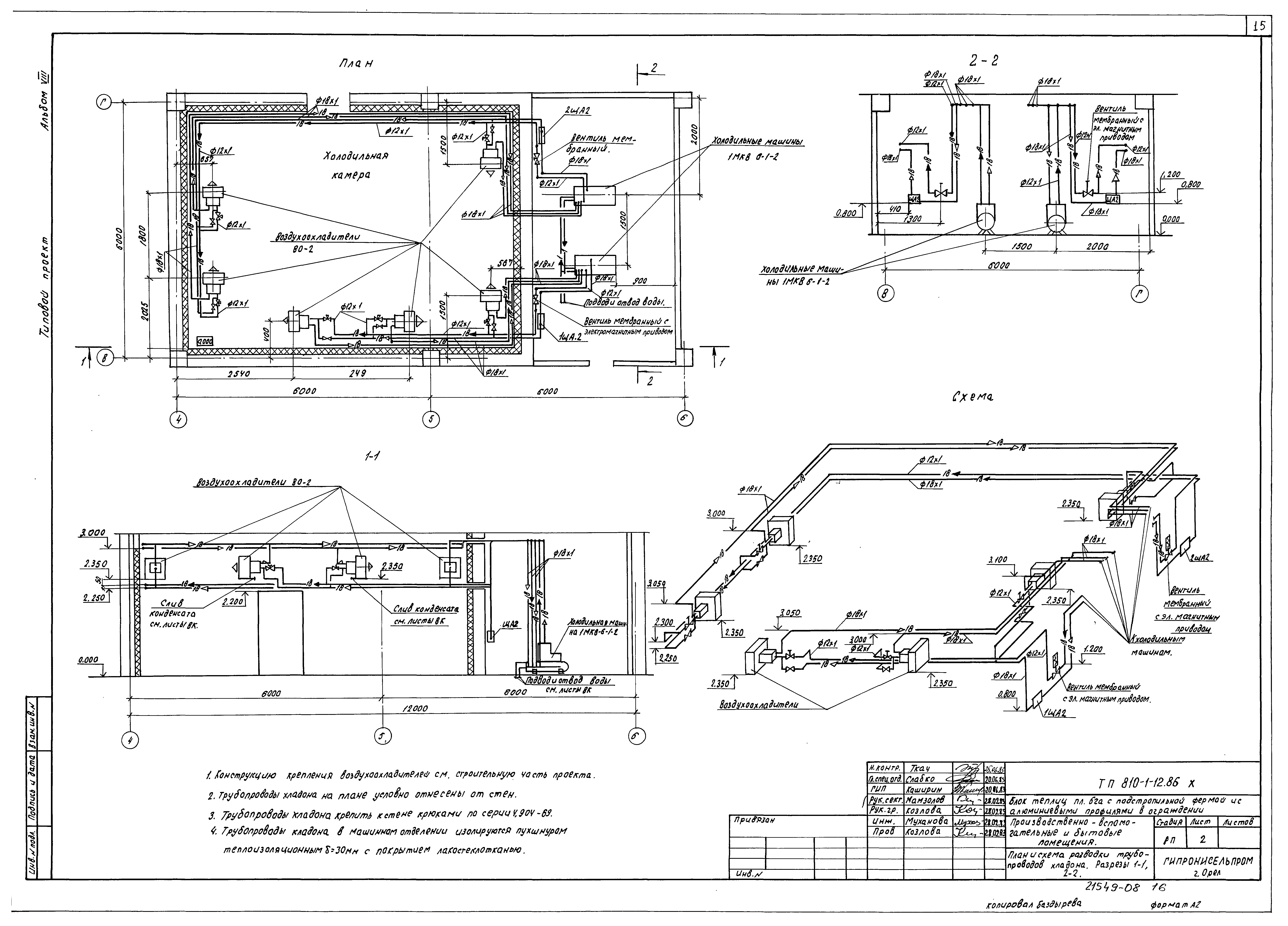
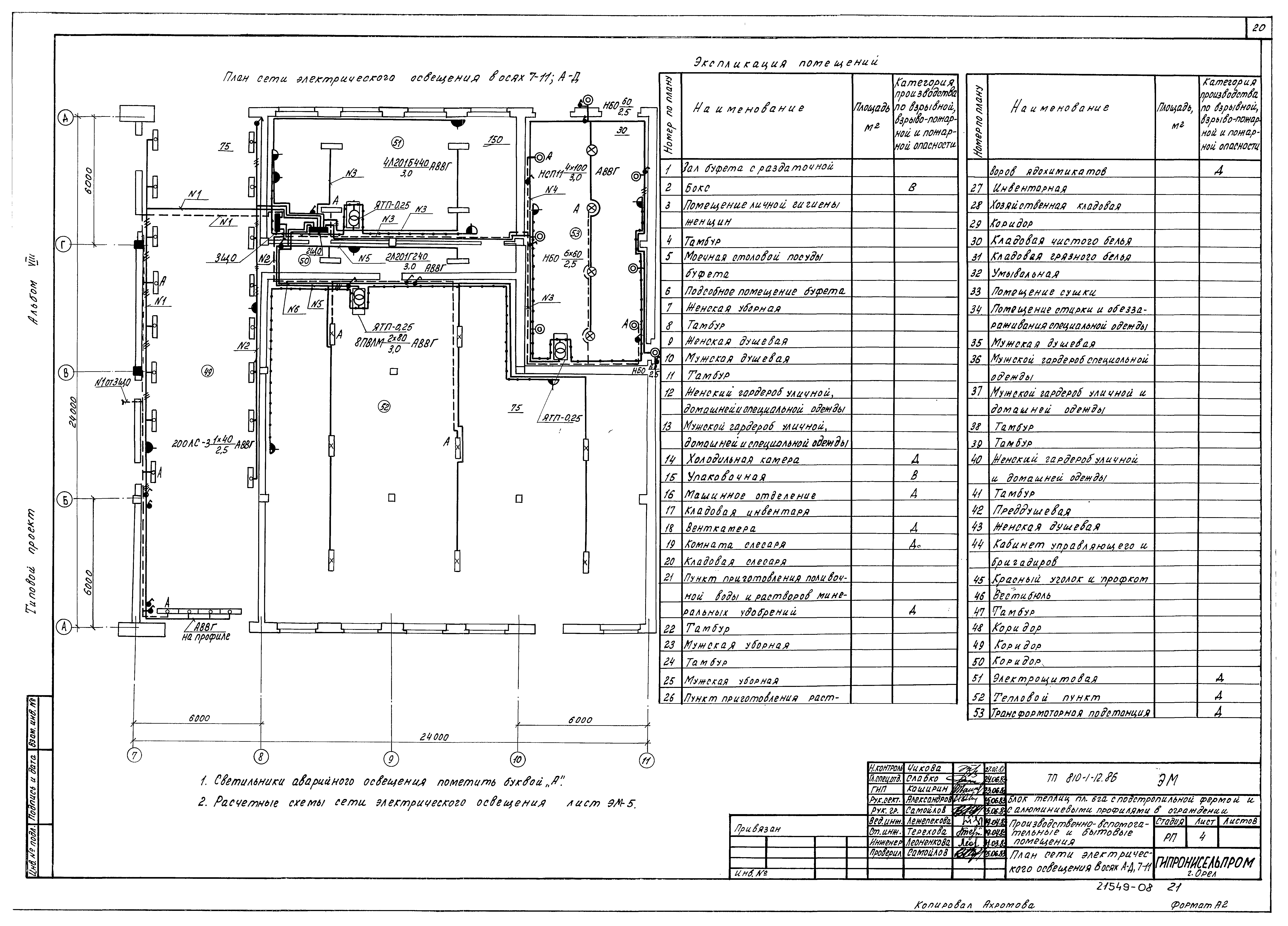
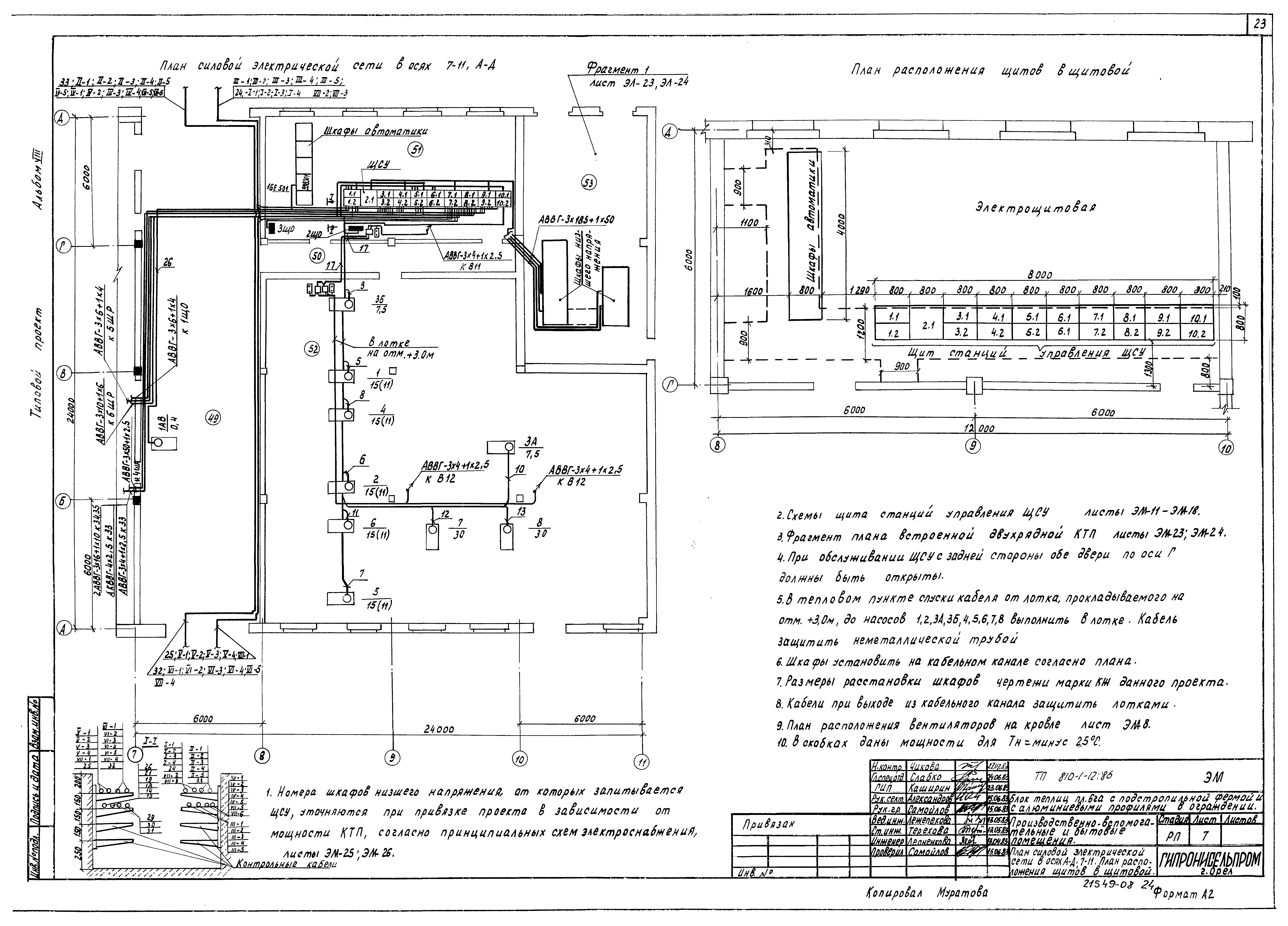
| Оглавление: | ТП 810-1-12.86 Содержание альбома ТП 810-1-12.86 Общие данные ТП 810-1-12.86 План расположения технологического оборудования ТП 810-1-12.86 ВК-1 Общие данные (начало) ТП 810-1-12.86 ВК-2 Общие данные (продолжение) ТП 810-1-12.86 ВК-3 Общие данные (окончание) ТП 810-1-12.86 ВК-4 План на отм. 0.000 в осях 1-7 ТП 810-1-12.86 ВК-5 План на отм. 0.000 в осях 1-11. Схемы систем В10;Я ТП 810-1-12.86 ВК-6 Схемы систем В1;В6;Т3 ТП 810-1-12.86 ВК-7 Схемы систем В3;В10;Я;МУ;В ТП 810-1-12.86 ВК-8 Схемы систем К1;К7. Водомерные узлы ТП 810-1-12.86 ВК-9 Схемы систем К2;К4 ТП 810-1-12.86 Х-1 Общие данные ТП 810-1-12.86 Х-2 Схема разводки трубопроводов хладона ТП 810-1-12.86 Х-3 План. Разрезы 1-1;2-2;3-3 ТП 810-1-12.86 ЭМ-1 Общие данные (начало) ТП 810-1-12.86 ЭМ-2 Общие данные (окончание) ТП 810-1-12.86 ЭМ-3 План сети электрического освещения в осях А-Д;7-11 ТП 810-1-12.86 ЭМ-4 План сети электрического освещения в осях А-Д;7-11. Экспликация помещений ТП 810-1-12.86 ЭМ-5 Расчетные схемы сети электрического освещения ТП 810-1-12.86 ЭМ-6 План силовой электрической сети в осях А-Д;1-7 ТП 810-1-12.86 ЭМ-7 План силовой электрической сети в осях А-Д;7-11. План расположения щитов в щитовой ТП 810-1-12.86 ЭМ-8 План расположения вентиляторов на кровле. Расчетная схема силового распределительного шкафа 4ШР ТП 810-1-12.86 ЭМ-9 Расчетная схема силового распределительного шкафа 5ШР ТП 810-1-12.86 ЭМ-10 Расчетная схема силового распределительного шкафа 6ШР ТП 810-1-12.86 ЭМ-11 Щит станций управления ЩСУ. Принципиальная однолинейная схема панелей 1.1;1.2 ТП 810-1-12.86 ЭМ-12 Щит станций управления ЩСУ. Принципиальная однолинейная схема панелей 1.2;2.1;3.1;4.1;5.1 ТП 810-1-12.86 ЭМ-13 Щит станций управления ЩСУ. Принципиальная однолинейная схема панелей 5.1;3.2 ТП 810-1-12.86 ЭМ-14 Щит станций управления ЩСУ. Принципиальная однолинейная схема панелей 4.2;5.2 ТП 810-1-12.86 ЭМ-15 Щит станций управления ЩСУ. Принципиальная однолинейная схема панелей 6.1;6.2;7.2 ТП 810-1-12.86 ЭМ-16 Щит станций управления ЩСУ. Принципиальная однолинейная схема панелей 7.2;7.1;8.1;9.1;10.1 ТП 810-1-12.86 ЭМ-17 Щит станций управления ЩСУ. Принципиальная однолинейная схема панелей 8.2;9.2 ТП 810-1-12.86 ЭМ-18 Щит станций управления ЩСУ. Принципиальная однолинейная схема панелей 10.2 ТП 810-1-12.86 ЭМ-19 Щит станций управления ЩСУ. Схемы соединений панелей 1.1;1.2;2.1;4.1 ТП 810-1-12.86 ЭМ-20 Щит станций управления ЩСУ. Схемы соединений панелей 5.1;5.2 ТП 810-1-12.86 ЭМ-21 Щит станций управления ЩСУ. Схемы соединений панелей 6.1;6.2 ТП 810-1-12.86 ЭМ-22 Щит станций управления ЩСУ. Схемы соединений панелей 7.2;8.2;9.2;10.1 ТП 810-1-12.86 ЭМ-23 Фрагмент 1 двухрядной встроенной КТП-630/10 с двумя трансформаторами ТП 810-1-12.86 ЭМ-24 Фрагмент 1 двухрядной встроенной КТП-1000/10 с двумя трансформаторами ТП 810-1-12.86 ЭМ-25 Принципиальная однолинейная схема КТП-630/10 ТП 810-1-12.86 ЭМ-26 Принципиальная однолинейная схема КТП-1000/10 ТП 810-1-12.86 ЭМ-27 Опросный лист КТП-630/10 ТП 810-1-12.86 ЭМ-28 Опросный лист КТП-1000/10 ТП 810-1-12.86 СС-1 Общие данные ТП 810-1-12.86 СС-2 План сетей телефонизации, радиофикации и пожарной сигнализации в осях 1-7 ТП 810-1-12.86 СС-3 План сетей телефонизации, радиофикации и пожарной сигнализации в осях 7-11 |
| Разработан: | Гипронисельпром Минплодоовощхоза СССР |
| Утверждён: | 16.11.1984 Минплодоовощхоз СССР (03-7-52/6210) |















































