Скачать Типовой проект 810-1-12.86 Альбом IX. Производственно-вспомогательные и бытовые помещения. Архитектурно-строительные решения. Отопление и вентиляция. Тепломеханическая частьДата актуализации: 01.01.2021
|
| Обозначение: | Типовой проект 810-1-12.86 |
| Обозначение англ: | 810-1-12.86 |
| Статус: | не определен законодательством |
| Название рус.: | Альбом IX. Производственно-вспомогательные и бытовые помещения. Архитектурно-строительные решения. Отопление и вентиляция. Тепломеханическая часть |
| Дата добавления в базу: | 01.09.2013 |
| Дата актуализации: | 01.01.2021 |
| Дата введения: | 01.08.1986 |
| Дата окончания срока действия: | 30.06.2003 |
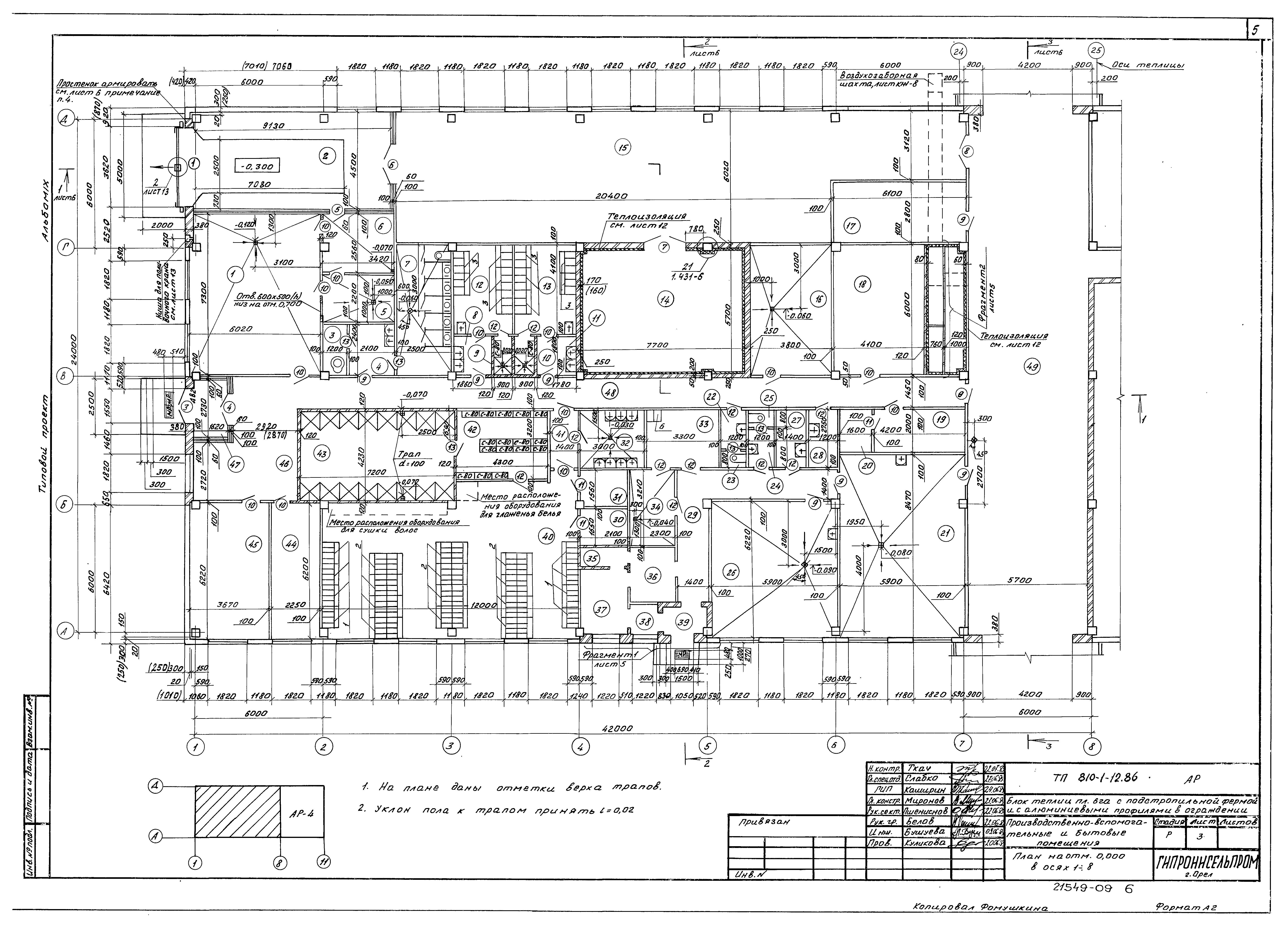
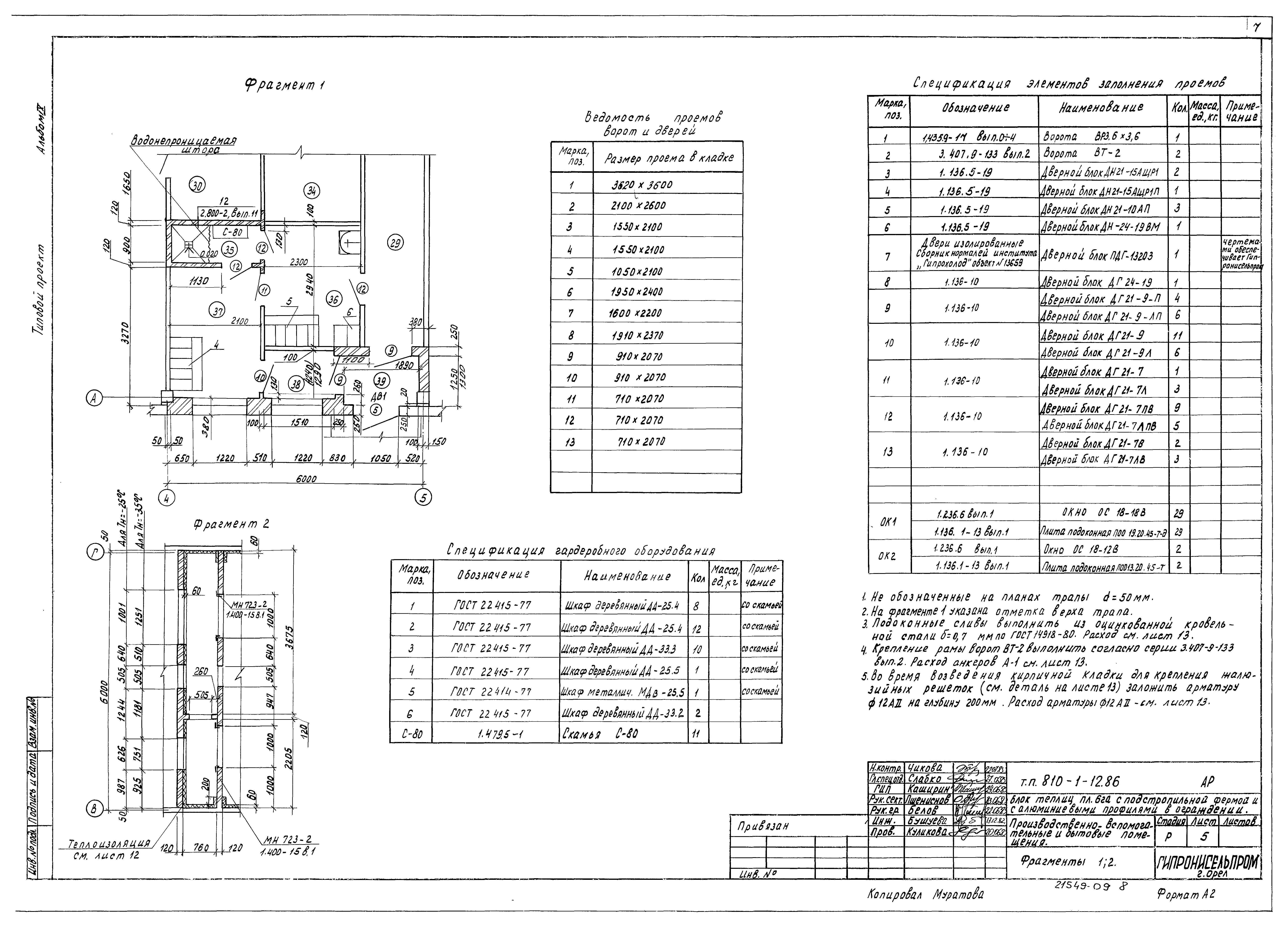
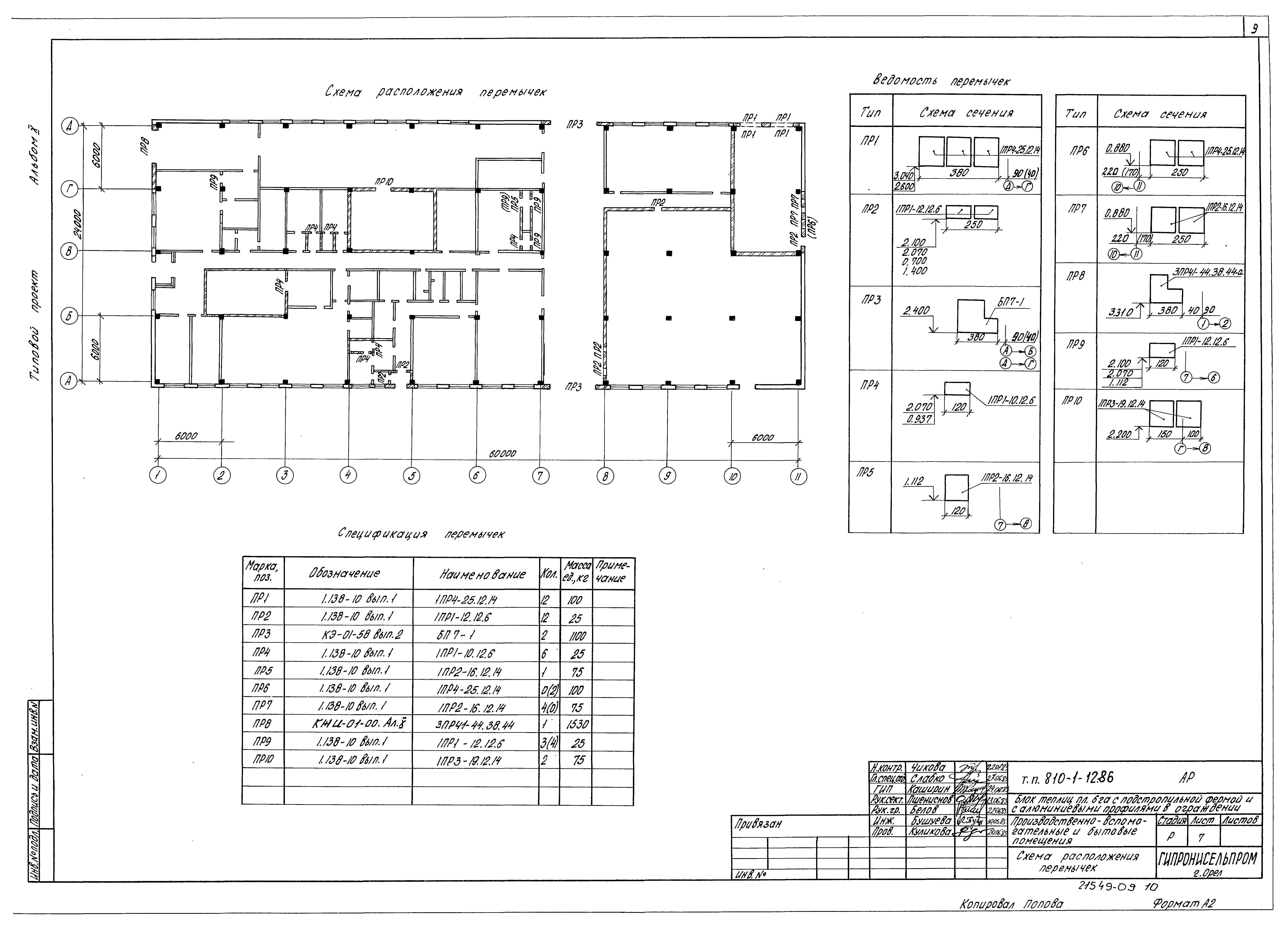
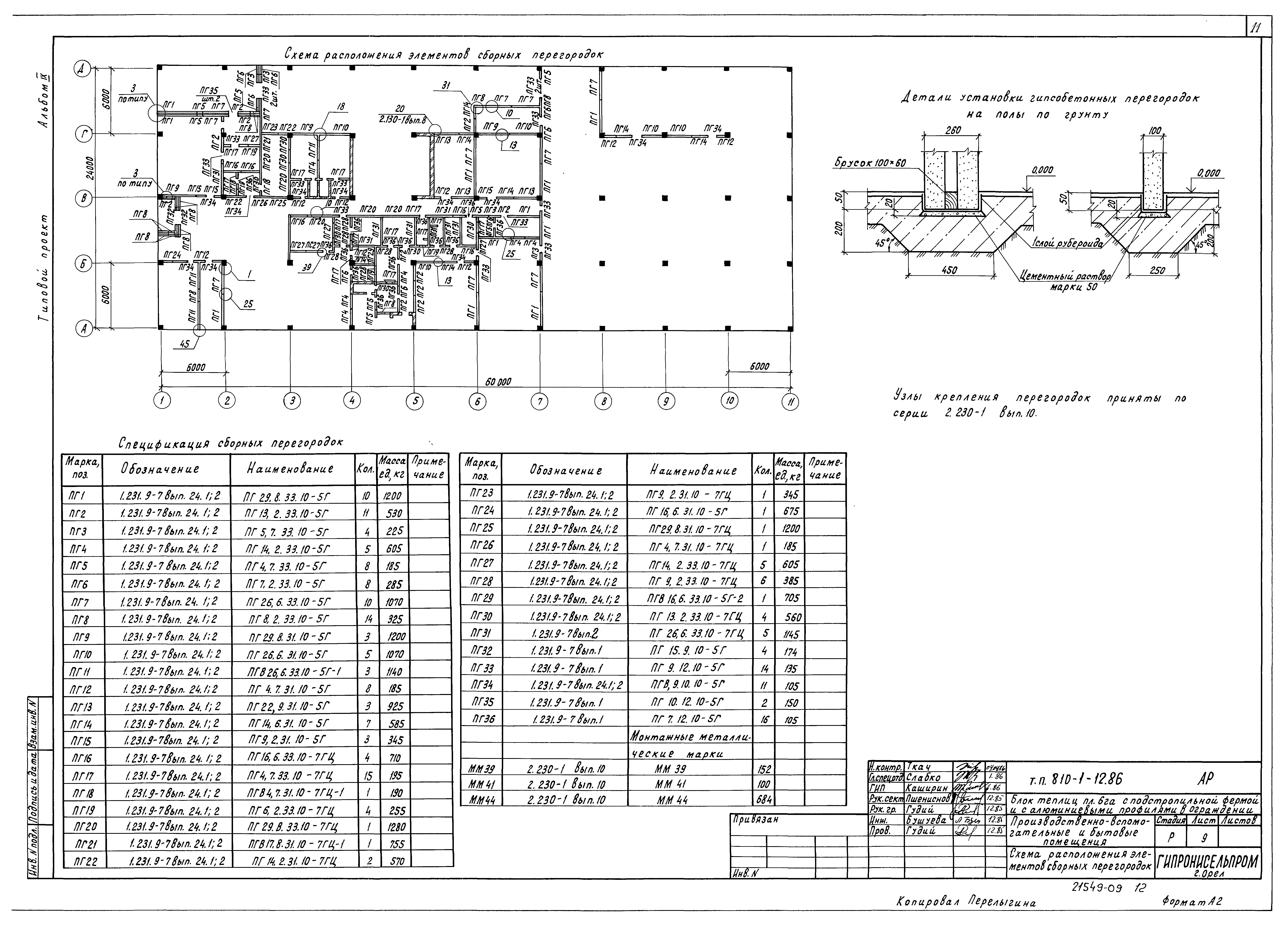
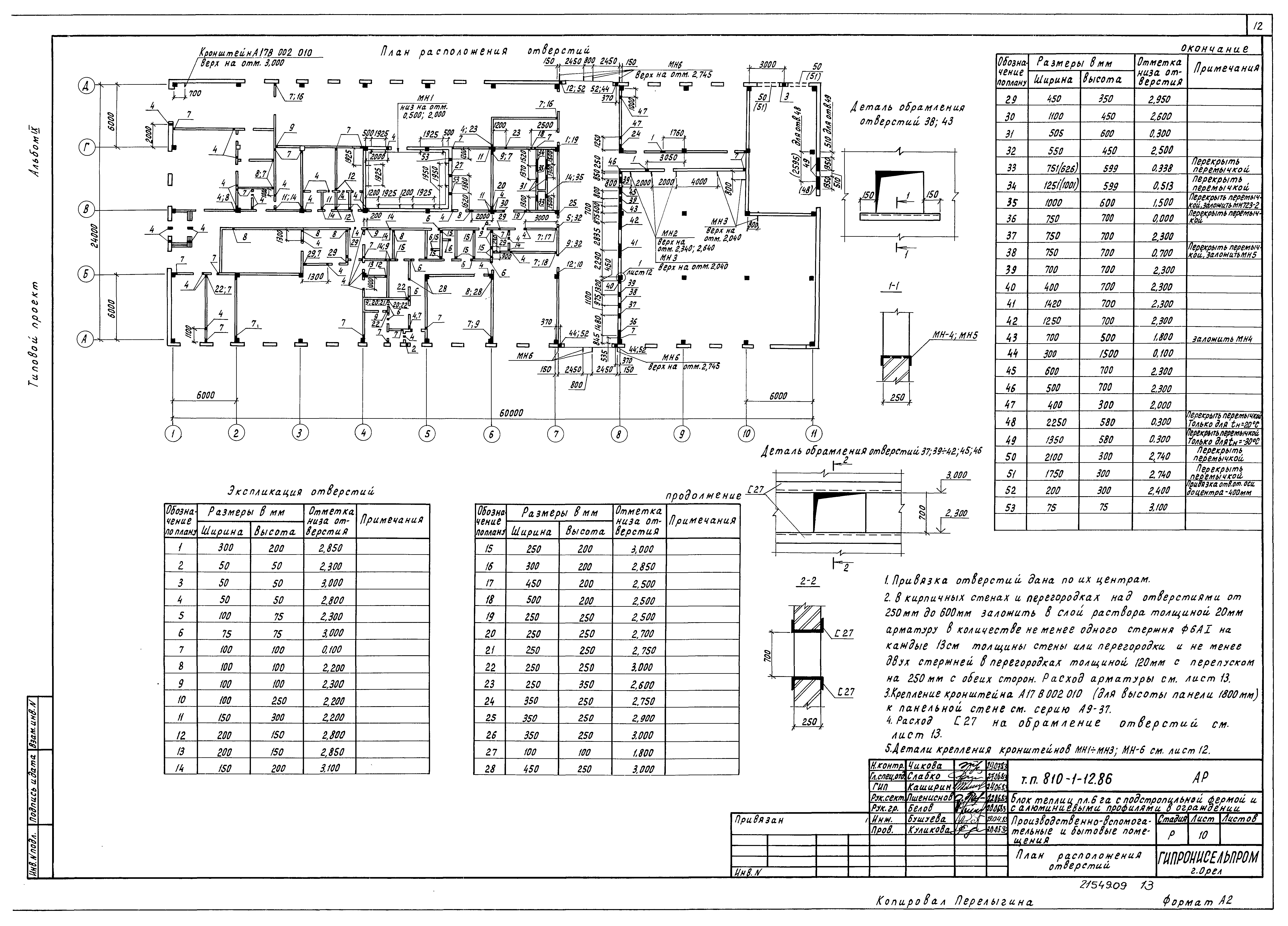
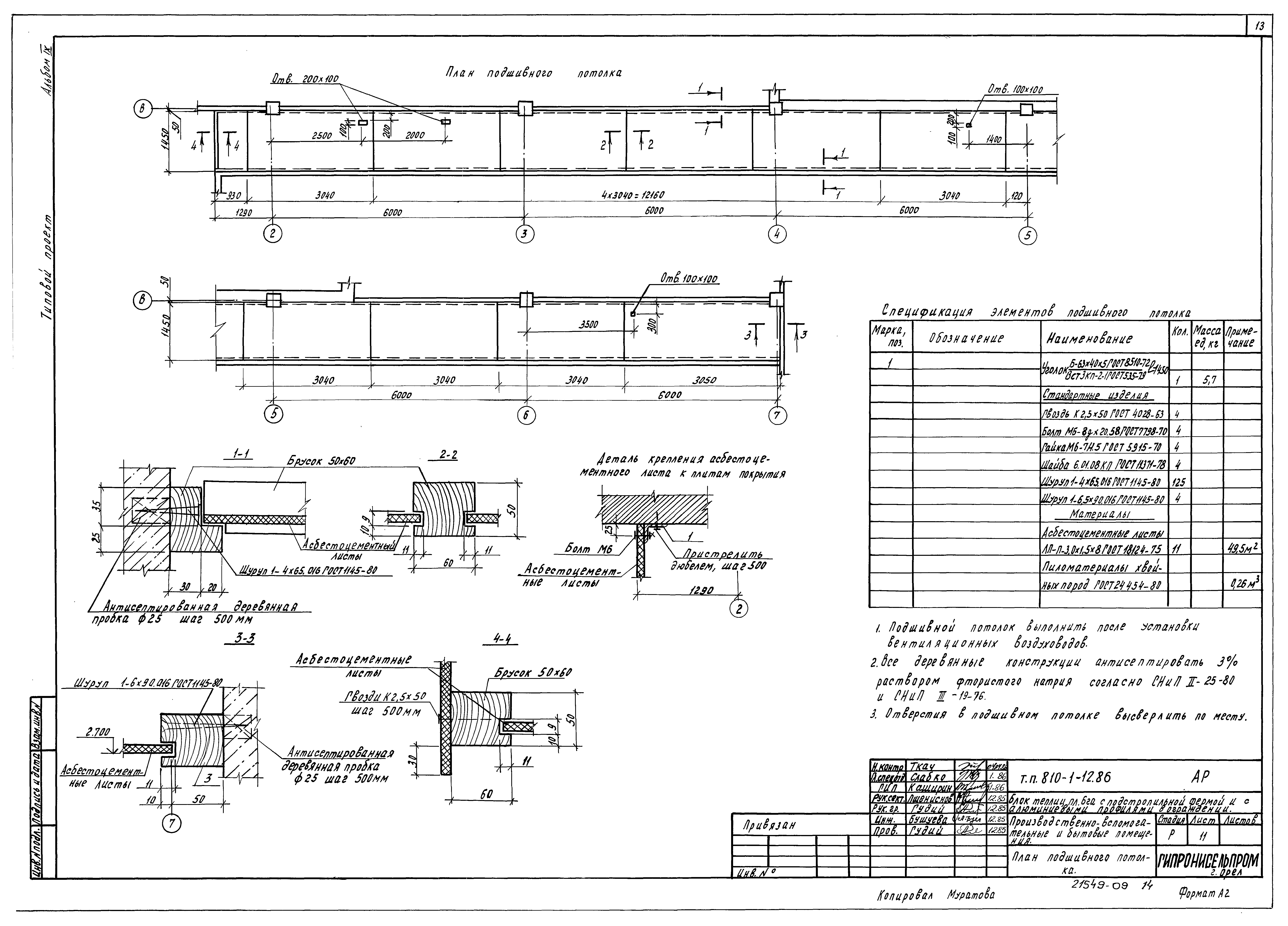
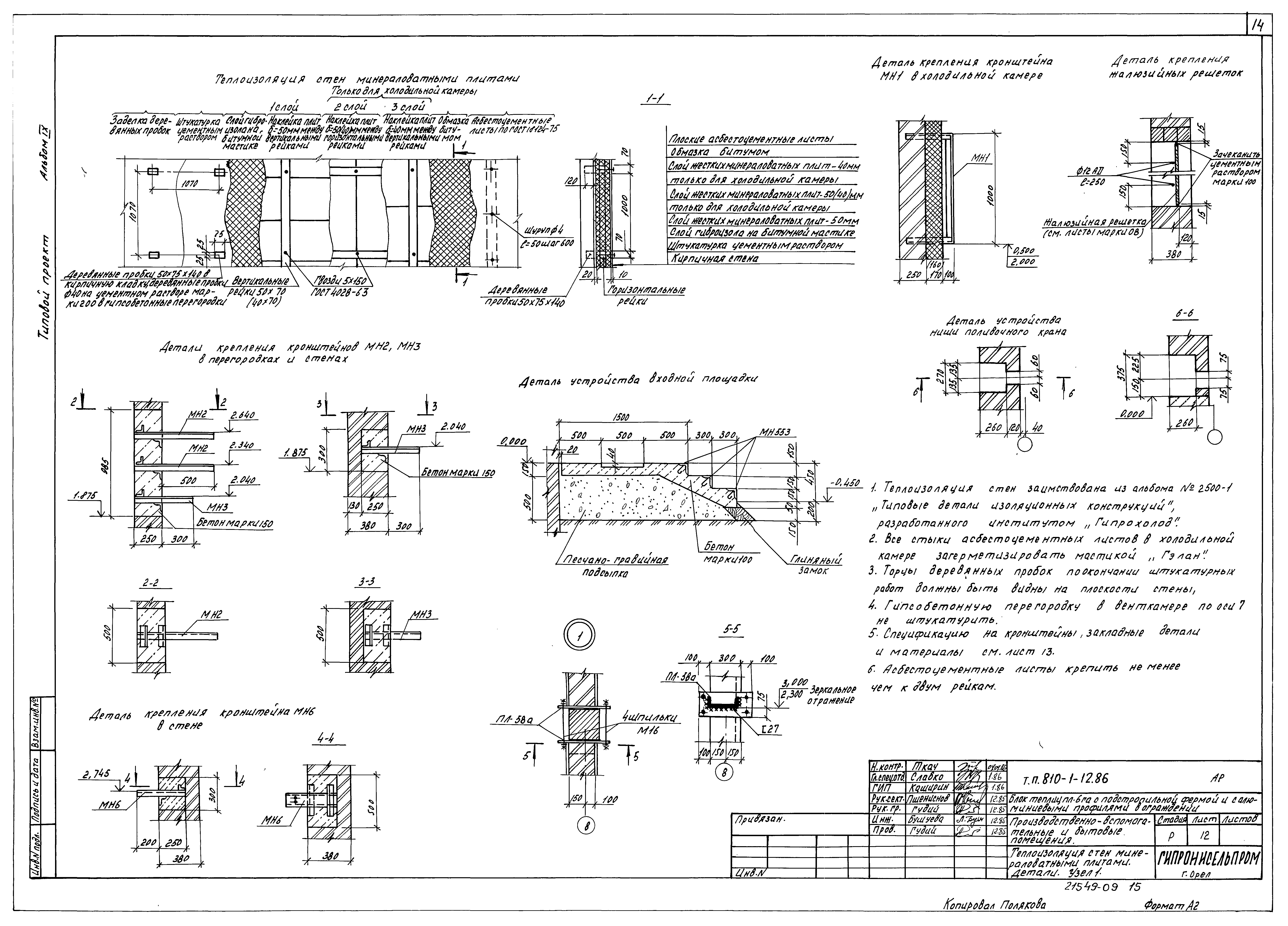
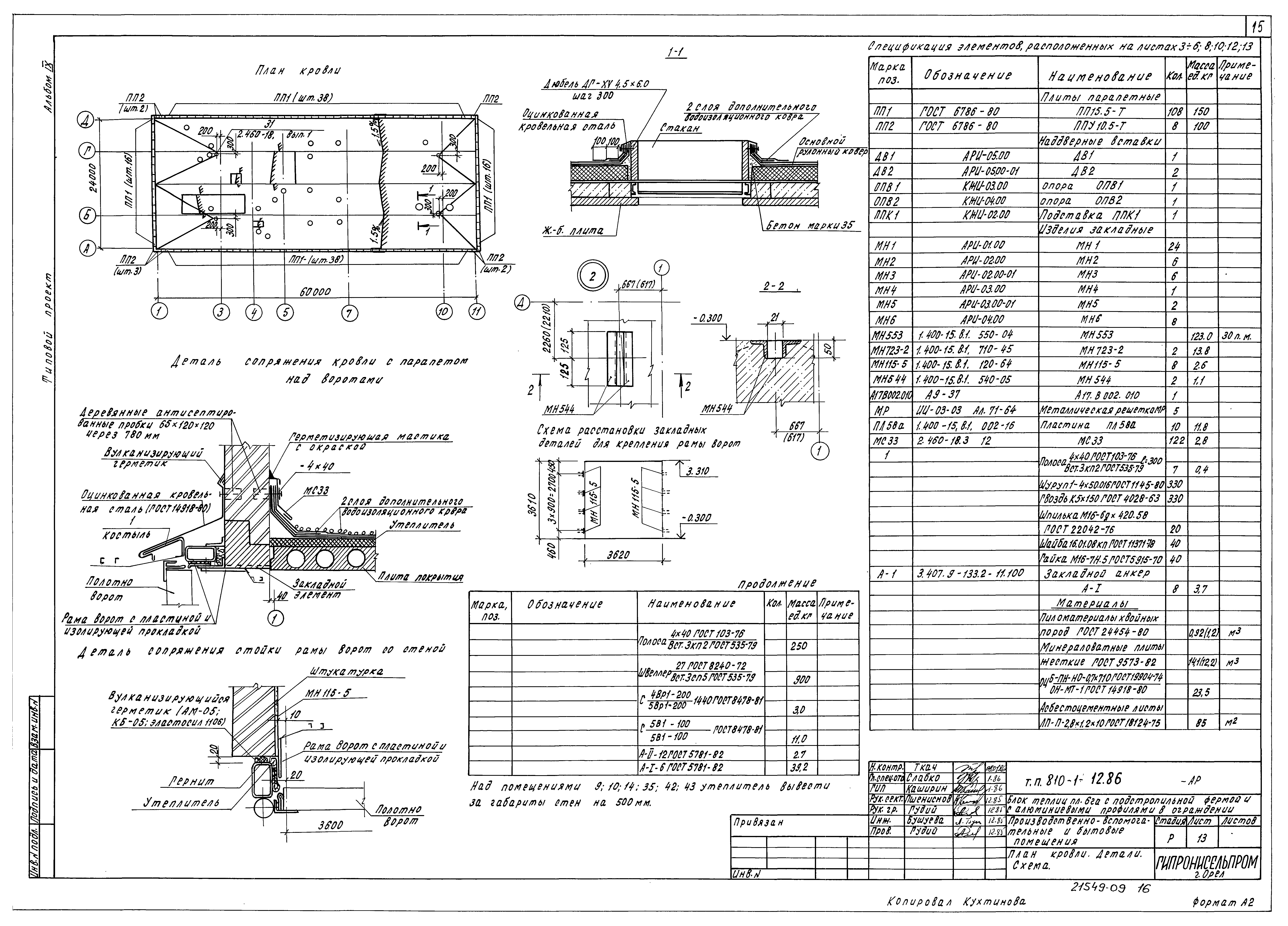
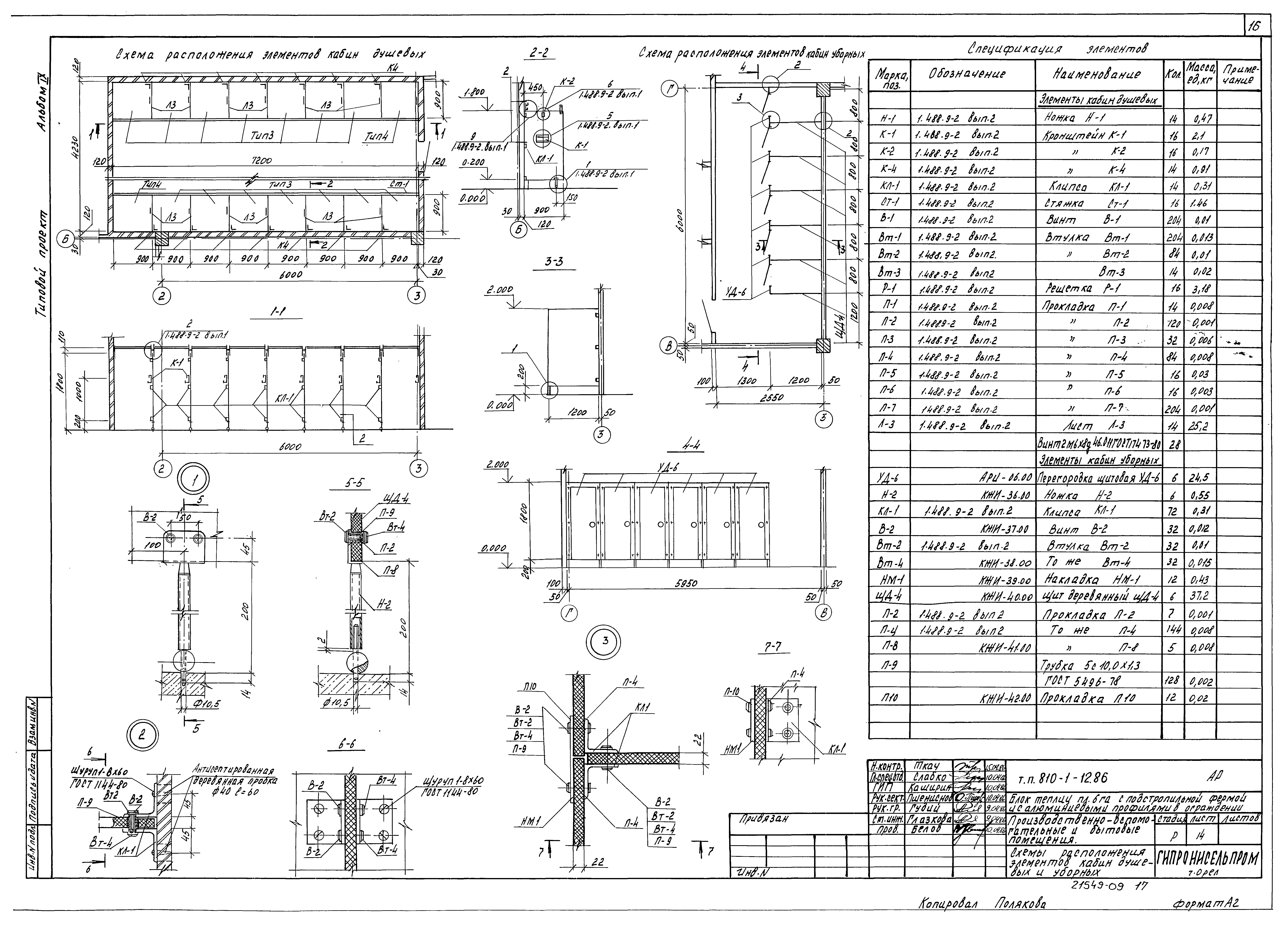
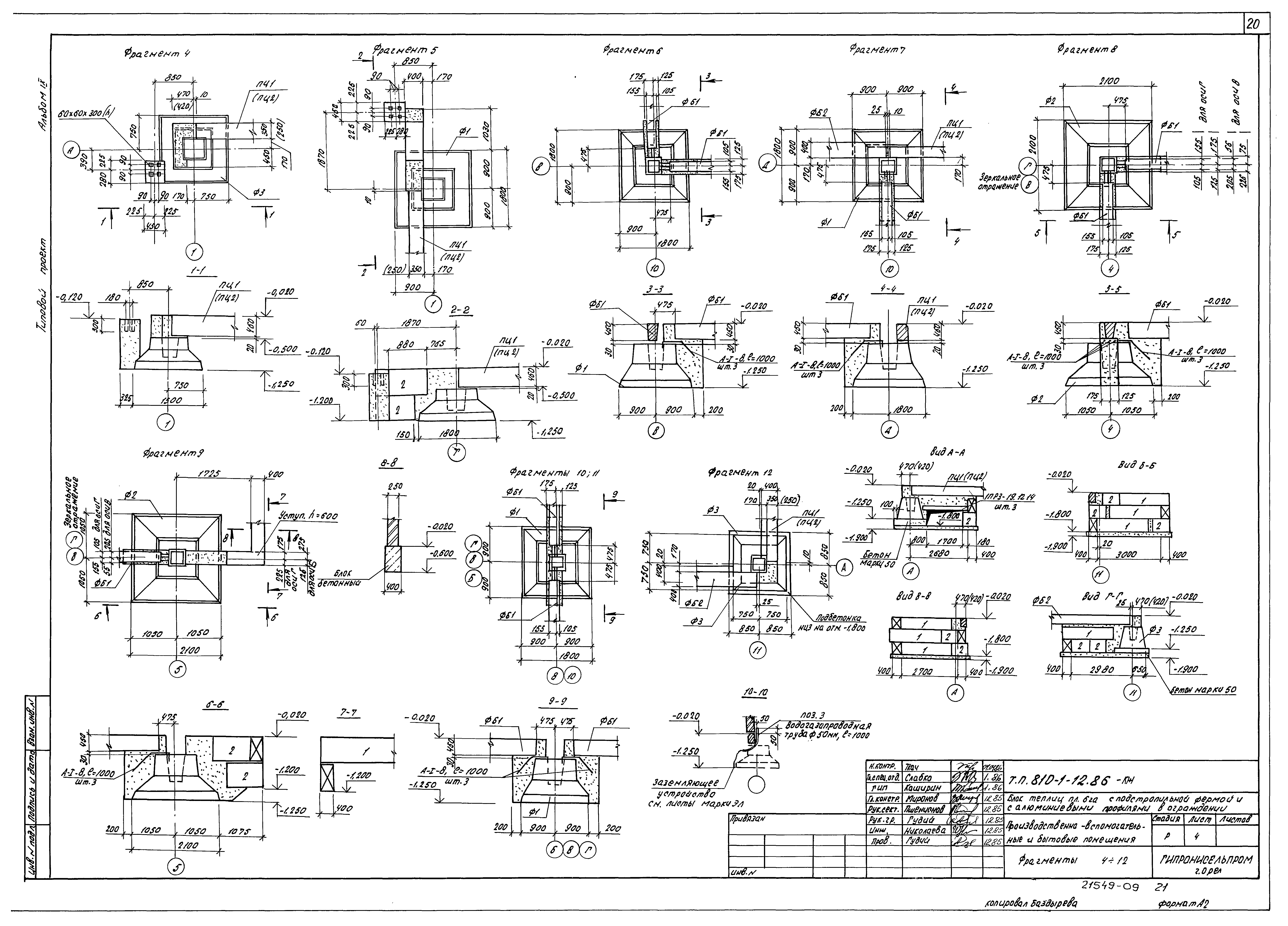
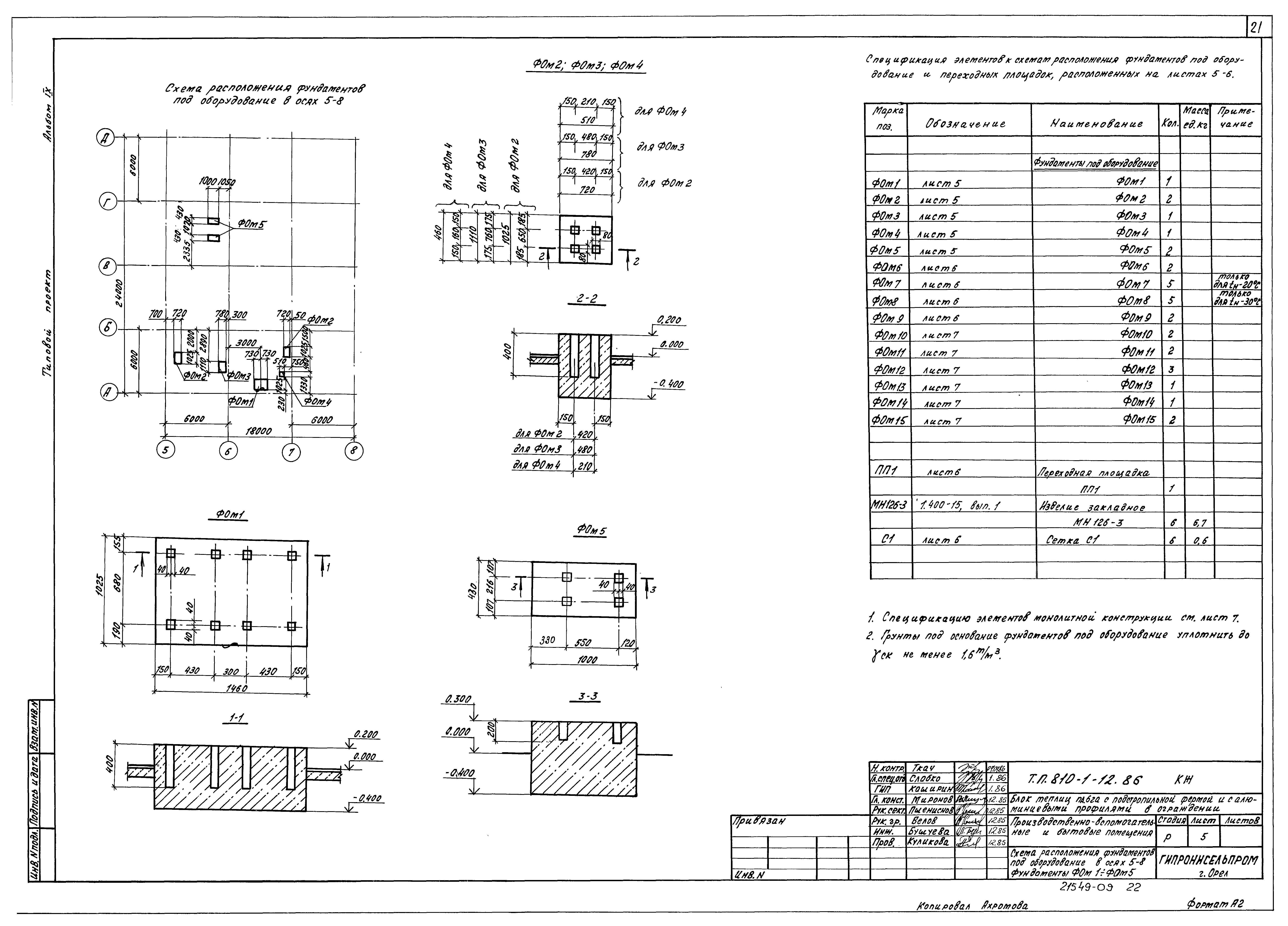
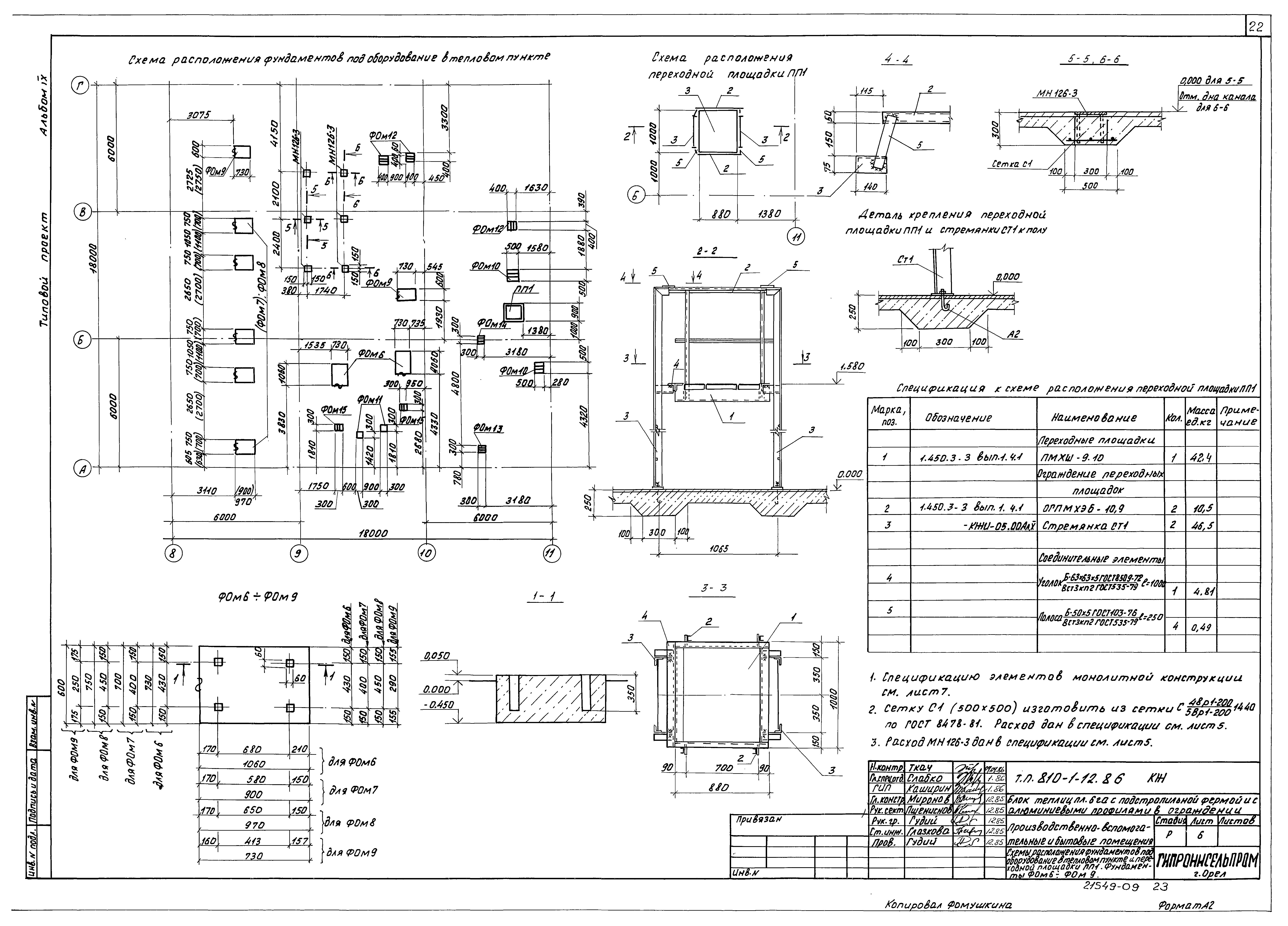
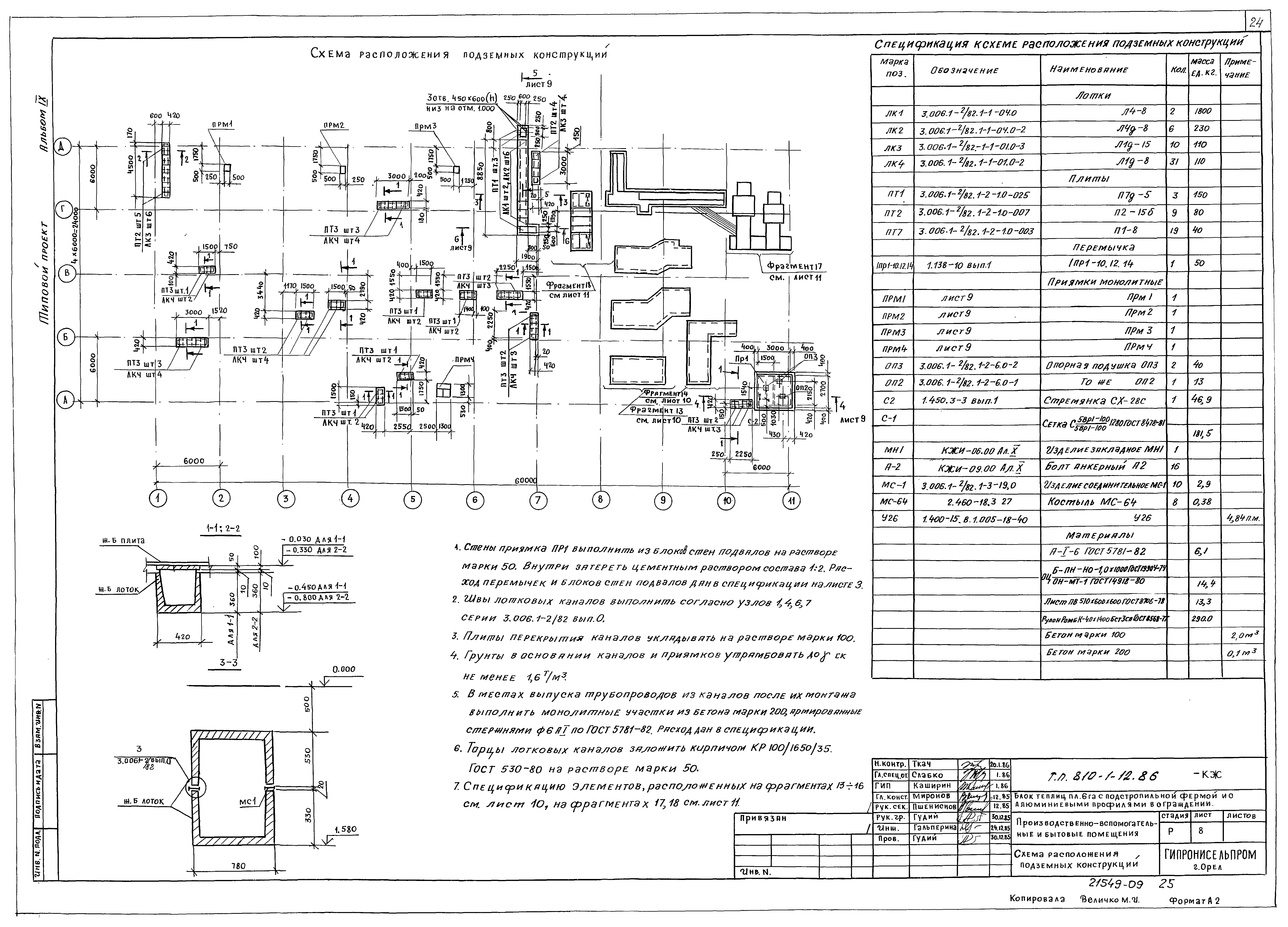
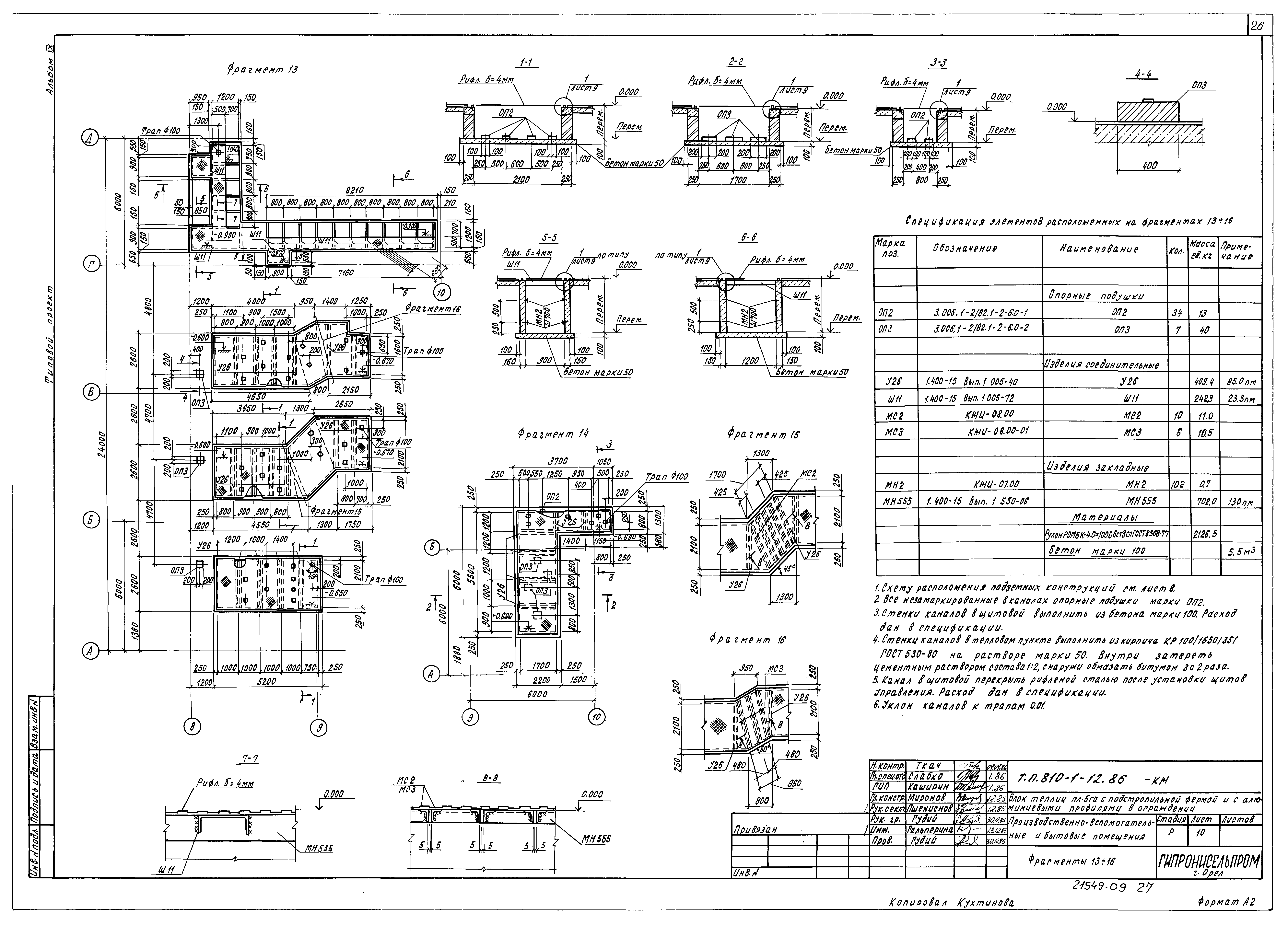
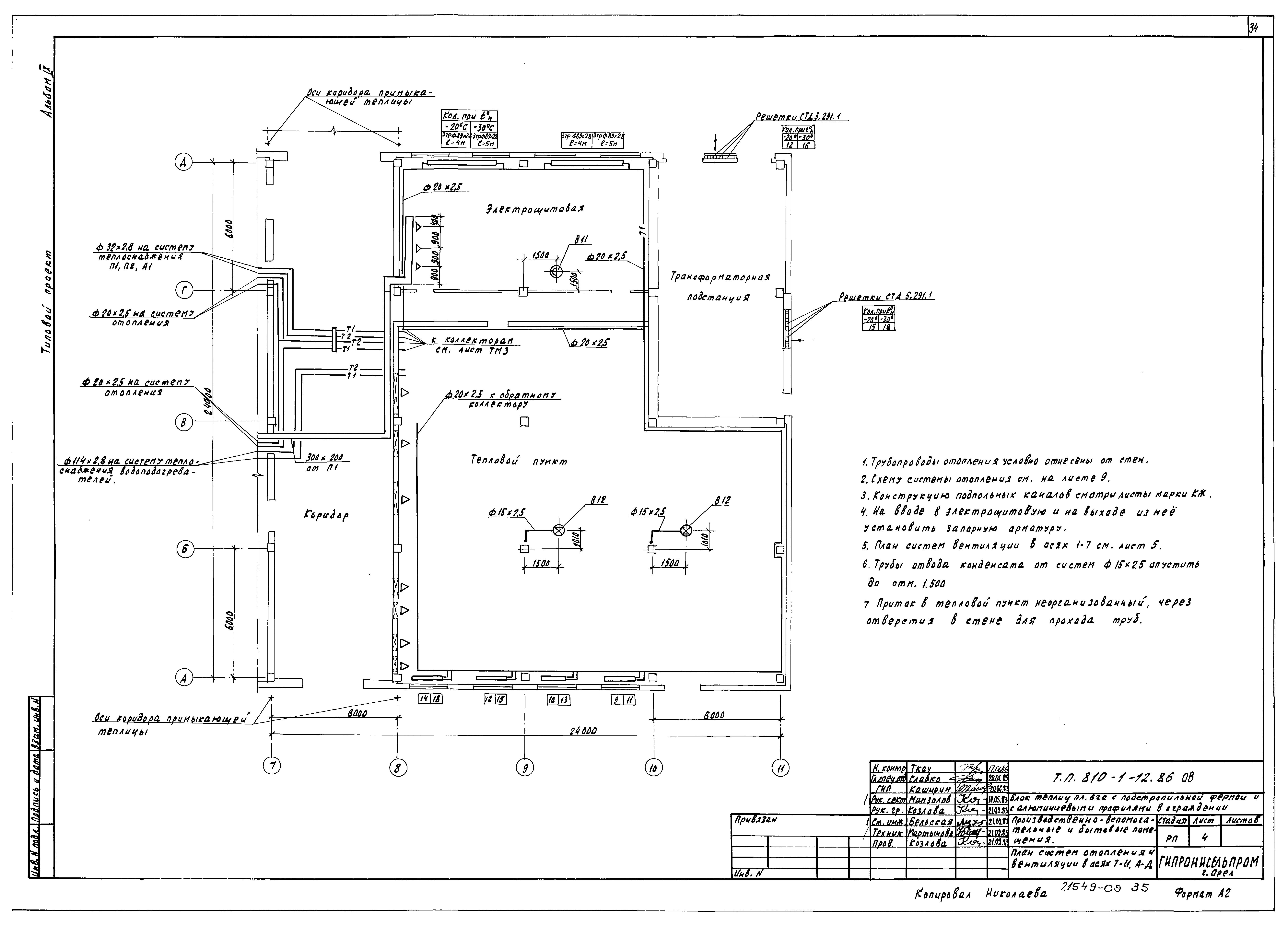
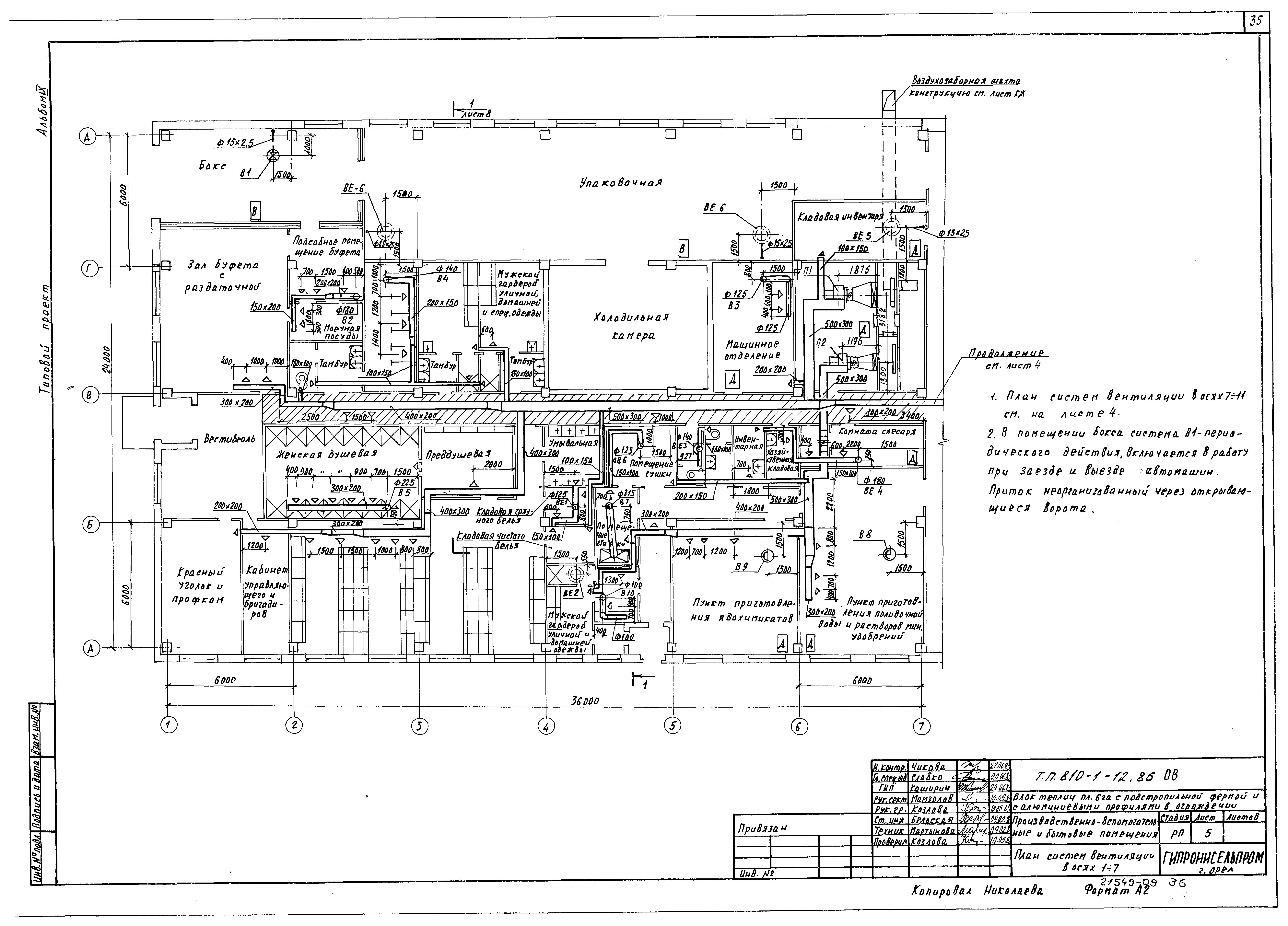
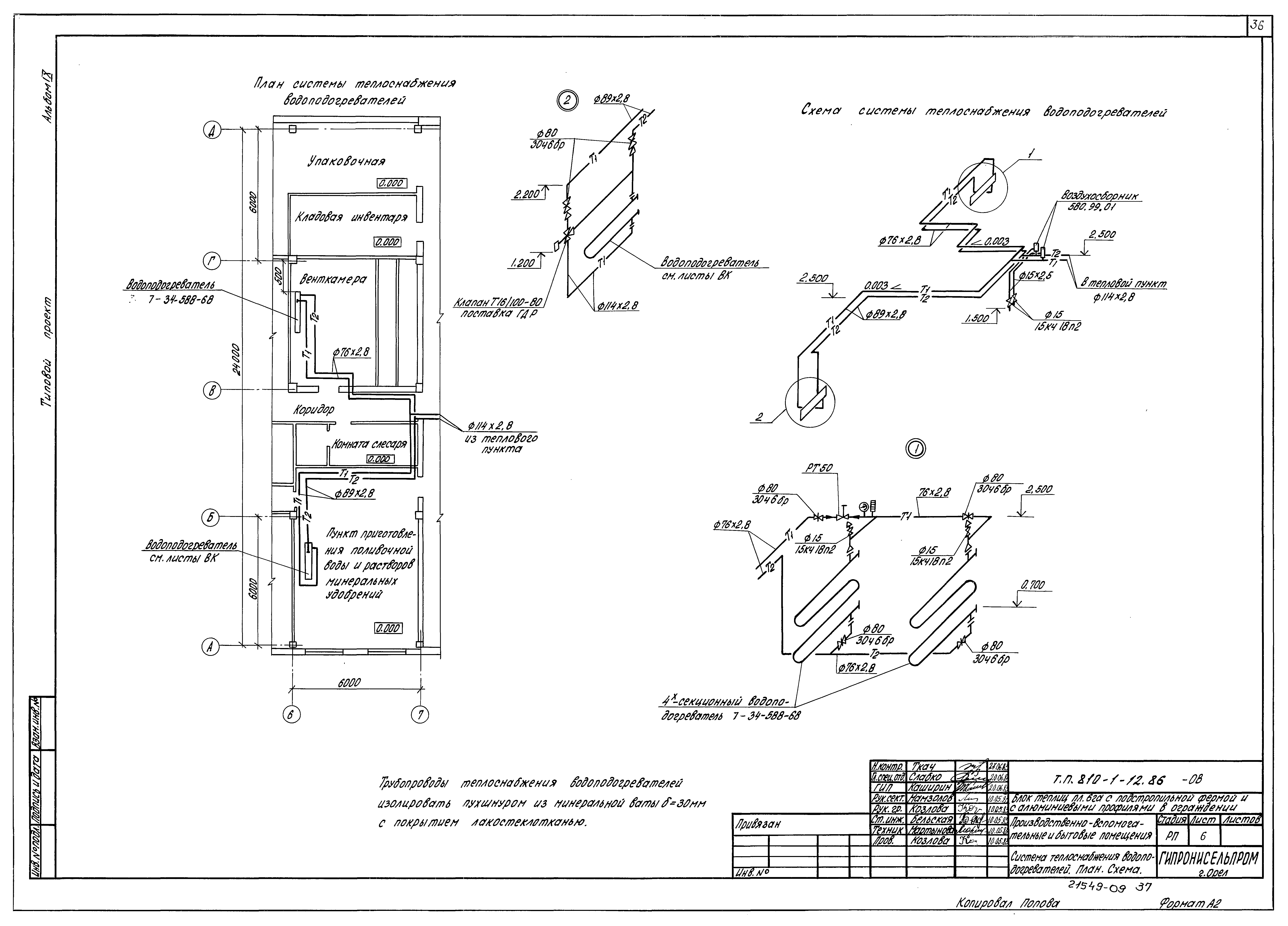
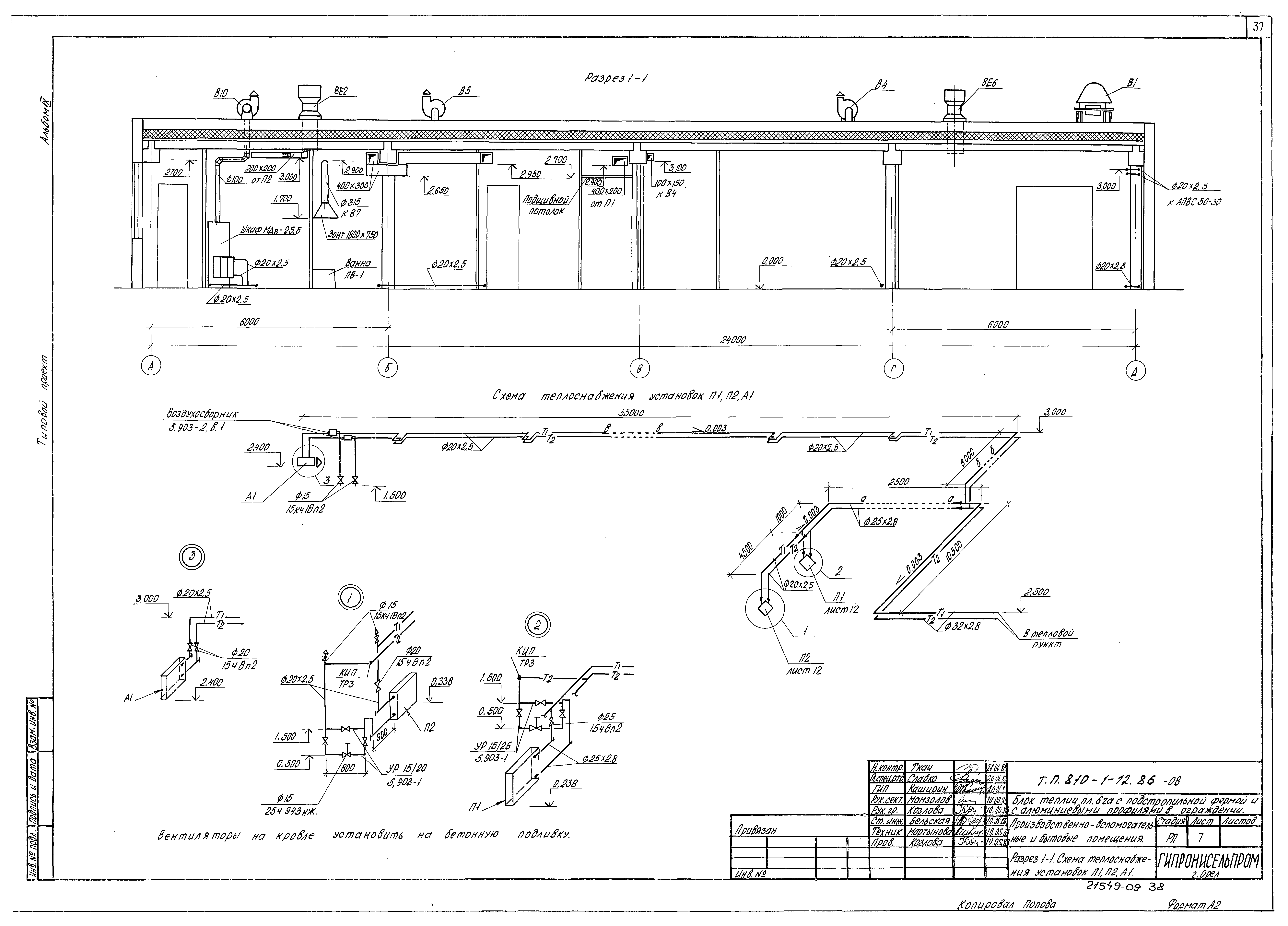
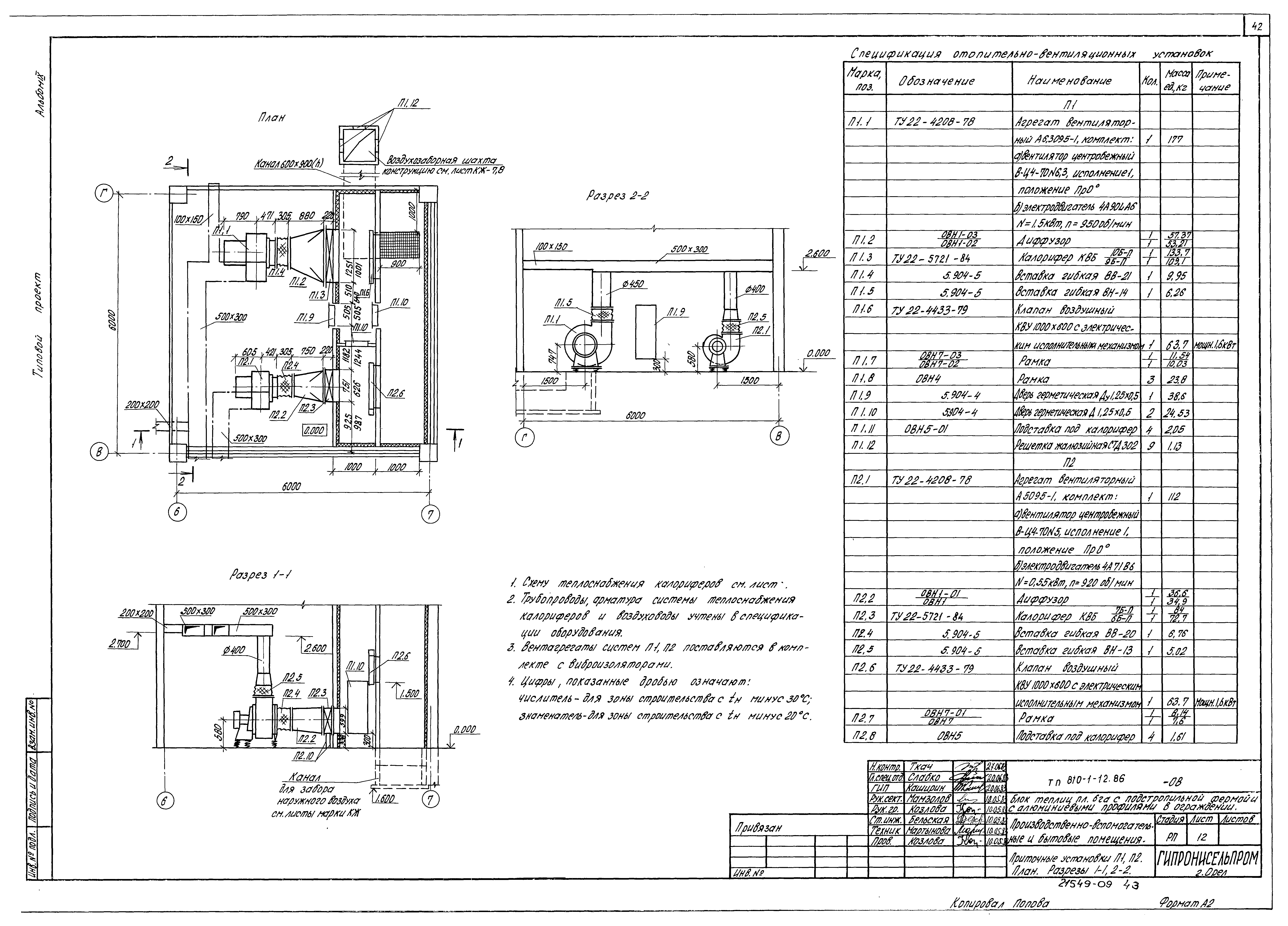
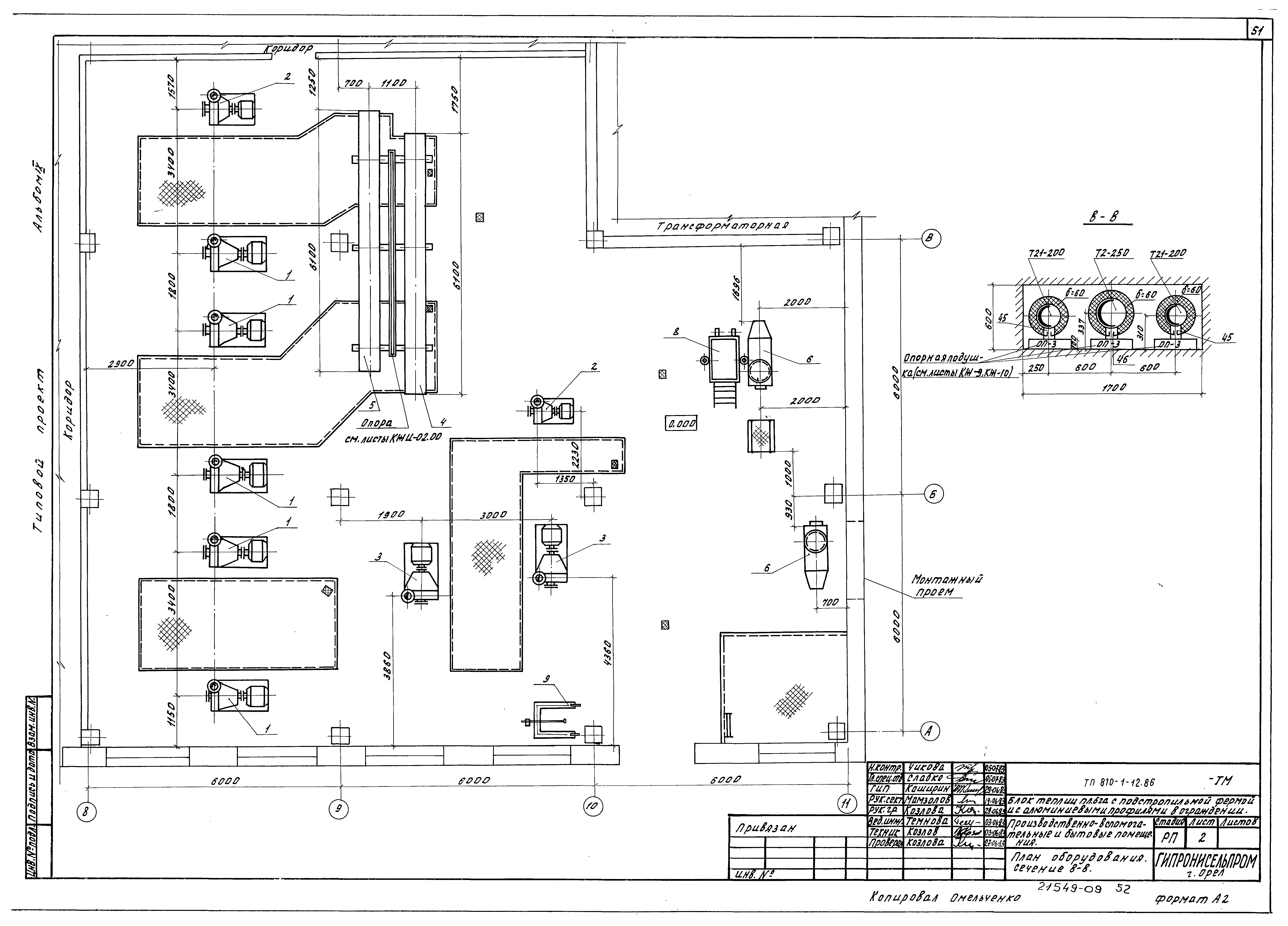
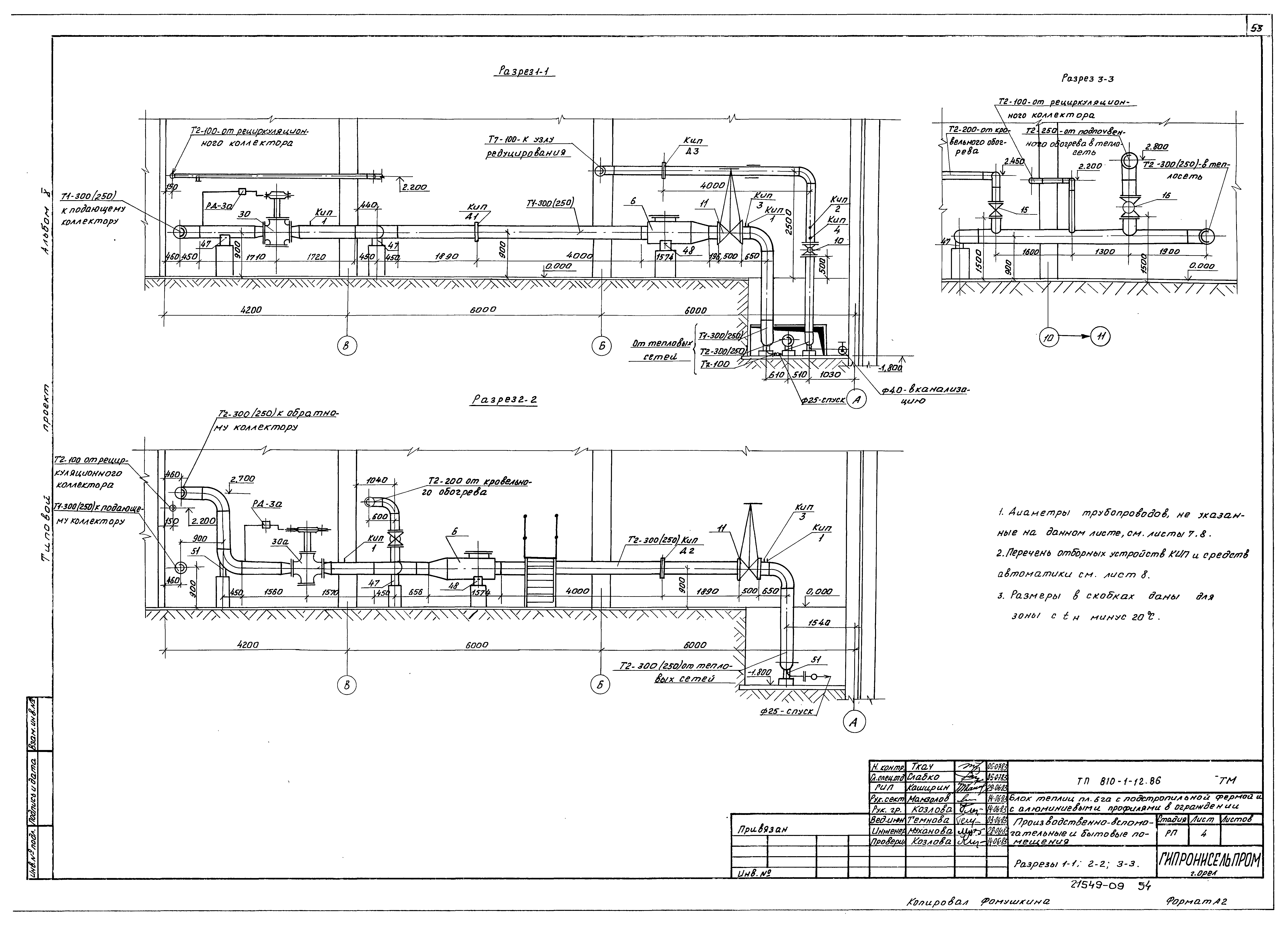
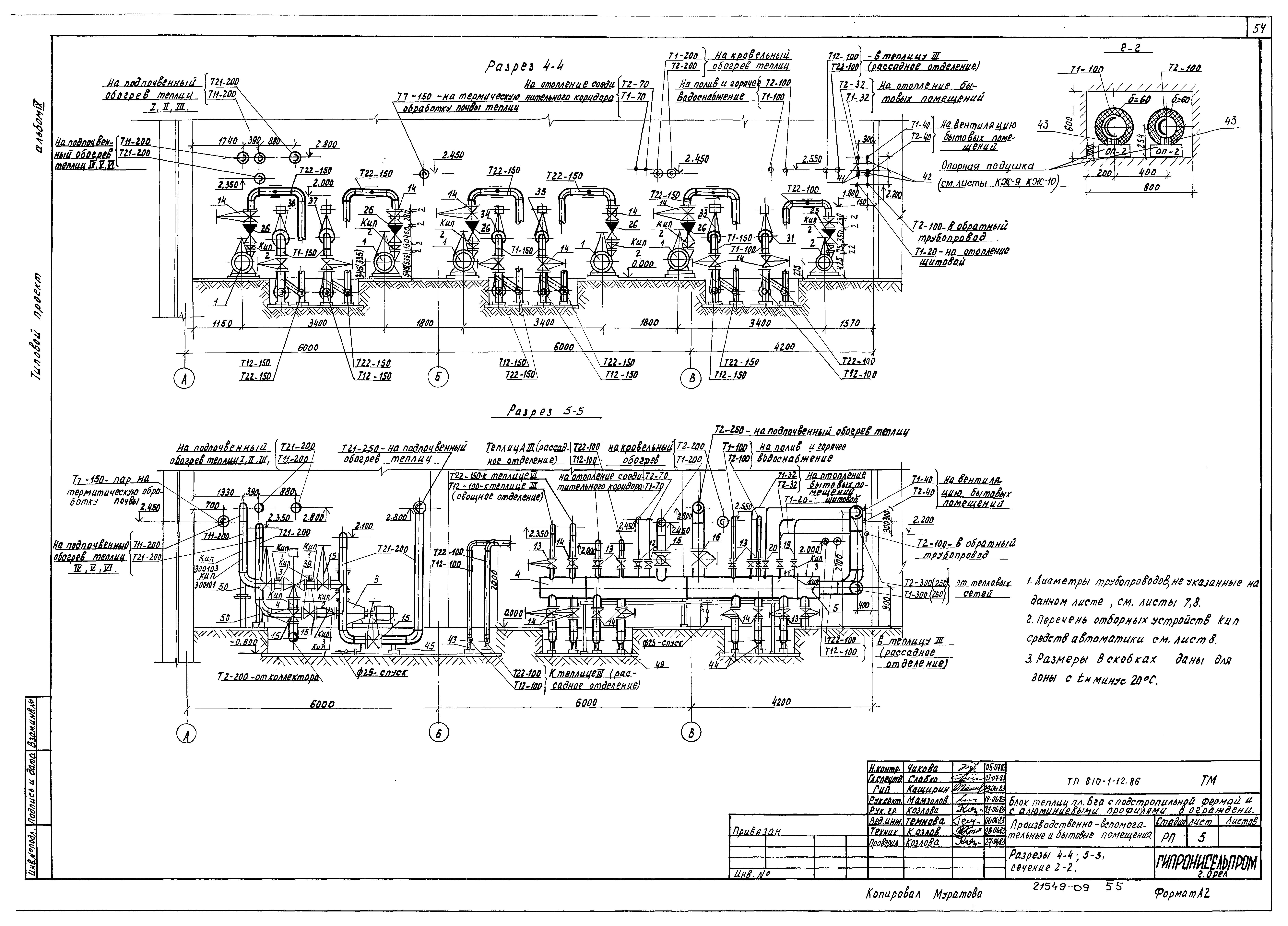
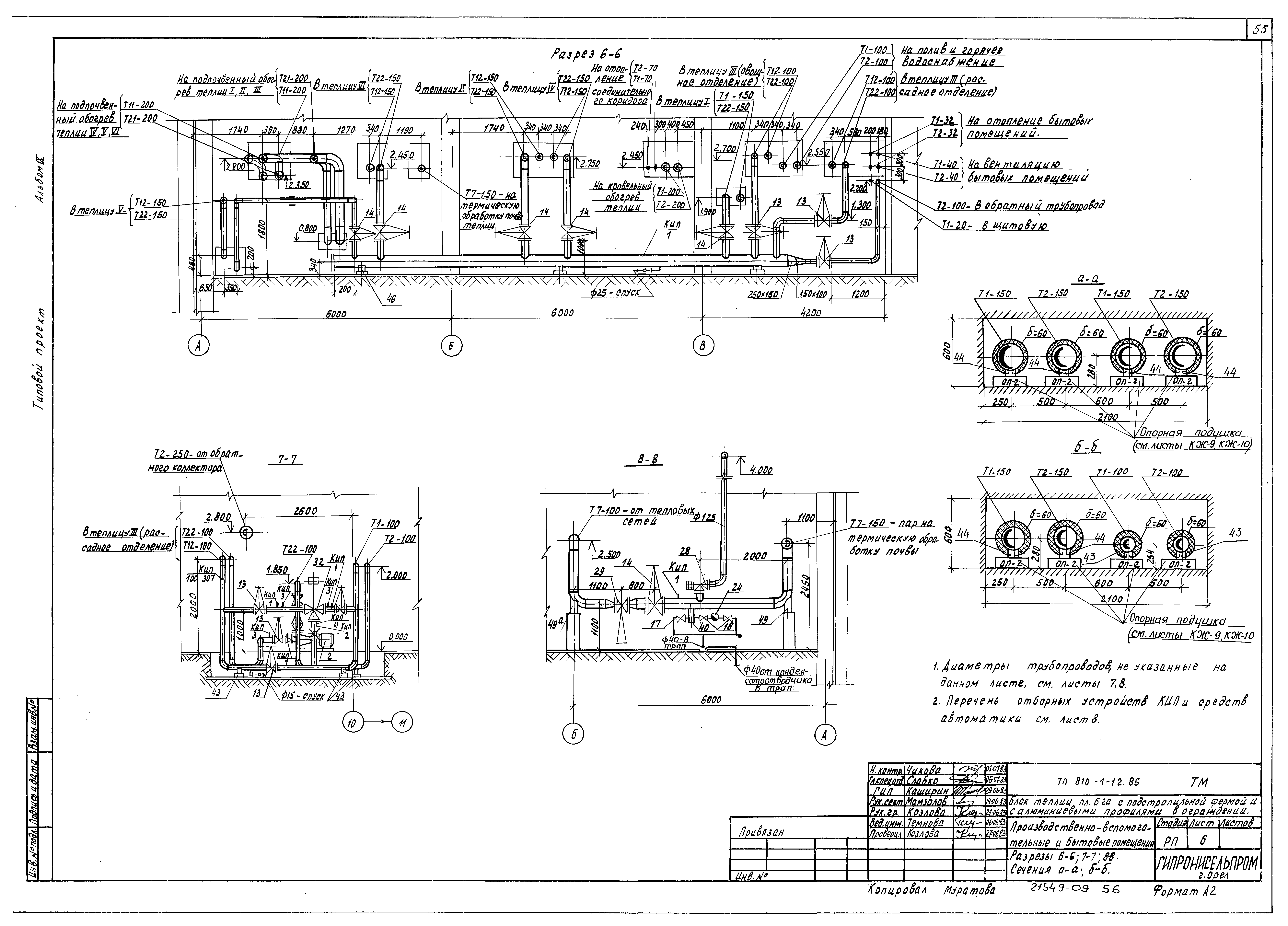
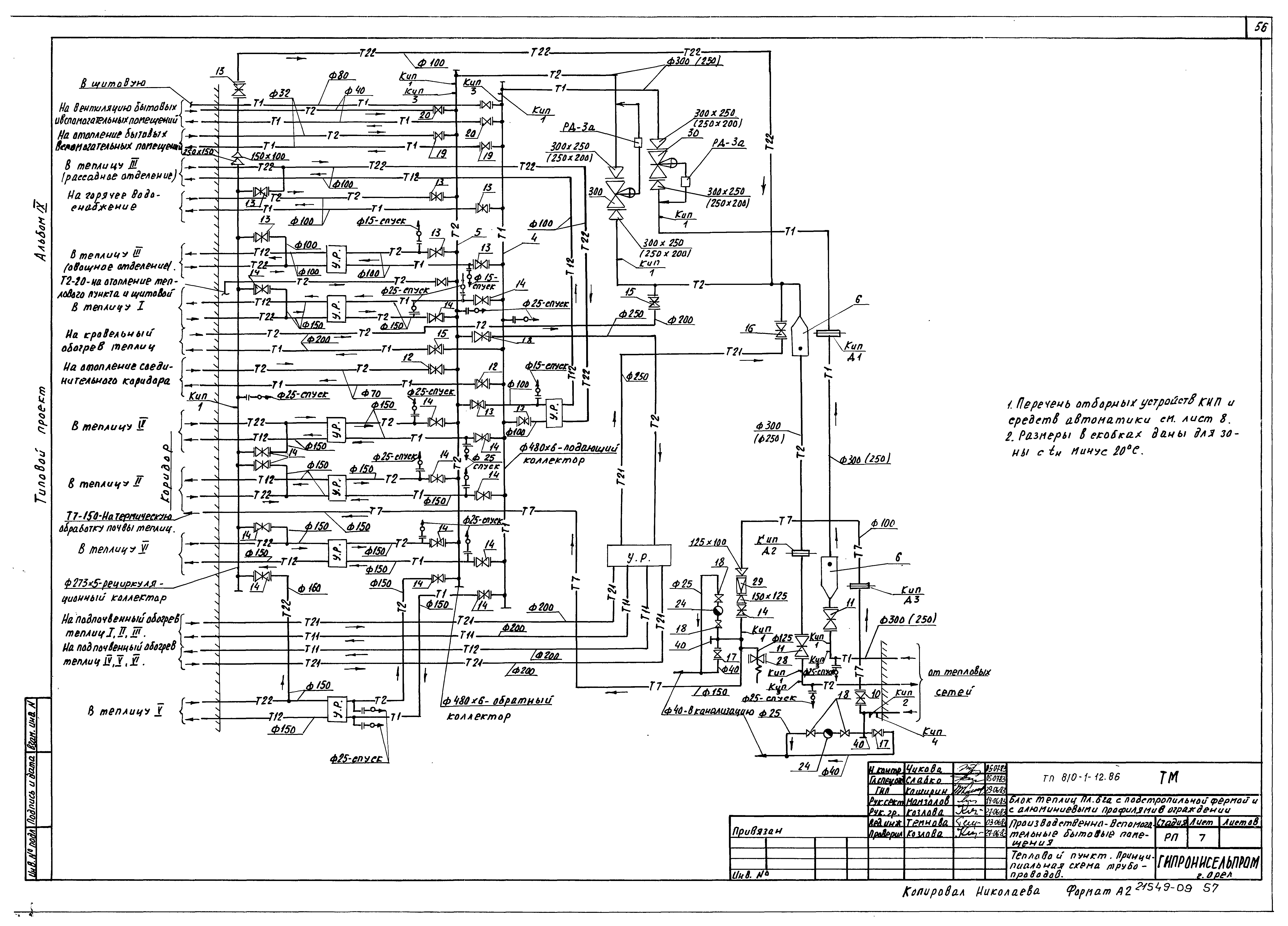
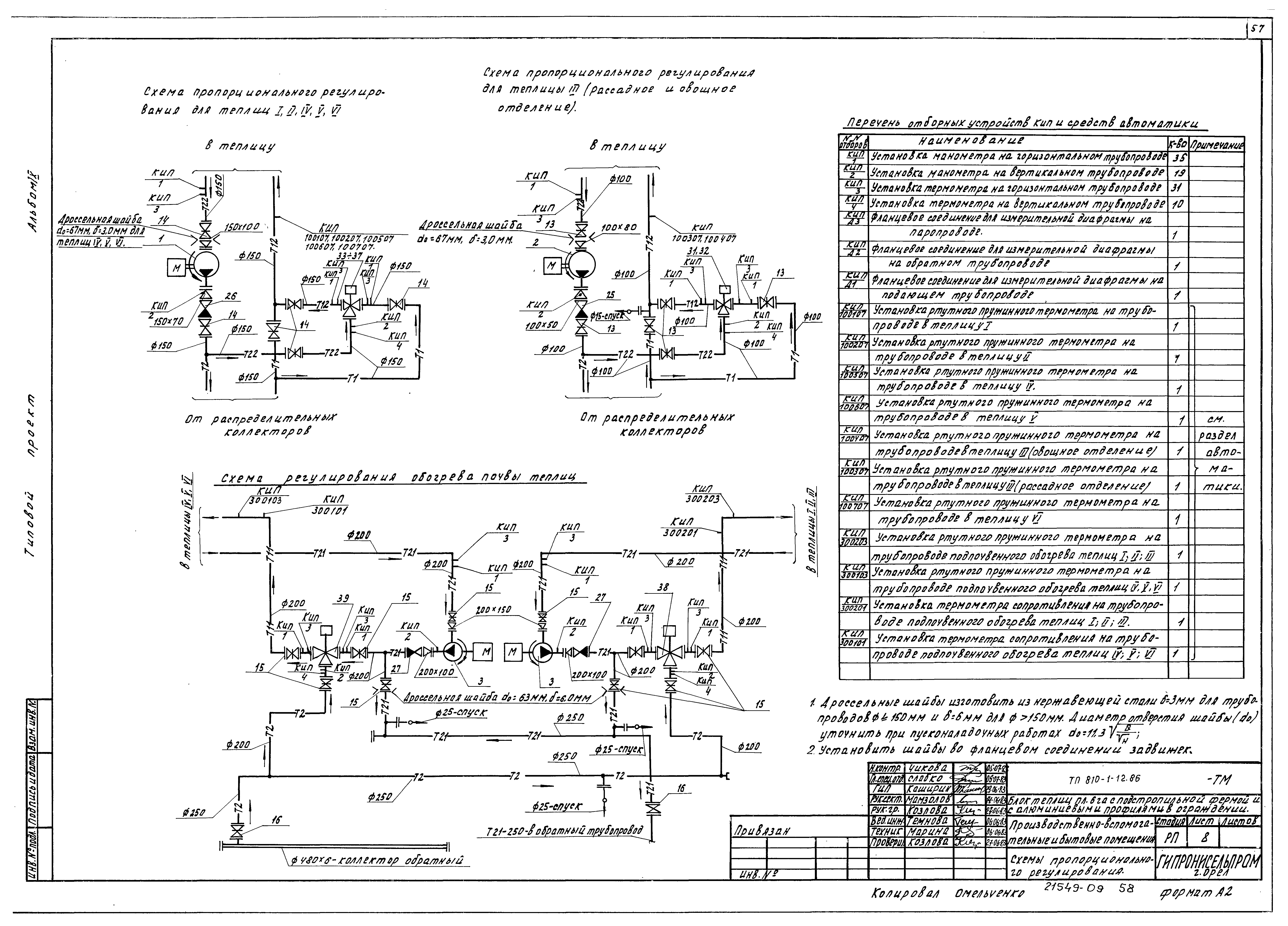
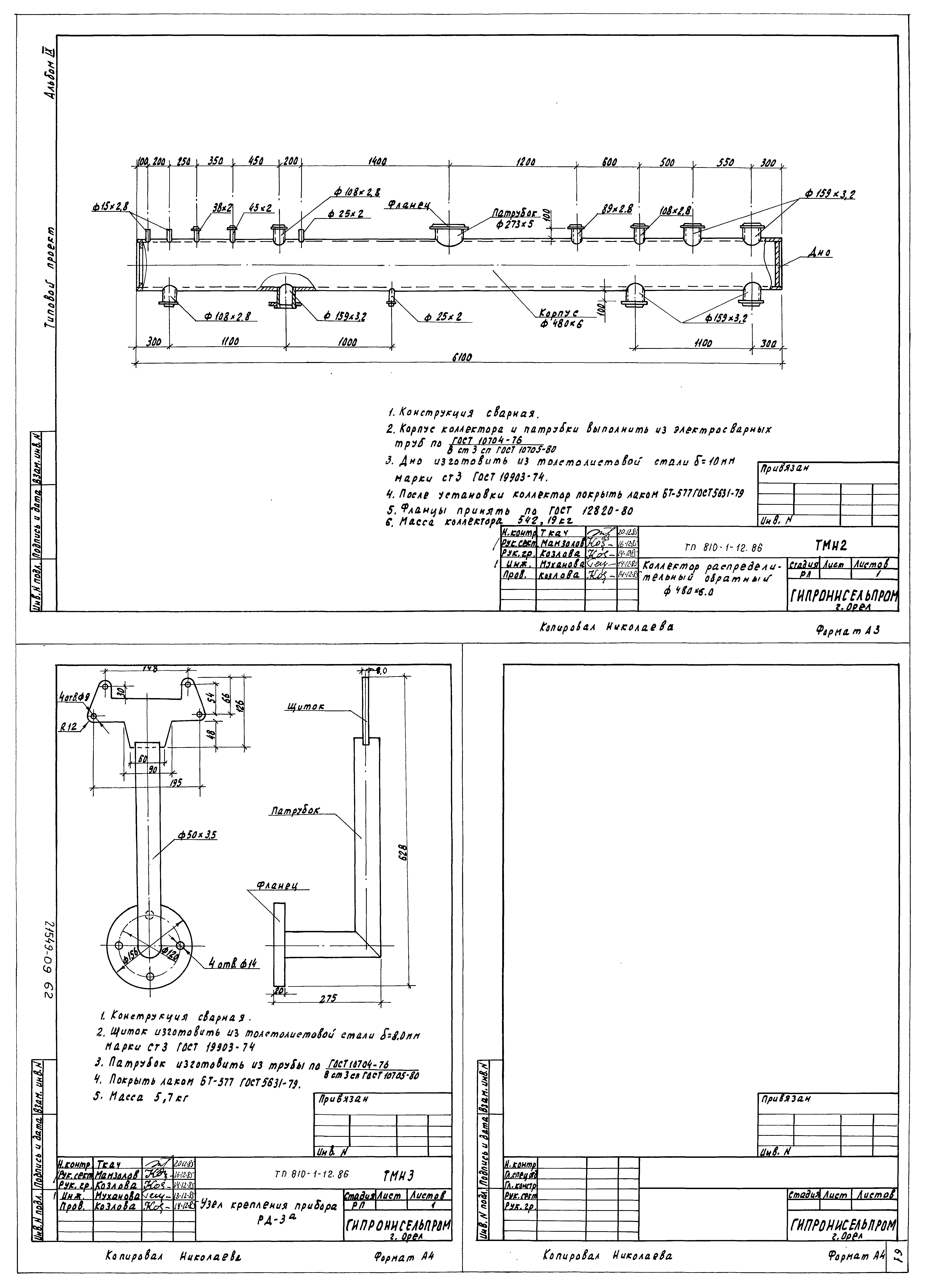
| Оглавление: | ТП 810-1-12.86 ДС Содержание альбома ТП 810-1-12.86 АР-1 Общие данные (начало) ТП 810-1-12.86 АР-2 Общие данные (окончание) ТП 810-1-12.86 АР-3 План на отметке 0.000 в осях 1-8 ТП 810-1-12.86 АР-4 План на отметке 0.000 в осях 8-11 ТП 810-1-12.86 АР-5 Фрагменты 1;2 ТП 810-1-12.86 АР-6 Разрезы. Фасады. Схемы заполнения оконных проемов ТП 810-1-12.86 АР-7 Схема расположения перемычек ТП 810-1-12.86 АР-8 План полов. Детали ТП 810-1-12.86 АР-9 Схема расположения элементов сборных перегородок ТП 810-1-12.86 АР-10 План расположения отверстий ТП 810-1-12.86 АР-11 План подшивного потолка ТП 810-1-12.86 АР-12 Теплоизоляция стен минераловатными плитами. Детали. Узел 1 ТП 810-1-12.86 АР-13 План кровли. Детали. Схема ТП 810-1-12.86 АР-14 Схемы расположения элементов кабин душевых и уборных ТП 810-1-12.86 КЖ-1 Общие данные (начало) ТП 810-1-12.86 КЖ-2 Общие данные (окончание) ТП 810-1-12.86 КЖ-3 Схема расположения фундаментов, цокольных и фундаментных балок. Фрагменты 1-3 ТП 810-1-12.86 КЖ-4 Фрагменты 4-12 ТП 810-1-12.86 КЖ-5 Схема расположения фундаментов под оборудование в осях 5-8. Фундаменты ФОМ-1÷ФОМ-5 ТП 810-1-12.86 КЖ-6 Схемы расположения фундаментов под оборудование в тепловом пункте и переходной площадки ПП1. Фундаменты ФОМ-6÷ФОМ-9 ТП 810-1-12.86 КЖ-7 Фундаменты ФОМ10-ФОМ15 ТП 810-1-12.86 КЖ-8 Схема расположения подземных конструкций ТП 810-1-12.86 КЖ-9 Приямок ПРМ1-ПРМ4 ТП 810-1-12.86 КЖ-10 Фрагменты 13-16 ТП 810-1-12.86 КЖ-11 Фрагменты 17-18 ТП 810-1-12.86 КЖ-12 Схема расположения колонн и ригелей ТП 810-1-12.86 КЖ-13 Схема расположения плит покрытия ТП 810-1-12.86 КЖ-14 Схема расположения стеновых панелей по осям А;Д;11 и 1 ТП 810-1-12.86 ОВ-1 Общие данные (начало) ТП 810-1-12.86 ОВ-2 Общие данные (окончание) ТП 810-1-12.86 ОВ-3 План системы отопления, теплоснабжения установки А1;П1;П2 в осях 1-7 ТП 810-1-12.86 ОВ-4 План системы отопления и вентиляции в осях 7-11 ТП 810-1-12.86 ОВ-5 План систем вентиляции в осях 1-7 ТП 810-1-12.86 ОВ-6 Система теплоснабжения водоподогревателей. План. Схема ТП 810-1-12.86 ОВ-7 Разрез 1-1. Схема теплоснабжения установок П-1;П-2;А-1 ТП 810-1-12.86 ОВ-8 Схема систем отопления в осях 1-7 ТП 810-1-12.86 ОВ-9 Схема систем отопления в осях 7-11 ТП 810-1-12.86 ОВ-10 Схемы систем вентиляции ТП 810-1-12.86 ОВ-11 Схемы систем вентиляции ТП 810-1-12.86 ОВ-12 Приточные установки П-1;П-2. План. Разрезы 1-1;2-2 ТП 810-1-12.86 ОВН1 Диффузор ТП 810-1-12.86 ОВН2 Лючок с заглушкой ТП 810-1-12.86 ОВН3 Редукционная вставка ТП 810-1-12.86 ОВН4 Рамка навески герметической двери ТП 810-1-12.86 ОВН5 Подставка под калорифер ТП 810-1-12.86 ОВН6 Вытяжной зонт ТП 810-1-12.86 ОВН7 Рамка под калорифер ТП 810-1-12.86 ОВН8 Решетка вентиляционная ТП 810-1-12.86 ОВН9 Решетка воздухоприточная ТП 810-1-12.86 ОВН10 Конструкция теплоизоляционная ТП 810-1-12.86 ОВН11 Конструкция теплоизоляционная (для воздуховодов) ТП 810-1-12.86 ТМ-1 Общие данные ТП 810-1-12.86 ТМ-2 План оборудования. Сечение В-В ТП 810-1-12.86 ТМ-3 План трубопроводов ТП 810-1-12.86 ТМ-4 Разрезы 1-1;2-2;3-3 ТП 810-1-12.86 ТМ-5 Разрезы 4-4;5-5. Сечение 2-2 ТП 810-1-12.86 ТМ-6 Разрезы 6-6;7-7;8-8. Сечение а-а;б-б ТП 810-1-12.86 ТМ-7 Тепловой пункт. Принципиальная схема трубопроводов ТП 810-1-12.86 ТМ-8 Схемы пропорционального регулирования ТП 810-1-12.86 ТМ-9 План магистральных трубопроводов в коридоре ТП 810-1-12.86 ТМ-10 Схема магистральных трубопроводов в коридоре ТП 810-1-12.86 ТМН-1 Коллектор распределительный подающий ø480х6.0 ТП 810-1-12.86 ТМН-2 Коллектор распределительный обратный ø480х6.0 ТП 810-1-12.86 ТМН-3 Узел крепления прибора РД-3а ТП 810-1-12.86 ТМН-4 Площадка передвижная ТП 810-1-12.86 ТМН-5 Конструкции тепловой изоляции трубопроводов |
| Разработан: | Гипронисельпром Минплодоовощхоза СССР |
| Утверждён: | 16.11.1984 Минплодоовощхоз СССР (03-7-52/6210) |




































































