Скачать Типовой проект 810-1-12.86 Альбом X. Производственно-вспомогательные и бытовые помещения. Строительные изделияДата актуализации: 01.01.2021
|
| Обозначение: | Типовой проект 810-1-12.86 |
| Обозначение англ: | 810-1-12.86 |
| Статус: | не определен законодательством |
| Название рус.: | Альбом X. Производственно-вспомогательные и бытовые помещения. Строительные изделия |
| Дата добавления в базу: | 01.09.2013 |
| Дата актуализации: | 01.01.2021 |
| Дата введения: | 01.08.1986 |
| Дата окончания срока действия: | 30.06.2003 |
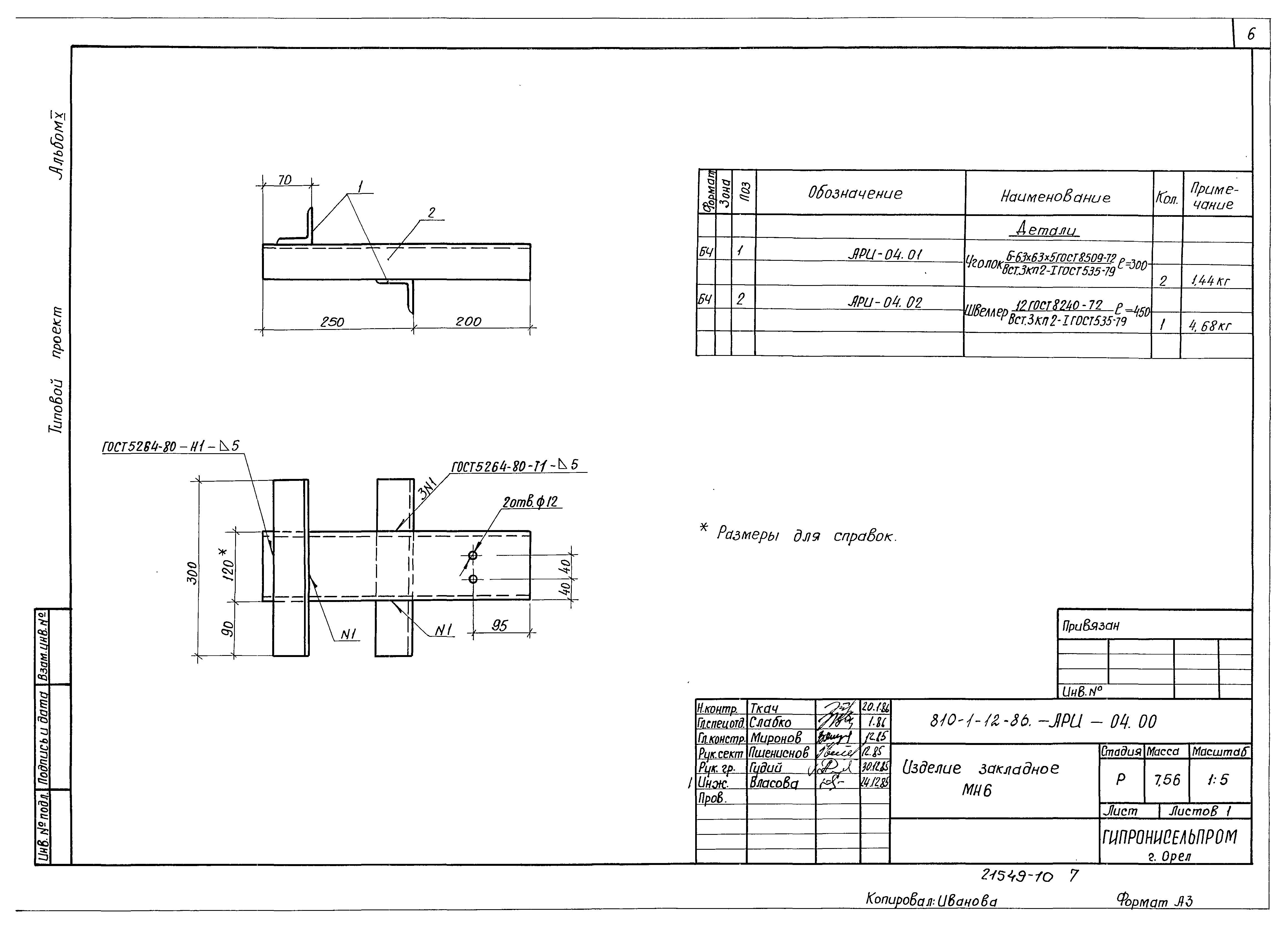
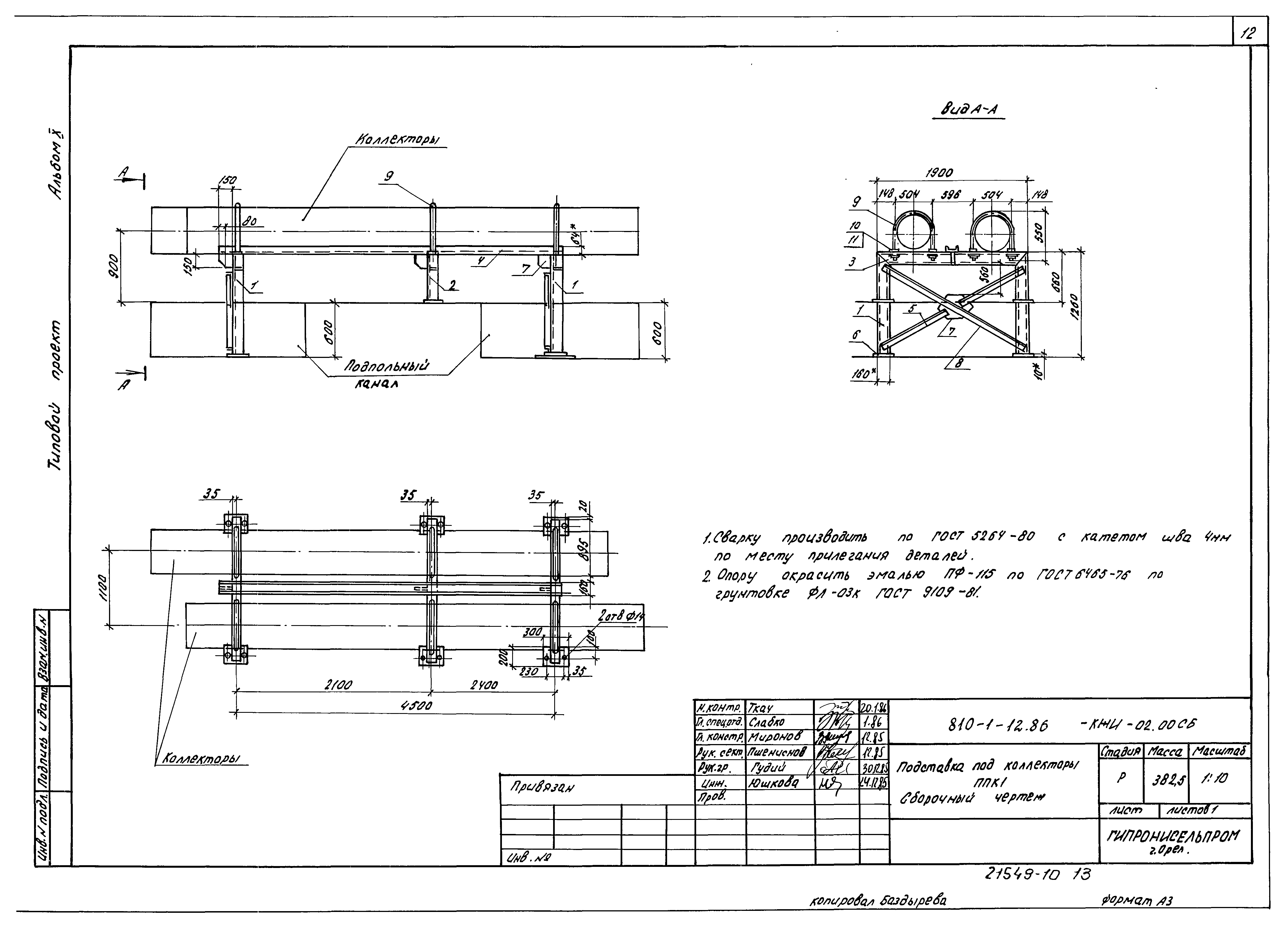
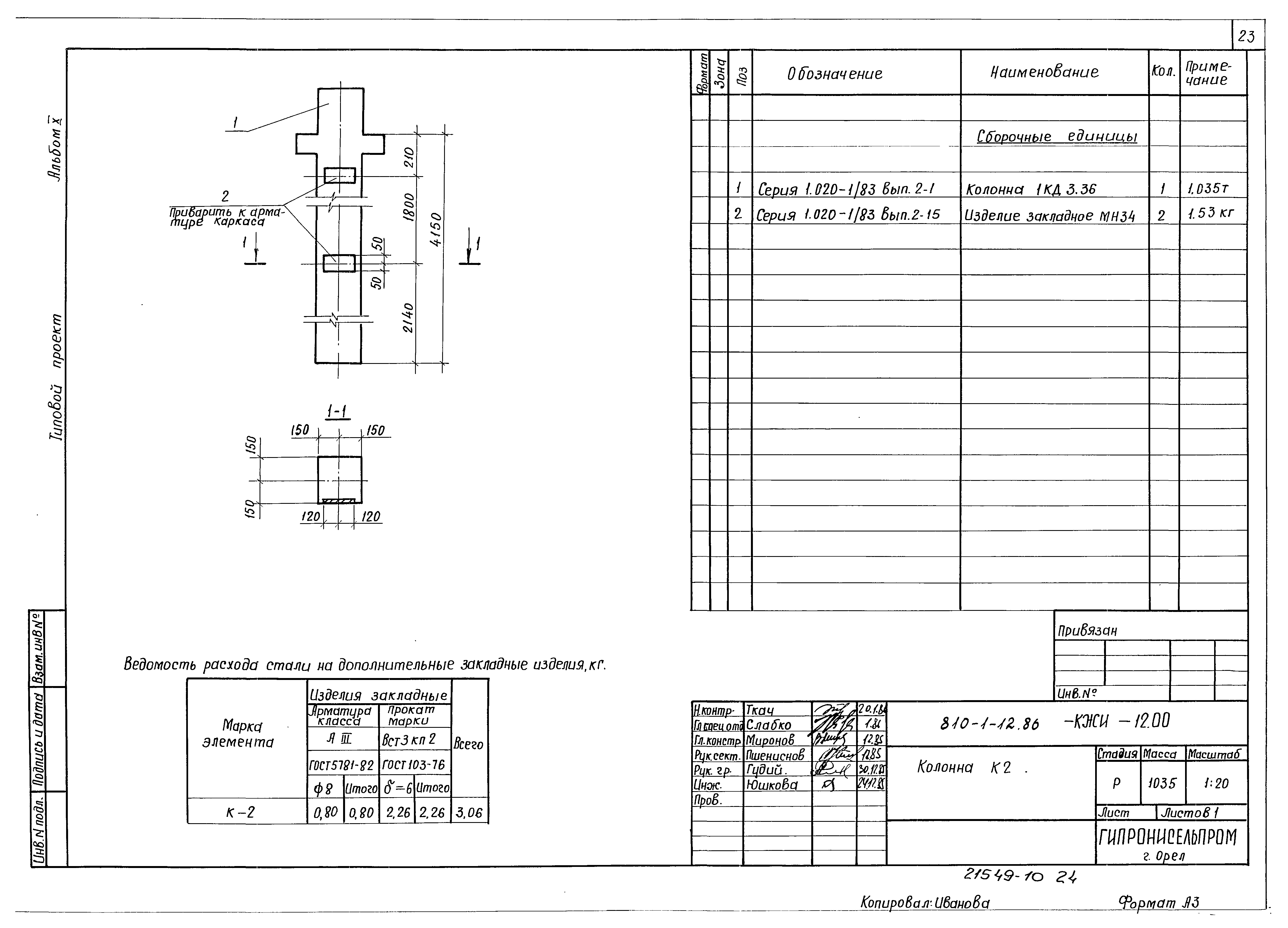
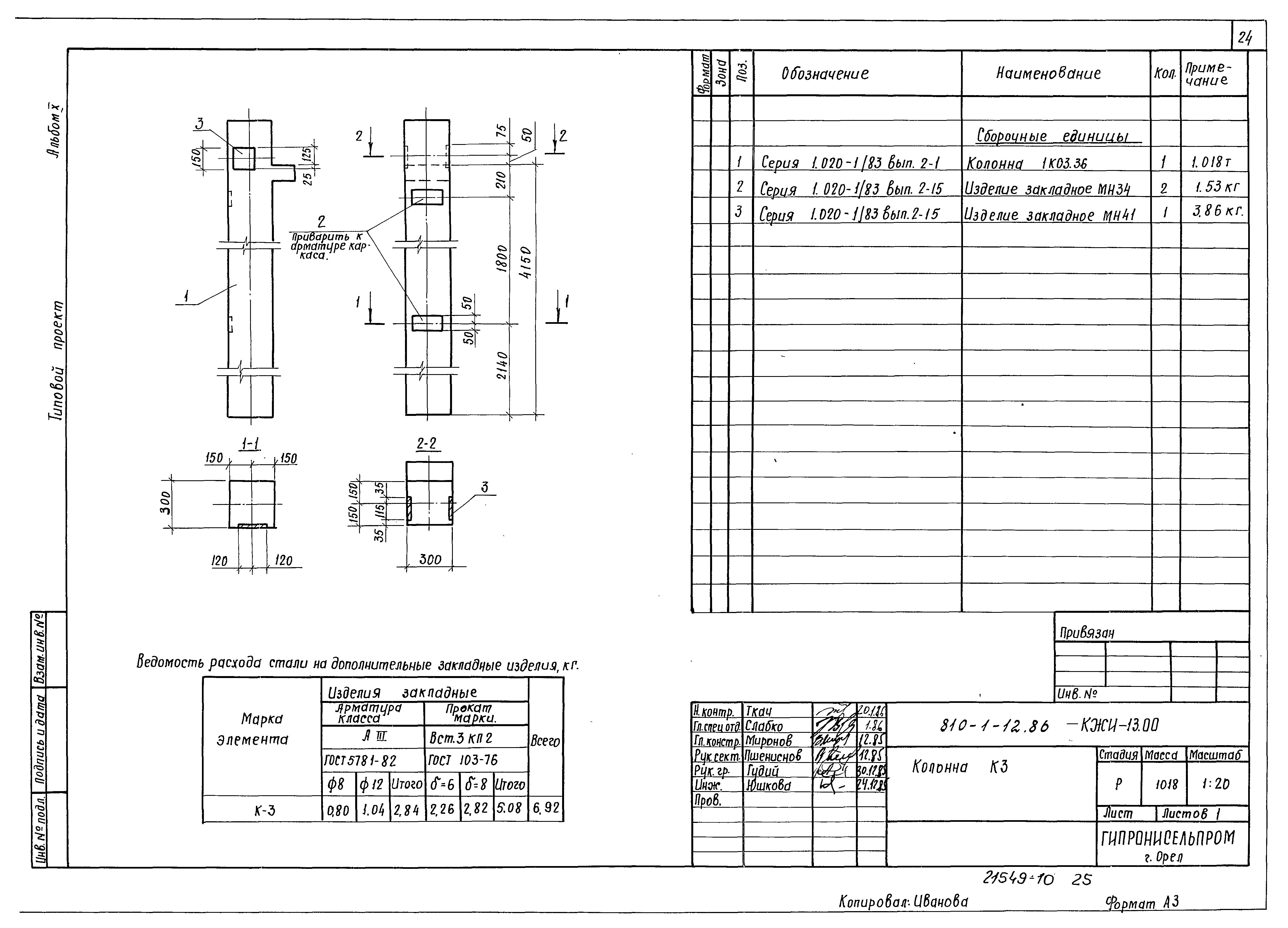
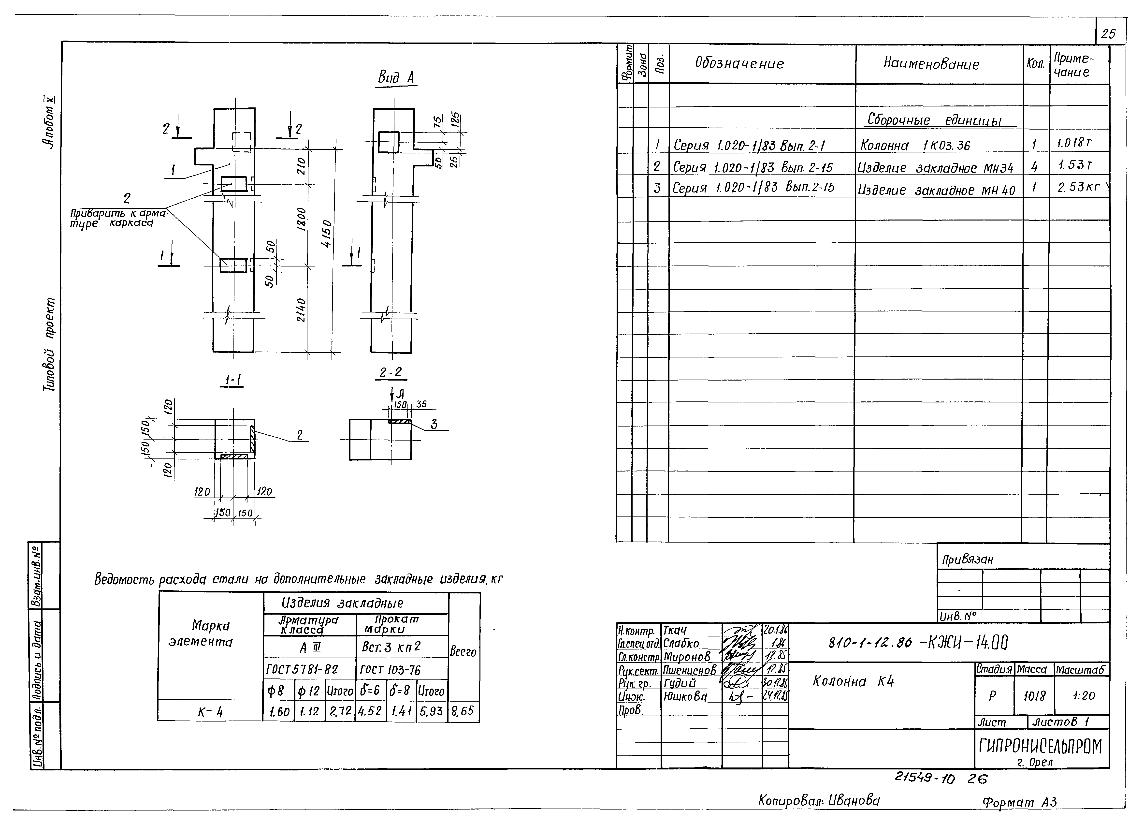
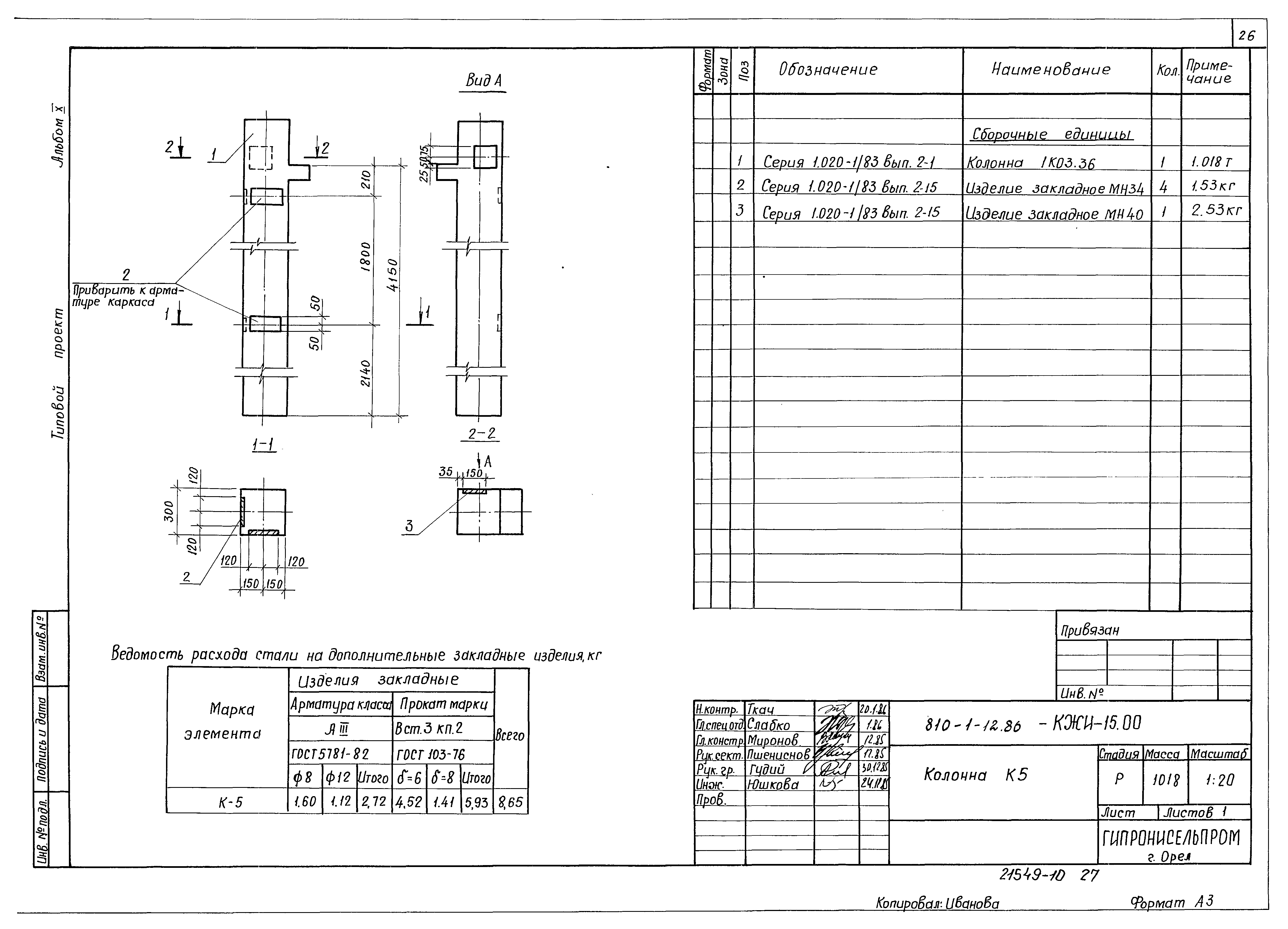
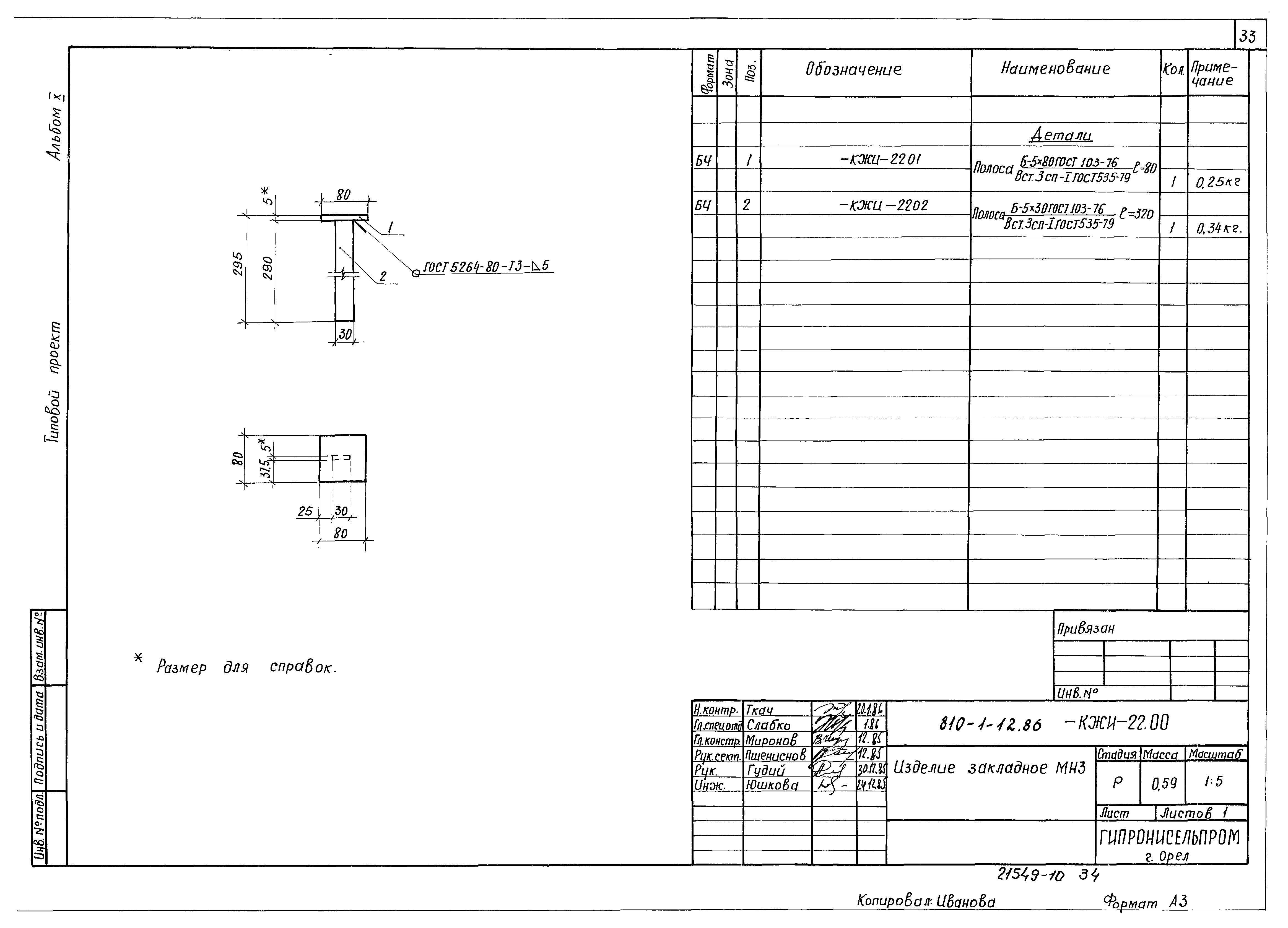
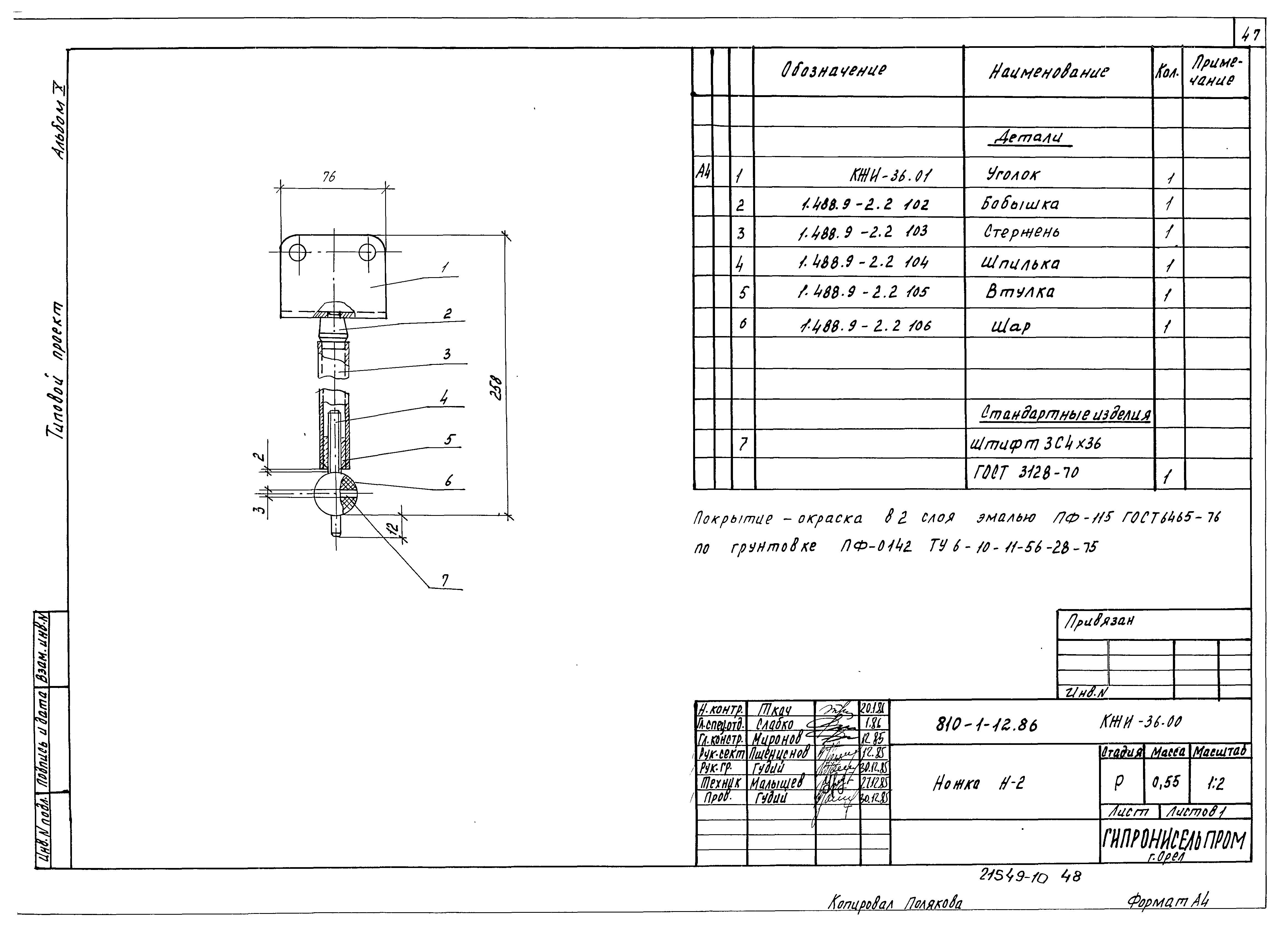
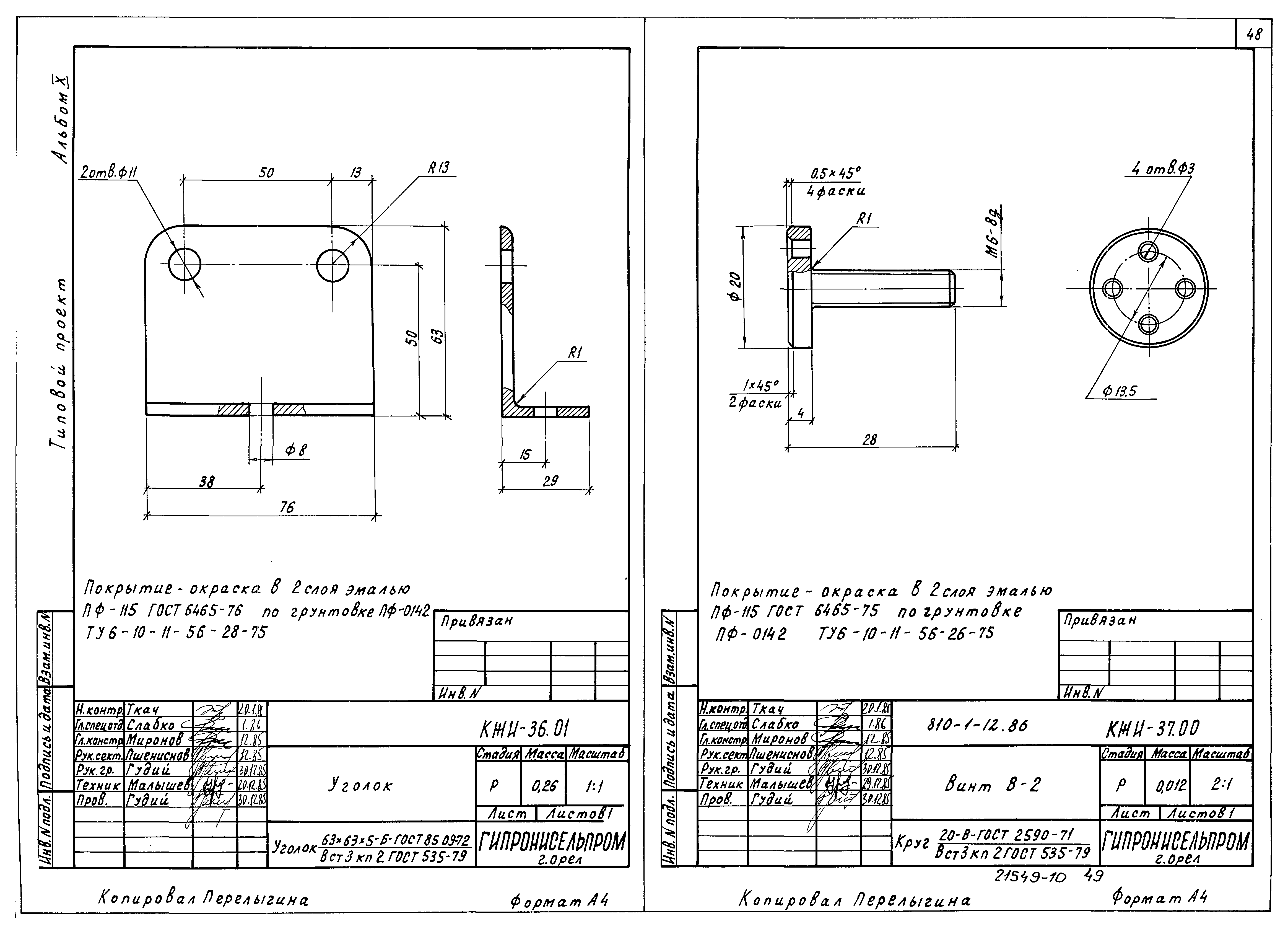
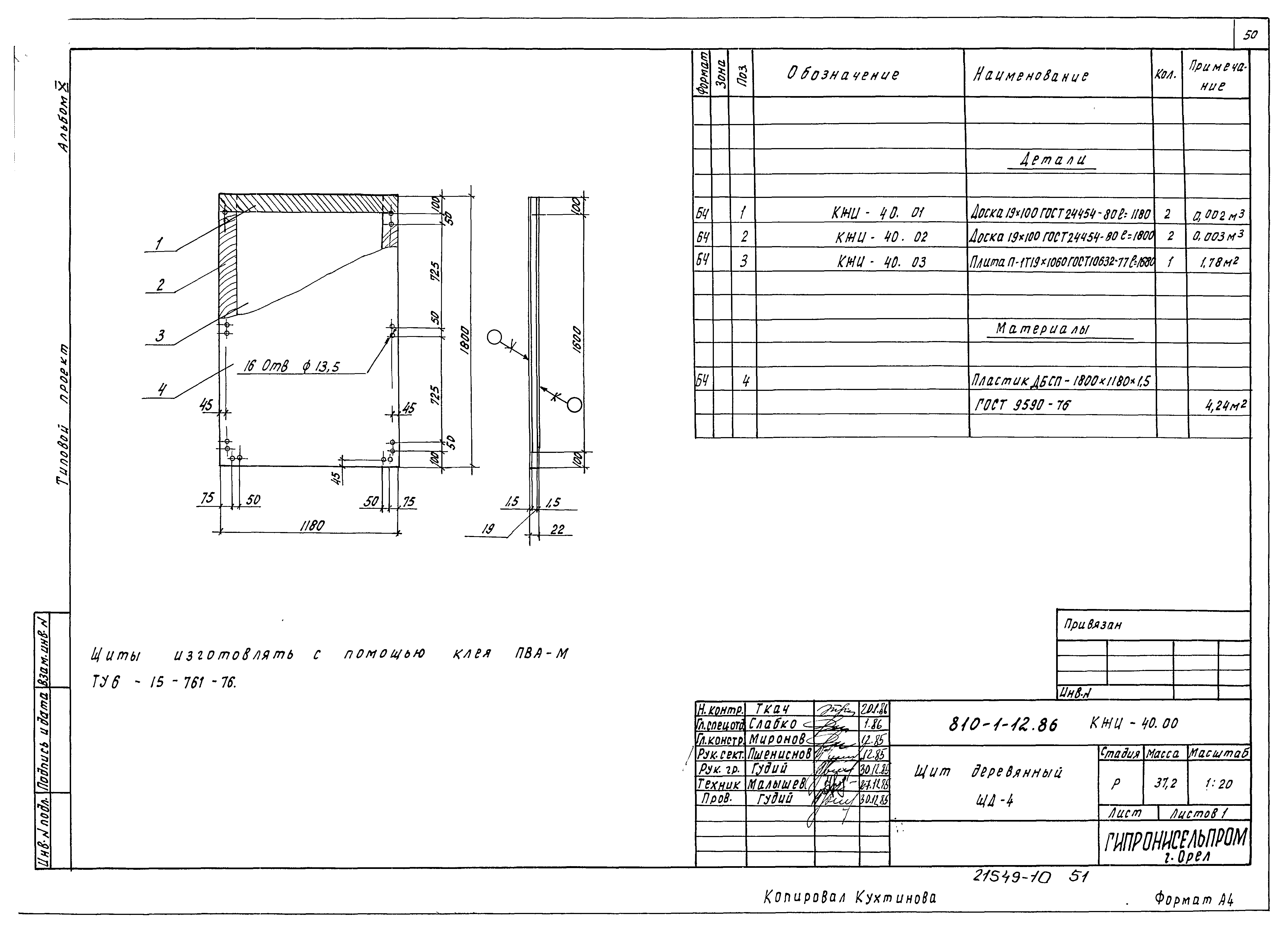
| Оглавление: | ТП 810-1-12.86 Содержание альбома ТП 810-1-12.86 АРЦ-01.00 Изделие закладное МН1 ТП 810-1-12.86 АРЦ-02.00 Изделие закладное (МН2;МН3) ТП 810-1-12.86 АРЦ-03.00 Изделие закладное (МН4;МН5) ТП 810-1-12.86 АРЦ-04.00 Изделие закладное МН6 ТП 810-1-12.86 АРЦ-05.00 Наддверная вставка (ДВ1,ДВ2) ТП 810-1-12.86 АРЦ-06.00 Решетка РП1 ТП 810-1-12.86 АРЦ-07.00 Перегородка щитовая УД6 ТП 810-1-12.86 КЖИ-01.00 Перемычка ЗПР41-44,38.44-а ТП 810-1-12.86 КЖИ-02.00 Подставка под коллекторы ППК1 ТП 810-1-12.86 КЖИ-02.00 СБ Подставка под коллекторы ППК1. Сборочный чертеж ТП 810-1-12.86 КЖИ-03.00 Опора под водоподогреватель ОПВ1 ТП 810-1-12.86 КЖИ-03.00 СБ Опора под водоподогреватель ОПВ1. Сборочный чертеж ТП 810-1-12.86 КЖИ-04.00 Опора под водоподогреватель ОПВ2 ТП 810-1-12.86 КЖИ-04.00 СБ Опора под водоподогреватель ОПВ2. Сборочный чертеж ТП 810-1-12.86 КЖИ-05.00 Стремянка СТ1 ТП 810-1-12.86 КЖИ-06.00 Изделие закладное МН1 ТП 810-1-12.86 КЖИ-07.00 Изделие закладное МН2 ТП 810-1-12.86 КЖИ-08.00 Изделие соединительное МС2;МС3 ТП 810-1-12.86 КЖИ-09.00 Болт анкерный А2 ТП 810-1-12.86 КЖИ-10.00 Балка (Б2;Б3) ТП 810-1-12.86 КЖИ-11.00 Решетка стальная РС1,РС2 ТП 810-1-12.86 КЖИ-12.00 Колонна К2 ТП 810-1-12.86 КЖИ-13.00 Колонна К3 ТП 810-1-12.86 КЖИ-14.00 Колонна К4 ТП 810-1-12.86 КЖИ-15.00 Колонна К5 ТП 810-1-12.86 КЖИ-16.00 Изделие соединительное МС4 ТП 810-1-12.86 КЖИ-17.00 Изделие соединительное МС5 ТП 810-1-12.86 КЖИ-18.00.00 Плита покрытия (П6-П8;П10) ТП 810-1-12.86 КЖИ-18.01.00 Сетка арматурная (СА1;СА2) ТП 810-1-12.86 КЖИ-19.00 Плита покрытия П9 ТП 810-1-12.86 КЖИ-20.00 Балочная клетка БК1 ТП 810-1-12.86 КЖИ-21.00 Балочная клетка БК2 ТП 810-1-12.86 КЖИ-22.00 Изделие закладное МН3 ТП 810-1-12.86 КЖИ-23.00 Балка Б1 ТП 810-1-12.86 КЖИ-24.00 Панель стеновая ПС1 ТП 810-1-12.86 КЖИ-25.00 Панель стеновая ПС2 ТП 810-1-12.86 КЖИ-26.00 Панель стеновая ПС3 ТП 810-1-12.86 КЖИ-27.00 Панель стеновая ПС4 ТП 810-1-12.86 КЖИ-28.00 Панель стеновая ПС5 ТП 810-1-12.86 КЖИ-29.00 Панель стеновая ПС6 ТП 810-1-12.86 КЖИ-30.00 Панель стеновая ПС7 ТП 810-1-12.86 КЖИ-31.00 Панель стеновая ПС8 ТП 810-1-12.86 КЖИ-32.00 Панель стеновая ПС9 ТП 810-1-12.86 КЖИ-33.00 Панель стеновая ПС10 ТП 810-1-12.86 КЖИ-34.00 Панель стеновая ПС11 ТП 810-1-12.86 КЖИ-35.00 Панель стеновая ПС12 ТП 810-1-12.86 КЖИ-36.00 Ножка Н-2 ТП 810-1-12.86 КЖИ-36.01 Уголок ТП 810-1-12.86 КЖИ-37.00 Винт В-2 ТП 810-1-12.86 КЖИ-38.00 Втулка ВТ-4 ТП 810-1-12.86 КЖИ-39.00 Накладка НМ-1 ТП 810-1-12.86 КЖИ-40.00 Щит деревянный ЩД-4 ТП 810-1-12.86 КЖИ-41.00 Площадка П-8 ТП 810-1-12.86 КЖИ-42.00 Площадка П-10 |
| Разработан: | Гипронисельпром Минплодоовощхоза СССР |
| Утверждён: | 16.11.1984 Минплодоовощхоз СССР (03-7-52/6210) |



















































