Скачать Типовой проект 810-1-29.88 Альбом 3. Часть 3. Автоматизация технологических процессовДата актуализации: 01.01.2021
|
| Обозначение: | Типовой проект 810-1-29.88 |
| Обозначение англ: | 810-1-29.88 |
| Статус: | не определен законодательством |
| Название рус.: | Альбом 3. Часть 3. Автоматизация технологических процессов |
| Дата добавления в базу: | 01.09.2013 |
| Дата актуализации: | 01.01.2021 |
| Дата введения: | 18.10.1988 |
| Дата окончания срока действия: | 30.06.2003 |
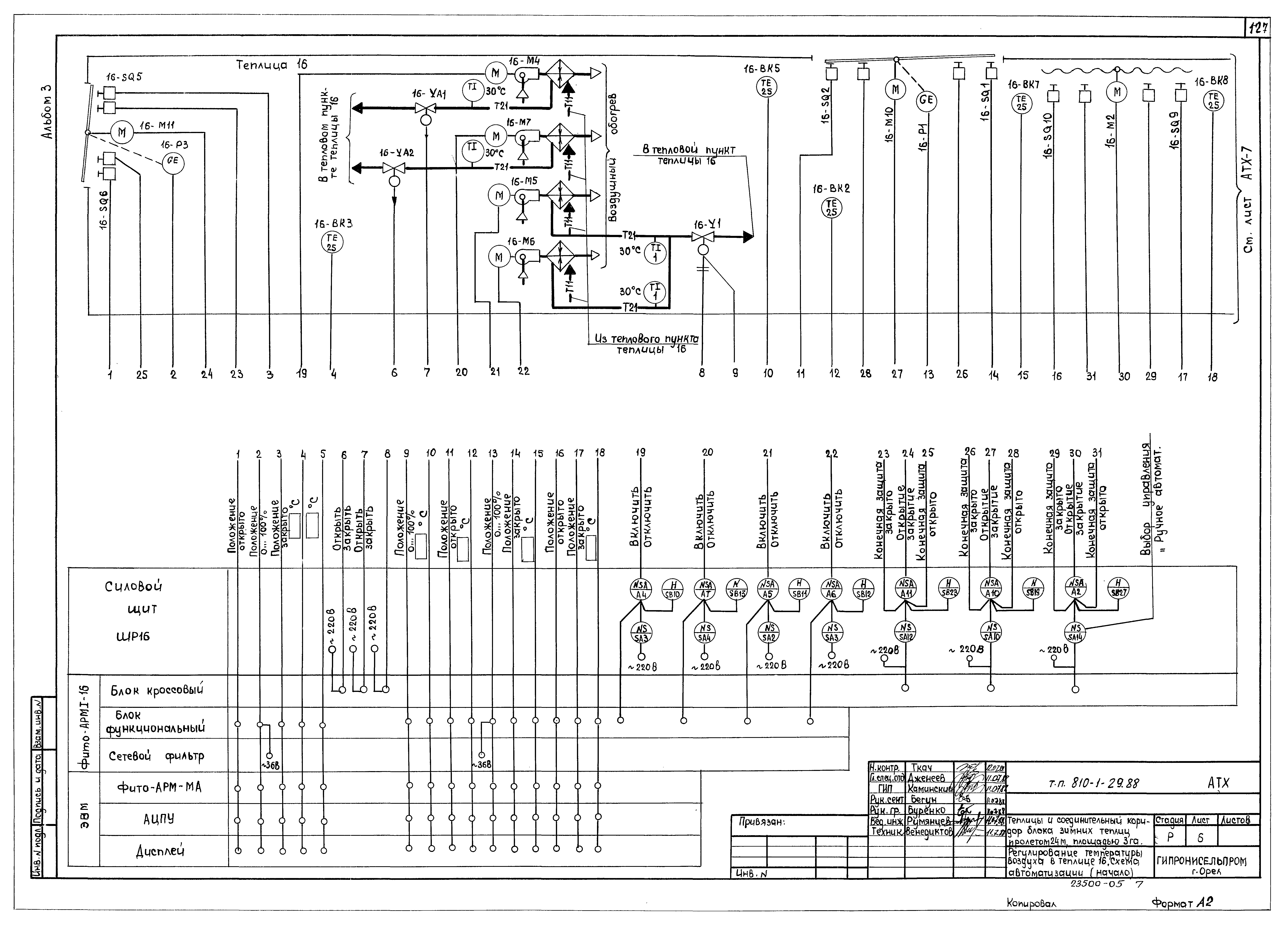
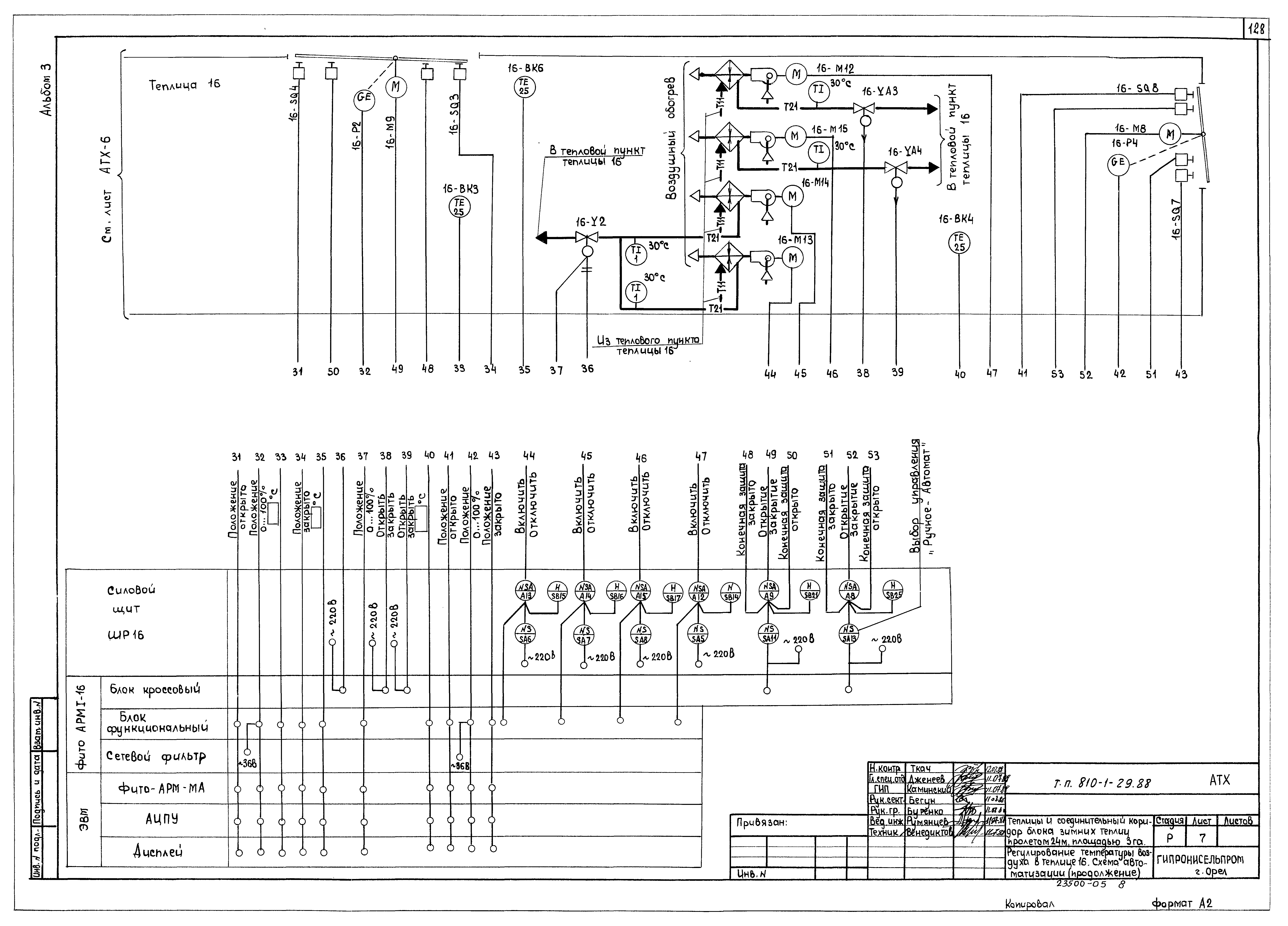
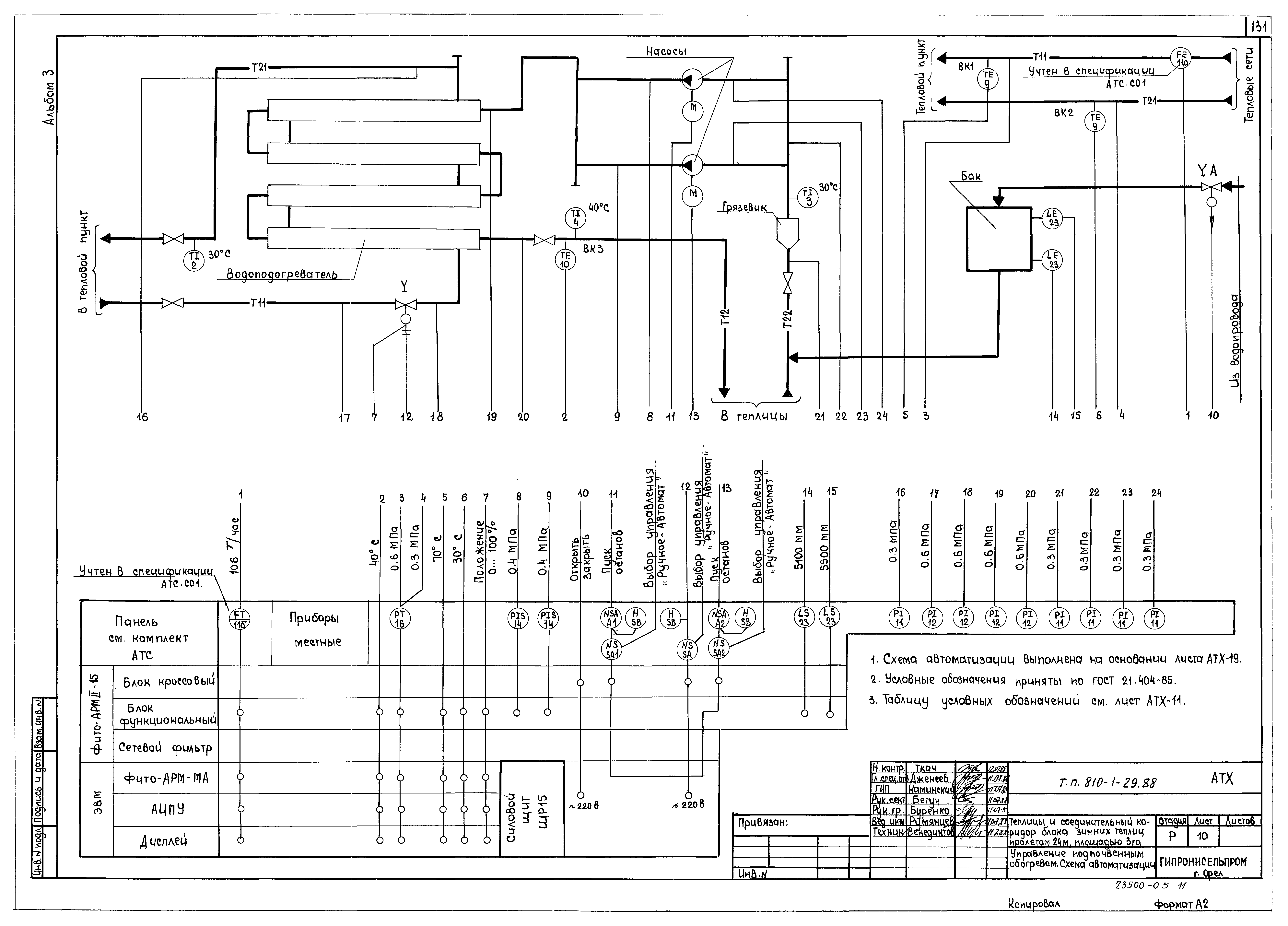
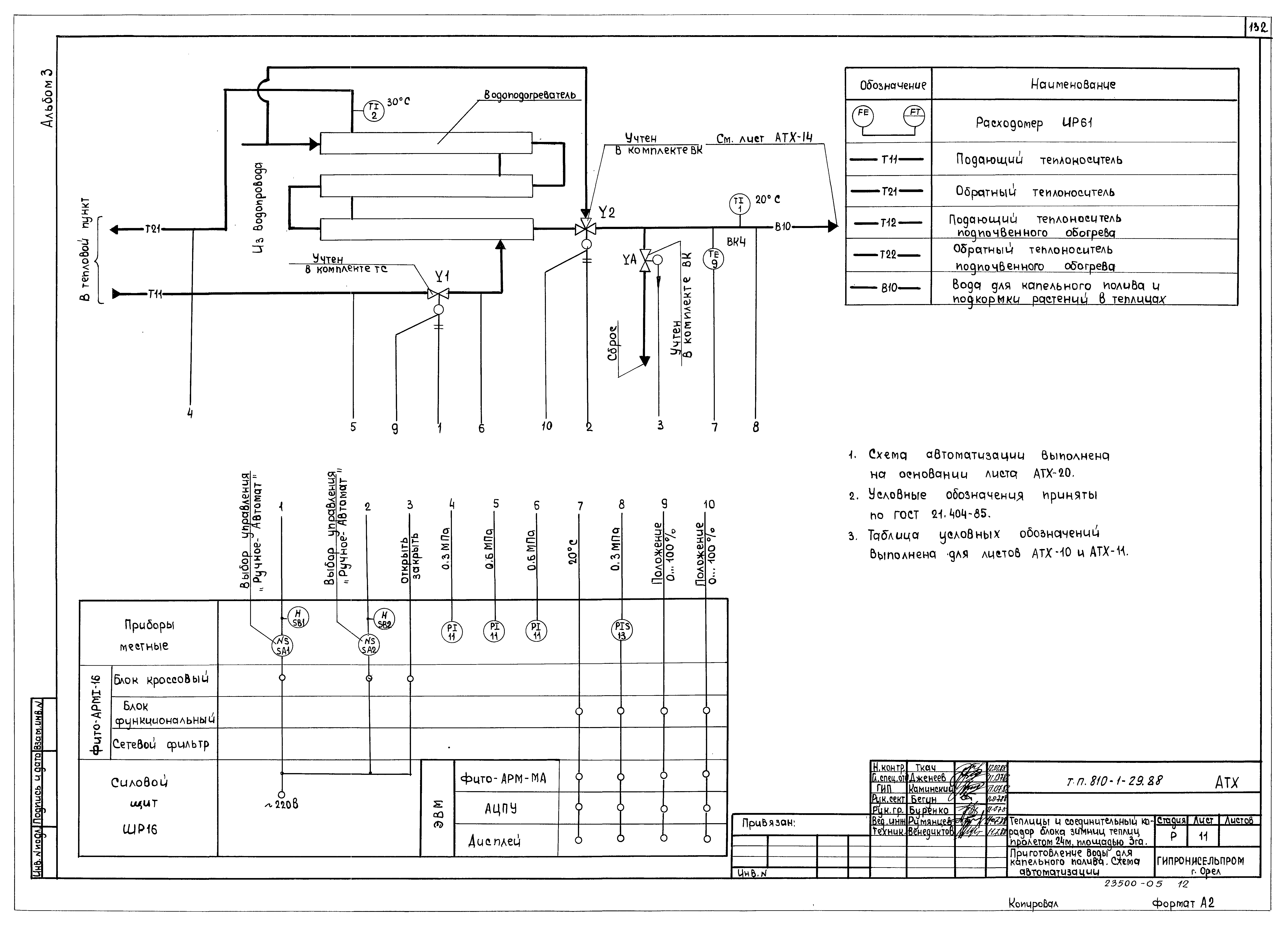
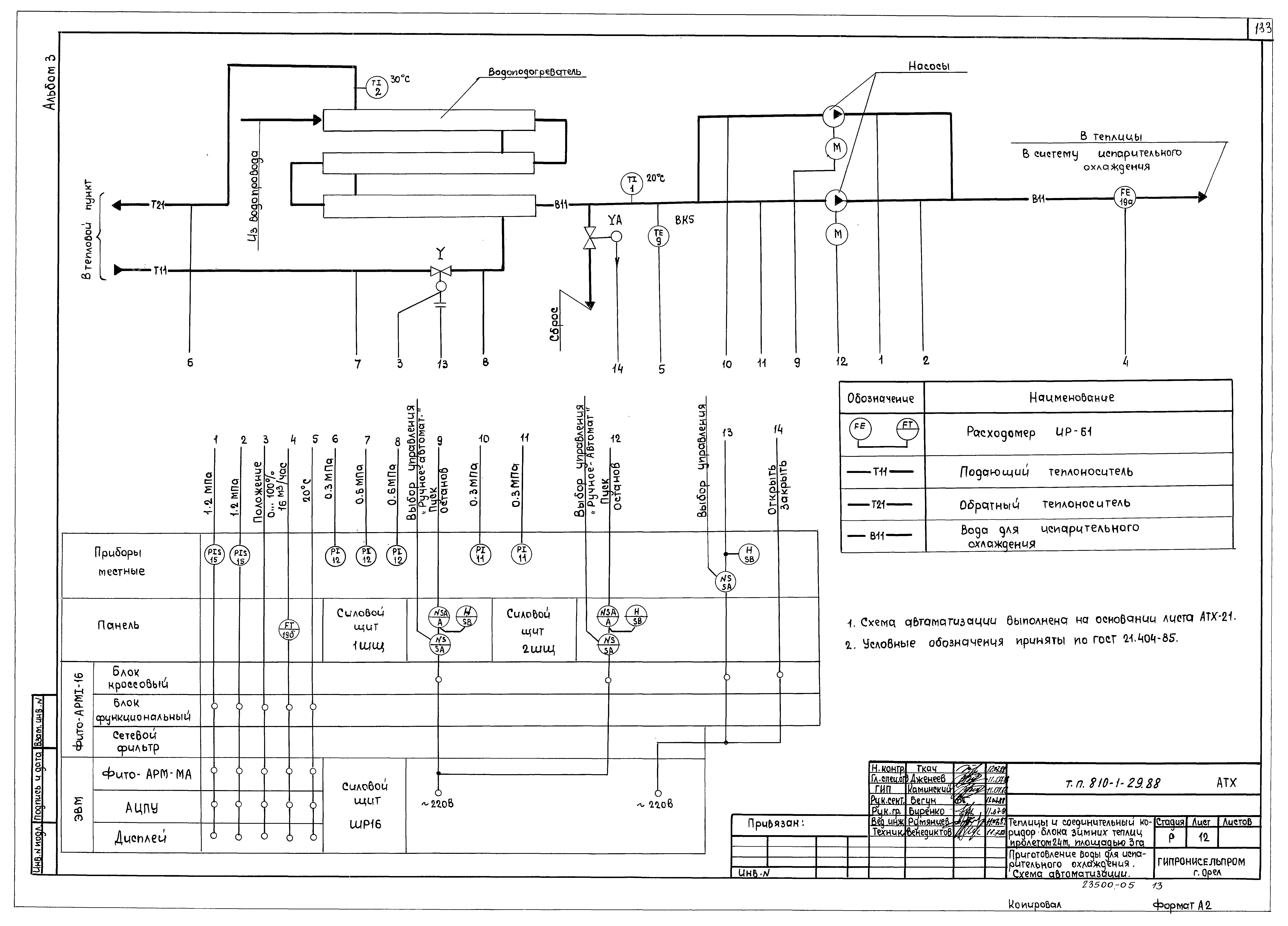
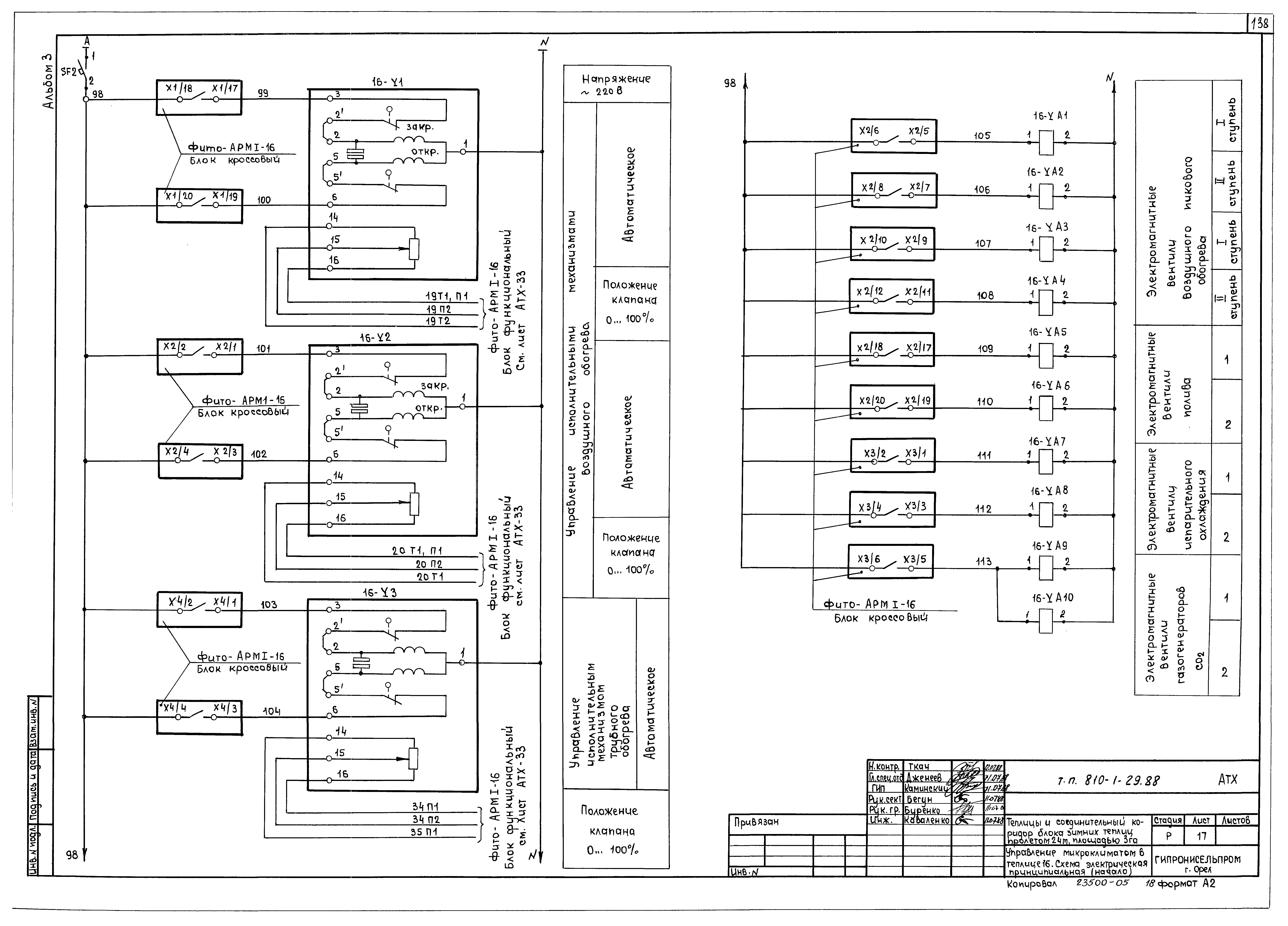
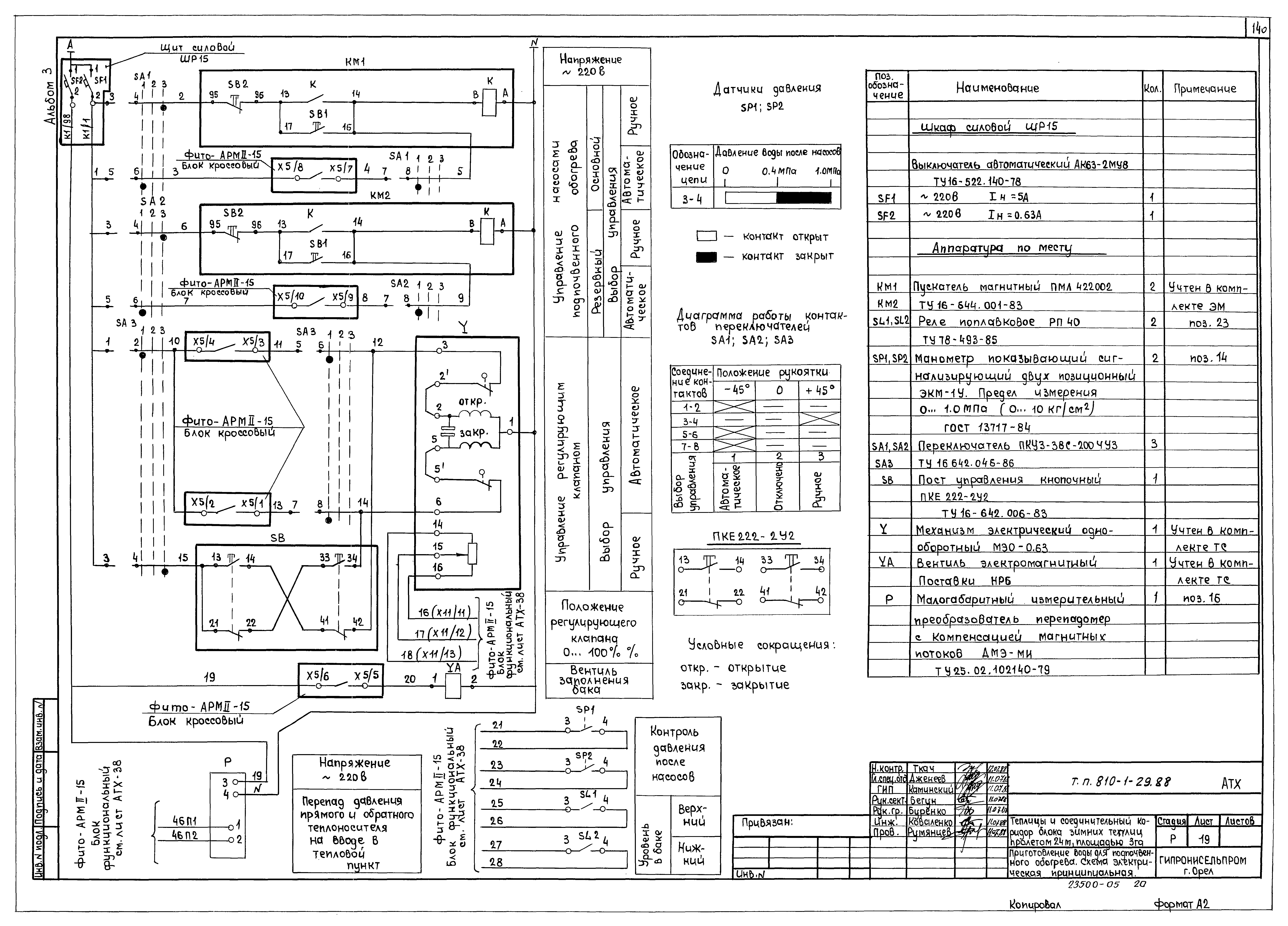
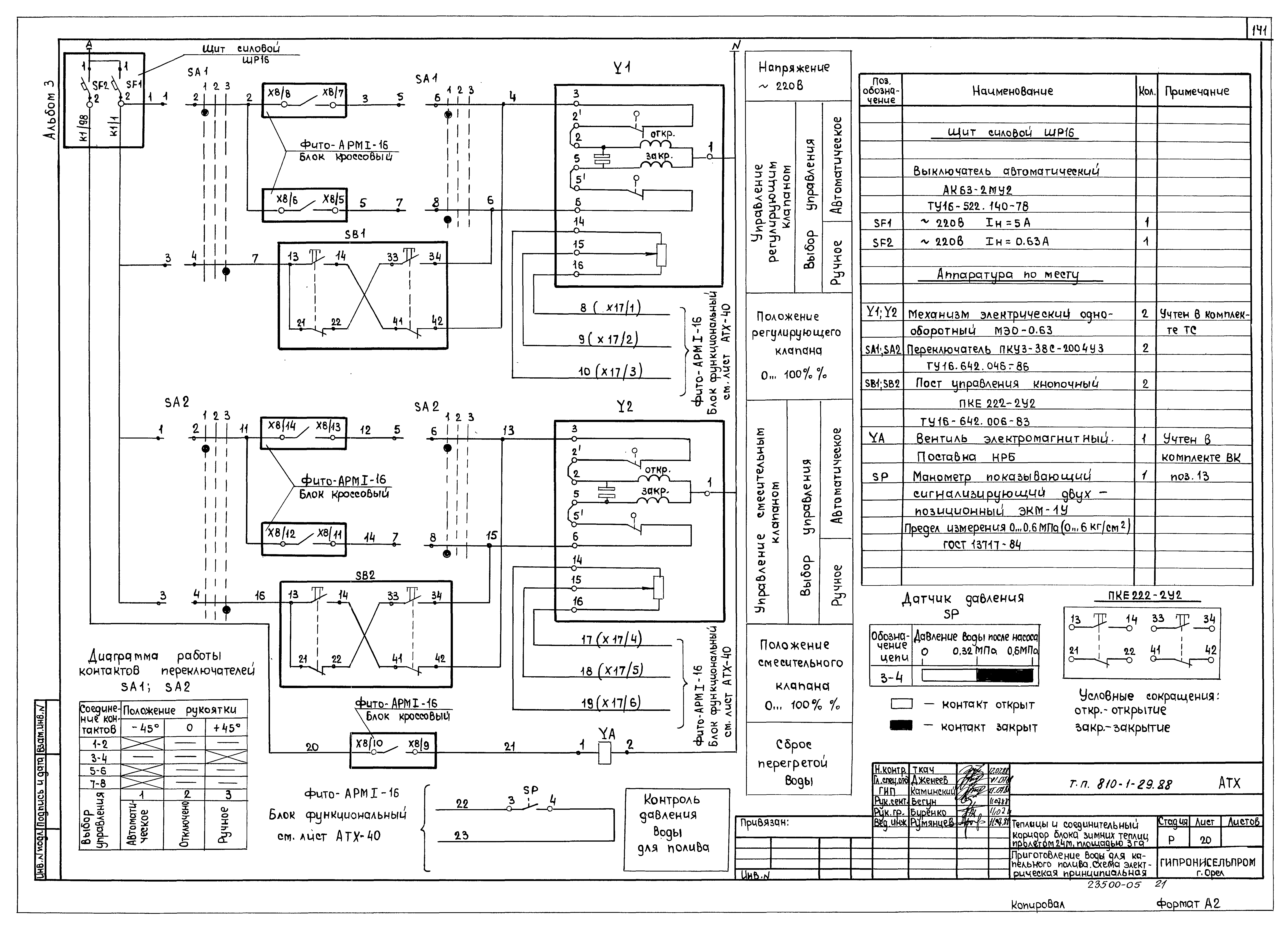
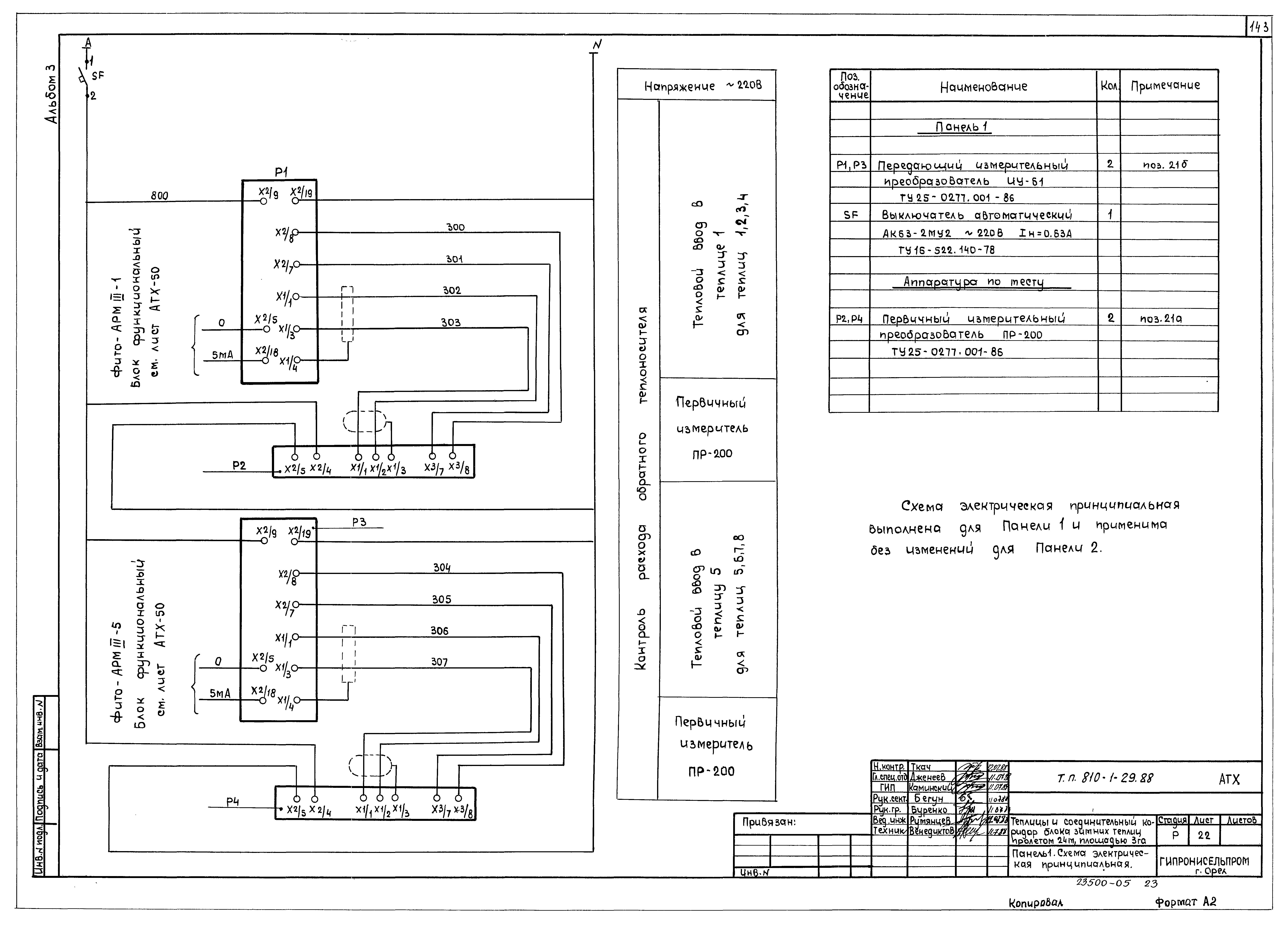
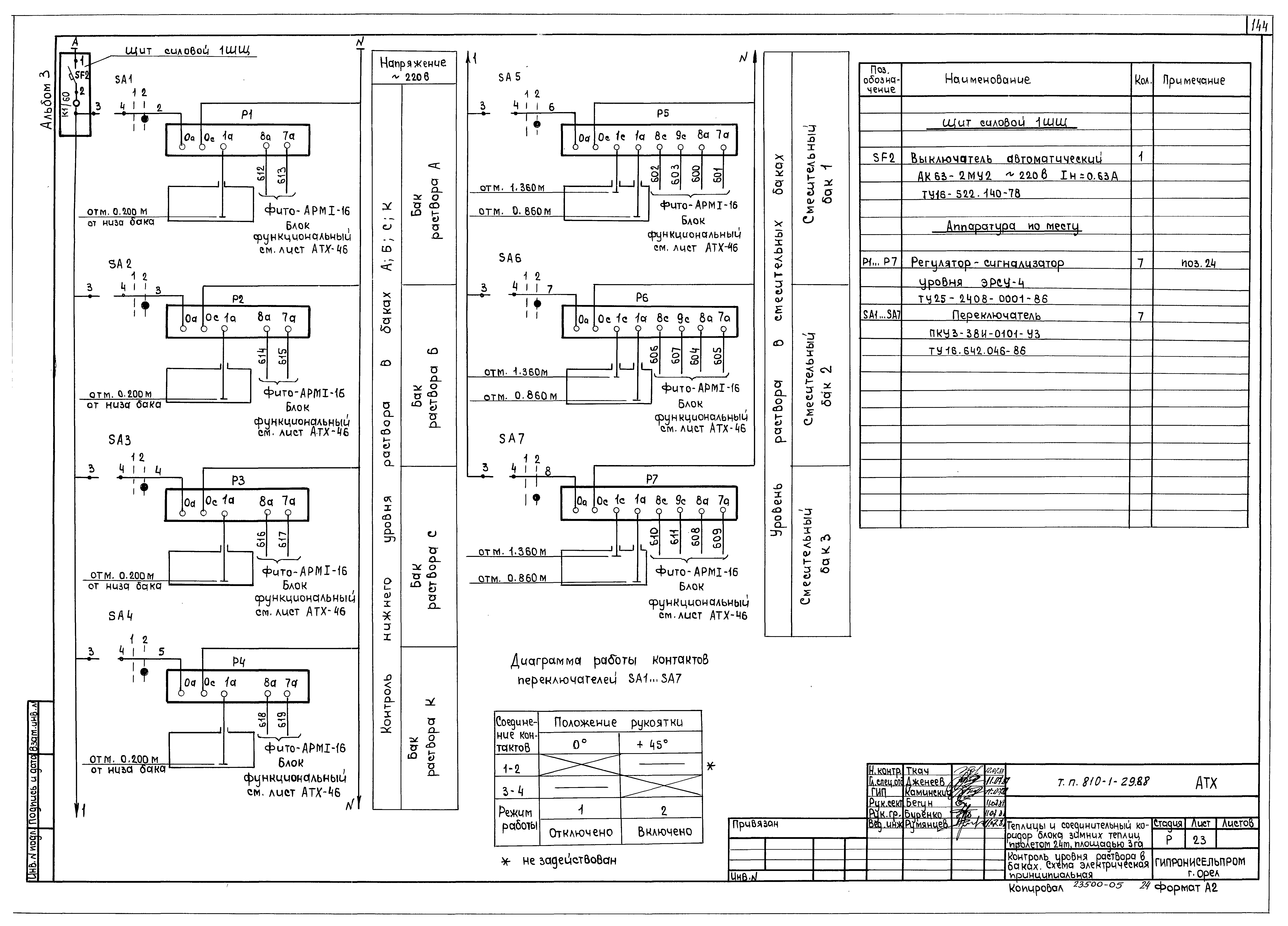
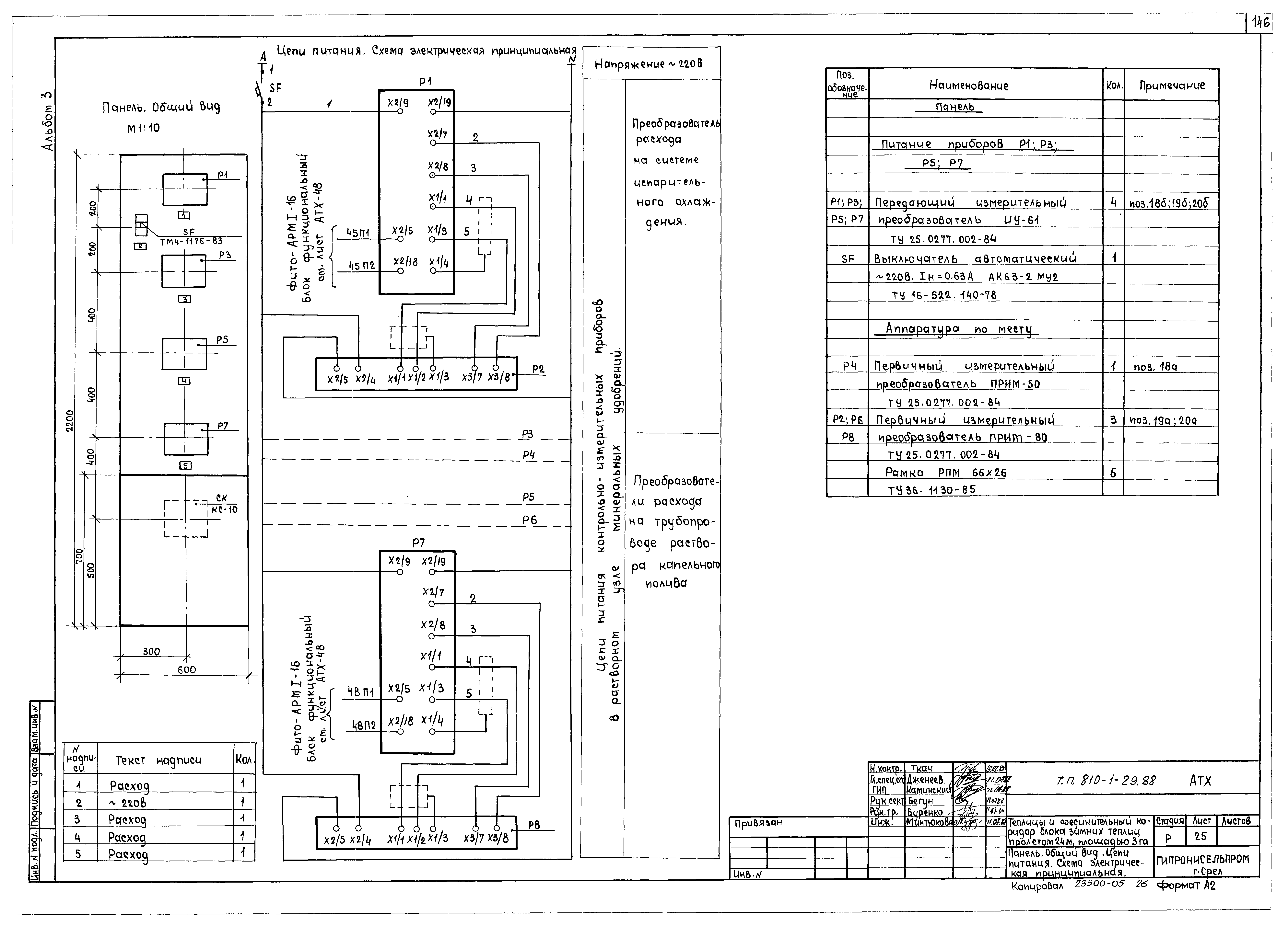
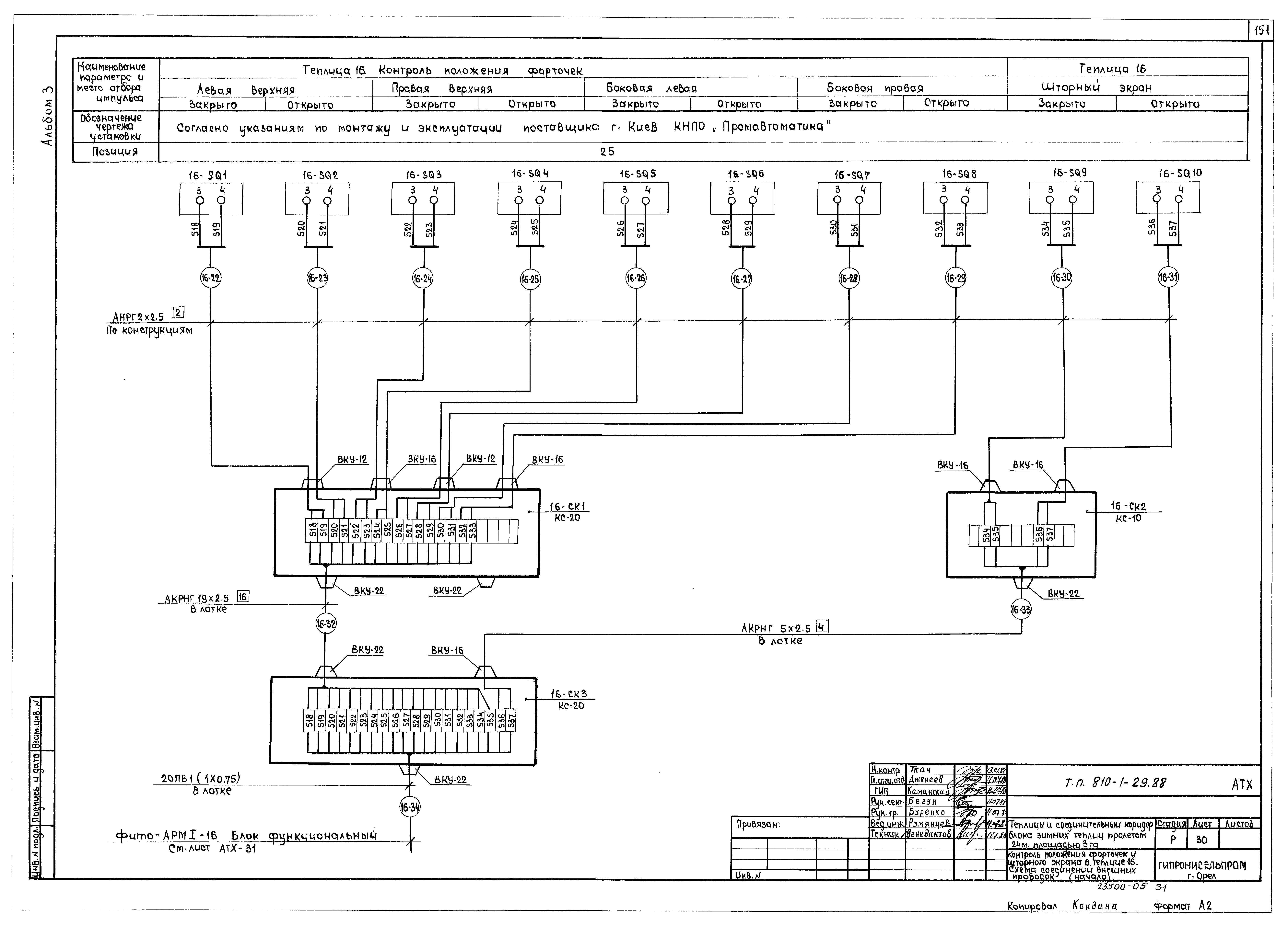
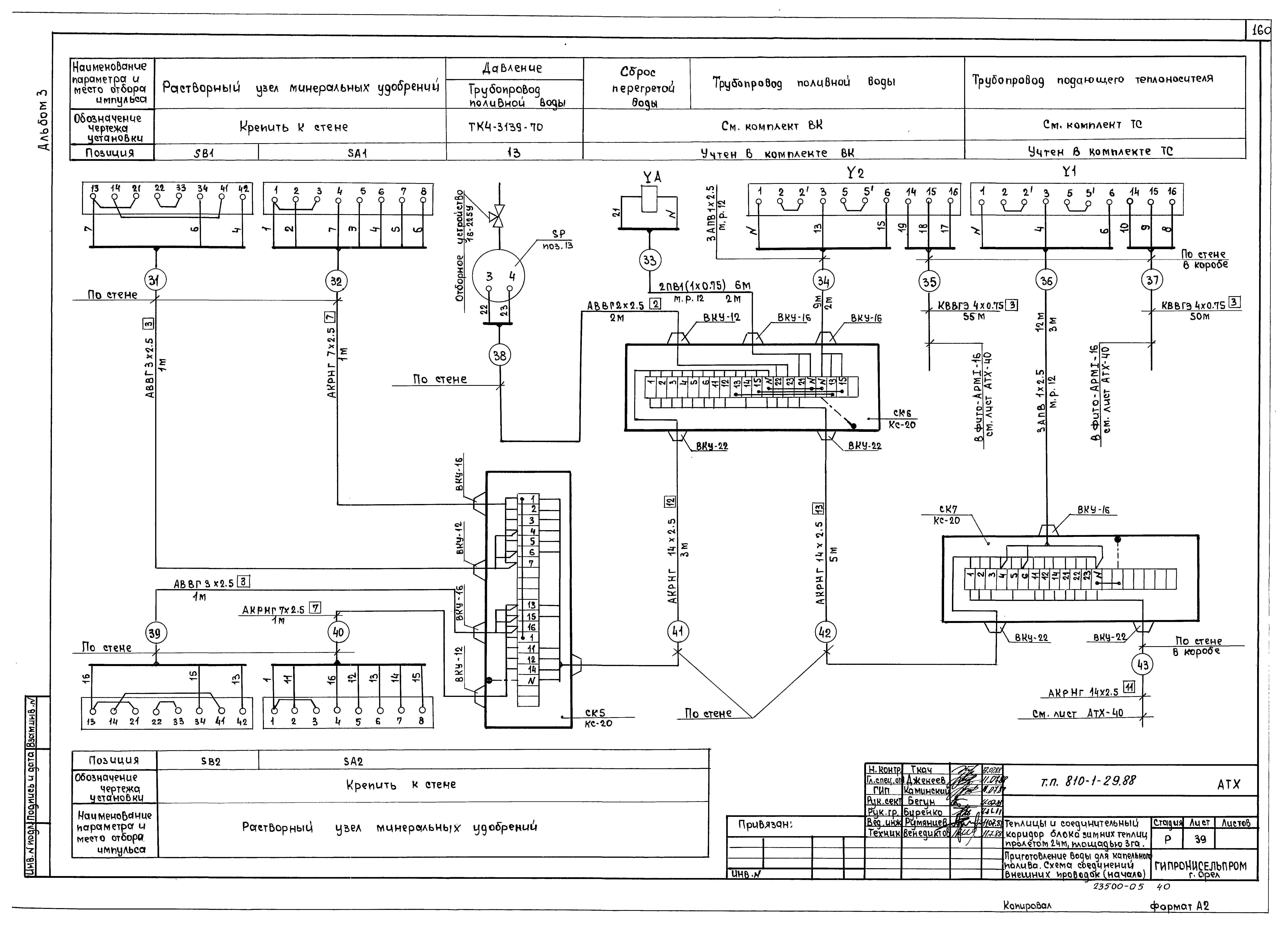
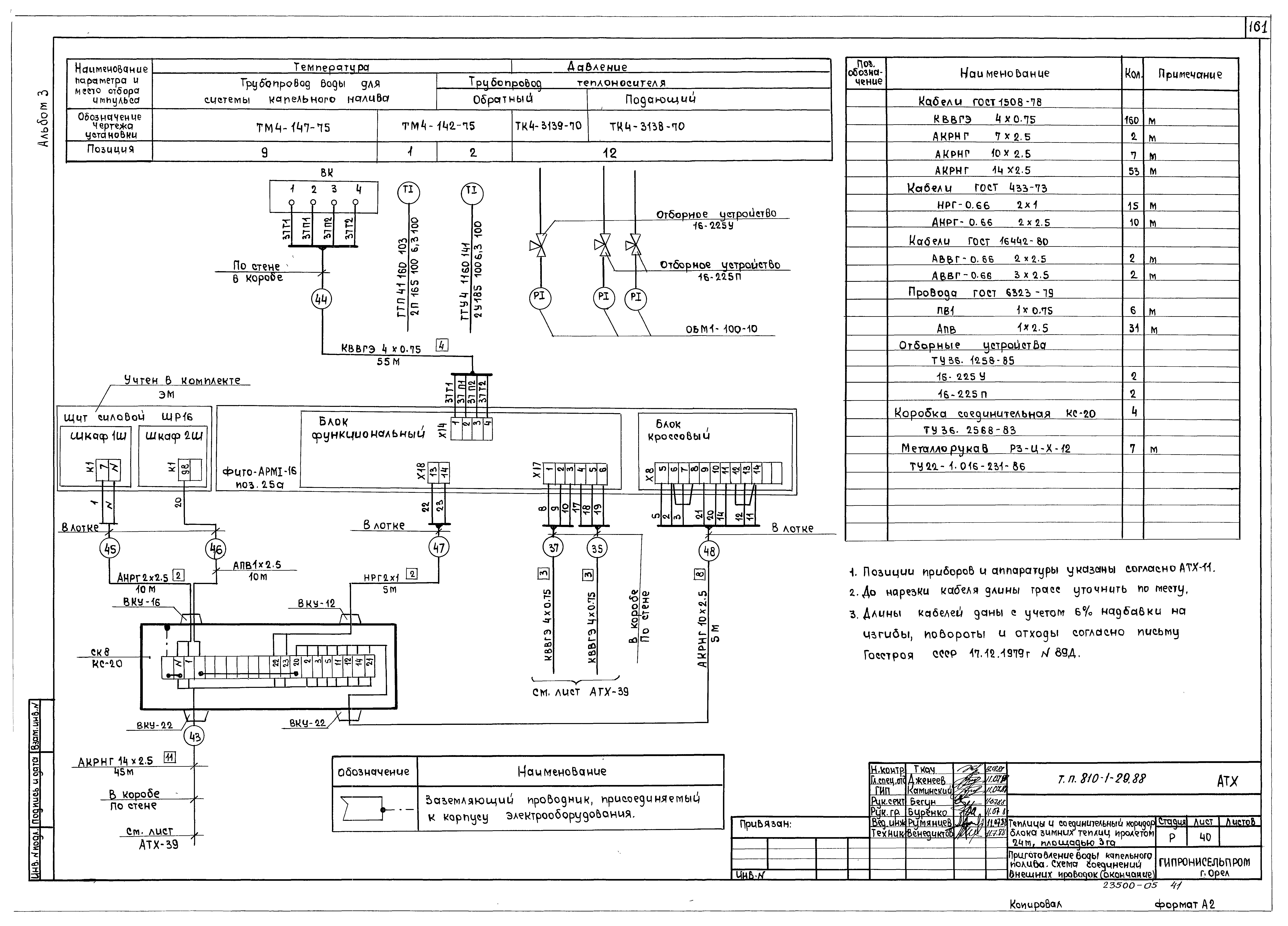
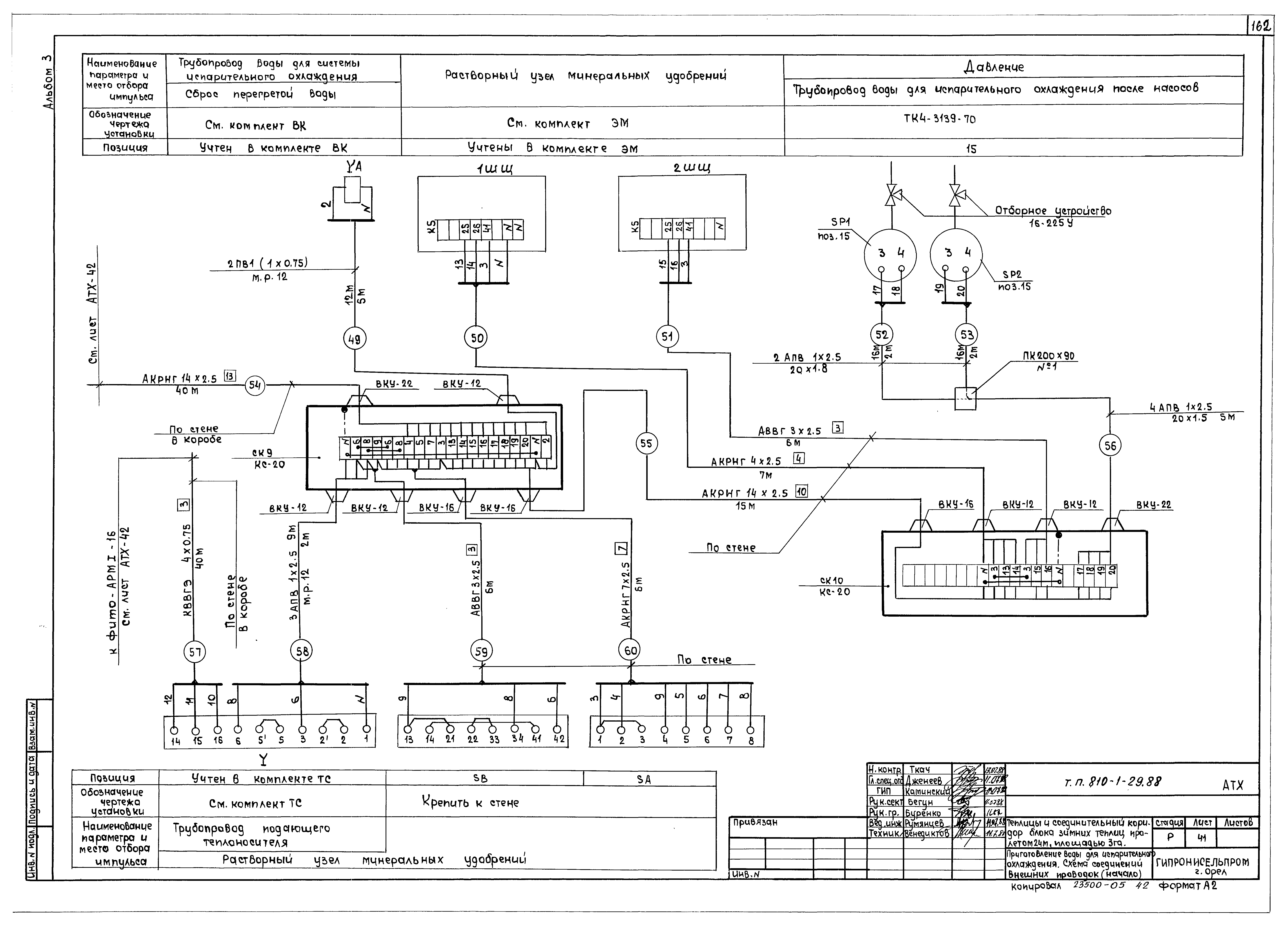
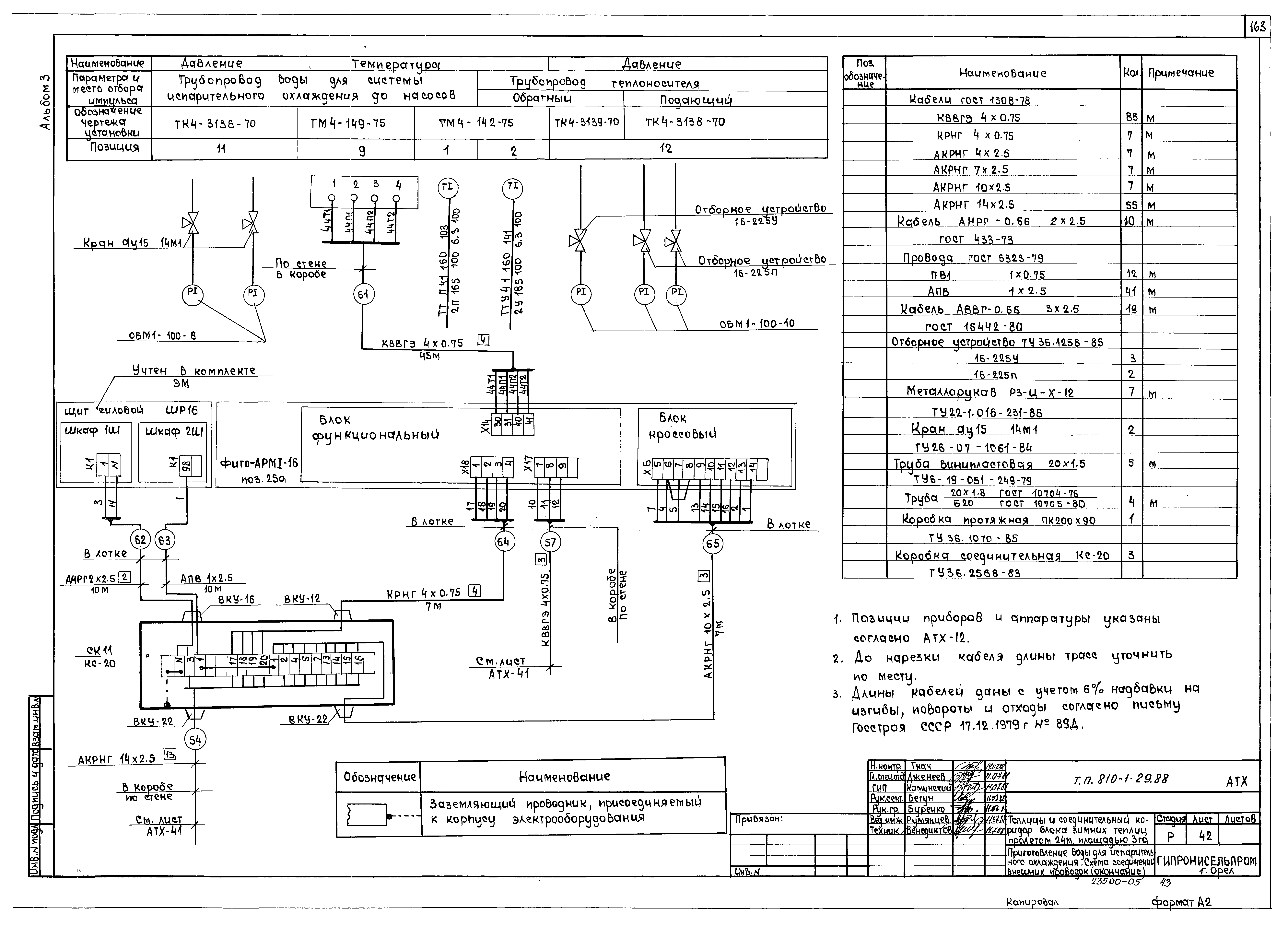
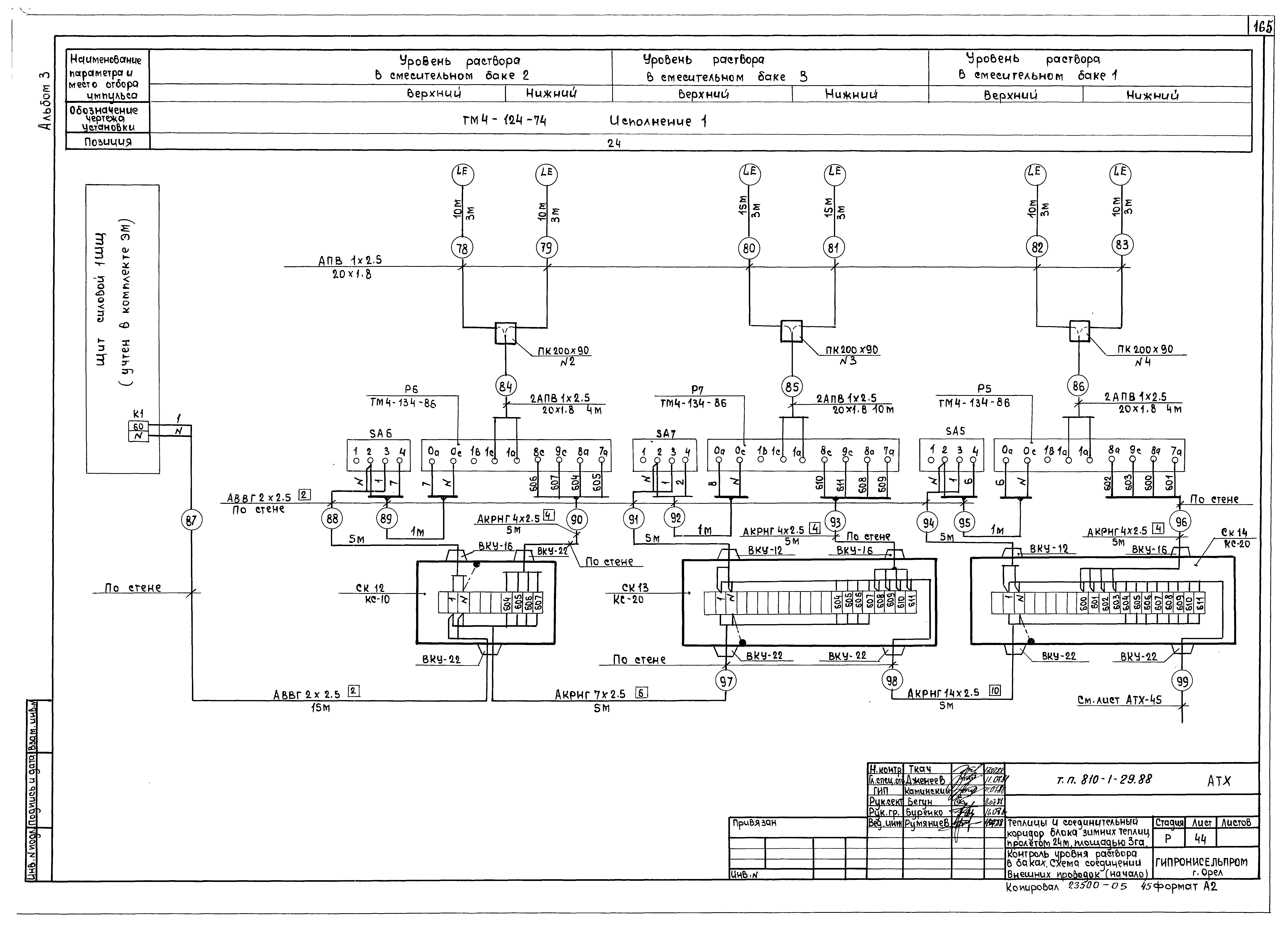
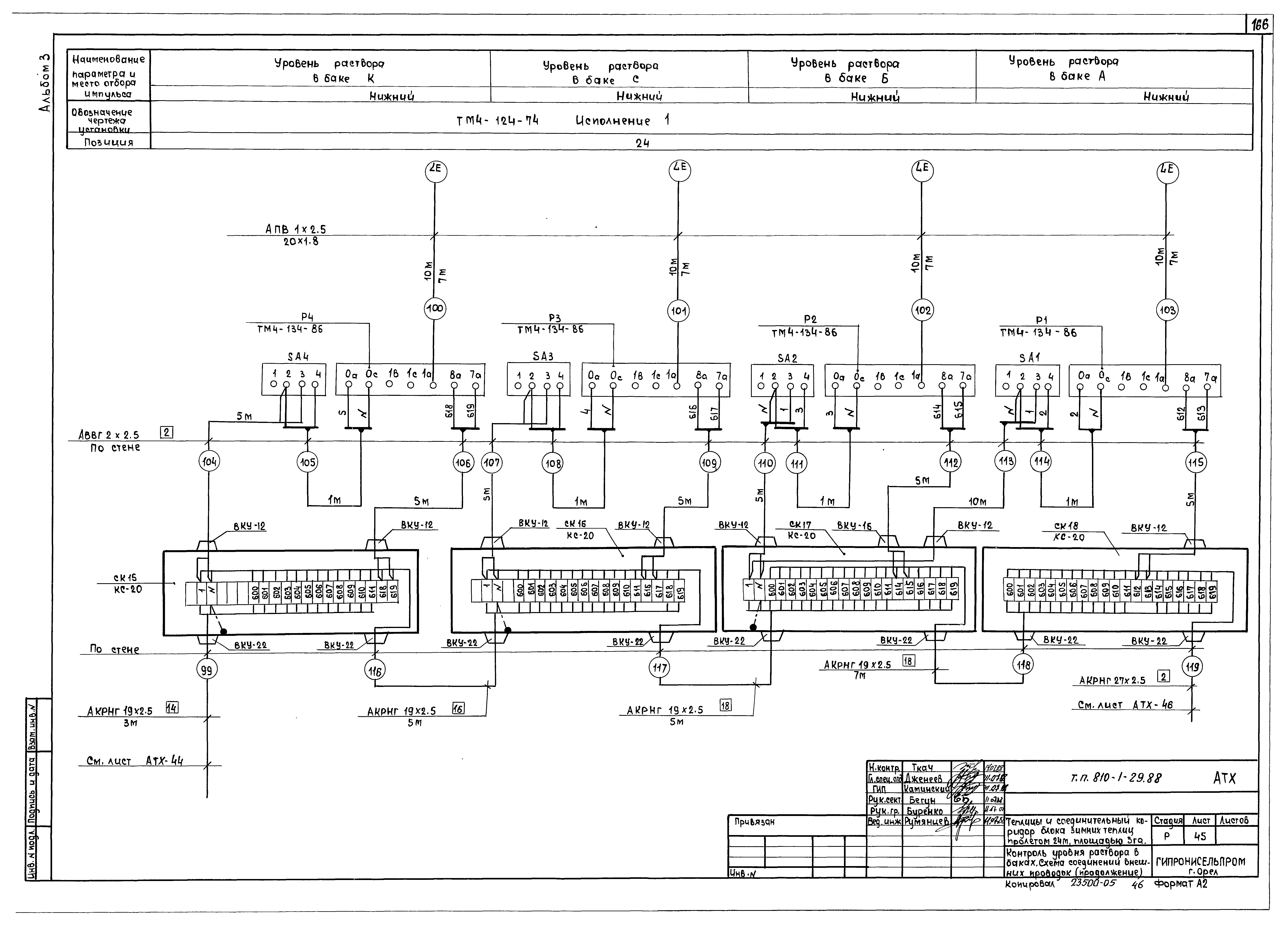
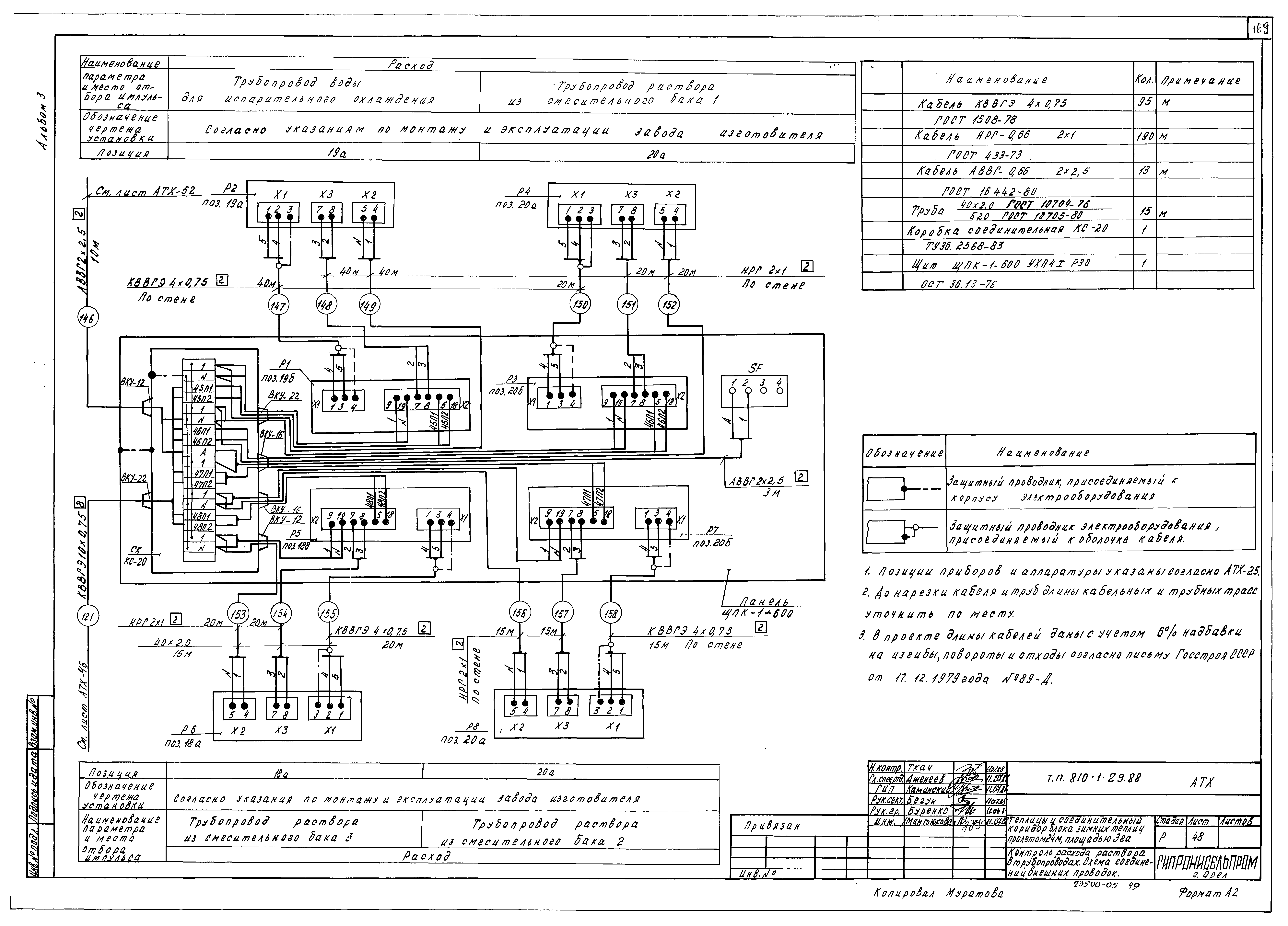
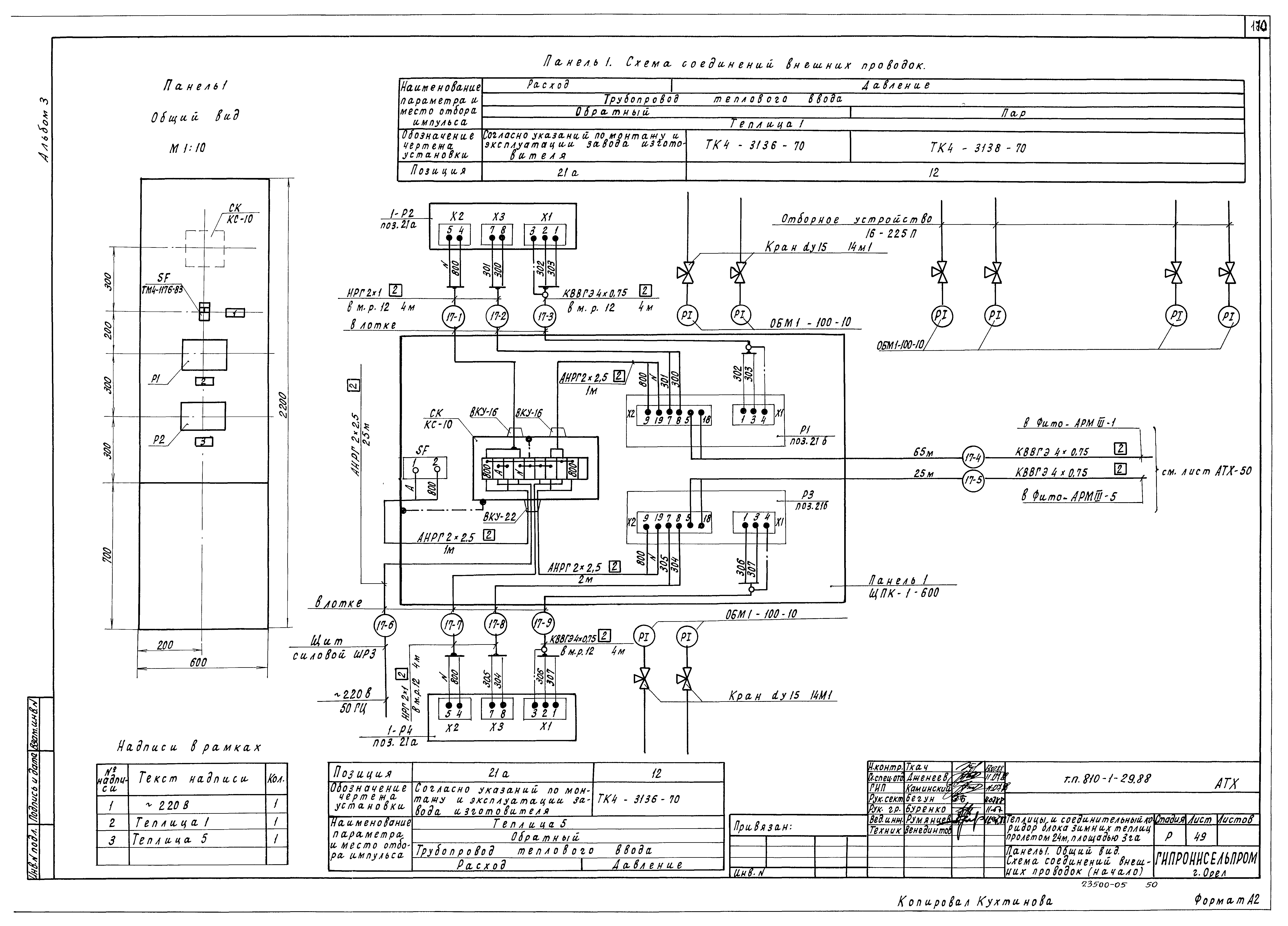
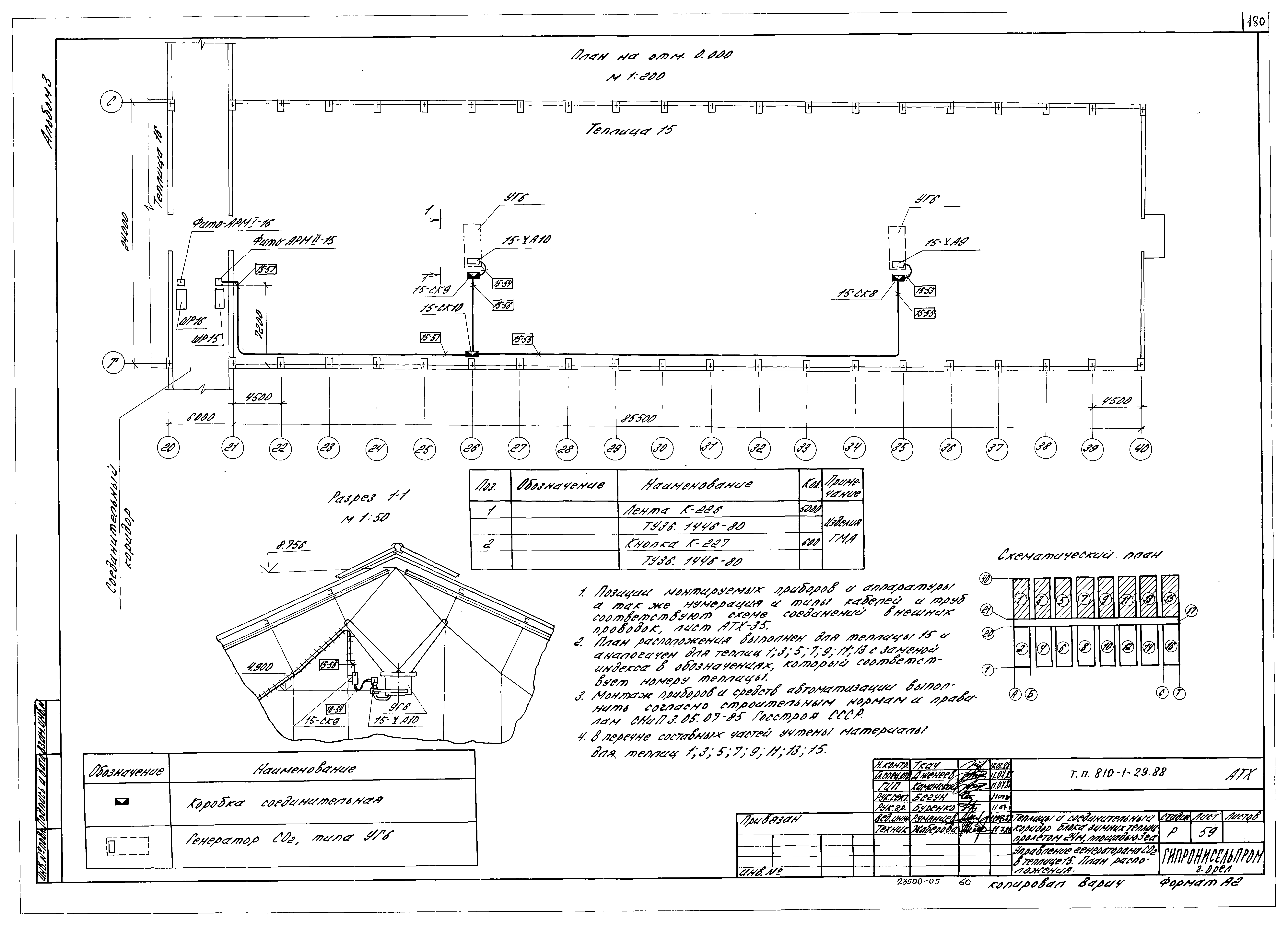
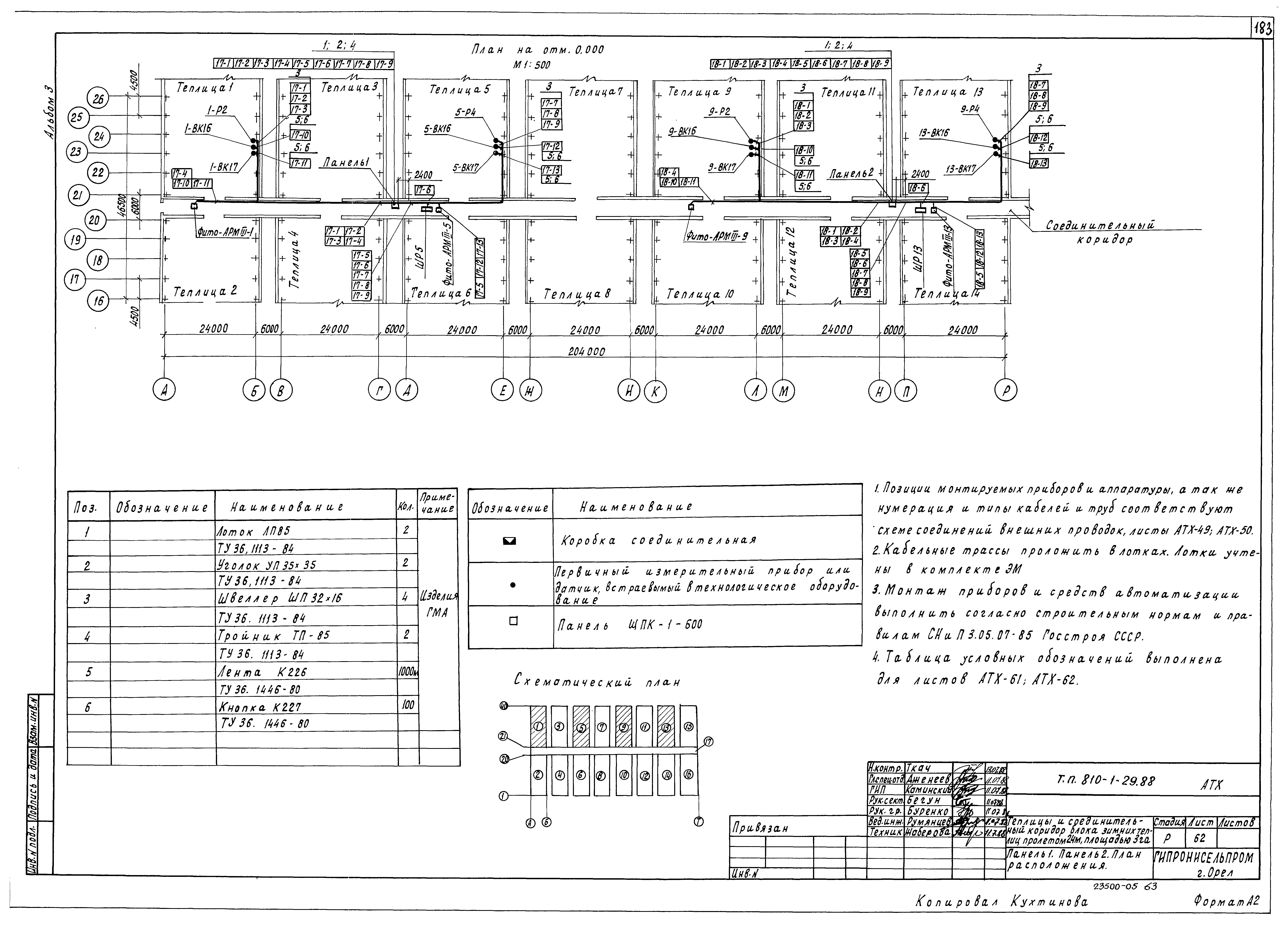
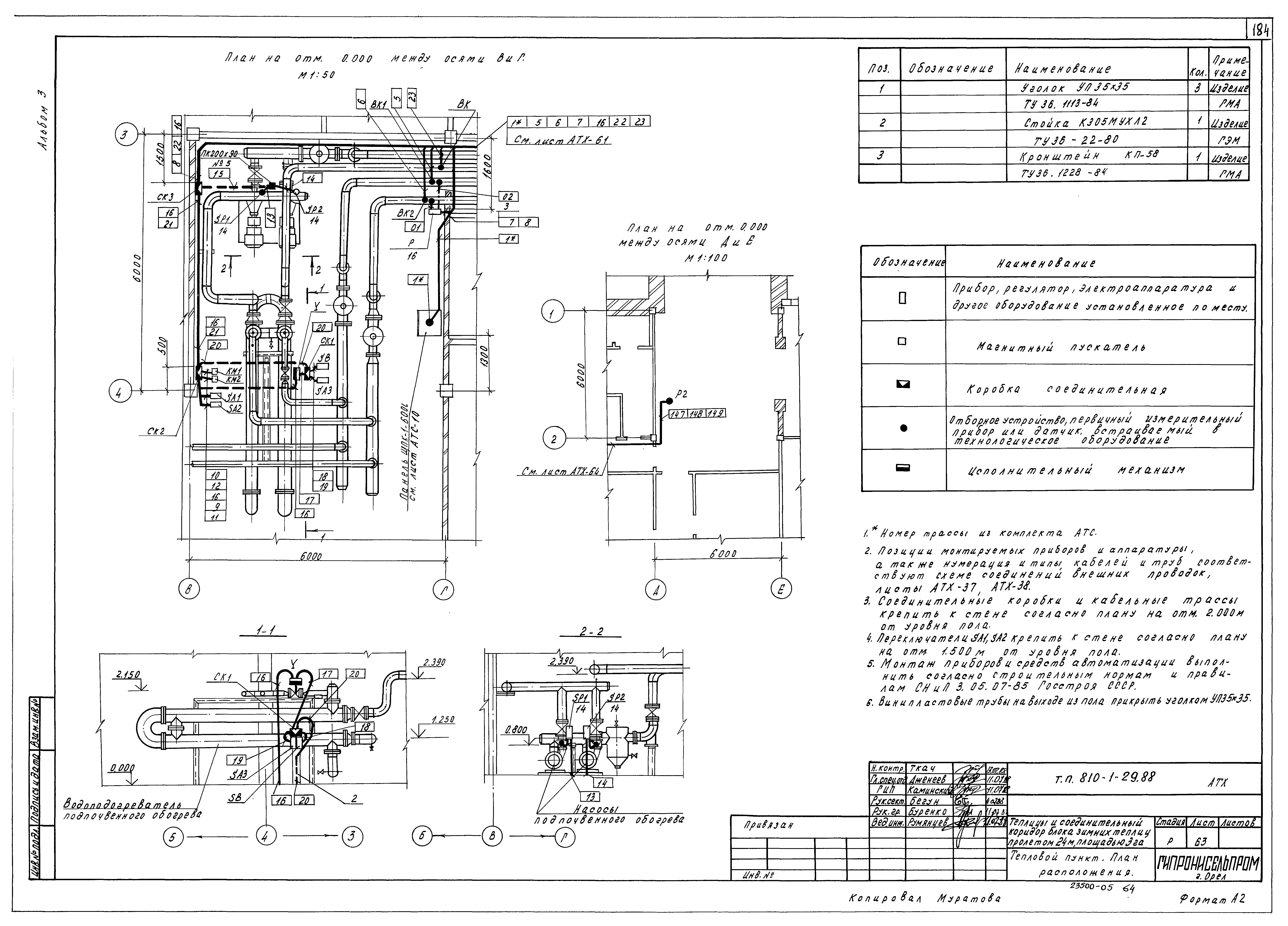
| Оглавление: | ТП 810-1-29.88 АТХ Общие данные (начало) ТП 810-1-29.88 АТХ Общие данные (продолжение) ТП 810-1-29.88 АТХ Общие данные (окончание) ТП 810-1-29.88 АТХ Регулирование температуры воздуха в теплице 16. Схема автоматизации (начало) ТП 810-1-29.88 АТХ Регулирование температуры воздуха в теплице 16. Схема автоматизации (продолжение) ТП 810-1-29.88 АТХ Регулирование температуры воздуха в теплице 16. Схема автоматизации (окончание) ТП 810-1-29.88 АТХ Управление капельным поливом, испарительным охлаждением генераторами СО2 в теплице 16. Метеомачта. Схема автоматизации ТП 810-1-29.88 АТХ Управление подпочвенным обогревом. Схема автоматизации ТП 810-1-29.88 АТХ Приготовление воды для капельного полива. Схема автоматизации ТП 810-1-29.88 АТХ Приготовление воды для испарительного охлаждения. Схема автоматизации ТП 810-1-29.88 АТХ Панель 1. Схема автоматизации ТП 810-1-29.88 АТХ Приготовление раствора капельного полива. Схема автоматизации (начало) ТП 810-1-29.88 АТХ Приготовление раствора капельного полива. Схема автоматизации (продолжение) ТП 810-1-29.88 АТХ Приготовление раствора капельного полива. Схема автоматизации (окончание) ТП 810-1-29.88 АТХ Управление микроклиматом в теплице 16. Схема электрическая принципиальная (начало) ТП 810-1-29.88 АТХ Управление микроклиматом в теплице 16. Схема электрическая принципиальная (окончание) ТП 810-1-29.88 АТХ Приготовление воды для подпочвенного обогрева. Схема электрическая принципиальная ТП 810-1-29.88 АТХ Приготовление воды для капельного полива. Схема электрическая принципиальная ТП 810-1-29.88 АТХ Приготовление воды для испарительного охлаждения. Схема электрическая принципиальная ТП 810-1-29.88 АТХ Панель 1. Схема электрическая принципиальная ТП 810-1-29.88 АТХ Контроль уровня раствора в банках. Схема электрическая принципиальная ТП 810-1-29.88 АТХ Контроль работы насосов. Схема электрическая принципиальная ТП 810-1-29.88 АТХ Панель. Общий вид. Цепи питания. Схема электрическая принципиальная ТП 810-1-29.88 АТХ Датчики температурного воздуха в теплице 16. Схема соединений внешних проводок ТП 810-1-29.88 АТХ Датчик температуры теплоносителя для теплицы 16. Схема соединений внешних проводок ТП 810-1-29.88 АТХ Датчик положения форточек в теплице 16. Схема соединений внешних проводок ТП 810-1-29.88 АТХ Датчик влажности воздуха в теплице 16. Схема соединений внешних проводок ТП 810-1-29.88 АТХ Контроль положения форточек и шпорного экрана в теплице 16. Схема соединений внешних проводок (начало) ТП 810-1-29.88 АТХ Контроль положения форточек и шпорного экрана в теплице 16. Схема соединений внешних проводок (окончание) ТП 810-1-29.88 АТХ Управление воздушным обогревом в теплице 16. Схема соединений внешних проводок (начало) ТП 810-1-29.88 АТХ Управление воздушным обогревом в теплице 16. Схема соединений внешних проводок (окончание) ТП 810-1-29.88 АТХ Управление капельным поливом и испарительным охлаждением. Схема соединений внешних проводок ТП 810-1-29.88 АТХ Управление генераторами СО2 в теплице 16. Схема соединений внешних проводок ТП 810-1-29.88 АТХ Метеомачта. Тепловой ввод. Схема соединений внешних проводок ТП 810-1-29.88 АТХ Управление подпочвенным обогревом. Схема соединений внешних проводок (начало) ТП 810-1-29.88 АТХ Управление подпочвенным обогревом. Схема соединений внешних проводок (окончание) ТП 810-1-29.88 АТХ Приготовление воды для капельного полива. Схема соединений внешних проводок (начало) ТП 810-1-29.88 АТХ Приготовление воды для капельного полива. Схема соединений внешних проводок (окончание) ТП 810-1-29.88 АТХ Приготовление воды для испарительного охлаждения. Схема соединений внешних проводок (начало) ТП 810-1-29.88 АТХ Приготовление воды для испарительного охлаждения. Схема соединений внешних проводок (окончание) ТП 810-1-29.88 АТХ Контроль концентрации раствора в баках. Схема соединений внешних проводок ТП 810-1-29.88 АТХ Контроль уровня концентрации раствора в баках. Схема соединений внешних проводок (начало) ТП 810-1-29.88 АТХ Контроль уровня концентрации раствора в баках. Схема соединений внешних проводок (продолжение) ТП 810-1-29.88 АТХ Контроль уровня концентрации раствора в баках. Схема соединений внешних проводок (окончание) ТП 810-1-29.88 АТХ Контроль работы насосов. Схема соединений внешних проводок ТП 810-1-29.88 АТХ Контроль расхода раствора в трубопроводах. Схема соединений внешних проводок ТП 810-1-29.88 АТХ Панель 1. Общий вид. Схема соединений внешних проводок (начало) ТП 810-1-29.88 АТХ Панель 1. Схема соединений внешних проводок (окончание) ТП 810-1-29.88 АТХ Фито-АРМI-16. Силовой щит ШР16. Схема соединений внешних проводок ТП 810-1-29.88 АТХ Фито-АРМI-16. Щиты силовые 1ШЩ;2ШЩ;3ШЩ. Схема соединений внешних проводок ТП 810-1-29.88 АТХ Регулирование перепада давления теплоносителя на вводе в теплицу 16. Схема соединений внешних проводок ТП 810-1-29.88 АТХ Контрольно-измерительные приборы в теплице 16. Схема соединений внешних проводок ТП 810-1-29.88 АТХ Теплица 13. План расположения ТП 810-1-29.88 АТХ Теплица 14. План расположения ТП 810-1-29.88 АТХ Теплица 15. План расположения ТП 810-1-29.88 АТХ Теплица 16. План расположения ТП 810-1-29.88 АТХ Управление генераторами СО2 в теплице 15. План расположения ТП 810-1-29.88 АТХ Управление генераторами СО2 в теплице 16. План расположения ТП 810-1-29.88 АТХ Соединительный коридор. План расположения ТП 810-1-29.88 АТХ Панель 1. Панель 2. План расположения ТП 810-1-29.88 АТХ Тепловой пункт. План расположения ТП 810-1-29.88 АТХ Растворный узел минеральных удобрений. План расположения ТП 810-1-29.88 АТХ Регулятор РД-3М. План расположения ТП 810-1-29.88 АТХ Световод. План расположения ТП 810-1-29.88 АТХ Короба. Световод. План расположения |
| Разработан: | Гипронисельпром Госагропрома СССР |
| Утверждён: | 15.07.1987 Госагропром СССР (USSR Gosagroprom 549) |



































































