Скачать Типовой проект 810-1-29.88 Альбом 6. Часть 1. Механизм подъема регистров надпочвенного обогрева. Тележка для сбора овощей. Система подвески монорельсов. Устройство для обслуживания кровлиДата актуализации: 01.01.2021
|
| Обозначение: | Типовой проект 810-1-29.88 |
| Обозначение англ: | 810-1-29.88 |
| Статус: | не определен законодательством |
| Название рус.: | Альбом 6. Часть 1. Механизм подъема регистров надпочвенного обогрева. Тележка для сбора овощей. Система подвески монорельсов. Устройство для обслуживания кровли |
| Дата добавления в базу: | 01.09.2013 |
| Дата актуализации: | 01.01.2021 |
| Дата введения: | 18.10.1988 |
| Дата окончания срока действия: | 30.06.2003 |
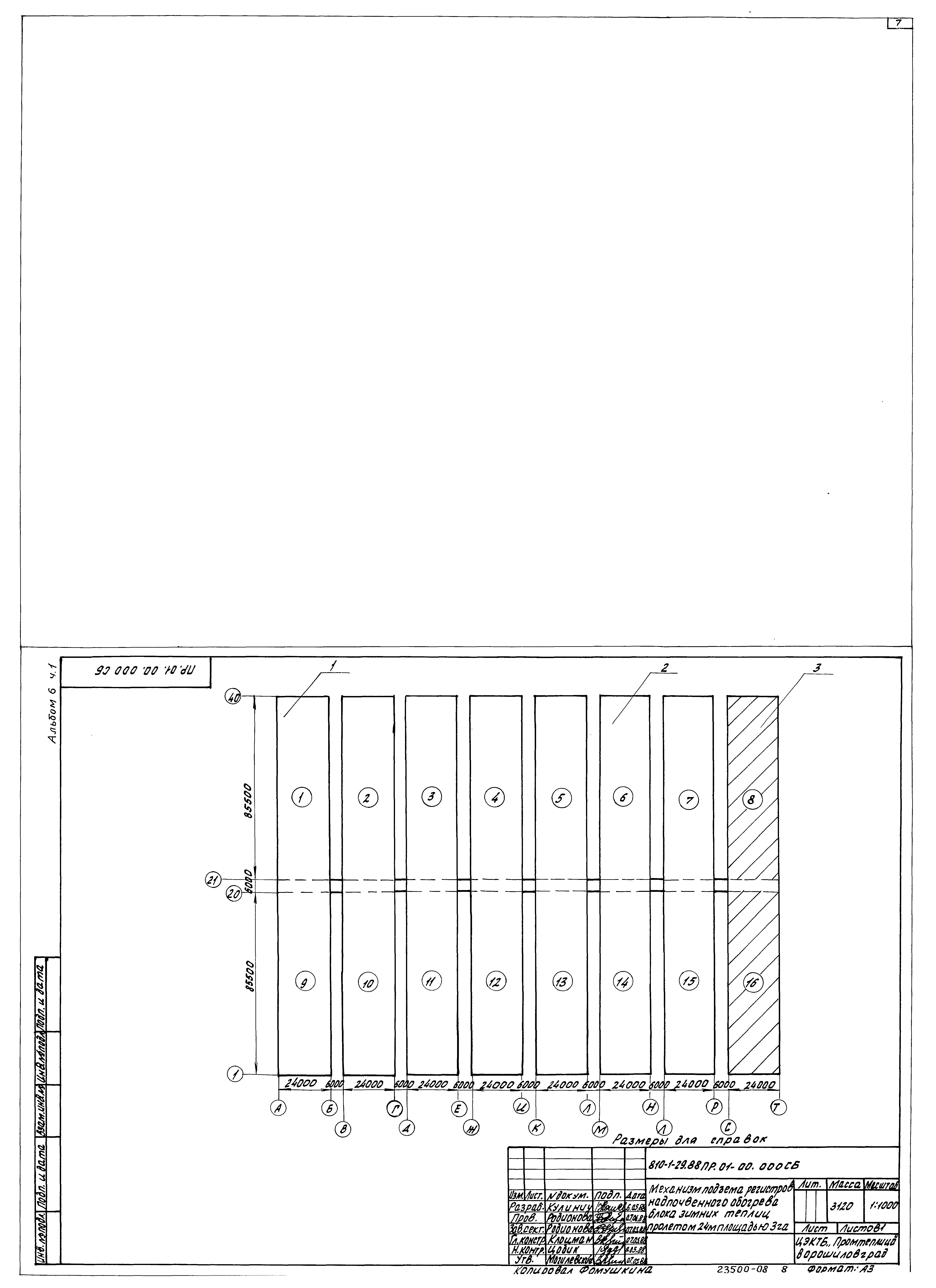
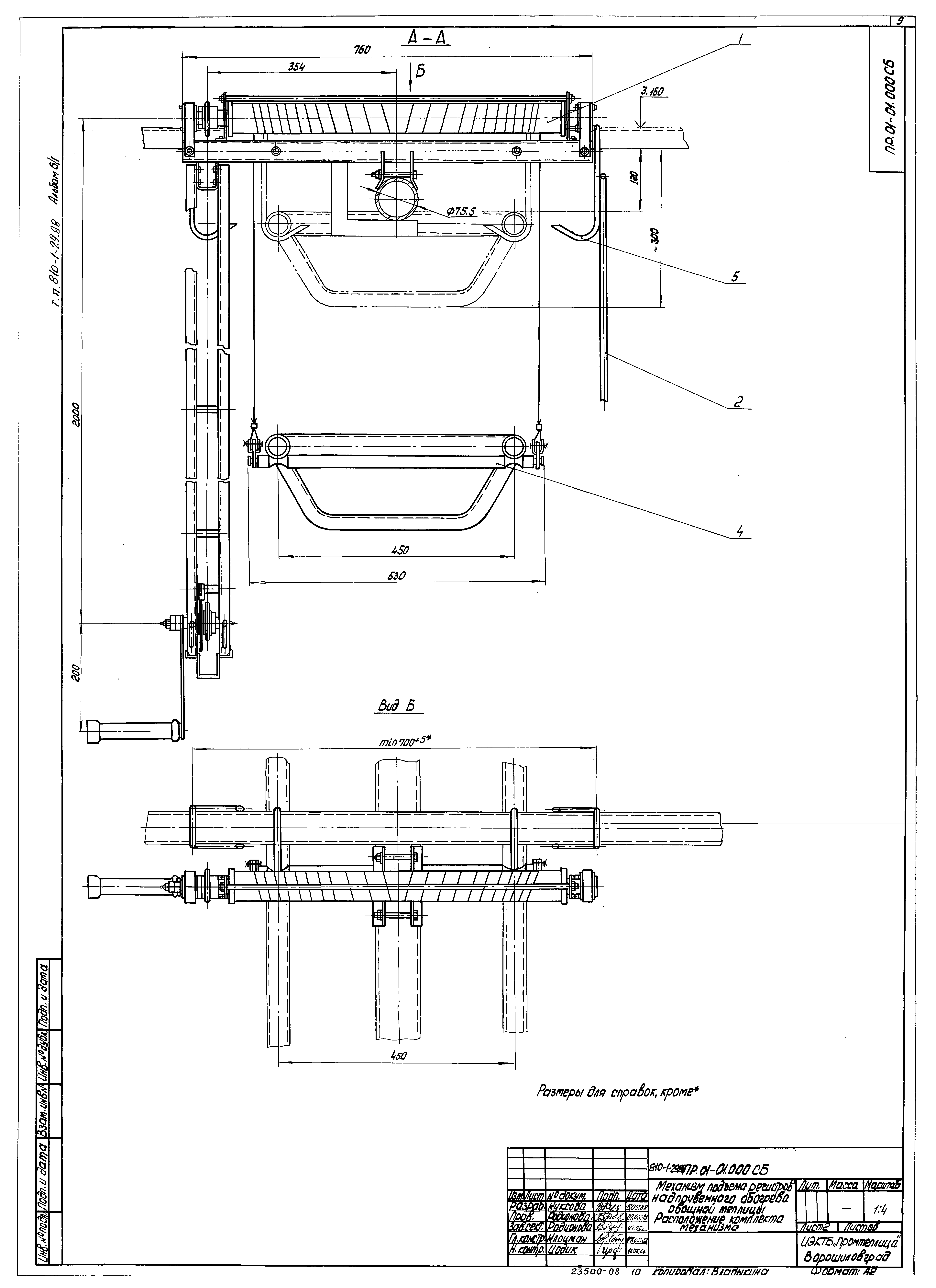
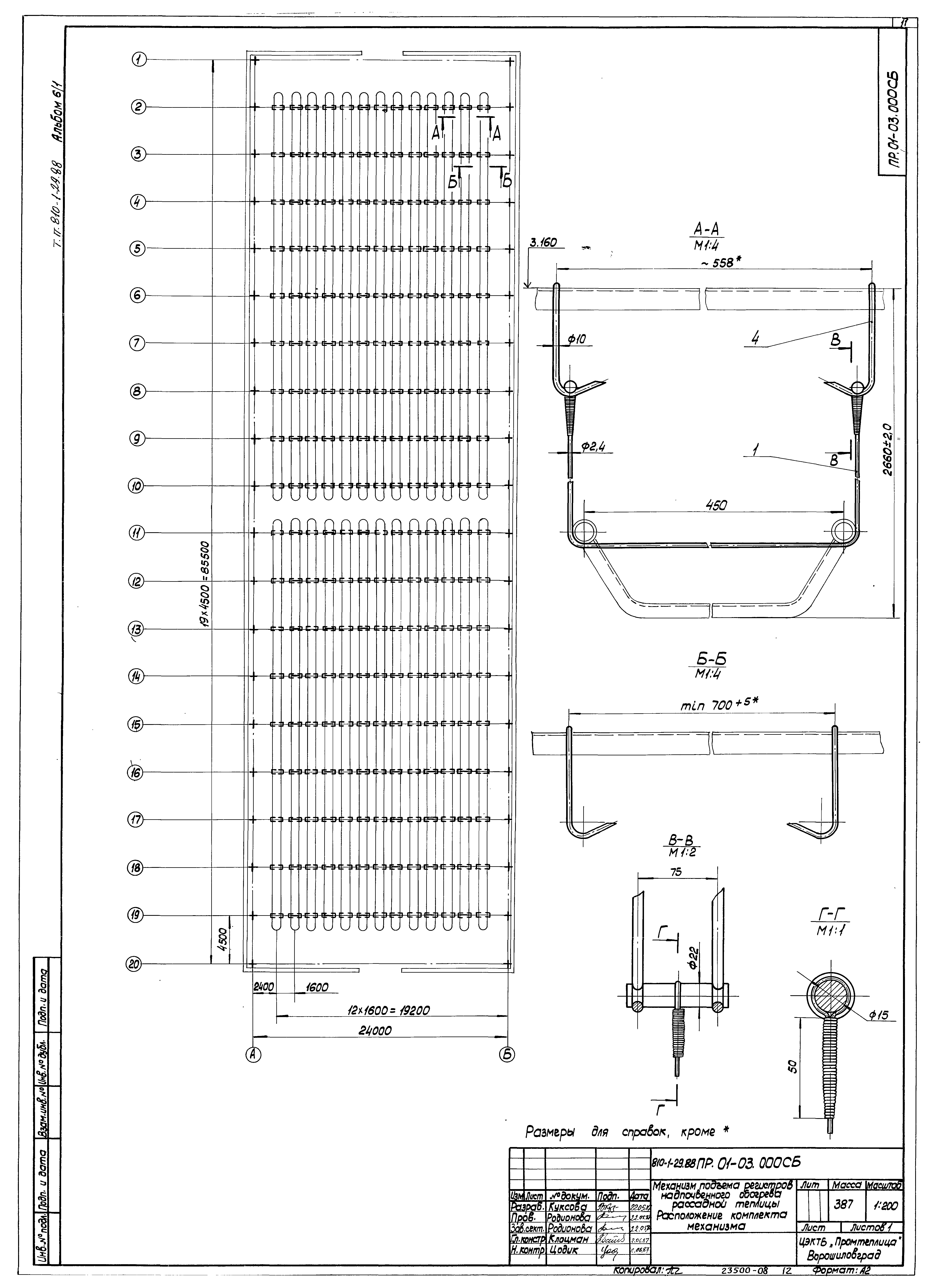
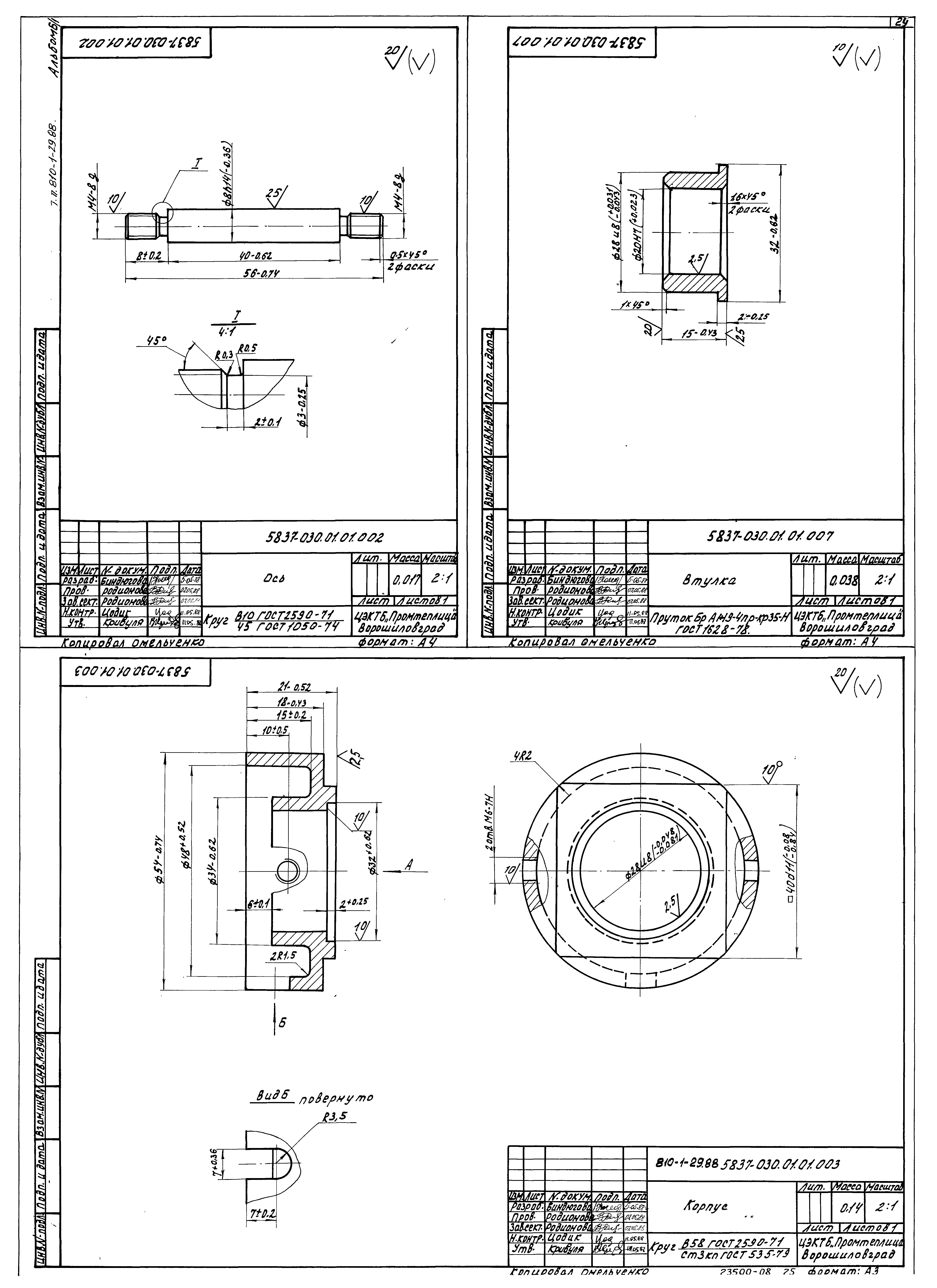
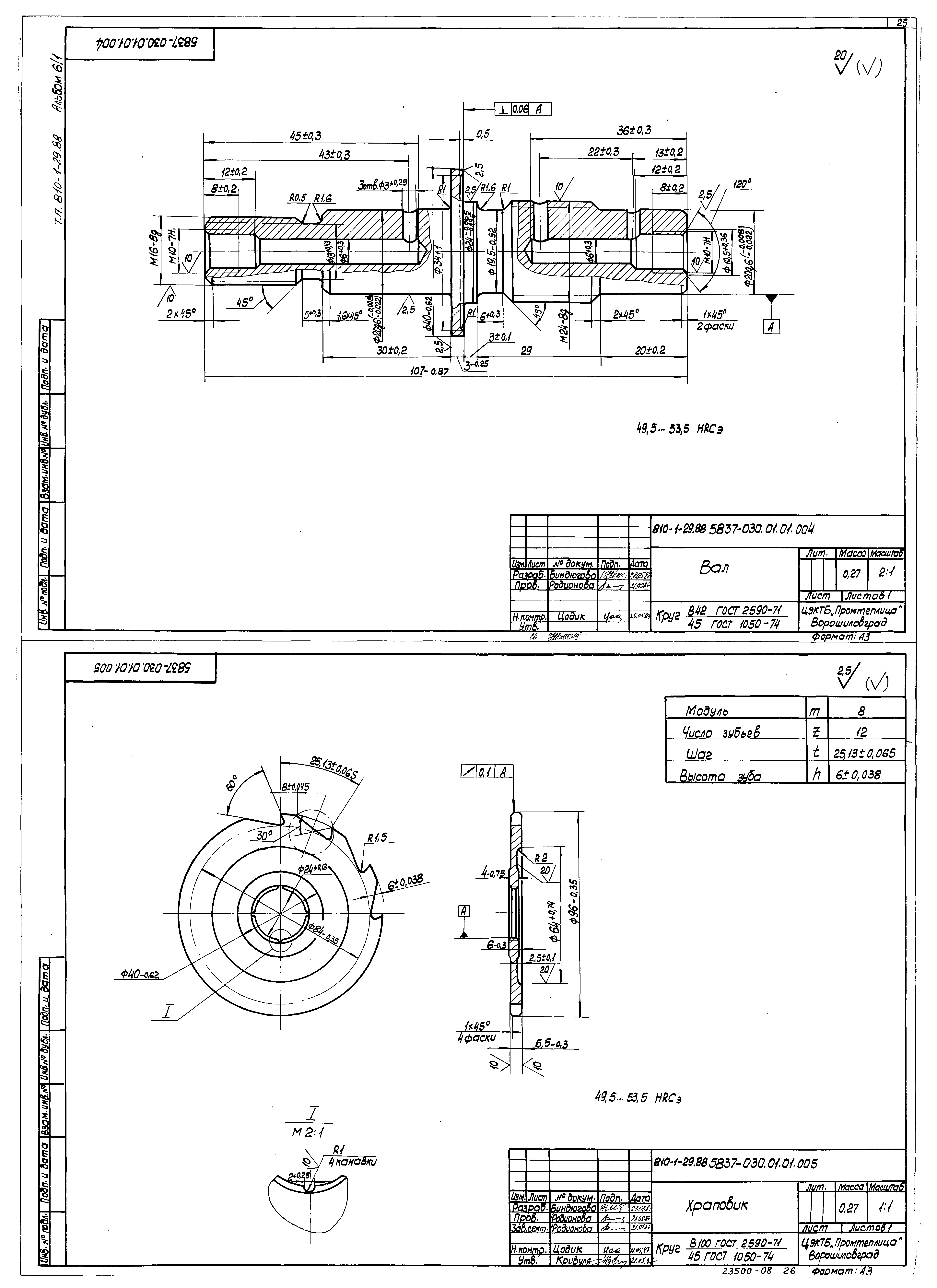
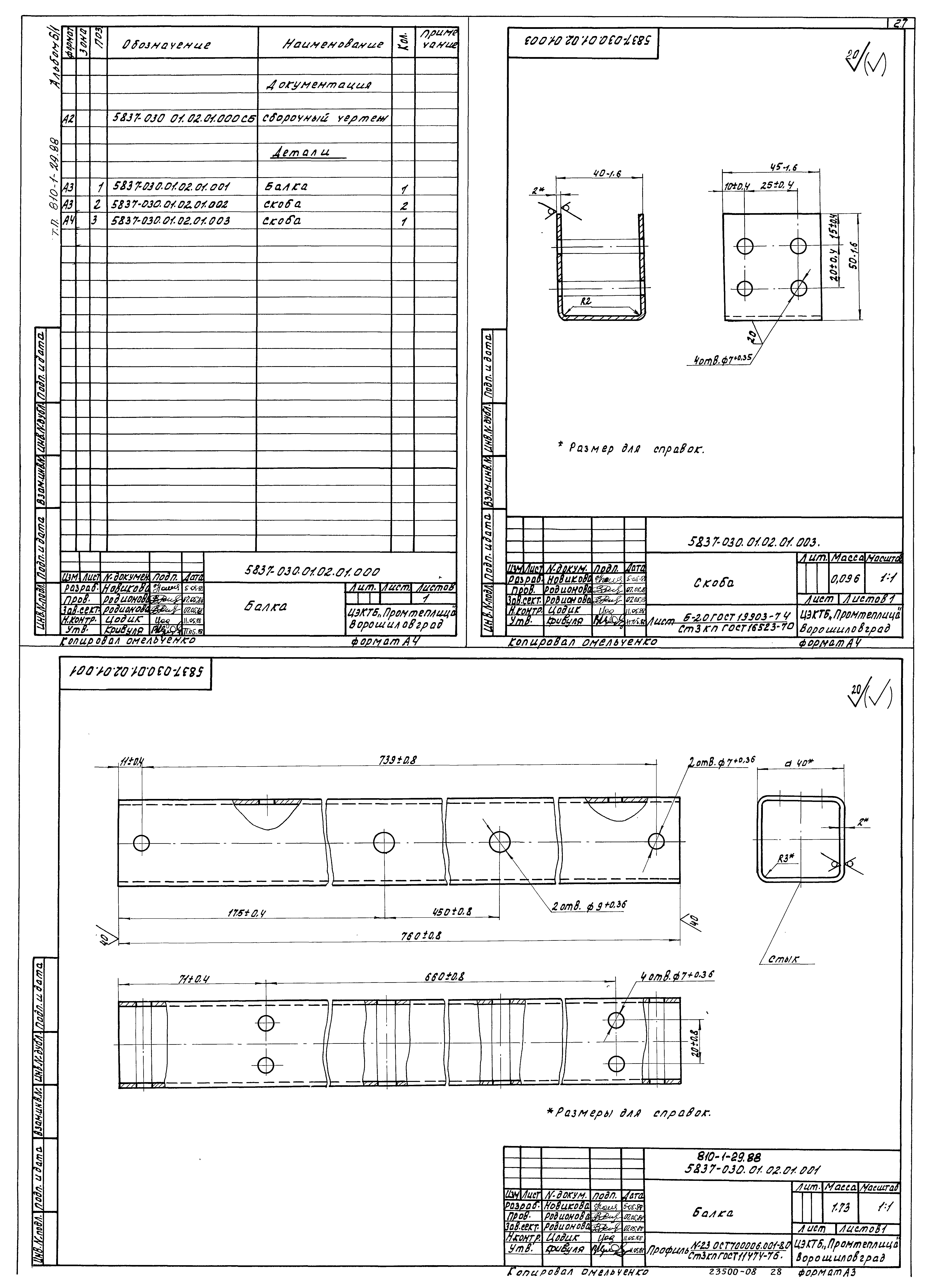
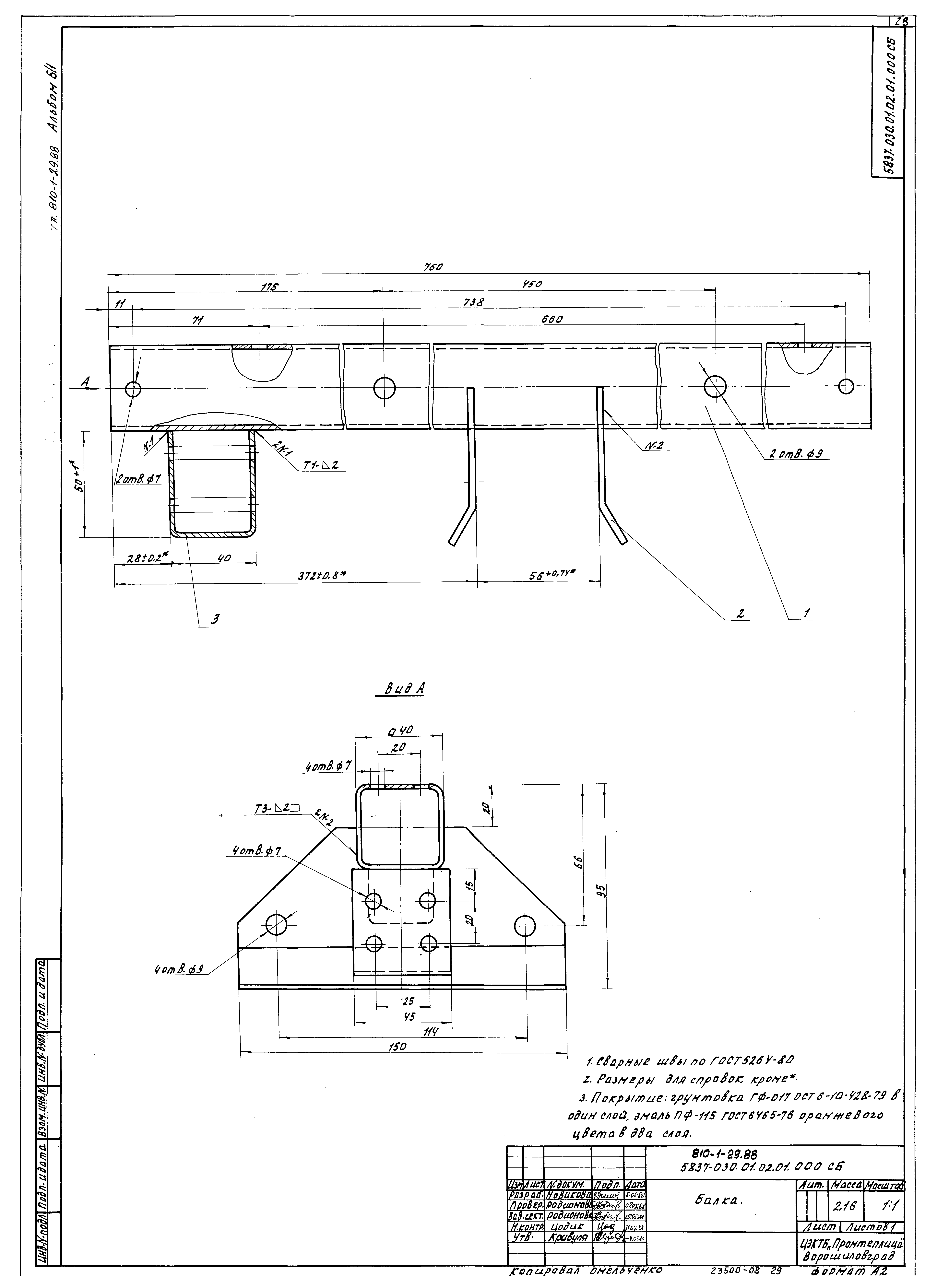
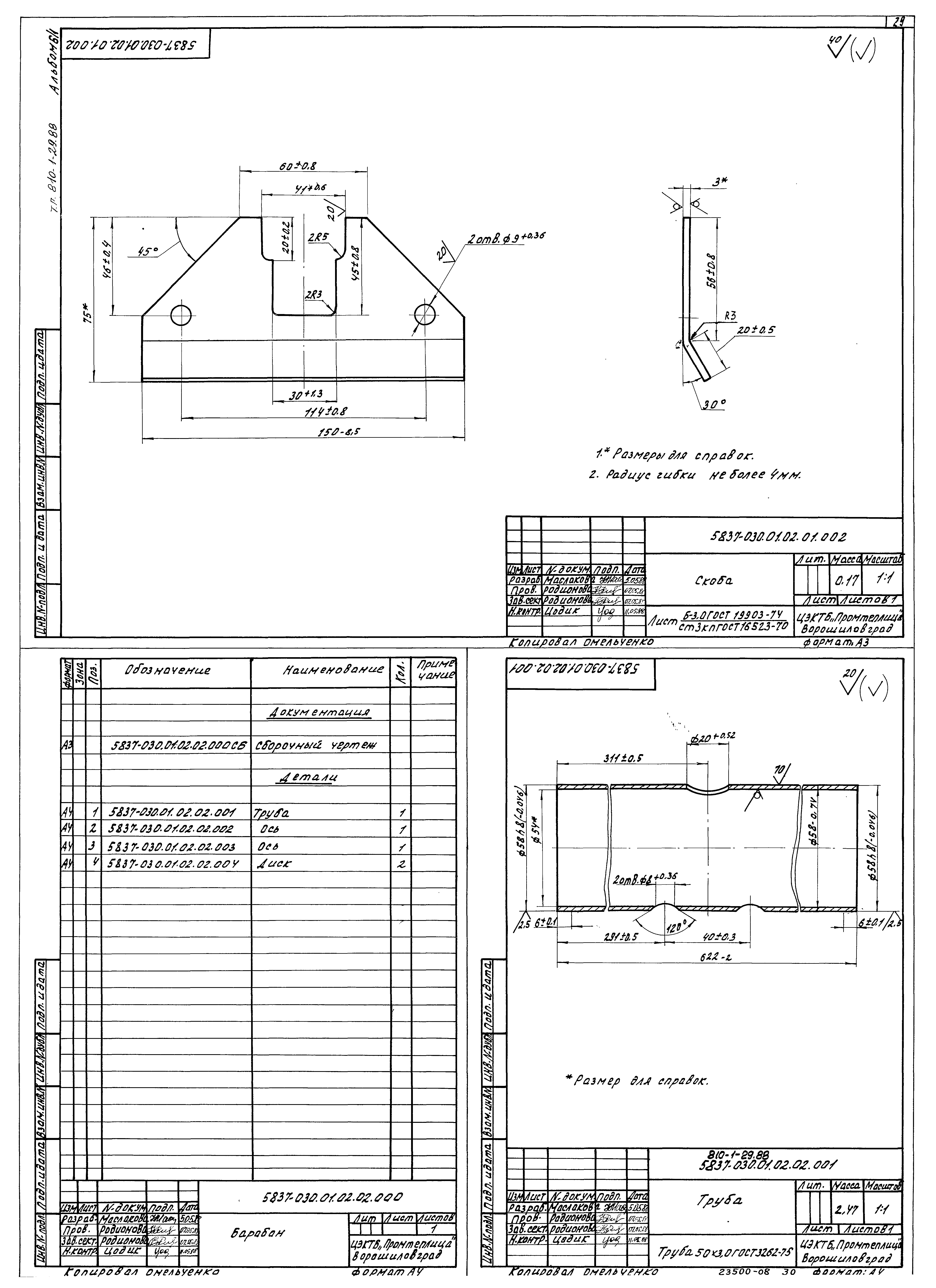
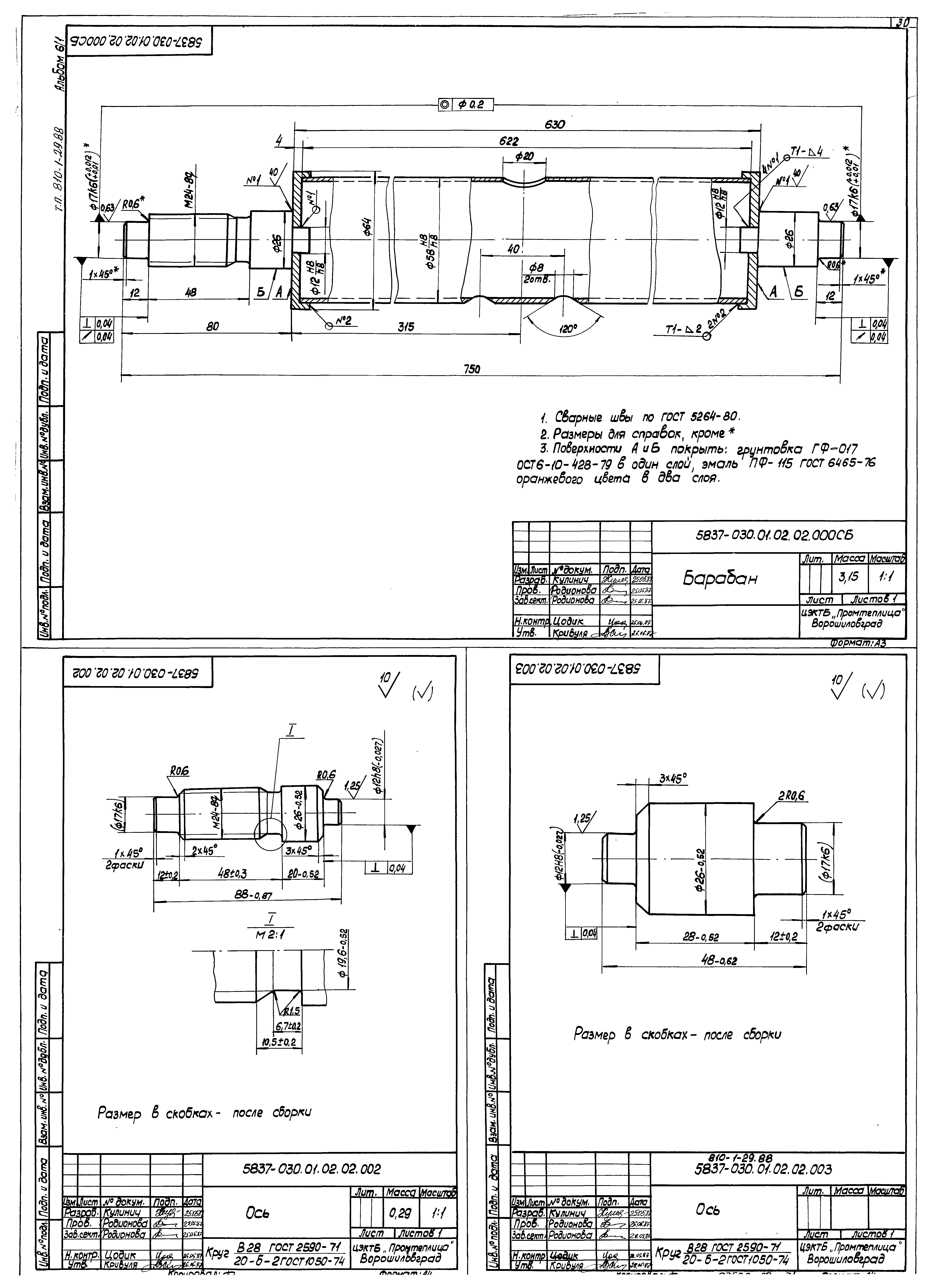
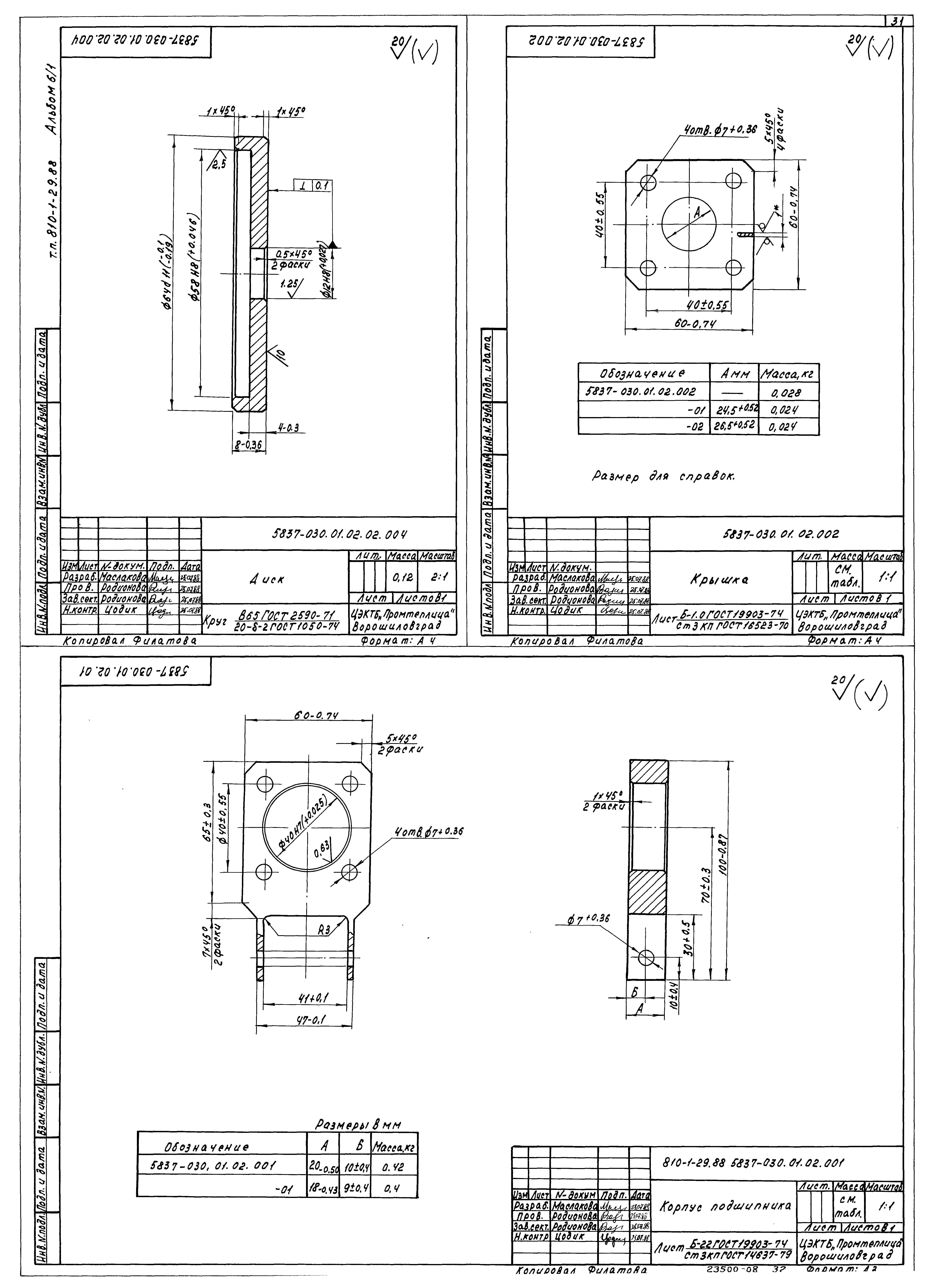
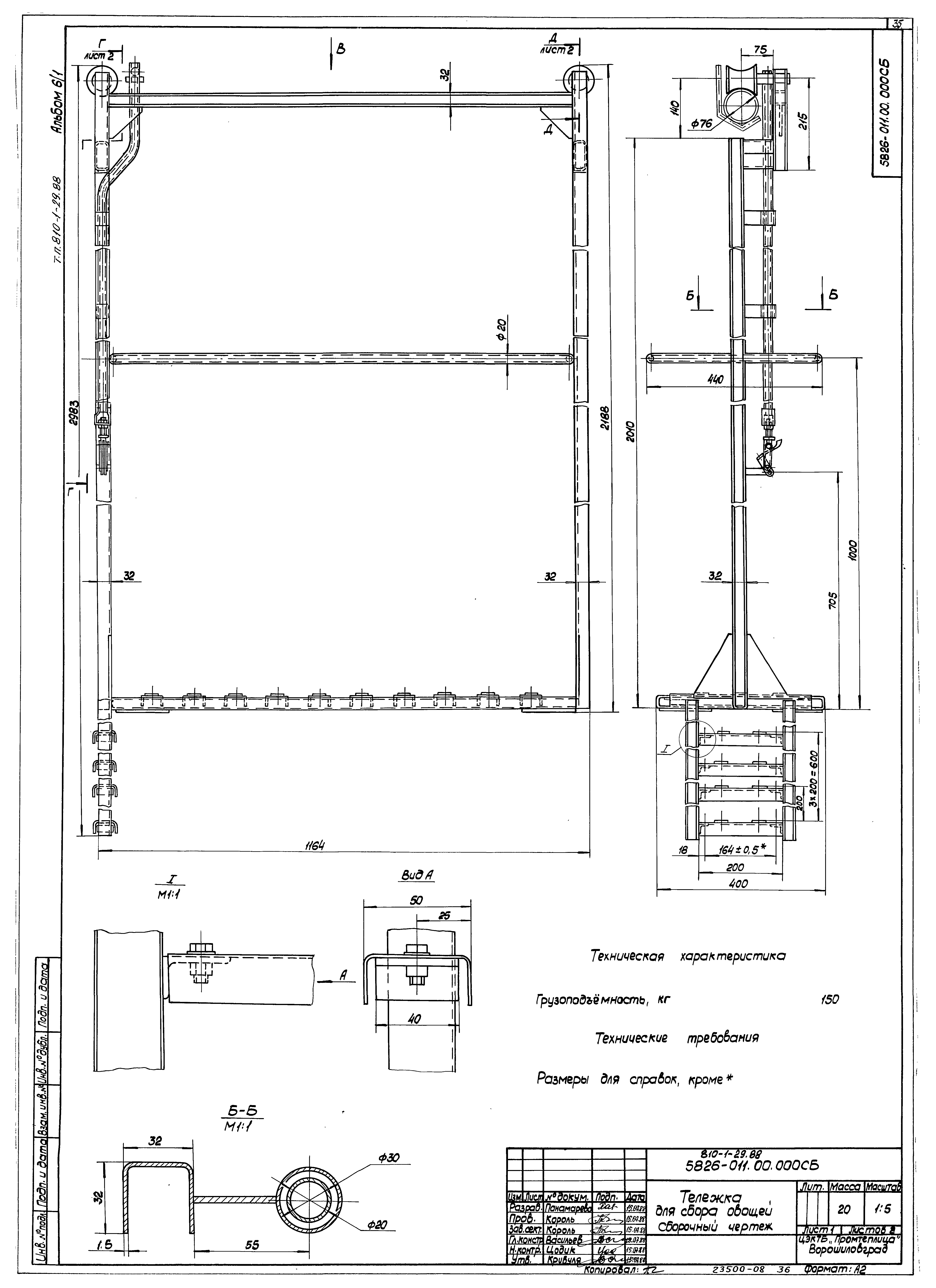
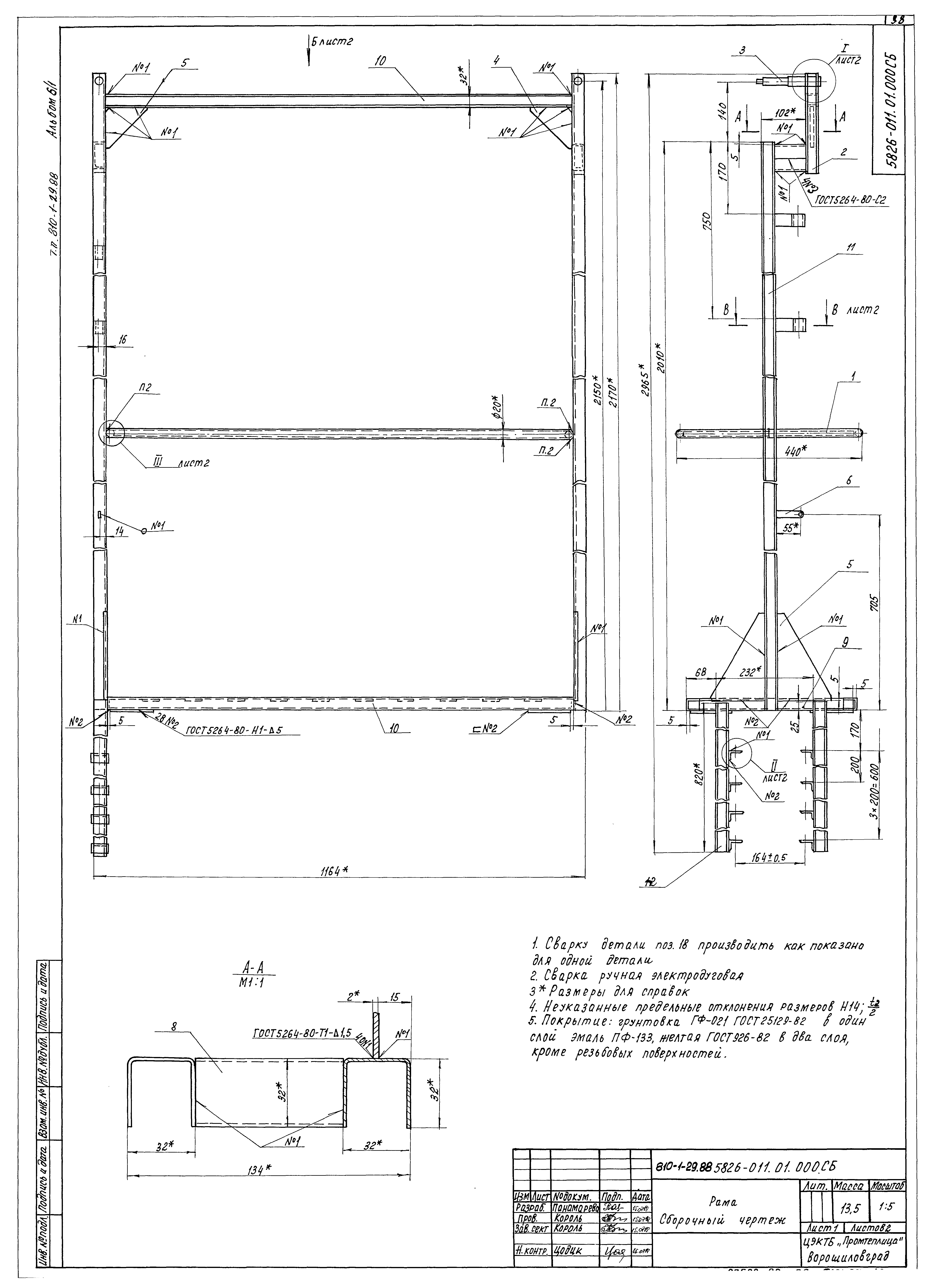
| Оглавление: | ТП 810-1-29.88 Содержание альбома ТП 810-1-29.88 ПР01-00.000 ИЭ Механизм подъема регистров надпочвенного обогрева ангарной теплицы пролетом 24 м. Инструкция по эксплуатации ТП 810-1-29.88 ПР01-00.000 ИЭ Механизм подъема регистров надпочвенного обогрева зимних теплиц пролетом 24 м пл 32а. Расположение комплекта механизма ТП 810-1-29.88 ПР01-00.000 СБ Механизм регистров надпочвенного обогрева блока зимних теплиц пролетом 24 м пл.32а ТП 810-1-29.88 ПР01-00.000 СБ Механизм регистров надпочвенного обогрева овощной теплицы. Расположение комплекта механизма ТП 810-1-29.88 ПР01-01.000 СБ Механизм подъема регистров надпочвенного обогрева овощной теплицы. Расположение комплекта механизма. Сборочный чертеж ТП 810-1-29.88 ПР01-02.000 СБ Механизм подъема регистров надпочвенного обогрева овощной теплицы. Расположение комплекта механизма. Сборочный чертеж ТП 810-1-29.88 ПР01-03.000 СБ Механизм подъема регистров надпочвенного обогрева рассадной теплицы. Расположение комплекта механизма. Сборочный чертеж Инструкция по эксплуатации ТП 810-1-29.88 5837-030.01.00.000 Лебедка. Спецификация ТП 810-1-29.88 5837-030.01.01.000 Привод. Спецификация ТП 810-1-29.88 5837-030.01.01.000 Кронштейн. Спецификация ТП 810-1-29.88 5837-030.01.00.000 СБ Лебедка. Сборочный чертеж ТП 810-1-29.88 5837-030.01.01.000 СБ Привод. Сборочный чертеж ТП 810-1-29.88 5837-030.01.01.01.000 СБ Кронштейн. Сборочный чертеж ТП 810-1-29.88 5837-030.01.01.01.001 Ось ТП 810-1-29.88 5837-030.01.01.01.002 Планка ТП 810-1-29.88 5837-030.01.01.01.003 Банка ТП 810-1-29.88 5837-030.01.01.010 Рукоятка ТП 810-1-29.88 5837-030.01.02.000 Барабан в сборе. Спецификация ТП 810-1-29.88 5837-030.01.02.000 СБ Барабан в сборе. Сборочный чертеж ТП 810-1-29.88 5837-030.02.00.000 Толкатель. Спецификация ТП 810-1-29.88 5837-030.01.00.000 СБ Толкатель. Сборочный чертеж ТП 810-1-29.88 5837-030.02.00.001 Валик ТП 810-1-29.88 5837-030.02.00.002 Труба ТП 810-1-29.88 5837-030.02.00.003 Крюк ТП 810-1-29.88 5837-030.02.00.004 Планка ТП 810-1-29.88 5837-030.03.00.000 Подвеска. Спецификация ТП 810-1-29.88 5837-030.03.00.001 Ось ТП 810-1-29.88 5837-030.03.00.000 СБ Подвеска. Сборочный чертеж ТП 810-1-29.88 5837-030.00.00.001 Траверса ТП 810-1-29.88 5837-030.00.00.002 Крюк ТП 810-1-29.88 5837-030.01.01.02.000 Скоба. Спецификация ТП 810-1-29.88 5837-030.01.01.02.000 СБ Скоба. Сборочный чертеж ТП 810-1-29.88 5837-030.01.01.02.001 Скоба ТП 810-1-29.88 5837-030.01.01.02.002 Скоба ТП 810-1-29.88 5837-030.01.01.03.000 Собачка. Спецификация ТП 810-1-29.88 5837-030.01.01.03.000 СБ Собачка. Сборочный чертеж ТП 810-1-29.88 5837-030.01.01.03.001 Кронштейн ТП 810-1-29.88 5837-030.01.01.03.002 Клин ТП 810-1-29.88 5837-030.01.01.001 Кронштейн ТП 810-1-29.88 5837-030.01.01.002 Ось ТП 810-1-29.88 5837-030.01.01.007 Втулка ТП 810-1-29.88 5837-030.01.01.003 Корпус ТП 810-1-29.88 5837-030.01.01.004 Вал ТП 810-1-29.88 5837-030.01.01.005 Храповик ТП 810-1-29.88 5837-030.01.01.006 Звездочка ТП 810-1-29.88 5837-030.01.01.008 Втулка ТП 810-1-29.88 5837-030.01.01.009 Втулка ТП 810-1-29.88 5837-030.01.02.01.000 Балка. Спецификация ТП 810-1-29.88 5837-030.01.02.01.003 Скоба ТП 810-1-29.88 5837-030.01.02.01.001 Балка ТП 810-1-29.88 5837-030.01.02.01.000СБ Балка. Сборочный чертеж ТП 810-1-29.88 5837-030.01.02.01.002 Скоба ТП 810-1-29.88 5837-030.01.02.02.000 Барабан. Спецификация ТП 810-1-29.88 5837-030.01.02.02.001 Труба ТП 810-1-29.88 5837-030.01.02.02.000 СБ Барабан. Сборочный чертеж ТП 810-1-29.88 5837-030.01.02.02.002 Ось ТП 810-1-29.88 5837-030.01.02.02.003 Ось ТП 810-1-29.88 5837-030.01.02.02.004 Диск ТП 810-1-29.88 5837-030.01.02.002 Крышка ТП 810-1-29.88 5837-030.01.02.001 Корпус подшипника ТП 810-1-29.88 5837-030.01.02.003 Кронштейн ТП 810-1-29.88 5837-030.01.02.004 Канатоукладчик ТП 810-1-29.88 5837-030.01.02.005 Крюк ТП 810-1-29.88 5837-030.01.02.006 Захват ТП 810-1-29.88 5837-030.01.02.007 Планка ТП 810-1-29.88 5837-030.01.02.008 Кольцо ТП 810-1-29.88 5837-030.01.02.009 Прокладка ТП 810-1-29.88 5837-030.01.02.010 Прокладка ТП 810-1-29.88 5826-011.00.000 Тележка для сбора овощей. Спецификация ТП 810-1-29.88 5826-011.01.000 Рама. Спецификация ТП 810-1-29.88 5826-011.00.000 СБ Тележка для сбора овощей. Сборочный чертеж ТП 810-1-29.88 5826-011.02.000 СБ Тормоз. Сборочный чертеж ТП 810-1-29.88 5826-011.00.000 ИЭ Тележка для сбора овощей. Инструкция по эксплуатации ТП 810-1-29.88 5826-011.01.000 СБ Рама. Сборочный чертеж ТП 810-1-29.88 5826-011.00.001 Перекладина ТП 810-1-29.88 5826-011.00.002 Ролик ТП 810-1-29.88 5826-011.00.003 Ручка ТП 810-1-29.88 5826-011.00.004 Винт ТП 810-1-29.88 5826-011.00.005 Пластина ТП 810-1-29.88 5826-011.00.006 Ось ТП 810-1-29.88 5847-005.00.000 Система подвески монорельсов. Спецификация ТП 810-1-29.88 5847-005.00.000 СБ Система подвески монорельсов. Сборочный чертеж ТП 810-1-29.88 5847-005.00.000.01 СБ Система подвески монорельсов. Сборочный чертеж ТП 810-1-29.88 5847-005.01.000 СБ Подвеска. Сборочный чертеж ТП 810-1-29.88 5847-005.02.000 СБ Подвеска. Сборочный чертеж ТП 810-1-29.88 5847-005.00.003 Крюк ТП 810-1-29.88 5847-005.00.002 Крюк ТП 810-1-29.88 5847-005.001 Опора ТП 810-1-29.88 0267-02.00.00.00 Устройство для обслуживания кровли ангарных теплиц пролетом 24 м. Спецификация ТП 810-1-29.88 0267-02.01.00.00 Секция нижняя. Спецификация ТП 810-1-29.88 0267-02.00.00.00 СБ Устройство для обслуживания кровли ангарных теплиц пролетом 24 м. Сборочный чертеж ТП 810-1-29.88 0267-02.00.00.00 ВС Устройство для обслуживания кровли ангарных теплиц пролетом 24 м. Ведомость спецификаций ТП 810-1-29.88 0267-02.00.00.00 ВП Устройство для обслуживания кровли ангарных теплиц пролетом 24 м. Ведомость покупных изделий ТП 810-1-29.88 0267-02.00.00.00 РЭ Устройство для обслуживания кровли ангарных теплиц пролетом 24 м. Руководство по эксплуатации ТП 810-1-29.88 0267-02.01.00.00 СБ Секция нижняя. Сборочный чертеж ТП 810-1-29.88 0267-02.02.00.00 Секция верхняя. Сборочный чертеж ТП 810-1-29.88 0267-02.03.00.00 Платформа. Спецификация ТП 810-1-29.88 0267-02.04.00.00 Лестница вертикальная. Спецификация ТП 810-1-29.88 0267-02.02.00.00 СБ Секция верхняя. Сборочный чертеж ТП 810-1-29.88 0267-02.03.00.00 СБ Платформа. Сборочный чертеж ТП 810-1-29.88 0267-02.04.00.00 СБ Лестница вертикальная. Сборочный чертеж ТП 810-1-29.88 0267-02.05.00.00 Опора. Спецификация ТП 810-1-29.88 0267-02.20.00.00 Кассета. Спецификация ТП 810-1-29.88 0267-02.05.00.00 СБ Опора. Сборочный чертеж ТП 810-1-29.88 0267-02.20.00.00 СБ Кассета. Сборочный чертеж ТП 810-1-29.88 0267-02.00.00.01 Пластина ТП 810-1-29.88 0267-02.00.00.02 Палец ТП 810-1-29.88 0267-02.01.00.04 Подкос ТП 810-1-29.88 0267-02.00.00.04 Пластина |
| Разработан: | ЦЭКТБ Промтеплица Госагропрома СССР |
| Утверждён: | 15.07.1987 Госагропром СССР (USSR Gosagroprom 549) |




































































