Скачать Типовой проект 810-1-30.88 Альбом 2. Конструкции железобетонныеДата актуализации: 01.01.2021
|
| Обозначение: | Типовой проект 810-1-30.88 |
| Обозначение англ: | 810-1-30.88 |
| Статус: | не определен законодательством |
| Название рус.: | Альбом 2. Конструкции железобетонные |
| Дата добавления в базу: | 01.09.2013 |
| Дата актуализации: | 01.01.2021 |
| Дата введения: | 07.12.1988 |
| Дата окончания срока действия: | 30.06.2003 |
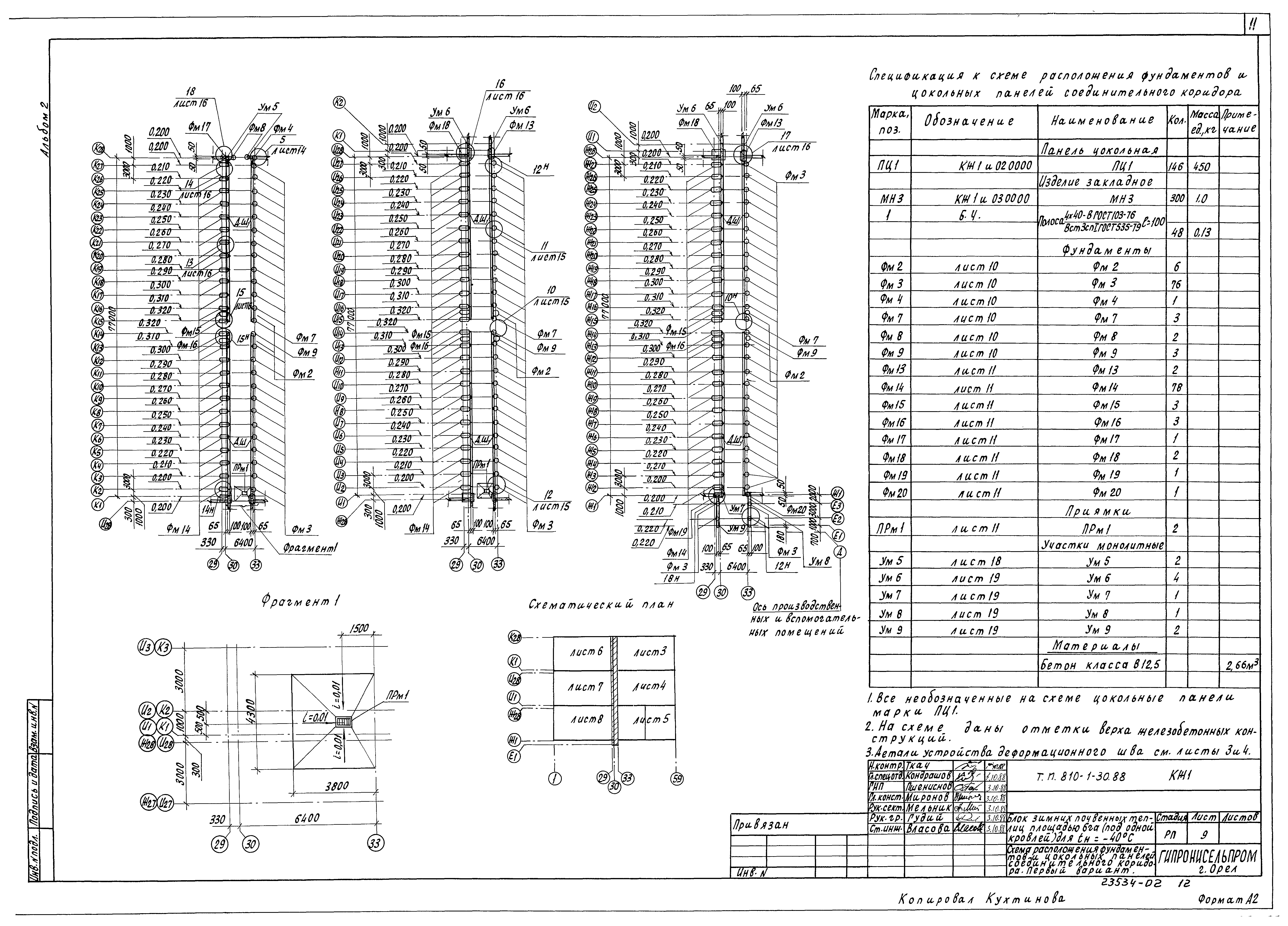
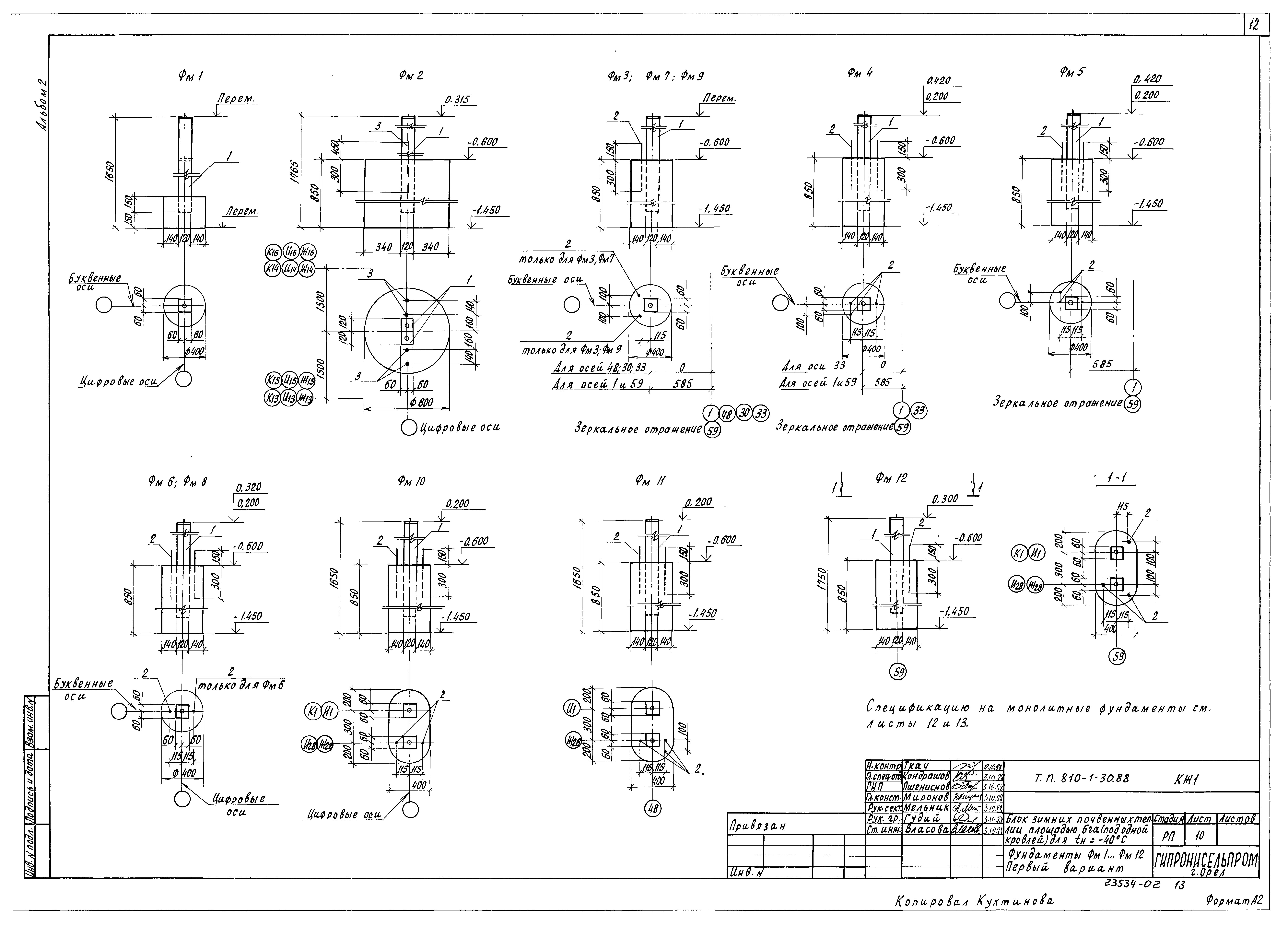
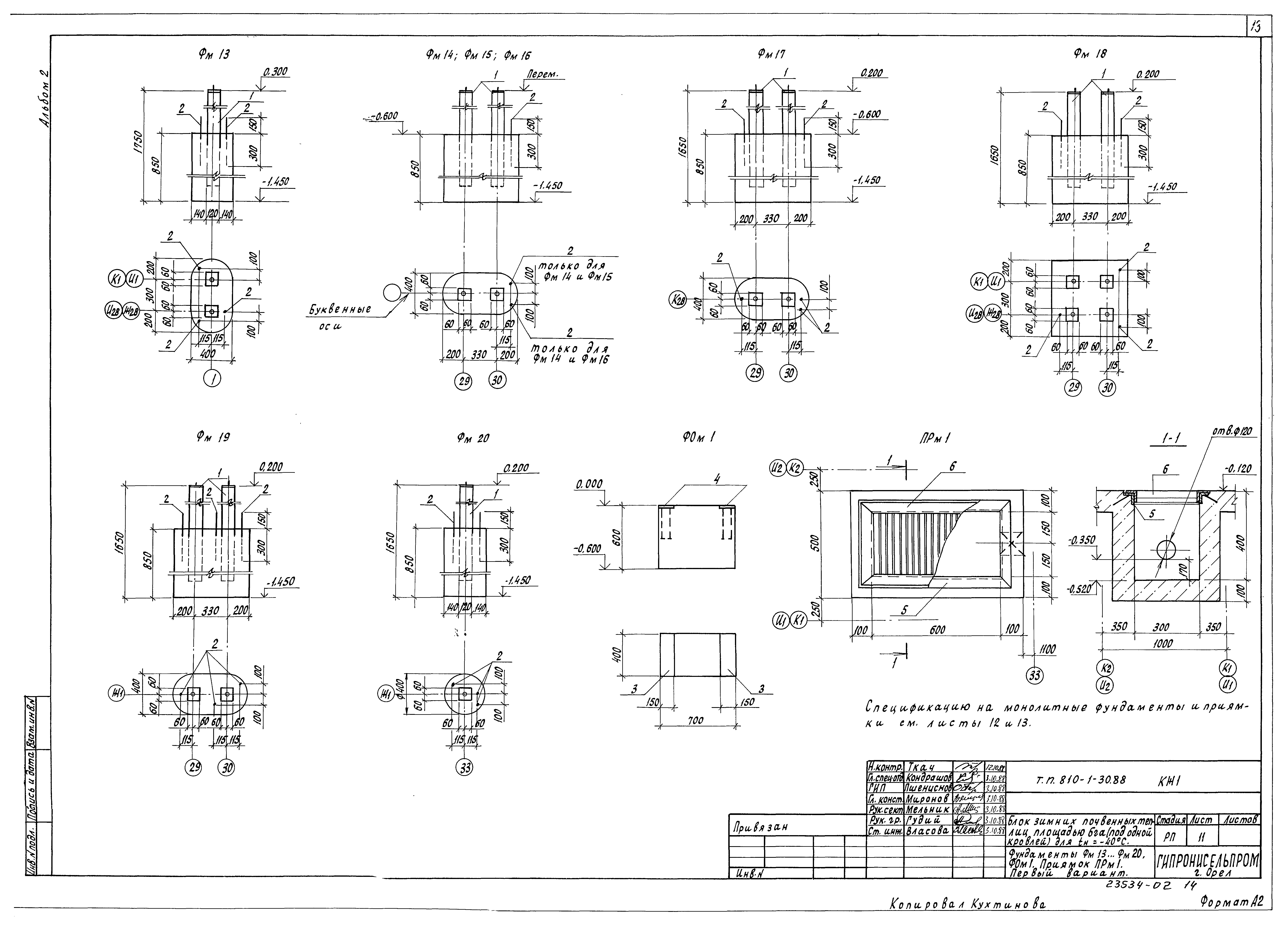
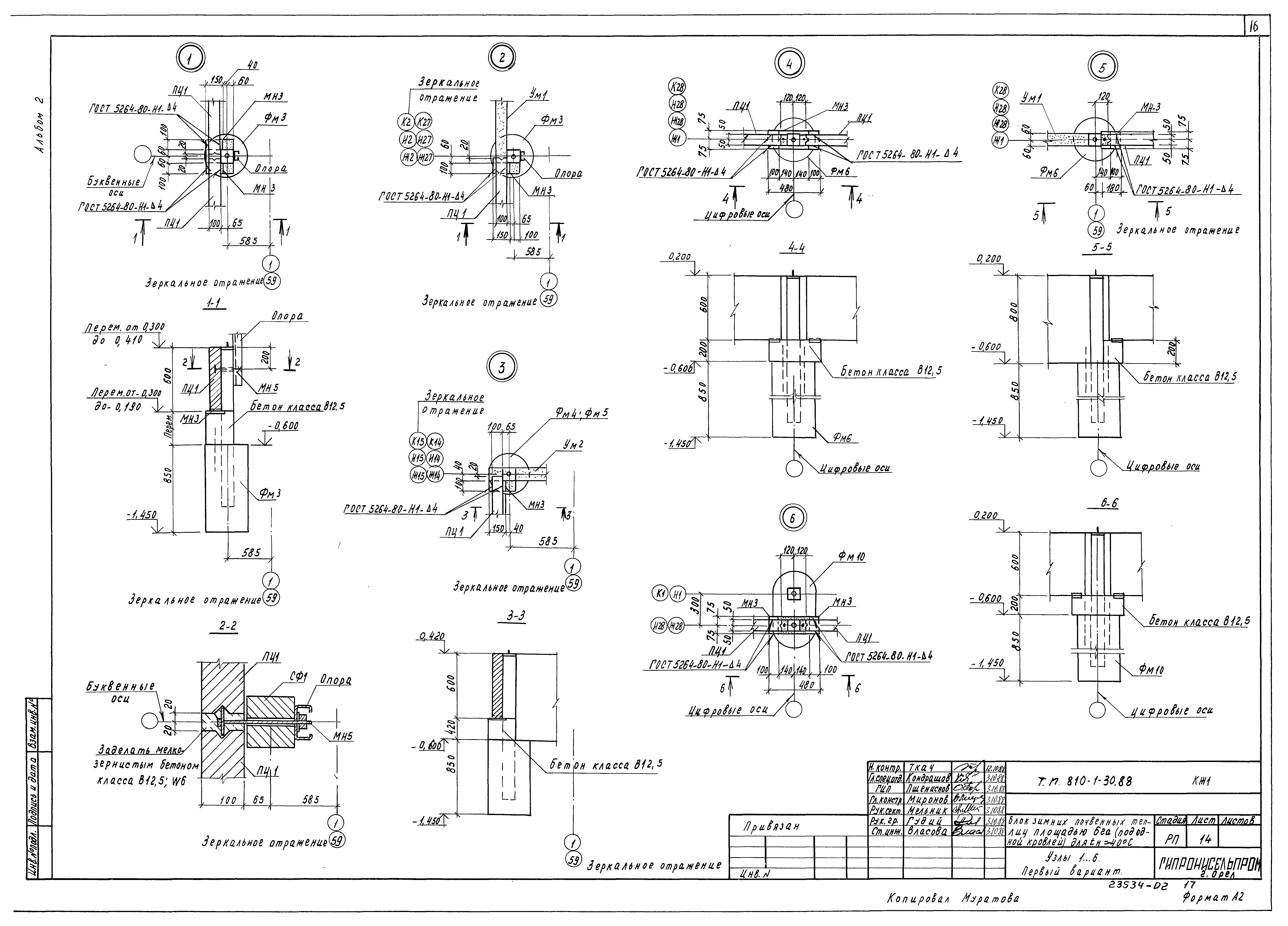
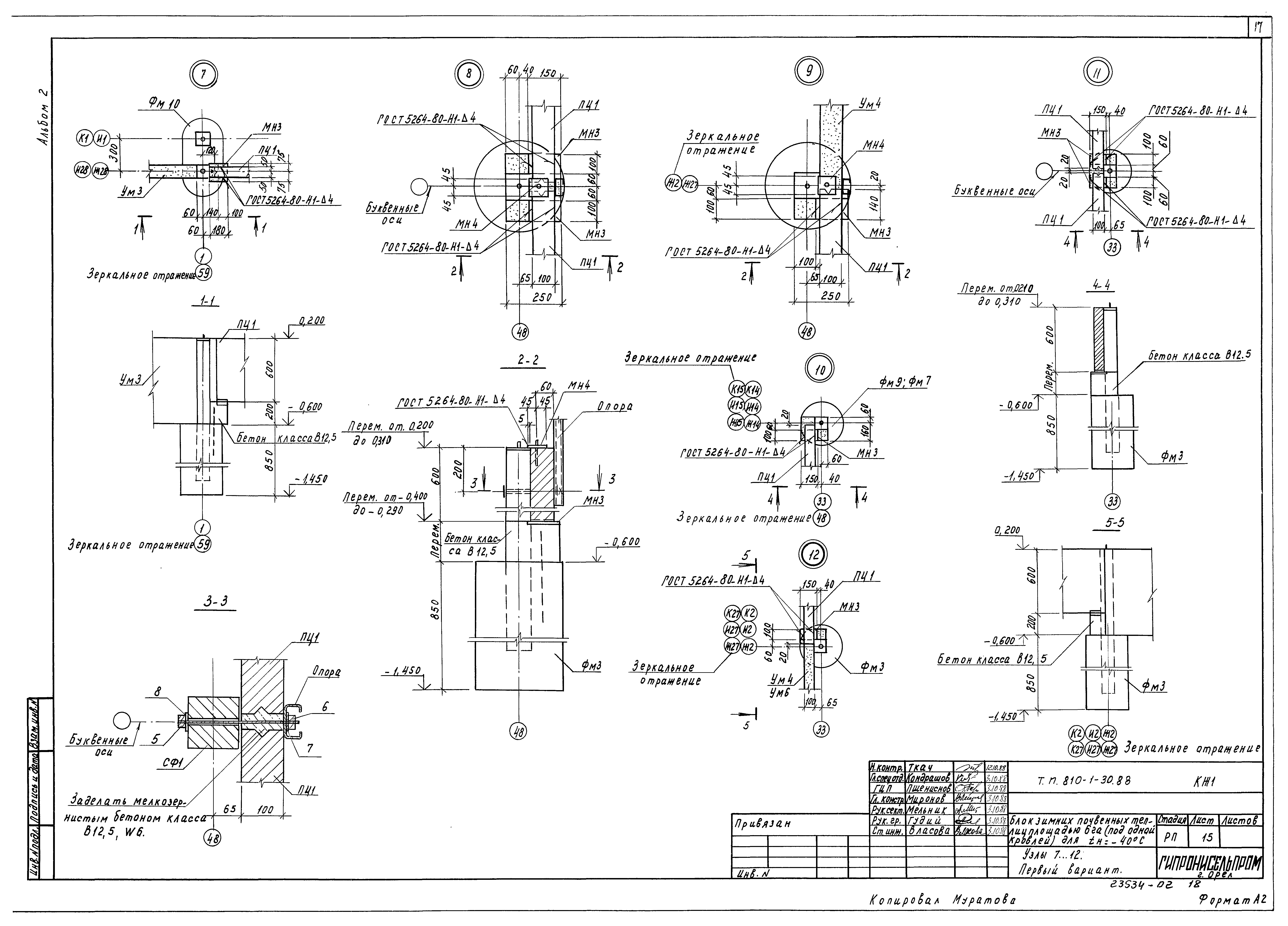
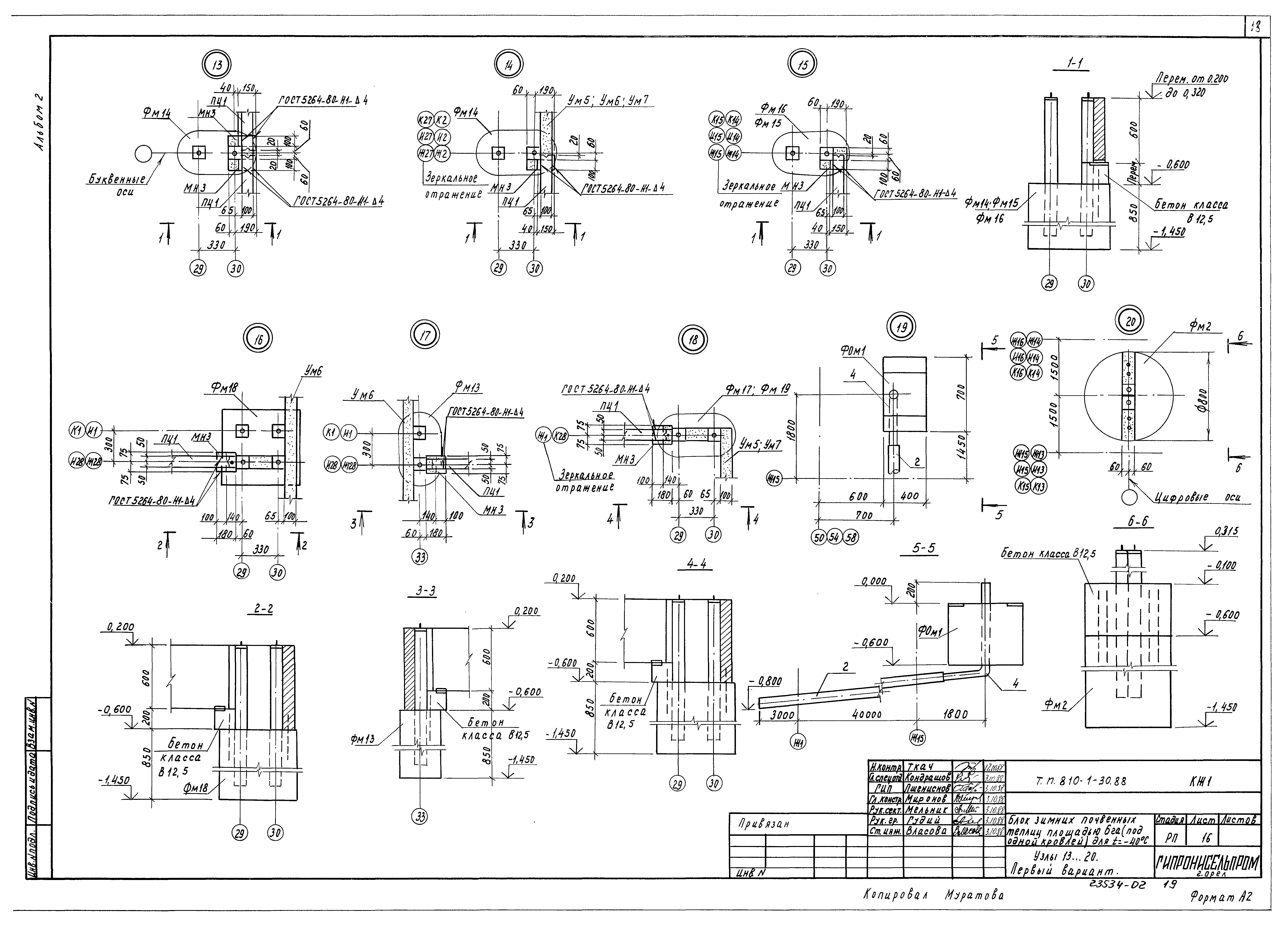
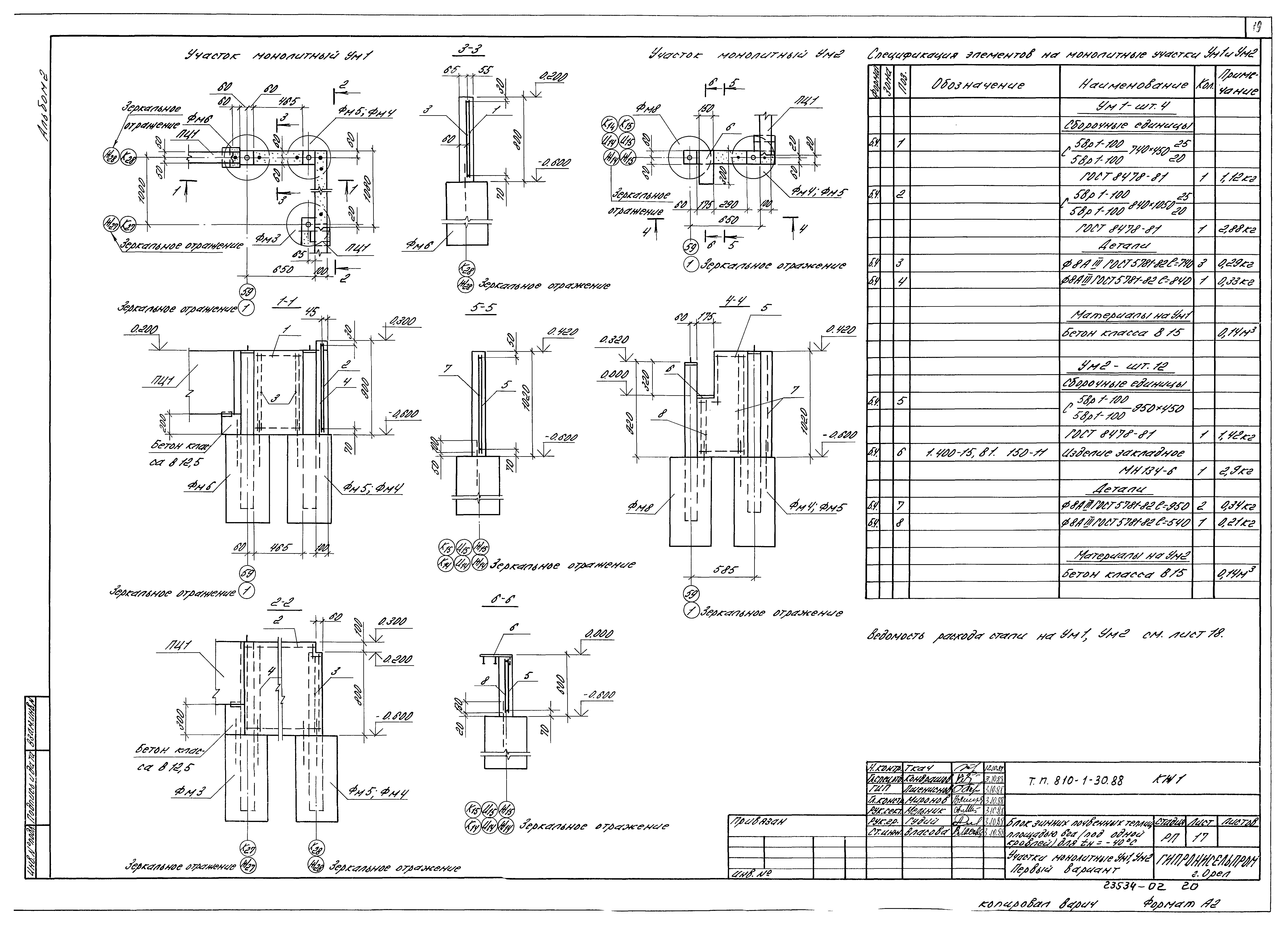
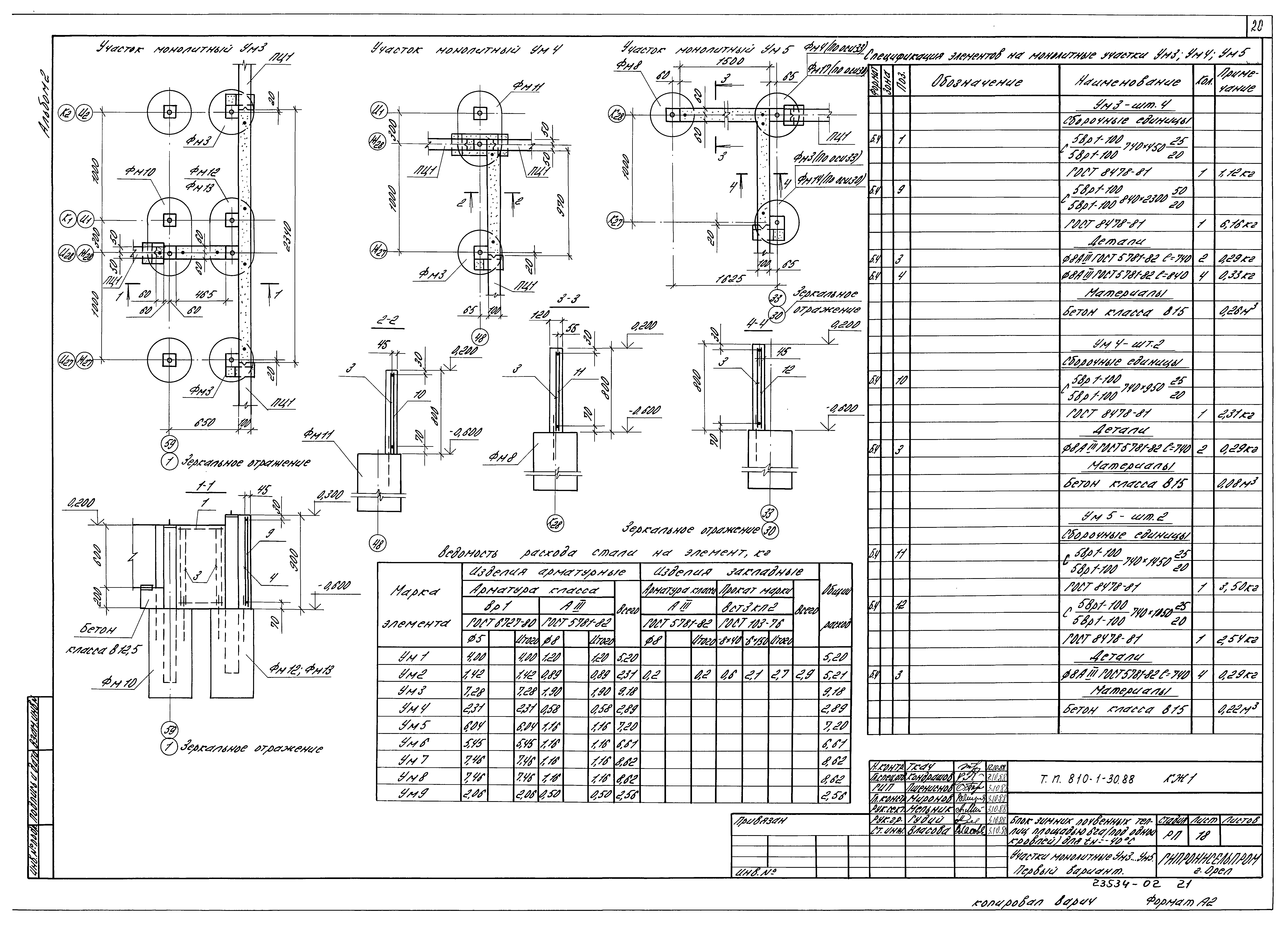
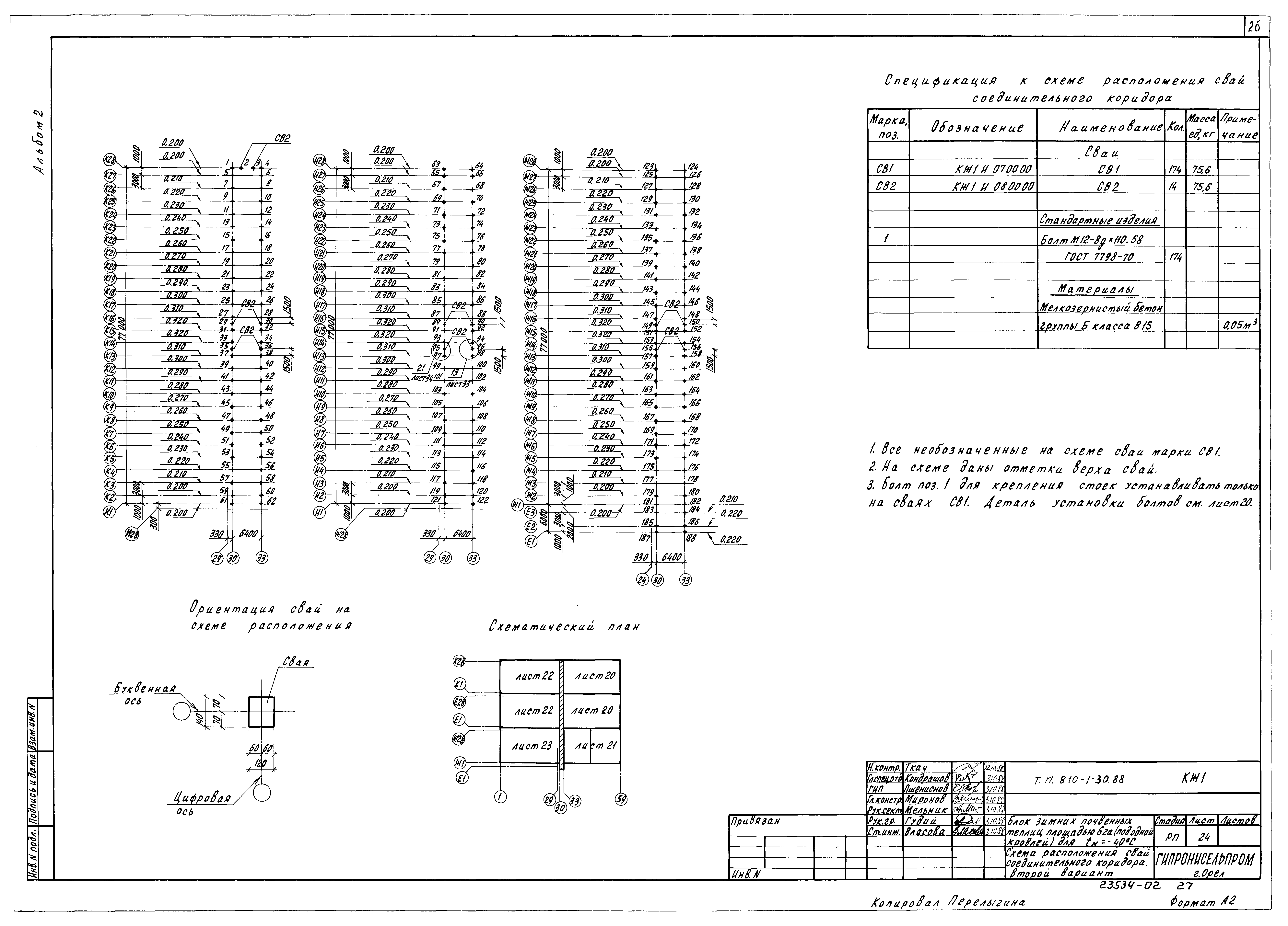
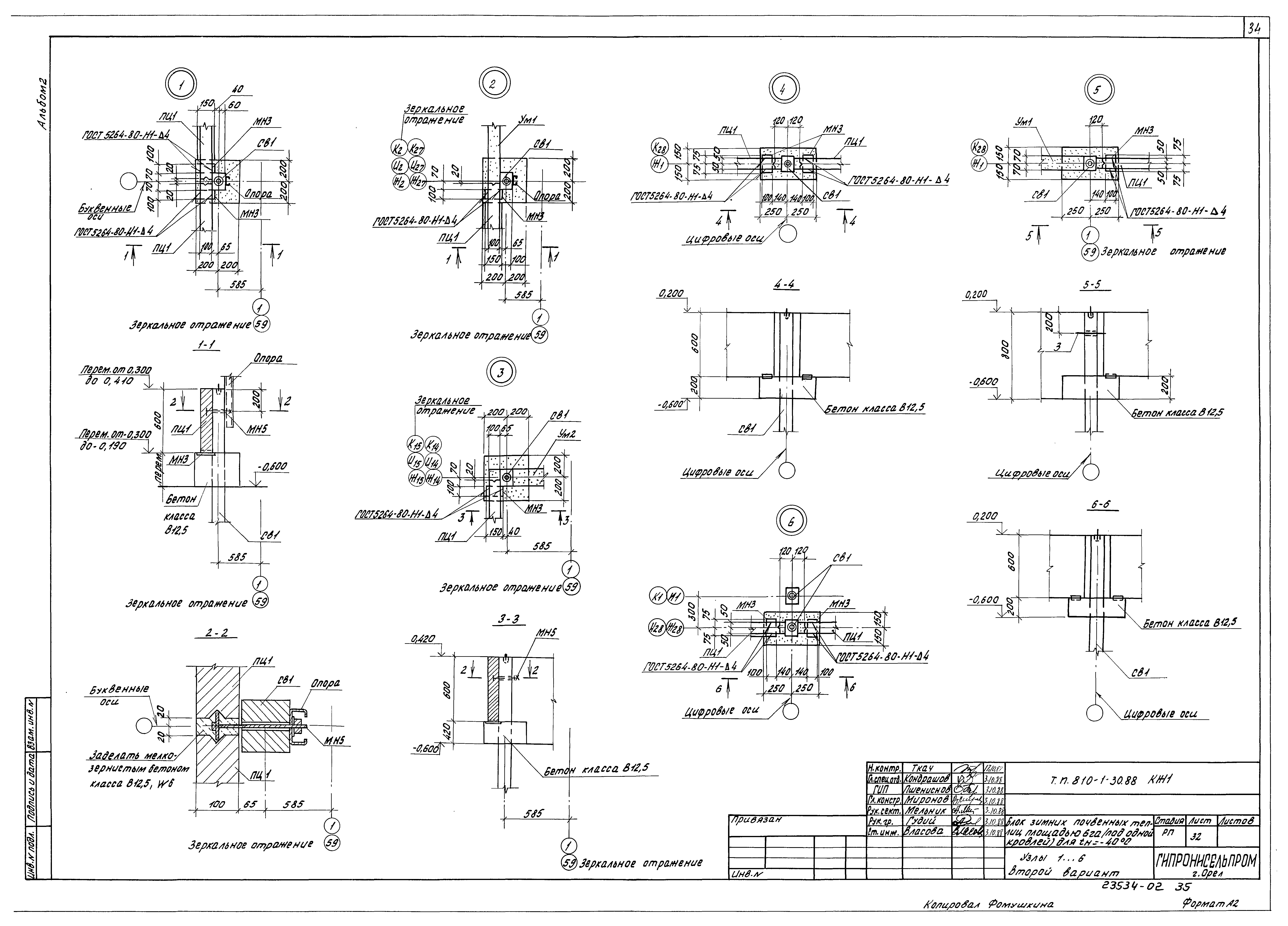
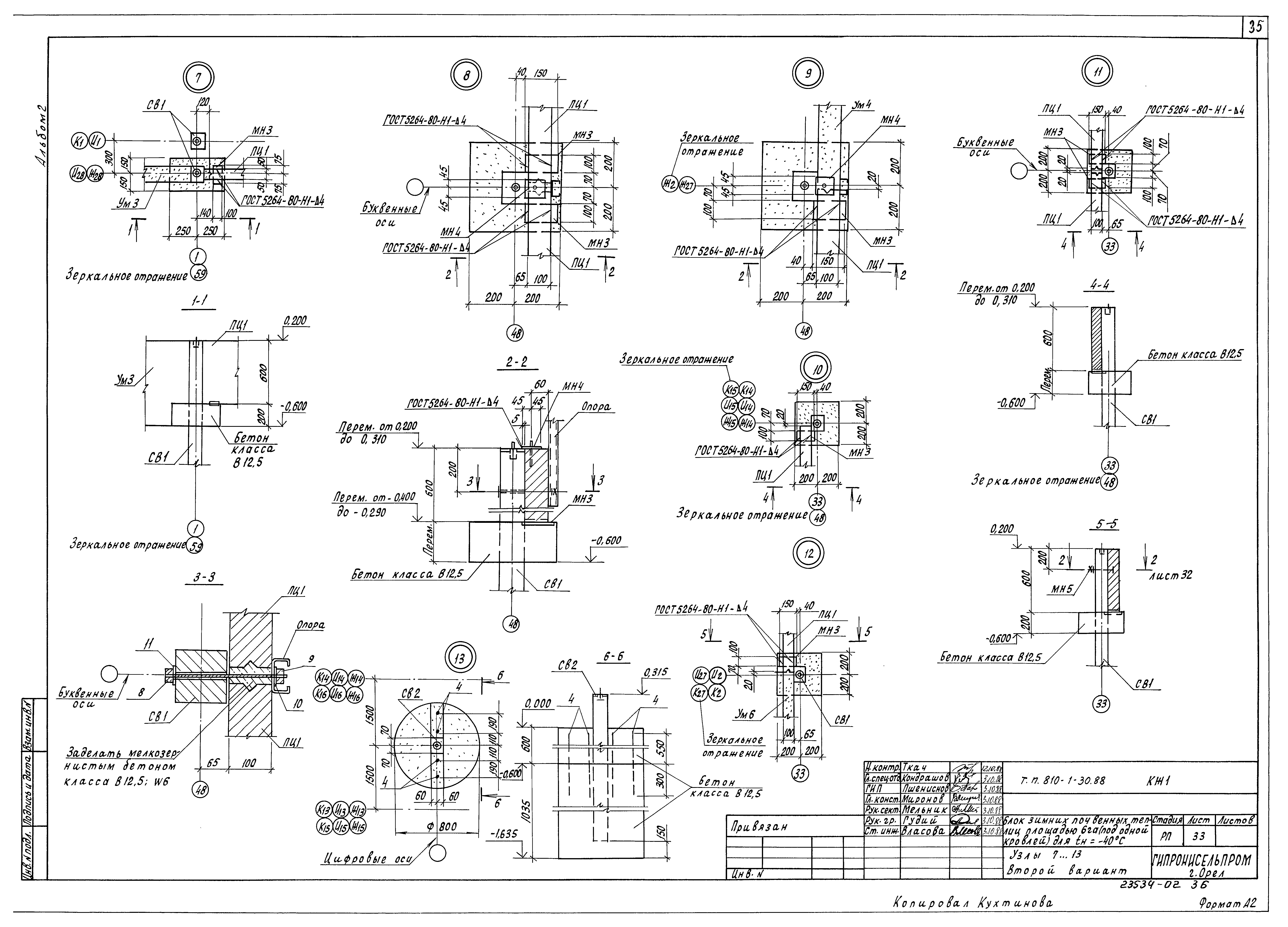
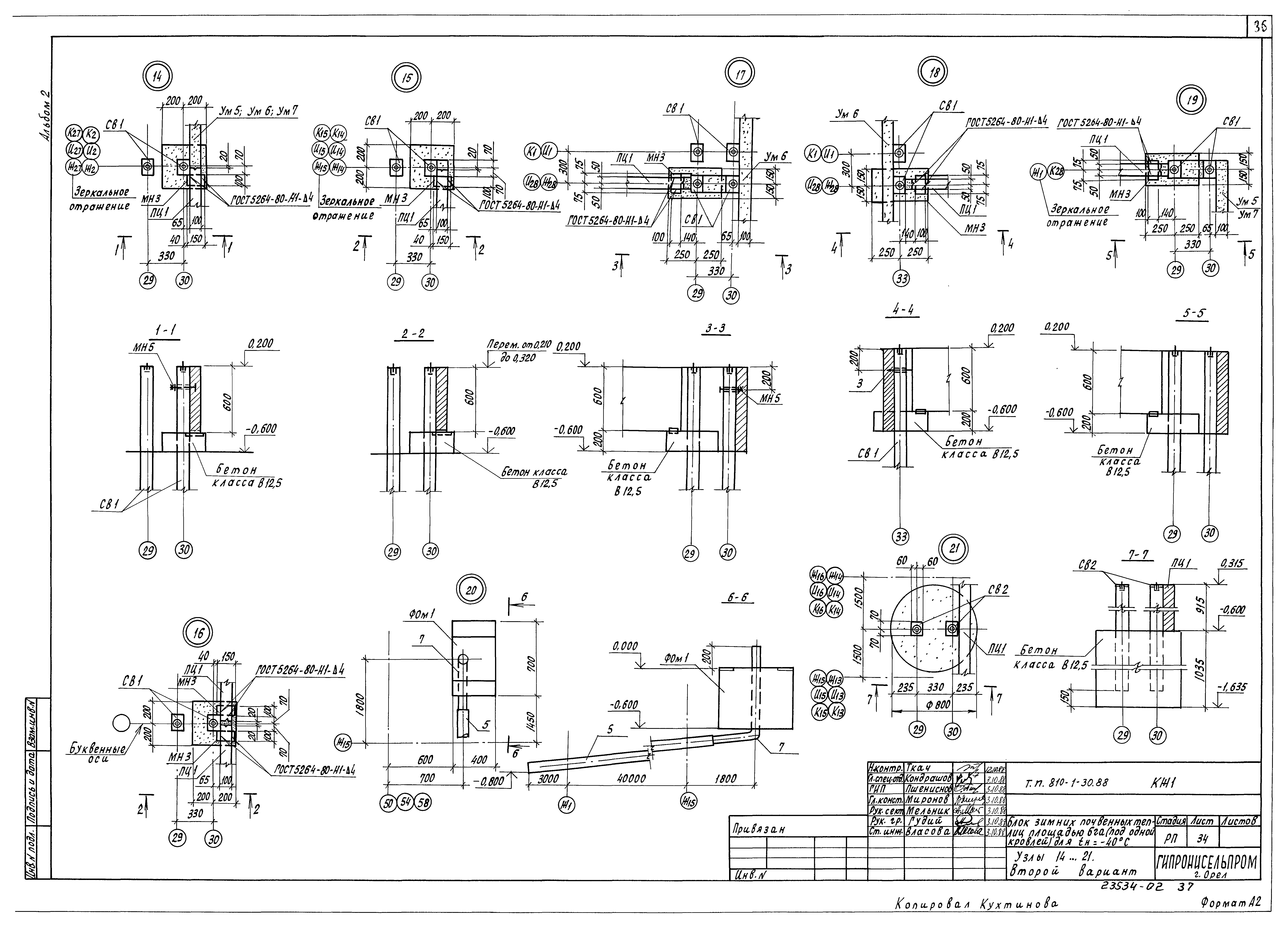
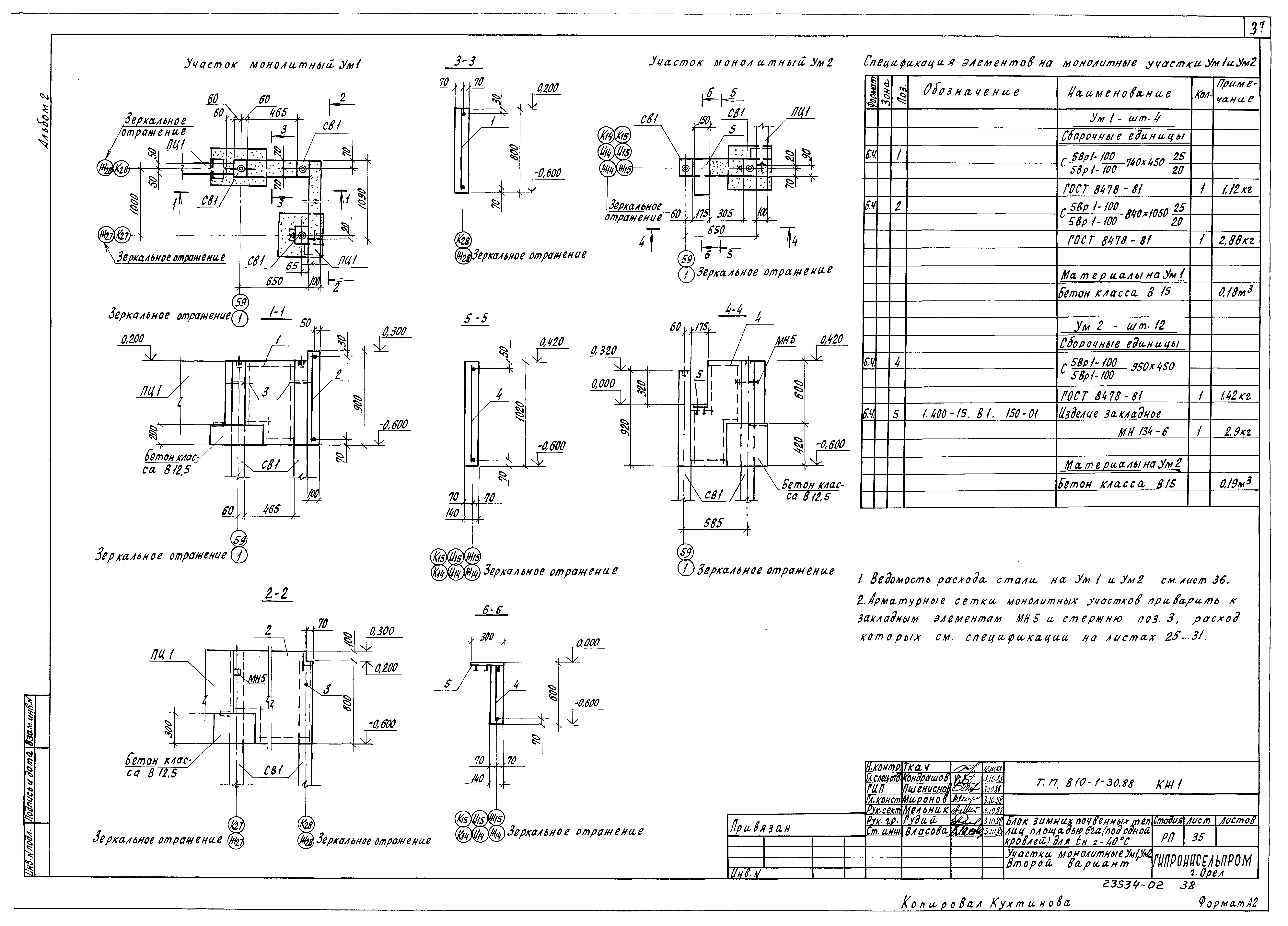
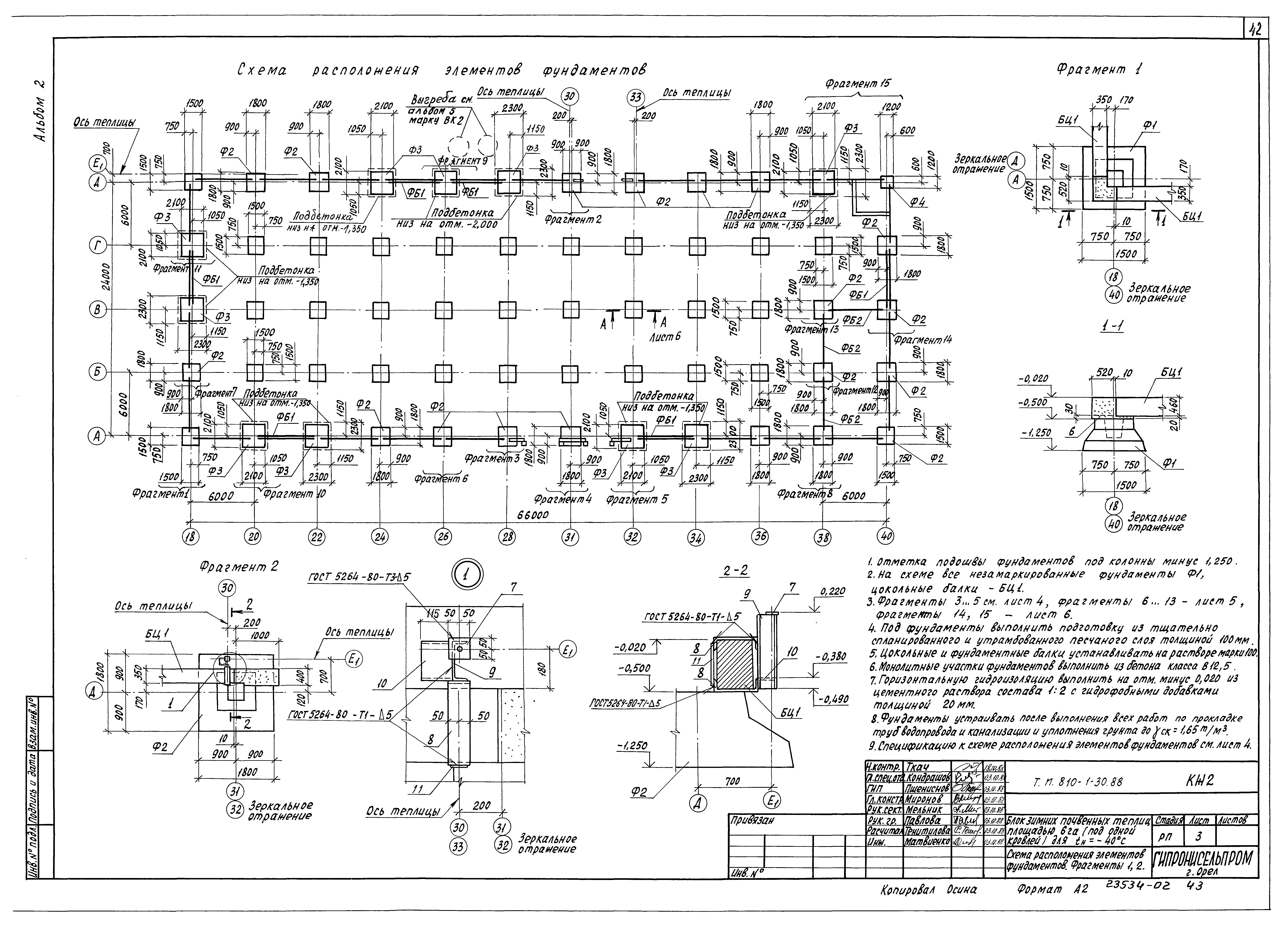
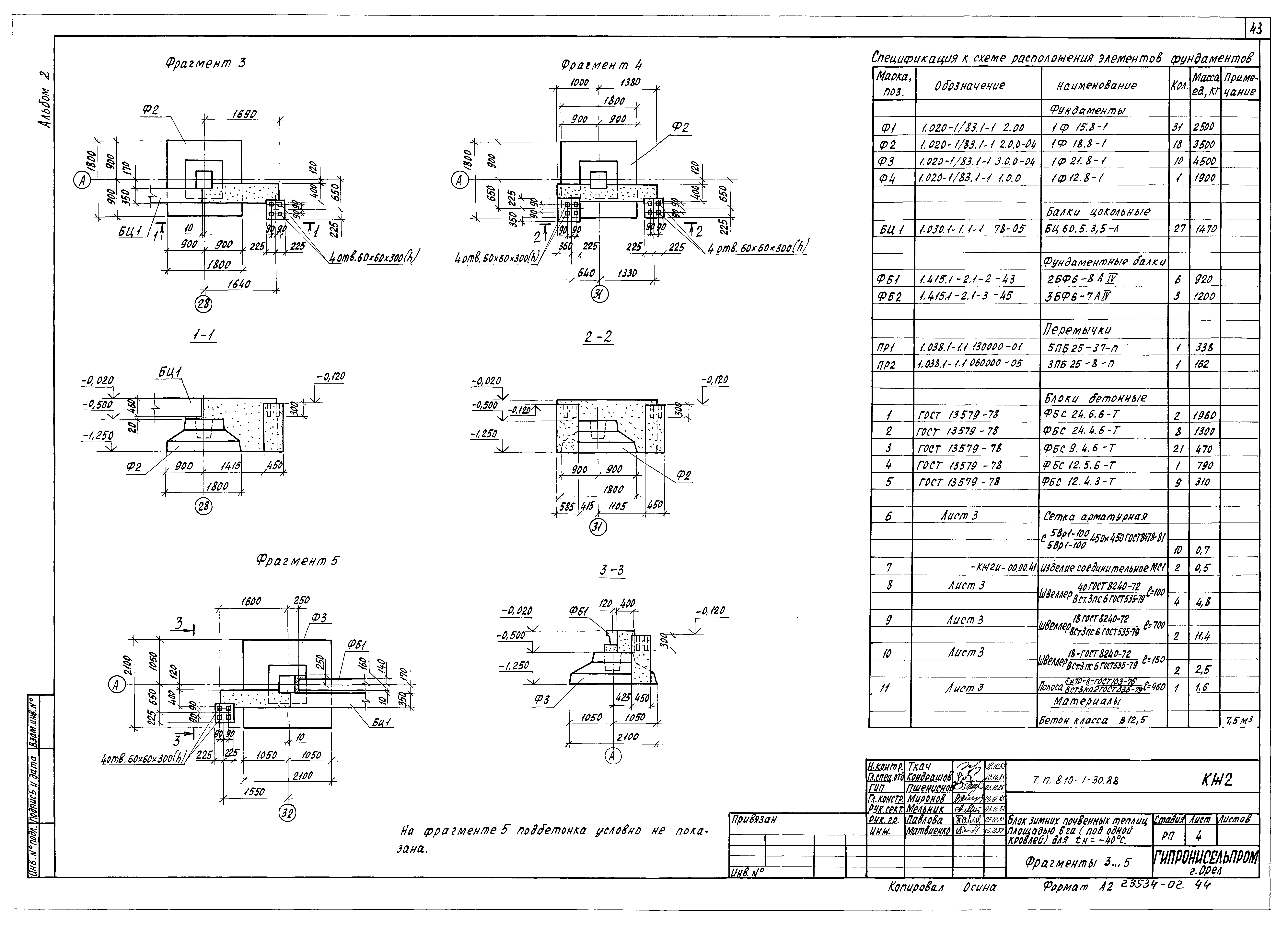
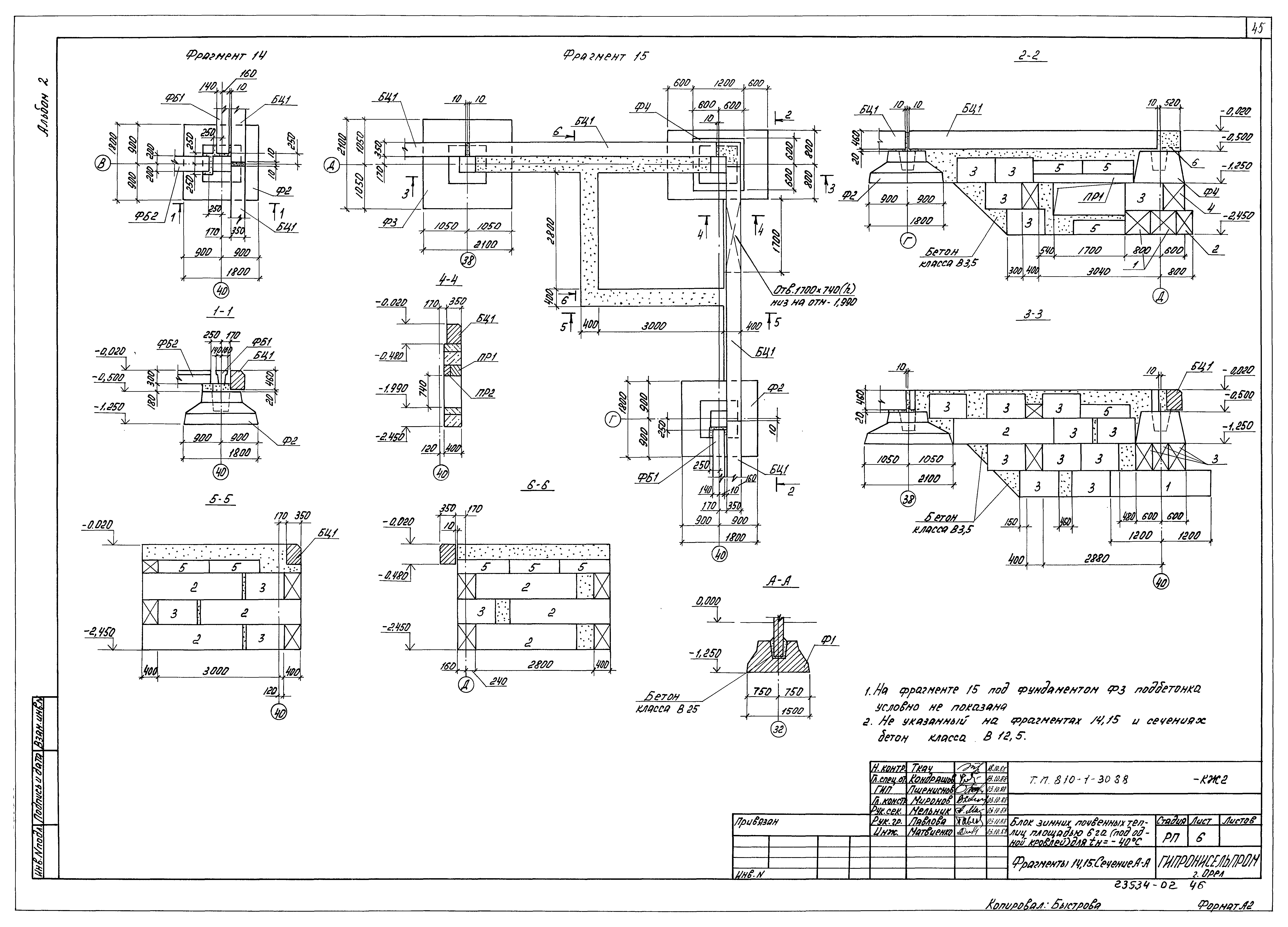
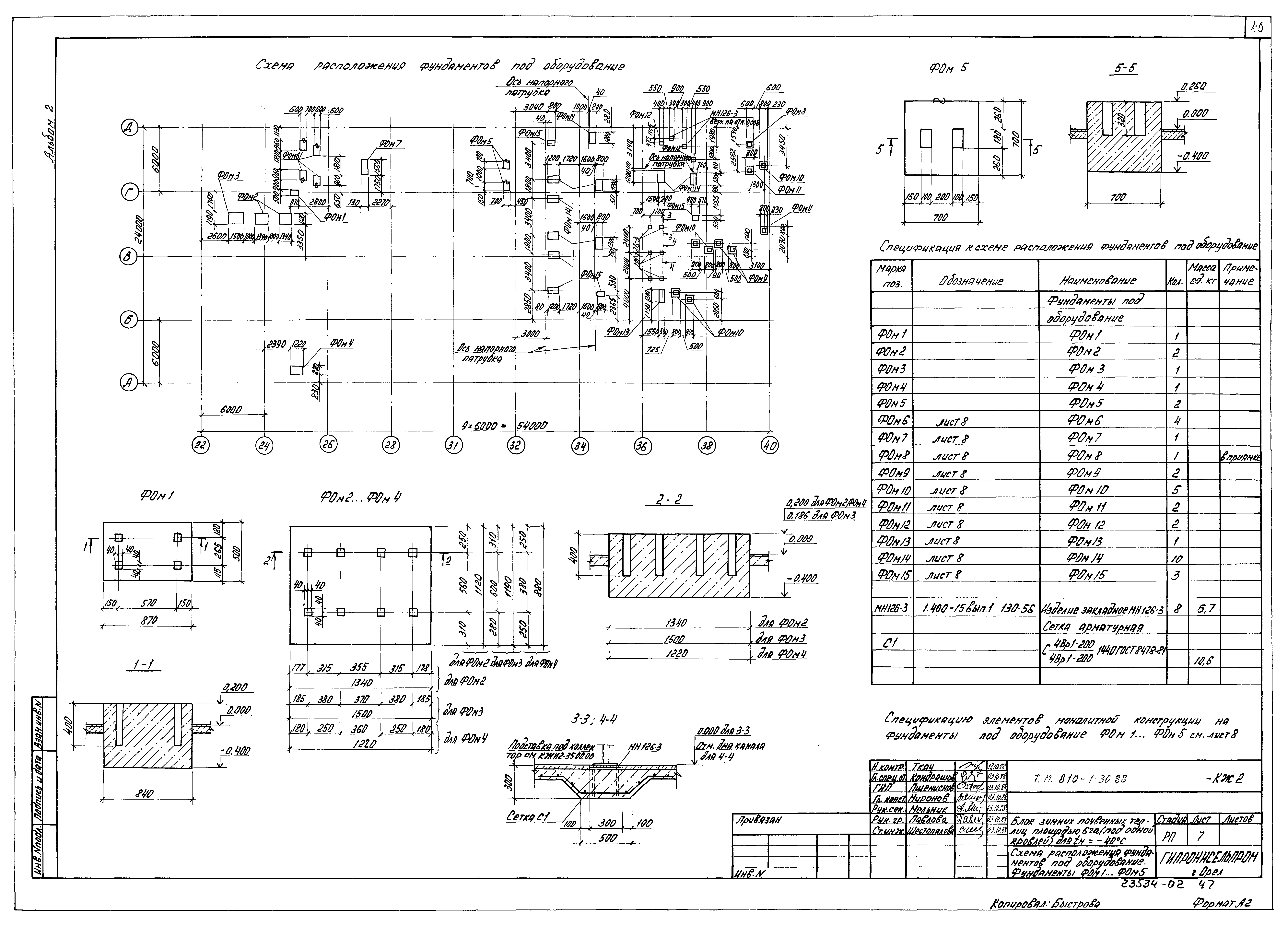
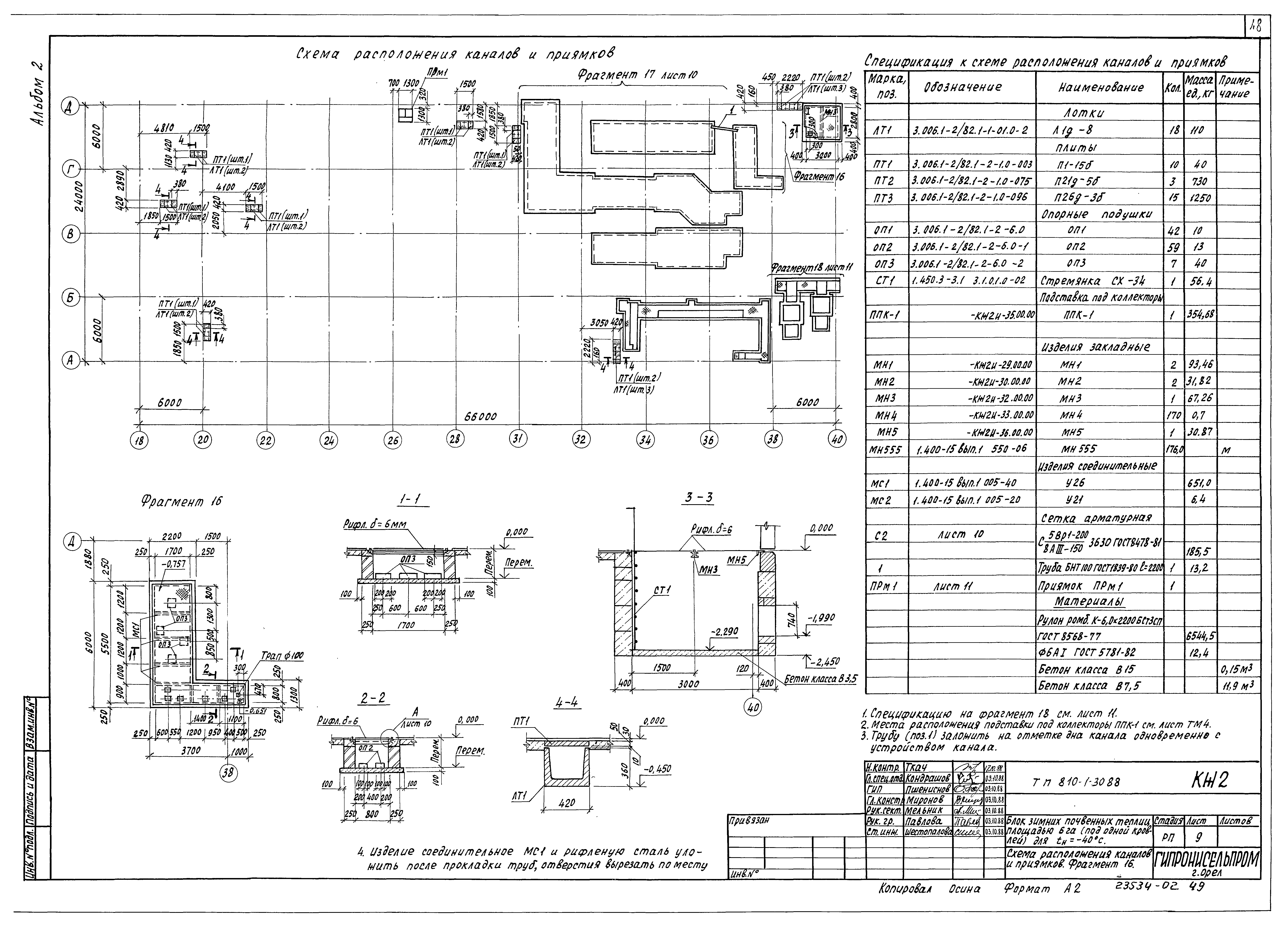
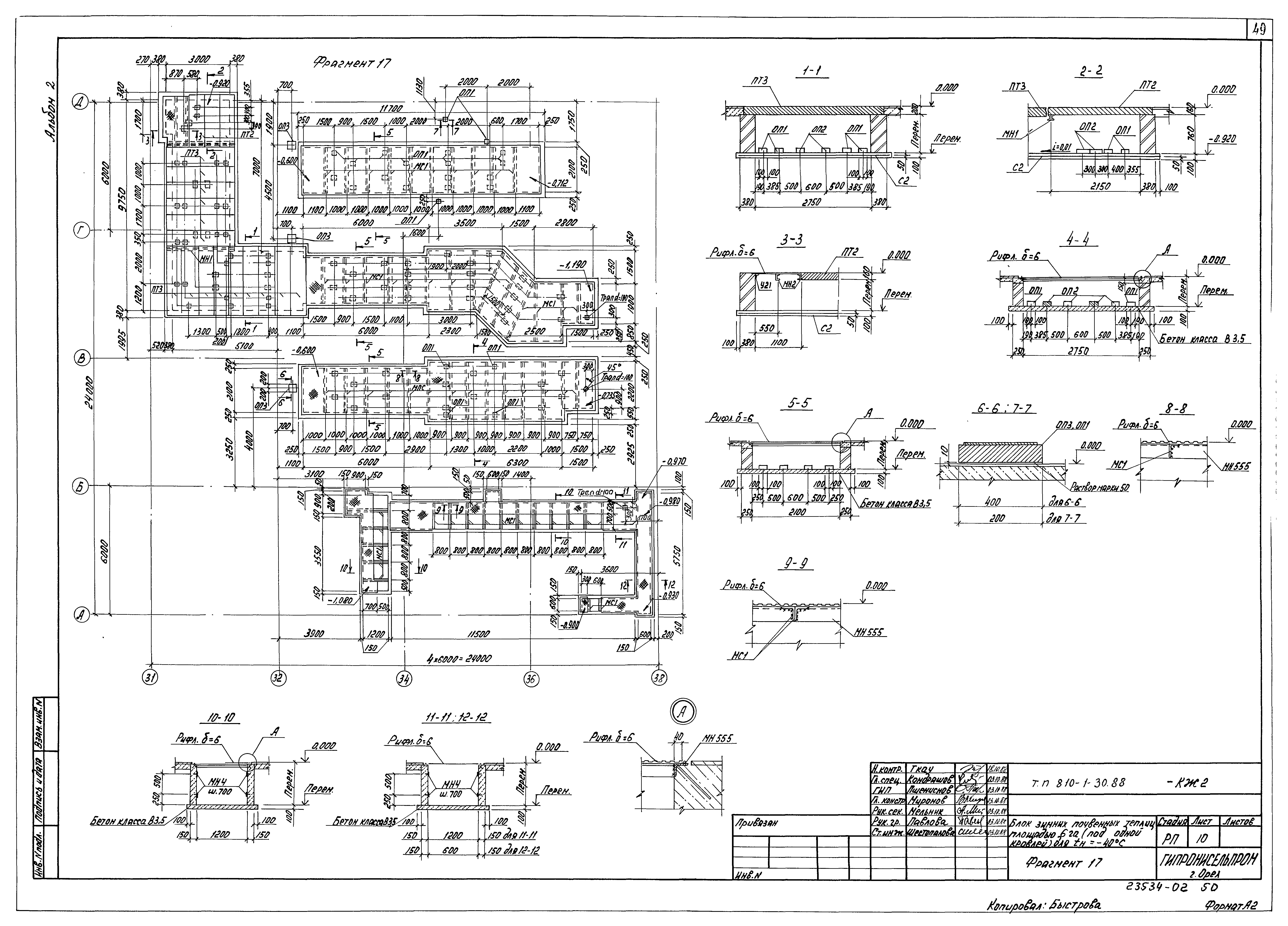
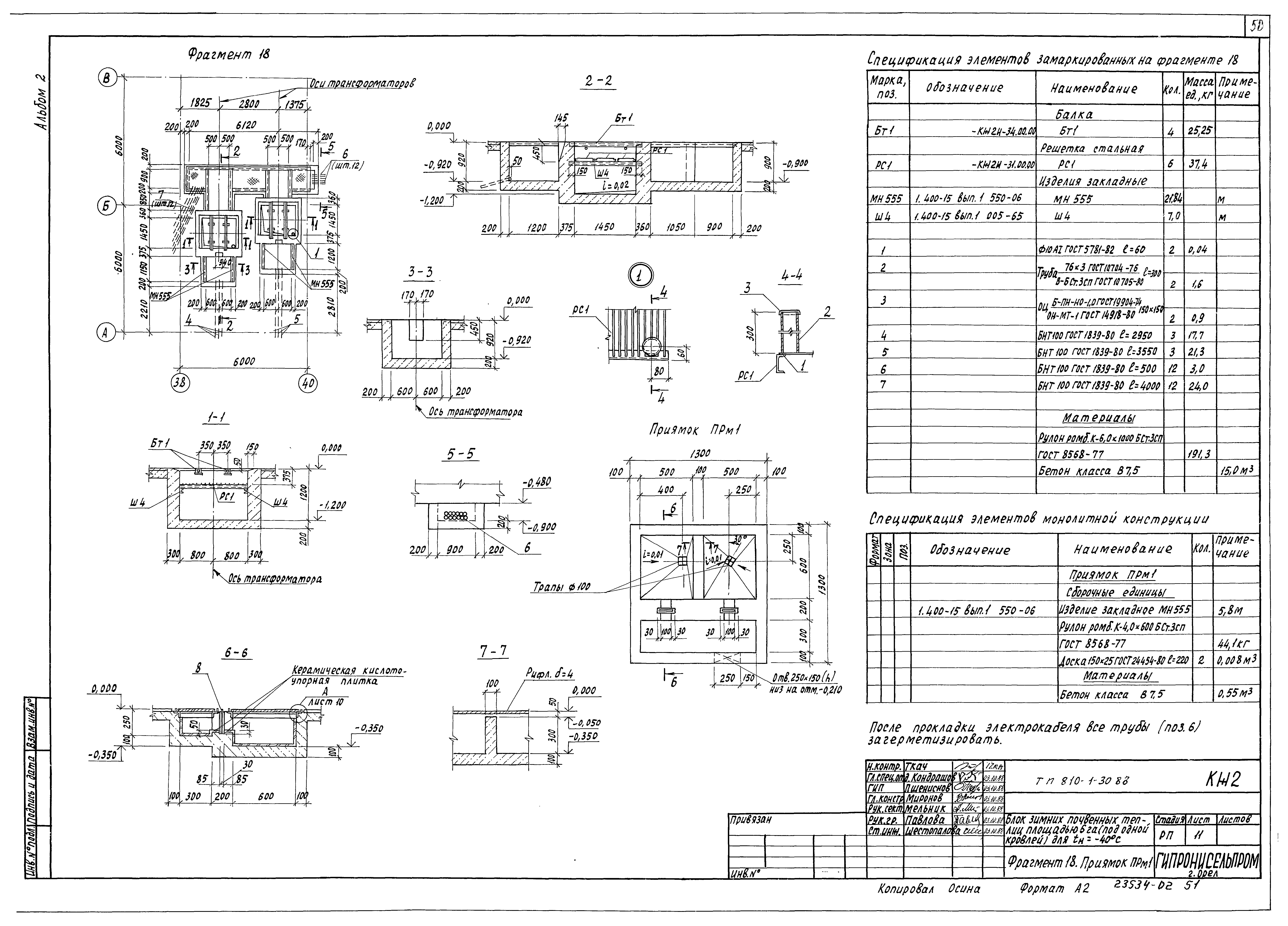
| Оглавление: | ТП 810-1-30.88 Содержание альбома ТП 810-1-30.88 КЖ1 Конструкции железобетонные КЖ1 ТП 810-1-30.88 КЖ1 Общие данные (начало) ТП 810-1-30.88 КЖ1 Общие данные (окончание) ТП 810-1-30.88 КЖ1 Схема расположения фундаментов и цокольных панелей теплицы 1. Деталь. Первый вариант ТП 810-1-30.88 КЖ1 Схема расположения фундаментов и цокольных панелей теплицы 2. Деталь. Первый вариант ТП 810-1-30.88 КЖ1 Схема расположения фундаментов и цокольных панелей теплицы 3. Деталь. Первый вариант ТП 810-1-30.88 КЖ1 Схема расположения фундаментов и цокольных панелей теплицы 4. Деталь. Первый вариант ТП 810-1-30.88 КЖ1 Схема расположения фундаментов и цокольных панелей теплицы 5. Деталь. Первый вариант ТП 810-1-30.88 КЖ1 Схема расположения фундаментов и цокольных панелей теплицы 6. Деталь. Первый вариант ТП 810-1-30.88 КЖ1 Схема расположения фундаментов и цокольных панелей соединительного коридора. Первый вариант ТП 810-1-30.88 КЖ1 Фундаменты Фм1...Фм12. Первый вариант ТП 810-1-30.88 КЖ1 Фундаменты ФМ13...ФМ20,ФОМ1. Приямок ПРМ1. Первый вариант ТП 810-1-30.88 КЖ1 Спецификация элементов монолитных фундаментов. Первый вариант ТП 810-1-30.88 КЖ1 Спецификация элементов монолитных фундаментов и приямок. Первый вариант ТП 810-1-30.88 КЖ1 Узлы 1...6. Первый вариант ТП 810-1-30.88 КЖ1 Узлы 7...12. Первый вариант ТП 810-1-30.88 КЖ1 Узлы 13...20. Первый вариант ТП 810-1-30.88 КЖ1 Участки монолитные УМ1,УМ2. Первый вариант ТП 810-1-30.88 КЖ1 Участки монолитные УМ3...УМ5. Первый вариант ТП 810-1-30.88 КЖ1 Участки монолитные УМ6...УМ9. Первый вариант ТП 810-1-30.88 КЖ1 Схема расположения свай теплиц 1 и 2. Второй вариант ТП 810-1-30.88 КЖ1 Схема расположения свай теплицы 3. Второй вариант ТП 810-1-30.88 КЖ1 Схема расположения свай теплиц 4 и 5. Второй вариант ТП 810-1-30.88 КЖ1 Схема расположения свай теплицы 6. Второй вариант ТП 810-1-30.88 КЖ1 Схема расположения свай соединительного коридора. Второй вариант ТП 810-1-30.88 КЖ1 Схема расположения цокольных панелей теплицы 1. Деталь. Второй вариант ТП 810-1-30.88 КЖ1 Схема расположения цокольных панелей теплицы 2. Деталь. Второй вариант ТП 810-1-30.88 КЖ1 Схема расположения цокольных панелей и фундаментов под оборудование теплицы 3. Второй вариант ТП 810-1-30.88 КЖ1 Схема расположения цокольных панелей теплицы 4. Второй вариант ТП 810-1-30.88 КЖ1 Схема расположения цокольных панелей теплицы 5. Второй вариант ТП 810-1-30.88 КЖ1 Схема расположения цокольных панелей теплицы 6. Второй вариант ТП 810-1-30.88 КЖ1 Схема расположения цокольных панелей и приямков соединительного коридора. Второй вариант ТП 810-1-30.88 КЖ1 Узлы 1...6. Второй вариант ТП 810-1-30.88 КЖ1 Узлы 7...13. Второй вариант ТП 810-1-30.88 КЖ1 Узлы 14...21. Второй вариант ТП 810-1-30.88 КЖ1 Участки монолитные УМ1,УМ2. Второй вариант ТП 810-1-30.88 КЖ1 Участки монолитные УМ3...УМ5. Второй вариант ТП 810-1-30.88 КЖ1 Участки монолитные УМ16...УМ9. Второй вариант ТП 810-1-30.88 КЖ2 Конструкции железобетонные КЖ2 ТП 810-1-30.88 КЖ2 Общие данные (начало) ТП 810-1-30.88 КЖ2 Общие данные (окончание) ТП 810-1-30.88 КЖ2 Схема расположения элементов фундаментов. Фрагменты 1,2 ТП 810-1-30.88 КЖ2 Фрагменты 3...5 ТП 810-1-30.88 КЖ2 Фрагменты 6...13 ТП 810-1-30.88 КЖ2 Фрагменты 14,15. Сечения А-А ТП 810-1-30.88 КЖ2 Схема расположения фундаментов под оборудование. Фундаменты ФОМ1...ФОМ5 ТП 810-1-30.88 КЖ2 Фундаменты ФОМ6...ФОМ15 ТП 810-1-30.88 КЖ2 Схема расположения каналов и приямков. Фрагмент 16 ТП 810-1-30.88 КЖ2 Фрагмент 17 ТП 810-1-30.88 КЖ2 Фрагмент 18. Приямок ПРМ1 ТП 810-1-30.88 КЖ2 Схема расположения колонн и ригелей ТП 810-1-30.88 КЖ2 Схема расположения плит покрытия ТП 810-1-30.88 КЖ2 Фрагмент 19,20. Деталь установки стакана. Схема расположения закладных деталей для крепления подвесок между осями 31...38 ТП 810-1-30.88 КЖ2 Схема расположения стеновых панелей |
| Разработан: | Гипронисельпром Госагропрома СССР |
| Утверждён: | 06.12.1988 Госагропром СССР (USSR Gosagroprom 805-42/153) |






















































