Скачать Типовой проект 810-1-30.88 Альбом 3. Конструкции металлическиеДата актуализации: 01.01.2021
|
| Обозначение: | Типовой проект 810-1-30.88 |
| Обозначение англ: | 810-1-30.88 |
| Статус: | не определен законодательством |
| Название рус.: | Альбом 3. Конструкции металлические |
| Дата добавления в базу: | 01.09.2013 |
| Дата актуализации: | 01.01.2021 |
| Дата введения: | 07.12.1988 |
| Дата окончания срока действия: | 30.06.2003 |
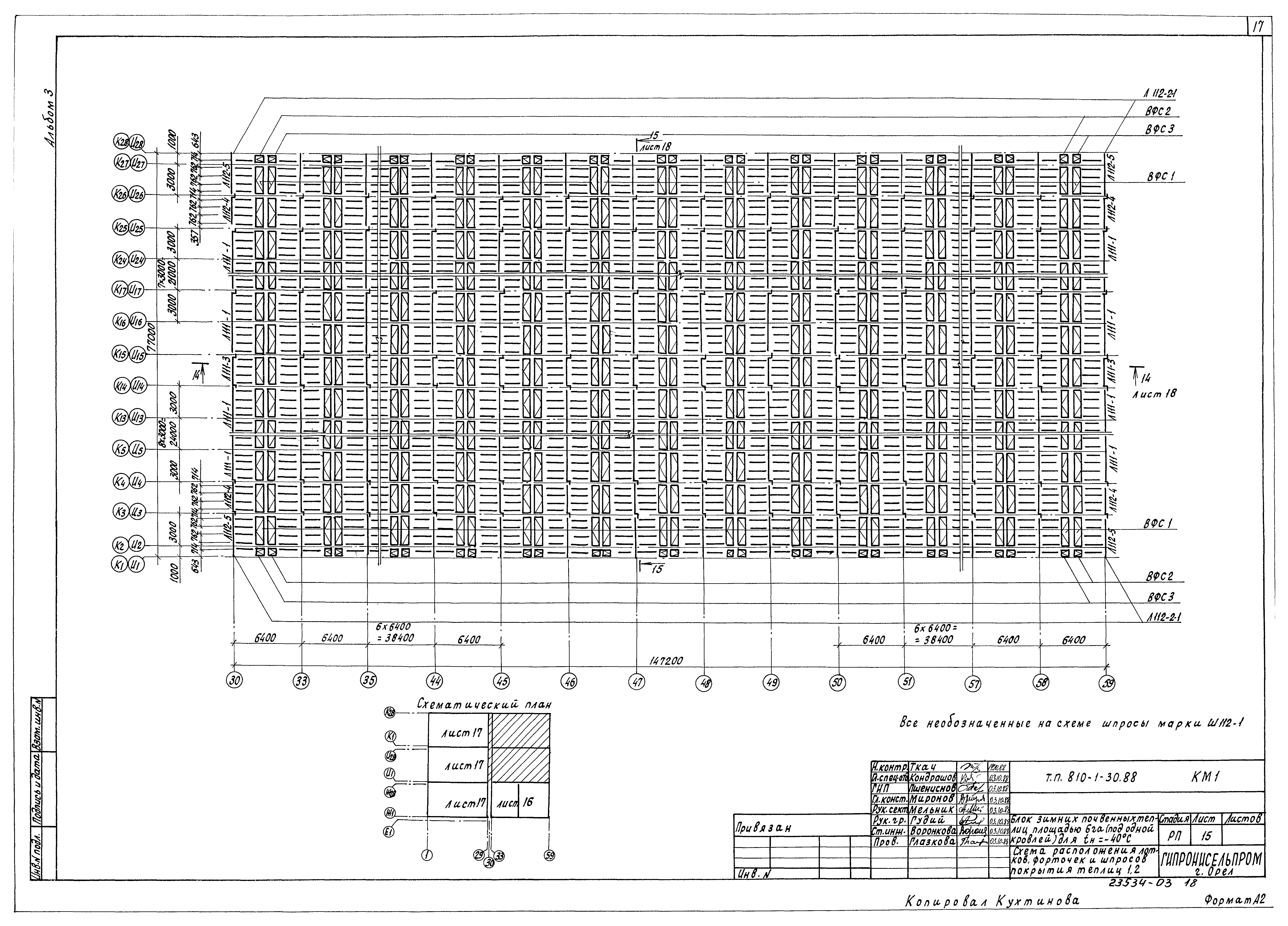
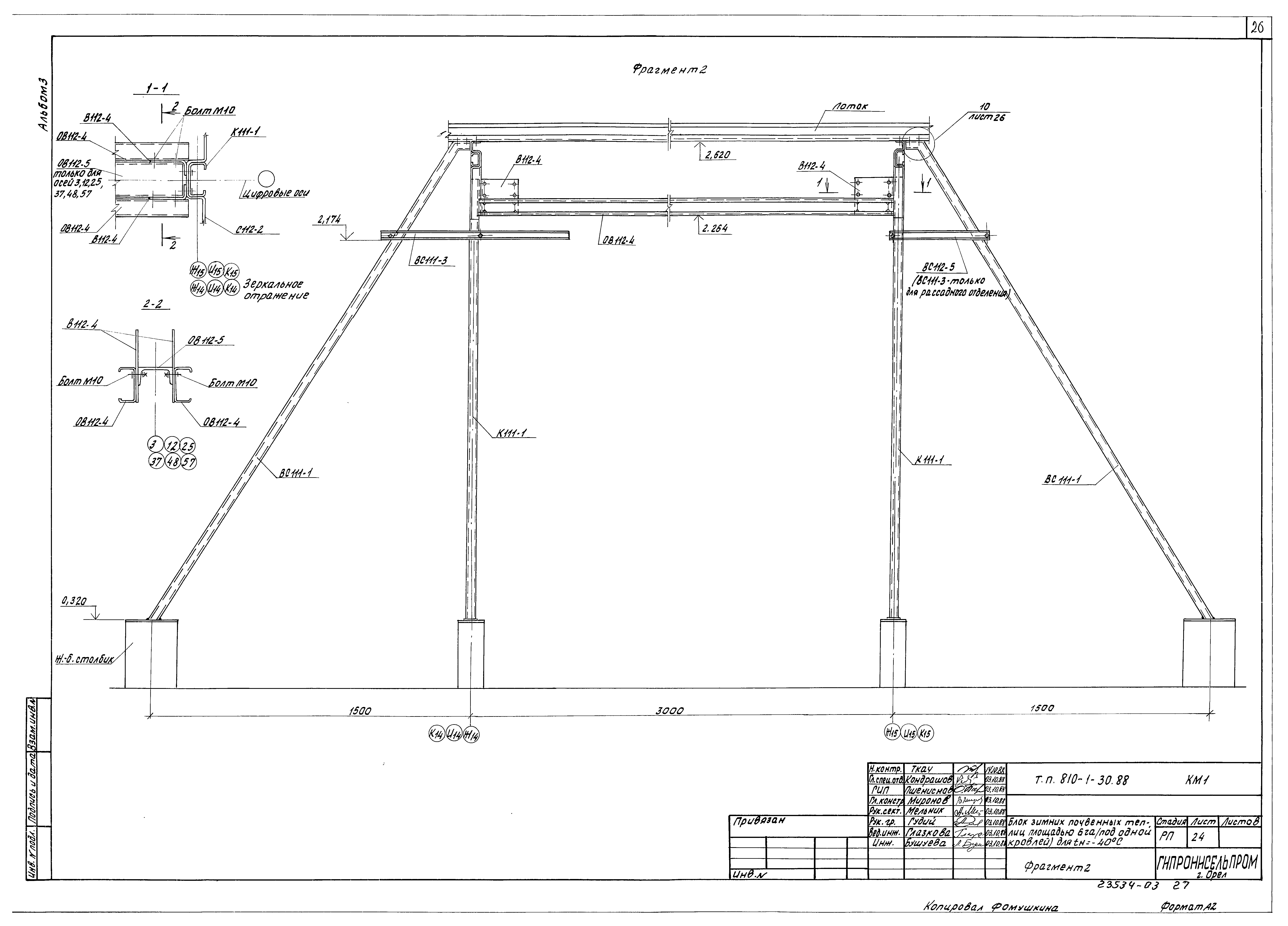
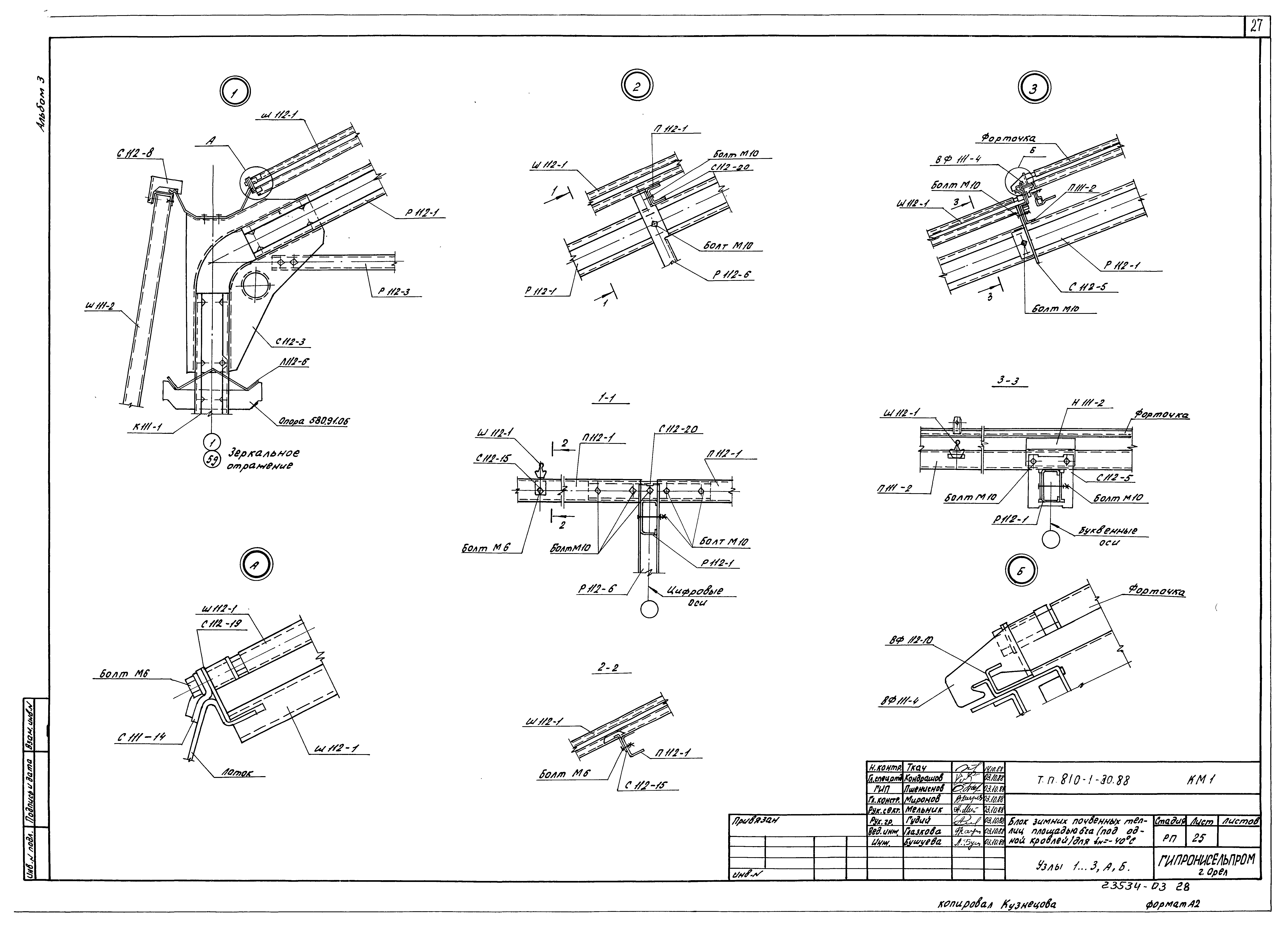
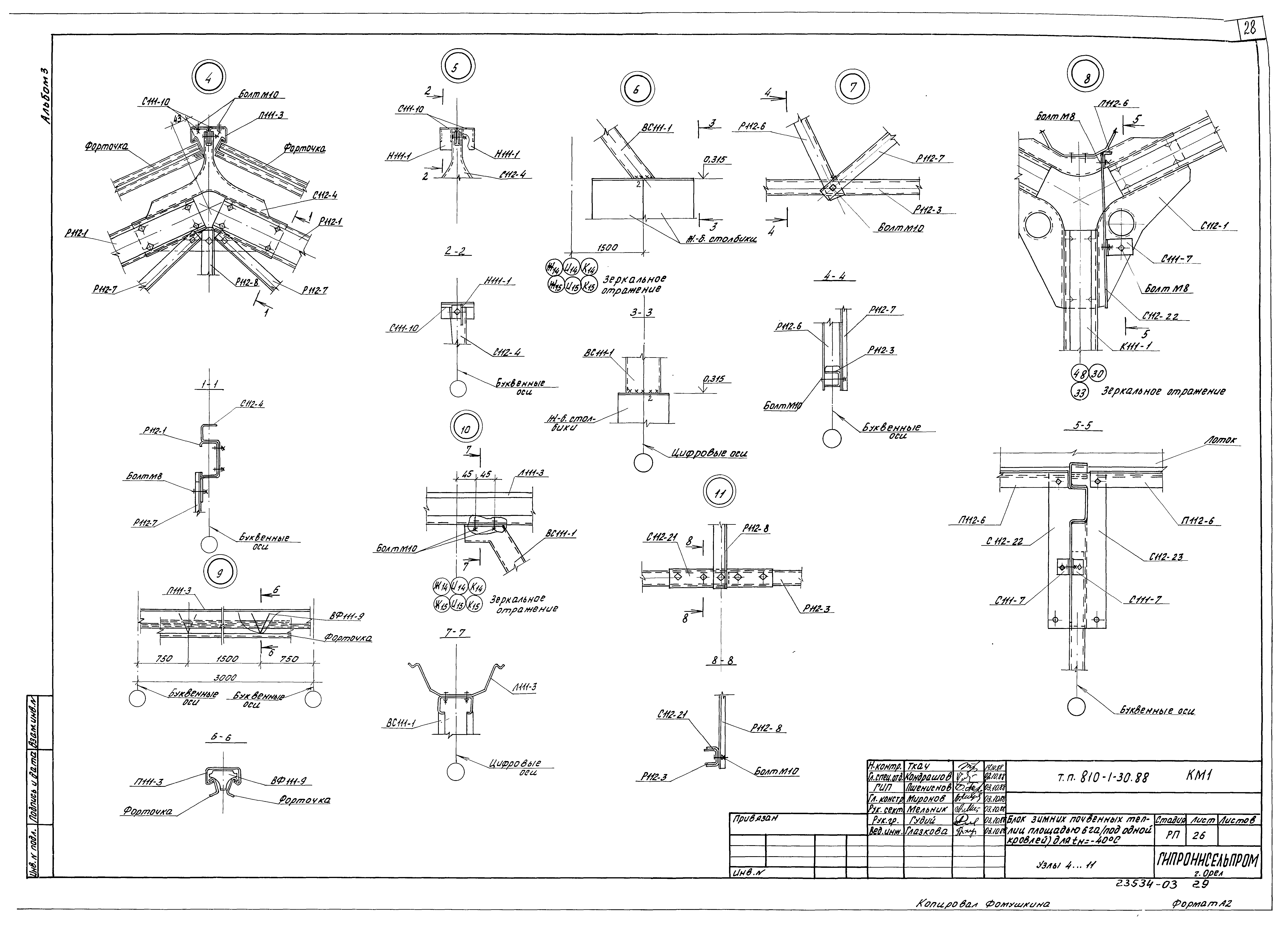
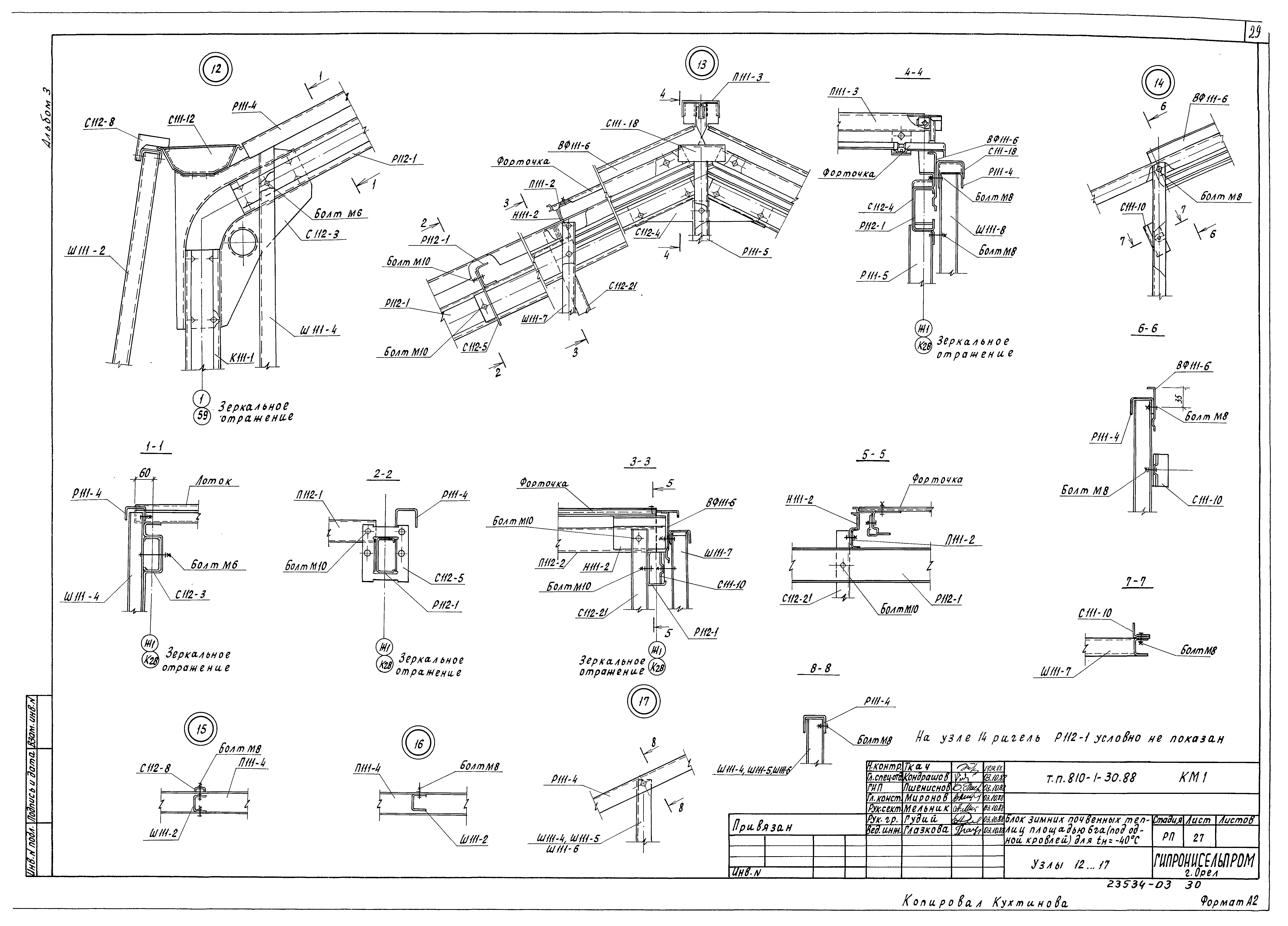
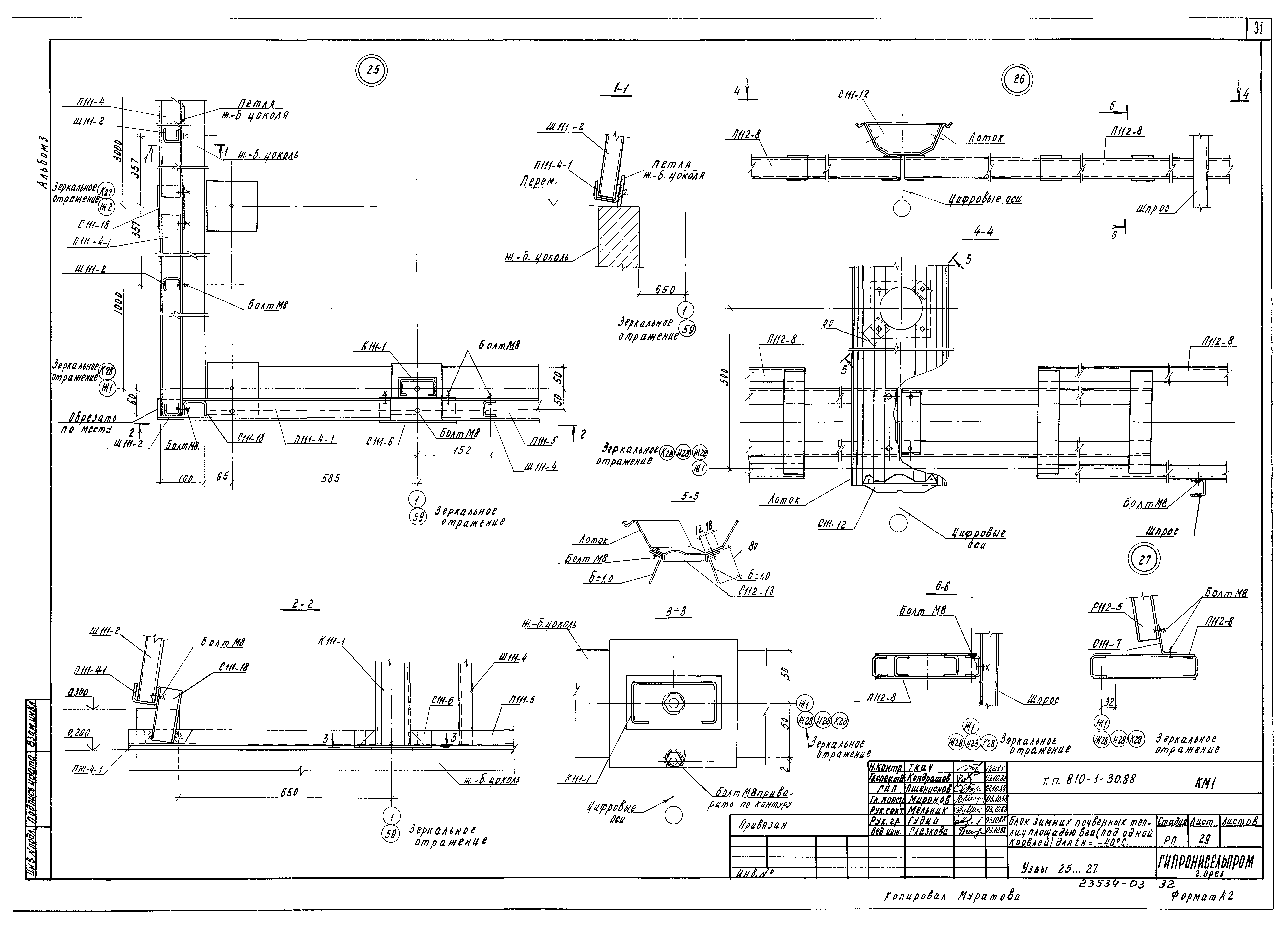
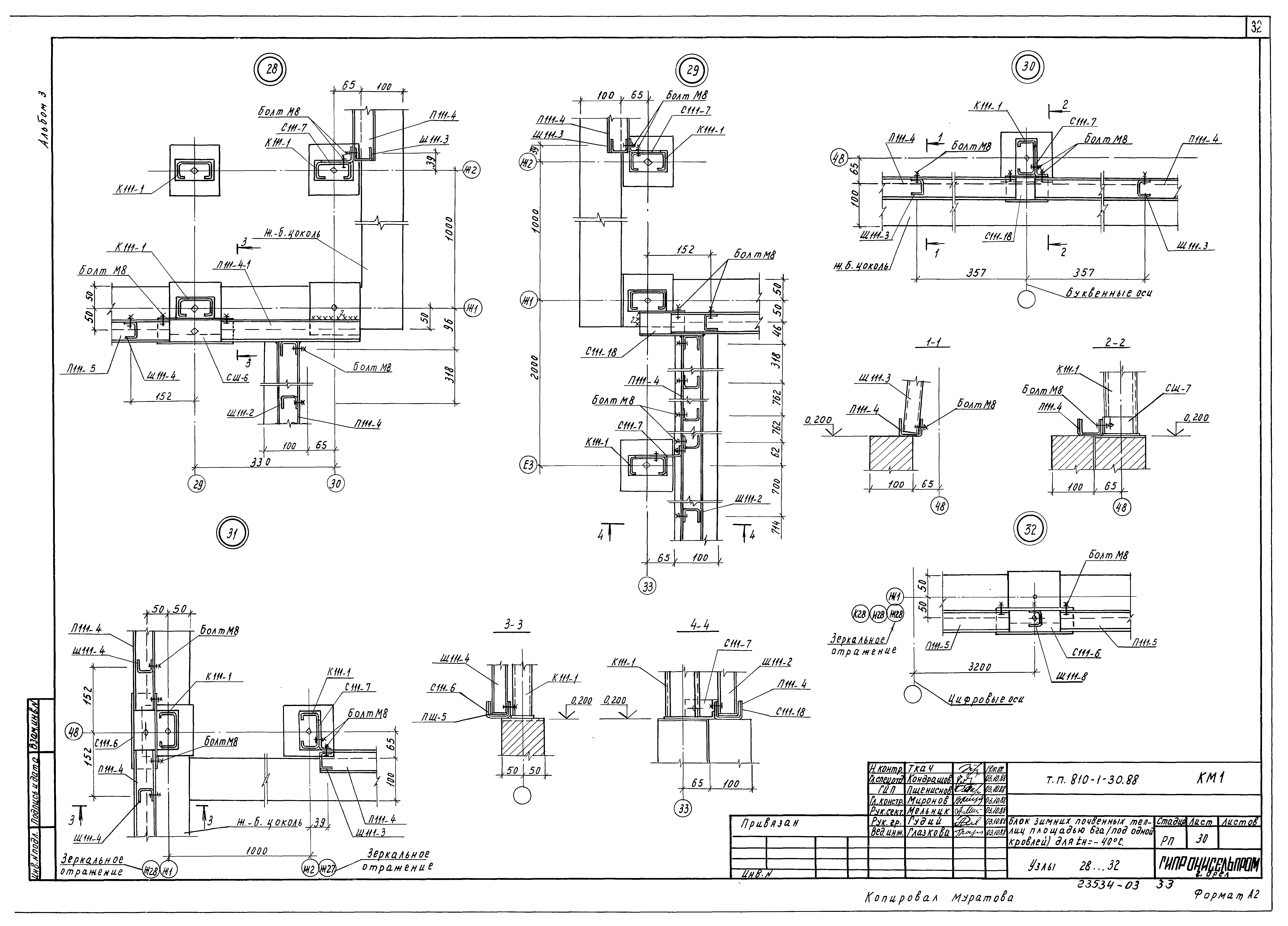
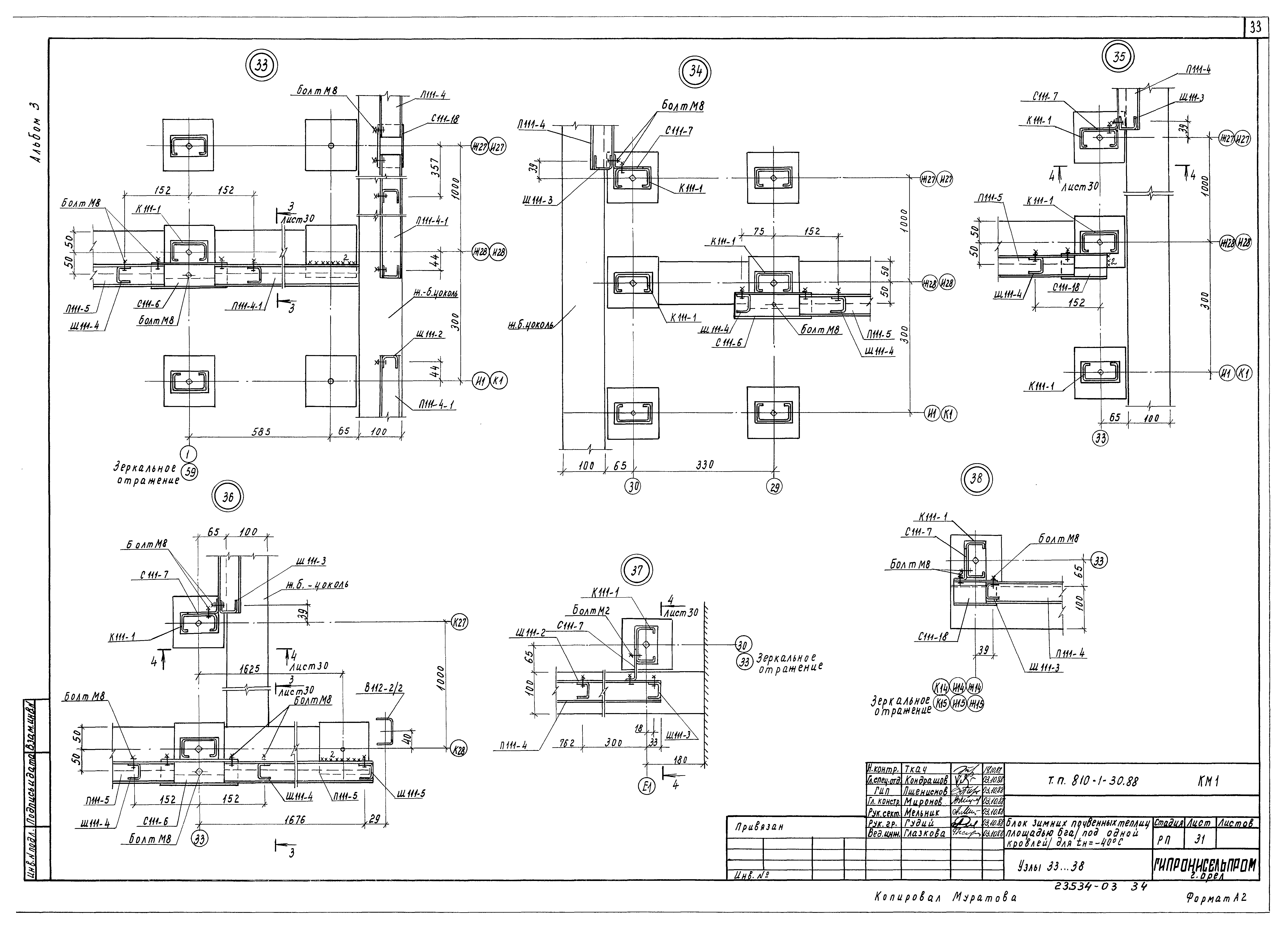
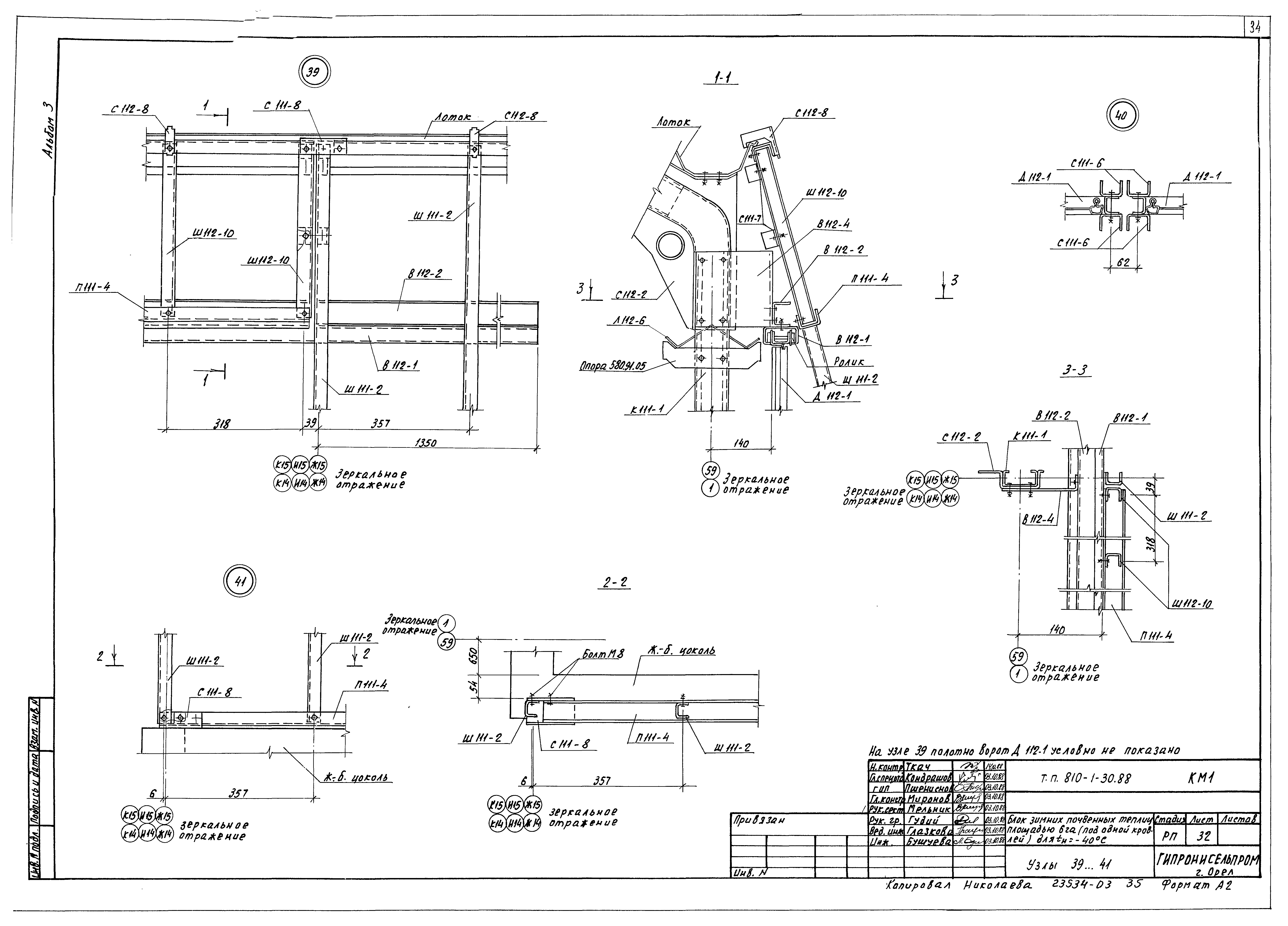
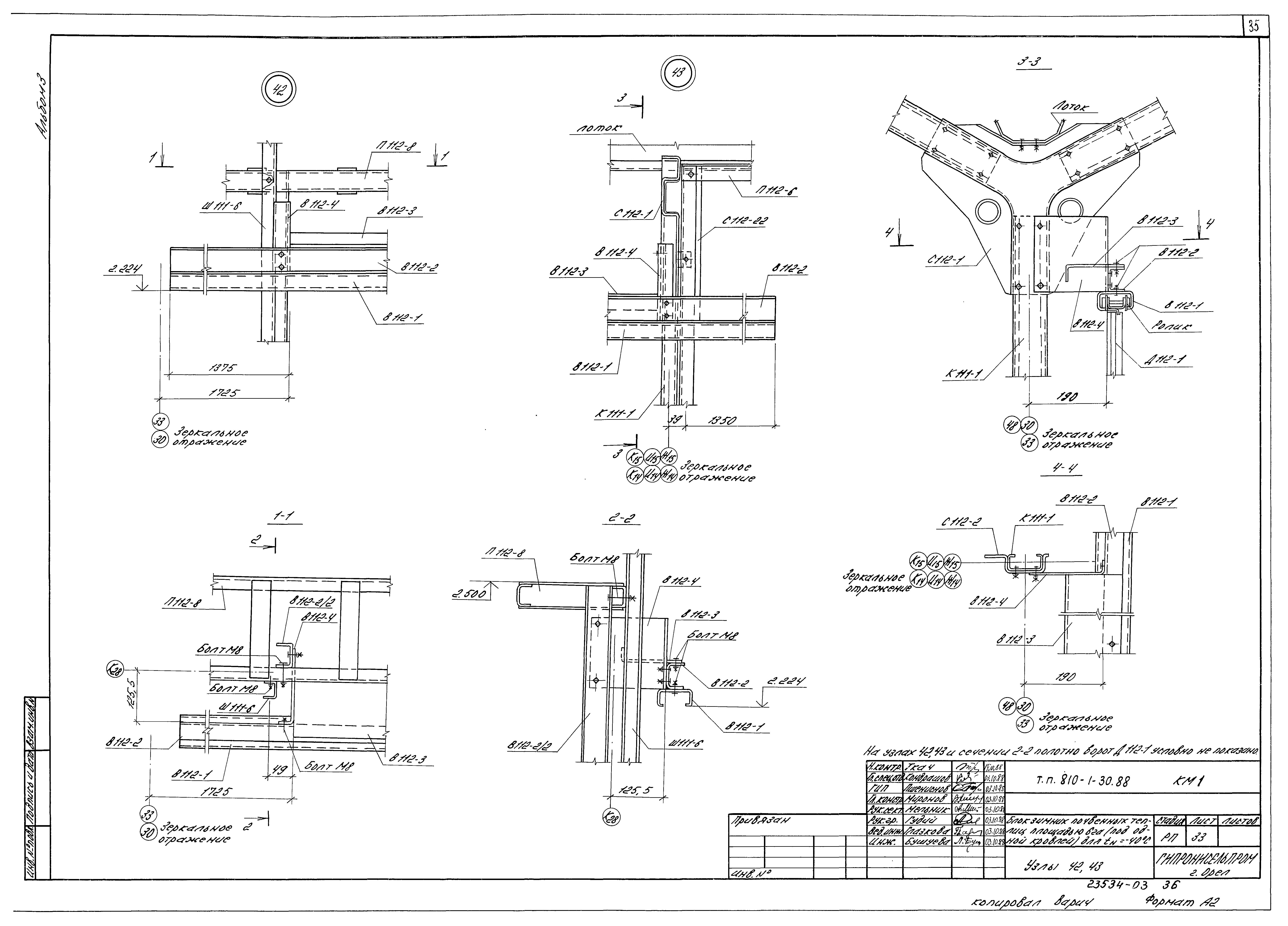
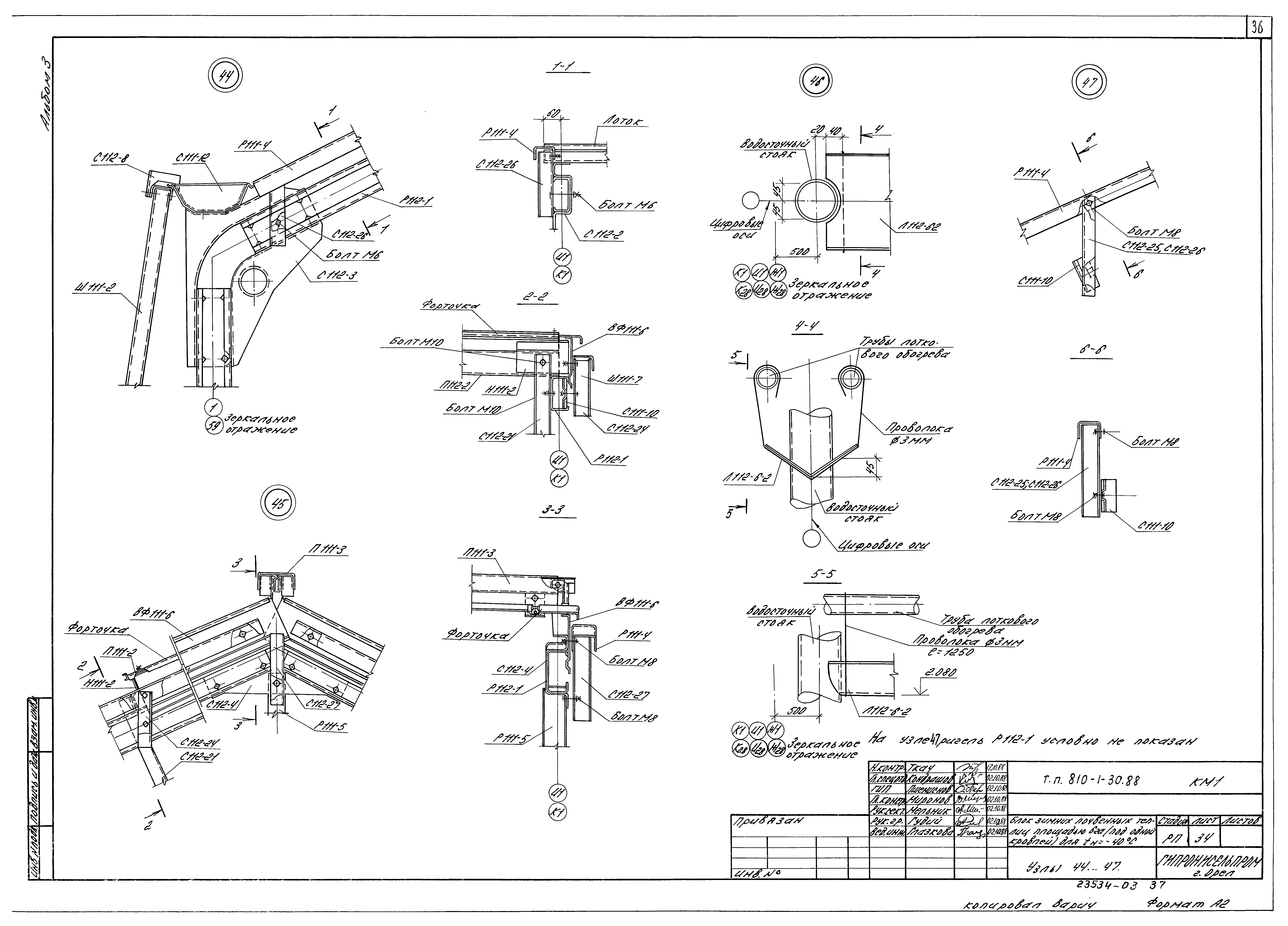
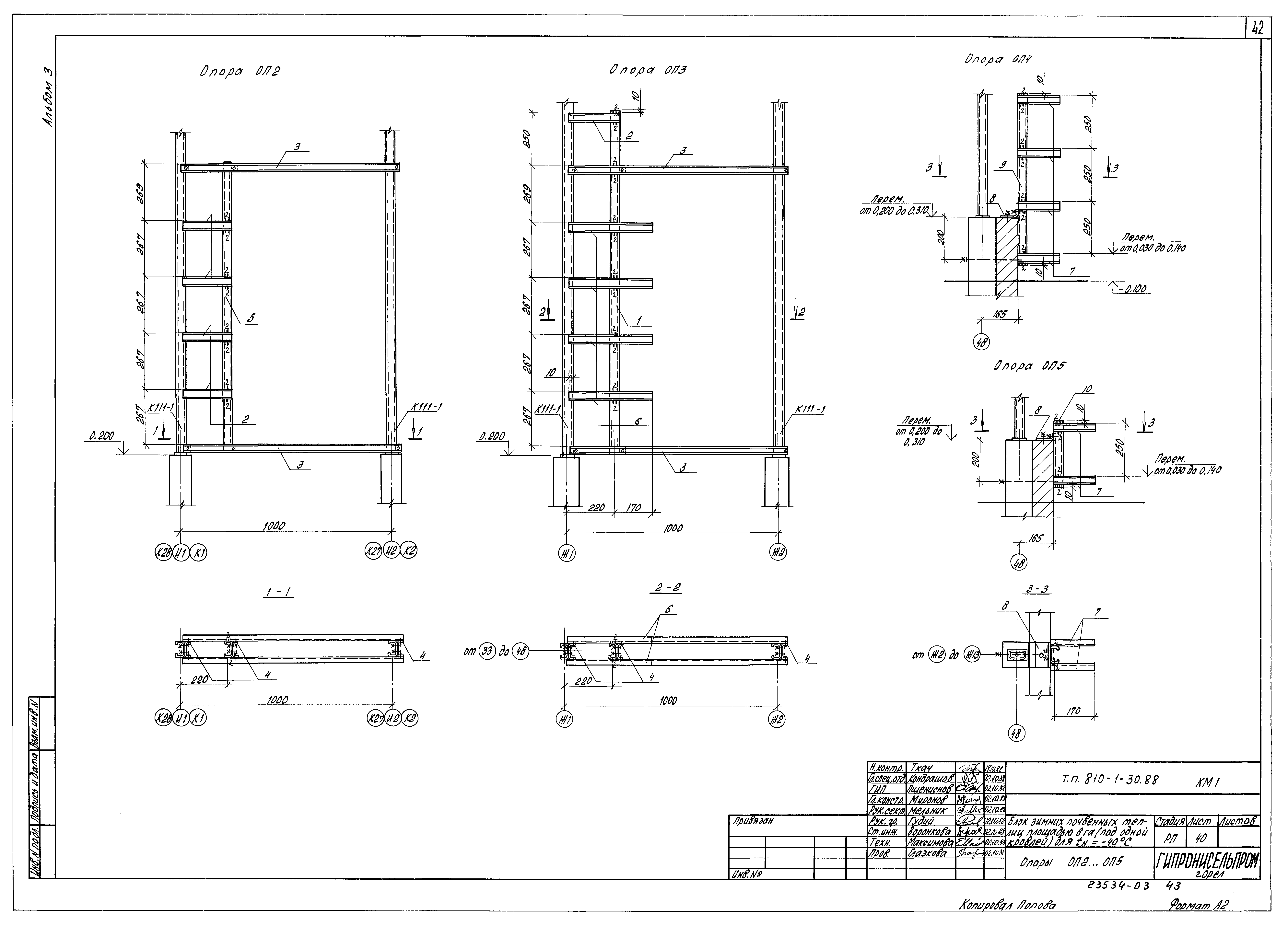
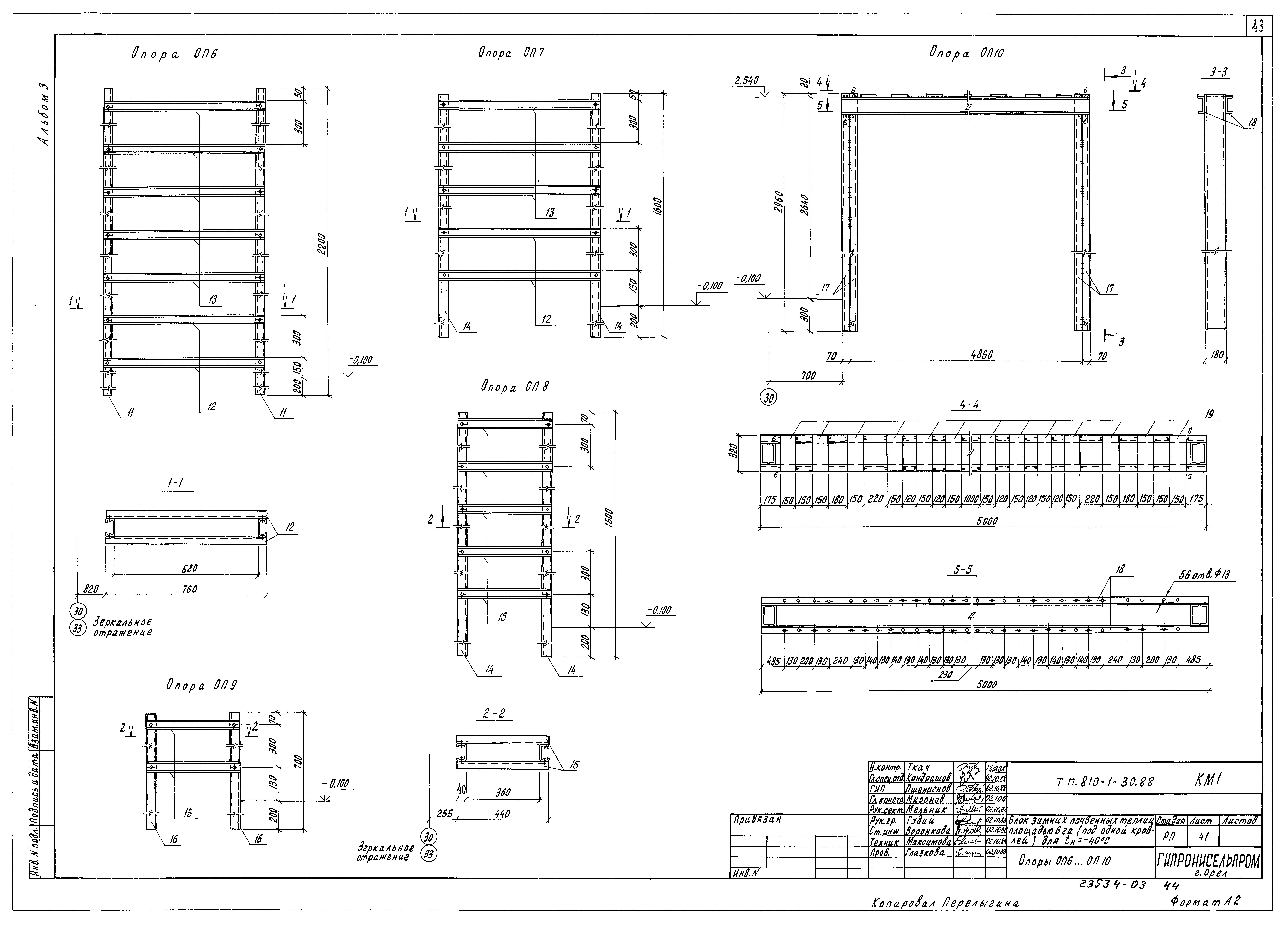
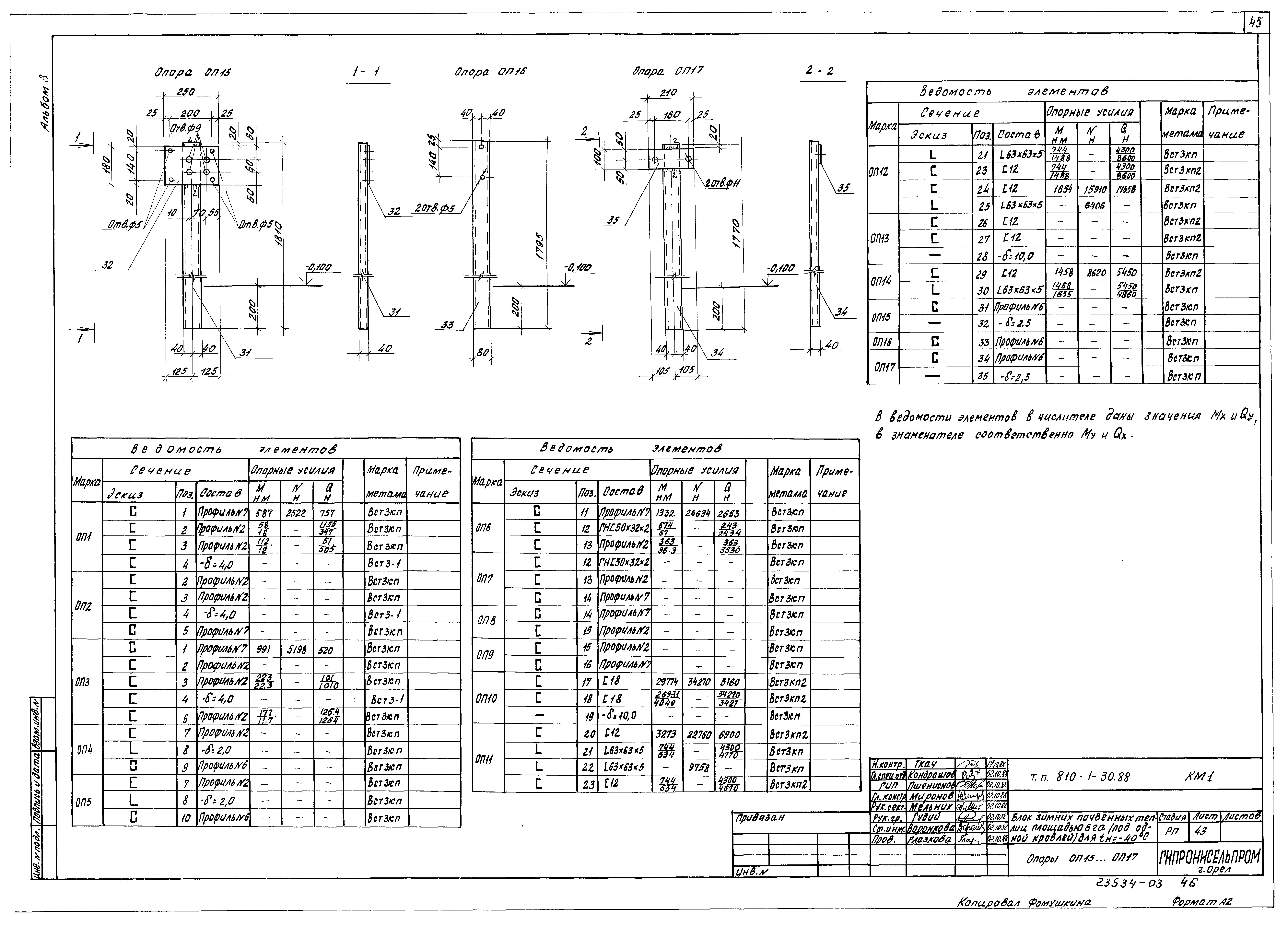
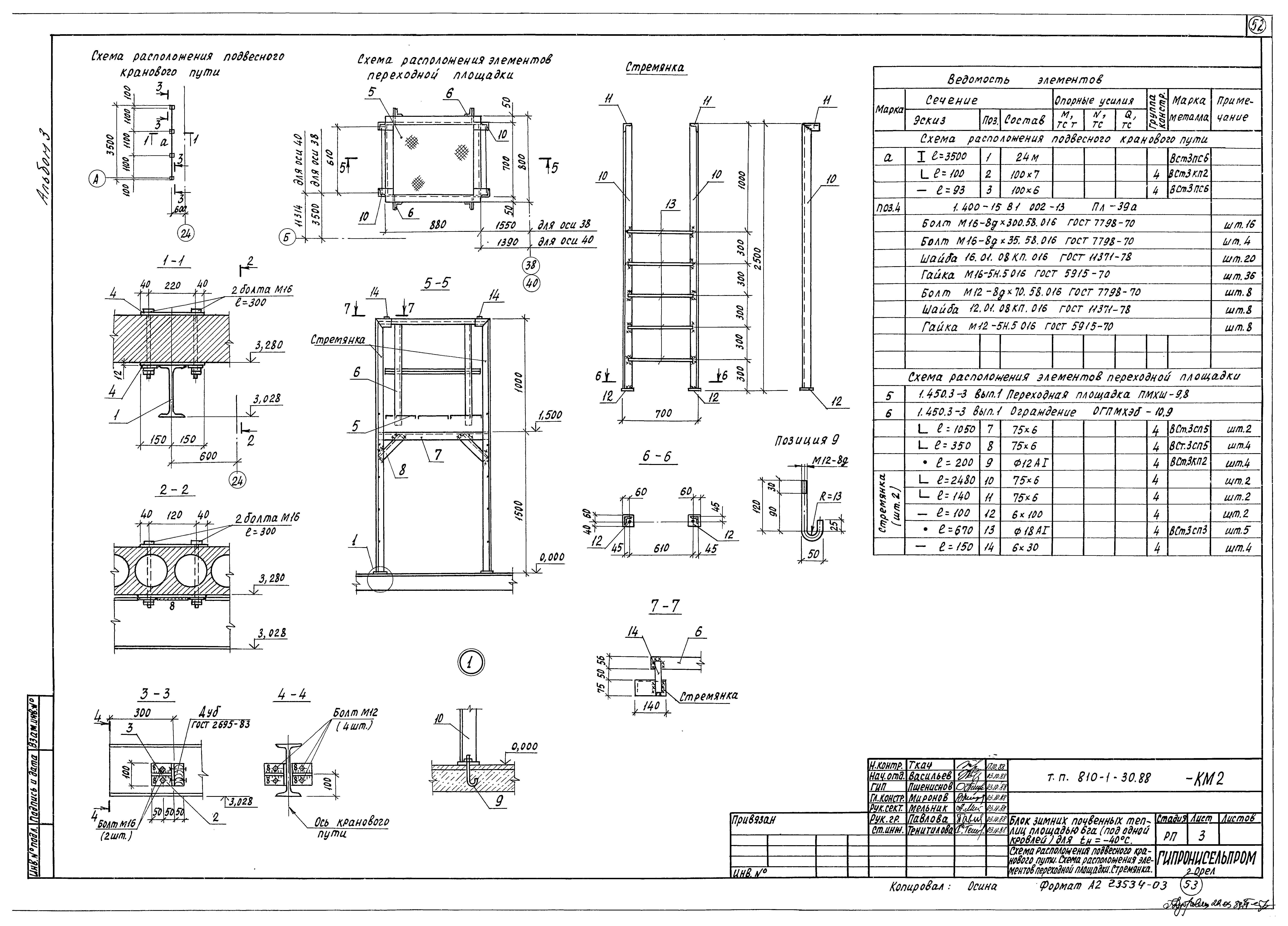
| Оглавление: | ТП 810-1-30.88 Содержание альбома ТП 810-1-30.88-КМ1 Конструкции металлические КМ1 ТП 810-1-30.88-КМ1 Общие данные (начало) ТП 810-1-30.88-КМ1 Общие данные (продолжение) ТП 810-1-30.88-КМ1 Общие данные (окончание) ТП 810-1-30.88-КМ1 Схема расположения стоек, ригелей, прогонов и лотков конденсата теплицы 1,2 ТП 810-1-30.88-КМ1 Схема расположения стоек, ригелей, прогонов и лотков конденсата теплицы 3 ТП 810-1-30.88-КМ1 Схема расположения стоек, ригелей, прогонов и лотков конденсата теплиц 4...6 ТП 810-1-30.88-КМ1 Разрезы 1-1,2-2,3-3 ТП 810-1-30.88-КМ1 Разрезы 4-4,5-5,6-6 ТП 810-1-30.88-КМ1 Схема расположения затяжек, подвесок и связей теплиц 4...6 ТП 810-1-30.88-КМ1 Схема расположения затяжек, подвесок и связей теплиц 1,2 ТП 810-1-30.88-КМ1 Схема расположения затяжек, подвесок и связей теплицы 3 ТП 810-1-30.88-КМ1 Схема расположения связей покрытия теплиц 4...6. Разрезы 7-7,8-8,9-9 ТП 810-1-30.88-КМ1 Схема расположения связей покрытия теплиц 1...3. Разрезы 10-10,11-11,12-12 ТП 810-1-30.88-КМ1 Схема расположения лотков, форточек и шпросов покрытия теплиц 1,2 ТП 810-1-30.88-КМ1 Схема расположения лотков, форточек и шпросов покрытия теплиц 3 ТП 810-1-30.88-КМ1 Схема расположения лотков, форточек и шпросов покрытия в теплицах 4...6 ТП 810-1-30.88-КМ1 Разрезы 13-13...15-15 ТП 810-1-30.88-КМ1 Схема расположения элементов по осям Ж1,К28,Ж2,И2...И27,К2...К27 ТП 810-1-30.88-КМ1 Схема расположения элементов по осям И1,К1,1,59 ТП 810-1-30.88-КМ1 Схема расположения элементов по осям 48,30,33 ТП 810-1-30.88-КМ1 Схема расположения элементов по осям Ж28,И28 ТП 810-1-30.88-КМ1 Фрагмент 1 ТП 810-1-30.88-КМ1 Фрагмент 2 ТП 810-1-30.88-КМ1 Узлы 1...3,А,Б ТП 810-1-30.88-КМ1 Узлы 4...11 ТП 810-1-30.88-КМ1 Узлы 12...17 ТП 810-1-30.88-КМ1 Узлы 18...24 ТП 810-1-30.88-КМ1 Узлы 25...27 ТП 810-1-30.88-КМ1 Узлы 28...32 ТП 810-1-30.88-КМ1 Узлы 33...38 ТП 810-1-30.88-КМ1 Узлы 39...41 ТП 810-1-30.88-КМ1 Узлы 42,43 ТП 810-1-30.88-КМ1 Узлы 44...47 ТП 810-1-30.88-КМ1 Схема расположения элементов ворот Д112-1 ТП 810-1-30.88-КМ1 Форточка ВФС1...ВФС3 ТП 810-1-30.88-КМ1 Схема расположения опор в теплицах 1,2,4...6 ТП 810-1-30.88-КМ1 Схема расположения опор в теплице 3 ТП 810-1-30.88-КМ1 Схема расположения опор в соединительном коридоре. Опора ОП1 ТП 810-1-30.88-КМ1 Опоры ОП2...ОП5 ТП 810-1-30.88-КМ1 Опоры ОП6...ОП10 ТП 810-1-30.88-КМ1 Опоры ОП11...ОП14 ТП 810-1-30.88-КМ1 Опоры ОП15...ОП17 ТП 810-1-30.88-КМ1 Элементы В112-1...В112-4,Ш112-10 ТП 810-1-30.88-КМ1 Прогоны П112-1-,П111-2-1,П111-3-3,П111-4-1. Связь ВС 112-5. Верхний и нижний пояса форточки ВФ111-2-1,ВФ111-1-1. Прогоны ОВ112-4,ОВ112-5 ТП 810-1-30.88-КМ1 Прогон П112-6. Связи С112-22,С112-23. Кляммеры КЛ1,КЛ2,КЛ2-01,КЛ2-02,КЛ3,КЛ3-01. ВФ112-10,С112-19,ОВ112-5 ТП 810-1-30.88-КМ1 Лотки Л112-4...112-6. Доработка лотка Л112-6. Связи С112-24...С112-29. Фланец С112-13 ТП 810-1-30.88-КМ2 Конструкции металлические КМ2 ТП 810-1-30.88-КМ2 Общие данные (начало) ТП 810-1-30.88-КМ2 Общие данные (окончание) ТП 810-1-30.88-КМ2 Схема расположения подвесного кранового пути. Схема расположения элементов переходной площадки. Стремянка |
| Разработан: | Гипронисельпром Госагропрома СССР |
| Утверждён: | 06.12.1988 Госагропром СССР (USSR Gosagroprom 805-42/153) |




















































