Скачать Типовой проект 810-1-30.88 Альбом 4. Отопление и вентиляция. Технологические коммуникации. Тепломеханическая частьДата актуализации: 01.01.2021
|
| Обозначение: | Типовой проект 810-1-30.88 |
| Обозначение англ: | 810-1-30.88 |
| Статус: | не определен законодательством |
| Название рус.: | Альбом 4. Отопление и вентиляция. Технологические коммуникации. Тепломеханическая часть |
| Дата добавления в базу: | 01.09.2013 |
| Дата актуализации: | 01.01.2021 |
| Дата введения: | 07.12.1988 |
| Дата окончания срока действия: | 30.06.2003 |
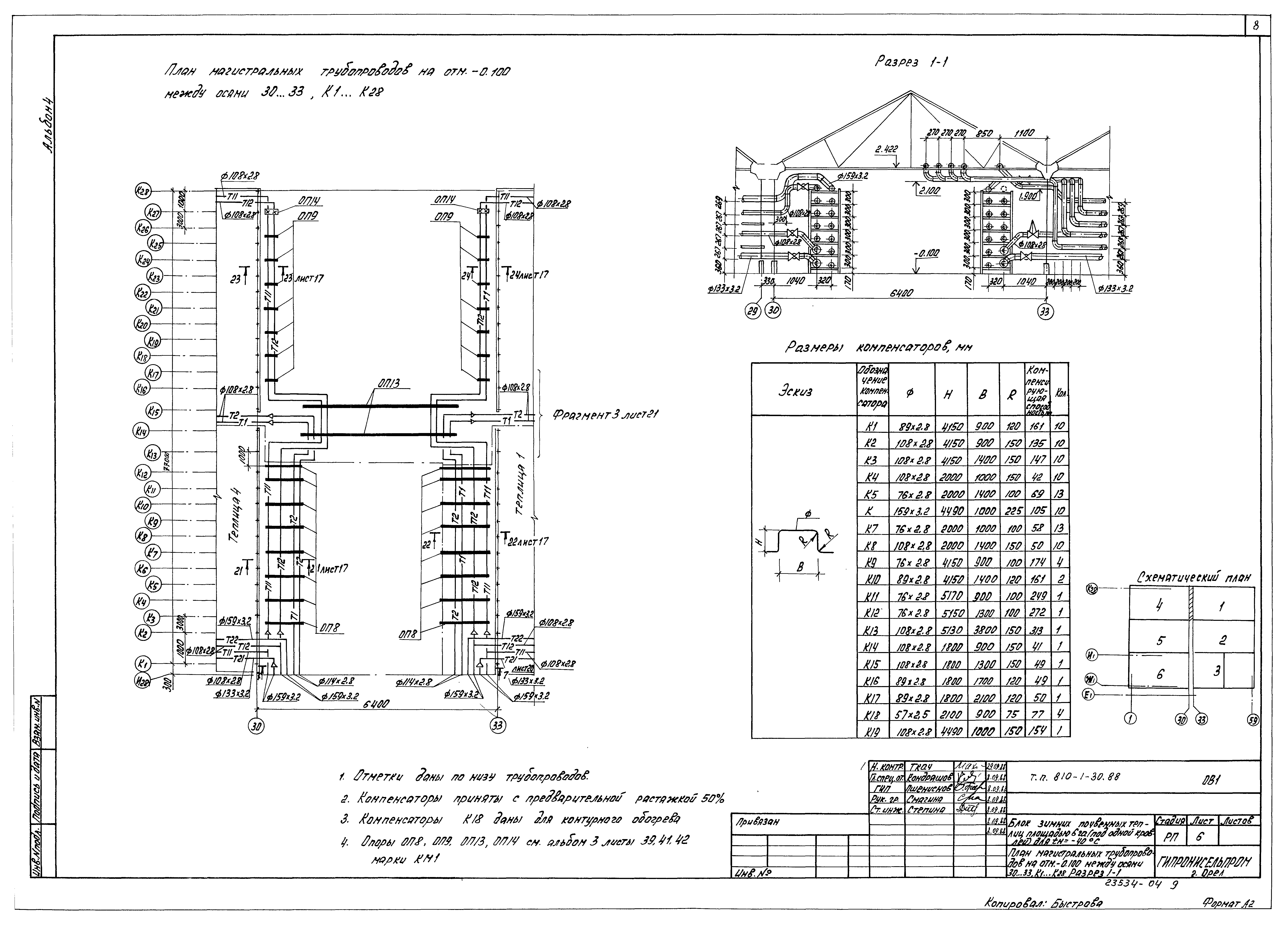
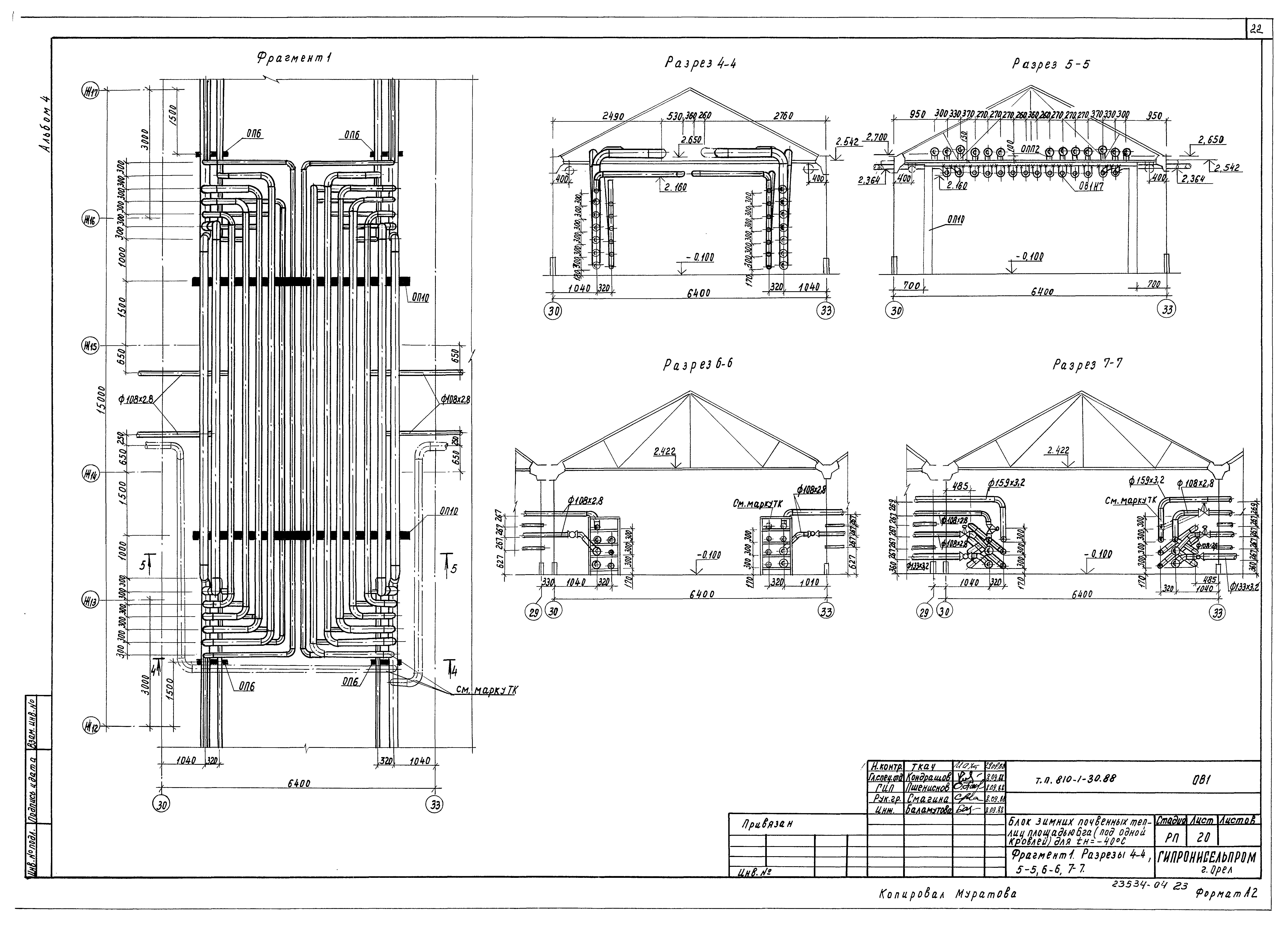
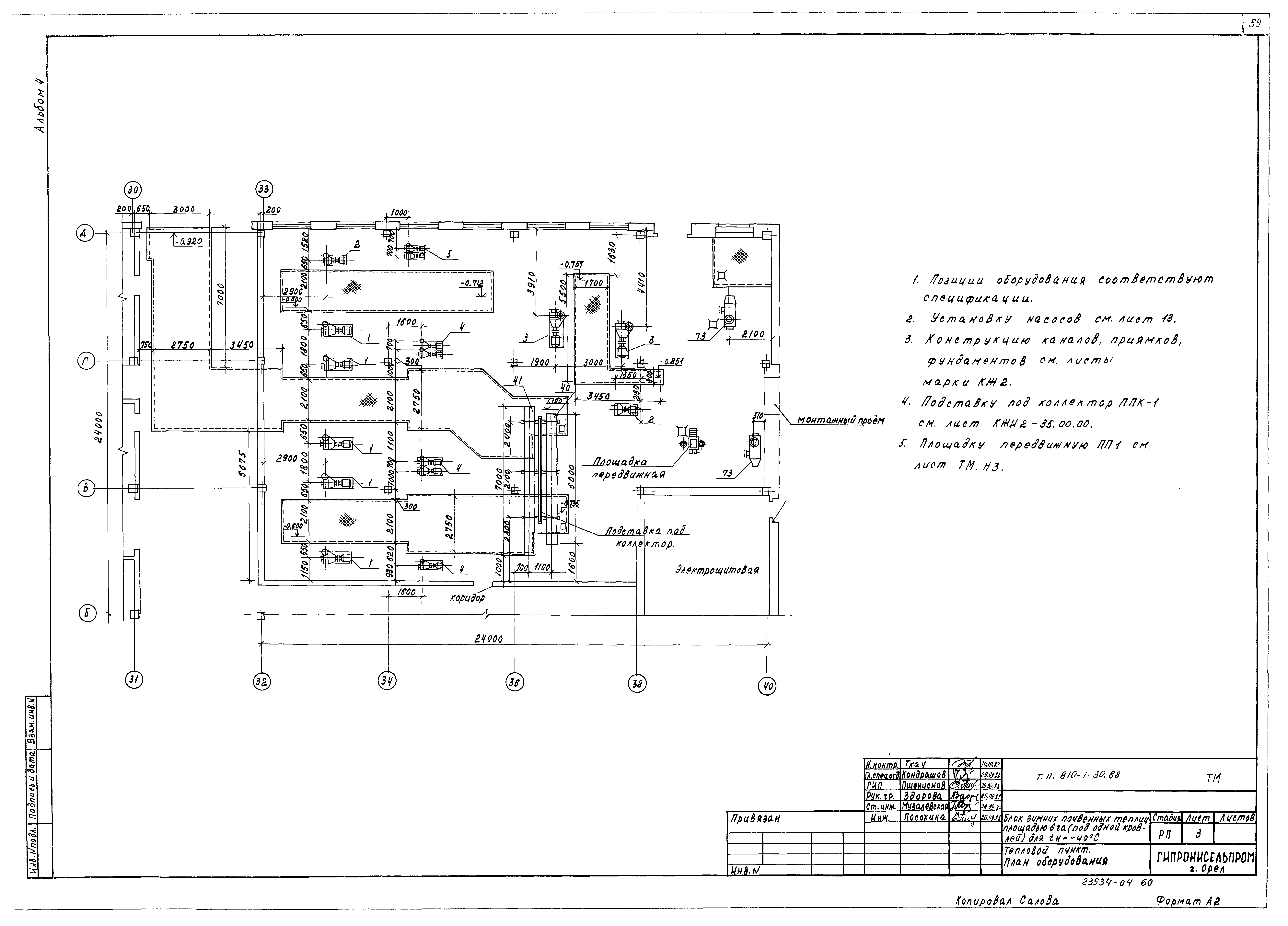
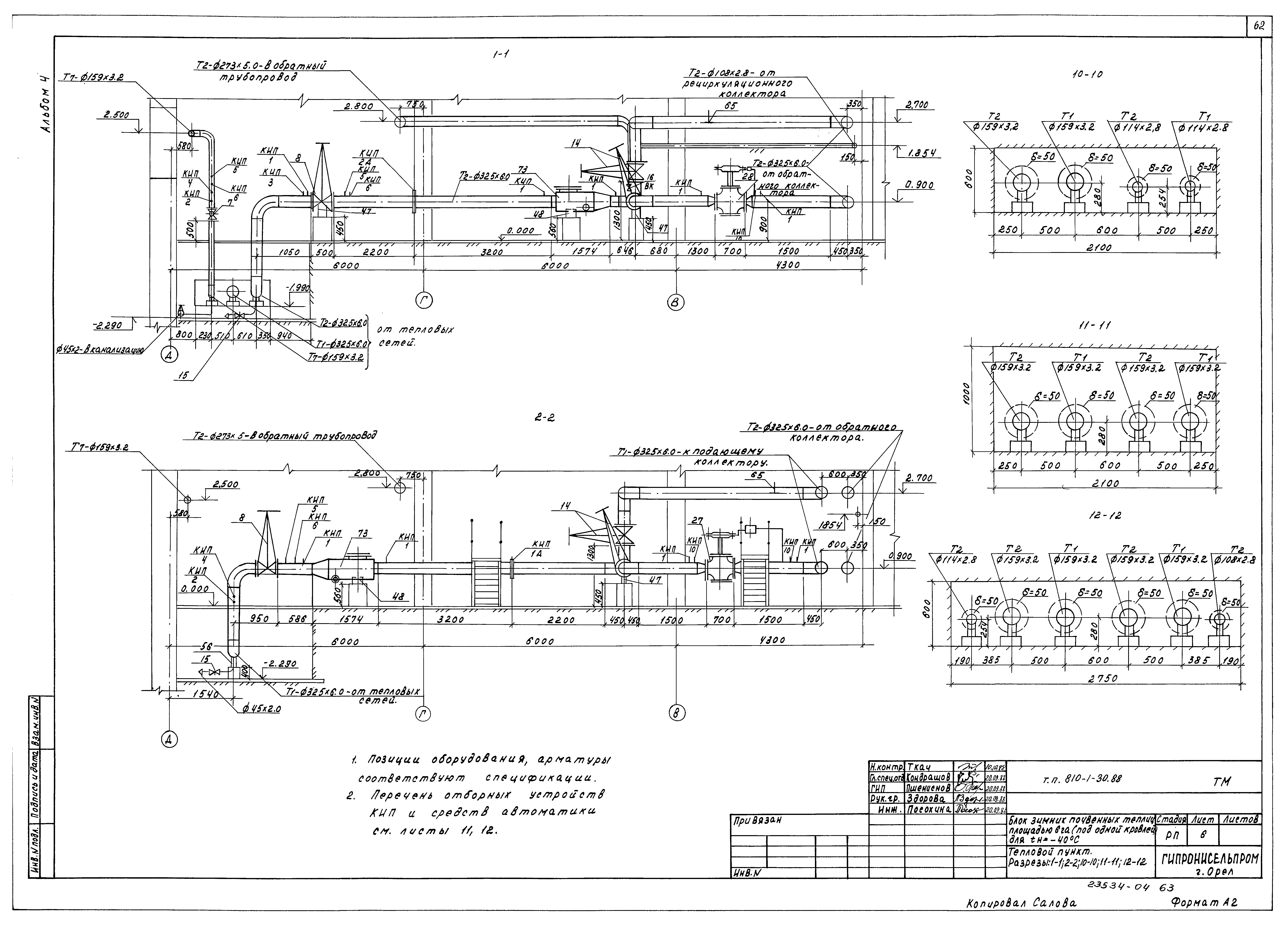
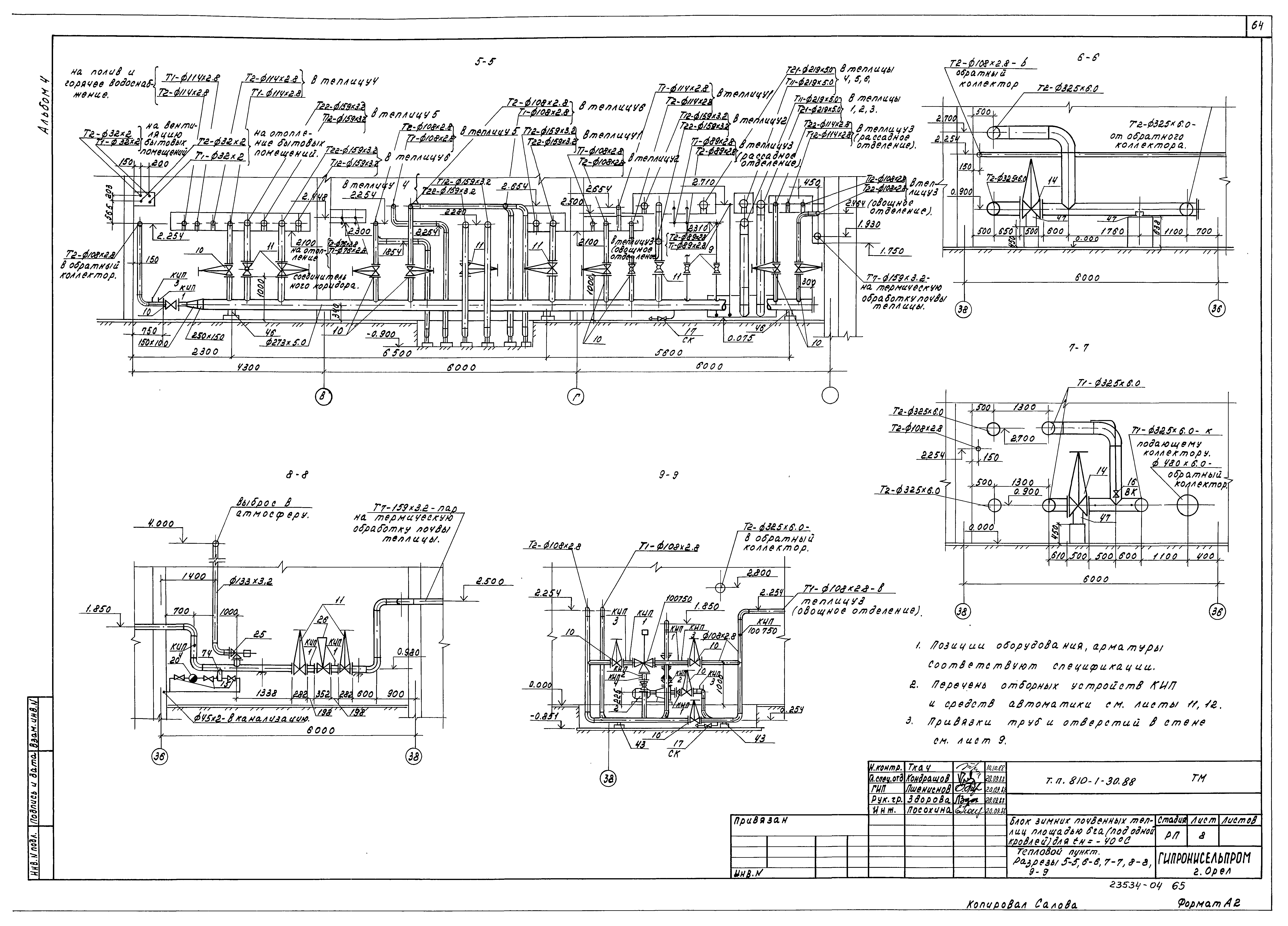
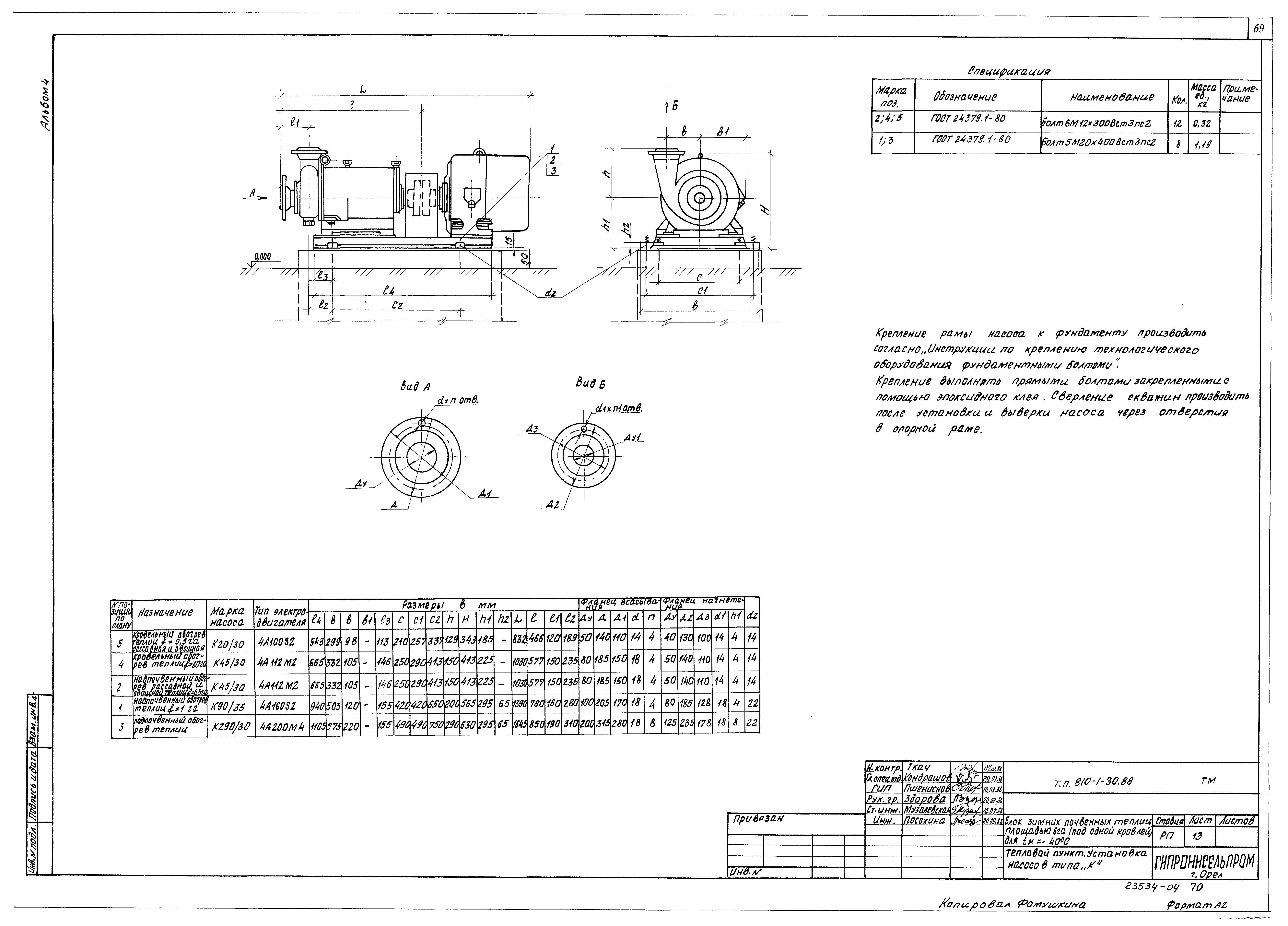
| Оглавление: | ТП 810-1-30.88 Содержание альбома ТП 810-1-30.88 ОВ1 Отопление и вентиляция ОВ1 ТП 810-1-30.88 ОВ1 Общие данные (начало) ТП 810-1-30.88 ОВ1 Общие данные (окончание) ТП 810-1-30.88 ОВ1 План магистральных трубопроводов на отм. -0.100 между осями 1...29,Ж1...К28;33...59,И1...К28 ТП 810-1-30.88 ОВ1 План магистральных трубопроводов на отм. -0.100 между осями 33...59,Ж1...Ж28 ТП 810-1-30.88 ОВ1 План магистральных трубопроводов на отм. -0.100 между осями 30...33,Е1...И28 ТП 810-1-30.88 ОВ1 План магистральных трубопроводов на отм. -0.100 между осями 30...33,К1...К28. Разрез 1-1 ТП 810-1-30.88 ОВ1 План кровельного обогрева на отм. -0.100 между осями 1...29,Ж1...К28;33...59,И1...К28 ТП 810-1-30.88 ОВ1 План кровельного обогрева на отм. -0.100 между осями 33...59,Ж1...Ж28 ТП 810-1-30.88 ОВ1 План надпочвенного обогрева на отм. -0.100 между осями 1...29,Ж1...К28;33...59,И1...К28 ТП 810-1-30.88 ОВ1 План надпочвенного обогрева на отм. -0.100 между осями 33...59,Ж1...Ж28 ТП 810-1-30.88 ОВ1 План подпочвенного обогрева на отм. -0.600 между осями 1...29,Ж1...К28;33...59,Т1...К28 ТП 810-1-30.88 ОВ1 План подпочвенного обогрева на отм. -0.600 между осями 33...59,Ж1...Ж28 ТП 810-1-30.88 ОВ1 План бокового и торцевого обогрева на отм. -0.100 между осями 1...29,Ж1...К28;33...59,И1...К28 ТП 810-1-30.88 ОВ1 План бокового и торцевого обогрева на отм. -0.100 между осями 33...59,Ж1...Ж28 ТП 810-1-30.88 ОВ1 Диаметры магистральных трубопроводов ТП 810-1-30.88 ОВ1 Сечения 1-1...11-11 ТП 810-1-30.88 ОВ1 Сечения 12-12...24-24 ТП 810-1-30.88 ОВ1 Разрез 2-2. Узел 1 ТП 810-1-30.88 ОВ1 Разрез 3-3. Узел 2 ТП 810-1-30.88 ОВ1 Фрагмент 1. Разрезы 4-4,5-5,6-6,7-7 ТП 810-1-30.88 ОВ1 Фрагмент 2,3. Разрезы 8-8,9-9,10-10 ТП 810-1-30.88 ОВ1 Фрагмент 4. Схема кровельного обогрева. Разрез 11-11 ТП 810-1-30.88 ОВ1 Фрагмент 5. Схема надпочвенного обогрева. Разрез 12-12 ТП 810-1-30.88 ОВ1 Фрагмент 6. Схема надпочвенного обогрева. Разрез 13-13 ТП 810-1-30.88 ОВ1 Фрагмент 7. Схема подпочвенного обогрева. Разрез 14-14 ТП 810-1-30.88 ОВ1 Фрагмент 8. Схема подпочвенного обогрева. Разрез 15-15 ТП 810-1-30.88 ОВ1 План контурного обогрева на отм. -0.100 между осями 1...29,Ж1...К28. Схема трубопроводов ТП 810-1-30.88 ОВ1 План систем отопления на отм. -0.100 между осями 30...333,Е1...К28. Разрезы 16-16,17-17 ТП 810-1-30.88 ОВ1 Схема системы отопления соединительного коридора ТП 810-1-30.88 ОВ1 Схема бокового, торцевого обогрева и магистральных трубопроводов между осями 1...29,Ж1...К28;33...59, И1...К28 ТП 810-1-30.88 ОВ1 Схема бокового, торцевого обогрева и магистральных трубопроводов между осями 33...59,Ж1...Ж28 ТП 810-1-30.88 ОВ1 Схема магистральных трубопроводов подпочвенного обогрева между осями 1...29,33...59,Ж1...К28 ТП 810-1-30.88 ОВ1 Схема магистральных трубопроводов между осями 30...33,Е1...Ж28 ТП 810-1-30.88 ОВ1 Схема магистральных трубопроводов между осями 30...33,И1...И28 ТП 810-1-30.88 ОВ1 Схема магистральных трубопроводов между осями 30...33,К1...К28 ТП 810-1-30.88 ОВ1Е Чертежи общих видов нетиповых конструкций систем отопления и вентиляции ОВ1Н ТП 810-1-30.88 ОВ2 Отопление и вентиляция ОВ2 ТП 810-1-30.88 ОВ2 Общие данные (начало) ТП 810-1-30.88 ОВ2 Общие данные (продолжение) ТП 810-1-30.88 ОВ2 Общие данные (окончание) ТП 810-1-30.88 ОВ2 План на отм. 0.000 между осями 18...32 и А...Д ТП 810-1-30.88 ОВ2 План на отм. 0.000 между осями 32...40 и А...Д ТП 810-1-30.88 ОВ2 Экспликация помещения ТП 810-1-30.88 ОВ2 Разрез 1-1. Схема системы теплоснабжения установок П1...П3,А1 ТП 810-1-30.88 ОВ2 Схема системы отопления между осями 18...32,А...Д ТП 810-1-30.88 ОВ2 Схема системы отопления между осями 32...40 и А...Д и теплоснабжения водоподогревателей ТП 810-1-30.88 ОВ2 Схемы систем вентиляции ТП 810-1-30.88 ОВ2 План расположения вентоборудования на кровле ТП 810-1-30.88 ОВ2Н Чертежи общих видов нетиповых конструкций систем отопления и вентиляции ОВ2Н ТП 810-1-30.88 ТК Технологические коммуникации ТК ТП 810-1-30.88 ТК Общие данные ТП 810-1-30.88 ТК План на отм. -0.100 между осями 1...59,Ж1...К28. Фрагмент 1 ТП 810-1-30.88 ТК Схема паропроводов. Сечения 1-1,2-2,3-3 ТП 810-1-30.88 ТМ Тепломеханическая часть ТМ ТП 810-1-30.88 ТМ Общие данные (начало) ТП 810-1-30.88 ТМ Общие данные (окончание) ТП 810-1-30.88 ТМ Тепловой пункт. План оборудования ТП 810-1-30.88 ТМ Тепловой пункт. План между осями 34...40 ТП 810-1-30.88 ТМ Тепловой пункт. План между осями 31...34 ТП 810-1-30.88 ТМ Тепловой пункт. Разрезы 1-1;2-2;10-10;11-11;12-12 ТП 810-1-30.88 ТМ Тепловой пункт. Разрезы 3-3;4-4;13-13;14-14 ТП 810-1-30.88 ТМ Тепловой пункт. Разрезы 5-5;6-6;7-7;8-8;9-9 ТП 810-1-30.88 ТМ Тепловой пункт. Разрезы 15-15,16-16,17-17. Узел "А" ТП 810-1-30.88 ТМ Тепловой пункт. Принципиальная схема трубопроводов ТП 810-1-30.88 ТМ Тепловой пункт. Узлы пропорционального регулирования УР1,УР2,УР5 ТП 810-1-30.88 ТМ Тепловой пункт. Узлы пропорционального регулирования УР3,УР4 ТП 810-1-30.88 ТМ Тепловой пункт. Установка насосов типа "К" ТП 810-1-30.88 ТМН Чертежи общих видов нетиповых конструкций систем тепломеханической части ТМН |
| Разработан: | Гипронисельпром Госагропрома СССР |
| Утверждён: | 06.12.1988 Госагропром СССР (USSR Gosagroprom 805-42-153) |









































































