Скачать Типовой проект 810-1-30.88 Альбом 5. Газоснабжение. Холодоснабжение. Внутренние водопровод и канализацияДата актуализации: 01.01.2021
|
| Обозначение: | Типовой проект 810-1-30.88 |
| Обозначение англ: | 810-1-30.88 |
| Статус: | не определен законодательством |
| Название рус.: | Альбом 5. Газоснабжение. Холодоснабжение. Внутренние водопровод и канализация |
| Дата добавления в базу: | 01.09.2013 |
| Дата актуализации: | 01.01.2021 |
| Дата введения: | 07.12.1988 |
| Дата окончания срока действия: | 30.06.2003 |
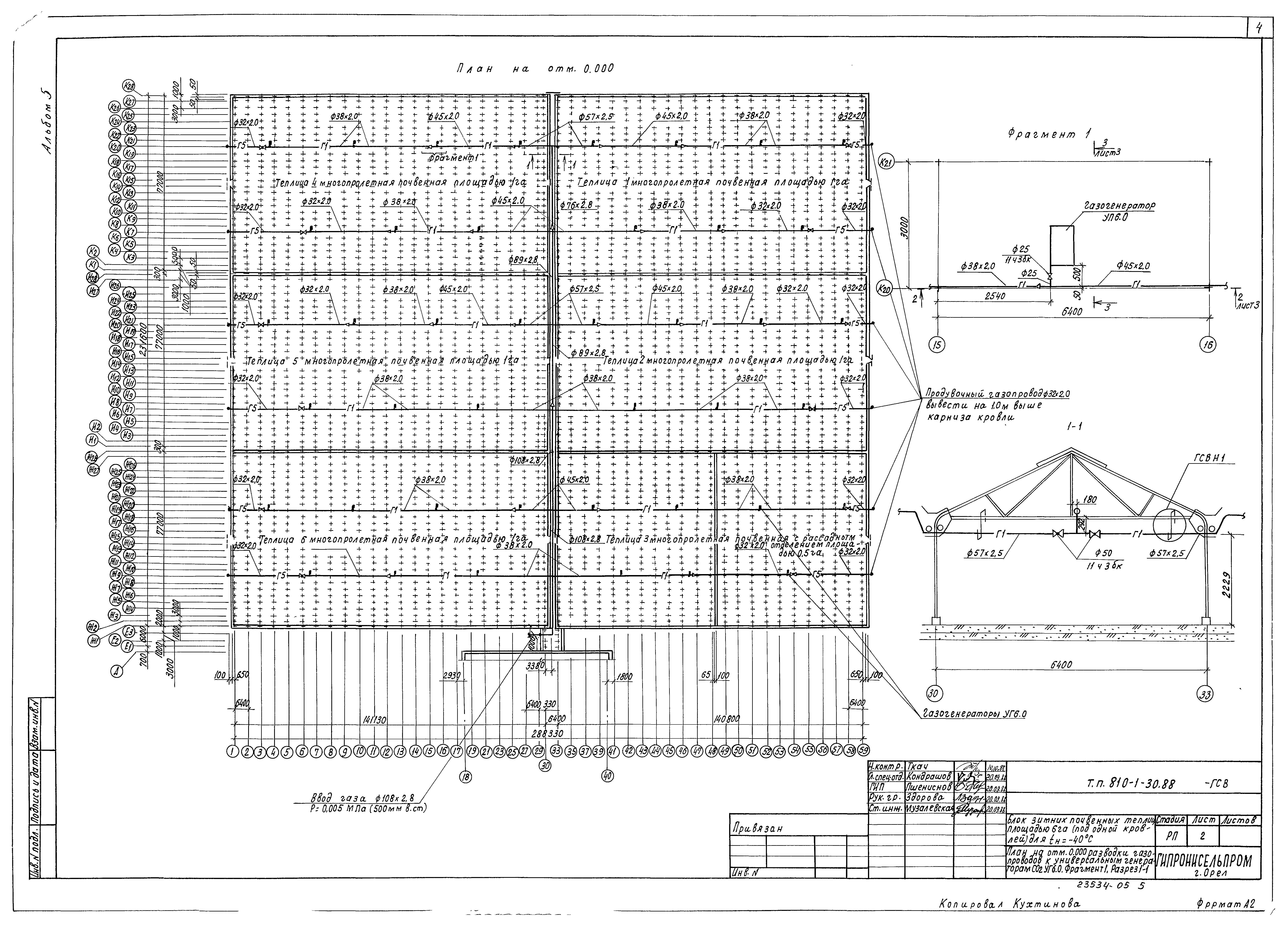
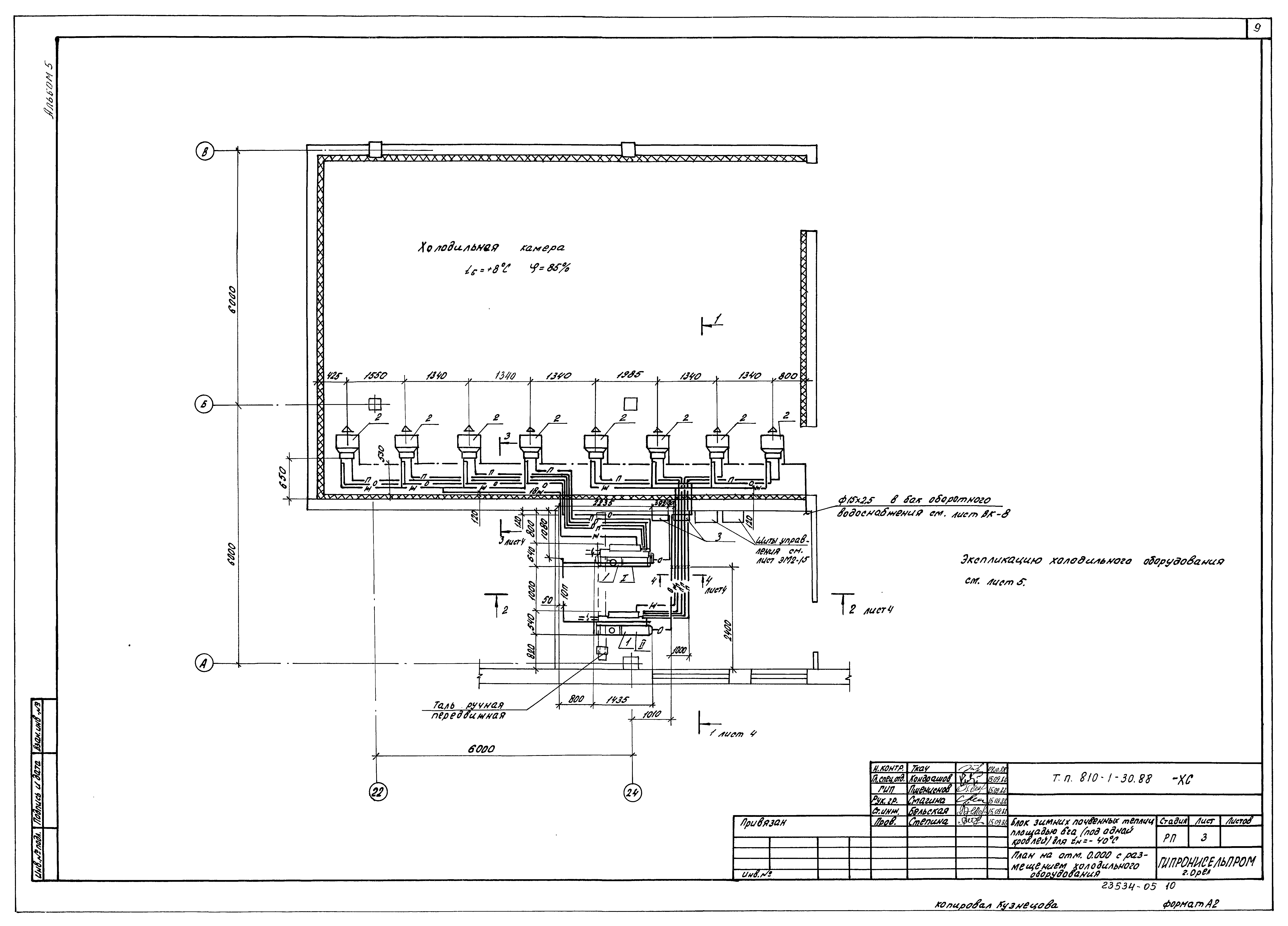
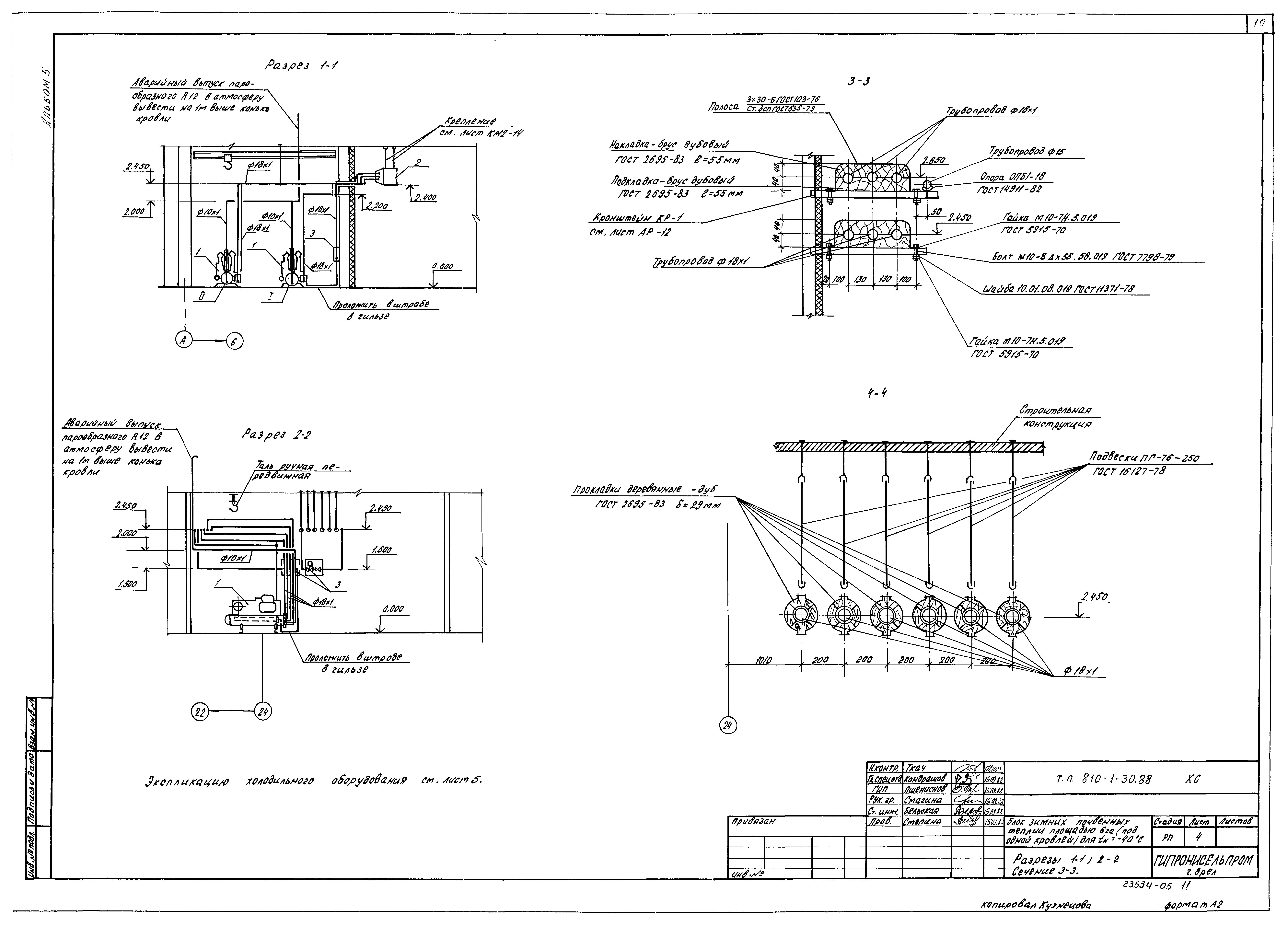
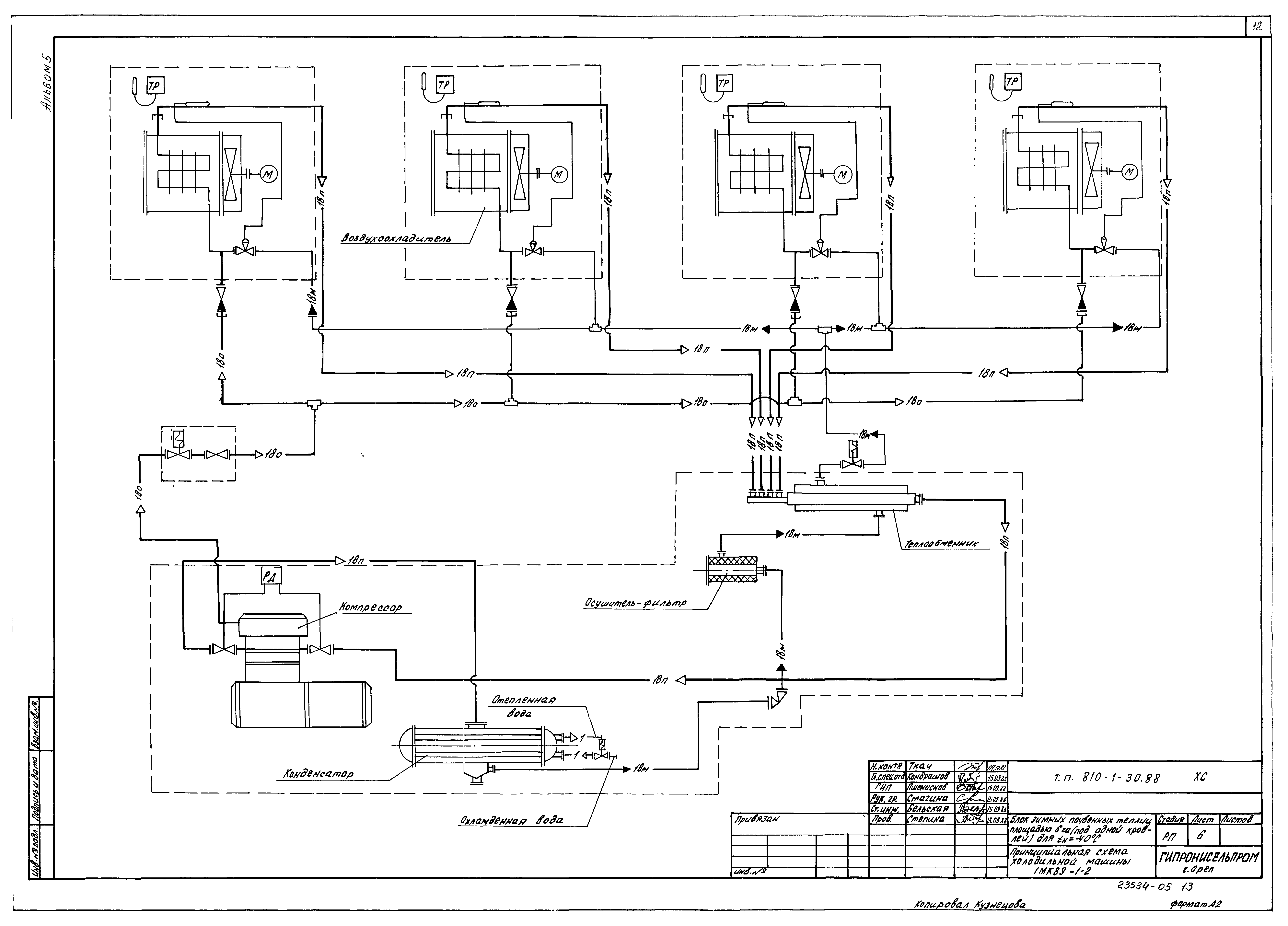
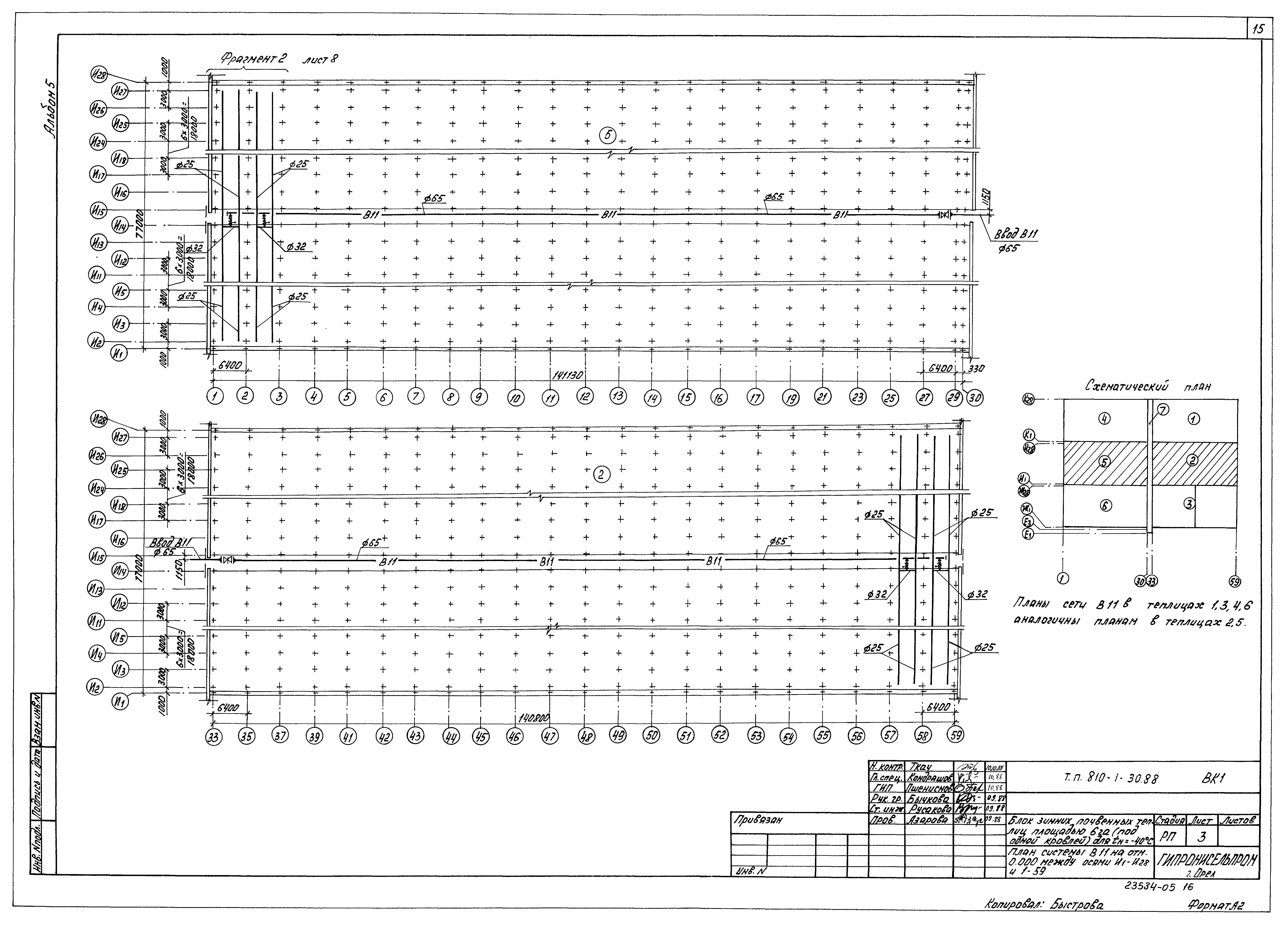
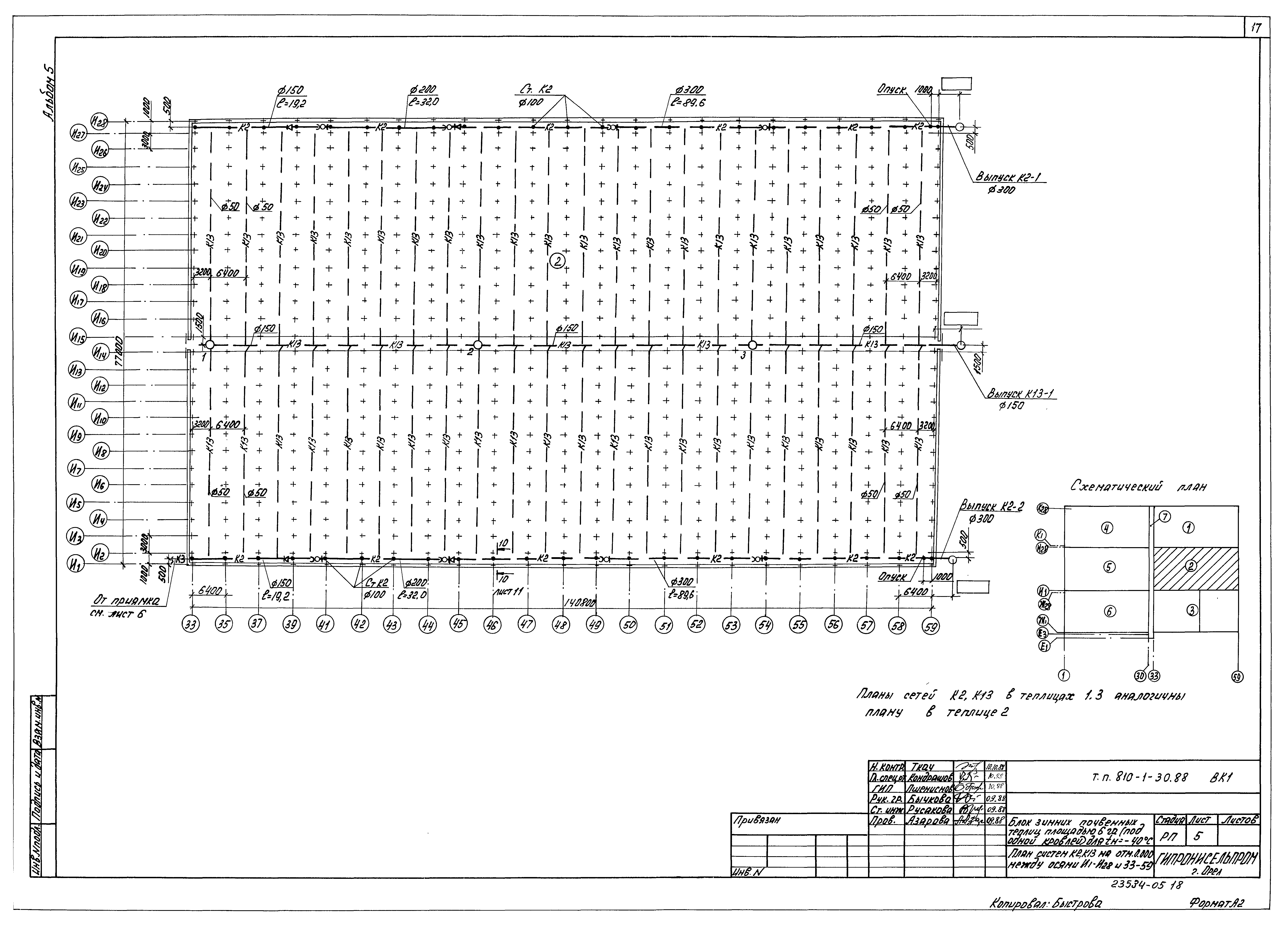
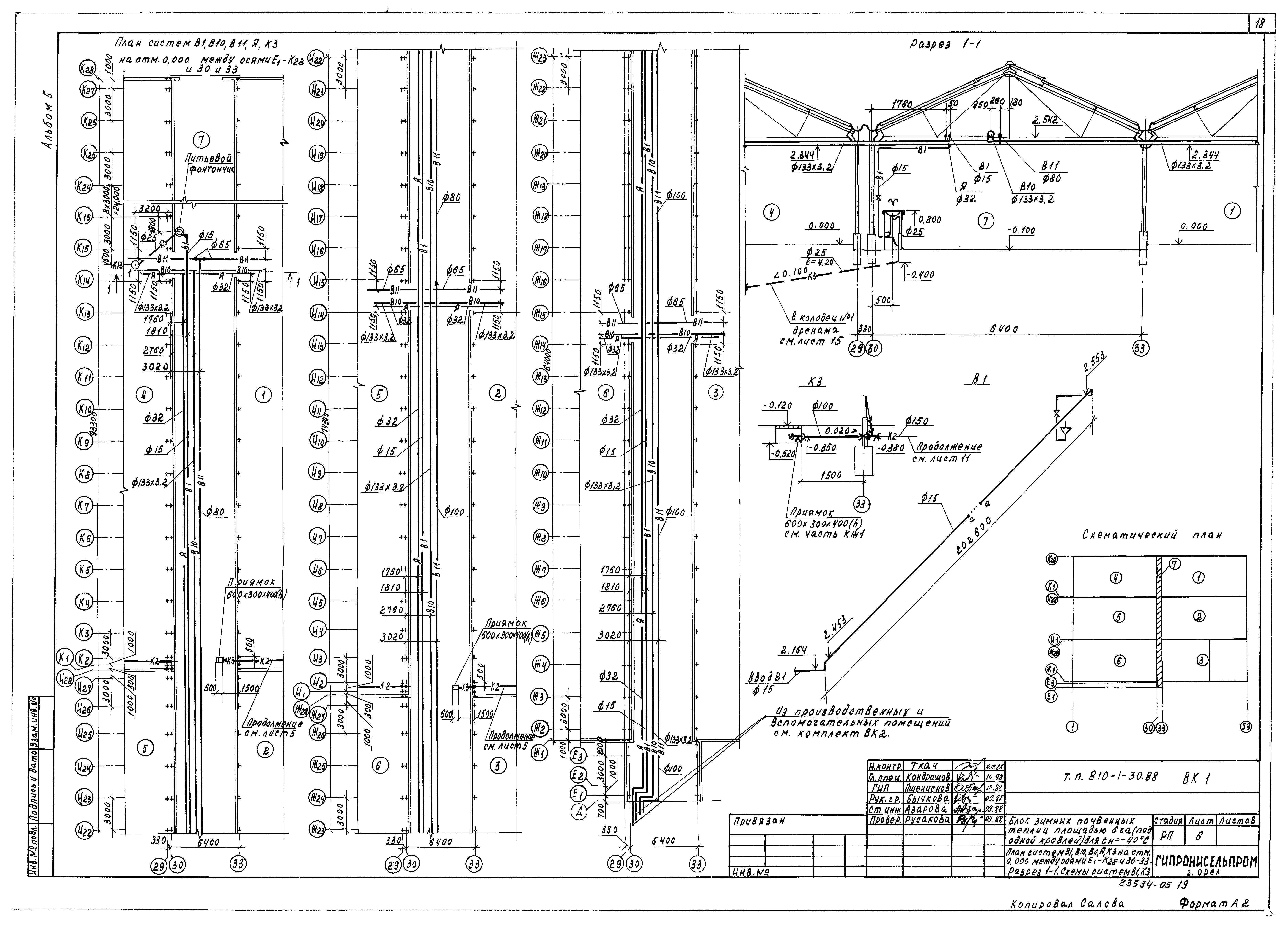
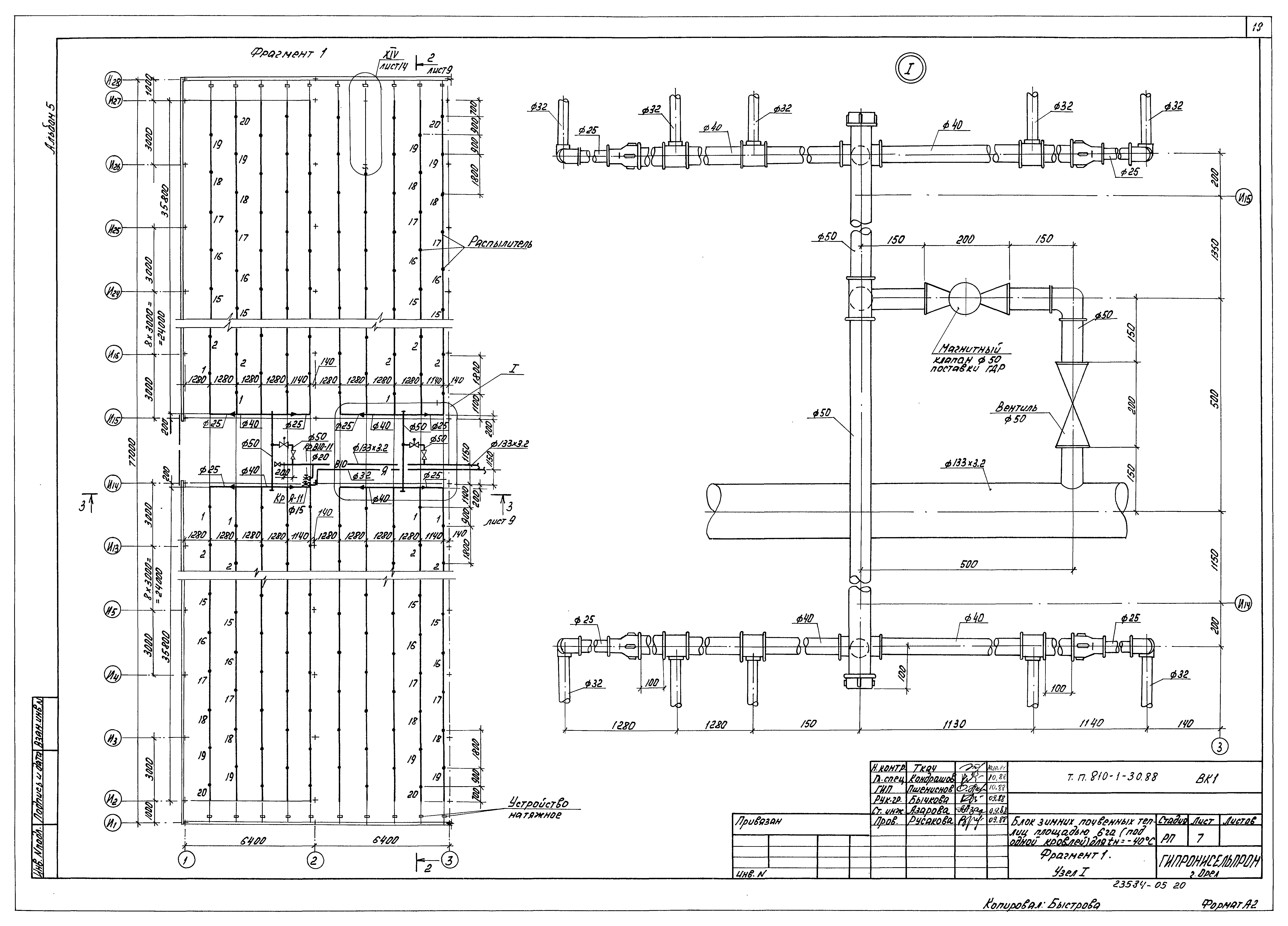
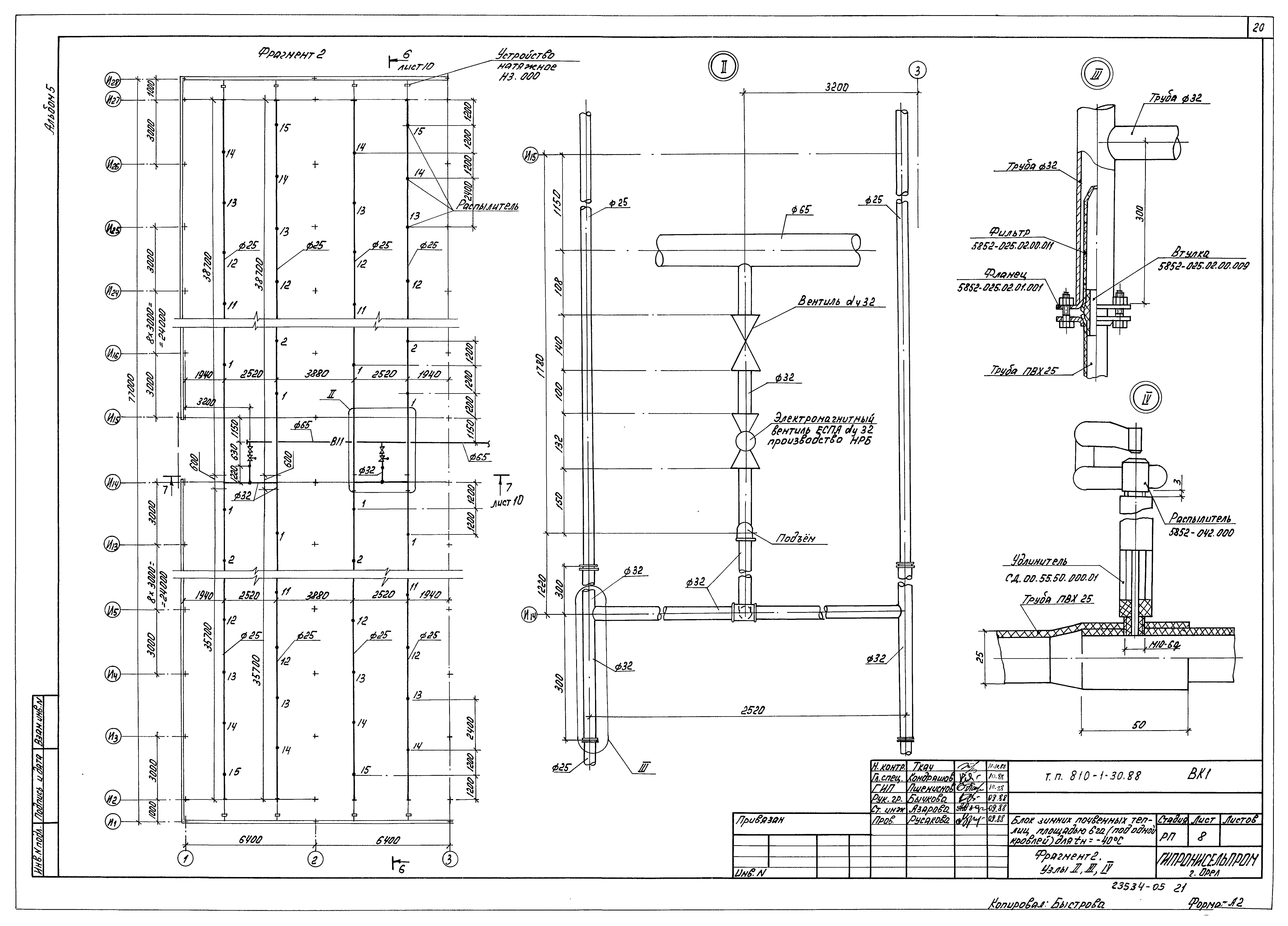
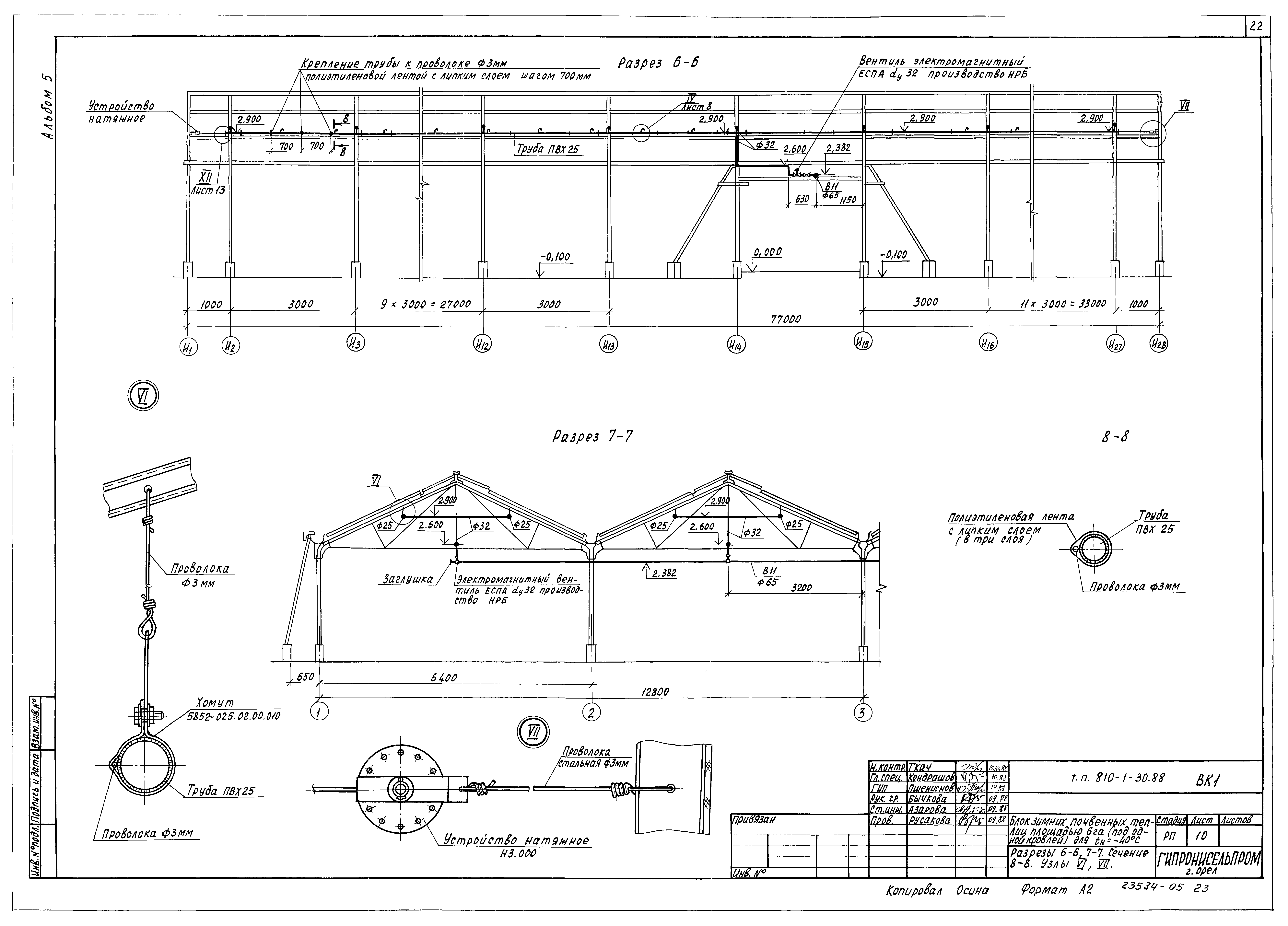
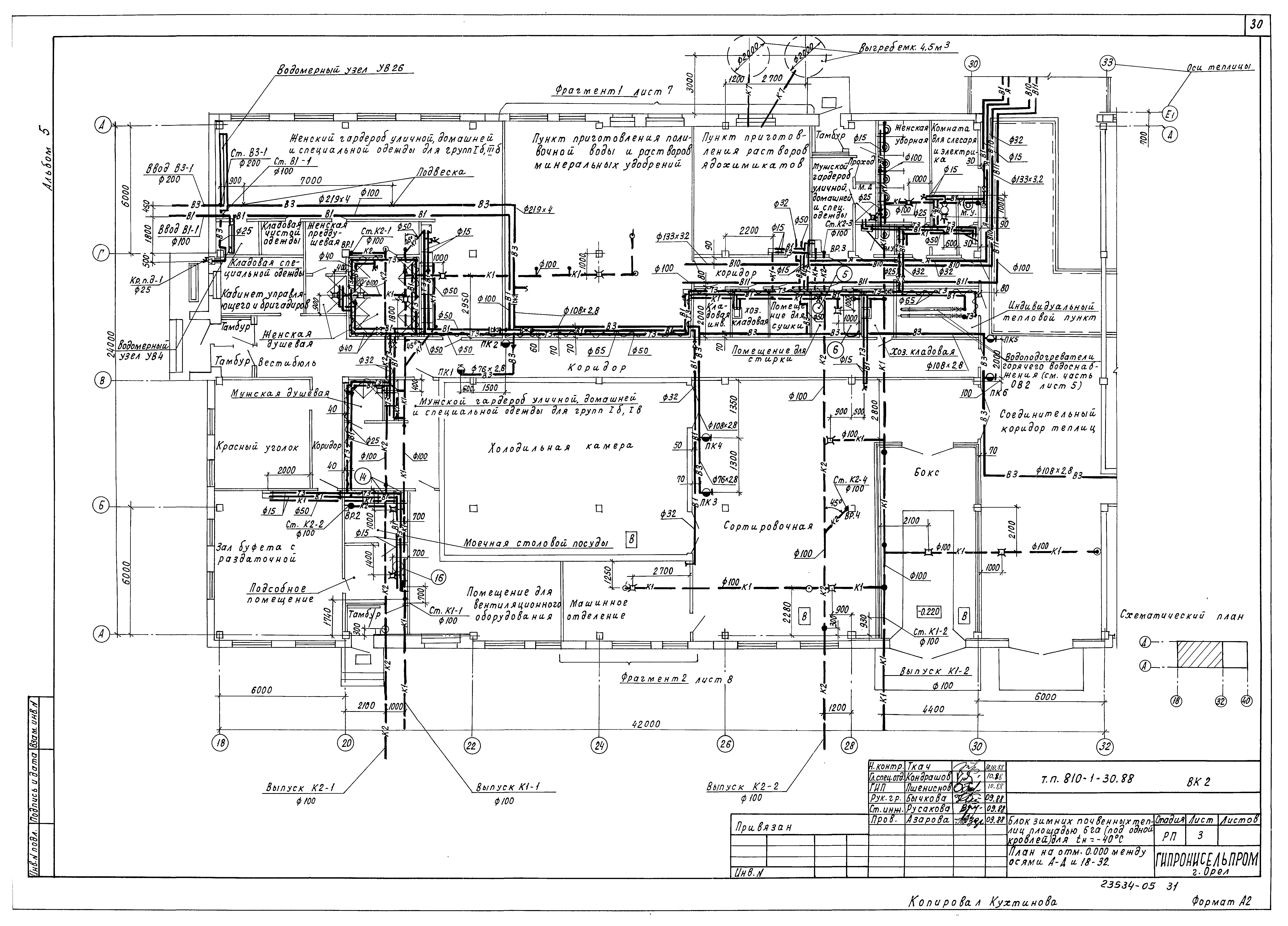
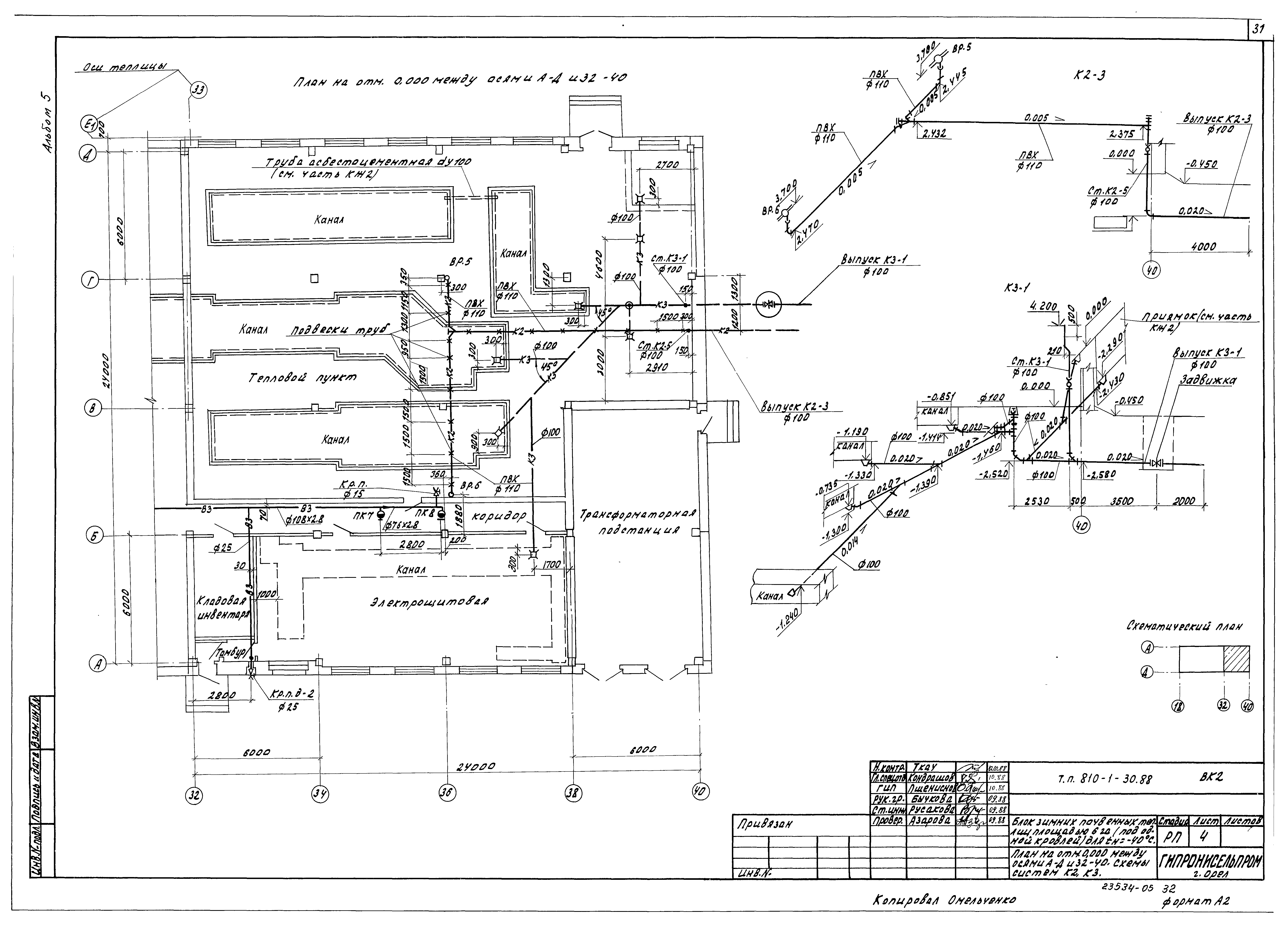
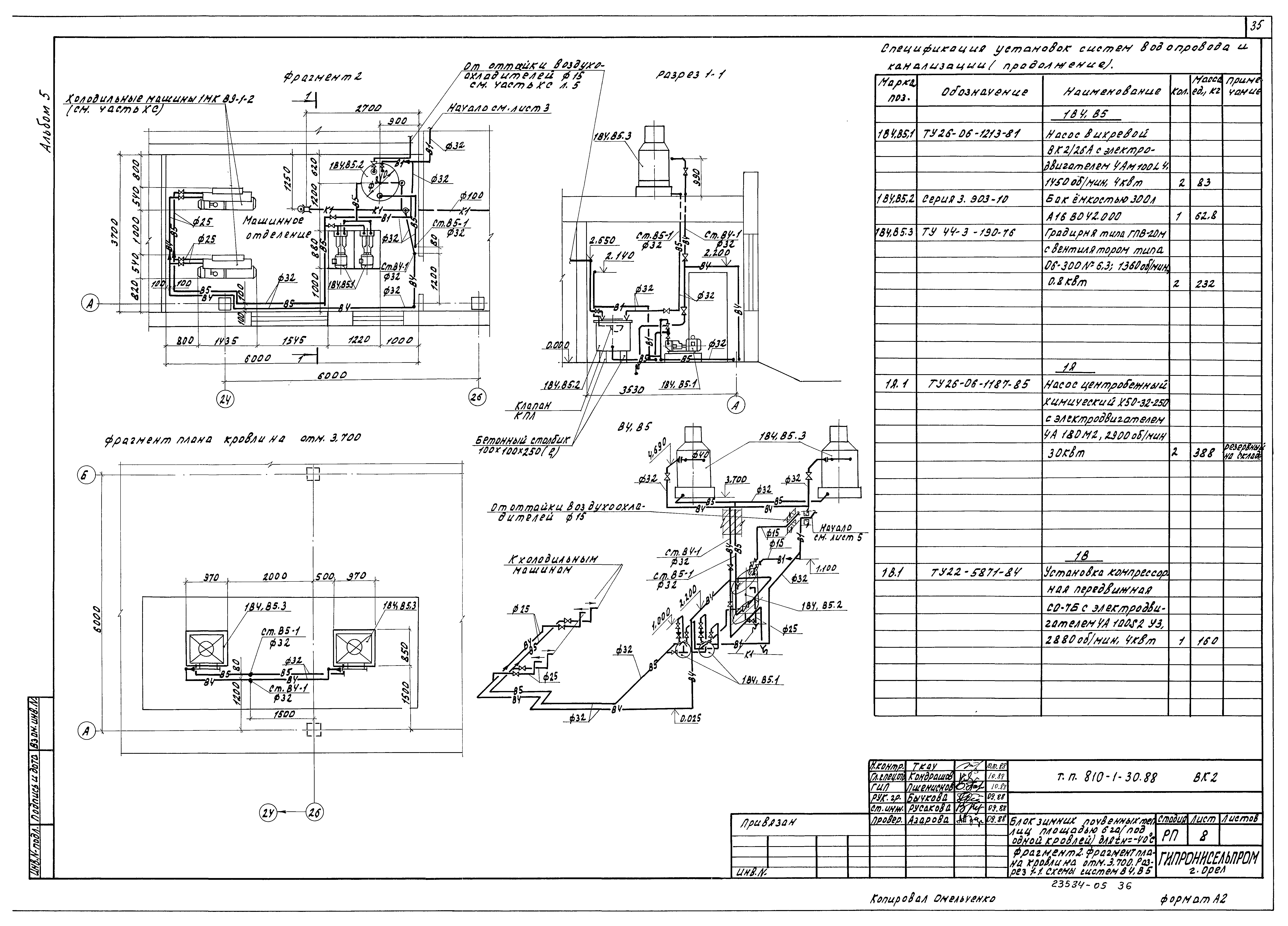
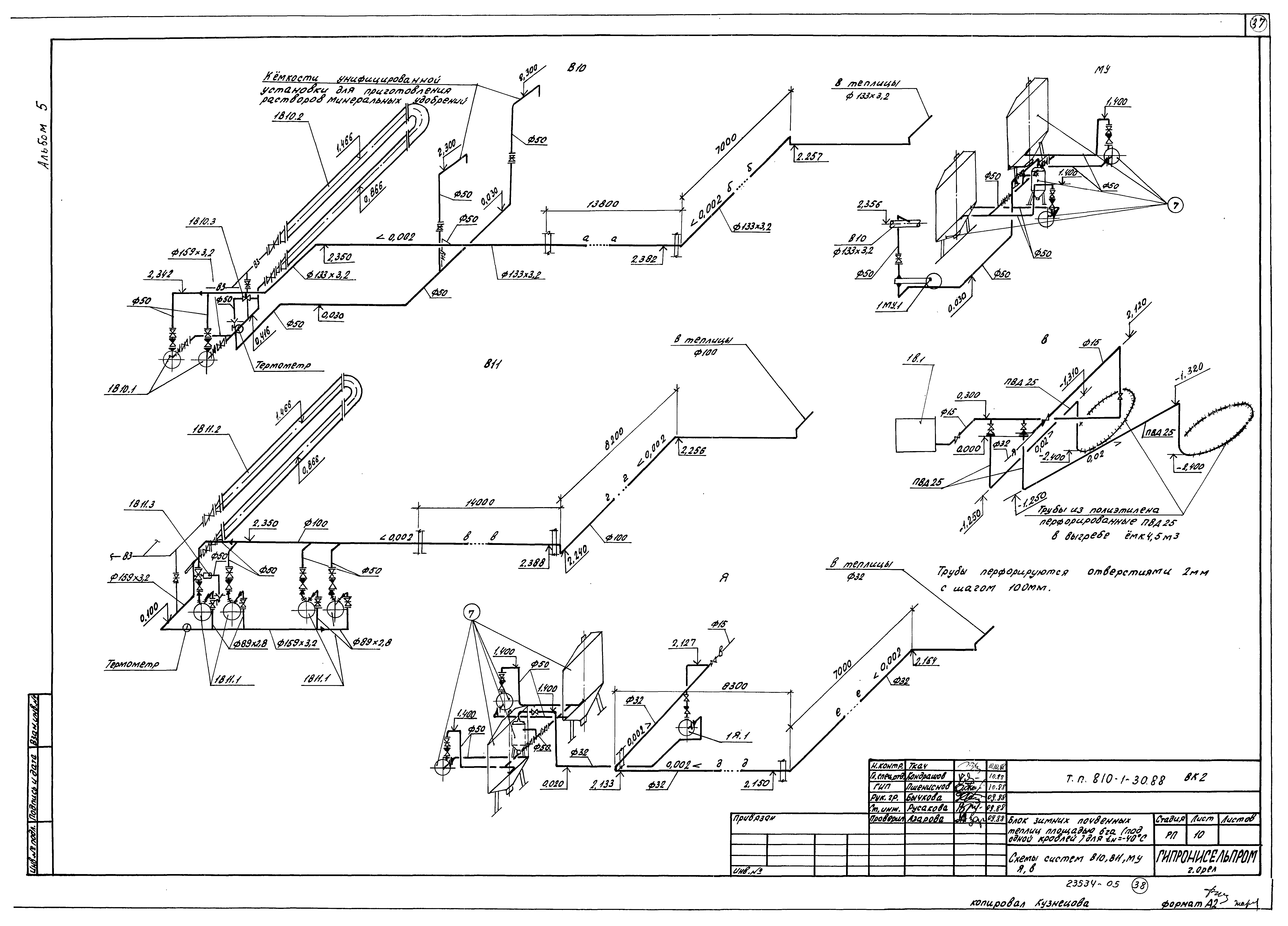
| Оглавление: | ТП 810-1-30.88 Содержание альбома ТП 810-1-30.88 ГСВ Газоснабжение внутреннее ГСВ ТП 810-1-30.88 ГСВ Общие данные ТП 810-1-30.88 ГСВ План на отм. 0.000 разводки газопроводов к универсальным генераторам СО2УГ6.0. Фрагмент 1. Разрез 1-1 ТП 810-1-30.88 ГСВ Схема газопровода. Разрезы 2-2,3-3 ТП 810-1-30.88 ГСВН Эскизные чертежи общих видов нетиповых конструкций систем газоснабжения ГСВН ТП 810-1-30.88 ХС Холодоснабжение ХС ТП 810-1-30.88 ХС Общие данные (начало) ТП 810-1-30.88 ХС Общие данные (окончание) ТП 810-1-30.88 ХС План на отм. 0.000 с размещением холодильного оборудования ТП 810-1-30.88 ХС Разрезы 1-1,2-2. Сечение 3-3 ТП 810-1-30.88 ХС Монтажные схемы разводок трубопроводов холодильных машин 1,2. Схема отвода конденсата от воздухоохладителей. Экспликация холодильного оборудования ТП 810-1-30.88 ХС Принципиальная схема холодильной машины 1МК89-1-2 ТП 810-1-30.88 ВК1 Внутренние водопровод и канализация ВК1 ТП 810-1-30.88 ВК1 Общие данные ТП 810-1-30.88 ВК1 План систем В10,Я на отм. 0.000 между осями И1-И28 и 1-59 ТП 810-1-30.88 ВК1 План системы В11 на отм. 0.000 между осями И1-И28 и 1-59 ТП 810-1-30.88 ВК1 План систем К2,К13 на отм. 0.000 между осями И1-И28 и 1-30. Соединение дренажных труб ТП 810-1-30.88 ВК1 План систем К2,К13 на отм. 0.000 между осями И1-И28 и 33-59 ТП 810-1-30.88 ВК1 План систем В1,В10,В11,Я,К3 на отм. 0.000 между осями Е1-К28 и 30-33. Разрез 1-1. Схема систем В1,К3 ТП 810-1-30.88 ВК1 Фрагмент 1. Узел 1 ТП 810-1-30.88 ВК1 Фрагмент 2. Узлы 2,3,4 ТП 810-1-30.88 ВК1 Разрезы 202,3-3. Сечения 4-4,5-5. Узел 5 ТП 810-1-30.88 ВК1 Разрезы 6-6,7-7. Сечение 8-8. Узлы 6,8 ТП 810-1-30.88 ВК1 Разрезы 9-9,10-10. Узлы 8,9,10 ТП 810-1-30.88 ВК1 Схема системы В10. Узел 11 ТП 810-1-30.88 ВК1 Схема системы В11. Узлы 12,13 ТП 810-1-30.88 ВК1 Схема системы Я. Узлы 14,15,16 ТП 810-1-30.88 ВК1 Схема системы К13. Узел 17. Дренажные колодцы. Эскиз ТП 810-1-30.88 ВК2 Внутренние водопровод и канализация ВК2 ТП 810-1-30.88 ВК2 Общие данные (начало) ТП 810-1-30.88 ВК2 Общие данные (окончание) ТП 810-1-30.88 ВК2 План на отм. 0.000 между осями А-Д и 18-32 ТП 810-1-30.88 ВК2 План на отм. 0.000 между осями А-Д и 32-40. Схемы систем К2,К3 ТП 810-1-30.88 ВК2 Схемы систем В1,Т3,В3. Водомерные узлы УВЧ,УВ26 ТП 810-1-30.88 ВК2 Схемы систем К1,К2 ТП 810-1-30.88 ВК2 Фрагмент1 ТП 810-1-30.88 ВК2 Фрагмент2. Фрагмент плана кровли на отм. 3.700. Разрез 1-1. Схемы систем В4,В5 ТП 810-1-30.88 ВК2 Разрезы 2-2,3-3,4-4. Схема системы К7 ТП 810-1-30.88 ВК2 Схемы систем В10,В11,МУ,Я,В |
| Разработан: | Гипронисельпром Госагропрома СССР |
| Утверждён: | 06.12.1988 Госагропром СССР (USSR Gosagroprom 805-42/153) |





































