Скачать Типовой проект 810-1-30.88 Альбом 6. Электрическое освещение. Силовое электрооборудование. Электродосвечивание. Связь и сигнализацияДата актуализации: 01.01.2021
|
| Обозначение: | Типовой проект 810-1-30.88 |
| Обозначение англ: | 810-1-30.88 |
| Статус: | не определен законодательством |
| Название рус.: | Альбом 6. Электрическое освещение. Силовое электрооборудование. Электродосвечивание. Связь и сигнализация |
| Дата добавления в базу: | 01.09.2013 |
| Дата актуализации: | 01.01.2021 |
| Дата введения: | 07.12.1988 |
| Дата окончания срока действия: | 30.06.2003 |
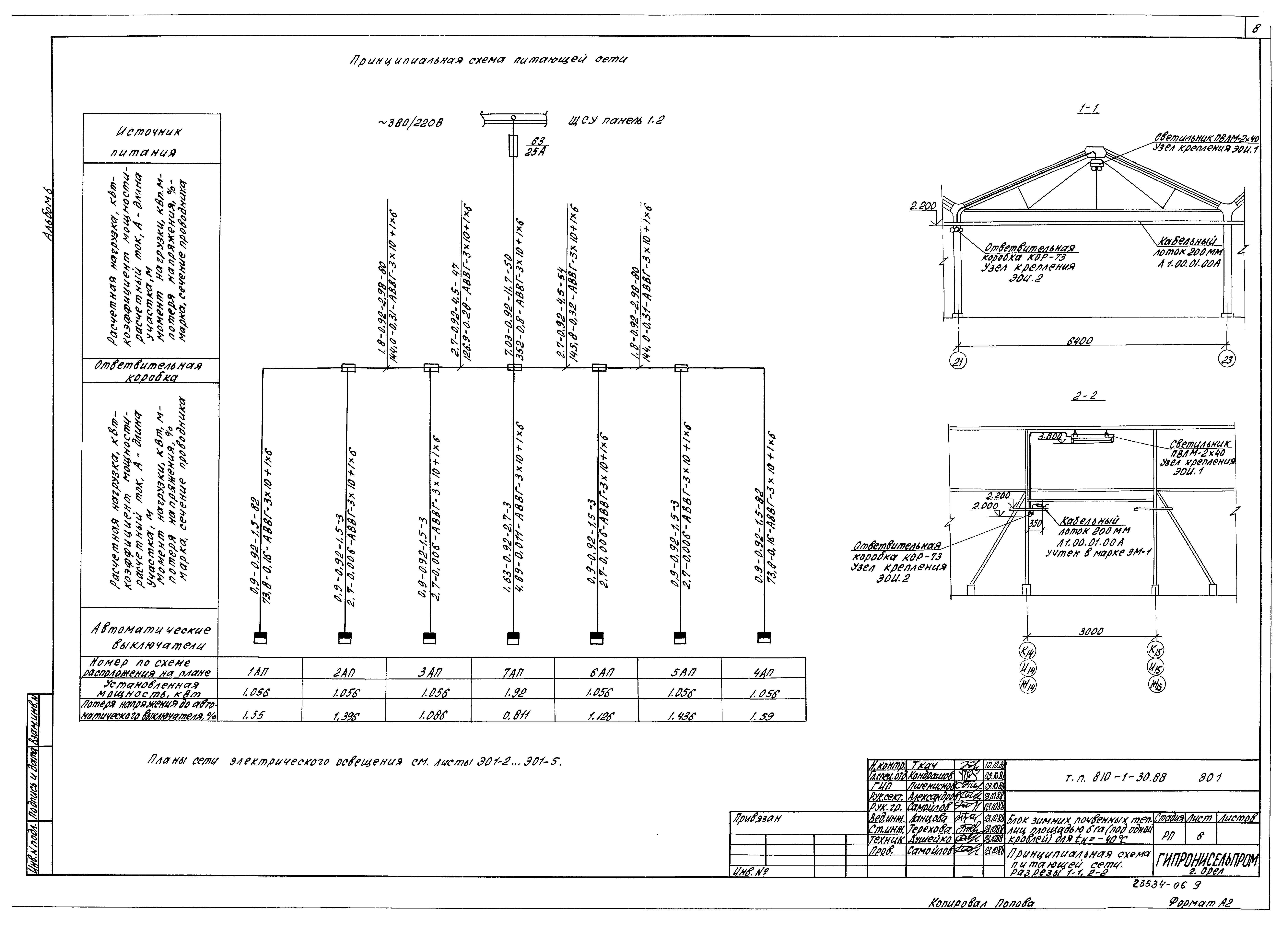
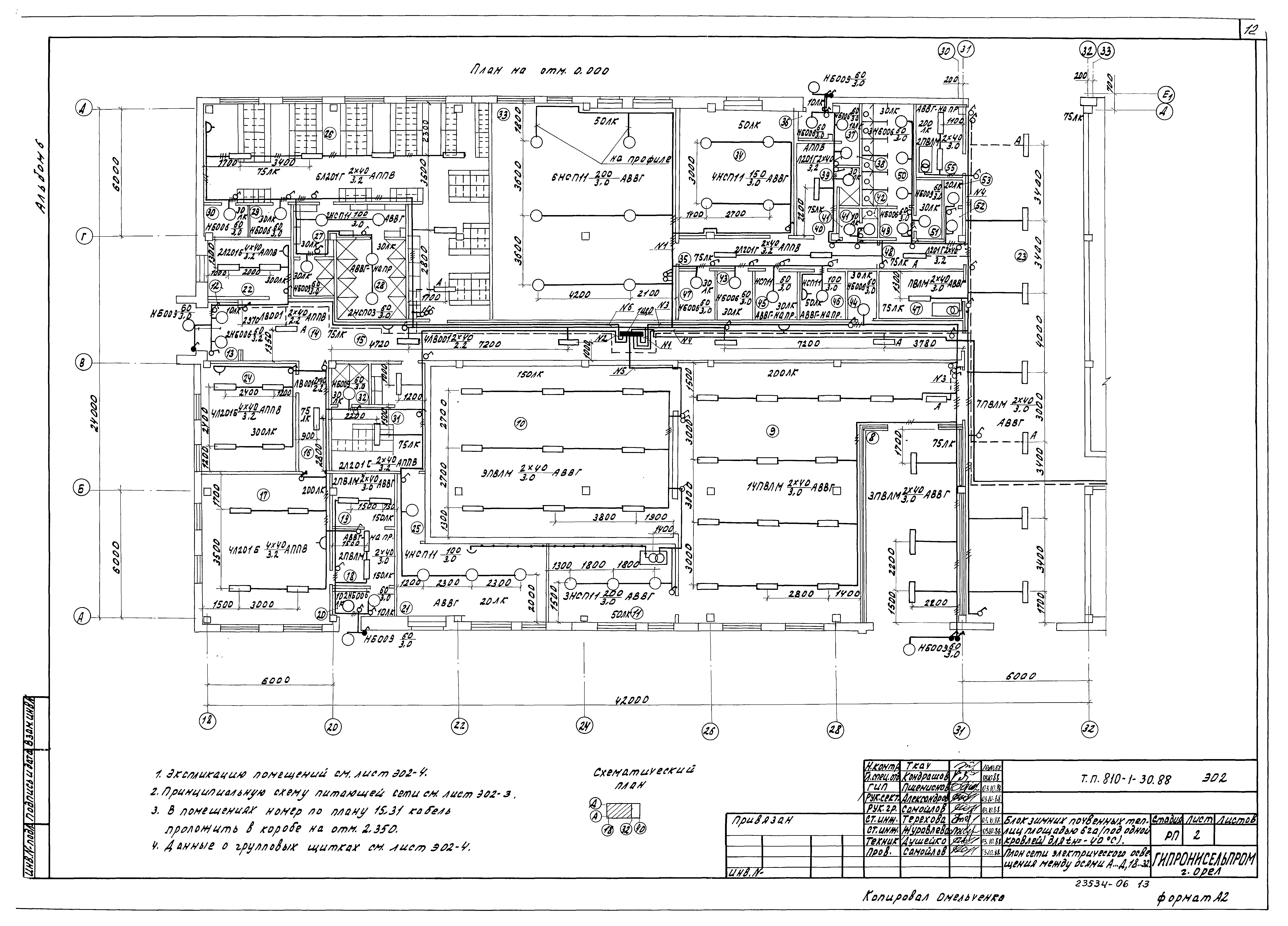
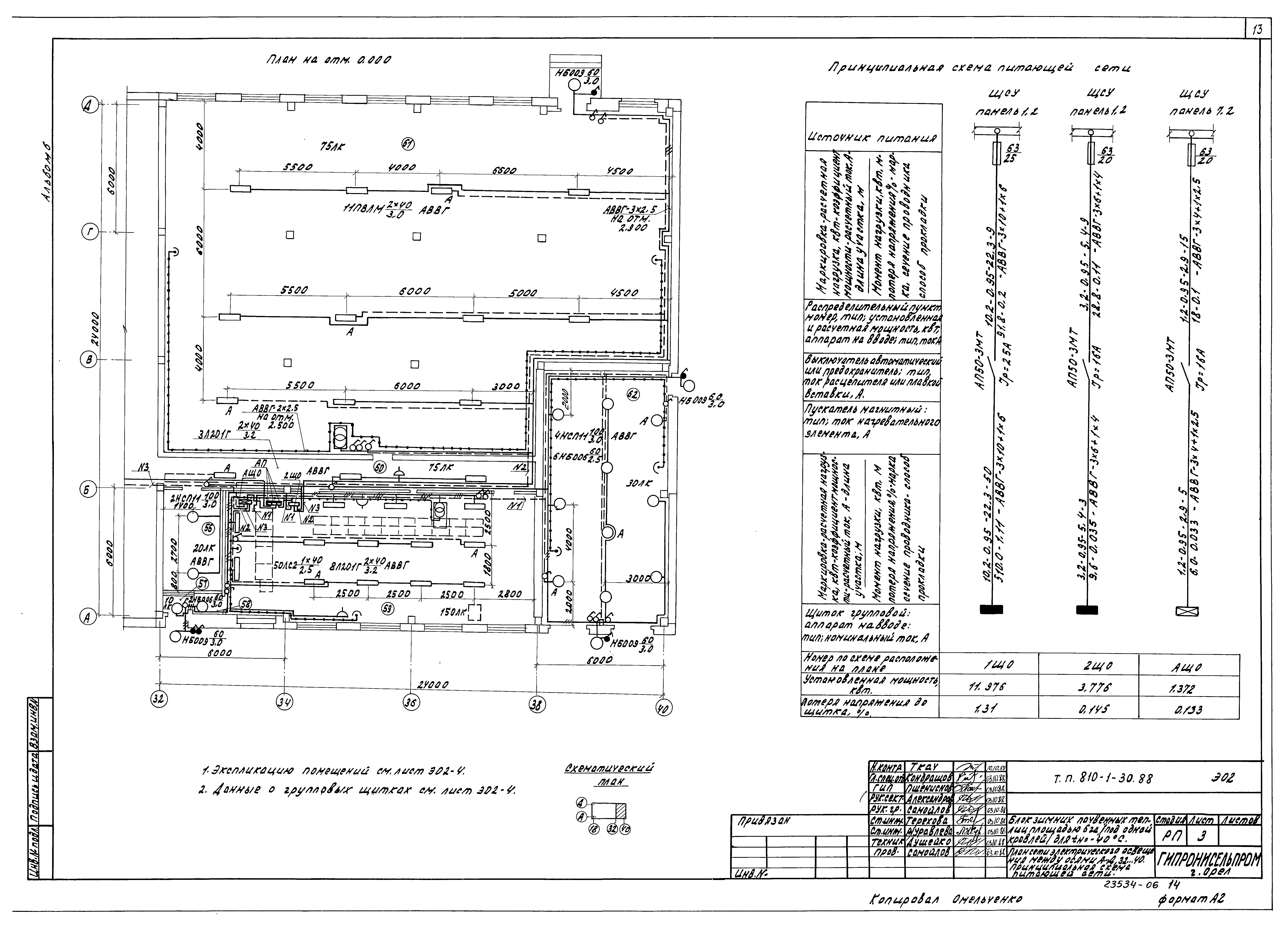
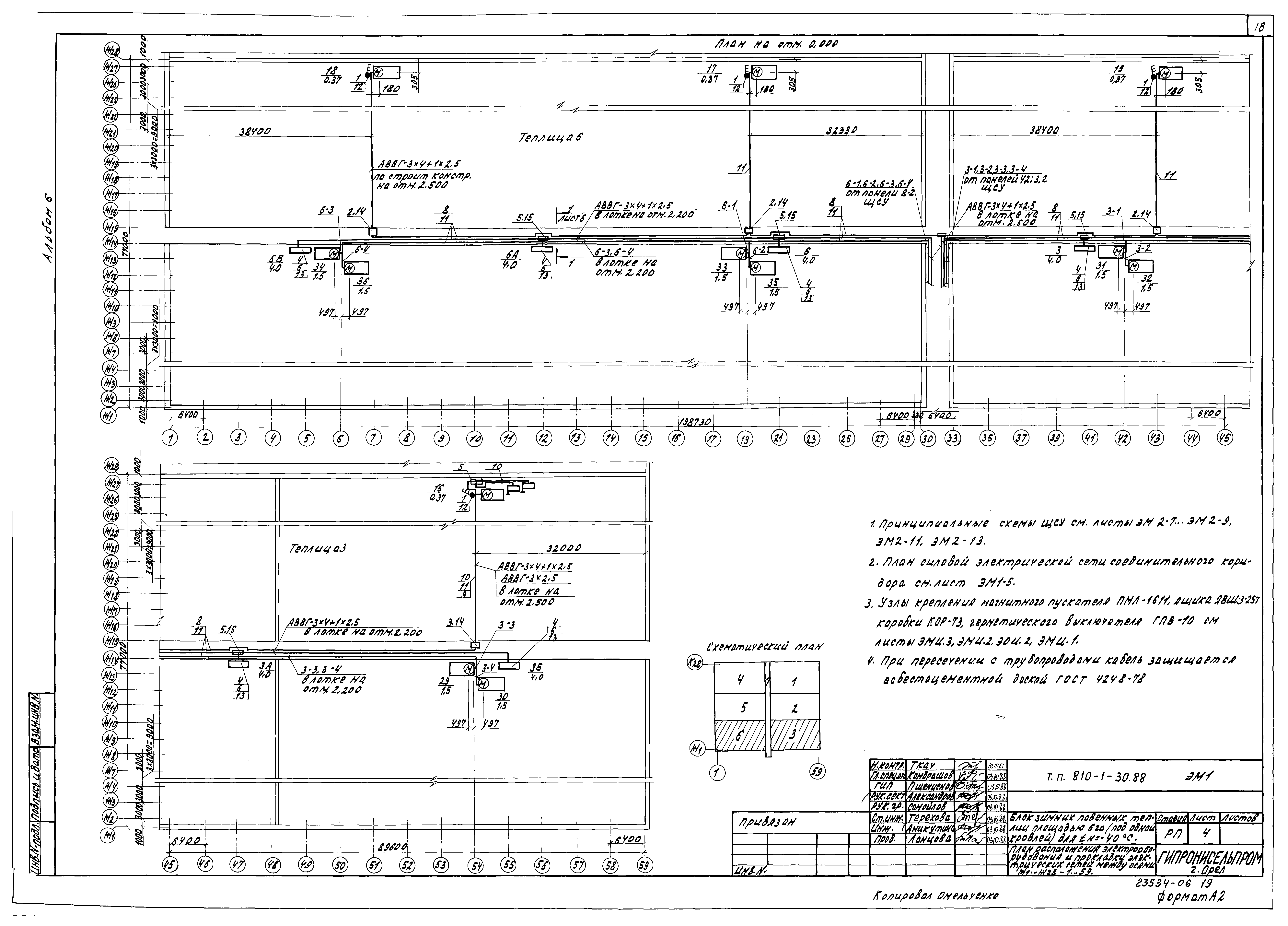
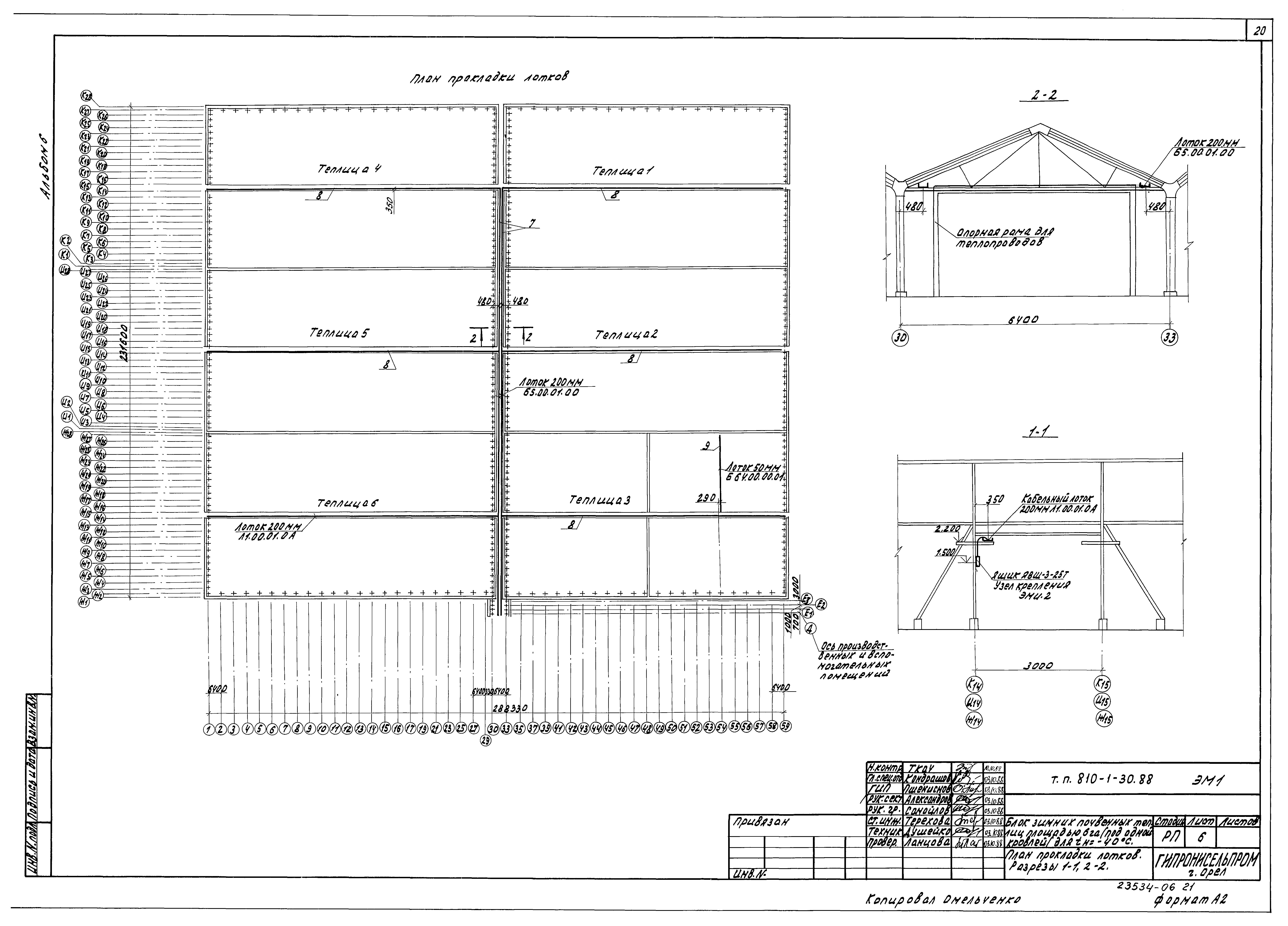
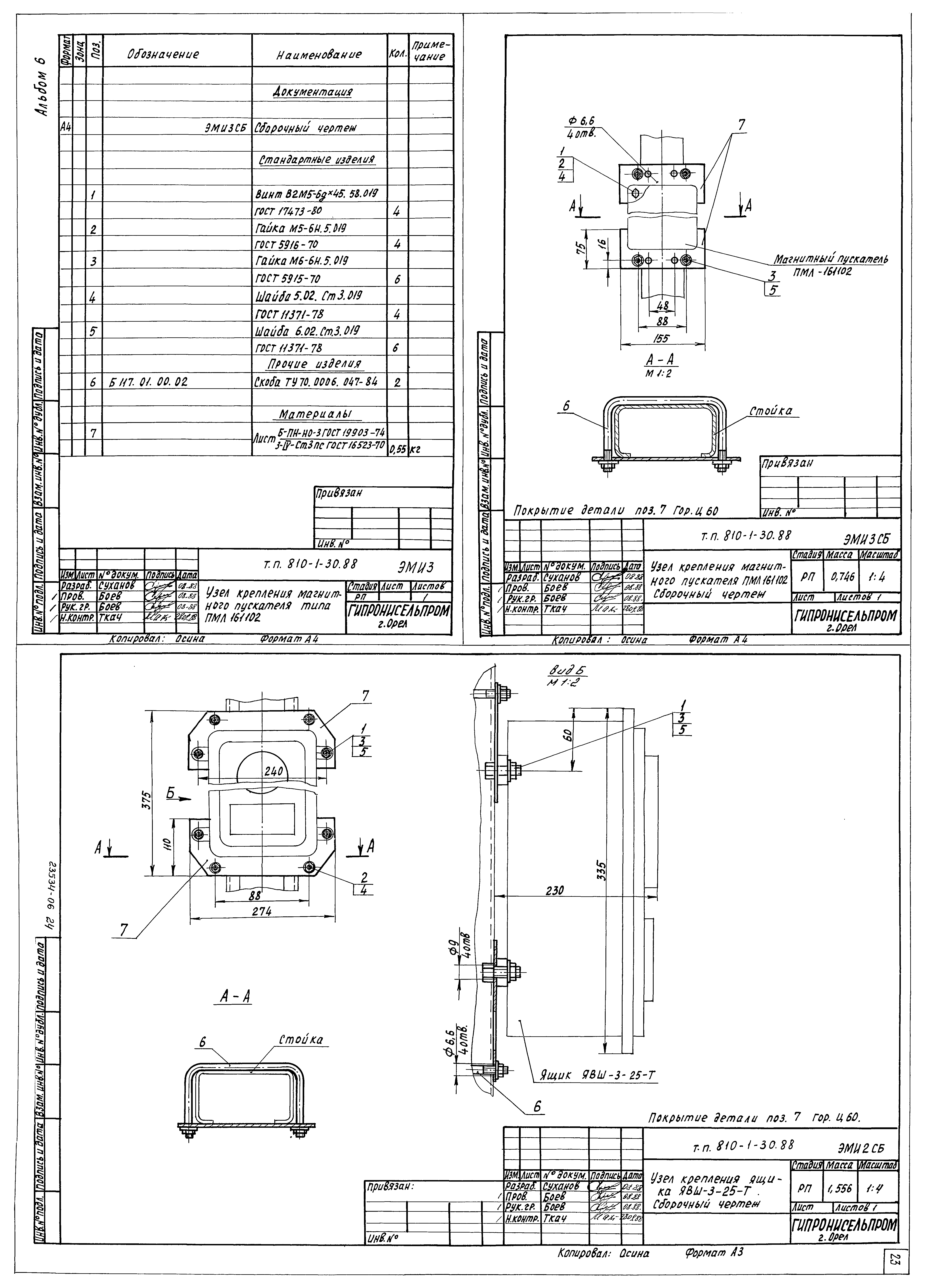
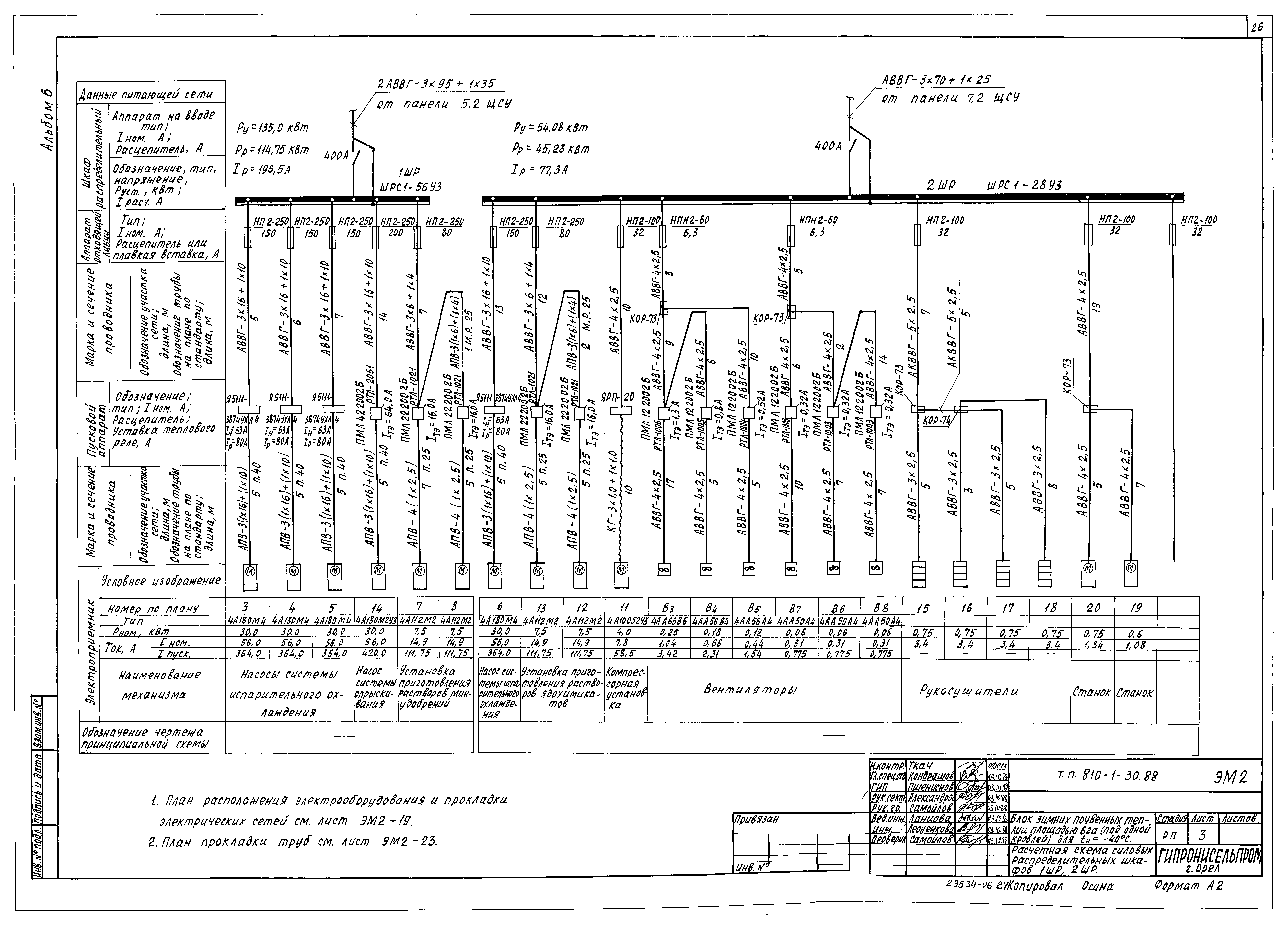
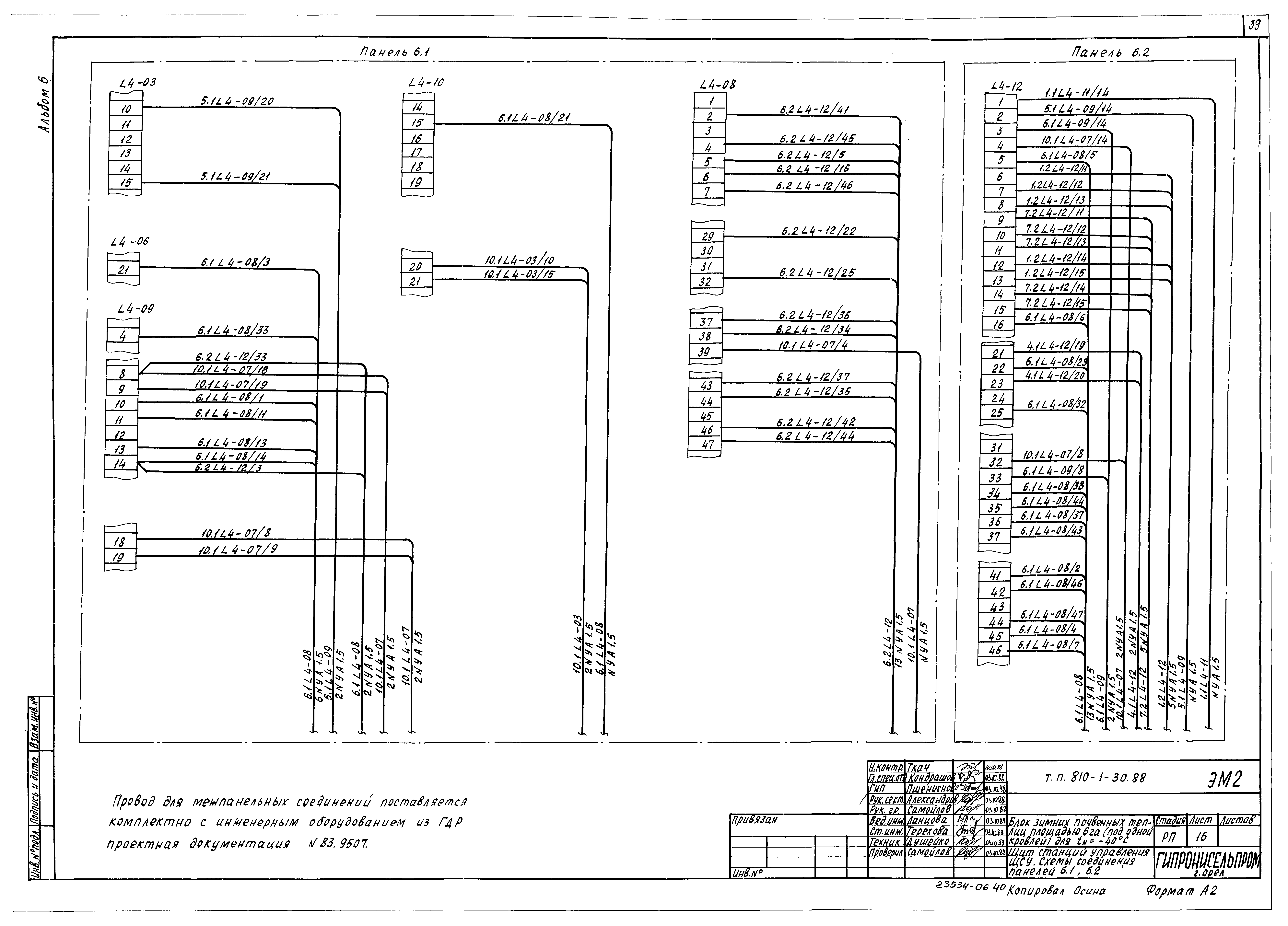
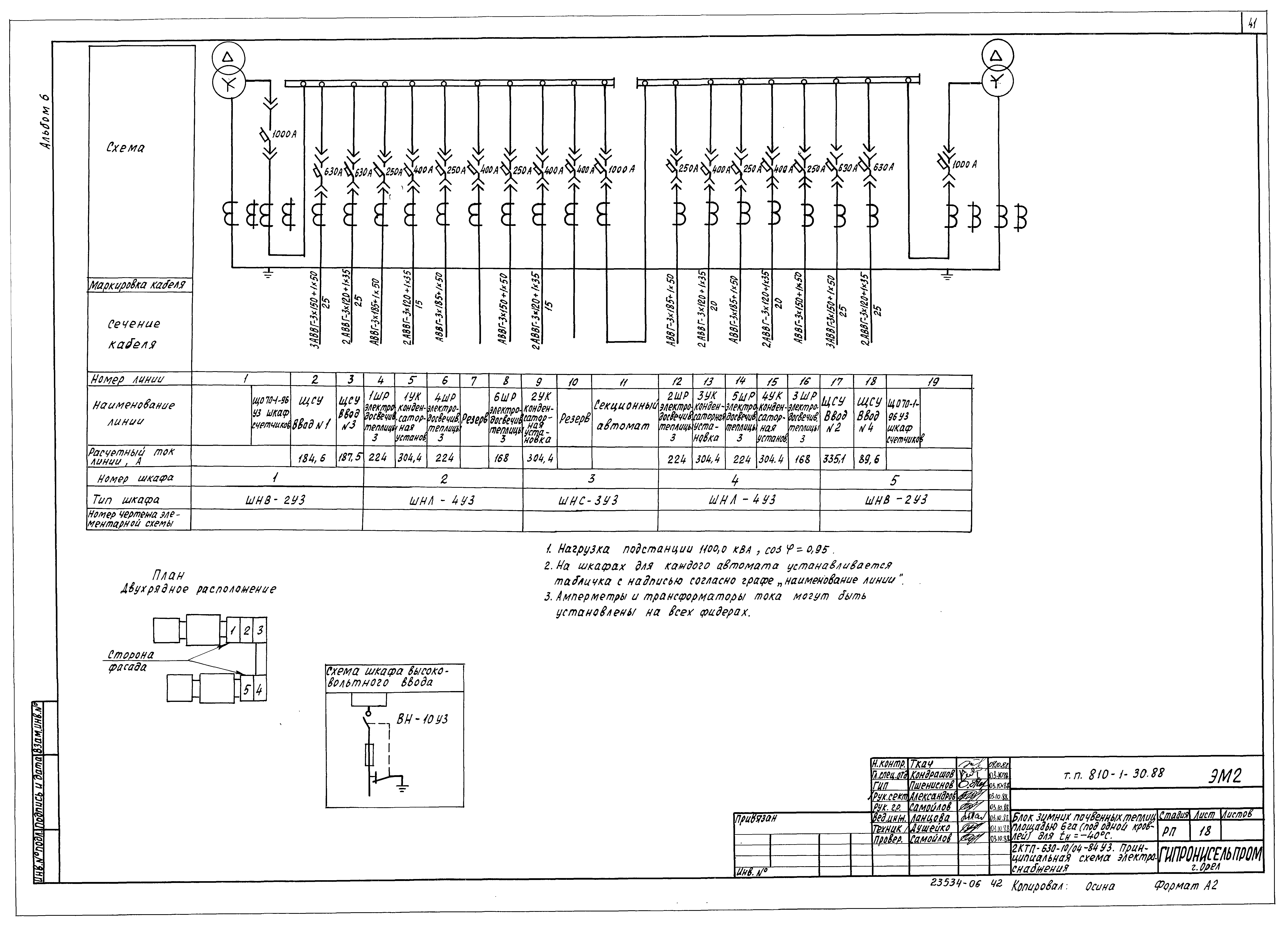
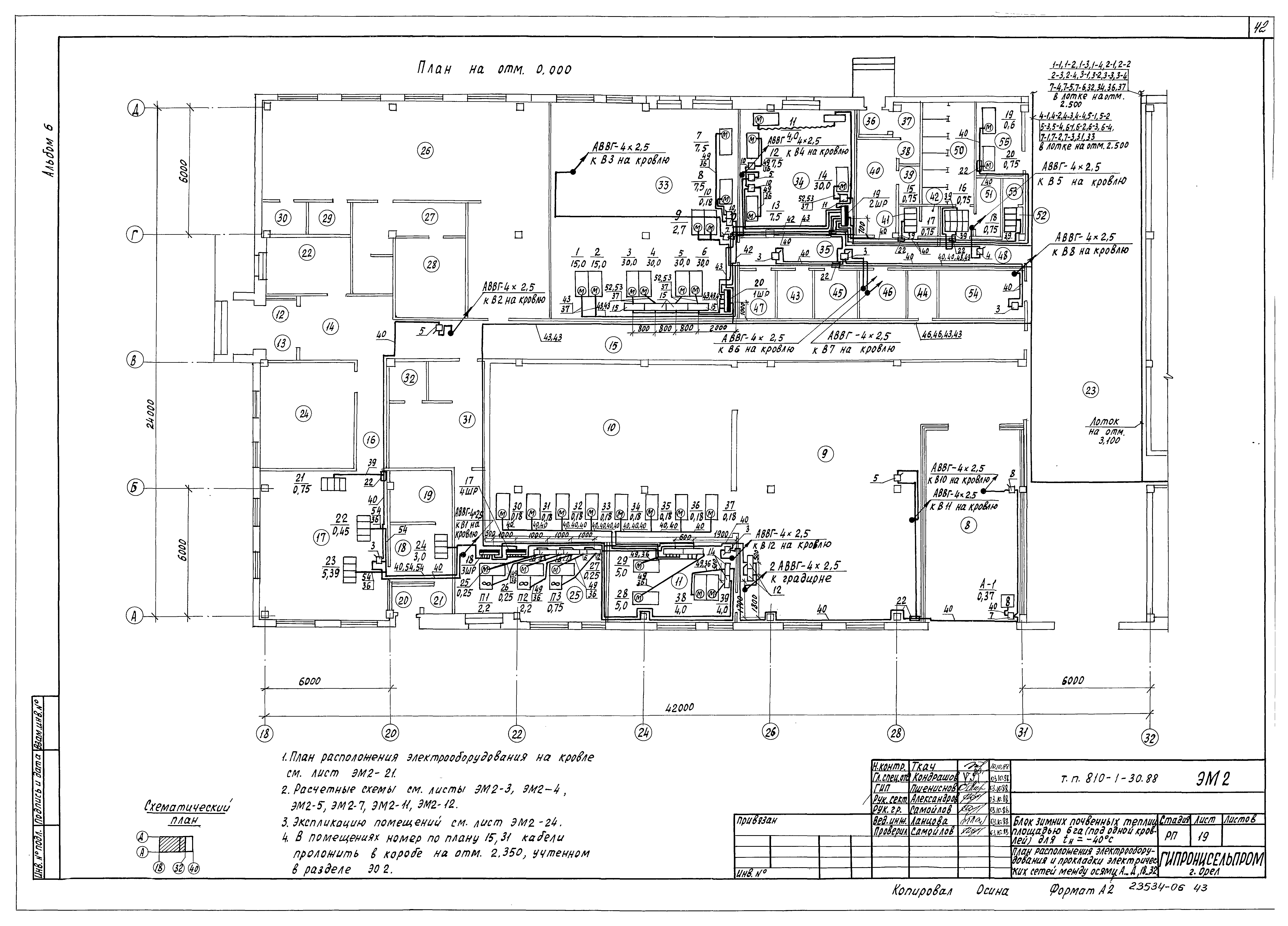
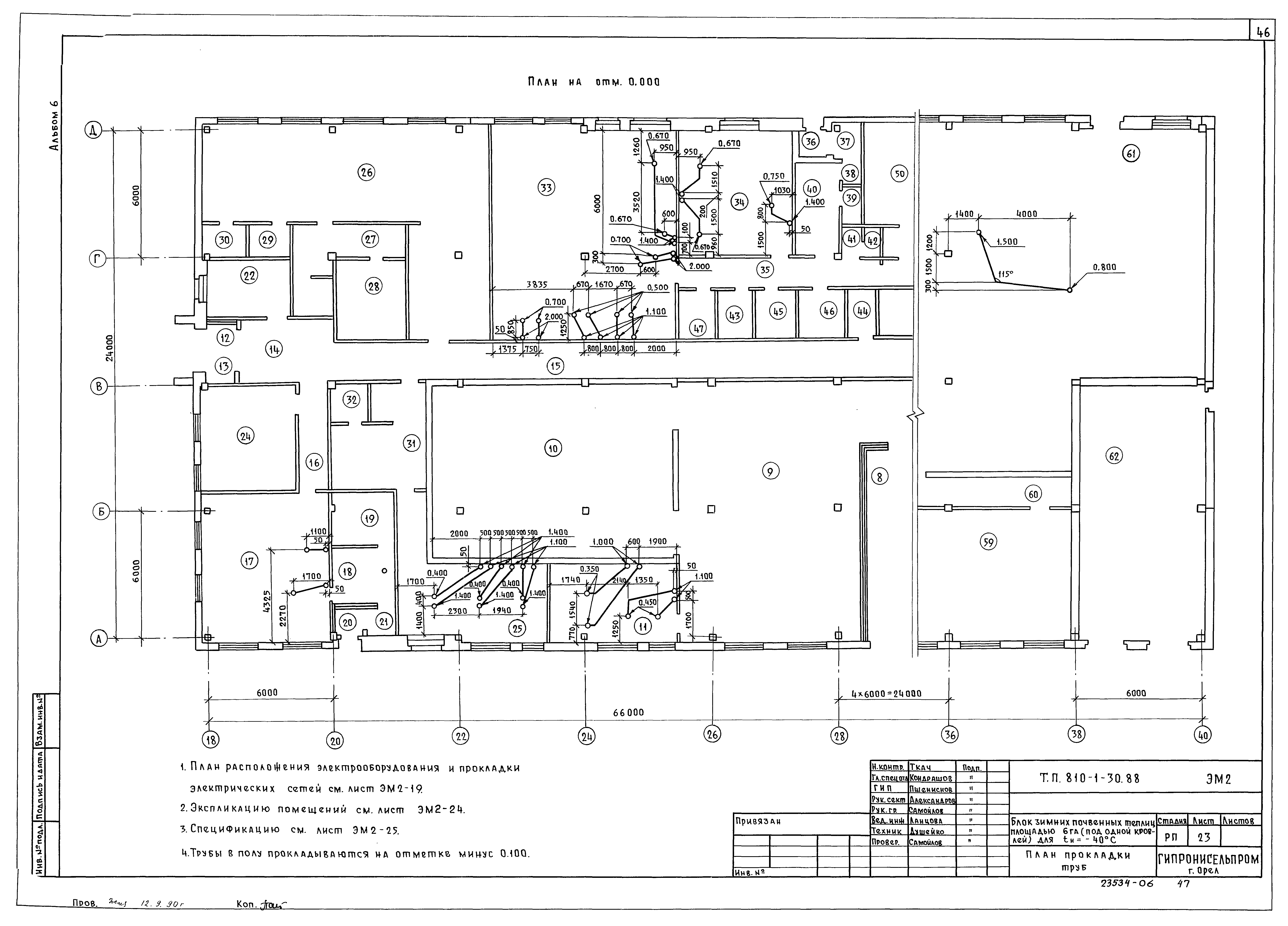
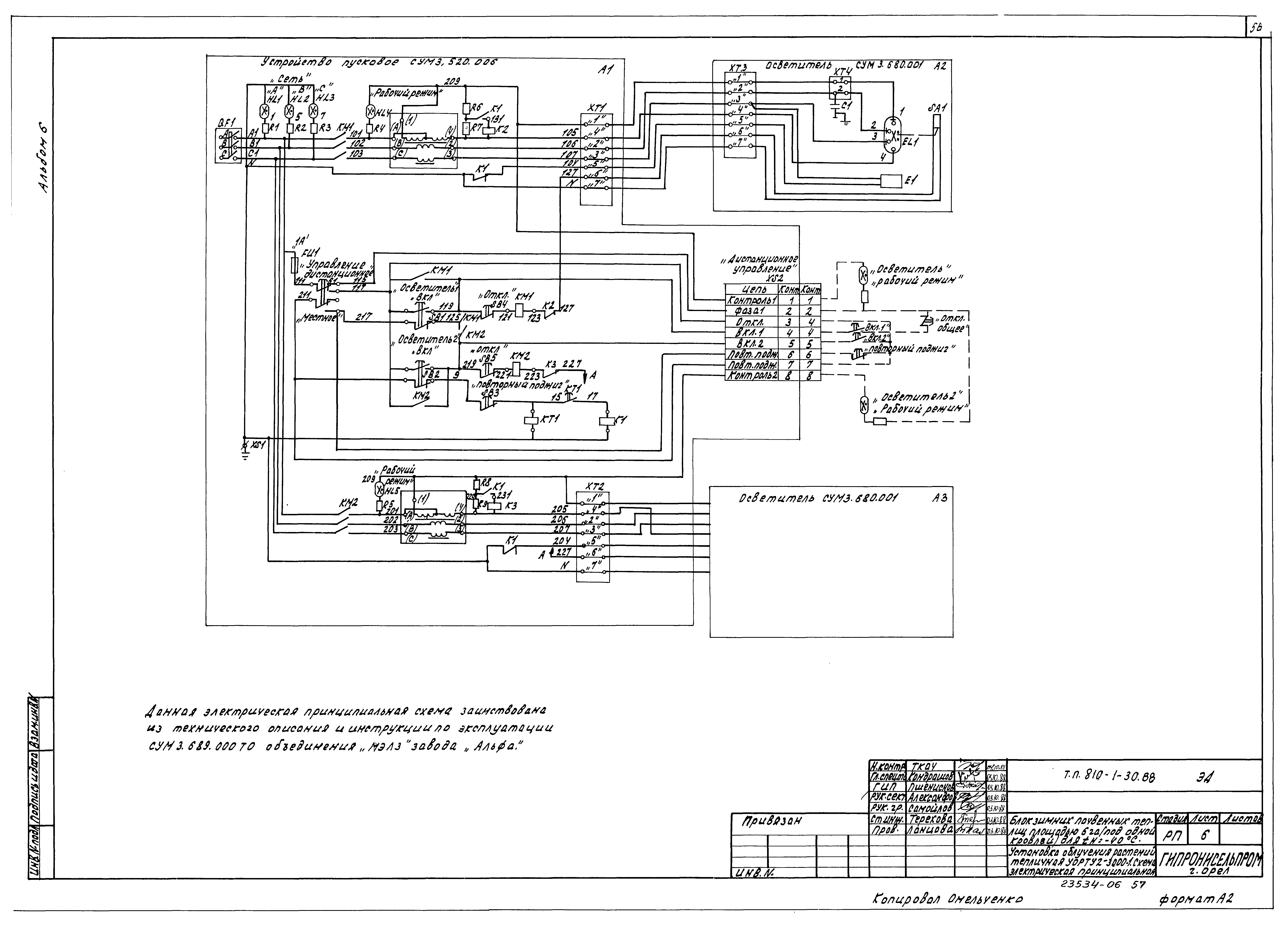
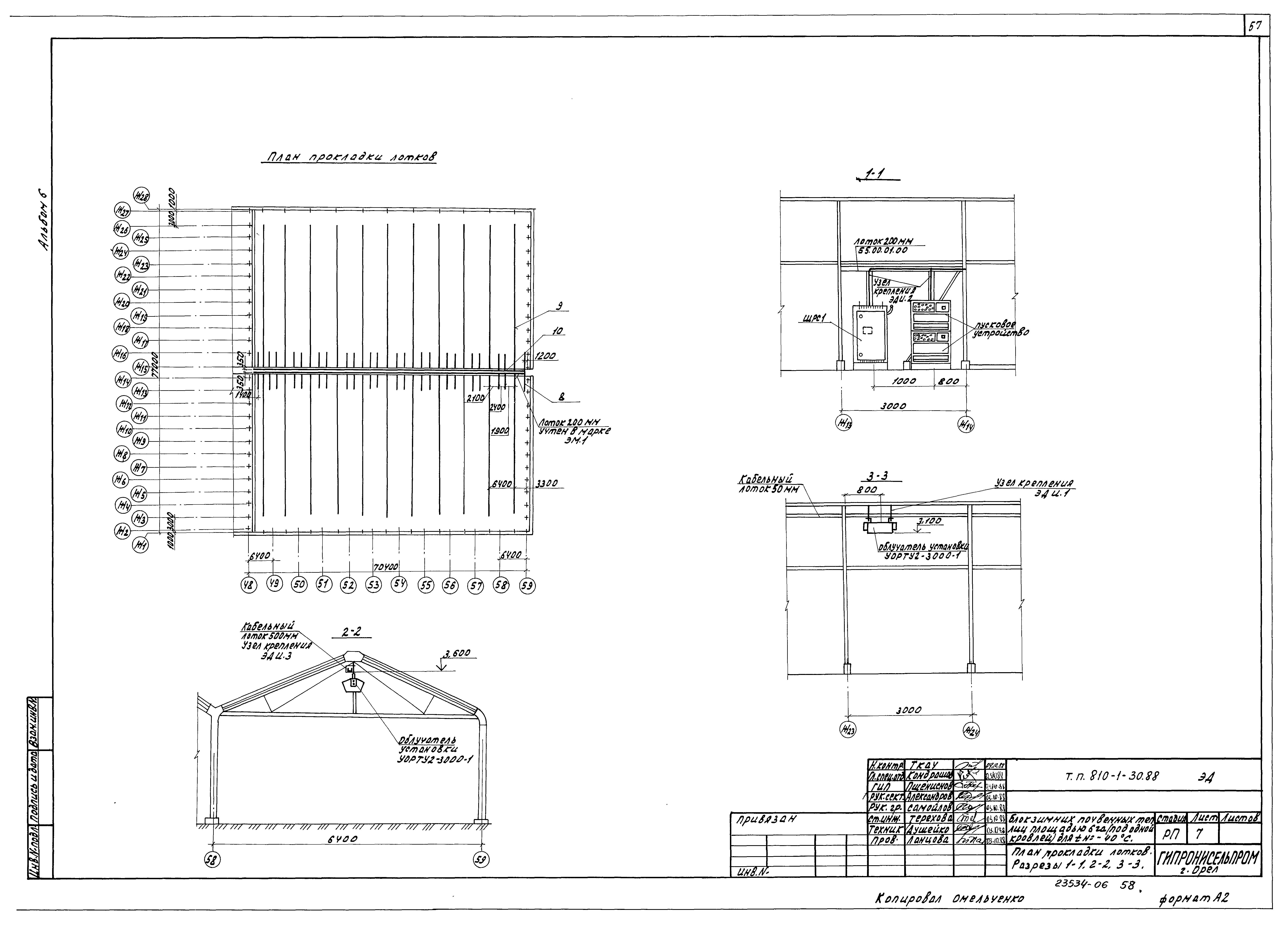
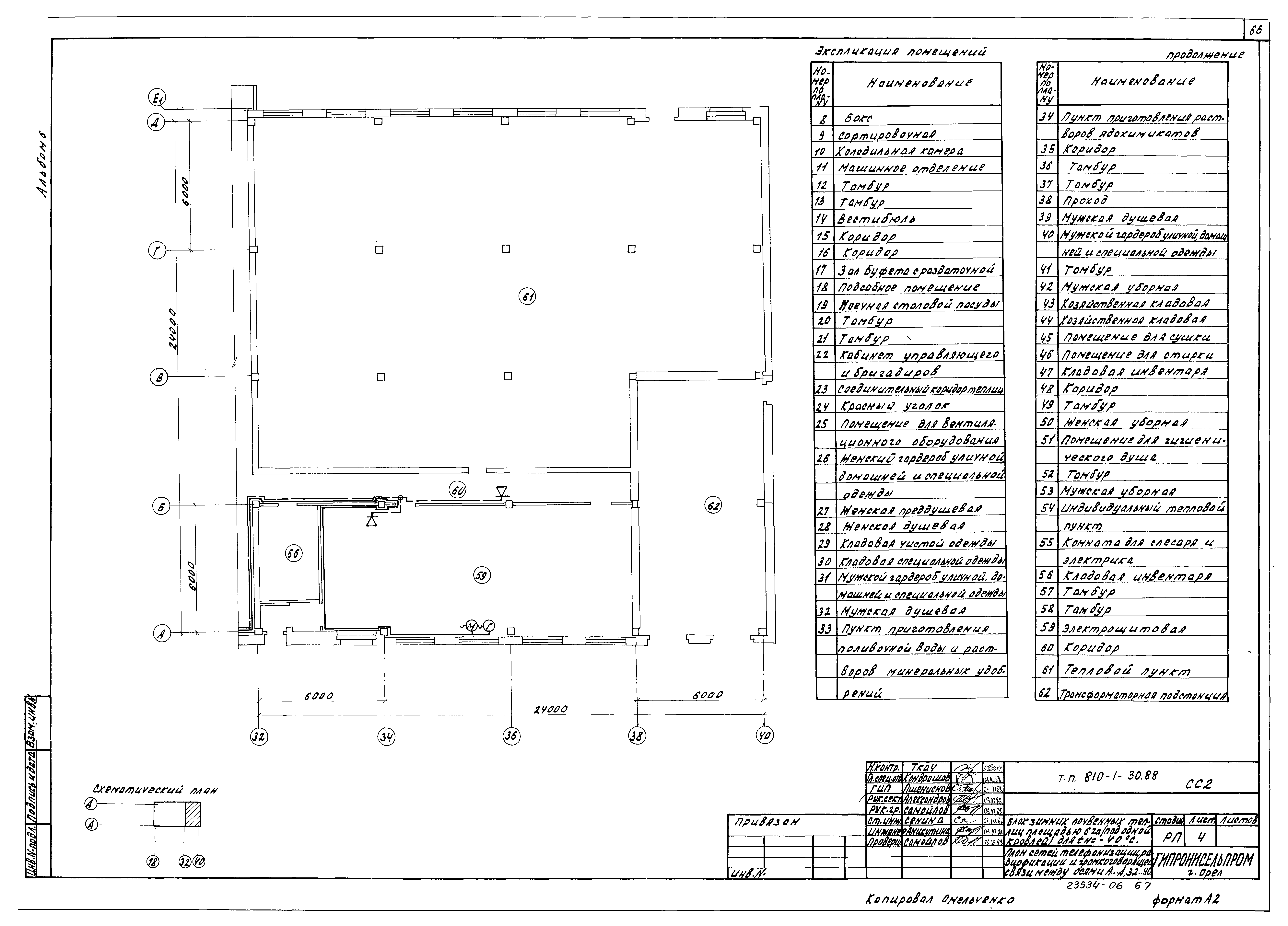
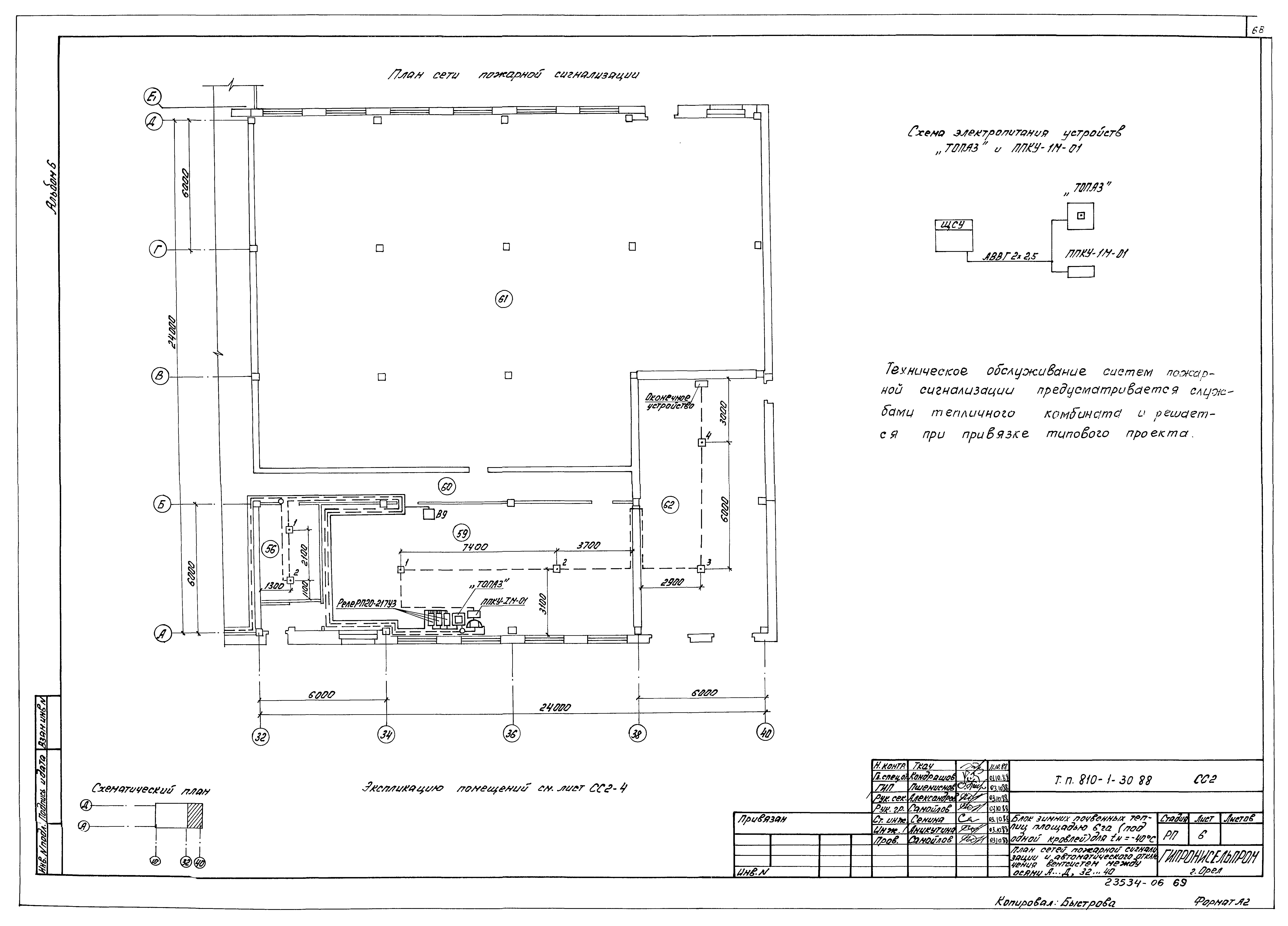
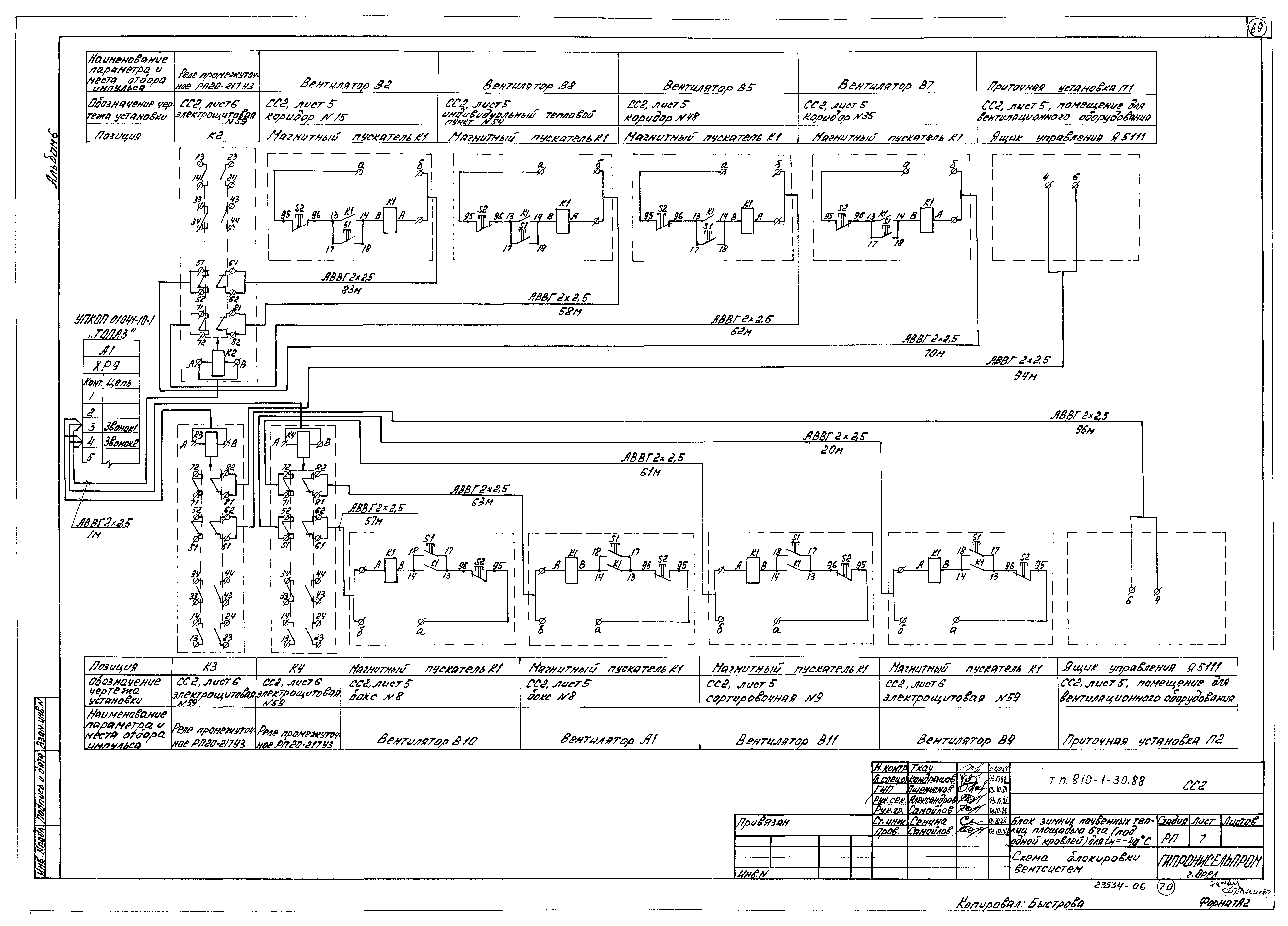
| Оглавление: | ТП 810-1-30.88 Содержание альбома ТП 810-1-30.88 ЭО1 Электрическое освещение ЭО1 ТП 810-1-30.88 ЭО1 Общие данные ТП 810-1-30.88 ЭО1 План сети электрического освещения между осями К1...К28,1...59 ТП 810-1-30.88 ЭО1 План сети электрического освещения между осями И1...И28,1...59 ТП 810-1-30.88 ЭО1 План сети электрического освещения между осями Ж1...Ж28,1...59 ТП 810-1-30.88 ЭО1 План сети электрического освещения между осями 30...33,Д...К28 ТП 810-1-30.88 ЭО1 Принципиальная схема питающий сети. Разрезы 1-1,2-2 ТП 810-1-30.88 ЭОИ Эскизные чертежи общих видов нетиповых конструкций электрического освещения ЭОИ.1 ТП 810-1-30.88 ЭО2 Электрическое освещение ЭО2 ТП 810-1-30.88 ЭО2 Общие данные ТП 810-1-30.88 ЭО2 План сети электрического освещения между осями А...Д,18...32 ТП 810-1-30.88 ЭО2 План сети электрического освещения между осями А...Д,32...40. Принципиальная схема питающей сети ТП 810-1-30.88 ЭО2 Экспликация помещений ТП 810-1-30.88 ЭМ1 Силовое электрооборудование ЭМ1 ТП 810-1-30.88 ЭМ1 Общие данные ТП 810-1-30.88 ЭМ1 План расположения электрооборудования и прокладки электрических сетей между осями К1...К28,1...59 ТП 810-1-30.88 ЭМ1 План расположения электрооборудования и прокладки электрических сетей между осями И1...И28,1...59 ТП 810-1-30.88 ЭМ1 План расположения электрооборудования и прокладки электрических сетей между осями Ж1...Ж28,1...59 ТП 810-1-30.88 ЭМ1 План расположения электрооборудования и прокладки электрических сетей между осями 30...33,Д...К28 ТП 810-1-30.88 ЭМ1 План прокладки лотков. Разрезы 1-1,2-2 ТП 810-1-30.88 ЭМ1 Спецификация к планам расположения электрооборудования и прокладки электрических сетей ТП 810-1-30.88 ЭМИ1 Эскизные чертежи общих видов нетиповых конструкций силового электрооборудования ЭМИ1 ТП 810-1-30.88 ЭМ2 Силовое электрооборудование ЭМ2 ТП 810-1-30.88 ЭМ2 Общие данные (начало) ТП 810-1-30.88 ЭМ2 Общие данные (окончание) ТП 810-1-30.88 ЭМ2 Расчетная схема силовых распределительных шкафов 1ШР,2ШР ТП 810-1-30.88 ЭМ2 Расчетная схема силовых распределительных шкафов 3ШР,4ШР ТП 810-1-30.88 ЭМ2 Щит станций управления ЩСУ. Принципиальная однолинейная схема панелей 1.1,1.2 ТП 810-1-30.88 ЭМ2 Щит станций управления ЩСУ. Принципиальная однолинейная схема панелей 1.2,2.1,3.1,4.1,5.1 ТП 810-1-30.88 ЭМ2 Щит станций управления ЩСУ. Принципиальная однолинейная схема панелей 5.1,3.2 ТП 810-1-30.88 ЭМ2 Щит станций управления ЩСУ. Принципиальная однолинейная схема панелей 4.2,5.2 ТП 810-1-30.88 ЭМ2 Щит станций управления ЩСУ. Принципиальная однолинейная схема панелей 5.2,6.1,6.2 ТП 810-1-30.88 ЭМ2 Щит станций управления ЩСУ. Принципиальная однолинейная схема панелей 7.2,7.1,8.1,9.1 ТП 810-1-30.88 ЭМ2 Щит станций управления ЩСУ. Принципиальная однолинейная схема панелей 10.1,8.2 ТП 810-1-30.88 ЭМ2 Щит станций управления ЩСУ. Принципиальная однолинейная схема панелей 9.2,10.2 ТП 810-1-30.88 ЭМ2 Щит станций управления ЩСУ. Принципиальная однолинейная схема панелей 10.2 ТП 810-1-30.88 ЭМ2 Щит станций управления ЩСУ. Схемы соединения панелей 1.1,1.2,2.1,4.1 ТП 810-1-30.88 ЭМ2 Щит станций управления ЩСУ. Схемы соединения панелей 5.1,5.2 ТП 810-1-30.88 ЭМ2 Щит станций управления ЩСУ. Схемы соединения панелей 6.1,6.2 ТП 810-1-30.88 ЭМ2 Щит станций управления ЩСУ. Схемы соединения панелей 7.2,8.2,9.2,10.1 ТП 810-1-30.88 ЭМ2 2КТП-630-10/04-84УЗ. Принципиальная схема электроснабжения ТП 810-1-30.88 ЭМ2 План расположения электрооборудования и прокладки электрических сетей между осями А...Д,18...32 ТП 810-1-30.88 ЭМ2 План расположения электрооборудования и прокладки электрических сетей между осями А...Д,32...40. План расположения щитов в щитовой ТП 810-1-30.88 ЭМ2 План расположения электрооборудования на кровле ТП 810-1-30.88 ЭМ2 Фрагмент 1 ТП 810-1-30.88 ЭМ2 План прокладки труб ТП 810-1-30.88 ЭМ2 Экспликация помещений ТП 810-1-30.88 ЭМ2 Спецификация к планам расположения электрооборудования и прокладки труб ТП 810-1-30.88 ЭМ2.Л01 Опросный лист на 2КТП-630-10/0.4-84УЗ ЭМ2.Л01 ТП 810-1-30.88 ЭМ2.Л02 Опросный лист на ЩОТО-1-96УЗ ЭМ2.Л02 ТП 810-1-30.88 ЭД Электродосвечивание ЭД ТП 810-1-30.88 ЭД Общие данные ТП 810-1-30.88 ЭД План сети электродосвечивания между осями Ж1...Ж14,48...59 ТП 810-1-30.88 ЭД План сети электродосвечивания между осями Ж15...Ж28,48...59 ТП 810-1-30.88 ЭД Расчетная схема силового шкафа 1ШР ТП 810-1-30.88 ЭД Расчетная схема силового шкафа 3ШР ТП 810-1-30.88 ЭД Установка облучения растений тепличная УОРТУ2-3000-1. Схема электрическая принципиальная ТП 810-1-30.88 ЭД План прокладки лотков. Разрезы 1-1,2-2,3-3 ТП 810-1-30.88 ЭДИ1 Эскизные чертежи общих видов нетиповых конструкций электродосвечивания ЭДИ1 ТП 810-1-30.88 СС1 Связь и сигнализация СС1 ТП 810-1-30.88 СС1 Общие данные ТП 810-1-30.88 СС1 План сетей громкоговорящей связи и радиофикации ТП 810-1-30.88 ССИ1 Эскизные чертежи общих видов нетиповых конструкций связи и сигнализации ССИ1 ТП 810-1-30.88 СС2 Связь и сигнализация СС2 ТП 810-1-30.88 СС2 Общие данные (начало) ТП 810-1-30.88 СС2 Общие данные (окончание) ТП 810-1-30.88 СС2 План сетей телефонизации, радиофикации и громкоговорящей связи между осями А...Д,18...32 ТП 810-1-30.88 СС2 План сетей телефонизации, радиофикации и громкоговорящей связи между осями А...Д,32...40 ТП 810-1-30.88 СС2 План сетей пожарной сигнализации и автоматического отключения вентсистем между осями А...Д,18...32 ТП 810-1-30.88 СС2 План сетей пожарной сигнализации и автоматического отключения вентсистем между осями А...Д,32...40 ТП 810-1-30.88 СС2 Схема блокировки вентсистем |
| Разработан: | Гипронисельпром Госагропрома СССР |
| Утверждён: | 06.12.1988 Госагропром СССР (USSR Gosagroprom 805-42/153) |





































































