Скачать Типовой проект 810-1-30.88 Альбом 7. Часть 1. Автоматизация технологических процессов. Автоматизация внутреннего водопровода и канализации. Автоматизация отопления и вентиляцияДата актуализации: 01.01.2021
|
| Обозначение: | Типовой проект 810-1-30.88 |
| Обозначение англ: | 810-1-30.88 |
| Статус: | не определен законодательством |
| Название рус.: | Альбом 7. Часть 1. Автоматизация технологических процессов. Автоматизация внутреннего водопровода и канализации. Автоматизация отопления и вентиляция |
| Дата добавления в базу: | 01.09.2013 |
| Дата актуализации: | 01.01.2021 |
| Дата введения: | 07.12.1988 |
| Дата окончания срока действия: | 30.06.2003 |
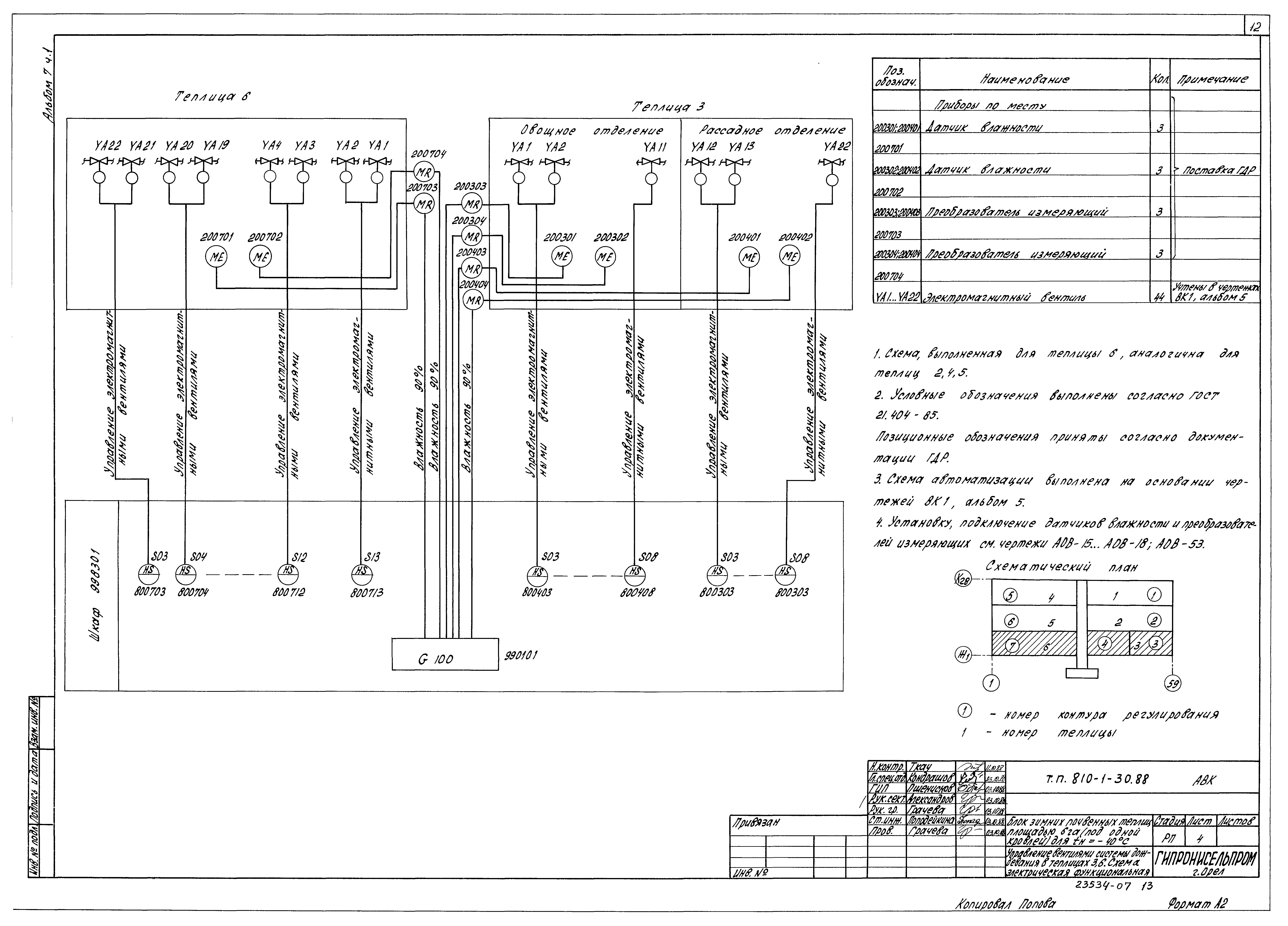
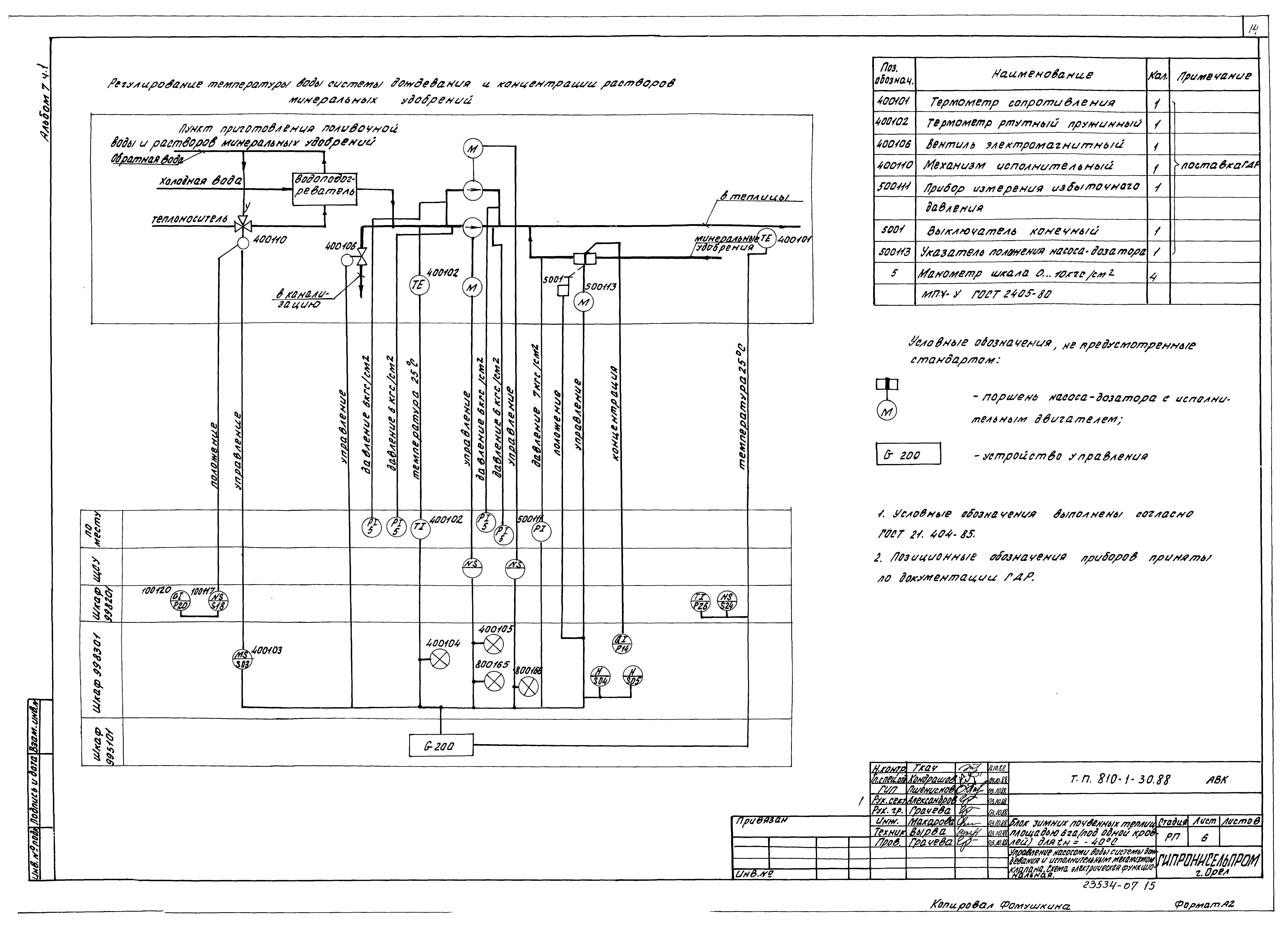
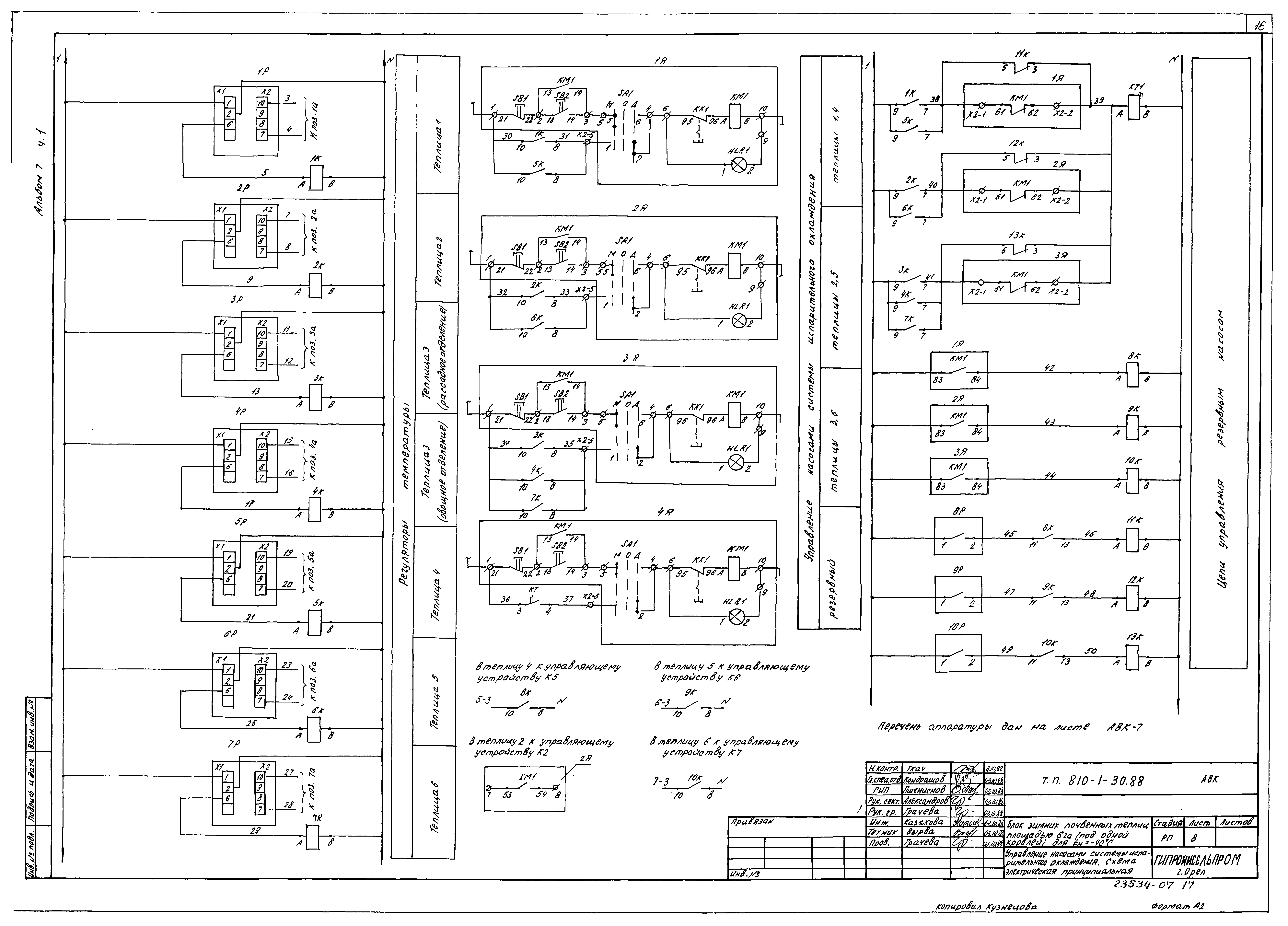
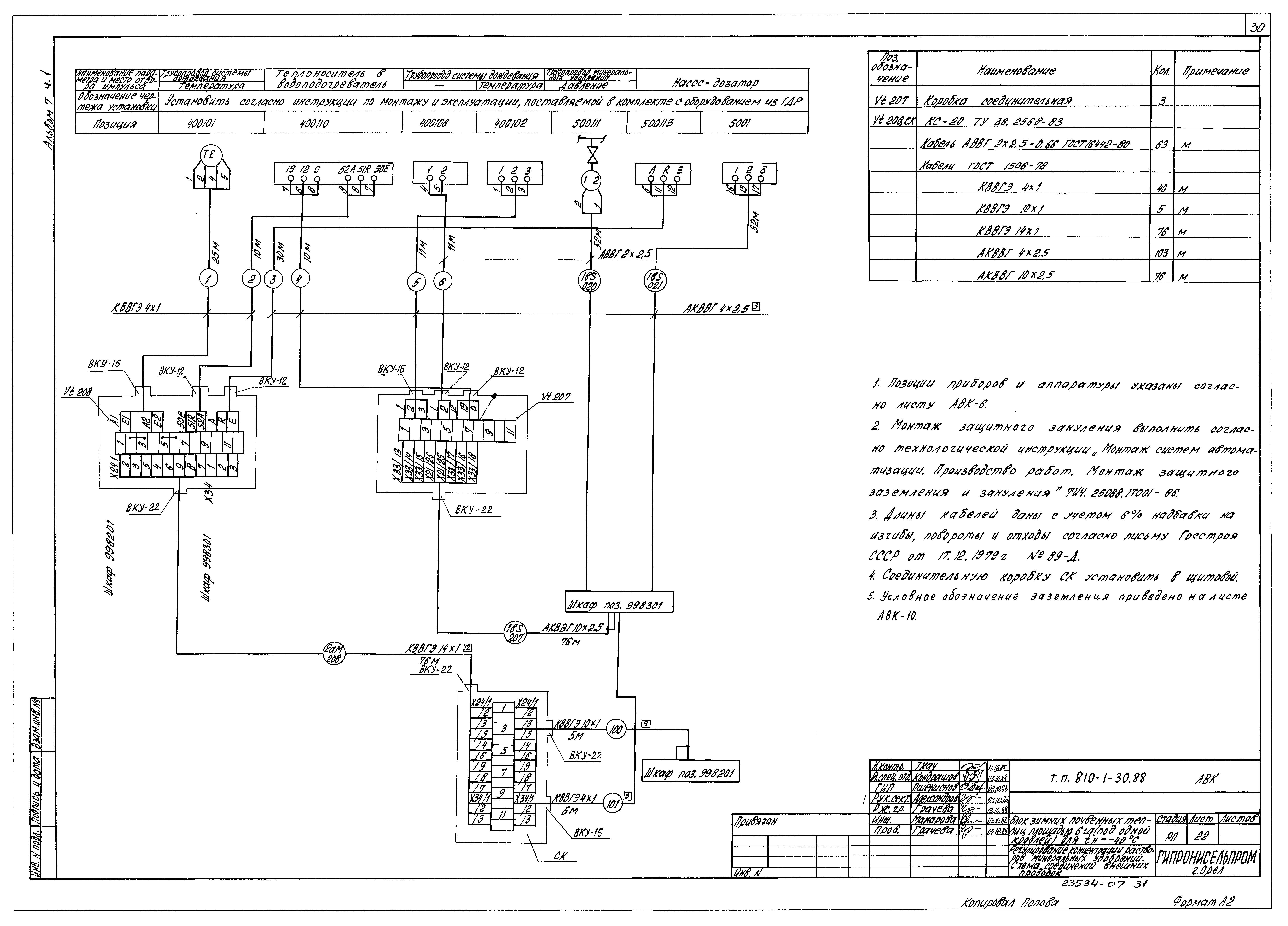
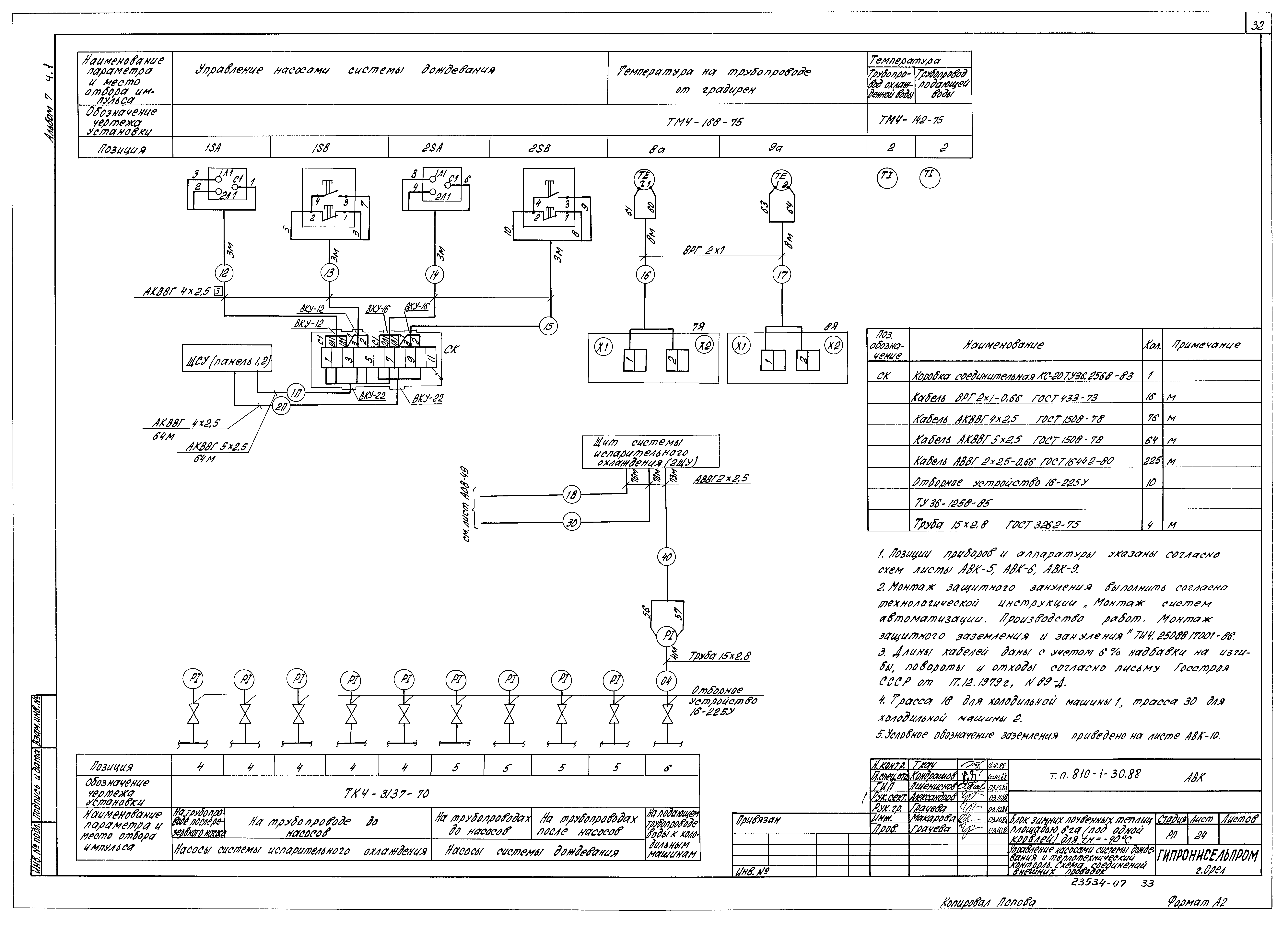
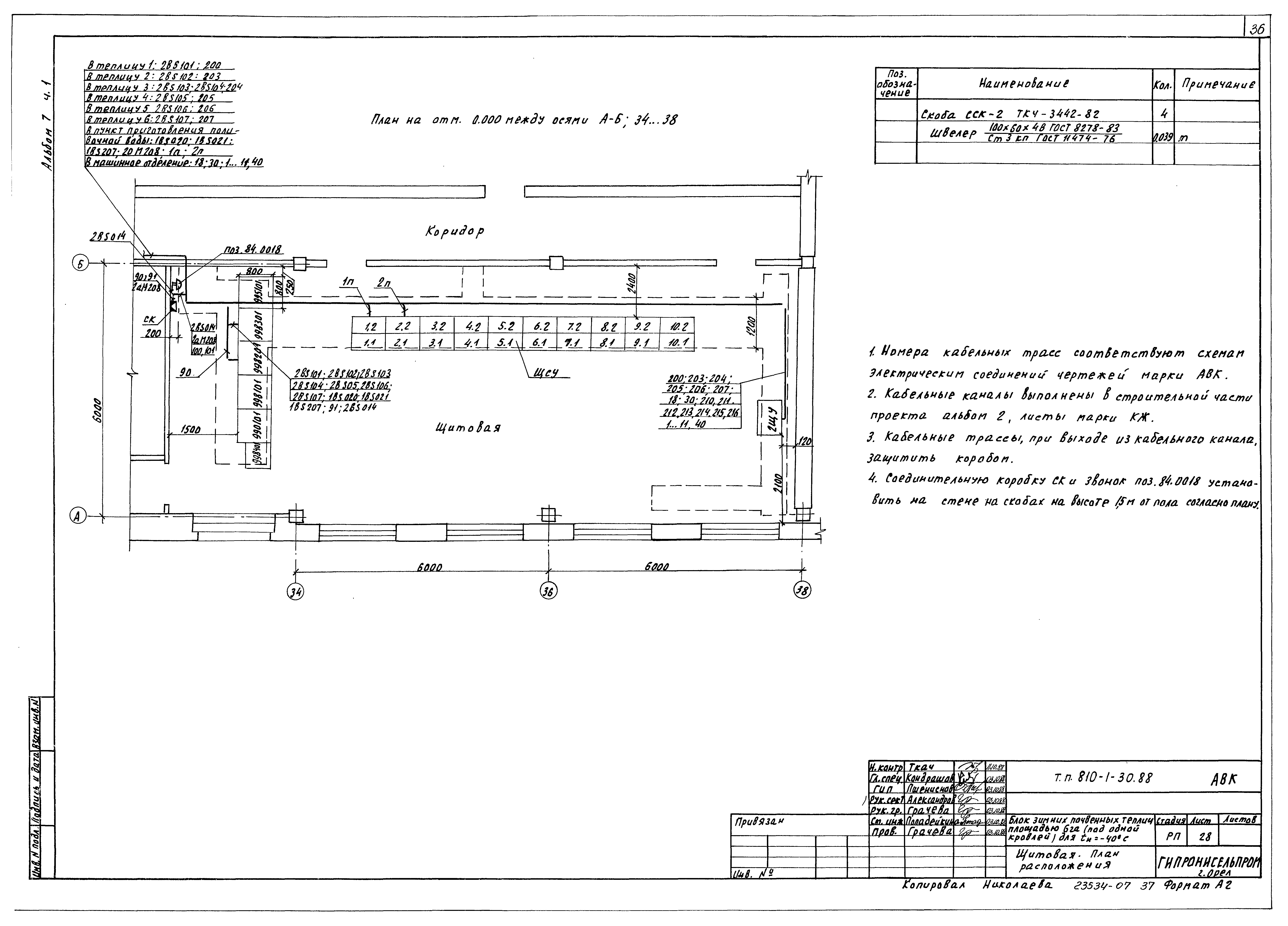
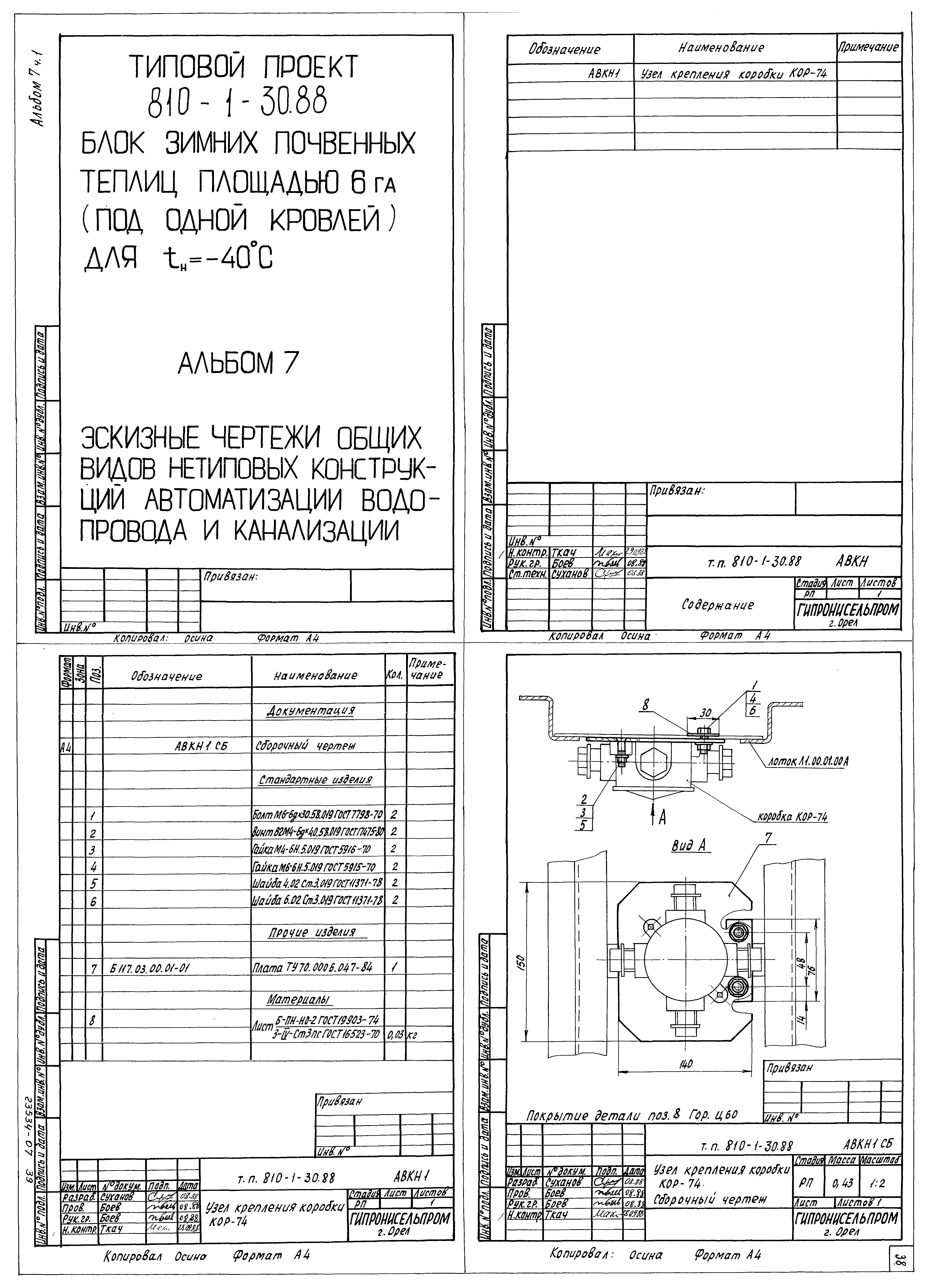
| Оглавление: | ТП 810-1-30.88 Содержание альбома (начало) ТП 810-1-30.88 Содержание альбома (окончание) ТП 810-1-30.88 АТХ Автоматизация процессов АТХ ТП 810-1-30.88 АТХ Общие данные ТП 810-1-30.88 АТХ Управление пусковыми устройствами электродосвечивания УОРТУ-2-3000-I (3,5 световые зоны). Теплица 3. Схема соединений внешних проводок (начало) ТП 810-1-30.88 АТХ Управление пусковыми устройствами электродосвечивания УОРТУ-2-3000-I (3,5 световые зоны). Теплица 3. Схема соединений внешних проводок (продолжение) ТП 810-1-30.88 АТХ Управление пусковыми устройствами электродосвечивания УОРТУ-2-3000-I (3,5 световые зоны). Теплица 3. Схема соединений внешних проводок (окончание) ТП 810-1-30.88 АТХ Управление пусковыми устройствами электродосвечивания УОРТУ-2-3000-I (3,5 световые зоны). Теплица 3. План расположения ТП 810-1-30.88 АВК Автоматизация внутреннего водопровода и канализации АВК ТП 810-1-30.88 АВК Общие данные (начало) ТП 810-1-30.88 АВК Общие данные (продолжение) ТП 810-1-30.88 АВК Общие данные (окончание) ТП 810-1-30.88 АВК Управление вентилями системы дождевания в теплицах 3,6. Схема электрическая функциональная ТП 810-1-30.88 АВК Управление вентилями и насосами системы испарительного охлаждения в теплицах 3,6. Схема электрическая функциональная ТП 810-1-30.88 АВК Управление насосами воды системы дождевания и исполнительным механизмом клапана. Схема электрическая функциональная ТП 810-1-30.88 АВК Управление вентилями испарительного охлаждения. Схема электрическая принципиальная ТП 810-1-30.88 АВК Управление насосами системы испарительного охлаждения. Схема электрическая принципиальная ТП 810-1-30.88 АВК Управление насосами оборотного водоснабжения и вентиляторами градирни. Схема электрическая принципиальная ТП 810-1-30.88 АВК Управление вентилями системы дождевания в теплице 1. Схема соединений внешних проводок ТП 810-1-30.88 АВК Управление вентилями системы дождевания в теплице 2. Схема соединений внешних проводок ТП 810-1-30.88 АВК Управление вентилями системы дождевания в теплице 3. Схема соединений внешних проводок ТП 810-1-30.88 АВК Управление вентилями системы дождевания в теплице 4. Схема соединений внешних проводок ТП 810-1-30.88 АВК Управление вентилями системы дождевания в теплице 5. Схема соединений внешних проводок ТП 810-1-30.88 АВК Управление вентилями системы дождевания в теплице 6. Схема соединений внешних проводок ТП 810-1-30.88 АВК Управление вентилями системы испарительного охлаждения в теплице 1. Схема соединений внешних проводок ТП 810-1-30.88 АВК Управление вентилями системы испарительного охлаждения в теплице 2. Схема соединений внешних проводок ТП 810-1-30.88 АВК Управление вентилями системы испарительного охлаждения в теплице 3. Схема соединений внешних проводок ТП 810-1-30.88 АВК Управление вентилями системы испарительного охлаждения в теплице 4. Схема соединений внешних проводок ТП 810-1-30.88 АВК Управление вентилями системы испарительного охлаждения в теплице 5. Схема соединений внешних проводок ТП 810-1-30.88 АВК Управление вентилями системы испарительного охлаждения в теплице 6. Схема соединений внешних проводок ТП 810-1-30.88 АВК Регулирование концентрации растворов минеральных удобрений. Схема соединений внешних проводок ТП 810-1-30.88 АВК Управление насосами испарительного охлаждения оборотного водоснабжения и вентиляторами градирни. Схема соединений внешних проводок ТП 810-1-30.88 АВК Управление насосами системы дождевания и теплотехнический контроль. Схема соединений внешних проводок ТП 810-1-30.88 АВК Управление вентилями системы дождевания в теплицах 1,3. План расположения ТП 810-1-30.88 АВК Управление вентилями испарительного охлаждения теплиц 1,3. План расположения ТП 810-1-30.88 АВК План расположения оборудования ТП 810-1-30.88 АВК Щитовая. План расположения ТП 810-1-30.88 АВК Шкаф 998301. Схема подключения внешних проводок ТП 810-1-30.88 АВКН Эскизные чертежи общих видов нетиповых конструкций автоматизации внутреннего водопровода и канализации АВКН ТП 810-1-30.88 АОВН Эскизные чертежи общих видов нетиповых конструкций автоматизации отопления и вентиляции АОВН |
| Разработан: | Гипронисельпром Госагропрома СССР |
| Утверждён: | 06.12.1988 Госагропром СССР (USSR Gosagroprom 805-42/153) |












































