Скачать Типовой проект 810-1-30.88 Альбом 7. Часть 2. Автоматизация отопления и вентиляцииДата актуализации: 01.01.2021
|
| Обозначение: | Типовой проект 810-1-30.88 |
| Обозначение англ: | 810-1-30.88 |
| Статус: | не определен законодательством |
| Название рус.: | Альбом 7. Часть 2. Автоматизация отопления и вентиляции |
| Дата добавления в базу: | 01.09.2013 |
| Дата актуализации: | 01.01.2021 |
| Дата введения: | 07.12.1988 |
| Дата окончания срока действия: | 30.06.2003 |
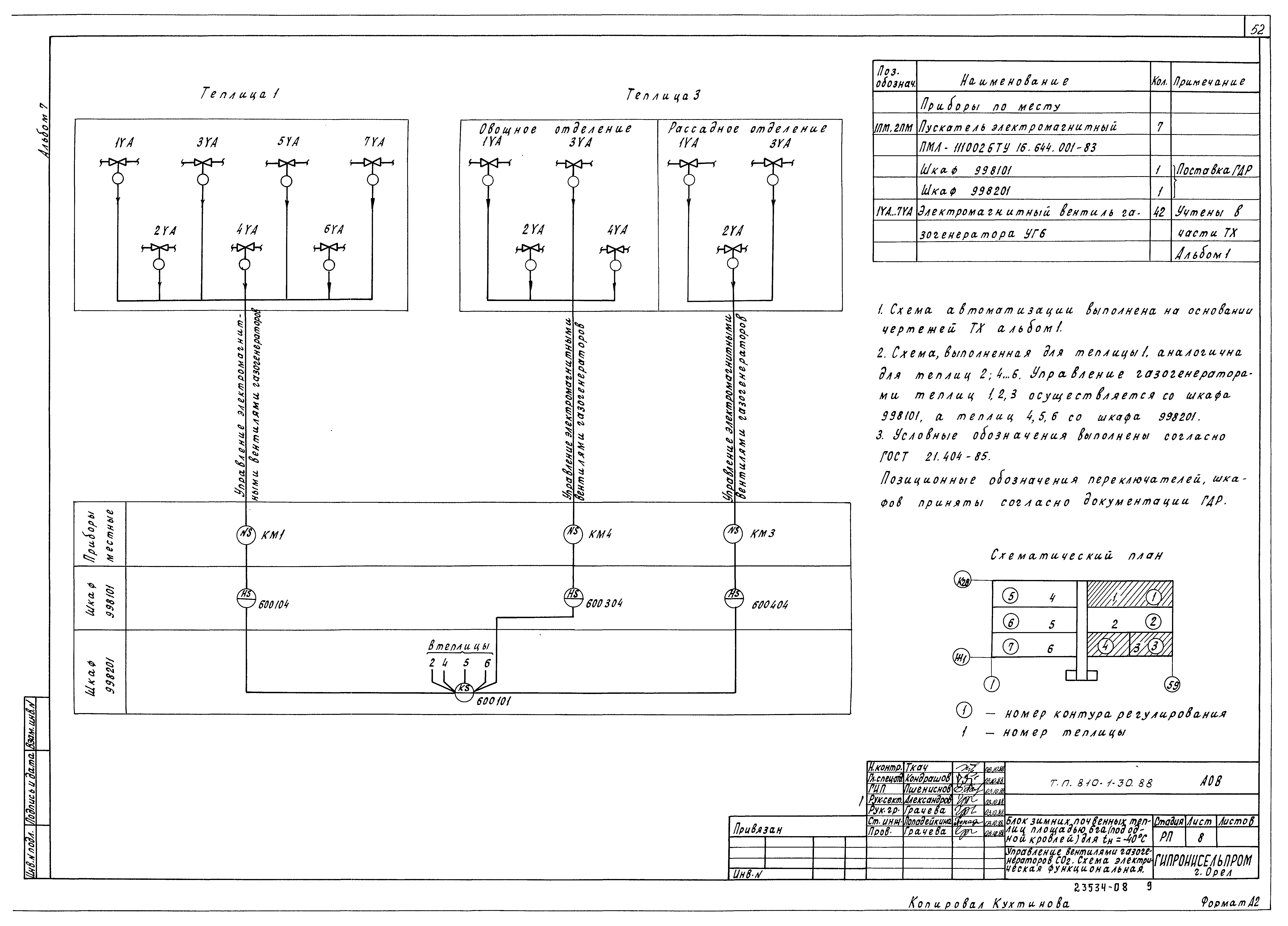
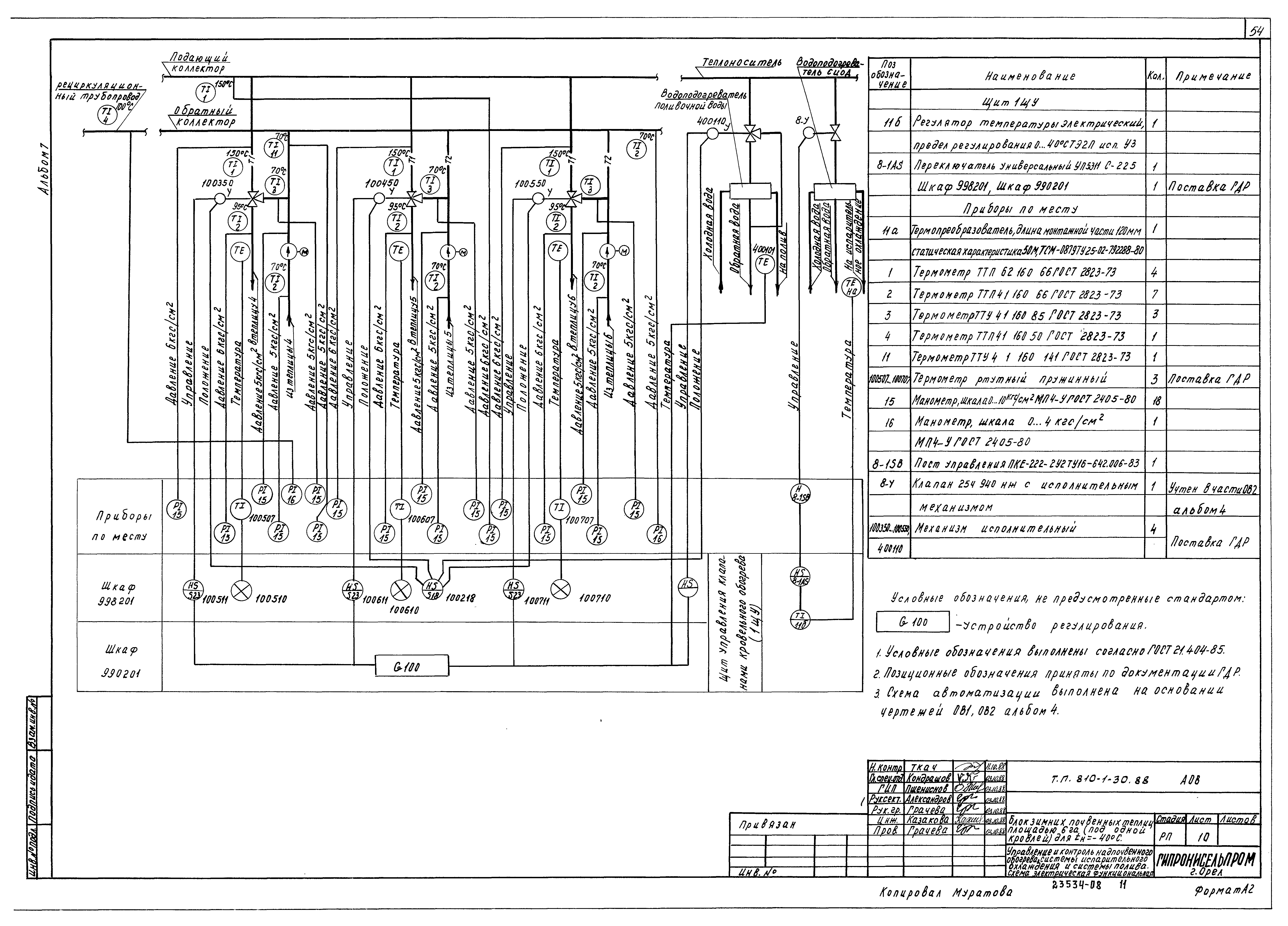
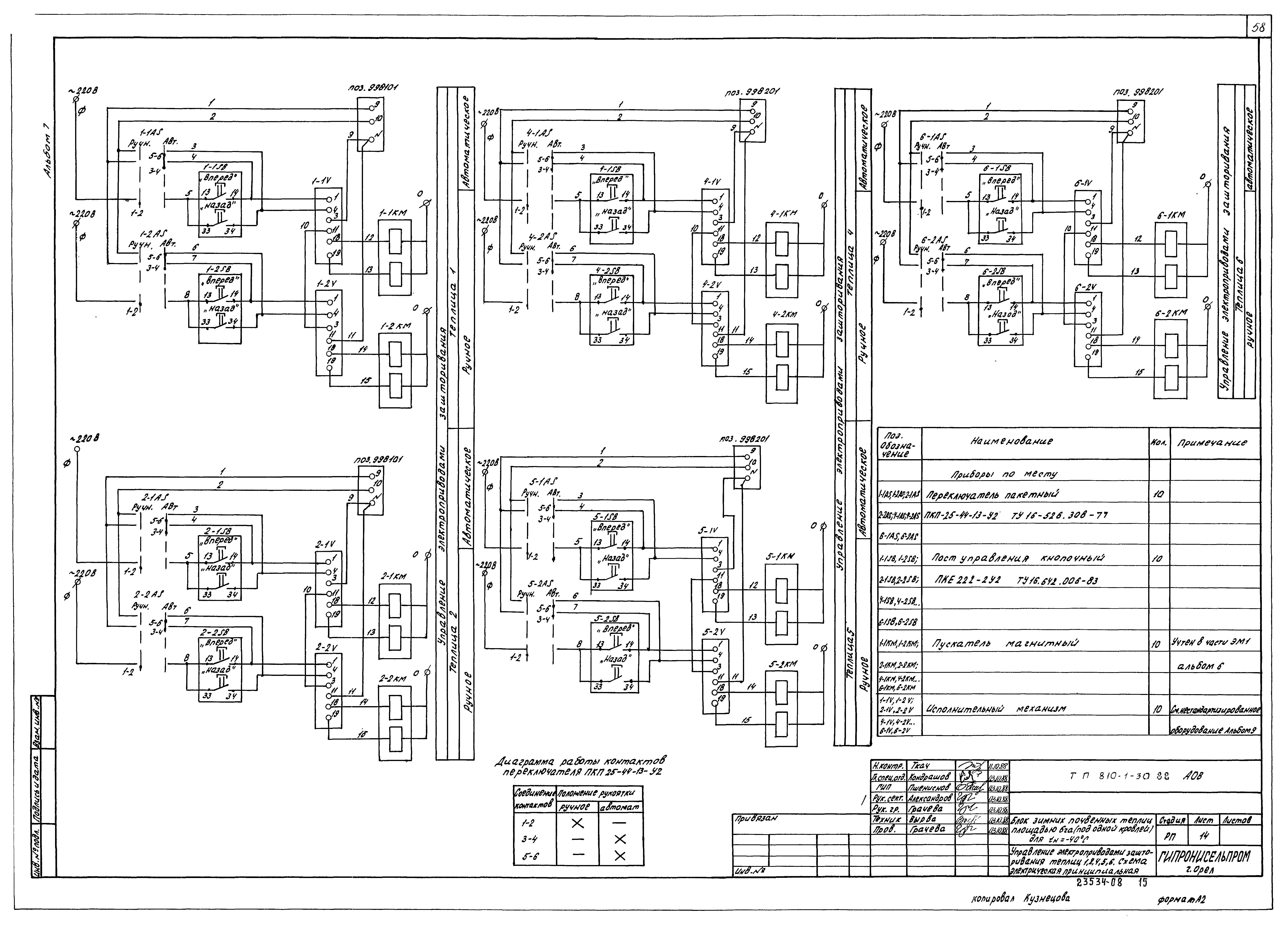
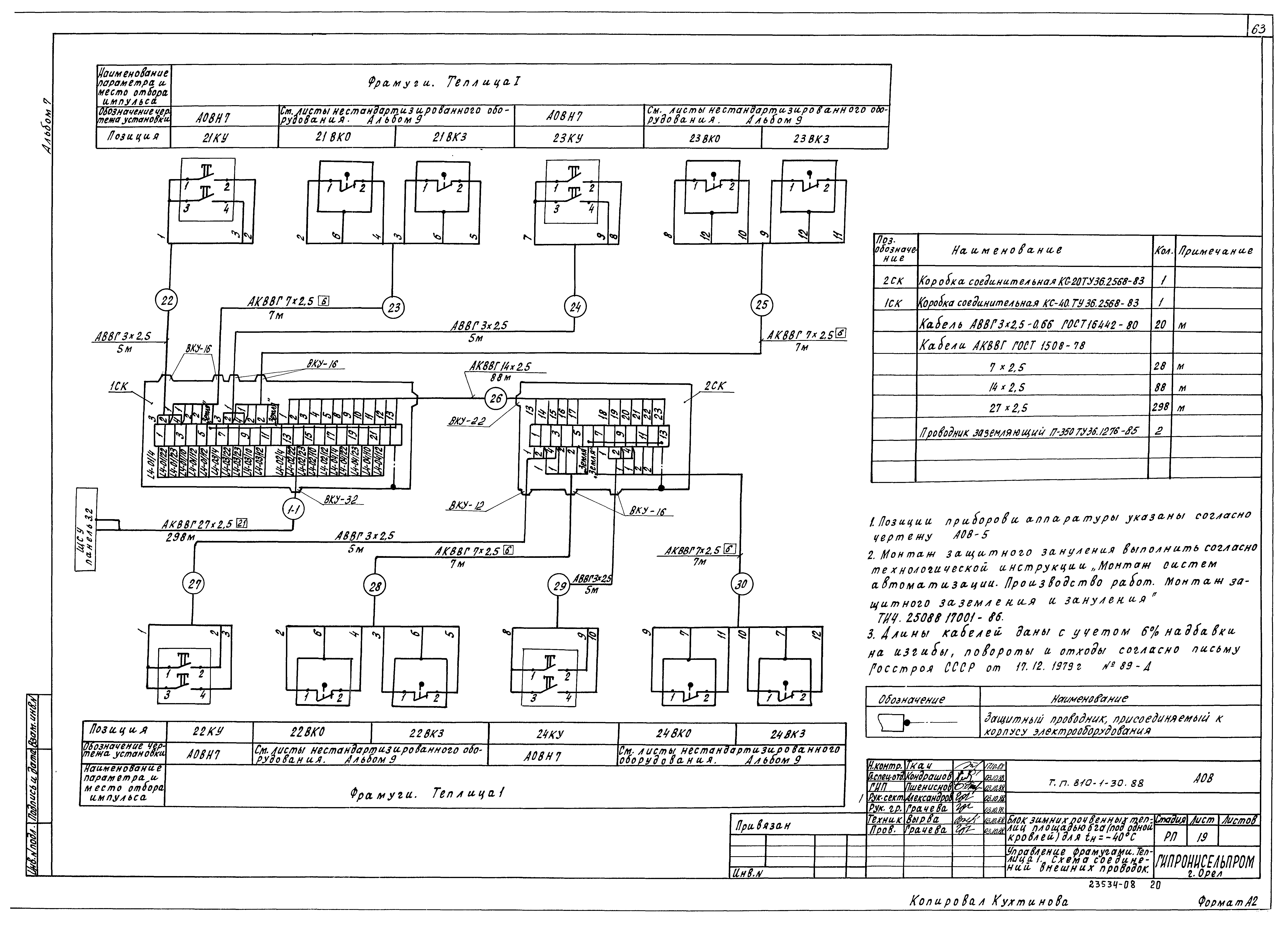
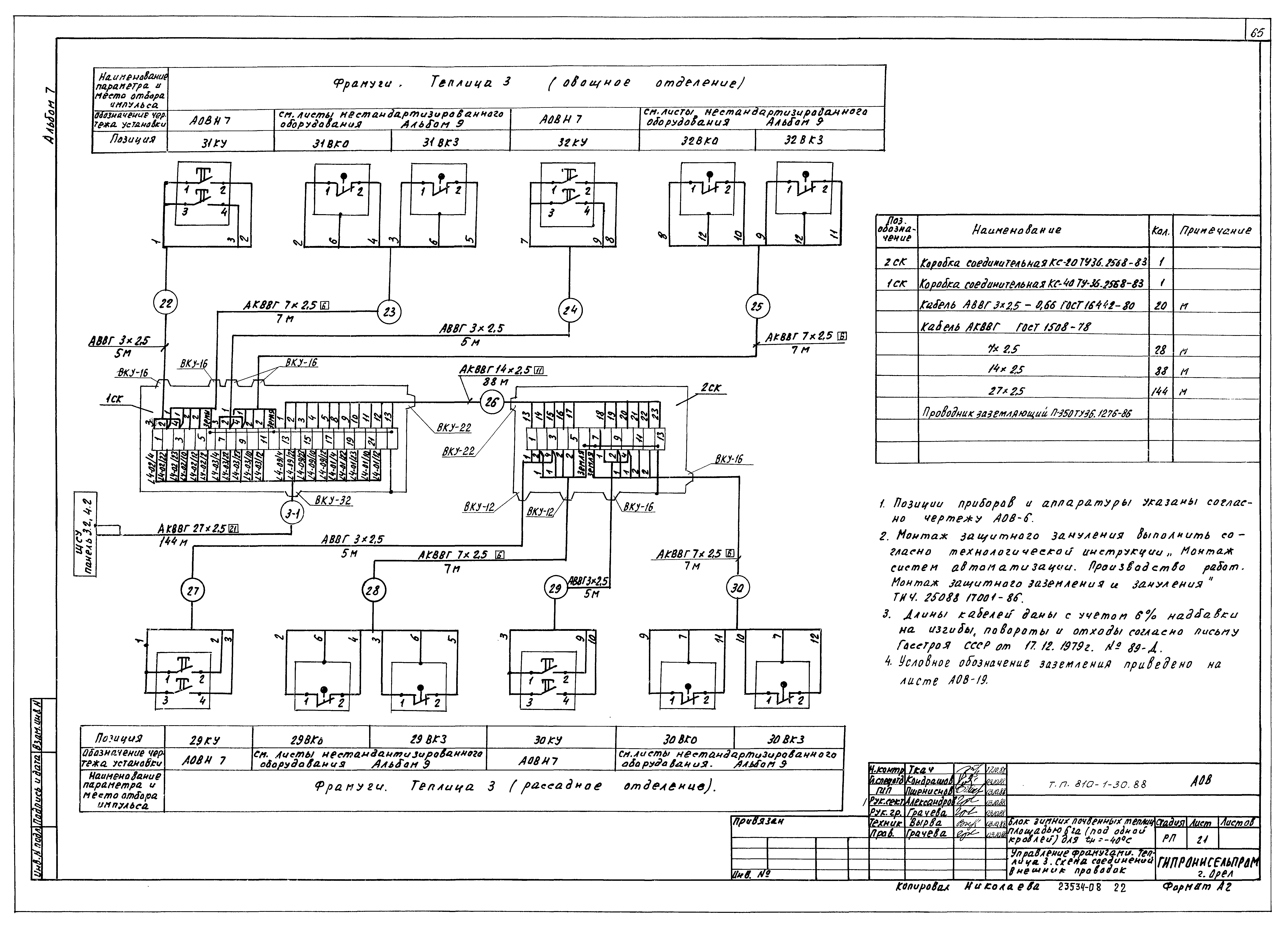
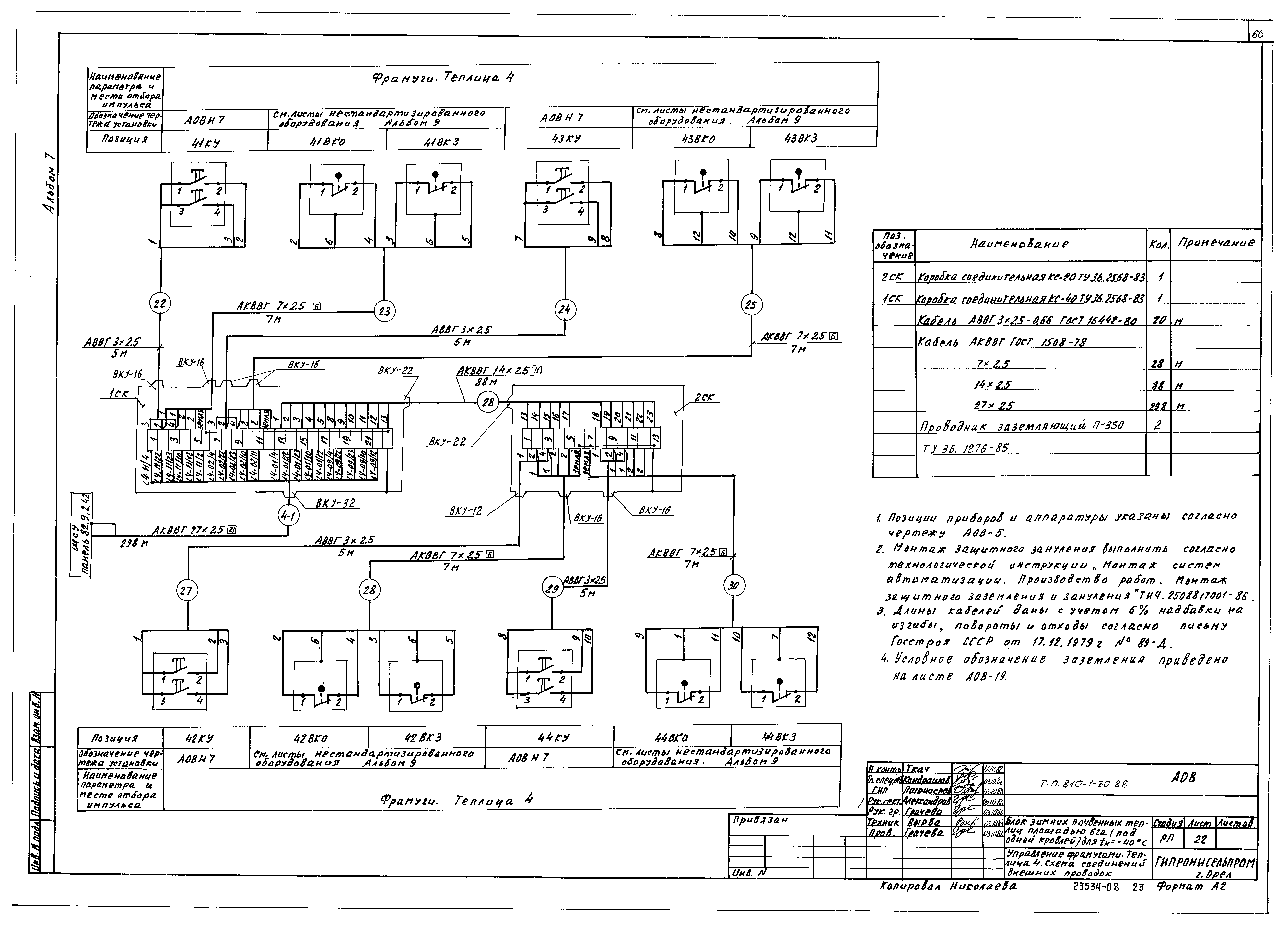
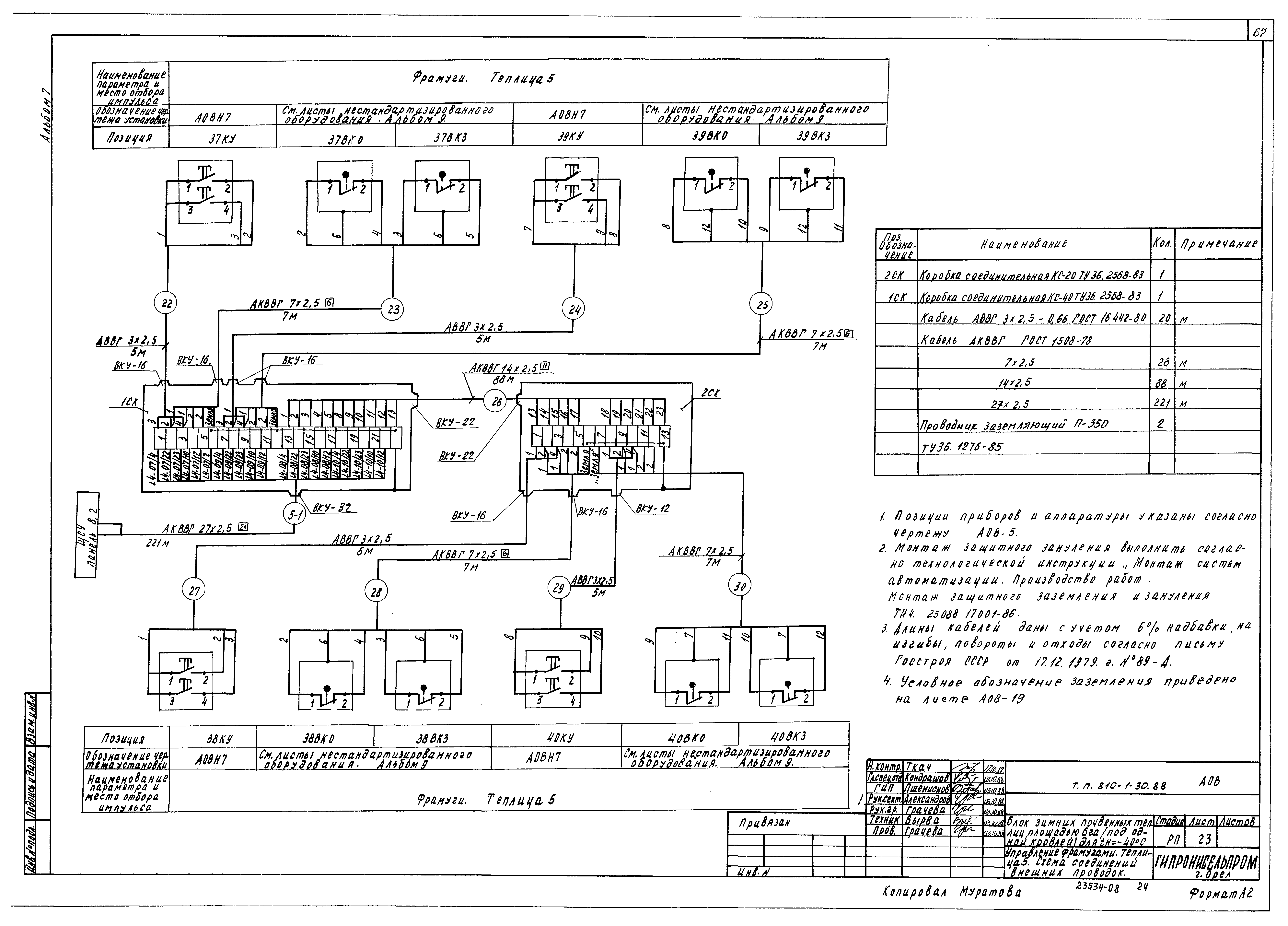
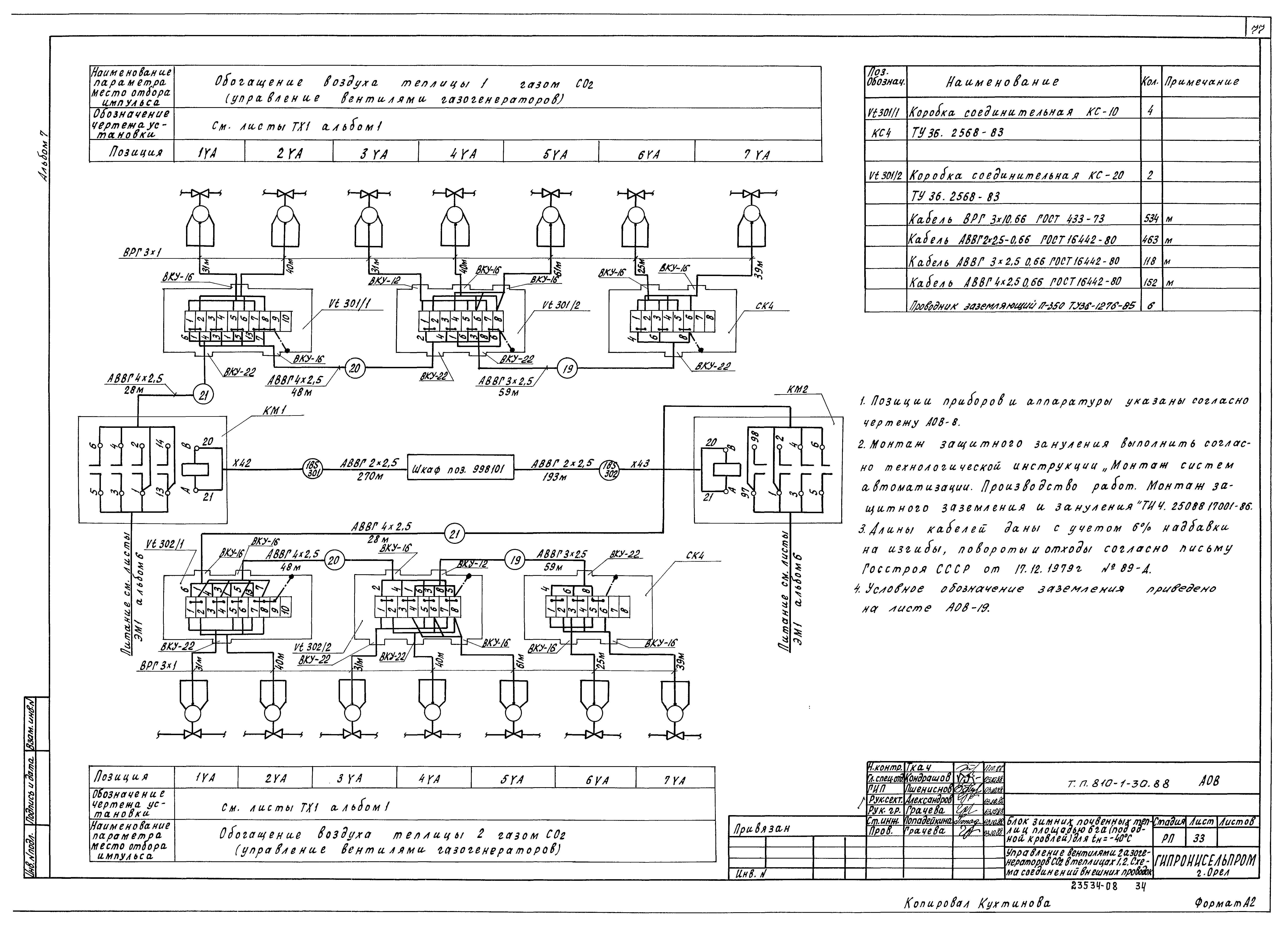
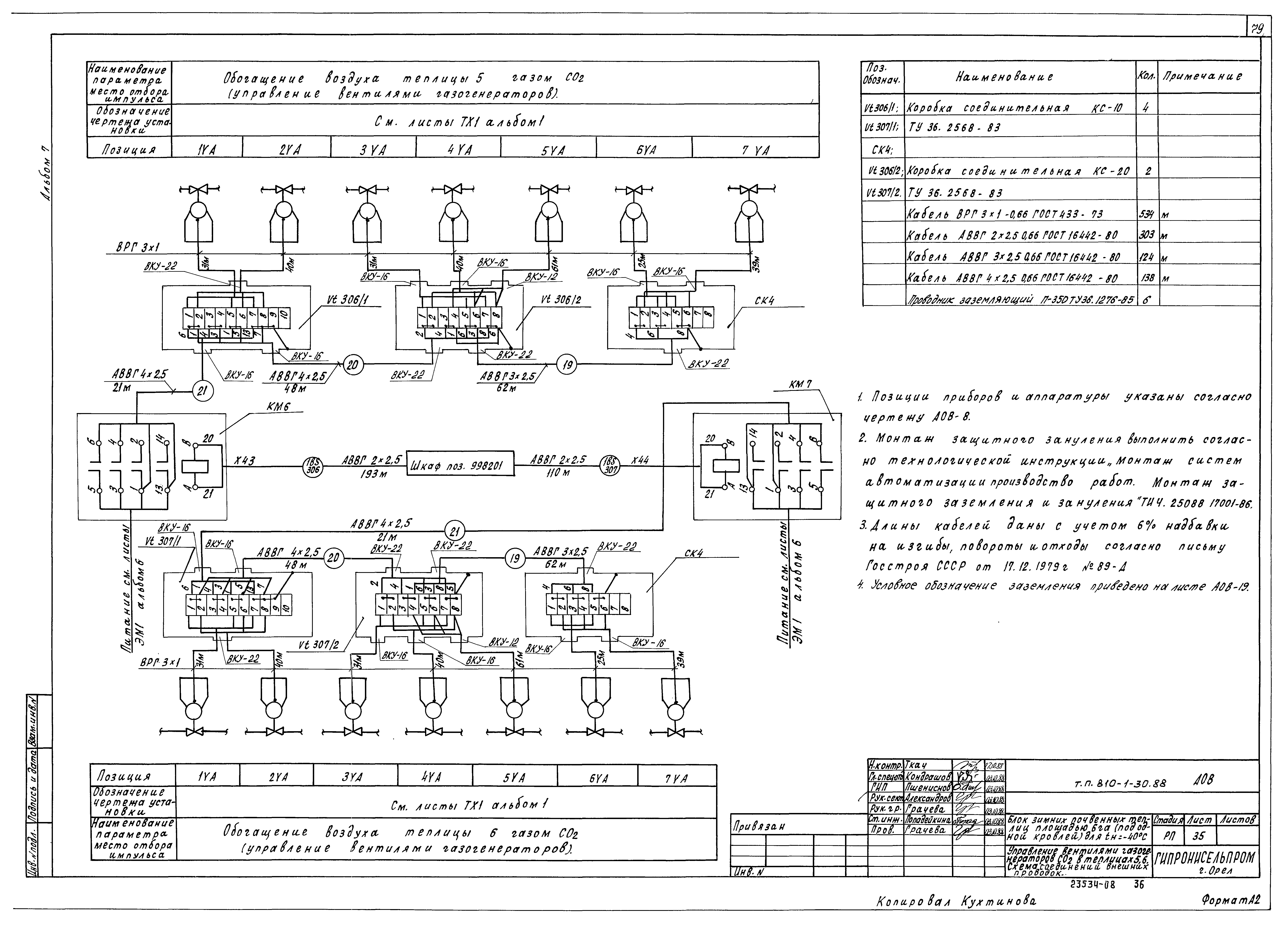
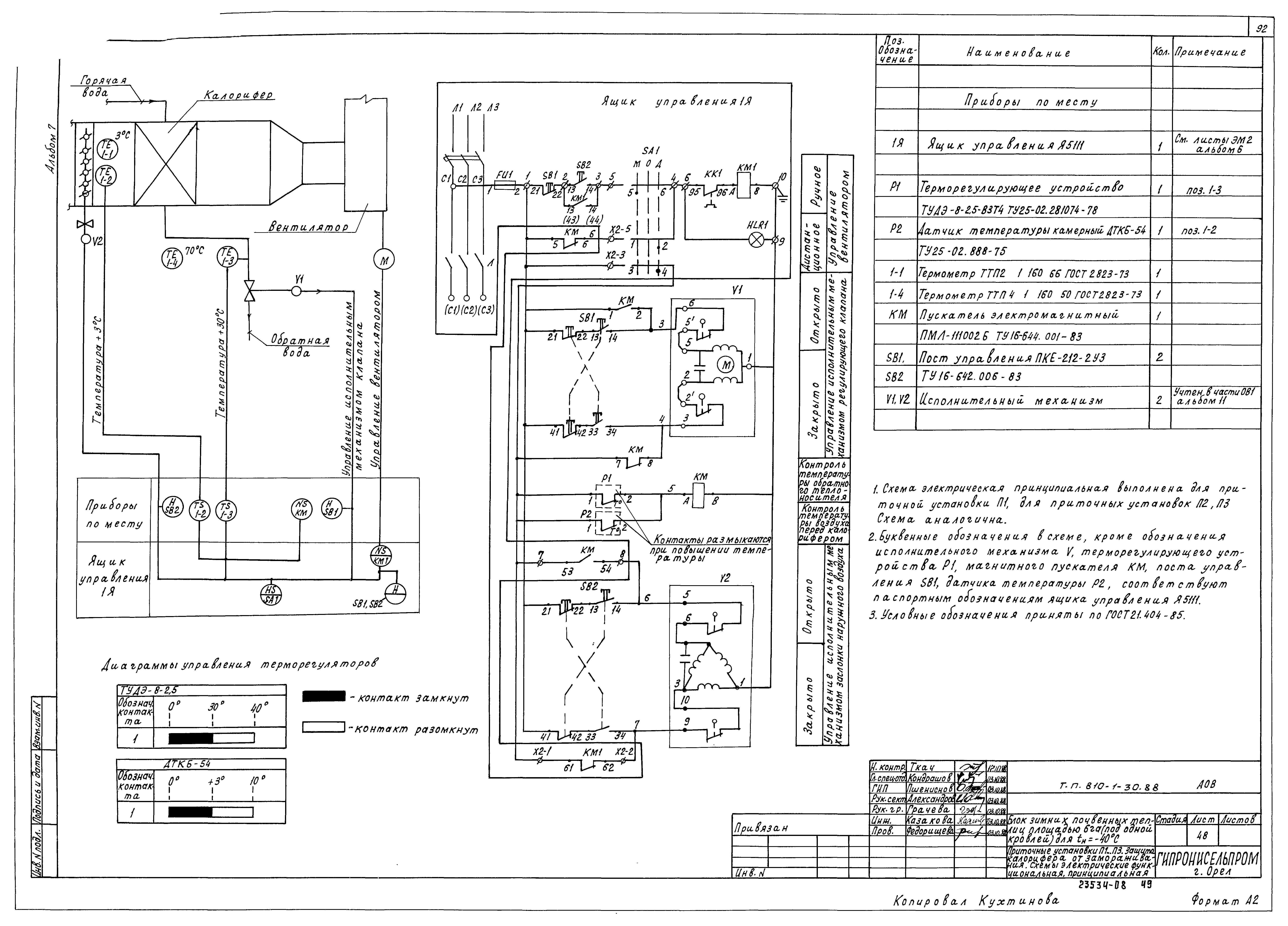
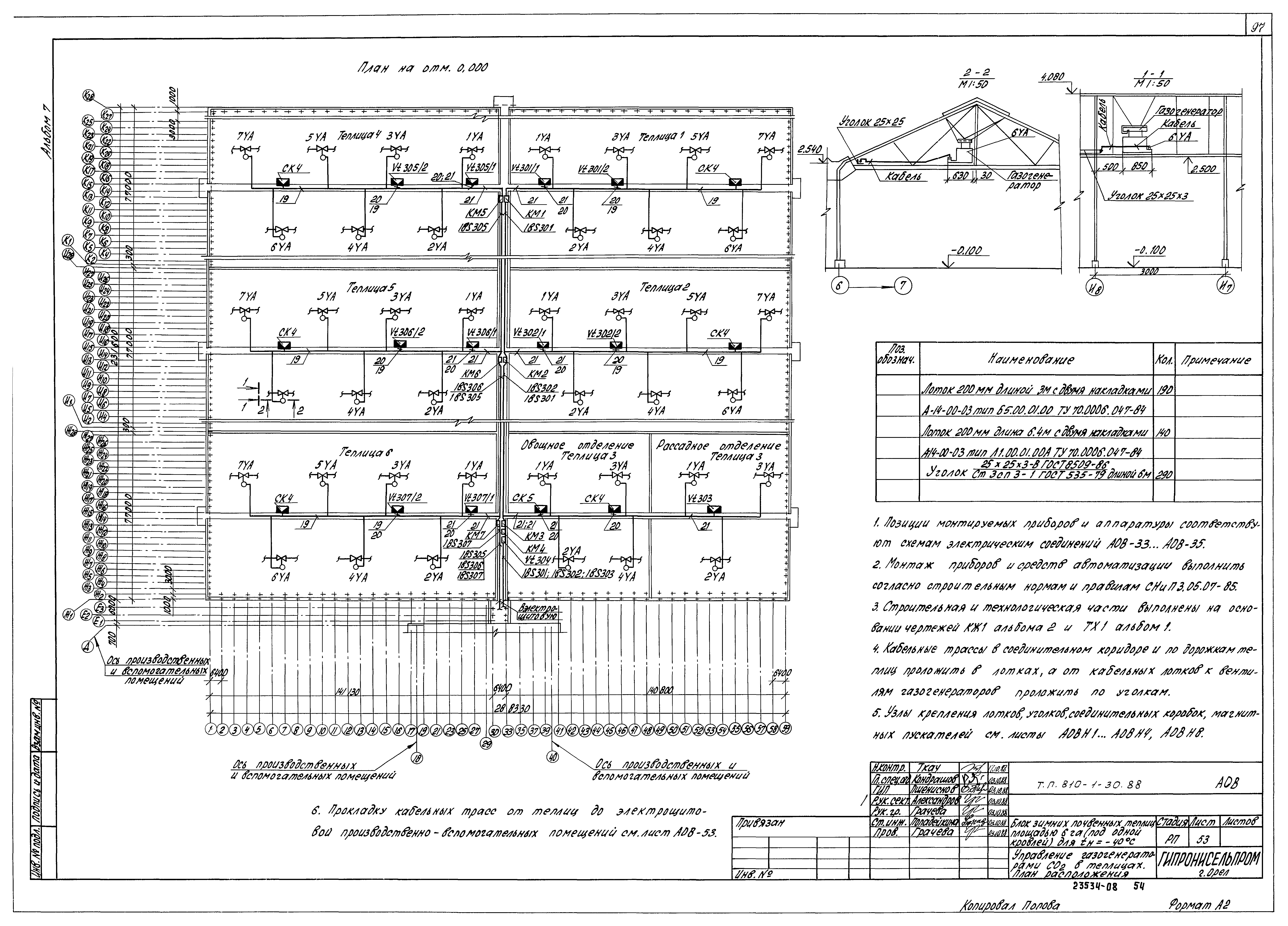
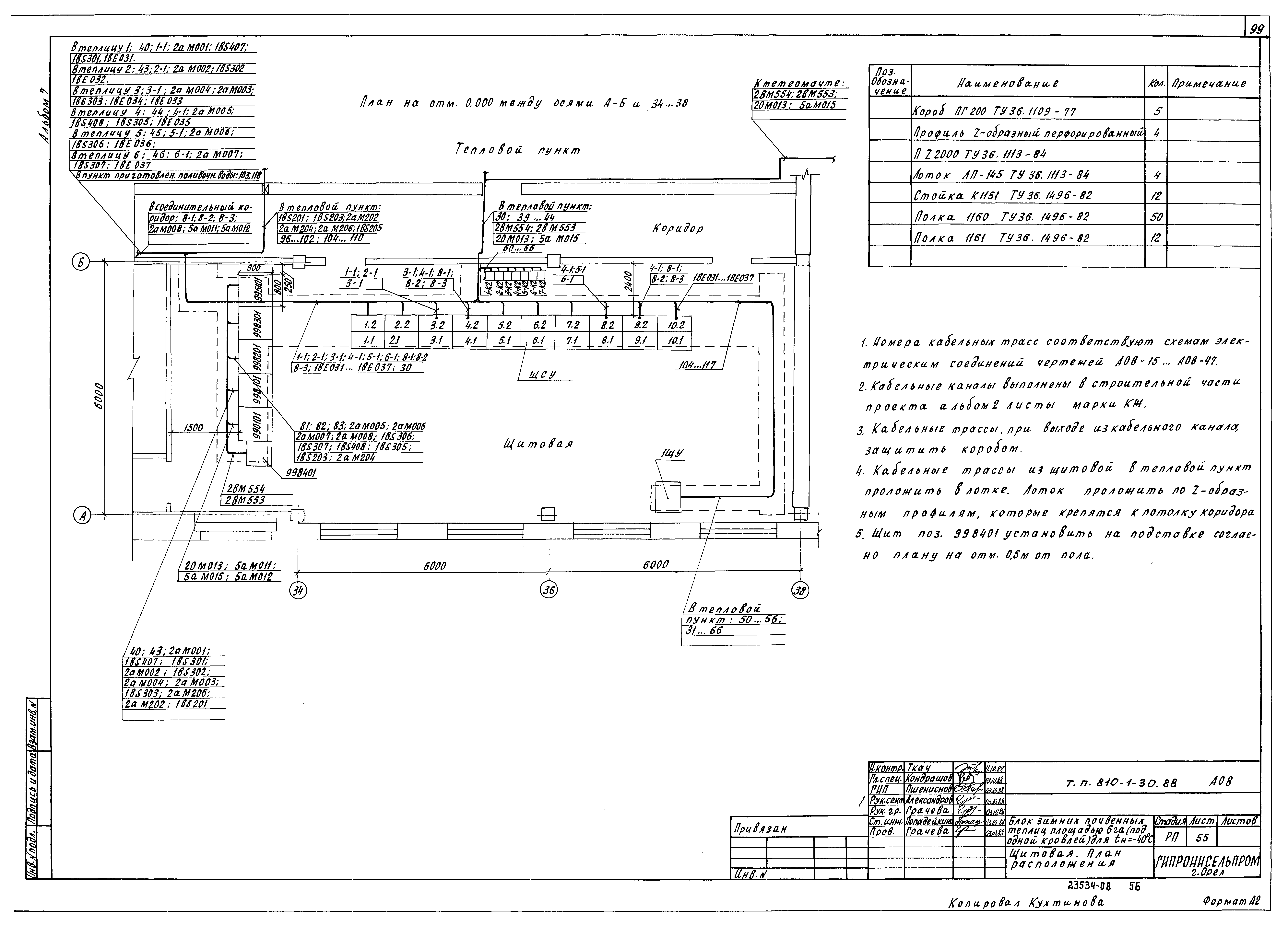
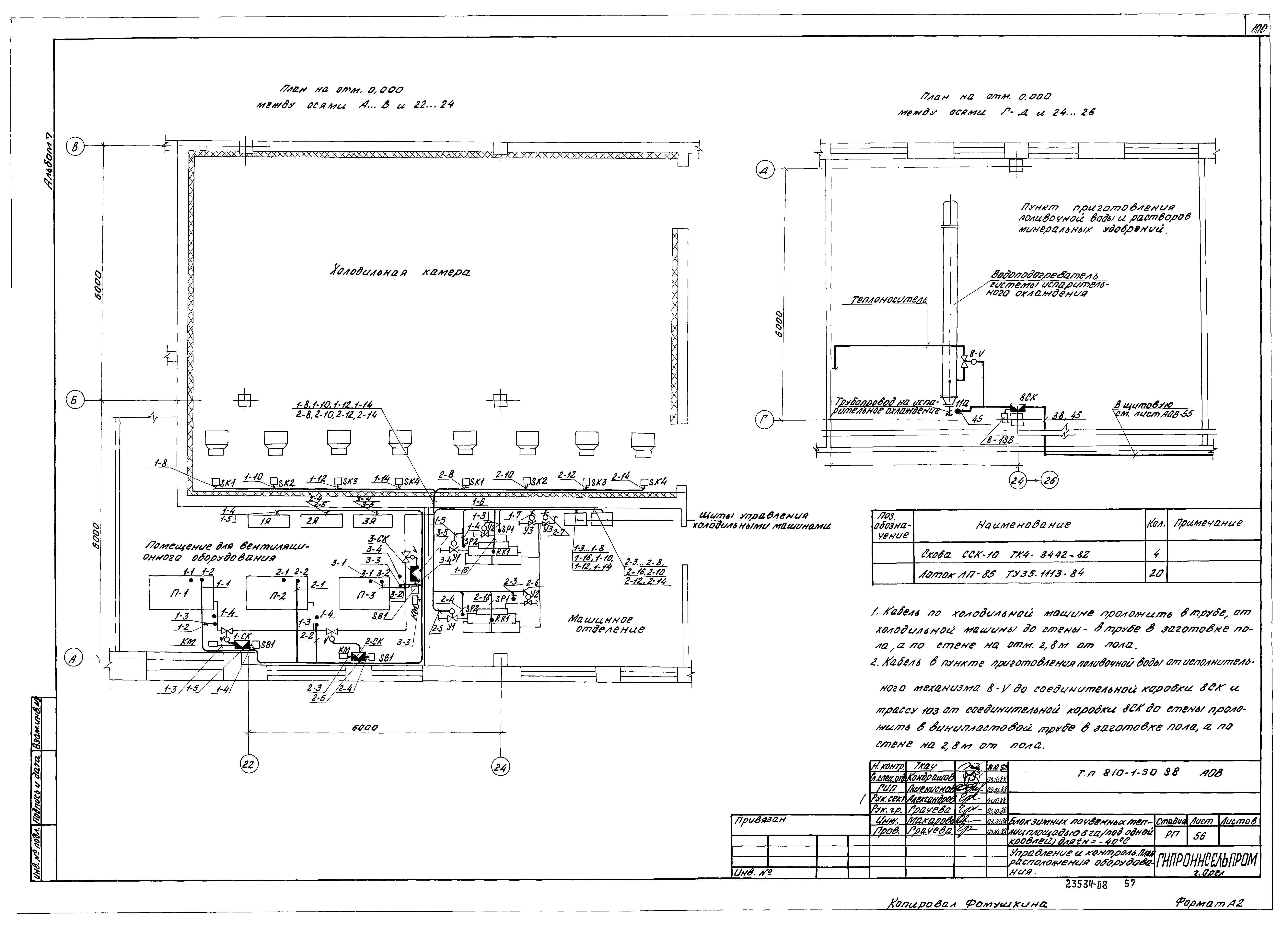
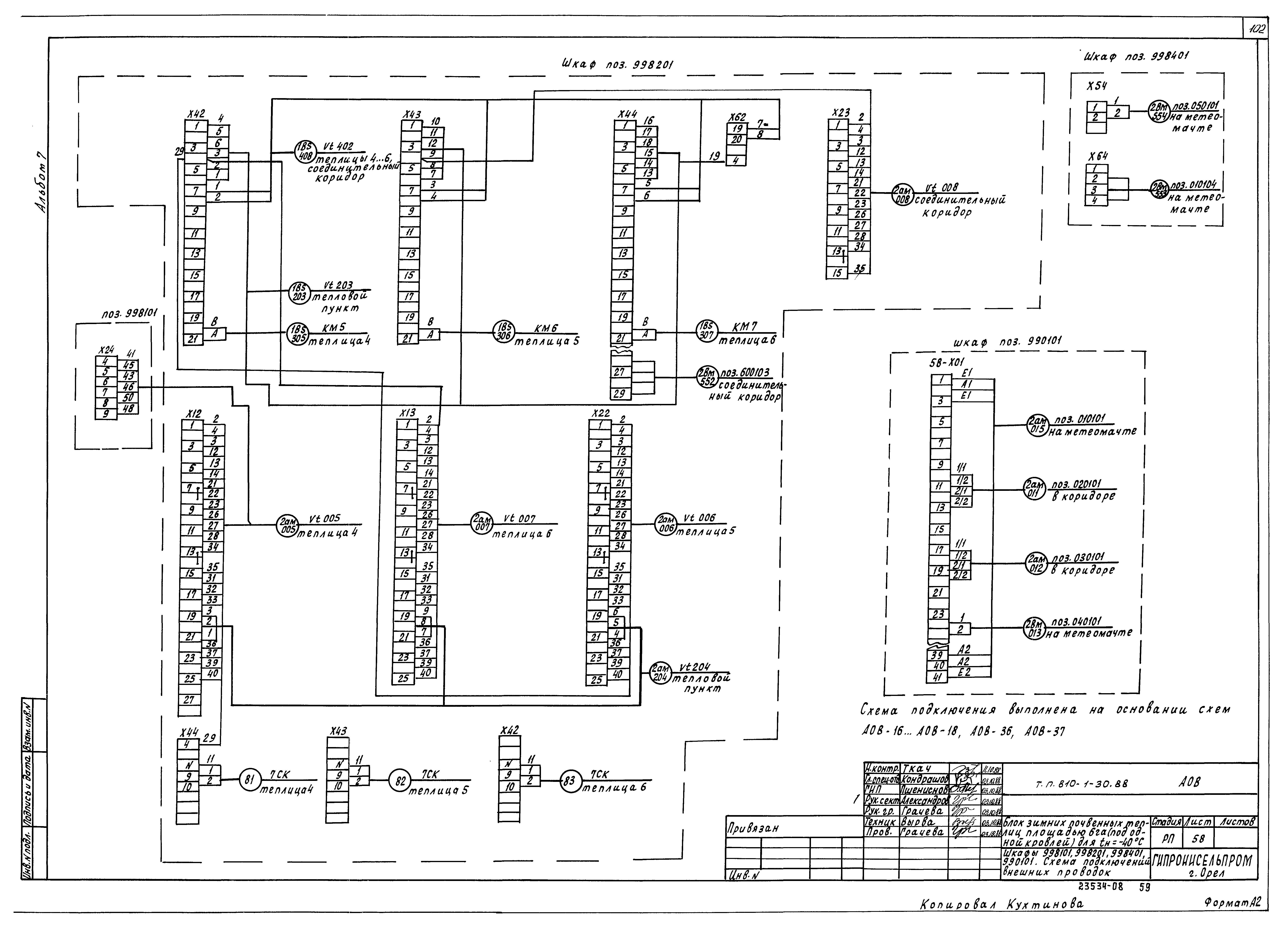
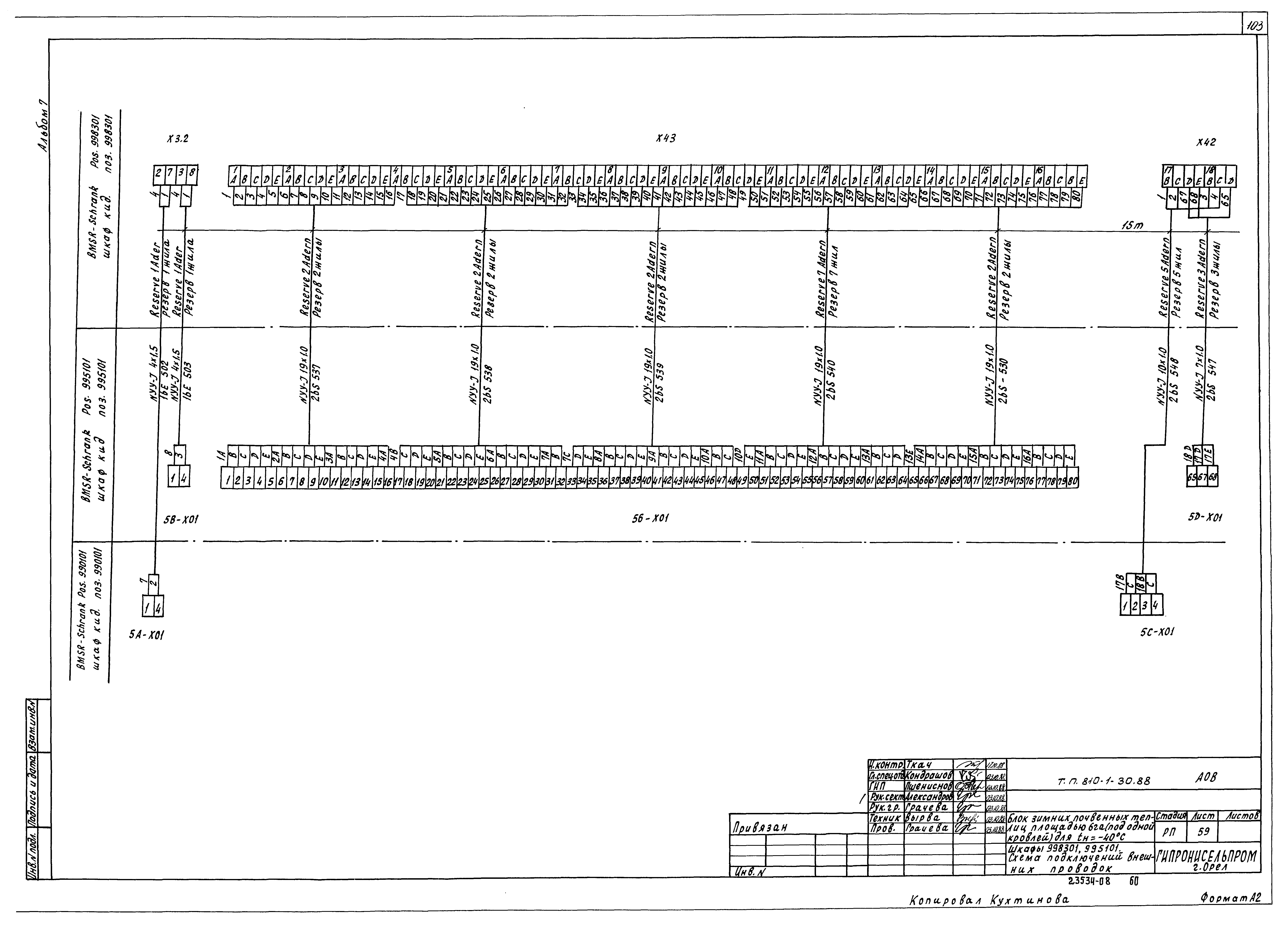
| Оглавление: | ТП 810-1-30.88 АОВ Автоматизация отопления и вентиляция АОВ ТП 810-1-30.88 АОВ Общие данные (начало) ТП 810-1-30.88 АОВ Общие данные (продолжение) ТП 810-1-30.88 АОВ Общие данные (окончание) ТП 810-1-30.88 АОВ Регулирование температуры воздуха в теплице 1. Схема электрическая функциональная ТП 810-1-30.88 АОВ Регулирование температуры воздуха в теплице 3. Схема электрическая функциональная ТП 810-1-30.88 АОВ Регулирование температуры воздуха в соединительном коридоре. Схема электрическая функциональная ТП 810-1-30.88 АОВ Управление вентилями газогенераторов СОI. Схема электрическая функциональная ТП 810-1-30.88 АОВ Надпочвенный и подпочвенный обогрев. Управление и контроль. Схема электрическая функциональная ТП 810-1-30.88 АОВ Управление и контроль надпочвенного обогрева, системы испарительного охлаждения и системы полива. Схема электрическая функциональная ТП 810-1-30.88 АОВ Управление исполнительными механизмами клапанов кровельного обогрева. Схема электрическая функциональная ТП 810-1-30.88 АОВ Тепловой пункт. Контроль теплотехнических параметров. Схема электрическая функциональная ТП 810-1-30.88 АОВ Управление и контроль регулирующих узлов кровельного обогрева и СИОД. Схема электрическая принципиальная ТП 810-1-30.88 АОВ Управление электроприводами зашторивания теплиц 1,2,4,5,6. Схема электрическая принципиальная ТП 810-1-30.88 АОВ Регулирования температуры воздуха в теплицах 1,2. Схема соединений внешних проводок ТП 810-1-30.88 АОВ Регулирования температуры воздуха в теплице 3. Схема соединений внешних проводок ТП 810-1-30.88 АОВ Регулирования температуры воздуха в теплицах 4,5. Схема соединений внешних проводок ТП 810-1-30.88 АОВ Регулирования температуры воздуха в теплице 6 и соединительном коридоре. Схема соединений внешних проводок ТП 810-1-30.88 АОВ Управление фрамугами. Теплица 1. Схема соединений внешних проводок ТП 810-1-30.88 АОВ Управление фрамугами. Теплица 2. Схема соединений внешних проводок ТП 810-1-30.88 АОВ Управление фрамугами. Теплица 3. Схема соединений внешних проводок ТП 810-1-30.88 АОВ Управление фрамугами. Теплица 4. Схема соединений внешних проводок ТП 810-1-30.88 АОВ Управление фрамугами. Теплица 5. Схема соединений внешних проводок ТП 810-1-30.88 АОВ Управление фрамугами. Теплица 6. Схема соединений внешних проводок ТП 810-1-30.88 АОВ Управление фрамугами. Соединительный коридор. Схема соединений внешних проводок ТП 810-1-30.88 АОВ Положение фрамуг теплиц 1...3. Схема соединений внешних проводок ТП 810-1-30.88 АОВ Положение фрамуг теплиц 4...6. Схема соединений внешних проводок ТП 810-1-30.88 АОВ Управление электроприводами зашторивания теплицы 1. Схема соединений внешних проводок ТП 810-1-30.88 АОВ Управление электроприводами зашторивания теплицы 2. Схема соединений внешних проводок ТП 810-1-30.88 АОВ Управление электроприводами зашторивания теплицы 4. Схема соединений внешних проводок ТП 810-1-30.88 АОВ Управление электроприводами зашторивания теплицы 5. Схема соединений внешних проводок ТП 810-1-30.88 АОВ Управление электроприводами зашторивания теплицы 6. Схема соединений внешних проводок ТП 810-1-30.88 АОВ Управление вентилями газогенераторов СО2 в теплицах 1,2. Схема соединений внешних проводок ТП 810-1-30.88 АОВ Управление вентилями газогенераторов СО2 в теплицах 3,4 Схема соединений внешних проводок ТП 810-1-30.88 АОВ Управление вентилями газогенераторов СО2 в теплицах 5,6 Схема соединений внешних проводок ТП 810-1-30.88 АОВ Управление клапанами надпочвенного обогрева. Схема соединений внешних проводок ТП 810-1-30.88 АОВ Управление клапанами подпочвенного обогрева. Схема соединений внешних проводок ТП 810-1-30.88 АОВ Управление клапанами кровельного обогрева теплиц 1...3. Схема соединений внешних проводок ТП 810-1-30.88 АОВ Управление клапанами кровельного обогрева теплиц 4...6 и испарительного охлаждения. Схема соединений внешних проводок ТП 810-1-30.88 АОВ Тепловой пункт. Контроль температуры и давления. Схема соединений внешних проводок (начало) ТП 810-1-30.88 АОВ Тепловой пункт. Контроль температуры и давления. Схема соединений внешних проводок (продолжение) ТП 810-1-30.88 АОВ Тепловой пункт. Контроль температуры. Схема соединений внешних проводок (продолжение) ТП 810-1-30.88 АОВ Тепловой пункт. Контроль температуры и давления. Схема соединений внешних проводок (продолжение) ТП 810-1-30.88 АОВ Тепловой пункт. Контроль температуры и давления. Схема соединений внешних проводок (окончание) ТП 810-1-30.88 АОВ Приточные установки П1...П3. Защита калорифера от замораживания. Схемы электрические функциональная, принципиальная ТП 810-1-30.88 АОВ Управление холодильной машиной. Приточные установки П1...П3. Схема соединений внешних проводок ТП 810-1-30.88 АОВ Регулирование температуры воздуха в теплицах. План расположения ТП 810-1-30.88 АОВ Зашторивание в теплицах. План расположения ТП 810-1-30.88 АОВ Регулирование температуры воздуха в соединительном коридоре. План расположения ТП 810-1-30.88 АОВ Управление газогенераторами СО2 в теплицах. План расположения ТП 810-1-30.88 АОВ Тепловой пункт. План расположения ТП 810-1-30.88 АОВ Щитовая. План расположения ТП 810-1-30.88 АОВ Управление и контроль. План расположения оборудования ТП 810-1-30.88 АОВ Силовые панели 3,2,4,2,8,2,9,2. Схема подключений внешних проводок ТП 810-1-30.88 АОВ Шкафы 998101,998201,998401,990101. Схема подключений внешних проводок ТП 810-1-30.88 АОВ Шкафы 998301,995101. Схема подключений внешних проводок ТП 810-1-30.88 АОВ Шкафы 998301,995101,990101. Схема подключений внешних проводок ТП 810-1-30.88 АОВ Шкафы 998201,990101. Схема подключений внешних проводок ТП 810-1-30.88 АОВ Шкафы 990101,998401,998201. Схема подключений внешних проводок ТП 810-1-30.88 АОВ Шкафы 990101,998101. Схема подключений внешних проводок ТП 810-1-30.88 АОВ Шкафы 998101. Схема подключений внешних проводок ТП 810-1-30.88 АОВ Опросный лист №1 (начало) ТП 810-1-30.88 АОВ Опросный лист №1 (окончание) ТП 810-1-30.88 АОВ Опросный лист №2 (начало) ТП 810-1-30.88 АОВ Опросный лист №2 (окончание) ТП 810-1-30.88 АОВ Опросный лист №3 (начало) ТП 810-1-30.88 АОВ Опросный лист №3 (окончание) ТП 810-1-30.88 АОВ Опросный лист №4 (начало) ТП 810-1-30.88 АОВ Опросный лист №4 (окончание) ТП 810-1-30.88 АОВ Опросный лист №5 (начало) ТП 810-1-30.88 АОВ Опросный лист №5 (окончание) |
| Разработан: | Гипронисельпром Госагропрома СССР |
| Утверждён: | 06.12.1988 Госагропром СССР (USSR Gosagroprom 805-42/153) |











































































