Скачать Типовой проект 810-1-35.90 Альбом 1. Часть 1. Пояснительная записка. Технология производства. Архитектурные решения. Конструкции железобетонные. ТеплицаДата актуализации: 01.01.2021
|
| Обозначение: | Типовой проект 810-1-35.90 |
| Обозначение англ: | 810-1-35.90 |
| Статус: | не определен законодательством |
| Название рус.: | Альбом 1. Часть 1. Пояснительная записка. Технология производства. Архитектурные решения. Конструкции железобетонные. Теплица |
| Дата добавления в базу: | 01.09.2013 |
| Дата актуализации: | 01.01.2021 |
| Дата введения: | 25.09.1990 |
| Дата окончания срока действия: | 30.06.2003 |
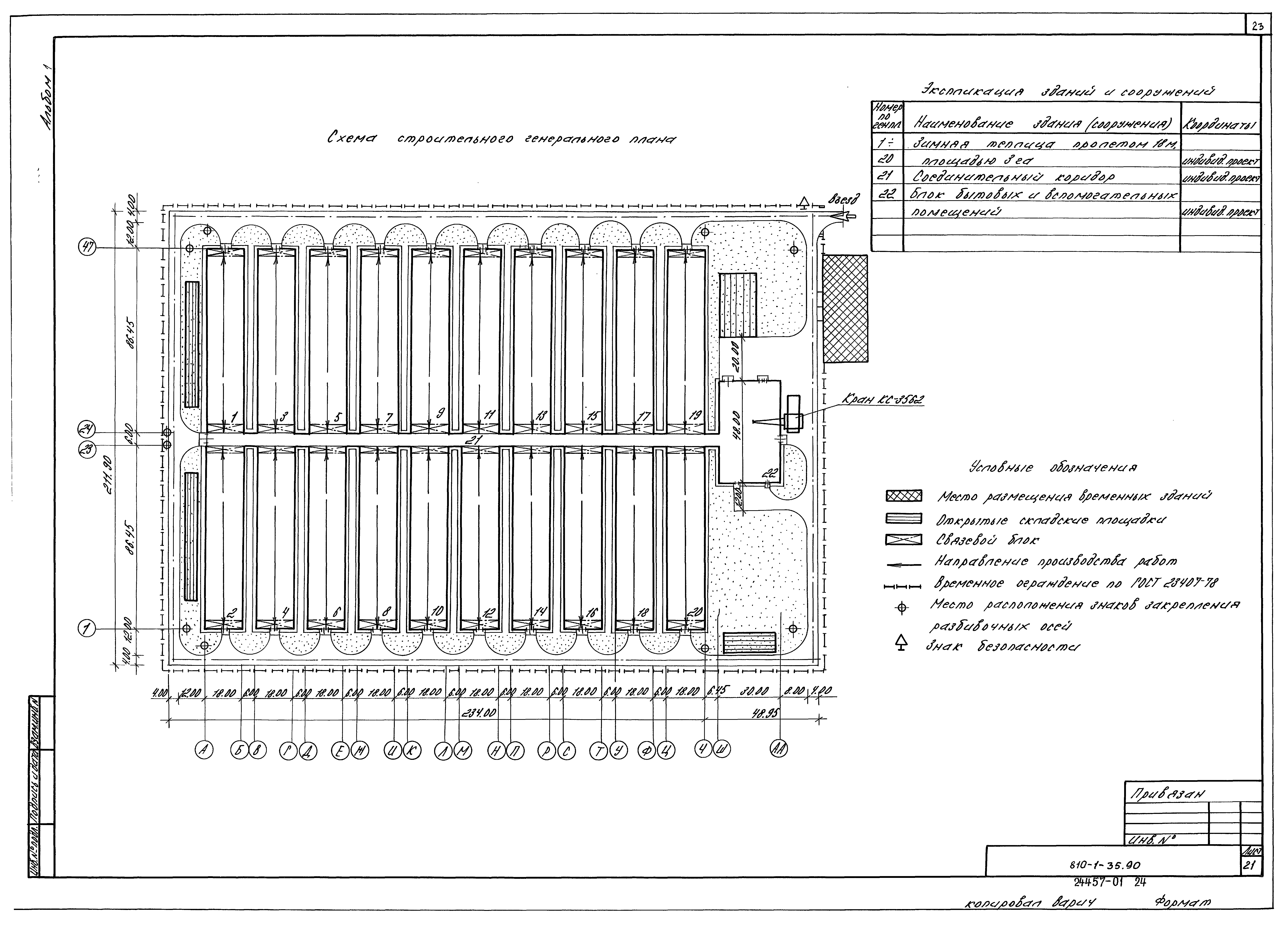
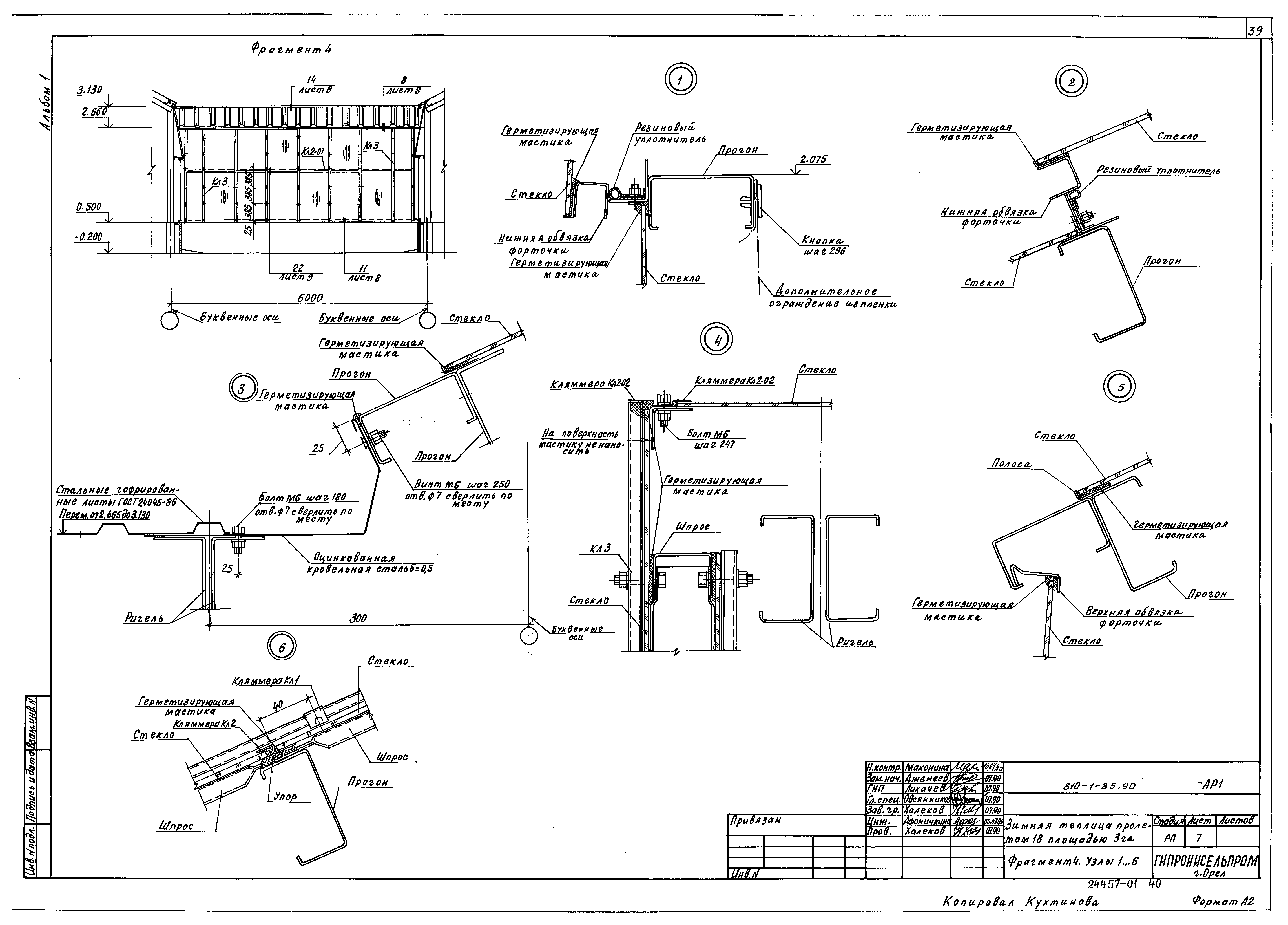
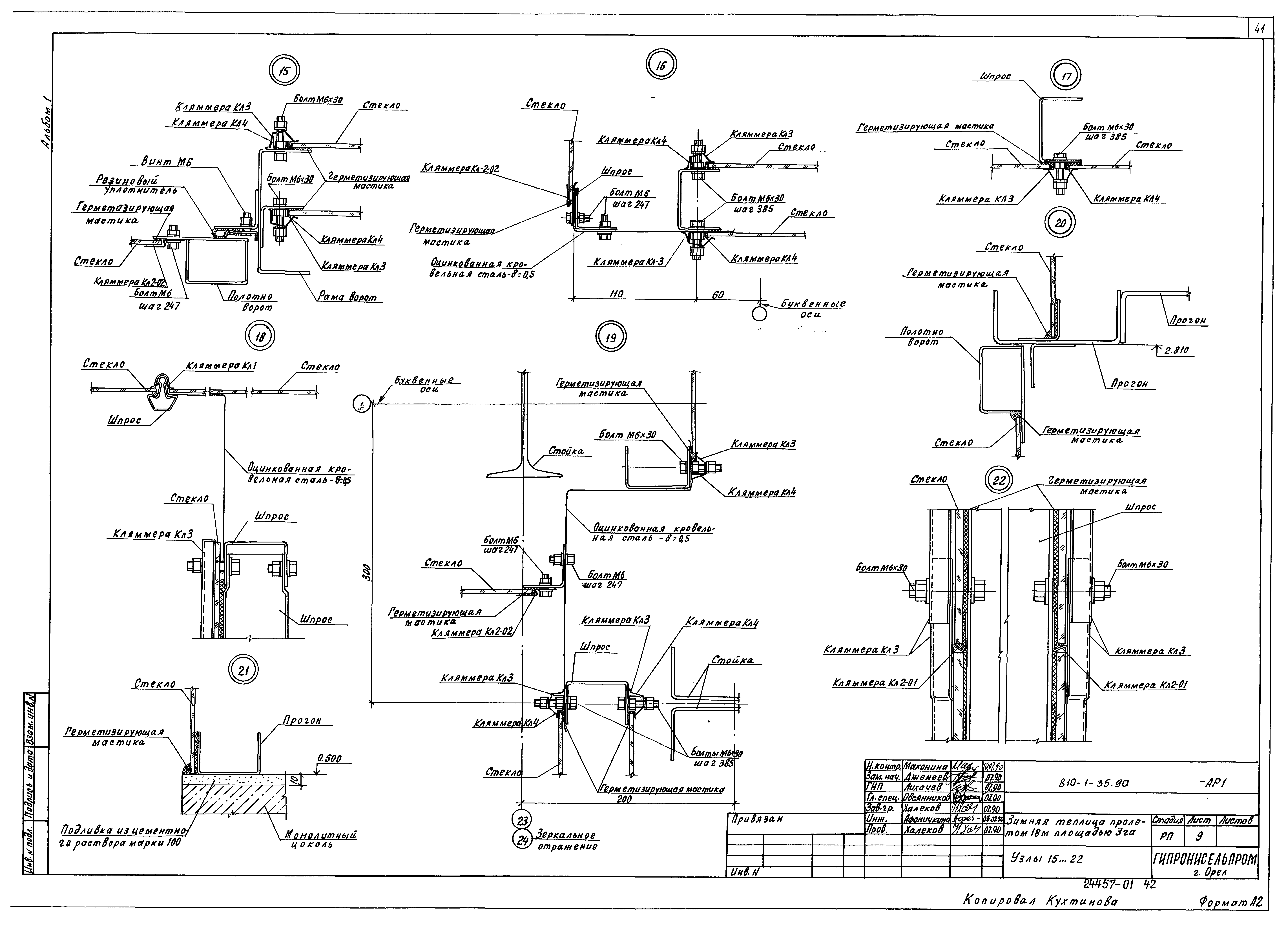
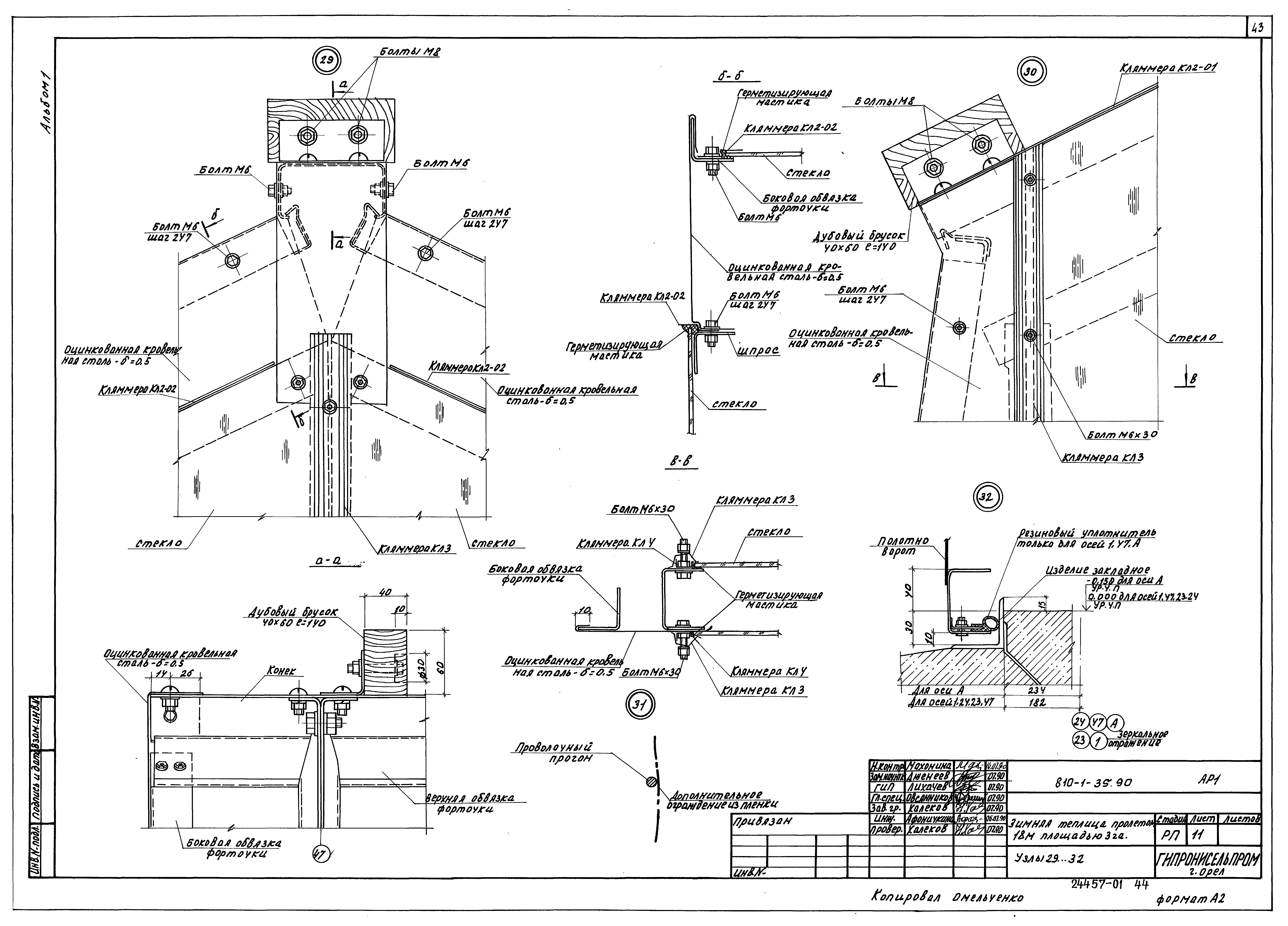
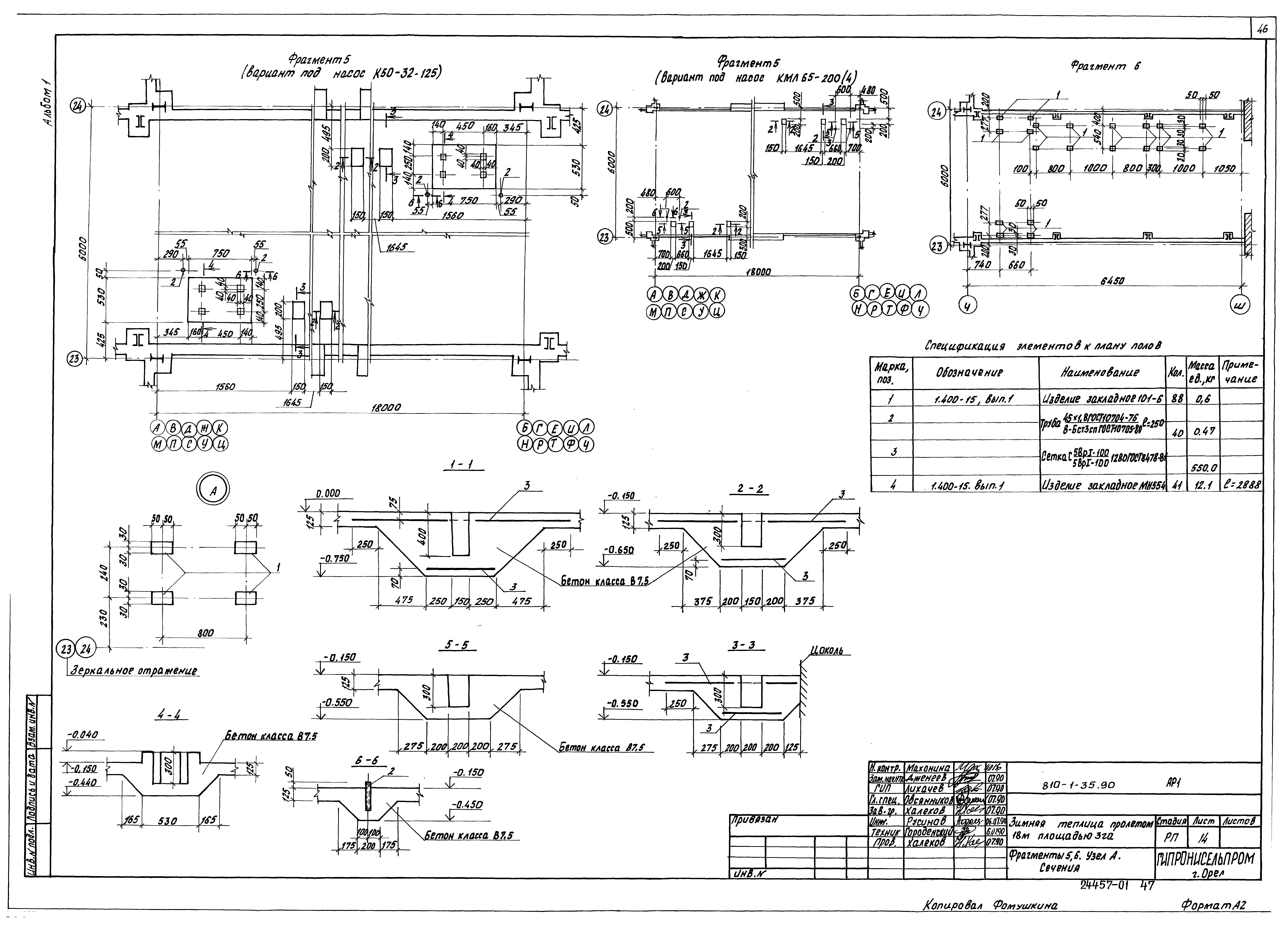
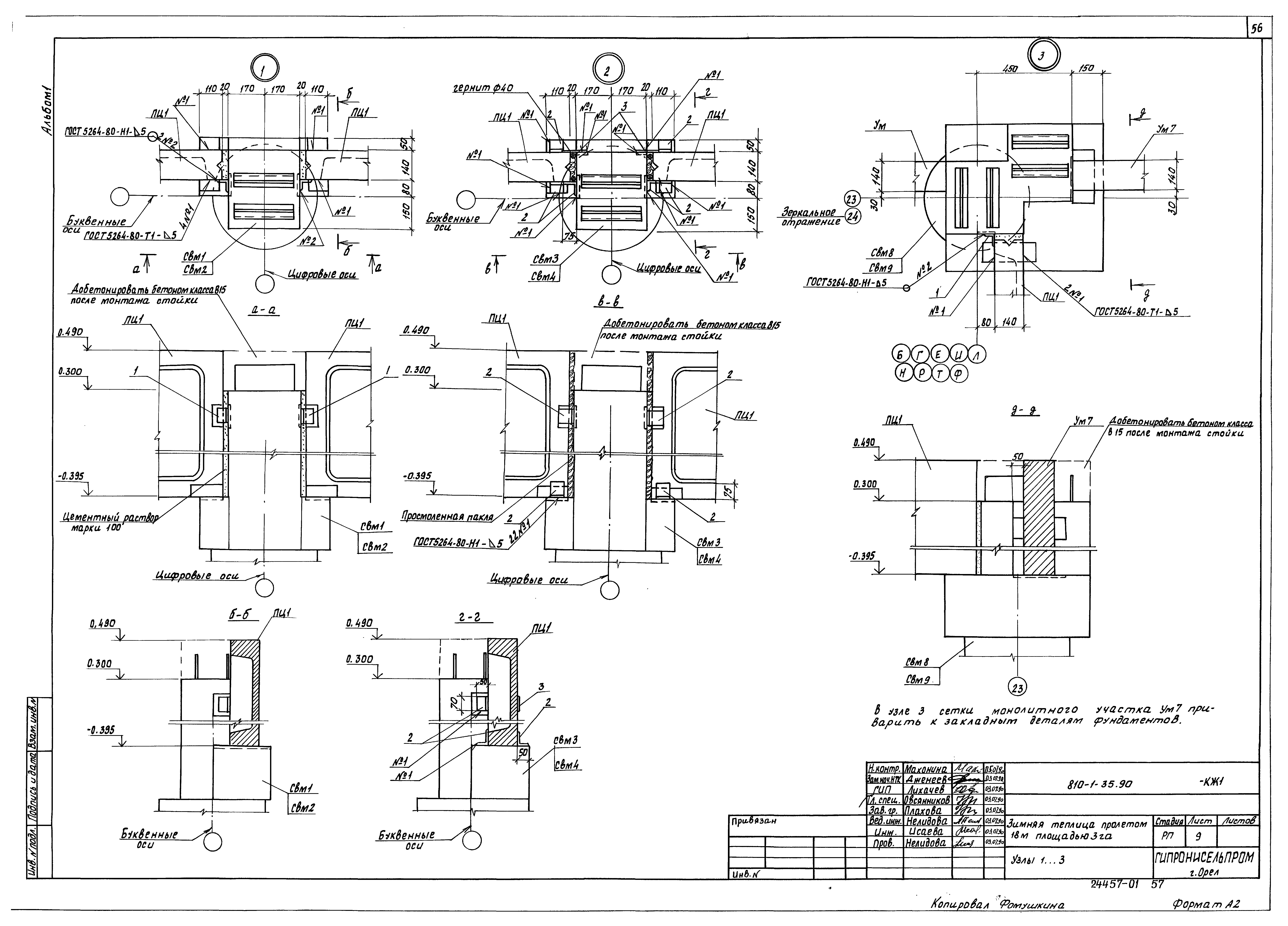
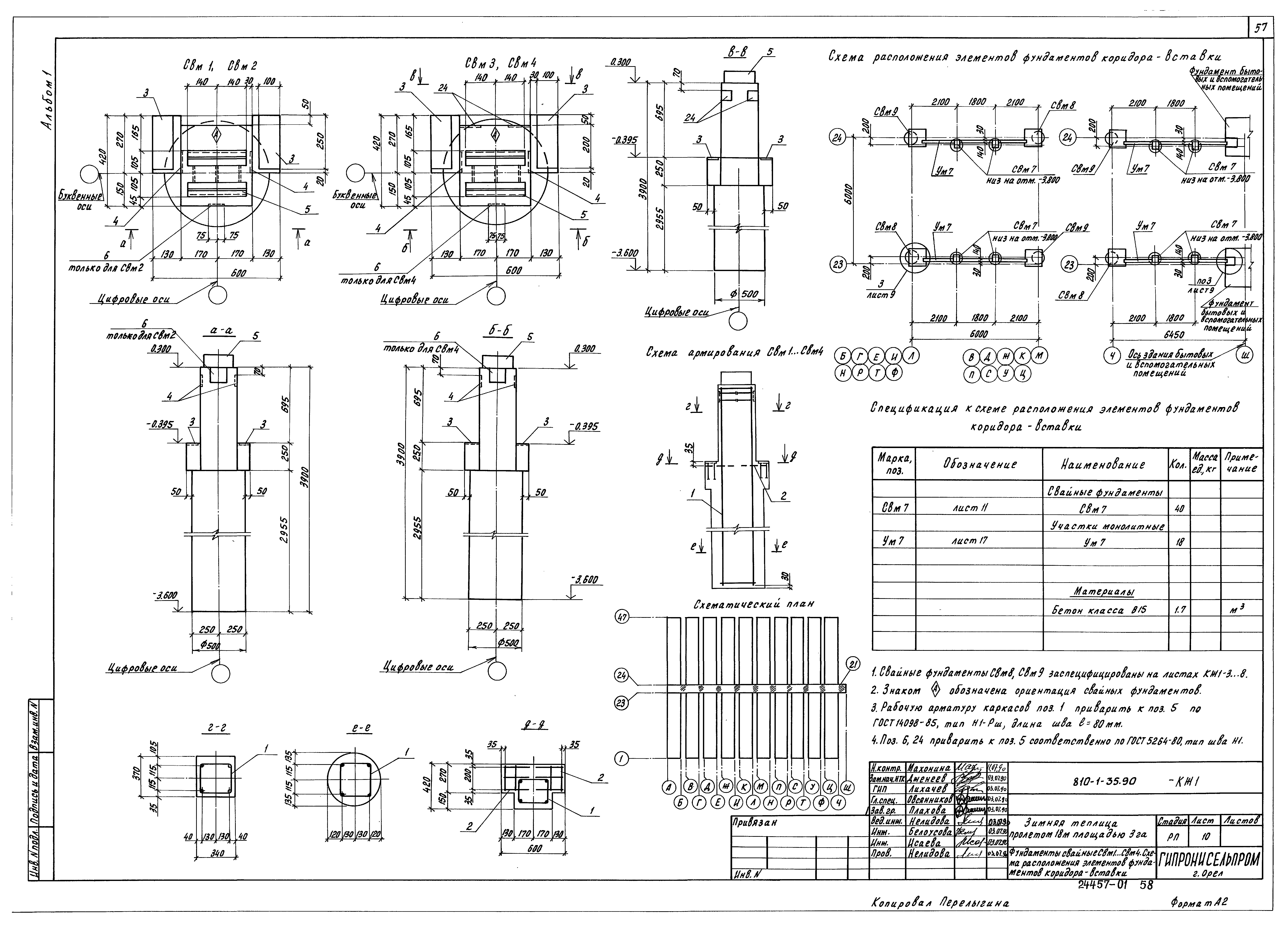
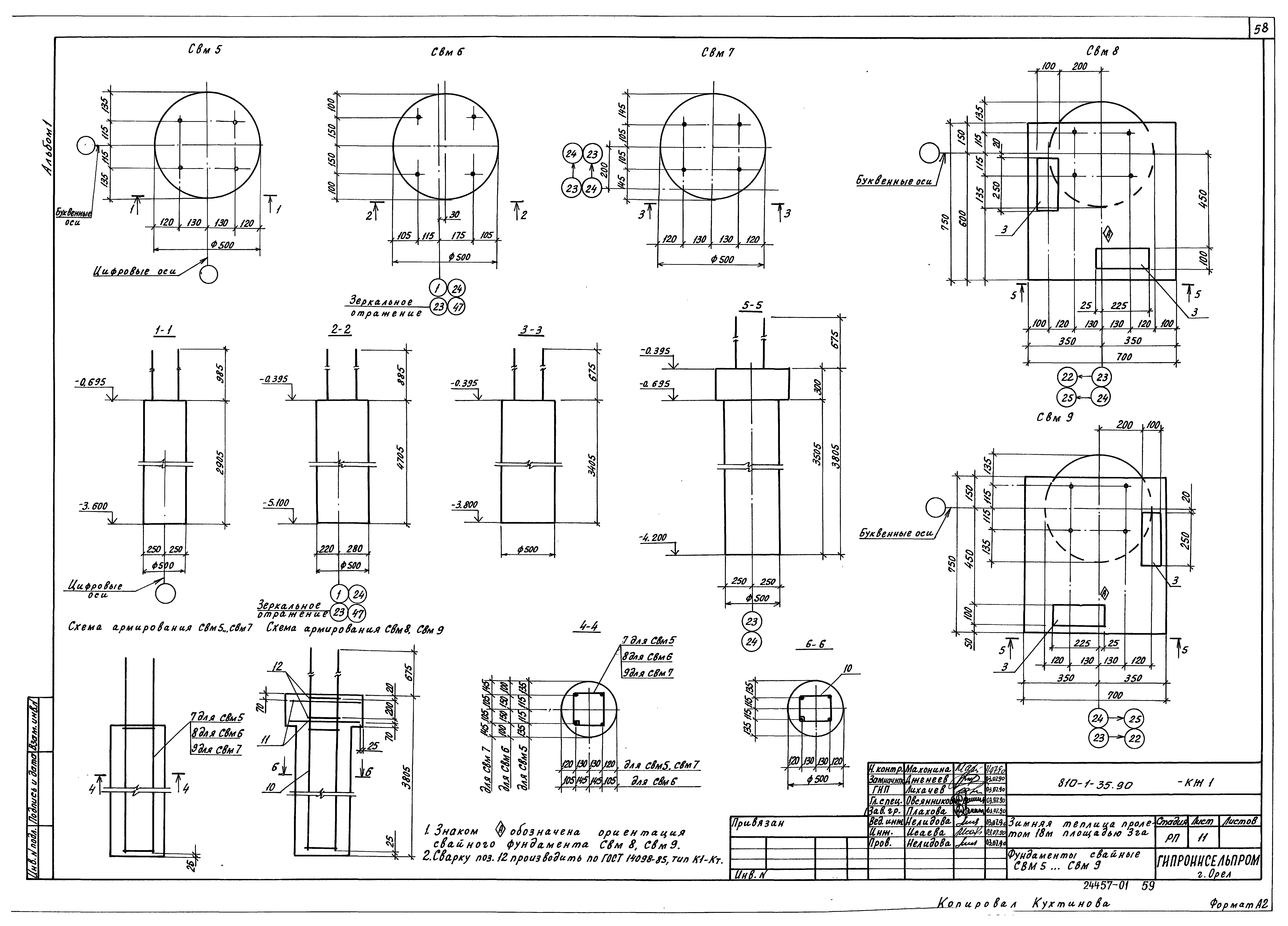
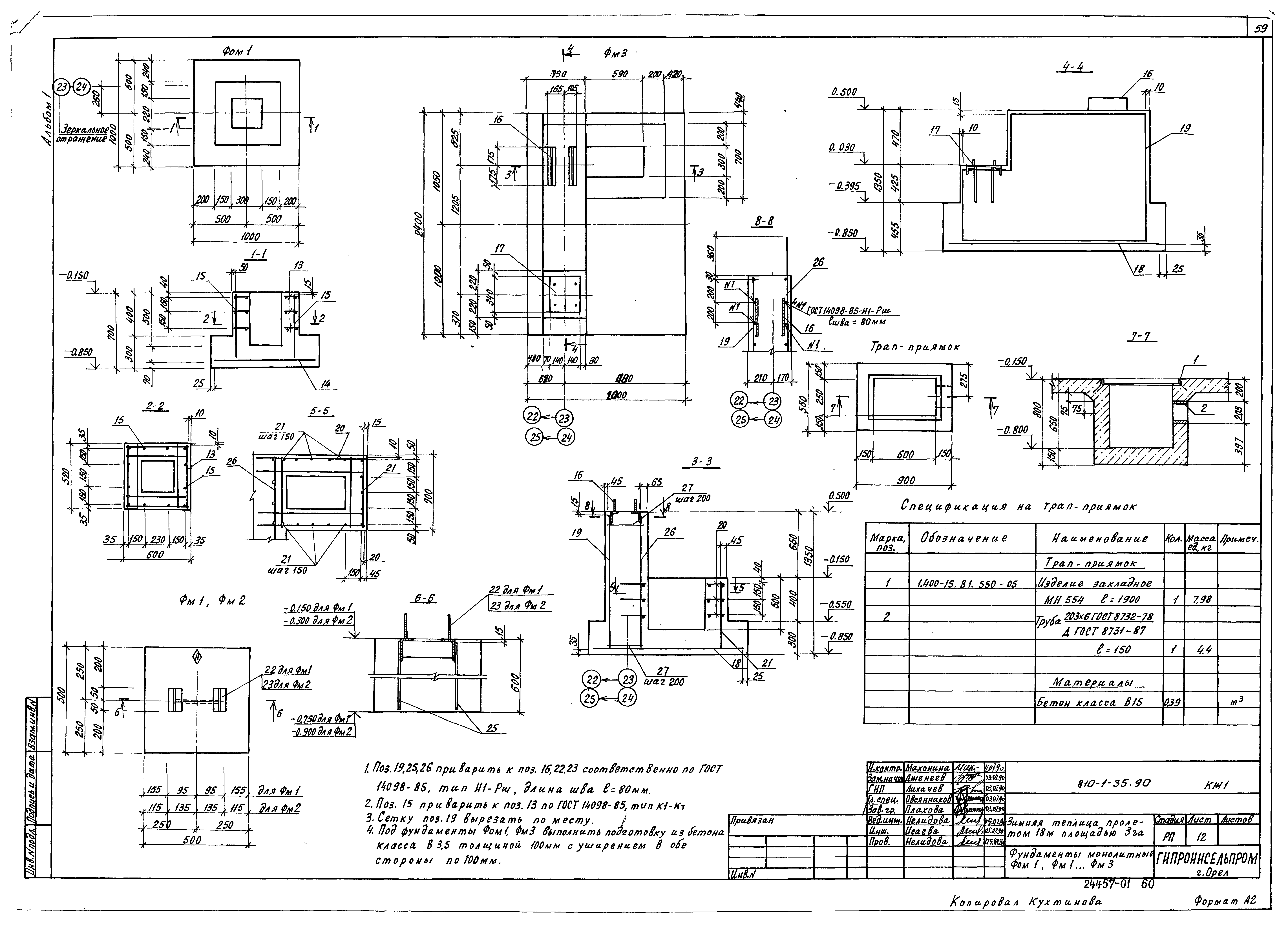
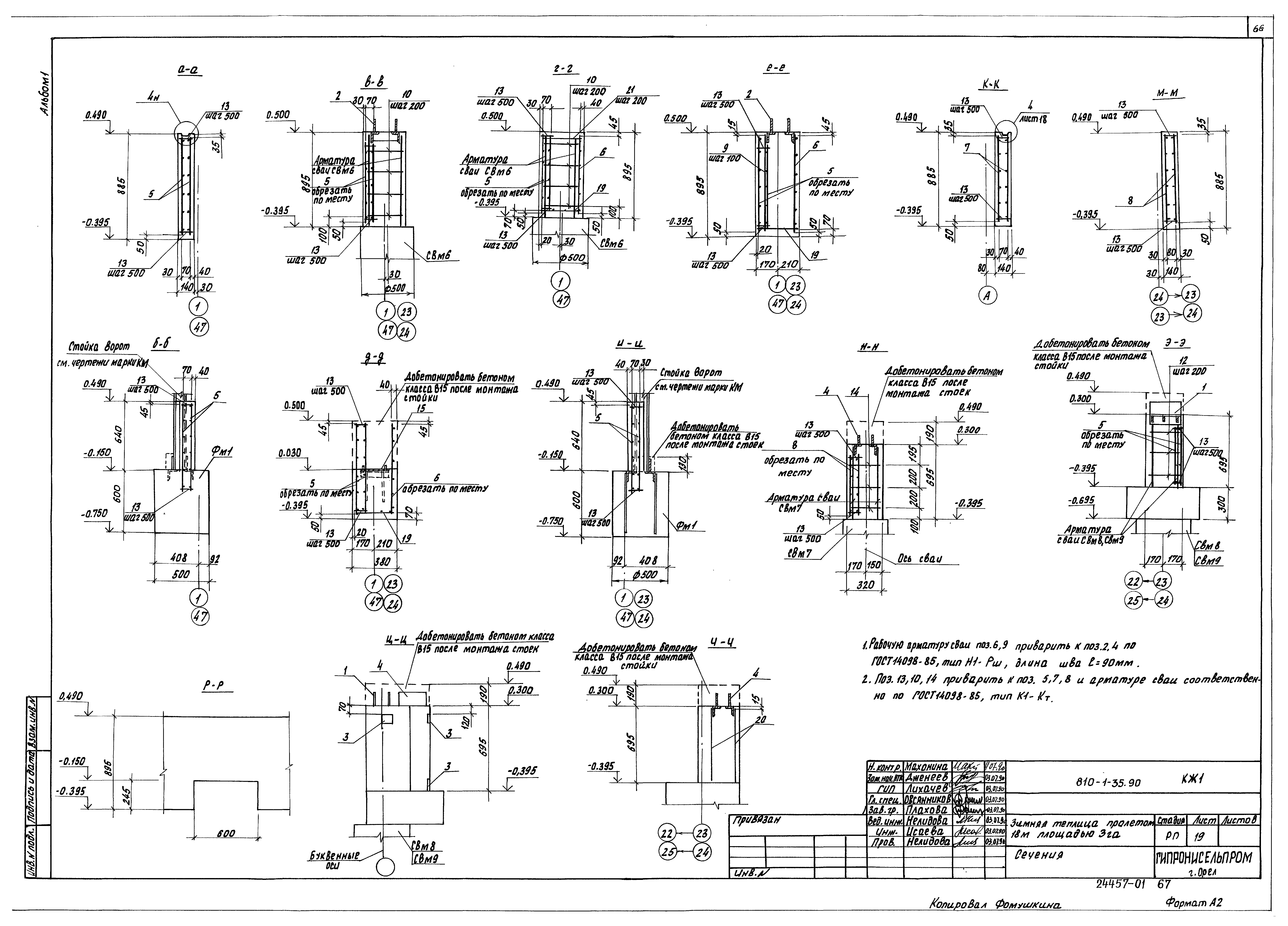
| Оглавление: | ТП810-1-35.90 Содержание альбома №1 ТП810-1-35.90 ПЗ Пояснительная записка ПЗ ТП810-1-35.90 ТХ1 Технология производства ТХ1 ТП810-1-35.90 ТХ1 Общие данные ТП810-1-35.90 ТХ1 План расположения. Разрез А-А. Узлы ТП810-1-35.90 ТХ1 Разрез. Узел. Вид ТП810-1-35.90 ТХ1 Схемы размещения рядов растений. Узел ТП810-1-35.90 ТХ1 Схемы размещения гряд ТП810-1-35.90 ТХ1 План расположения. Узел. Разрезы. Обеззараживание почвы паром ТП810-1-35.90 ТХ1 План расположения механизмов вентиляции ТП810-1-35.90 ТХ1 План расположения механизмов зашторивания ТП810-1-35.90 АР1 Архитектурные решения АР1 ТП810-1-35.90 АР1 Общие данные ТП810-1-35.90 АР1 План на отм.0.000 ТП810-1-35.90 АР1 Фасады А-4,4-А,47-1,1-47. Разрезы 1-1,2-2 ТП810-1-35.90 АР1 Фрагмент 1 ТП810-1-35.90 АР1 Фрагменты 2,3 ТП810-1-35.90 АР1 Разрез 3-3 ТП810-1-35.90 АР1 Фрагмент 4. Узлы 1...6 ТП810-1-35.90 АР1 Узлы 7...14 ТП810-1-35.90 АР1 Узлы 15...22 ТП810-1-35.90 АР1 Узлы 23...28 ТП810-1-35.90 АР1 Узлы 29...32 ТП810-1-35.90 АР1 План соединительного коридора ТП810-1-35.90 АР1 План полов с расположением закладных деталей и гнезд для крепления технологических устройств ТП810-1-35.90 АР1 Фрагменты 5,6. Узел А. Сечения ТП810-1-35.90 АР1 Спецификация элементов ограждения теплиц ТП810-1-35.90 КЖ1 Конструкции железобетонные КЖ1 ТП810-1-35.90 КЖ1 Общие данные (начало) ТП810-1-35.90 КЖ1 Общие данные (окончание) ТП810-1-35.90 КЖ1 Схема расположения элементов фундаментов отделения №1 ТП810-1-35.90 КЖ1 Схема расположения элементов фундаментов отделения №2 ТП810-1-35.90 КЖ1 Схема расположения элементов фундаментов отделения №3 ТП810-1-35.90 КЖ1 Схема расположения элементов фундаментов отделения №4 ТП810-1-35.90 КЖ1 Схема расположения элементов фундаментов отделения №5 ТП810-1-35.90 КЖ1 Схема расположения элементов фундаментов отделения №6 ТП810-1-35.90 КЖ1 Узлы 1...3 ТП810-1-35.90 КЖ1 Фундаменты свайные СВМ1...СВМ4. Схема расположения элементов фундаментов коридора-вставки ТП810-1-35.90 КЖ1 Фундаменты свайные СВМ5...СВМ9 ТП810-1-35.90 КЖ1 Фундаменты монолитные ФОМ1,ФОМ1...ФМ3 ТП810-1-35.90 КЖ1 Спецификация на фундаменты свайные СВМ1...СВМ9 на фундаменты монолитные ФОМ1,ФМ1...ФМ3 ТП810-1-35.90 КЖ1 Ростверки монолитные РМ1,РМ2,РМ3,РМ; ТП810-1-35.90 КЖ1 Спецификация на ростверки монолитные РМ1...РМ4. Ведомость расхода стали на элемент, кг ТП810-1-35.90 КЖ1 Участки монолитные УМ1...УМ4,УМ6 ТП810-1-35.90 КЖ1 Участки монолитные УМ5,УМ7 ТП810-1-35.90 КЖ1 Участки монолитные УМ8,УМ9. Сечения ТП810-1-35.90 КЖ1 Сечения ТП810-1-35.90 КЖ1 Спецификация участков монолитных УМ1...УМ9 ТП810-1-35.90 КЖ1 Схема расположения фундаментов под оборудование. Схема расположения труб между осями 4-Ш |
| Разработан: | ЦНИИСК им. В.А. Кучеренко Институт Гипронисельпром Минсельхозпрода СССР |
| Утверждён: | 21.09.1990 Главное научно-проектное управление по строительству Госкомиссии Совмина СССР по продовольствию и закупкам (11) |




































































