Скачать Типовой проект 810-1-35.90 Альбом 1. Часть 2. Конструкции металлические. ТеплицаДата актуализации: 01.01.2021
|
| Обозначение: | Типовой проект 810-1-35.90 |
| Обозначение англ: | 810-1-35.90 |
| Статус: | не определен законодательством |
| Название рус.: | Альбом 1. Часть 2. Конструкции металлические. Теплица |
| Дата добавления в базу: | 01.09.2013 |
| Дата актуализации: | 01.01.2021 |
| Дата введения: | 25.09.1990 |
| Дата окончания срока действия: | 30.06.2003 |
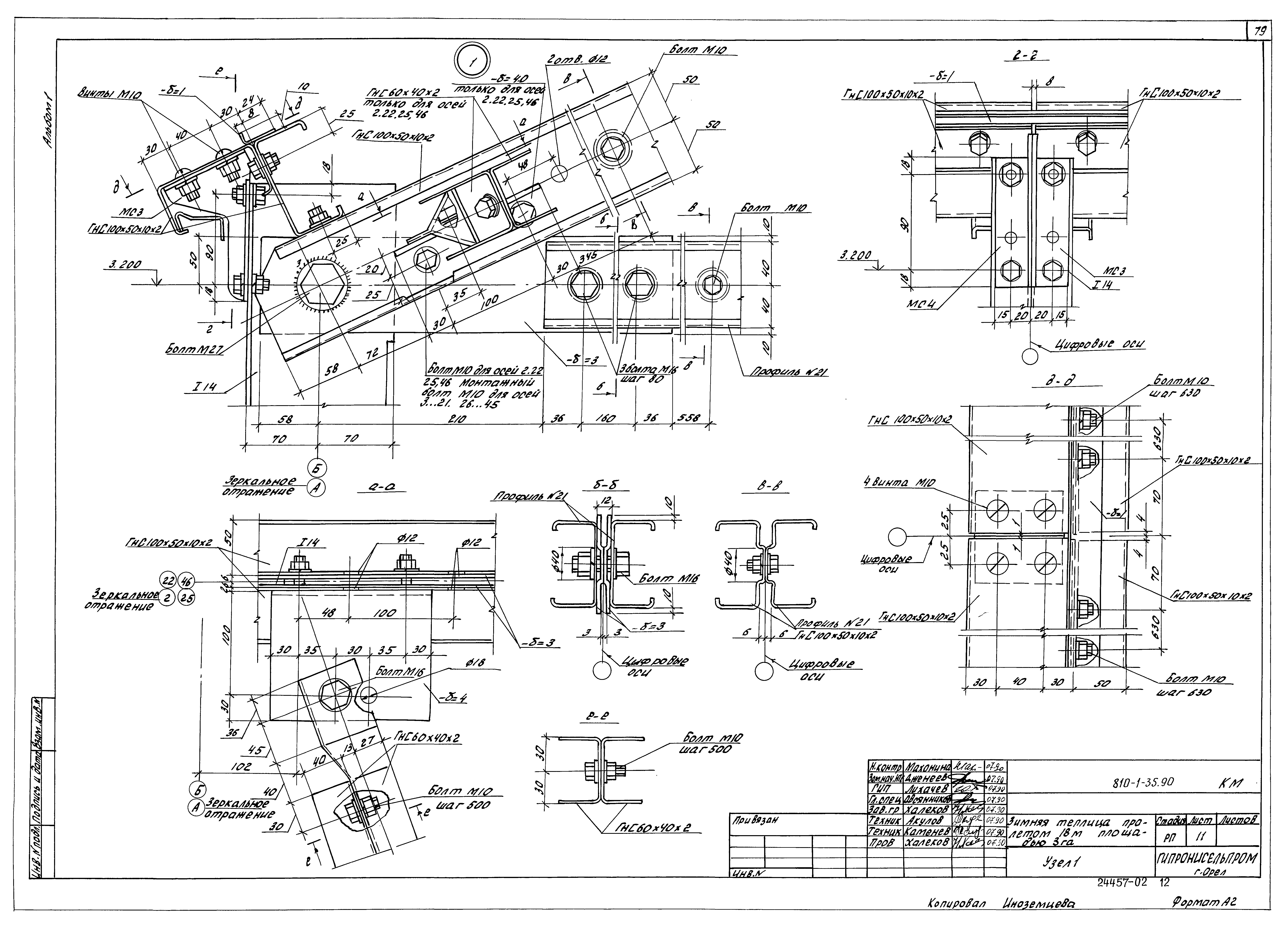
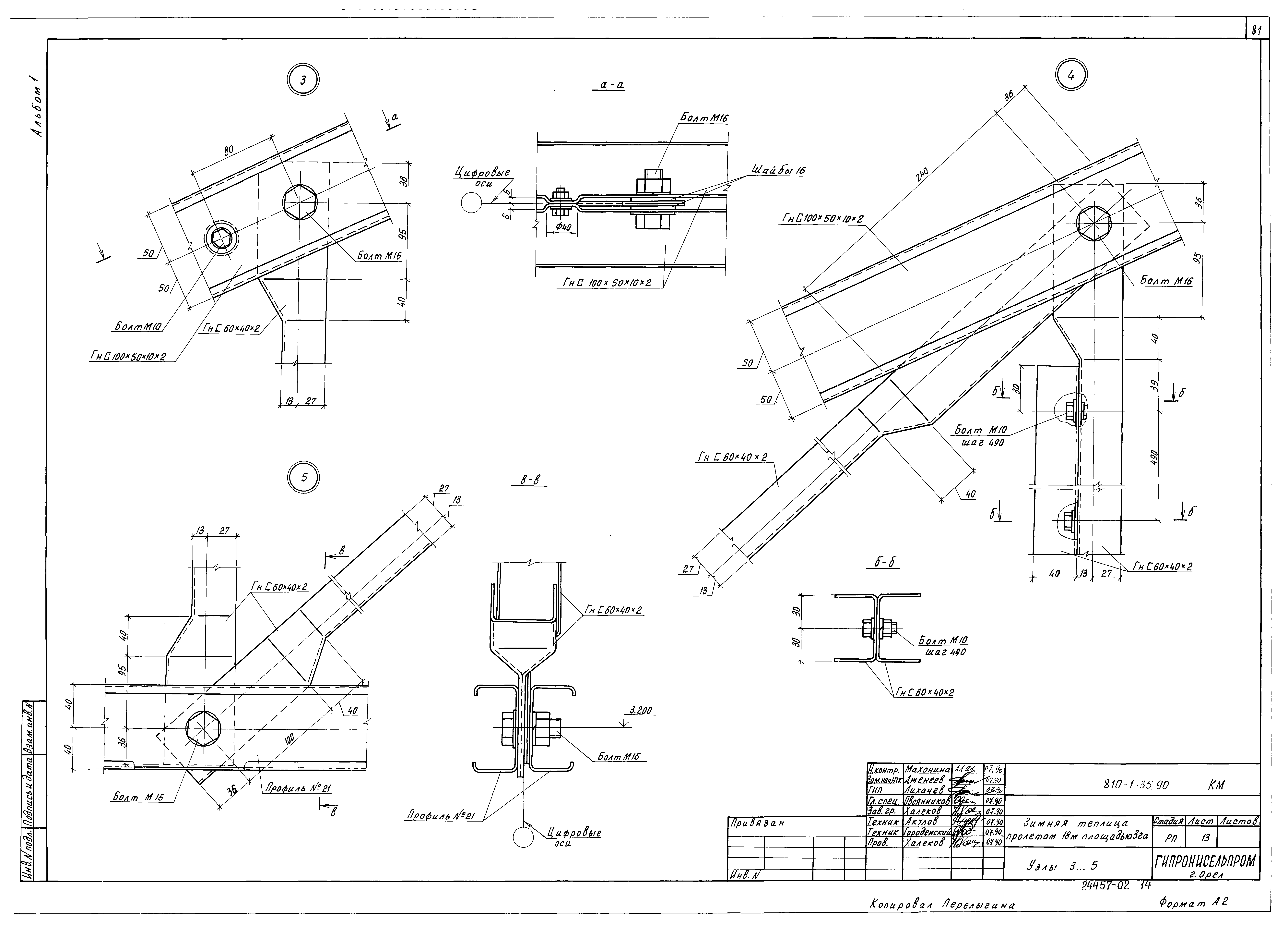
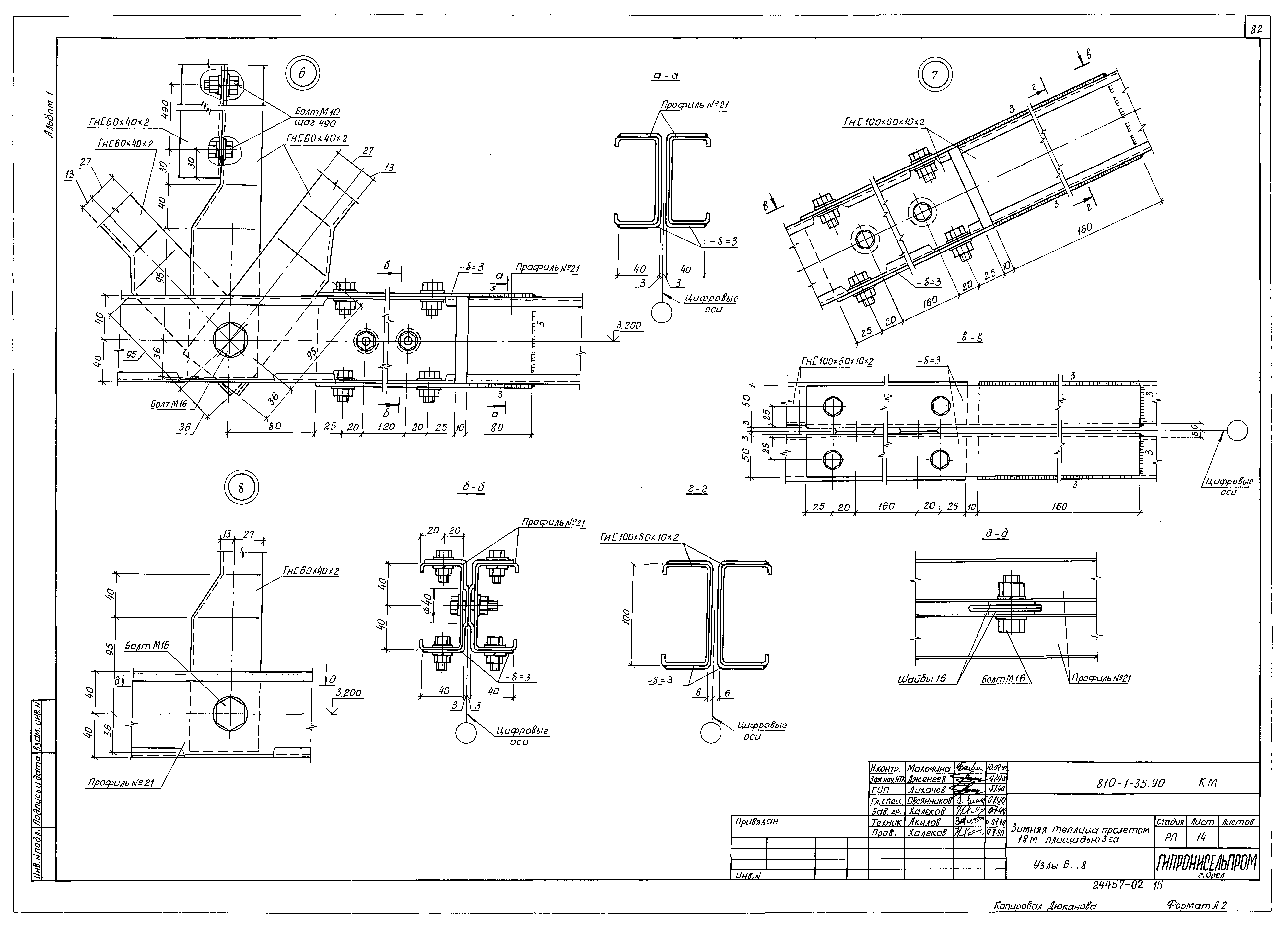
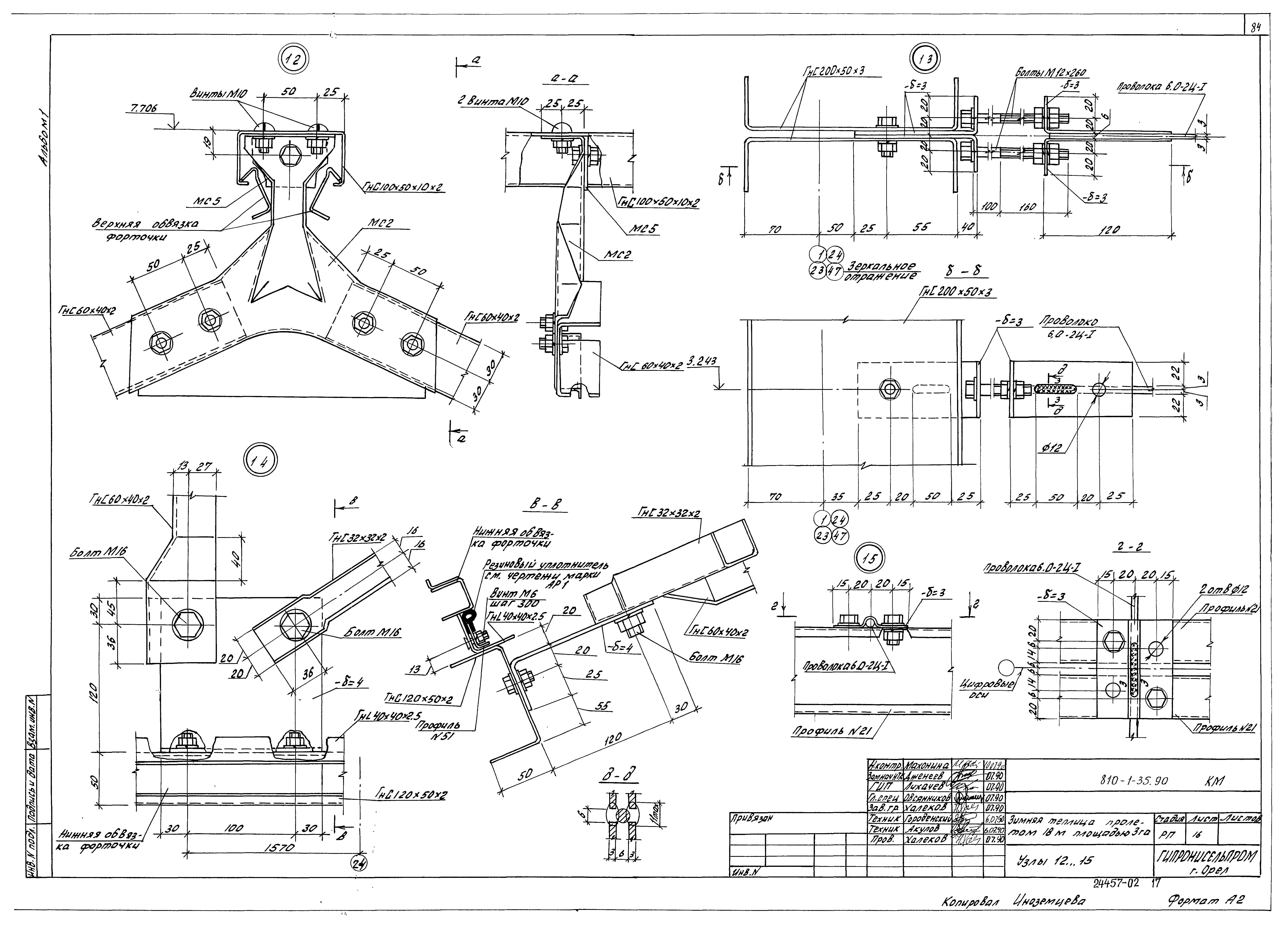
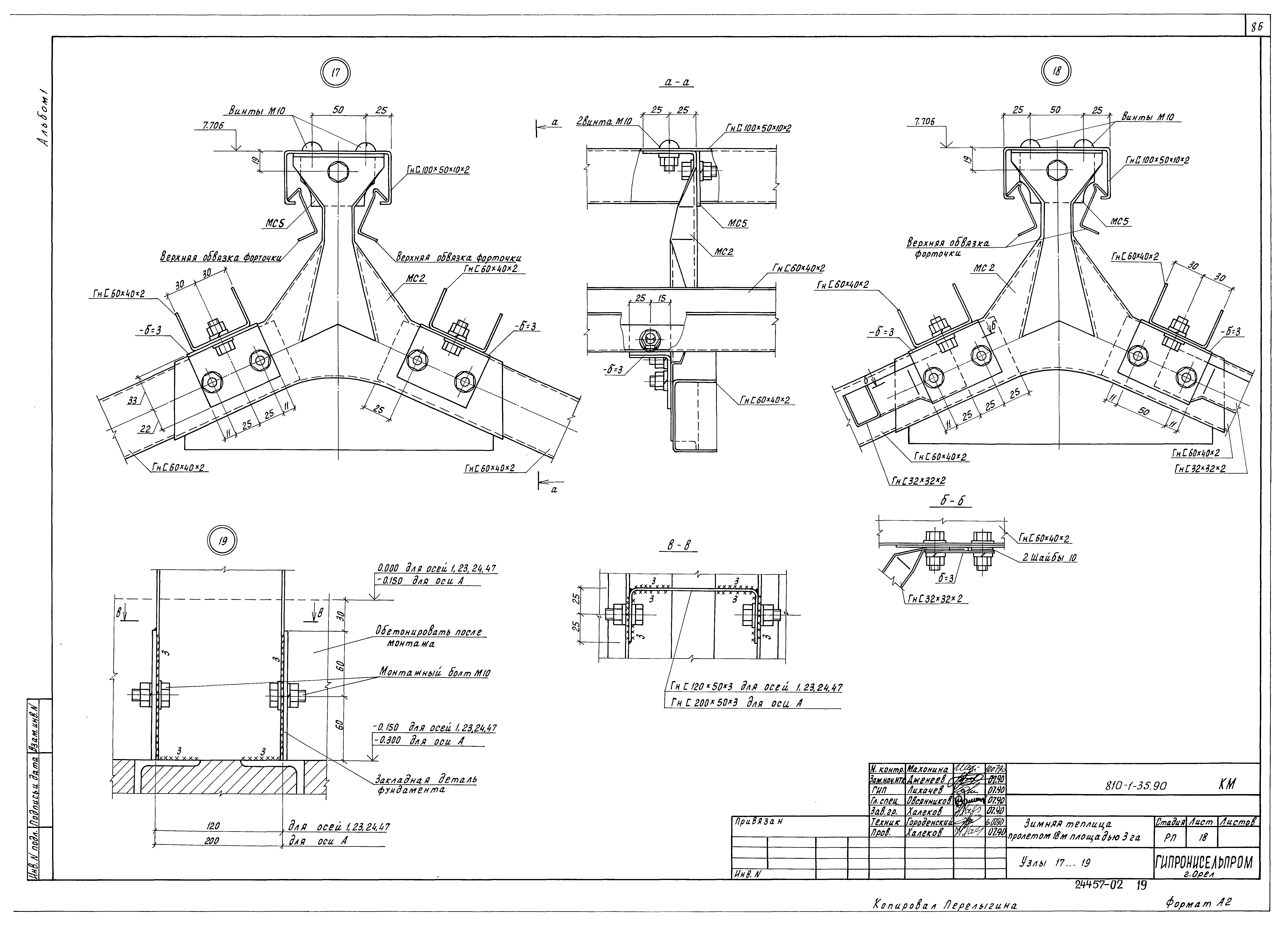
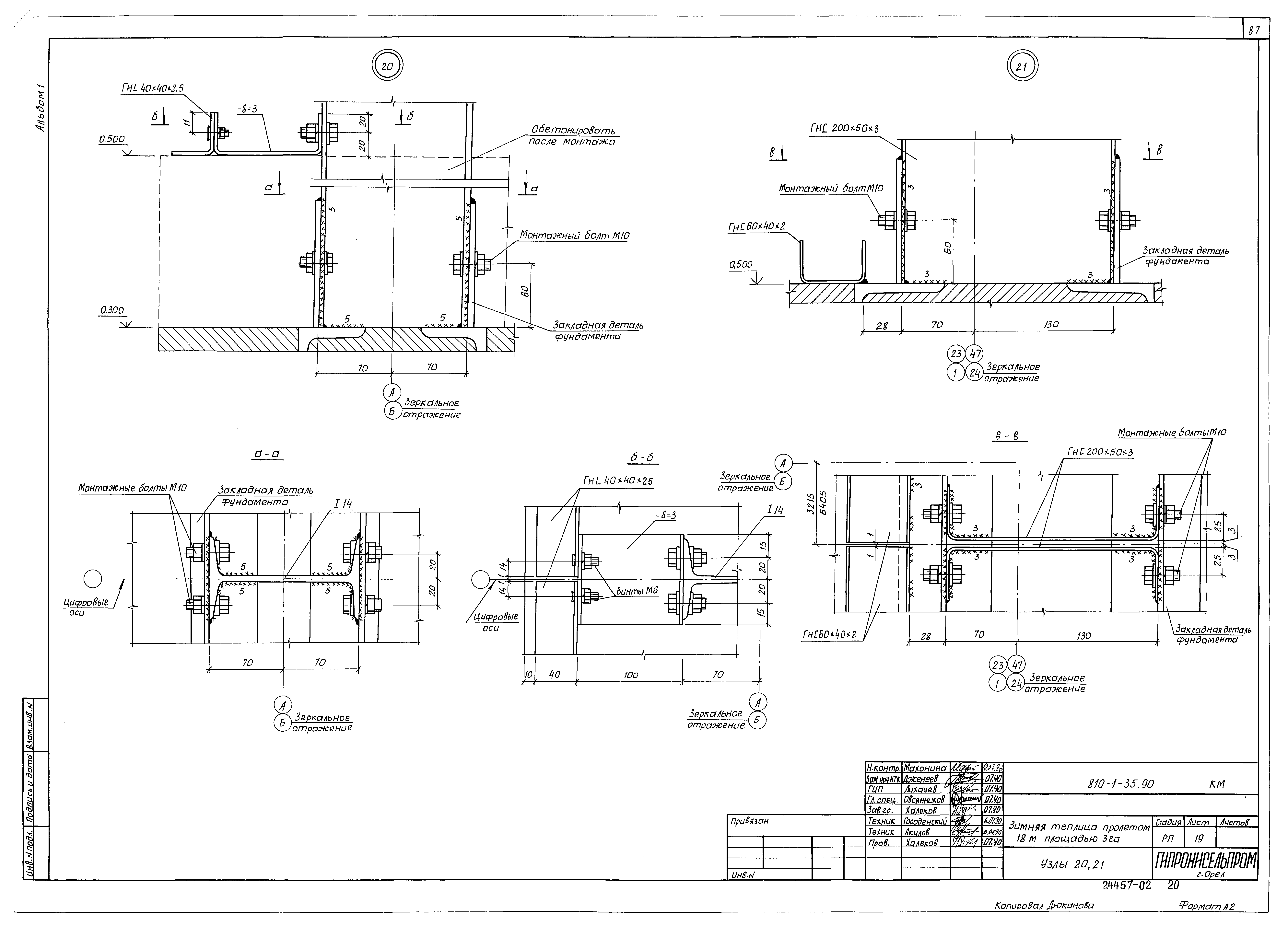
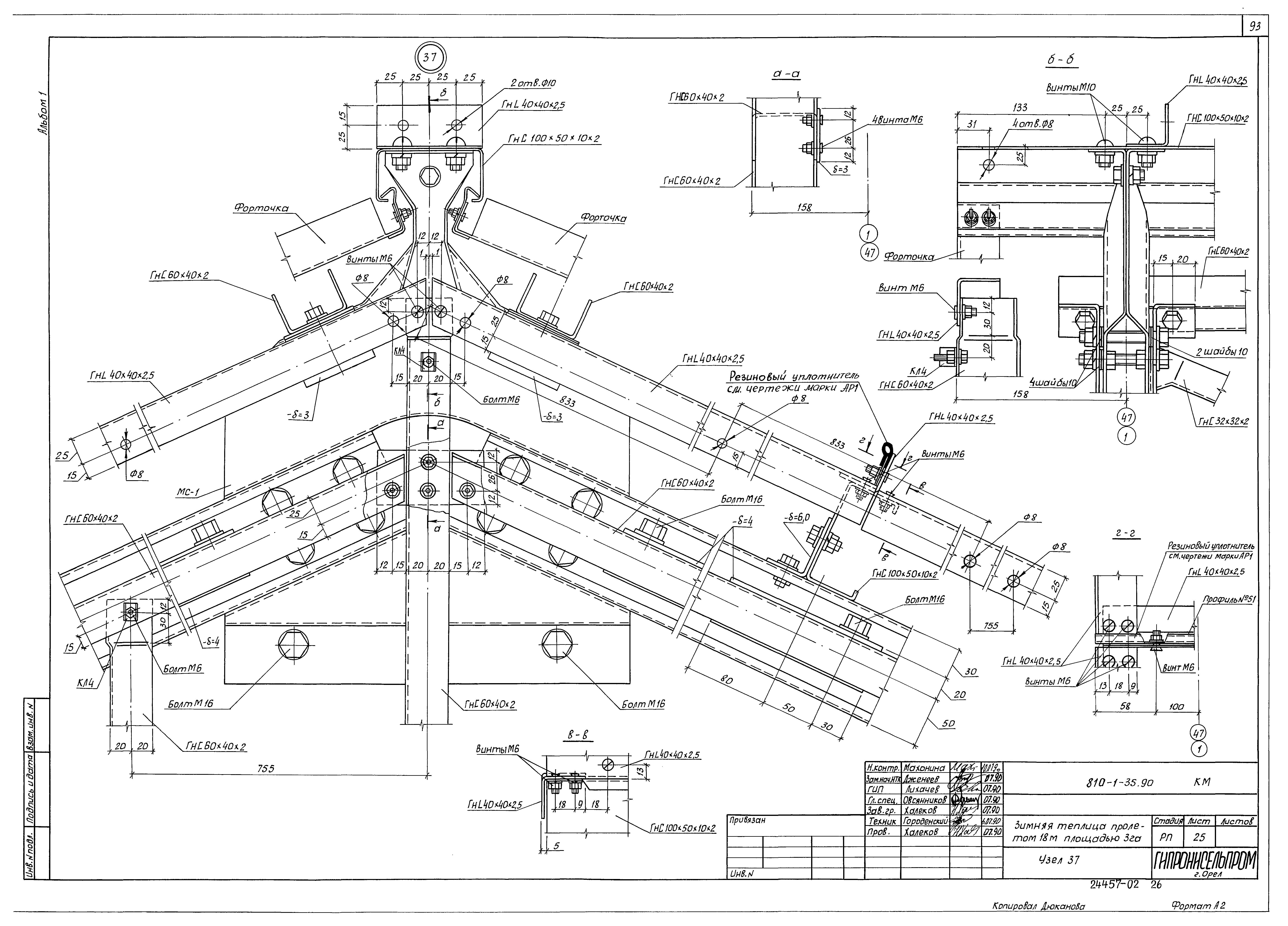
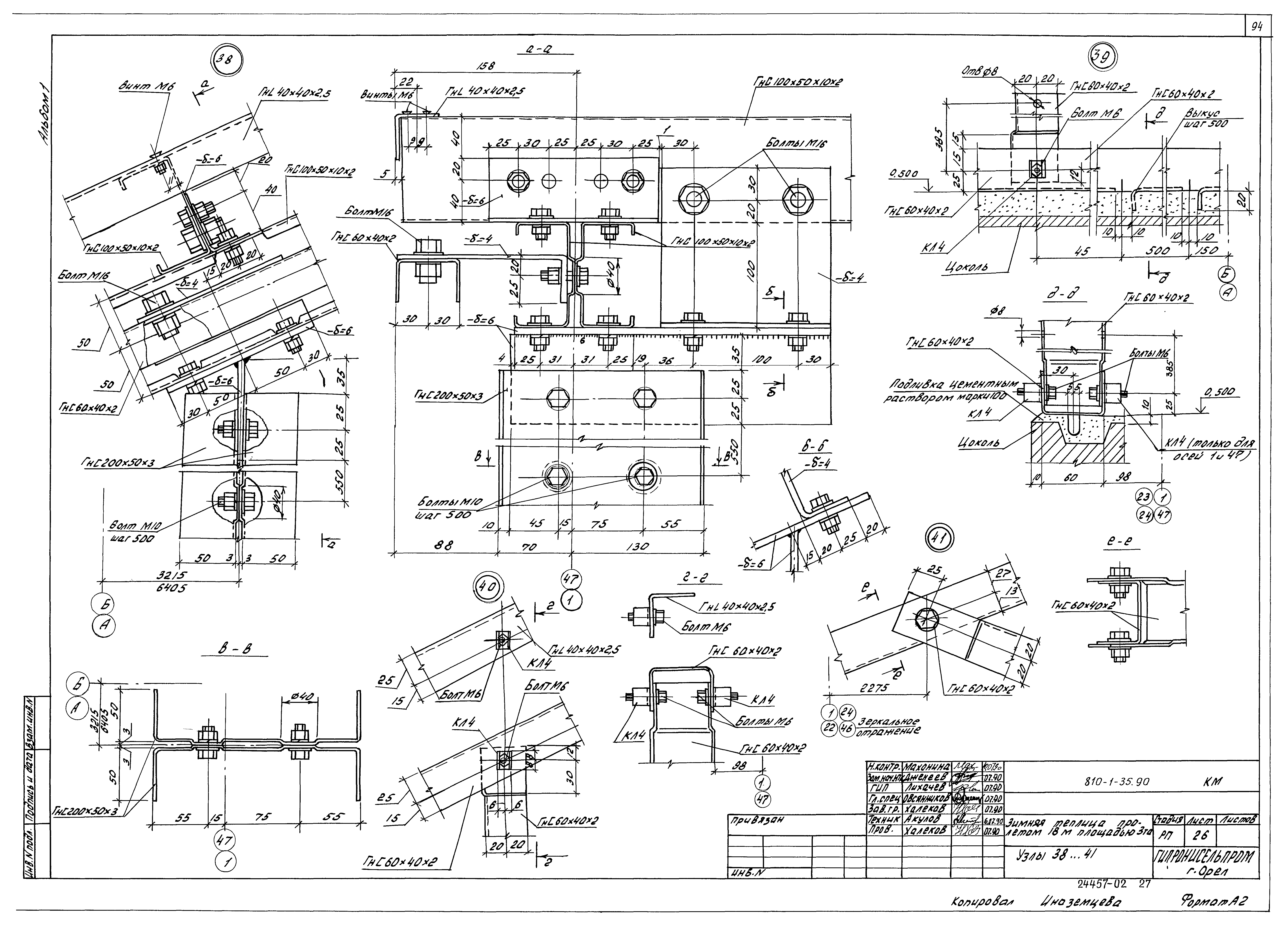
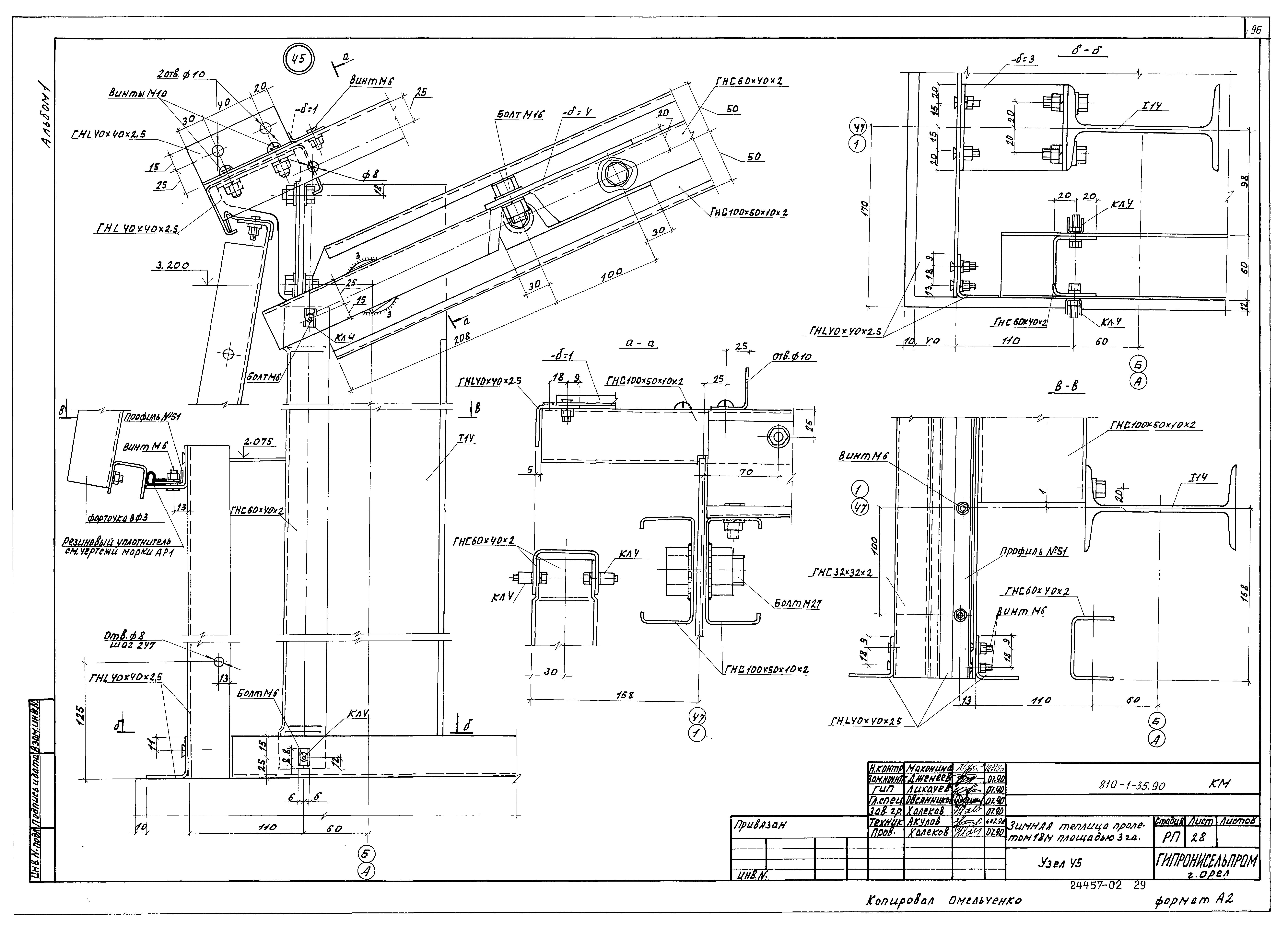
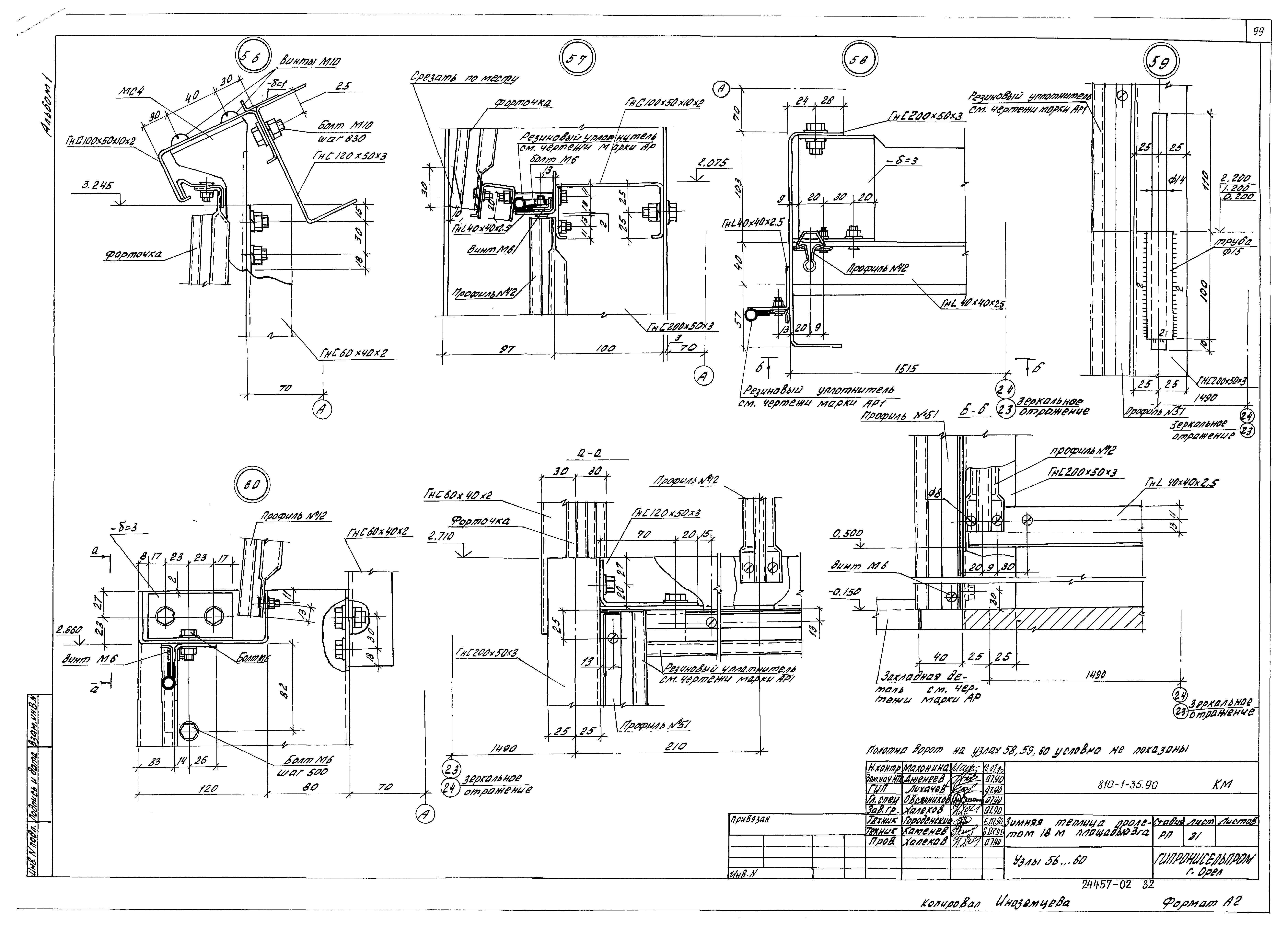
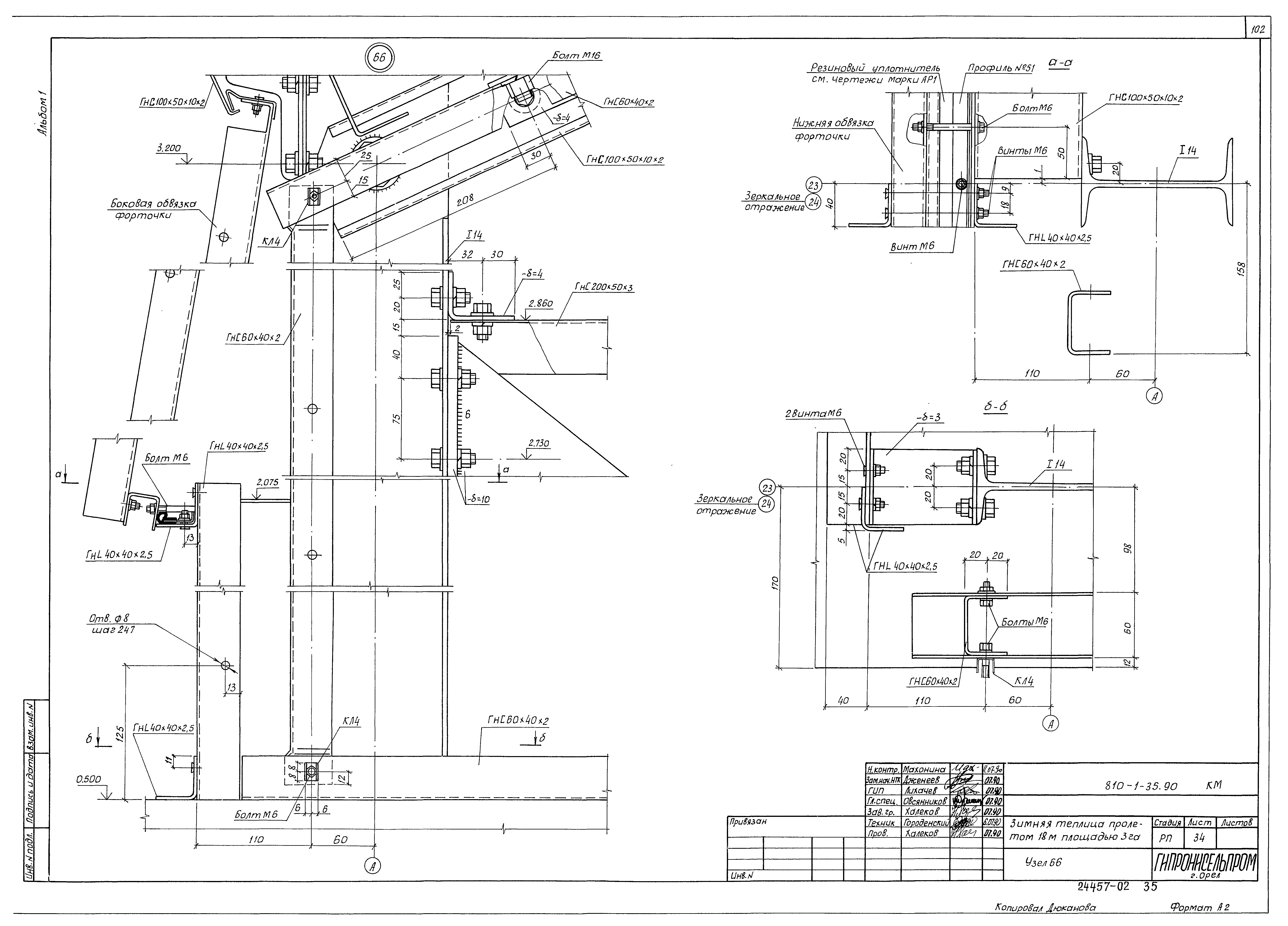
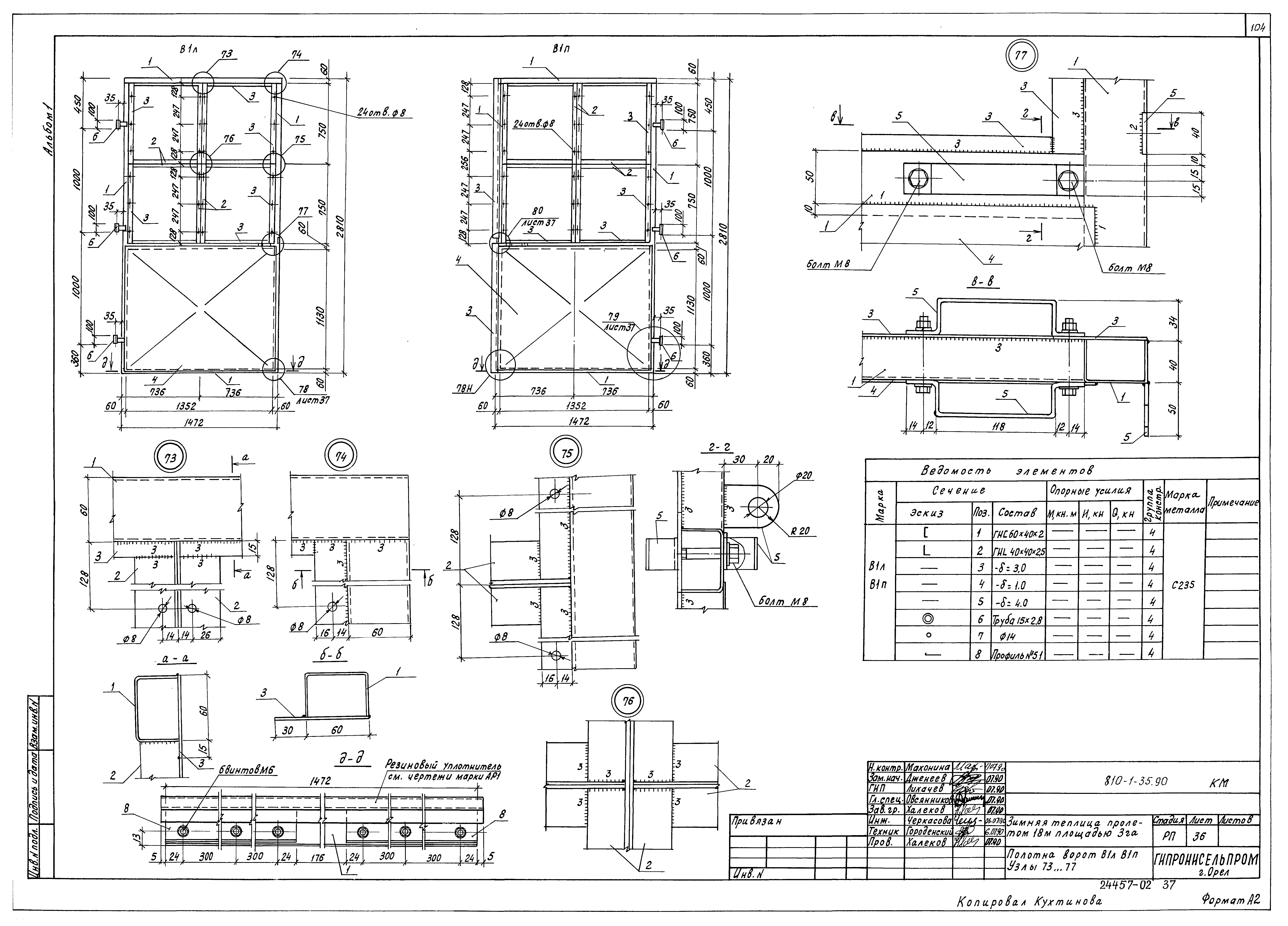
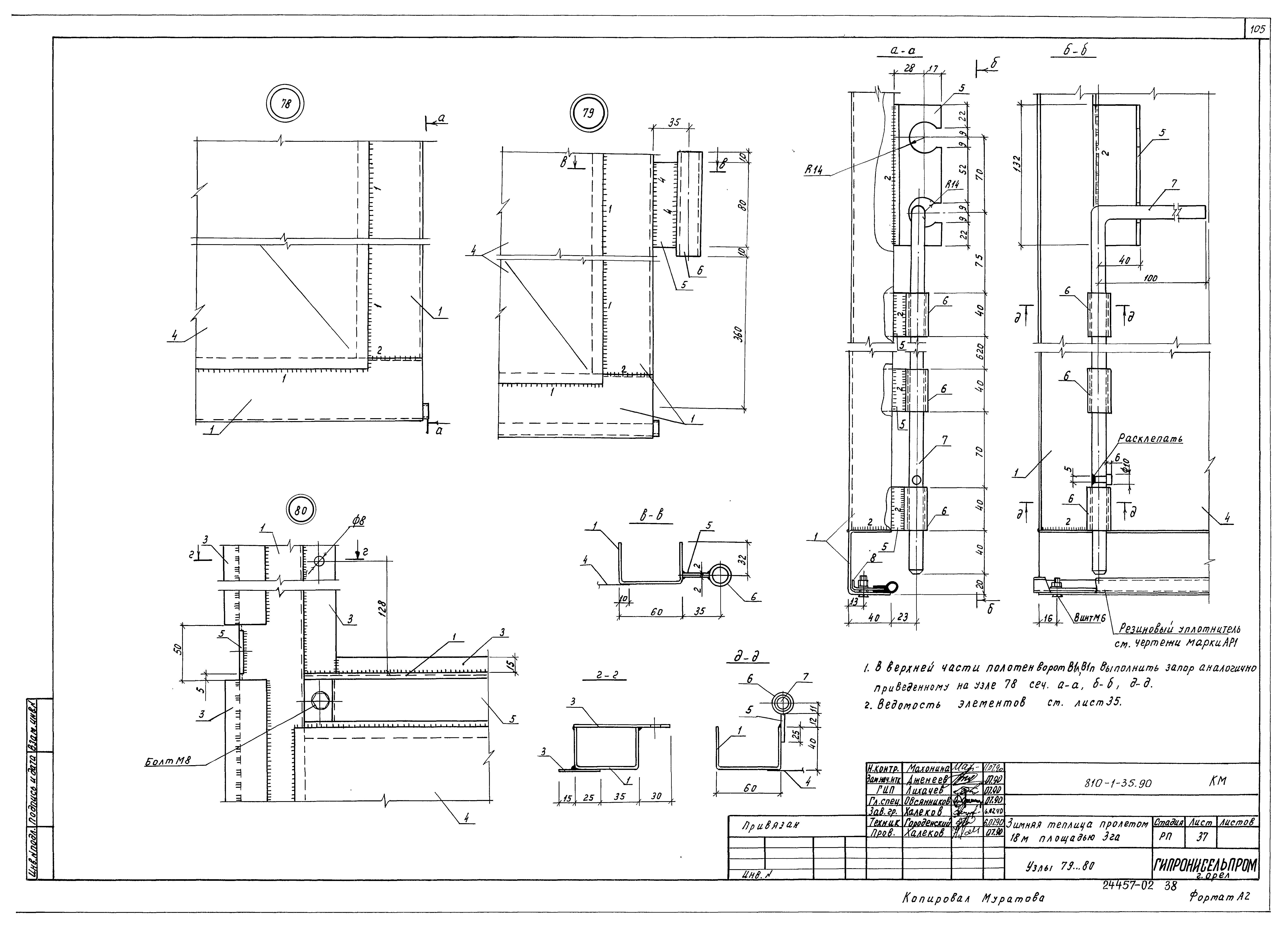
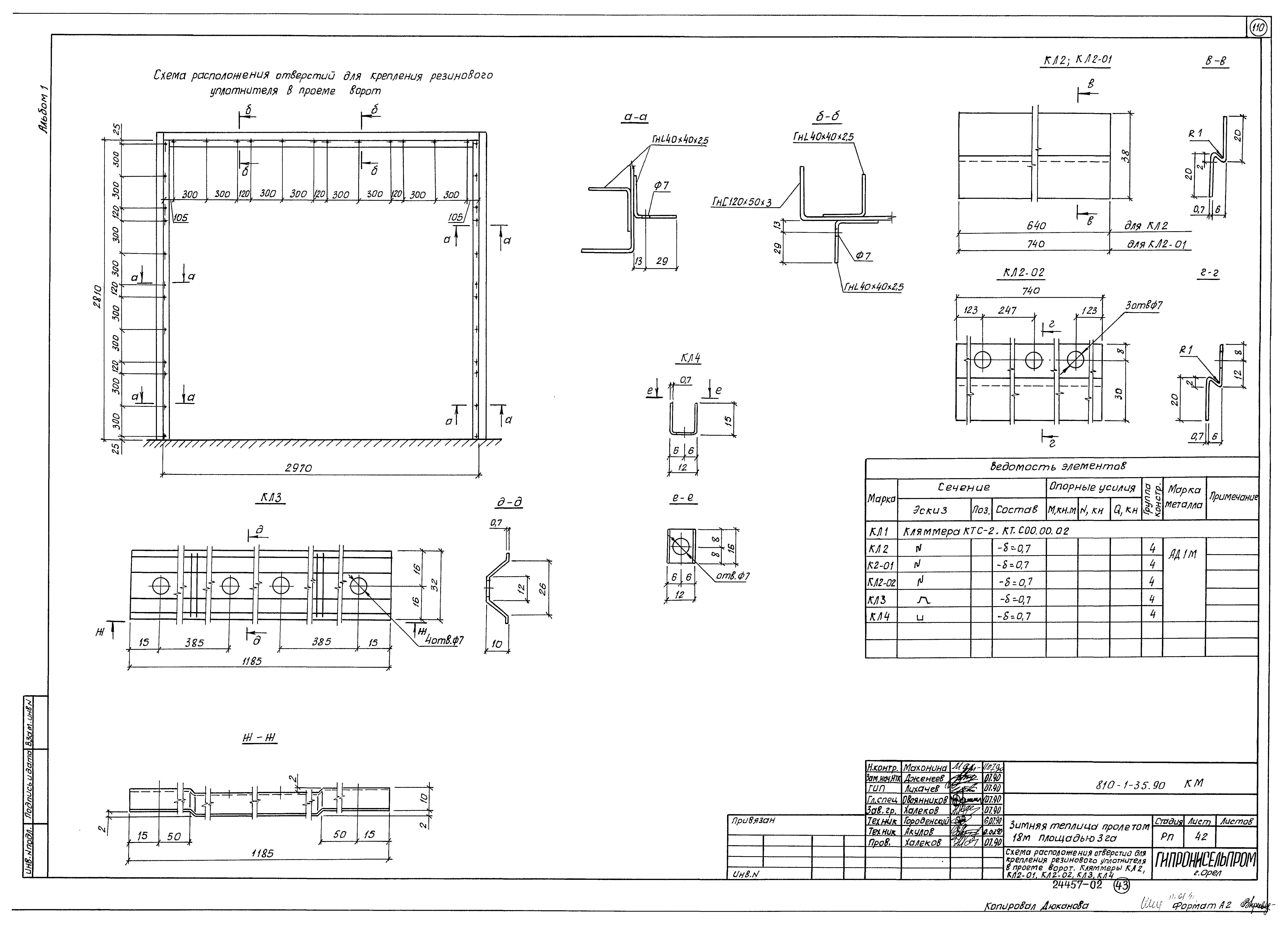
| Оглавление: | ТП810-1-35.90 КМ Конструкции металлические КМ ТП810-1-35.90 КМ Общие данные (начало) ТП810-1-35.90 КМ Общие данные (продолжение) ТП810-1-35.90 КМ Общие данные (окончание) ТП810-1-35.90 КМ Схема расположения стоек, ферм, ригелей, прогонов и связей. Фрагмент 1...3 ТП810-1-35.90 КМ Схема расположения шпросов и форточек. Схема расположения стоек и прогонов по оси А в осях 22...25. Схема расположения элементов ограждения по оси А в осях 22...25 ТП810-1-35.90 КМ Схемы расположения элементов по осям 1,47,23,24 ТП810-1-35.90 КМ Схемы расположения элементов коридора-вставки ТП810-1-35.90 КМ Разрез Б-Б схема расположения элементов фермы Ф ТП810-1-35.90 КМ Узел 1 ТП810-1-35.90 КМ Узел 2 ТП810-1-35.90 КМ Узлы 3...5 ТП810-1-35.90 КМ Узлы 6...8 ТП810-1-35.90 КМ Узлы 9...11 ТП810-1-35.90 КМ Узлы 12...15 ТП810-1-35.90 КМ Узел 16 ТП810-1-35.90 КМ Узлы 17...19 ТП810-1-35.90 КМ Узлы 20...21 ТП810-1-35.90 КМ Узлы 22...25 ТП810-1-35.90 КМ Узлы 26...27 ТП810-1-35.90 КМ Узлы 28...31 ТП810-1-35.90 КМ Узлы 32,33 ТП810-1-35.90 КМ Узлы 34...36 ТП810-1-35.90 КМ Узел 37 ТП810-1-35.90 КМ Узлы 38...41 ТП810-1-35.90 КМ Узлы 42...44 ТП810-1-35.90 КМ Узел 45 ТП810-1-35.90 КМ Узлы 46...51 ТП810-1-35.90 КМ Узлы 52...55 ТП810-1-35.90 КМ Узлы 56...60 ТП810-1-35.90 КМ Узлы 61,62 ТП810-1-35.90 КМ Узлы 63...65 ТП810-1-35.90 КМ Узел 66 ТП810-1-35.90 КМ Форточки ВФ1,ВФ1-01,ВФ2,ВФ2-01,ВФ3,ВФ4,ВФ4-01. Узлы 67...72 ТП810-1-35.90 КМ Полотна ворот В1л,В1п. Узлы 73...77 ТП810-1-35.90 КМ Узлы 78...80 ТП810-1-35.90 КМ Схемы расположения отверстий для крепления технологического оборудования. Узлы 81...87 ТП810-1-35.90 КМ Схемы расположения отверстий для крепления механизмов коньковой и боковой вентиляции. Узел 88 ТП810-1-35.90 КМ Соединительные элементы МС1,МС2 ТП810-1-35.90 КМ Соединительные элементы МС3,МС5. Деталь разбивки отверстий в шпросе Ш2 ТП810-1-35.90 КМ Схема расположения отверстий для крепления резинового уплотнителя в проеме ворот. Кляммеры КЛ2,КЛ2-01,КЛ2-02,КЛ3,КЛ4 |
| Разработан: | ЦНИИСК им. В.А. Кучеренко Институт Гипронисельпром Минсельхозпрода СССР |
| Утверждён: | 21.09.1990 Главное научно-проектное управление по строительству Госкомиссии Совмина СССР по продовольствию и закупкам (11) |










































