Скачать Типовой проект 810-1-35.90 Альбом 2. Технология производства. Архитектурные решения. Конструкции железобетонные. Бытовые и вспомогательные помещенияДата актуализации: 01.01.2021
|
| Обозначение: | Типовой проект 810-1-35.90 |
| Обозначение англ: | 810-1-35.90 |
| Статус: | не определен законодательством |
| Название рус.: | Альбом 2. Технология производства. Архитектурные решения. Конструкции железобетонные. Бытовые и вспомогательные помещения |
| Дата добавления в базу: | 01.09.2013 |
| Дата актуализации: | 01.01.2021 |
| Дата введения: | 25.09.1990 |
| Дата окончания срока действия: | 30.06.2003 |
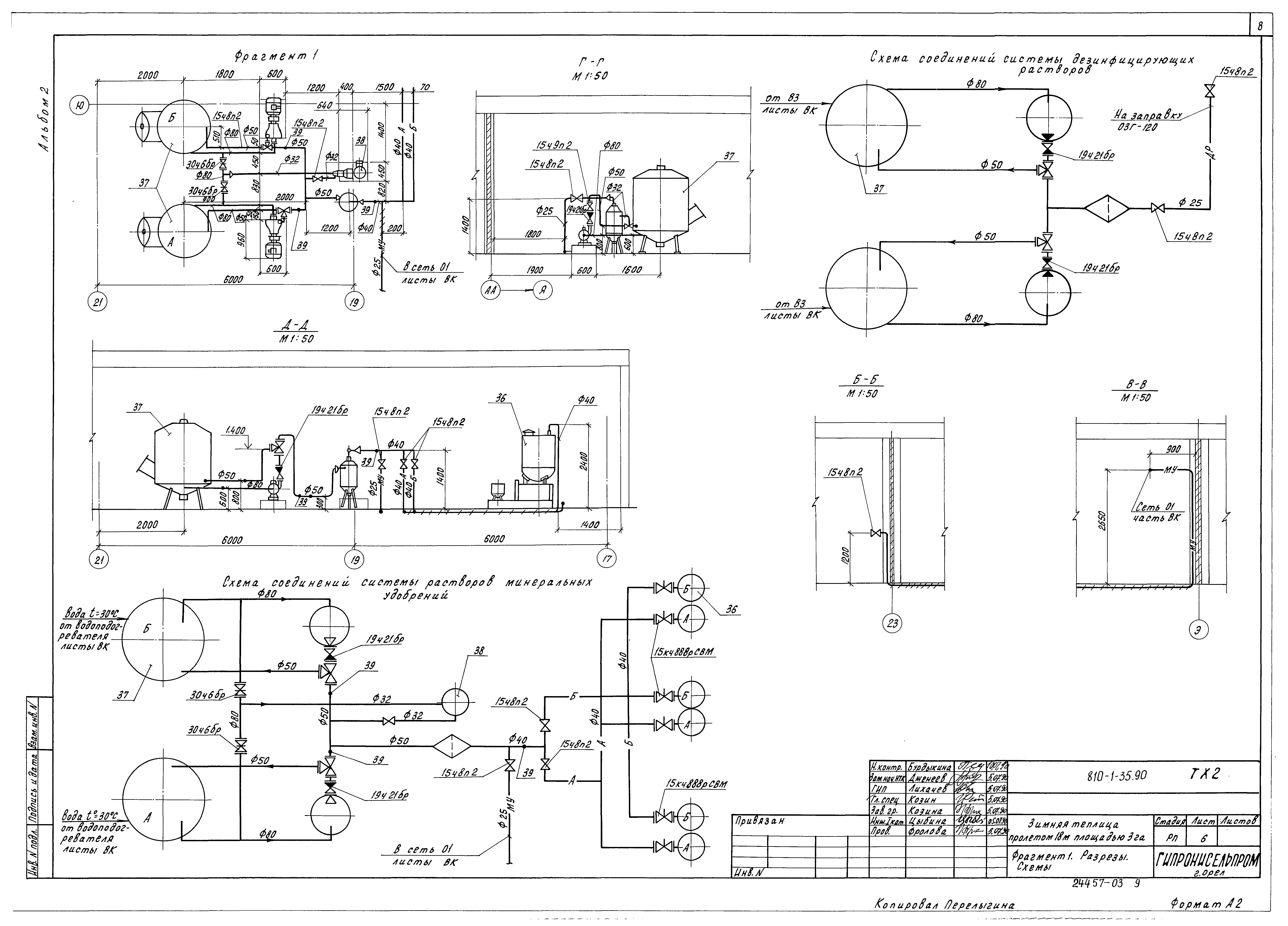
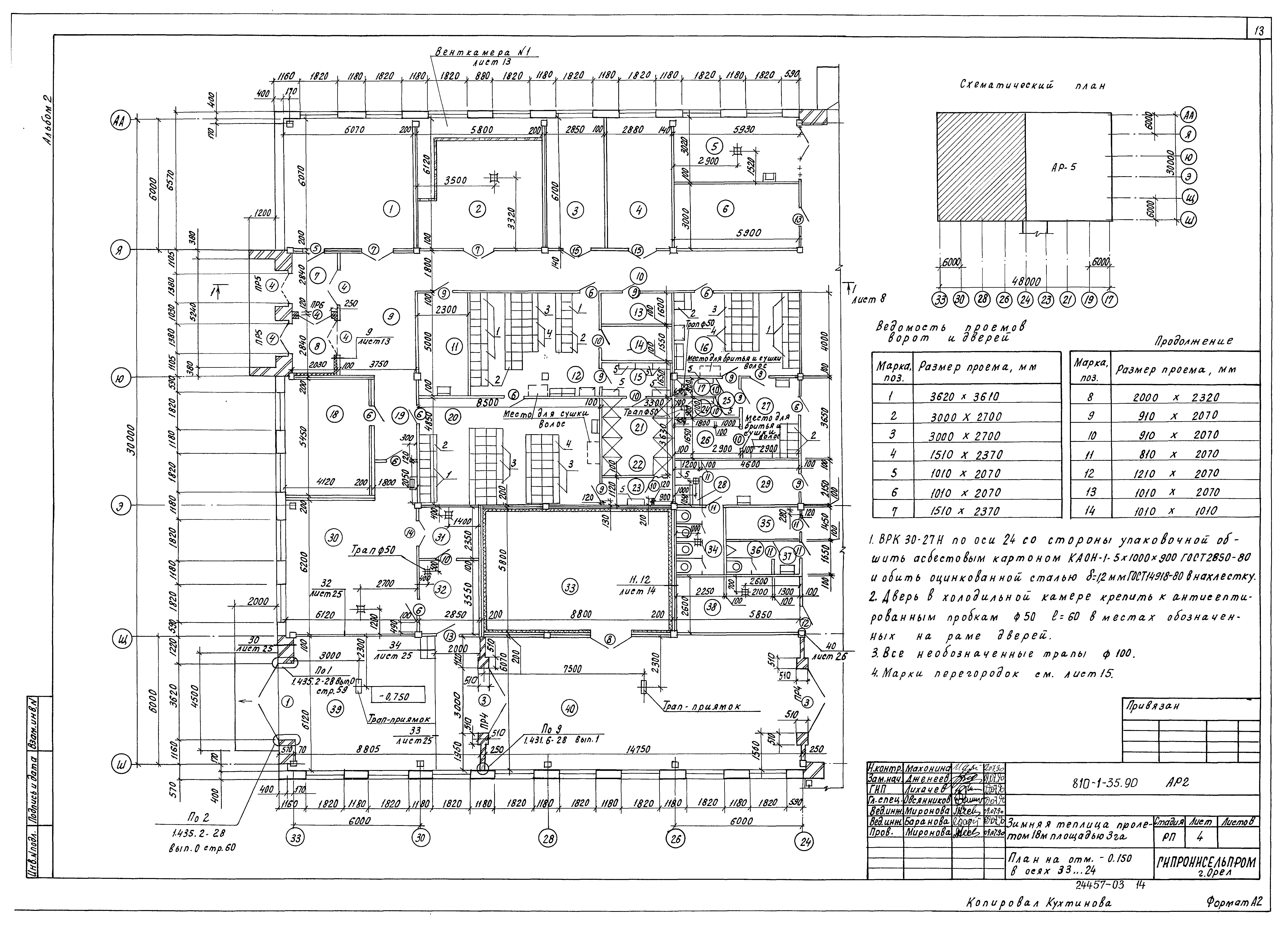
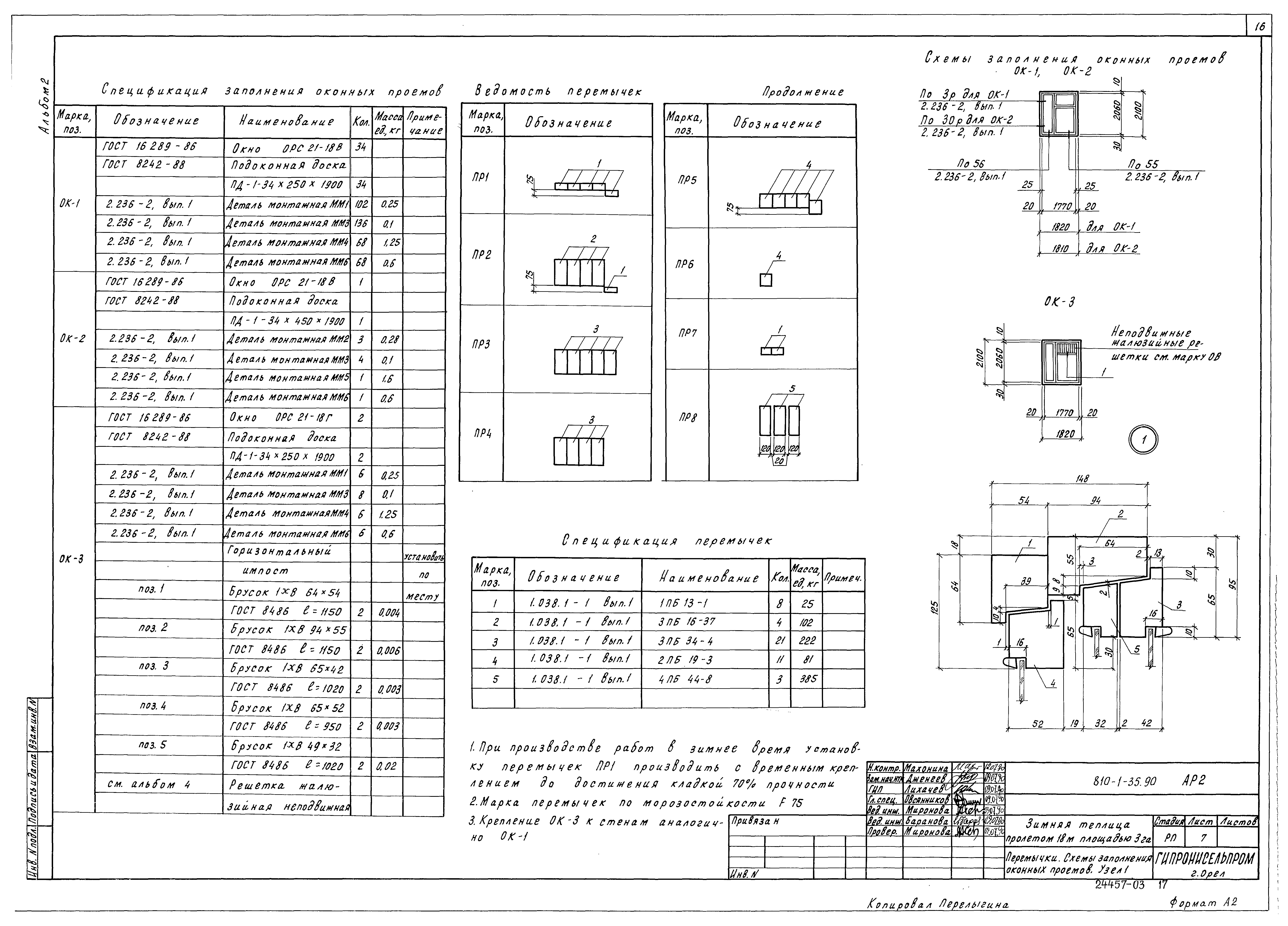
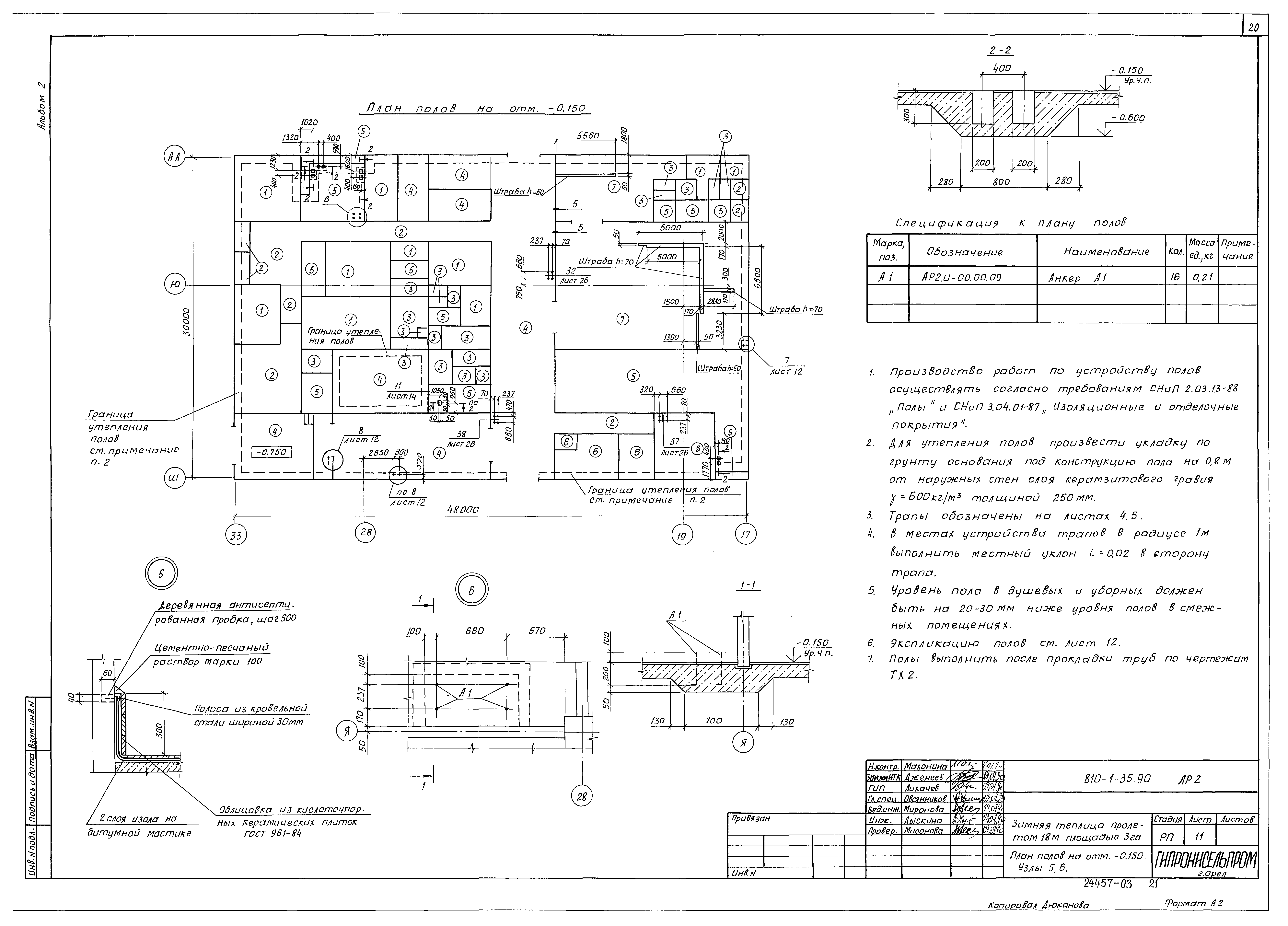
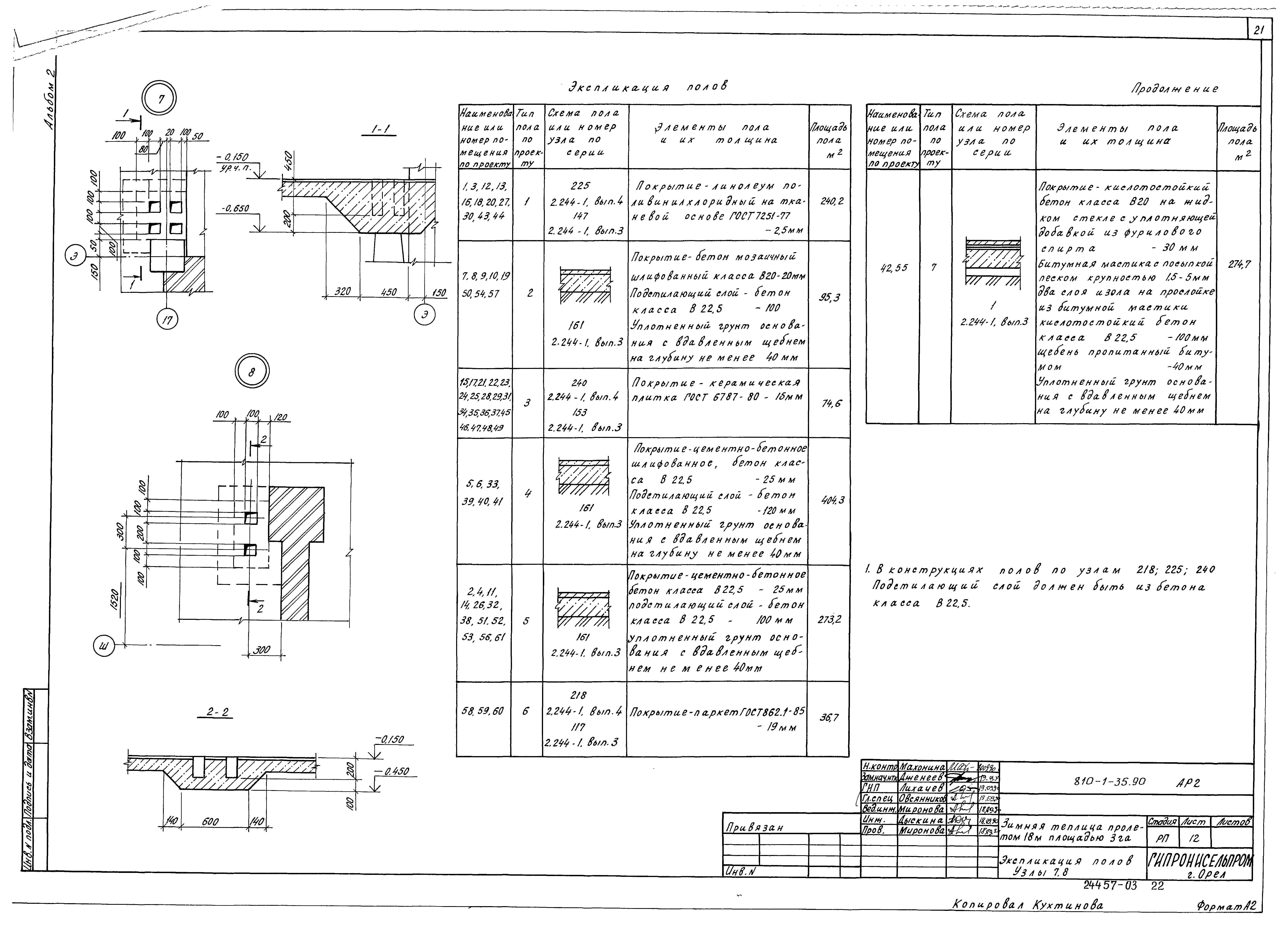
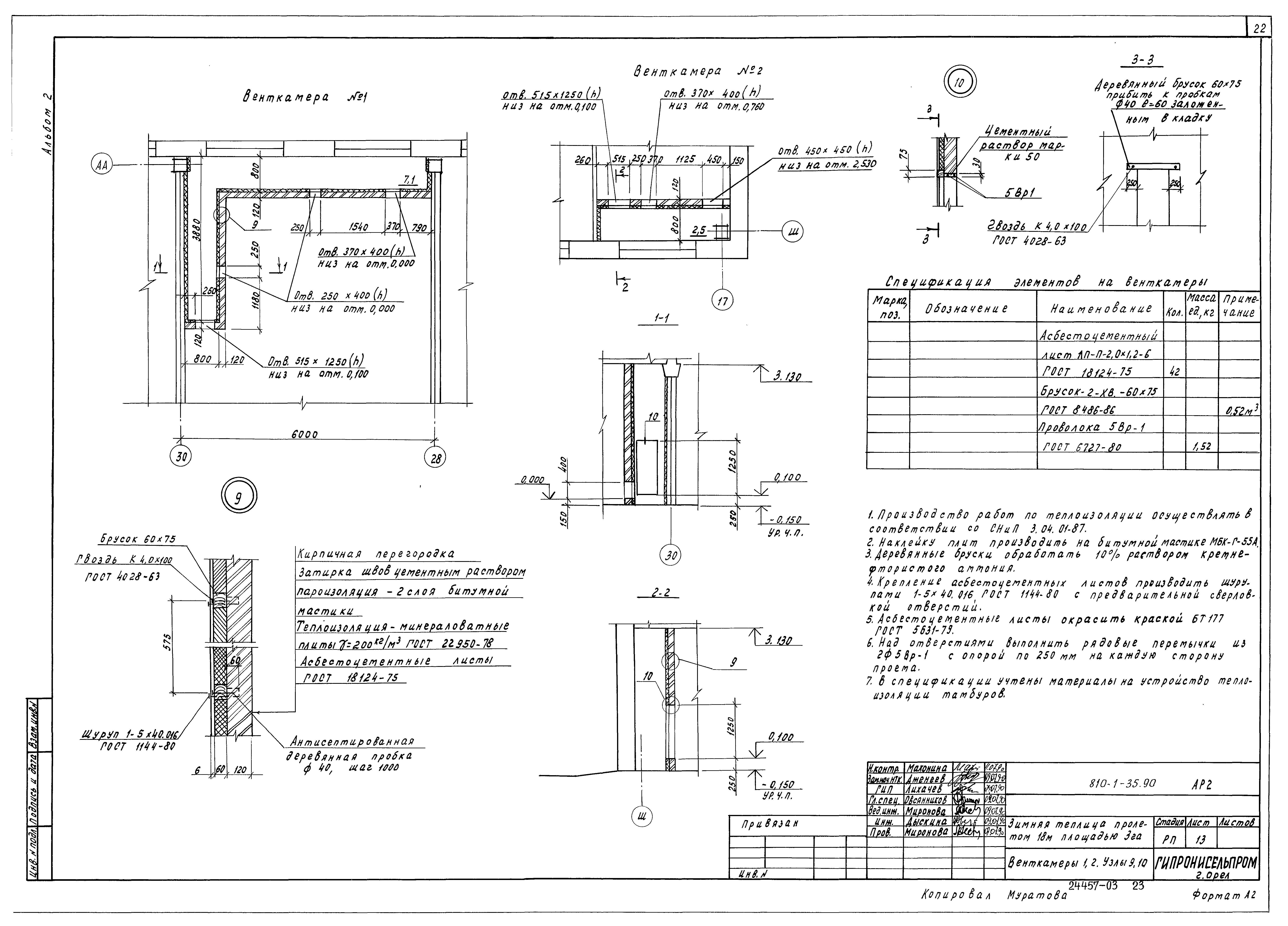
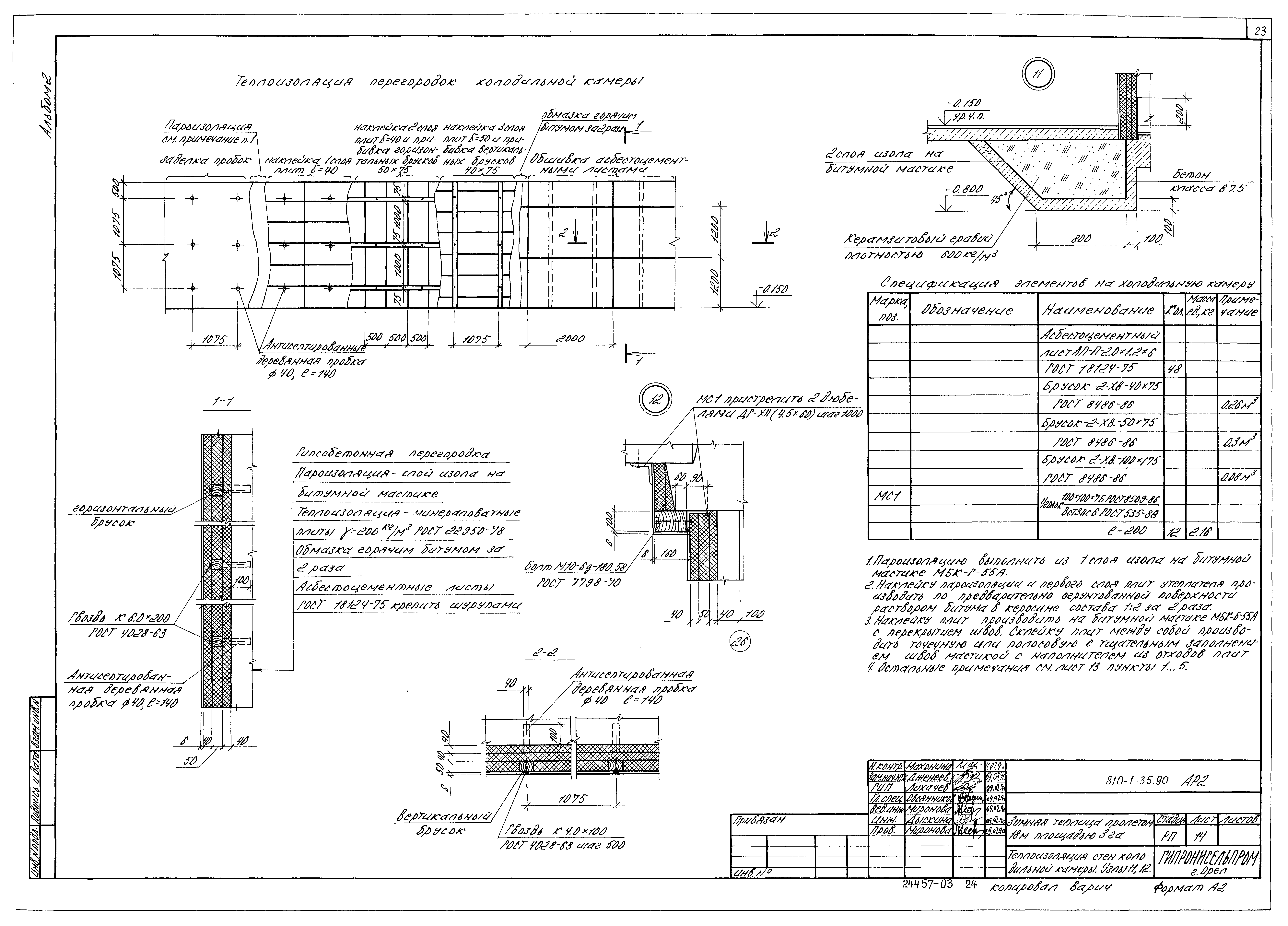
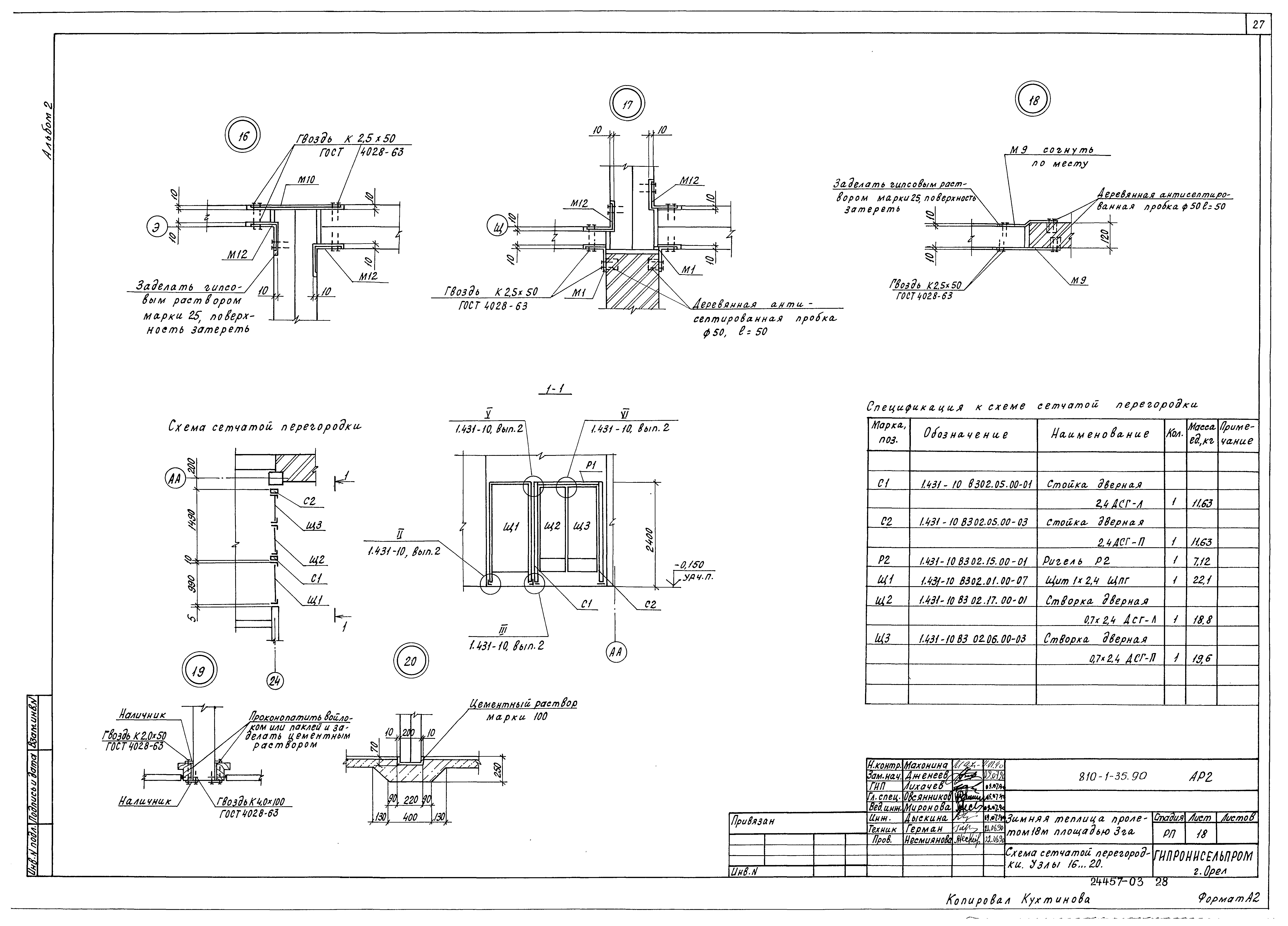
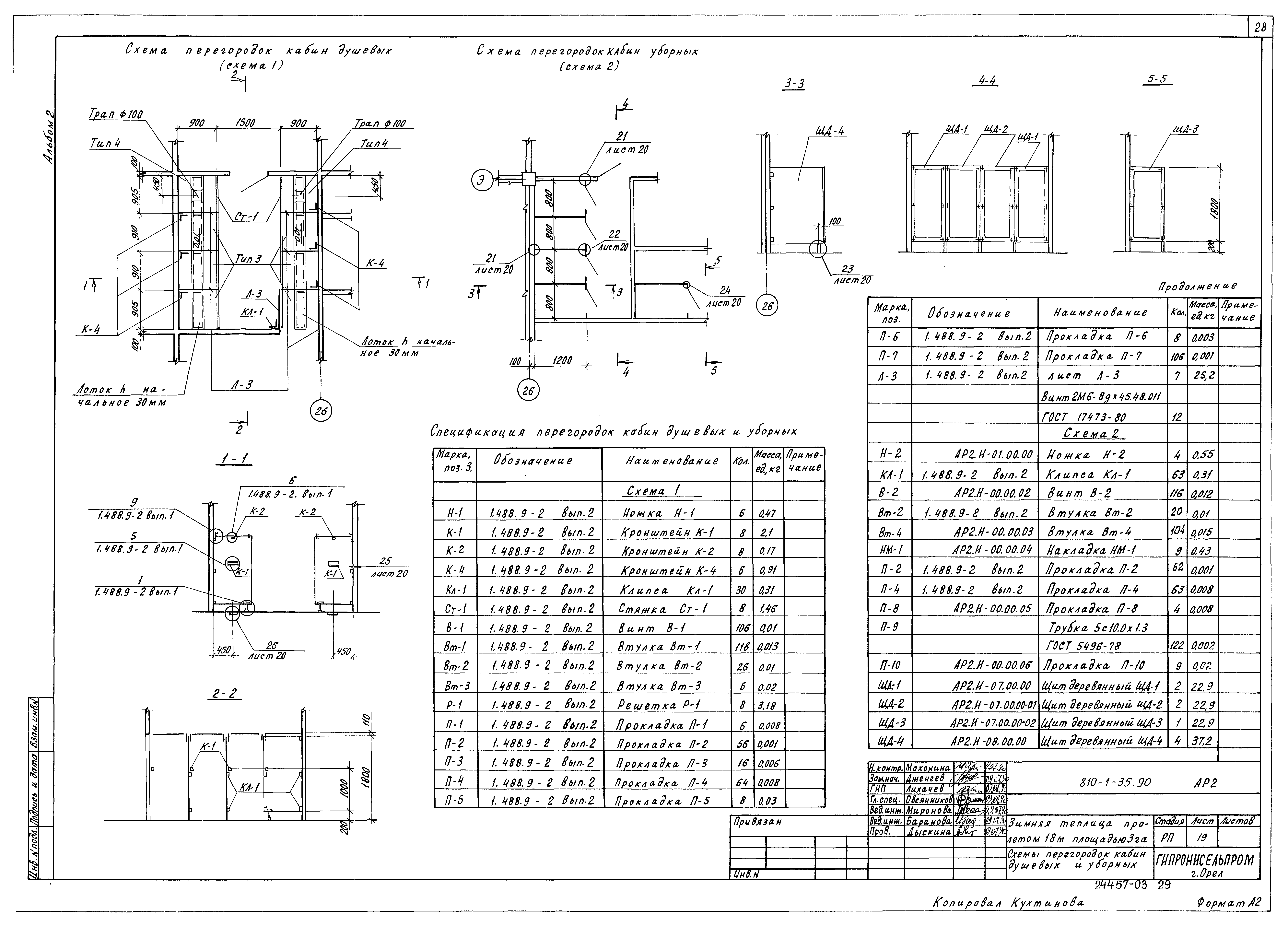
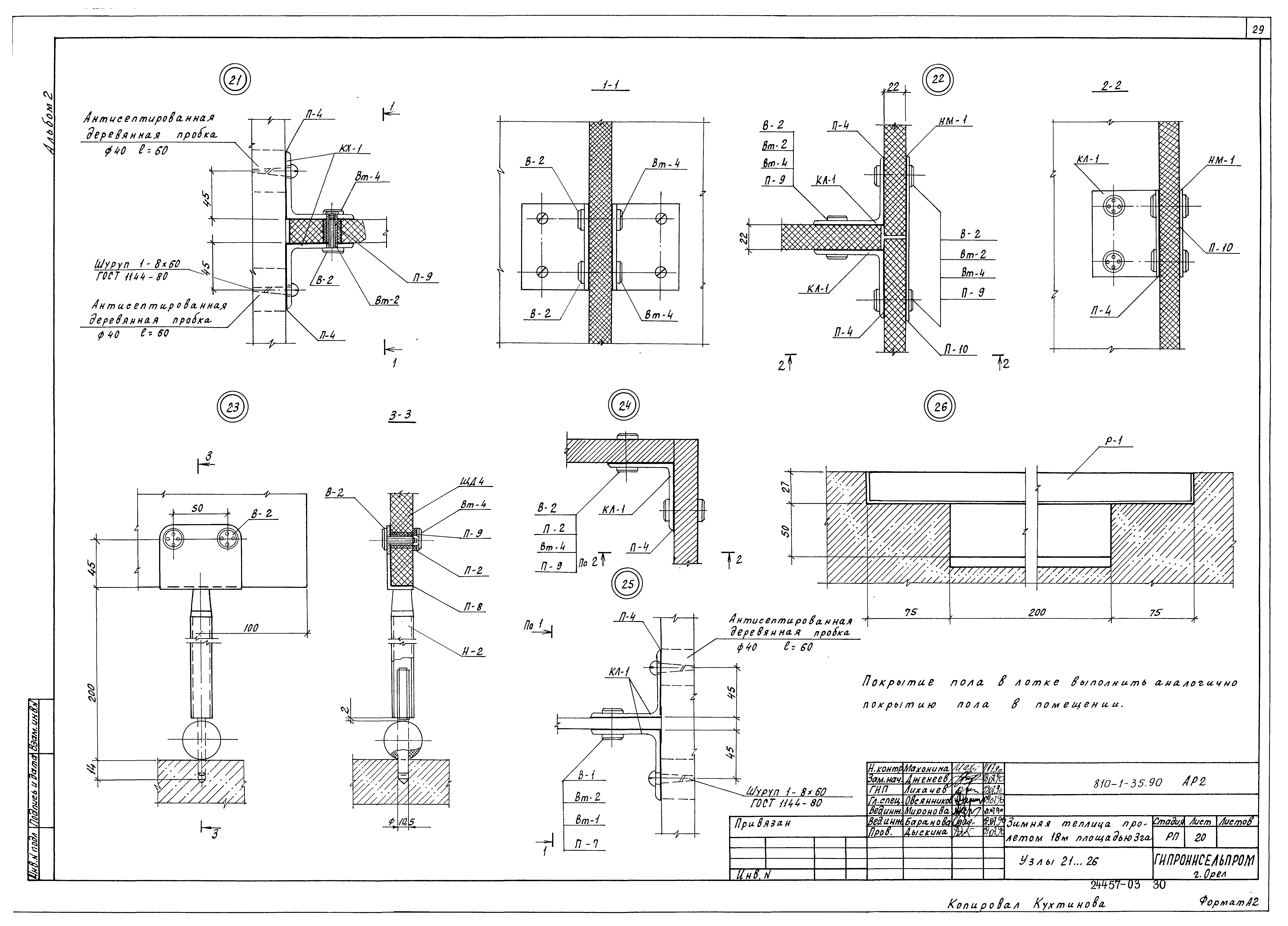
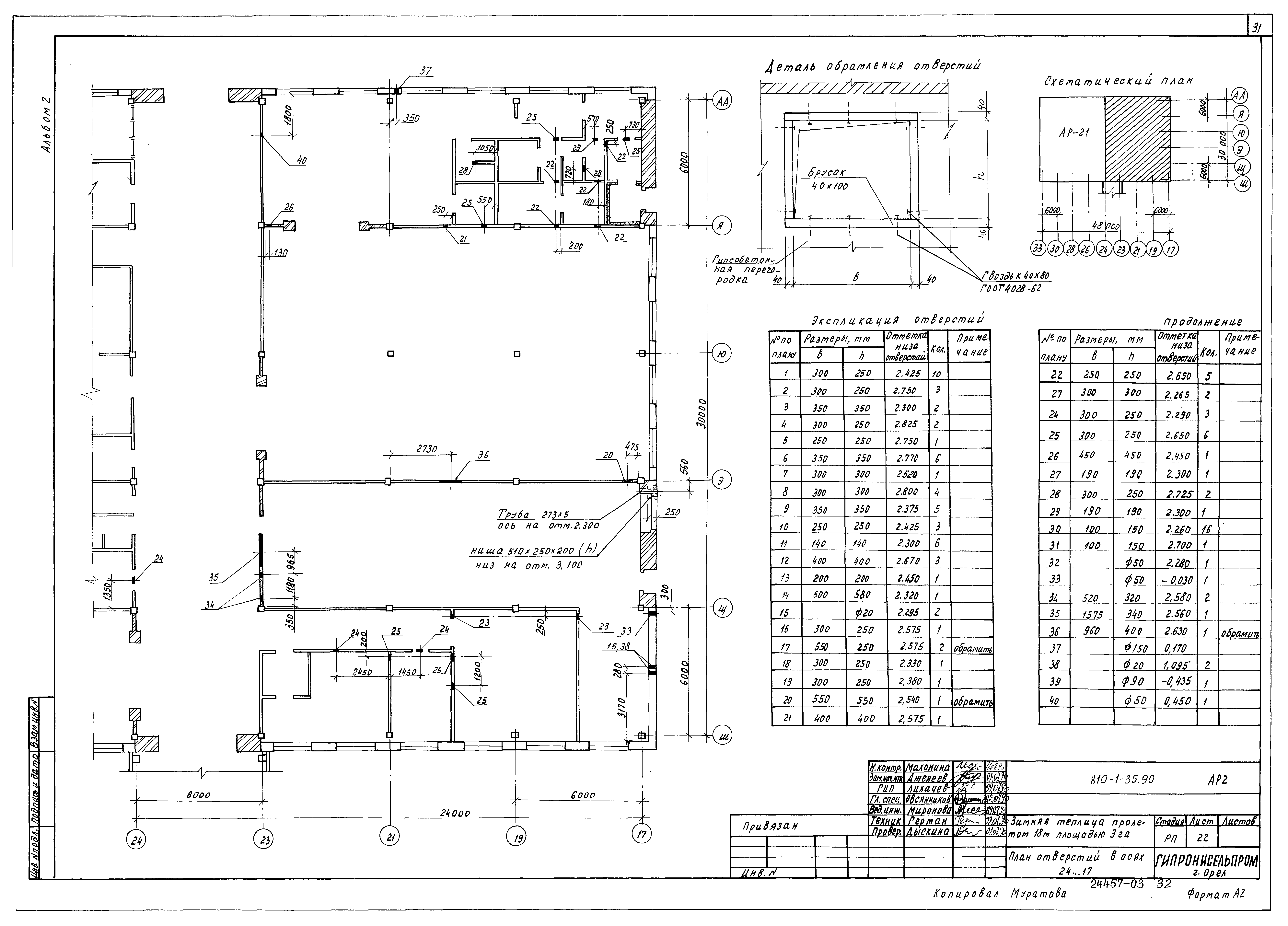
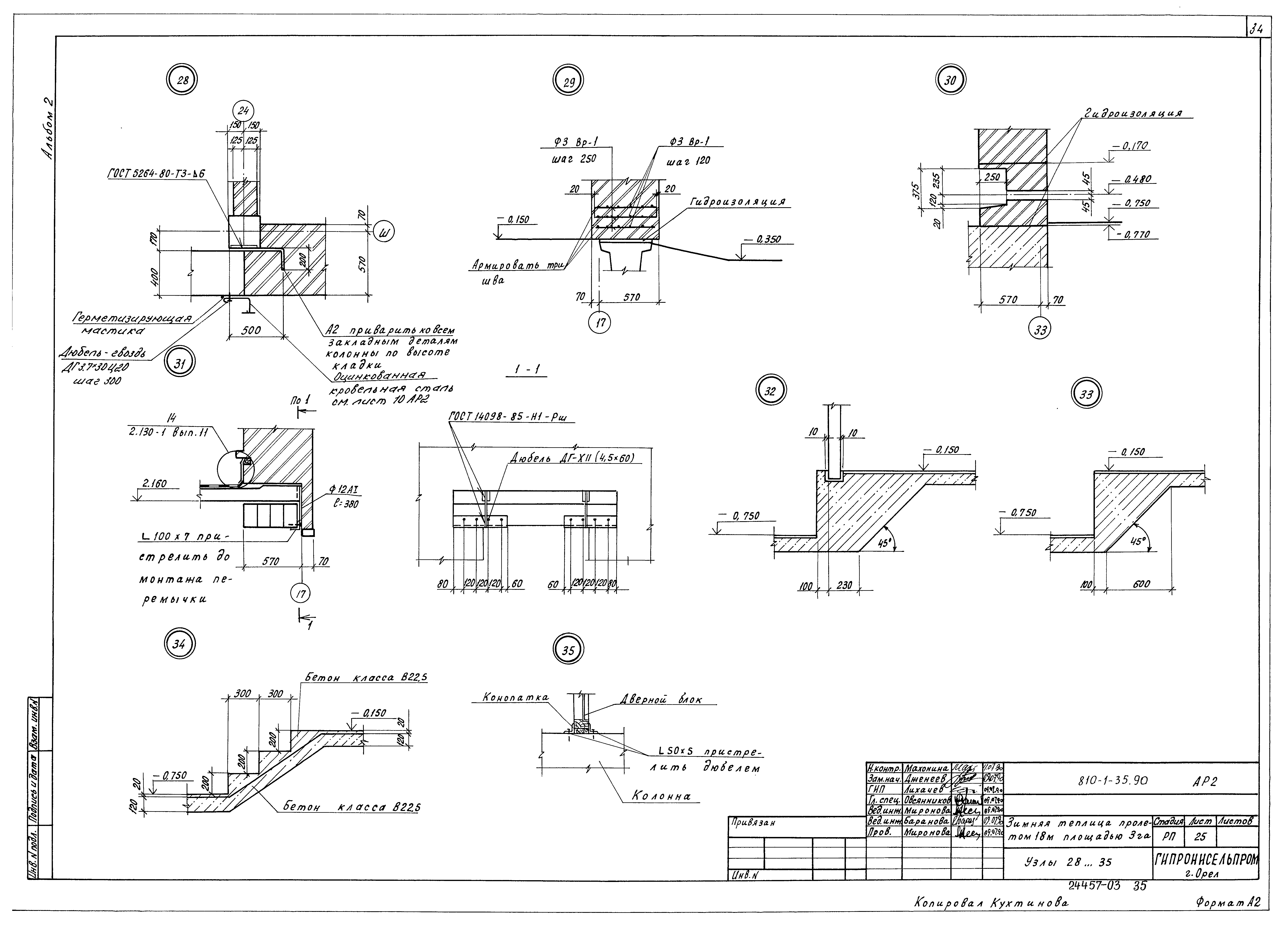
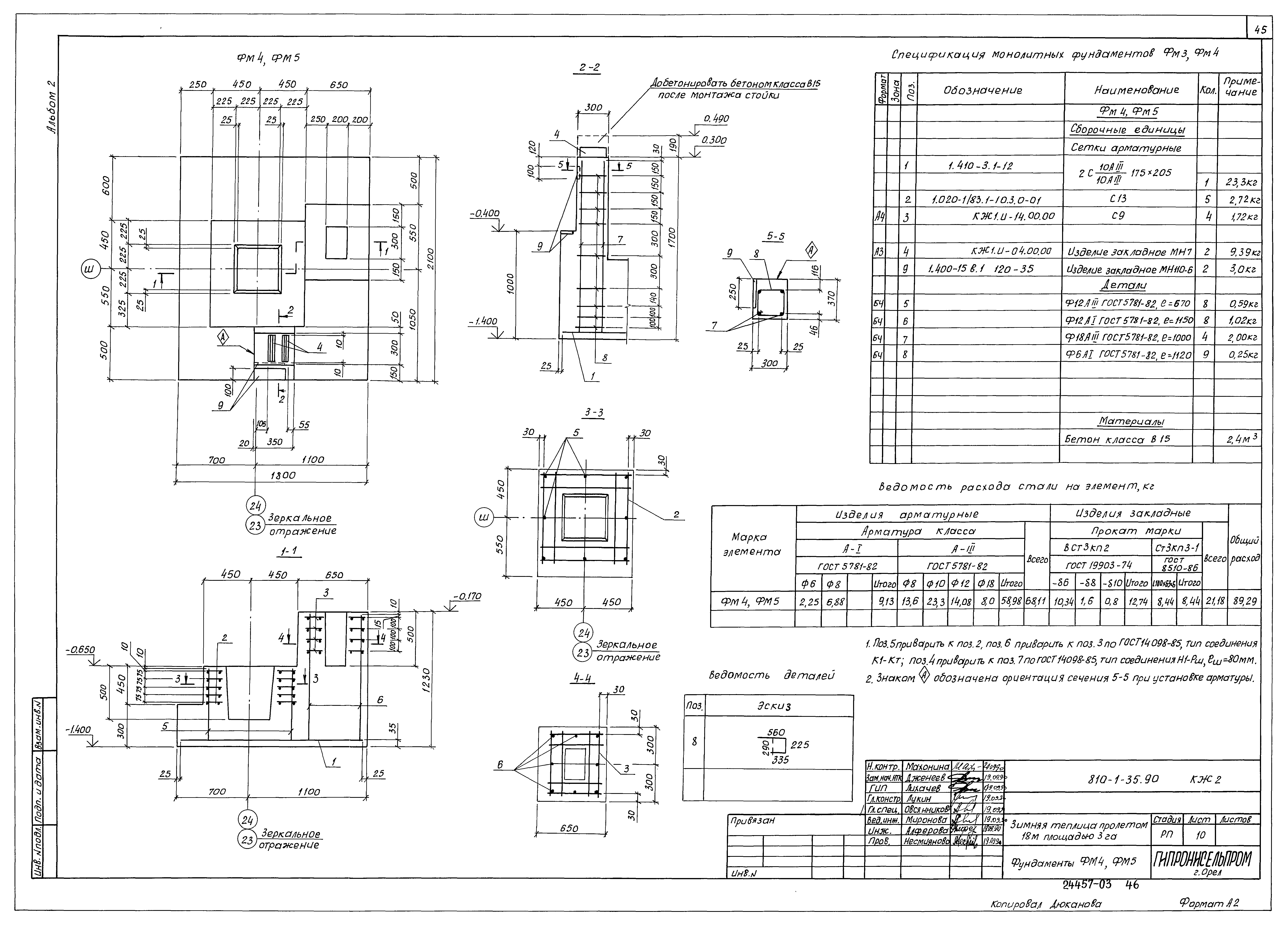
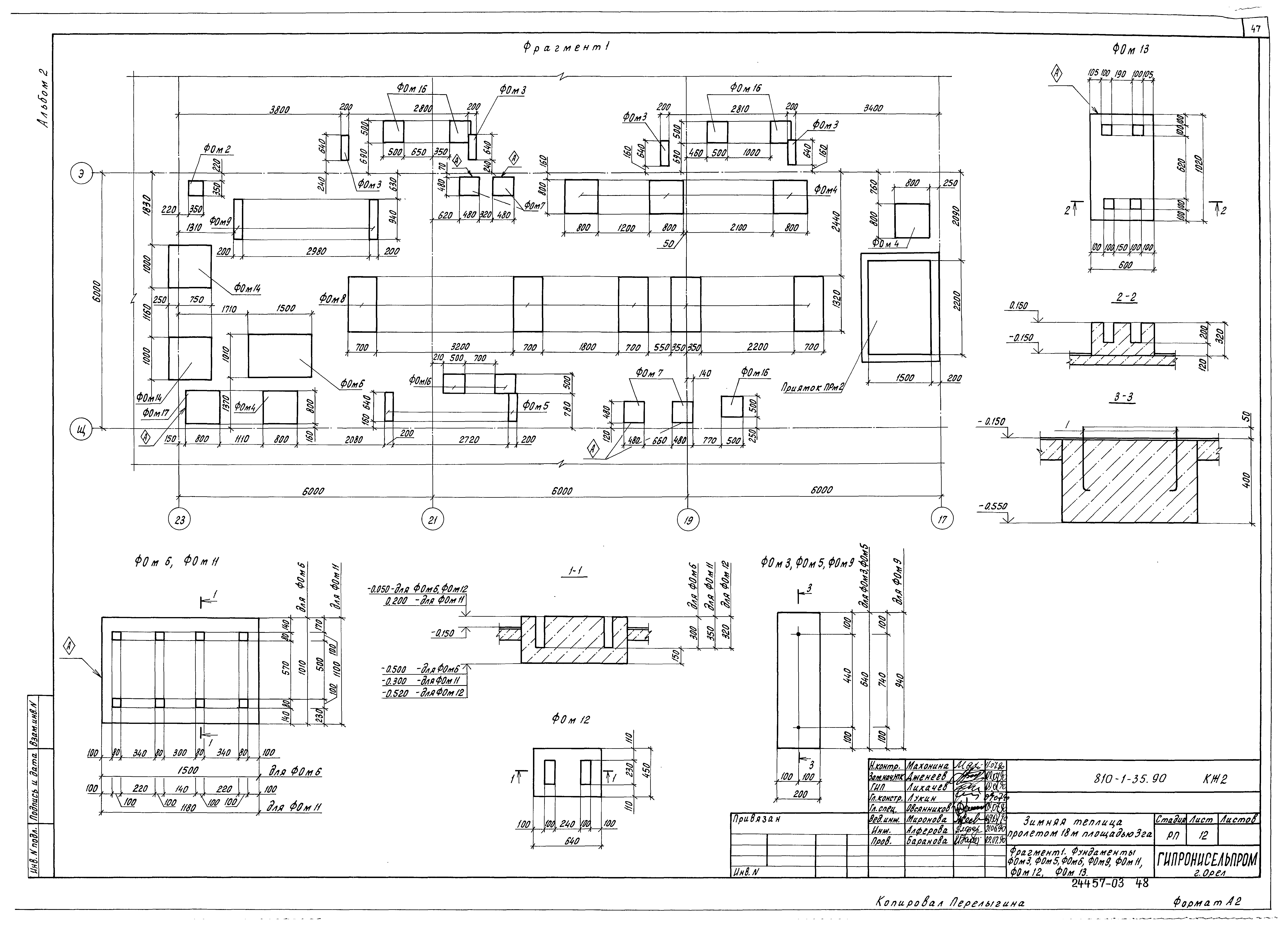
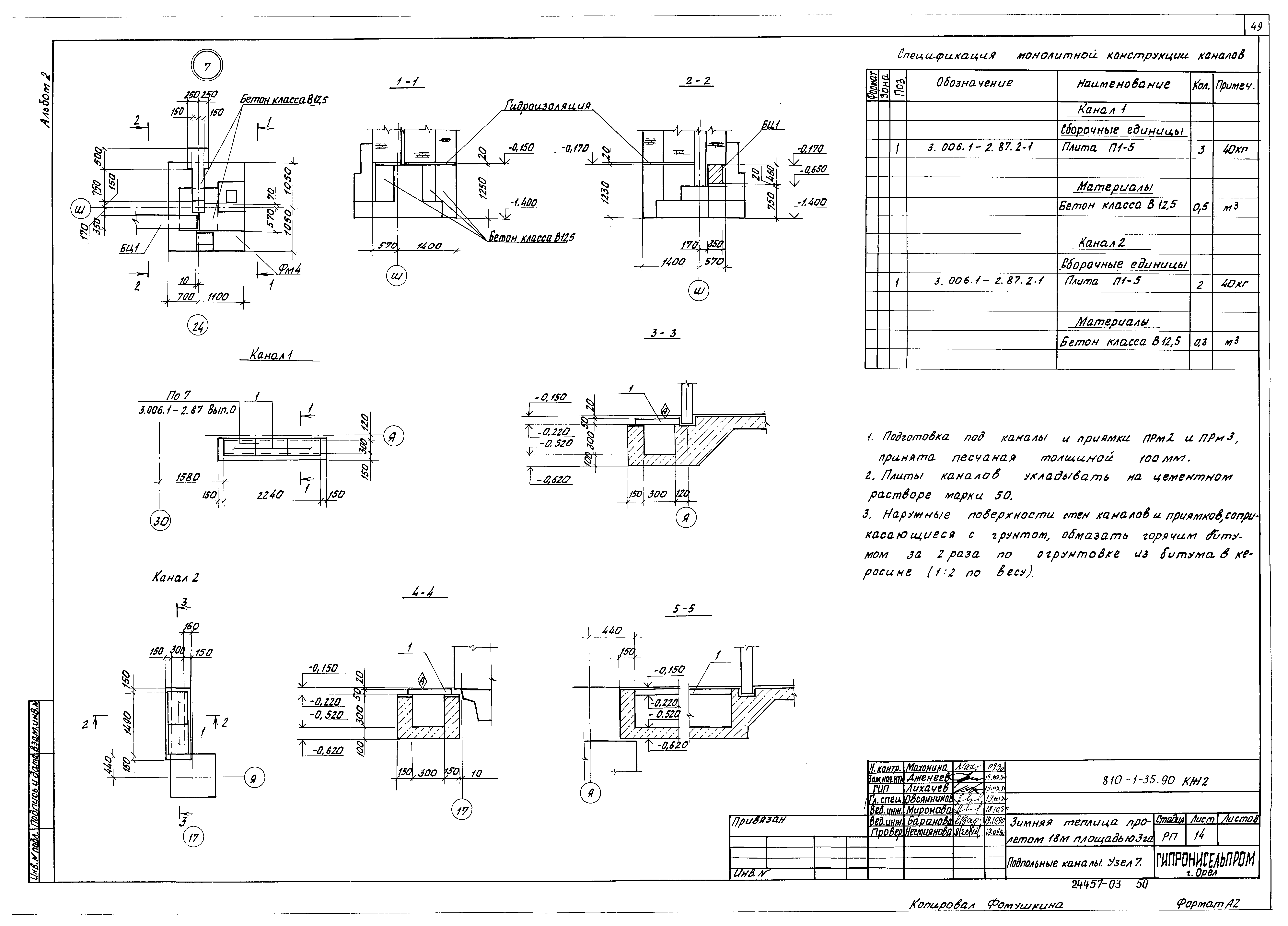
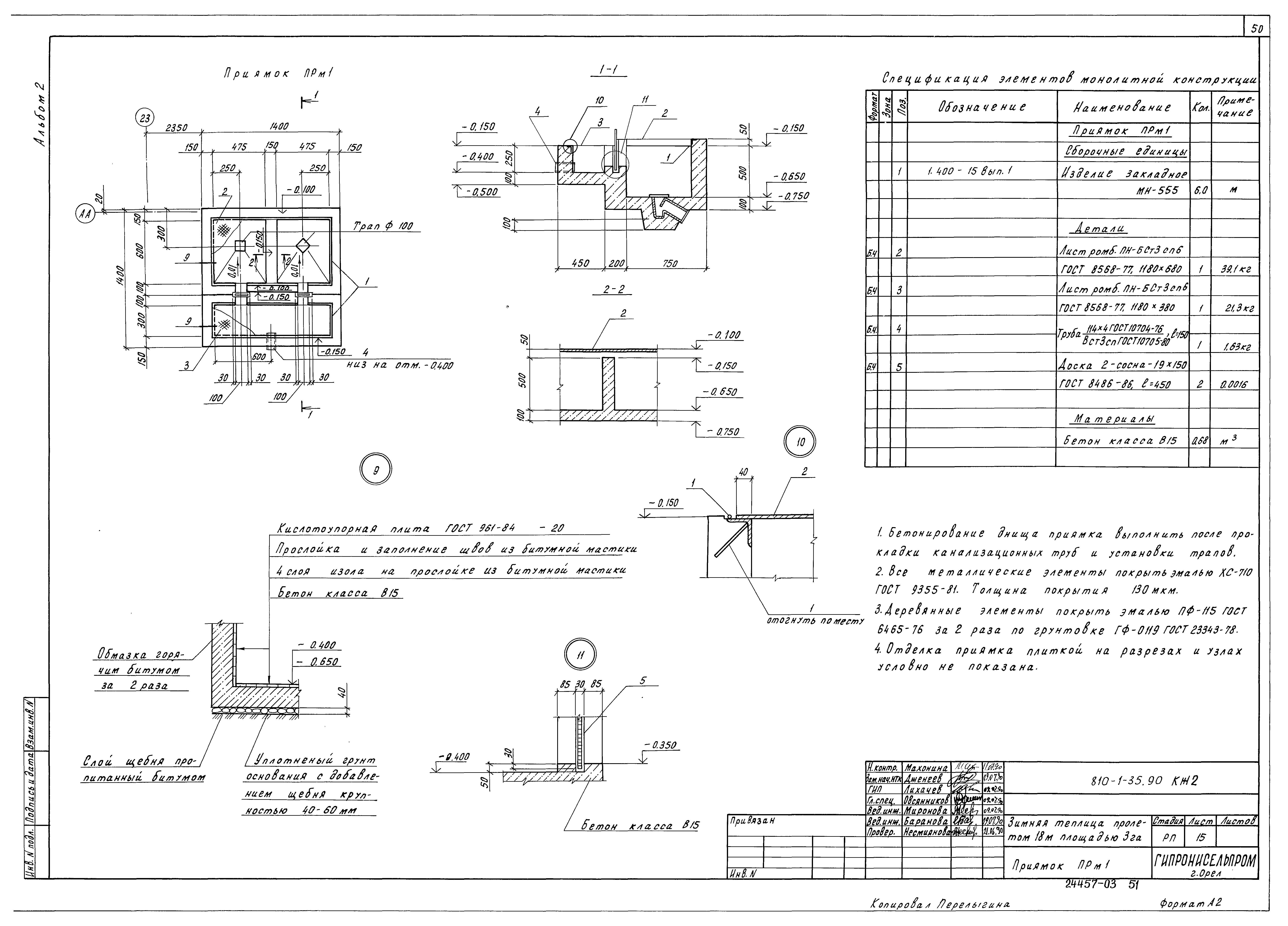
| Оглавление: | ТП810-1-35.90 Содержание альбома ТП810-1-35.90 ТХ2 Технология производства. Бытовые и вспомогательные помещения ТХ2 ТП810-1-35.90 ТХ2 Общие данные ТП810-1-35.90 ТХ2 План расположения между осями АА-ЕЕ и 24-33 ТП810-1-35.90 ТХ2 Экспликация помещений. Спецификация к плану расположения ТП810-1-35.90 ТХ2 План расположения между осями АА-ЕЕ и 17-24. Разрез А-А ТП810-1-35.90 ТХ2 Экспликация помещений. Спецификация к плану расположения ТП810-1-35.90 ТХ2 Фрагмент 1. Разрезы. Схемы ТП810-1-35.90 ТХ2 Спецификация к плану расположения ТП810-1-35.90 АР2 Архитектурные решения АР2 ТП810-1-35.90 АР2 Общие данные (начало) ТП810-1-35.90 АР2 Общие данные (продолжение) ТП810-1-35.90 АР2 Общие данные (окончание) ТП810-1-35.90 АР2 План на отм.-0.150 в осях 33...24 ТП810-1-35.90 АР2 План на отм.-0.150 в осях 24...17 ТП810-1-35.90 АР2 Экспликация помещений ТП810-1-35.90 АР2 Перемычки. Схемы заполнения оконных проемов. Узел 1 ТП810-1-35.90 АР2 Разрезы 1-1;2-2.Узел 2 ТП810-1-35.90 АР2 Фасады. Узел 3 ТП810-1-35.90 АР2 План кровли. Узел 4 ТП810-1-35.90 АР2 План полов на отм. - 0.150. Узлы 5,6 ТП810-1-35.90 АР2 Экспликация полов. Узлы 7,8 ТП810-1-35.90 АР2 Венткамеры 1,2. Узлы 9,10 ТП810-1-35.90 АР2 Теплоизоляция стен холодильной камеры. Узлы 11,12 ТП810-1-35.90 АР2 Схема расположения панелей перегородок. Сечения 1-1...8-8 ТП810-1-35.90 АР2 Сечения 9-9...19-19. Узел 13 ТП810-1-35.90 АР2 Спецификация к схеме расположения панелей перегородок. Узлы 14,15 ТП810-1-35.90 АР2 Схема сетчатой перегородки. Узлы 16...20 ТП810-1-35.90 АР2 Схемы перегородок кабин душевых и уборных ТП810-1-35.90 АР2 Узлы 21...26 ТП810-1-35.90 АР2 План отверстий на отм. - 0.150 в осях 33...24 ТП810-1-35.90 АР2 План отверстий на отм. - 0.150 в осях 24...17 ТП810-1-35.90 АР2 Схема расположения закладных деталей для крепления ворот ВРК30-27;ВРК30-27Н ТП810-1-35.90 АР2 Звукологлащающая облицовка в 59 и 60 помещениях ТП810-1-35.90 АР2 Узлы 28...35 ТП810-1-35.90 АР2 Узлы 36...40 ТП810-1-35.90 КЖ2 Конструкции железобетонные. Бытовые и вспомогательные помещения КЖ2 ТП810-1-35.90 КЖ2 Общие данные (начало) ТП810-1-35.90 КЖ2 Общие данные (продолжение) ТП810-1-35.90 КЖ2 Общие данные (окончание) ТП810-1-35.90 КЖ2 Схема расположения элементов фундаментов ТП810-1-35.90 КЖ2 Виды А-А, Б-Б. Узлы 1;2;8. Сечения 1-1...4-4 ТП810-1-35.90 КЖ2 Узлы 3...6. Сечения 4-4...15-15 ТП810-1-35.90 КЖ2 Фундамент ФМ1 ТП810-1-35.90 КЖ2 Фундамент ФМ2 ТП810-1-35.90 КЖ2 Фундамент ФМ3 ТП810-1-35.90 КЖ2 Фундамент ФМ4,ФМ5 ТП810-1-35.90 КЖ2 Схема расположения элементов подземного хозяйства фундаменты ФОМ2,ФОМ4,ФОМ7,ФОМ8,ФОМ14,ФОМ16,ФОМ17 ТП810-1-35.90 КЖ2 Фрагмент1. Фундаменты ФОМ3,ФОМ5,ФОМ6,ФОМ9,ФОМ11,ФОМ12,ФОМ13 ТП810-1-35.90 КЖ2 Фундаменты ФОМ10,ФОМ15 ТП810-1-35.90 КЖ2 Подпольные каналы. Узел 7 ТП810-1-35.90 КЖ2 Приямок ПРм1 ТП810-1-35.90 КЖ2 Приямки ПРм2,ПРм3 ТП810-1-35.90 КЖ2 Схема расположения колонн, ригелей и диафрагм жесткости ТП810-1-35.90 КЖ2 Схема расположения элементов покрытия в осях 24-17. Сечения 1-1...3-3 ТП810-1-35.90 КЖ2 Схема расположения элементов покрытия в осях 33-24. Крепление стакана к плите покрытия ТП810-1-35.90 КЖ2 Сечение 4-4, фундамент ФОМ1 ТП810-1-35.90 КЖ2 Схемы расположения панелей стен по осям АА,ЕЕ ТП810-1-35.90 КЖ2 Схемы расположения панелей стен по осям 17,33 |
| Разработан: | Институт Гипронисельпром Минсельхозпрода СССР |
| Утверждён: | 21.09.1990 Главное научно-проектное управление по строительству Госкомиссии Совмина СССР по продовольствию и закупкам (11) |

























































