Скачать Типовой проект 810-1-35.90 Альбом 3. Часть 1. Отопление и вентиляция. Теплица. Сеть оросительная. ГазоснабжениеДата актуализации: 01.01.2021
|
| Обозначение: | Типовой проект 810-1-35.90 |
| Обозначение англ: | 810-1-35.90 |
| Статус: | не определен законодательством |
| Название рус.: | Альбом 3. Часть 1. Отопление и вентиляция. Теплица. Сеть оросительная. Газоснабжение |
| Дата добавления в базу: | 01.09.2013 |
| Дата актуализации: | 01.01.2021 |
| Дата введения: | 25.09.1990 |
| Дата окончания срока действия: | 30.06.2003 |
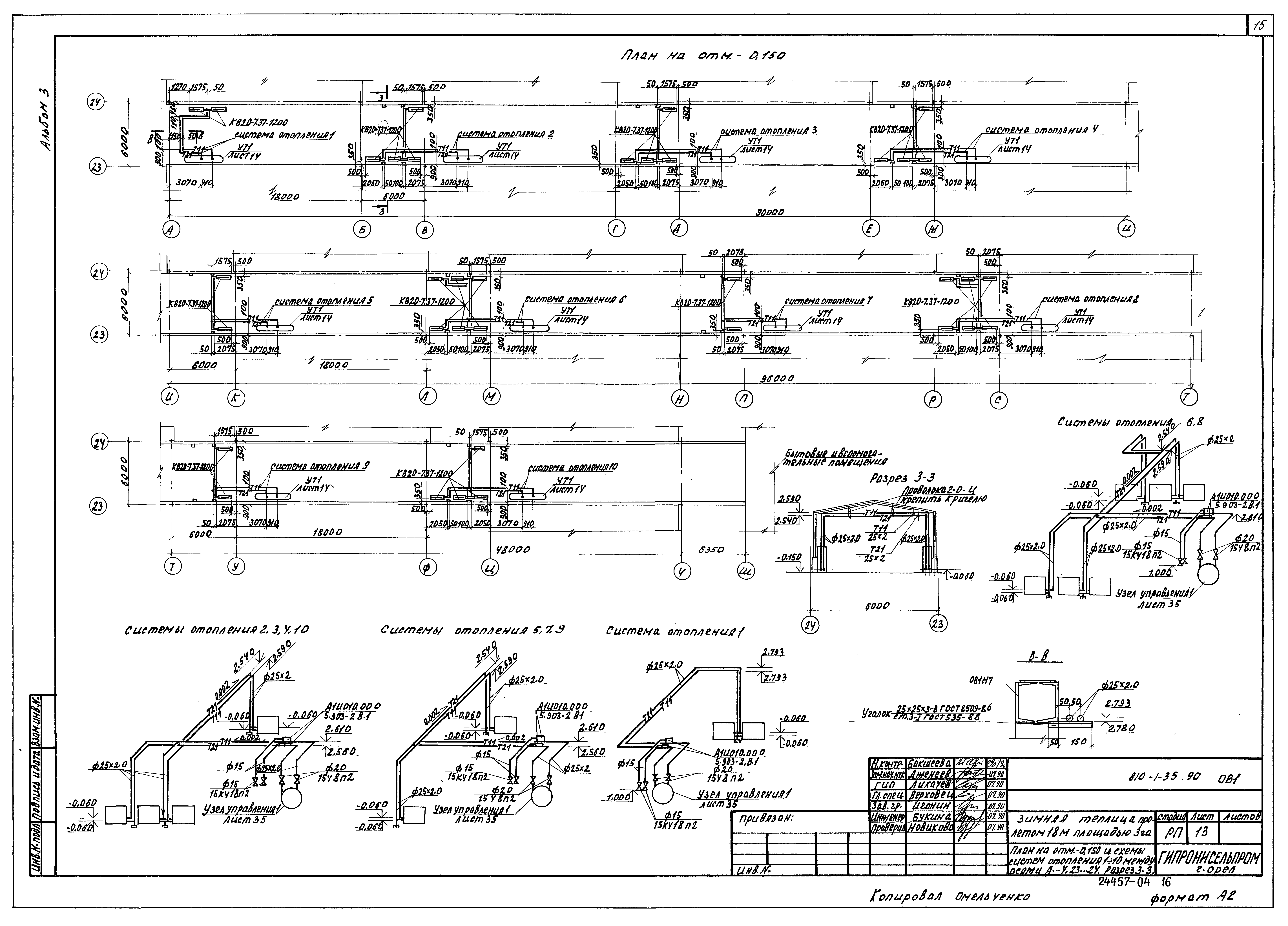
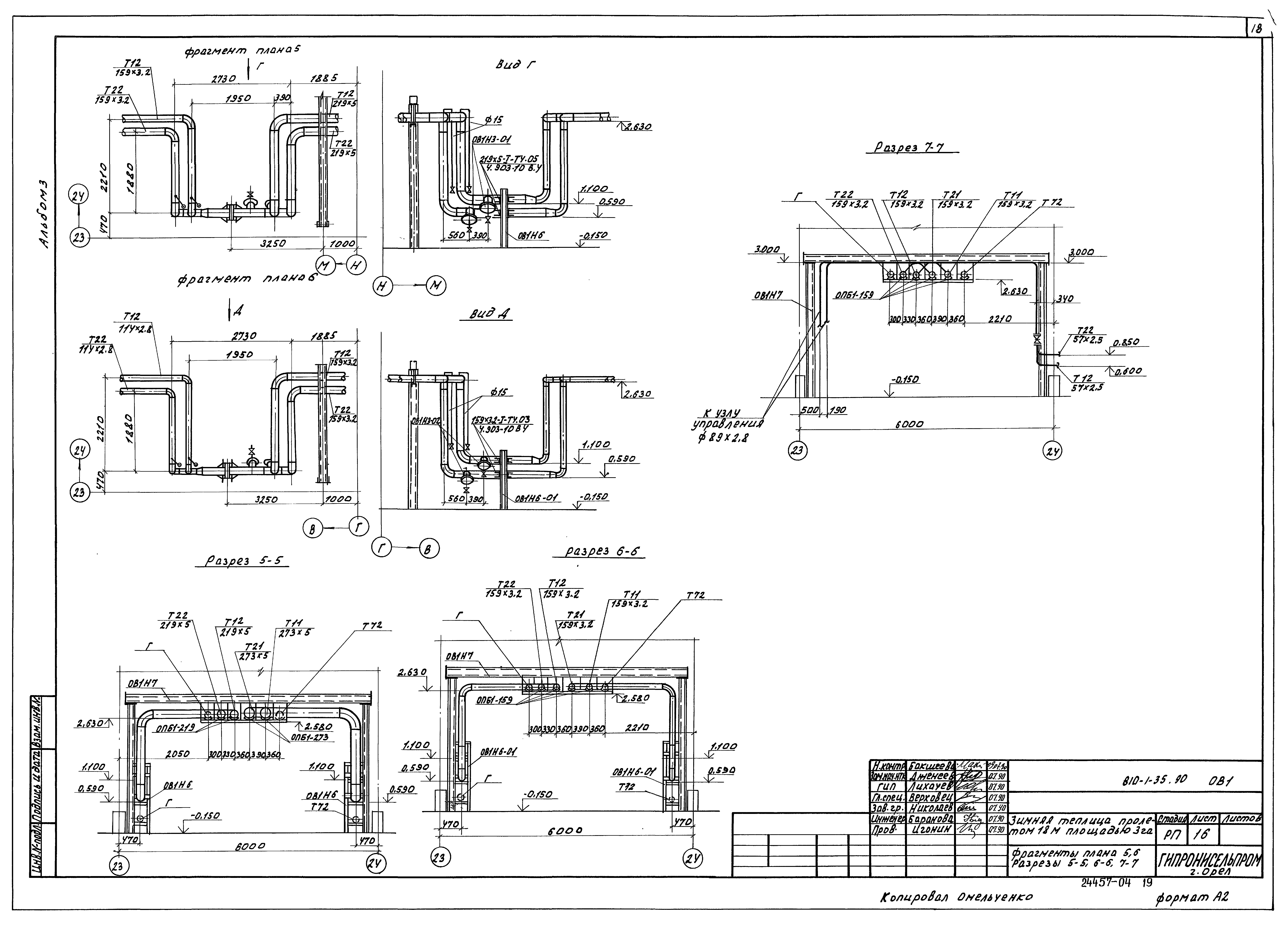
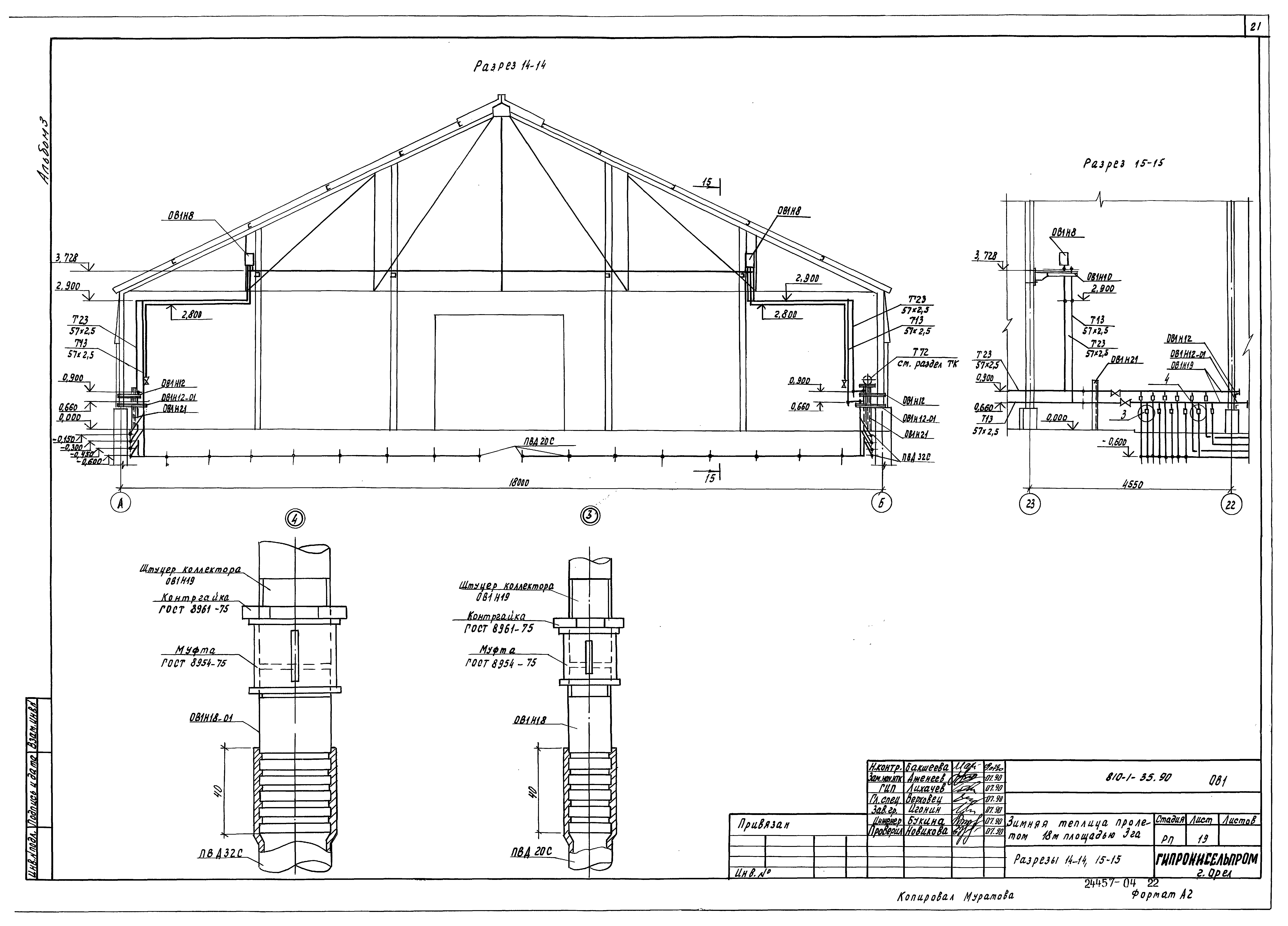
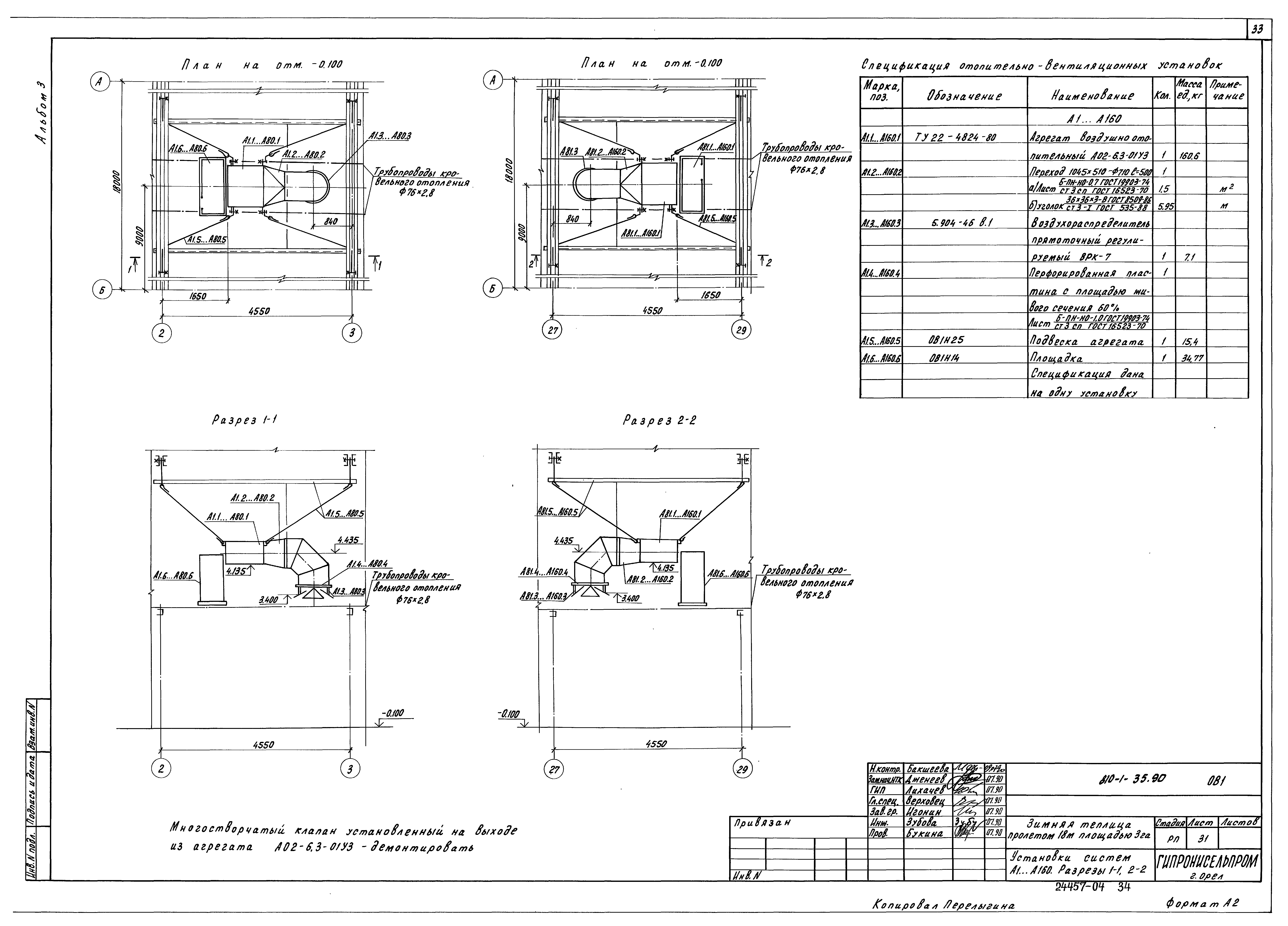
| Оглавление: | ТП810-1-35.90 Содержание альбома №3 ТП810-1-35.90 ОВ1 Отопление и вентиляция ОВ1 ТП810-1-35.90 ОВ1 Общие данные (начало) ТП810-1-35.90 ОВ1 Общие данные (продолжение) ТП810-1-35.90 ОВ1 Общие данные (окончание) ТП810-1-35.90 ОВ1 План на отм. -0.100 систем воздушного, кровельного и бокового, торцевого отопления отделений теплицы между осями А...4 и 1...10 ТП810-1-35.90 ОВ1 План на отм. -0.100 систем воздушного, кровельного и бокового, торцевого отопления отделений теплицы между осями А...4, 10...23 ТП810-1-35.90 ОВ1 План на отм. -0.100 систем воздушного, кровельного и бокового, торцевого отопления отделений теплицы между осями А...4, 24...34 ТП810-1-35.90 ОВ1 План на отм. -0.100 систем воздушного, кровельного и бокового, торцевого отопления отделений теплицы между осями А...4, 38...47 ТП810-1-35.90 ОВ1 План на отм. -0.100 системы надпочвенного отопления отделений теплицы между осями А...4,1...23 ТП810-1-35.90 ОВ1 План на отм. -0.100 системы надпочвенного отопления отделений теплицы между осями А...4,24...47 ТП810-1-35.90 ОВ1 План на отм. -0.100 системы подпочвенного обогрева между осями А...Ф,1...47 на отм.-0.600 ТП810-1-35.90 ОВ1 План на отм. -0.100 системы подпочвенного обогрева между осями Ц...4,1...47 на отм.-0.600 ТП810-1-35.90 ОВ1 План системы подсубстратного обогрева отделений между осями А...4,1...47 на отм. -0.170 ТП810-1-35.90 ОВ1 План на отм. -0.150 и схемы систем отопления 1...10 между осями А...4,23...24. Разрез 3-3 ТП810-1-35.90 ОВ1 План на отм. -0.150. Магистральные трубопроводы между осями А...4,23...24 ТП810-1-35.90 ОВ1 Фрагмент плана 1,2,3,4. Разрез 8-8 ТП810-1-35.90 ОВ1 Фрагмент плана 5,6. Разрезы 5-5,6-6,7-7 ТП810-1-35.90 ОВ1 Разрезы 9-9...11-11 ТП810-1-35.90 ОВ1 Разрезы 12-12,13-13 ТП810-1-35.90 ОВ1 Разрезы 14-14,15-15 ТП810-1-35.90 ОВ1 Разрезы 16-16,17-17 ТП810-1-35.90 ОВ1 Схема системы воздушного отопления отделений теплицы между осями А...4,1...23 ТП810-1-35.90 ОВ1 Схема системы воздушного отопления отделений теплицы между осями А...4,14...47 ТП810-1-35.90 ОВ1 Схемы систем кровельного отопления теплицы ТП810-1-35.90 ОВ1 Схемы систем бокового и торцевого отопления теплицы ТП810-1-35.90 ОВ1 Схема систем надпочвенного отопления отделений теплицы между осями А...4,1...23 ТП810-1-35.90 ОВ1 Схема систем надпочвенного отопления отделений теплицы между осями А...4,24...47 ТП810-1-35.90 ОВ1 Схемы систем подпочвенного обогрева отделений теплицы между осями А...Ф,1...47 ТП810-1-35.90 ОВ1 Схемы систем подпочвенного обогрева отделений теплицы между осями Ц...4,1...47 ТП810-1-35.90 ОВ1 Схемы систем подсубстратного обогрева отделений между осями А...4,1...47 ТП810-1-35.90 ОВ1 Схема магистральных трубопроводов между осями А...4,23...24 ТП810-1-35.90 ОВ1 Установка систем А1...А160. Разрезы 1-1,2-2 ТП810-1-35.90 ОВ1 Узел управления №1 (вариант с насосом К50-32-125). План. Разрез 18-18 ТП810-1-35.90 ОВ1 Узел управления №1 (вариант с насосом КМЛ65-200/4). План. Разрез 18-18 ТП810-1-35.90 ОВ1 Спецификация узла управления №1 (начало) ТП810-1-35.90 ОВ1 Схема узла управления №1...20. Спецификация узла управления №1 (продолжение) ТП810-1-35.90 ОВ1Н Чертежи общих видов нетиповых конструкций системы отопления и вентиляции ОВ1Н ТП810-1-35.90 ОРС Оросительная система ОРС ТП810-1-35.90 ОРС Общие данные ТП810-1-35.90 ОРС План теплиц и соединительного коридора на отм. 0.000 с сетями В1.01.02.03.04.05 ТП810-1-35.90 ОРС Фрагмент 1 с сетями 04 ТП810-1-35.90 ОРС Разрезы 1-1,2-2 ТП810-1-35.90 ОРС Схема системы 04 ТП810-1-35.90 ОРС Фрагмент 1 с сетями 02 ТП810-1-35.90 ОРС Разрезы 3-3,4-4 ТП810-1-35.90 ОРС Схема системы 02 ТП810-1-35.90 ОРС Фрагмент 2 с сетями 01 ТП810-1-35.90 ОРС Разрезы 5-5,6-6 ТП810-1-35.90 ОРС Схема системы 01 ТП810-1-35.90 ОРС Фрагмент 1 с сетями К3,ДР ТП810-1-35.90 ОРС Схема систем К3,ДР. Схема размещения дренажных труб. Соединение дренажных труб. Узел 1. Разрез 7-7 ТП810-1-35.90 ОРС Фрагмент 3 с сетями 01,02,03,04,05,В1,ДР,К3 ТП810-1-35.90 ОРС Схема систем К3,ДР. Колодцы 1...10,11. Таблица колодцев ТП810-1-35.90 ОРС Схема систем 01,02,03,04,05,В1. Разрез 8-8. Узел 2 ТП810-1-35.90 ГС Газоснабжение ТП810-1-35.90 ГС Общие данные ТП810-1-35.90 ГС План на отм. 0.000. Разрезы 1-1;2-2. Узлы 1,2. Схема системы газоснабжения |
| Разработан: | Институт Гипронисельпром Минсельхозпрода СССР |
| Утверждён: | 21.09.1990 Главное научно-проектное управление по строительству Госкомиссии Совмина СССР по продовольствию и закупкам (11) |
































































