Скачать Типовой проект 810-1-35.90 Альбом 3. Часть 2. Электрическое освещение. Теплицы. Технологические коммуникации. Силовое оборудование. Теплица. ЭлектродосвечиваниеДата актуализации: 01.01.2021
|
| Обозначение: | Типовой проект 810-1-35.90 |
| Обозначение англ: | 810-1-35.90 |
| Статус: | не определен законодательством |
| Название рус.: | Альбом 3. Часть 2. Электрическое освещение. Теплицы. Технологические коммуникации. Силовое оборудование. Теплица. Электродосвечивание |
| Дата добавления в базу: | 01.09.2013 |
| Дата актуализации: | 01.01.2021 |
| Дата введения: | 25.09.1990 |
| Дата окончания срока действия: | 30.06.2003 |
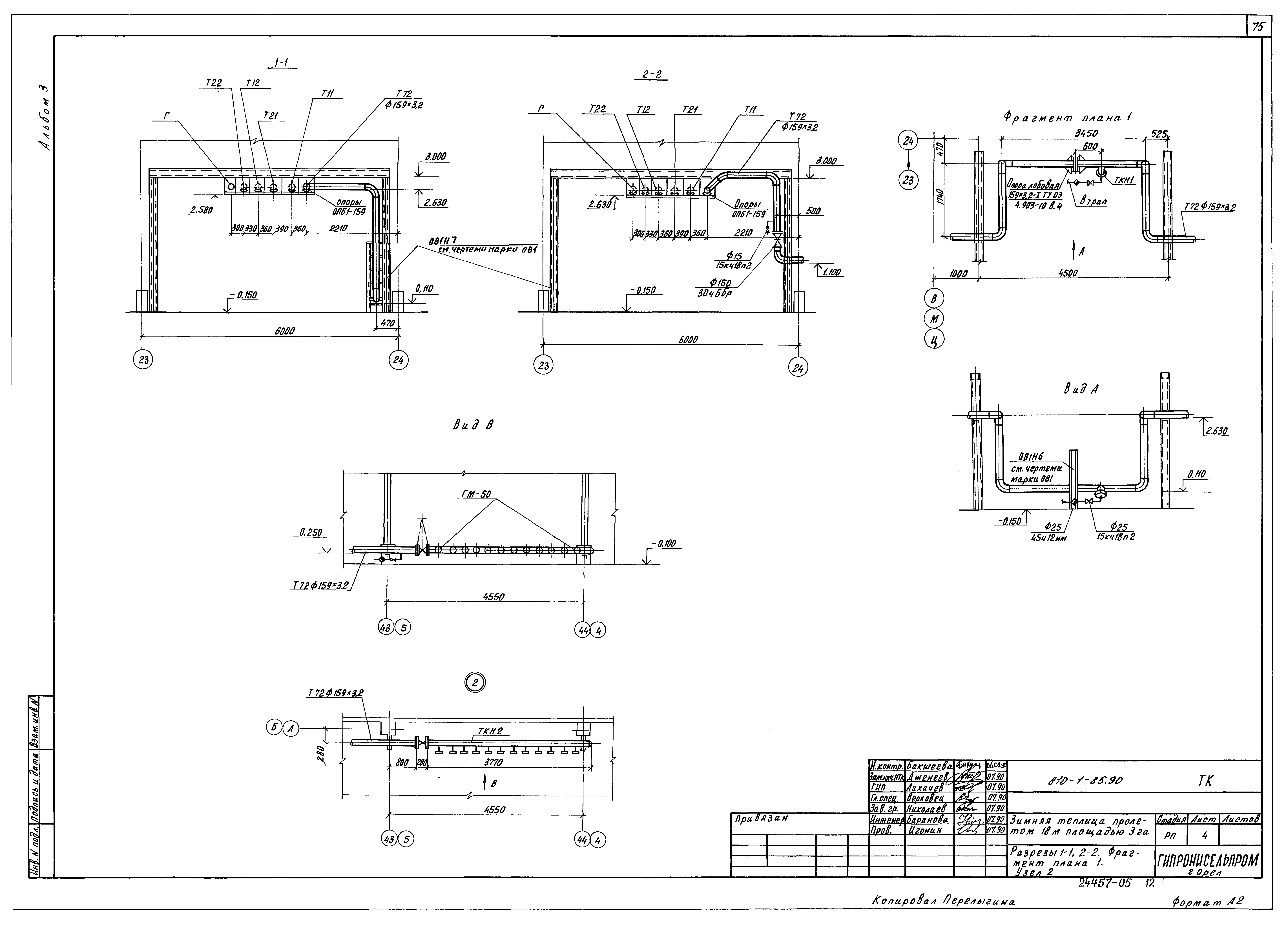
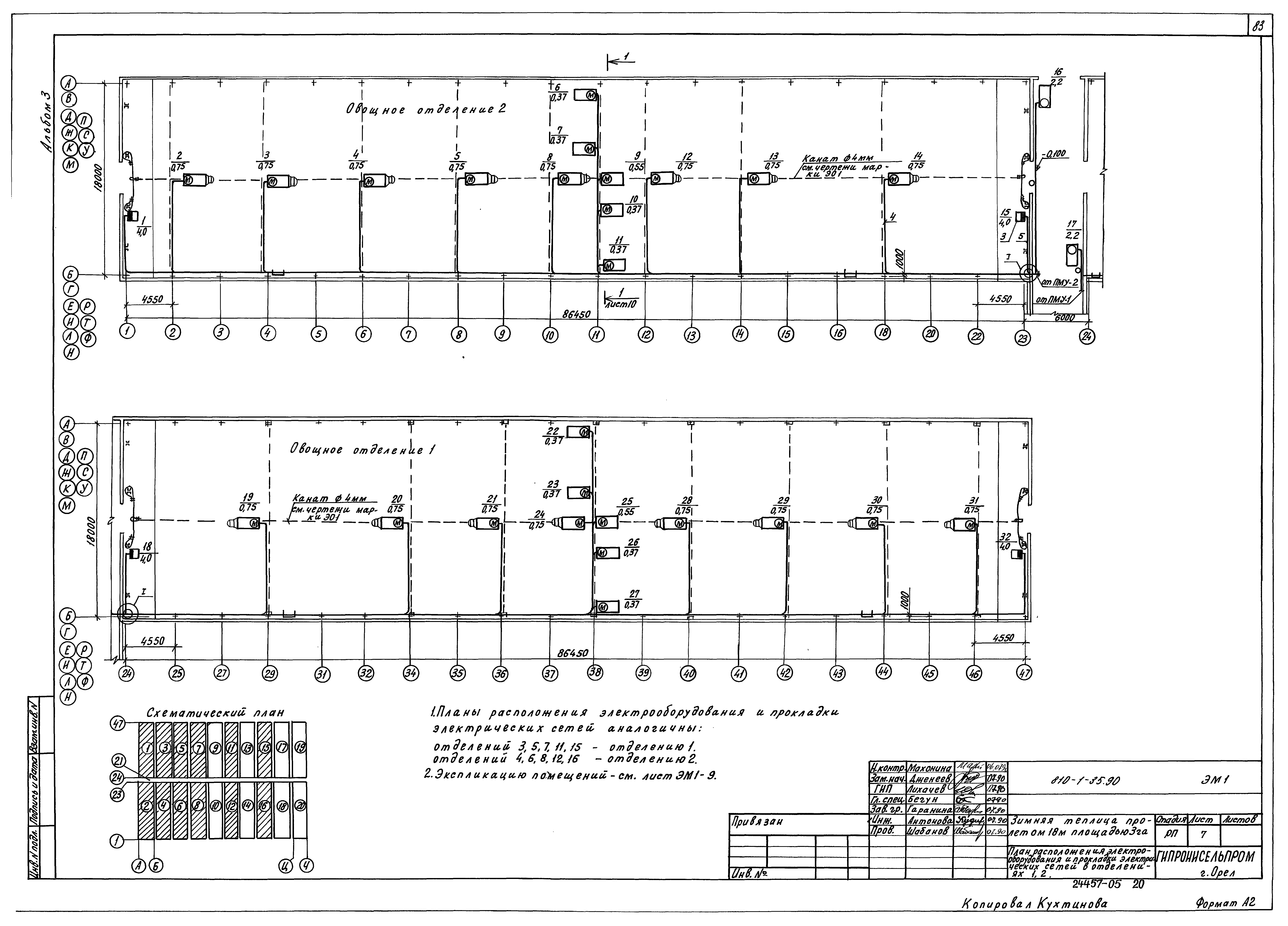
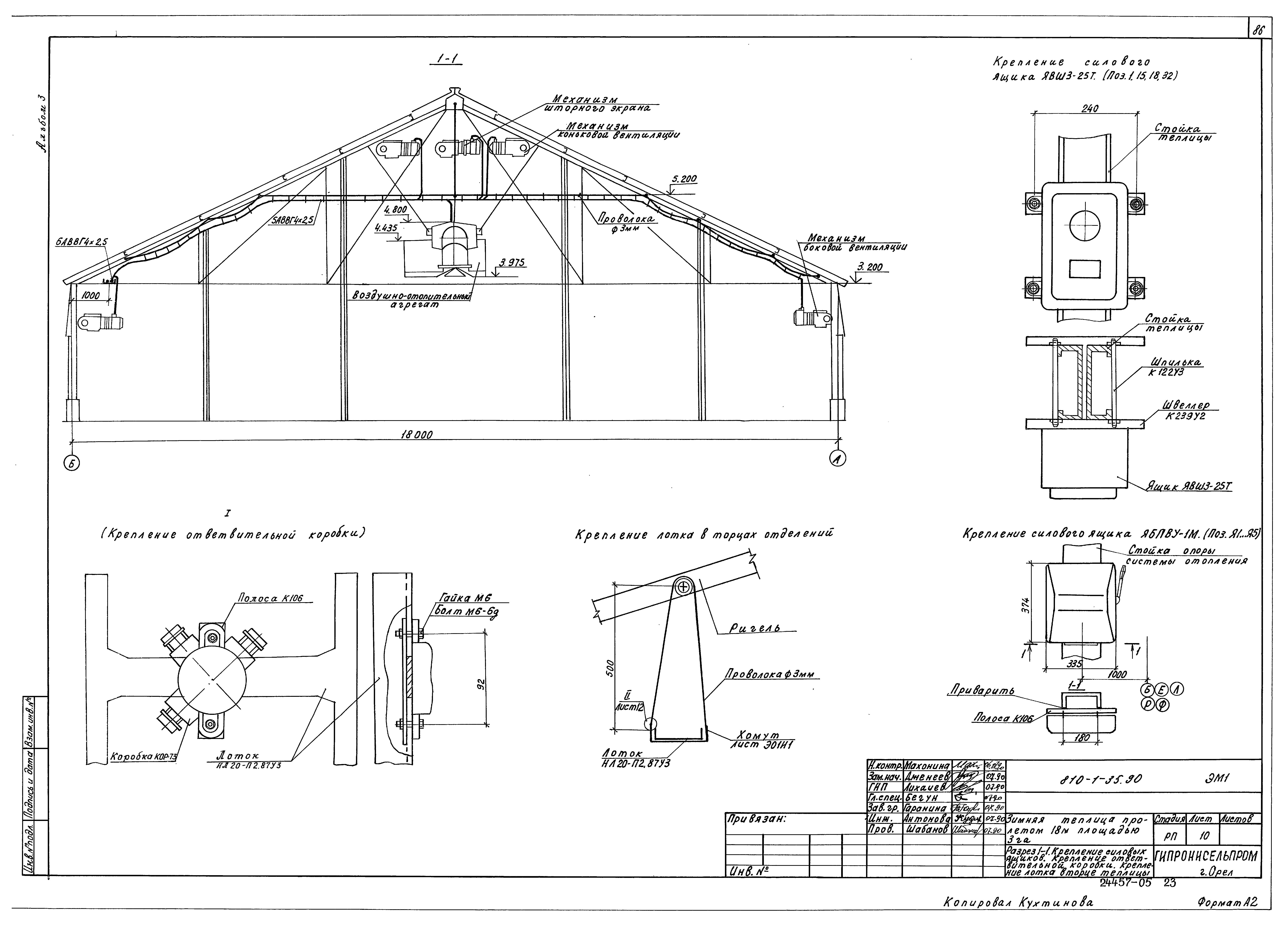
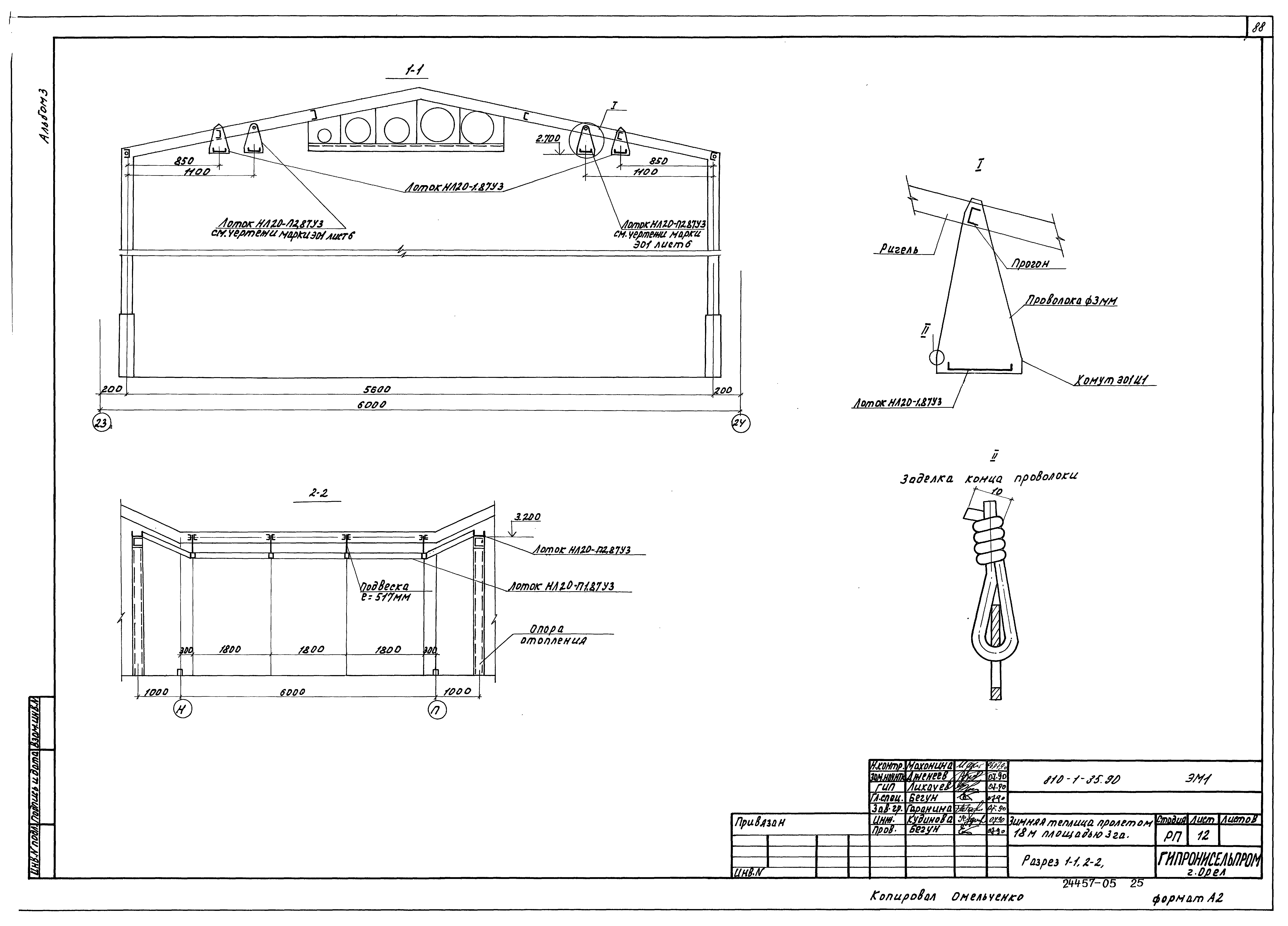
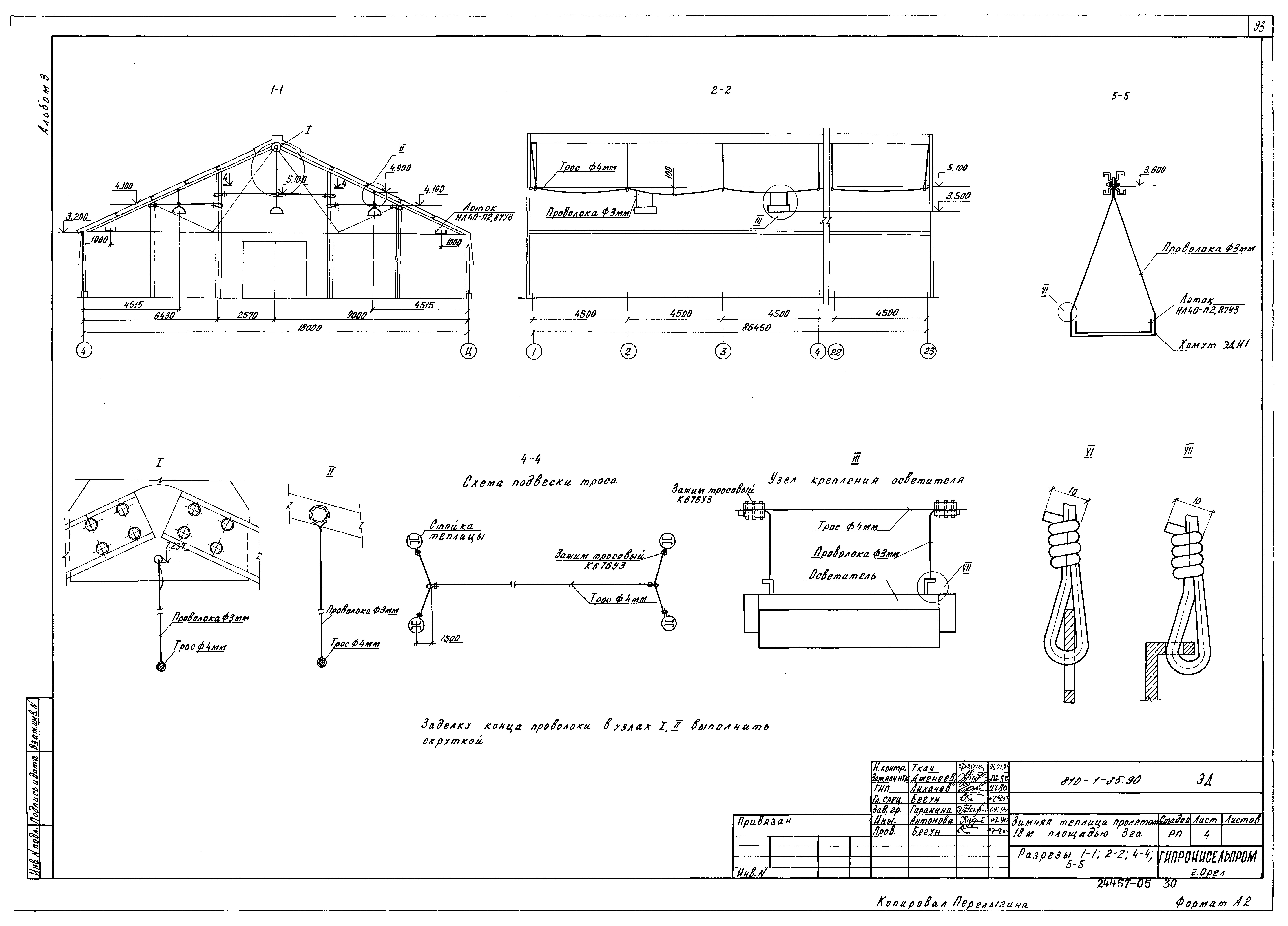
| Оглавление: | ТП810-1-35.90 ЭО1 Электрическое освещение ЭО1 ТП810-1-35.90 ЭО1 Общие данные. Принципиальная схема питающей сети ТП810-1-35.90 ЭО1 План расположения электрического оборудования и прокладки электрических сетей в теплице (начало) ТП810-1-35.90 ЭО1 План расположения электрического оборудования и прокладки электрических сетей в теплице (окончание) ТП810-1-35.90 ЭО1 План расположения электрического оборудования и прокладки электрических сетей в соединительном коридоре ТП810-1-35.90 ЭО1 Разрез 1-1. Крепление лотка НЛ20-П2.87У3. Крепление светильника ПВЛМ2х40 в коридоре тип 1. Крепление ответвительной коробки КОР-73 ТП810-1-35.90 ЭО1 Разрез 2-2. Крепление светильника ПВЛМ2х40 в коридоре тип 2. Крепление осветительного щитка. Крепление выключателя ТП810-1-35.90 ТК Общие данные ТП810-1-35.90 ТК План на отм.0.000 магистральных паропроводов ТП810-1-35.90 ТК Схема паропроводов. Узлы 1,3,4. Сечения 3-3,4-4 ТП810-1-35.90 ТК Разрезы 1-1,2-2. Фрагмент плана 1. Узел 2 ТП810-1-35.90 ЭМ1 Силовое электрооборудование ЭМ1 ТП810-1-35.90 ЭМ1 Общие данные ТП810-1-35.90 ЭМ1 Принципиальная схема питающей сети (начало) ТП810-1-35.90 ЭМ1 Принципиальная схема питающей сети (окончание) ТП810-1-35.90 ЭМ1 Принципиальная схема распределительной сети пульта ПМУ-1 ТП810-1-35.90 ЭМ1 Принципиальная схема распределительной сети пульта ПМУ-2 ТП810-1-35.90 ЭМ1 Принципиальная схема распределительной сети пультов ПМУ-20(ПМУ-19) ТП810-1-35.90 ЭМ1 План расположения электрооборудования и прокладки электрических сетей в отделениях 1,2 ТП810-1-35.90 ЭМ1 План расположения электрооборудования и прокладки электрических сетей в отделениях 19,20 ТП810-1-35.90 ЭМ1 План расположения электрооборудования и прокладки электрических сетей в отделениях 1,2 ТП810-1-35.90 ЭМ1 Разрез 1-1. Крепление силовых ящиков. Крепление ответвительной коробки. Крепление лотка в торце теплицы ТП810-1-35.90 ЭМ1 План прокладки лотков ТП810-1-35.90 ЭМ1 Разрез 1-1,2-2 ТП810-1-35.90 ЭД Электродосвечивание ЭД ТП810-1-35.90 ЭД Общие данные ТП810-1-35.90 ЭД Принципиальная схема распределительной сети ТП810-1-35.90 ЭД План расположения электрооборудования и прокладки электрических сетей ТП810-1-35.90 ЭД Разрезы 1-1,2-2;4-4;5-5 ТП810-1-35.90 ЭД Виды А,В. Разрезы 3-3;6-6 |
| Разработан: | Институт Гипронисельпром Минсельхозпрода СССР |
| Утверждён: | 21.09.1990 Главное научно-проектное управление по строительству Госкомиссии Совмина СССР по продовольствию и закупкам (11) |































