Скачать Типовой проект 810-1-35.90 Альбом 4. Отопление и вентиляция. Бытовые и вспомогательные помещения. Теплоснабжение. Холодоснабжение. Внутренние водопровод и канализация. Электрическое освещение. Силовое электрооборудование. Бытовые и вспомогательные помещения. Связь и сигнализацияДата актуализации: 01.01.2021
|
| Обозначение: | Типовой проект 810-1-35.90 |
| Обозначение англ: | 810-1-35.90 |
| Статус: | не определен законодательством |
| Название рус.: | Альбом 4. Отопление и вентиляция. Бытовые и вспомогательные помещения. Теплоснабжение. Холодоснабжение. Внутренние водопровод и канализация. Электрическое освещение. Силовое электрооборудование. Бытовые и вспомогательные помещения. Связь и сигнализация |
| Дата добавления в базу: | 01.09.2013 |
| Дата актуализации: | 01.01.2021 |
| Дата введения: | 25.09.1990 |
| Дата окончания срока действия: | 30.06.2003 |
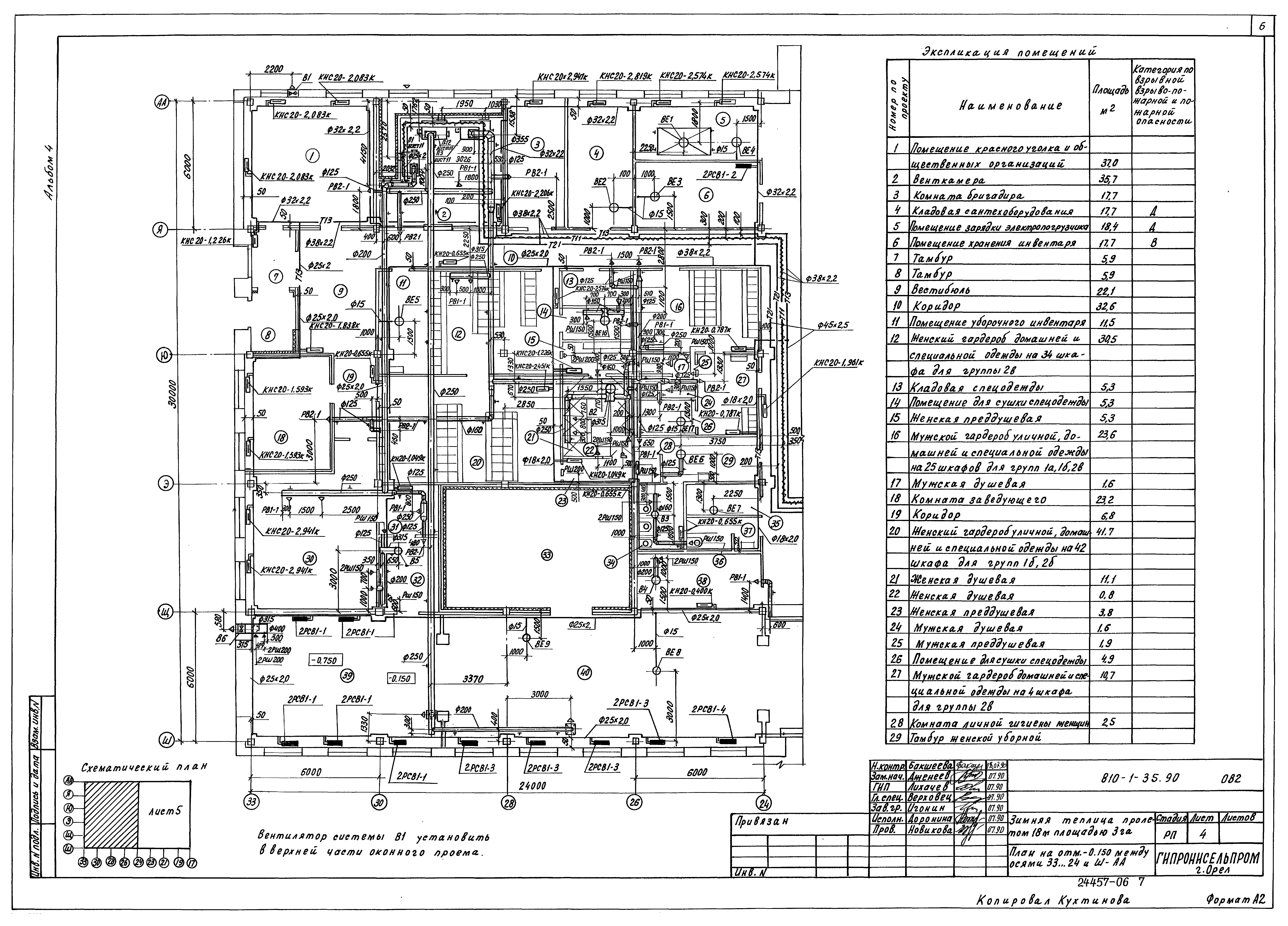
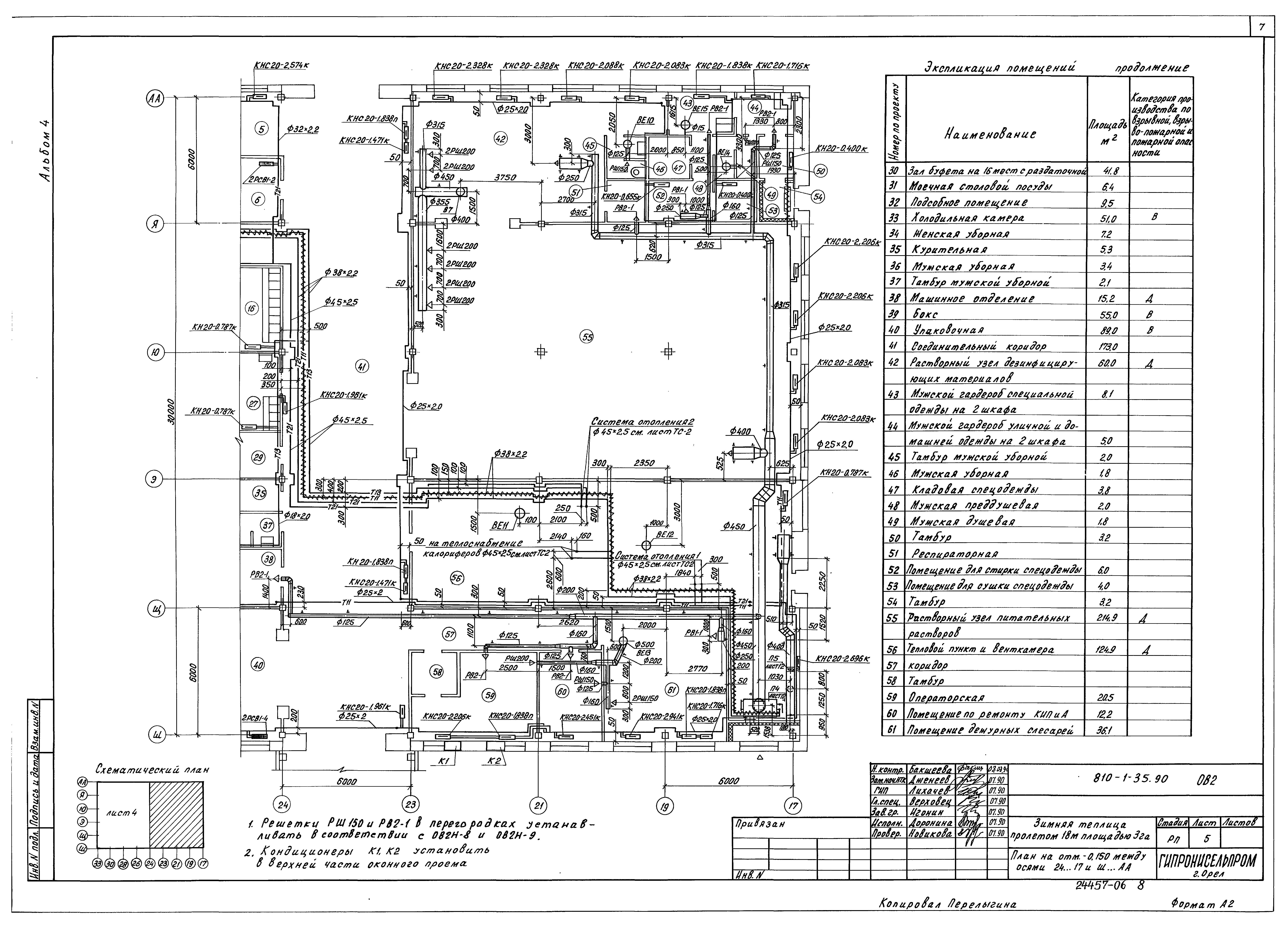
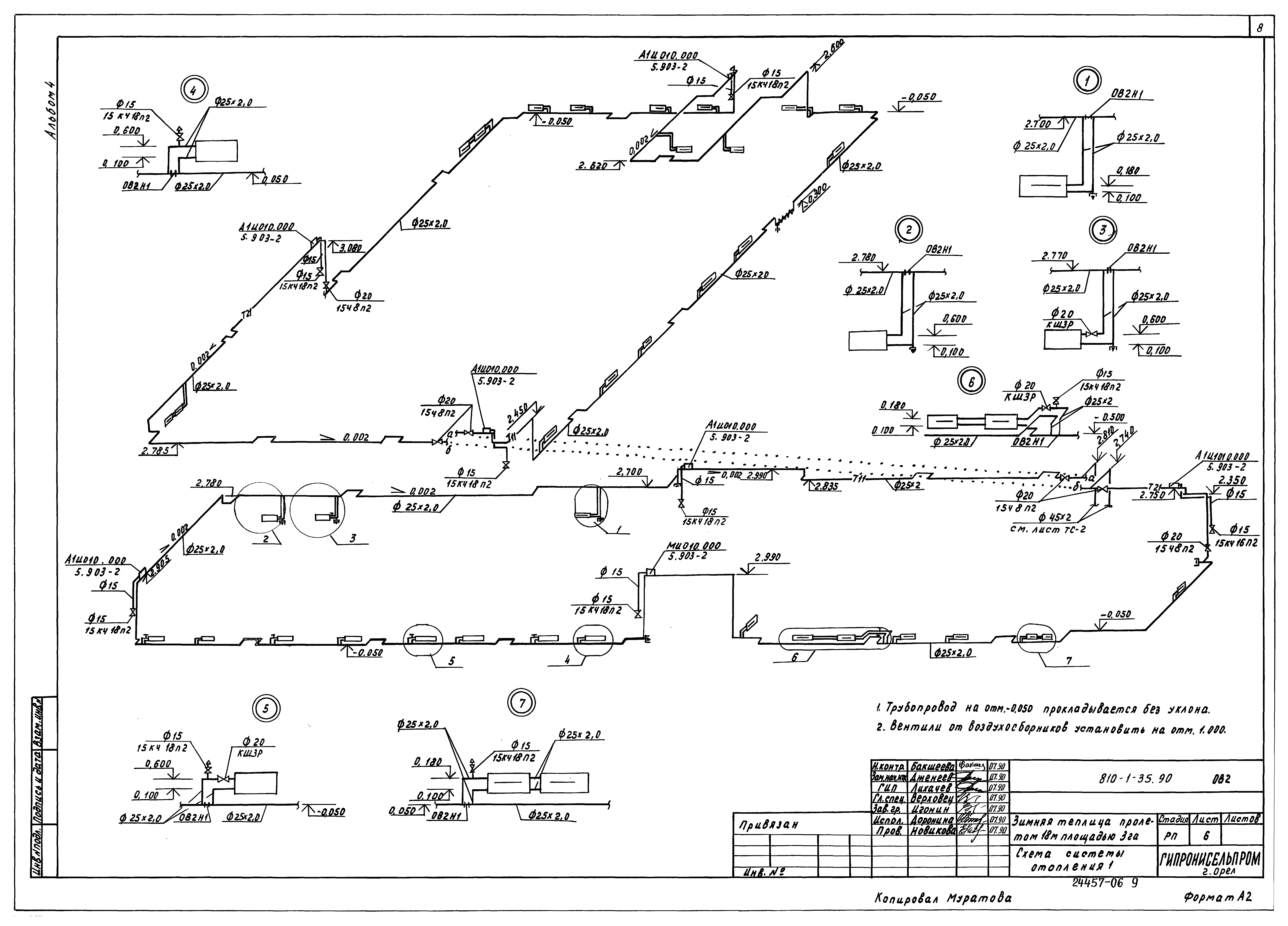
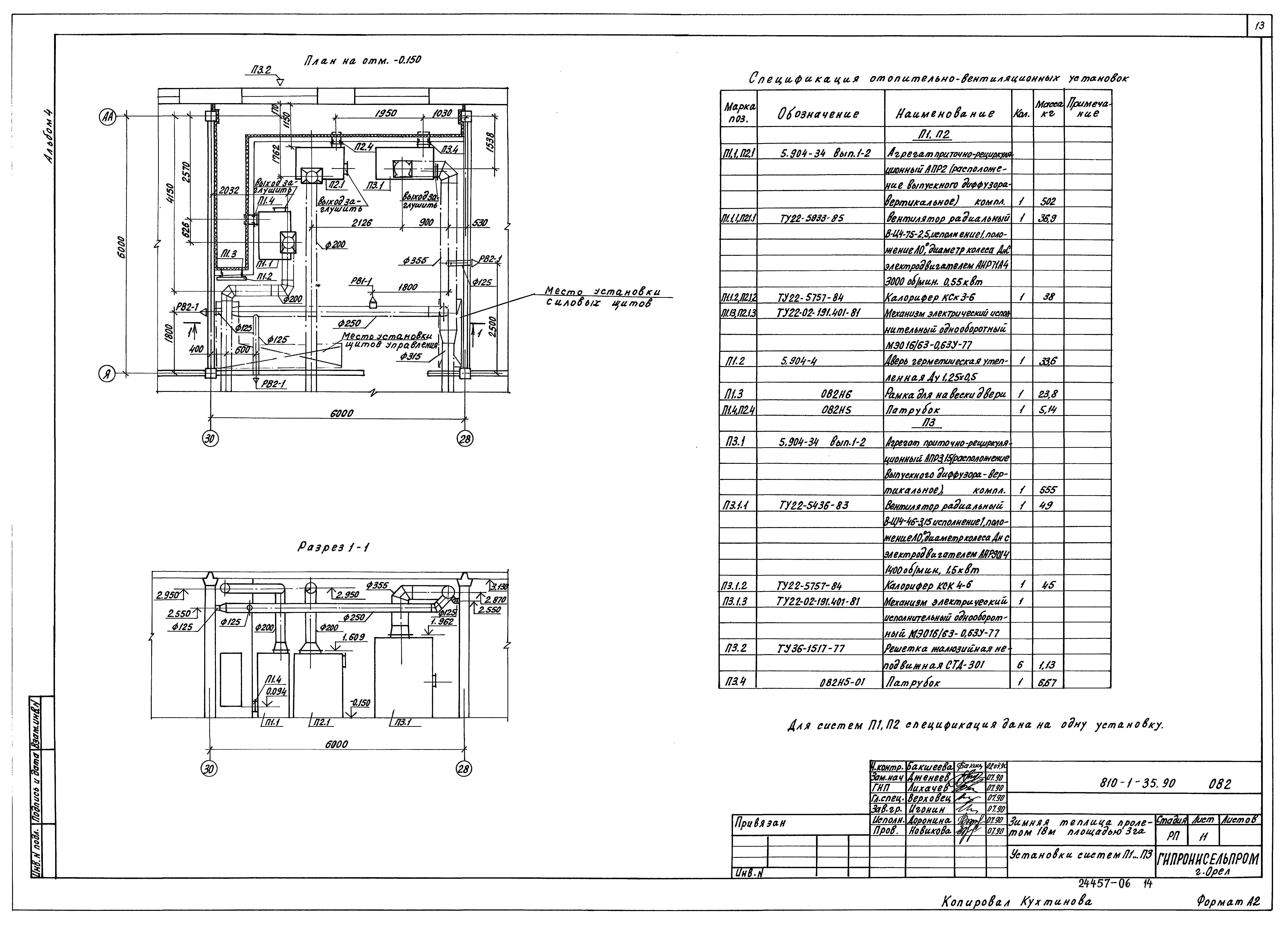
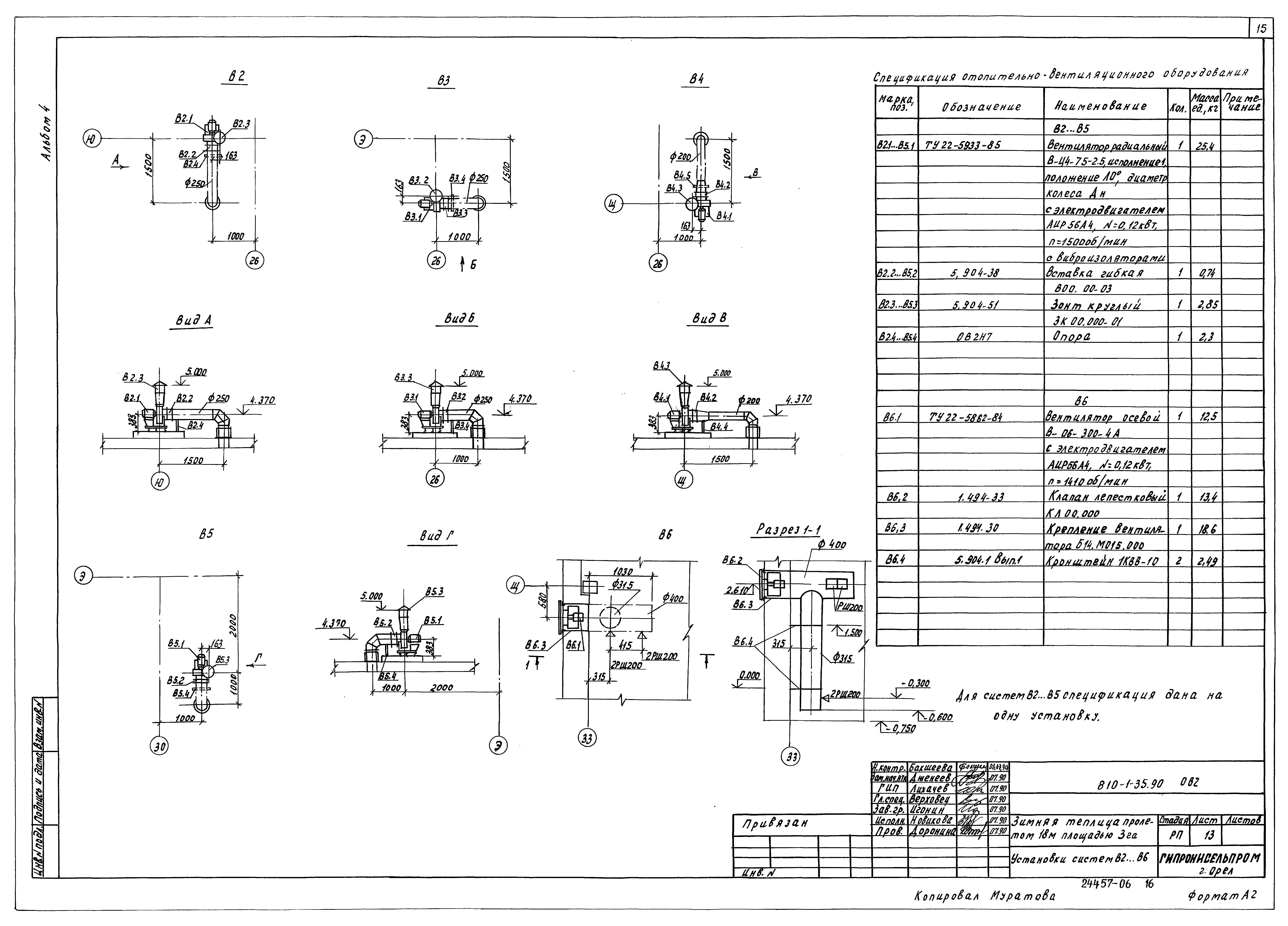
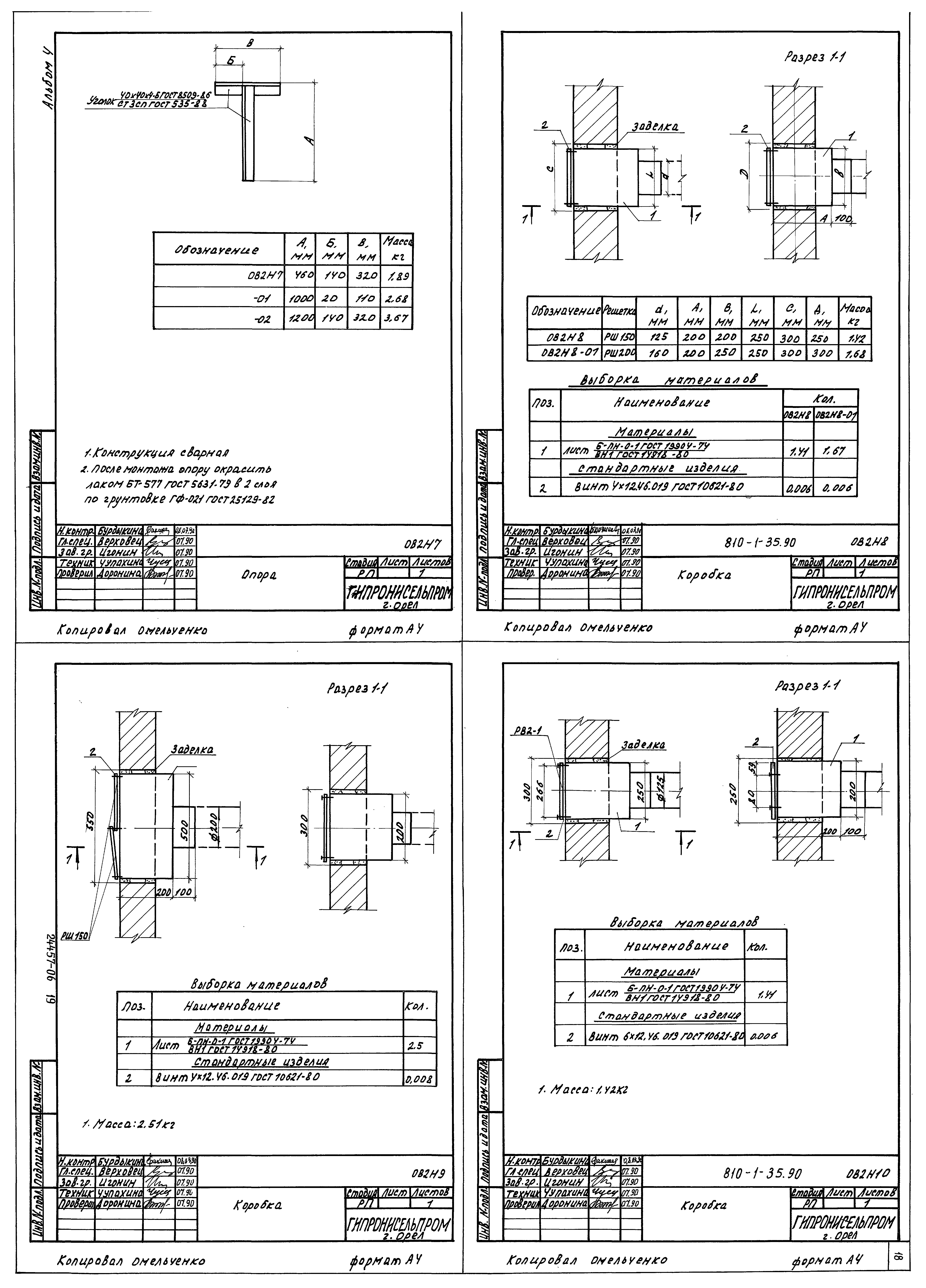
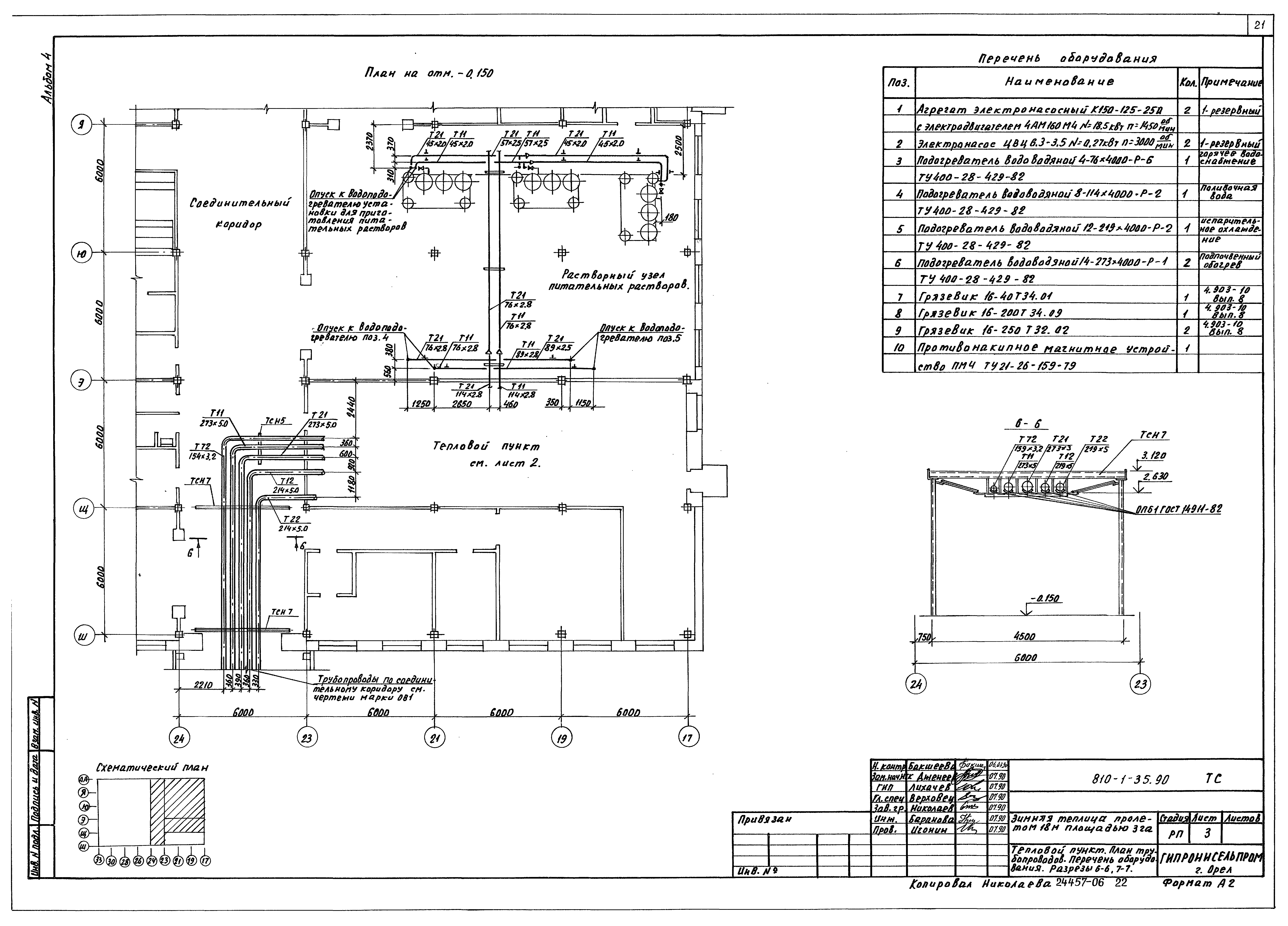
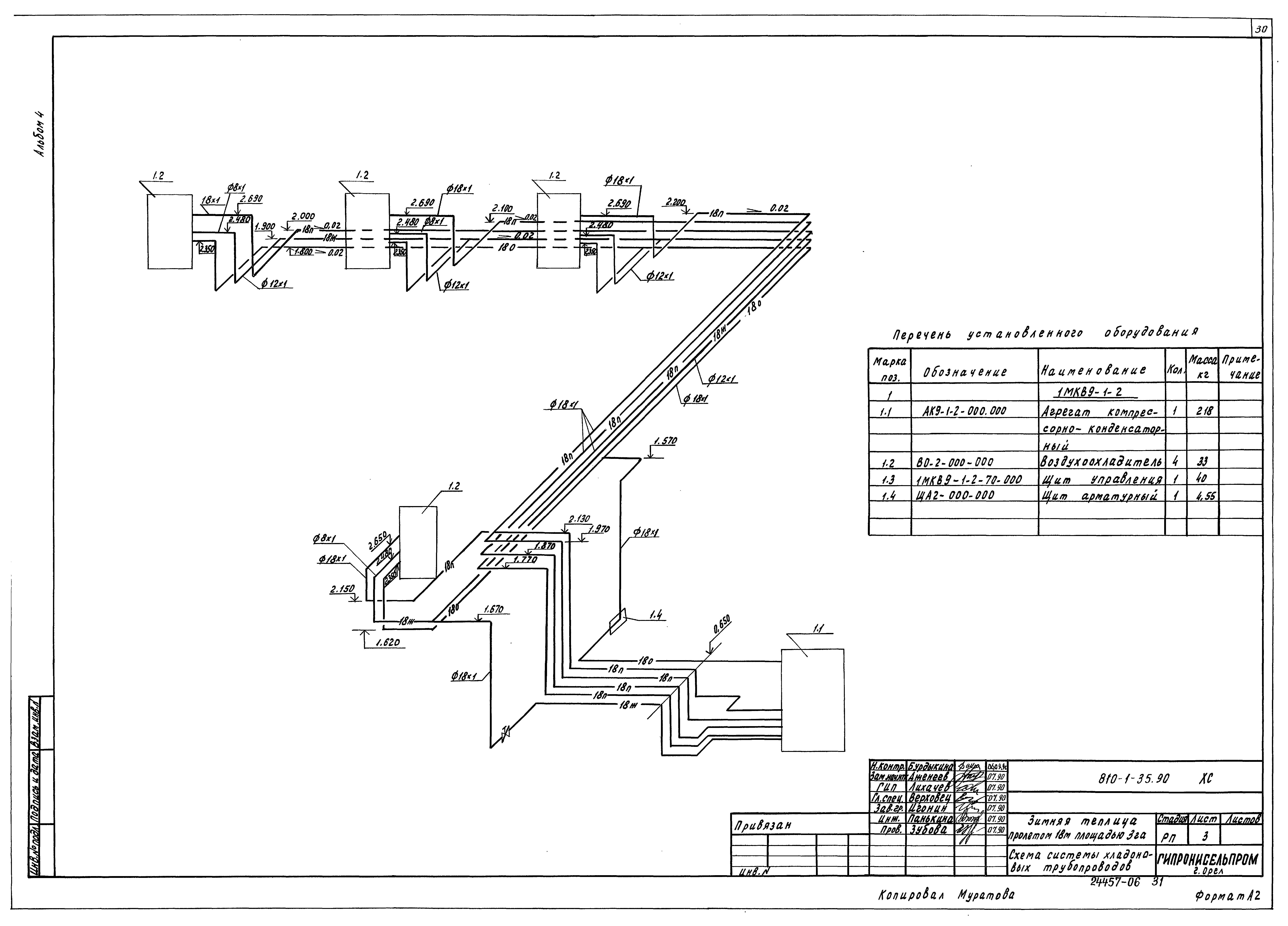
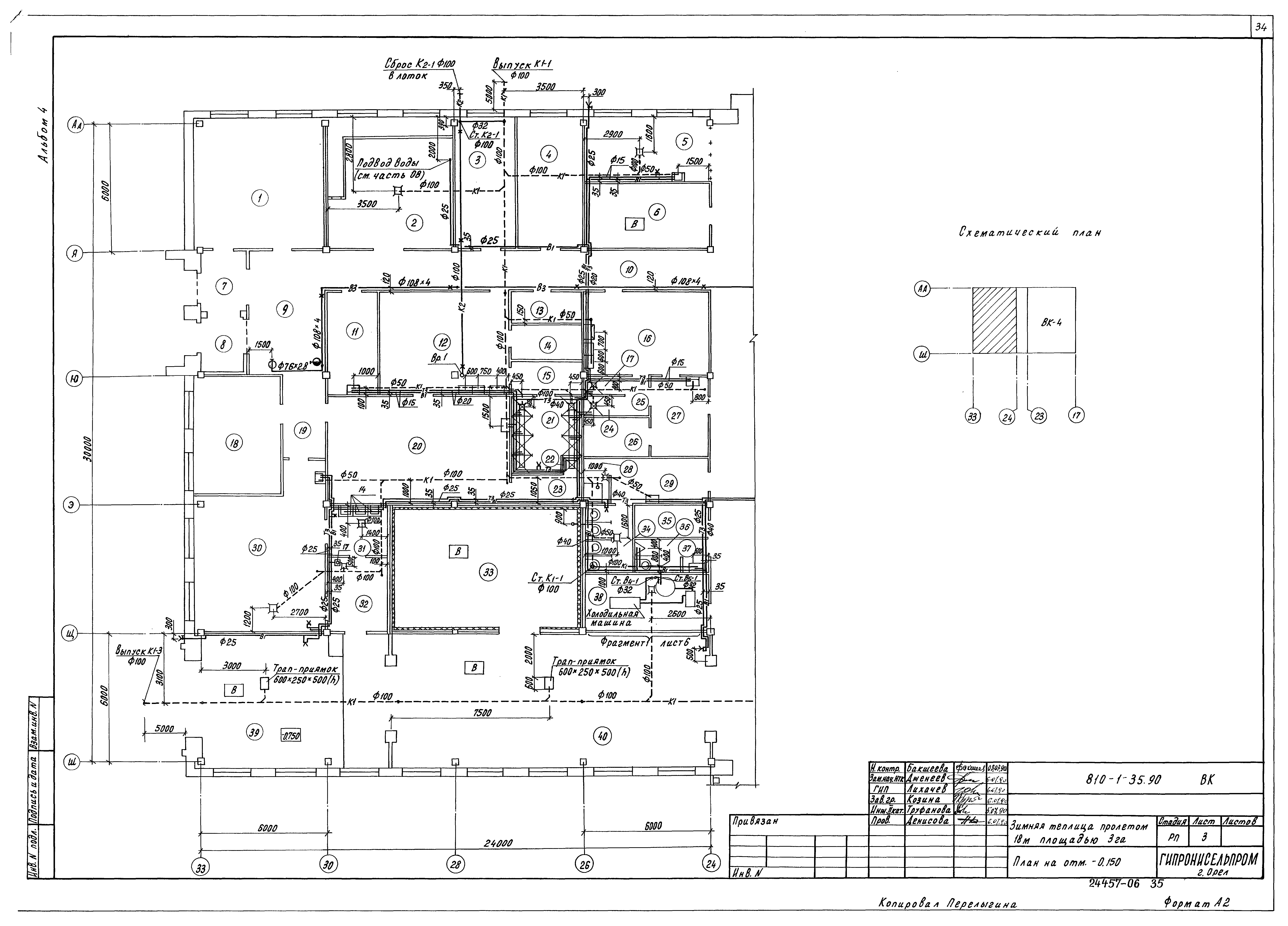
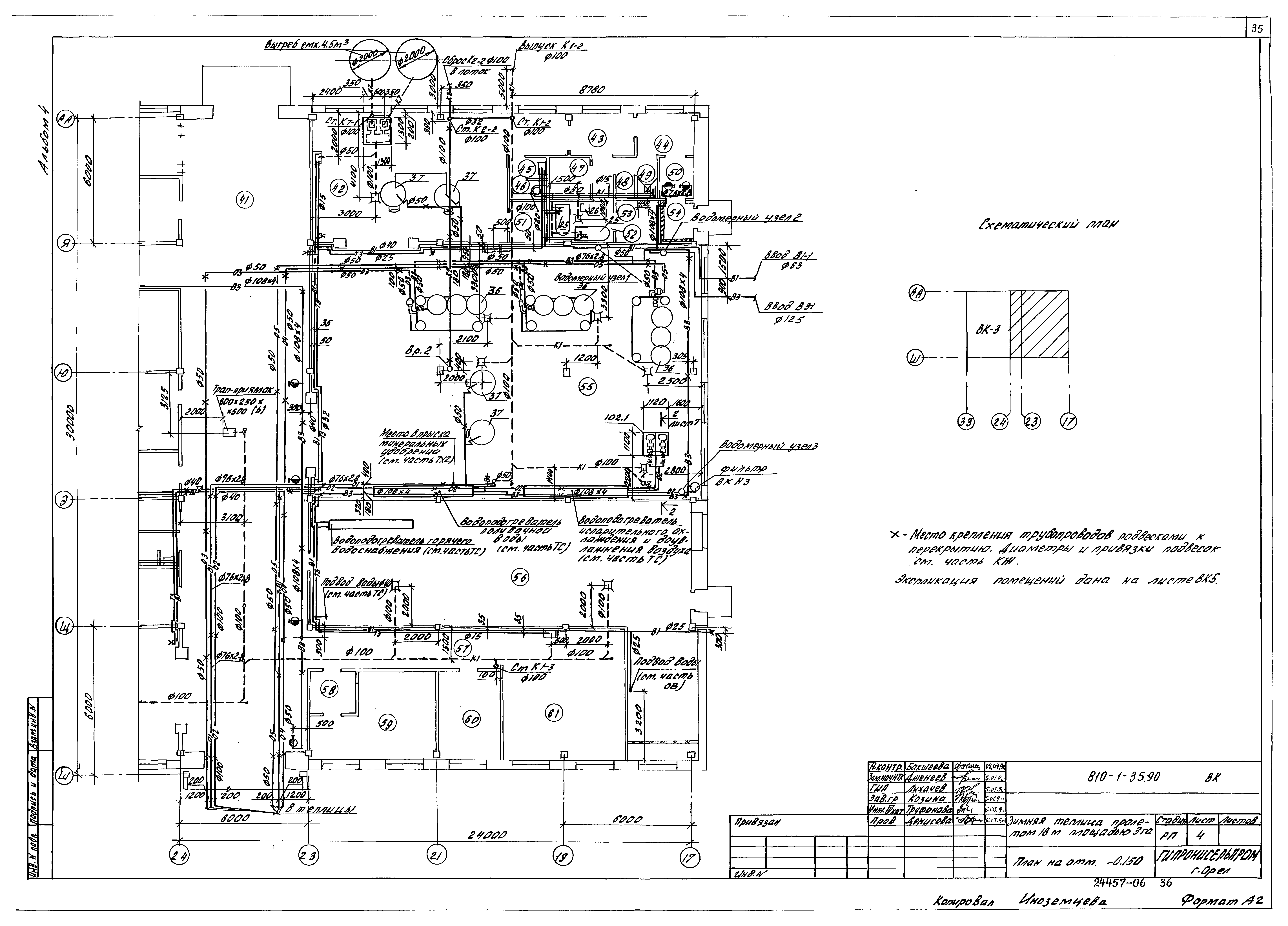
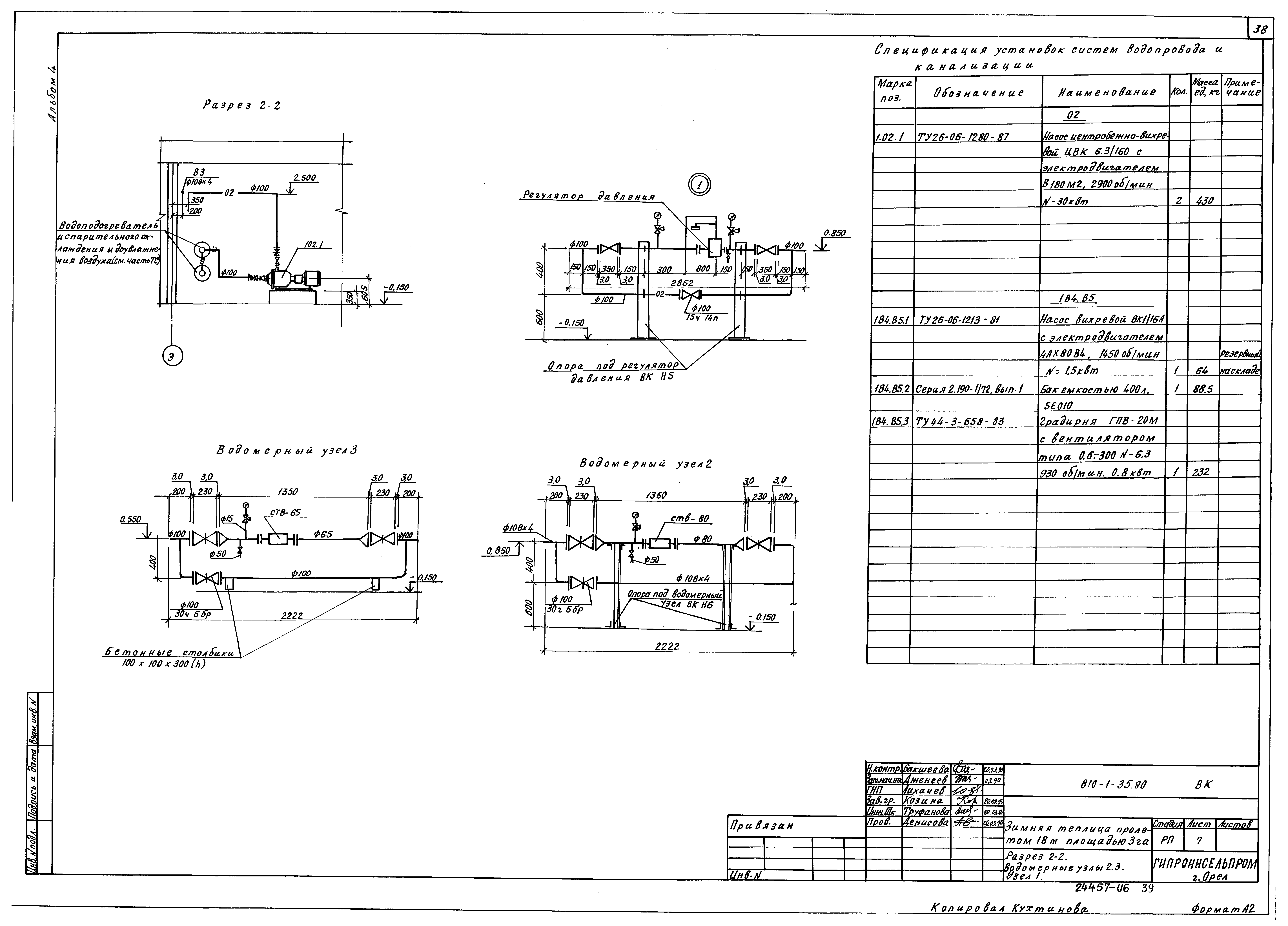
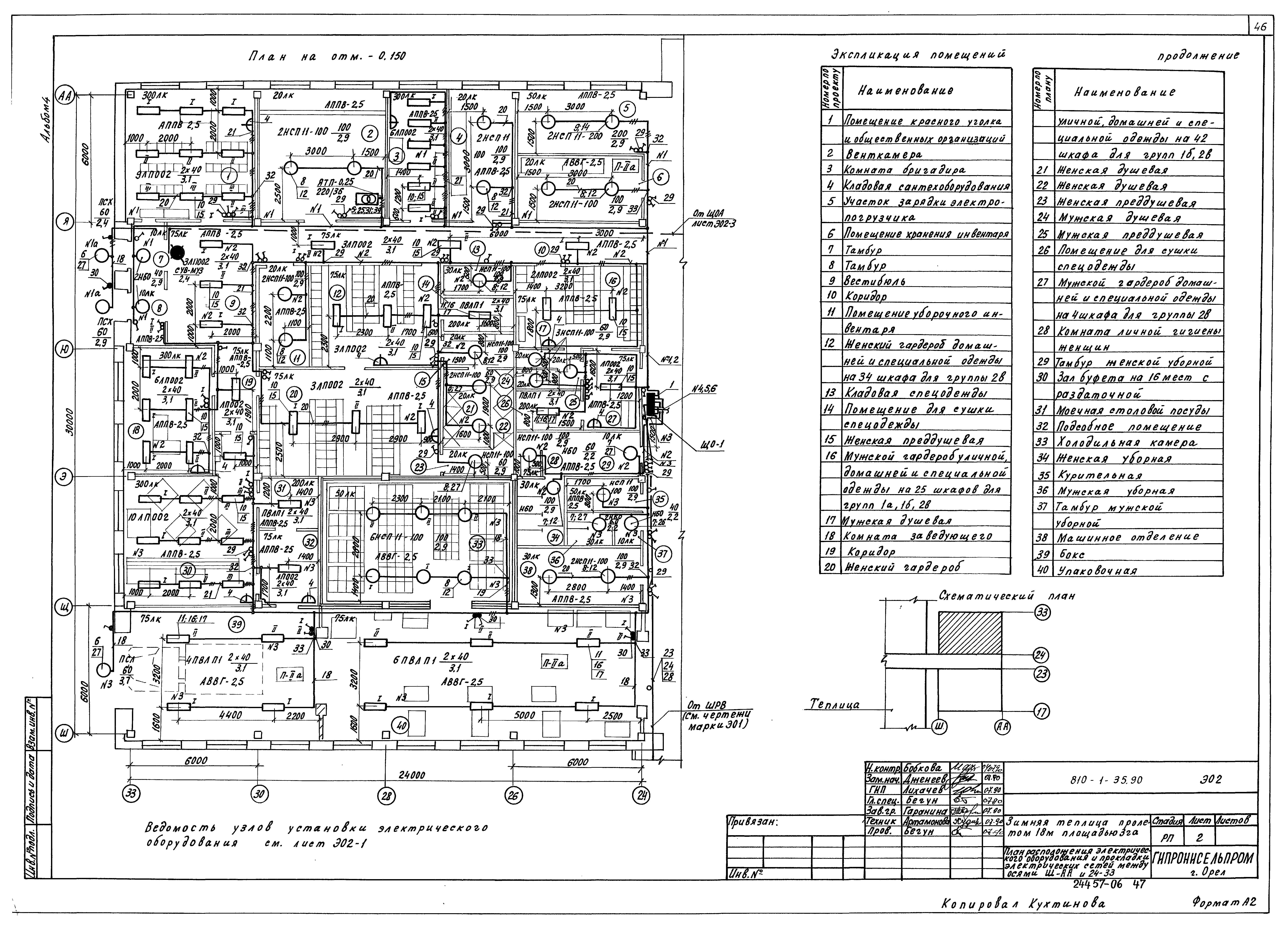
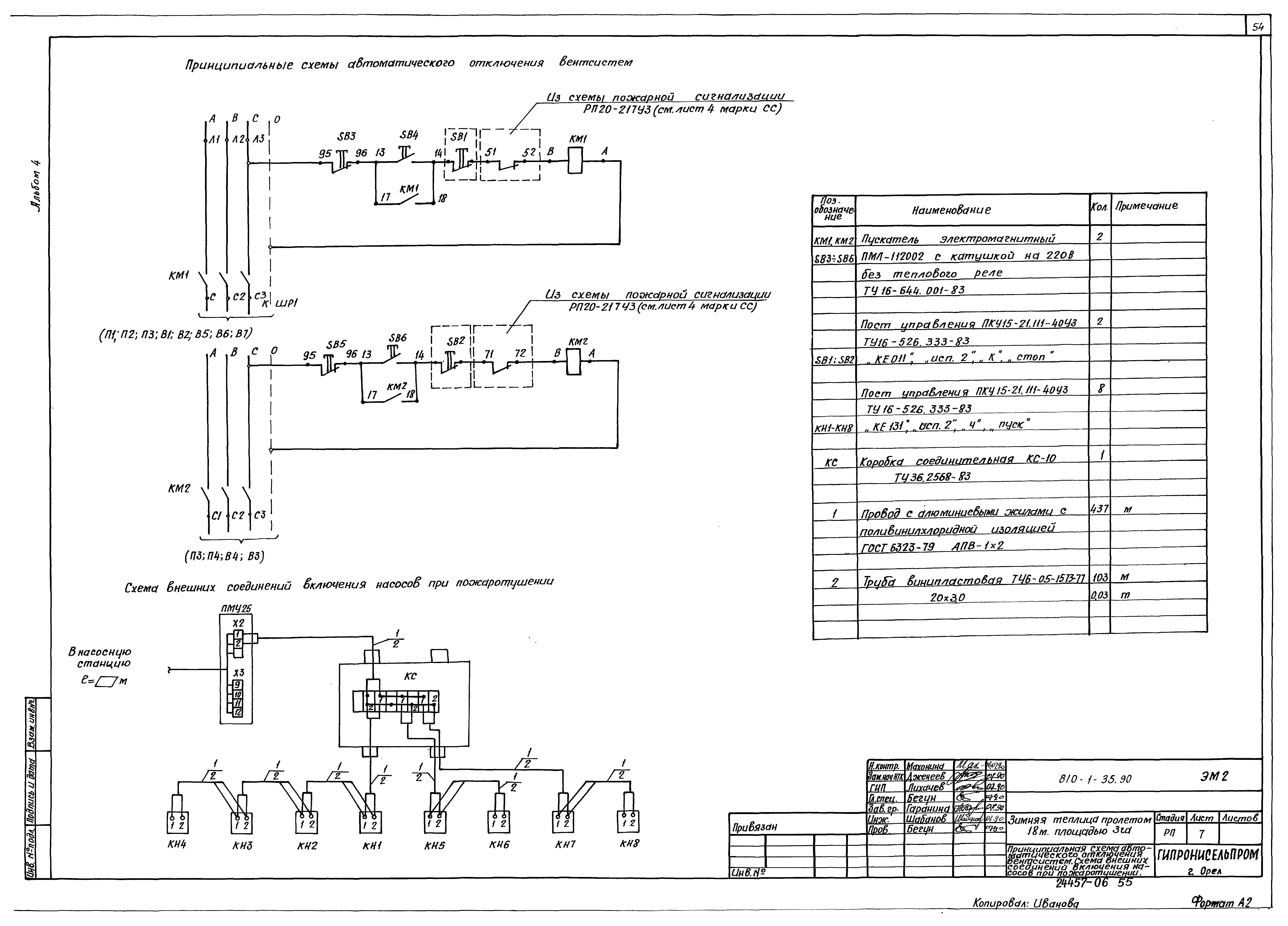
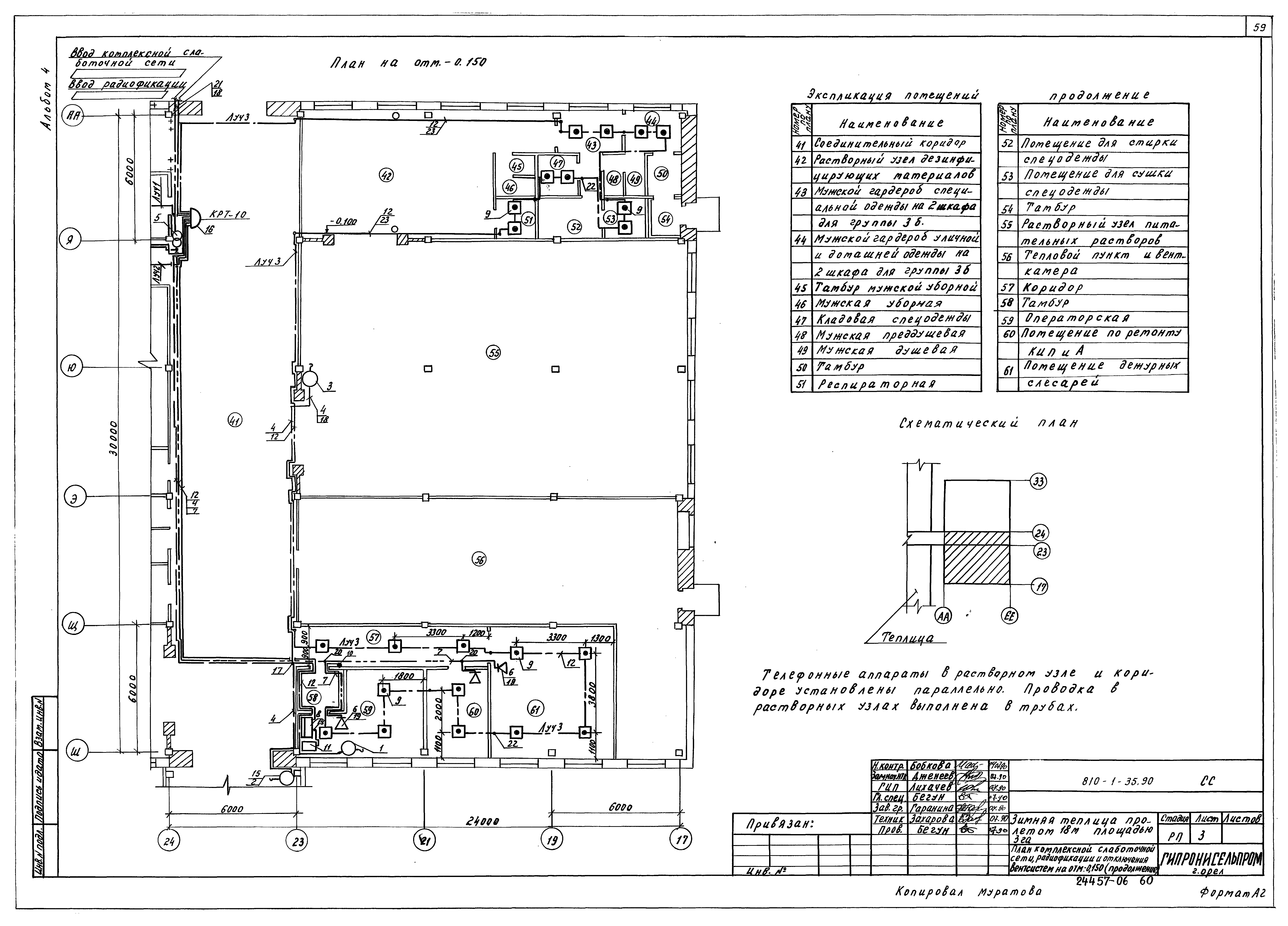
| Оглавление: | ТП810-1-35.90 Содержание альбома №4 ТП810-1-35.90 ОВ2 Отопление и вентиляция ОВ2 ТП810-1-35.90 ОВ2 Общие данные (начало) ТП810-1-35.90 ОВ2 Общие данные (продолжение) ТП810-1-35.90 ОВ2 Общие данные (окончание) ТП810-1-35.90 ОВ2 План на отм.-0.150 между осями 33...24 и Ш...АА ТП810-1-35.90 ОВ2 План на отм.-0.150 между осями 24...17 и Ш...АА ТП810-1-35.90 ОВ2 Схема системы отопления 1 ТП810-1-35.90 ОВ2 Схема системы отопления 2 ТП810-1-35.90 ОВ2 Схема системы теплоснабжения установок П1...П4 ТП810-1-35.90 ОВ2 Схемы систем П1...П5 ТП810-1-35.90 ОВ2 Схемы систем В2...В7,ВЕ1...ВЕ17 ТП810-1-35.90 ОВ2 Установка систем П1...П3 ТП810-1-35.90 ОВ2 Установка систем П4,П5 ТП810-1-35.90 ОВ2 Установка систем В2...В6 ТП810-1-35.90 ОВ2Н Чертежи общих видов нетиповых конструкций системы отопления и вентиляции ОВ2Н ТП810-1-35.90 ТС Теплоснабжение ТС ТП810-1-35.90 ТС Тепловой пункт. Общие данные ТП810-1-35.90 ТС Тепловой пункт. План. Разрез 1-1 ТП810-1-35.90 ТС Тепловой пункт. План трубопроводов. Перечень оборудования. Разрезы 6-6,7-7 ТП810-1-35.90 ТС Тепловой пункт. Разрезы 2-2,3-3 ТП810-1-35.90 ТС Тепловой пункт. Разрезы 4-4,5-5 ТП810-1-35.90 ТС Тепловой пункт. Схема трубопроводов. Перечень КИП ТП810-1-35.90 ТСН Чертежи общих видов нетиповых конструкций системы теплоснабжения ТСН ТП810-1-35.90 ХС Холодоснабжение ХС ТП810-1-35.90 ХС Общие данные ТП810-1-35.90 ХС План на отм. -0.150 между осями 24...28 т ББ-ВВ. Разрезы 1-1...3-3 ТП810-1-35.90 ХС Схема системы хладоновых трубопроводов ТП810-1-35.90 ХСН Чертежи общих видов нетиповых конструкций системы холодоснабжения ХСН ТП810-1-35.90 ВК Водопровод и канализация ТП810-1-35.90 ВК Общие данные (начало) ТП810-1-35.90 ВК Общие данные (окончание) ТП810-1-35.90 ВК План на отм. -0.150 ТП810-1-35.90 ВК Экспликация помещений ТП810-1-35.90 ВК Фрагмент 1. Фрагмент плана кровли на отм. 3.800. Разрез 1-1. Схема В4,В5 ТП810-1-35.90 ВК Разрез 2-2. Водомерные узлы 2,3. Узел 1 ТП810-1-35.90 ВК Схемы систем В1,Т3,КТ. Водомерный узел 1 ТП810-1-35.90 ВК Схемы систем В3,01,02,04,05 ТП810-1-35.90 ВК Схемы систем К1,к2 ТП810-1-35.90 ЭО2 Электрическое освещение ЭО2 ТП810-1-35.90 ЭО2 Общие данные. Принципиальная схема питающей сети ТП810-1-35.90 ЭО2 План расположения электрического оборудования и прокладки электрические сетей между осями АА-ЕЕ и 24-33 ТП810-1-35.90 ЭО2 План расположения электрического оборудования и прокладки электрических сетей между осями АА-ЕЕ и 17-24 ТП810-1-35.90 ЭМ2 Силовое электрооборудование ЭМ2 ТП810-1-35.90 ЭМ2 Общие данные ТП810-1-35.90 ЭМ2 Принципиальная схема распределительной сети шкафа ШР-1 ТП810-1-35.90 ЭМ2 Принципиальная схема распределительной сети шкафа ШР-2 ТП810-1-35.90 ЭМ2 Принципиальная схема распределительной сети шкафа ШР-3 ТП810-1-35.90 ЭМ2 Принципиальная схема распределительной сети шкафа ШР-4 ТП810-1-35.90 ЭМ2 Принципиальная схема распределительной сети шкафа ШР-5 ТП810-1-35.90 ЭМ2 Принципиальная схема автоматического отключения вентсистем. Схема внешних соединений включения насосов при пожаротушении ТП810-1-35.90 ЭМ2 План расположения электрооборудования и прокладки электрических сетей (начало) ТП810-1-35.90 ЭМ2 План расположения электрооборудования и прокладки электрических сетей (окончание) ТП810-1-35.90 СС Связь и сигнализация СС ТП810-1-35.90 СС Общие данные ТП810-1-35.90 СС План комплексной слаботочной сети, радиофикации и отключения вентсистем на отм. -0.150 (начало) ТП810-1-35.90 СС План комплексной слаботочной сети, радиофикации и отключения вентсистем на отм. -0.150 (окончание) ТП810-1-35.90 СС Схема внешних соединений пожарной сигнализации и автоматического отключения вентсистем |
| Разработан: | Институт Гипронисельпром Минсельхозпрода СССР |
| Утверждён: | 22.09.1990 Главное научно-проектное управление по строительству Госкомиссии Совмина СССР по продовольствию и закупкам (11) |




























































