Скачать Типовой проект 810-1-35.90 Альбом 5. Автоматизация технологических процессов. Автоматизация отопления и вентиляции. Автоматизация холодоснабженияДата актуализации: 01.01.2021
|
| Обозначение: | Типовой проект 810-1-35.90 |
| Обозначение англ: | 810-1-35.90 |
| Статус: | не определен законодательством |
| Название рус.: | Альбом 5. Автоматизация технологических процессов. Автоматизация отопления и вентиляции. Автоматизация холодоснабжения |
| Дата добавления в базу: | 01.09.2013 |
| Дата актуализации: | 01.01.2021 |
| Дата введения: | 25.09.1990 |
| Дата окончания срока действия: | 30.06.2003 |
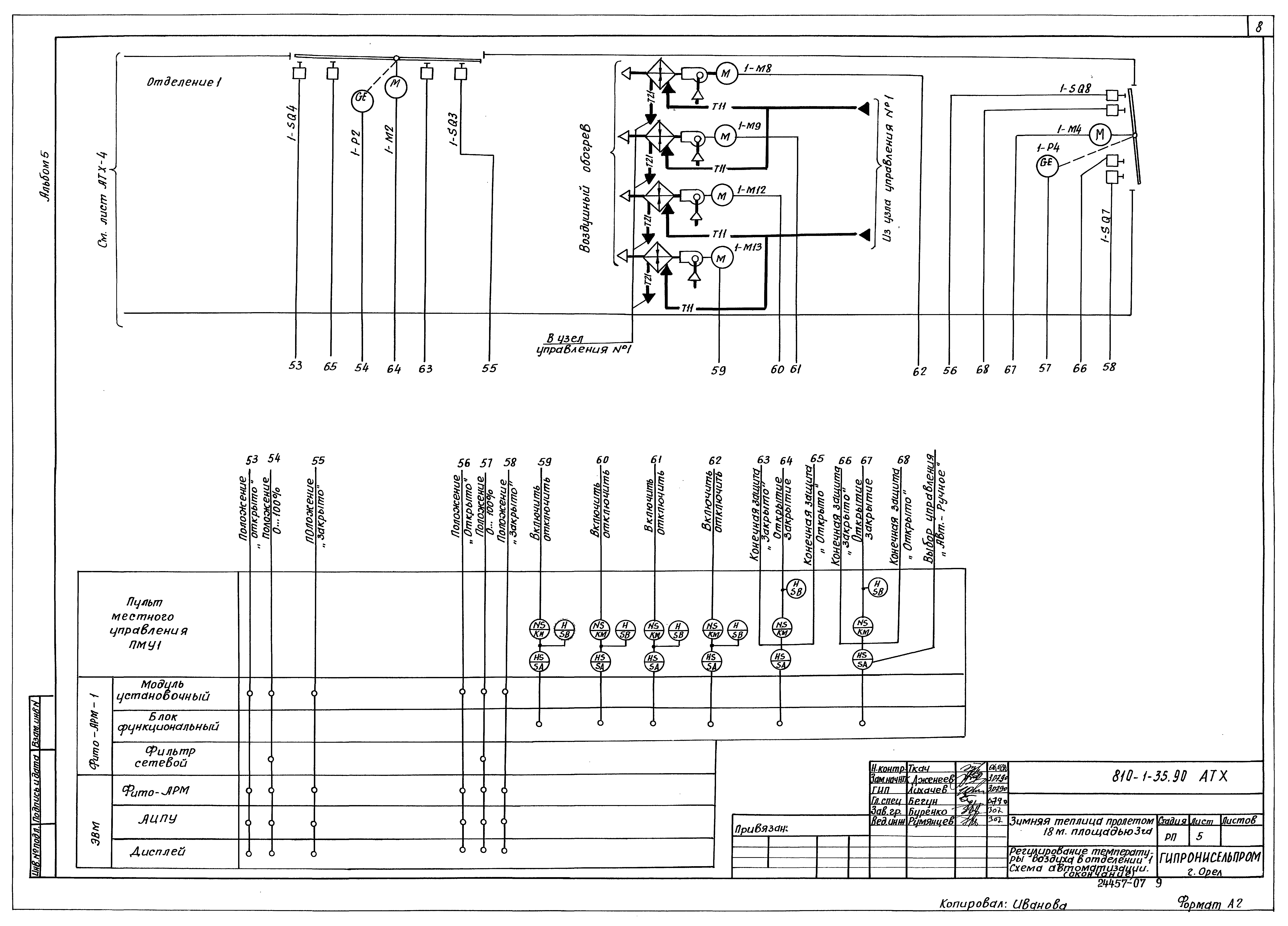
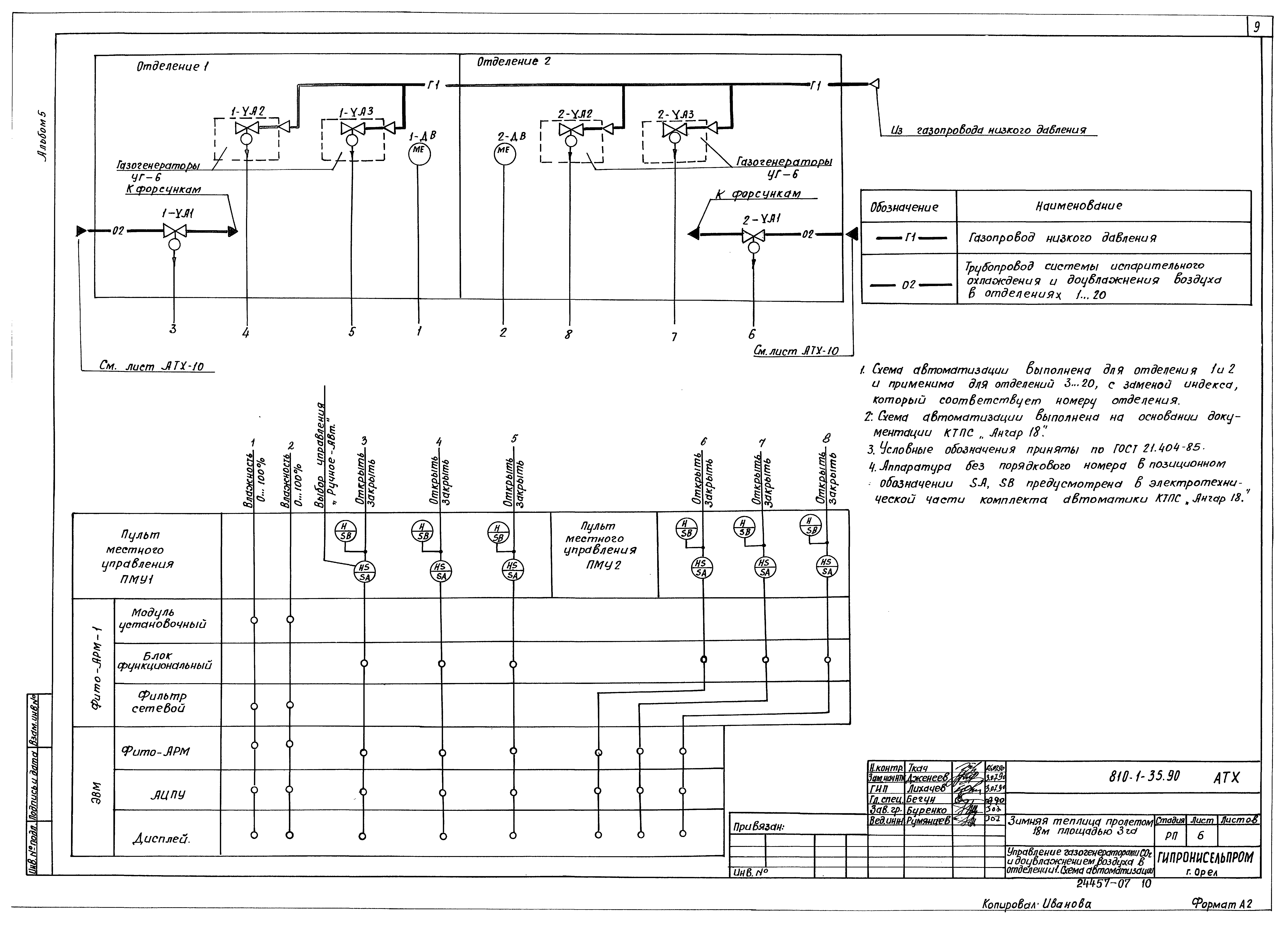
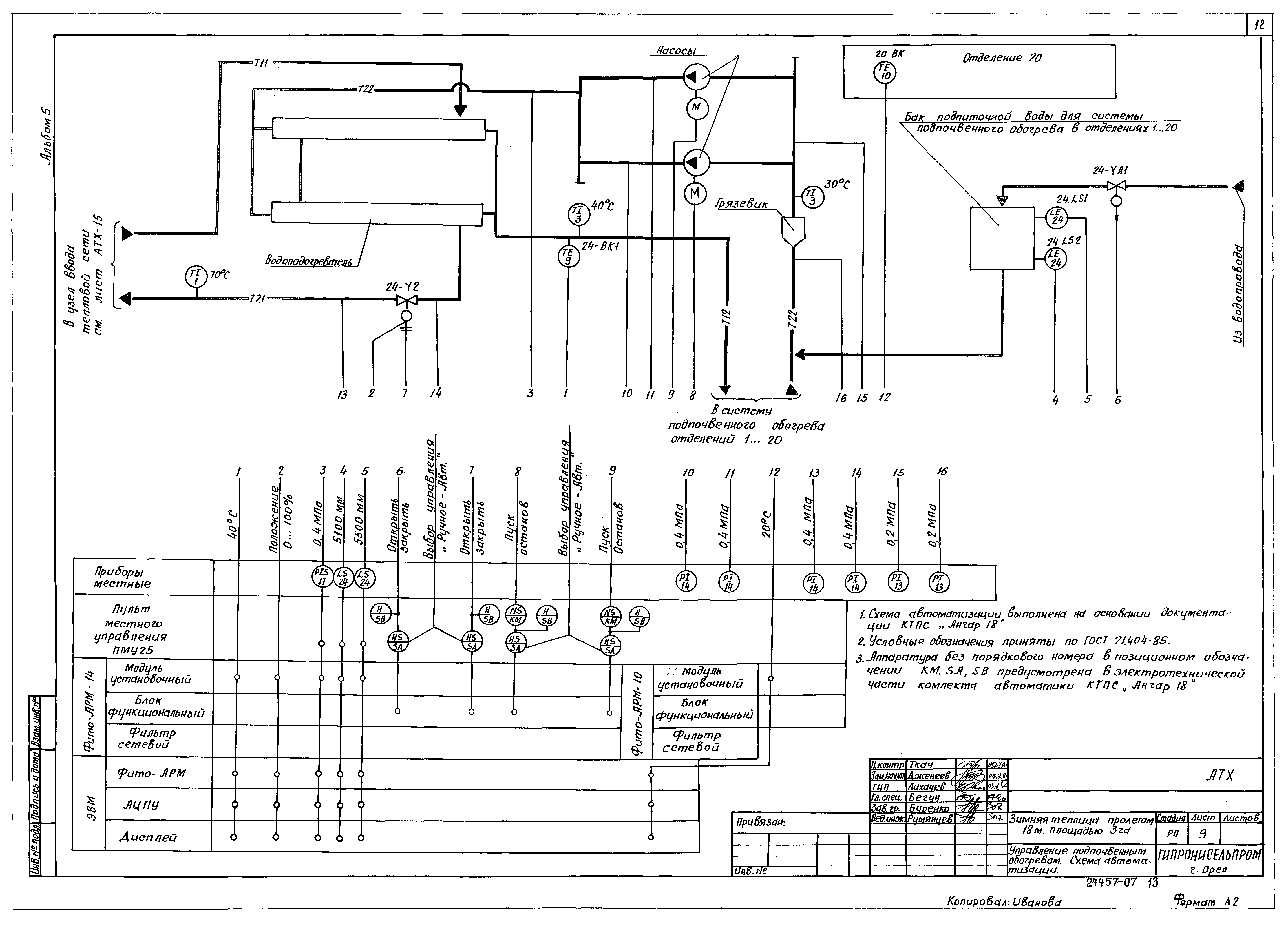
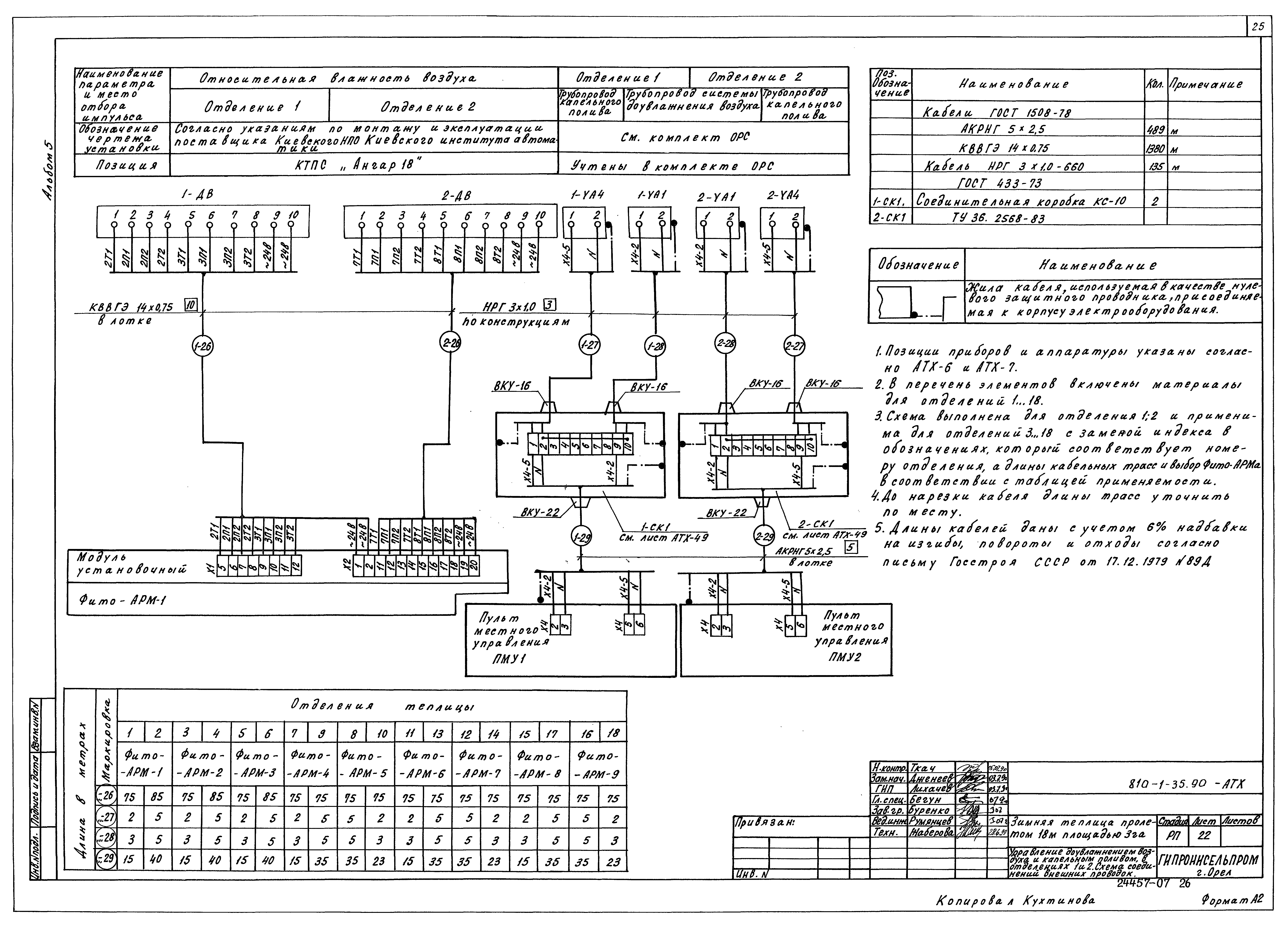
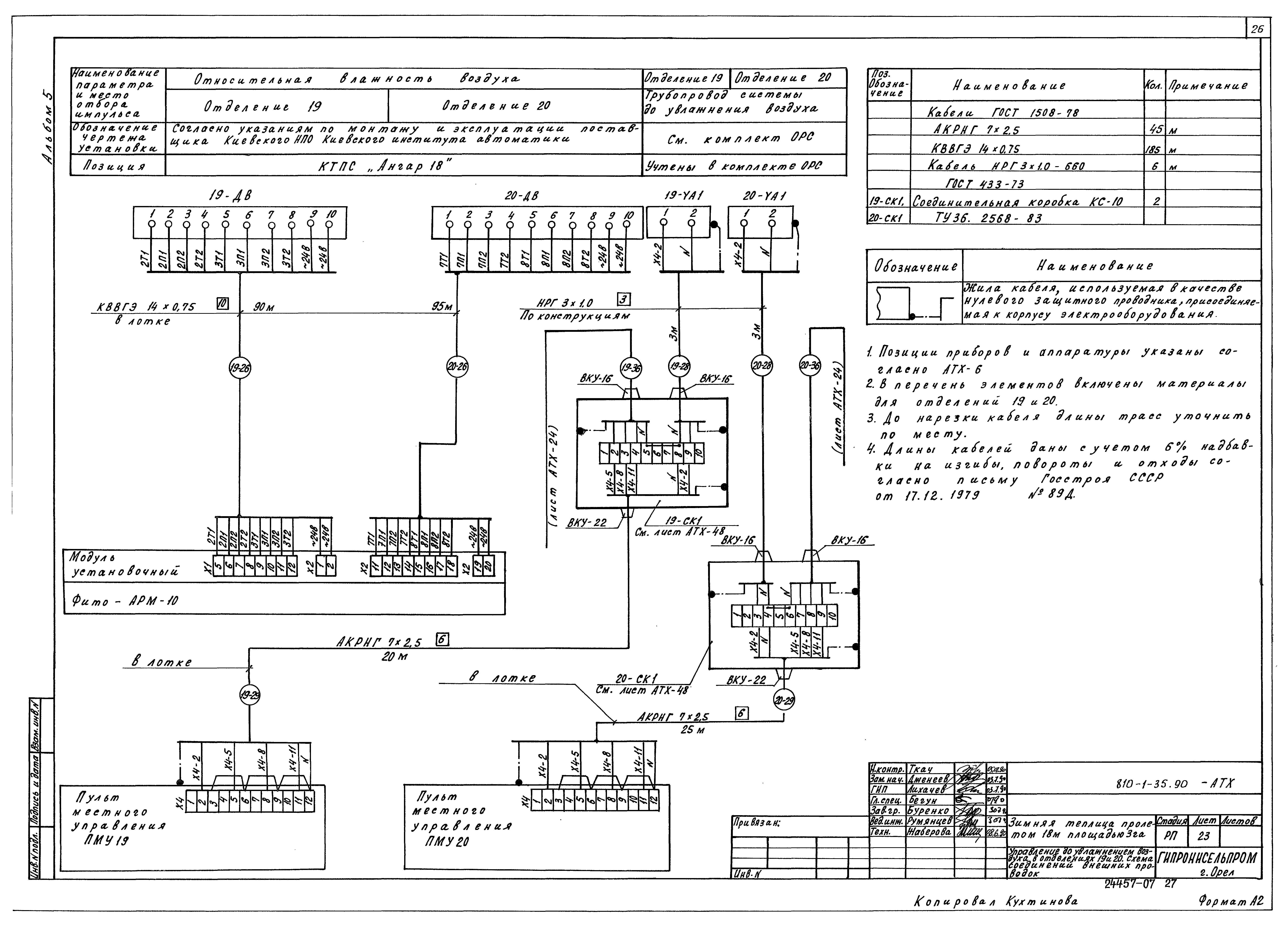
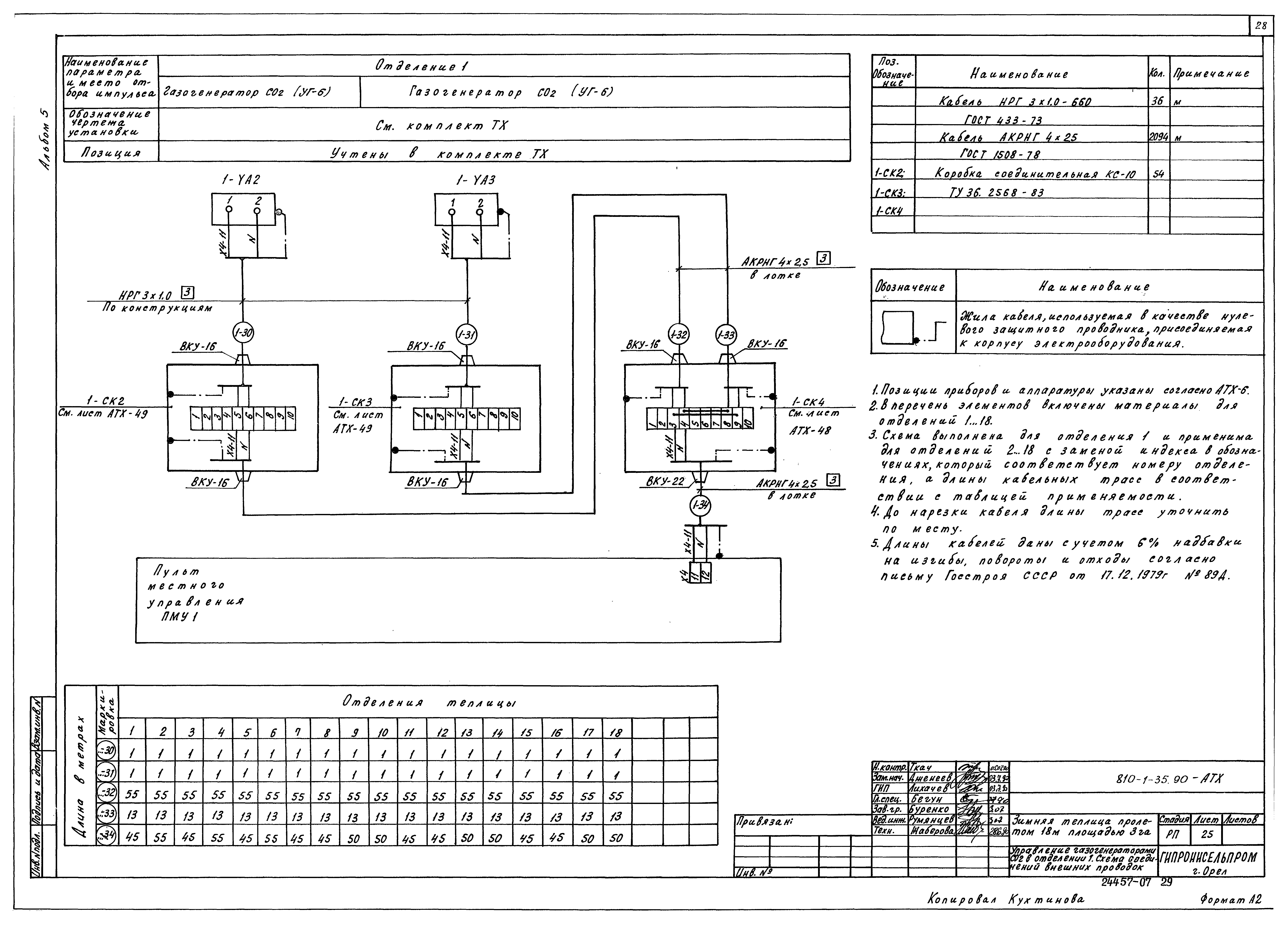
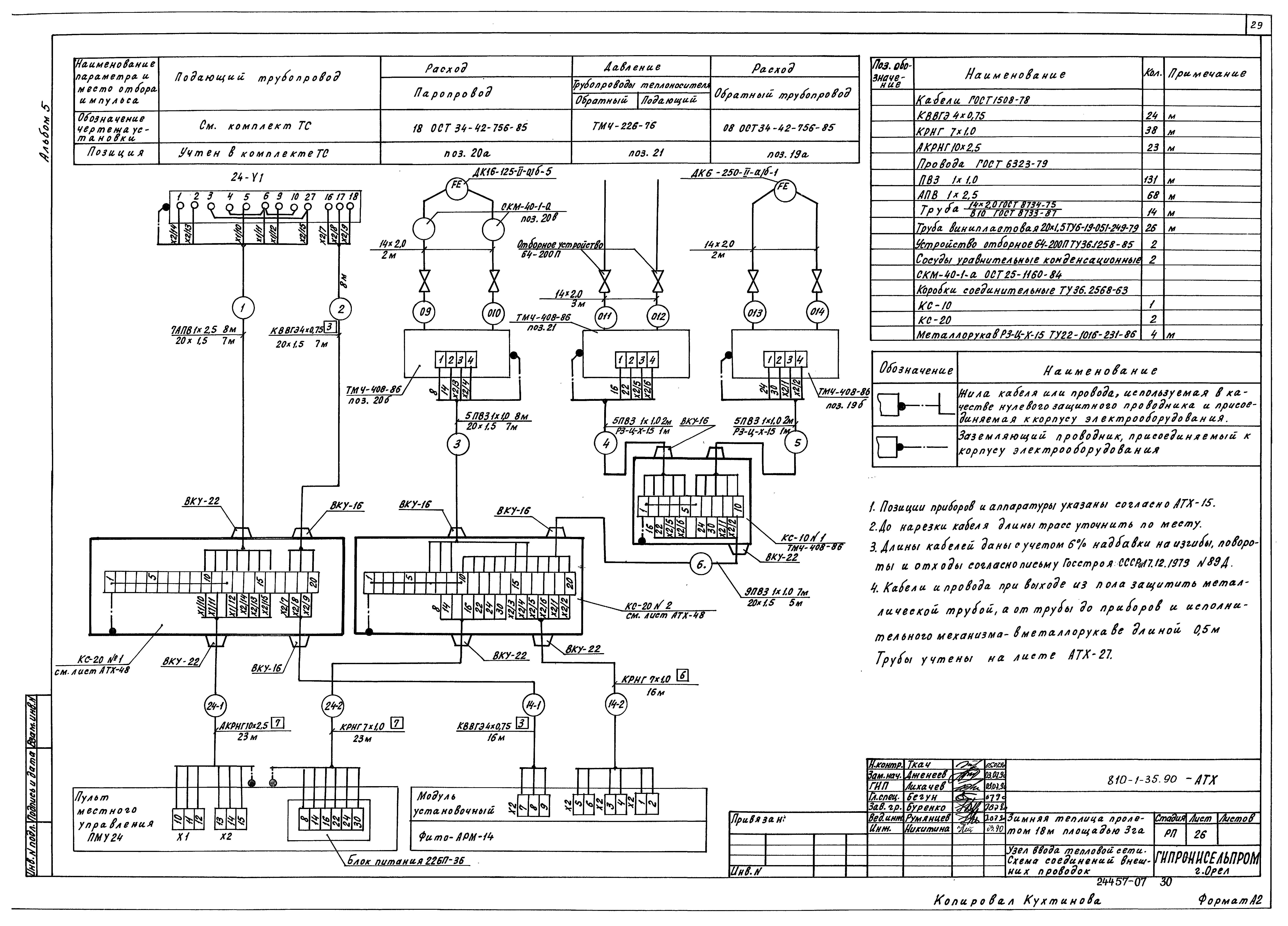
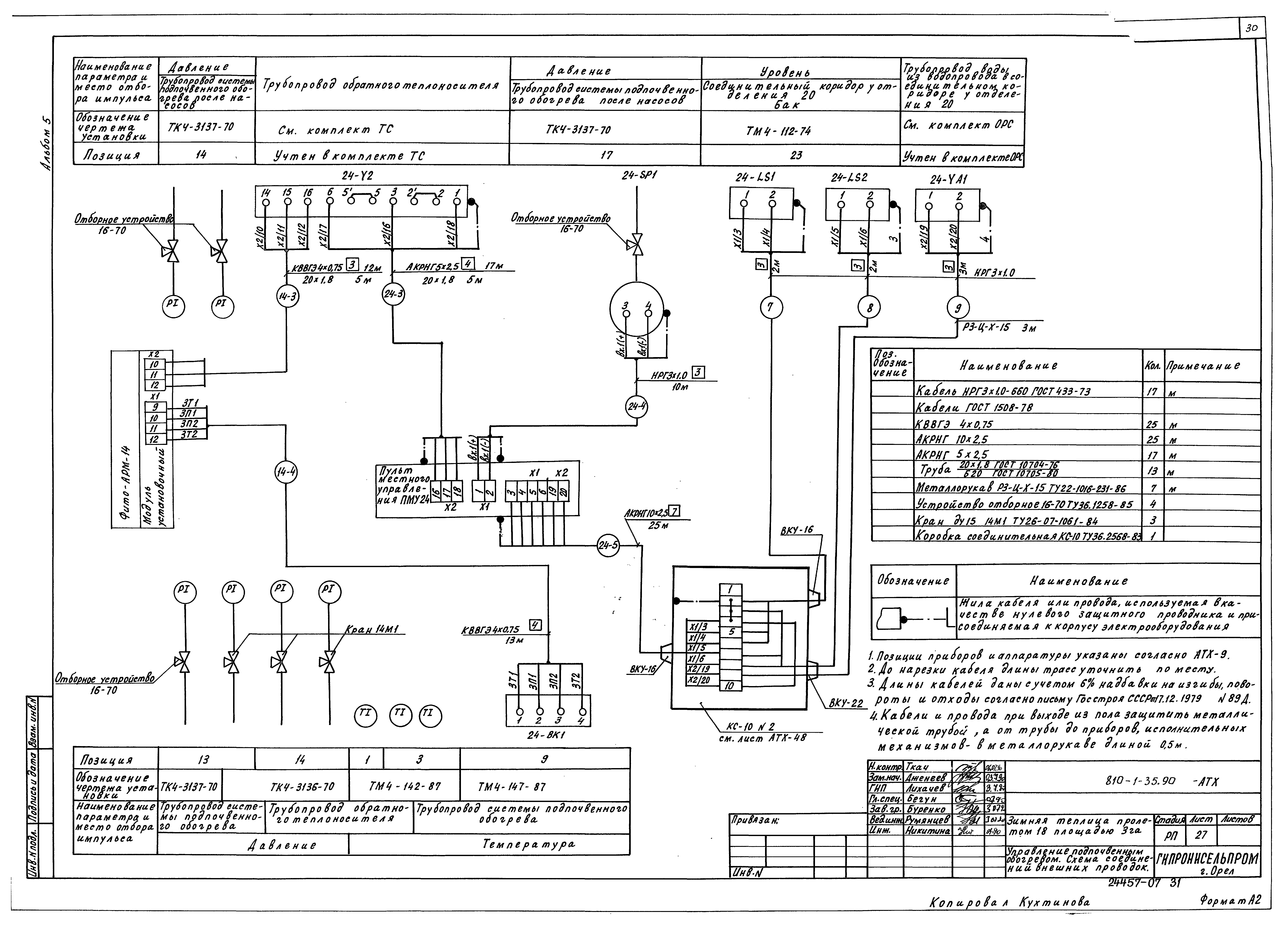
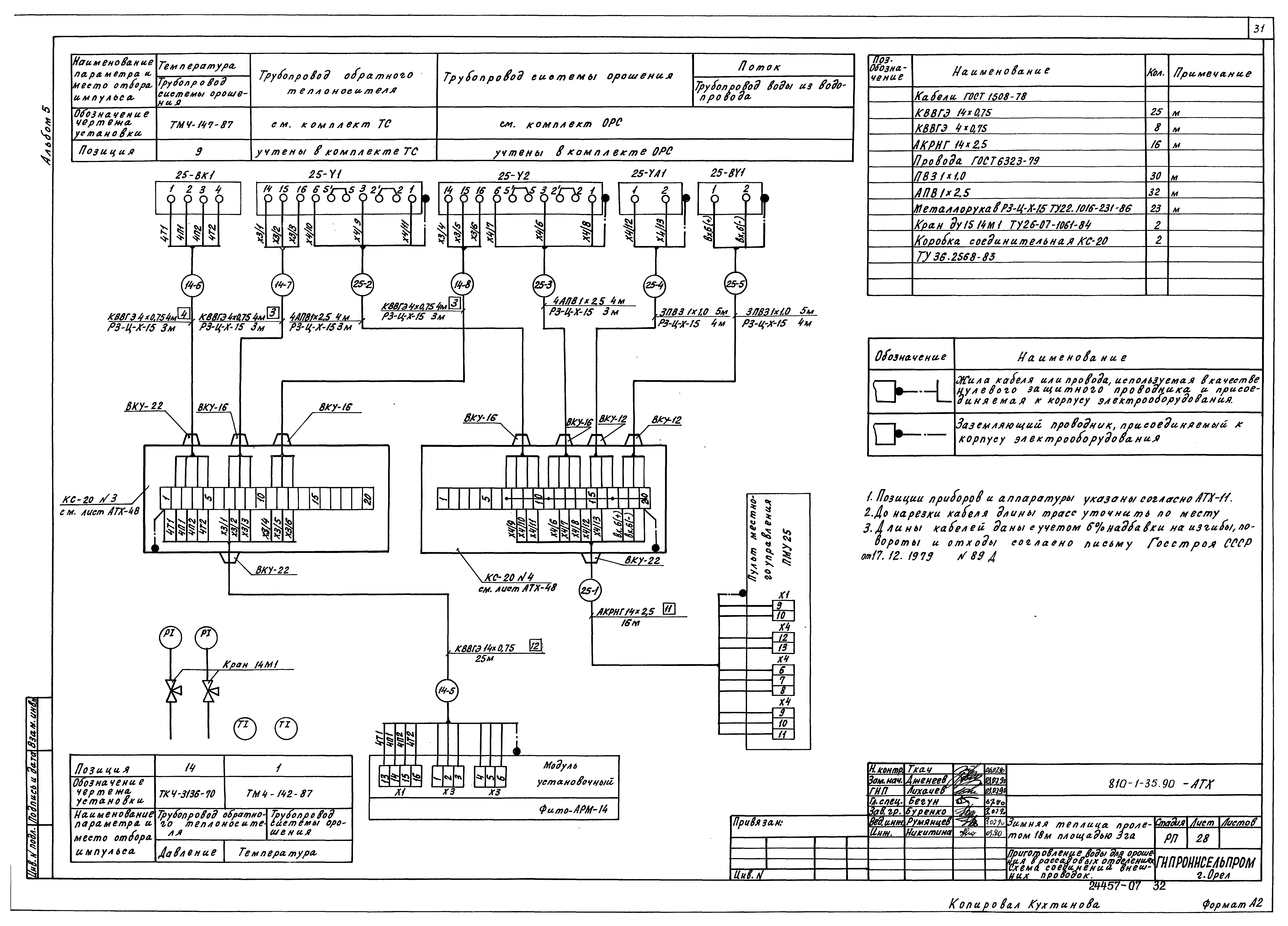
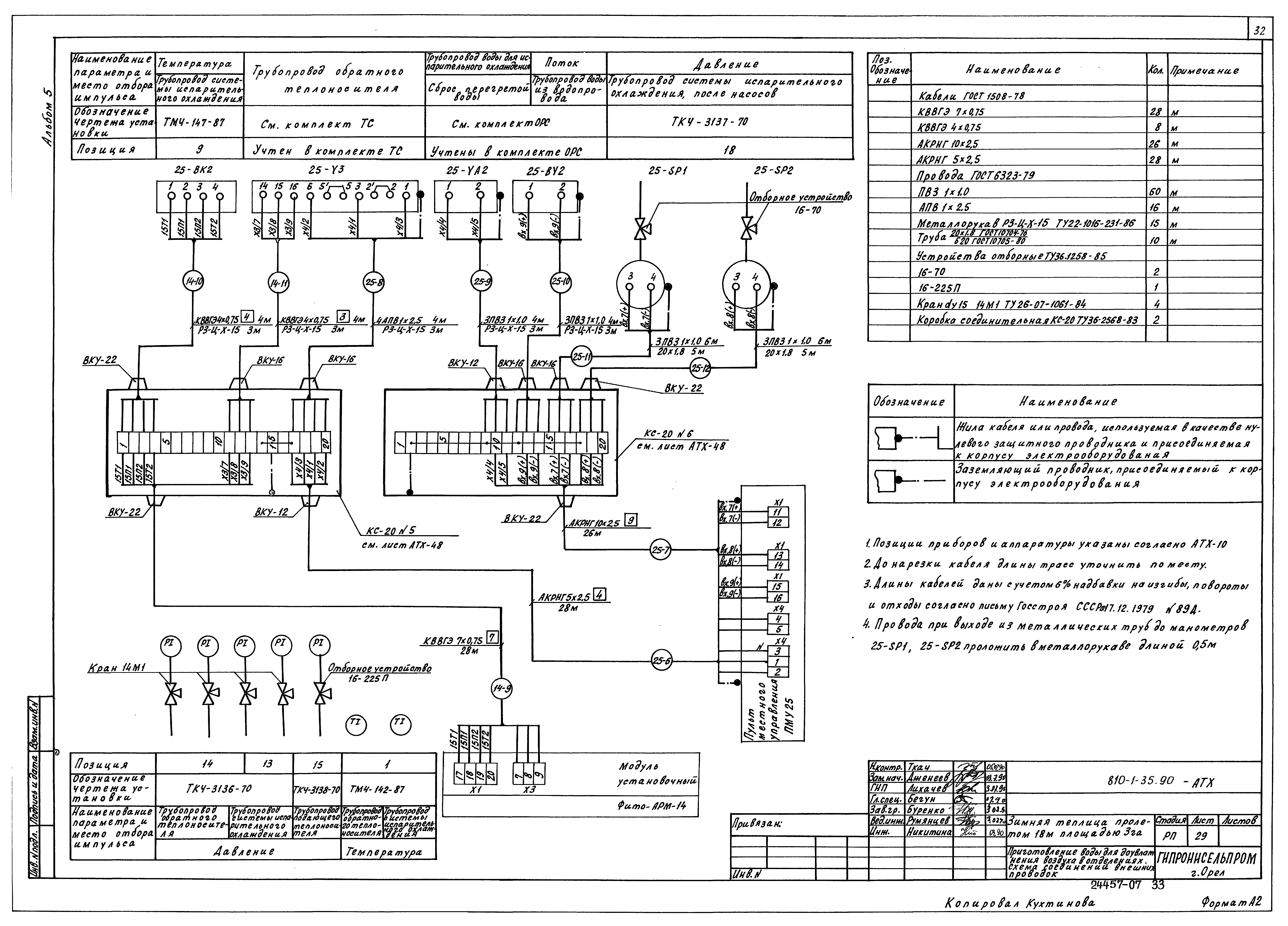
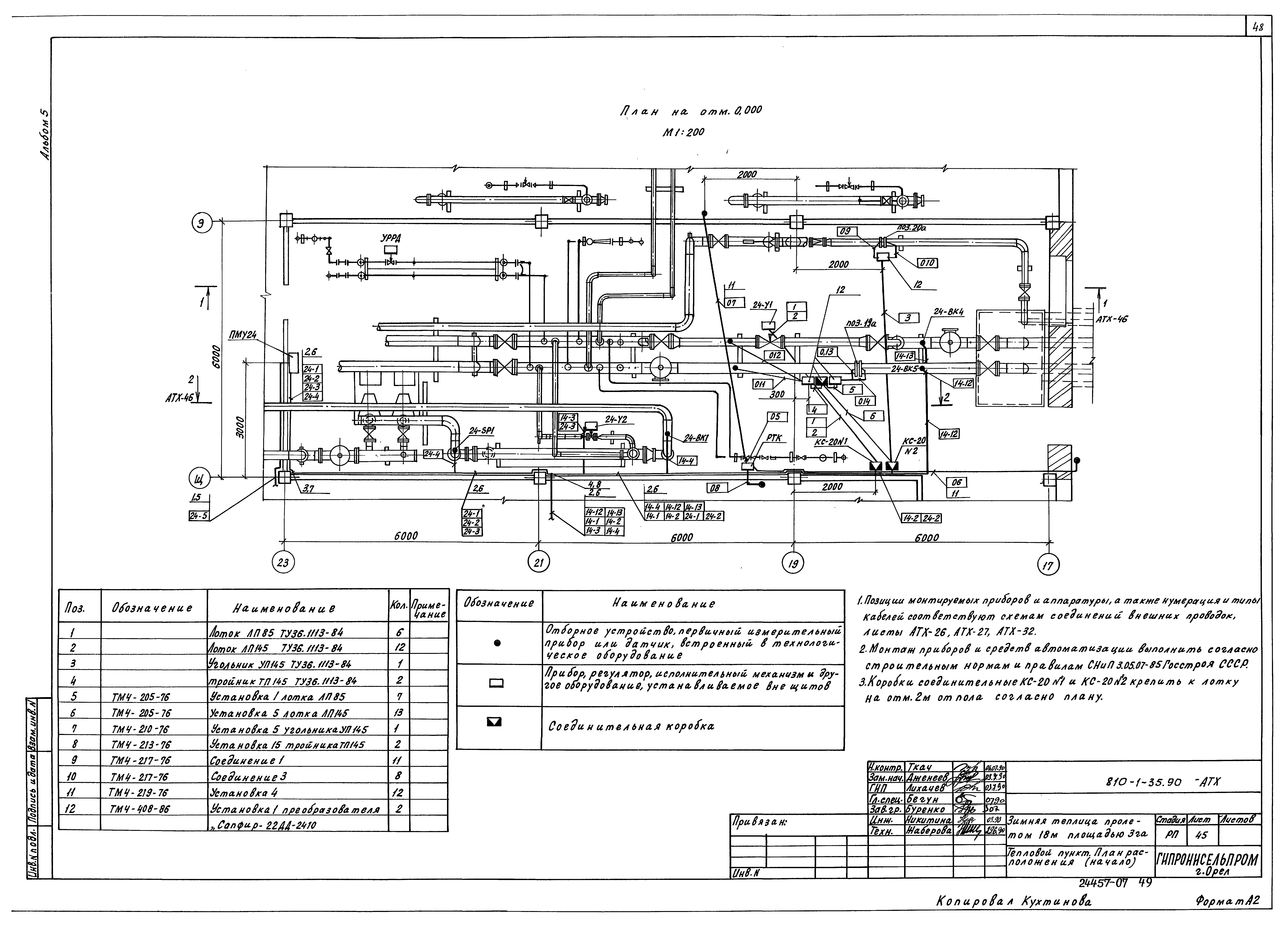
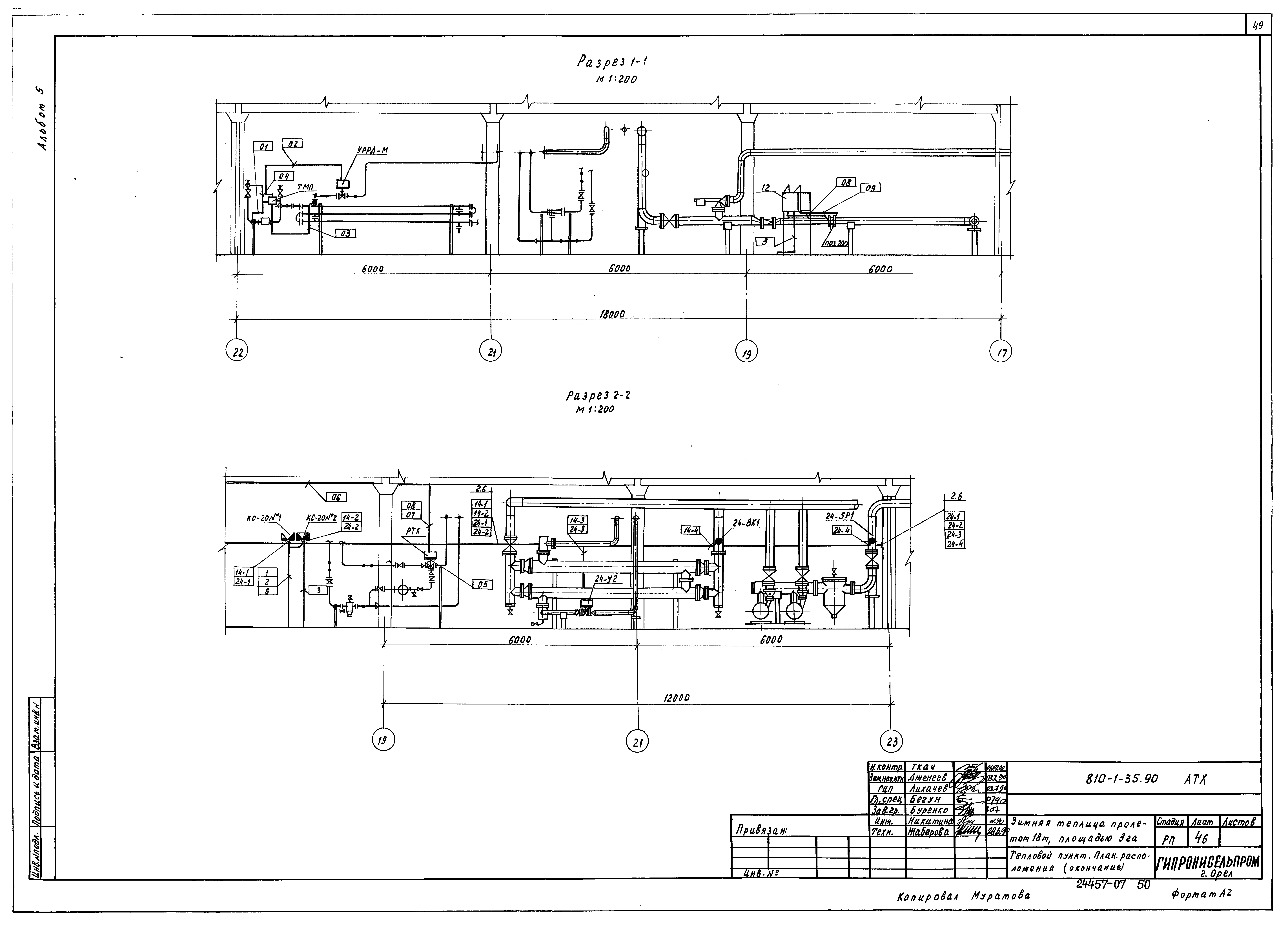
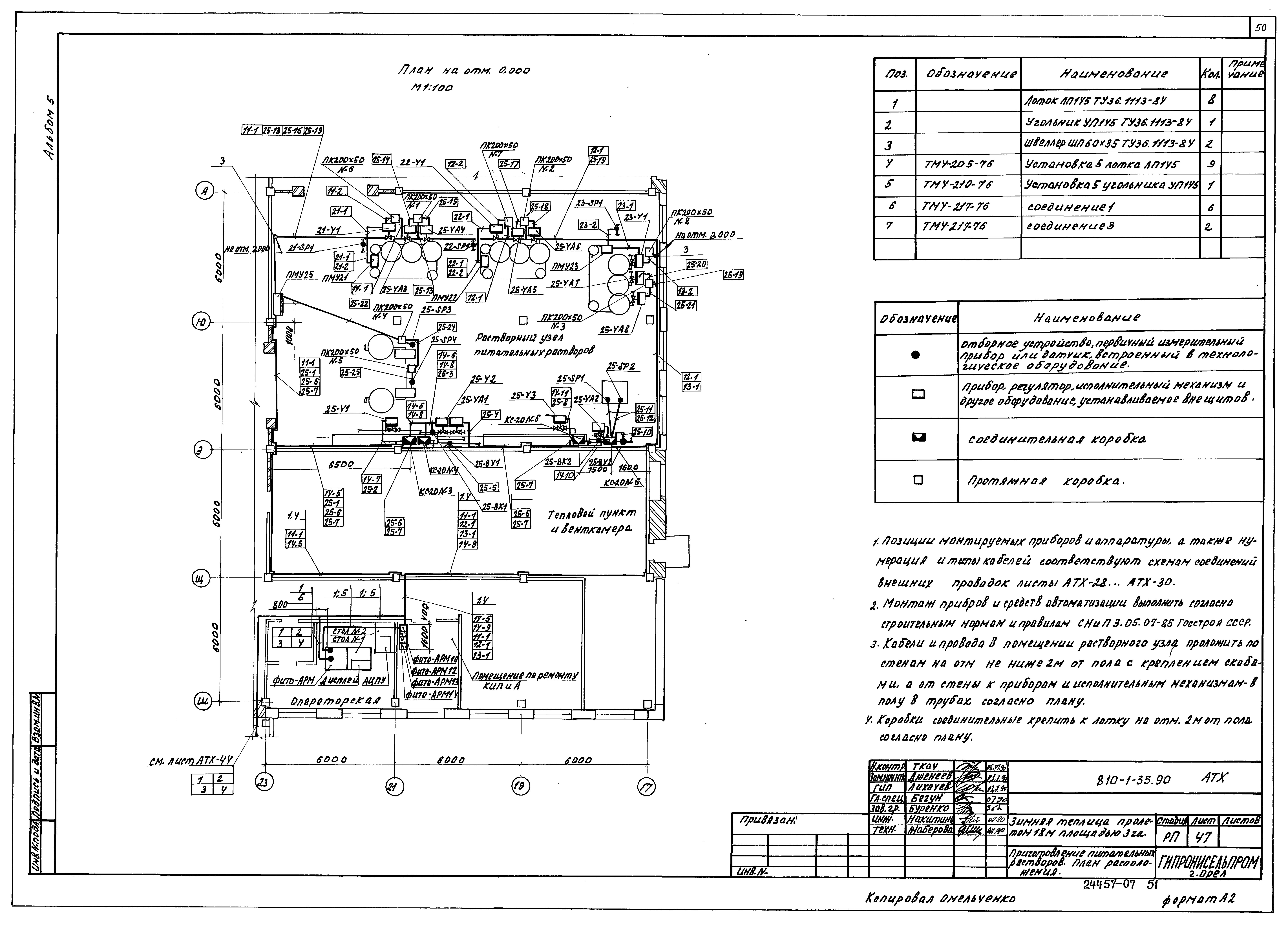
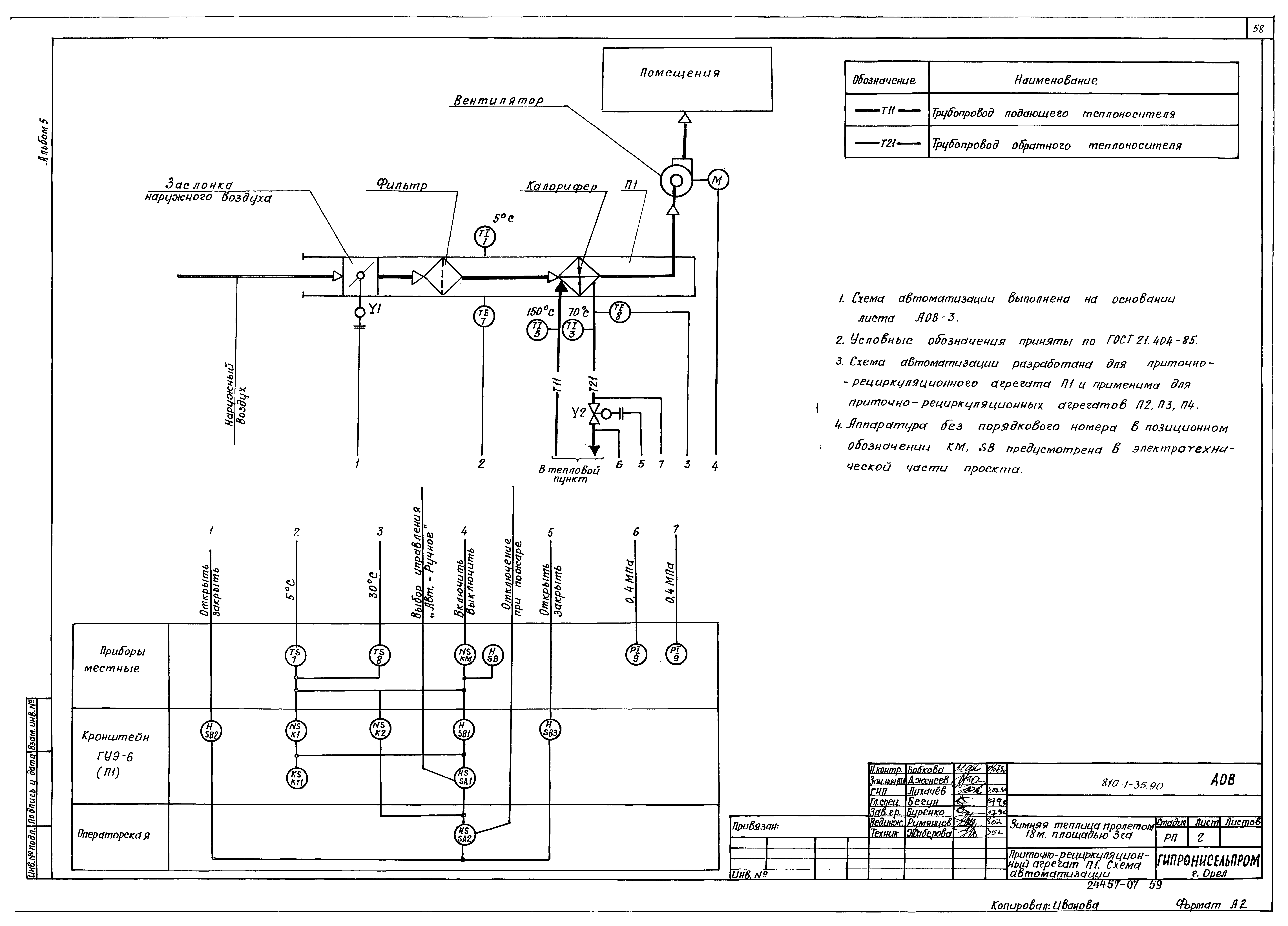
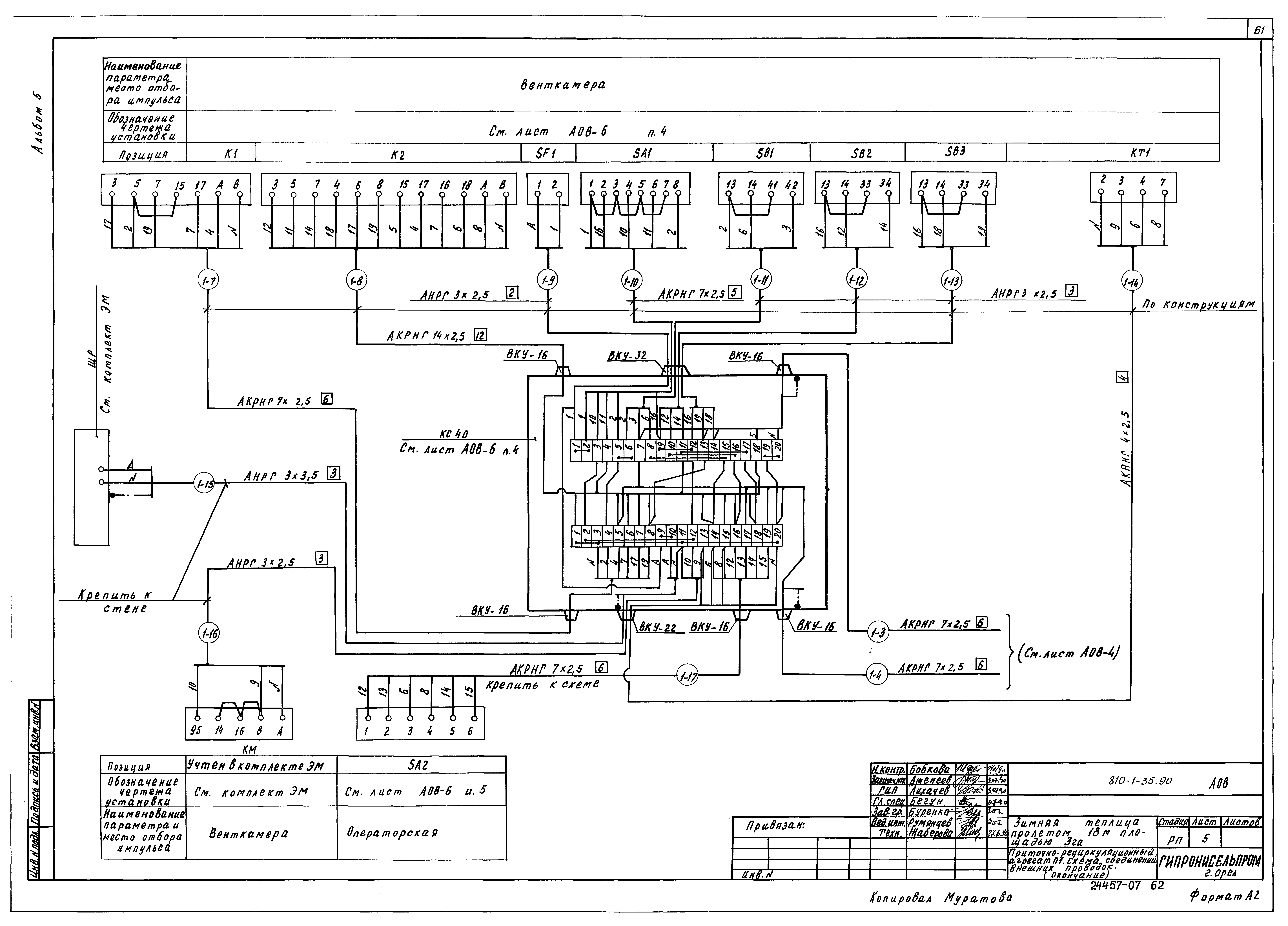
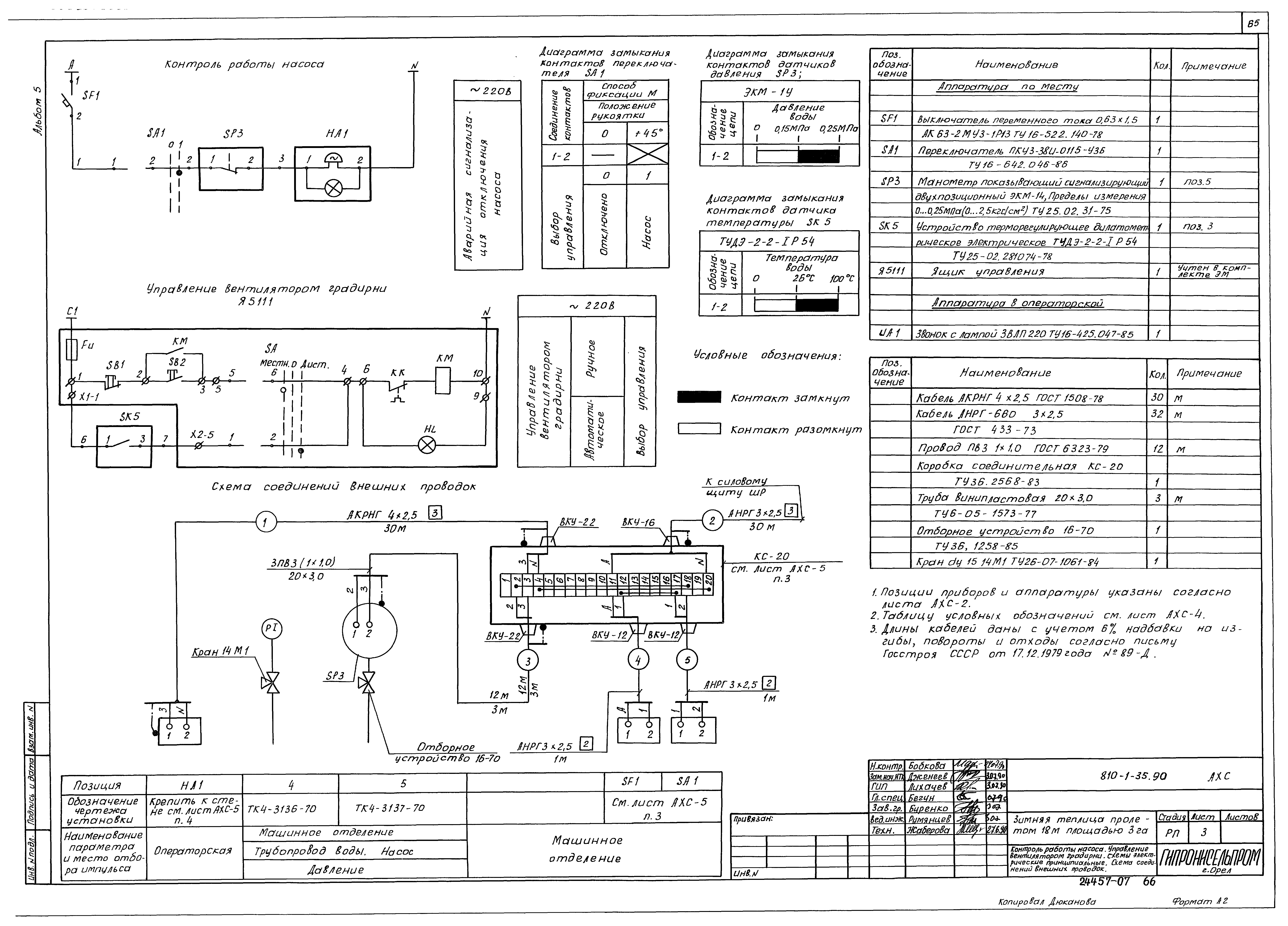
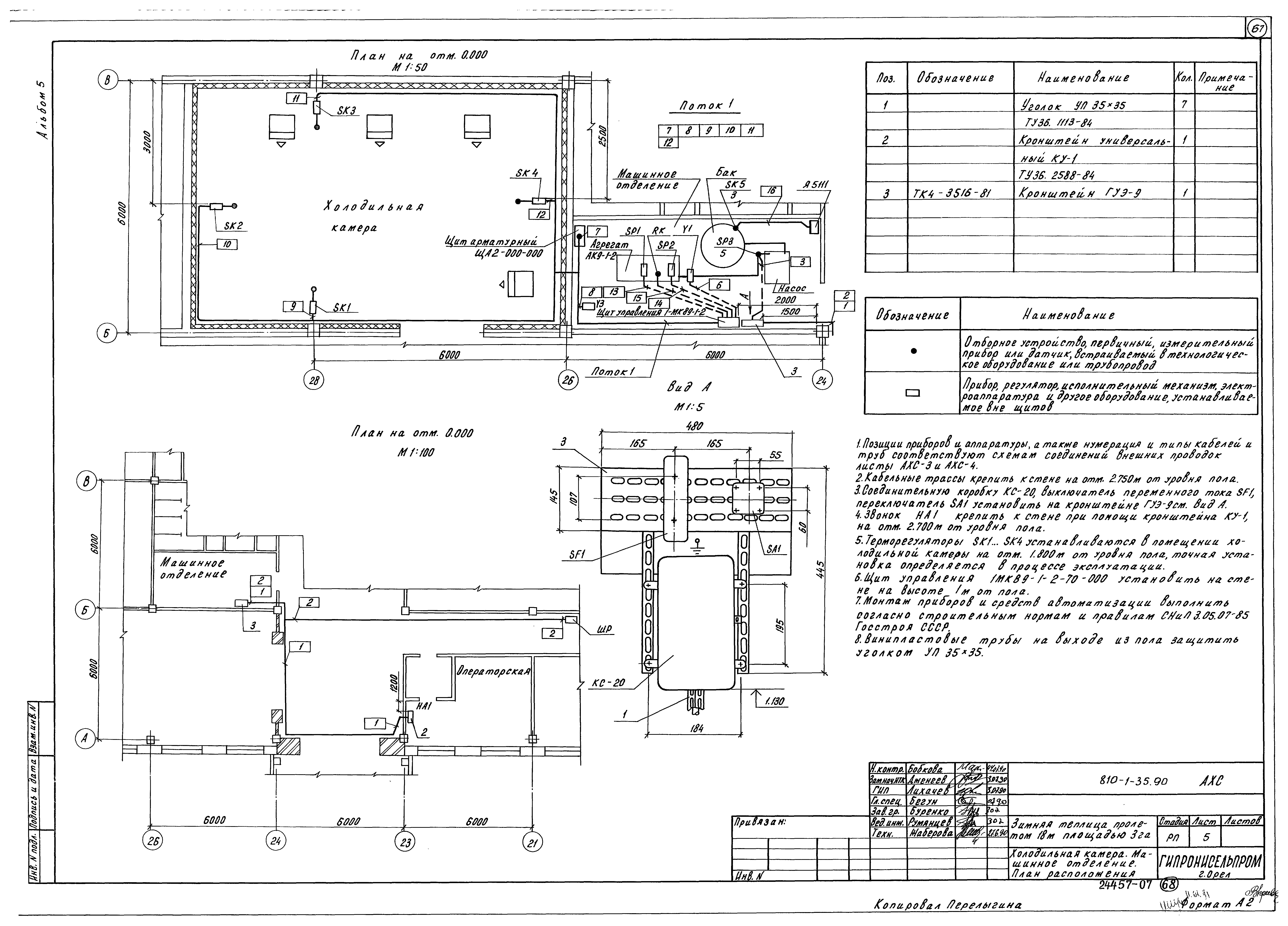
| Оглавление: | ТП810-1-35.90 Содержание альбома №5 ТП810-1-35.90 АТХ Автоматизация технологических процессов АТХ ТП810-1-35.90 АТХ Общие данные (начало) ТП810-1-35.90 АТХ Общие данные (окончание) ТП810-1-35.90 АТХ Регулирование температуры воздуха в отделении 1. Схема автоматизации (начало) ТП810-1-35.90 АТХ Регулирование температуры воздуха в отделении 1. Схема автоматизации (продолжение) ТП810-1-35.90 АТХ Регулирование температуры воздуха в отделении 1. Схема автоматизации (окончание) ТП810-1-35.90 АТХ Управление газогенераторами СО2 и доувлажнения воздуха в отделении 1. Схема автоматизации ТП810-1-35.90 АТХ Управление капельным поливом в отделениях 1...6. Схема автоматизации ТП810-1-35.90 АТХ Управление орошением в отделениях 19 и 20. Метеомачта. Схема автоматизации ТП810-1-35.90 АТХ Управление подпочвенным обогревом. Схема автоматизации ТП810-1-35.90 АТХ Приготовление воды для доувлажнения воздуха в отделениях. Схема автоматизации ТП810-1-35.90 АТХ Приготовление воды для орошения в рассадных отделениях. Схема автоматизации ТП810-1-35.90 АТХ Приготовление маточных растворов А и Б. Схема автоматизации ТП810-1-35.90 АТХ Установка приготовления растворов для систем капельного полива в отделениях 1...6. Схема автоматизации (начало) ТП810-1-35.90 АТХ Установка приготовления растворов для систем капельного полива в отделениях 1...6. Схема автоматизации (окончание) ТП810-1-35.90 АТХ Узел ввода тепловой сети. Схема автоматизации ТП810-1-35.90 АТХ Приготовление воды для горячего водоснабжения и теплоносителя для отопления бытовых помещений. Схема автоматизации ТП810-1-35.90 АТХ Метеомачта. Схема соединений внешних проводок ТП810-1-35.90 АТХ Датчики температуры воздуха в отделении 1 и отделении 2. Схема соединений внешних проводок ТП810-1-35.90 АТХ Управление обогревом отделения 1. Схема соединений внешних проводок ТП810-1-35.90 АТХ Датчики положения форточек в отделении 1. Схема соединений внешних проводок ТП810-1-35.90 АТХ Контроль положения "закрыто"-"открыто", форточек и шторного экрана в отделении 1. Схема соединений внешних проводок ТП810-1-35.90 АТХ Управление доувлажнением воздуха и капельным поливом в отделениях 1 и 2. Схема соединений внешних проводок ТП810-1-35.90 АТХ Управление доувлажнением воздуха в отделениях 19 и 20. Схема соединений внешних проводок ТП810-1-35.90 АТХ Управление газогенераторами СО2, вентиляторами орошения в отделении 20. Схема соединений внешних проводок ТП810-1-35.90 АТХ Управление газогенераторами СО2 в отделении 1. Схема соединений внешних проводок ТП810-1-35.90 АТХ Узел ввода тепловой сети. Схема соединений внешних проводок ТП810-1-35.90 АТХ Управление подпочвенным обогревом. Схема соединений внешних проводок ТП810-1-35.90 АТХ Приготовление воды для орошения в рассадных отделениях. Схема соединений внешних проводок ТП810-1-35.90 АТХ Приготовление воды для доувлажнения воздуха в отделениях. Схема соединений внешних проводок ТП810-1-35.90 АТХ Приготовление маточного и питательных растворов. Схема соединений внешних проводок ТП810-1-35.90 АТХ Контрольно-измерительные приборы. Отделение 1. Схема соединений внешних проводок ТП810-1-35.90 АТХ Приготовление воды для горячего водоснабжения и теплоносителя для обогрева бытовых помещений. Схема соединений внешних проводок ТП810-1-35.90 АТХ Контрольно-измерительные приборы. Узел ввода тепловой сети. Схема соединений внешних проводок ТП810-1-35.90 АТХ Управление микроклиматом в отделении 1. План расположения ТП810-1-35.90 АТХ Управление микроклиматом в отделении 2. План расположения ТП810-1-35.90 АТХ Управление микроклиматом в отделении 19. План расположения ТП810-1-35.90 АТХ Управление микроклиматом в отделении 20. План расположения ТП810-1-35.90 АТХ Управление газогенераторами СО2 вентилями полива и доувлажнения в отделении 1. План расположения ТП810-1-35.90 АТХ Управление газогенераторами СО2, вентилями полива и доувлажнения в отделении 2. План расположения ТП810-1-35.90 АТХ Управление газогенераторами СО2, вентилями полива и доувлажнения в отделении 9. План расположения ТП810-1-35.90 АТХ Управление газогенераторами СО2, вентилями полива и доувлажнения в отделении 10. План расположения ТП810-1-35.90 АТХ Управление газогенераторами СО2, вентилями орошения и доувлажнения в отделении 19. План расположения ТП810-1-35.90 АТХ Управление газогенераторами СО2, вентилями орошения и доувлажнения в отделении 20. План расположения ТП810-1-35.90 АТХ Соединительный коридор. План расположения ТП810-1-35.90 АТХ Тепловой пункт. План расположения (начало) ТП810-1-35.90 АТХ Тепловой пункт. План расположения (окончание) ТП810-1-35.90 АТХ Приготовление питательных растворов. План расположения ТП810-1-35.90 АТХ Узел крепления соединительной коробки КС-20 к лотку. Узел крепления соединительной коробки КС-10 к лотку ТП810-1-35.90 АТХ Узел крепления соединительной коробки КС-10 к ферме ТП810-1-35.90 АТХ Опросный лист № 1 (начало) ТП810-1-35.90 АТХ Опросный лист № 1 (окончание) ТП810-1-35.90 АТХ Опросный лист № 2 (начало) ТП810-1-35.90 АТХ Опросный лист № 2 (окончание) ТП810-1-35.90 АОВ Автоматизация отопления и вентиляции АОВ ТП810-1-35.90 АОВ Общие данные ТП810-1-35.90 АОВ Приточно-рециркуляционный агрегат П1. Схема автоматизации ТП810-1-35.90 АОВ Приточно-рециркуляционный агрегат П1. Схема электрическая ТП810-1-35.90 АОВ Приточно-рециркуляционный агрегат П1. Схема соединений внешних проводок (начало) ТП810-1-35.90 АОВ Приточно-рециркуляционный агрегат П1. Схема соединений внешних проводок (окончание) ТП810-1-35.90 АОВ Венткамеры. Планы расположения ТП810-1-35.90 АХС Автоматизация холодоснабжения АХС ТП810-1-35.90 АХС Общие данные ТП810-1-35.90 АХС Управление холодильной машиной 1МКВ9-1-2. Схема автоматизации ТП810-1-35.90 АХС Контроль работы насоса. Управление вентилятором градирни. Схемы электрические принципиальные. Схема соединений внешних проводок ТП810-1-35.90 АХС Управление холодильной машиной 1МКВ9-1-2. Схема соединений внешних проводок ТП810-1-35.90 АХС Холодильная камера. Машинное отделение. План расположения |
| Разработан: | Институт Гипронисельпром Минсельхозпрода СССР |
| Утверждён: | 21.09.1990 Главное научно-проектное управление по строительству Госкомиссии Совмина СССР по продовольствию и закупкам (11) |



































































