Скачать Типовой проект 810-1-35.90 Альбом 7. Механизм вентиляции. Механизм зашторивания кровли теплицы. Устройство для обслуживания кровли теплицы. Устройство для подъема регистров и шпалерДата актуализации: 01.01.2021
|
| Обозначение: | Типовой проект 810-1-35.90 |
| Обозначение англ: | 810-1-35.90 |
| Статус: | не определен законодательством |
| Название рус.: | Альбом 7. Механизм вентиляции. Механизм зашторивания кровли теплицы. Устройство для обслуживания кровли теплицы. Устройство для подъема регистров и шпалер |
| Дата добавления в базу: | 01.09.2013 |
| Дата актуализации: | 01.01.2021 |
| Дата введения: | 25.09.1990 |
| Дата окончания срока действия: | 30.06.2003 |
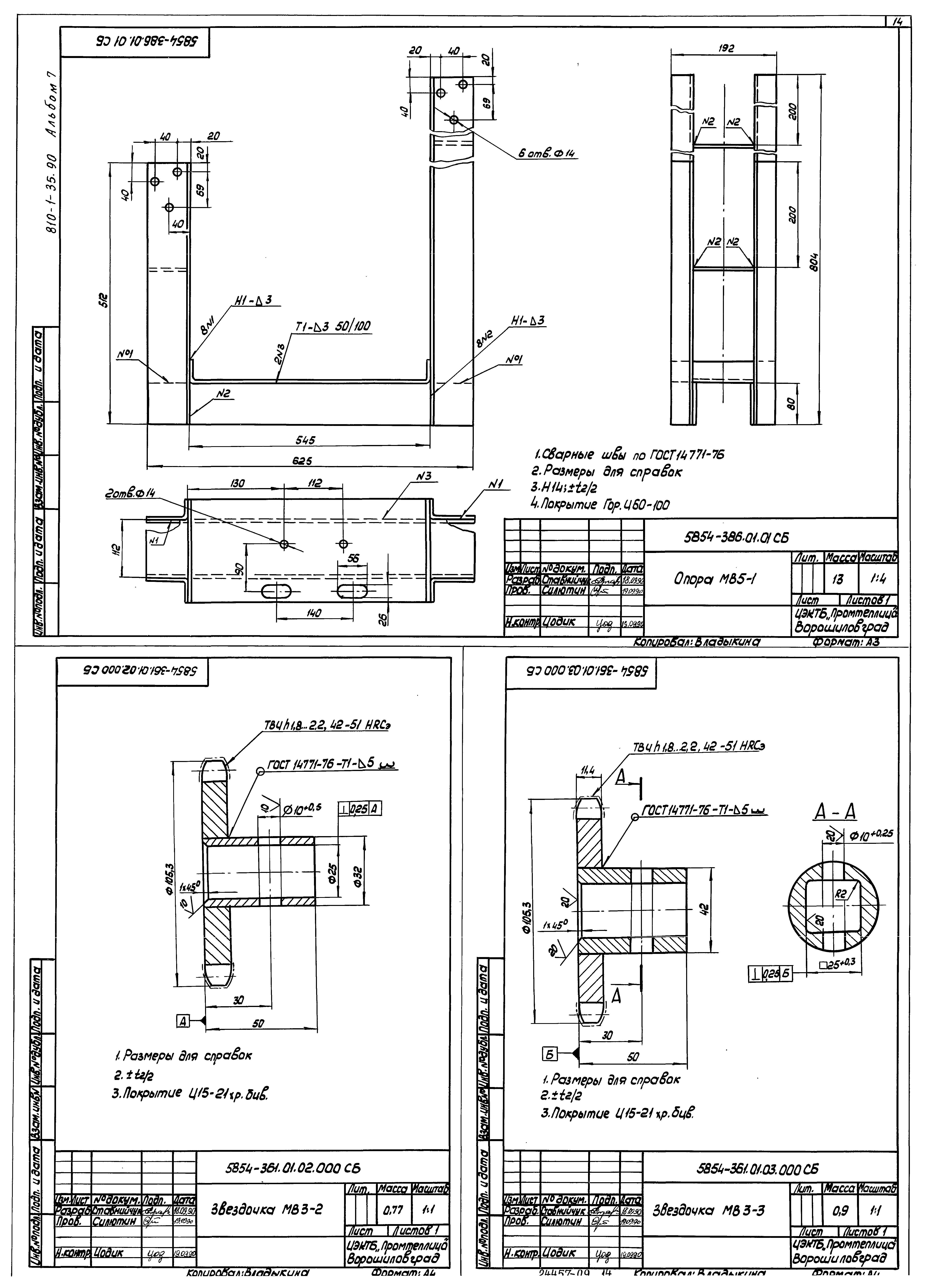
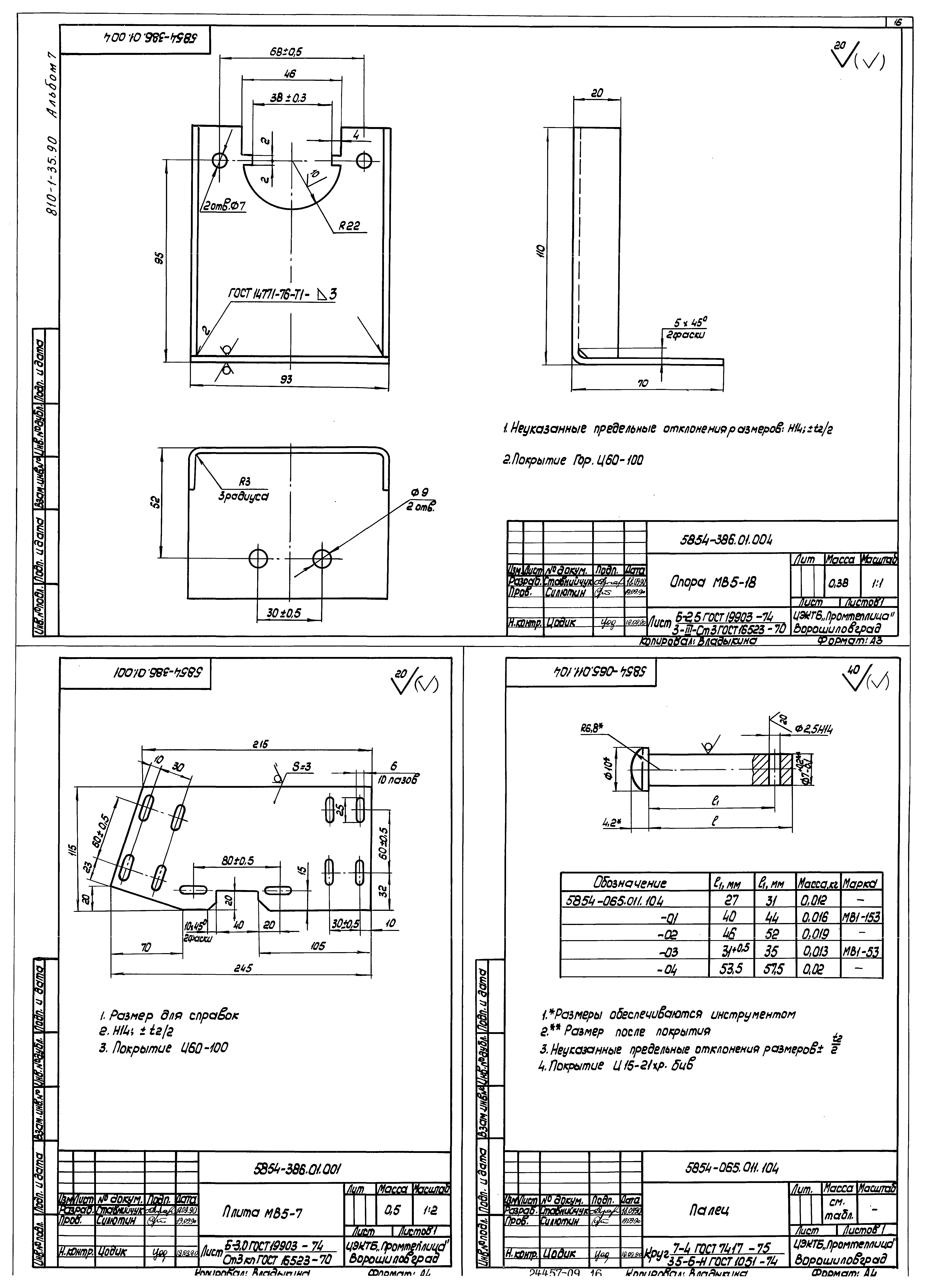
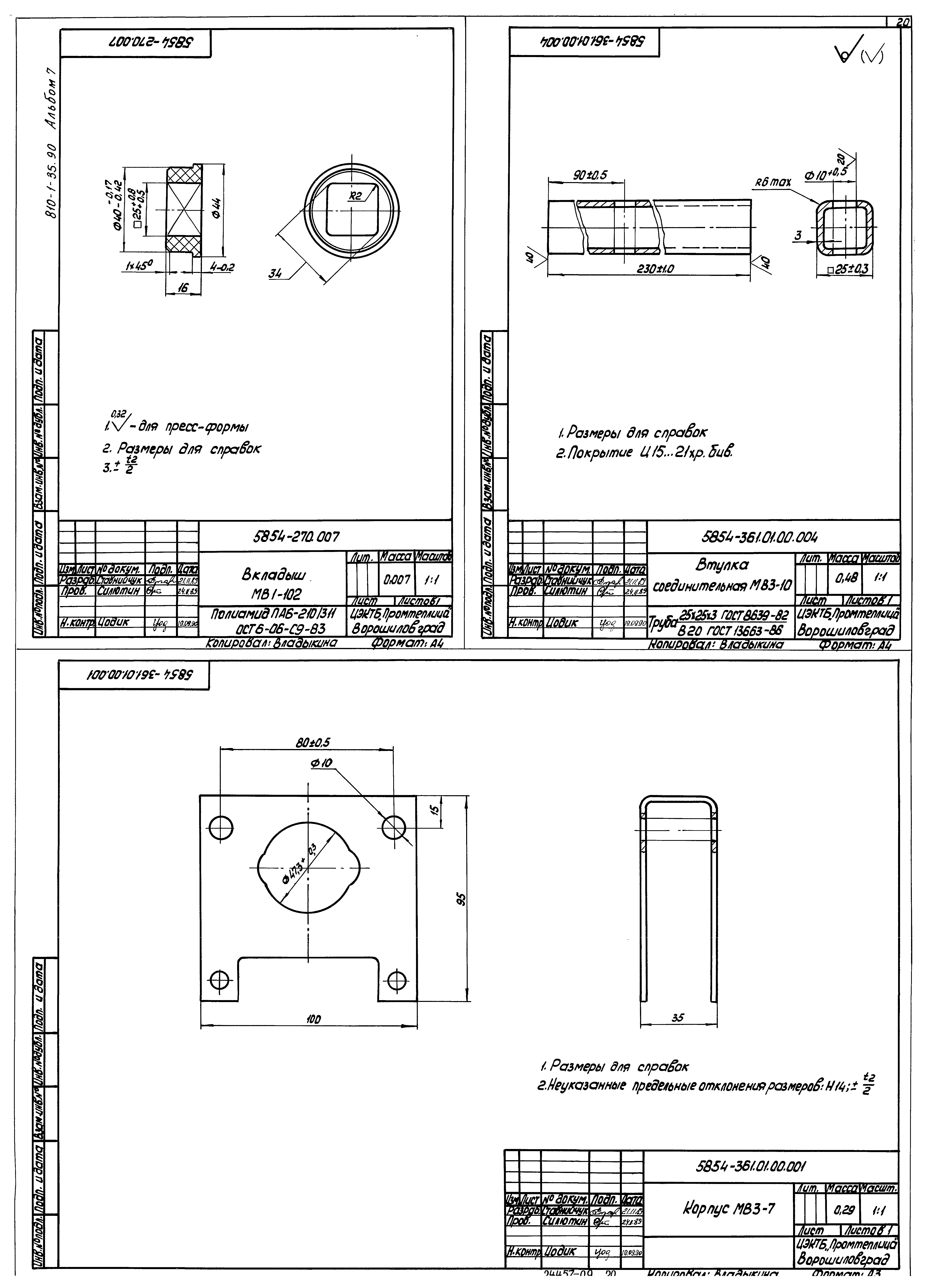
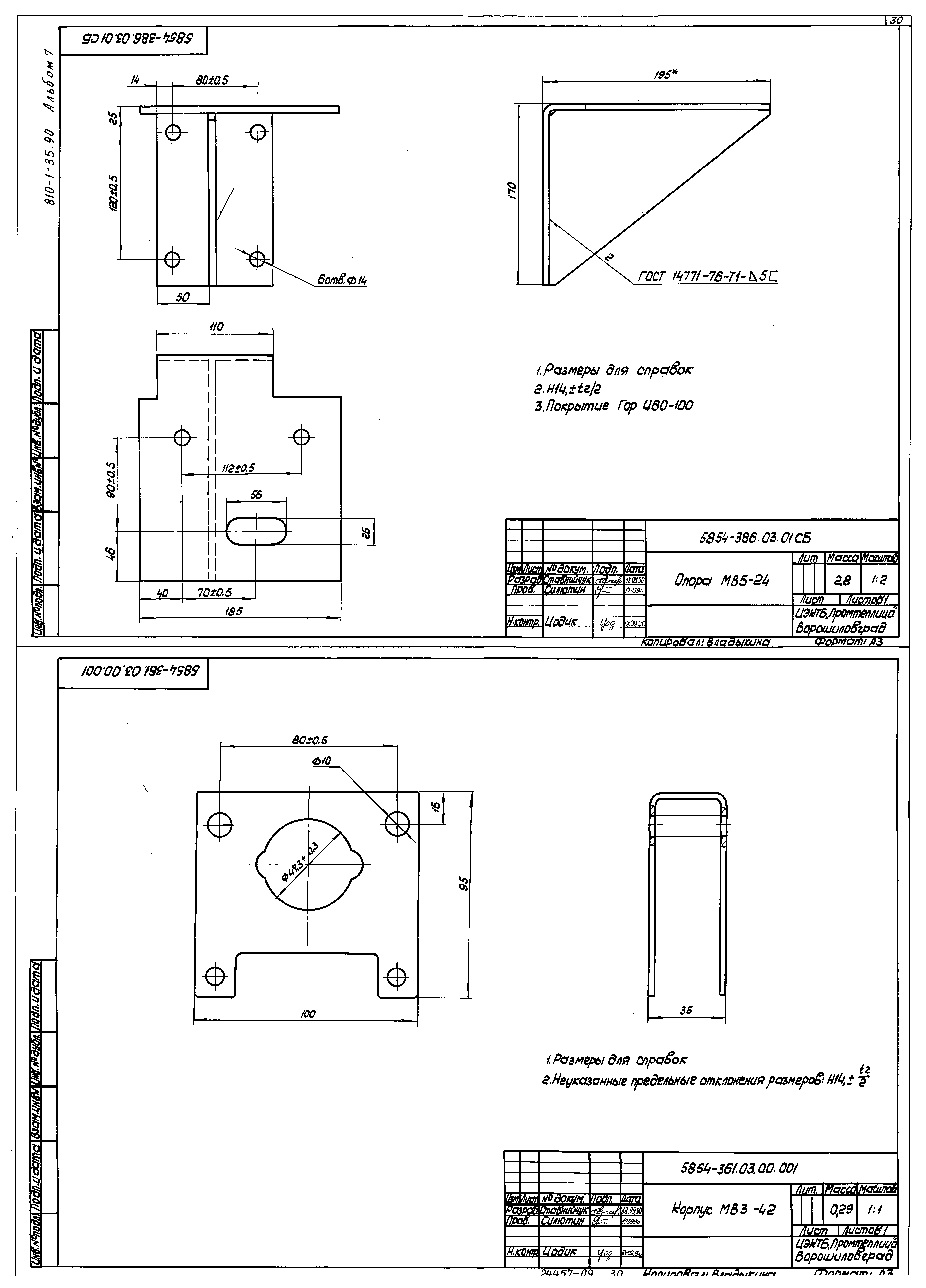
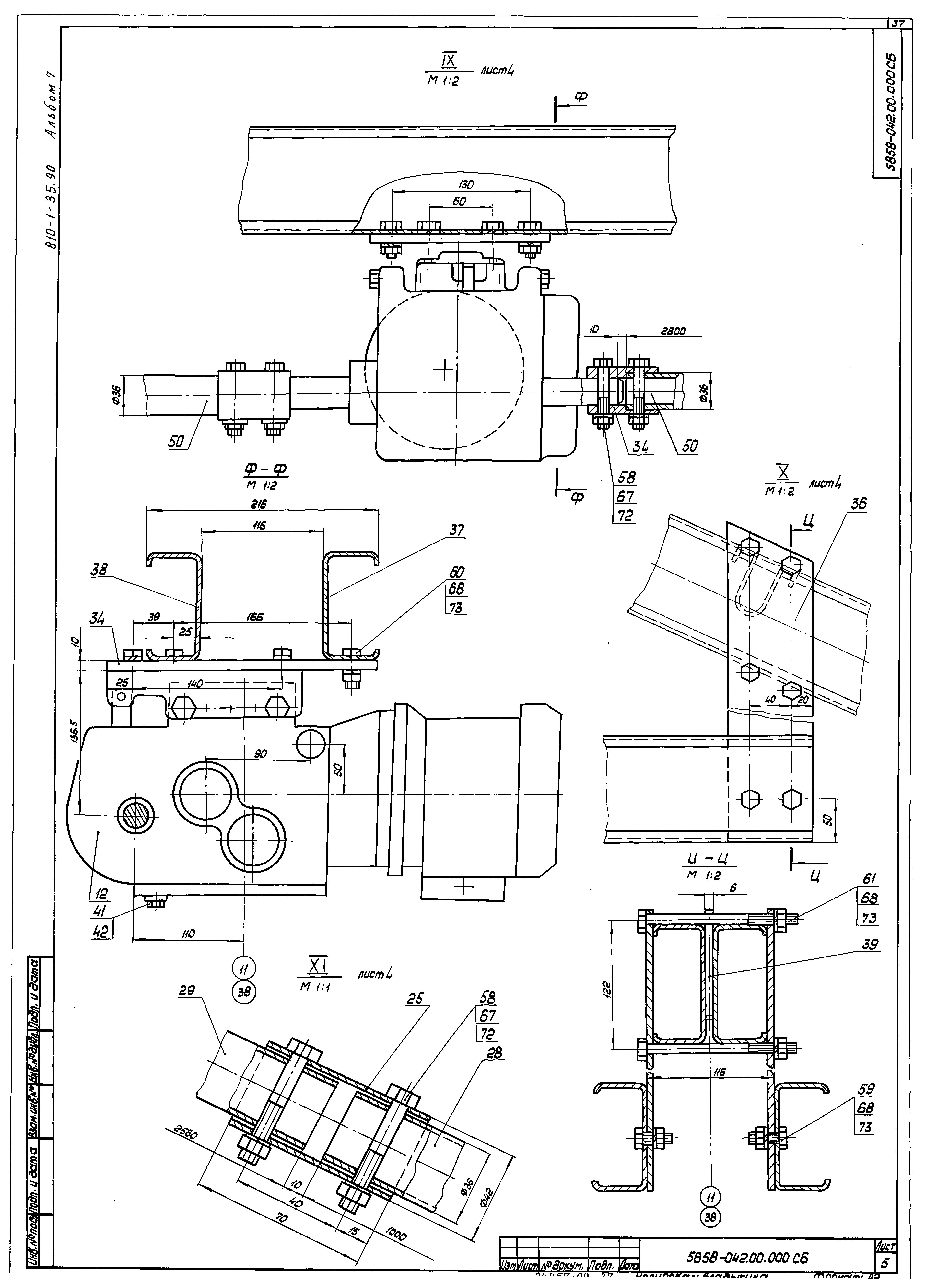
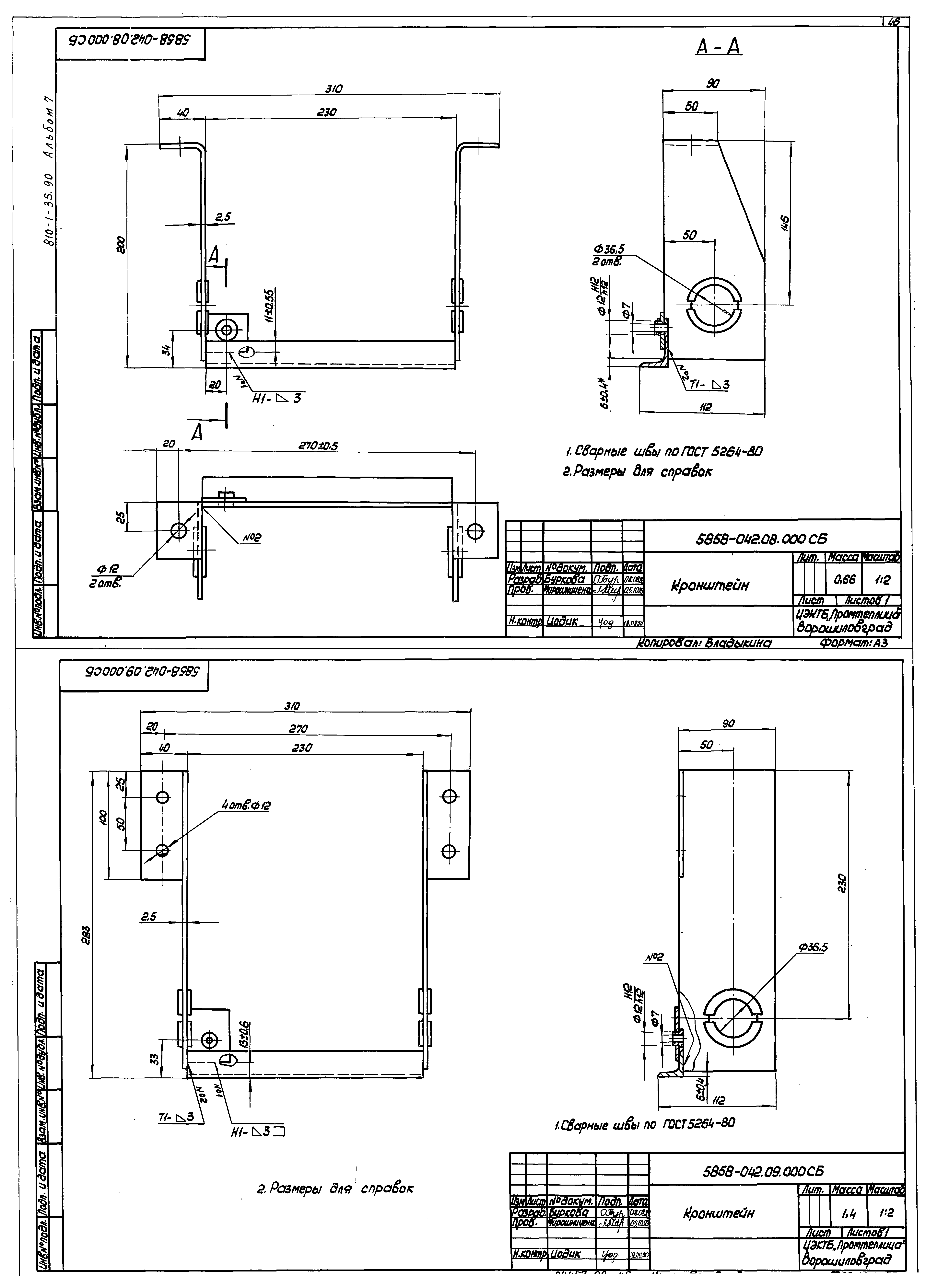
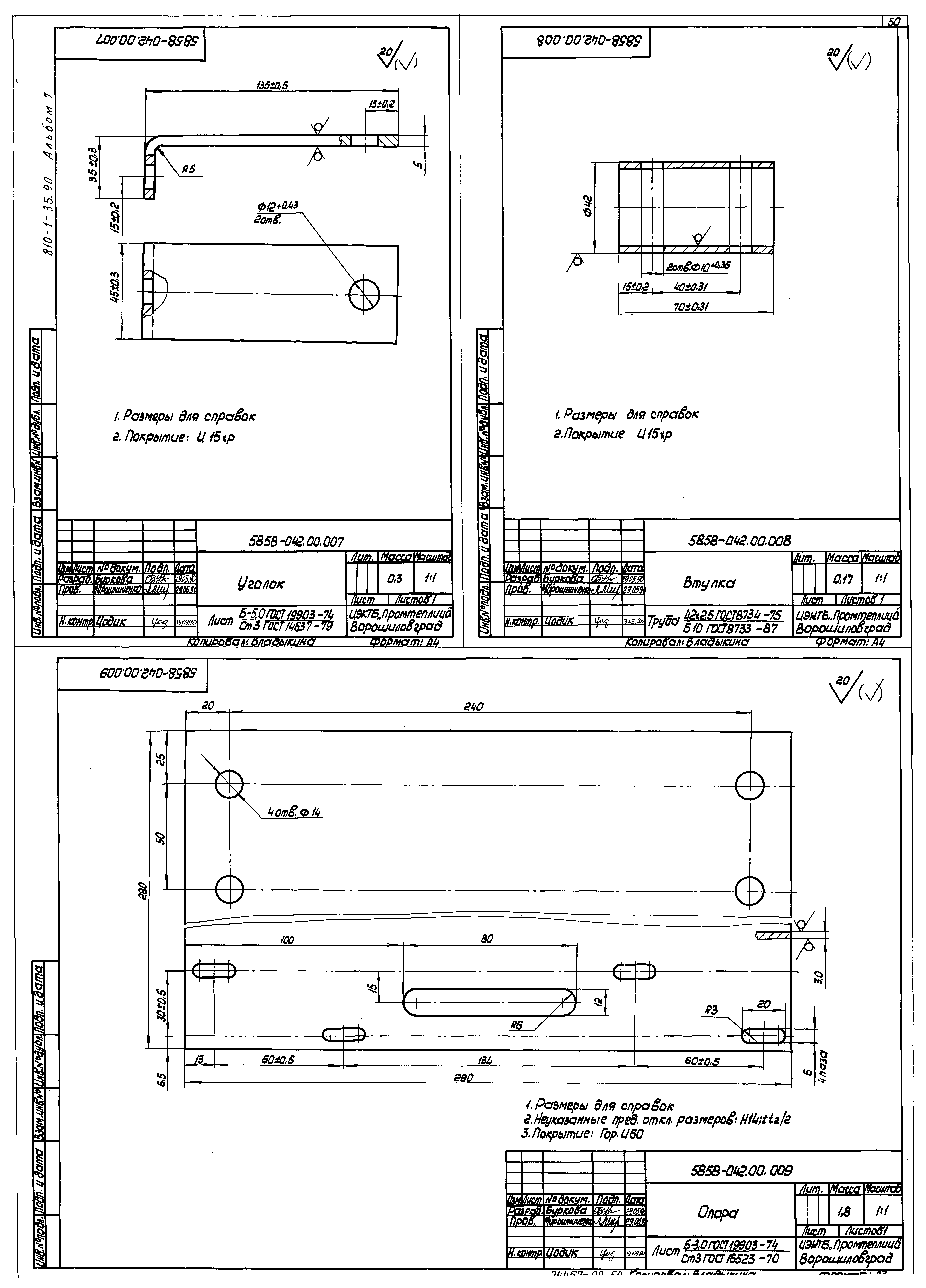
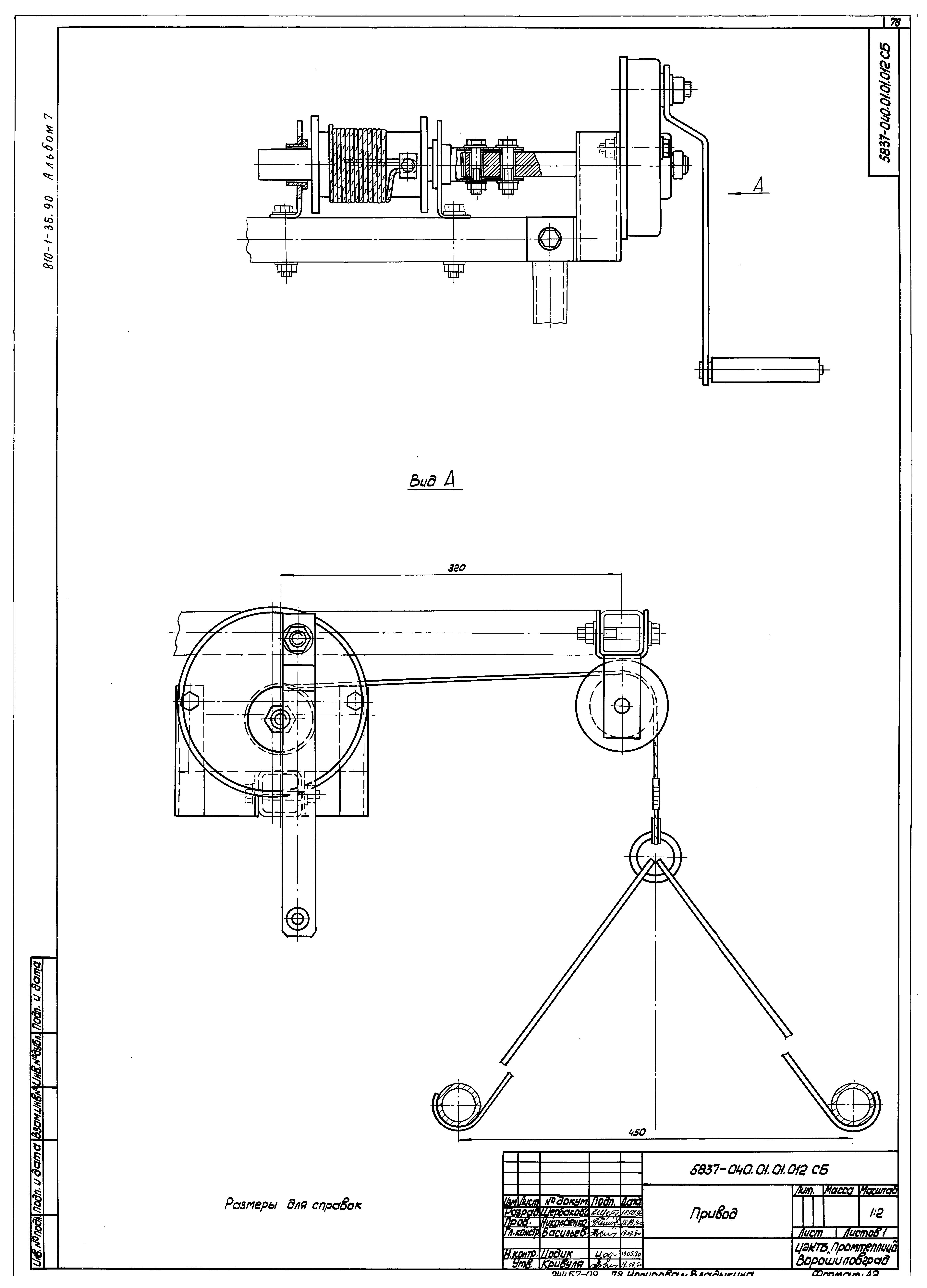
| Оглавление: | ТП810-1-35.90 5854-386МЧ Механизм вентиляции зимних теплиц пролетом 18 метров, площадью 3.0 га. Монтажный чертеж ТП810-1-35.90 5854-386 Механизм вентиляции зимних теплиц пролетом 18 метров, площадью 3.0 га. Спецификация ТП810-1-35.90 5854-386ИЭ Механизм вентиляции зимних теплиц пролетом 18 метров, площадью 3.0 га. Инструкция по эксплуатации ТП810-1-35.90 5854-386.01 Механизм коньковой вентиляции L=92.45 м. Спецификация комплекта монтажных частей ТП810-1-35.90 5854-386.01МЧ Механизм коньковой вентиляции L=92.45 м. Монтажный чертеж ТП810-1-35.90 5854-386.01.01СБ Опора МВ5-1. Сборочный чертеж ТП810-1-35.90 5854-361.01.02.000СБ Звездочка МВ3-2. Сборочный чертеж ТП810-1-35.90 5854-361.01.03.000СБ Звездочка МВ3-3. Сборочный чертеж ТП810-1-35.90 5854-386.01.002 Вал ТП810-1-35.90 5854-366.01.003 Кронштейн МВ5-17 ТП810-1-35.90 5854-366.01.004 Опора МВ5-18 ТП810-1-35.90 5854-366.01.001 Плита МВ5-7 ТП810-1-35.90 5854-065.011.104 Палец ТП810-1-35.90 5854-235.01.016.002 Рейка МВ1-79 ТП810-1-35.90 5854-235.01.016.006 Втулка МВ1-80 ТП810-1-35.90 5854-235.01.016.013 Втулка соединительная ТП810-1-35.90 5854-235.01.016.014 Колесо зубчатое МВ1-86 ТП810-1-35.90 5854-235.02.01.003 Хомут МВ1-25 ТП810-1-35.90 5854-270.06 Втулка МВ1-101 ТП810-1-35.90 5854-270.03.004 Корпус ТП810-1-35.90 5854-270.007 Вкладыш МВ1-102 ТП810-1-35.90 5854-361.01.00.004 Втулка соединительная МВ3-10 ТП810-1-35.90 5854-361.01.00.001 Корпус МВ3-7 ТП810-1-35.90 5854-361.01.00.005 Опора МВ3-11 ТП810-1-35.90 5854-361.01.00.006 Опора МВ3-12 ТП810-1-35.90 5854-361.01.00.007 Накладка МВ3-13 ТП810-1-35.90 5854-361.01.00.009 Упор МВ3-15 ТП810-1-35.90 5854-361.01.00.011 Упор МВ3-17 ТП810-1-35.90 5854-361.01.00.012 Кронштейн МВ3-18 ТП810-1-35.90 5854-384.01.009 Накладка МВ4-12 ТП810-1-35.90 5859-009.101 Вкладыш подшипника МВ3-38 ТП810-1-35.90 5854-386.02 Механизм коньковой вентиляции L=86,45 м. Спецификация комплекта монтажных частей ТП810-1-35.90 5854-386.02МЧ Механизм коньковой вентиляции L=86,45 м. Монтажный чертеж ТП810-1-35.90 5854-386.03 Механизм боковой вентиляции. Спецификация комплекта монтажных частей ТП810-1-35.90 5854-386.03МЧ Механизм боковой вентиляции. Монтажный чертеж ТП810-1-35.90 5854-386.03.01СБ Опора МВ5-24. Сборочный чертеж ТП810-1-35.90 5854-361.03.00.001 Корпус МВ3-42 ТП810-1-35.90 5854-270.03.001 Рейка МВ5-26 ТП810-1-35.90 5854-384.01.008 Плита МВ4-11 ТП810-1-35.90 5858-042.00.000 Механизм зашторивания зимней теплицы пролетом 18 метров площадью 3 га. Спецификация ТП810-1-35.90 5858-042.00.000СБ Механизм зашторивания зимней теплицы пролетом 18 метров площадью 3 га. Сборочный чертеж ТП810-1-35.90 5858-042.00.000ИМ Механизм зашторивания зимней теплицы пролетом 18 метров площадью 3 га. Инструкция по монтажу, пуску, регулированию и обкатке изделия на месте его применения ТП810-1-35.90 5858-042.01.000СБ Опора. Сборочный чертеж ТП810-1-35.90 5858-042.02.000СБ Опора. Сборочный чертеж ТП810-1-35.90 5858-042.03.000СБ Опора. Сборочный чертеж ТП810-1-35.90 5858-032.19.00.000СБ Блок. Сборочный чертеж ТП810-1-35.90 5858-042.05.000СБ Планка. Сборочный чертеж ТП810-1-35.90 5858-032.16.00.000СБ Ползун. Сборочный чертеж ТП810-1-35.90 5858-027.02.00.000СБ Шарнир. Сборочный чертеж ТП810-1-35.90 5858-042.08.000СБ Кронштейн. Сборочный чертеж ТП810-1-35.90 5858-042.09.000СБ Кронштейн. Сборочный чертеж ТП810-1-35.90 5858-042.10.000СБ Планка. Сборочный чертеж ТП810-1-35.90 5858-042.11.000СБ Упор. Сборочный чертеж ТП810-1-35.90 5858-016.017СБ Устройство натяжное. Сборочный чертеж ТП810-1-35.90 5858-016.111 Подвеска ТП810-1-35.90 5858-042.00.001 Балка ТП810-1-35.90 5858-042.00.002 Балка ТП810-1-35.90 5858-042.00.003 Штора ТП810-1-35.90 5858-032.00.00.036 Кнопка ТП810-1-35.90 5858-032.00.00.37 Шайба ТП810-1-35.90 5858-042.00.006 Скоба ТП810-1-35.90 5858-042.00.007 Уголок ТП810-1-35.90 5858-042.00.008 Втулка ТП810-1-35.90 5858-042.00.009 Опора ТП810-1-35.90 5858-042.00.010 Вал ТП810-1-35.90 5858-032.00.00.031 Пробка ТП810-1-35.90 5858-032.00.00.032 Прокладка ТП810-1-35.90 5858-032.00.00.029 Винт ТП810-1-35.90 5858-042.00.014 Плита ТП810-1-35.90 5858-027.00.00.002 Муфта ТП810-1-35.90 5858-042.00.016 Кронштейн ТП810-1-35.90 5858-042.00.017 Балка ТП810-1-35.90 5858-042.00.018 Балка ТП810-1-35.90 5858-042.00.019 Распорка ТП810-1-35.90 5858-042.00.020 Труба ТП810-1-35.90 5858-042.00.021 Переходник ТП810-1-35.90 5858-016.112-02 Зажим ТП810-1-35.90 5833-017 Устройство для обслуживания кровли теплиц пролетом 18 метров. Спецификация ТП810-1-35.90 5833-017.001 Пластина ТП810-1-35.90 5833-017СБ Устройство для обслуживания кровли теплиц пролетом 18 метров. Сборочный чертеж ТП810-1-35.90 5833-017ИЭ Устройство для обслуживания кровли теплиц пролетом 18 метров. Инструкция по эксплуатации ТП810-1-35.90 5833-017.01СБ Секция нижняя. Сборочный чертеж ТП810-1-35.90 5833-017.02СБ Платформа верхняя. Сборочный чертеж ТП810-1-35.90 5833-017.03СБ Опора. Сборочный чертеж ТП810-1-35.90 5833-017.04СБ Секция верхняя. Сборочный чертеж ТП810-1-35.90 5833-017.05СБ Лестница вертикальная. Сборочный чертеж ТП810-1-35.90 5833-017.02 Палец ТП810-1-35.90 5833-017.03 Пластина ТП810-1-35.90 5833-017.04 Подкос ТП810-1-35.90 5833-017.06СБ Кассета. Сборочный чертеж ТП810-1-35.90 5837-040 Устройство подъема регистров и шпалер зимних теплиц пролетом 18 м площадью 3 га. Спецификация ТП810-1-35.90 5837-040.01 Устройство подъема регистров и шпалер зимних теплиц пролетом 18 м площадью 3 га (овощная теплица). Спецификация ТП810-1-35.90 5837-040.02 Устройство подъема регистров и шпалер зимних теплиц пролетом 18 м площадью 3 га (овощная теплица). Спецификация ТП810-1-35.90 5837-040.03 Устройство подъема регистров и шпалер зимних теплиц пролетом 18 м площадью 3 га (рассадная теплица). Спецификация ТП810-1-35.90 5837-040СБ Устройство подъема регистров и шпалер зимних теплиц пролетом 18 м площадью 3 га. Сборочный чертеж ТП810-1-35.90 5837-040ИЭ Устройство подъема регистров и шпалер зимних теплиц пролетом 18 м площадью 3 га. Инструкция по эксплуатации ТП810-1-35.90 5837-040.01.01.000 Механизм подъема регистров и шпалер зимних теплиц пролетом 18 м площадью 3 га. Спецификация ТП810-1-35.90 5837-040.01СБ Устройство подъема регистров и шпалер зимних теплиц пролетом 18 м площадью 3 га (овощная теплица). Сборочный чертеж ТП810-1-35.90 5837-040.02СБ Устройство подъема регистров и шпалер зимних теплиц пролетом 18 м площадью 3 га (овощная теплица). Сборочный чертеж ТП810-1-35.90 5837-040.03СБ Устройство подъема регистров и шпалер зимних теплиц пролетом 18 м площадью 3 га (рассадная теплица). Сборочный чертеж ТП810-1-35.90 5837-040.01.01.000СБ Механизм подъема регистров и шпалер зимних теплиц пролетом 18 м площадью 3 га. Сборочный чертеж ТП810-1-35.90 5837-040.01.01.011СБ Лестница. Сборочный чертеж ТП810-1-35.90 5837-040.01.01.012СБ Привод. Сборочный чертеж ТП810-1-35.90 5837-040.01.02СБ Кронштейн. Сборочный чертеж ТП810-1-35.90 5837-040.01.03СБ Толкатель. Сборочный чертеж ТП810-1-35.90 5837-040.01.101 Крюк ТП810-1-35.90 5837-040.01.03.01СБ Подвеска. Сборочный чертеж |
| Разработан: | ЦЭКТБ Промтеплица Госагропрома СССР |
| Утверждён: | 21.09.1990 Главное научно-проектное управление по строительству Госкомиссии Совмина СССР по продовольствию и закупкам (11) |















































































