Скачать Типовой проект 407-3-526см.88 Альбом 3. Строительные изделияДата актуализации: 01.01.2021
|
| Обозначение: | Типовой проект 407-3-526см.88 |
| Обозначение англ: | 407-3-526см.88 |
| Статус: | не определен законодательством |
| Название рус.: | Альбом 3. Строительные изделия |
| Дата добавления в базу: | 01.09.2013 |
| Дата актуализации: | 01.01.2021 |
| Дата введения: | 06.10.1988 |
| Дата окончания срока действия: | 30.06.2003 |
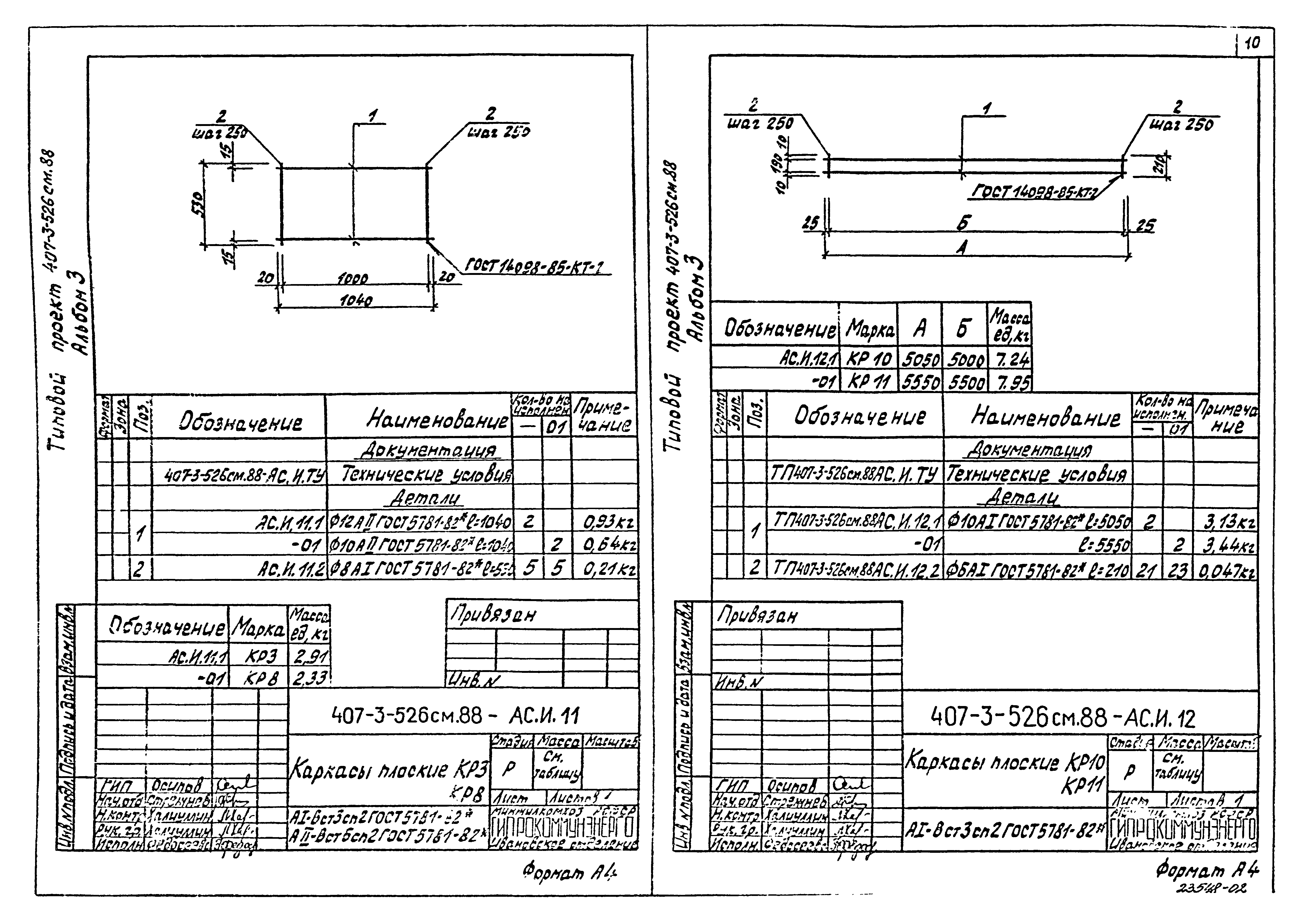
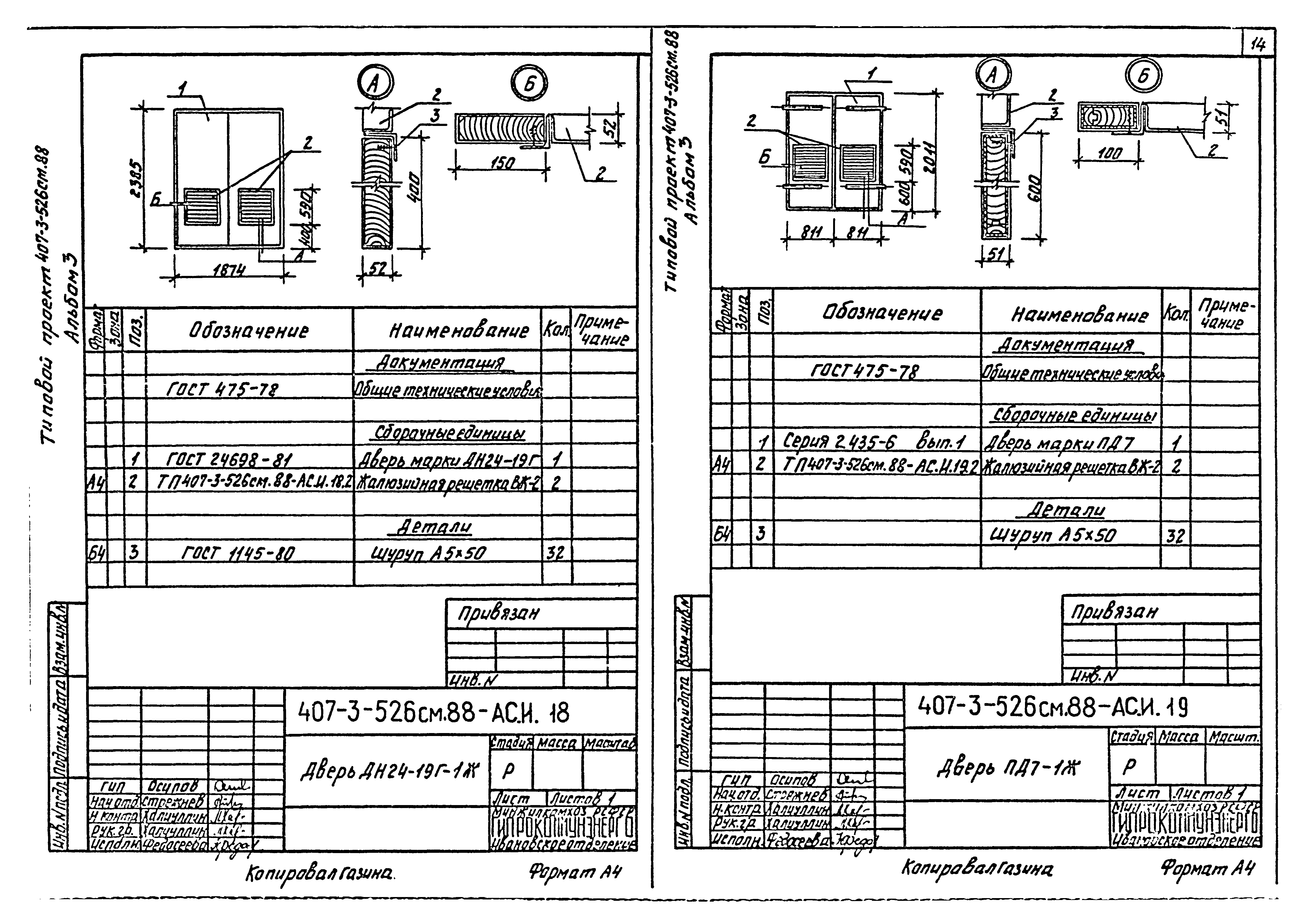
| Оглавление: | АС.И.ТУ Технические условия АС.И.01 Изделие закладное МН1;МН2 АС.И.02 Изделие закладное МН3 АС.И.03 Изделие закладное МН4 АС.И.04 Изделие закладное МН5 АС.И.05 Изделие закладное МН6;МН7 АС.И.06 Изделие закладное МН8 АС.И.07 Изделие закладное МН9;МН10;МН11 АС.И.08 Перегородка ПГ-1 (ПГ8,9,7,8-5г-А) АС.И.09 Каркасы плоские КР1,КР4,КР5 АС.И.10 Каркасы плоские КР2,КР5,КР7;КР9 АС.И.11 Каркасы плоские КР3,КР8 АС.И.12 Каркасы плоские КР10,КР11 АС.И.13 Сетки арматурные С1;С2;С3;С4 АС.И.14 Вентиляционная жалюзийная решетка ВЖ-2 АС.И.15 Вентиляционная жалюзийная решетка ВЖ-3 АС.И.16 Вентиляционная жалюзийная решетка ВЖ-4 АС.И.17 Вентиляционная жалюзийная решетка ВЖ-5 АС.И.18 Дверь ДН24-19Г-1Ж АС.И.19 Дверь ПД7-1Ж АС.И.20 Арматурные сетки С5;С6;С7;С8 АС.И.21 Каркасы плоские КР12;КР13;КР14;КР15;КР16;КР17;КР18 АС.И.22 Каркасы плоские КР19;КР20;КР21;КР22;КР23;КР24;КР25 АС.И.23 Сетки арматурные С9;С10;С11;С12 АС.И.24 Изделие соединительное МС1 АС.И.25 Изделие соединительное МС2 АС.И.26 Плиты 1П3-1АIVТА, 1П3-4АIVТА АС.И.27 Плиты 1П5-1АIVТА, 1П5-2АIVТА, 1П5-3АIVТА АС.И.28 Плита 1П1-1АIVТА АС.И.29 Плиты 1П4-1АIVТА, 1П4-3АIVТА, 1П6-1АIVТА, 1П6-3АIVТА |
| Разработан: | Ивановское отделение института Гипрокоммунэнерго МЖКХ РСФСР |
| Утверждён: | 06.10.1988 Минжилкомхоз РСФСР (Russian Federation Minzhilkomkhoz 248) |





















