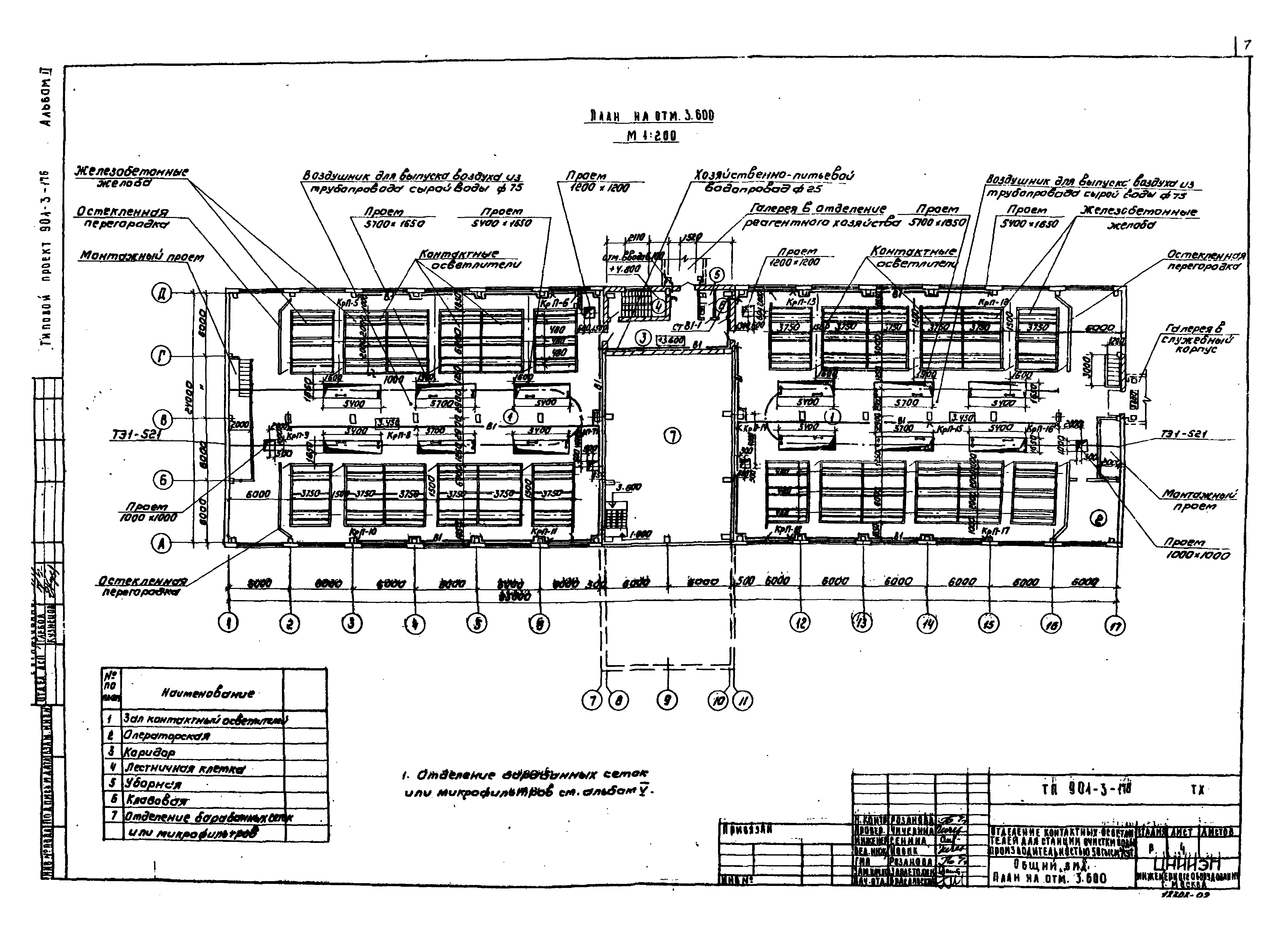
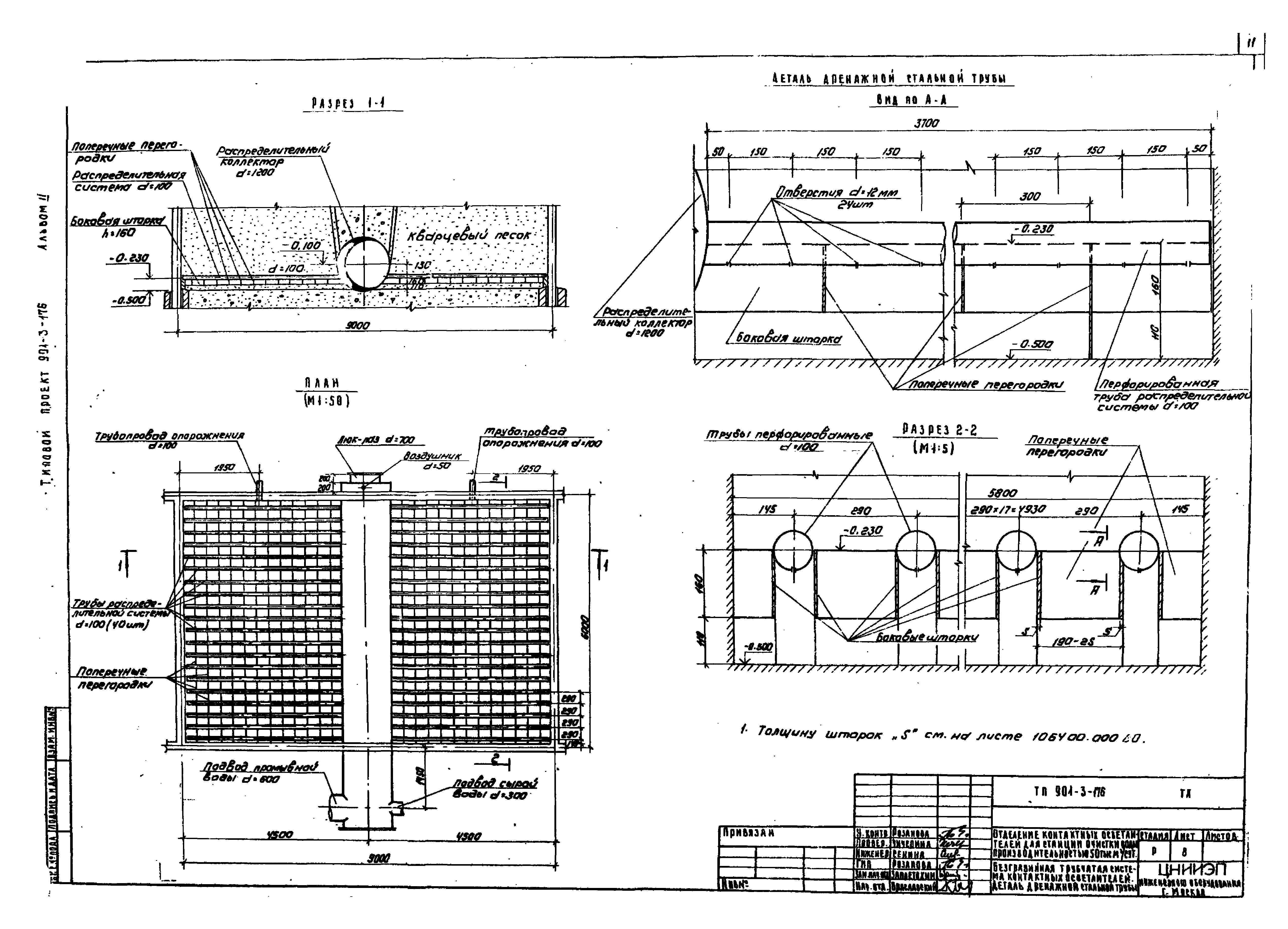
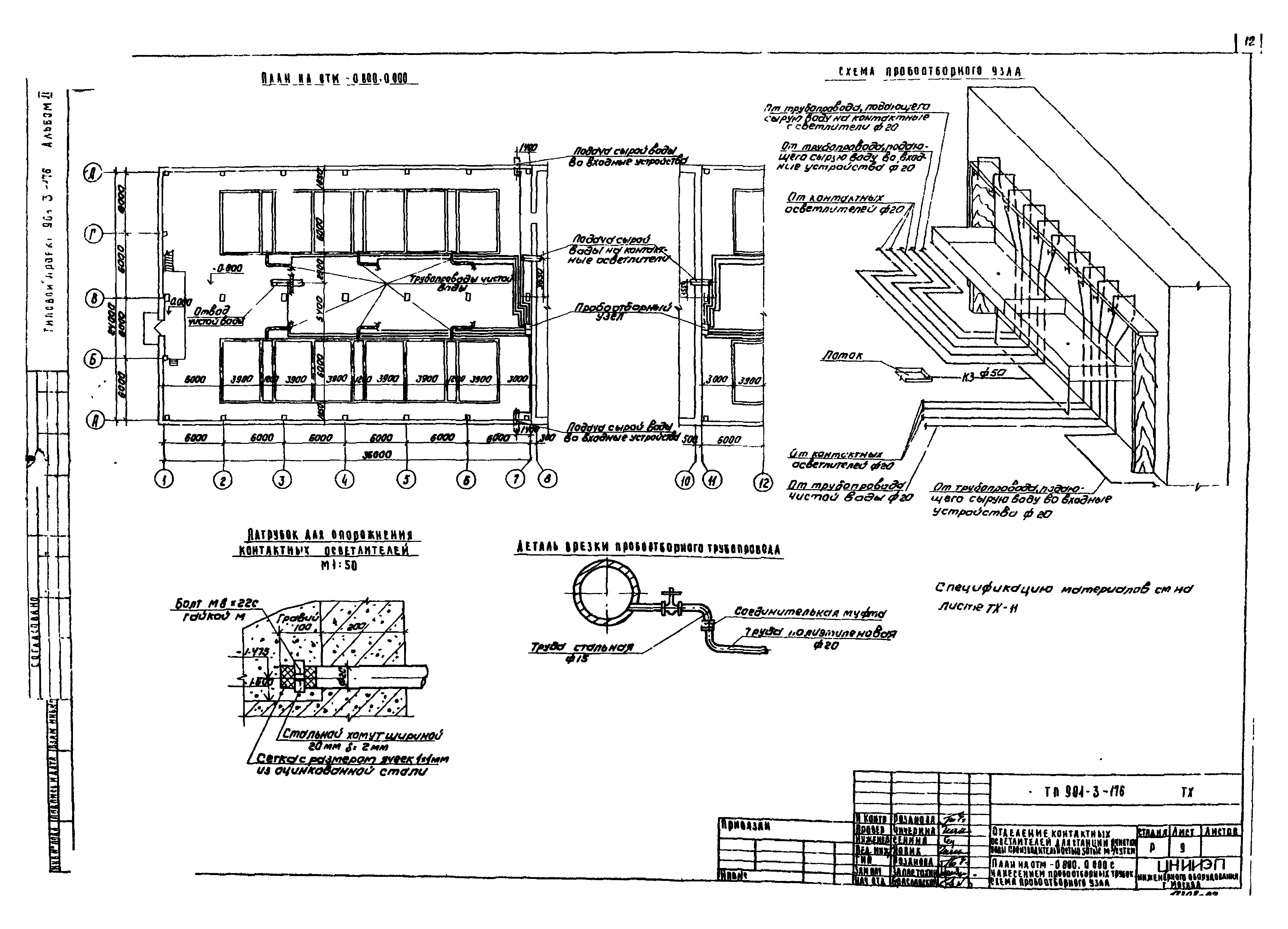
Скачать Типовой проект 901-3-176 Альбом II. Технологическая, санитарно-техническая части отделения контактных осветлителейДата актуализации: 01.01.2021 Типовой проект 901-3-176
Альбом II. Технологическая, санитарно-техническая части отделения контактных осветлителей| Обозначение: | Типовой проект 901-3-176 | | Обозначение англ: | 901-3-176 | | Статус: | не определен законодательством | | Название рус.: | Альбом II. Технологическая, санитарно-техническая части отделения контактных осветлителей | | Дата добавления в базу: | 01.09.2013 | | Дата актуализации: | 01.01.2021 | | Дата введения: | 25.06.1982 | | Дата окончания срока действия: | 30.06.2003 | | Разработан: | ЦНИИЭП инженерного оборудования
| | Утверждён: | 31.10.1981 Госгражданстрой (Gosgrazhdanstroy 297)
|
               
|