Скачать Типовой проект 503-6-15.95 Альбом 2. Площадка АЗС. Технологические коммуникации. Архитектурно-строительные решения. Конструкции металлические. Наружные сети водоснабжения и канализации. Линии электропередач кабельные. Молниезащита и заземление. Электроосвещение наружноеДата актуализации: 01.01.2021
|
| Обозначение: | Типовой проект 503-6-15.95 |
| Обозначение англ: | 503-6-15.95 |
| Статус: | не определен законодательством |
| Название рус.: | Альбом 2. Площадка АЗС. Технологические коммуникации. Архитектурно-строительные решения. Конструкции металлические. Наружные сети водоснабжения и канализации. Линии электропередач кабельные. Молниезащита и заземление. Электроосвещение наружное |
| Дата добавления в базу: | 01.09.2013 |
| Дата актуализации: | 01.01.2021 |
| Дата введения: | 30.08.1995 |
| Дата окончания срока действия: | 30.06.2003 |
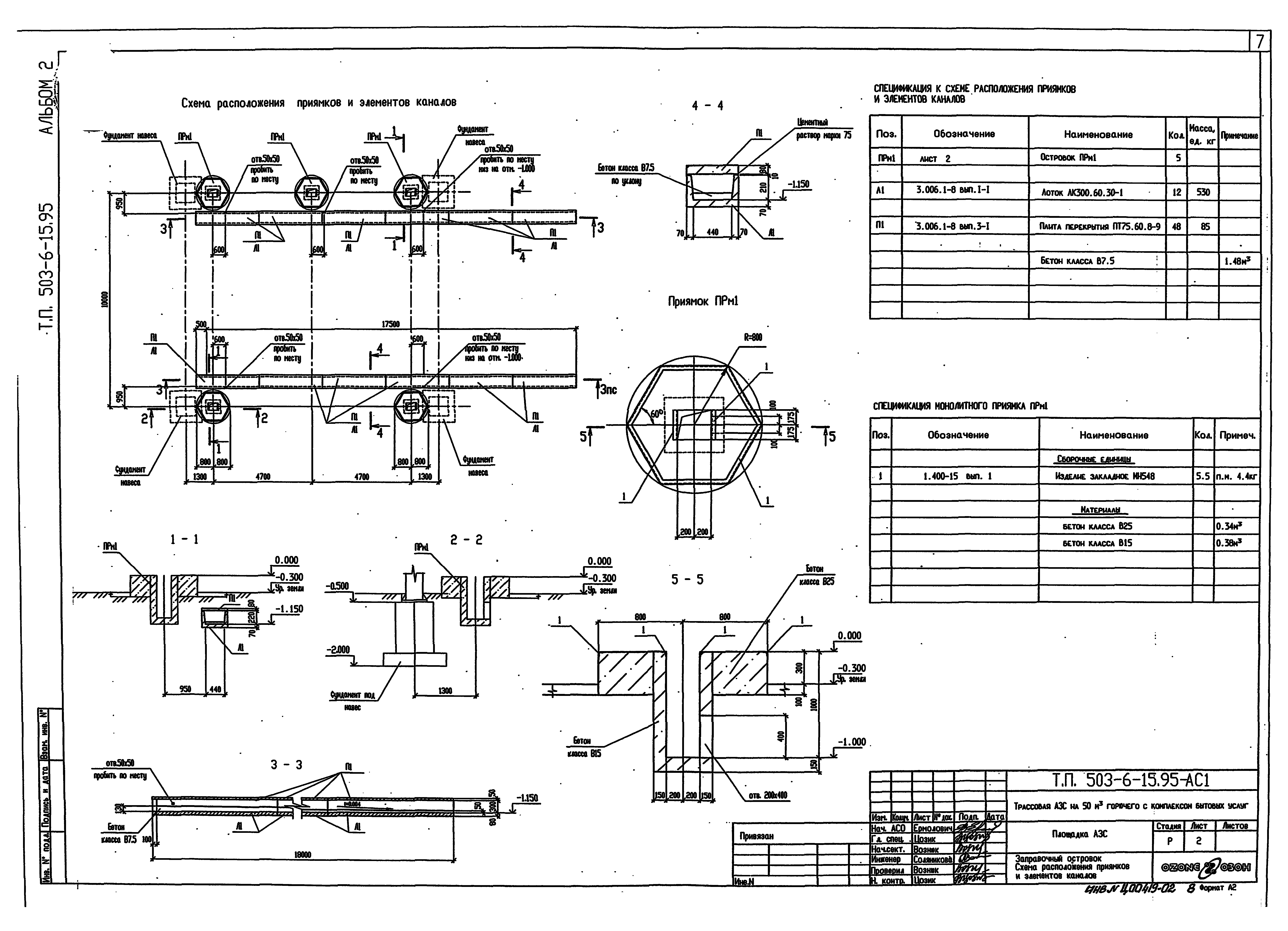
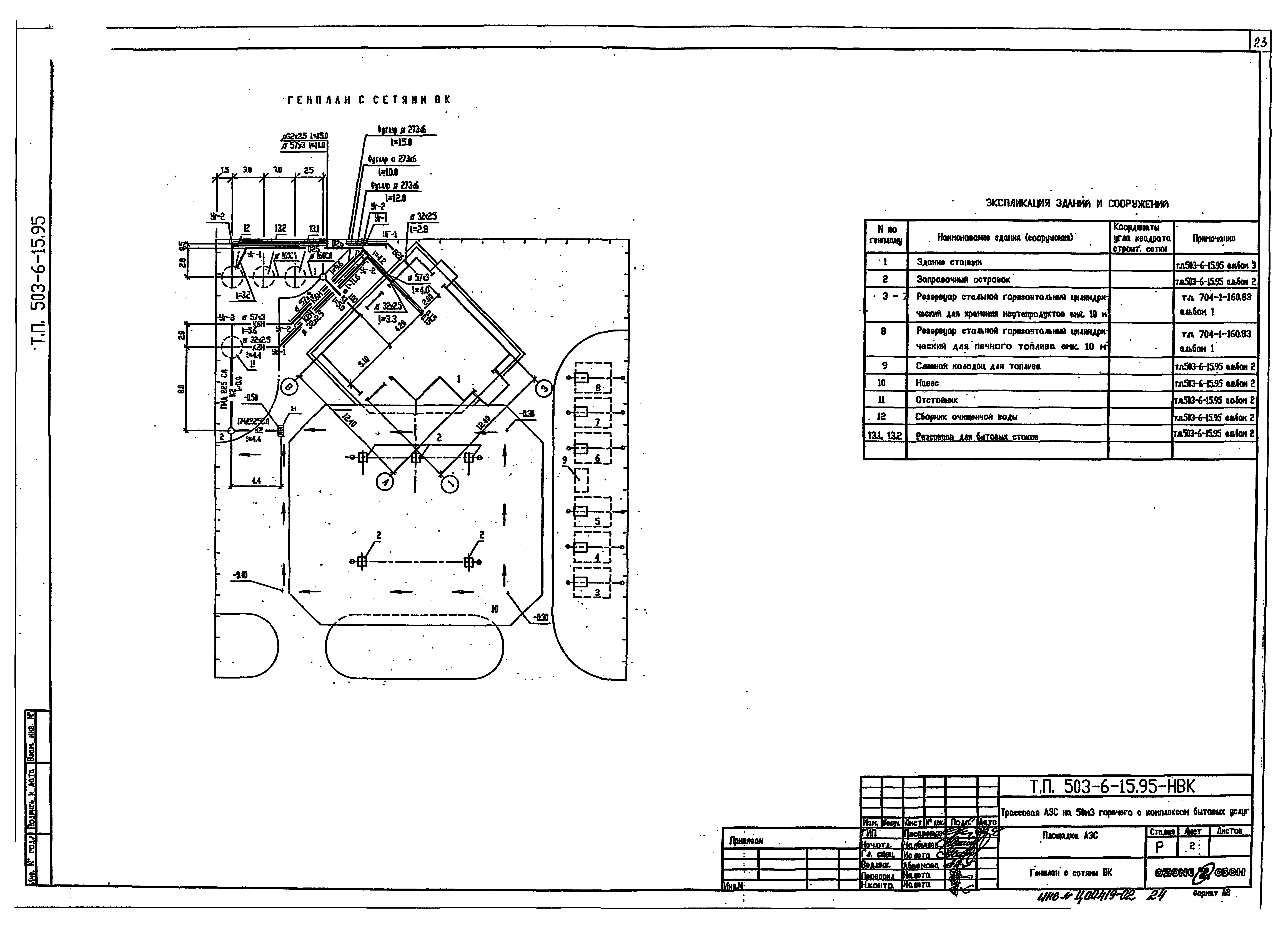
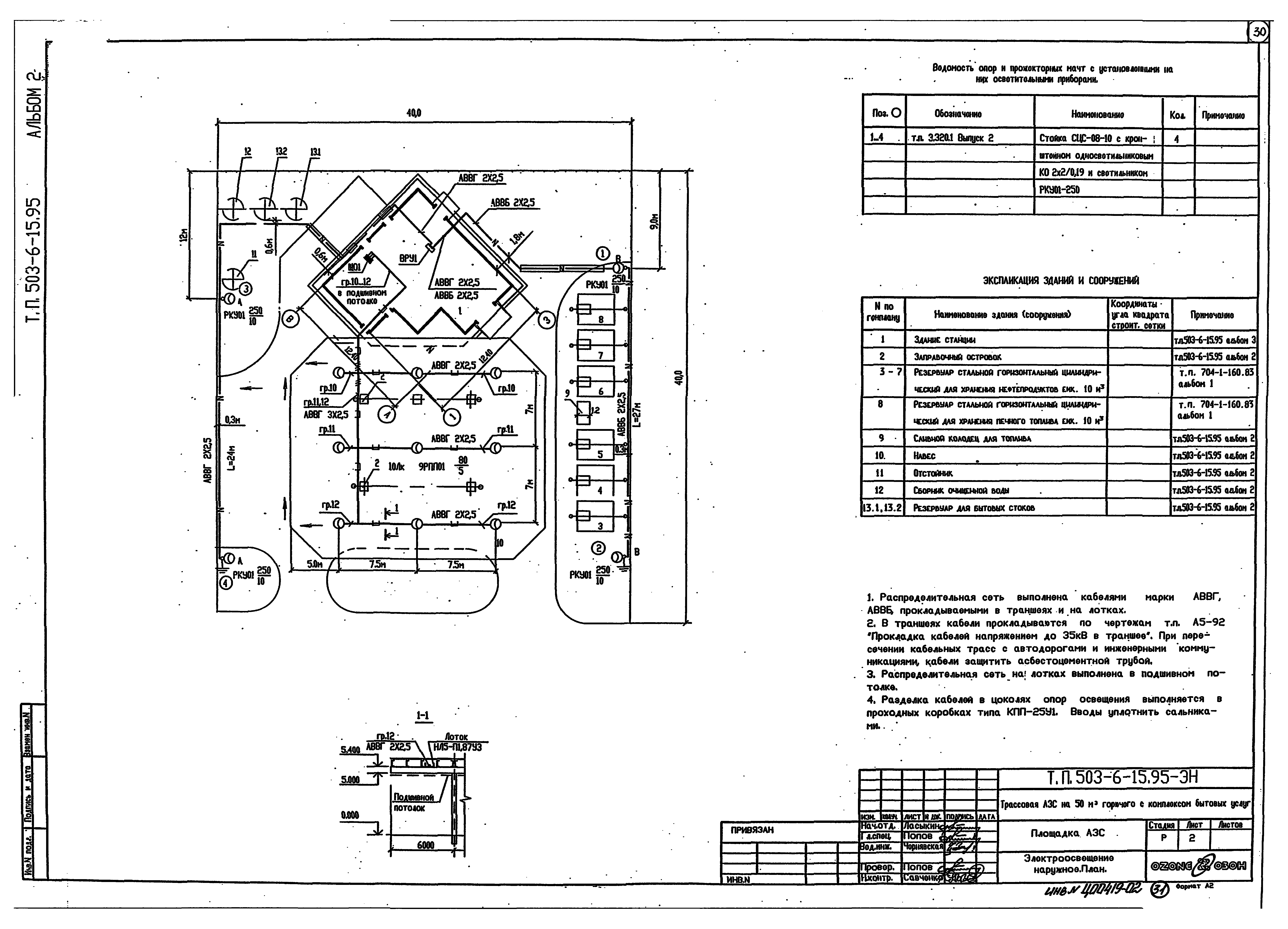
| Оглавление: | Технологические коммуникации Общие данные План и схема технологических трубопроводов План трассы подачи печного топлива. Продольный профиль Архитектурно-строительные решения Общие данные Заправочный островок. Схема расположения приямков и элементов каналов Сливной колодец для топлива. Колодец КС1 Навес. Схема расположения фундаментов. Фундамент Фм1 Навес. Схема расположения карнизных панелей Навес. План кровли. Разрез 1-1. Узлы Отстойник. Схема расположения элементов Сборник очищенной воды. Схема расположения элементов Резервуар для бытовых стоков. Схема расположения элементов Ограждение территории Конструкции металлические Общие данные Техническая спецификация металла Схема расположения балок покрытия и стоек навеса Узел 1 Узлы 2…8 Навес. План подвесного потолка. Узлы Наружные сети водоснабжения и канализации Общие данные. Таблица канализационных колодцев Генплан с сетями ВК Профили сетей К1, К2, К2Н, К6Н, В25, В26 Линии электропередач кабельные Общие данные. Кабельный журнал Линии электропередач кабельные. План Молниезащита и заземление Общие данные. Таблица расчета молниезащиты. Зона защиты молниеприемников Молниезащита и заземление. Генплан. Конструкция молниеприемника Электроосвещение наружное Общие данные Электроосвещение наружное. План |
| Разработан: | АО ОЗОН |
| Утверждён: | 30.08.1995 Комитет РФ по химической и нефтехимической промышленности (ЕР1879-19/09) |






























