Скачать Типовой проект 503-6-15.95 Альбом 3. Здание станции. Технология производства. Автоматизация технологии производства. Архитектурно-строительные решения. Отопление и вентиляция. Автоматизация отопления и вентиляции. Внутренние водопровод и канализация. Электрооборудование силовое. Электрооборудование внутреннее. Системы связи. Автоматизация устройств сигнализацииДата актуализации: 01.01.2021
|
| Обозначение: | Типовой проект 503-6-15.95 |
| Обозначение англ: | 503-6-15.95 |
| Статус: | не определен законодательством |
| Название рус.: | Альбом 3. Здание станции. Технология производства. Автоматизация технологии производства. Архитектурно-строительные решения. Отопление и вентиляция. Автоматизация отопления и вентиляции. Внутренние водопровод и канализация. Электрооборудование силовое. Электрооборудование внутреннее. Системы связи. Автоматизация устройств сигнализации |
| Дата добавления в базу: | 01.09.2013 |
| Дата актуализации: | 01.01.2021 |
| Дата введения: | 30.08.1995 |
| Дата окончания срока действия: | 30.06.2003 |
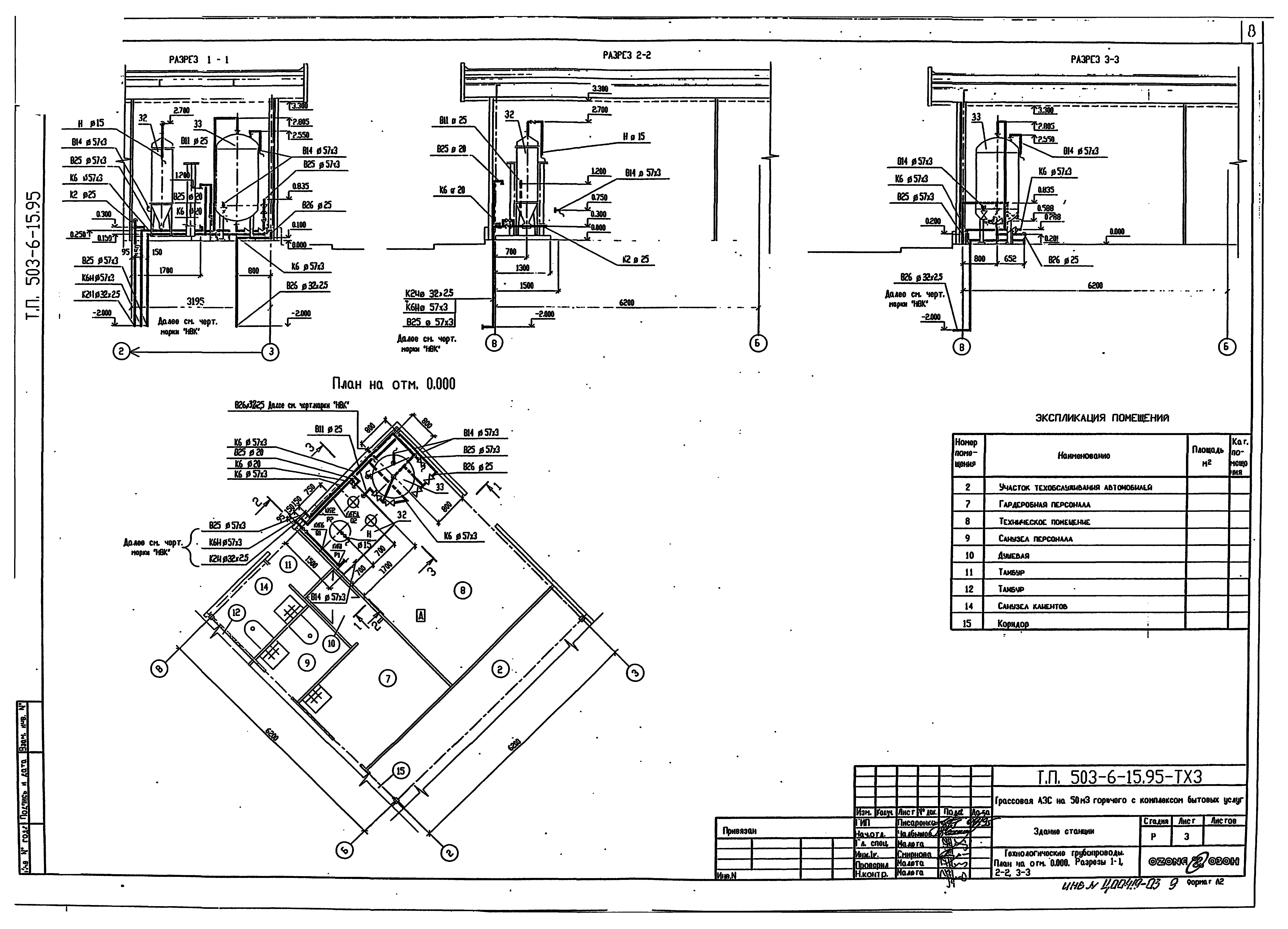
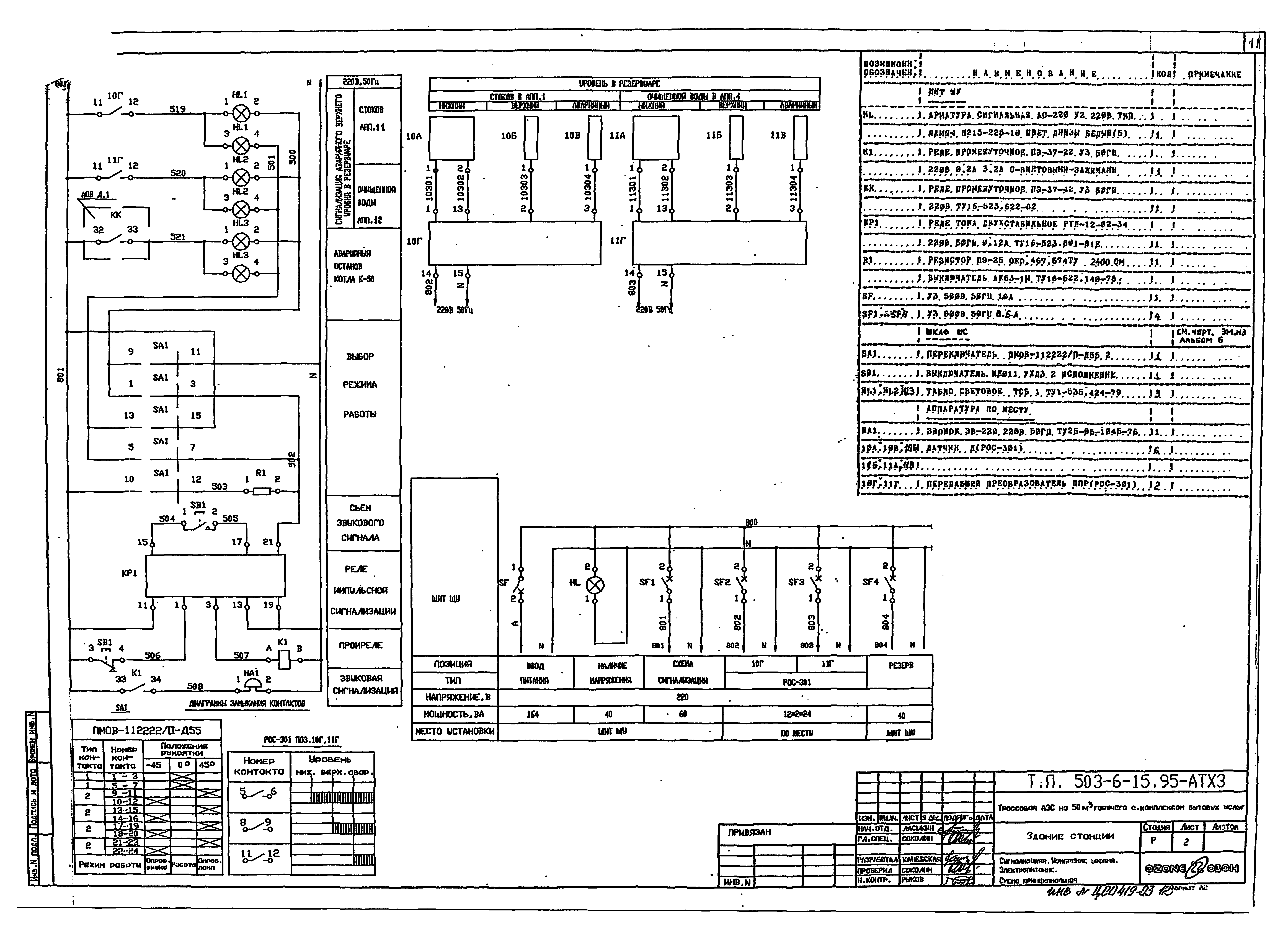
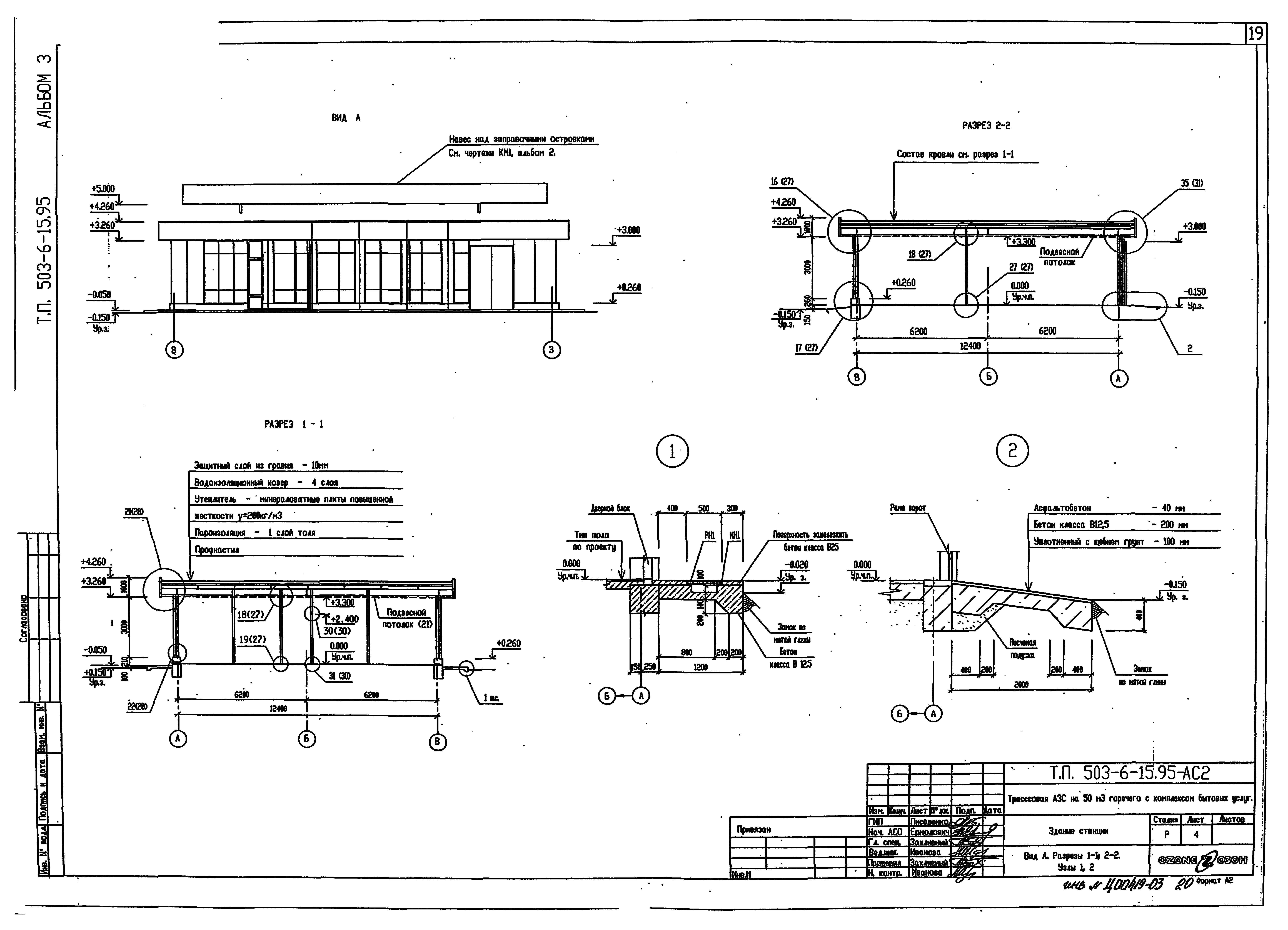
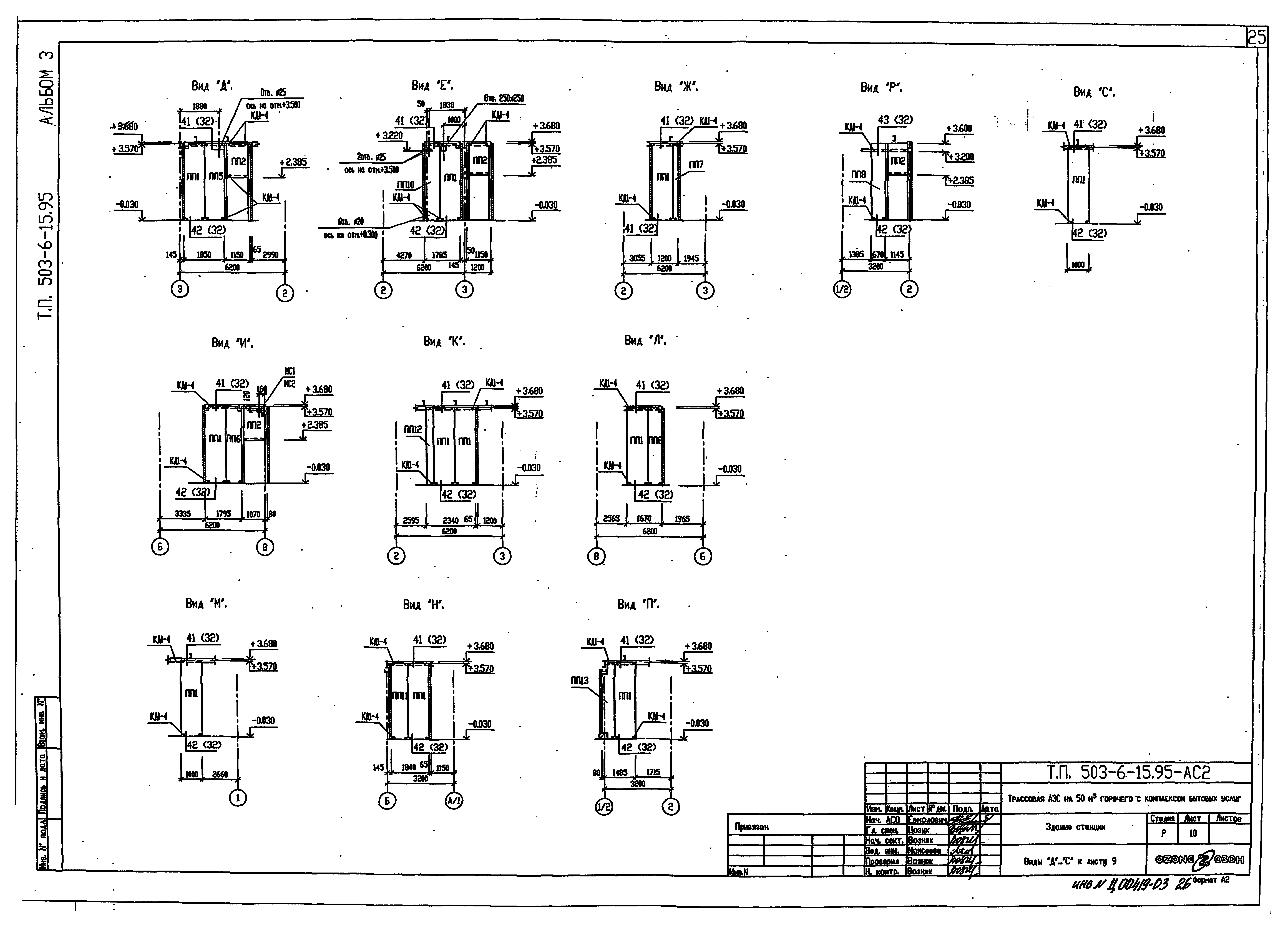
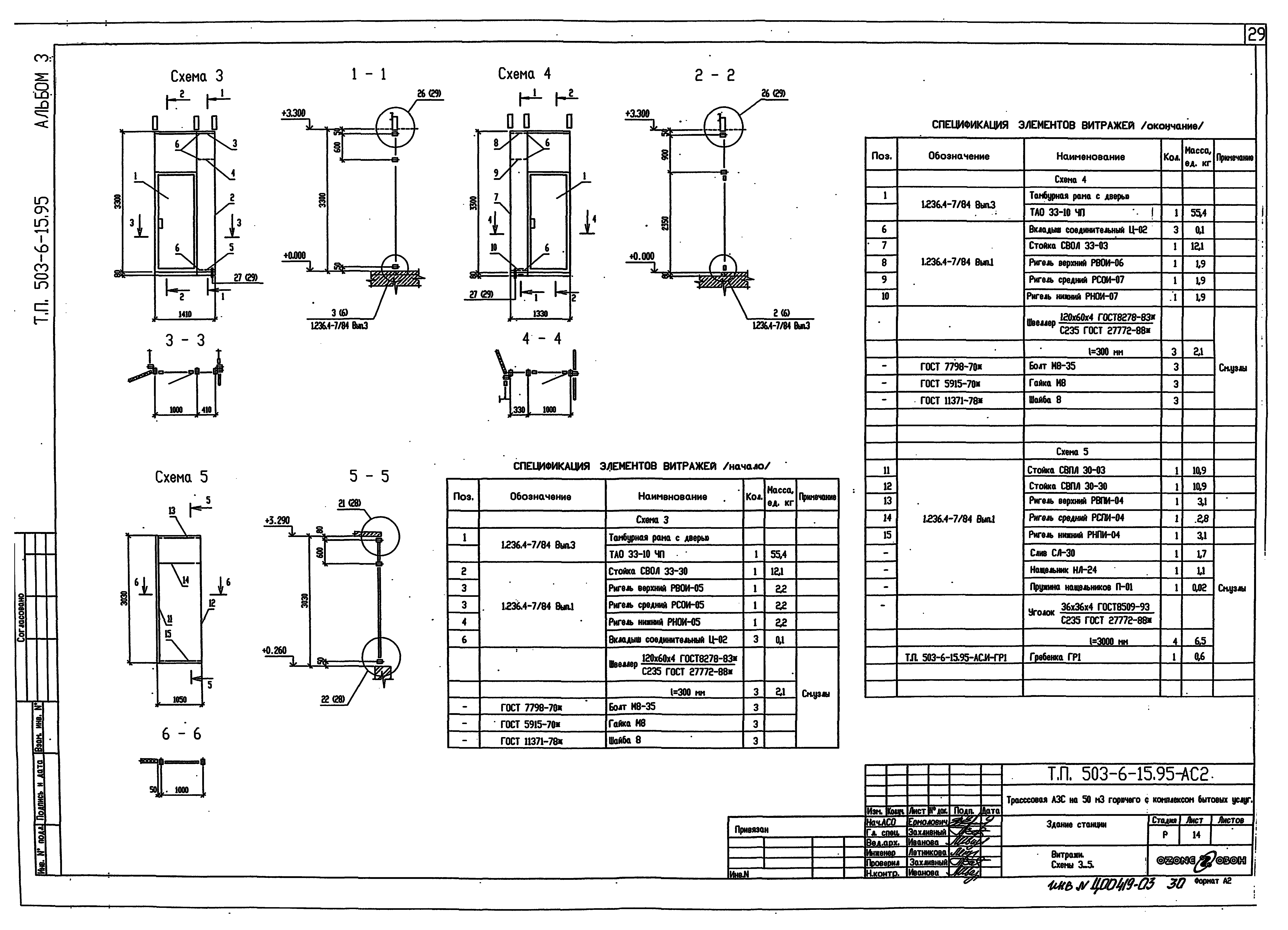
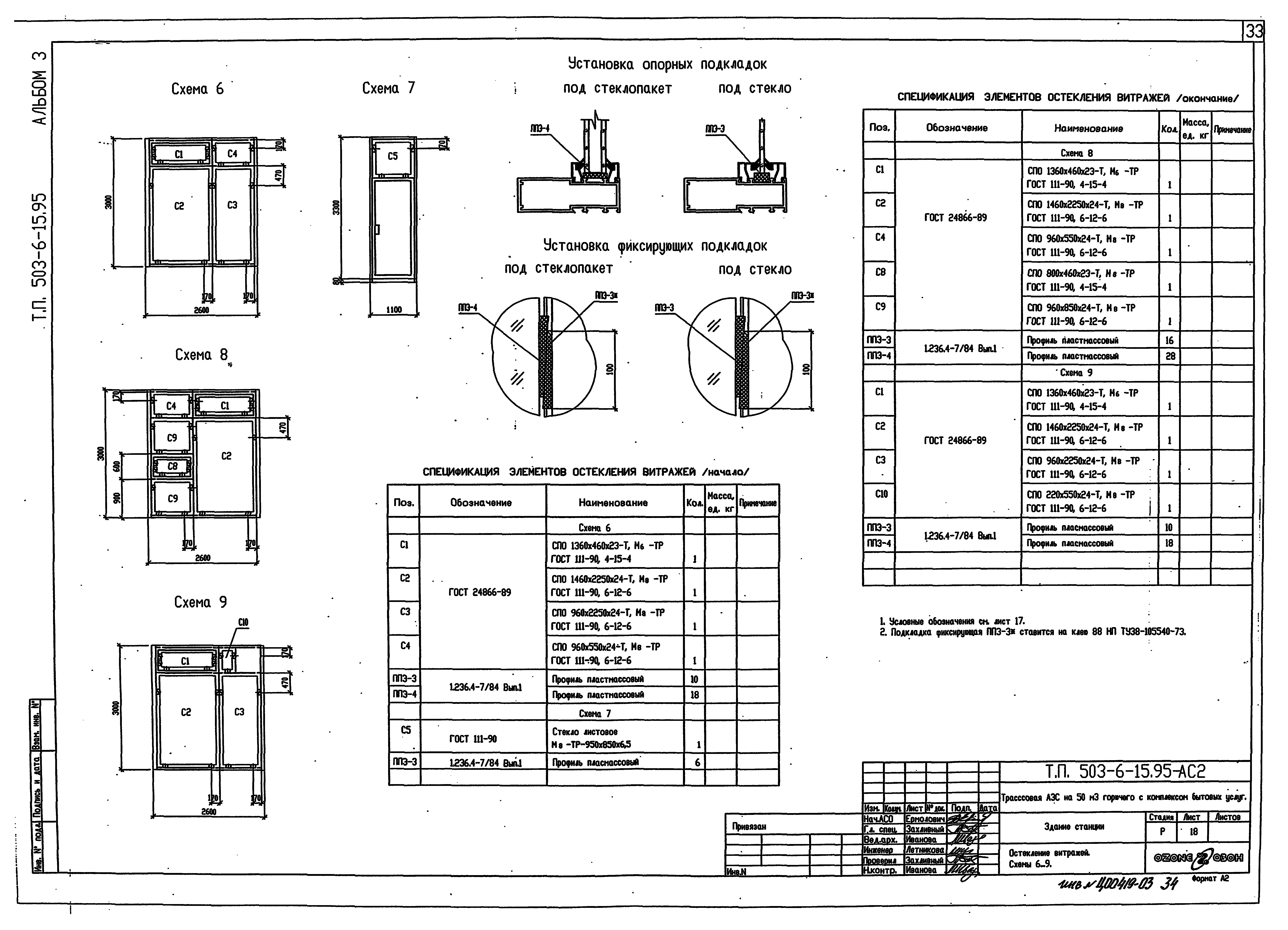
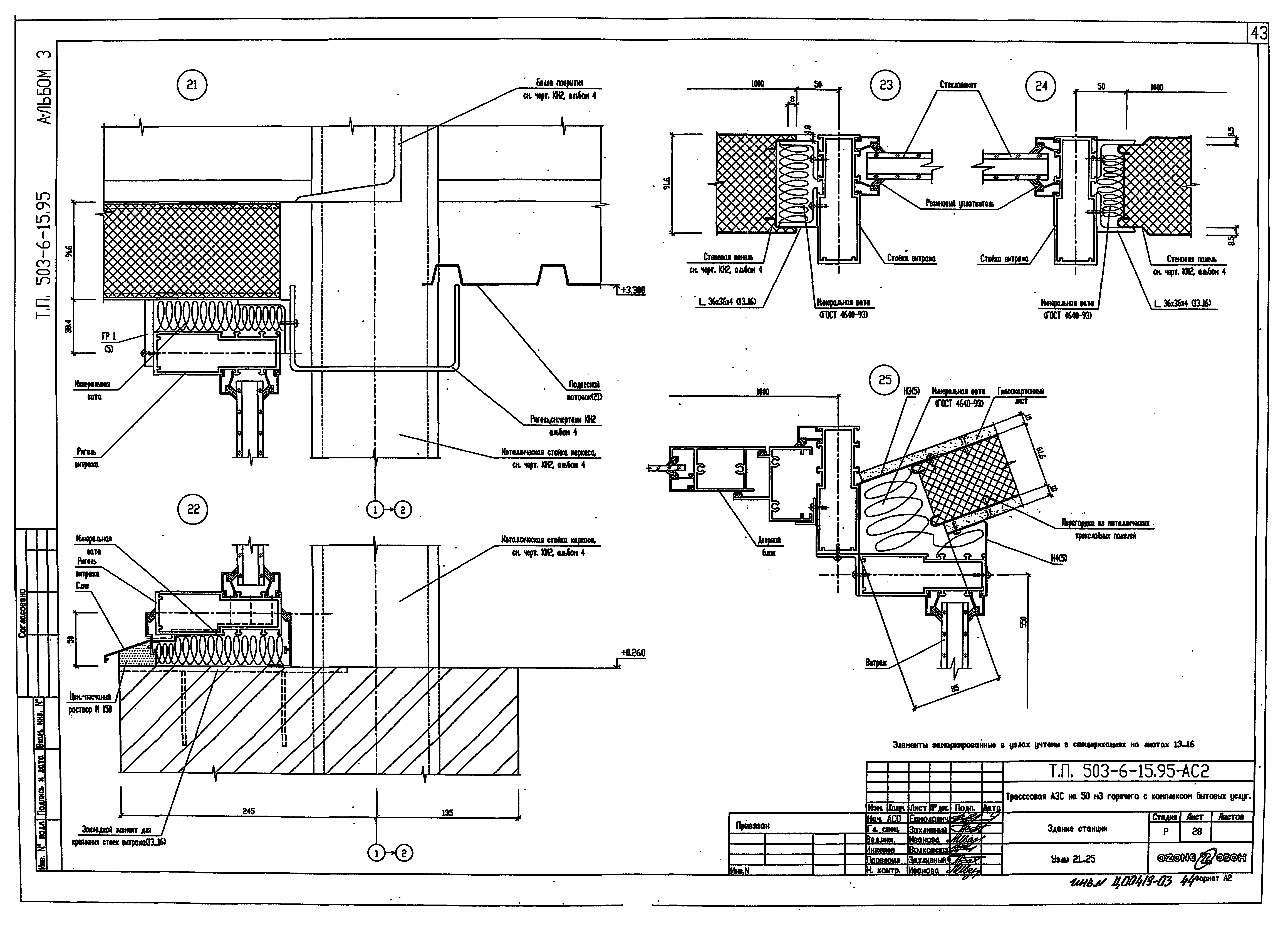
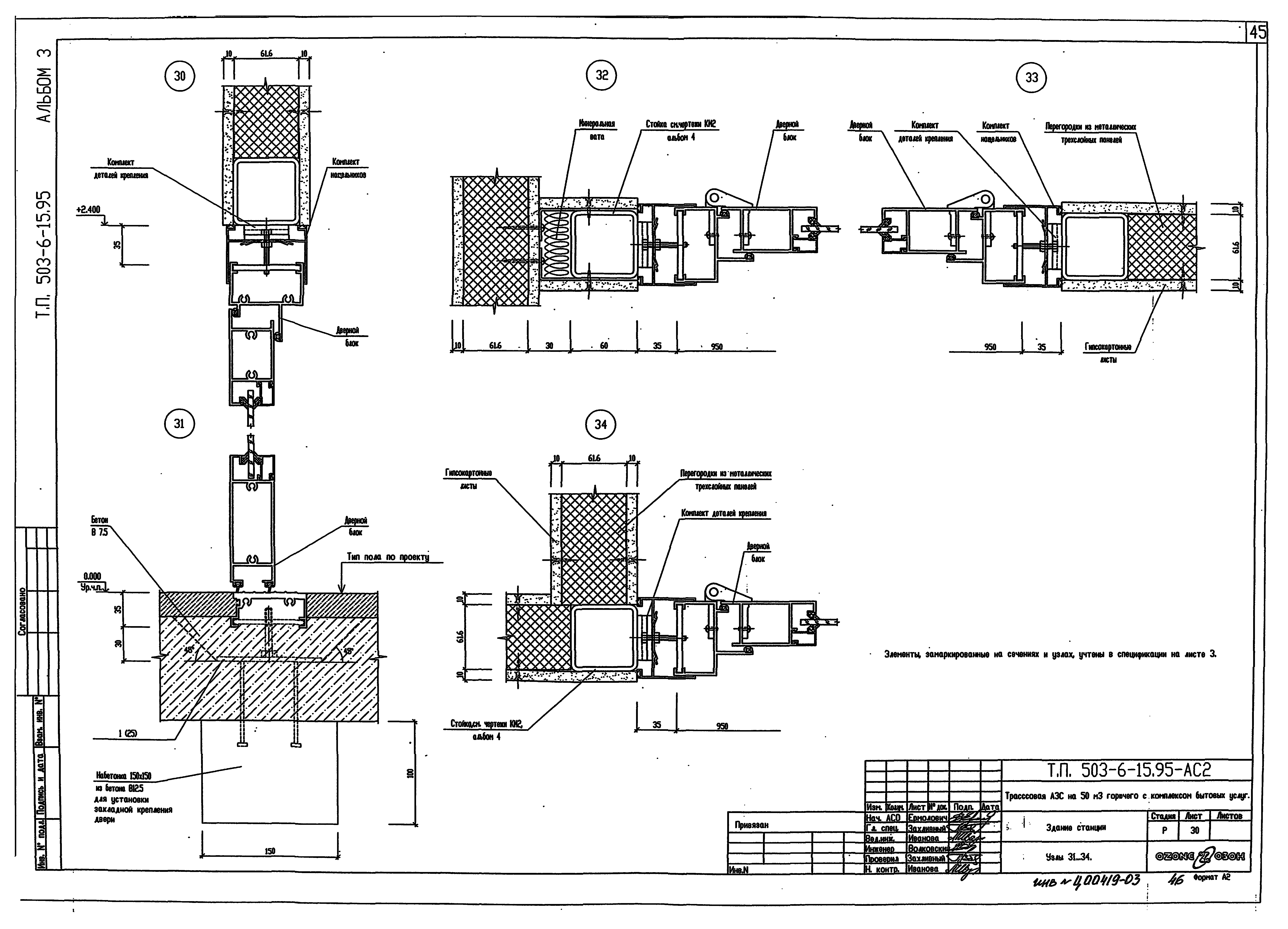
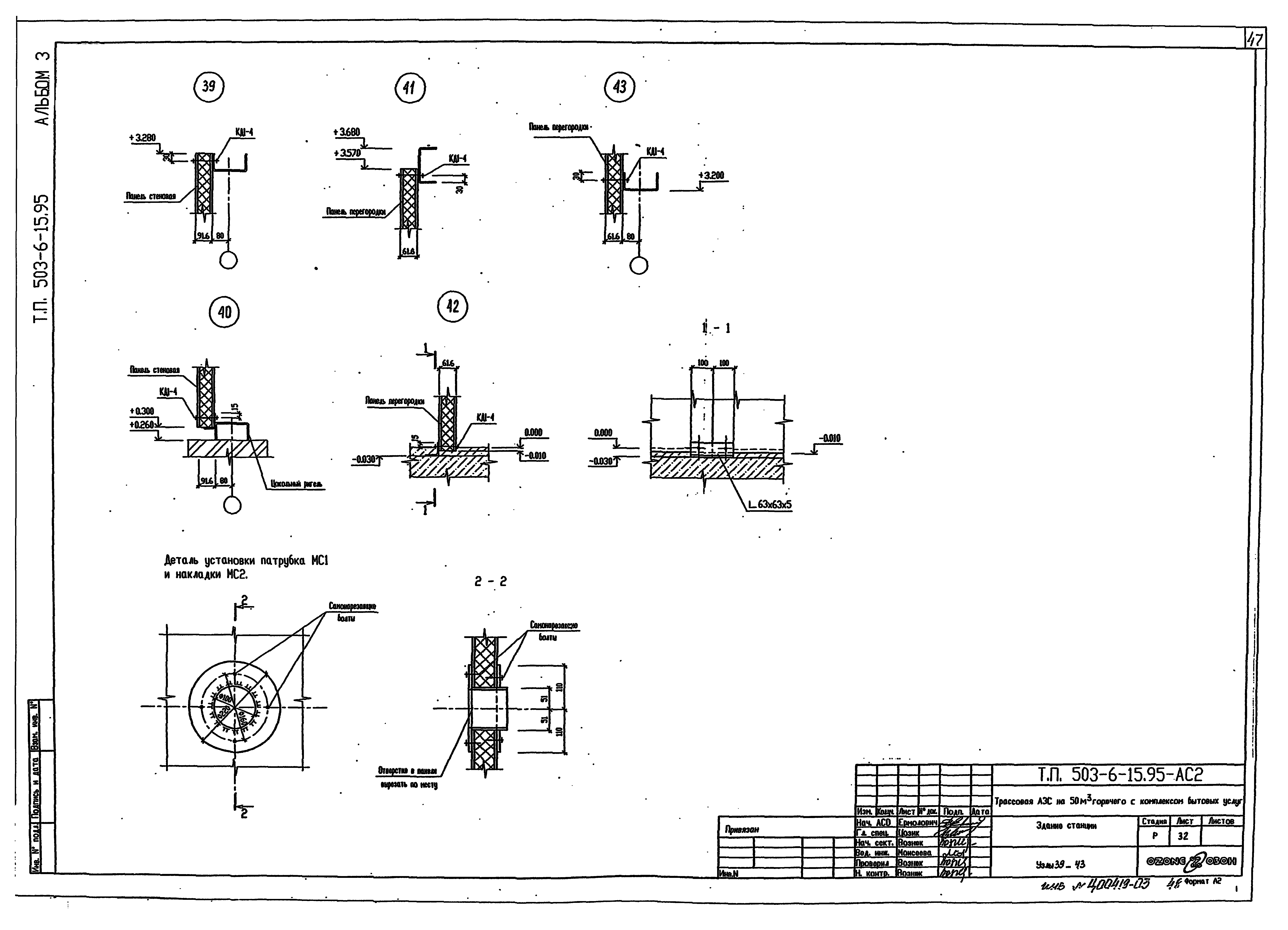
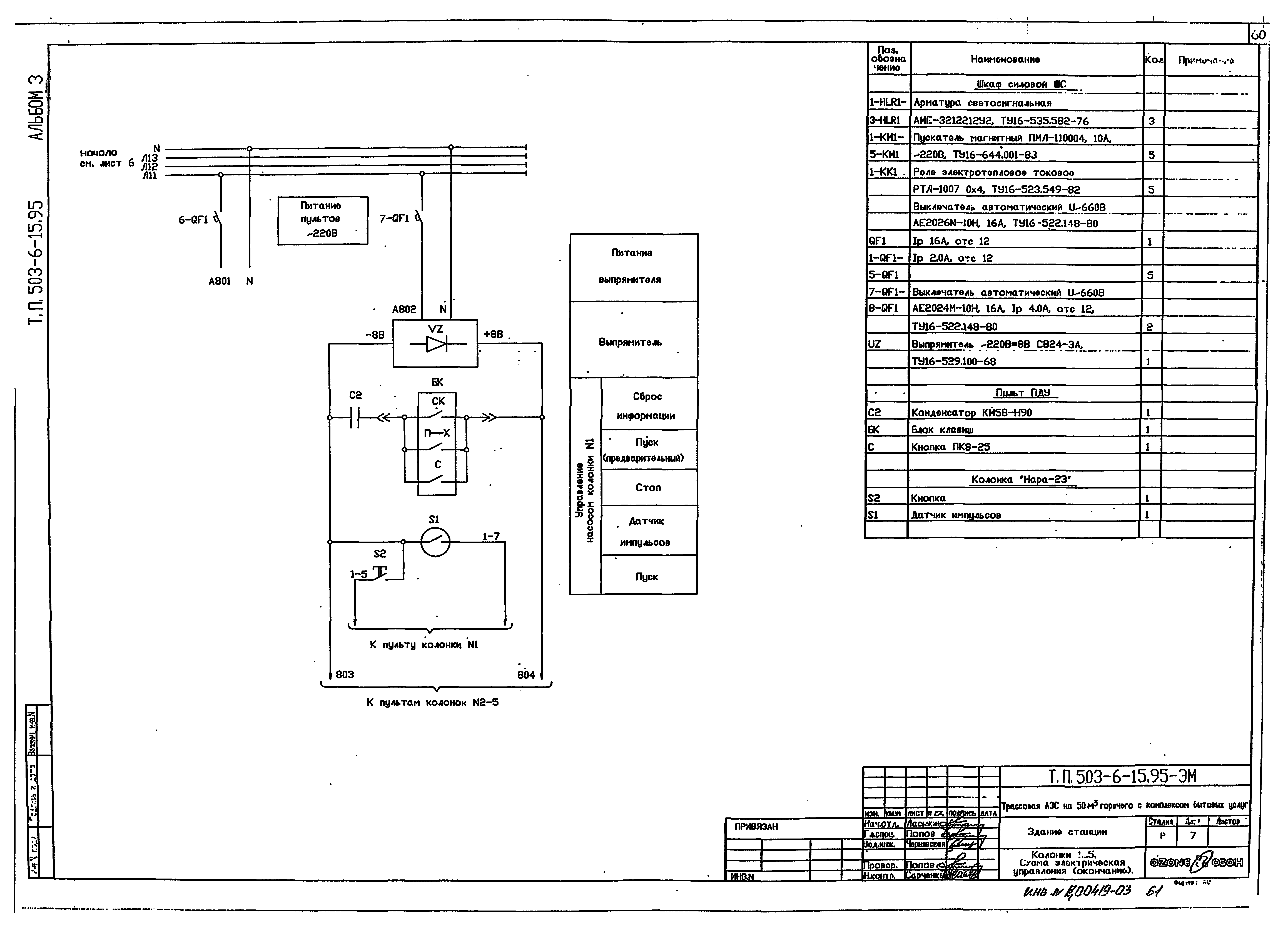
| Оглавление: | Технология производства (техобслуживание, магазин запчастей) Общие данные План расположения оборудования Технология производства (буфет) Общие данные. План расположения оборудования Технология производства (очистка стоков) Общие данные Технологическая схема трубопроводов и КИП Технологические трубопроводы. План на отм. 0.000. Разрезы 1-1, 2-2, 3-3 Станция очистки стоков ОЗОН-1 Автоматизация технологии производства (очистка стоков) Общие данные. Таблица местных замеров и импульсных проводок Сигнализация. Измерение уровня. Электропитание. Схема принципиальная Насос 1, насос 4. Управление. Схема принципиальная Таблица соединения внешних проводок Таблица подключения внешних проводок План расположения Архитектурно-строительные решения Общие данные План на отм. 0.000 Вид А. Разрезы 1-1, 2-2. Узлы 1, 2 Фасады 3…1; 1…3; А - В; В - А Схемы расположения фундаментов Фундаменты Фм1, Фм2 Схемы расположения наружных стеновых панелей Схемы расположения стеновых панелей перегородок Виды "А…С" к листу 9 Схема расположения карнизных панелей Схема расположения элементов заполнения оконного проема ОК1. Узлы 3…5 Витражи. Схемы 1, 2 Витражи. Схемы 3…5 Витражи. Схемы 6…8 Витражи. Схема 9. Узлы 6…9 Остекление витражей. Схемы 1…5 Остекление витражей. Схемы 6…9 План полов на отм. 0.000 План кровли. Узел 10 Подвесной потолок. План на отм. 3.300. Узел 11 Подвесной потолок. Сечения. Узлы 12…14 Схема расположения канала Схема расположения элементов канала КЛ1 Схема расположения закладных элементов в полу и в цоколе Фрагмент 1 плана. ФОм1. Узел 15 Узлы 16…20 Узлы 21…25 Узлы 26…29 Узлы 30…34 Узлы 35…38 Узлы 39…43 Отопление и вентиляция Общие данные План на отм. 0.000 между осями 2…3 и А…Б Установка системы В1. Схемы систем отопления и вентиляции В1, ВЕ1, ВЕ2 Автоматизация отопления и вентиляции Общие данные. Система В1. Котел К-50. Управление. Схема принципиальная. План расположения Внутренние водопровод и канализация Общие данные План на отм. 0.000. Схемы систем В1, Т3, К1 Электрооборудование силовое Общие данные Питающая сеть 380/220 В. Схема принципиальная ВРУ1 Распределительная сеть 380/220 В. Схема принципиальная 1ШР, 2ШР, 3ШР Распределительная сеть 380/220 В. Схема принципиальная ШС Колонки 1…5. Схема электрическая управления Колонки 1…5. Схема подключения Расположение электрооборудования, прокладка кабелей. План Опросный лист ВРУ Ведомость изделий МЭЗ Перечень проектной документации для заказа щитов станции управления Электроосвещение внутреннее Общие данные Электроосвещение внутреннее. План Системы связи Общие данные. Схема расположения сетей связи План на отм. 0.000 Автоматизация устройств сигнализации Общие данные. Схема соединений "УОТС-1-1". Схема сетей пожарной сигнализации План на отм. 0.000 |
| Разработан: | АО ОЗОН |
| Утверждён: | 30.08.1995 Комитет РФ по химической и нефтехимической промышленности (ЕР1877-19/09) |






































































