Скачать Типовой проект 901-4-60.83 Альбом VI. Технологические трубопроводы и сигнализация для резервуаров емкостью 50 - 20000 куб. м (из ТП 901-4-63.83)

Дата актуализации: 01.01.2021

Типовой проект 901-4-60.83

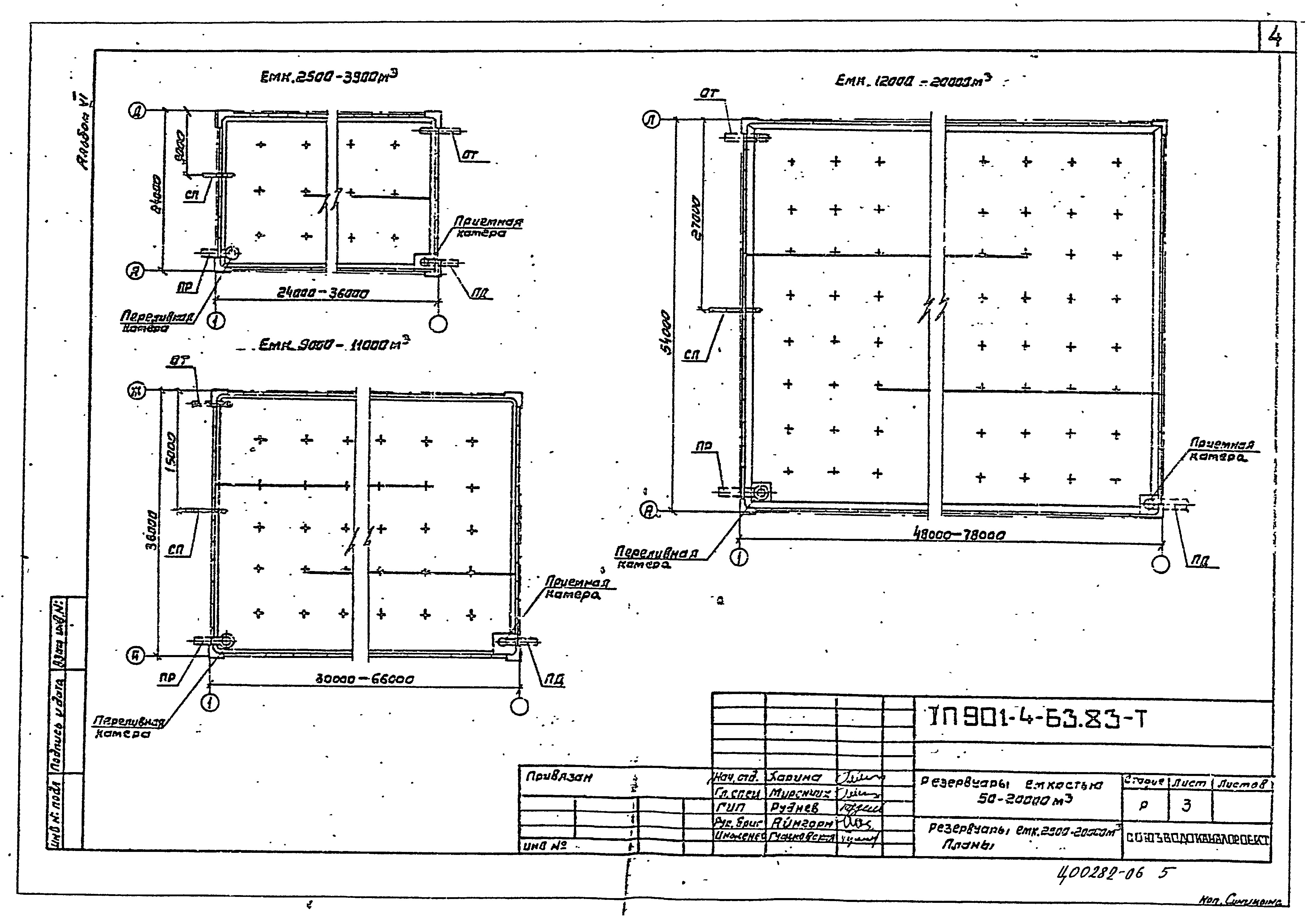
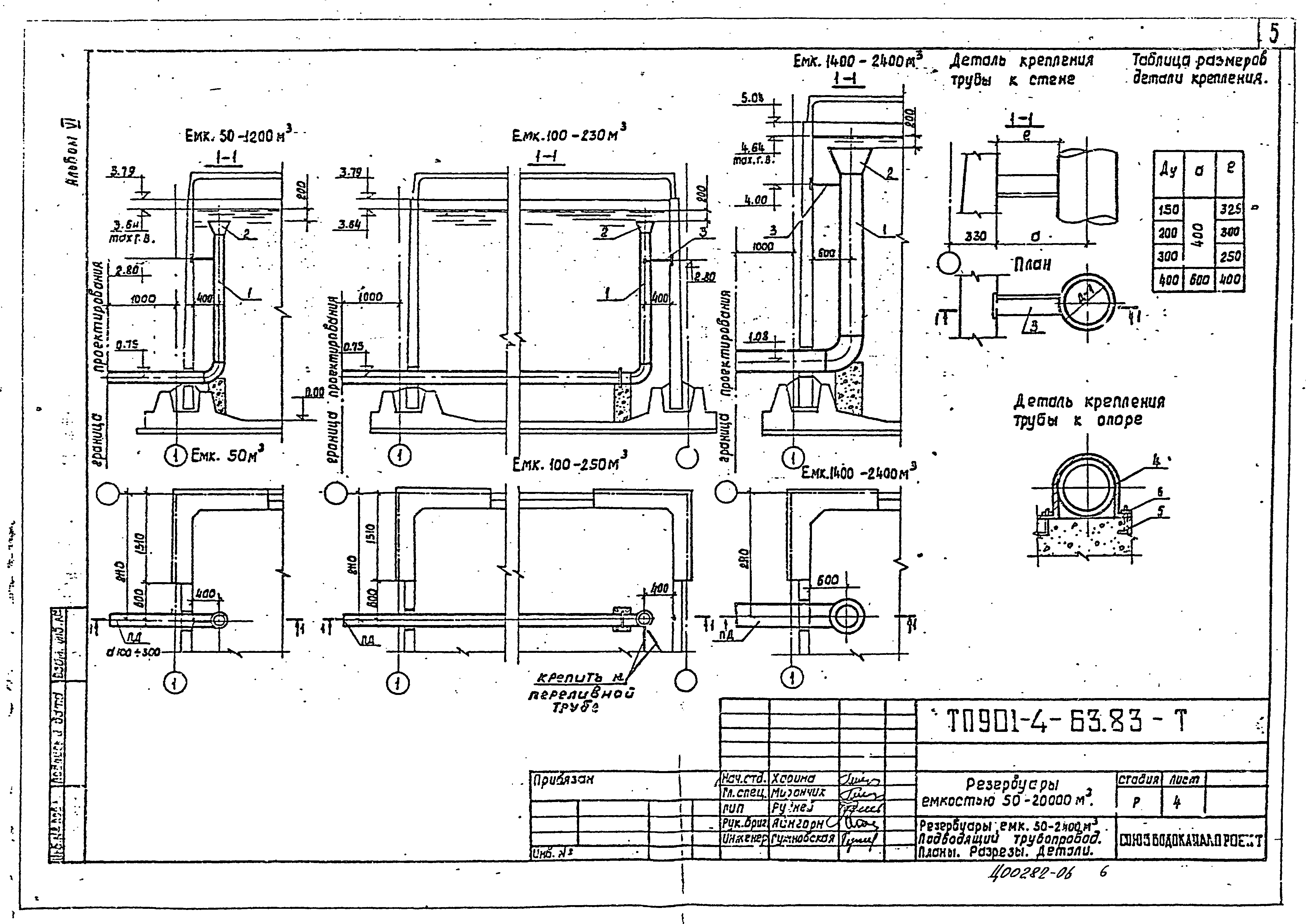
Альбом VI. Технологические трубопроводы и сигнализация для резервуаров емкостью 50 - 20000 куб. м (из ТП 901-4-63.83)

Обозначение: Типовой проект 901-4-60.83
Обозначение англ: 901-4-60.83
Статус:не определен законодательством
Название рус.:Альбом VI. Технологические трубопроводы и сигнализация для резервуаров емкостью 50 - 20000 куб. м (из ТП 901-4-63.83)
Дата добавления в базу:01.09.2013
Дата актуализации:01.01.2021
Дата введения:23.06.1983
Дата окончания срока действия:30.06.2003
Разработан: Союзводоканалпроект
Утверждён:17.11.1978 Госстрой СССР (Государственный комитет Совета Министров СССР по делам строительства) (USSR Gosstroy 2/3-409)
Типовой проект 901-4-60.83Типовой проект 901-4-60.83Типовой проект 901-4-60.83Типовой проект 901-4-60.83Типовой проект 901-4-60.83Типовой проект 901-4-60.83Типовой проект 901-4-60.83Типовой проект 901-4-60.83Типовой проект 901-4-60.83Типовой проект 901-4-60.83Типовой проект 901-4-60.83Типовой проект 901-4-60.83Типовой проект 901-4-60.83Типовой проект 901-4-60.83Типовой проект 901-4-60.83