Скачать Типовой проект 902-5-13.86 Альбом II. Технологическая и санитарно-техническая частиДата актуализации: 01.01.2021
|
| Обозначение: | Типовой проект 902-5-13.86 |
| Обозначение англ: | 902-5-13.86 |
| Статус: | не определен законодательством |
| Название рус.: | Альбом II. Технологическая и санитарно-техническая части |
| Дата добавления в базу: | 01.09.2013 |
| Дата актуализации: | 01.01.2021 |
| Дата введения: | 26.02.1986 |
| Дата окончания срока действия: | 30.06.2003 |
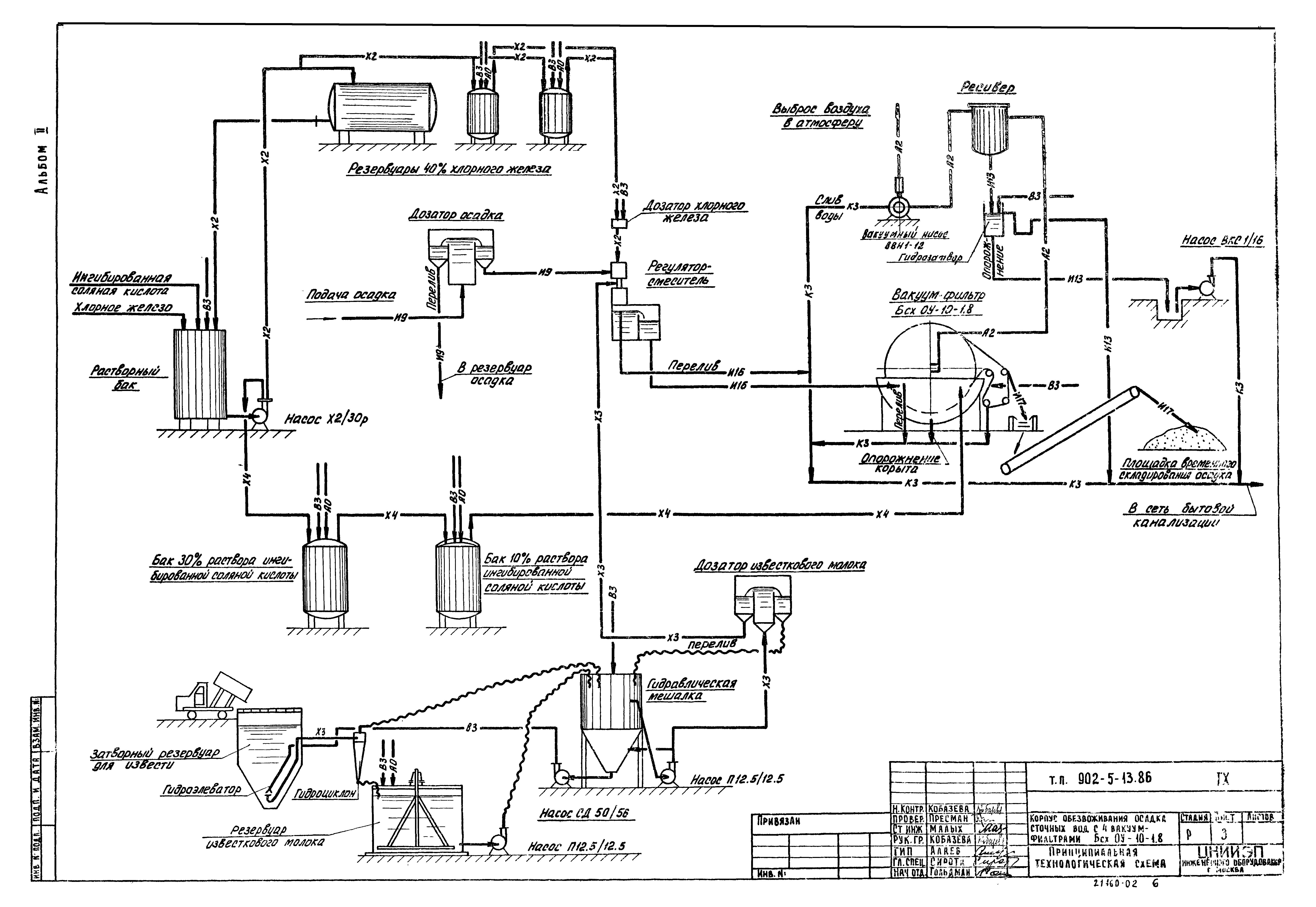
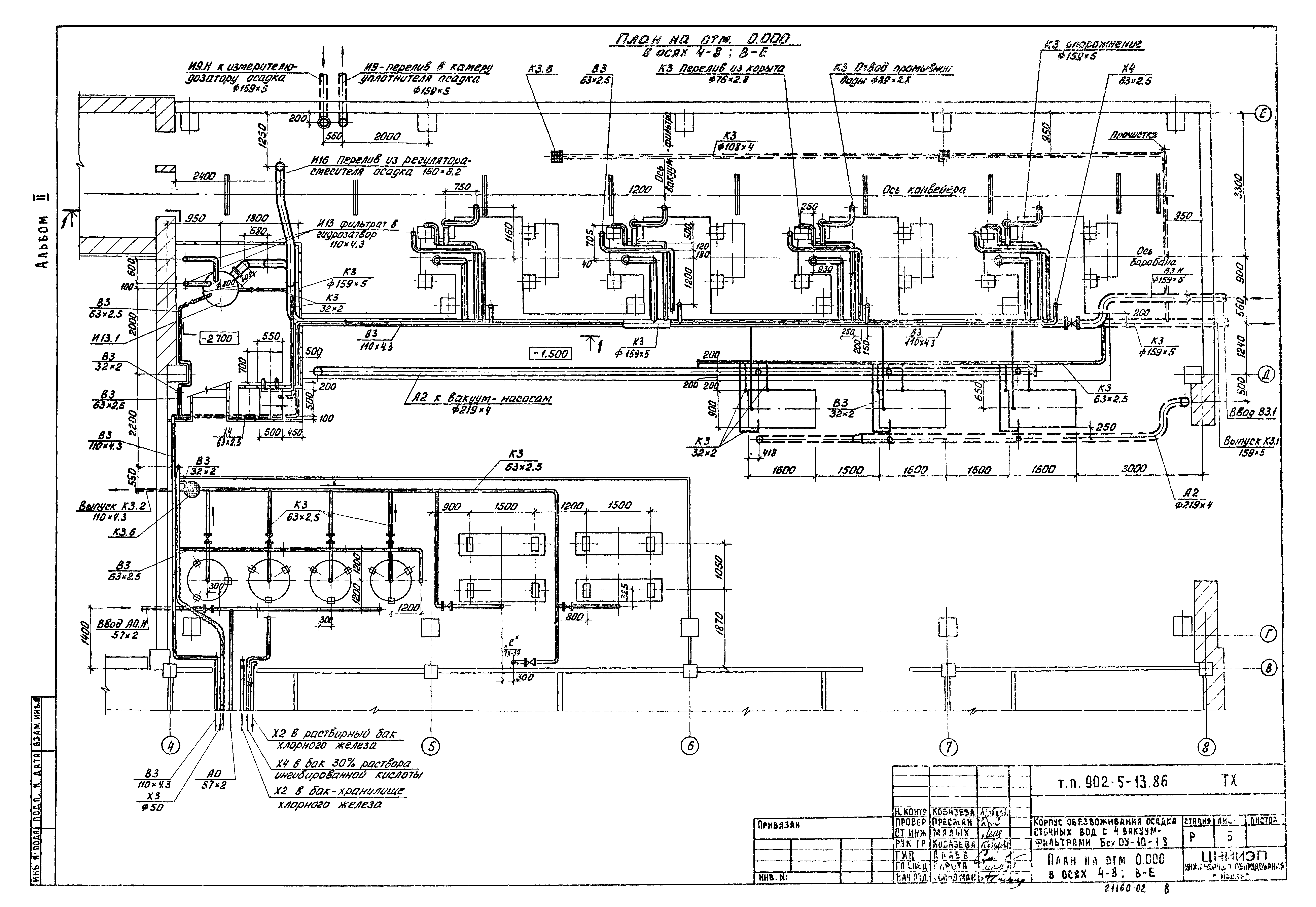
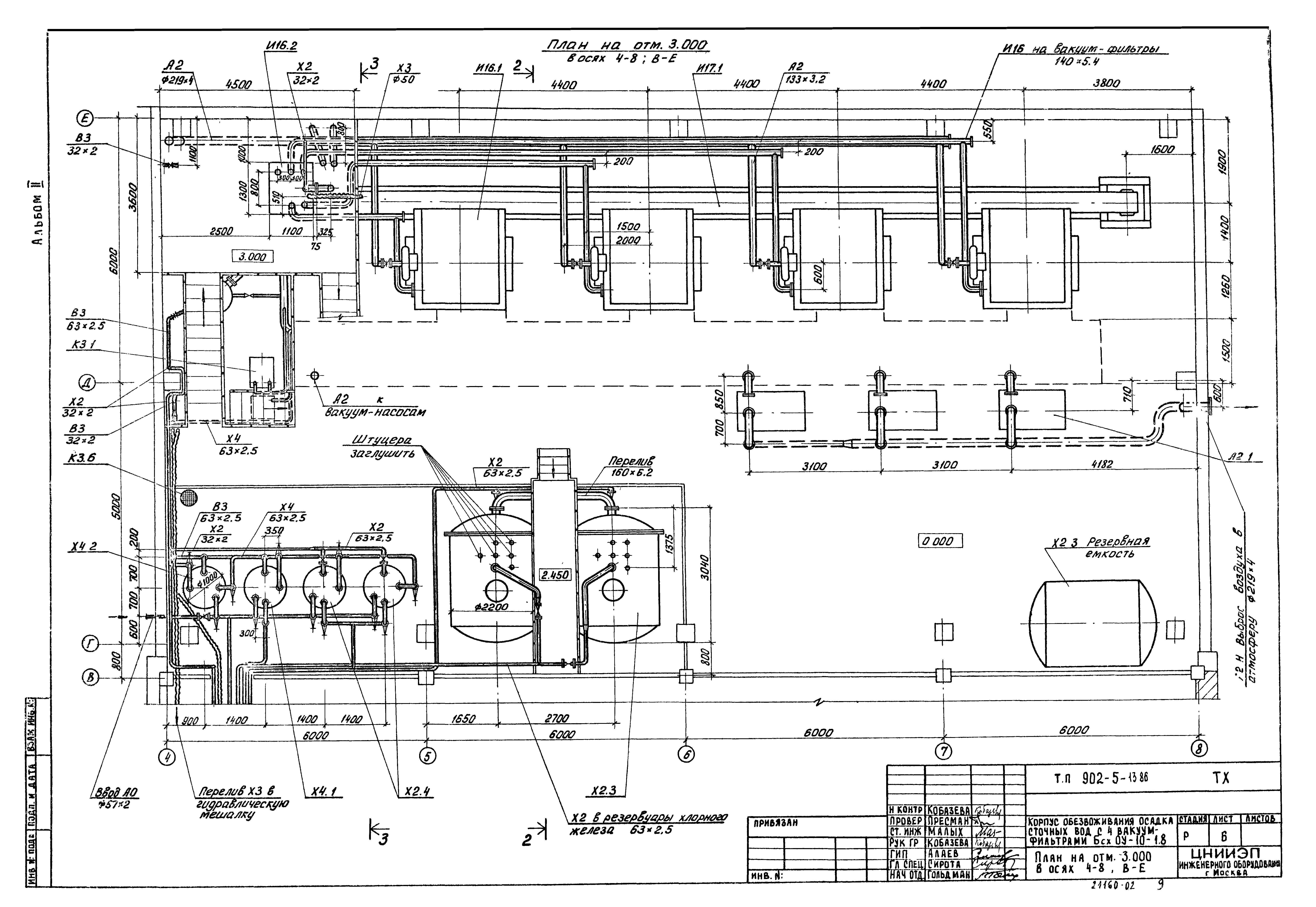
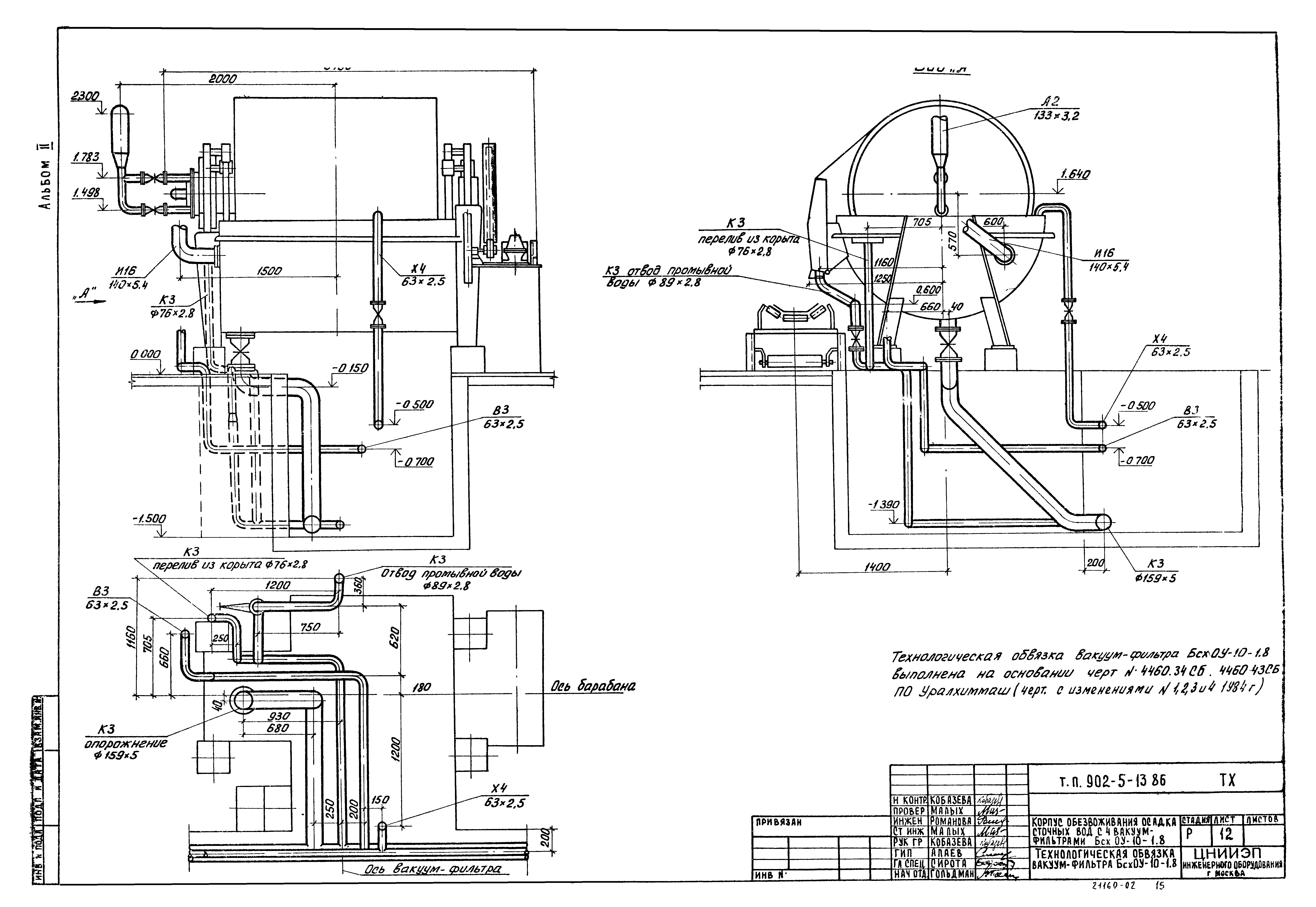
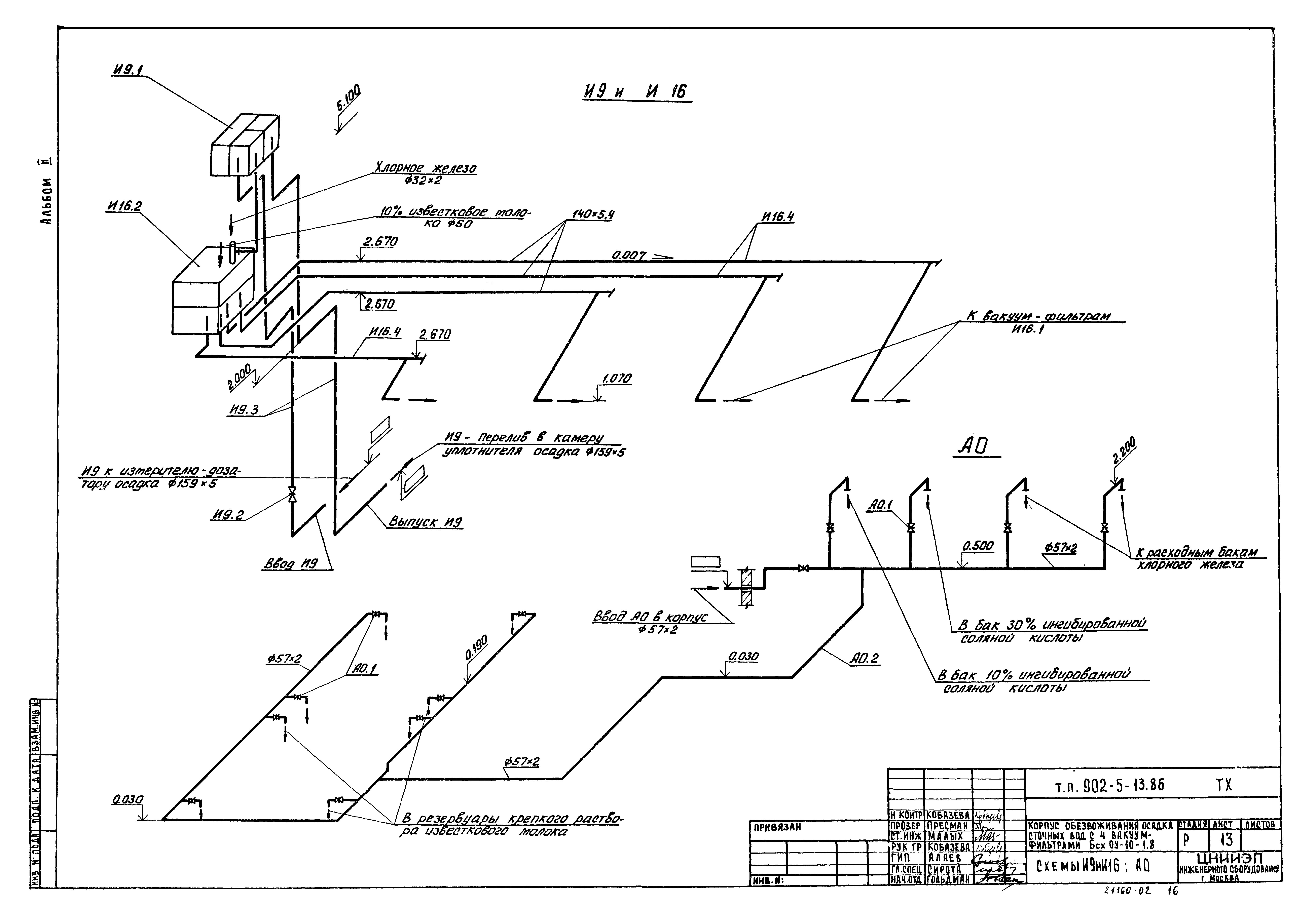
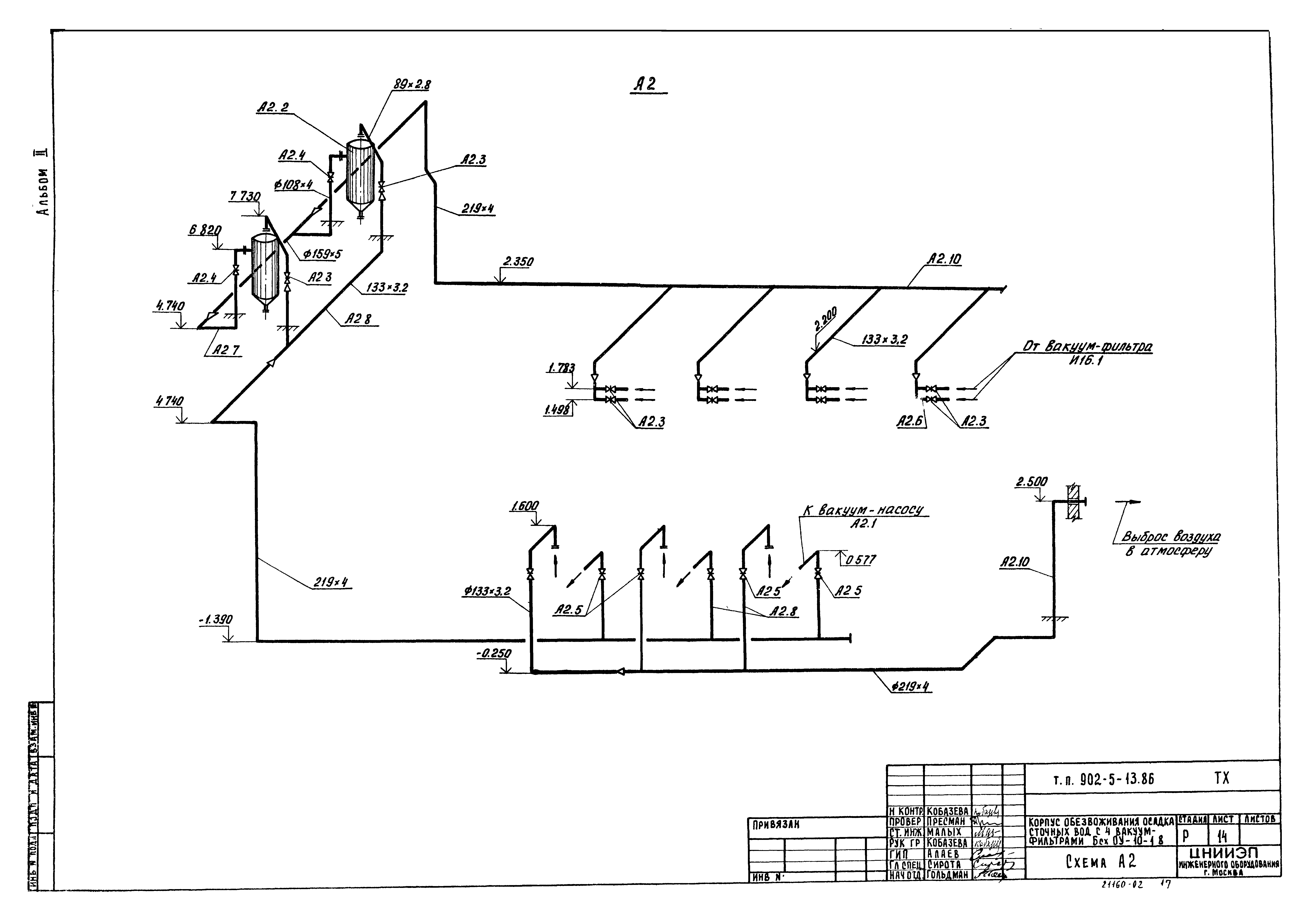
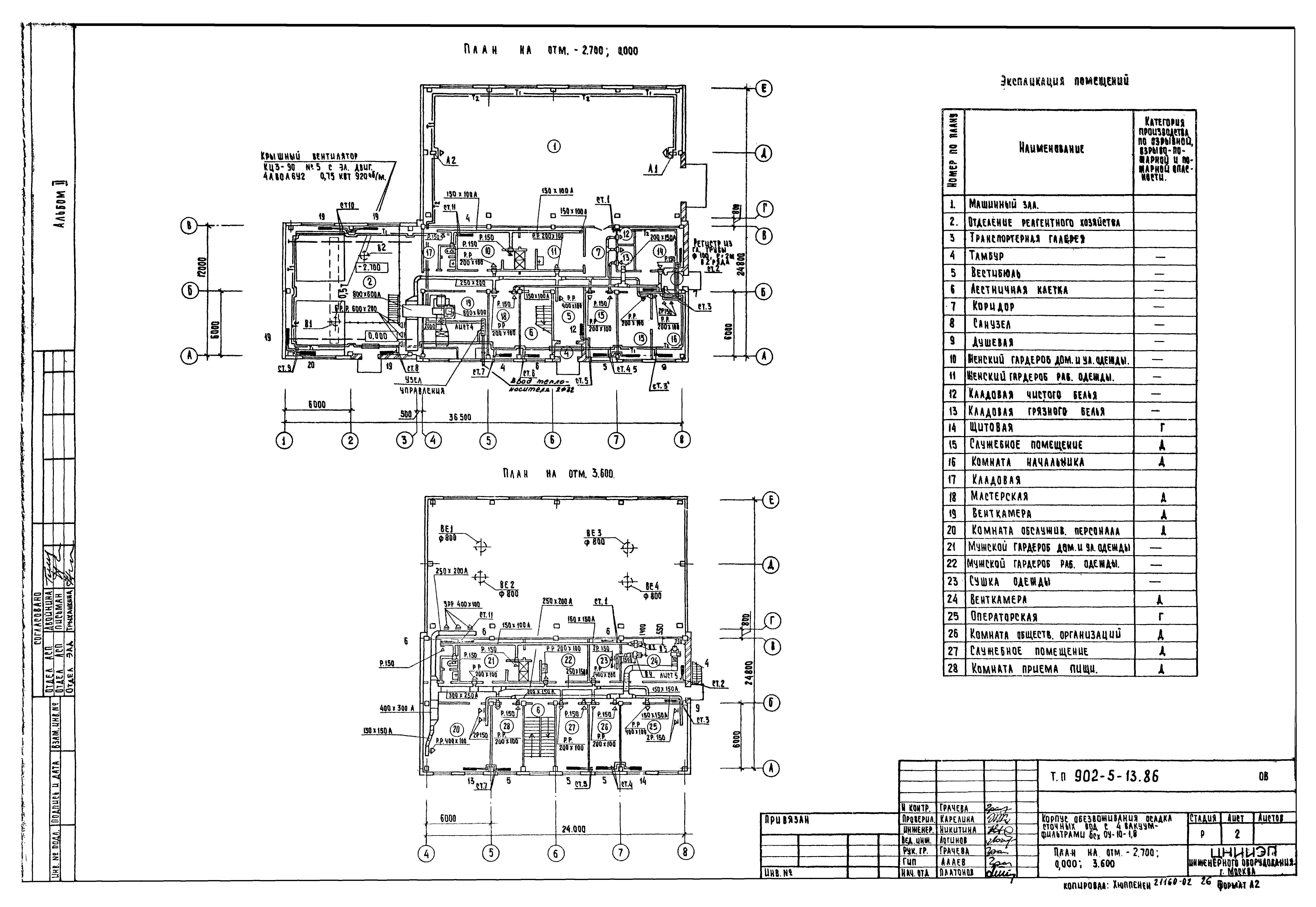
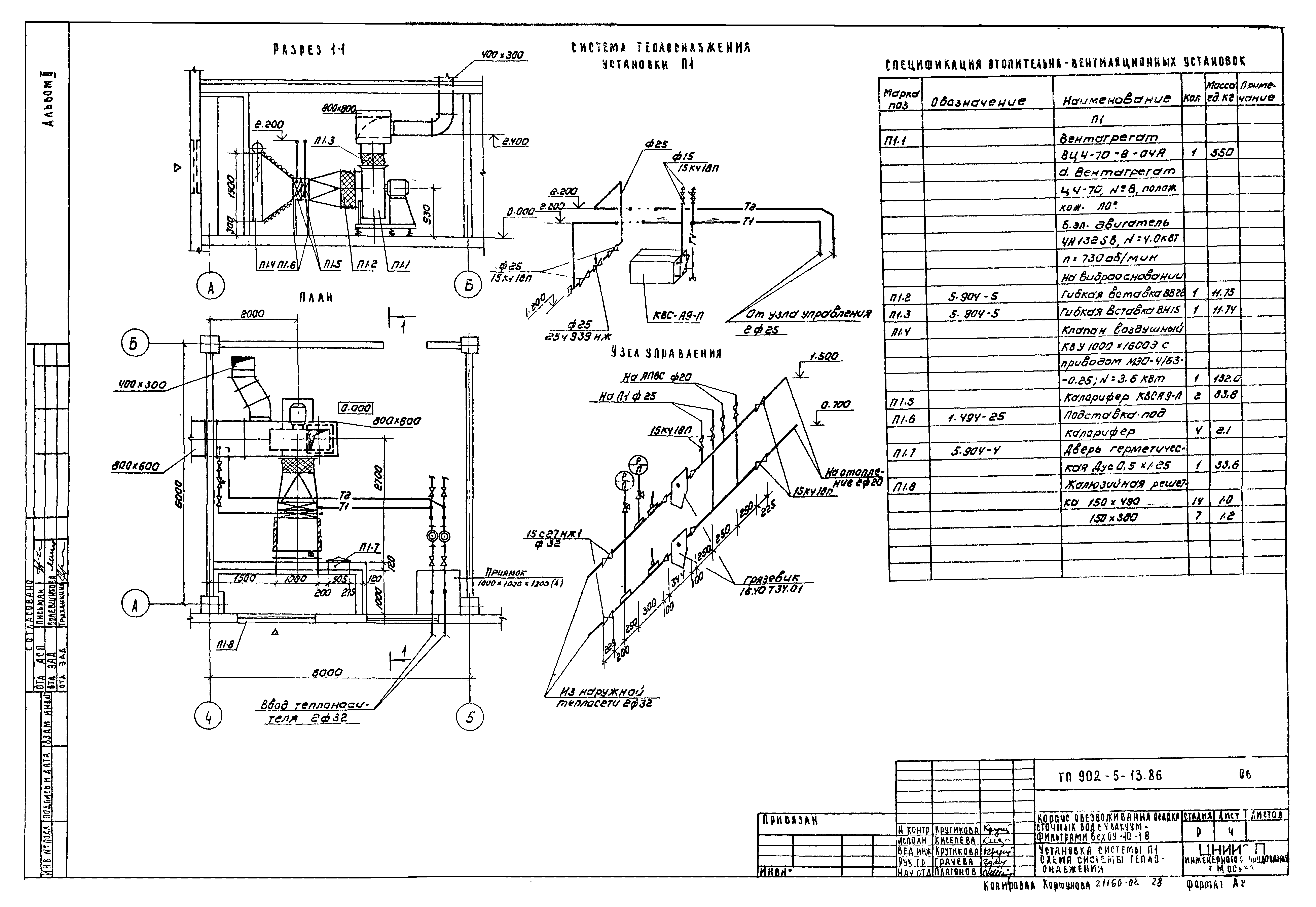
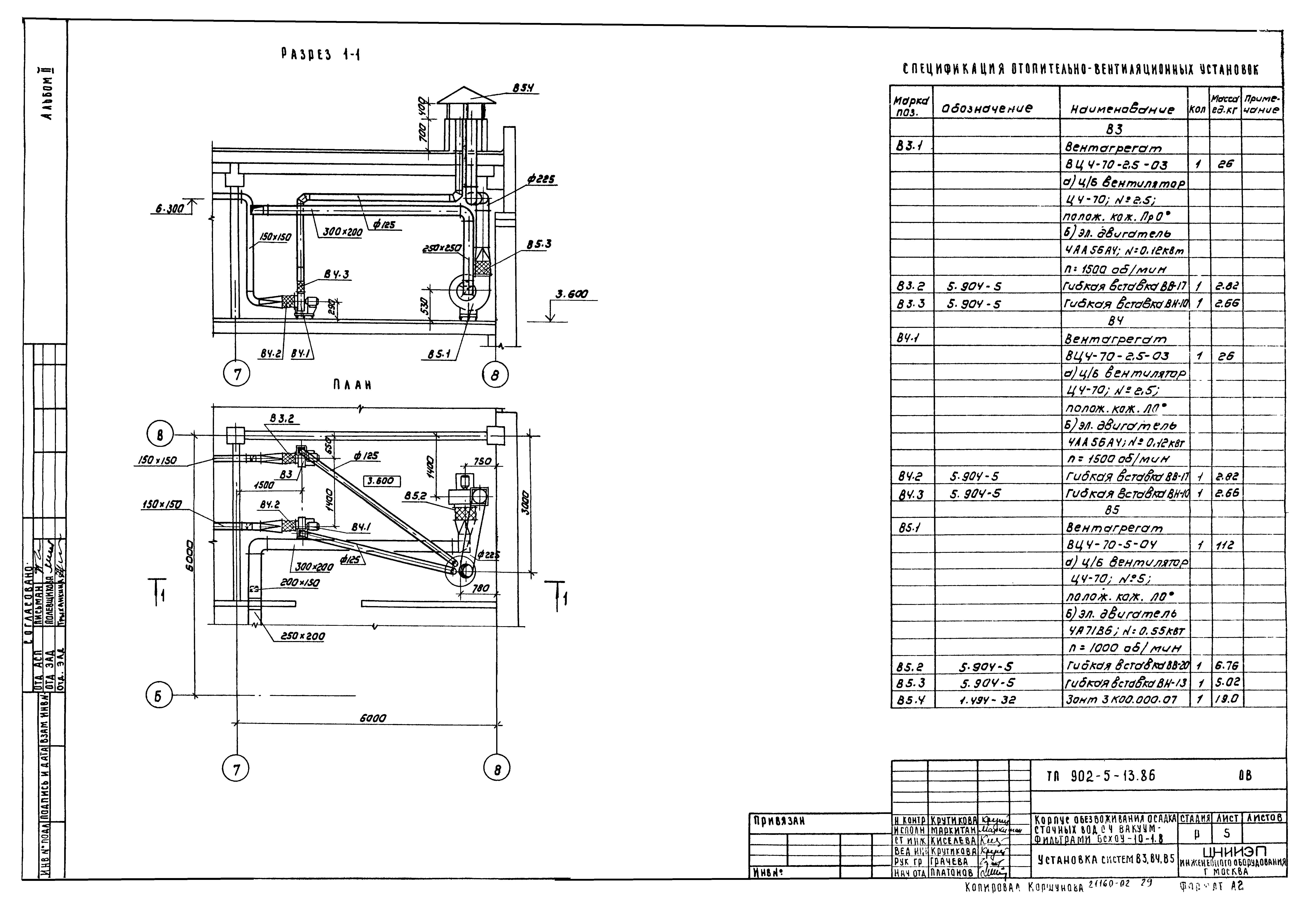
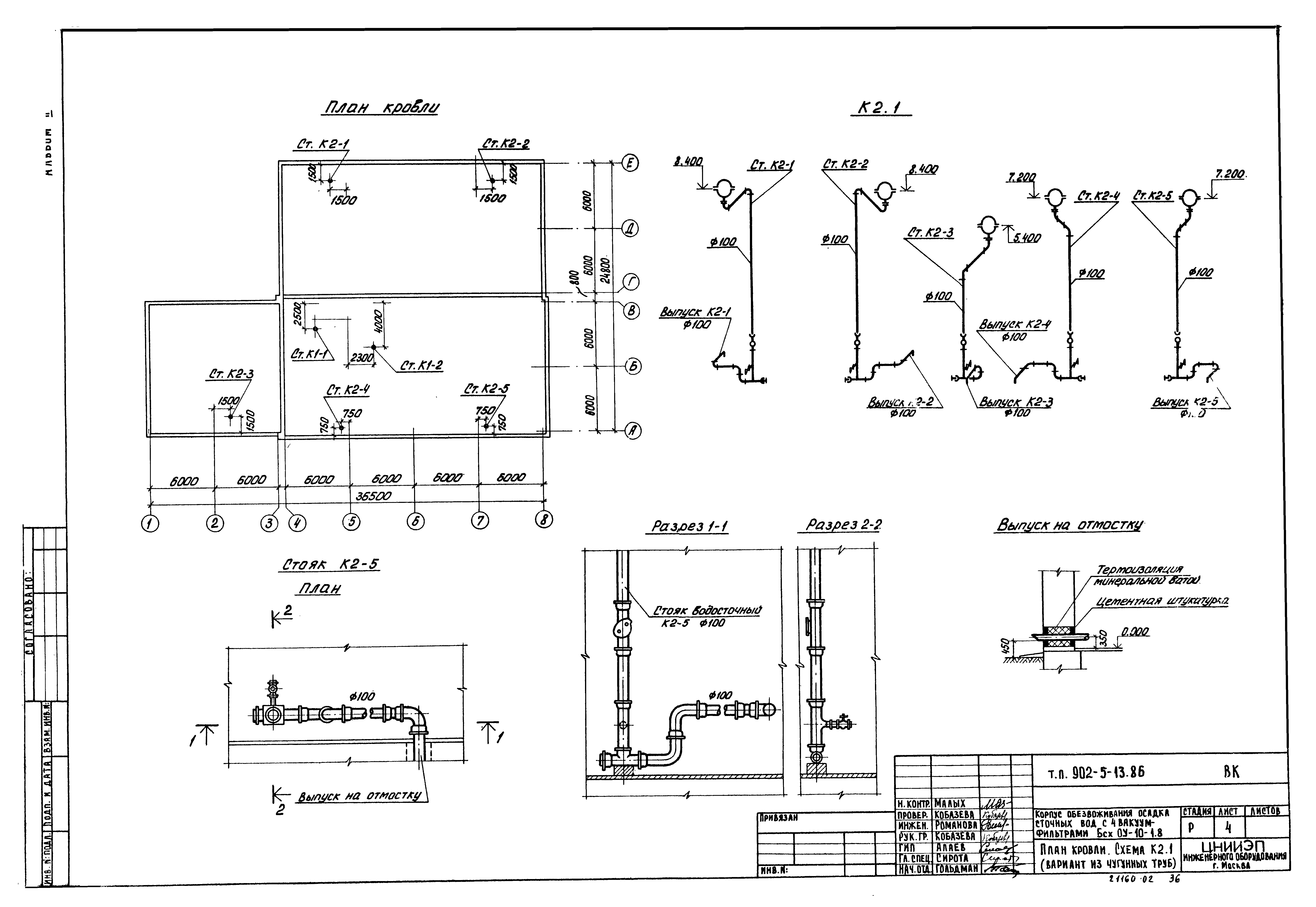
| Оглавление: | ТП 902-5-13.86 Содержание альбома ТП 902-5-13.86 ТХ Технологическая часть ТП 902-5-13.86 ТХ-1 Общие данные ТП 902-5-13.86 ТХ-2 Пример размещения корпуса обезвоживания осадка на генплане станции биологической очистки сточных вод Q=25÷50тыс.м³/сутки ТП 902-5-13.86 ТХ-3 Принципиальная технологическая схема ТП 902-5-13.86 ТХ-4 Планы. Экспликация помещений. Экспликация оборудования ТП 902-5-13.86 ТХ-5 План на отм. 0.000 в осях 4-8;В-Е ТП 902-5-13.86 ТХ-6 План на отм. 3.000 в осях 4-8;В-Е ТП 902-5-13.86 ТХ-7 Разрез 1-1 ТП 902-5-13.86 ТХ-8 Разрез 2-2 ТП 902-5-13.86 ТХ-9 План на отм. 5.400 в осях 4-5;Г-Е. Разрез 3-3 ТП 902-5-13.86 ТХ-10 План на отм. 0.000 в осях 1-4;А-Г ТП 902-5-13.86 ТХ-11 Разрезы 4-4;5-5 ТП 902-5-13.86 ТХ-12 Технологическая обвязка вакуум-фильтра Бсх ОУ-10-1.8 ТП 902-5-13.86 ТХ-13 Схемы И9 и И16;АО ТП 902-5-13.86 ТХ-14 Схема А2 ТП 902-5-13.86 ТХ-15 Схемы Х2;Х4 ТП 902-5-13.86 ТХ-16 Схема Х3 ТП 902-5-13.86 ТХ-17 Схема К3 ТП 902-5-13.86 ТХ-18 Схема В3 ТП 902-5-13.86 ТХ-19 Линия транспорта обезвоженного осадка. Общий вид ТП 902-5-13.86 ТХ-20 Линия транспорта обезвоженного осадка. Выносные элементы. Разрезы ТП 902-5-13.86 ТХ-21 Линия транспорта обезвоженного осадка. Выносные элементы ТП 902-5-13.86 ОВ Санитарно-техническая часть ТП 902-5-13.86 ОВН Отопление и вентиляция ТП 902-5-13.86 ОВ-1 Общие данные ТП 902-5-13.86 ОВ-2 План на отм. -2.700;0.000;3.600 ТП 902-5-13.86 ОВ-3 Схема системы отопления. Схемы систем П1;В1-В5;ВЕ-1÷ВЕ-4 ТП 902-5-13.86 ОВ-4 Установка систем П1. Схема системы теплоснабжения ТП 902-5-13.86 ОВ-5 Установка систем В3;В4;В5 ТП 902-5-13.86 ОВН-1 Конфузор ТП 902-5-13.86 ОВН-2 Переход ТП 902-5-13.86 ОВН-3 Воздуховод из асбестоцементных листов. Узлы соединения ТП 902-5-13.86 ОВН-4 Конструкция изоляции трубопроводов ТП 902-5-13.86 ОВН-5 Конструкция изоляции перехода ТП 902-5-13.86 ВК Водопровод и канализация ТП 902-5-13.86 ВК-1 Общие данные ТП 902-5-13.86 ВК-2 План на отм. 0.000 ТП 902-5-13.86 ВК-3 План на отм. 3.600. Экспликация помещений ТП 902-5-13.86 ВК-4 План кровли. Схема К2.1 ТП 902-5-13.86 ВК-5 Схемы В1;Т3;Т4 и К1.1 ТП 902-5-13.86 ВК-6 Схемы К2.2 и К1.2 |
| Разработан: | ЦНИИЭП |
| Утверждён: | 04.12.1985 Госгражданстрой (Gosgrazhdanstroy 386) |
| Заменяет собой: |




































