Скачать Типовой проект 902-5-13.86 Альбом III. Архитектурно-строительные решения. Конструкции железобетонные и металлические. Показатели изменения сметной стоимостиДата актуализации: 01.01.2021
|
| Обозначение: | Типовой проект 902-5-13.86 |
| Обозначение англ: | 902-5-13.86 |
| Статус: | не определен законодательством |
| Название рус.: | Альбом III. Архитектурно-строительные решения. Конструкции железобетонные и металлические. Показатели изменения сметной стоимости |
| Дата добавления в базу: | 01.09.2013 |
| Дата актуализации: | 01.01.2021 |
| Дата введения: | 26.02.1986 |
| Дата окончания срока действия: | 30.06.2003 |
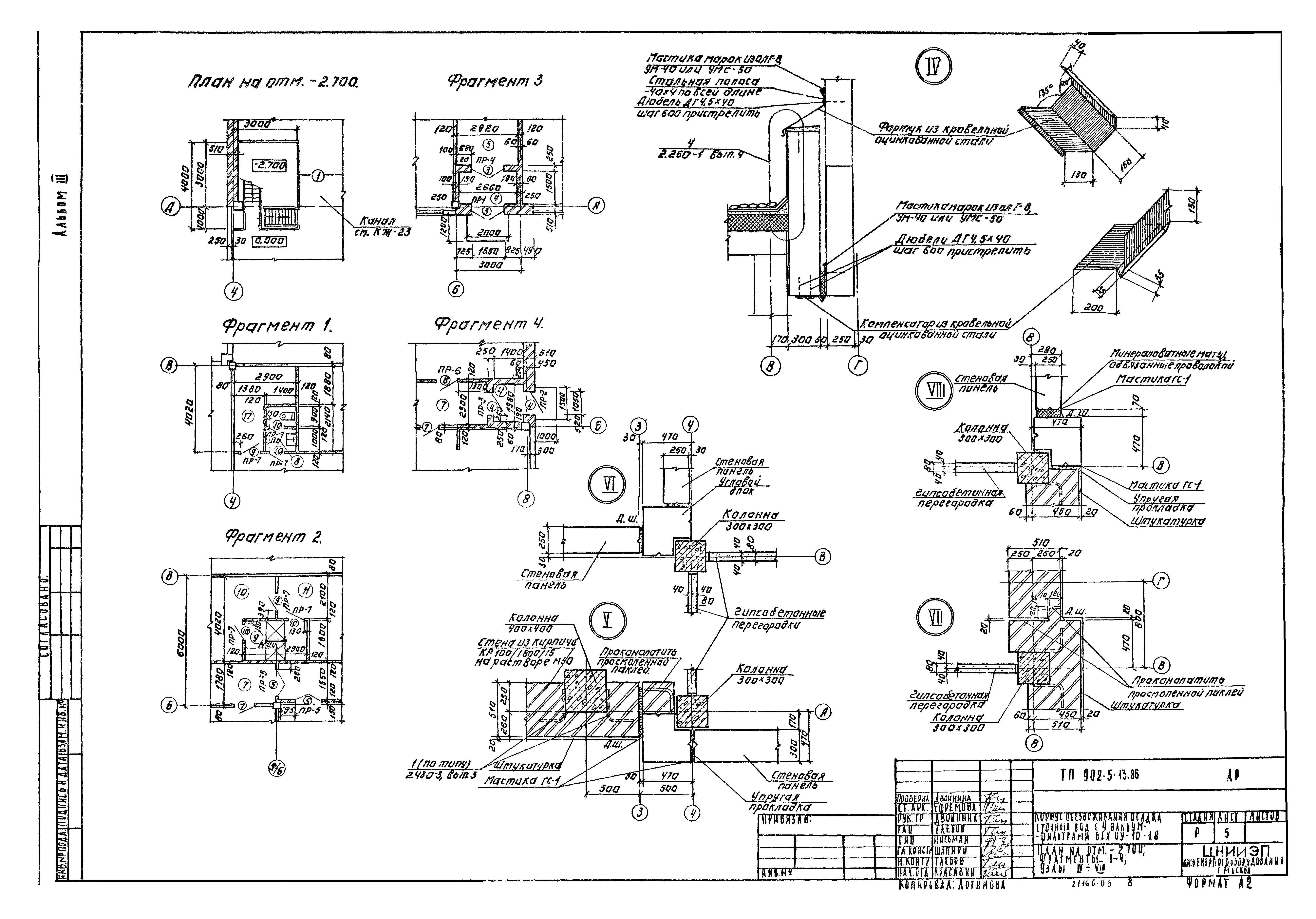
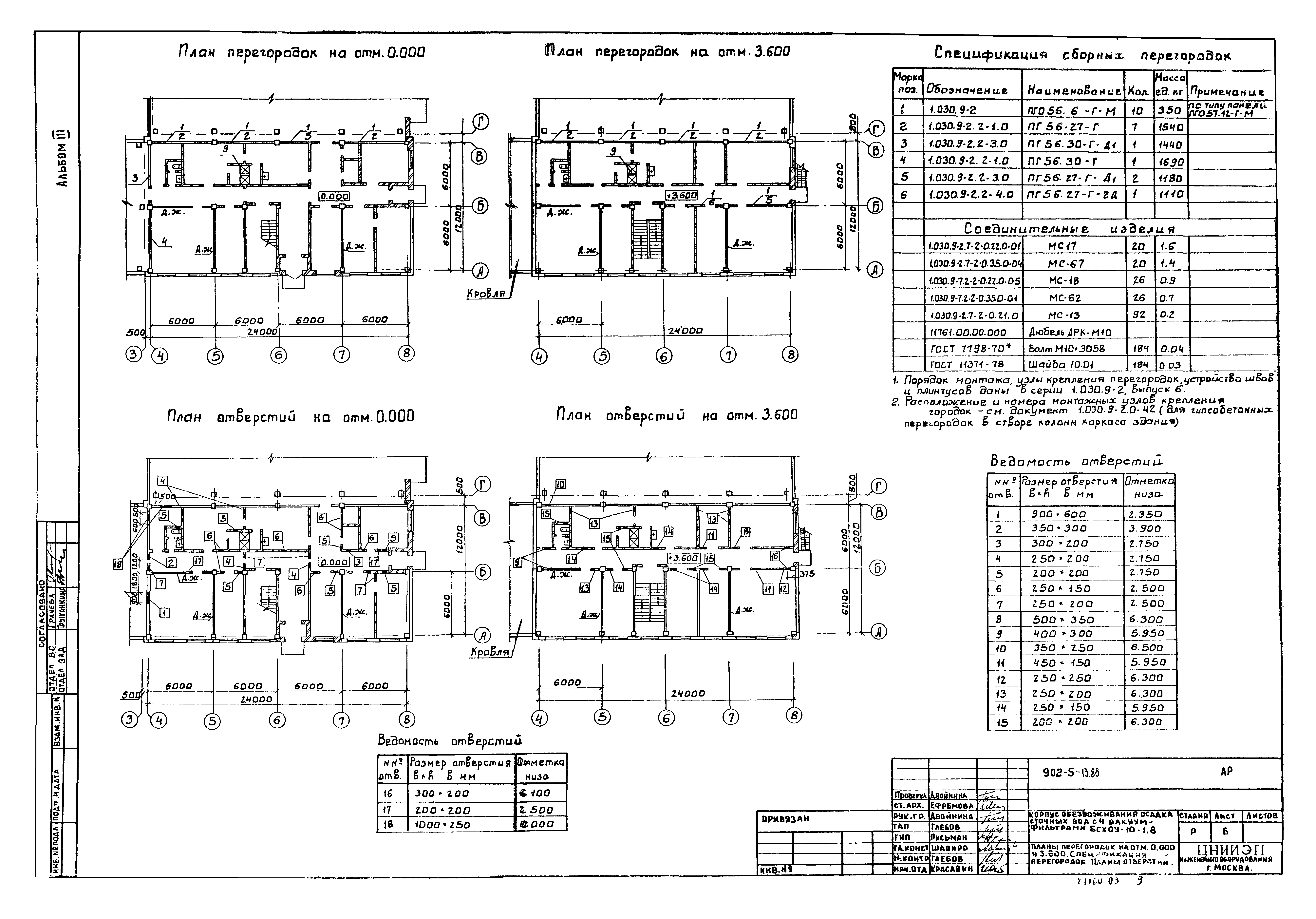
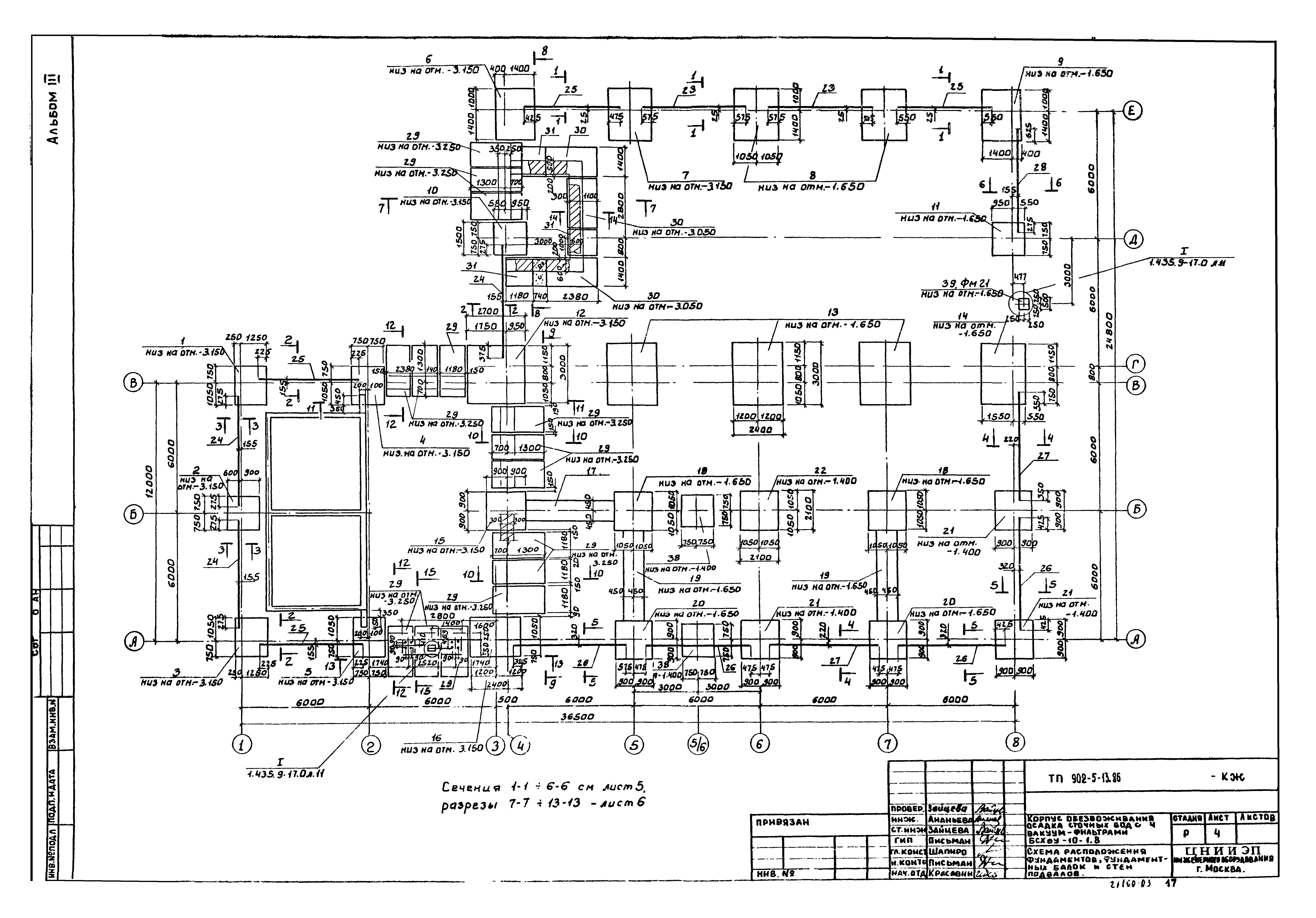
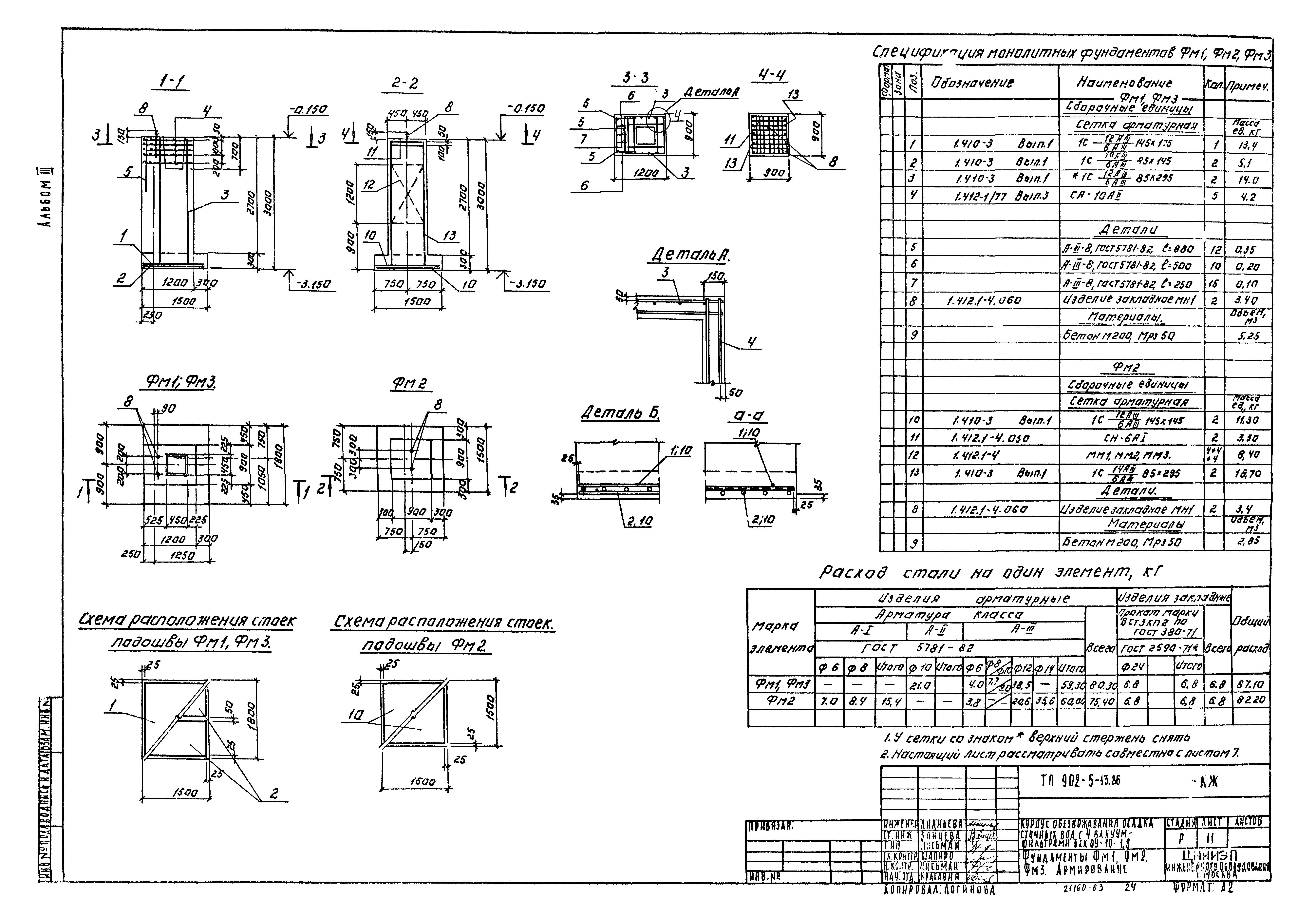
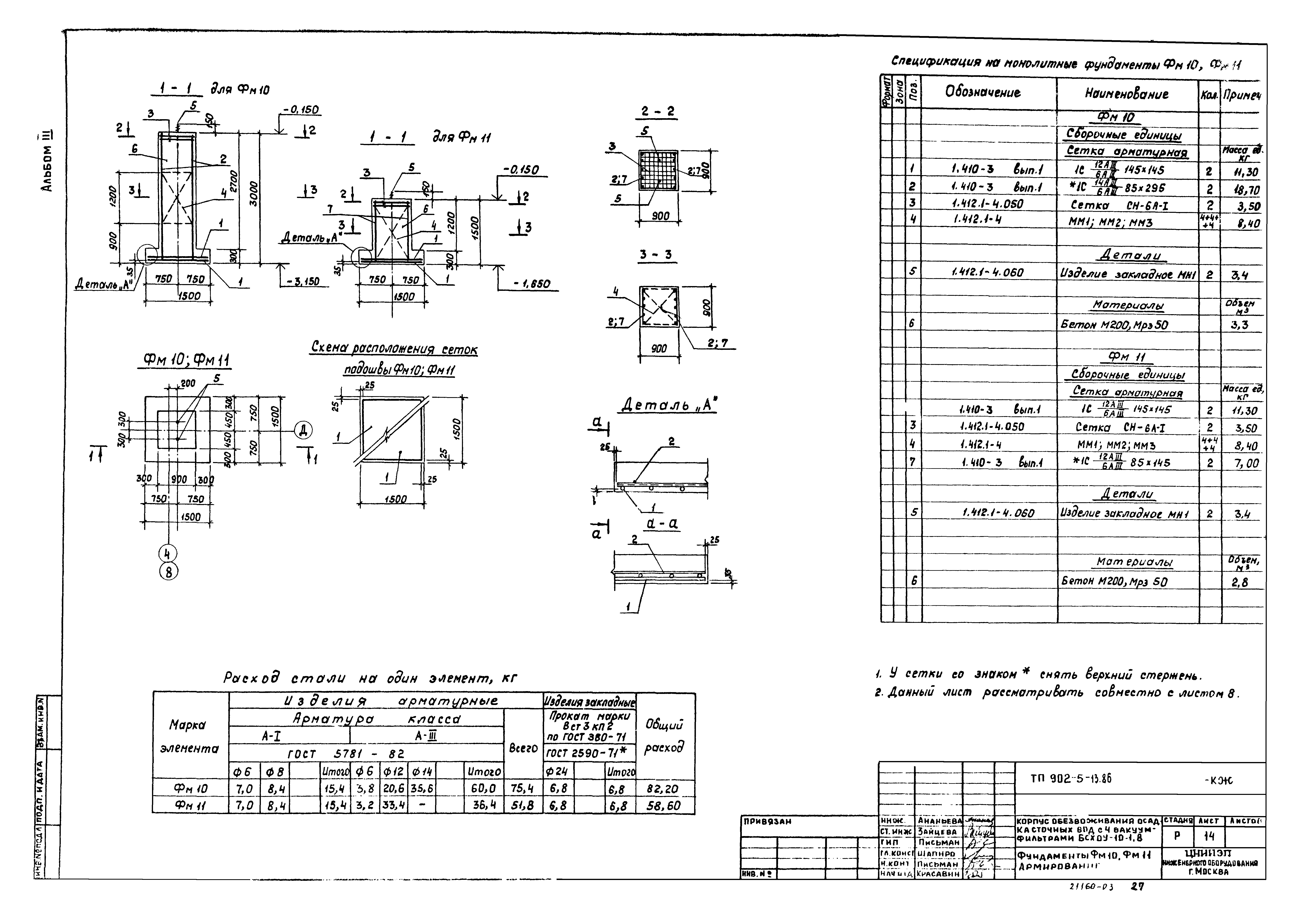
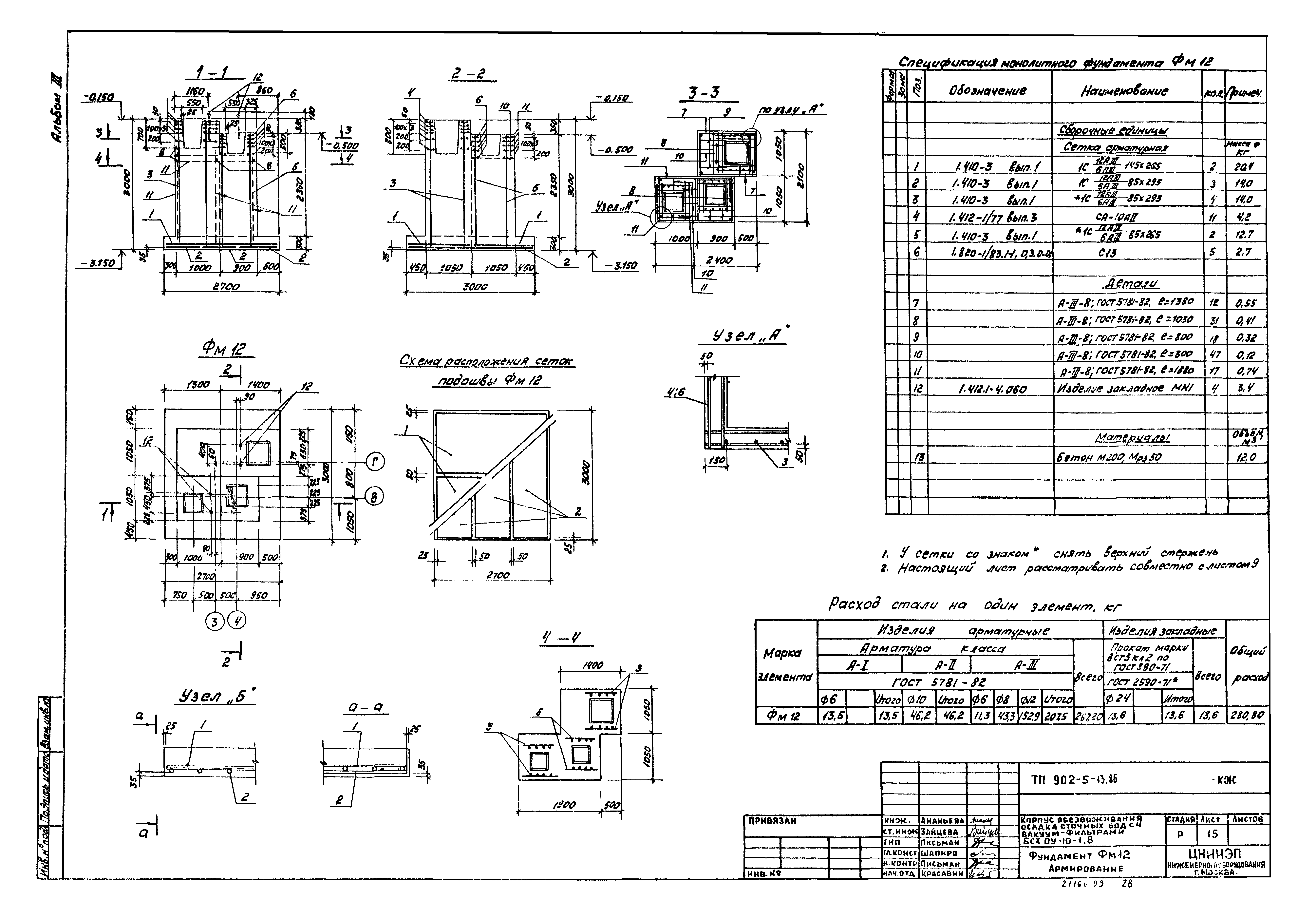
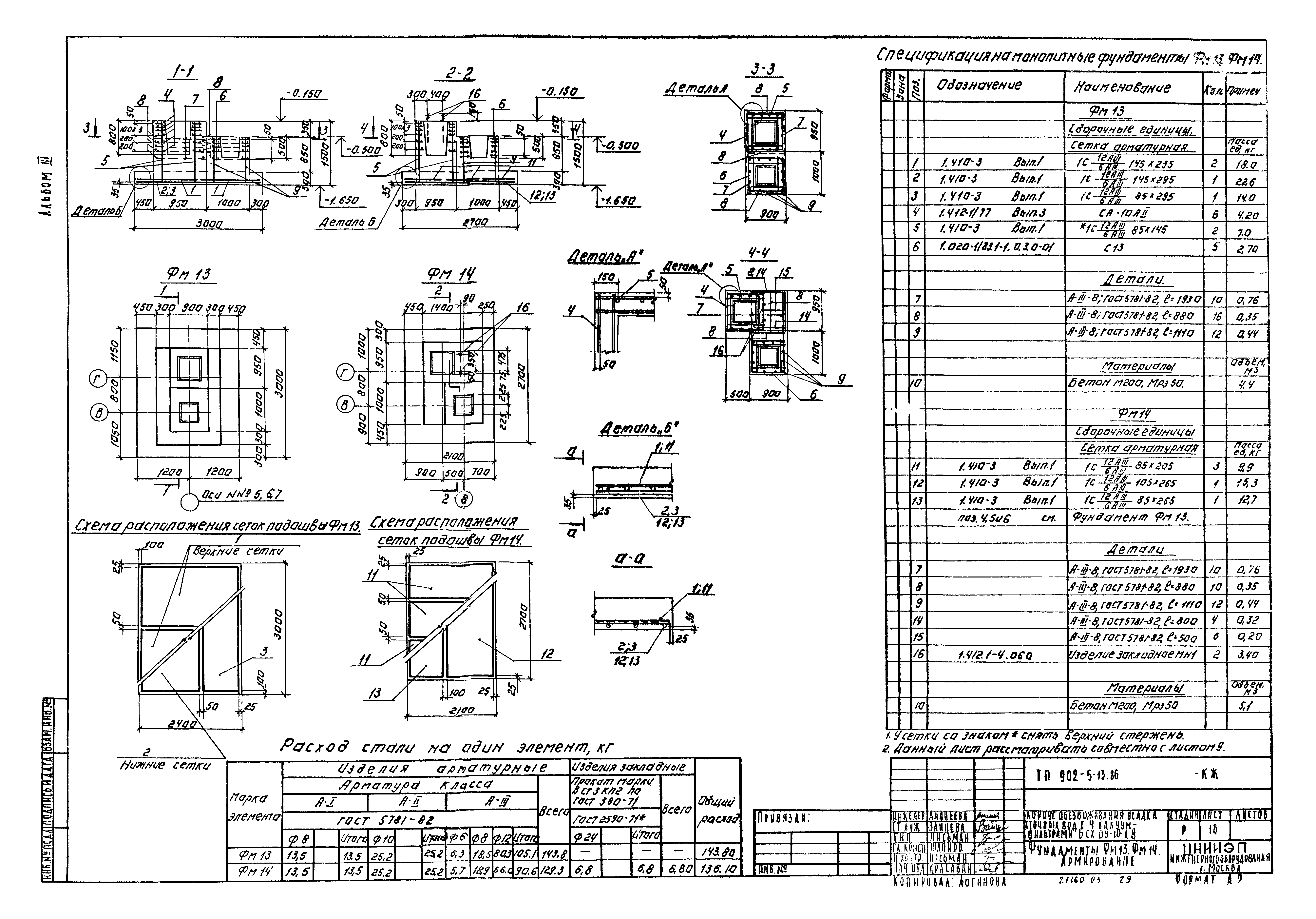
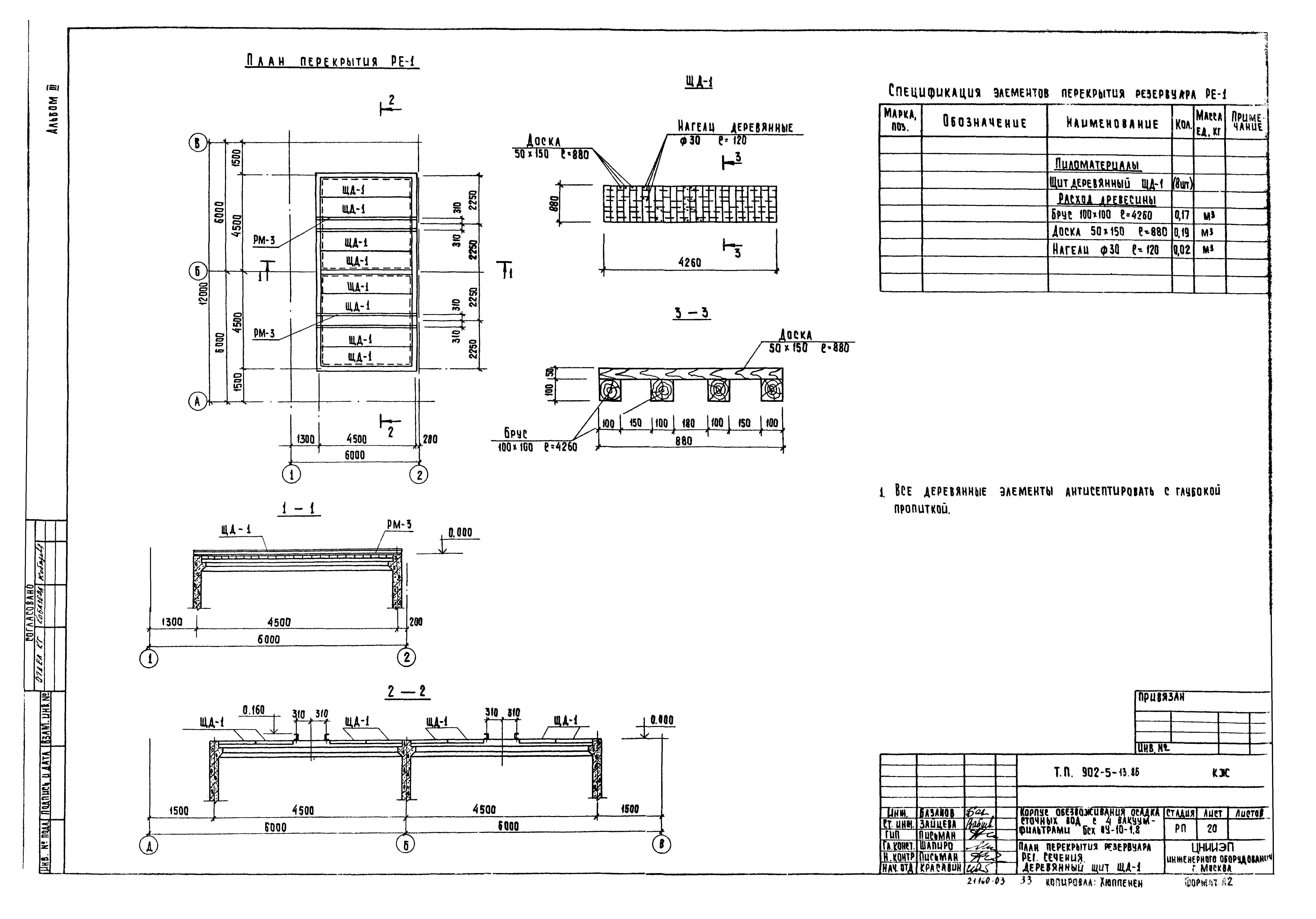
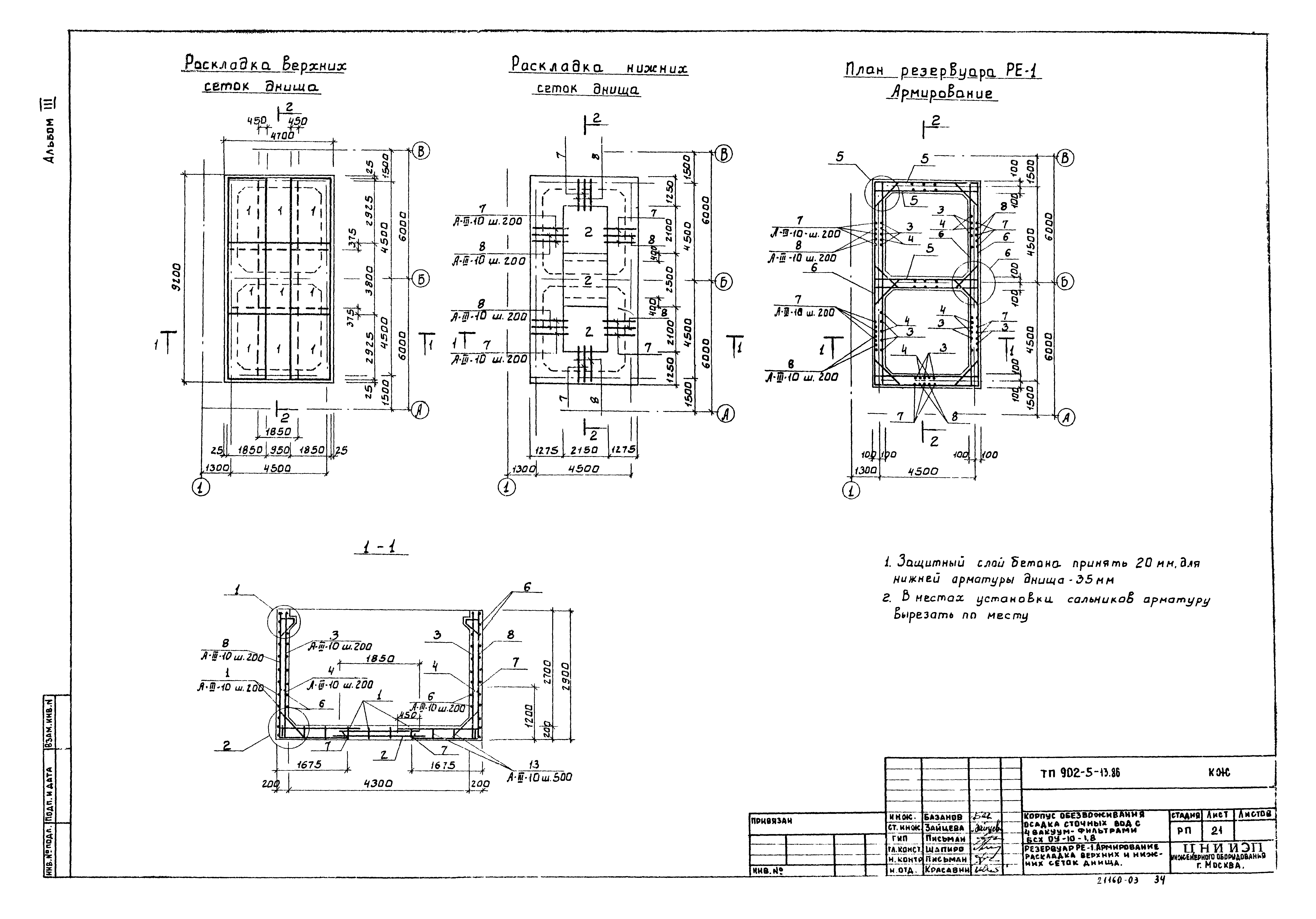
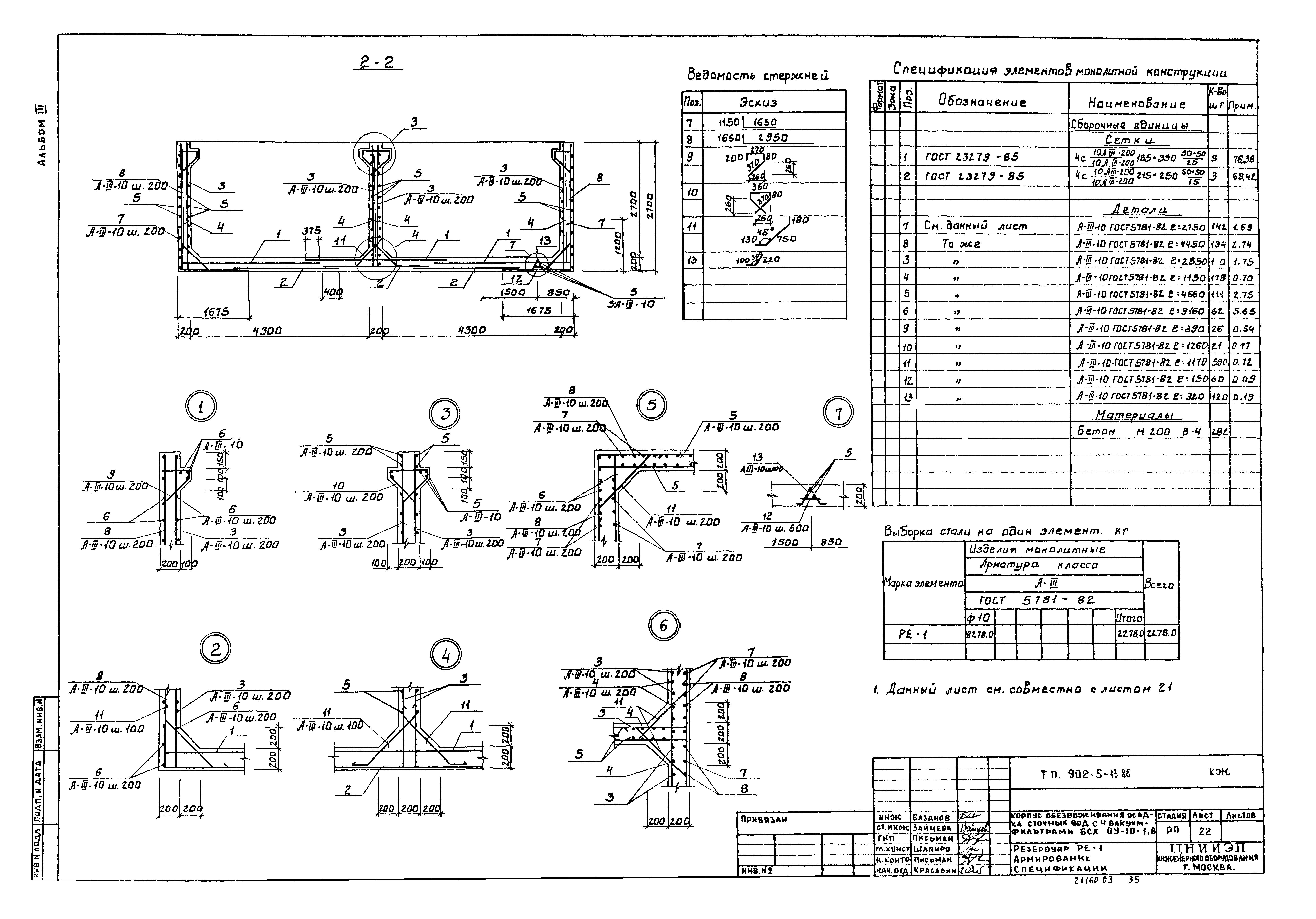
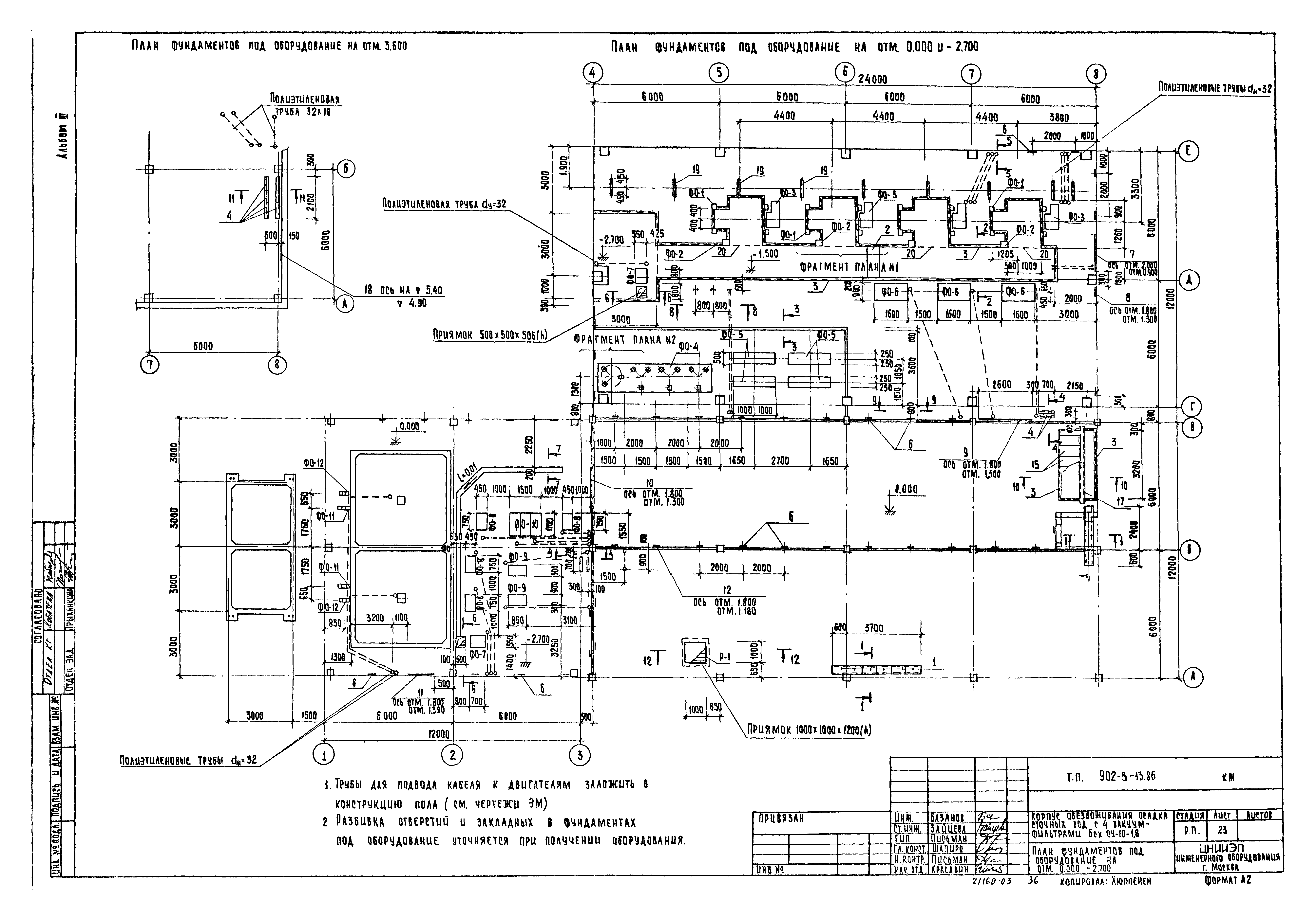
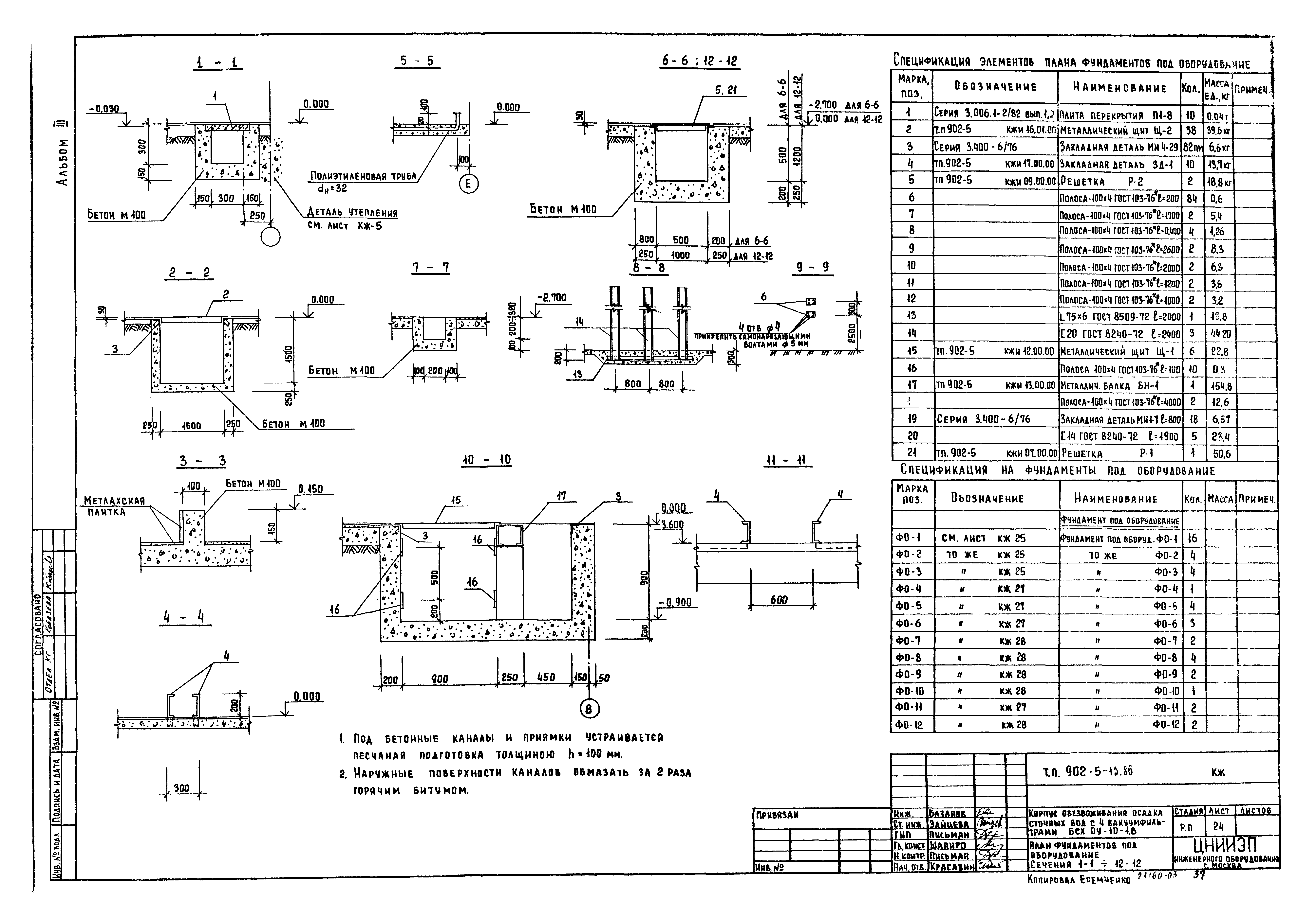
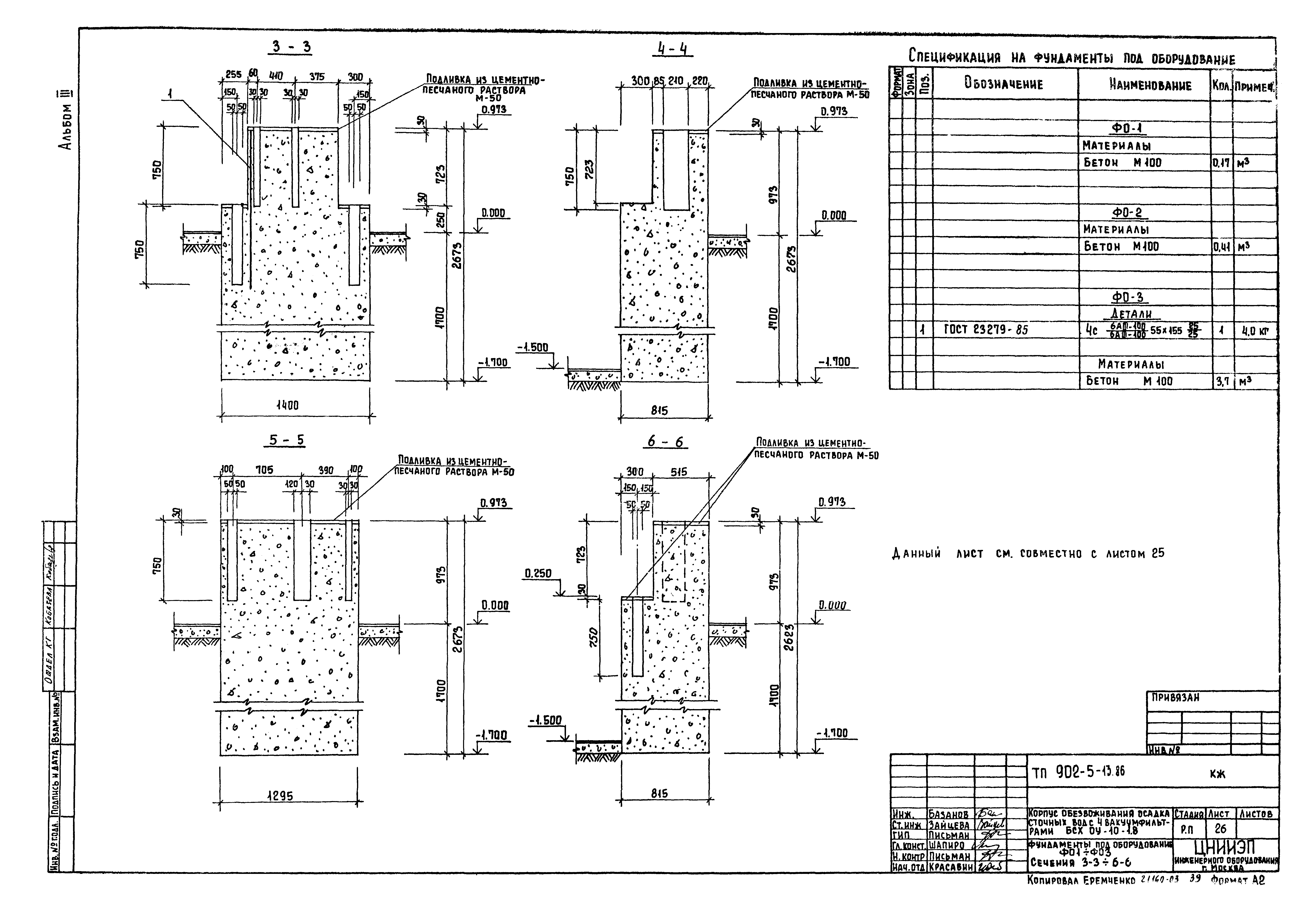
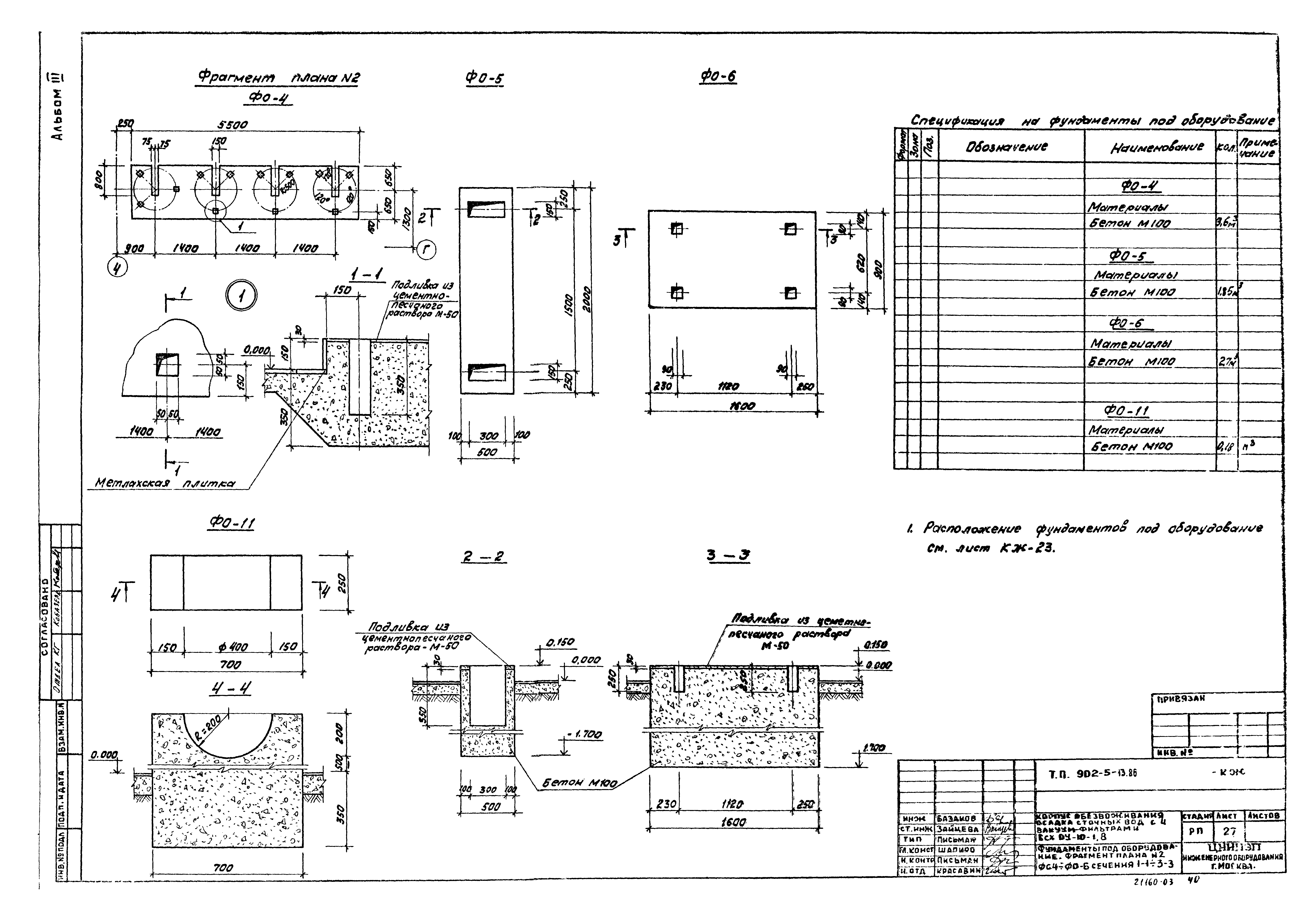
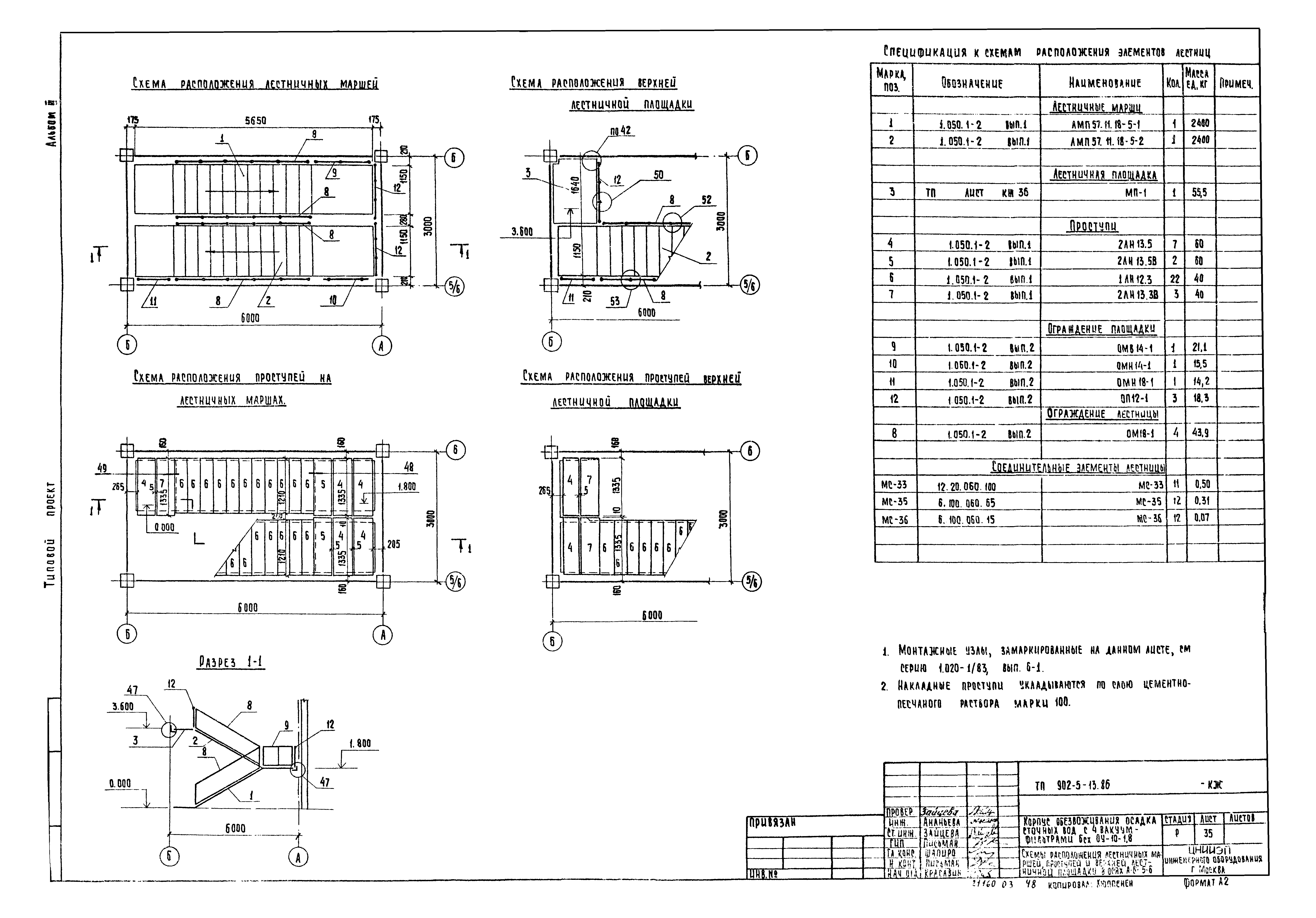
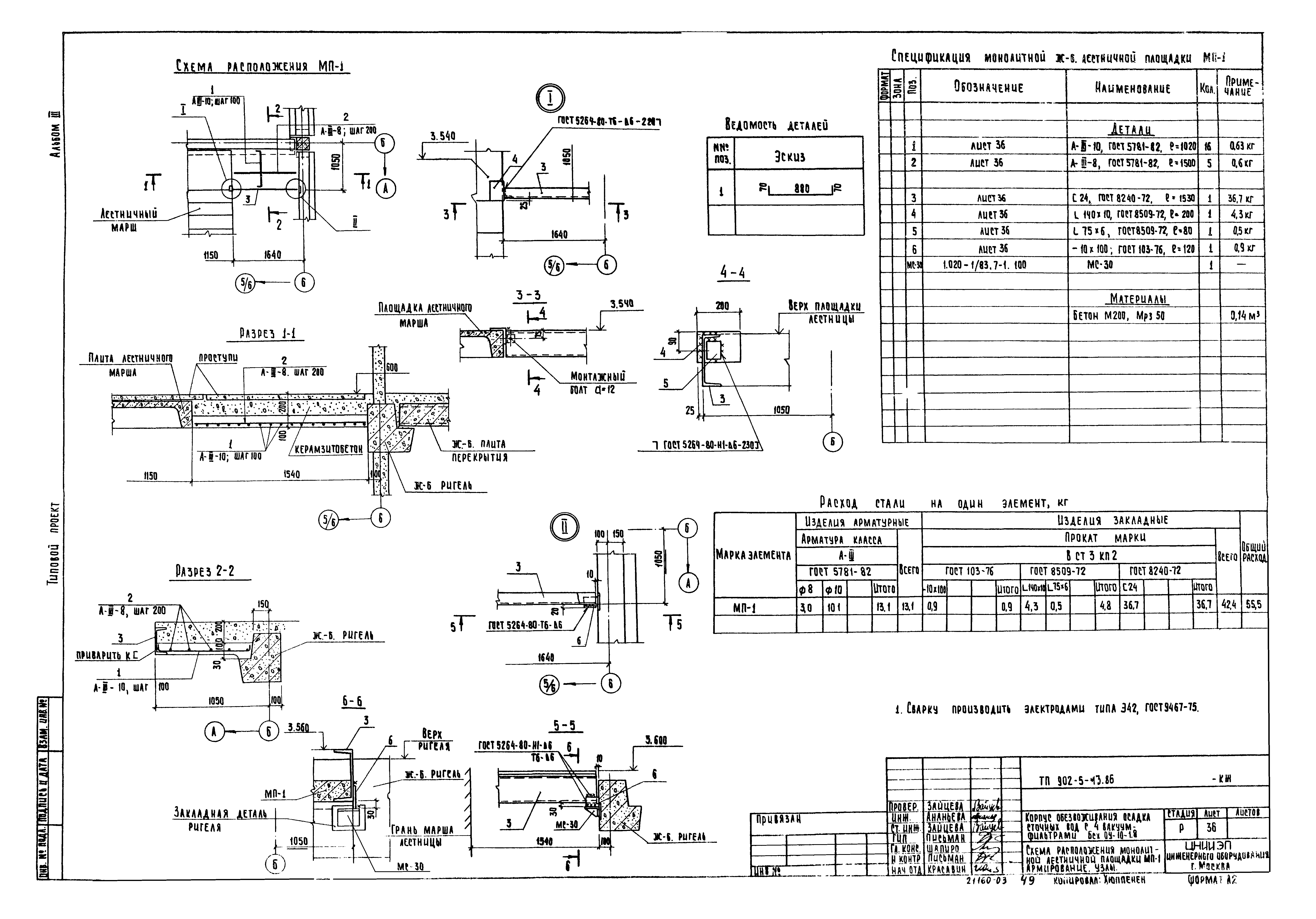
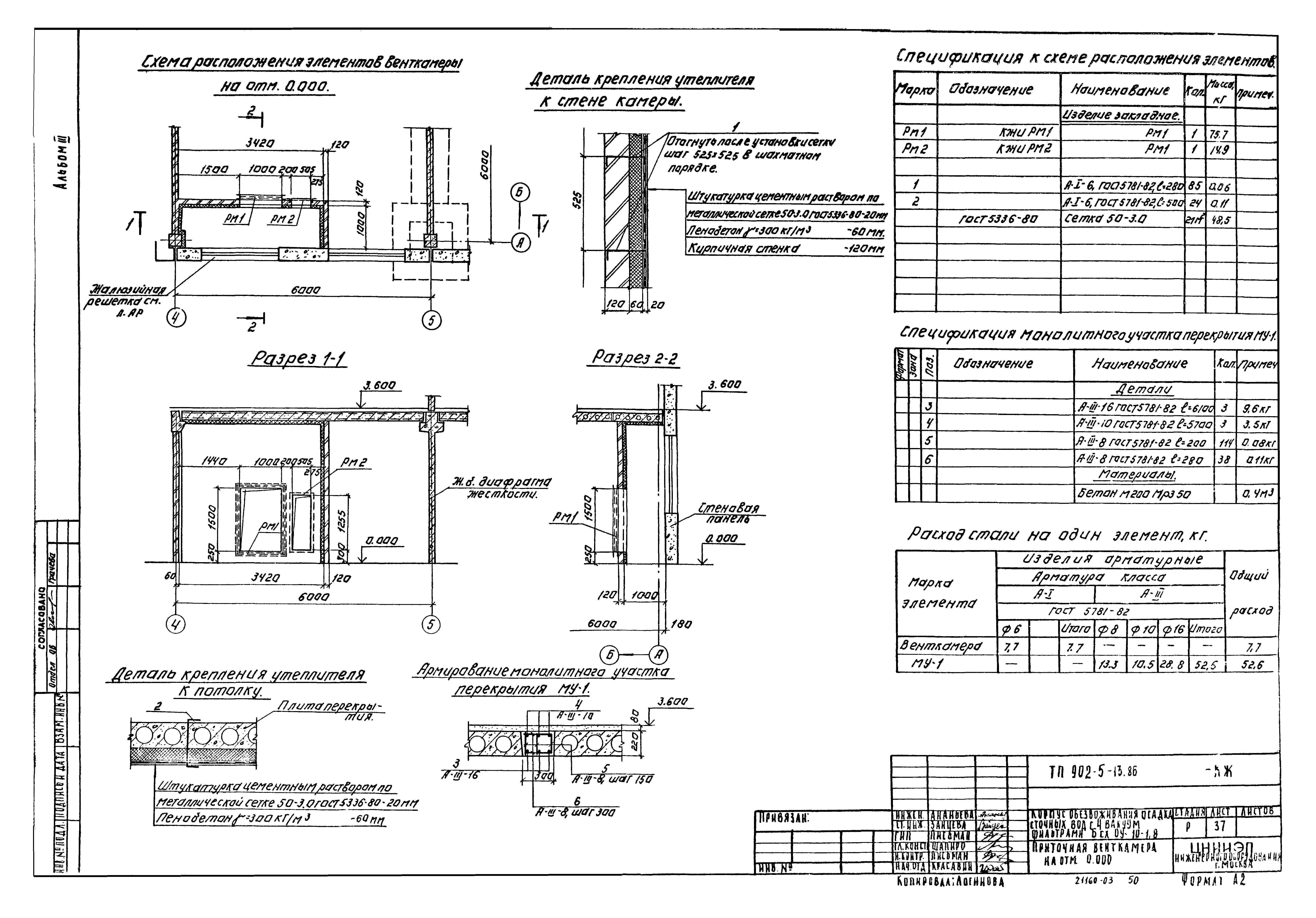
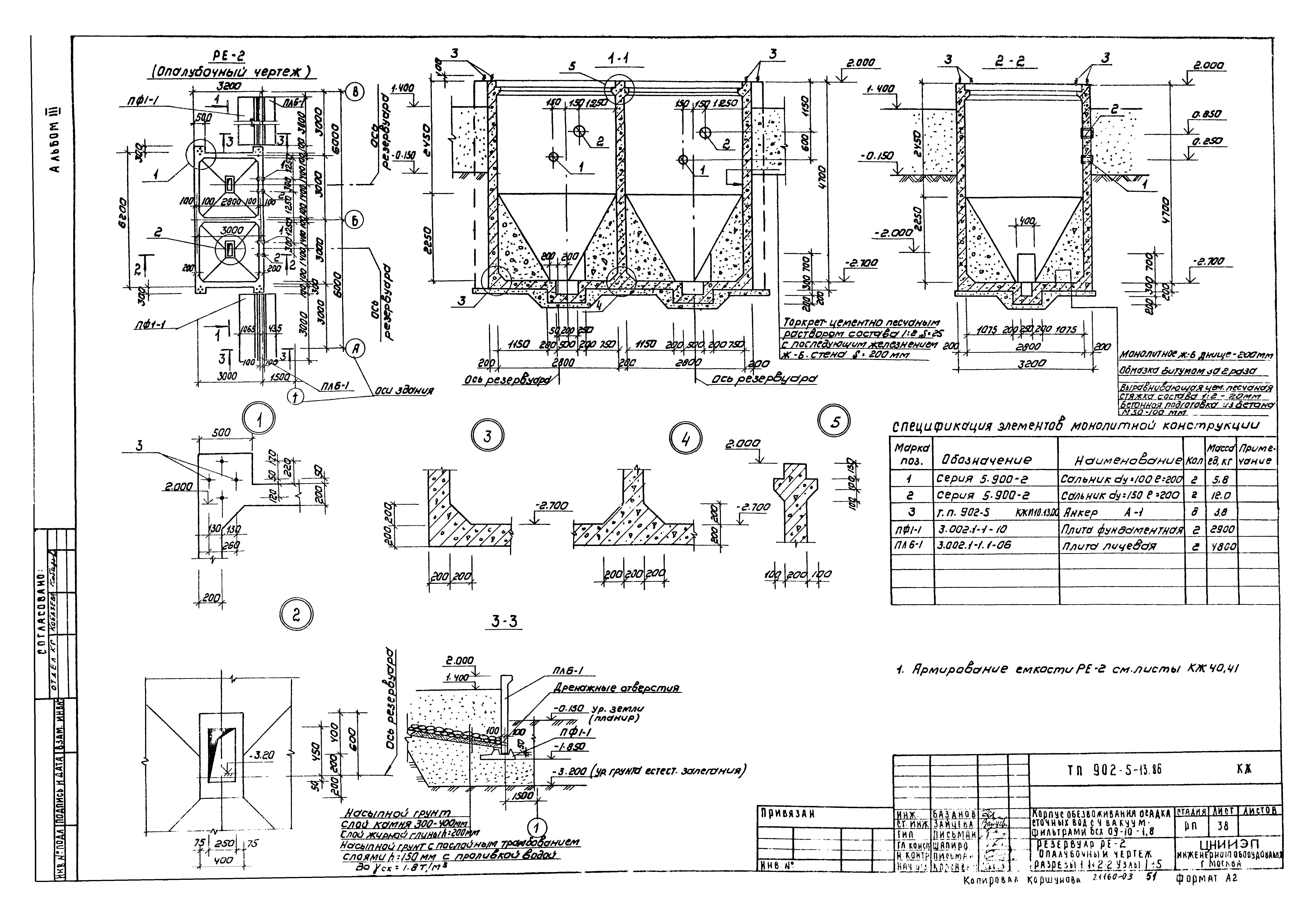
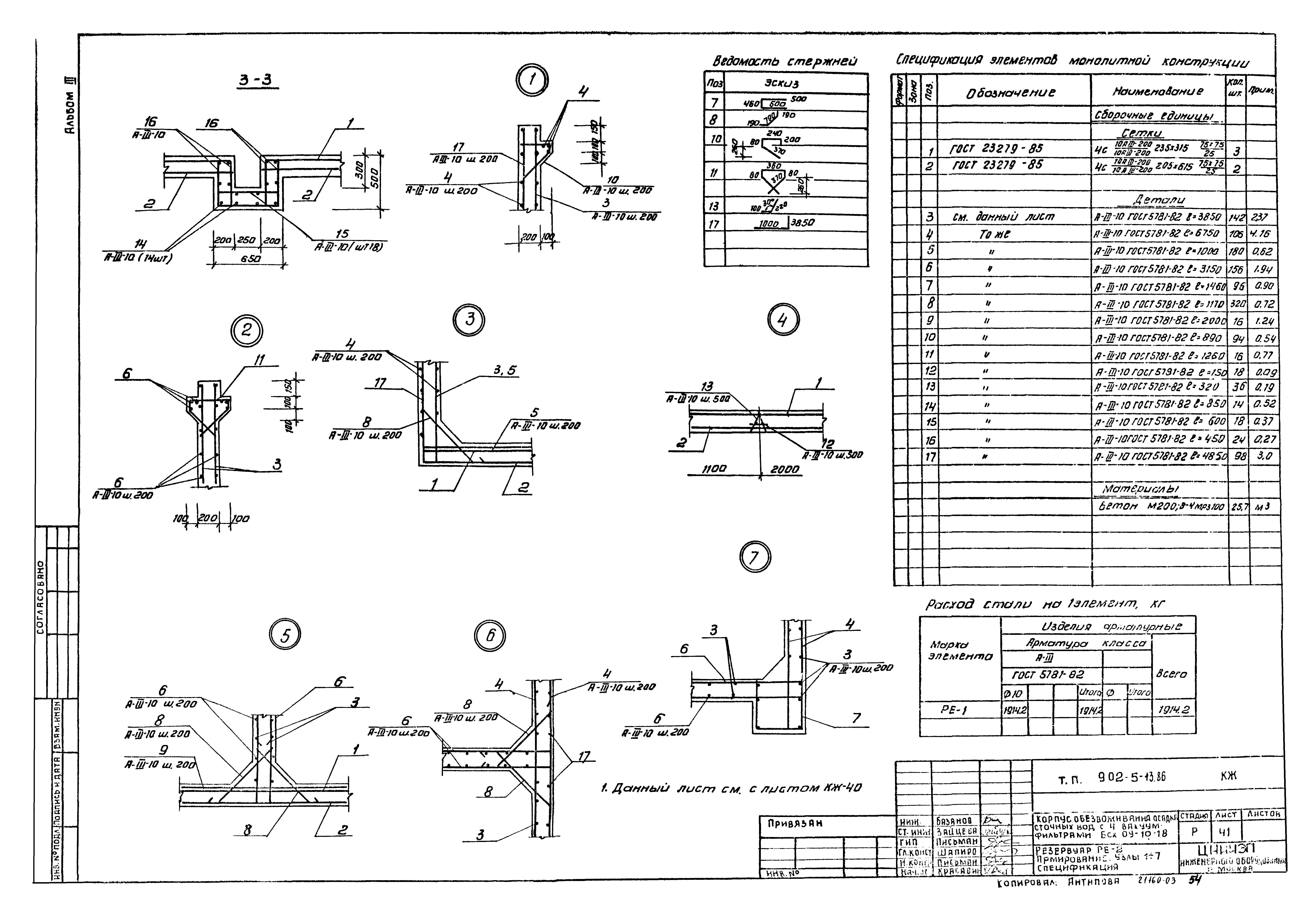
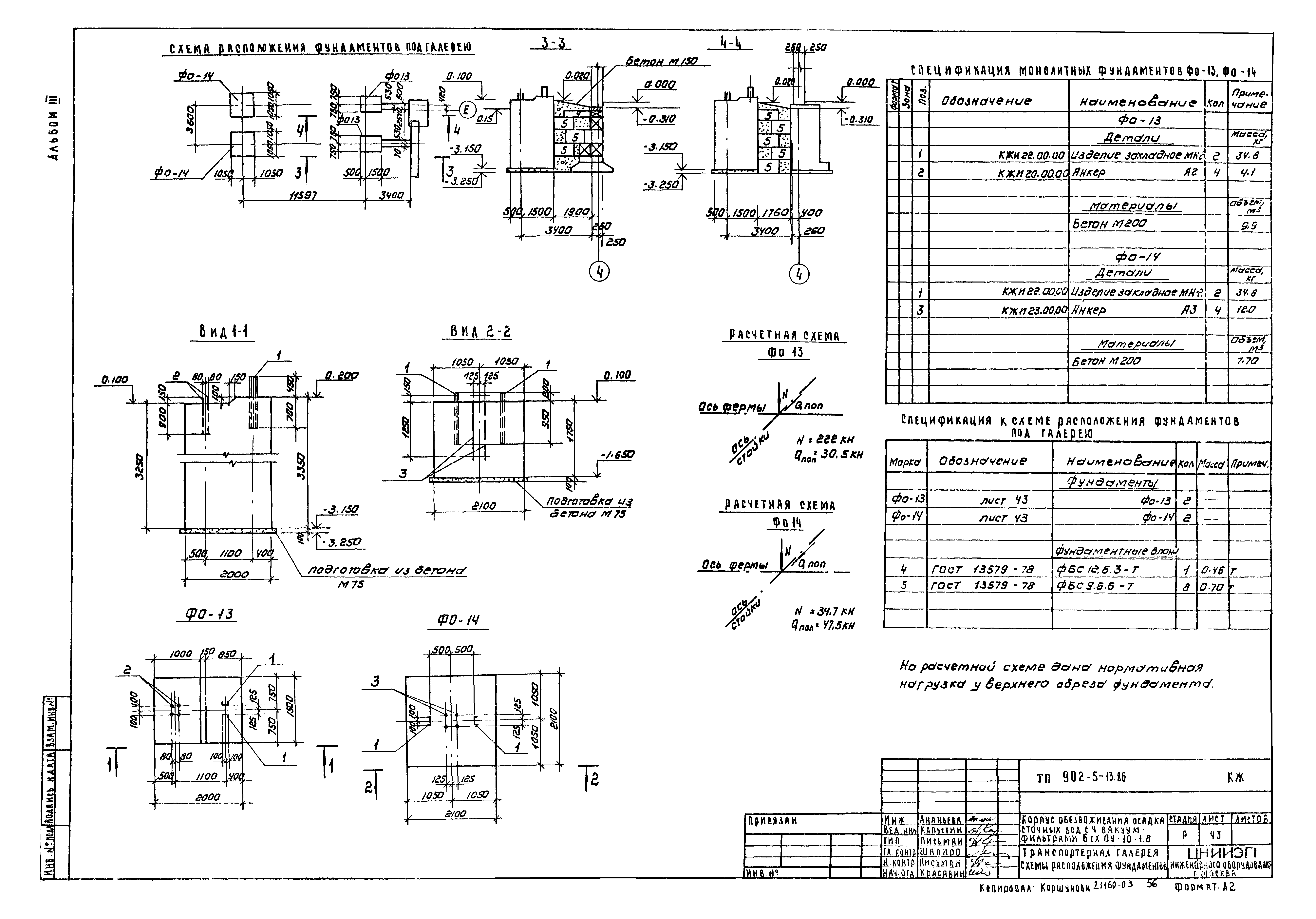
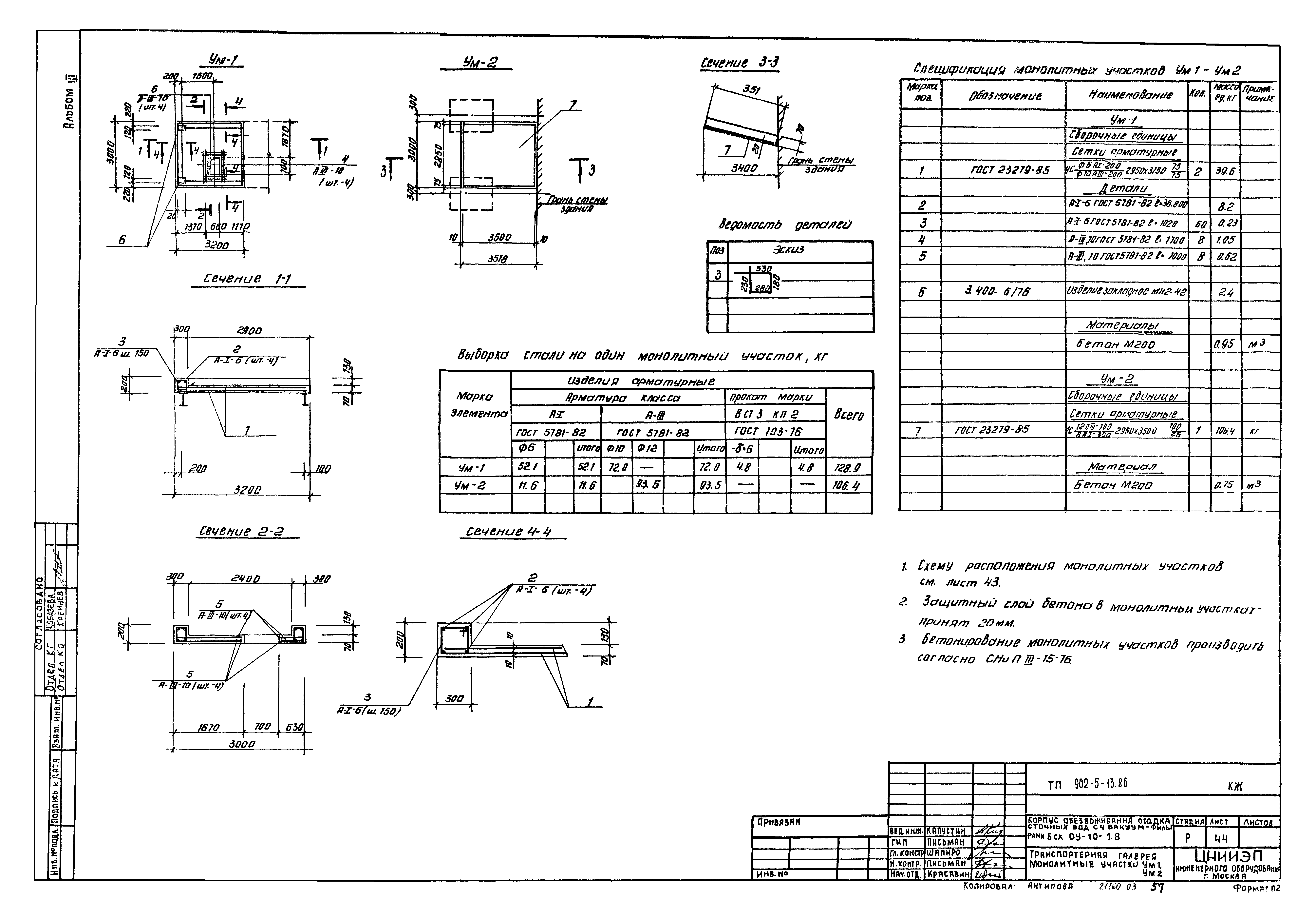
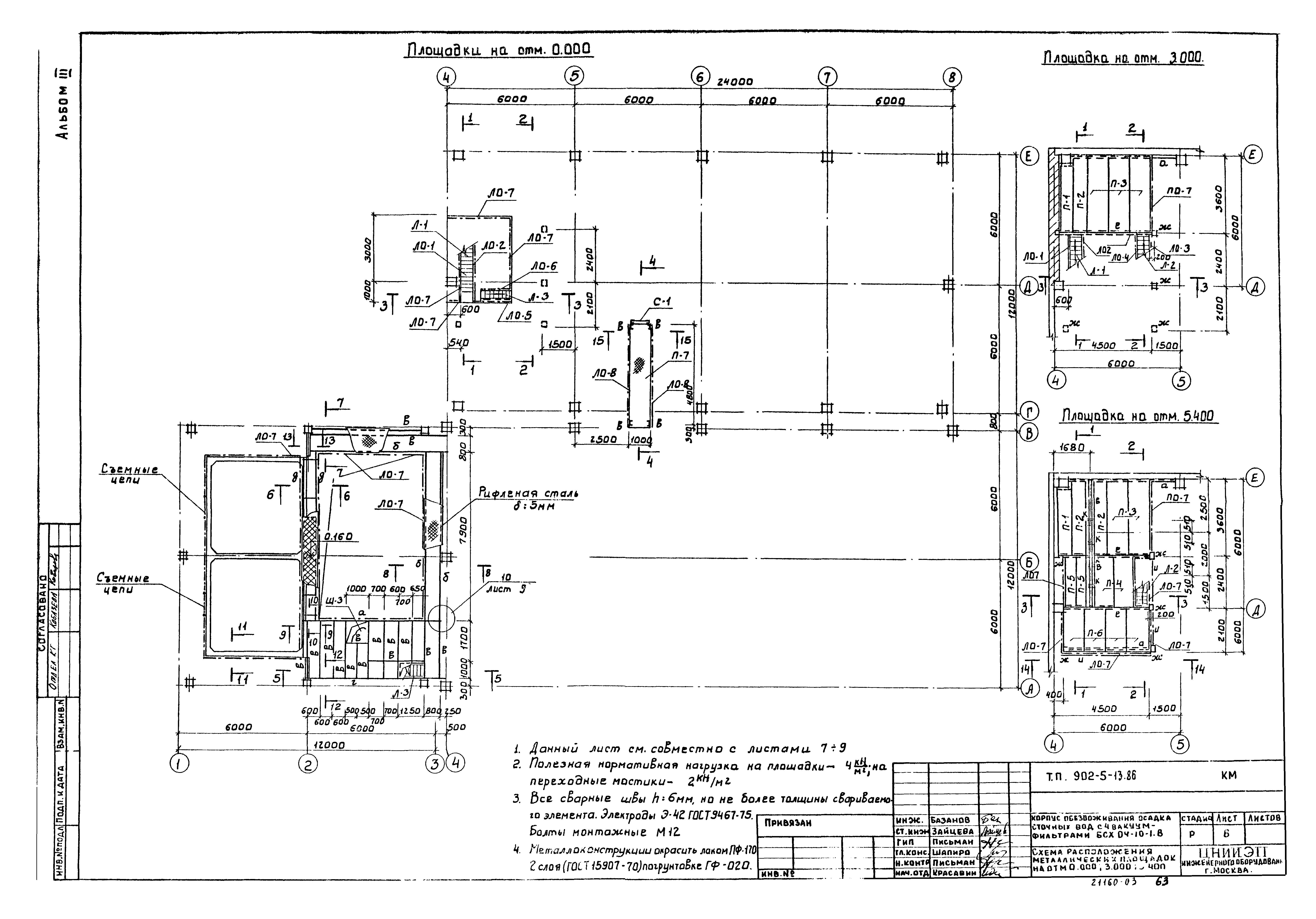
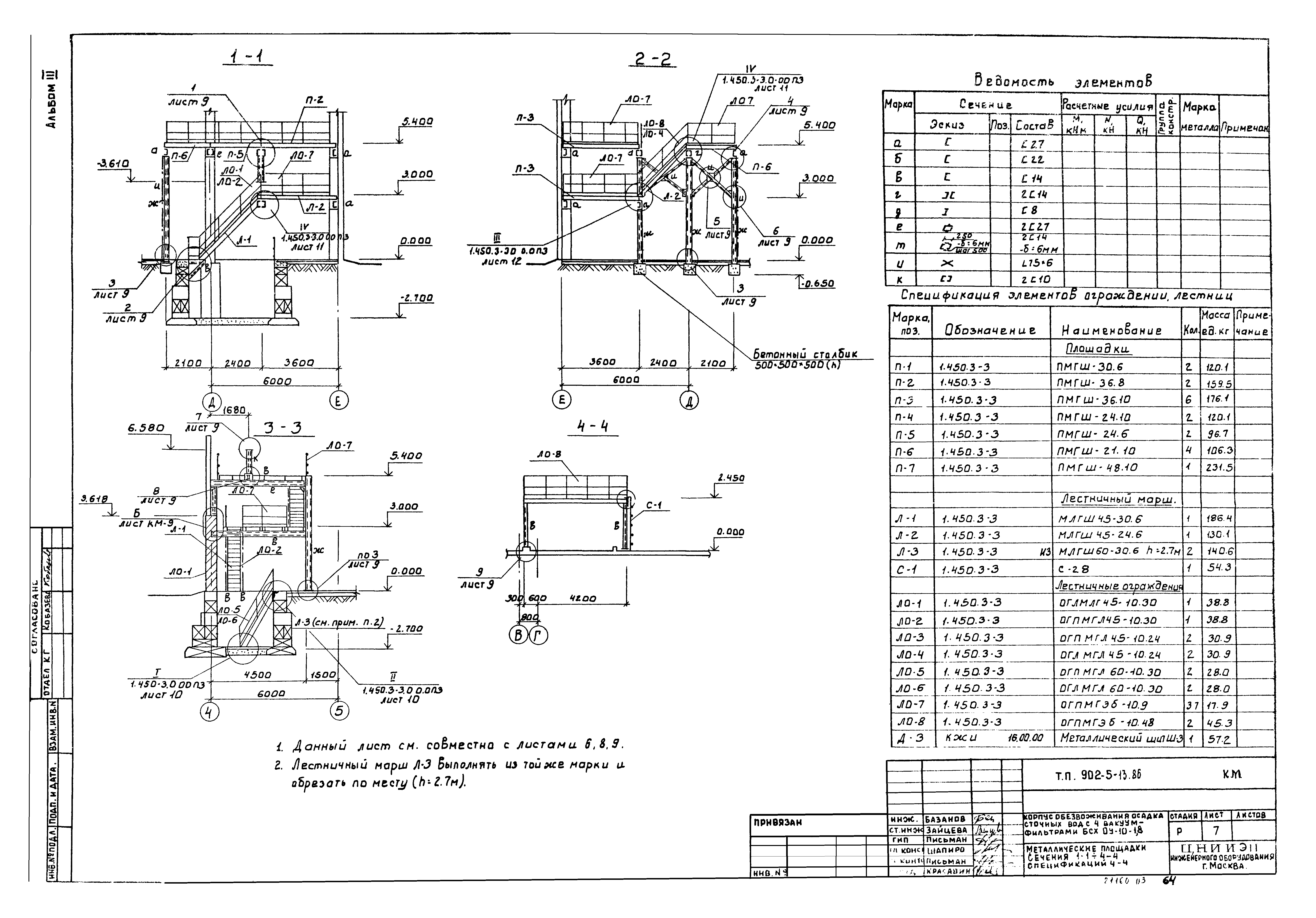
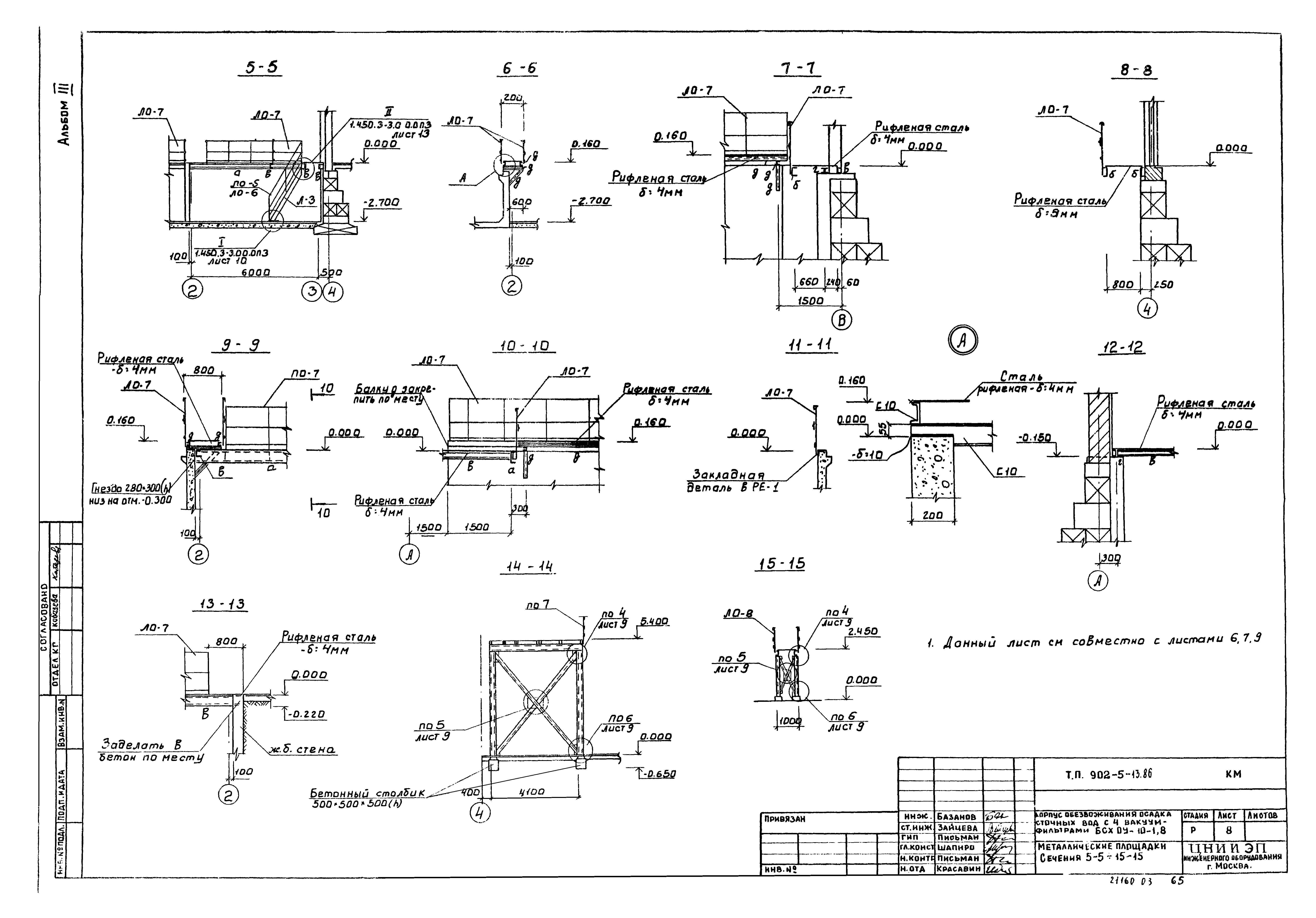
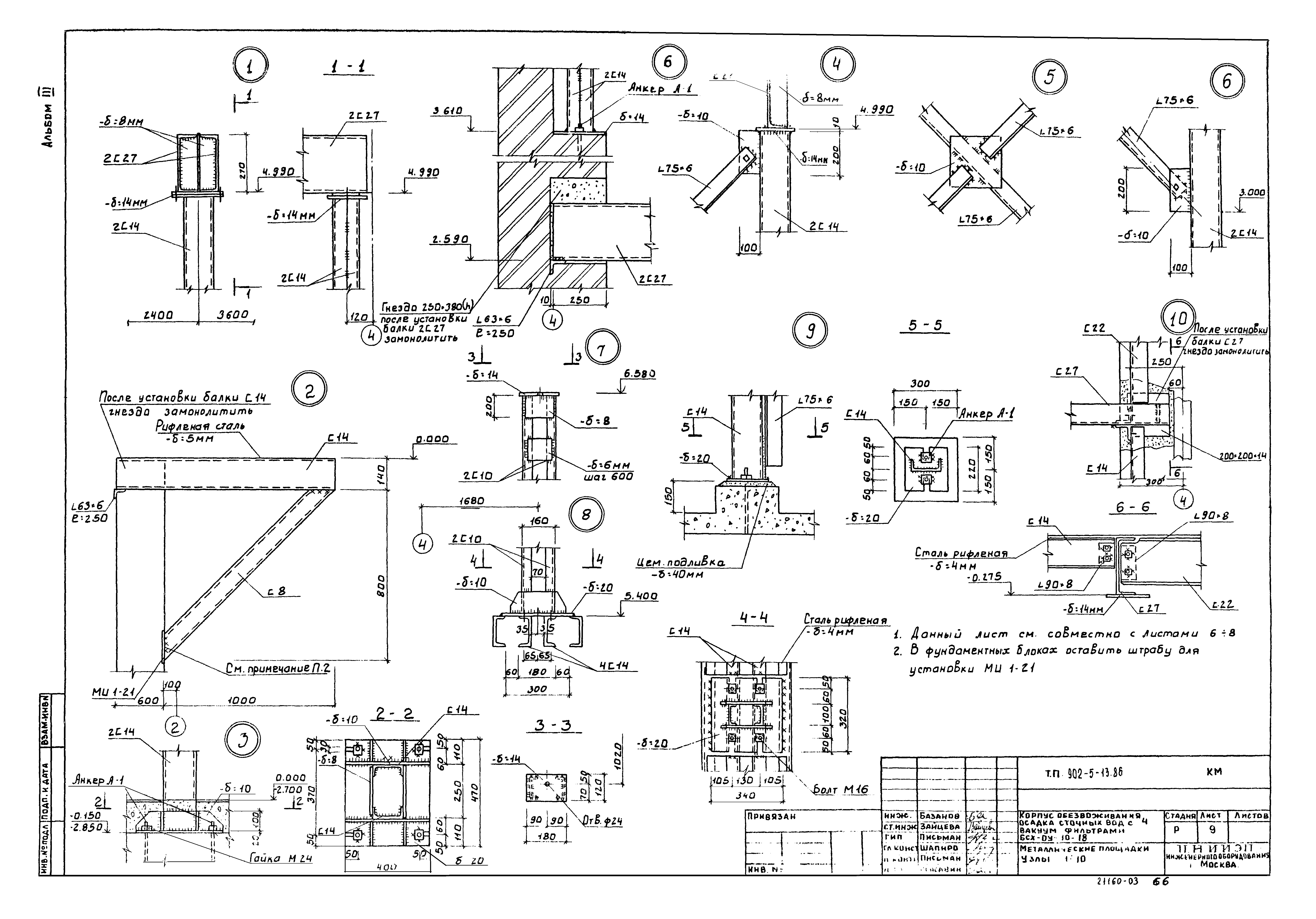
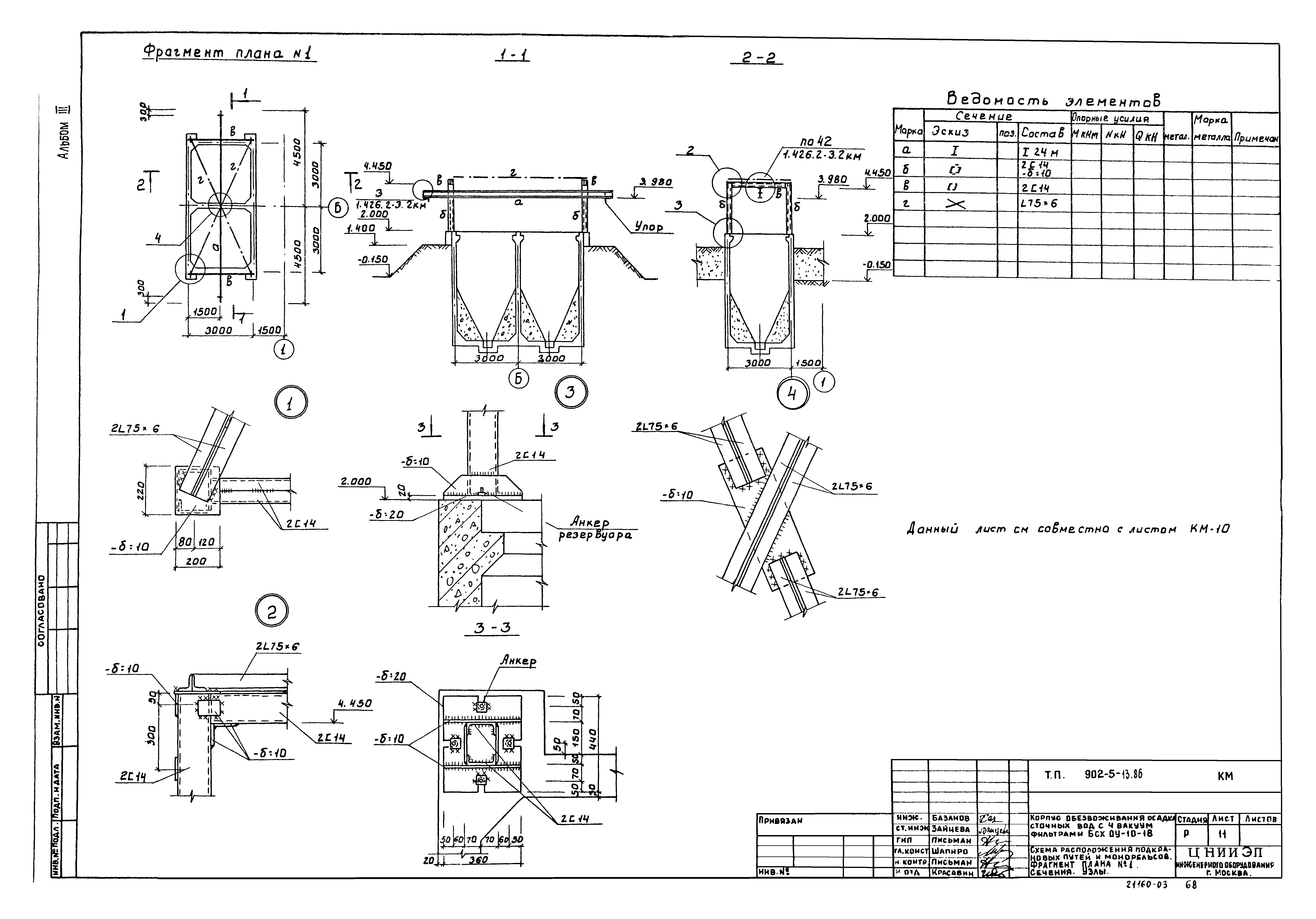
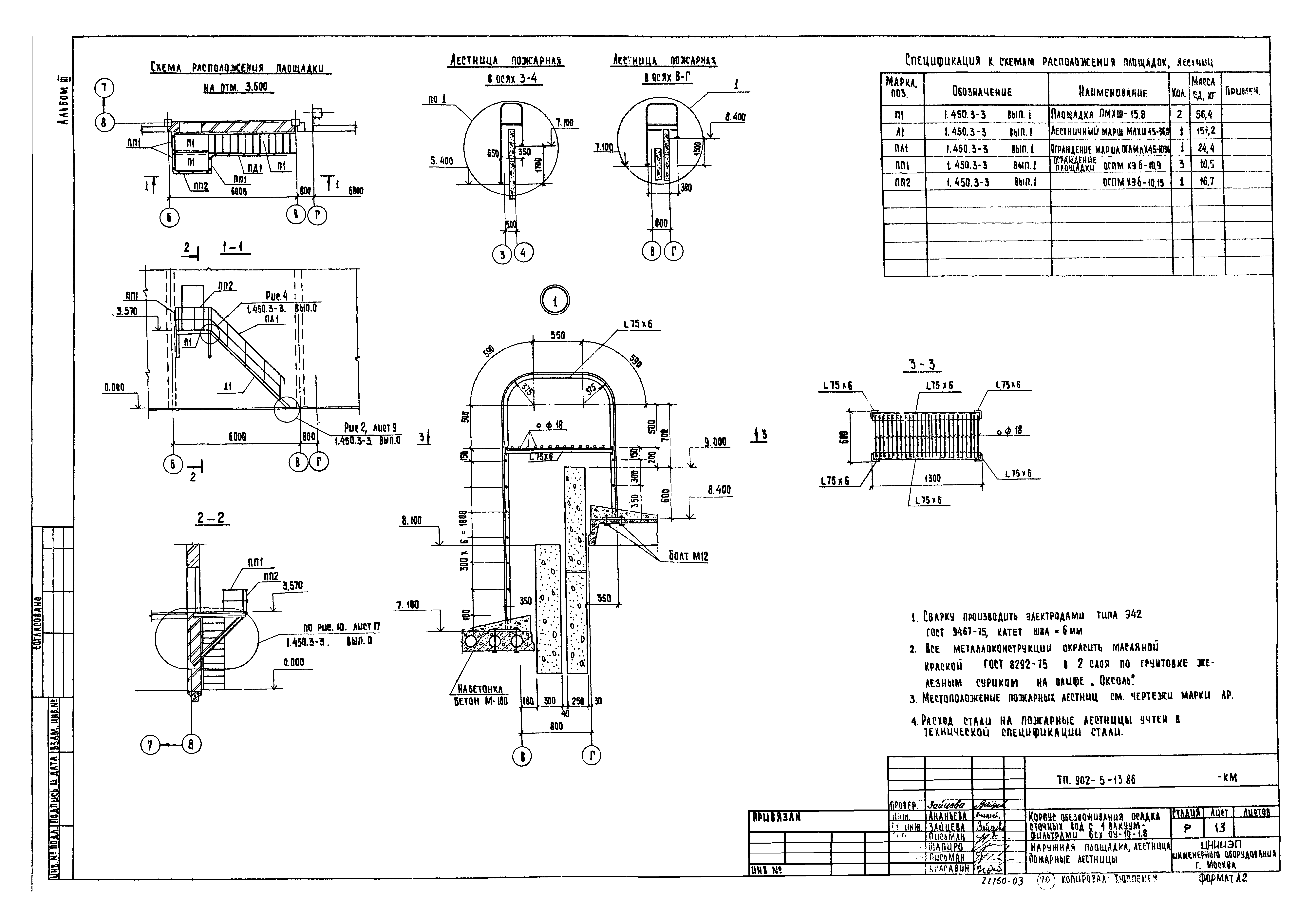
| Оглавление: | ТП 902-5-13.86 АР Листы марки АР ТП 902-5-13.86 АР Общие данные ТП 902-5-13.86 АР Планы на отм. -2.700;0.000 и 3.600 ТП 902-5-13.86 АР Разрезы 1-1;2-2;3-3;4-4. Узлы 1-3 ТП 902-5-13.86 АР Фасады 1-8;8-1;А-Е;Е-А. Схемы заполнения оконных проемов ТП 902-5-13.86 АР Планы на отм. -2.700. Фрагменты 1-4. Узлы 6-8 ТП 902-5-13.86 АР Планы перегородок на отм. 0.000 и 3.600. Спецификация перегородок. Планы отверстий ТП 902-5-13.86 АР Спецификация элементов заполнения проемов. Спецификация гардеробного оборудования. Спецификация перемычек. Ведомость перемычек ТП 902-5-13.86 АР Ведомость отделки помещений ТП 902-5-13.86 АР Планы полов и кровли. Экспликация полов ТП 902-5-13.86 АР Транспортерная галерея. План. Разрезы. Фасады ТП 902-5-13.86 КЖ Листы марки КЖ ТП 902-5-13.86 КЖ Общие данные (начало) ТП 902-5-13.86 КЖ Общие данные (продолжение) ТП 902-5-13.86 КЖ Общие данные (окончание) ТП 902-5-13.86 КЖ Схема расположения фундаментов, фундаментных балок и стен подвала ТП 902-5-13.86 КЖ Фундаменты зданий. Сечения 1-1÷6-6. Спецификация ТП 902-5-13.86 КЖ Фундаменты зданий. Разрезы 7-7÷15-15 ТП 902-5-13.86 КЖ Фундаменты Фм1-Фм5. Опалубочный чертеж ТП 902-5-13.86 КЖ Фундаменты Фм6-Фм11. Опалубочный чертеж ТП 902-5-13.86 КЖ Фундаменты Фм12-Фм14,Фм16. Опалубочный чертеж ТП 902-5-13.86 КЖ Фундаменты Фм15,Фм17,Фм19. Опалубочный чертеж. Армирование ТП 902-5-13.86 КЖ Фундаменты Фм1,Фм2,Фм3. Армирование ТП 902-5-13.86 КЖ Фундаменты Фм4,Фм5,Фм6. Армирование ТП 902-5-13.86 КЖ Фундаменты Фм7,Фм8,Фм9. Армирование ТП 902-5-13.86 КЖ Фундаменты Фм10,Фм11. Армирование ТП 902-5-13.86 КЖ Фундаменты Фм12. Армирование ТП 902-5-13.86 КЖ Фундаменты Фм13,Фм14. Армирование ТП 902-5-13.86 КЖ Фундаменты Фм16. Армирование ТП 902-5-13.86 КЖ Фундаменты Фм18,Фм20. Армирование ТП 902-5-13.86 КЖ Резервуар РЕ-1. Опалубочный чертеж. Разрезы 1-1;2-2. Узлы ТП 902-5-13.86 КЖ Резервуар РЕ-1. План перекрытия, сечения. Деревянный щит ЩД-1 ТП 902-5-13.86 КЖ Резервуар РЕ-1. Армирование. Раскладка верхних и нижних сеток днища ТП 902-5-13.86 КЖ Резервуар РЕ-1. Армирование. Спецификации ТП 902-5-13.86 КЖ План фундаментов под оборудование на отм. 0.000,-2.700 ТП 902-5-13.86 КЖ План фундаментов под оборудование. Сечения 1-1÷11-11 ТП 902-5-13.86 КЖ Фундаменты под оборудование. Фрагмент плана №1. ФО-1÷ФО-3. Сечения 1-1,2-2 ТП 902-5-13.86 КЖ Фундаменты под оборудование ФО-1÷ФО-3. Сечения 3-3÷6-6 ТП 902-5-13.86 КЖ Фундаменты под оборудование. Фрагмент плана №2. ФО-4÷ФО-6. Сечения 1-1÷3-3 ТП 902-5-13.86 КЖ Фундаменты под оборудование ФО-7÷ФО-10. Сечения 1-1÷4-4 ТП 902-5-13.86 КЖ Схемы расположения колонн, балок и плит покрытия в осях А-В,1-3 и Г-Е,4-8 ТП 902-5-13.86 КЖ Схемы расположения стеновых панелей в осях А-В,1-3 и Г-Е,4-8 ТП 902-5-13.86 КЖ Торцевой фахверк в осях А-В,1-3 и Г-Е,4-8. Разрезы 1-1,2-2,3-3 ТП 902-5-13.86 КЖ Схемы расположения колонн, диаграмм жесткости, ригелей в осях А-В;4-8 ТП 902-5-13.86 КЖ Схемы расположения плит перекрытия на отм. 3.600 и 7.200 в осях А-В,4-8 ТП 902-5-13.86 КЖ Схемы расположения стеновых панелей в осях А-В,4-8 ТП 902-5-13.86 КЖ Схемы расположения лестничных маршей, проступей и верхней лестничной площадки в осях А-Б,5-6 ТП 902-5-13.86 КЖ Схемы расположения монолитной лестничной площадки МП-1. Армирование. Узлы ТП 902-5-13.86 КЖ Приточная венткамера на отм. 0.000 ТП 902-5-13.86 КЖ Резервуар РЕ-2. Опалубочный чертеж. Разрезы 1-1,2-2. Узлы 1-5 ТП 902-5-13.86 КЖ Резервуар РЕ-2. План перекрытия. Деревянный щит ЩА-2 и решетка РД-1 ТП 902-5-13.86 КЖ Резервуар РЕ-2. Армирование. Раскладка верхних и нижних сеток ТП 902-5-13.86 КЖ Резервуар РЕ-2. Армирование. Узлы 1-7. Спецификация ТП 902-5-13.86 КЖ Транспортная галерея. Схемы расположения плит покрытия, стеновых блоков и панелей, гофрированного стального профиль покрытия ТП 902-5-13.86 КЖ Транспортная галерея. Схемы расположения фундаментов ТП 902-5-13.86 КЖ Транспортная галерея. Монолитные участки Ум1,Ум2 ТП 902-5-13.86 КЖ Показатели изменения сметной стоимости строительно-монтажных работ, затрат труда и расходы материалов ТП 902-5-13.86 КМ Листы марки КМ ТП 902-5-13.86 КМ Общие данные ТП 902-5-13.86 КМ Техническая спецификация металла (начало) ТП 902-5-13.86 КМ Техническая спецификация металла (окончание) ТП 902-5-13.86 КМ Техническая спецификация стали на типовые конструкции ТП 902-5-13.86 КМ Ведомость металлоконструкций по видам профилей ТП 902-5-13.86 КМ Схема расположения металлических площадок на отм. 0.000;3.000;5.400 ТП 902-5-13.86 КМ Металлические площадки сеч. 1-1÷4-4. Спецификации ТП 902-5-13.86 КМ Металлические площадки сеч. 5-5÷15-15 ТП 902-5-13.86 КМ Металлические площадки. Узлы 1-10 ТП 902-5-13.86 КМ Схема расположения подкрановых путей и монорельсов. Сеч. 1-1÷4-4 ТП 902-5-13.86 КМ Схема расположения подкрановых путей и монорельсов. Фрагмент плана №1. Сечения. Узлы ТП 902-5-13.86 КМ Транспортная галерея. Схема расположения балок пола, кровли, опор ТП 902-5-13.86 КМ Наружная площадка, лестница. Пожарные лестницы |
| Разработан: | ЦНИИЭП |
| Утверждён: | 04.12.1985 Госгражданстрой (Gosgrazhdanstroy 386) |
| Заменяет собой: |






































































