Скачать Типовой проект 902-5-13.86 Альбом IV. Строительные изделияДата актуализации: 01.01.2021
|
| Обозначение: | Типовой проект 902-5-13.86 |
| Обозначение англ: | 902-5-13.86 |
| Статус: | не определен законодательством |
| Название рус.: | Альбом IV. Строительные изделия |
| Дата добавления в базу: | 01.09.2013 |
| Дата актуализации: | 01.01.2021 |
| Дата введения: | 26.02.1986 |
| Дата окончания срока действия: | 30.06.2003 |
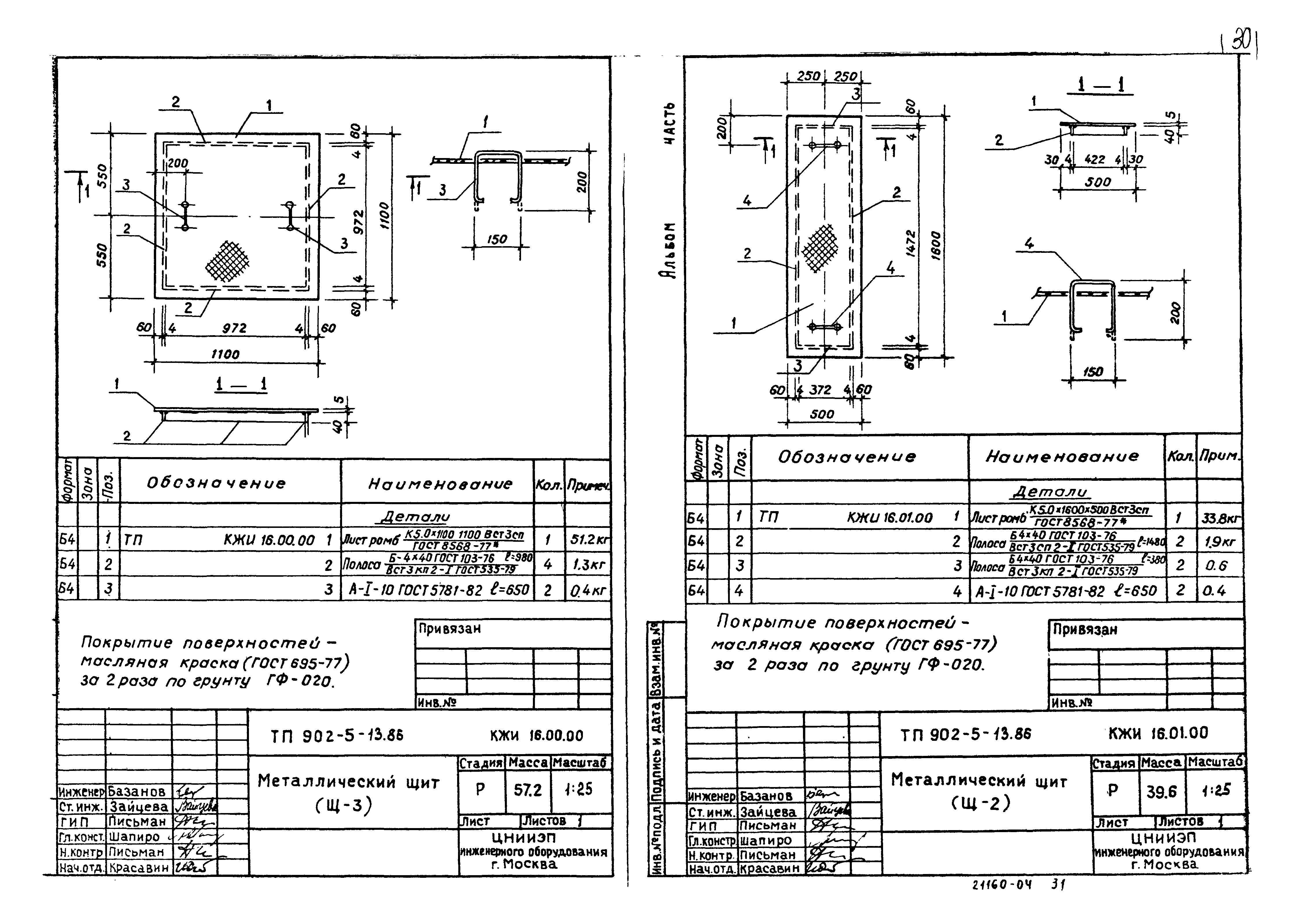
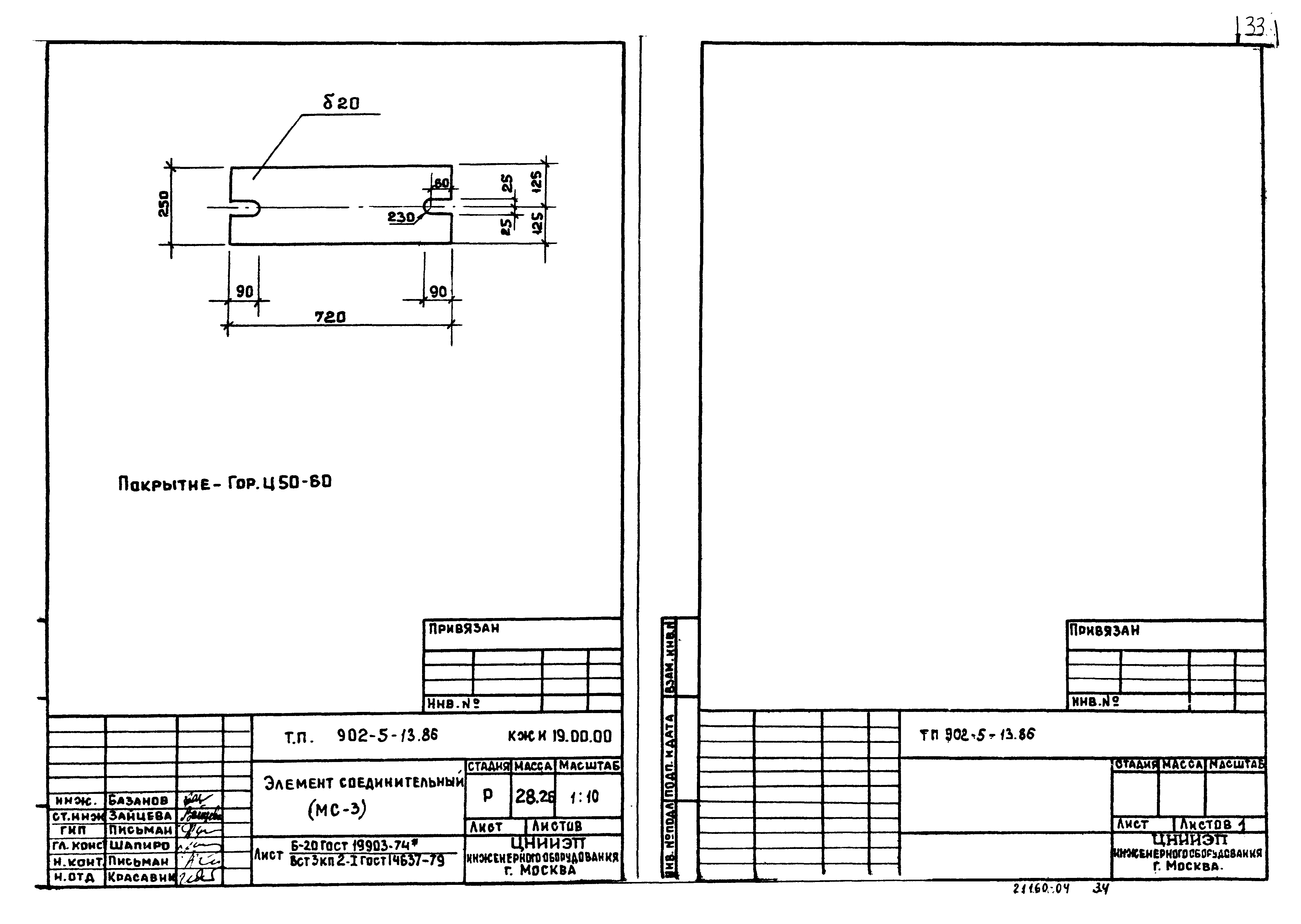
| Оглавление: | ТП 902-5-13.86 Содержание альбома ТП 902-5-13.86 КИ01.00.00 Колонна К42-4а, К42-4б(К-1,К-2) ТП 902-5-13.86 КИ01.01.00 Колонна 1КФ49-1а(К-3) ТП 902-5-13.86 КИ01.02.00 Колонна (К-4÷К-9) (см. таблицу исполнений) ТП 902-5-13.86 КИ01.03.00 Колонна БКФ79-1а;БКФ79-1б (К-10,К-11) ТП 902-5-13.86 КИ01.04.00 Колонна (К12-К16;К18;К24;К25) (см. таблицу исполнений) ТП 902-5-13.86 КИ01.05.00 Колонна 2К 3.36-1а(К17) ТП 902-5-13.86 КИ01.06.00 Колонна 1К03.36а, 1К03, 36б (К20,К21) ТП 902-5-13.86 КИ01.07.00 Колонна (К-22;К-23;К-19) (см. таблицу исполнений) ТП 902-5-13.86 КИ02.00.00 Панель стеновая (ПС-15, ПС-16) (см. таблицу исполнений) ТП 902-5-13.86 КИ03.00.00 Плита ПРС56.15-4АIVт-а(ПП15) ТП 902-5-13.86 КИ03.01.00 Плита ПРС56.15-6АIVт-а(ПП2) ТП 902-5-13.86 КИ03.02.00 Плита покрытия (П-1÷П-9) (см. таблицу исполнений) ТП 902-5-13.86 КИ04.00.00 Балка 1БСП12-2АтV-н-а(Б1) ТП 902-5-13.86 КИ04.01.00 Балка 1БСП12-6АтV-н-а(Б-2) ТП 902-5-13.86 КИ04.02.00 Балка 1БСП12-5АтV-н-а(Б-3) ТП 902-5-13.86 КИ05.00.00 Ригель РЛП 4.57-30-а(Р10) ТП 902-5-13.86 КИ06.00.00 Изделие закладное (РМ-1) ТП 902-5-13.86 КИ07.00.00 Решетка (Р1) ТП 902-5-13.86 КИ08.00.00 Изделие закладное (РМ2) ТП 902-5-13.86 КИ09.00.00 Решетка (Р2) ТП 902-5-13.86 КИ10.00.00 Изделие закладное (РМ-3) ТП 902-5-13.86 КИ11.00.00 Стойка фахверковая (СФ-1ª) ТП 902-5-13.86 КИ12.00.00 Металлический щит (Щ-1) ТП 902-5-13.86 КИ13.00.00 Металлическая балка (БМ-1) ТП 902-5-13.86 КИ14.00.00 Закладная деталь (3Д-3) ТП 902-5-13.86 КИ15.00.00 Анкер (А-1) ТП 902-5-13.86 КИ16.00.00 Металлический щит (Щ-3) ТП 902-5-13.86 КИ16.01.00 Металлический щит (Щ-2) ТП 902-5-13.86 КИ17.00.00 Закладная деталь (3Д-1) ТП 902-5-13.86 КИ17.01.00 Закладная деталь (3Д-2) ТП 902-5-13.86 КИ18.00.00 Элемент соединительный (МС-1) ТП 902-5-13.86 КИ18.01.00 Элемент соединительный (МС-2) ТП 902-5-13.86 КИ19.00.00 Элемент соединительный (МС-3) ТП 902-5-13.86 КИ20.00.00 Анкер (А2) ТП 902-5-13.86 КИ21.00.00 Изделие закладное (МН1) ТП 902-5-13.86 КИ22.00.00 Изделие закладное (МН2) ТП 902-5-13.86 КИ23.00.00 Анкер (А3) |
| Разработан: | ЦНИИЭП |
| Утверждён: | 04.12.1985 Госгражданстрой (Gosgrazhdanstroy 386) |
| Заменяет собой: |




































