Скачать Типовой проект 902-5-13.86 Альбом V. Электротехническая часть. Автоматизация. Связь и сигнализацияДата актуализации: 01.01.2021
|
| Обозначение: | Типовой проект 902-5-13.86 |
| Обозначение англ: | 902-5-13.86 |
| Статус: | не определен законодательством |
| Название рус.: | Альбом V. Электротехническая часть. Автоматизация. Связь и сигнализация |
| Дата добавления в базу: | 01.09.2013 |
| Дата актуализации: | 01.01.2021 |
| Дата введения: | 26.02.1986 |
| Дата окончания срока действия: | 30.06.2003 |
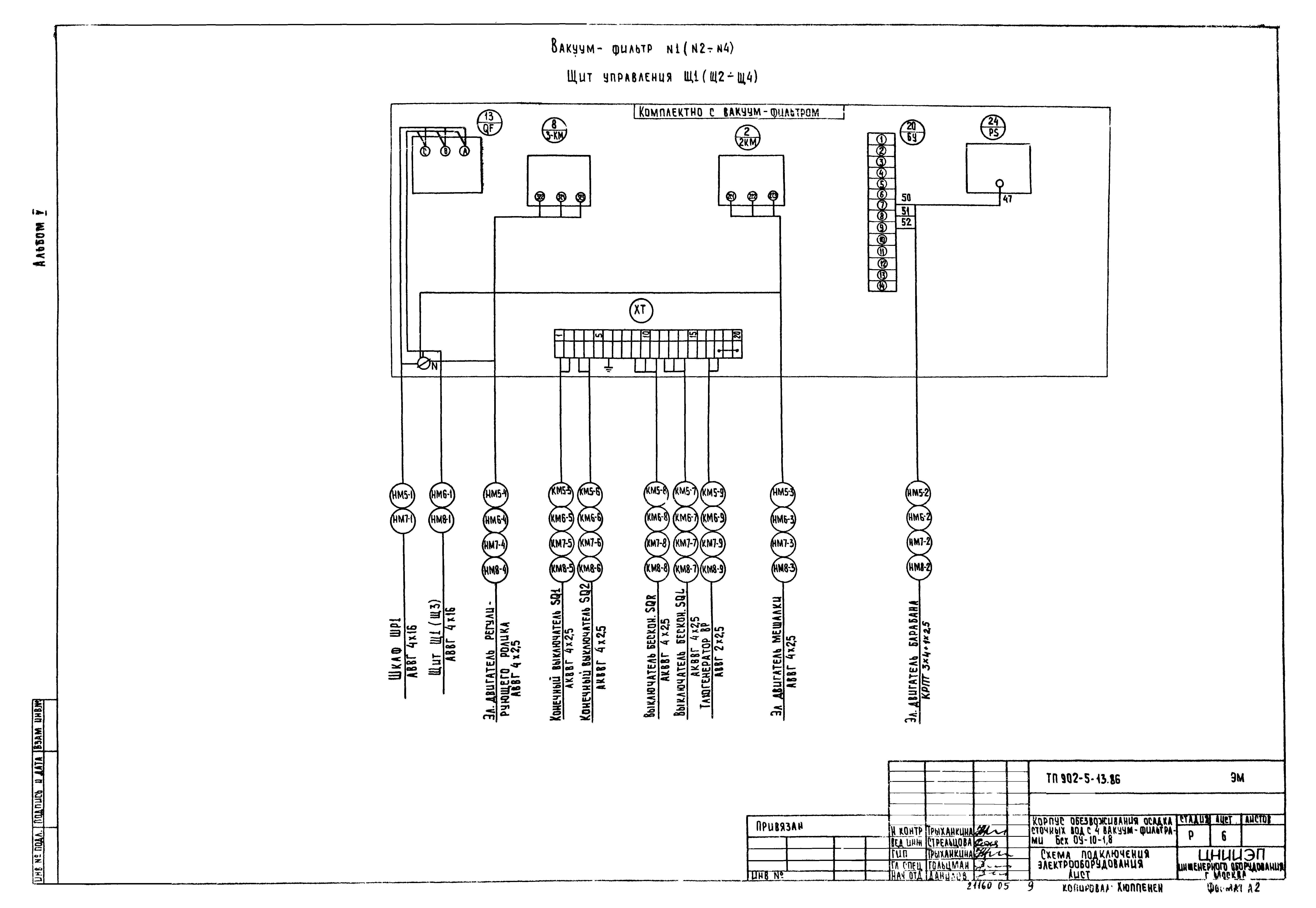
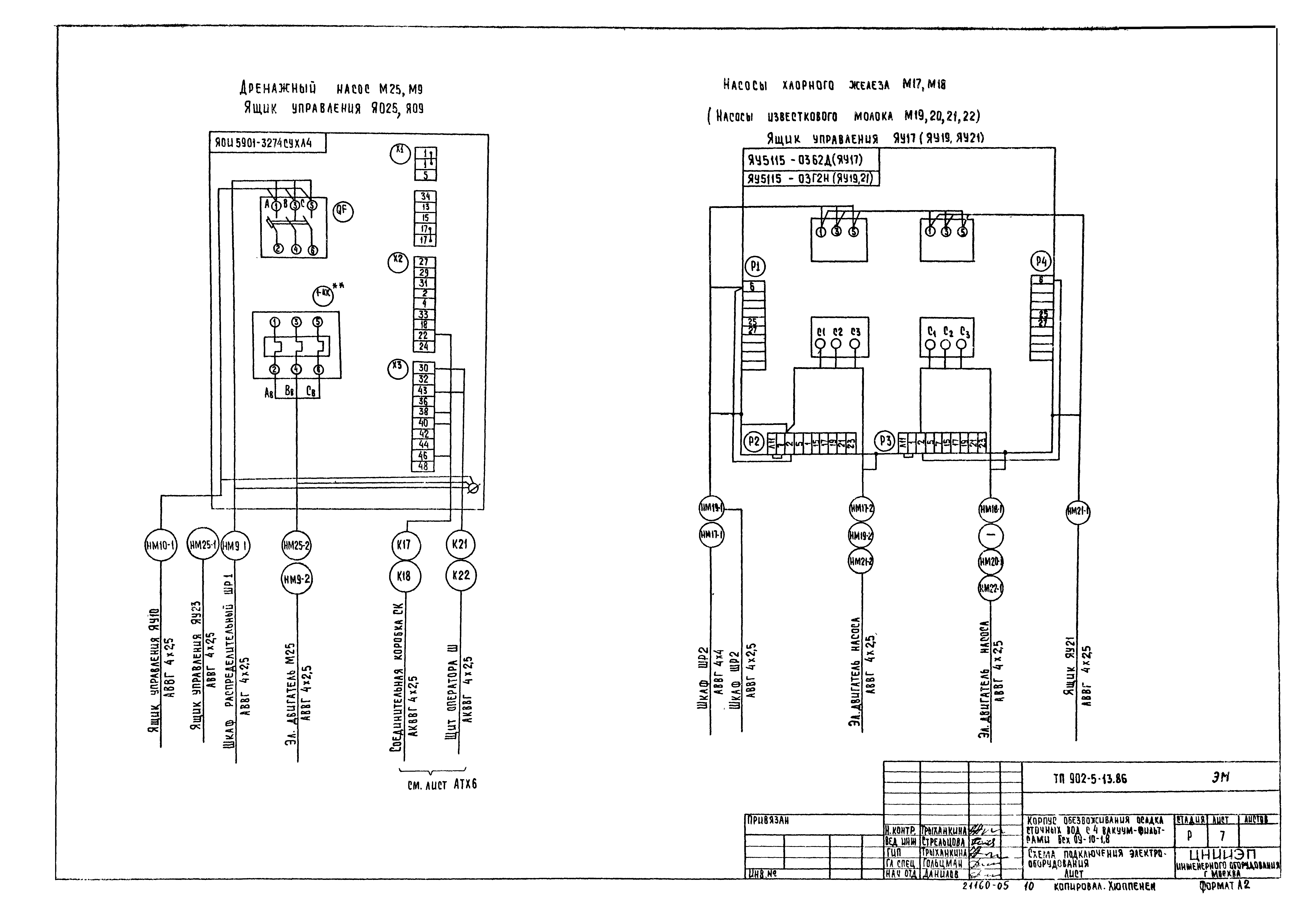
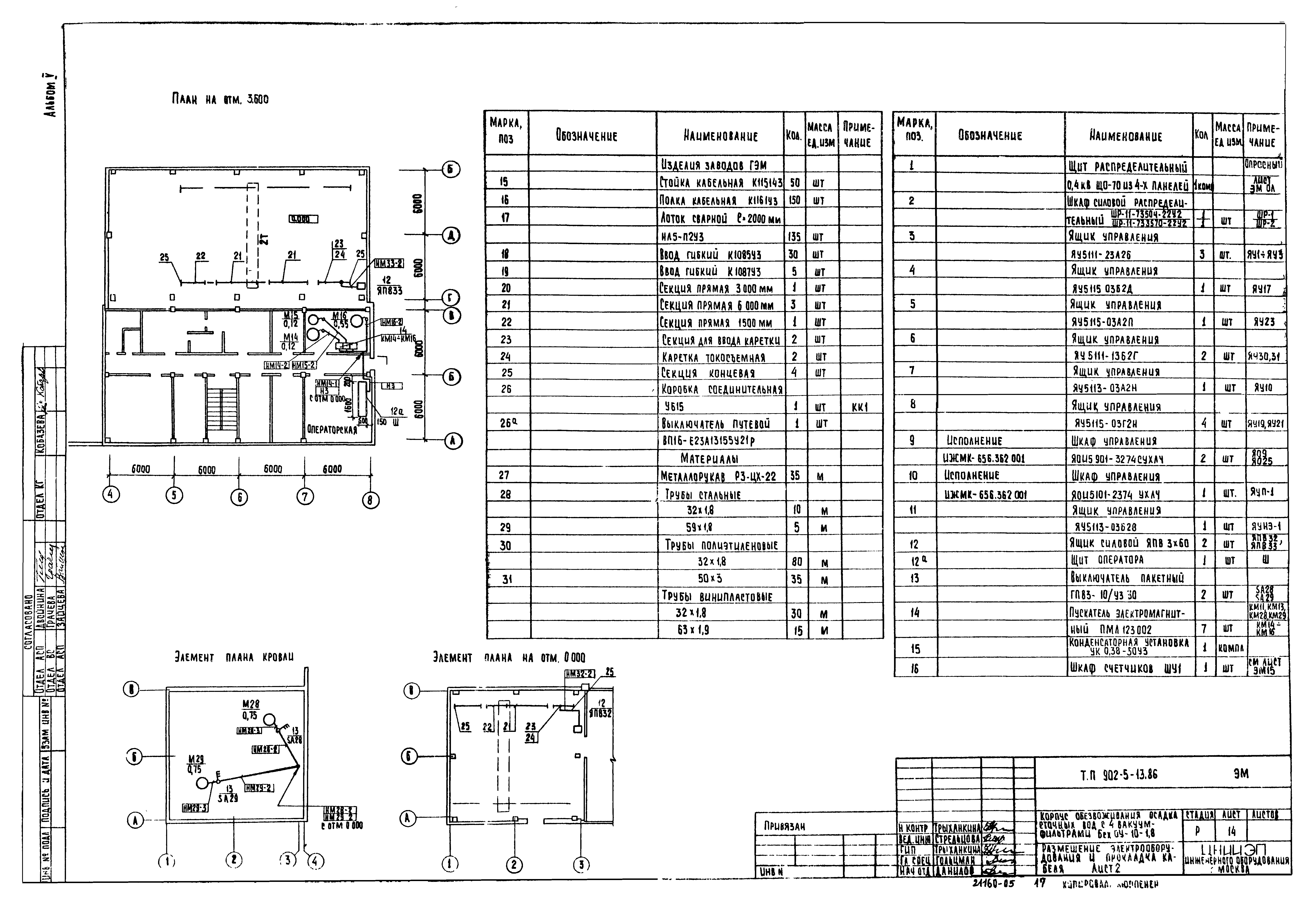
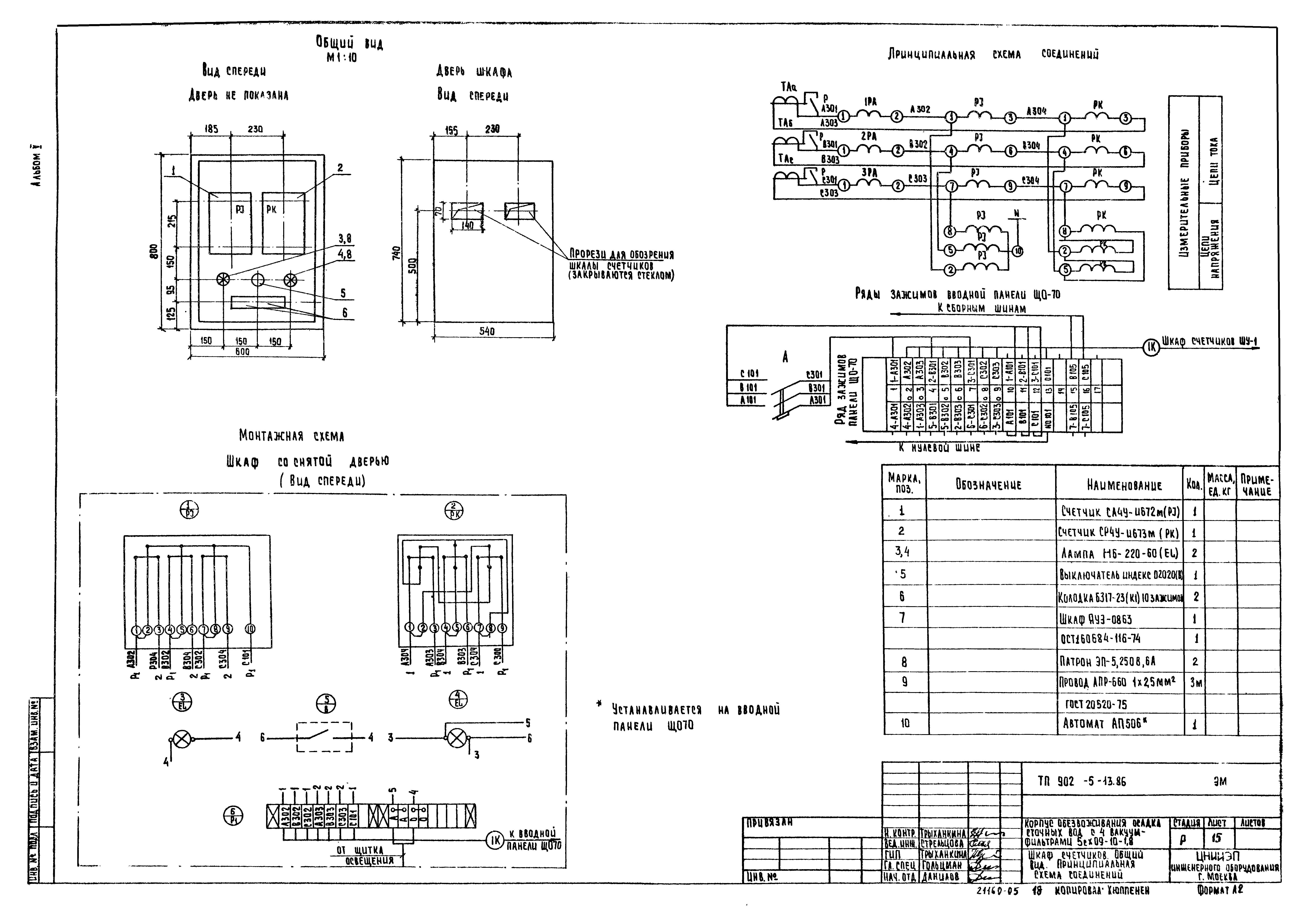
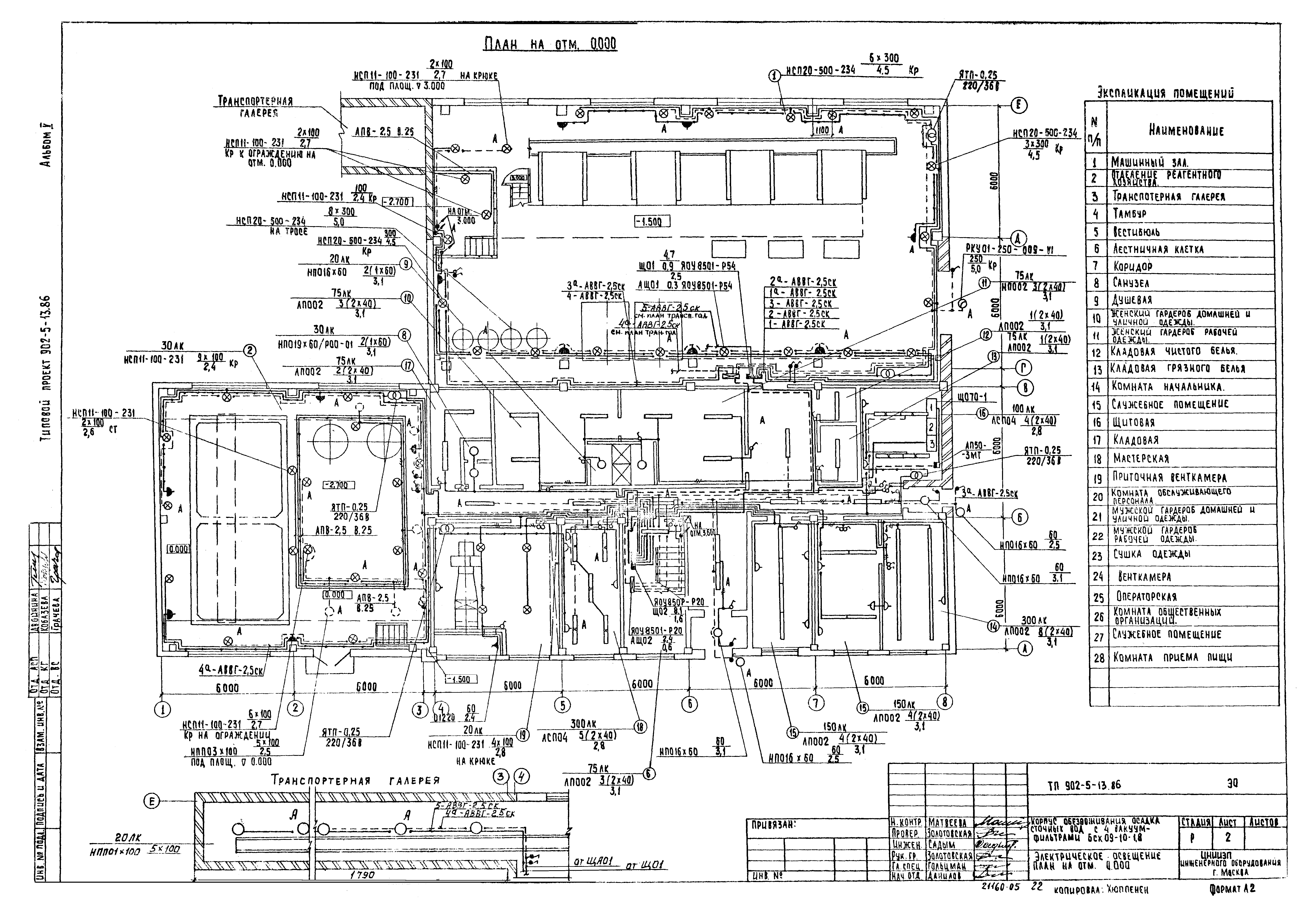
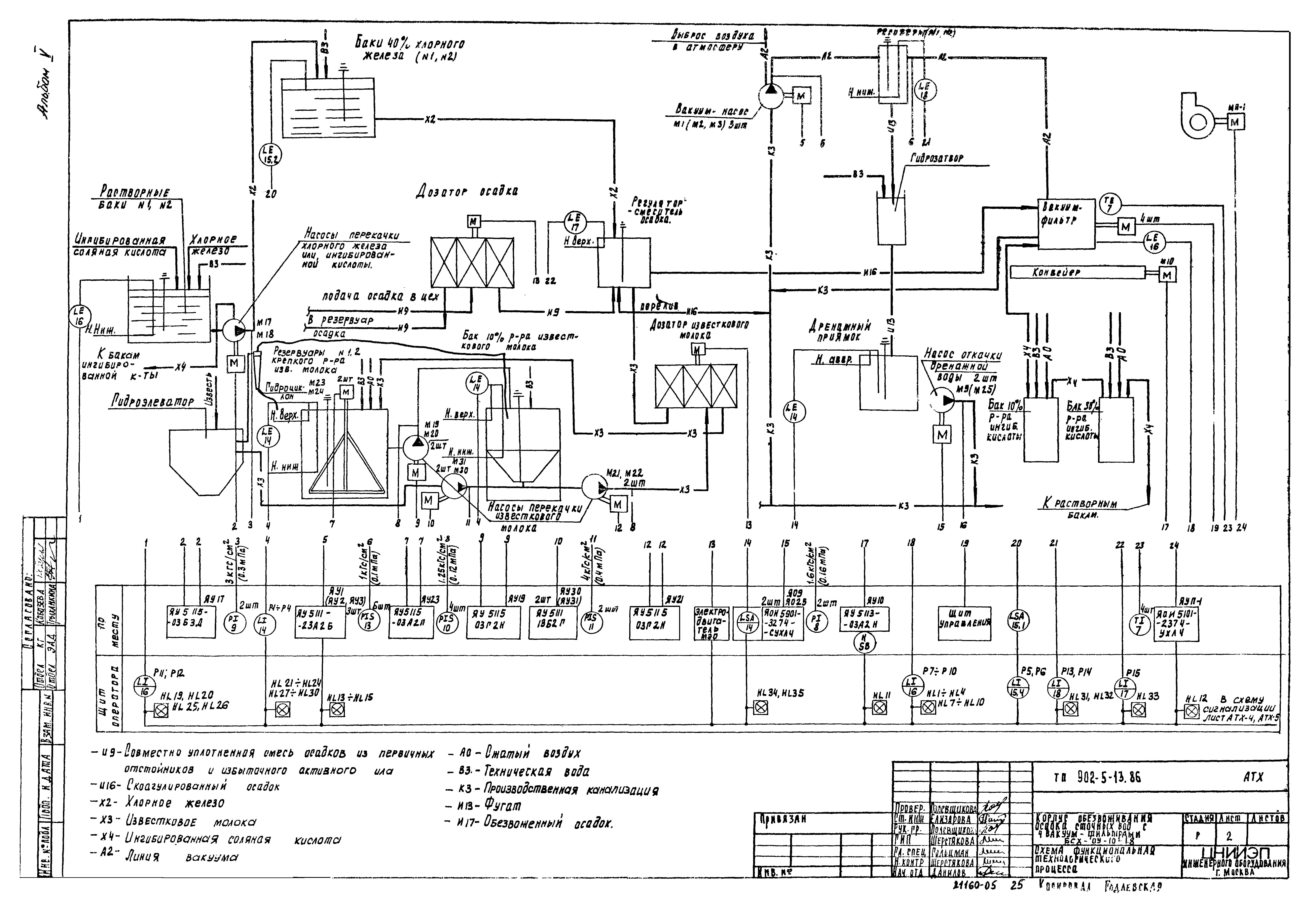
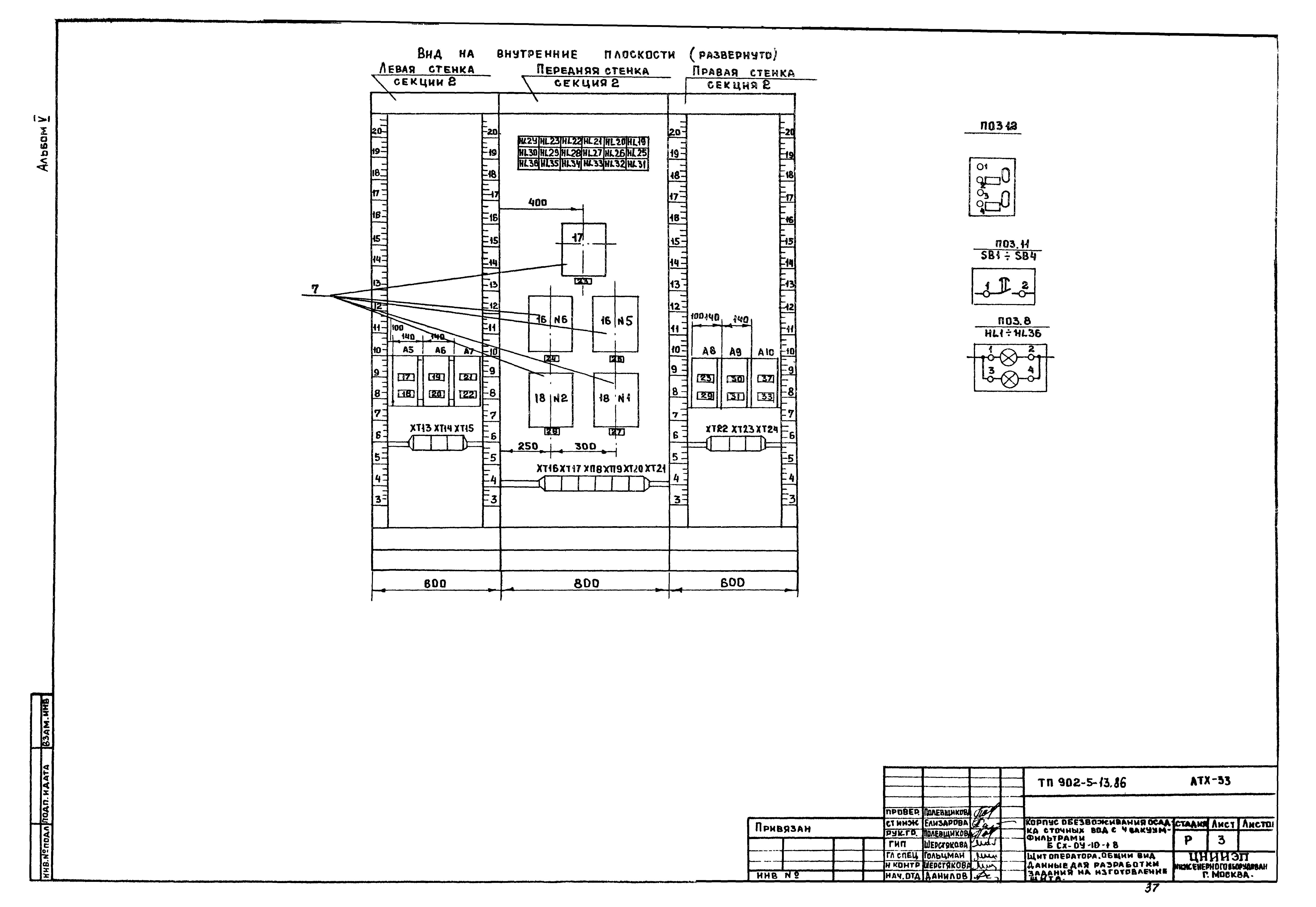
| Оглавление: | ТП 902-5-13.86 ЭМ Электротехническая часть ТП 902-5-13.86 ЭМ-1 Общие данные ТП 902-5-13.86 ЭМ-2 Схема электрическая принципиальная 0.4 кВ ТП 902-5-13.86 ЭМ-3 Схема электрическая принципиальная питания электрооборудования. Лист 1 ТП 902-5-13.86 ЭМ-4 Схема электрическая принципиальная питания электрооборудования. Лист 2 ТП 902-5-13.86 ЭМ-5 Схема электрическая принципиальная управления и подключения конвейера ТП 902-5-13.86 ЭМ-6 Схема подключения электрооборудования. Лист 1 ТП 902-5-13.86 ЭМ-7 Схема подключения электрооборудования. Лист 2 ТП 902-5-13.86 ЭМ-8 Схема подключения электрооборудования. Лист 3 ТП 902-5-13.86 ЭМ-9 Кабельный журнал. Лист 1 ТП 902-5-13.86 ЭМ-10 Кабельный журнал. Лист 2 ТП 902-5-13.86 ЭМ-11 Кабельный журнал. Лист 3 ТП 902-5-13.86 ЭМ-12 Кабельный журнал. Лист 4 ТП 902-5-13.86 ЭМ-13 Размещение электрооборудования . Прокладка кабеля. Лист 1 ТП 902-5-13.86 ЭМ-14 Размещение электрооборудования . Прокладка кабеля. Лист 2 ТП 902-5-13.86 ЭМ-15 Шкаф счетчиков. Общий вид. Принципиальная схема соединений ТП 902-5-13.86 ЭМОЛ1 Прилагаемые документы ТП 902-5-13.86 ЭМ001ВО Опросный лист для заказа щита из панелей щита, из панелей ЩО-70 ТП 902-5-13.86 ЭМ001Э4 Шкаф счетчиков ШУ-1. Схема электрическая соединений ТП 902-5-13.86 ЭМ001.ВО Шкаф счетчиков ШУ-1. Технические данные аппаратов ТП 902-5-13.86 ЭМ001ТБ Шкаф счетчиков ШУ-1. Таблица перечня надписей ТП 902-5-13.86 Э0 Электрическое освещение ТП 902-5-13.86 Э0-1 Общие данные ТП 902-5-13.86 Э0-2 Электрическое освещение. План на отм. 0.000 ТП 902-5-13.86 Э0-3 Электрическое освещение. План на отм. 3.600 ТП 902-5-13.86 АТХ Автоматизация технологического процесса ТП 902-5-13.86 АТХ-1 ТП 902-5-13.86 АТХ-1 Общие данные. Схема функциональная приточной системы П-1 ТП 902-5-13.86 АТХ-2 Схема функциональная технологического процесса ТП 902-5-13.86 АТХ-3 Схема электрическая принципиальная питания ТП 902-5-13.86 АТХ-4 Схема электрическая принципиальная сигнализации. Начало ТП 902-5-13.86 АТХ-5 Схема электрическая принципиальная сигнализации. Окончание ТП 902-5-13.86 АТХ-6 Схема внешних проводок. Начало ТП 902-5-13.86 АТХ-7 Схема внешних проводок. Окончание ТП 902-5-13.86 АТХ-8 Схема внешних проводок приточной системы ТП 902-5-13.86 АТХ-9 Схема подключения ящика ЯУП-1 ТП 902-5-13.86 АТХ-10 Размещение приборов к устройству технологического контроля и прокладка кабеля. План на отм. 0.000,-2.700 ТП 902-5-13.86 АТХ-11 Размещение приборов и устройств технологического контроля и прокладка кабеля. Планы на отм. 0.000,3.000,3.600,5.400 ТП 902-5-13.86 АТХ.33 Прилагаемые документы ТП 902-5-13.86 АТХ.33 Щит оператора. Общий вид. Данные для разработки здания на изготовление щита ТП 902-5-13.86 СС Связь и сигнализация ТП 902-5-13.86 СС-1 Общие данные. План на отм. 0.000 и 3.600 с сетями связи. Экспликация помещений. Спецификация |
| Разработан: | ЦНИИЭП |
| Утверждён: | 04.12.1985 Госгражданстрой (Gosgrazhdanstroy 386) |
| Заменяет собой: |







































