Скачать Типовой проект 902-5-13.86 Альбом VI. Нестандартизированное оборудование. Нетиповые технологические конструкции. Эскизные чертежи общих видовДата актуализации: 01.01.2021
|
| Обозначение: | Типовой проект 902-5-13.86 |
| Обозначение англ: | 902-5-13.86 |
| Статус: | не определен законодательством |
| Название рус.: | Альбом VI. Нестандартизированное оборудование. Нетиповые технологические конструкции. Эскизные чертежи общих видов |
| Дата добавления в базу: | 01.09.2013 |
| Дата актуализации: | 01.01.2021 |
| Дата введения: | 26.02.1986 |
| Дата окончания срока действия: | 30.06.2003 |
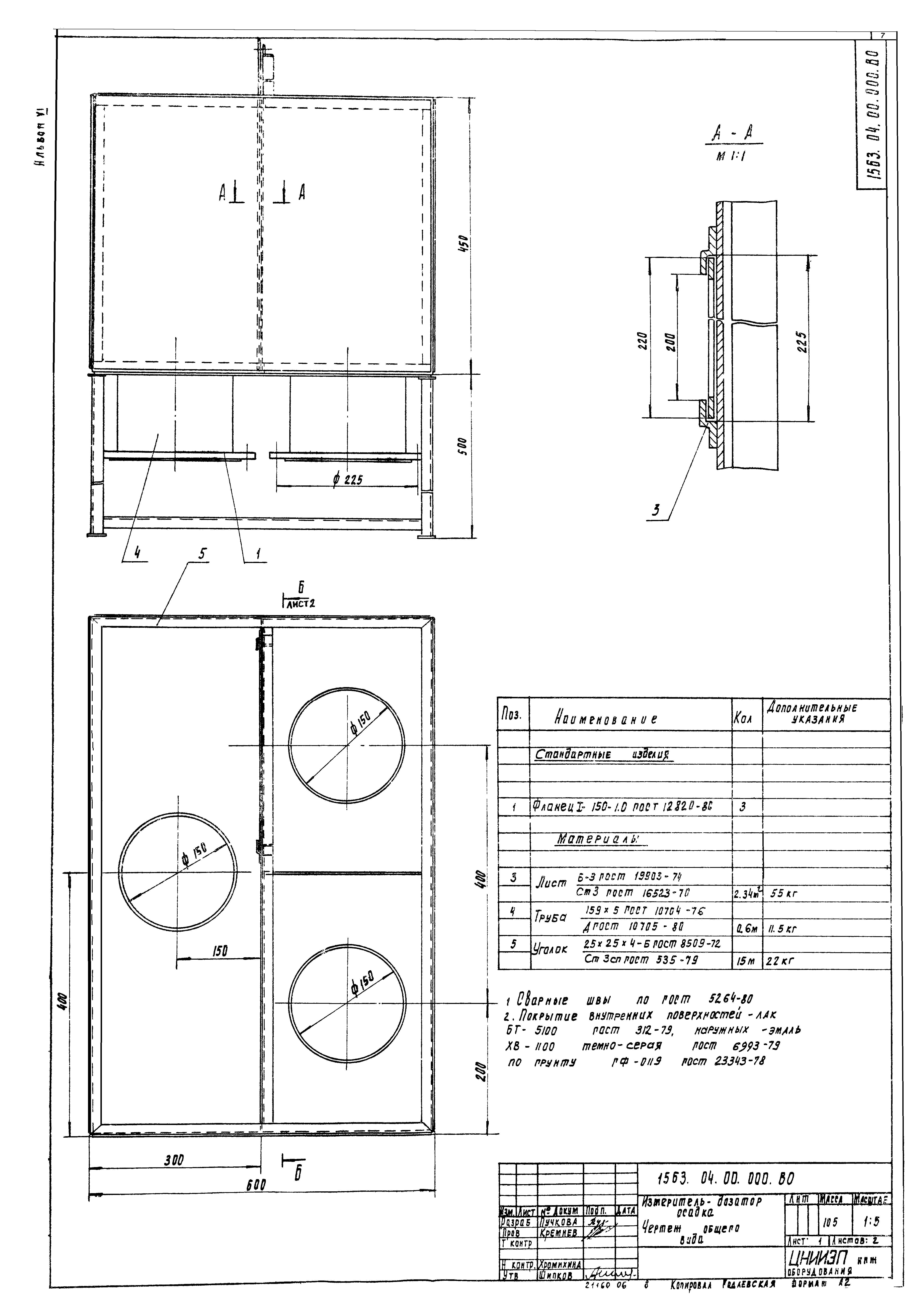
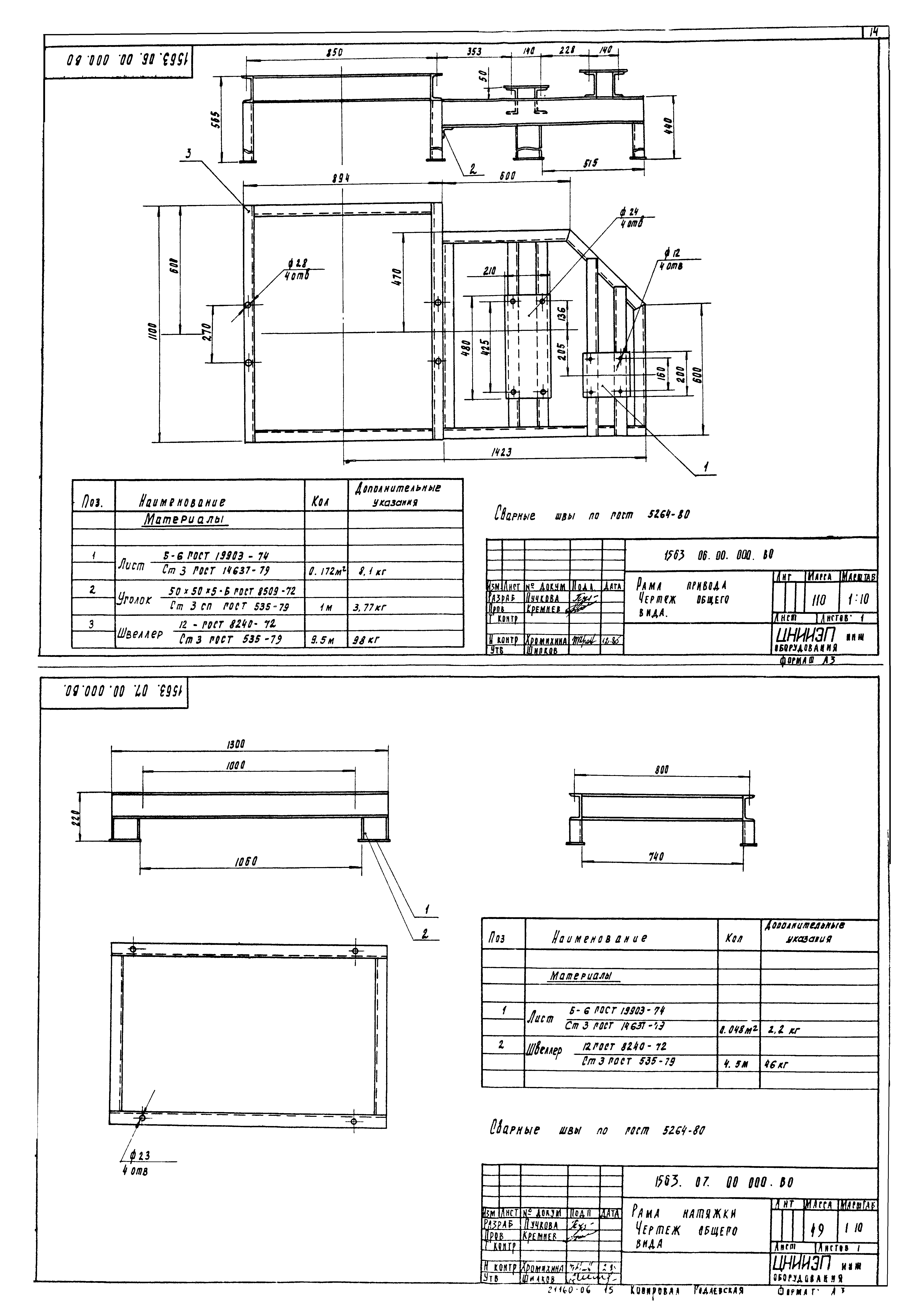
| Оглавление: | ТП 902-5-13.86 Обложка ТП 902-5-13.86 Титульный лист ТП 902-5-13.86 Содержание альбома ТП 902-5-13.86 1563.01.00.000.ВО Регулятор-смеситель осадка с реагентами. Чертеж общего вида. Лист 1 ТП 902-5-13.86 1563.01.00.000.ВО Регулятор-смеситель осадка с реагентами. Чертеж общего вида. Лист 2 ТП 902-5-13.86 1563.02.00.000.ВО Мешалка гидравлическая. Чертеж общего вида ТП 902-5-13.86 1563.03.00.000.ВО Захват. Чертеж общего вида ТП 902-5-13.86 1563.04.00.000.ВО Измеритель-дозатор осадка. Чертеж общего вида. Лист 1 ТП 902-5-13.86 1563.04.00.000.ВО Измеритель-дозатор осадка. Чертеж общего вида. Лист 2 ТП 902-5-13.86 1563.05.00.000.ВО Перемешиватель. Чертеж общего вида ТП 902-5-13.86 1563.05.01.000.ВО Привод. Чертеж общего вида. Лист 1 ТП 902-5-13.86 1563.05.01.000.ВО Привод. Чертеж общего вида. Лист 2 ТП 902-5-13.86 1563.05.01.100.ВО Рама. Чертеж общего вида ТП 902-5-13.86 1563.05.08.000.ВО Мешалка. Чертеж общего вида ТП 902-5-13.86 1563.06.00.000.ВО Рама привода. Чертеж общего вида ТП 902-5-13.86 1563.07.00.000.ВО Рама натяжки. Чертеж общего вида ТП 902-5-13.86 1563.08.00.000.ВО Течка. Чертеж общего вида ТП 902-5-13.86 1563.05.03.000.ВО Подпятник. Чертеж общего вида ТП 902-5-13.86 1563.09.00.000.ВО Гидрозатвор. Чертеж общего вида |
| Разработан: | ЦНИИЭП |
| Утверждён: | 04.12.1985 Госгражданстрой (Gosgrazhdanstroy 386) |
| Заменяет собой: |

















