Скачать Типовой проект 901-5-53с.93 Альбом II. Часть 5. Конструкции металлические деталировочные. Башня ВБР-50У-18-2СДата актуализации: 01.01.2021
|
| Обозначение: | Типовой проект 901-5-53с.93 |
| Обозначение англ: | 901-5-53с.93 |
| Статус: | не определен законодательством |
| Название рус.: | Альбом II. Часть 5. Конструкции металлические деталировочные. Башня ВБР-50У-18-2С |
| Дата добавления в базу: | 01.09.2013 |
| Дата актуализации: | 01.01.2021 |
| Дата введения: | 16.04.1993 |
| Дата окончания срока действия: | 30.06.2003 |
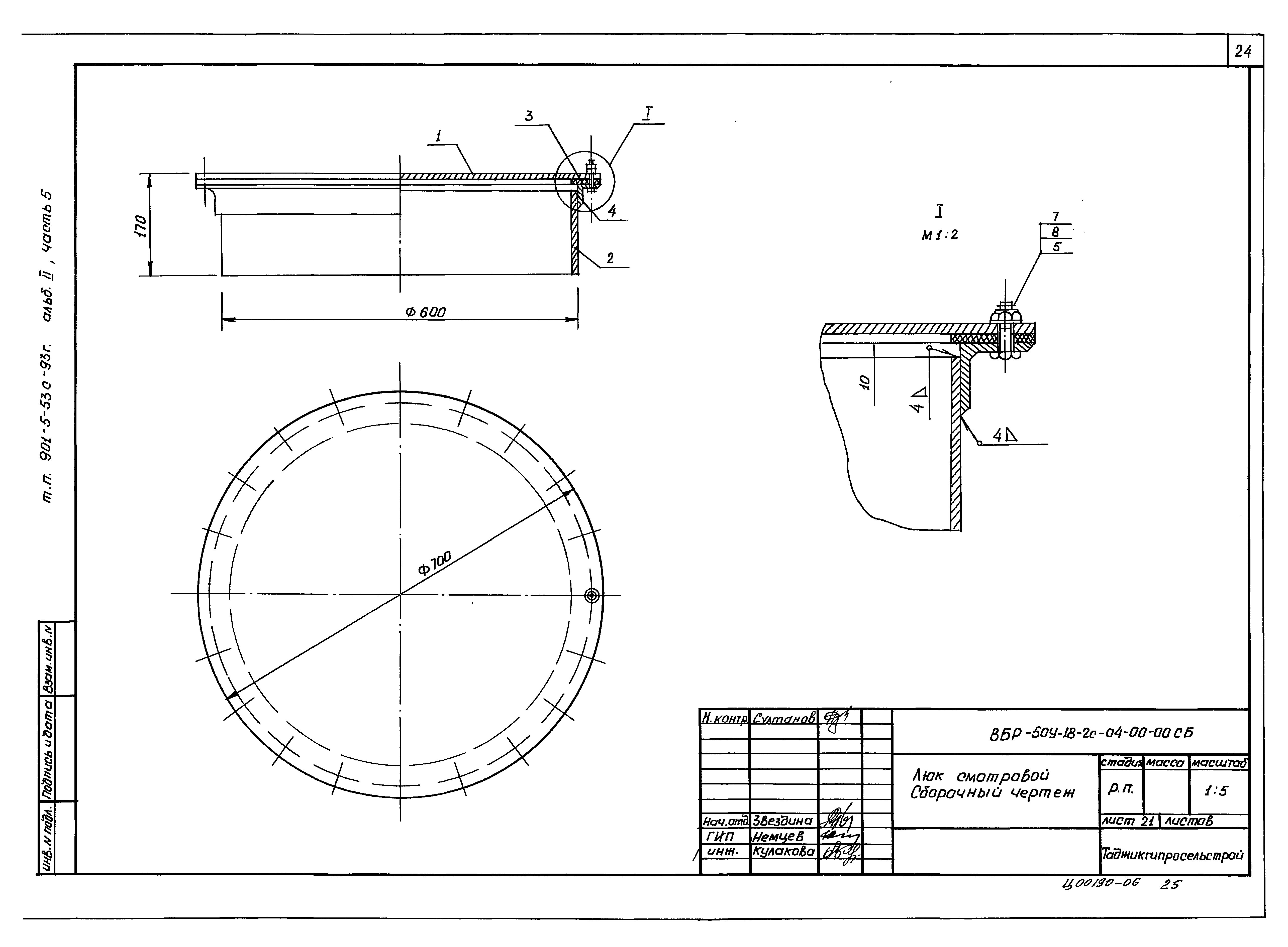
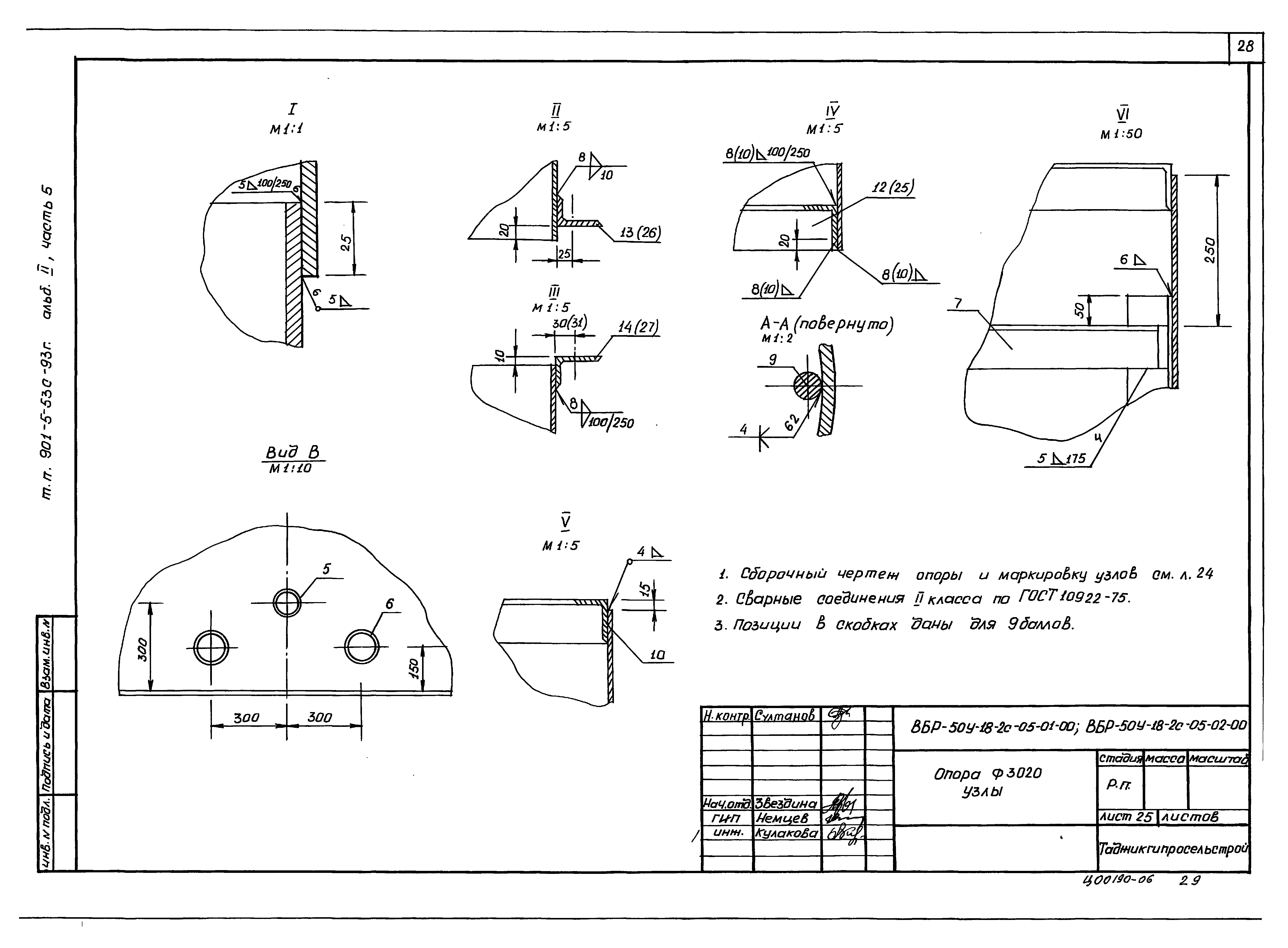
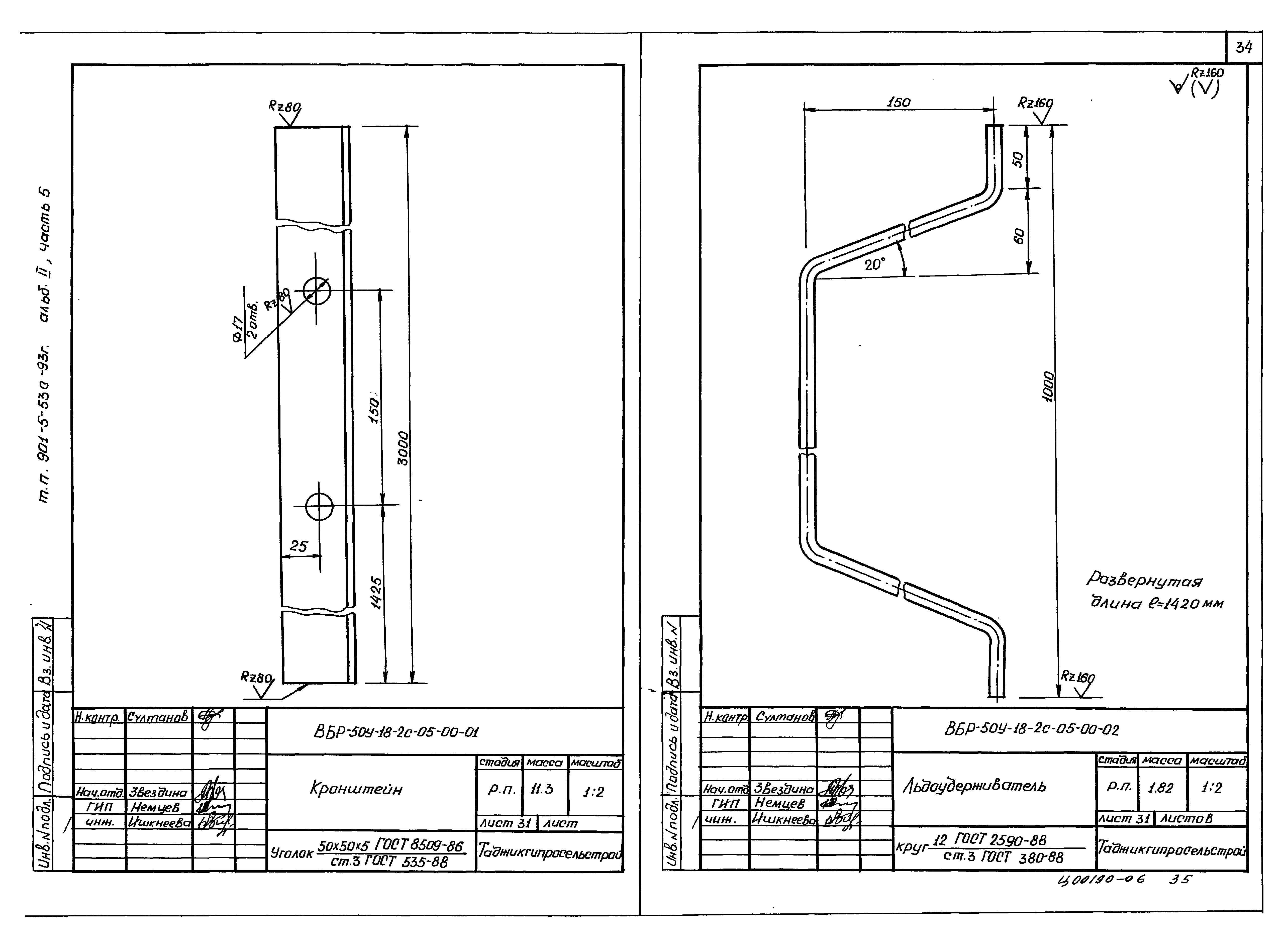
| Оглавление: | ТП 901-5-53с.93 ВБР-50У-18-1с-00-00-00 Пояснительная записка ТП 901-5-53с.93 ВБР-50У-18-1с-00-00-00 Башня водонапорная Д=3020мм. Спецификация ТП 901-5-53с.93 ВБР-50У-18-1с-01-00-00 СБ Крыша. Спецификация. ТП 901-5-53с.93 ВБР-50У-18-1с-01-01-00 СБ Труба вентиляционная. Спецификация ТП 901-5-53с.93 ВБР-50У-18-1с-01-02-00 СБ Крышка люка. Спецификация ТП 901-5-53с.93 ВБР-50У-18-1с-05-04-00 СБ Скоба транспортировочная. Спецификация. ТП 901-5-53с.93 ВБР-50У-18-1с-02-00-00 СБ Лестница 1. Спецификация. ТП 901-5-53с.93 ВБР-50У-18-1с-03-00-00 СБ Лестница 2. Спецификация ТП 901-5-53с.93 ВБР-50У-18-1с-04-00-00 СБ Люк смотровой. Спецификация. ТП 901-5-53с.93 ВБР-50У-18-1с-05-03-00 СБ Гидрозатвор. Спецификация ТП 901-5-53с.93 ВБР-50У-18-1с-05-00-00 Опора бака Ду3020. Спецификация ТП 901-5-53с.93 ВБР-50У-18-1с-05-05-00 СБ Труба Ду-80. Спецификация. ТП 901-5-53с.93 ВБР-50У-18-1с-05-06-00 СБ Труба Ду-100. Спецификация. ТП 901-5-53с.93 ВБР-50У-18-2с-06-00-00 Площадка для отдыха ТП 901-5-53с.93 ВБР-50У-18-2с-06-01-00 Ограждение площадки левая сторона. Спецификация ТП 901-5-53с.93 ВБР-50У-18-2с-06-02-00 Ограждение площадки правая сторона. Спецификация ТП 901-5-53с.93 ВБР-50У-18-2с-09-00-00 СБ Ограждение крыши. Спецификация ТП 901-5-53с.93 ВБР-50У-18-1с-10-00-00 СБ Труба переливная с кольцом. Спецификация ТП 901-5-53с.93 ВБР-50У-18-1с-00-00-00 Общий вид. Ведомость расхода стали ТП 901-5-53с.93 ВБР-50У-18-1с-01-00-00 СБ Крыша. Сборочный чертеж ТП 901-5-53с.93 ВБР-50У-18-1с-01-01-00 СБ Труба вентиляционная. Сборочный чертеж ТП 901-5-53с.93 ВБР-50У-18-1с-01-01-01 Конус вентиляционной трубы ТП 901-5-53с.93 ВБР-50У-18-1с-01-01-02 Планка ТП 901-5-53с.93 ВБР-50У-18-1с-01-01-03 Труба ТП 901-5-53с.93 ВБР-50У-18-2с-01-01-04 Хомутик ТП 901-5-53с.93 ВБР-50У-18-1с-01-02-00 СБ Крышка люка. Сборочный чертеж ТП 901-5-53с.93 ВБР-50У-18-1с-01-02-01 Крышка ТП 901-5-53с.93 ВБР-50У-18-1с-01-02-02 Ручка ТП 901-5-53с.93 ВБР-50У-18-1с-01-00-01 Кольцо люка ТП 901-5-53с.93 ВБР-50У-18-1с-01-00-02 Прокладка ТП 901-5-53с.93 ВБР-50У-18-1с-01-00-03 Сектор крыши ТП 901-5-53с.93 ВБР-50У-18-2с-02-00-01 Дуга ТП 901-5-53с.93 ВБР-50У-18-2с-02-00-00 СБ, ВБР-50У-18-2с-03-00-00 СБ Лестница 1,2. Сборочный чертеж ТП 901-5-53с.93 ВБР-50У-18-1с-04-00-00 СБ Люк смотровой. Сборочный чертеж ТП 901-5-53с.93 ВБР-50У-18-1с-04-00-01 Крышка люка ТП 901-5-53с.93 ВБР-50У-18-1с-04-00-02 Обечайка ТП 901-5-53с.93 ВБР-50У-18-2с-05-05-00 СБ Труба Ду80. Сборочный чертеж ТП 901-5-53с.93 ВБР-50У-18-1с-04-00-03 Фланец ТП 901-5-53с.93 ВБР-50У-18-2с-05-01-00; ВБР-50У-18-2с-05-02-00 Опора Ф3020. Сборочный чертеж ТП 901-5-53с.93 ВБР-50У-18-2с-05-01-00; ВБР-50У-18-2с-05-02-00 Опора Ф3020. Узлы ТП 901-5-53с.93 ВБР-50У-18-2с-05-03-00 СБ Гидрозатвор. Сборочный чертеж ТП 901-5-53с.93 ВБР-50У-18-2с-05-03-01 Воротник ТП 901-5-53с.93 ВБР-50У-18-2с-05-03-02 Патрубок ТП 901-5-53с.93 ВБР-50У-18-2с-05-04-00 СБ Скоба транспортировочная. Сборочный чертеж ТП 901-5-53с.93 ВБР-50У-18-2с-05-04-01 Плита ТП 901-5-53с.93 ВБР-50У-18-2с-05-04-02 Скоба ТП 901-5-53с.93 ВБР-50У-18-2с-05-06-00 СБ Труба Ду100. Сборочный чертеж ТП 901-5-53с.93 ВБР-50У-18-2с-05-06-01 Воротник ТП 901-5-53с.93 ВБР-50У-18-2с-05-00-01 Кронштейн ТП 901-5-53с.93 ВБР-50У-18-2с-05-00-02 Льдоудержтватель ТП 901-5-53с.93 ВБР-50У-18-2с-05-00-03 Ступенька ТП 901-5-53с.93 ВБР-50У-18-2с-05-00-05 Скоба к льдоудерживателю ТП 901-5-53с.93 ВБР-50У-18-2с-05-00-04 Кольцо жесткости ТП 901-5-53с.93 ВБР-50У-18-2с-05-00-06 Кольцо жесткости ТП 901-5-53с.93 ВБР-50У-18-2с-05-00-19 Кольцо жесткости ТП 901-5-53с.93 ВБР-50У-18-1с-05-00-07 Фланец ТП 901-5-53с.93 ВБР-50У-18-1с-05-00-08 Фланец ТП 901-5-53с.93 ВБР-50У-18-1с-05-00-20 Фланец ТП 901-5-53с.93 ВБР-50У-18-1с-05-00-09 Обечайка ТП 901-5-53с.93 ВБР-50У-18-1с-05-00-10 Обечайка ТП 901-5-53с.93 ВБР-50У-18-1с-05-00-11 Обечайка ТП 901-5-53с.93 ВБР-50У-18-1с-05-00-12 Обечайка ТП 901-5-53с.93 ВБР-50У-18-1с-05-00-13 Обечайка ТП 901-5-53с.93 ВБР-50У-18-1с-05-00-14 Обечайка ТП 901-5-53с.93 ВБР-50У-18-1с-05-00-15 Обечайка ТП 901-5-53с.93 ВБР-50У-18-1с-05-00-16 Обечайка ТП 901-5-53с.93 ВБР-50У-18-2с-05-00-21 Фланец ТП 901-5-53с.93 ВБР-50У-18-1с-05-00-17 Обечайка ТП 901-5-53с.93 ВБР-50У-18-1с-05-00-18 Обечайка ТП 901-5-53с.93 ВБР-50У-18-1с-05-00-22 Обечайка ТП 901-5-53с.93 ВБР-50У-18-1с-05-00-24 Обечайка ТП 901-5-53с.93 ВБР-50У-18-1с-05-00-23 Обечайка ТП 901-5-53с.93 ВБР-50У-18-1с-05-00-25 Обечайка ТП 901-5-53с.93 ВБР-50У-18-1с-05-00-26 Обечайка ТП 901-5-53с.93 ВБР-50У-18-2с-06-00-00 СБ Площадка для отдыха ТП 901-5-53с.93 ВБР-50У-18-2с-06-01-00 Ограждение площадки. Левая сторона. Сборочный чертеж ТП 901-5-53с.93 ВБР-50У-18-2с-06-02-00 Ограждение площадки. Правая сторона. Сборочный чертеж ТП 901-5-53с.93 ВБР-50У-18-2с-07-00-00 СБ Опора лестницы левая. ТП 901-5-53с.93 ВБР-50У-18-2с-07-00-01 Стойка левая ТП 901-5-53с.93 ВБР-50У-18-2с-08-00-00 СБ Опора лестницы правая ТП 901-5-53с.93 ВБР-50У-18-2с-08-00-01 Стойка правая ТП 901-5-53с.93 ВБР-50У-18-2с-09-00-00 СБ Ограждение крыши. Сборочный чертеж ТП 901-5-53с.93 ВБР-50У-18-2с-09-00-01 Кольцо ТП 901-5-53с.93 ВБР-50У-18-2с-10-00-00 СБ Труба переливная с кольцом. Сборочный чертеж ТП 901-5-53с.93 ВБР-50У-18-2с-10-00-01 Кольцо переливной трубы ТП 901-5-53с.93 ВБР-50У-18-2с-06-00-01 Настил площадки ТП 901-5-53с.93 ВБР-50У-18-2с-00-00-01 Дно ТП 901-5-53с.93 ВБР-50У-18-2с-00-00-02 Дно ТП 901-5-53с.93 ВБР-50У-18-2с-00-00-03 Хомут для переливной трубы ТП 901-5-53с.93 ВБР-50У-18-2с-00-00-04 Кляммер ТП 901-5-53с.93 ВБР-50У-18-2с-00-00-05 Сектор крыши ТП 901-5-53с.93 ВБР-50У-18-2с-00-00-06 Лапка для крепления переливной трубы |
| Разработан: | Таджикгипросельстрой |
| Утверждён: | 16.04.1993 Госстрой Таджикской ССР (7) |
























































