Скачать Типовой проект 704-4-29 Альбом II. Архитектурно-строительные решенияДата актуализации: 01.01.2021
|
| Обозначение: | Типовой проект 704-4-29 |
| Обозначение англ: | 704-4-29 |
| Статус: | не действует |
| Название рус.: | Альбом II. Архитектурно-строительные решения |
| Дата добавления в базу: | 01.09.2013 |
| Дата актуализации: | 01.01.2021 |
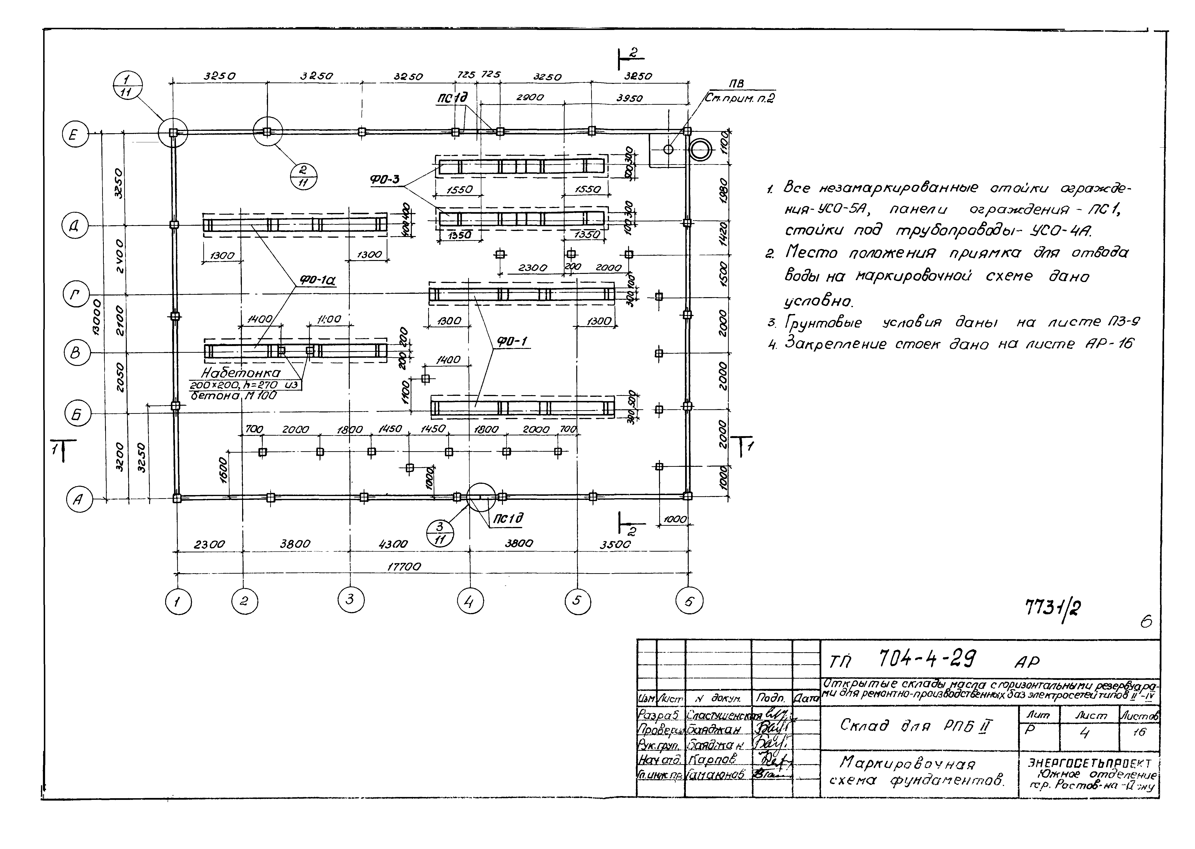
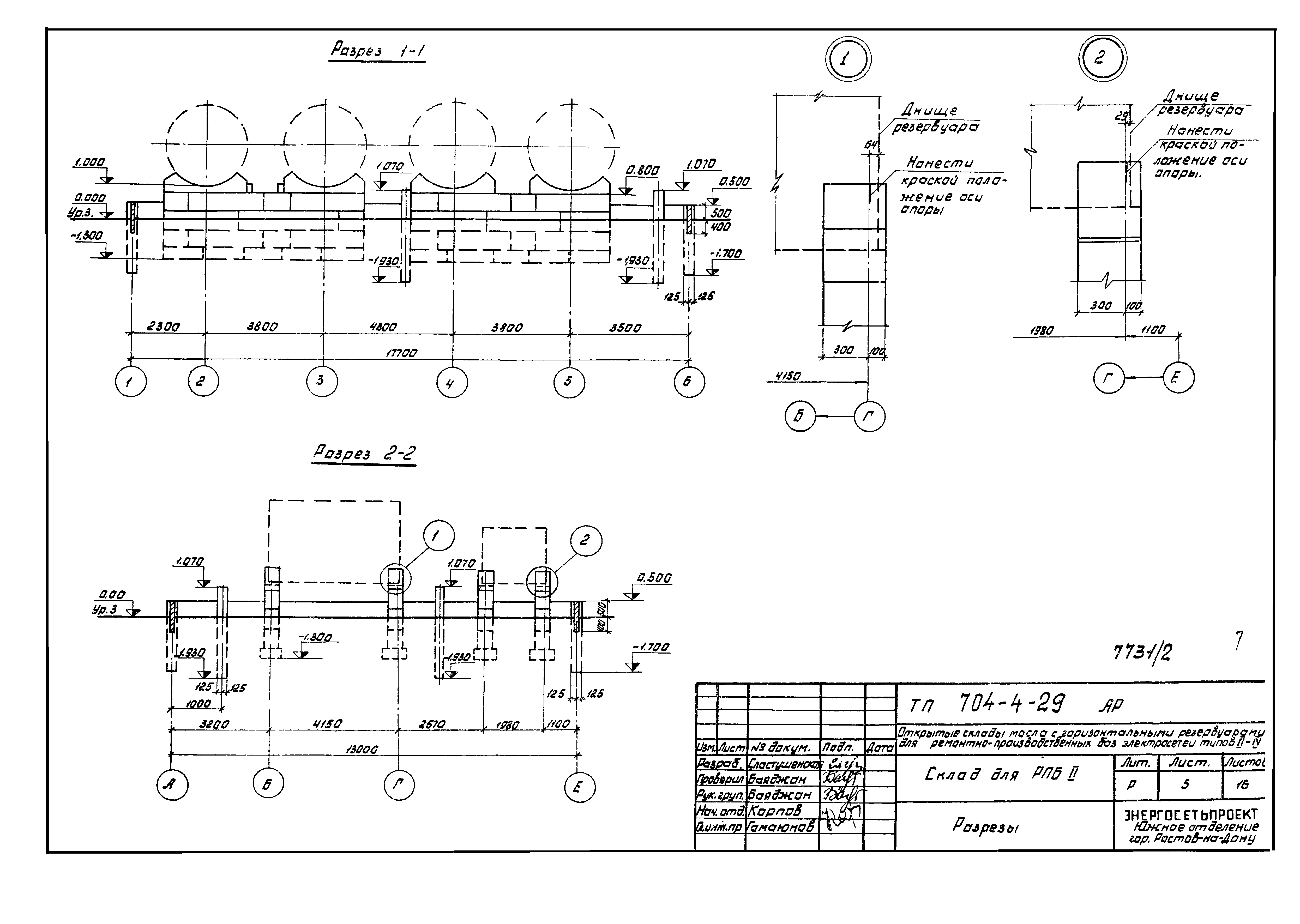
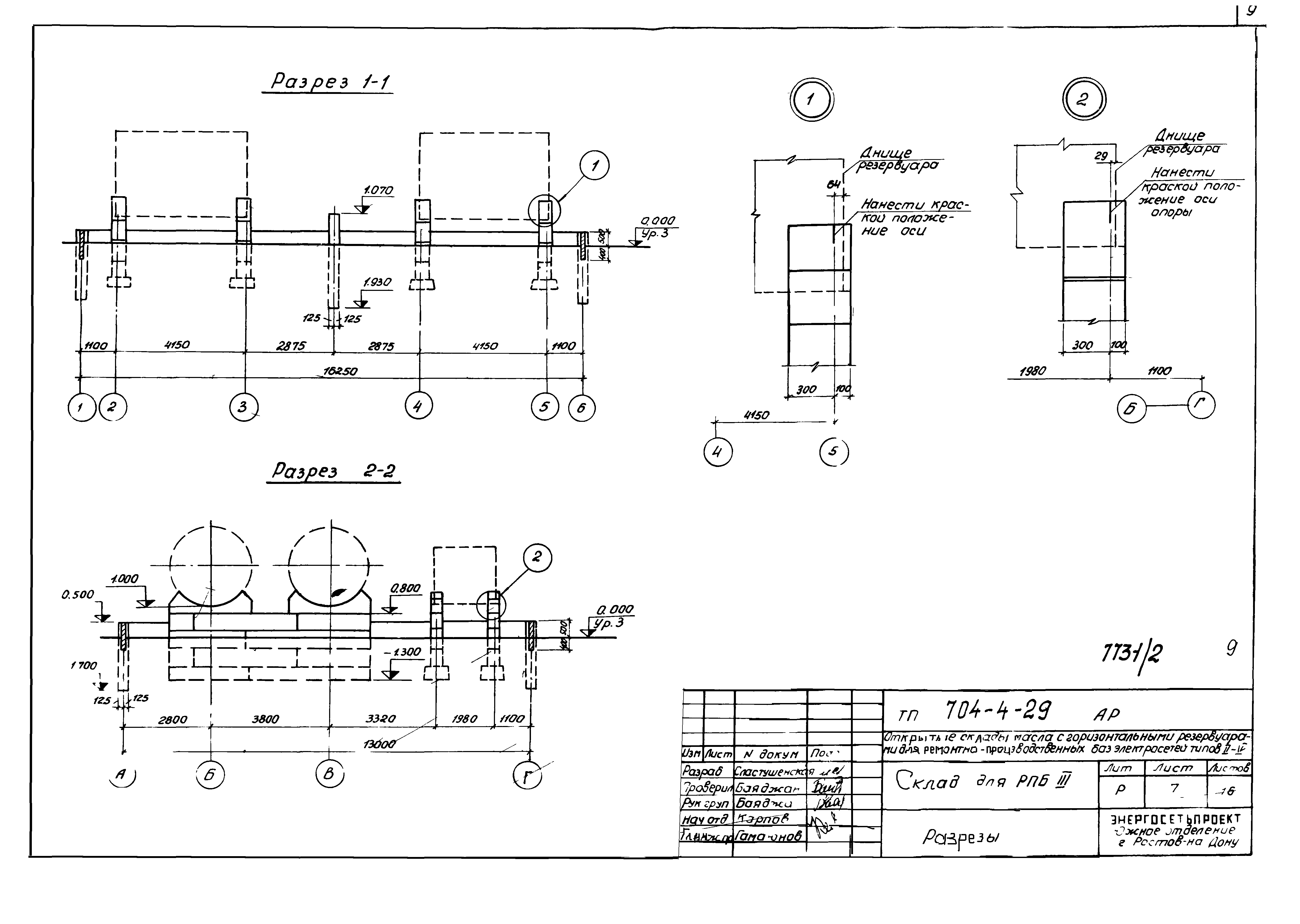
| Оглавление: | ТП 704-4-29 Содержание альбома ТП 704-4-29 АР-1 Общие данные (начало) ТП 704-4-29 АР-2 Общие данные (продолжение) ТП 704-4-29 АР-3 Общие данные (окончание) ТП 704-4-29 АР-4 Склад для РПБ II. Маркировочная схема фундаментов ТП 704-4-29 АР-5 Склад для РПБ II. Разрезы ТП 704-4-29 АР-6 Склад для РПБ III. Маркировочная схема фундаментов ТП 704-4-29 АР-7 Склад для РПБ III. Разрезы ТП 704-4-29 АР-8 Склад для РПБ IV. Маркировочная схема фундаментов. Разрезы (Вывод трубопроводов справа) ТП 704-4-29 АР-9 Склад для РПБ IV. Маркировочная схема фундаментов. Разрезы (Вывод трубопроводов слева) ТП 704-4-29 АР-10 Спецификация элементов к маркировочным схемам расположенным на листах АР-4÷АР-9 ТП 704-4-29 АР-11 Фундаменты Ф-1÷Ф-3 ТП 704-4-29 АР-12 Монолитные участки Ум-1,Ум-2,Ум-3 ТП 704-4-29 АР-13 Ограждение. Узлы 1,2,3 ТП 704-4-29 АР-14 Приямок для приема воды ПВ ТП 704-4-29 АР-15 Марки Р-1÷Р-5, МС-1 ТП 704-4-29 АР-16 Фундаменты под трубопроводы и ограждение складов |
| Разработан: | Южное отделение Энергосетьпроекта |
| Утверждён: | 07.08.1979 Энергосетьпроект (Energosetproject 57) |



















