Скачать Типовые проектные решения 704-04-31 Альбом I. Общая пояснительная записка. ЧертежиДата актуализации: 01.01.2021
|
| Обозначение: | Типовые проектные решения 704-04-31 |
| Обозначение англ: | 704-04-31 |
| Статус: | справочные материалы, мп, тпр |
| Название рус.: | Альбом I. Общая пояснительная записка. Чертежи |
| Дата добавления в базу: | 01.09.2013 |
| Дата актуализации: | 01.01.2021 |
| Дата окончания срока действия: | 31.12.1980 |
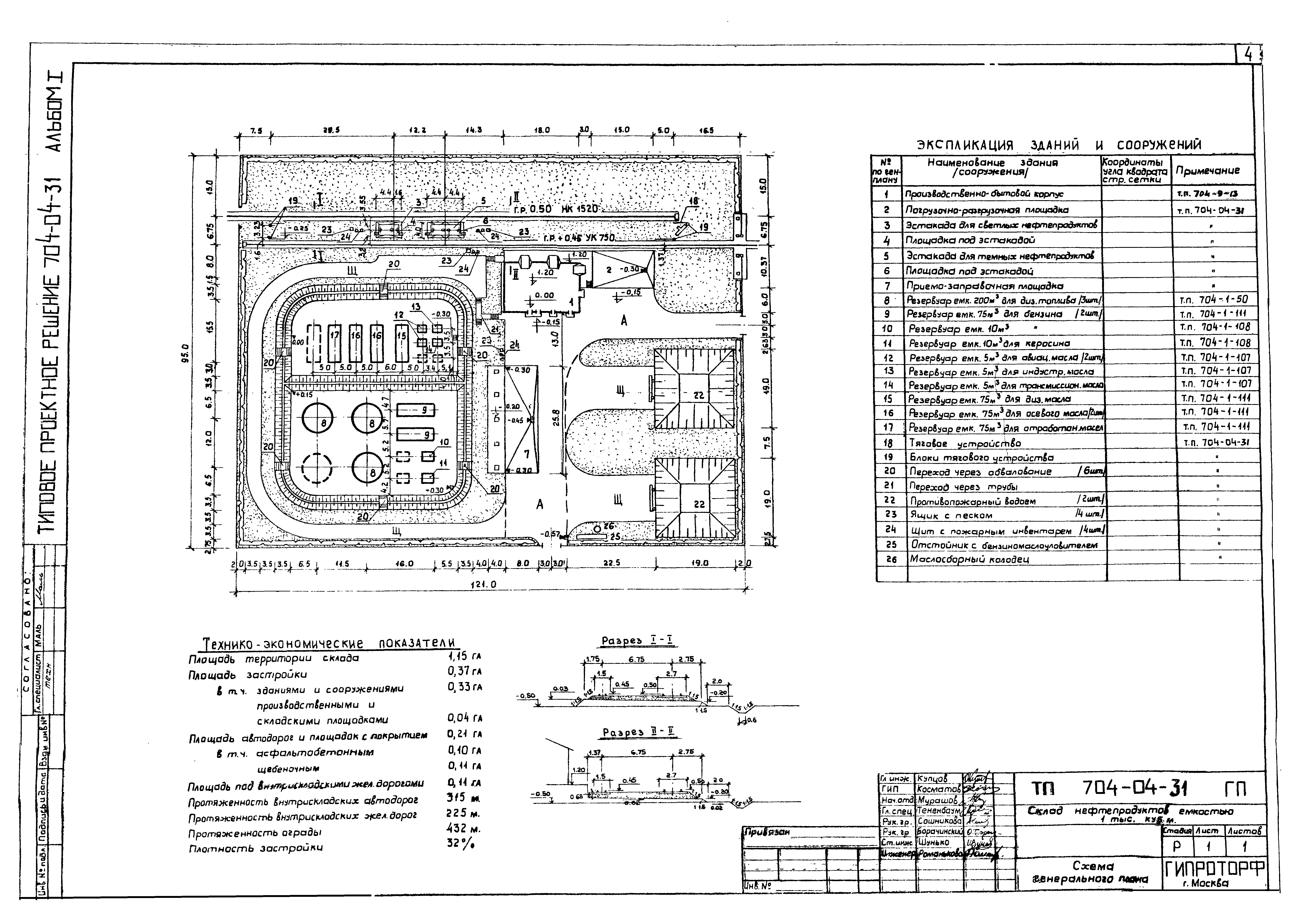
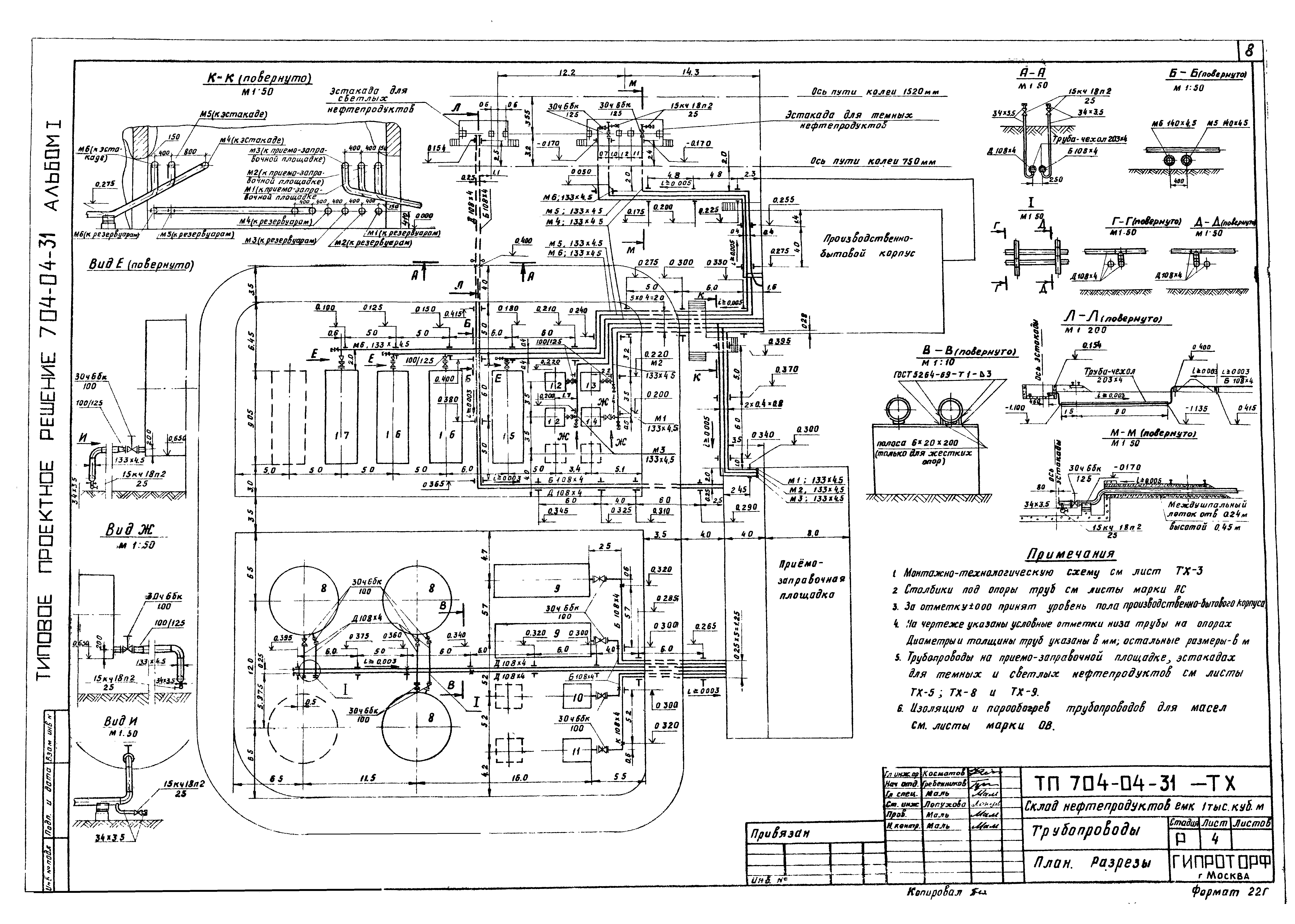
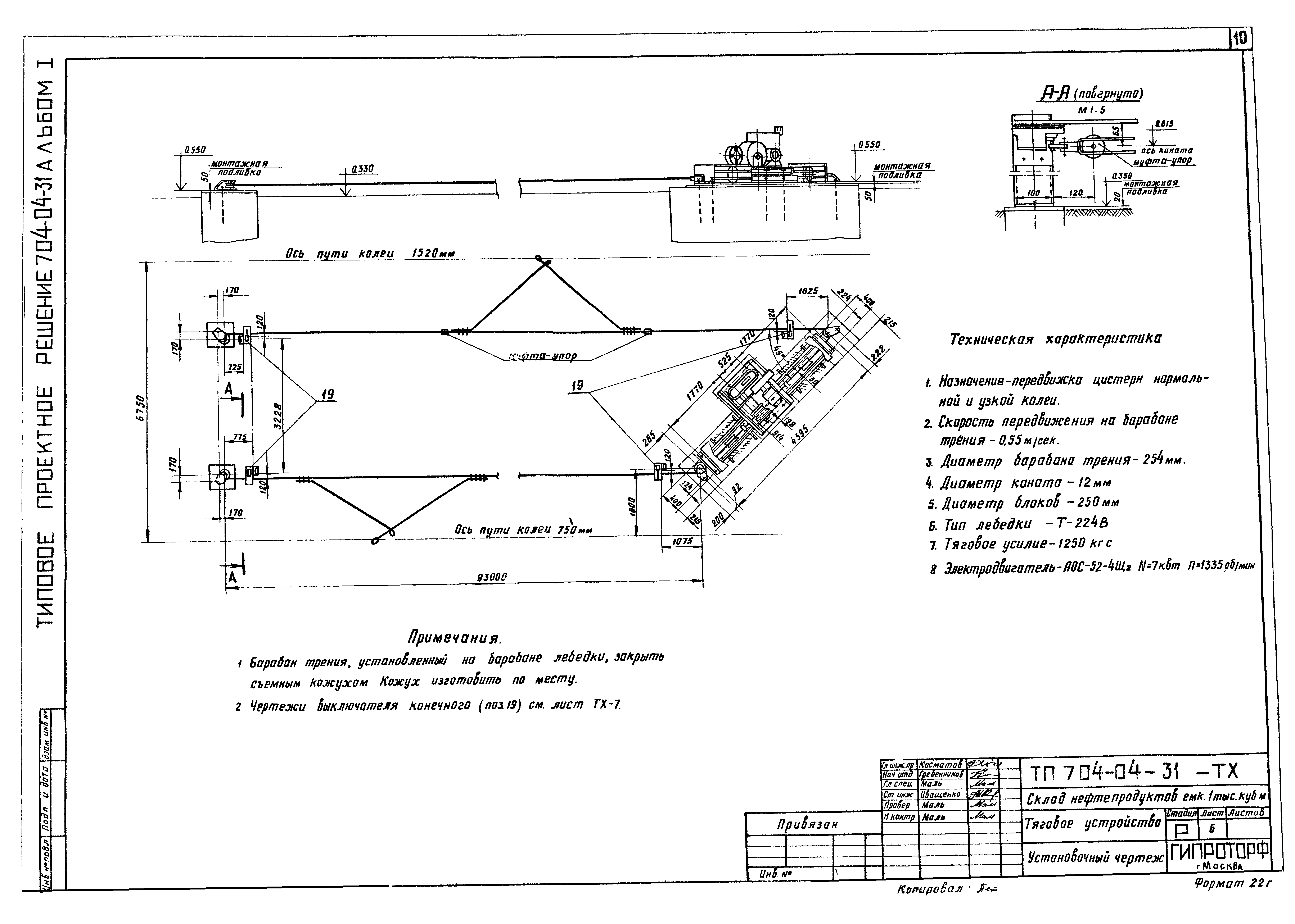
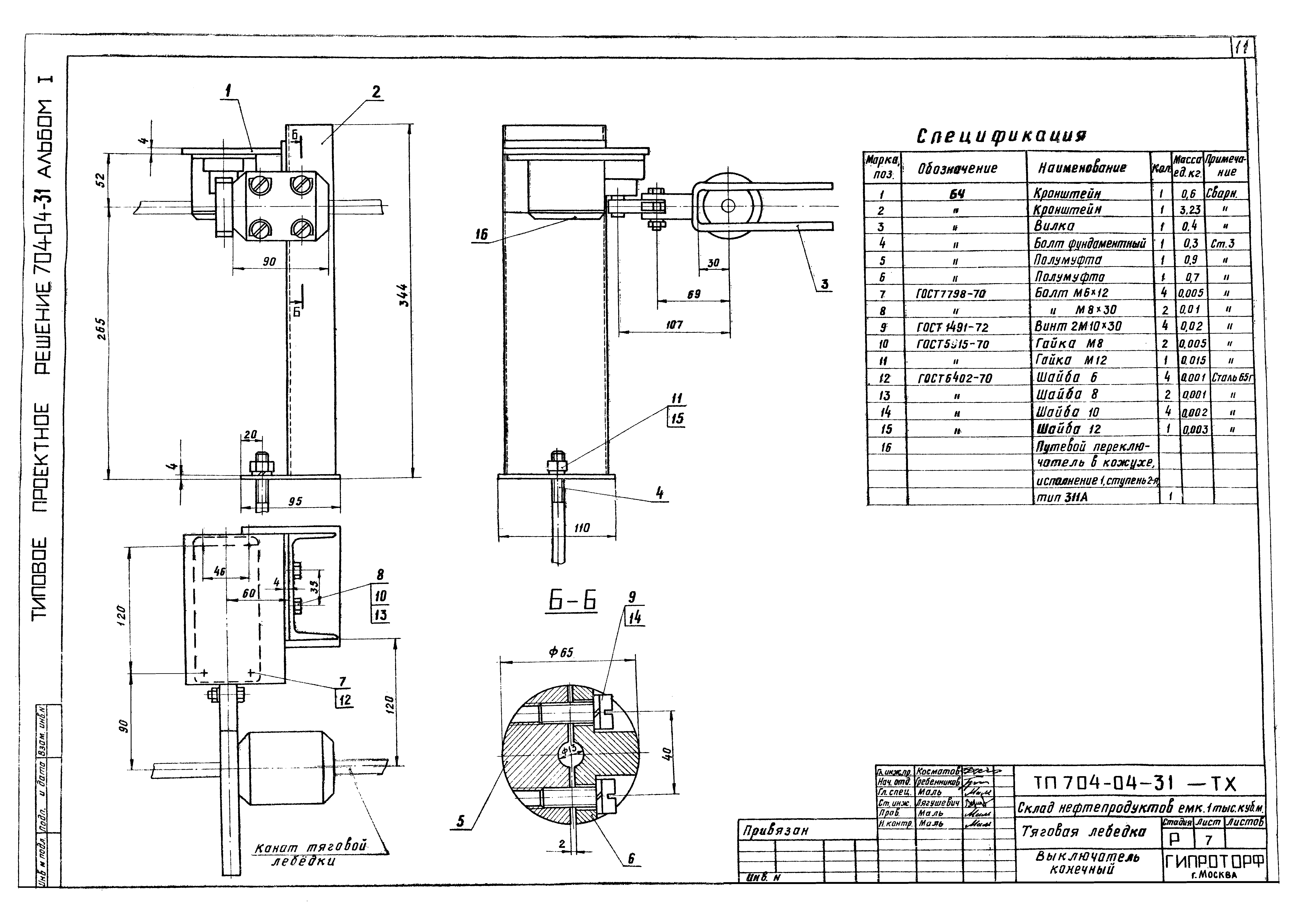
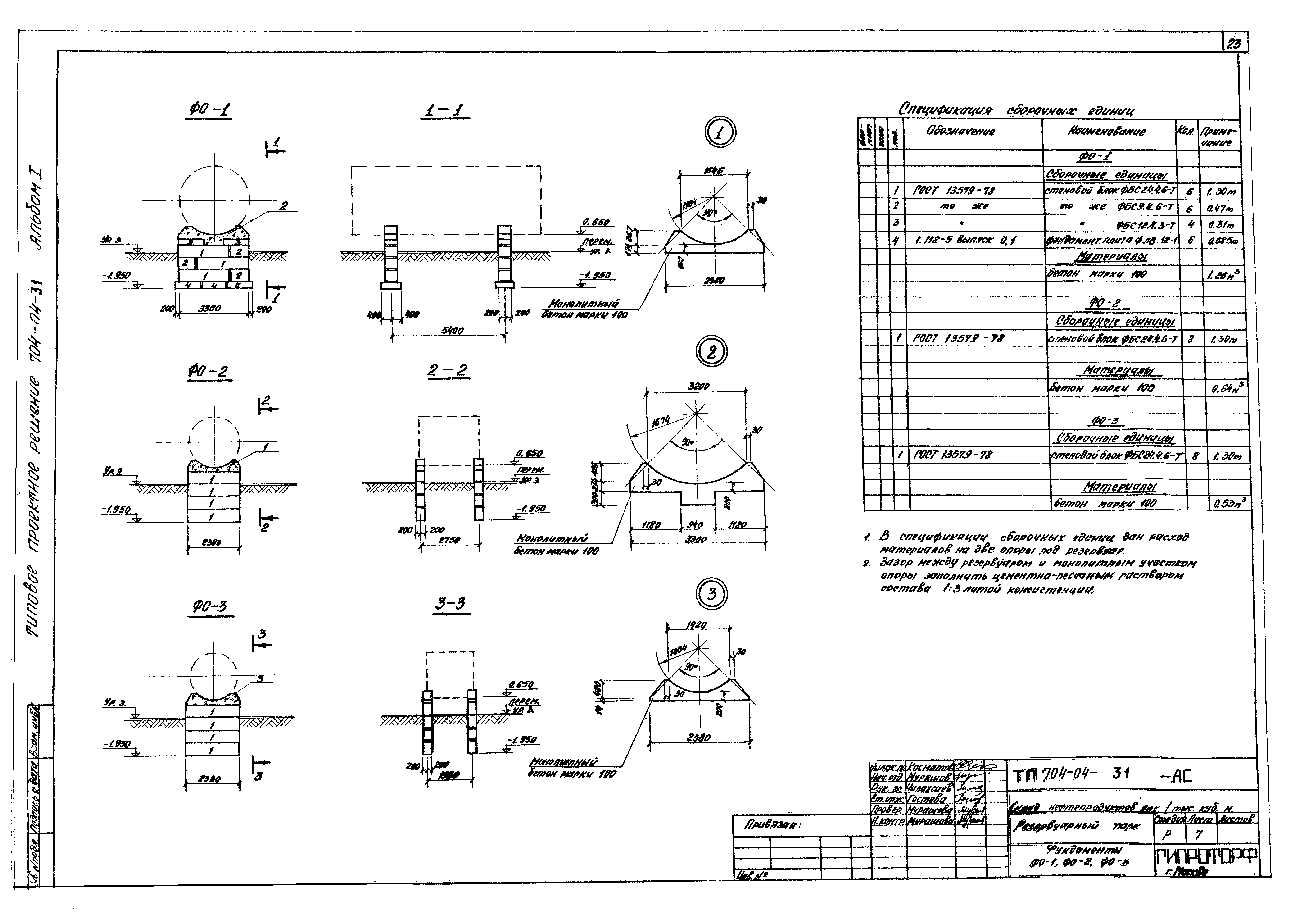
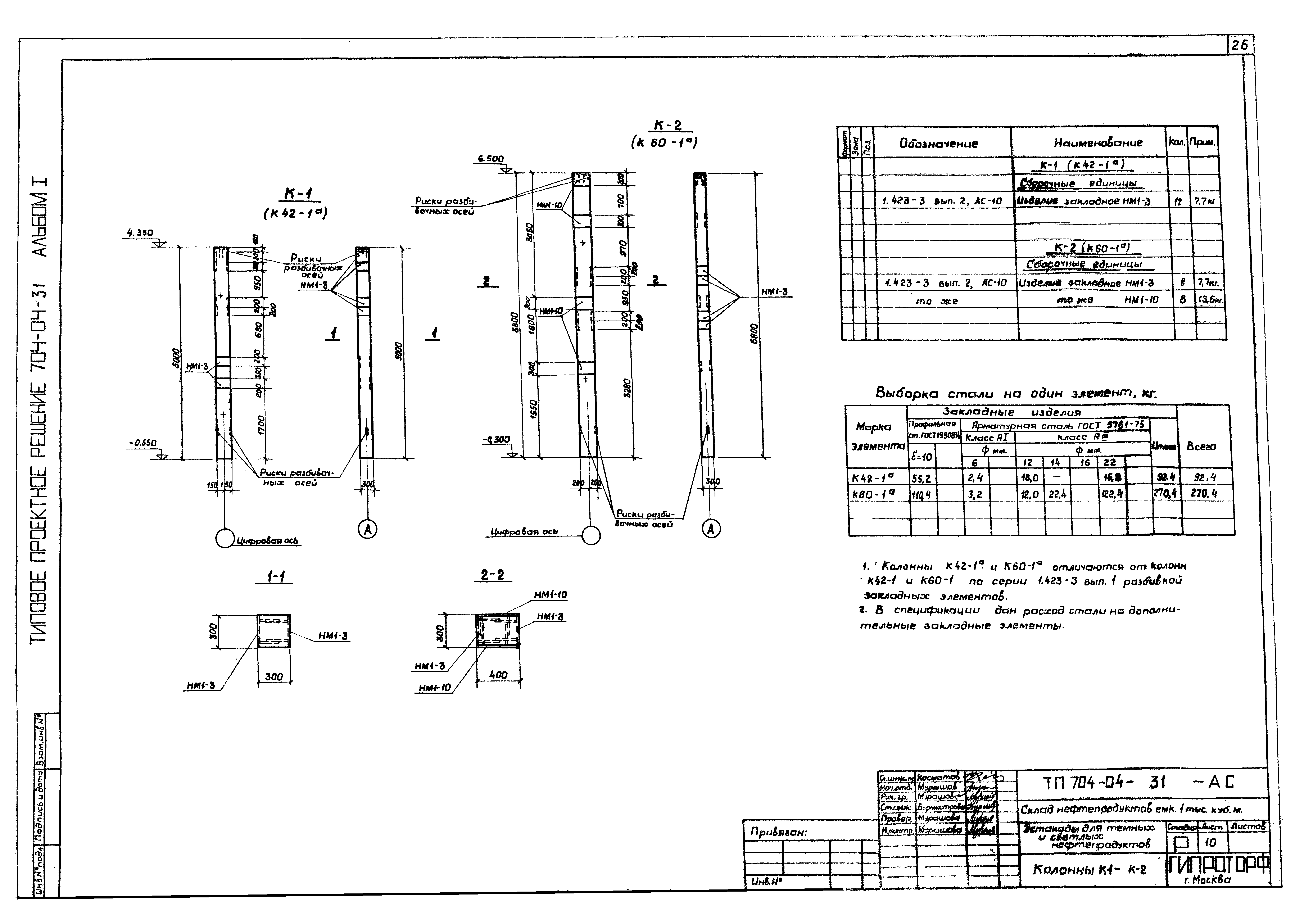
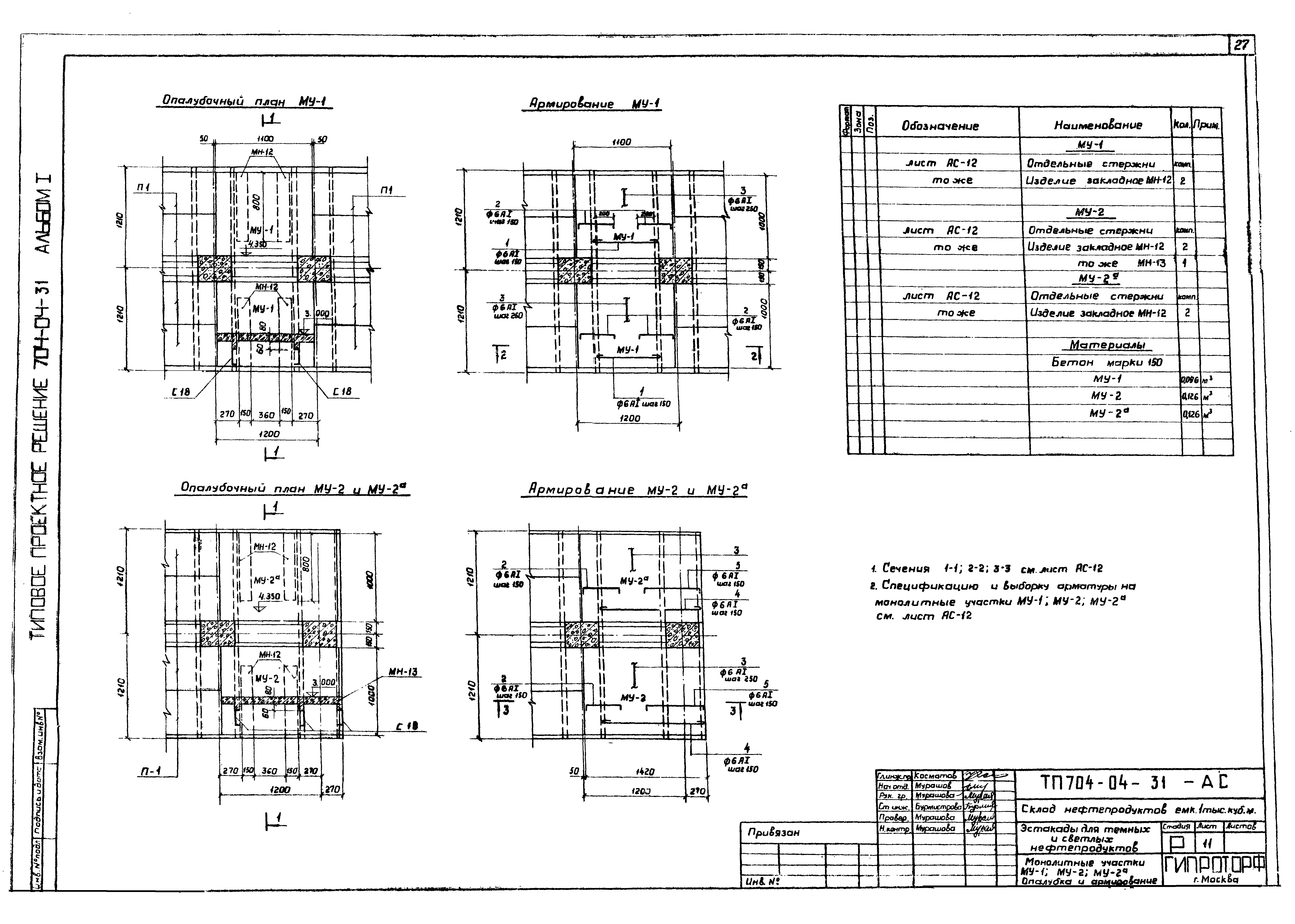
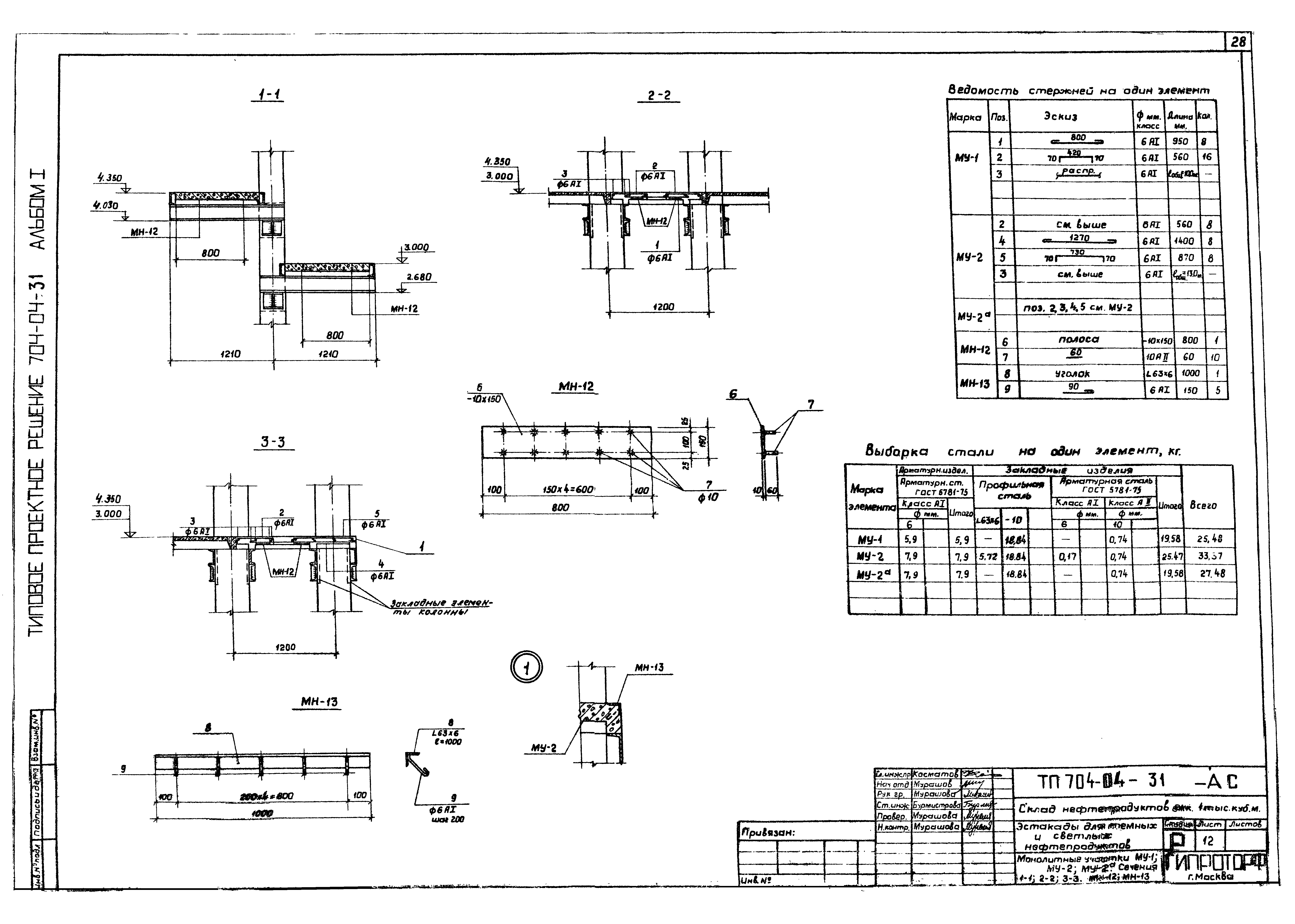
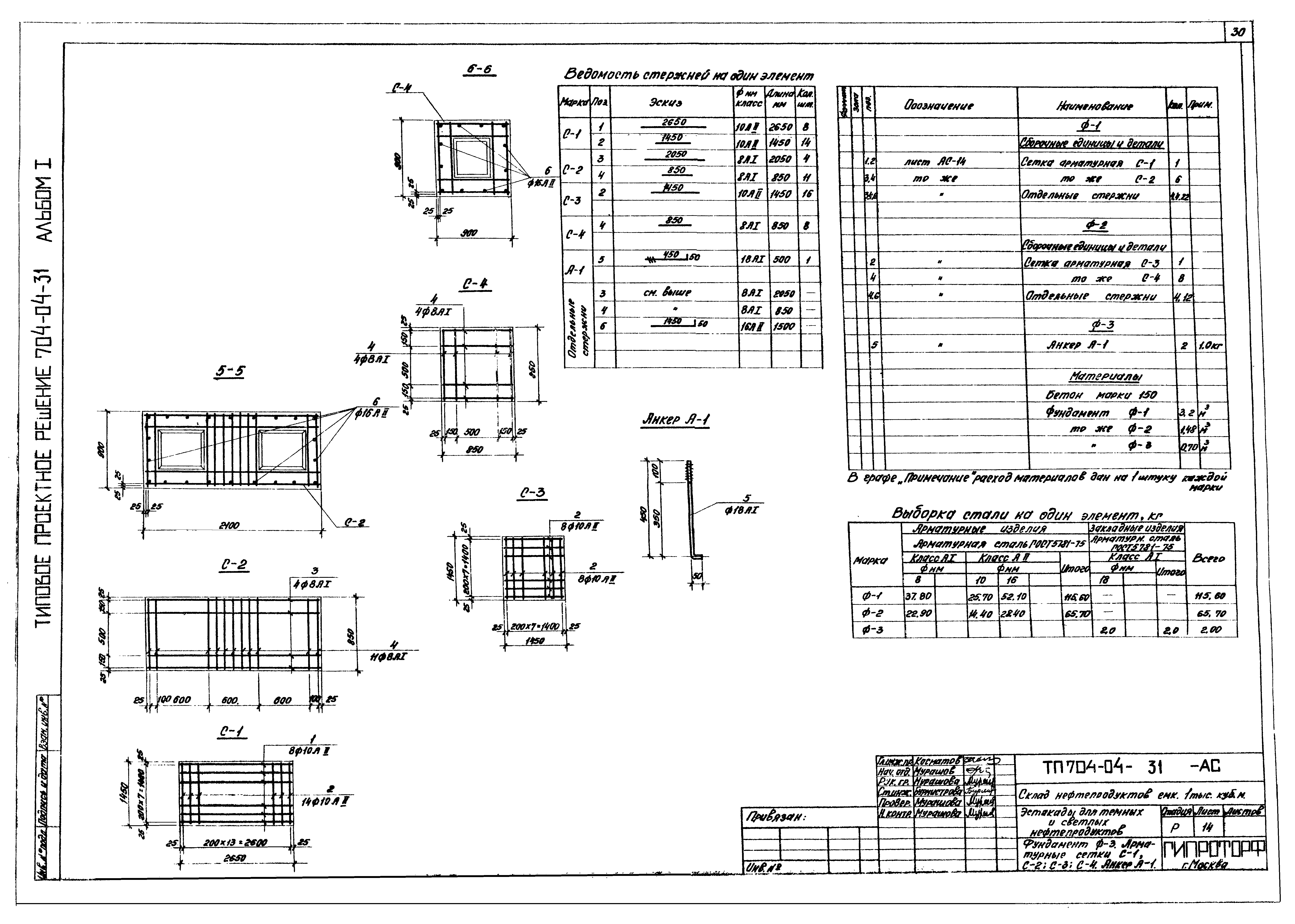
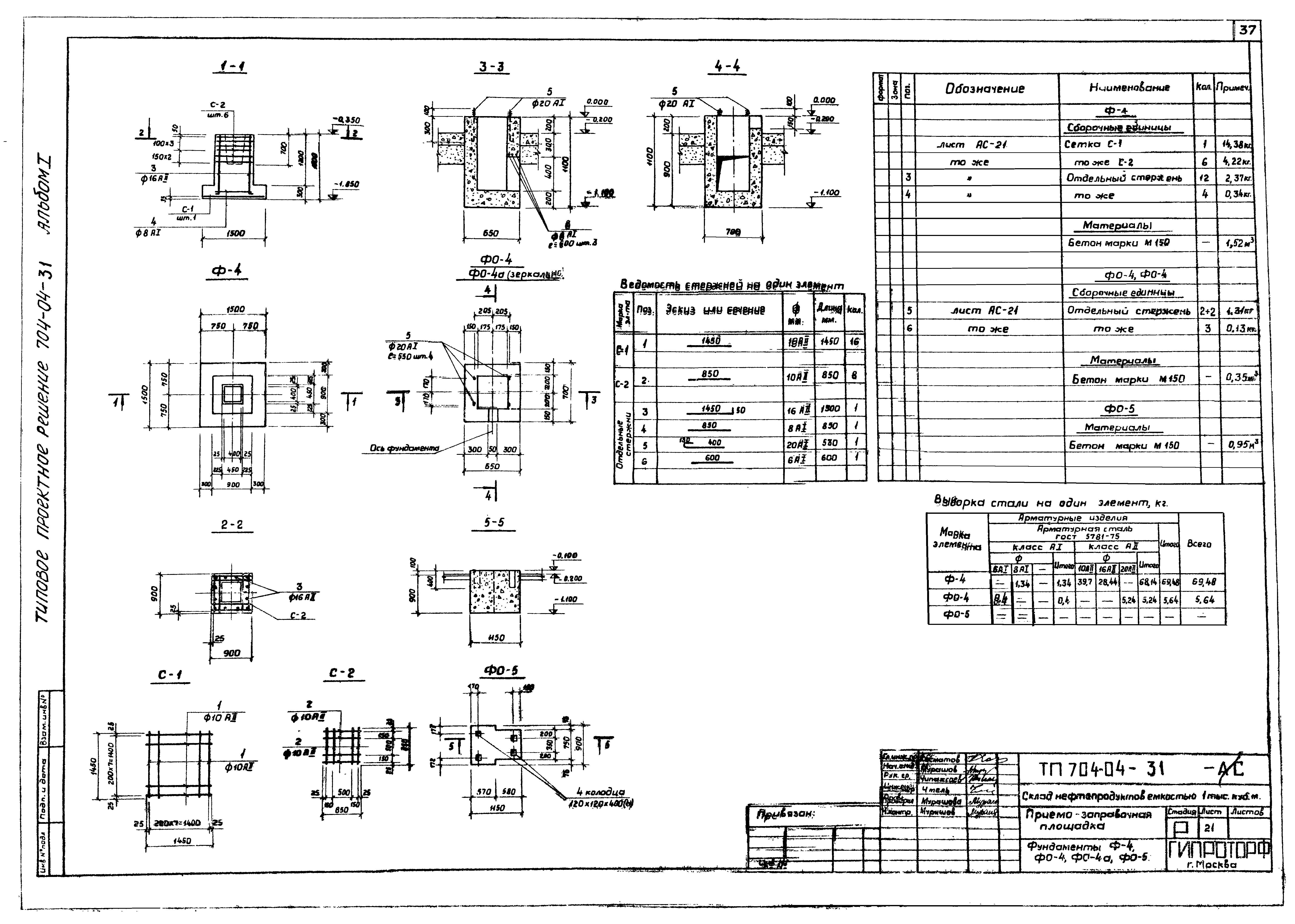
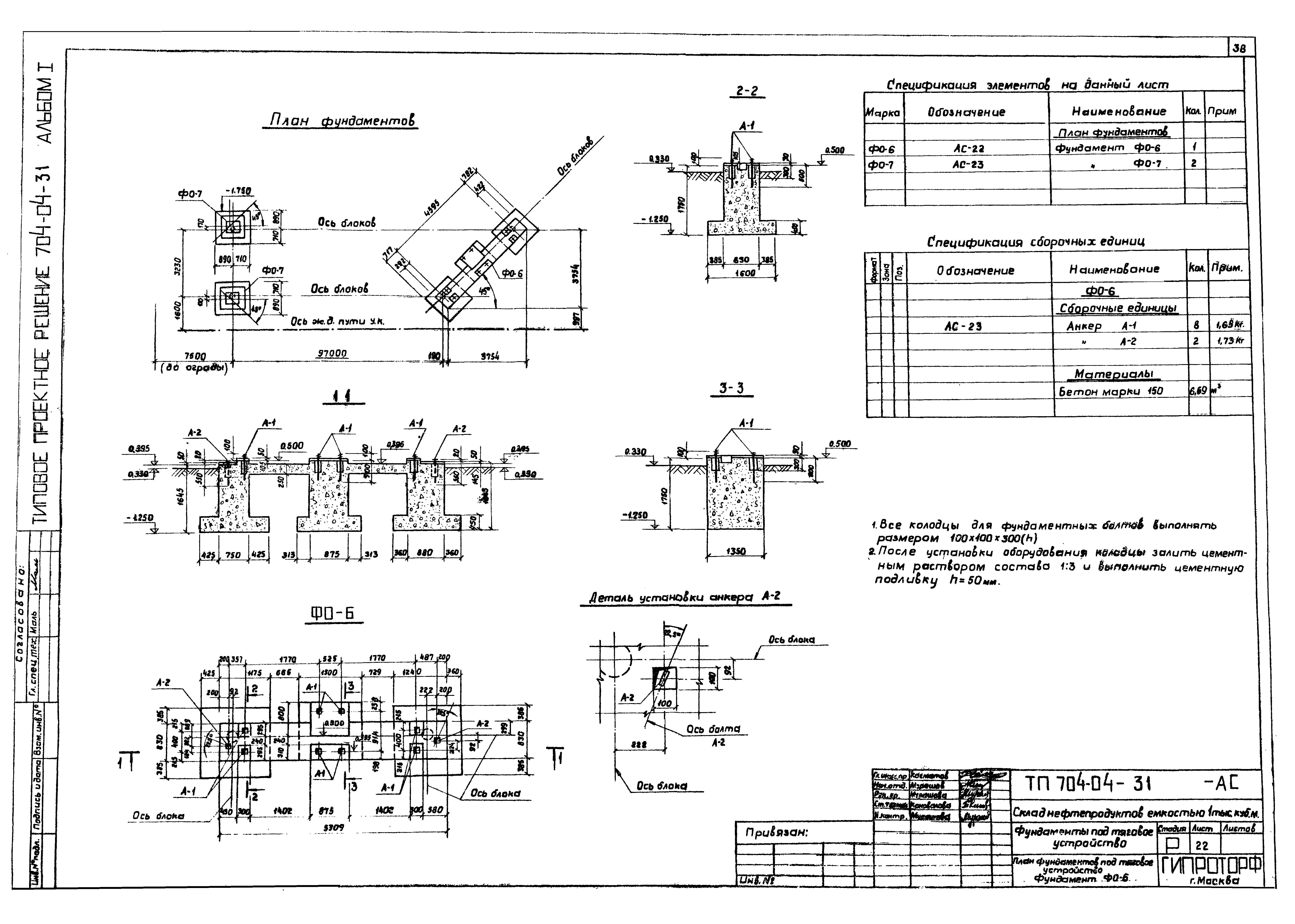
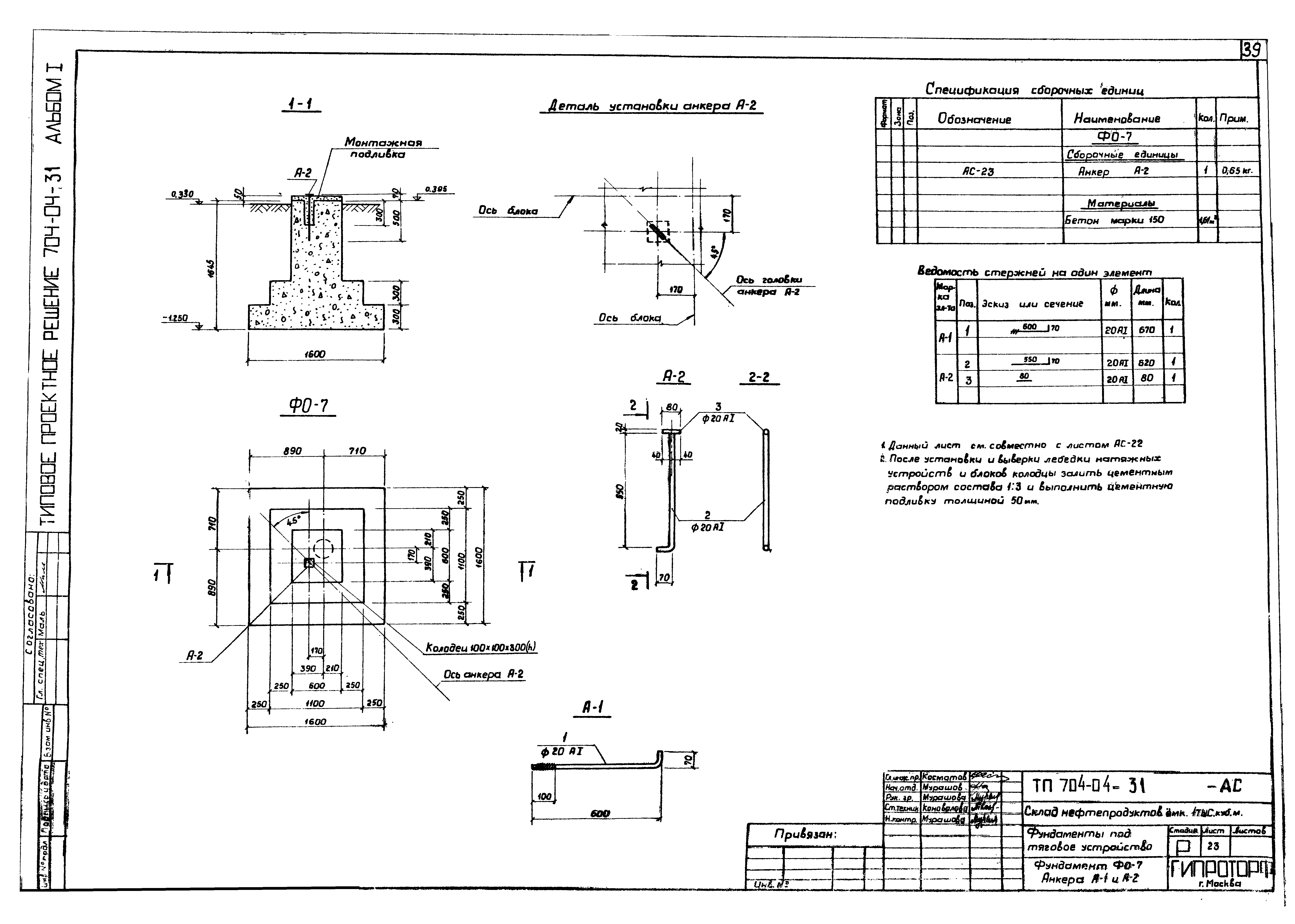
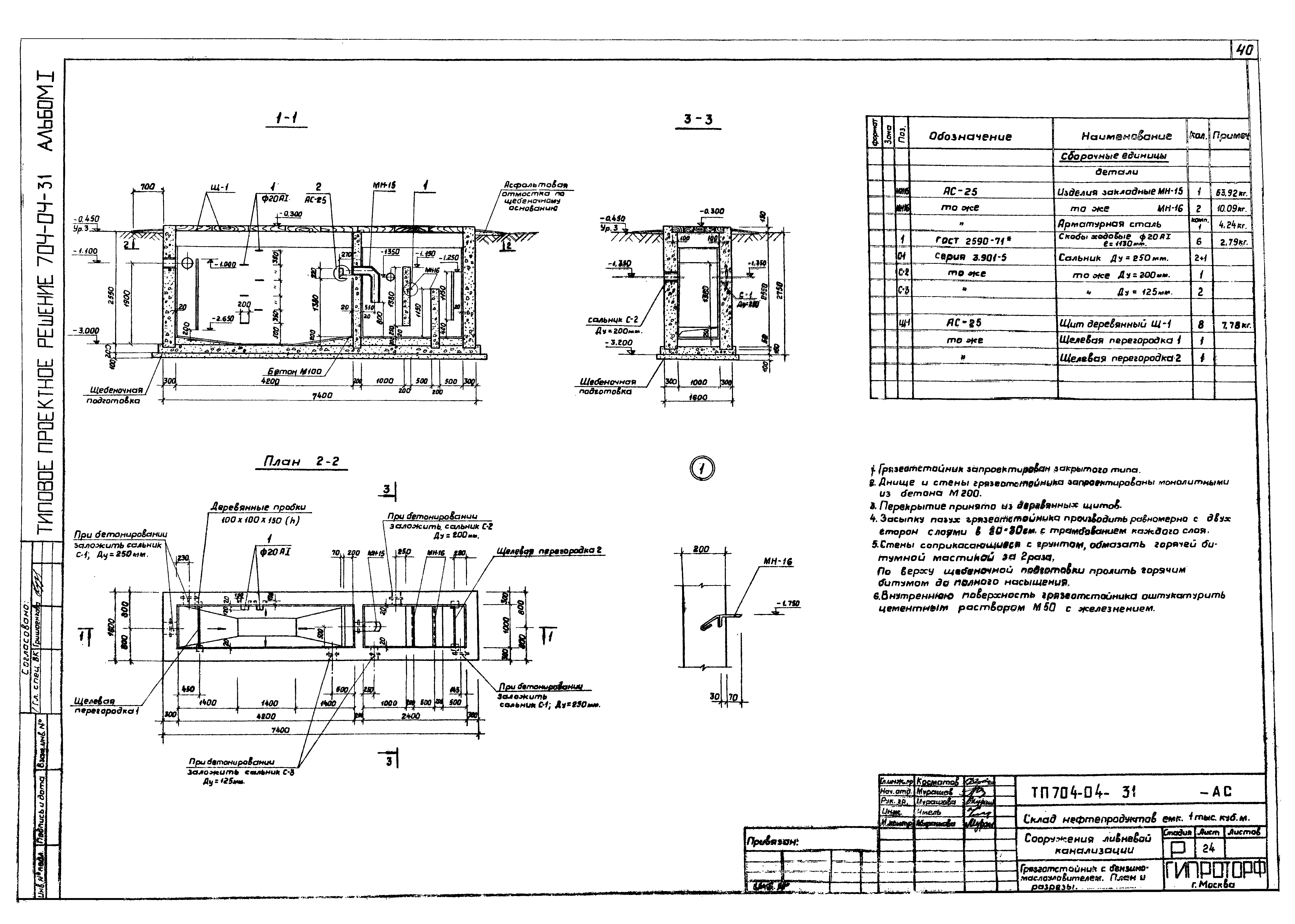
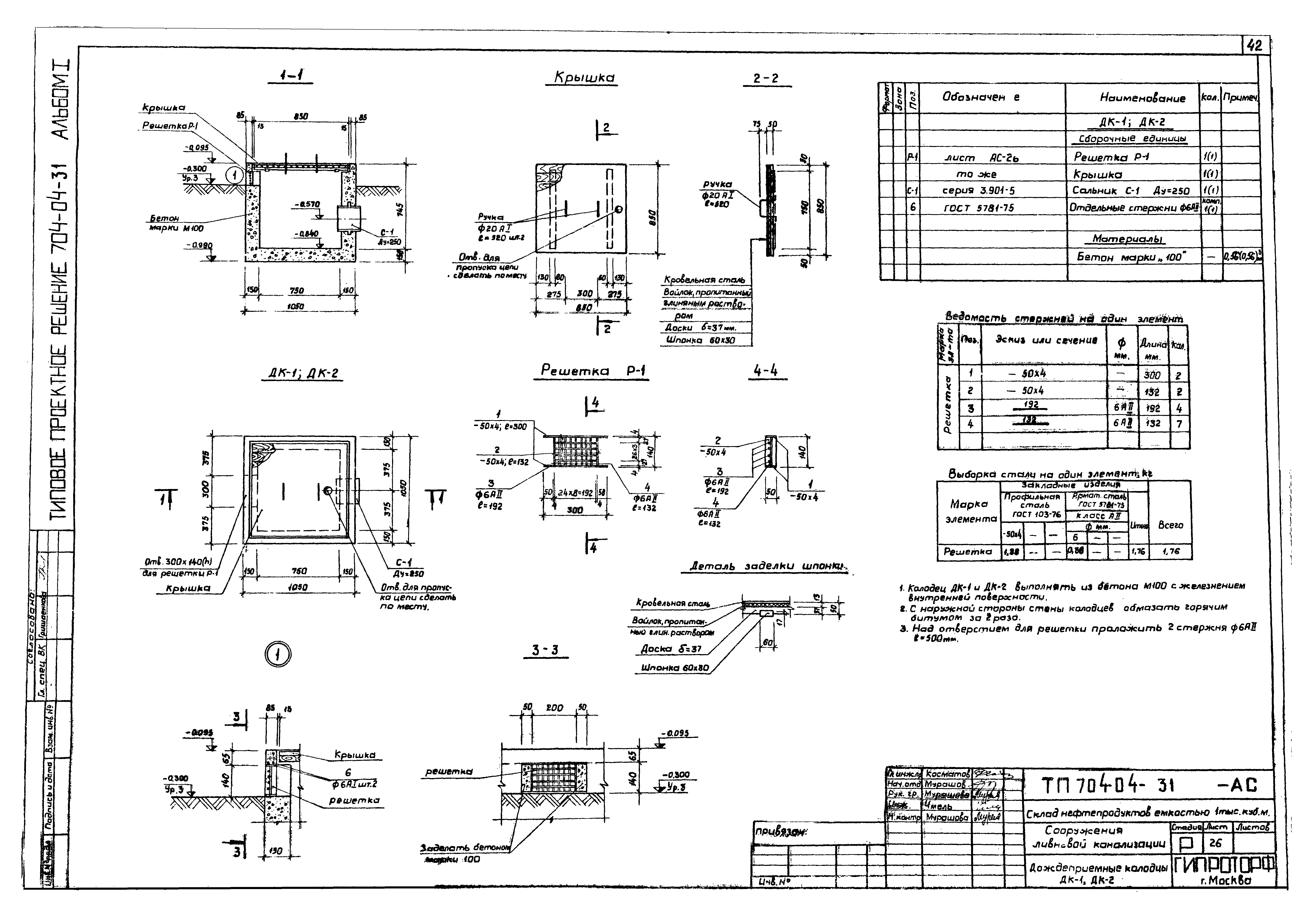
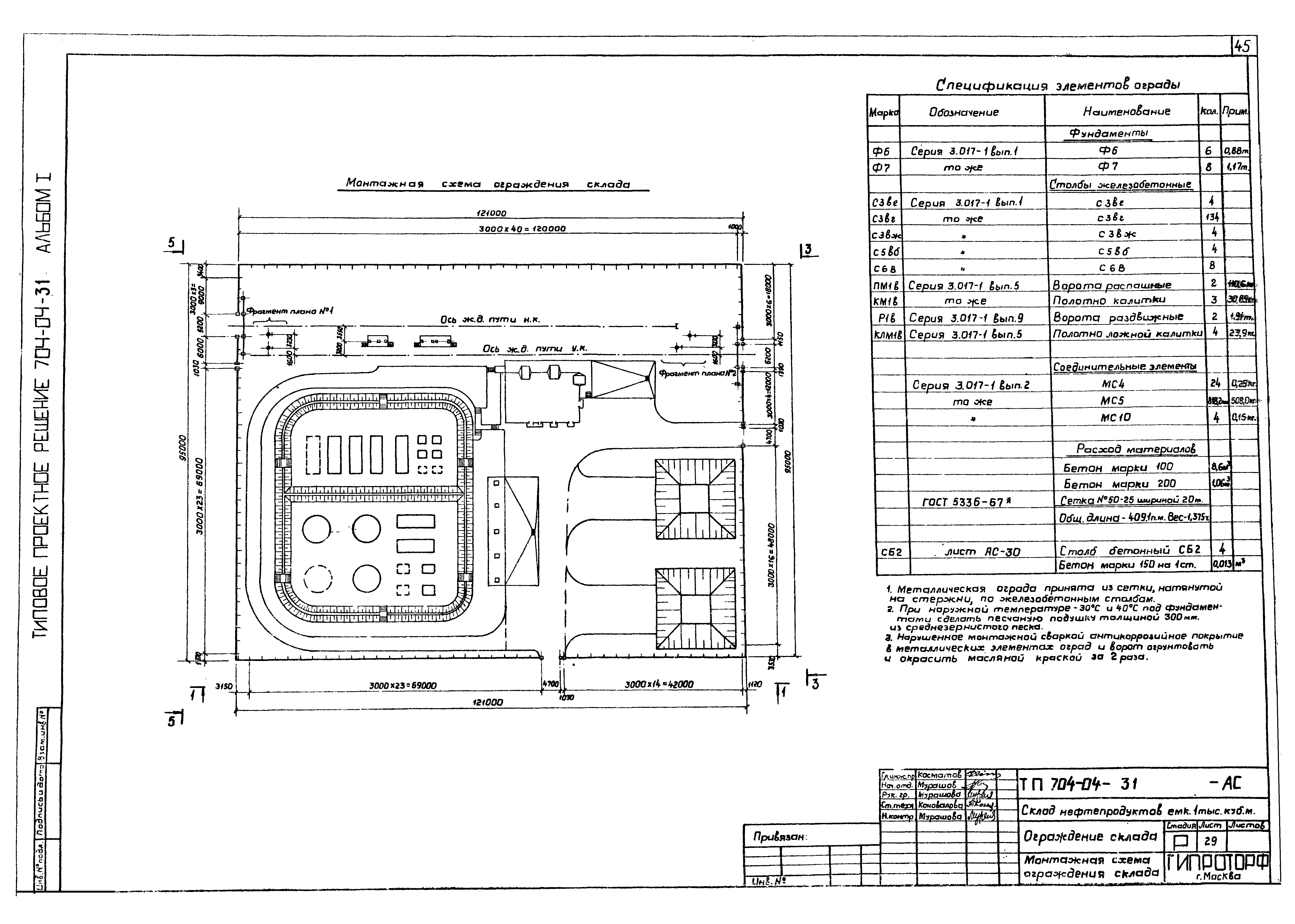
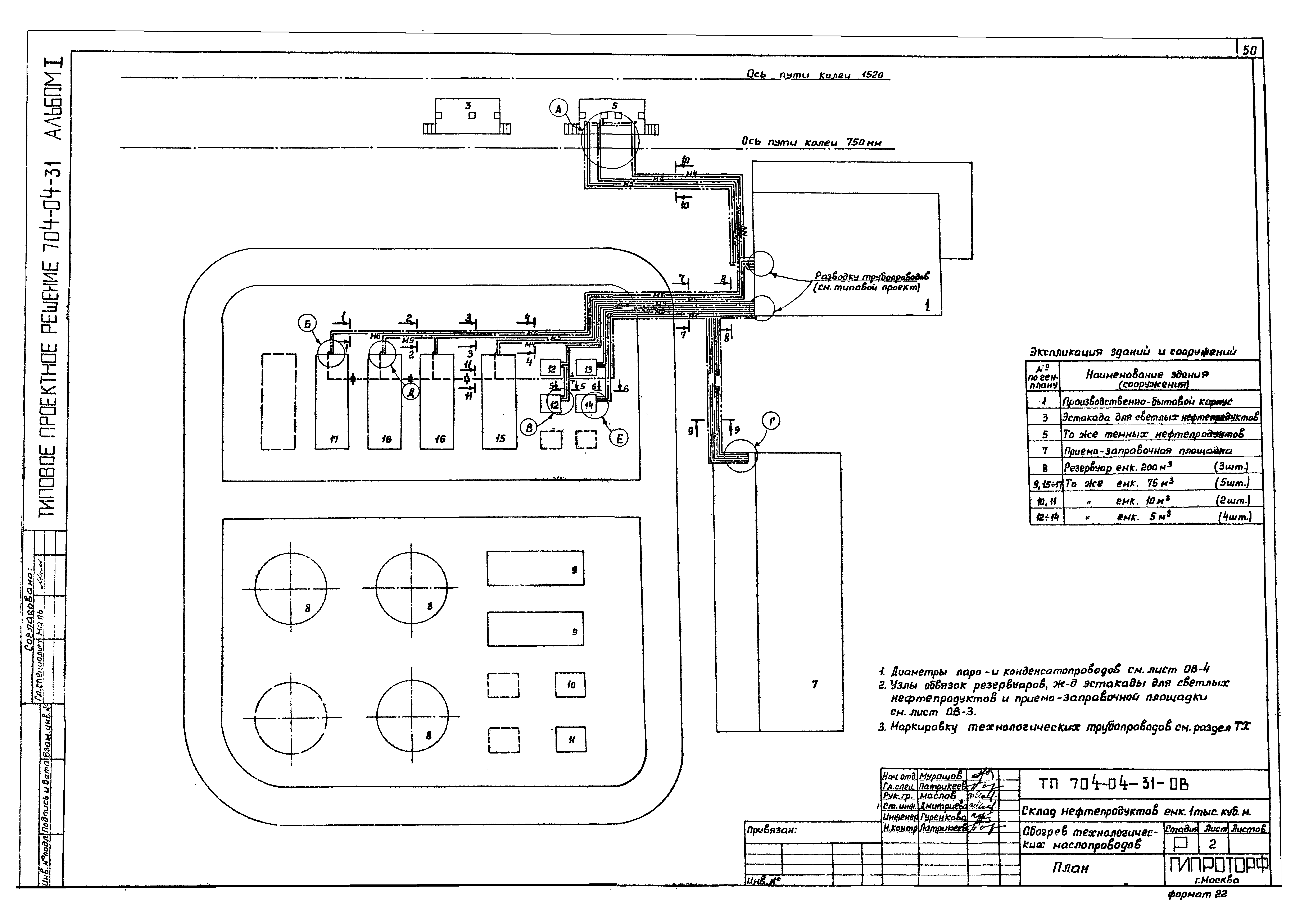
| Оглавление: | ТП 704-04-31 ПЗ-1Общая пояснительная записка ТП 704-04-31 ГП-1 Схема генерального плана ТП 704-04-31 ТХ-1 Общие данные (начало) ТП 704-04-31 ТХ-2 Общие данные (окончание) ТП 704-04-31 ТХ-3 Монтажно-технологическая схема ТП 704-04-31 ТХ-4 Трубопроводы. План. Разрезы ТП 704-04-31 ТХ-5 Приемно-заправочная площадка. Компоновка оборудования ТП 704-04-31 ТХ-6 Тяговое устройство. Установочный чертеж ТП 704-04-31 ТХ-7 Тяговое устройство. Выключатель конечный ТП 704-04-31 ТХ-8 Эстакада для светлых нефтепродуктов. Компоновка оборудования ТП 704-04-31 ТХ-9 Эстакада для темных нефтепродуктов. Компоновка оборудования ТП 704-04-31 ТХ-10 Эстакады. Крепление рукавов Ду 40 и Ду 100 ТП 704-04-31 ТХ-11 Сводная спецификация (начало). Эстакады. Разрезы В-В, Г-Г ТП 704-04-31 ТХ-12 Сводная спецификация (окончание) Эстакады. Разрез Д-Д ТП 704-04-31 АС-1 Общие данные (начало) ТП 704-04-31 АС-2 Общие данные (окончание) ТП 704-04-31 АС-3 План фундаментов под резервуары и опор под трубопроводы ТП 704-04-31 АС-4 Разрезы: 1-1 и 2-2. План опор под трубопроводы. Опоры: ОП-1;ОП-2;ОП-4;ОП-5 ТП 704-04-31 АС-5 Элемент плана №1. Опоры под трубопроводы: ОП-3; ОП-6; ЛП-7; ОП-8 ТП 704-04-31 АС-6 Переход через обвалование. Переход через трубы П-1 ТП 704-04-31 АС-7 Фундаменты ФО-1, ФО-2, ФО-3 ТП 704-04-31 АС-8 Планы и разрезы ТП 704-04-31 АС-9 Маркировочные схемы плит, колонн и металлических балок ТП 704-04-31 АС-10 Колонны К-1 и К-2 ТП 704-04-31 АС-11 Монолитные участки МУ-1;МУ-2;МУ-2ª. Опалубка и армирование ТП 704-04-31 АС-12 Монолитные участки МУ-1;МУ-2;МУ-2ª. Сечения 1-1; 2-2; 3-3. М-1; М-2 ТП 704-04-31 АС-13 Планы фундаментов. Фундаменты Ф-1;Ф-2 ТП 704-04-31 АС-14 Фундамент Ф-3. Арматурные сетки С-1;С-2;С-3;С-4. Анкер А-1 ТП 704-04-31 АС-15 Площадки и лестницы металлические ТП 704-04-31 АС-16 Приямки для эстакад. План и сечения 1-1÷4-4;СБ-1 ТП 704-04-31 АС-17 Приямки для эстакад. План и сечения 5-5÷8-8 ТП 704-04-31 АС-18 План, разрезы ТП 704-04-31 АС-19 План фундаментов под оборудование ТП 704-04-31 АС-20 План балок и прогонов покрытия. План колонн. План фундаментов ТП 704-04-31 АС-21 Фундаменты Ф-4;ФО-4;ФО-5 ТП 704-04-31 АС-22 План фундаментов под тяговое устройство. Фундамент ФО-6 ТП 704-04-31 АС-23 Фундамент ФО-7. Анкера А-1 и А-2 ТП 704-04-31 АС-24 Грязеотстойник и бензиномаслоуловителем. План и разрезы ТП 704-04-31 АС-25 Деревянный щит Щ-1. Щелевая перегородка. Изделия закладные МН-15;МН-16 ТП 704-04-31 АС-26 Дождеприемные колодцы ДК-1;ДК-2 ТП 704-04-31 АС-27 Колодцы СК-1÷СК-6 ТП 704-04-31 АС-28 Колодцы РК-1;РК-2. Маслосборный колодец ТП 704-04-31 АС-29 Монтажная схема ограждения склада ТП 704-04-31 АС-30 Виды 1-1;3-3;5-5. Элементы плана №1;№2;СБ-2 ТП 704-04-31 АС-31 Закладные элементы МН-1÷МН-11, МН-14 ТП 704-04-31 АС-32 Щит с пожарным инвентарем. Ящик для песка. Пожарный водоем ТП 704-04-31 ОВ-1 Общие данные ТП 704-04-31 ОВ-2 План ТП 704-04-31 ОВ-3 Узлы обвязок резервуаров и эстакад ТП 704-04-31 ОВ-4 Сечения трубопроводов ТП 704-04-31 НВК-1 Общие данные (начало) ТП 704-04-31 НВК-2 Общие данные (окончание) ТП 704-04-31 НВК-3 Примерная схема трассировки. План и разрез по трубопроводу аварийного пролива ТП 704-04-31 НВК-4 Разрезы по трубопроводам аварийного пролива и ливневой канализации ТП 704-04-31 НВК-5 Грязеотстойник с бензиномаслоуловителем. План и разрезы ТП 704-04-31 ЭЛ-1 Общие данные (начало) ТП 704-04-31 ЭЛ-2 Общие данные (продолжение) ТП 704-04-31 ЭЛ-3 Общие данные (продолжение) ТП 704-04-31 ЭЛ-4 Общие данные (окончание) ТП 704-04-31 ЭЛ-5 Внутриплощадочные силовые сети 380/220В. План ТП 704-04-31 ЭЛ-6 Приемо-заправочная площадка эстакады. Электрооборудование и электроосвещение ТП 704-04-31 ЭЛ-7 Сети наружного и охранного освещения. План ТП 704-04-31 ЭЛ-8 Молниезащита и заземление. Планы ТП 704-04-31 ЭЛ-9 Молниезащита. Разрезы ТП 704-04-31 АТХ-1 Общие данные. Спецификация ТП 704-04-31 АТХ-2 Схема электрическая принципиальная управления тяговым устройством ТП 704-04-31 АТХ-3 Схема электрическая принципиальная управления насосами АСВН-80Б ТП 704-04-31 АТХ-4 Схема внешних электрических проводок тягового устройства ТП 704-04-31 АТХ-5 Схема внешних электрических проводок ТП 704-04-31 АТХ-6 План расположения средств автоматизации и проводок |
| Разработан: | Гипроторф |
| Утверждён: | 31.12.1980 Минтоппром РСФСР (Russian Federation Mintopprom 222) |








































































