Скачать Типовой проект 902-2-151 Альбом I. Общая пояснительная записка. Технологические, электротехнические и санитарно-технические чертежиДата актуализации: 01.01.2021
|
| Обозначение: | Типовой проект 902-2-151 |
| Обозначение англ: | 902-2-151 |
| Статус: | заменен |
| Название рус.: | Альбом I. Общая пояснительная записка. Технологические, электротехнические и санитарно-технические чертежи |
| Дата добавления в базу: | 01.09.2013 |
| Дата актуализации: | 01.01.2021 |
| Дата введения: | 27.10.1972 |
| Дата окончания срока действия: | 01.04.1977 |
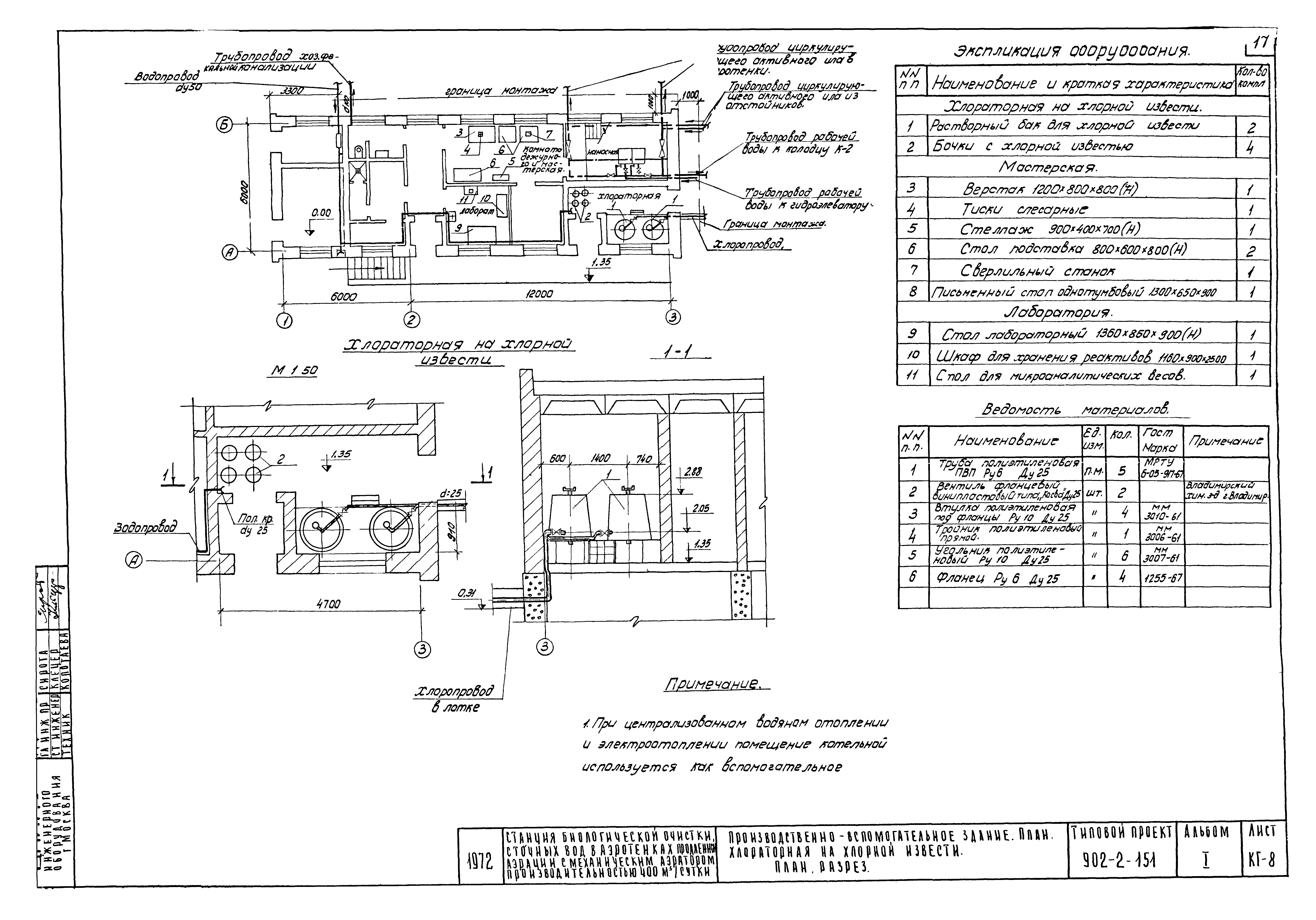
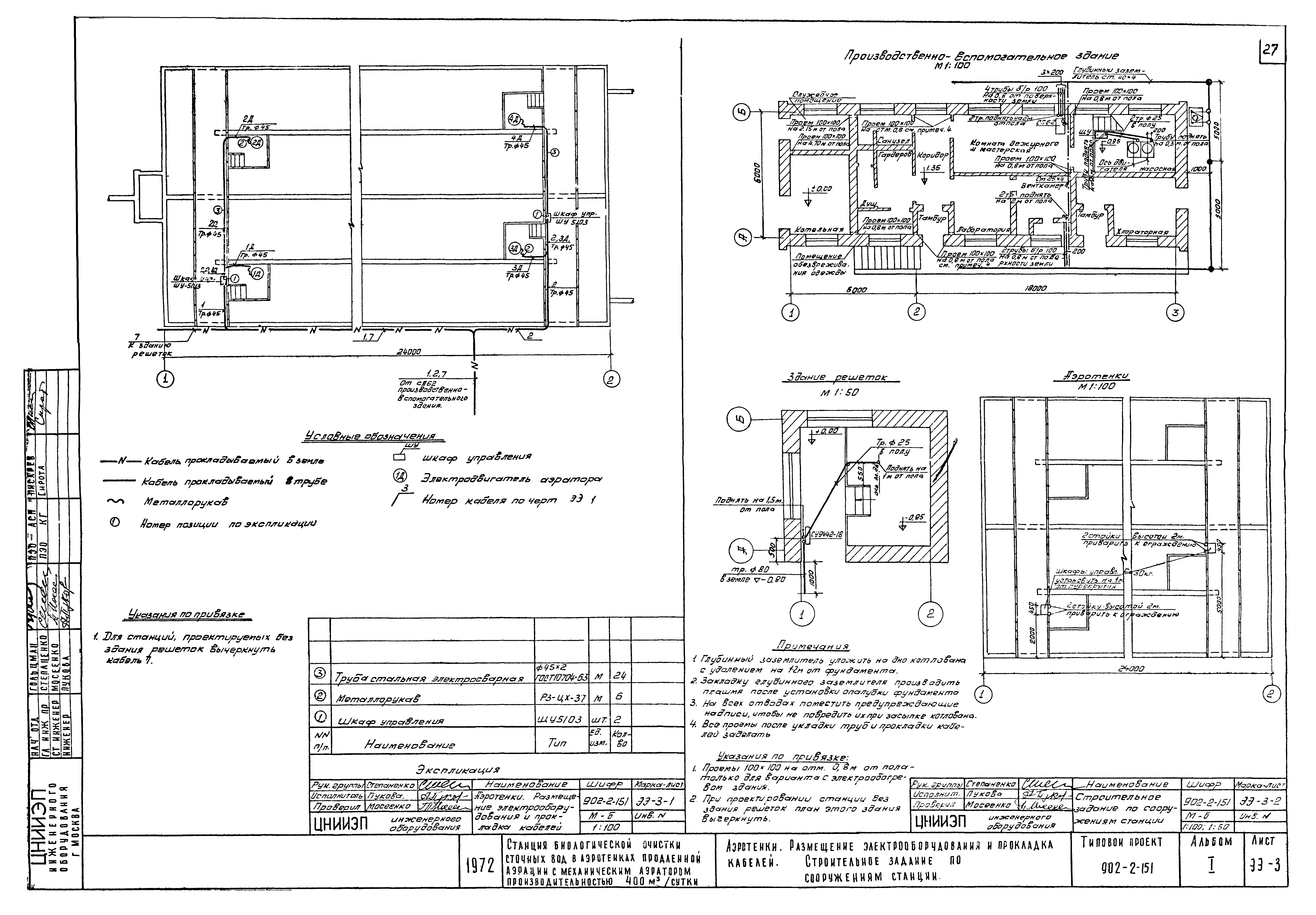
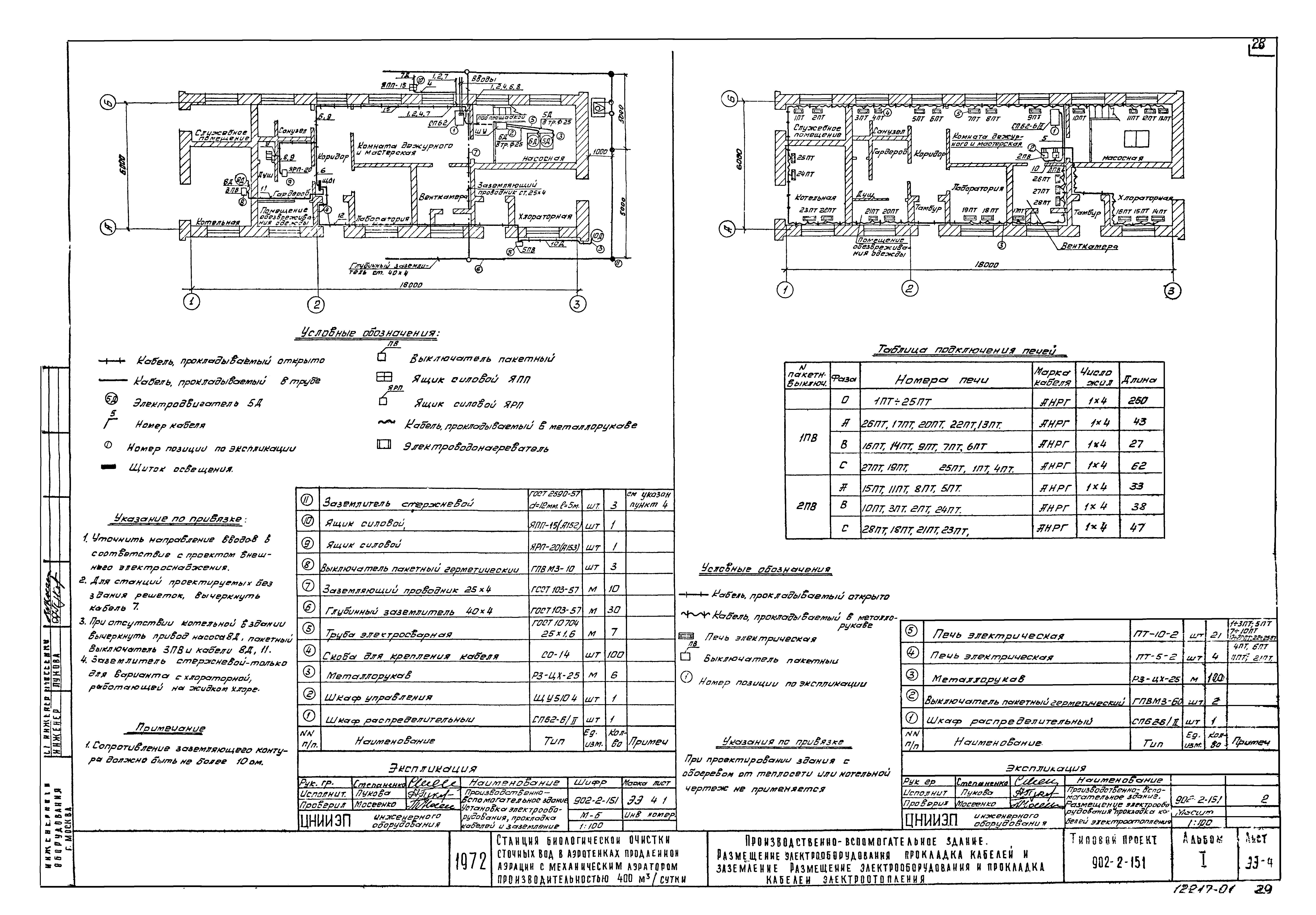
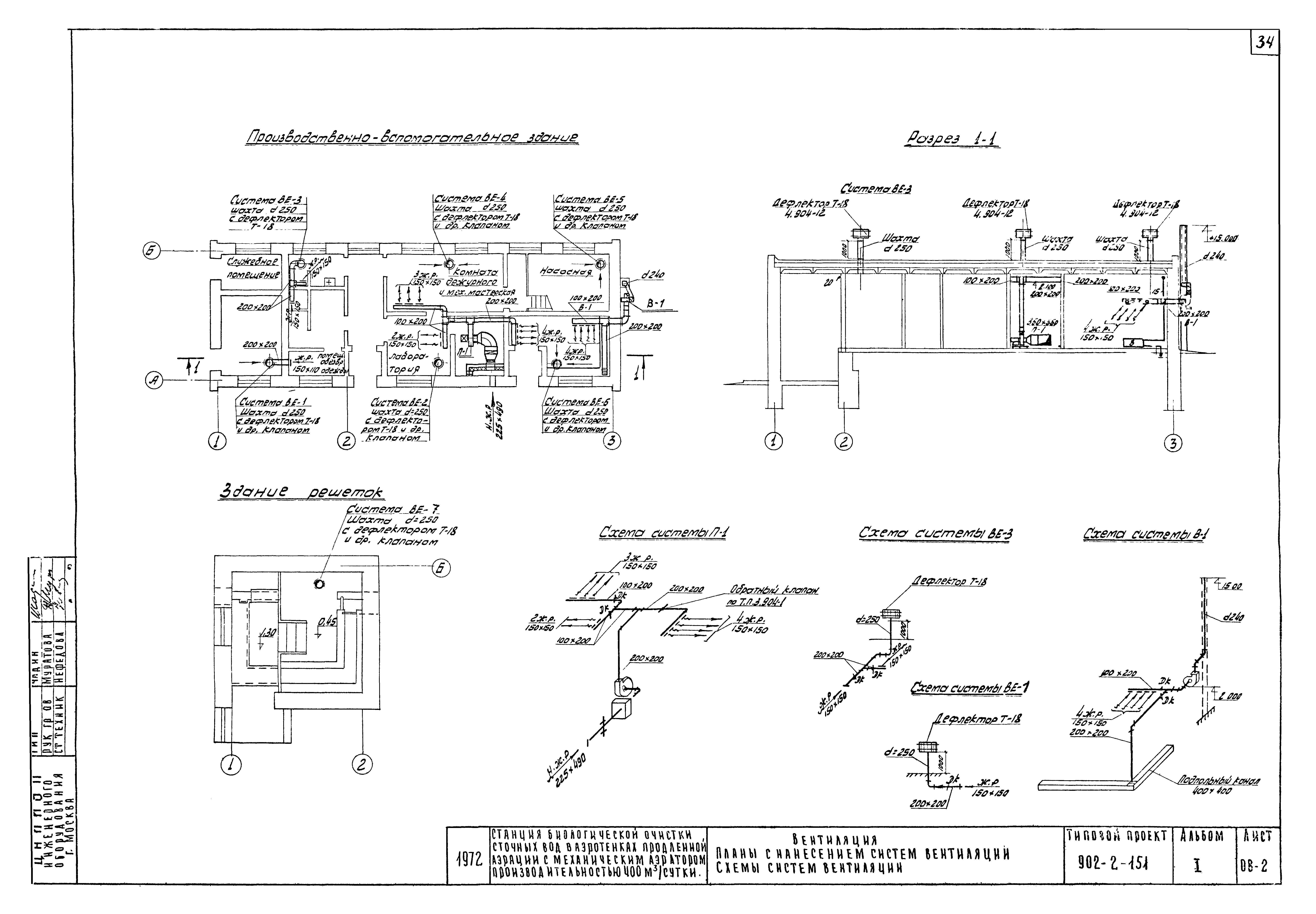
| Оглавление: | ТП 902-2-151 Содержание альбома ТП 902-2-151 Общая пояснительная записка ТП 902-2-151 Технологические чертежи ТП 902-2-151 Перечень чертежей. Пояснительная записка ТП 902-2-151 Пояснительная записка ТП 902-2-151 КГ-1 Генплан с коммуникациями (примерный) ТП 902-2-151 КГ-2 Профиль движения воды. ТП 902-2-151 КГ-3 Профиль трубопровода циркулирующего активного ила. Профиль трубопровода избыточного активного ила ТП 902-2-151 КГ-4 Профиль хлоропровода. Профиль трубопровода рабочей воды к гидроэлеватору. Профиль трубопровода осадка из контактных резервуаров ТП 902-2-151 КГ-5 Здание решеток. Водослив для измерения расхода воды ТП 902-2-151 КГ-6 Аэротенк. План. Разрезы ТП 902-2-151 КГ-7 Отстойник. План. Разрезы ТП 902-2-151 КГ-8 Производственно-вспомогательное здание. План. Хлораторная на хлорной извести. План. Разрез ТП 902-2-151 КГ-9 Производственно-вспомогательное здание. Хлораторная на жидком хлоре. План. Разрезы ТП 902-2-151 КГ-10 Производственно-вспомогательное здание. Хлораторная на жидком хлоре. Технологическая схема ТП 902-2-151 КГ-11 Производственно-вспомогательное здание. Насосная станция. План. Разрезы. Установка гидроэлеватора. Схема трубопроводов ТП 902-2-151 КГ-12 Контактные резервуары. Иловый колодец ТП 902-2-151 КГ-13 Пример решения конструкции сборного колодца биологических прудов ТП 902-2-151 КГ-14 Узлы и детали иловых площадок ТП 902-2-151 Электротехнические чертежи ТП 902-2-151 Перечень чертежей. Пояснительная записка ТП 902-2-151 ЭЭ-1 Питание электрооборудования. Схема принципиальная ТП 902-2-151 ЭЭ-2 Насосы очищенной воды. Схема принципиальная электрическая ТП 902-2-151 ЭЭ-3 Аэротенки. Размещение электрооборудования и прокладка кабелей. Строительное здание по сооружениям станции ТП 902-2-151 ЭЭЗ-1 Аэротенки. Размещение электрооборудования и прокладка кабелей ТП 902-2-151 ЭЭЗ-2 Строительное здание по сооружениям станции ТП 902-2-151 ЭЭ-4 Производственно-вспомогательное здание. Размещение электрооборудования. Прокладка кабелей и заземление. Размещение электрооборудования и прокладка кабелей электроотопления ТП 902-2-151 ЭЭ4-1 Производственно-вспомогательное здание. Прокладка кабелей и заземление ТП 902-2-151 ЭЭ4-2 Производственно-вспомогательное здание. Размещение электрооборудования и прокладка кабелей электроотопление ТП 902-2-151 ЭЭ-5 Здание решеток. Размещение электрооборудования и прокладка кабелей. Электрическое освещение. План-схема питающей сети ТП 902-2-151 ЭЭ5-1 Здание решеток. Размещение электрооборудования и прокладка кабелей ТП 902-2-151 ЭЭ5-2 Здание решеток. Электрическое освещение. План-схема питающей сети ТП 902-2-151 ЭЭ-6 Производственно-вспомогательное здание. Электрическое освещение. План-схема питающей сети. План на отм. ±0.000 ТП 902-2-151 ЭЭ-7 Производственно-вспомогательное здание. Электрическое освещение. Узлы установки светильников ТП 902-2-151 ОВ Санитарно-технические чертежи ТП 902-2-151 ОВ Перечень чертежей. Пояснительная записка ТП 902-2-151 ОВ-1 Отопление. Планы с нанесением систем отопления ТП 902-2-151 ОВ-2 Вентиляция. Планы с нанесением систем вентиляции. Схемы систем вентиляции ТП 902-2-151 ОВ-3 Схемы систем отопления ТП 902-2-151 ОВ-4 Вентиляция. Приточная камера. План. Разрез 1-1. Схема теплоснабжения калориферов ТП 902-2-151 ОВ-5 Характеристика отопительно-вентиляционного оборудования. Спецификация материалов и оборудования ТП 902-2-151 ВК-6 Производственно-вспомогательное здание. Водопровод. Канализация. План. Схемы. Спецификация |
| Разработан: | ЦНИИЭП |
| Утверждён: | 27.10.1972 Госгражданстрой (Gosgrazhdanstroy 211) |
| Чем заменён: |





































