Скачать Типовой проект 902-2-152 Альбом I. Пояснительная записка и чертежиДата актуализации: 01.01.2021
|
| Обозначение: | Типовой проект 902-2-152 |
| Обозначение англ: | 902-2-152 |
| Статус: | не действует |
| Название рус.: | Альбом I. Пояснительная записка и чертежи |
| Дата добавления в базу: | 01.09.2013 |
| Дата актуализации: | 01.01.2021 |
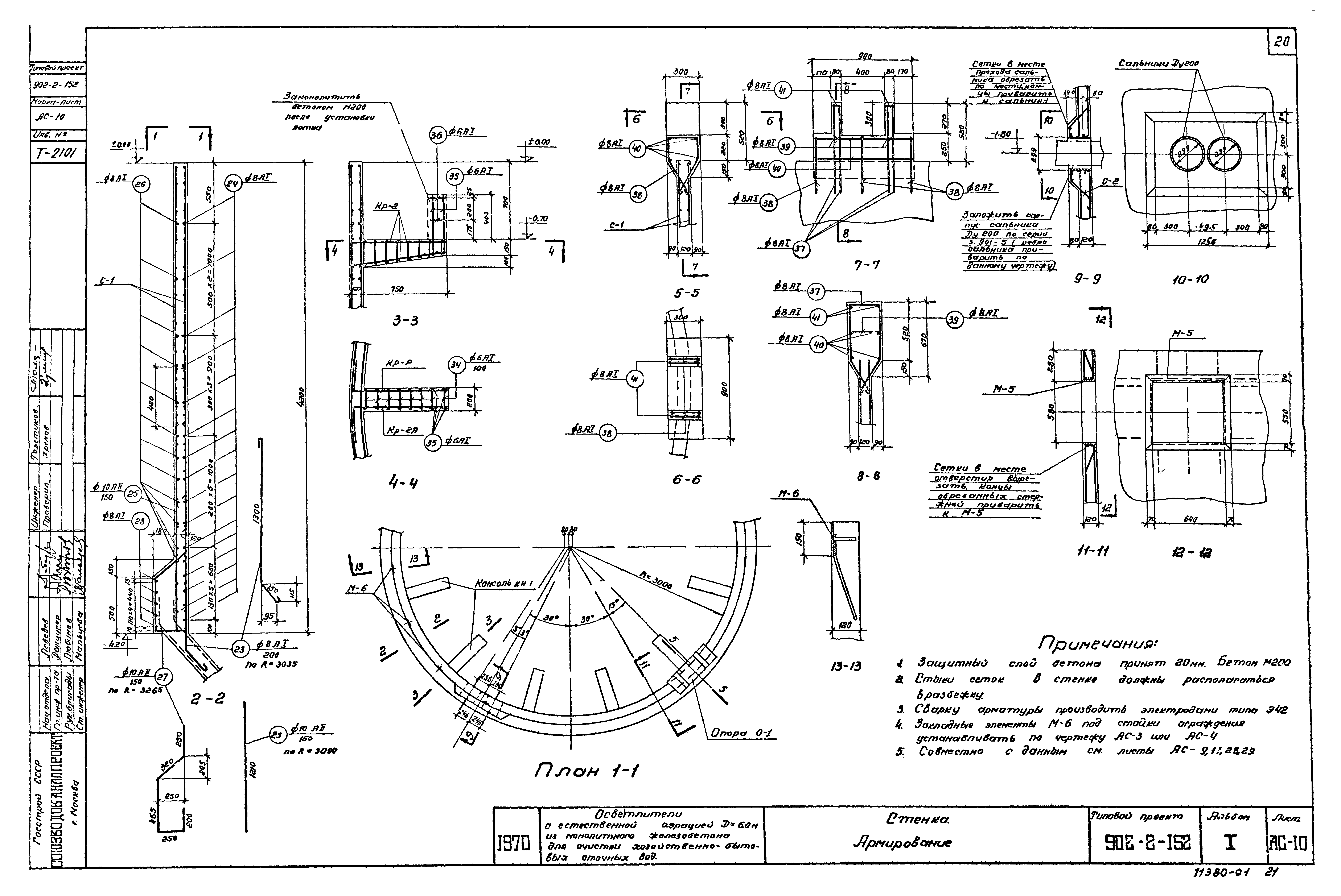
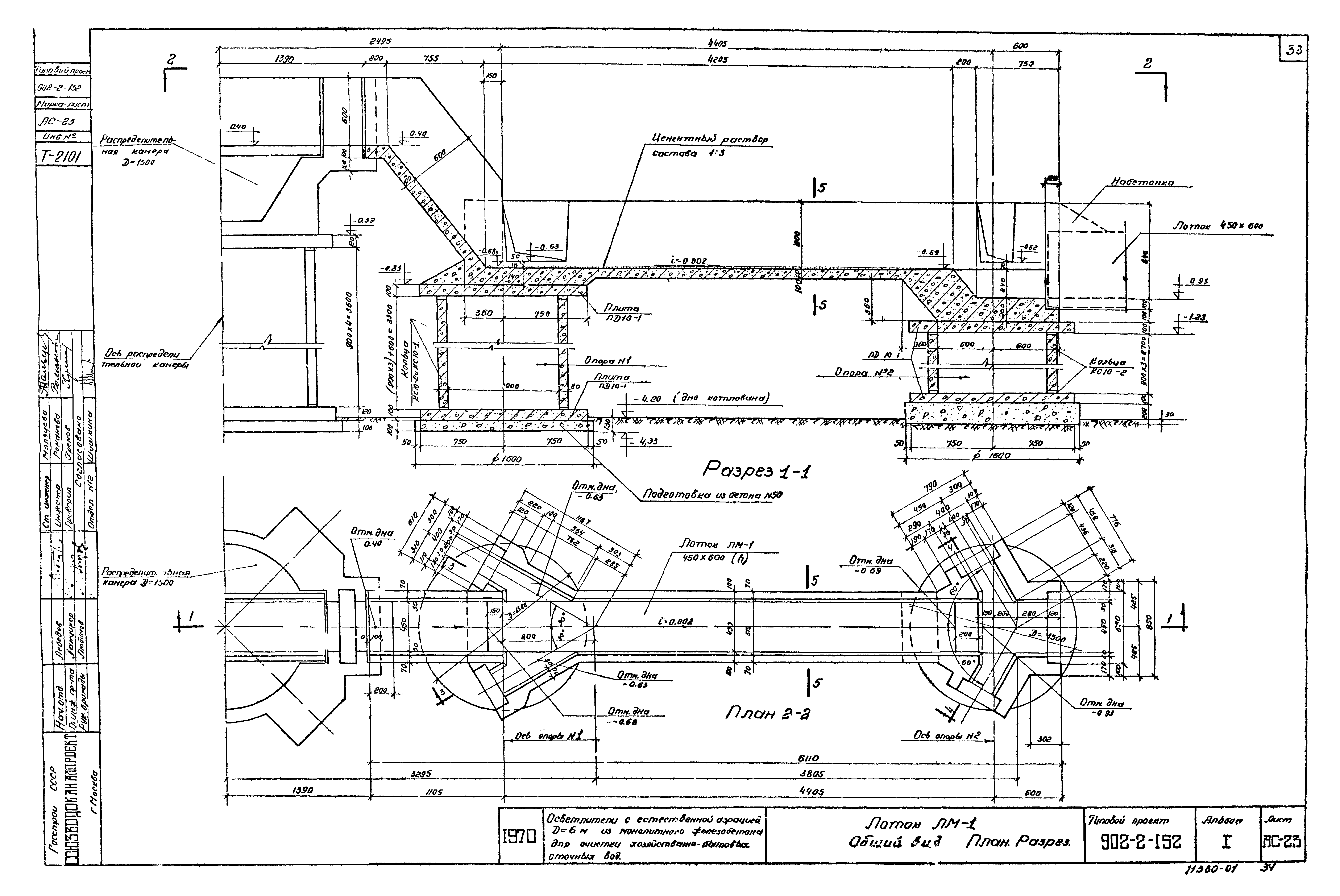
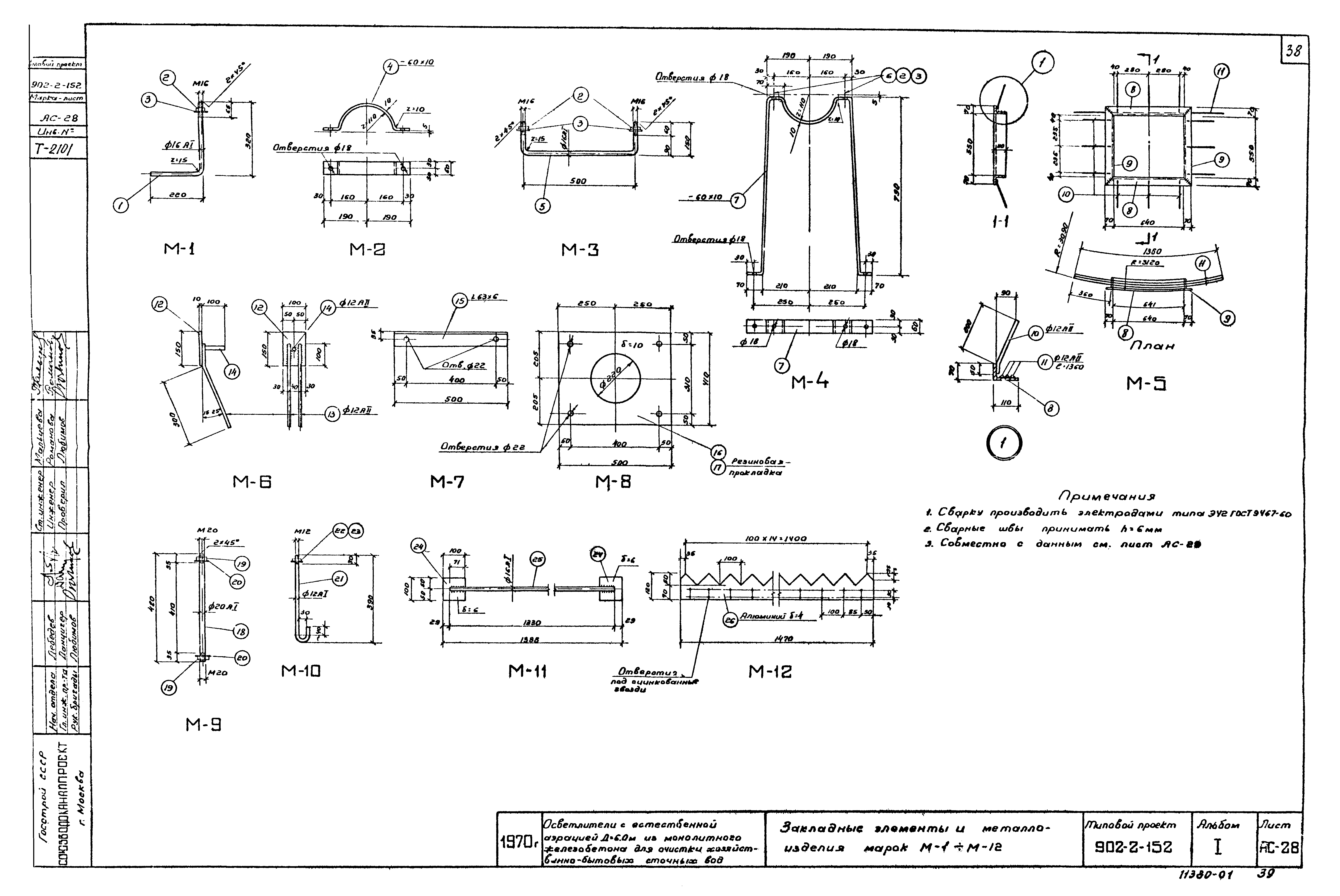
| Оглавление: | ТП 902-2-152 ПЗ-1 Содержание альбома ТП 902-2-152 ПЗ-2 Заглавный лист ТП 902-2-152 ПЗ-3÷ПЗ-9 Пояснительная записка ТП 902-2-152 АС Архитектурно-строительные чертежи ТП 902-2-152 АС-1 Компоновка из 2-х осветителей. Свободная выборка материалов ТП 902-2-152 АС-2 Компоновка из 4-х осветителей. Свободная выборка материалов ТП 902-2-152 АС-3 Компоновка из 2-х осветителей. Спецификация железобетонных и стальных элементов ТП 902-2-152 АС-4 Компоновка из 4-х осветителей. Спецификация железобетонных и стальных элементов ТП 902-2-152 АС-5 Общий вид. План. Разрез ТП 902-2-152 АС-6 Узлы №№1,2,3 ТП 902-2-152 АС-7 Узлы №№4,5 и разрез 3-3 ТП 902-2-152 АС-8 Узлы №№6,7 и разрез 4-4 ТП 902-2-152 АС-9 Днище. План раскладки арматуры. Разрез. Узлы и сечения ТП 902-2-152 АС-10 Стенка. Армирование ТП 902-2-152 АС-11 Днище, стенка. Общая спецификация арматуры ТП 902-2-152 АС-12 Балка Б-1. Армирование, спецификация арматуры ТП 902-2-152 АС-13 Флокуляционная камера. Балка БМ-1Площадка для обслуживания. Спецификация пиломатериалов ТП 902-2-152 АС-14 Лестница М-4. Ограждение. Спецификация и выборка стали ТП 902-2-152 АС-15 Лестница М-4. Ограждение. Спецификация и выборка стали ТП 902-2-152 АС-16 Лотки Л-1,Л-2,Л-3,Л-4,Л-5,Л-6. Общие виды. Армирование ТП 902-2-152 АС-17 Лотки Л-1,Л-2,Л-3,Л-4,Л-5,Л-6. Сетки ТП 902-2-152 АС-18 Лотки Л-1,Л-2,Л-3,Л-4,Л-5,Л-6. Спецификация арматуры ТП 902-2-152 АС-19 Лоток Л-1А. Армирование ТП 902-2-152 АС-20 Распределительная камера. Общий вид ТП 902-2-152 АС-21 Распределительная камера. Армирование ТП 902-2-152 АС-22 Распределительная камера. Сетки, спецификация арматуры ТП 902-2-152 АС-23 Лоток ЛМ-1. Общий вид. План. Разрез ТП 902-2-152 АС-24 Лоток ЛМ-1. Опалубочный чертеж. Сечения ТП 902-2-152 АС-25 Лоток ЛМ-1. Армирование ТП 902-2-152 АС-26 Лоток ЛМ-1. Сечения. Спецификация арматуры ТП 902-2-152 АС-27 Иловые колодцы №1 и №2 ТП 902-2-152 АС-28 Закладные элементы и металлоизделия марок М-1÷М-12 ТП 902-2-152 АС-29 Закладные элементы и металлоизделия марок М-1÷М-18. Спецификация и таблица отправочных марок М-1÷М-18 ТП 902-2-152 АС-30 Устройство дренажа конусной части осветлителя ТП 902-2-152 ТК Технологические чертежи ТП 902-2-152 ТК-1 План, разрез 1-1, спецификация ТП 902-2-152 ТК-2 Иловые колодцы №1 и №2. Планы и разрезы ТП 902-2-152 ТК-3, ТК-4 Заказные спецификации ТП 902-2-152 ТМ Чертежи нестандартизированного оборудования ТП 902-2-152 ТМ-1 Установка управления хлопушкой dу200. Общий вид ТП 902-2-152 ТМ-2 Установка управления хлопушкой dу200. Узел, детали ТП 902-2-152 ТМ-3 Установка управления хлопушкой dу200. Узел, детали ТП 902-2-152 ТМ-4 Отражатель. Общий вид. Деталь |
| Разработан: | Союзводоканалпроект |
| Утверждён: | 15.11.1971 Госстрой СССР (Государственный комитет Совета Министров СССР по делам строительства) (USSR Gosstroy ) |















































