Скачать Типовой проект 902-2-353 Альбом I. Технологическая часть, строительная часть, электрооборудование и автоматика, заказные спецификацииДата актуализации: 01.01.2021
|
| Обозначение: | Типовой проект 902-2-353 |
| Обозначение англ: | 902-2-353 |
| Статус: | не определен законодательством |
| Название рус.: | Альбом I. Технологическая часть, строительная часть, электрооборудование и автоматика, заказные спецификации |
| Дата добавления в базу: | 01.09.2013 |
| Дата актуализации: | 01.01.2021 |
| Дата введения: | 25.10.1982 |
| Дата окончания срока действия: | 30.06.2003 |
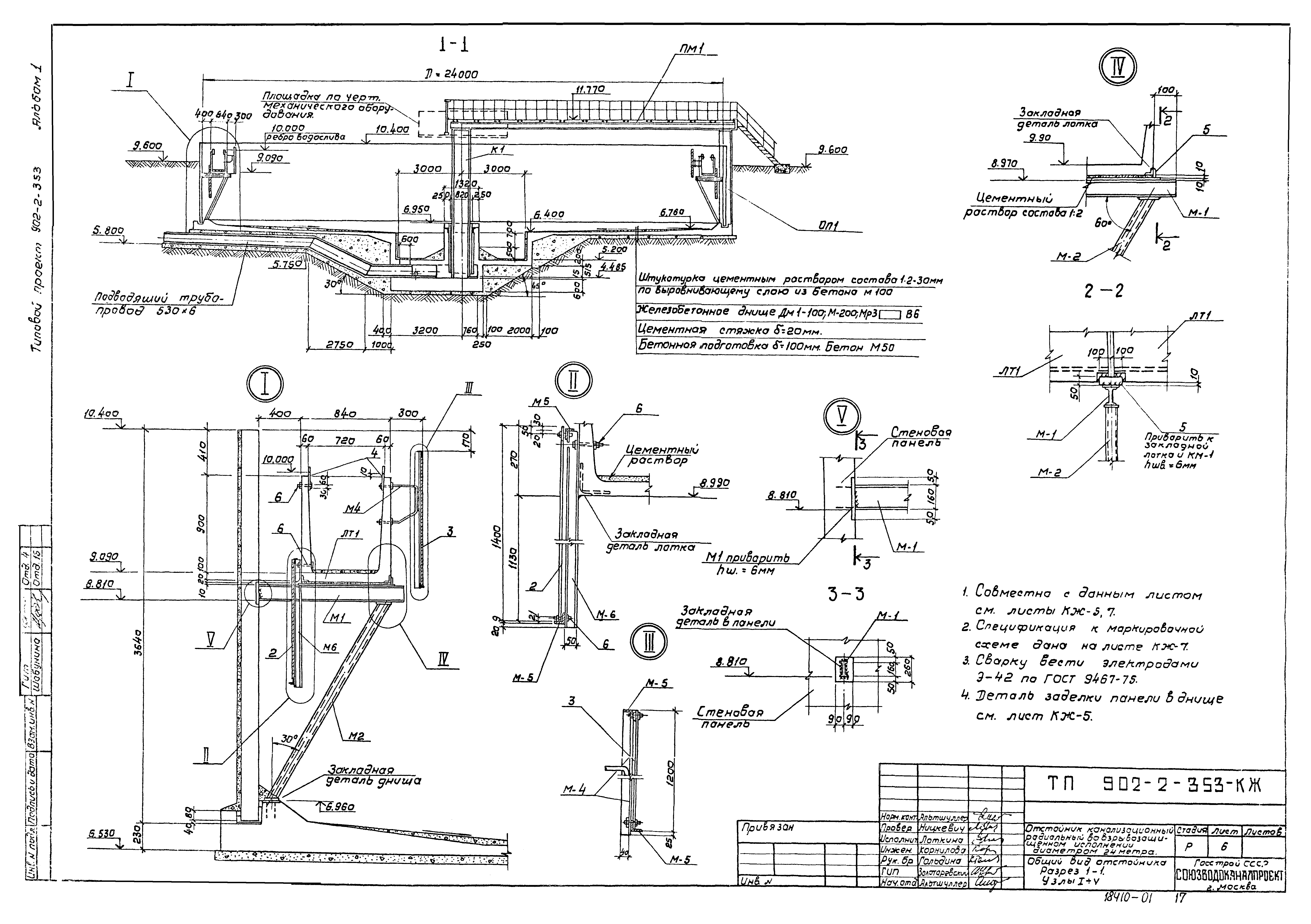
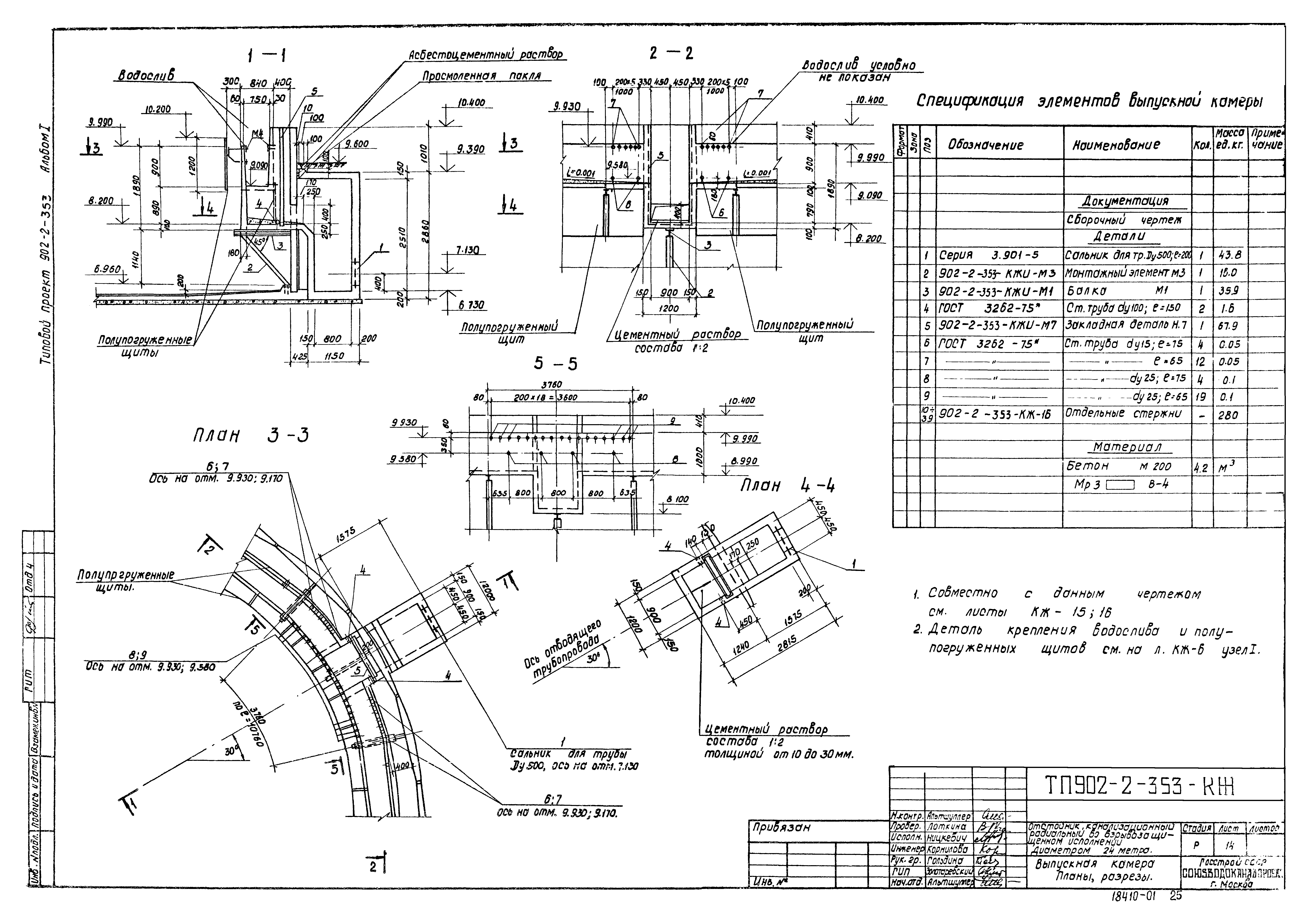
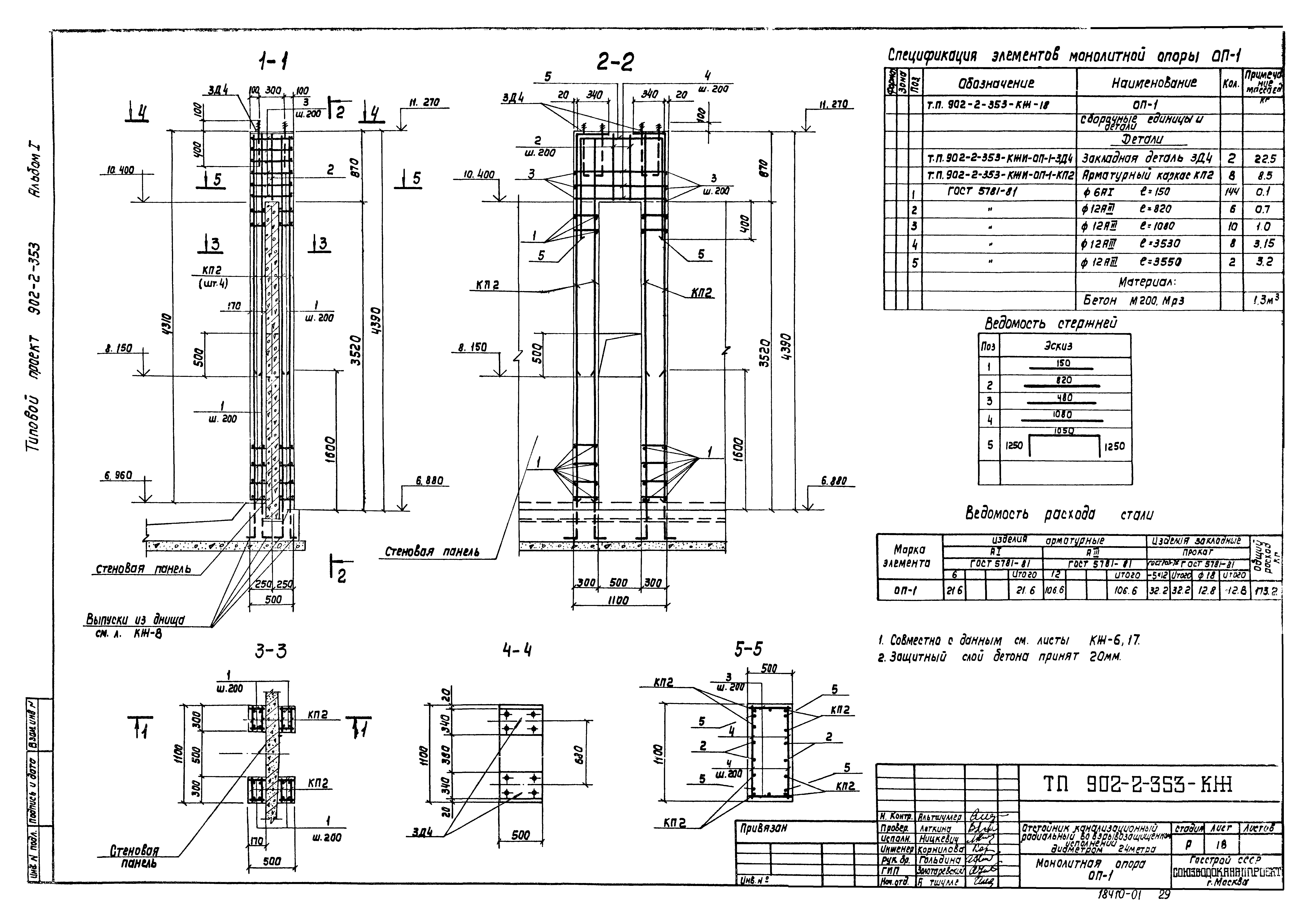
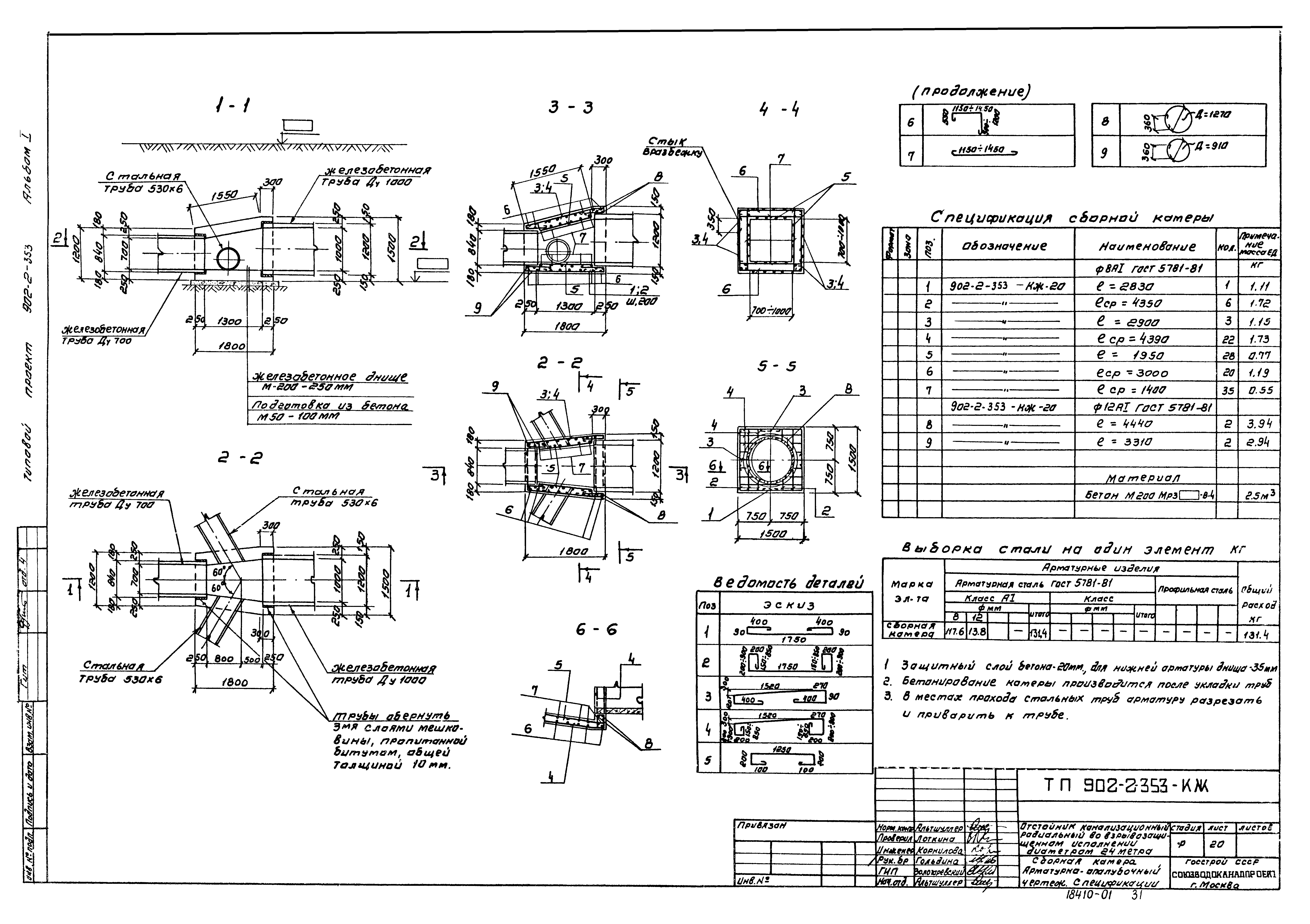
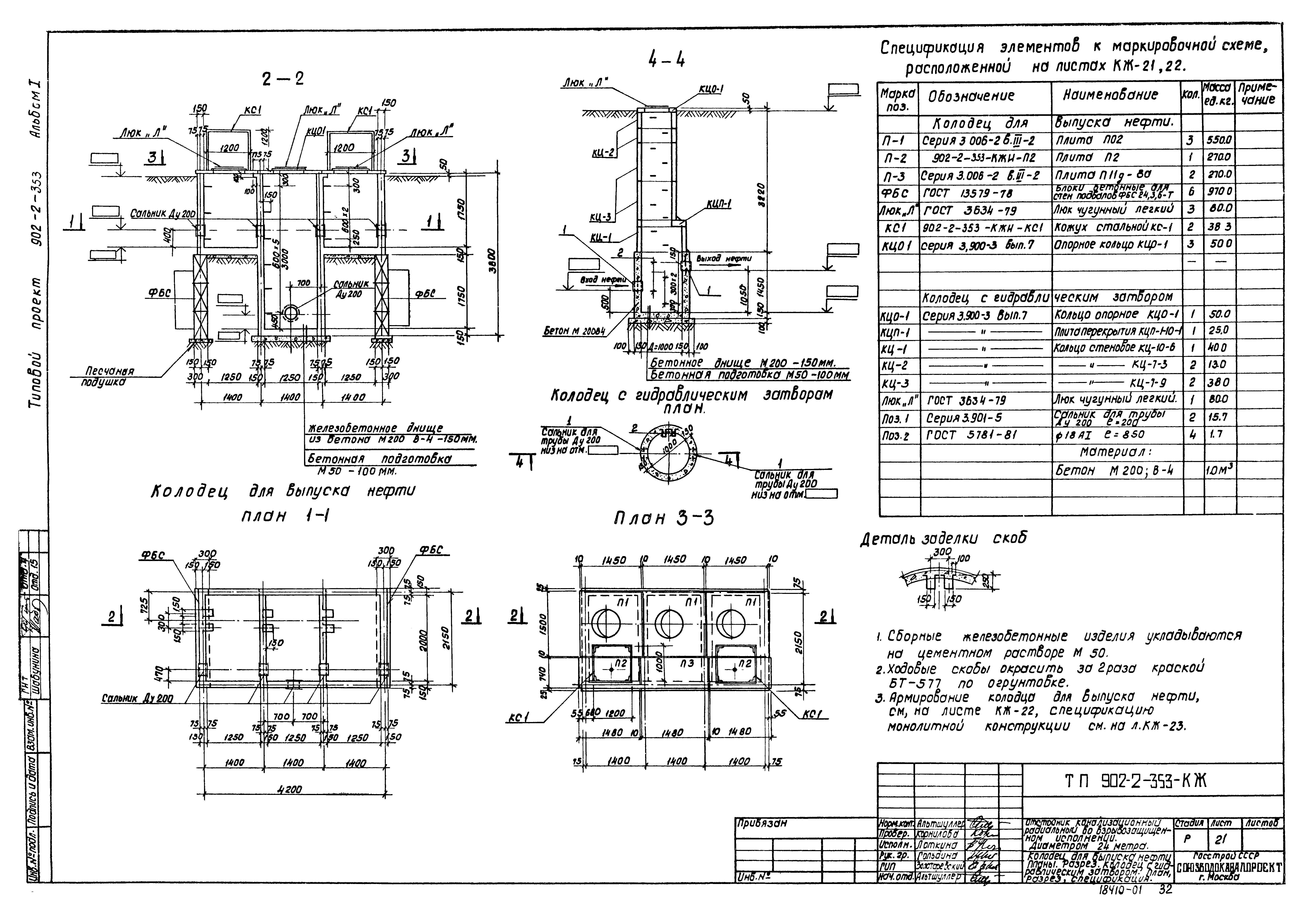
| Оглавление: | ТП 902-2-353 Титульный лист ТП 902-2-353 Содержание альбома ТП 902-2-353 Технологическая часть ТП 902-2-353-НК Общие данные ТП 902-2-353-НК Монтажный чертеж. План, разрез ТП 902-2-353-НК Монтажный чертеж. Разрезы, узлы, детали ТП 902-2-353-НК Монтажный чертеж. Колодцы для выпуска нефти и осадка. Распределительная чаша ТП 902-2-353 Строительная часть ТП 902-2-353-КЖ Общие данные ТП 902-2-353-КЖ Общий вид отстойника. План. Навивка кольцевой арматуры ТП 902-2-353-КЖ Общий вид отстойника. Разрез 1-1. Узлы 1-5 ТП 902-2-353-КЖ Маркировочная схема стеновых панелей и лотков. Узлы 6,7. Спецификация ТП 902-2-353-КЖ Днище Дн-1. Опалубка и армирование. Спецификация ТП 902-2-353-КЖ Центральная часть. План. Разрезы 1-1÷3-3 ТП 902-2-353-КЖ Центральная часть. Разрезы 4-4÷7-7 ТП 902-2-353-КЖ Центральная часть. Армирование. План. Разрезы 1-1÷4-4 ТП 902-2-353-КЖ Центральная часть. Армирование. План 2-2. Разрезы 5-5÷В-В ТП 902-2-353-КЖ Центральная часть. Спецификация ТП 902-2-353-КЖ Выпускная камера. План, разрезы ТП 902-2-353-КЖ Выпускная камера. Армирование. Разрезы 1-1÷6-6 ТП 902-2-353-КЖ Выпускная камера. Армирование. Разрезы 7-7÷8-8. Спецификация ТП 902-2-353-КЖ Переходный мостик ПМ1 ТП 902-2-353-КЖ Монолитная опора ОП-1 ТП 902-2-353-КЖ Колонна К-1, узел V ТП 902-2-353-КЖ Сборная камера. Арматурно-опалубочный чертеж. Спецификация ТП 902-2-353-КЖ Колодец для выпуска нефти. Планы. Разрез. Колодец с гидравлическим затвором. План. Разрез. Спецификация ТП 902-2-353-КЖ Колодец для выпуска нефти. Армирование ТП 902-2-353-КЖ Колодец для выпуска нефти. Армирование. Спецификация ТП 902-2-353-КЖ Распределительная чаша. Планы. Разрезы. Спецификация ТП 902-2-353-КЖ Распределительная чаша. Арматурный чертеж. Сечение 1-1÷7-7 ТП 902-2-353-КЖ Распределительная чаша. Арматурный чертеж. Сечение 8-8. Спецификация ТП 902-2-353 Электротехническая часть ТП 902-2-353-АЗМ Общие данные ТП 902-2-353-АЗМ Схема принципиальная управления приводом отстойника ТП 902-2-353-АЗМ Схема принципиальная управления задвижкой на выпуске нефти ТП 902-2-353-АЗМ Схема принципиальная управления задвижкой на выпуске осадка ТП 902-2-353-АЗМ Схема подключения электрооборудования ТП 902-2-353-АЗМ Кабельный журнал ТП 902-2-353-АЗМ Расположение электрооборудования и прокладка труб ТП 902-2-353 Заказные спецификации ТП 902-2-353-НК-С1 Заказная спецификация на оборудование ТП 902-2-353-НК-С2 Колодец для выпуска нефти. Колодец для выпуска осадка ТП 902-2-353 Распределительная чаша. Заказная спецификация на оборудование и арматуру ТП 902-2-353-АЗМ Заказная спецификация на электрооборудование и материалы |
| Разработан: | Союзводоканалпроект |
| Утверждён: | 03.08.1982 Союзводоканалпроект (Soyuzvodokanalproject 43) |

















































