Скачать Типовой проект 902-9-40.86 Альбом II. Технологическая, санитарно-техническая и архитектурно-строительная частиДата актуализации: 01.01.2021
|
| Обозначение: | Типовой проект 902-9-40.86 |
| Обозначение англ: | 902-9-40.86 |
| Статус: | не определен законодательством |
| Название рус.: | Альбом II. Технологическая, санитарно-техническая и архитектурно-строительная части |
| Дата добавления в базу: | 01.09.2013 |
| Дата актуализации: | 01.01.2021 |
| Дата введения: | 12.12.1985 |
| Дата окончания срока действия: | 30.06.2003 |
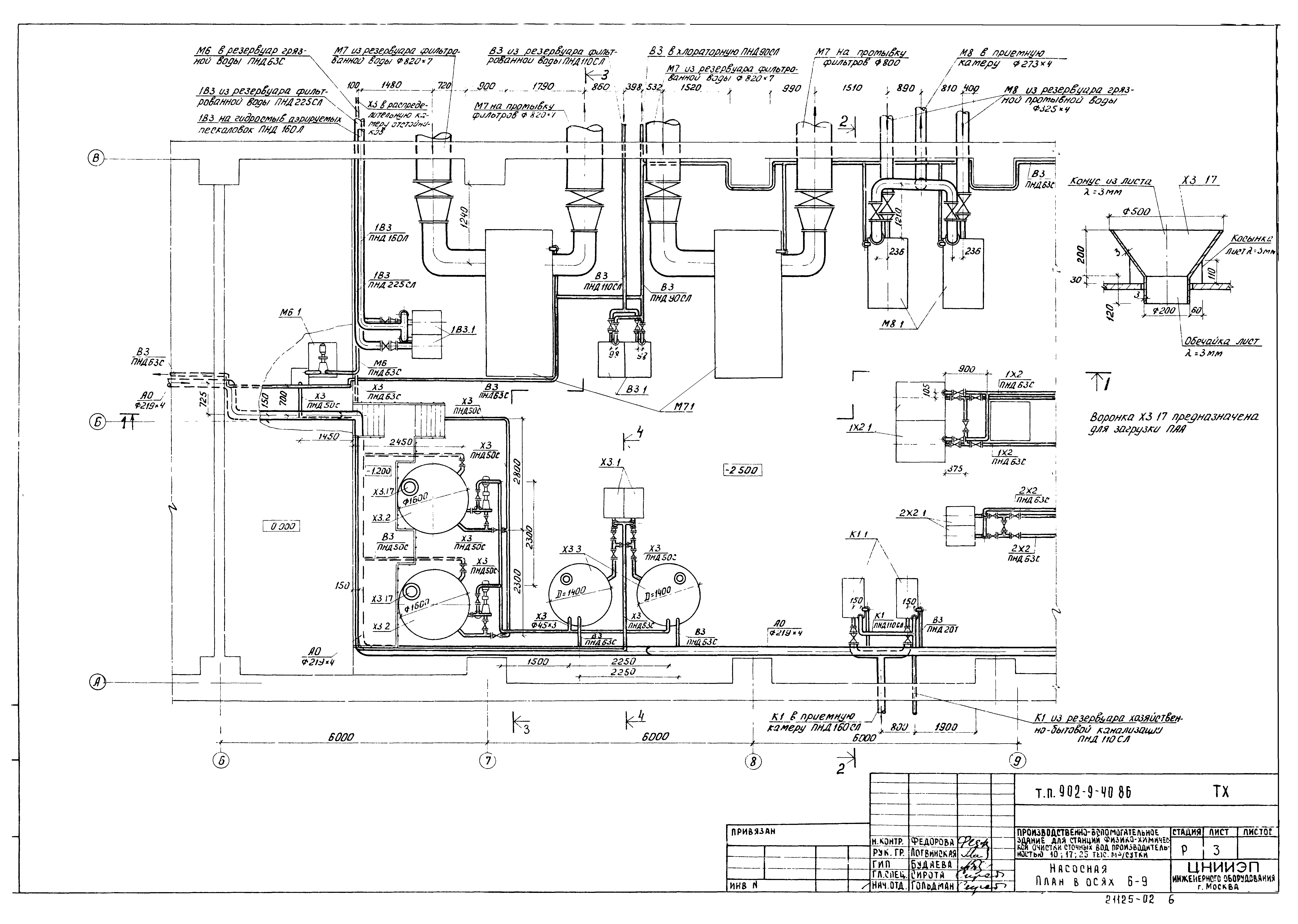
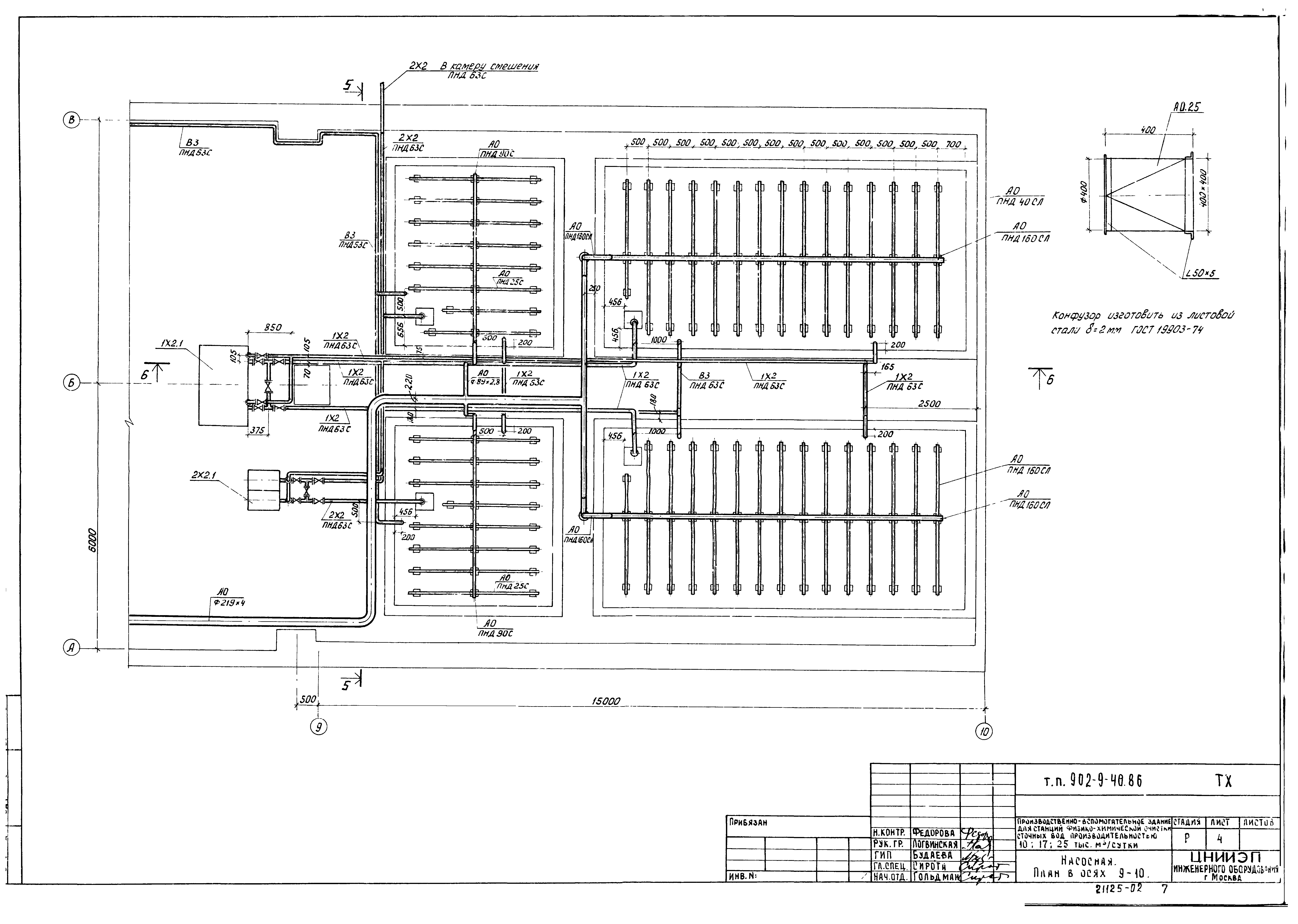
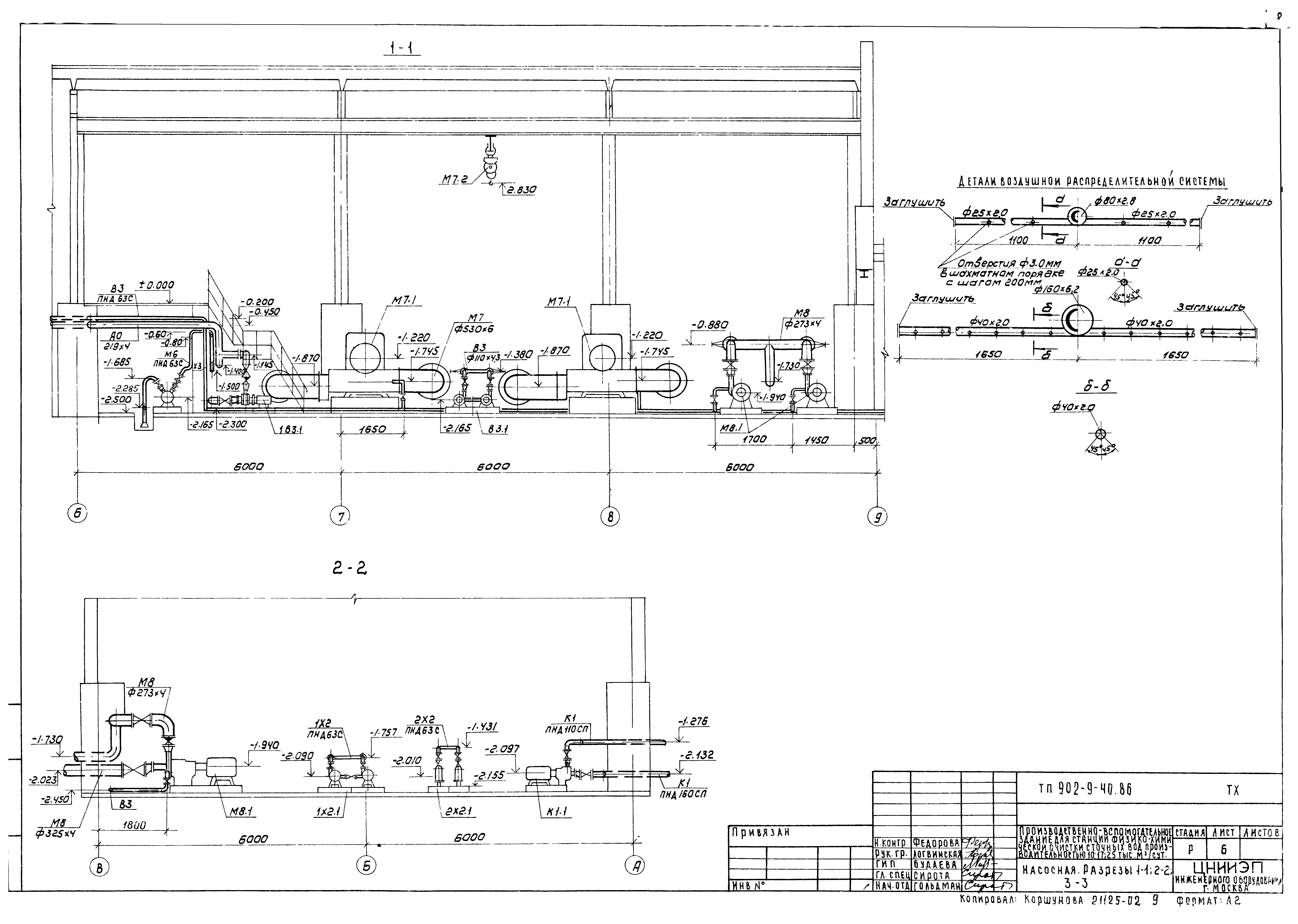
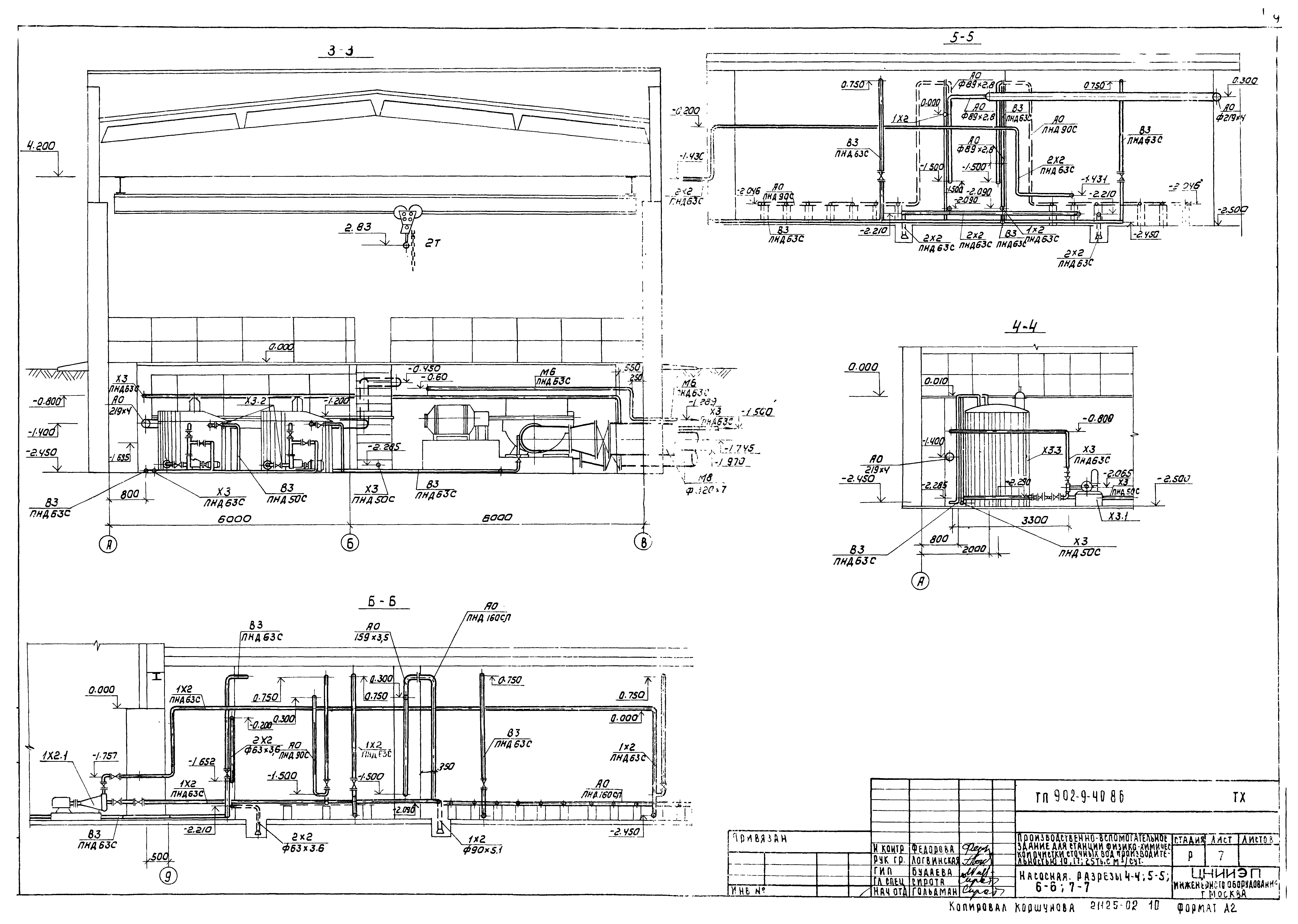
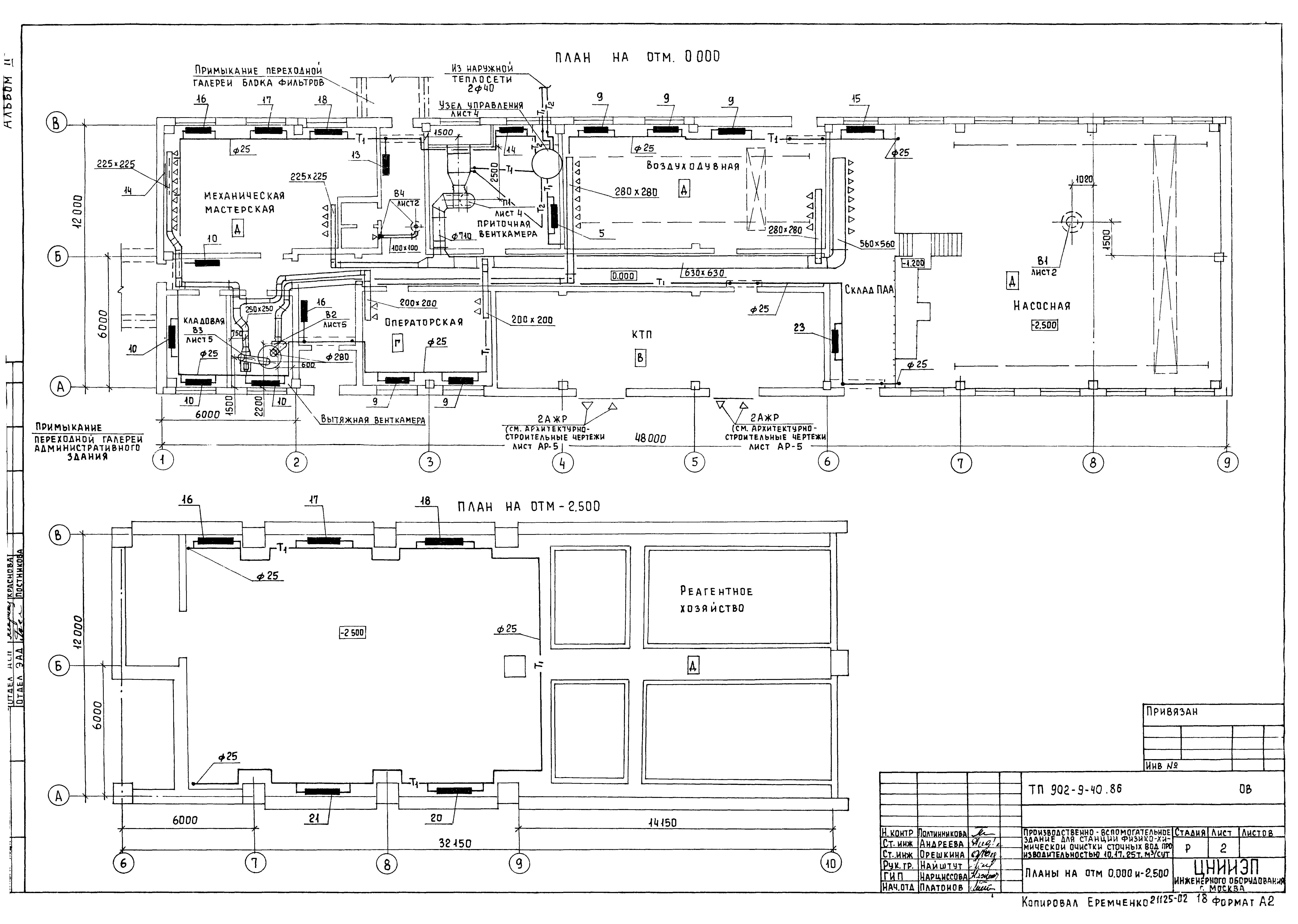
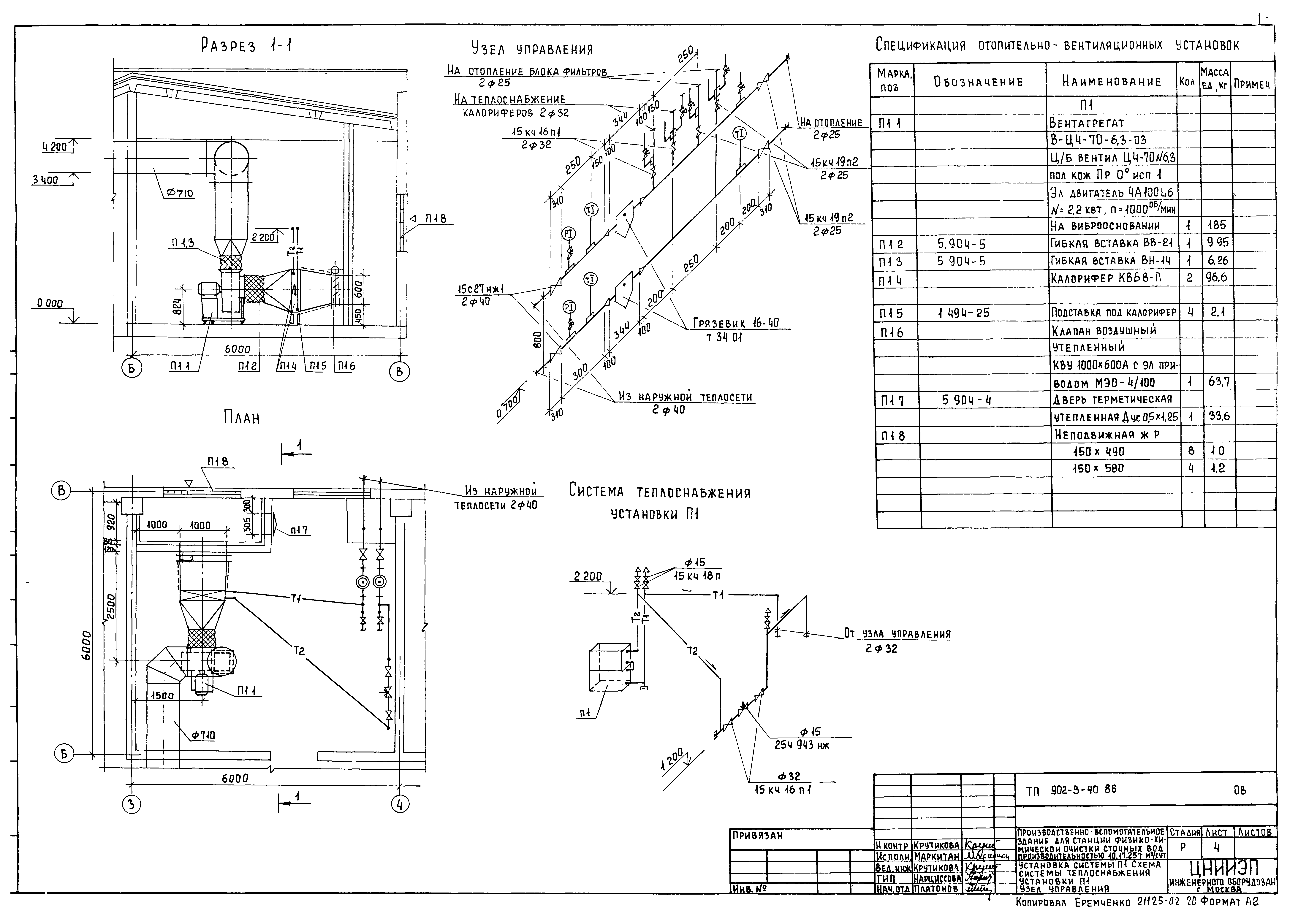
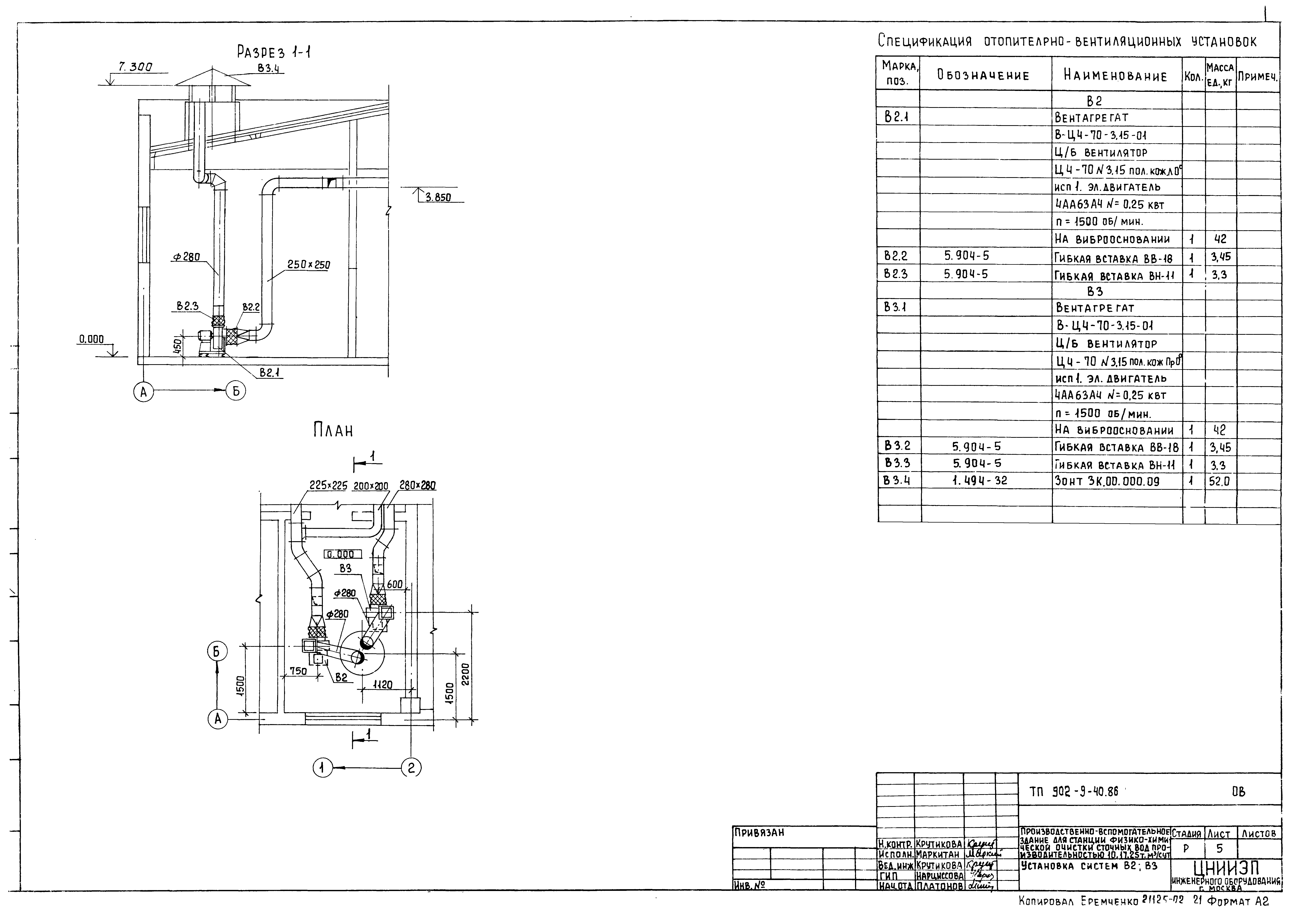
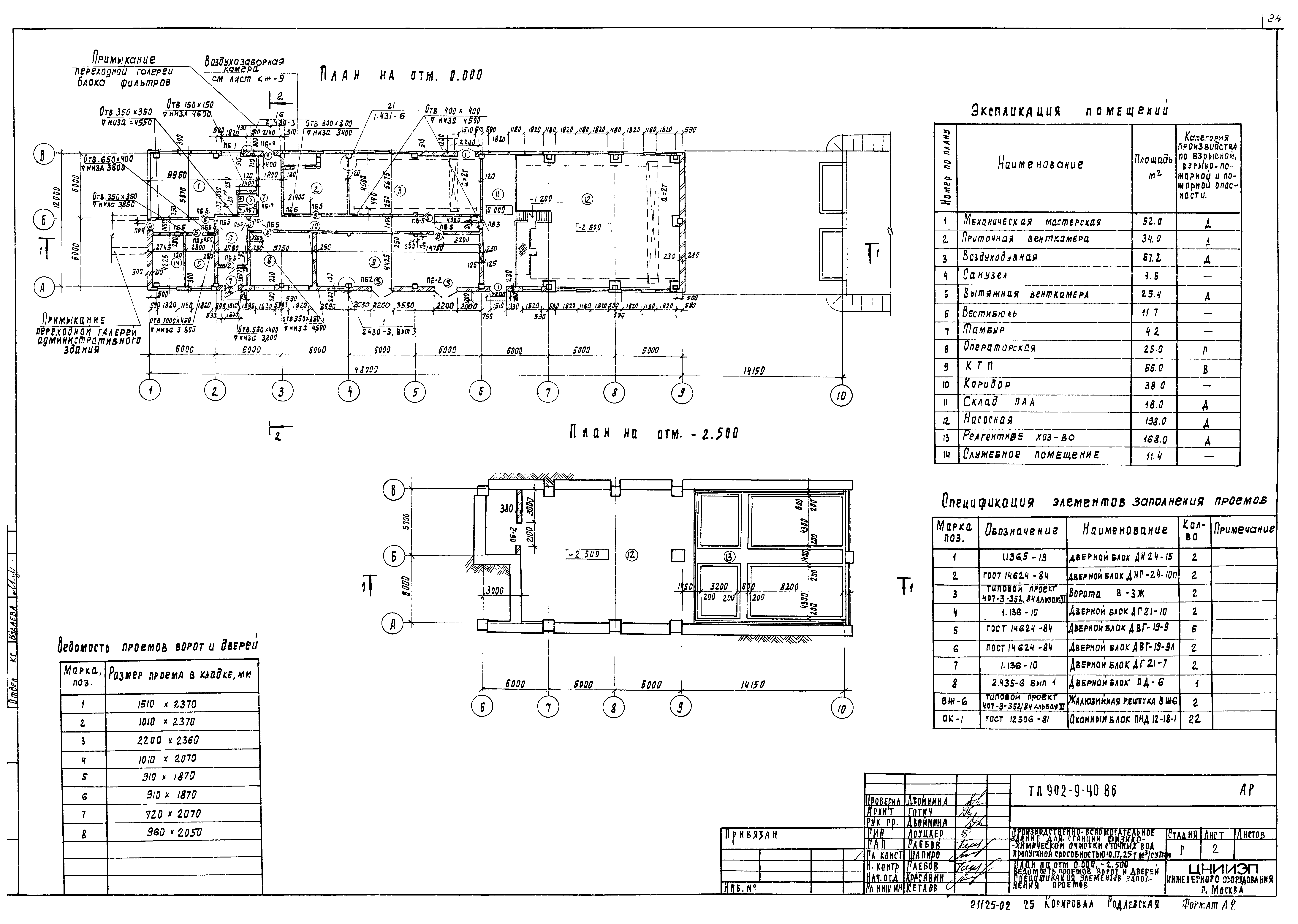
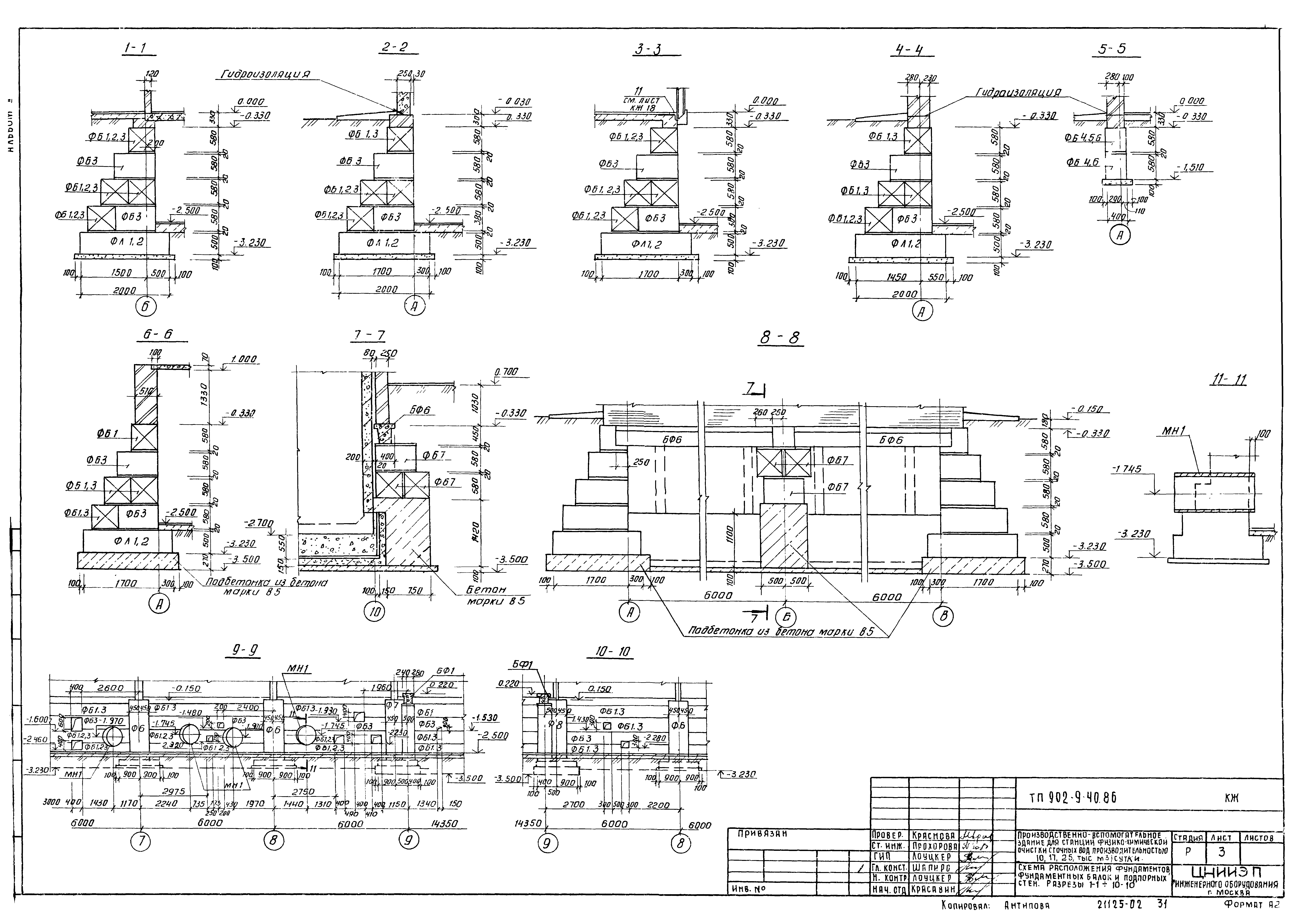
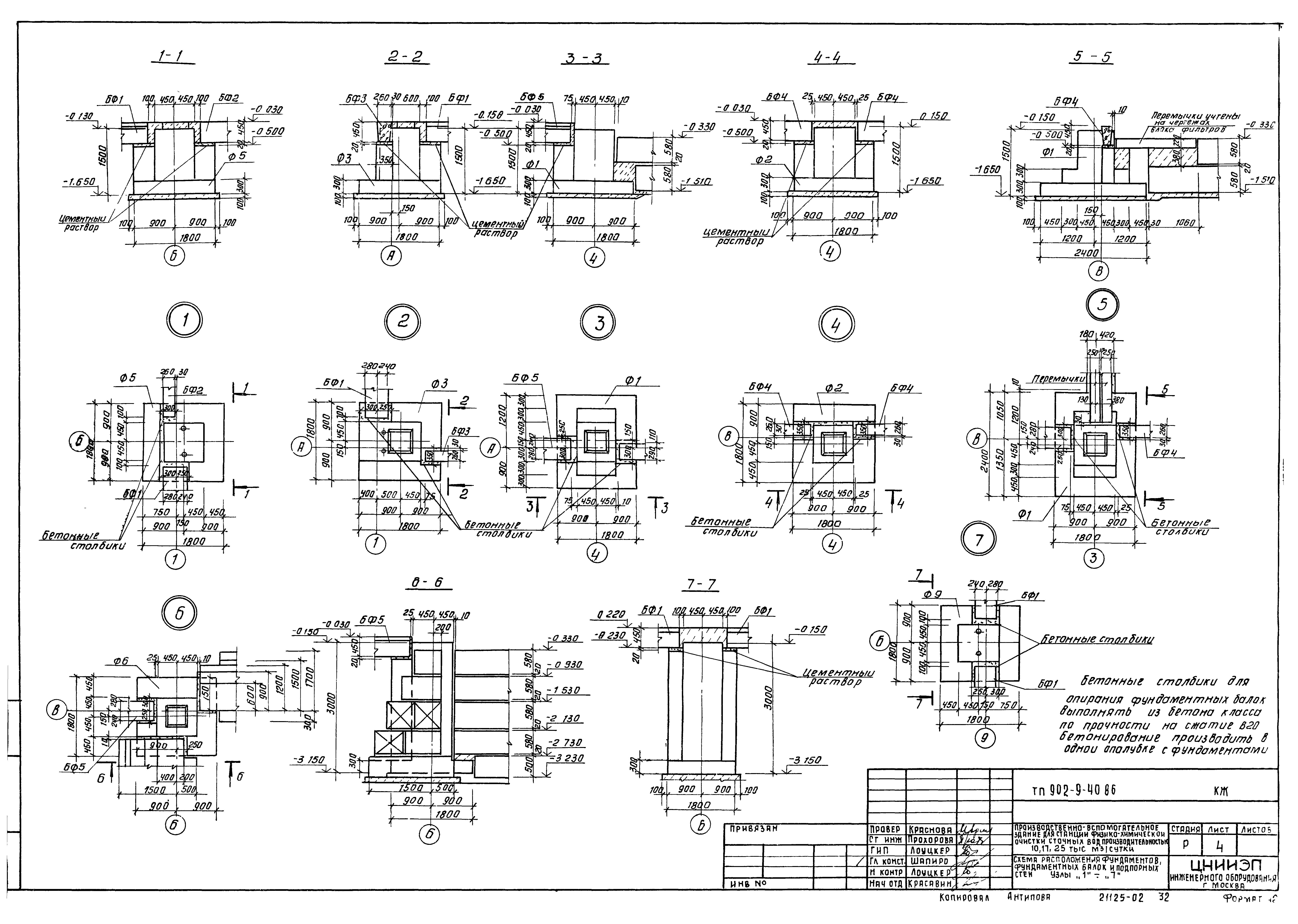
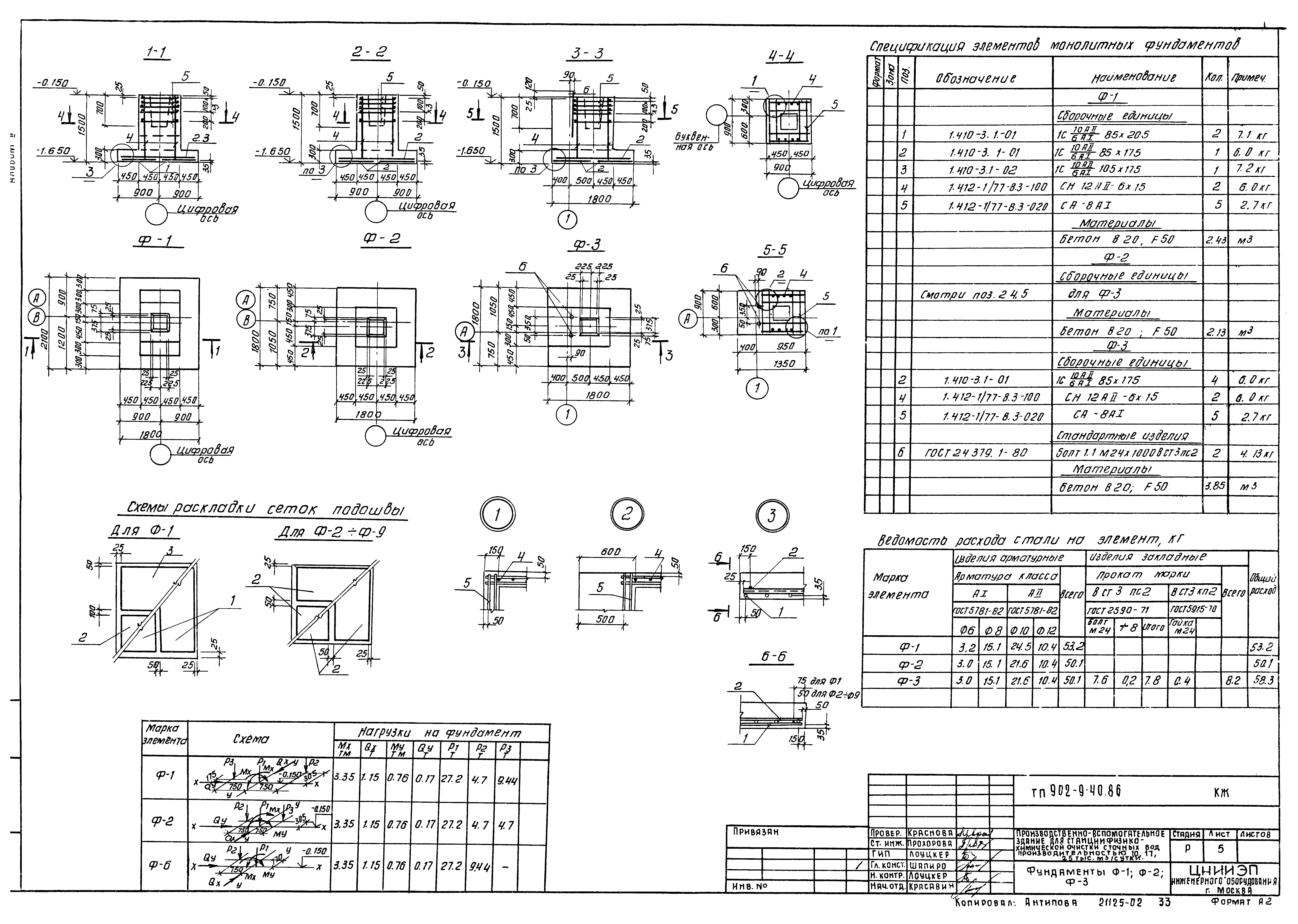
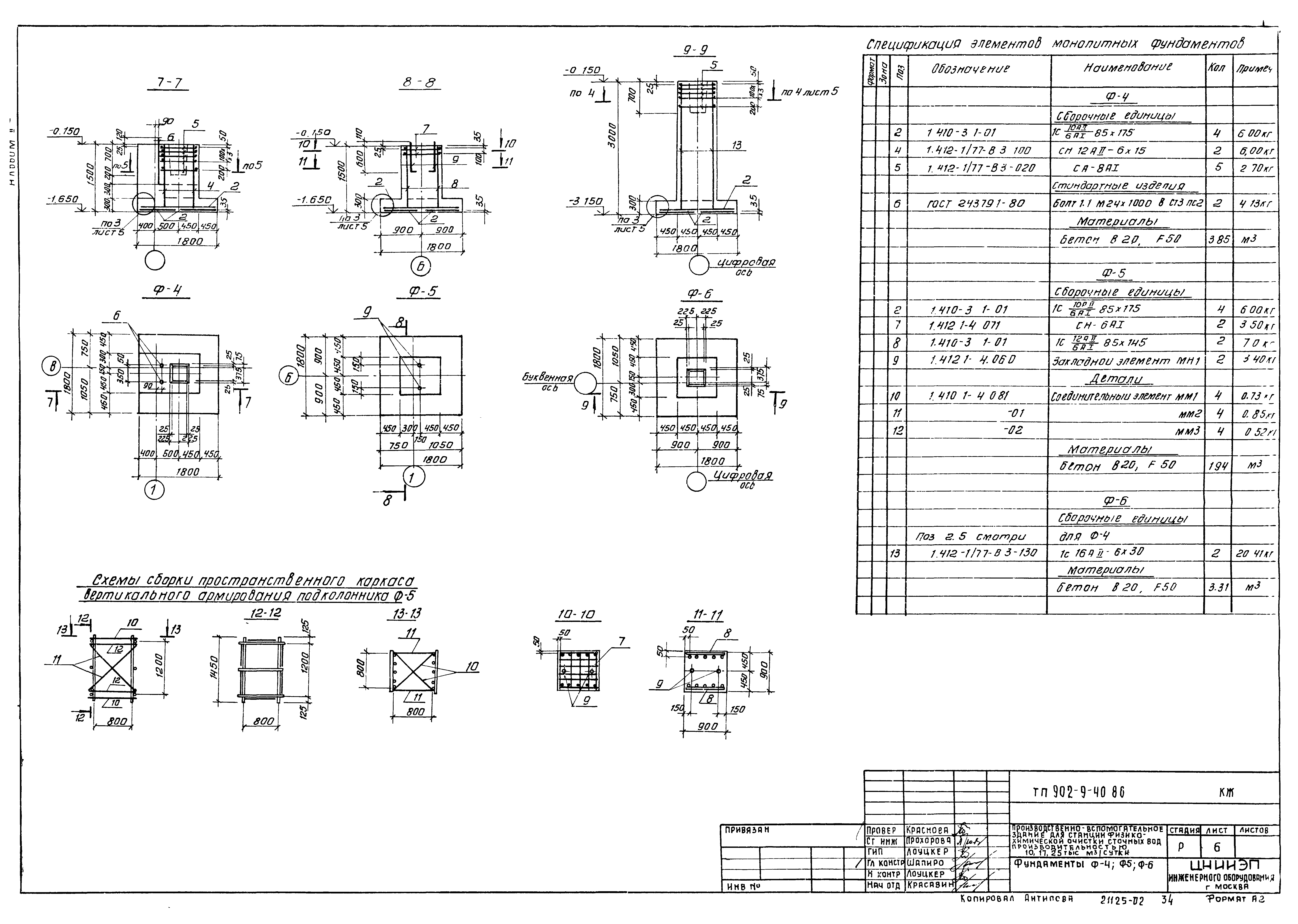
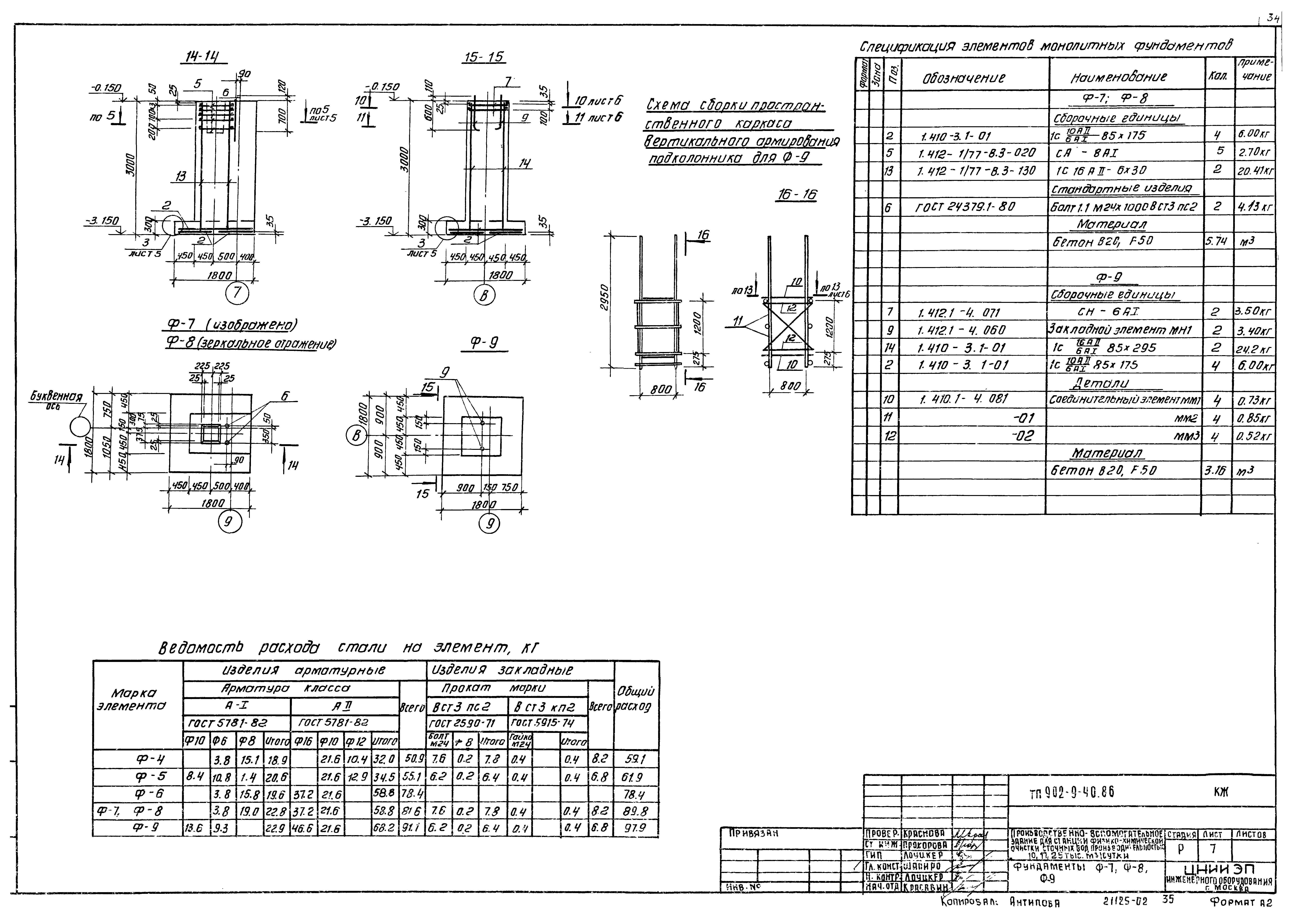
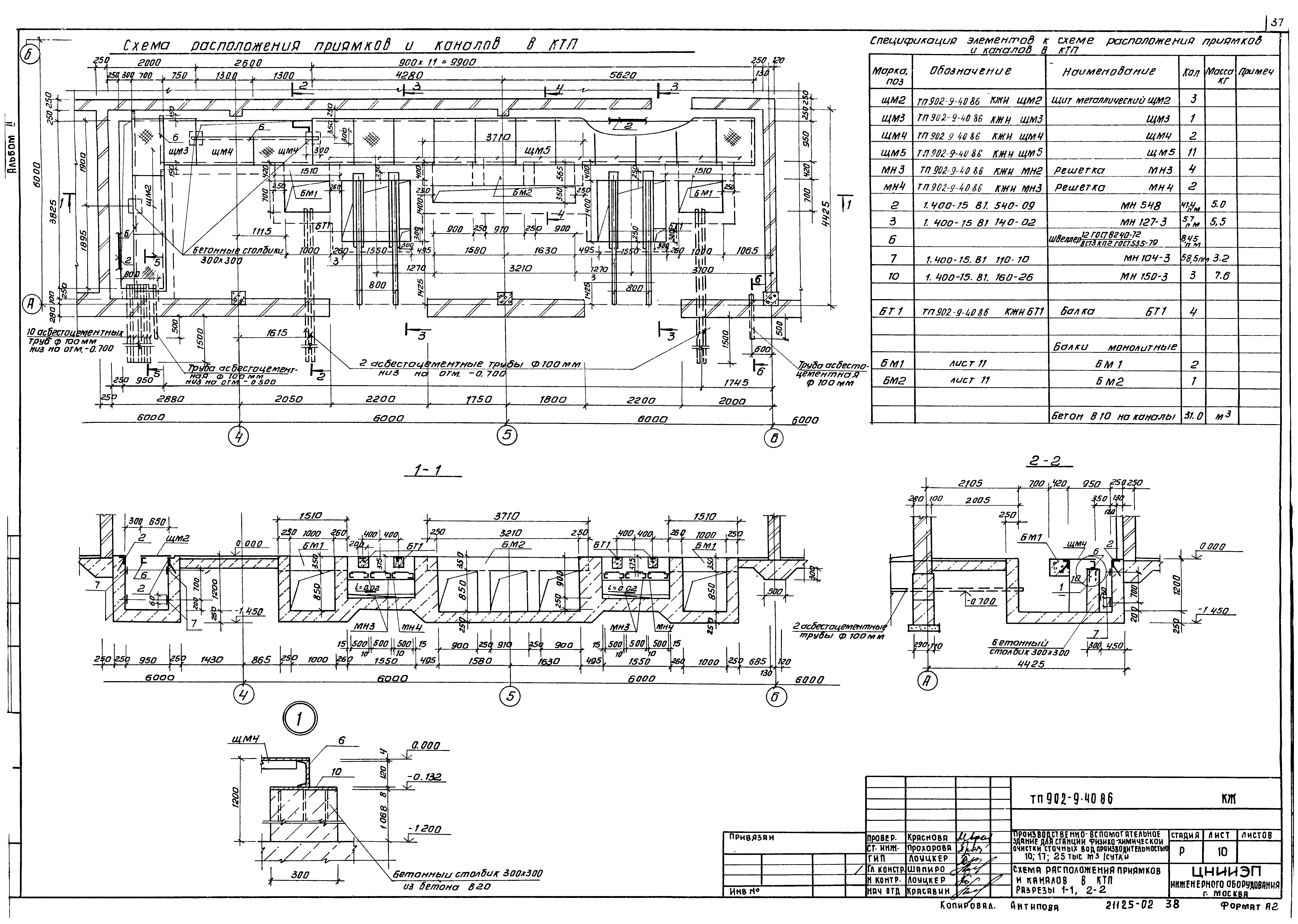
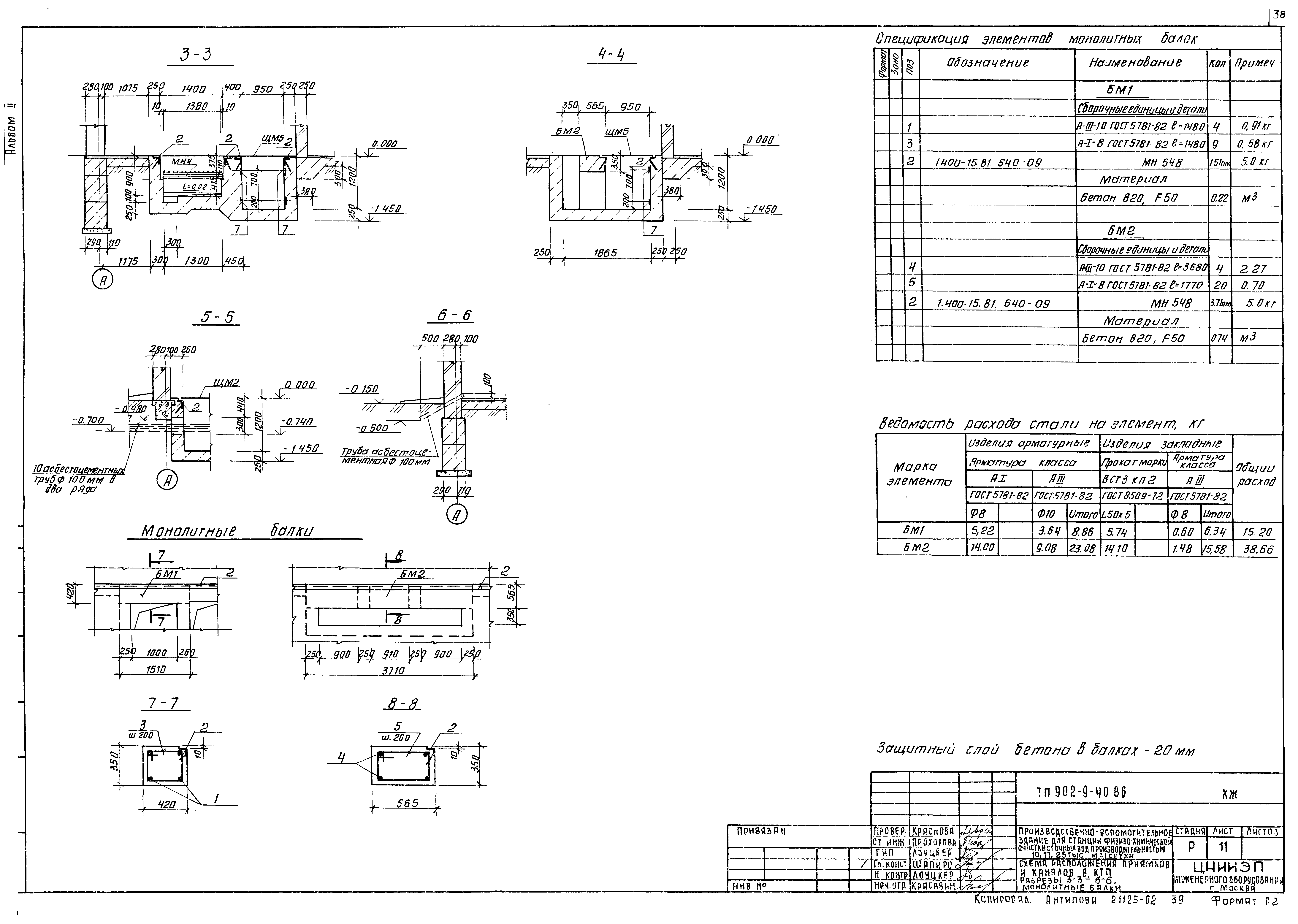
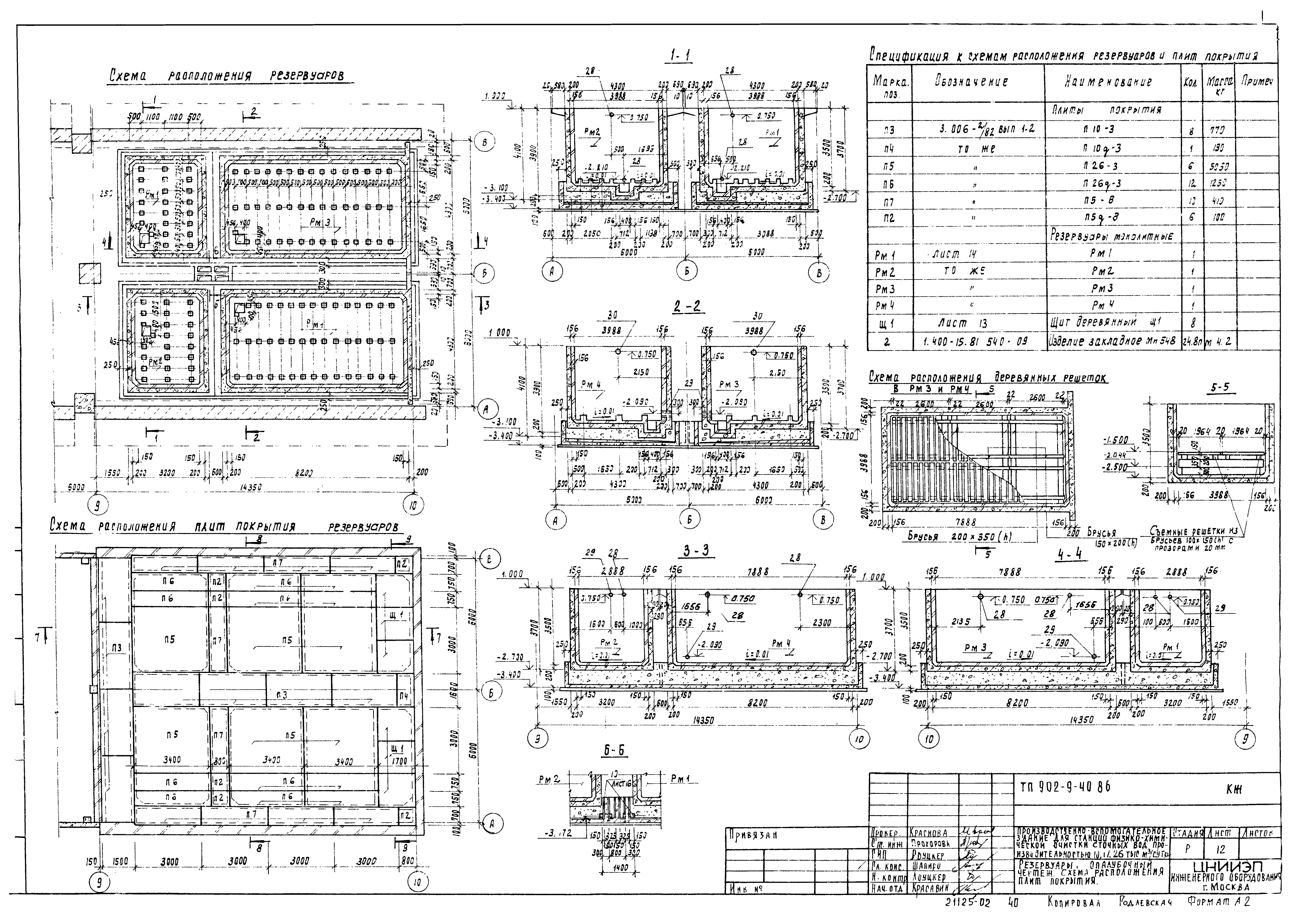
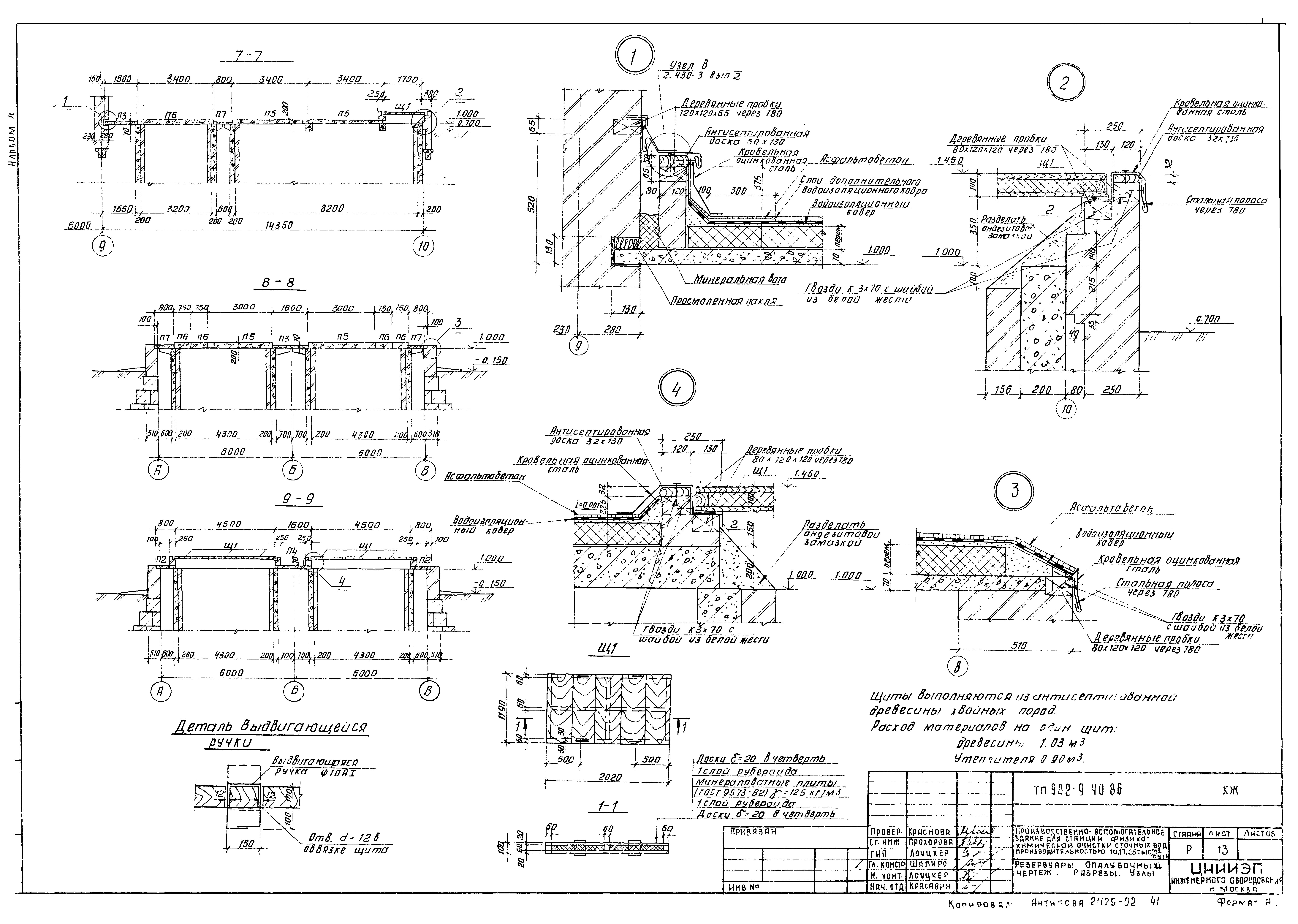
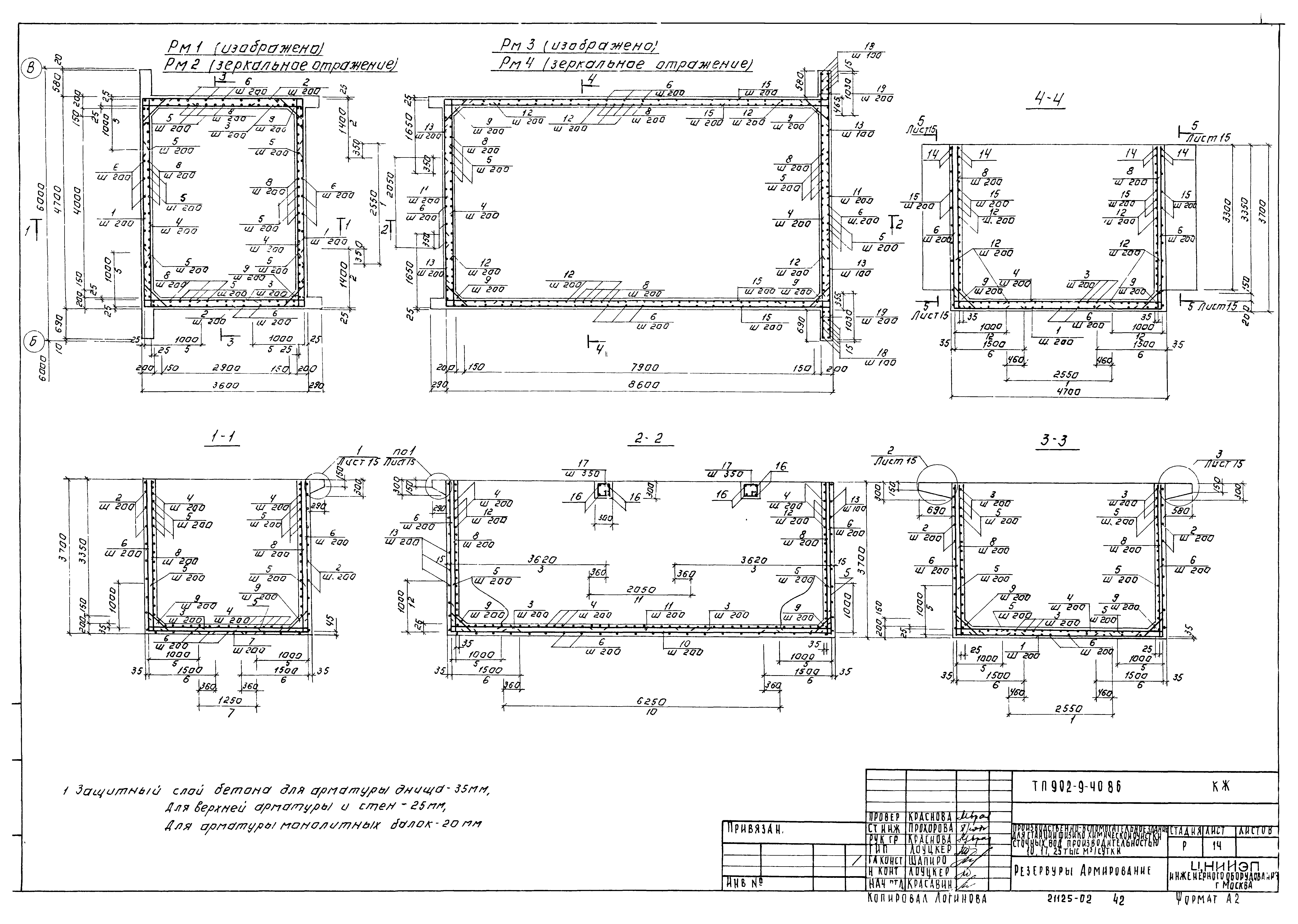
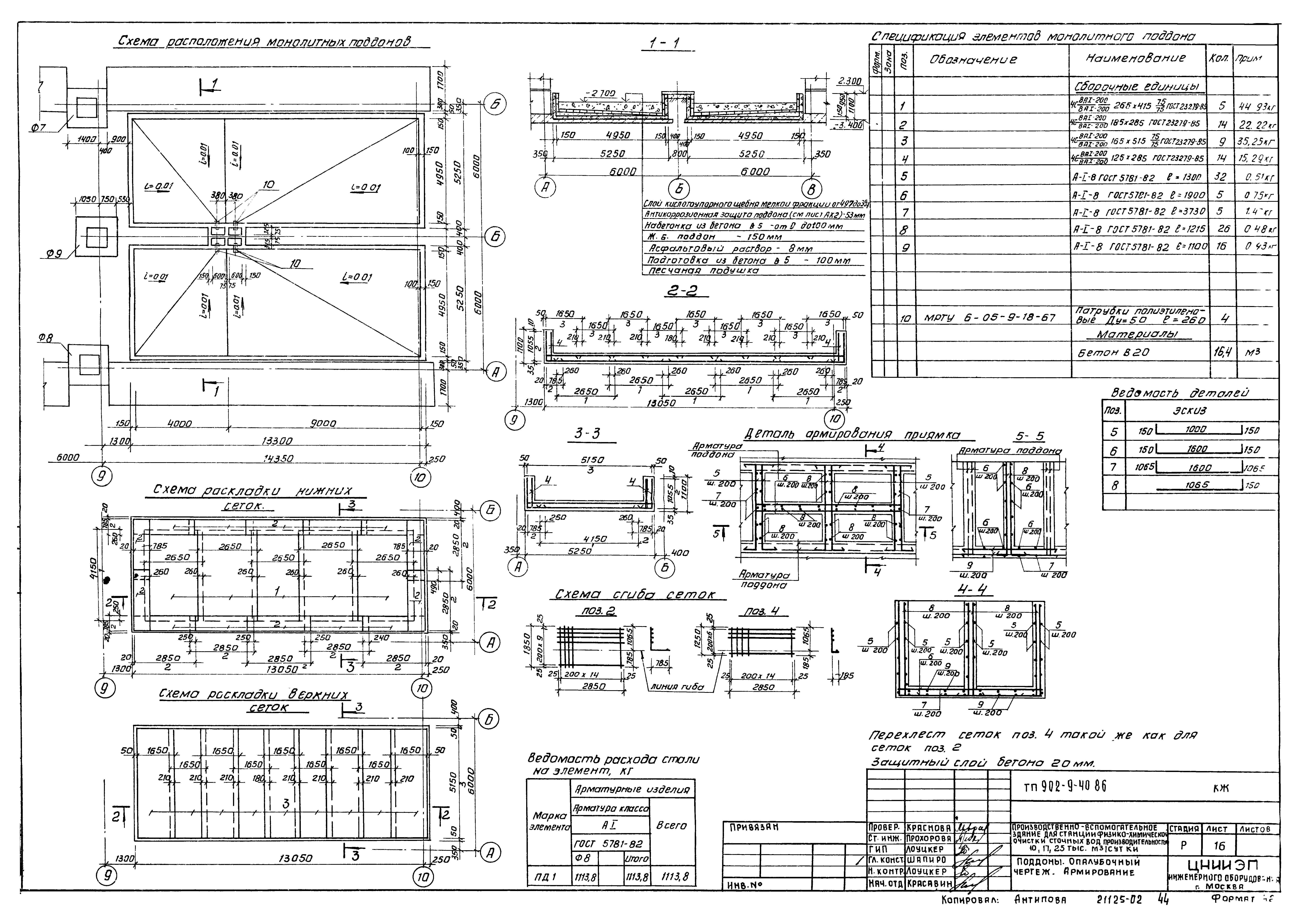
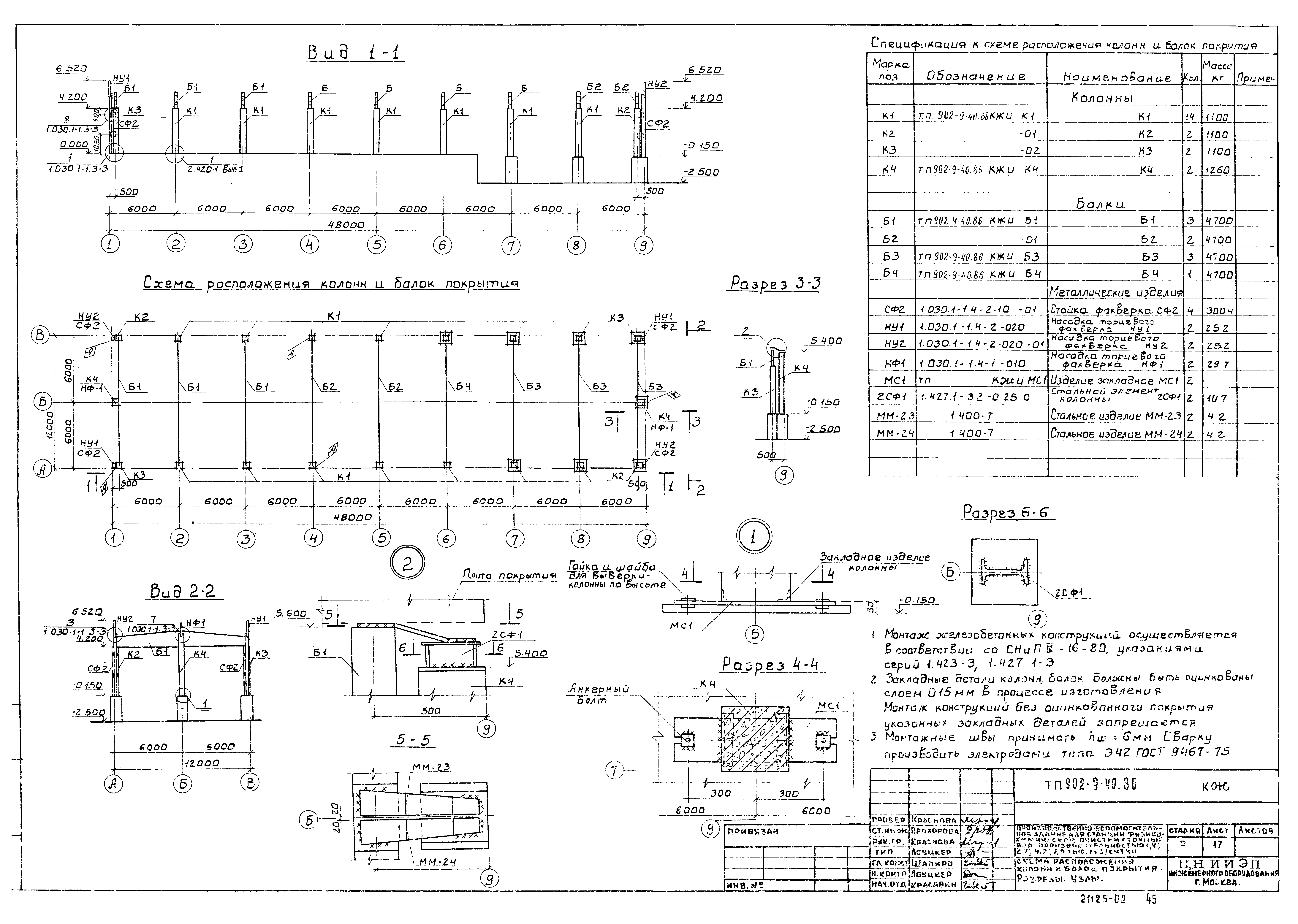
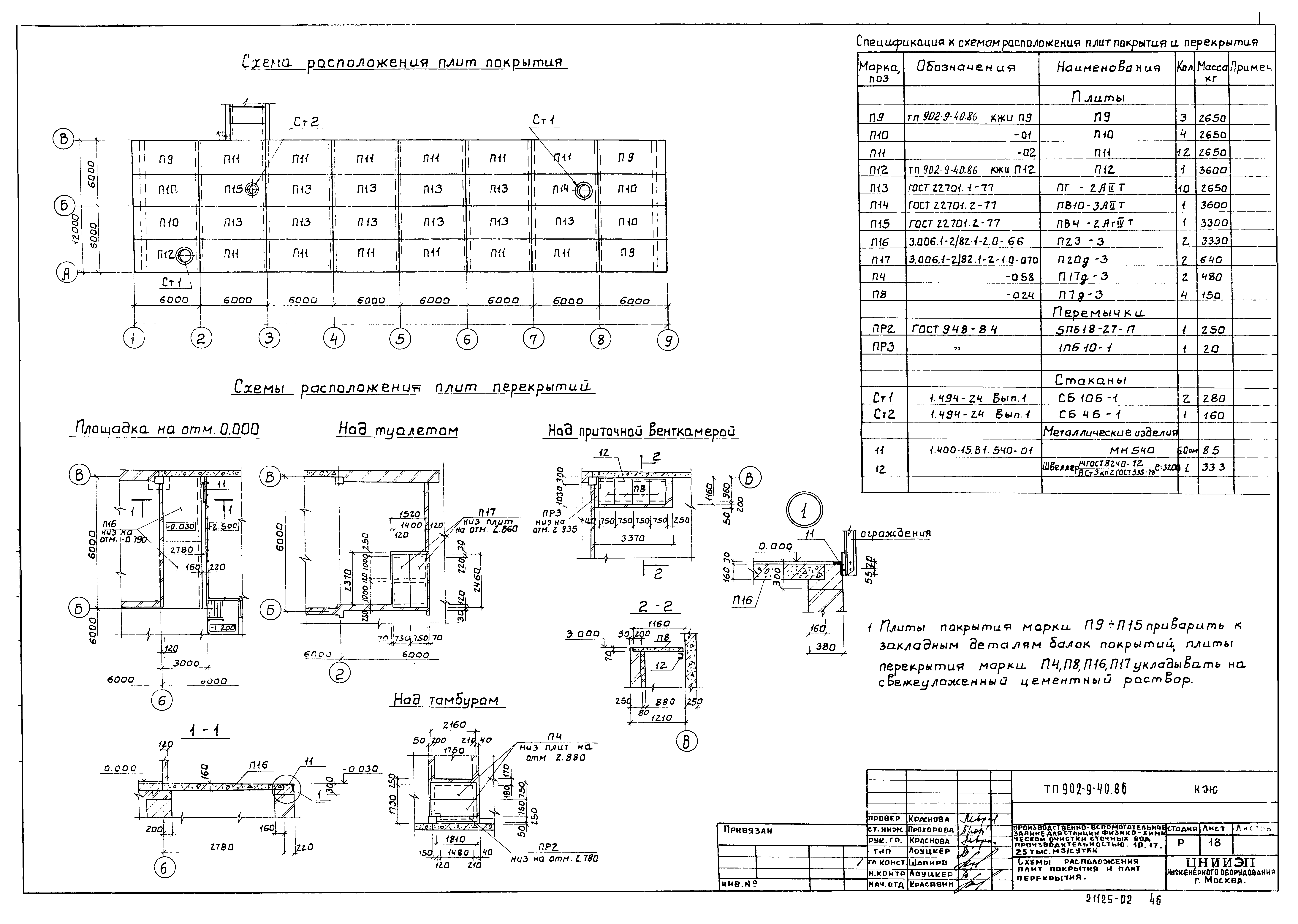
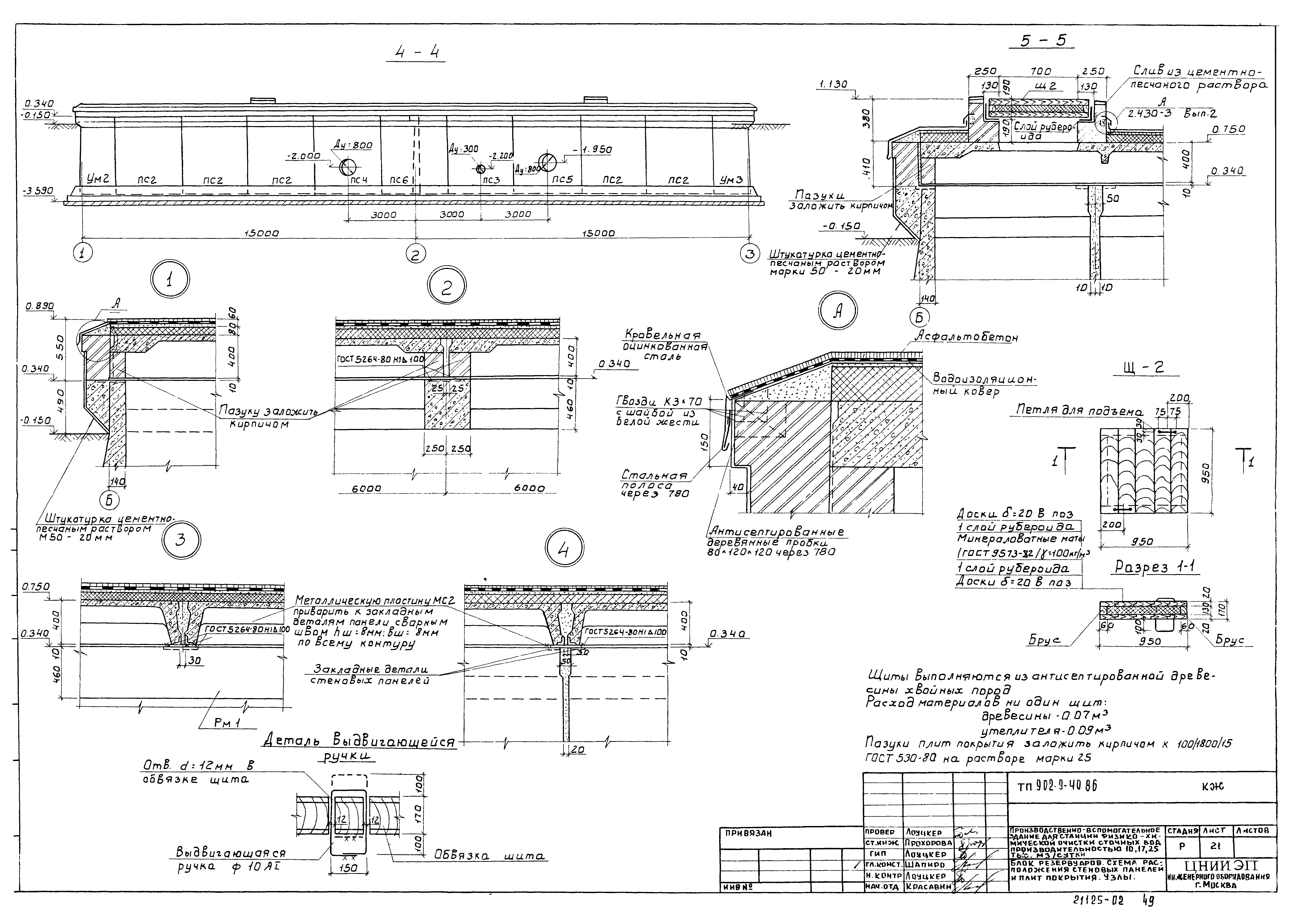
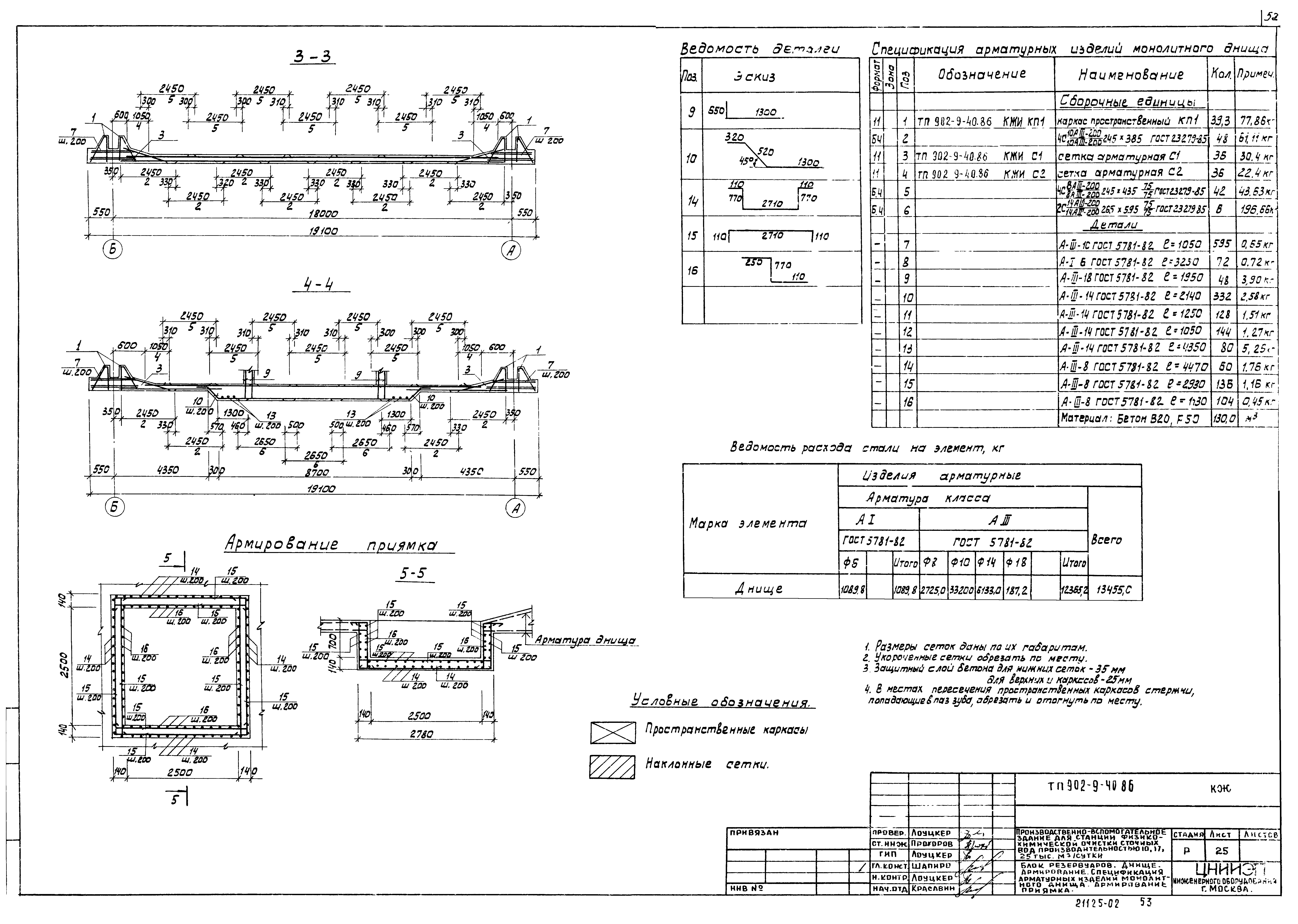
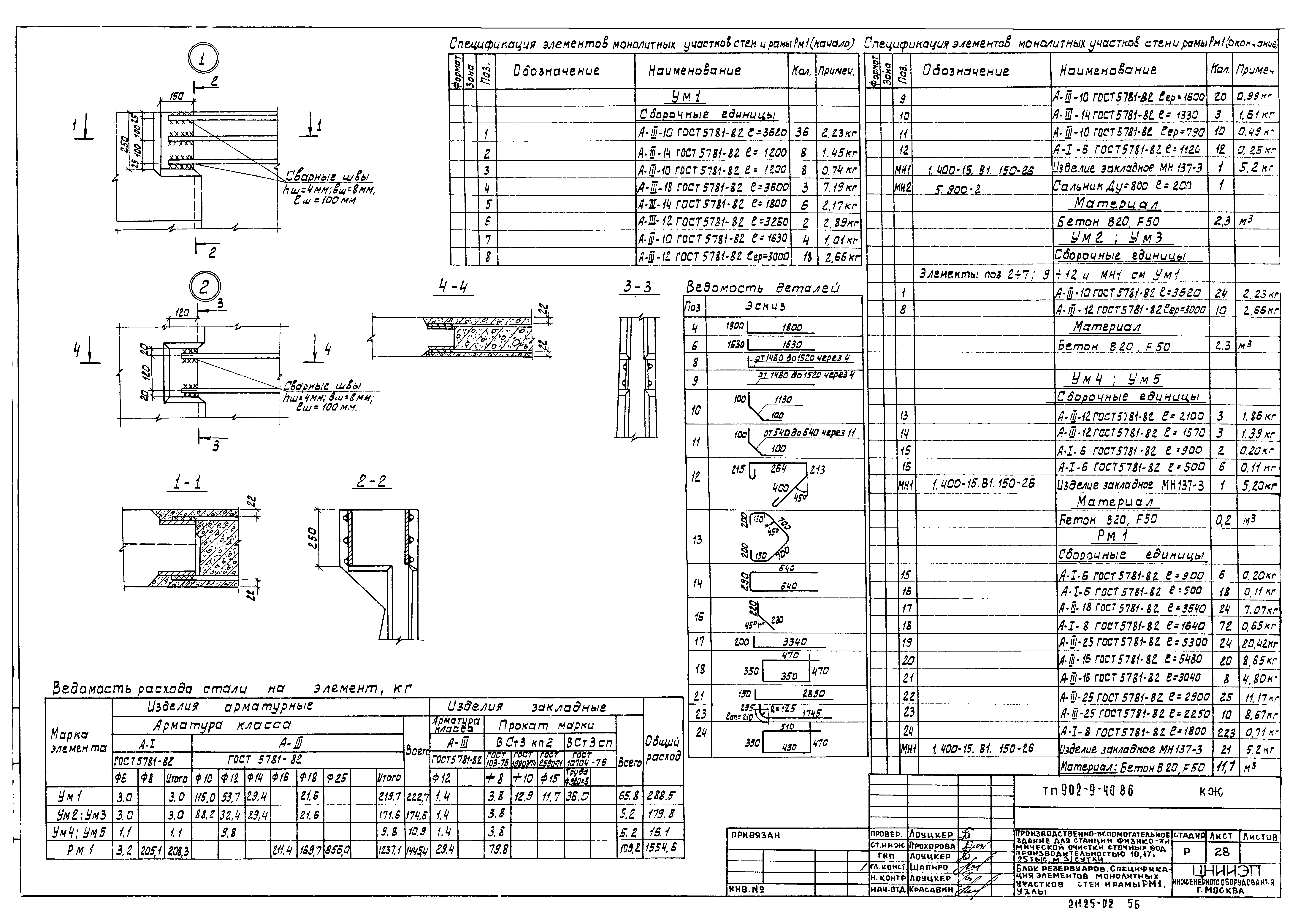
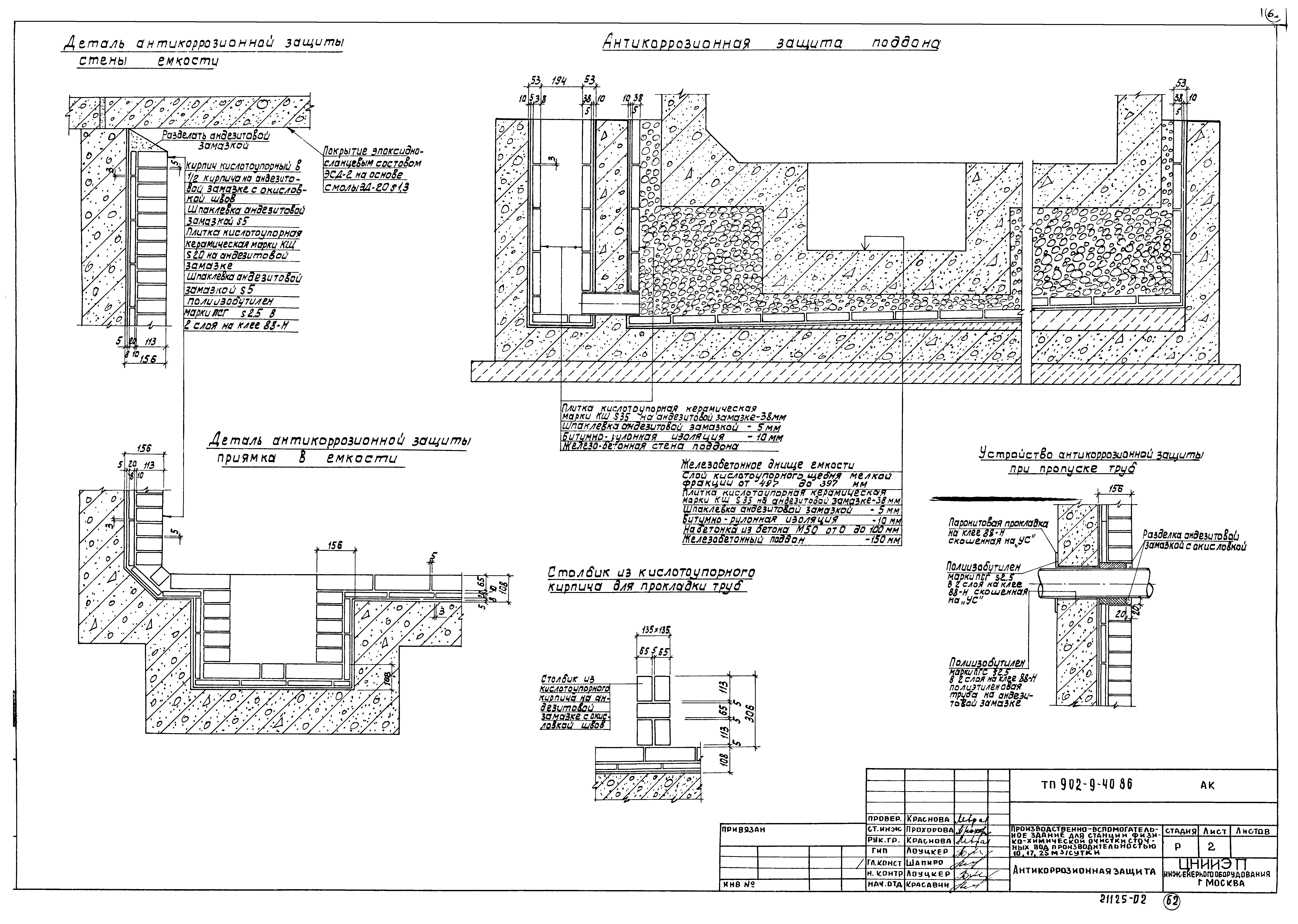
| Оглавление: | ТП 902-9-40.86 Содержание альбома ТП 902-9-40.86 Технологическая часть ТП 902-9-40.86 ТХ-1 Общие данные ТП 902-9-40.86 ТХ-2 Общеувязочный план ТП 902-9-40.86 ТХ-3 Насосная. План в осях 6-9 ТП 902-9-40.86 ТХ-4 Насосная. План в осях 9-10 ТП 902-9-40.86 ТХ-5 Воздуховодная. План. Разрезы 1-1;2-2 ТП 902-9-40.86 ТХ-6 Насосная. Разрезы 1-1;2-2;3-3 ТП 902-9-40.86 ТХ-7 Насосная. Разрезы 4-4;5-5;6-6;7-7 ТП 902-9-40.86 ТХ-8 Аксономитрические схемы трубопроводов АО;1Х2 ТП 902-9-40.86 ТХ-9 Аксономитрические схемы трубопроводов В3;2Х2;К1 ТП 902-9-40.86 ТХ-10 Аксономитрические схемы трубопроводов М7;М8;1В3;Х3 ТП 902-9-40.86 ТХ-11 Блок резервуаров. План. Разрезы 1-1;2-2;3-3 ТП 902-9-40.86 ТХН-1 Подвеска для мешков. Эскизный чертеж общего вида ТП 902-9-40.86 ВК Водопровод и канализация ТП 902-9-40.86 ВК-1 Общие данные. Внутренний водопровод, канализация и водостоки. План на отм. 0.000. План кровли. Схемы В1;К1;К2-е1;К2-2 ТП 902-9-40.86 ОВ Отопление и вентиляция ТП 902-9-40.86 ОВ-1 Общие данные ТП 902-9-40.86 ОВ-2 Планы на отм. 0.000 и -2.500 ТП 902-9-40.86 ОВ-3 Схема системы отопления. Схемы систем вентиляции П1;В1-В4 ТП 902-9-40.86 ОВ-4 Установка систем П1. Схема системы теплоснабжения установки П1. Узел управления ТП 902-9-40.86 ОВ-5 Установка систем В2;В3 ТП 902-9-40.86 ОВН-1 Конфузор ТП 902-9-40.86 ОВН-2 Переход ТП 902-9-40.86 ОВН-3 Воздуховод из асбестоцементных листов. Узлы соединений ТП 902-9-40.86 ОВН-4 Конструкция изоляции трубопроводов ТП 902-9-40.86 АР Архитектурные решения ТП 902-9-40.86 АР-1 Общие данные ТП 902-9-40.86 АР-2 План на отм. 0.000;-2.500. Ведомость проемов ворот и дверей. Спецификация элементов заполнения проемов ТП 902-9-40.86 АР-3 Разрезы 1-1;2-2. Фасады А-В;В-А ТП 902-9-40.86 АР-4 Фасады 1-9;9-1. Схема заполнения оконных проемов ТП 902-9-40.86 АР-5 План кровли. План полов. Экспликация полов. Ведомость и спецификация перемычек. Ведомость отделки помещений ТП 902-9-40.86 КЖ Конструкции железобетонные ТП 902-9-40.86 КЖ-1 Общие данные ТП 902-9-40.86 КЖ-2 Схема расположения фундаментов, фундаментных балок и подпорных стен ТП 902-9-40.86 КЖ-3 Схема расположения фундаментов, фундаментных балок и подпорных стен. Разрезы 1-1÷10-10 ТП 902-9-40.86 КЖ-4 Схема расположения фундаментов, фундаментных балок и подпорных стен. Узлы "1"-"7" ТП 902-9-40.86 КЖ-5 Фундаменты Ф-1;Ф-2;Ф-3 ТП 902-9-40.86 КЖ-6 Фундаменты Ф-4;Ф-5;Ф-6 ТП 902-9-40.86 КЖ-7 Фундаменты Ф-7;Ф-8;Ф-9 ТП 902-9-40.86 КЖ-8 Схема расположения фундаментов под оборудование на отм. -2.500 ТП 902-9-40.86 КЖ-9 Схема расположения фундаментов под оборудование, каналов и приямков на отм. 0.000. Венткамеры ТП 902-9-40.86 КЖ-10 Схема расположения приямков и каналов в КТП. Разрезы 1-1;2-2 ТП 902-9-40.86 КЖ-11 Схема расположения приямков и каналов в КТП. Разрезы 3-3÷6-6. Монолитные балки ТП 902-9-40.86 КЖ-12 Резервуары. Опалубочный чертеж. Схема расположения плит покрытия ТП 902-9-40.86 КЖ-13 Резервуары. Опалубочный чертеж. Разрезы. Узлы ТП 902-9-40.86 КЖ-14 Резервуар. Армирование ТП 902-9-40.86 КЖ-15 Резервуары. Армирование. Узлы. Спецификация элементов монолитных резервуаров ТП 902-9-40.86 КЖ-16 Поддоны. Опалубочный чертеж. Армирование ТП 902-9-40.86 КЖ-17 Схема расположения колонн и балок покрытия. Разрезы. Узлы ТП 902-9-40.86 КЖ-18 Схема расположения плит покрытия и перекрытия ТП 902-9-40.86 КЖ-19 Схема расположения стеновых панелей. Фрагменты ТП 902-9-40.86 КЖ-20 Блок резервуаров. Схема расположения стеновых панелей и плит покрытия. Разрезы ТП 902-9-40.86 КЖ-21 Блок резервуаров. Схема расположения стеновых панелей и плит покрытия. Узлы ТП 902-9-40.86 КЖ-22 Блок резервуаров. Днище. Опалубочный чертеж. Разрезы. Узлы ТП 902-9-40.86 КЖ-23 Блок резервуаров. Днище. Армирование. Схема расположения нижних сеток. Узлы ТП 902-9-40.86 КЖ-24 Блок резервуаров. Днище. Армирование. Схема расположения верхних сеток ТП 902-9-40.86 КЖ-25 Блок резервуаров. Днище. Армирование. Спецификация арматурных изделий монолитного днища. Армирование приямка ТП 902-9-40.86 КЖ-26 Блок резервуаров. Монолитные участки стен. Опалубочный чертеж. Армирование ТП 902-9-40.86 КЖ-27 Блок резервуаров. Рама РМ1. Опалубочный чертеж. Армирование ТП 902-9-40.86 КЖ-28 Блок резервуаров. Спецификация элементов монолитных участков стен и рамы Рм1. Узлы ТП 902-9-40.86 КМ Конструкции металлические ТП 902-9-40.86 КМ-1 Общие данные (начало). Техническая спецификация стали ТП 902-9-40.86 КМ-2 Общие данные (продолжение). Техническая спецификация стали на типовые конструкции ТП 902-9-40.86 КМ-3 Общие данные (окончание). Ведомость металлоконструкций по видам профилей ТП 902-9-40.86 КМ-4 Схема расположения подвесных путей ТП 902-9-40.86 КМ-5 Схема расположения металлической площадки на отм.-1.200м ТП 902-9-40.86 АК-1 Общие данные ТП 902-9-40.86 АК-2 Антикоррозионная защита |
| Разработан: | ЦНИИЭП |
| Утверждён: | 05.11.1984 Госгражданстрой (Gosgrazhdanstroy 320) |






























































