Скачать Типовой проект 903-2-19.83 Альбом 5.2. Генеральный план. Инженерные сети (вариант с металлическими резервуарами). Части: тепломеханическая, архитектурно-строительная, автоматизация, электротехническая, водопровод и канализация, тепловые сетиДата актуализации: 01.01.2021 Типовой проект 903-2-19.83
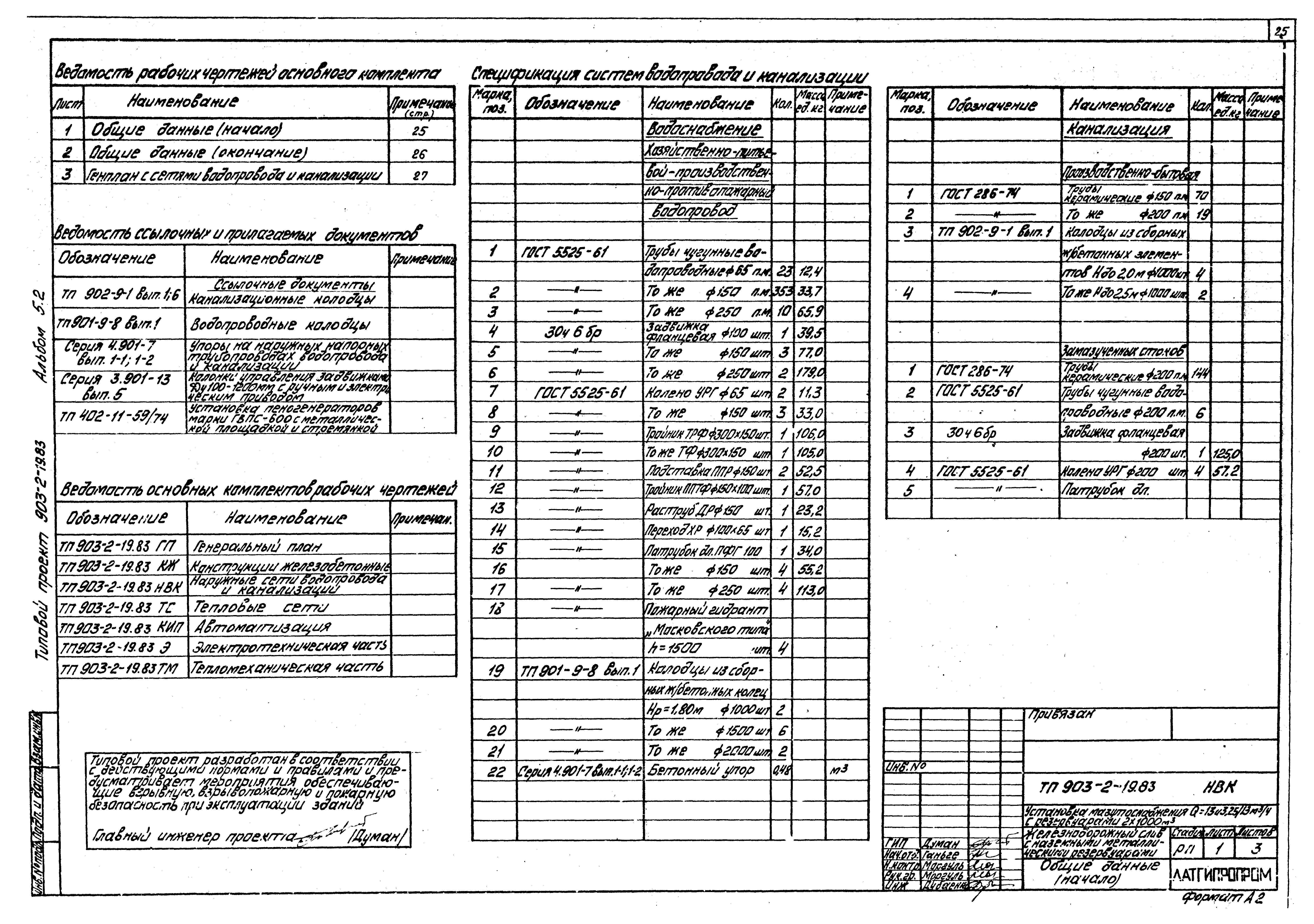
Альбом 5.2. Генеральный план. Инженерные сети (вариант с металлическими резервуарами). Части: тепломеханическая, архитектурно-строительная, автоматизация, электротехническая, водопровод и канализация, тепловые сети| Обозначение: | Типовой проект 903-2-19.83 | | Обозначение англ: | 903-2-19.83 | | Статус: | не действует | | Название рус.: | Альбом 5.2. Генеральный план. Инженерные сети (вариант с металлическими резервуарами). Части: тепломеханическая, архитектурно-строительная, автоматизация, электротехническая, водопровод и канализация, тепловые сети | | Дата добавления в базу: | 01.09.2013 | | Дата актуализации: | 01.01.2021 | | Дата введения: | 01.04.1983 | | Разработан: | Латгипропром
| | Утверждён: | 07.12.1982 Латгипропром (249)
| | Чем заменён: | |
                              
|