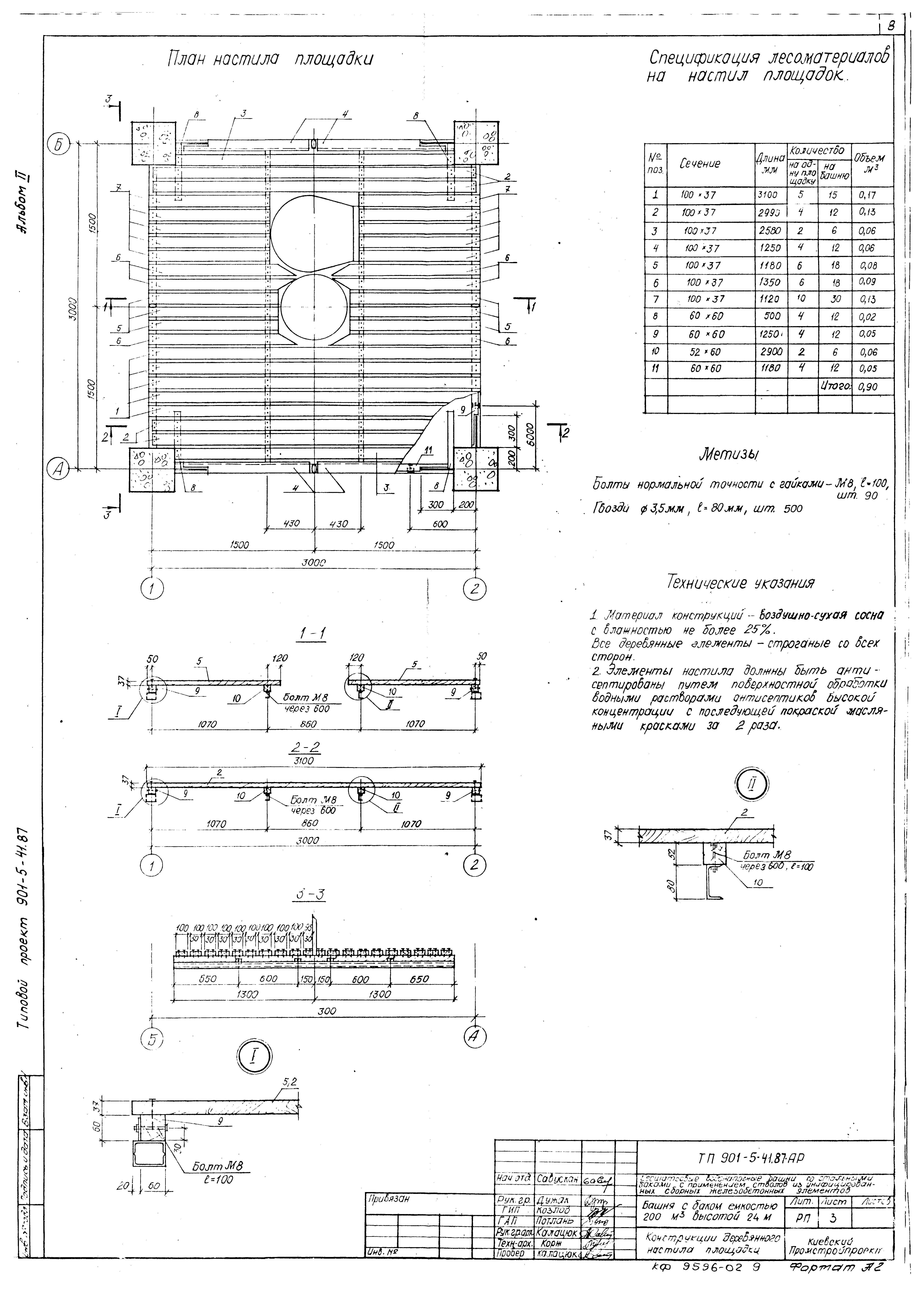
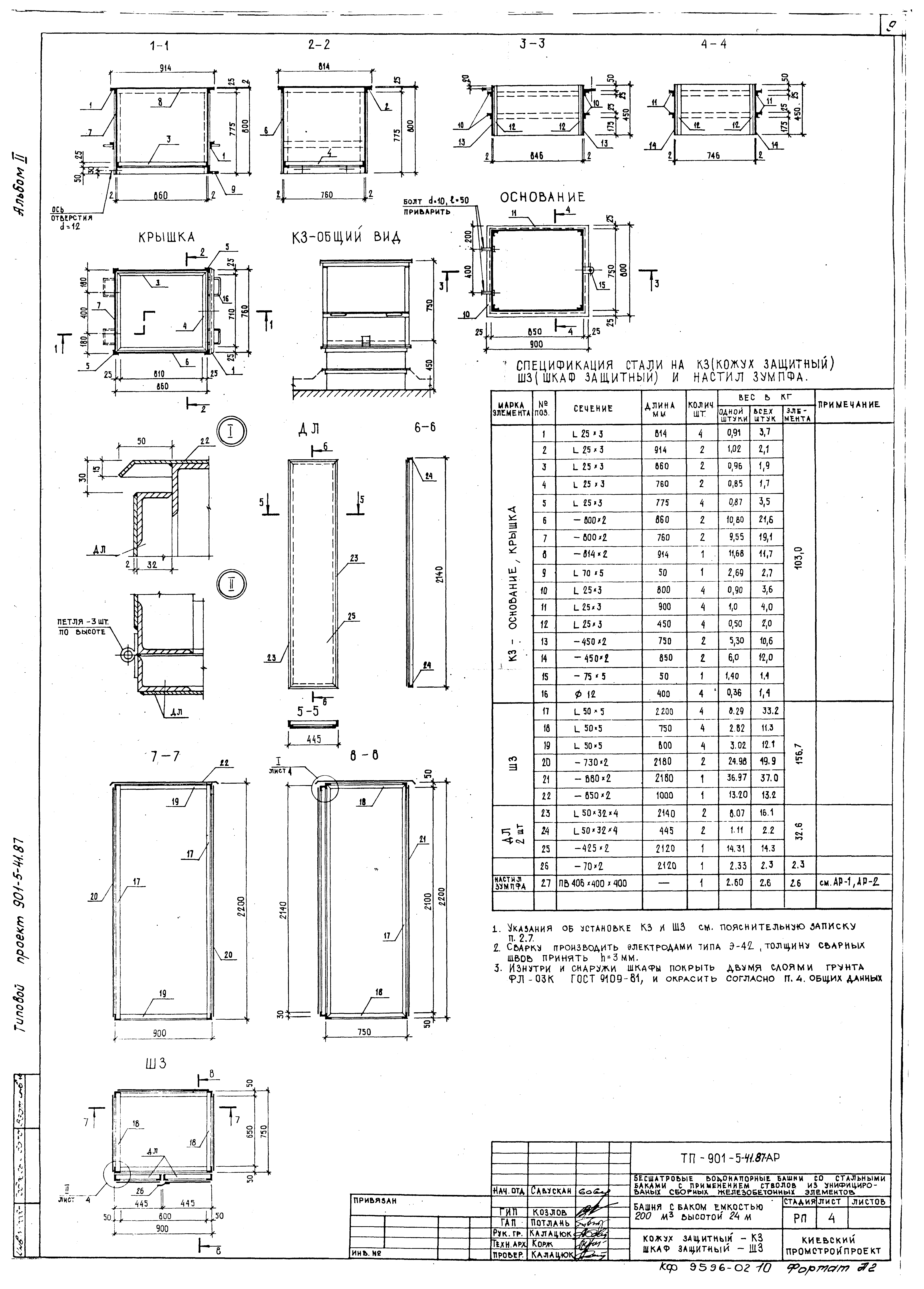
Скачать Типовой проект 901-5-41.87 Альбом II. Архитектурно-строительная частьДата актуализации: 01.01.2021
|
| Обозначение: | Типовой проект 901-5-41.87 |
| Обозначение англ: | 901-5-41.87 |
| Статус: | не определен законодательством |
| Название рус.: | Альбом II. Архитектурно-строительная часть |
| Дата добавления в базу: | 01.09.2013 |
| Дата актуализации: | 01.01.2021 |
| Дата введения: | 27.05.1986 |
| Дата окончания срока действия: | 30.06.2003 |
| Разработан: | Киевский Промстройпроект |
| Утверждён: | 29.04.1986 Госстрой СССР (Государственный комитет Совета Министров СССР по делам строительства) (USSR Gosstroy А4-25) |






















