Скачать Типовой проект 903-1-199 Альбом 5.14. Котельная. Архитектурно-строительная часть. Нетиповые изделияДата актуализации: 01.01.2021
|
| Обозначение: | Типовой проект 903-1-199 |
| Обозначение англ: | 903-1-199 |
| Статус: | действует |
| Название рус.: | Альбом 5.14. Котельная. Архитектурно-строительная часть. Нетиповые изделия |
| Дата добавления в базу: | 01.09.2013 |
| Дата актуализации: | 01.01.2021 |
| Дата введения: | 01.07.1984 |
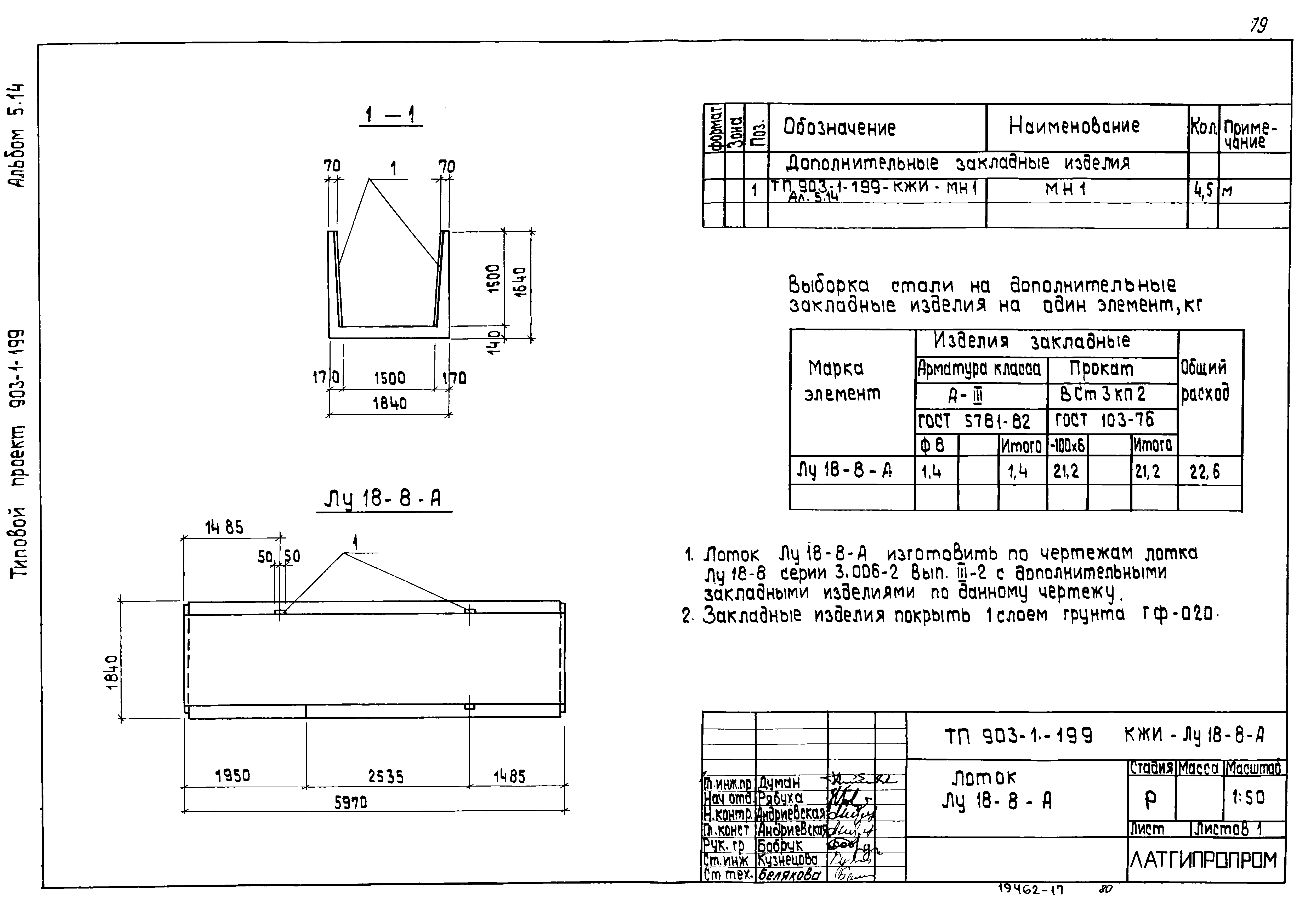
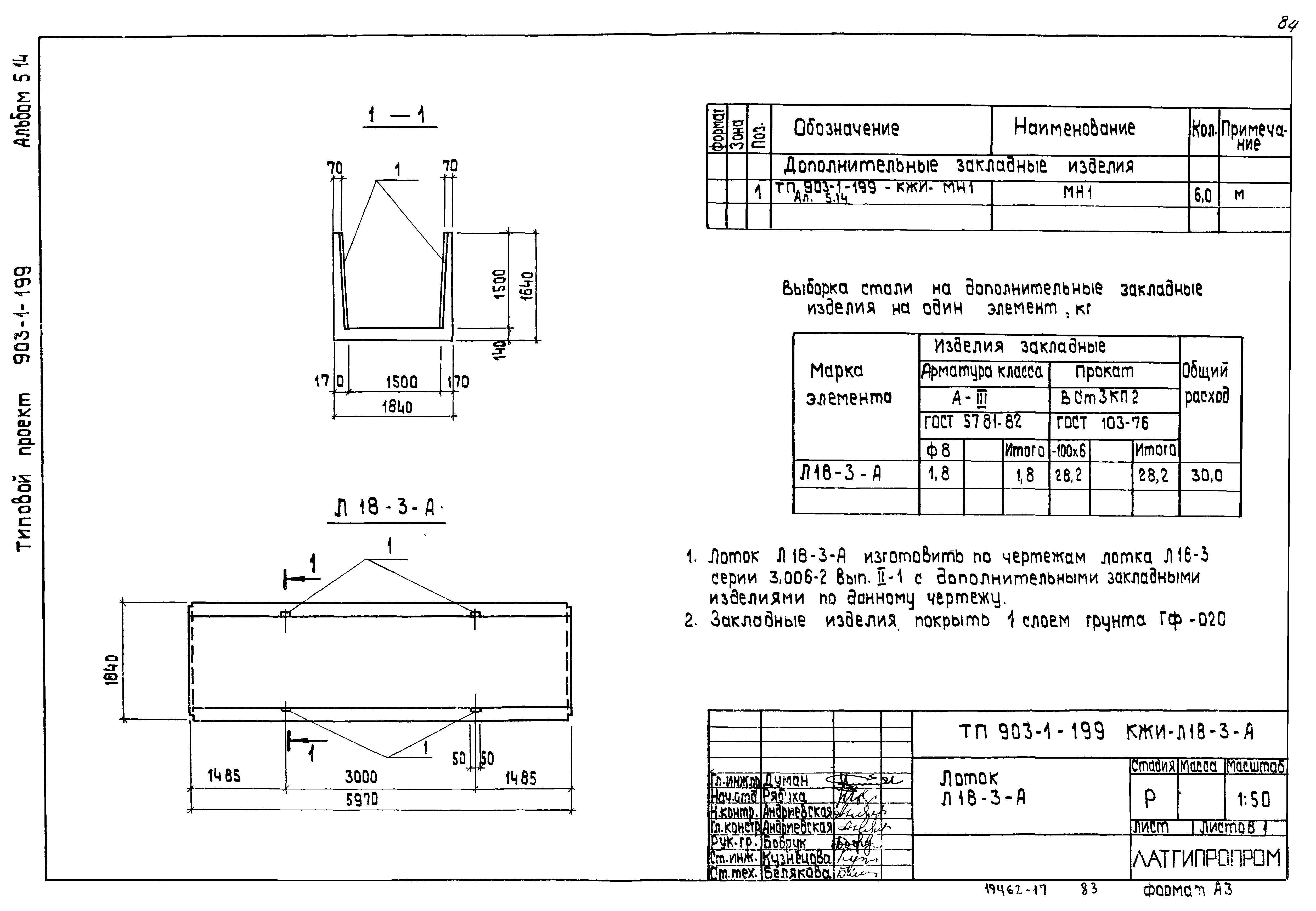
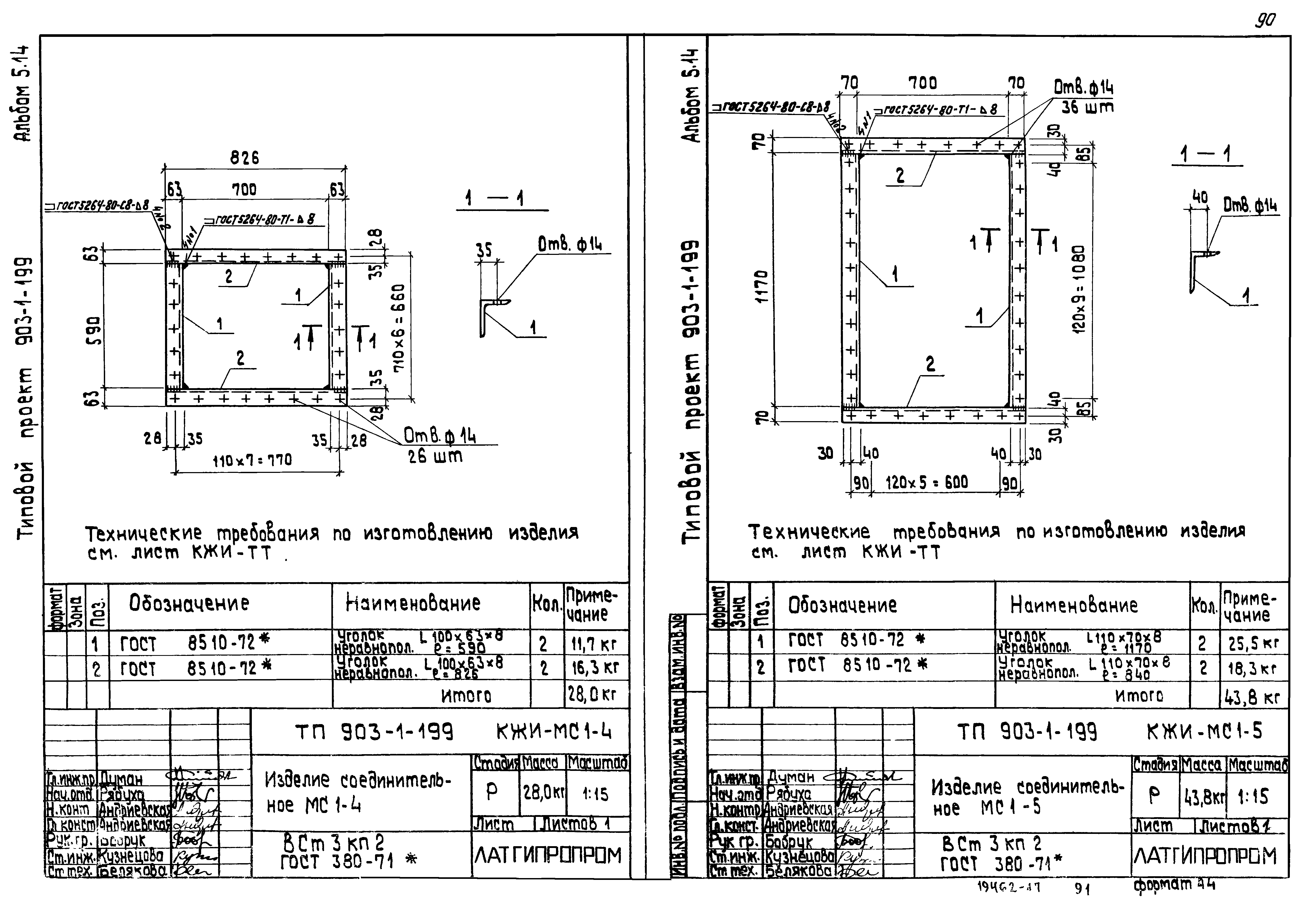
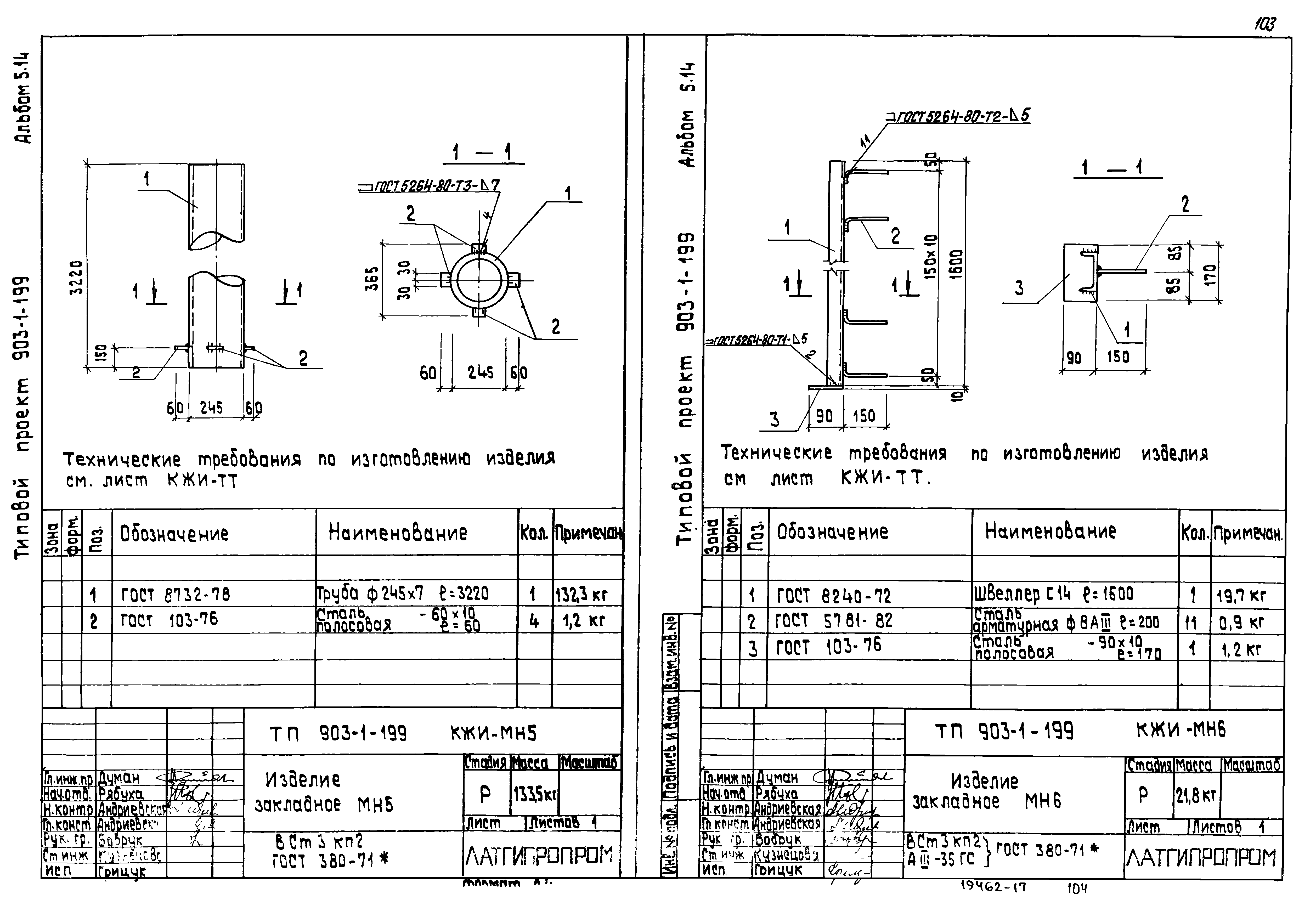
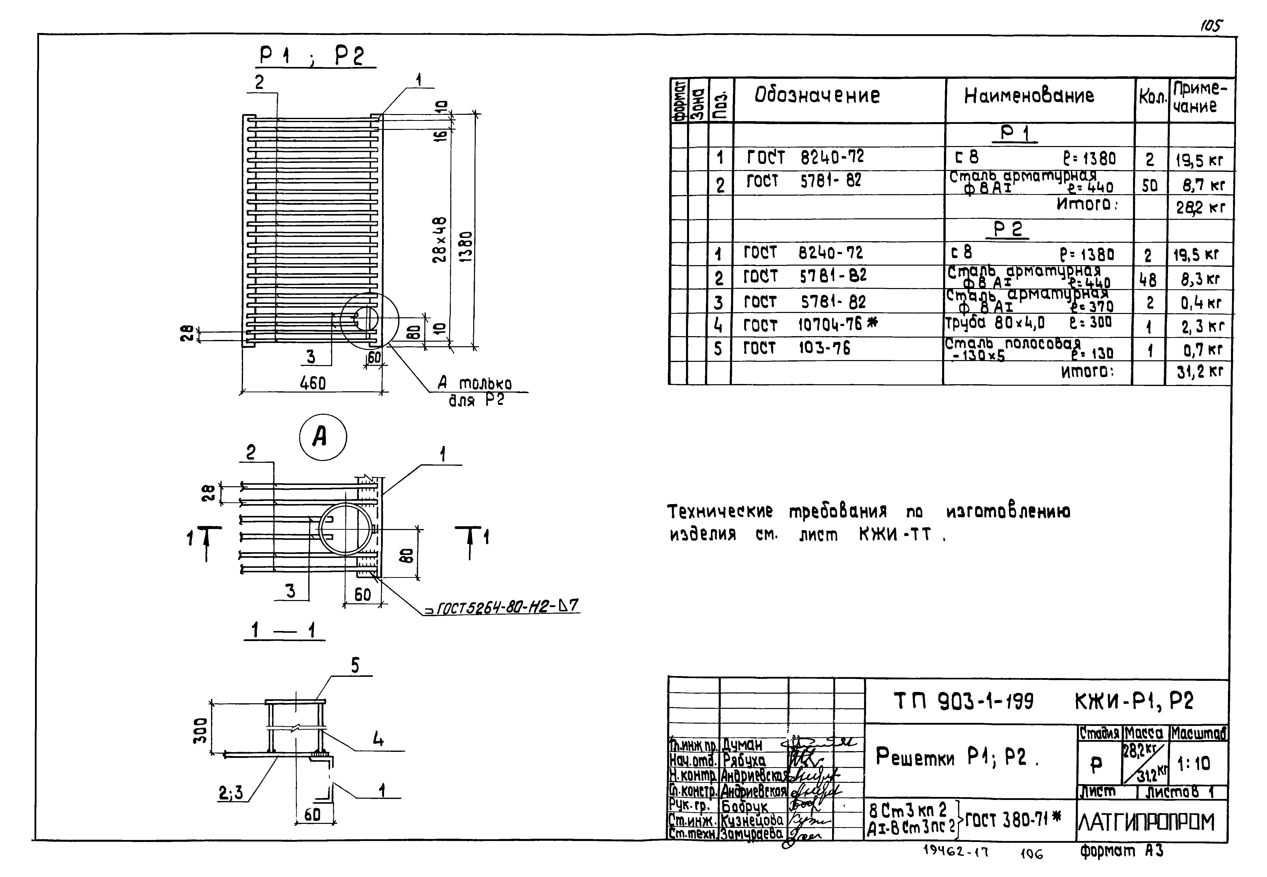
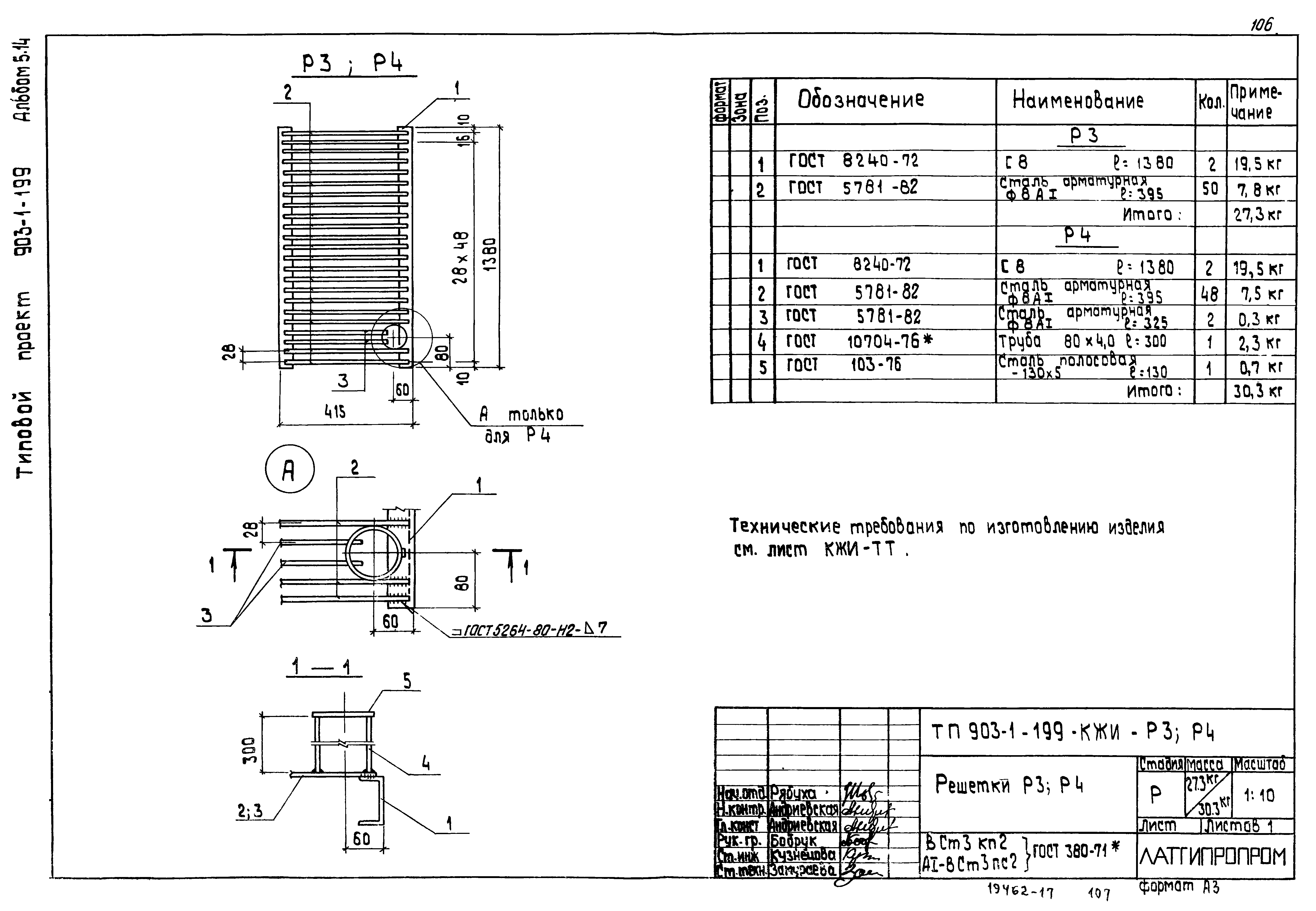
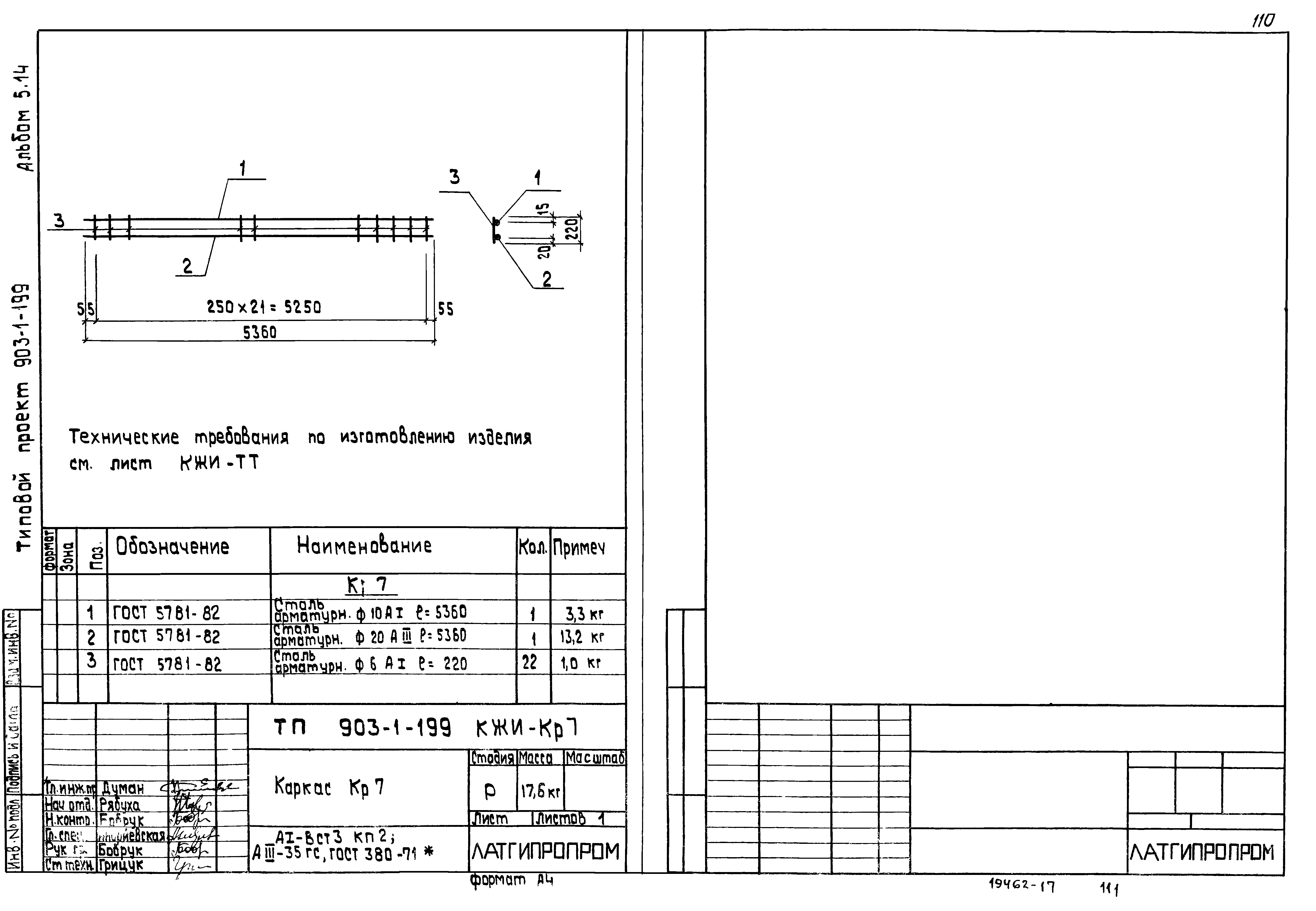
| Оглавление: | ТП 903-1-199 Содержание альбома (начало) ТП 903-1-199 Содержание альбома (продолжение) ТП 903-1-199 Содержание альбома (окончание) ТП 903-1-199 КЖ-ТТ Технические требования ТП 903-1-199 КЖ-К72-5а Колонна К72-5а ТП 903-1-199 КЖ-К72-5б Колонна К72-5б ТП 903-1-199 КЖ-К72-5в Колонна К72-5в ТП 903-1-199 КЖ-К72-5² Колонна К72-5² ТП 903-1-199 КЖ-К72-5д Колонна К72-5д ТП 903-1-199 КЖ-К72-5е Колонна К72-5е ТП 903-1-199 КЖ-К72-5ж Колонна К72-5ж ТП 903-1-199 КЖ-К72-5и Колонна К72-5и ТП 903-1-199 КЖ-К72-5к Колонна К72-5к ТП 903-1-199 КЖ-К72-5л Колонна К72-5л ТП 903-1-199 КЖ-К72-5м Колонна К72-5м ТП 903-1-199 КЖ-К72-5н Колонна К72-5н ТП 903-1-199 КЖ-К72-5п Колонна К72-5п ТП 903-1-199 КЖ-К72-5р Колонна К72-5р ТП 903-1-199 КЖ-К72-5с Колонна К72-5с ТП 903-1-199 КЖ-К72-5т Колонна К72-5т ТП 903-1-199 КЖ-К72-5у Колонна К72-5у ТП 903-1-199 КЖ-К72-5ф Колонна К72-5ф ТП 903-1-199 КЖ-К72-5ц Колонна К72-5ц ТП 903-1-199 КЖ-К72-5ч Колонна К72-5ч ТП 903-1-199 КЖ-К72-5ш Колонна К72-5ш ТП 903-1-199 КЖ-К72-5щ Колонна К72-5щ ТП 903-1-199 КЖ-К72-5э Колонна К72-5э ТП 903-1-199 КЖ-К72-5ю Колонна К72-5ю ТП 903-1-199 КЖ-К72-5я Колонна К72-5я ТП 903-1-199 КЖ-К72-5-1 Колонна К72-5-1 ТП 903-1-199 КЖ-К72-5-2 Колонна К72-5-2 ТП 903-1-199 КЖ-К72-18а Колонна К72-18а ТП 903-1-199 КЖ-К72-18б Колонна К72-18б ТП 903-1-199 КЖ-К72-18в Колонна К72-18в ТП 903-1-199 КЖ-К72-18г Колонна К72-18г ТП 903-1-199 КЖ-К72-18д Колонна К72-18д ТП 903-1-199 КЖ-К72-18е Колонна К72-18е ТП 903-1-199 КЖ-КФ18-18а Колонна КФ18-18а ТП 903-1-199 КЖ-КФ18-18б Колонна КФ18-18б ТП 903-1-199 КЖ-КФ18-18в Колонна КФ18-18в ТП 903-1-199 КЖ-К7-1-1 Колонна К7-1-1 ТП 903-1-199 КЖ-К7-1-2 Колонна К7-1-2 ТП 903-1-199 КЖ-К7-1-3 Колонна К7-1-3 ТП 903-1-199 КЖ-ПС600.12.20-П-9-А Стеновая панель ПС600.12.20-П-9-А ТП 903-1-199 КЖ-ПС600.12.20-П-3-А Стеновая панель ПС600.12.20-П-3-А ТП 903-1-199 КЖ-ПС600.12.20-П-3-Б Стеновая панель ПС600.12.20-П-3-Б ТП 903-1-199 КЖ-ПС600.12.20-П-3-В Стеновая панель ПС600.12.20-П-3-В ТП 903-1-199 КЖ-ПС600.18.20-П-1-А Стеновая панель ПС600.18.20-П-1-А ТП 903-1-199 КЖ-ПС600.18.20-П-3-А Стеновая панель ПС600.18.20-П-3-А ТП 903-1-199 КЖ-ПС295.12.20-П-А Стеновая панель ПС295.12.20-П-А ТП 903-1-199 КЖ-ПС625.12.20-П-21-А ПС625.12.20-П-22-А Стеновые панели ПС625.12.20-П-21-А ПС625.12.20-П-22-А ТП 903-1-199 КЖ-ПС145.18.20-П-А Стеновая панель ПС145.18.20-П-А ТП 903-1-199 КЖ-ПС145.12.20-П-А Стеновая панель ПС145.12.20-П-А ТП 903-1-199 КЖ-1БДР18-1АIV-а Балка 1БДР18-1АIV-а ТП 903-1-199 КЖ-1БДР18-2АIV-а Балка 1БДР18-2АIV-а ТП 903-1-199 КЖ-2БДР18-3АIV-а Балка 2БДР18-3АIV-а ТП 903-1-199 КЖ-2БДР18-3АIV-б Балка 2БДР18-3АIV-б ТП 903-1-199 КЖ-2БДР18-3АIV-в Балка 2БДР18-3АIV-в ТП 903-1-199 КЖ-2БДР18-3АIV-г Балка 2БДР18-3АIV-г ТП 903-1-199 КЖ-2БДР18-3АIV-д Балка 2БДР18-3АIV-д ТП 903-1-199 КЖ-3БДР18-5АIV-а 3БДР18-4АIV-а Балка 3БДР18-5АIV-а 3БДР18-4АIV-а ТП 903-1-199 КЖ-3БДР18-4АIV-б Балка 3БДР18-4АIV-б ТП 903-1-199 КЖ-Б6-5АIV-а, Б6-6АIV-а, Б6-5АIV-б Балка Б6-5АIV-а, Б6-6АIV-а, Б6-5АIV-б ТП 903-1-199 КЖ-Б6-7АIV-а, Б6-6АIV-б Балка Б6-7АIV-а, Б6-6АIV-б ТП 903-1-199 КЖ-2Р04.60-35АтVа 2Р04.60-35АтVб 2Р04.60-35АтVв Ригели 2Р04.60-35АтVа 2Р04.60-35АтVб 2Р04.60-35АтVв ТП 903-1-199 КЖ-2Р04.60-35АтVг 2Р04.60-35АтVд Ригели 2Р04.60-35АтVг 2Р04.60-35АтVд ТП 903-1-199 КЖ-2РД4.60-66АтVа 2РД4.60-66АтVб Ригели 2РД4.60-66АтVа 2РД4.60-66АтVб ТП 903-1-199 КЖ-БОП 25-1т-А Обвязочная балка БОП 25-1т-А ТП 903-1-199 КЖ-ПВЧ-2АтVт-14яб(-17яб) ПВЧ-2АтVт-14яа,б(-17яа,б) Плиты ПВЧ-2АтVт-14яб(-17яб) ПВЧ-2АтVт-14яа,б(-17яа,б) ТП 903-1-199 КЖ-ПВ14-3АтVт-7яб(-8яб) Плита ПВ14-3АтVт-7яб(-8яб) ТП 903-1-199 КЖ-ПГ-3АтVт-8яб-А Плита ПГ-3АтVт-8яб-А ТП 903-1-199 КЖ-ПГ-3АтVт-8я-Г Плита ПГ-3АтVт-8я-Г ТП 903-1-199 КЖ-ПГ-3АтVт-7я-А(-8я-А) Плита ПГ-3АтVт-7я-А(-8я-А) ТП 903-1-199 КЖ-ПГ-3АтVт-7я-Б(-8я-Б) Плита ПГ-3АтVт-7я-Б(-8я-Б) ТП 903-1-199 КЖ-ПГ-3АтVт-7я-В(-8я-В) Плита ПГ-3АтVт-7я-В(-8я-В) ТП 903-1-199 КЖ-ПАтХ/1.5х6.0-1-А Плита ПАтХ/1.5х6.0-1-А ТП 903-1-199 КЖ-ПАтV/1.5х6.0-1б-А Плита ПАтV/1.5х6.0-1б-А ТП 903-1-199 КЖ-ПРС56-15-6АтVт-А Плита ПРС56-15-6АтVт-А ТП 903-1-199 КЖ-ППБ-1Д-1/5.98х2.985 л.1 Перегородка ППБ-1Д-1/5.98х2.985 ТП 903-1-199 КЖ-ППБ-1Д-1/5.98х2.985 л.2 Перегородка ППБ-1Д-1/5.98х2.986 ТП 903-1-199 КЖ-ЛУ18-8-А Лоток ЛУ18-8-А ТП 903-1-199 КЖ-ЛУ17-8Н-А Лоток ЛУ17-8Н-А ТП 903-1-199 КЖ-ЛУ8-8Н-А Лоток ЛУ8-8Н-А ТП 903-1-199 КЖ-Л18-3-А Лоток Л18-3-А ТП 903-1-199 КЖ-Л8-5-А Лоток Л8-5-А ТП 903-1-199 КЖ-Л8-5*-А Лоток Л8-5*-А ТП 903-1-199 КЖ-Л8д-5-А Лоток Л8д-5-А ТП 903-1-199 КЖ-СКМ1 Стойка СКМ1 ТП 903-1-199 КЖ-СКМ2 Стойка СКМ2 ТП 903-1-199 КЖ-РК2-1 Столик РК2-1 ТП 903-1-199 КЖ-РК2-2 Столик РК2-2 ТП 903-1-199 КЖ-МД1 Столик МД1 ТП 903-1-199 КЖ-МС1-1 Изделие соединительное МС1-1 ТП 903-1-199 КЖ-МС1-2 Изделие соединительное МС1-2 ТП 903-1-199 КЖ-МС1-3 Изделие соединительное МС1-3 ТП 903-1-199 КЖ-МС1-4 Изделие соединительное МС1-4 ТП 903-1-199 КЖ-МС1-5 Изделие соединительное МС1-5 ТП 903-1-199 КЖ-МС1 Изделие соединительное МС1 ТП 903-1-199 КЖ-МС2 Изделие соединительное МС2 ТП 903-1-199 КЖ-МС3 Изделие соединительное МС3 ТП 903-1-199 КЖ-МС4 Изделие соединительное МС4 ТП 903-1-199 КЖ-МС5 Изделие соединительное МС5 ТП 903-1-199 КЖ-МС6 Изделие соединительное МС6 ТП 903-1-199 КЖ-МС7 Изделие соединительное МС7 ТП 903-1-199 КЖ-МС8 Изделие соединительное МС8 ТП 903-1-199 КЖ-МН1-1 Изделие закладное МН1-1 ТП 903-1-199 КЖ-МН1-2 Изделие закладное МН1-2 ТП 903-1-199 КЖ-МН1-3 Изделие закладное МН1-3 ТП 903-1-199 КЖ-МН1-4 Изделие закладное МН1-4 ТП 903-1-199 КЖ-МН1-5 Изделие закладное МН1-5 ТП 903-1-199 КЖ-МН1-6 Изделие закладное МН1-6 ТП 903-1-199 КЖ-МН1-7 Изделие закладное МН1-7 ТП 903-1-199 КЖ-МН1-11 Изделие закладное МН1-11 ТП 903-1-199 КЖ-МН1-8 Изделие закладное МН1-8 ТП 903-1-199 КЖ-МН1-9 Изделие закладное МН1-9 ТП 903-1-199 КЖ-МН1-10 Изделие закладное МН1-10 ТП 903-1-199 КЖ-МН1 Изделие закладное МН1 ТП 903-1-199 КЖ-МН2 Изделие закладное МН2 ТП 903-1-199 КЖ-МН3 Изделие закладное МН3 ТП 903-1-199 КЖ-МН4 Изделие закладное МН4 ТП 903-1-199 КЖ-МН5 Изделие закладное МН5 ТП 903-1-199 КЖ-МН6 Изделие закладное МН6 ТП 903-1-199 КЖ-МН7 Изделие закладное МН7 ТП 903-1-199 КЖ-МР1 Рама МР1 ТП 903-1-199 КЖ-Р1;Р2 Решетки Р1;Р2 ТП 903-1-199 КЖ-Р3;Р4 Решетки Р3;Р4 ТП 903-1-199 КЖ-С1 Сетка арматурная С1 ТП 903-1-199 КЖ-С2 Сетка арматурная С2 ТП 903-1-199 КЖ-Кр1;Кр2 Каркасы Кр1;Кр2 ТП 903-1-199 КЖ-Кр3;Кр4 Каркасы Кр3;Кр4 ТП 903-1-199 КЖ-Кр5 Каркасы Кр5 ТП 903-1-199 КЖ-Кр6 Каркасы Кр6 ТП 903-1-199 КЖ-Кр7 Каркасы Кр7 ТП 903-1-199 КЖ-К30-7а,К30-7б Колонны К30-7а,К30-7б ТП 903-1-199 КЖ-К30-7в,К36-2а Колонны К30-7в,К36-2а ТП 903-1-199 КЖ-РЖ-1 Рама РЖ-1 ТП 903-1-199 КЖ-РЖ-2 Рама РЖ-2 |
| Разработан: | Латгипропром |
| Утверждён: | 10.11.1983 Госстрой СССР (Государственный комитет Совета Министров СССР по делам строительства) (USSR Gosstroy 41) |


















































































































