Скачать Типовой проект 902-1-104.86 Альбом 2. Технологические решения. Внутренний водопровод и канализация. Отопление и вентиляцияДата актуализации: 01.01.2021
|
| Обозначение: | Типовой проект 902-1-104.86 |
| Обозначение англ: | 902-1-104.86 |
| Статус: | не определен законодательством |
| Название рус.: | Альбом 2. Технологические решения. Внутренний водопровод и канализация. Отопление и вентиляция |
| Дата добавления в базу: | 01.09.2013 |
| Дата актуализации: | 01.01.2021 |
| Дата введения: | 27.10.1986 |
| Дата окончания срока действия: | 30.06.2003 |
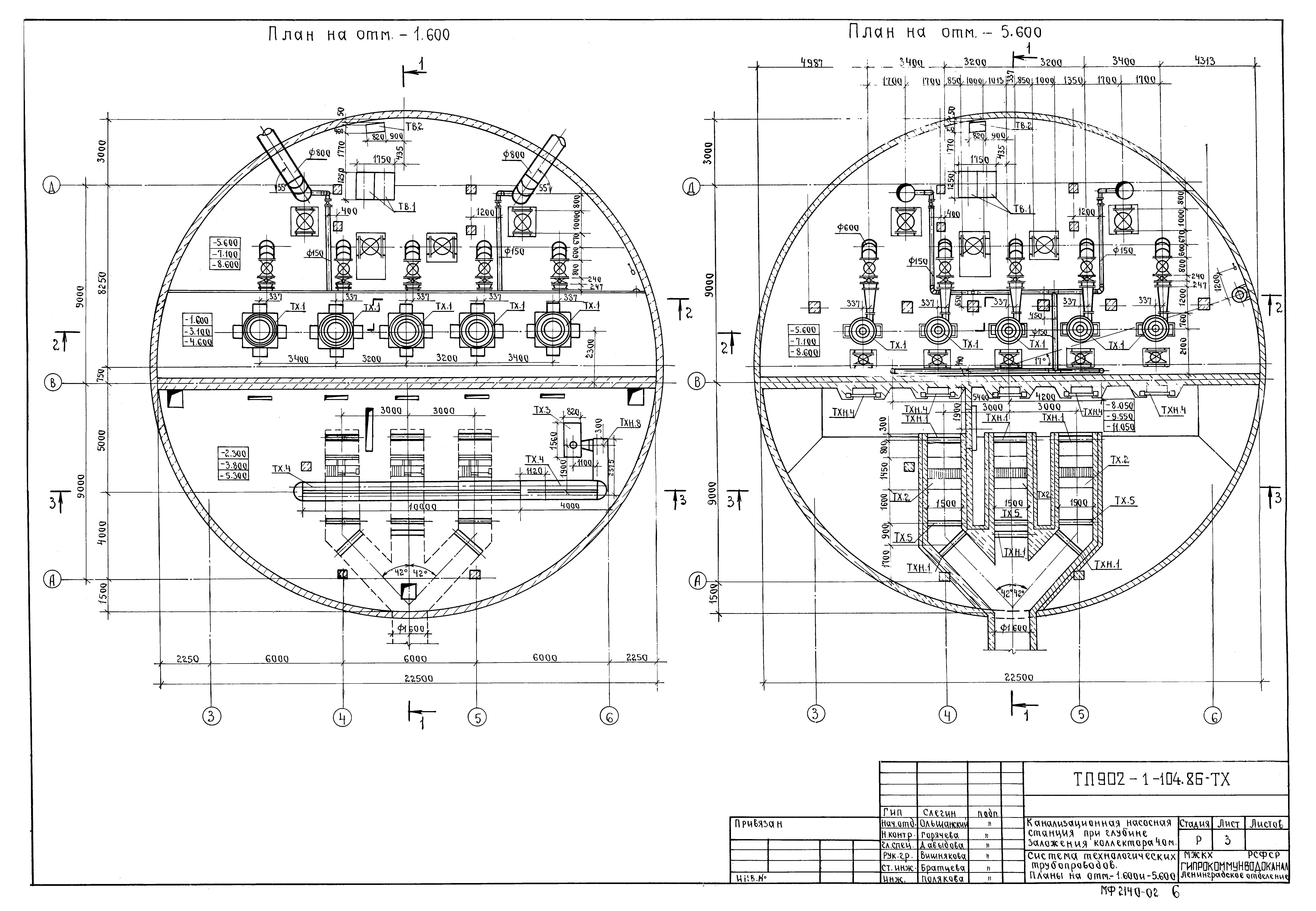
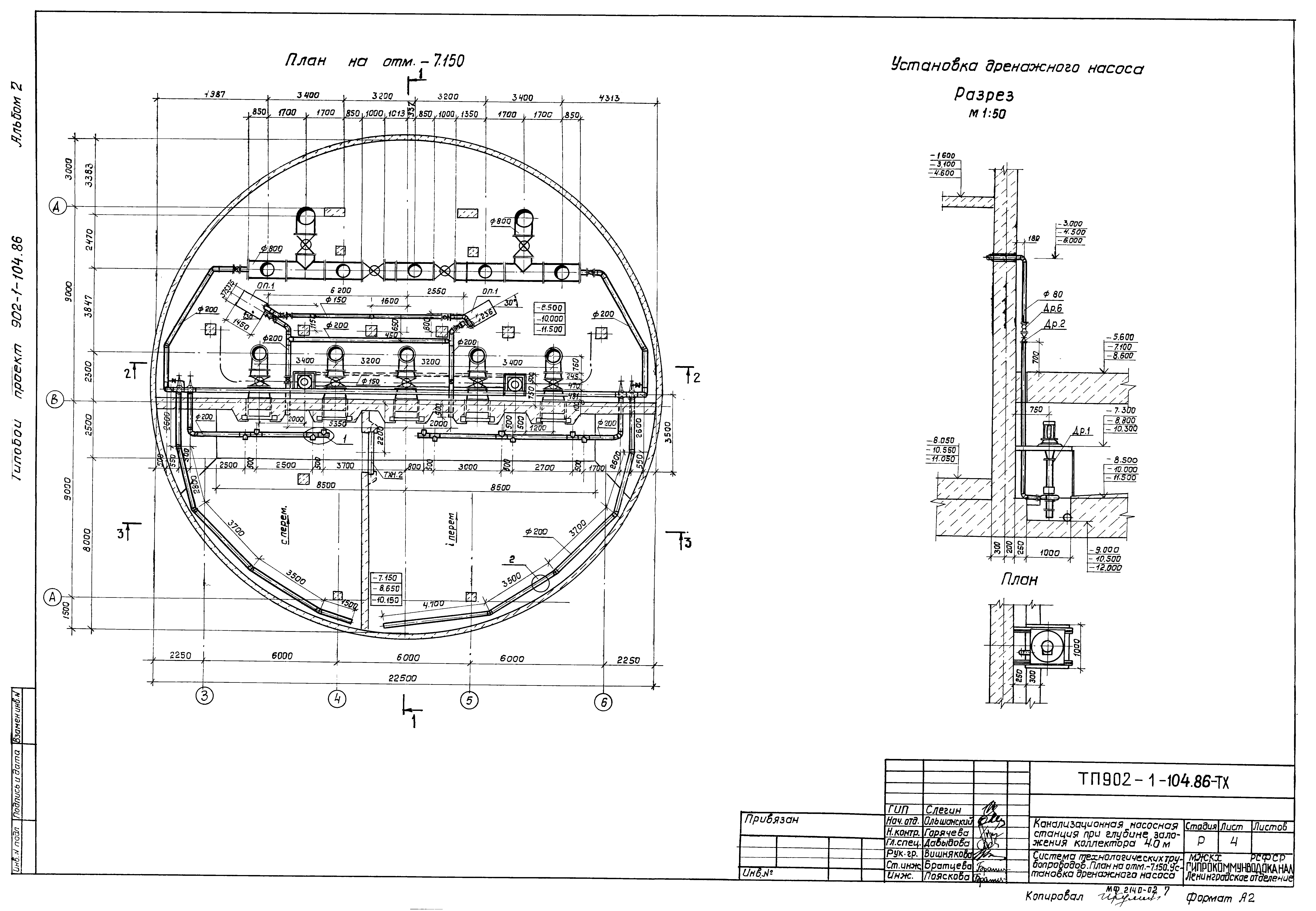
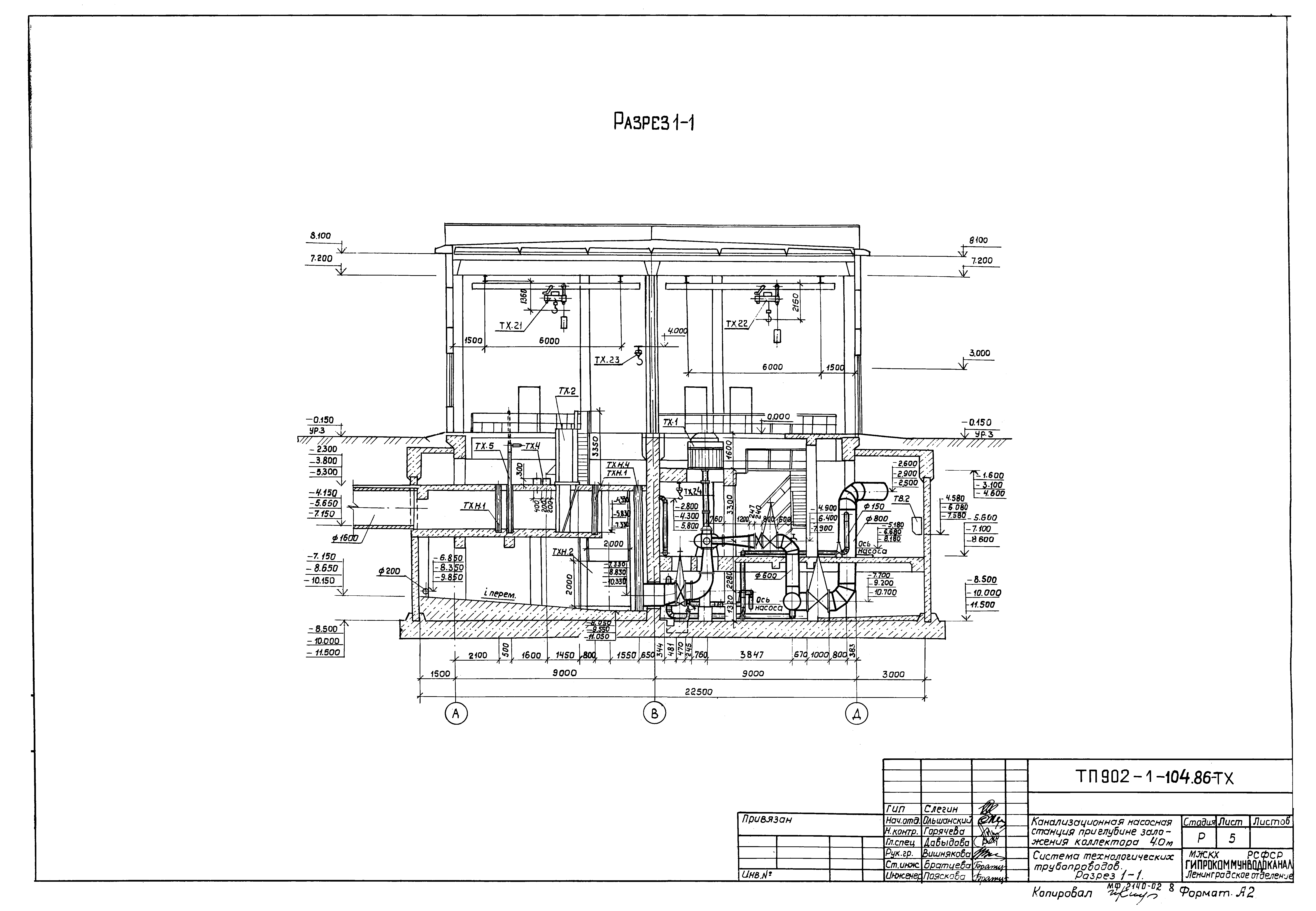
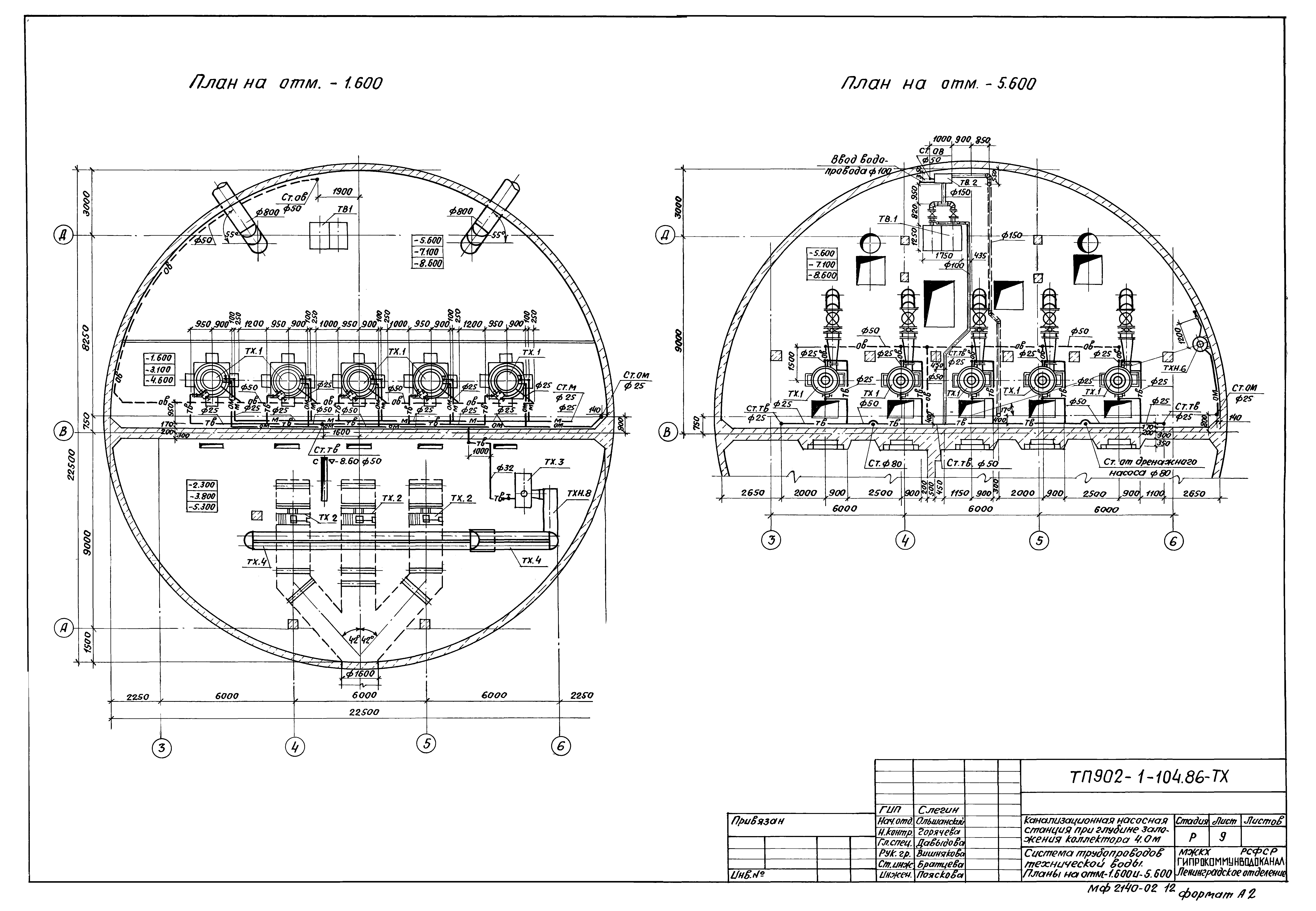
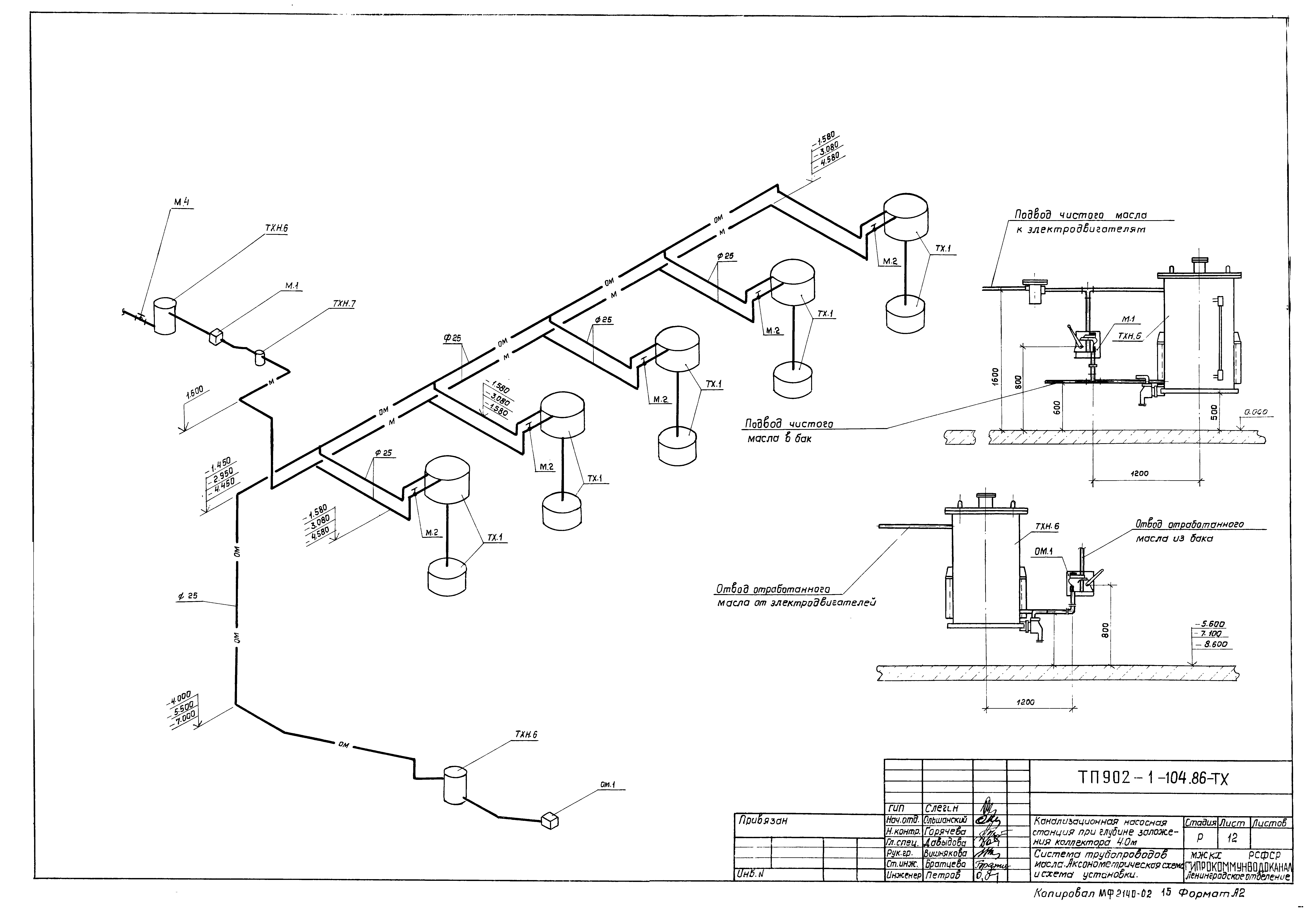
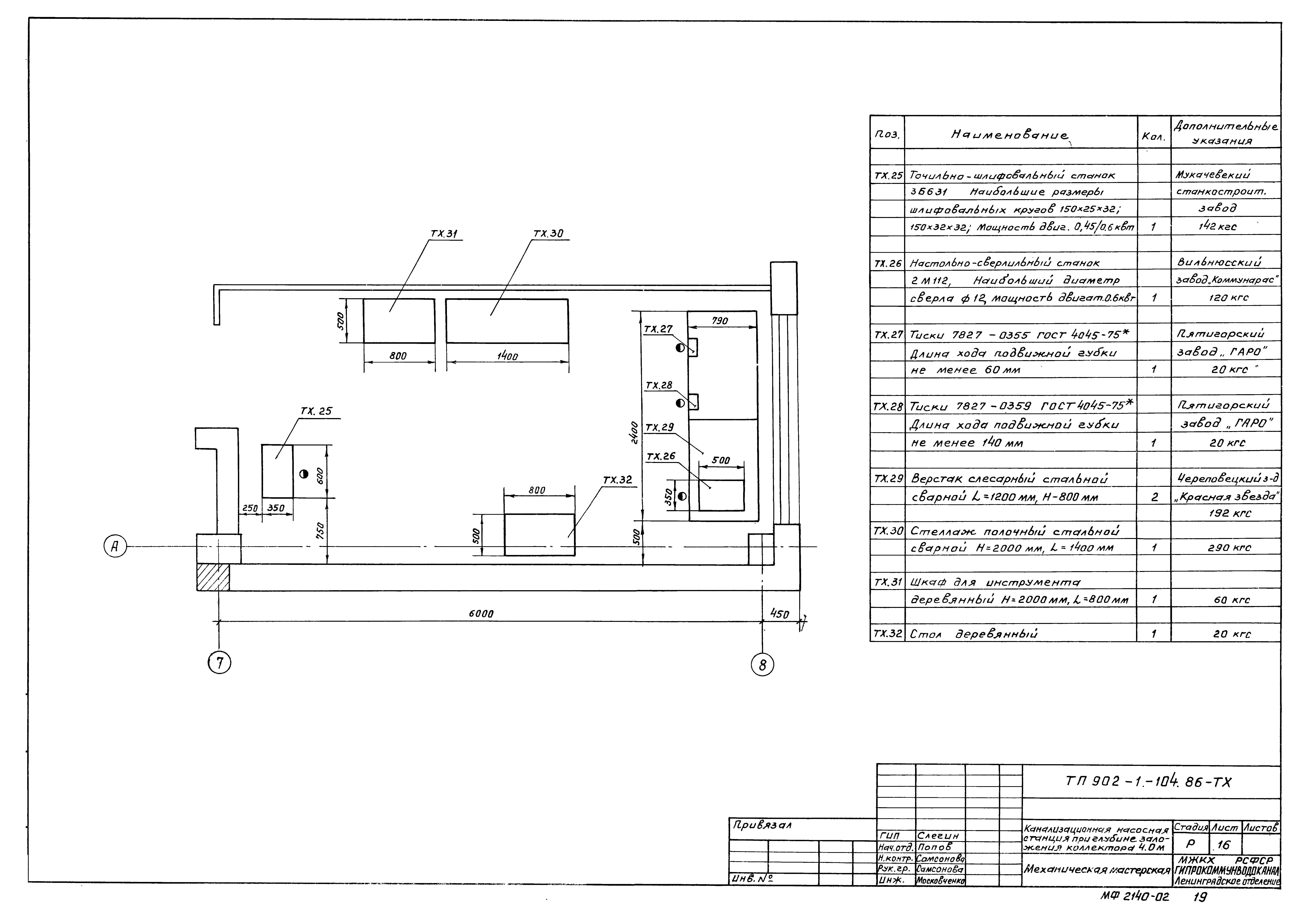
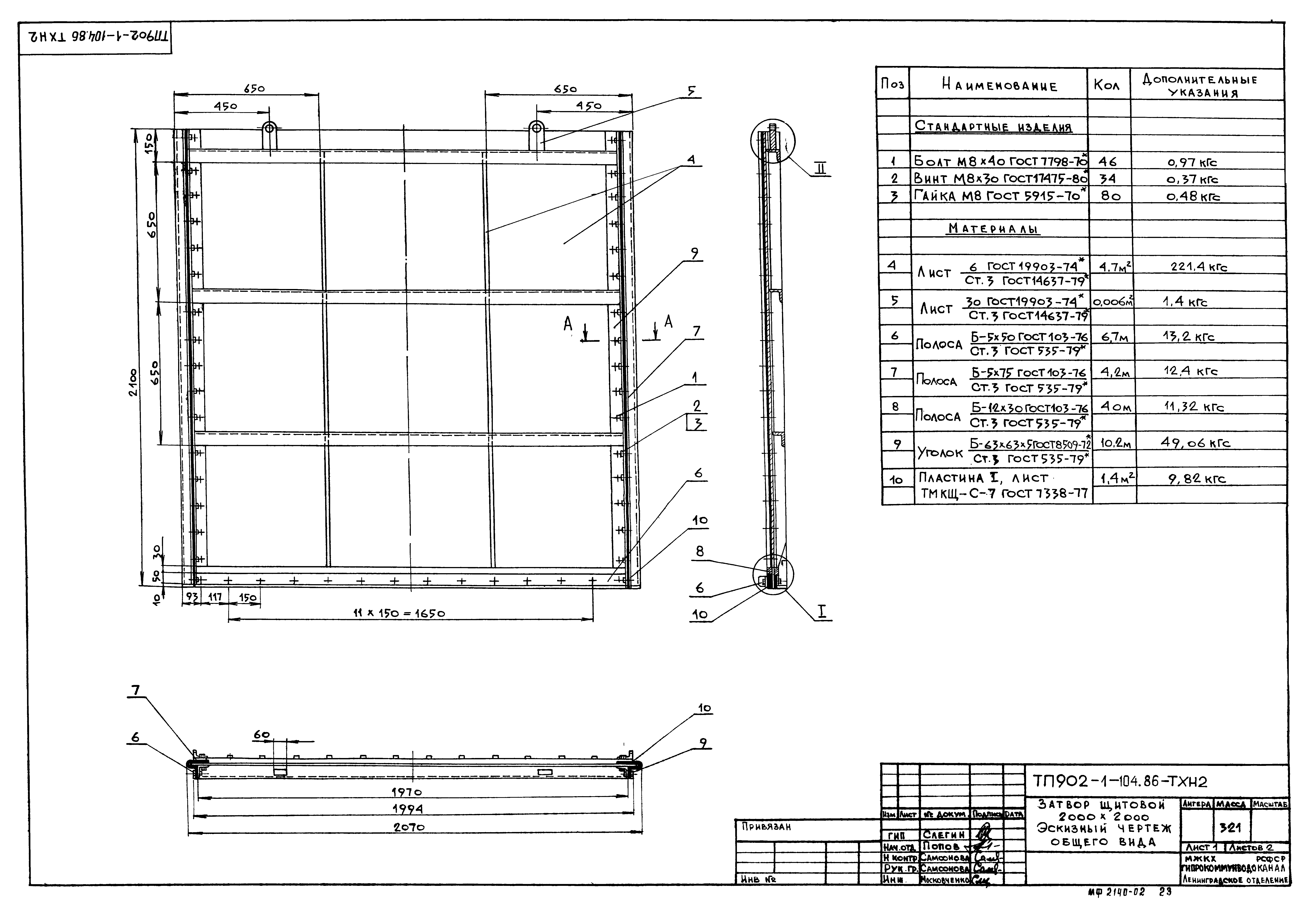
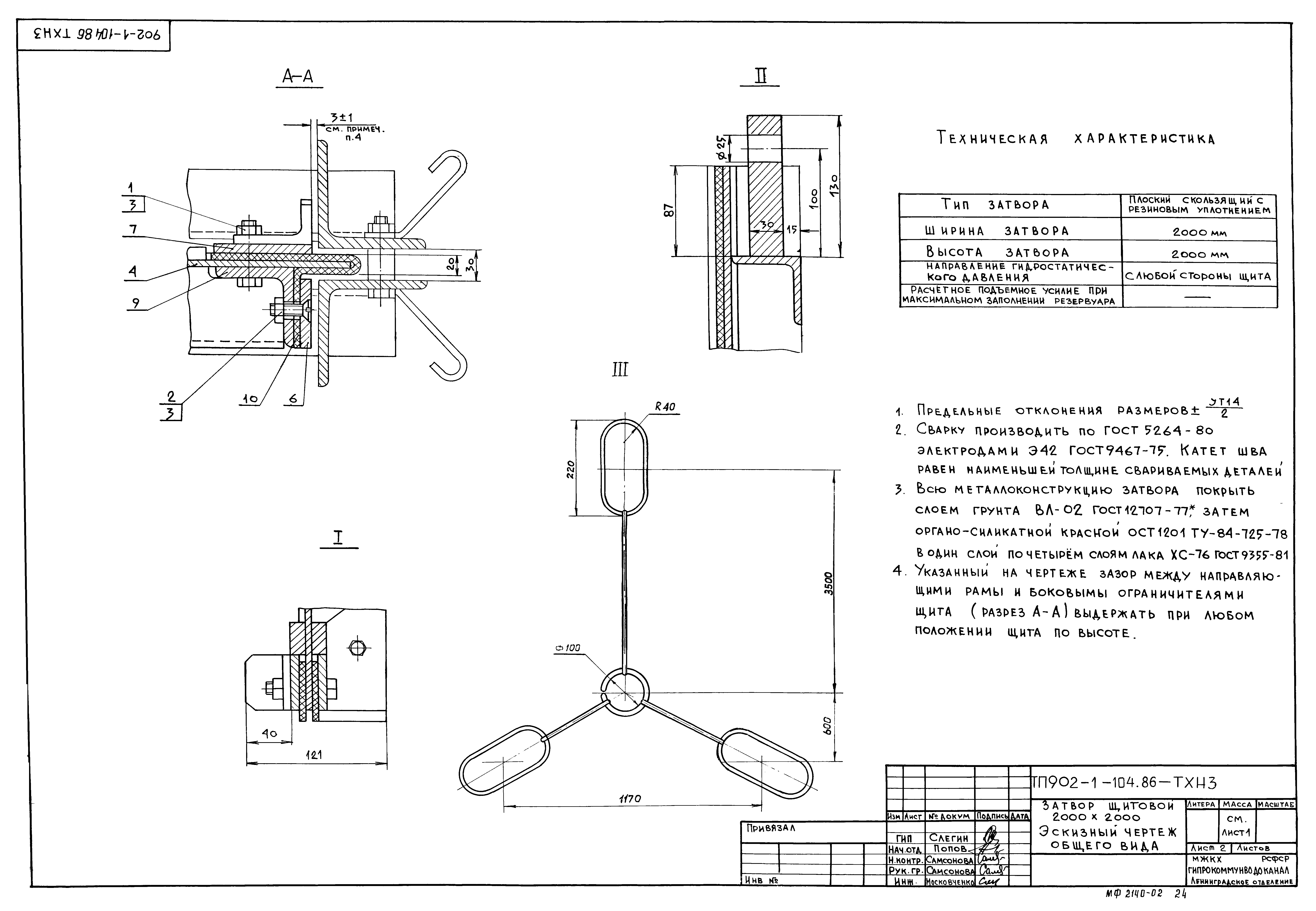
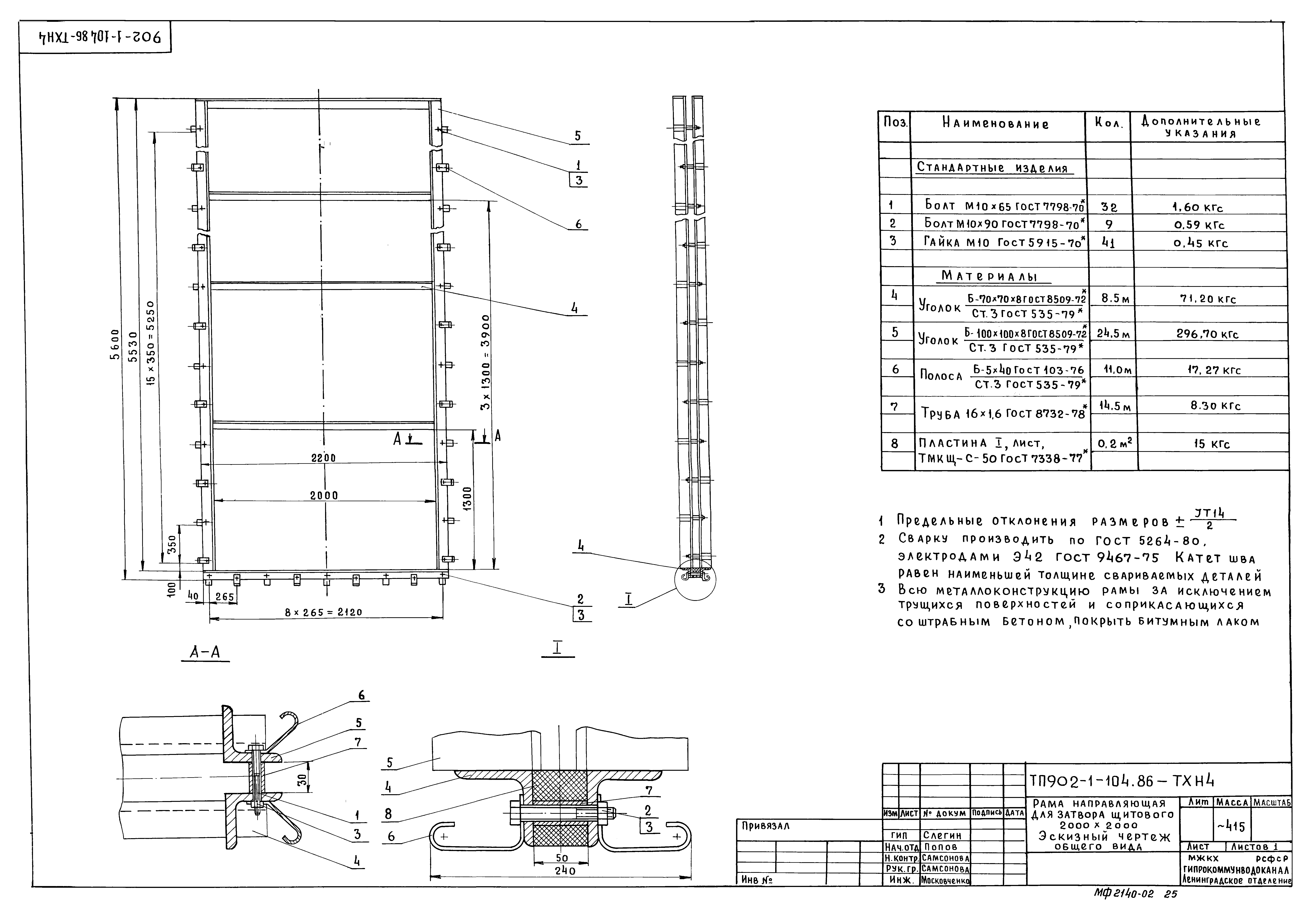
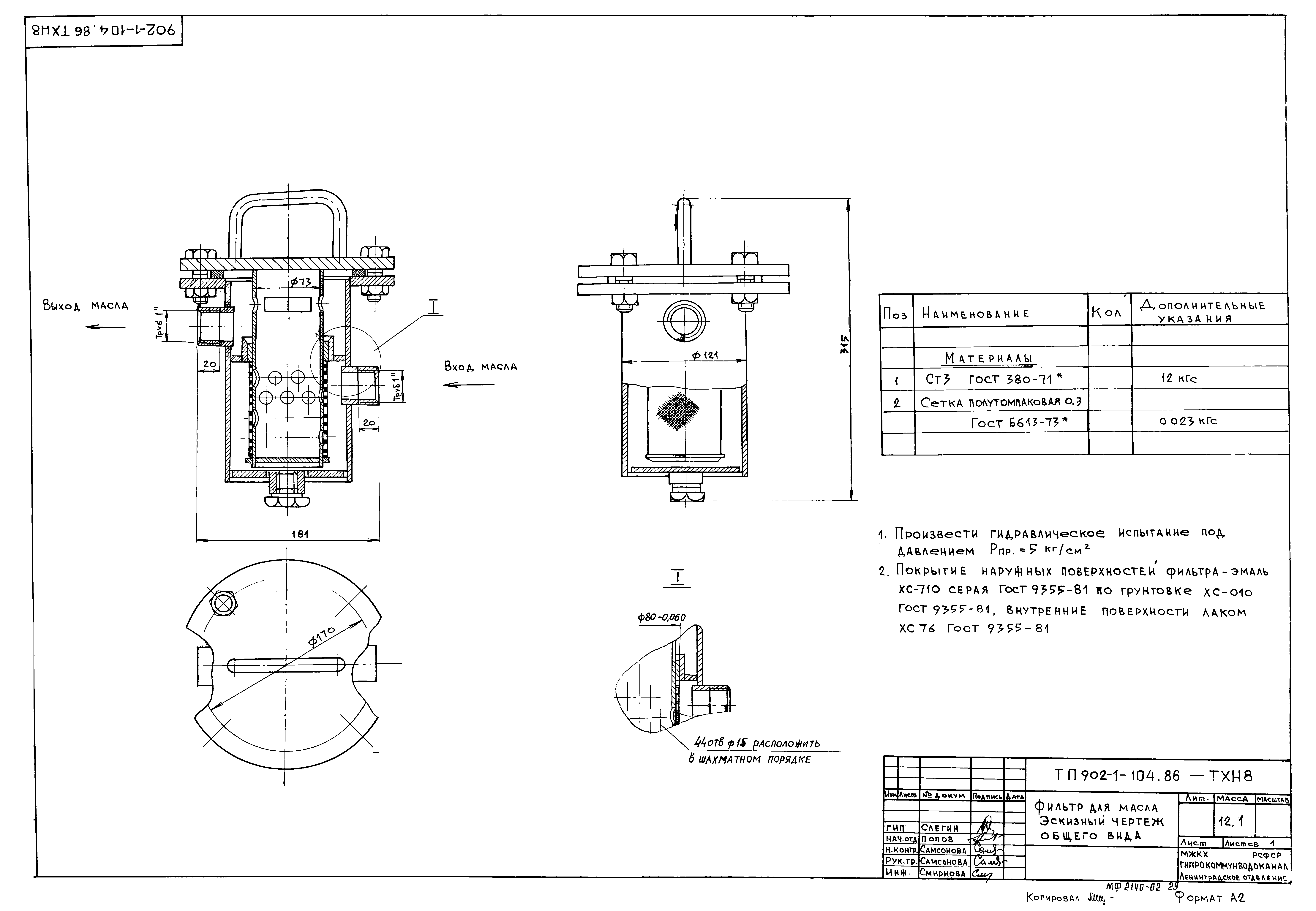
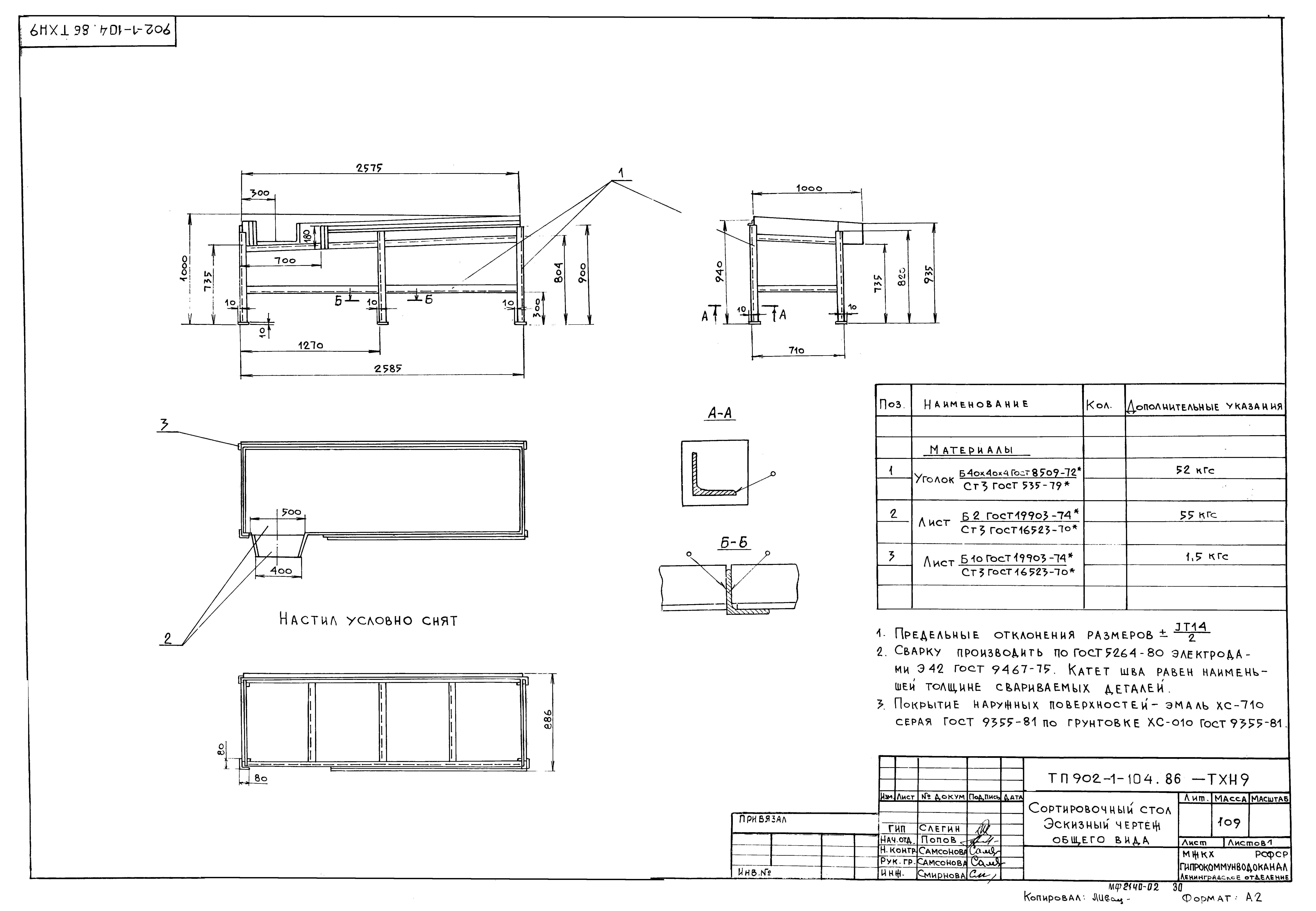
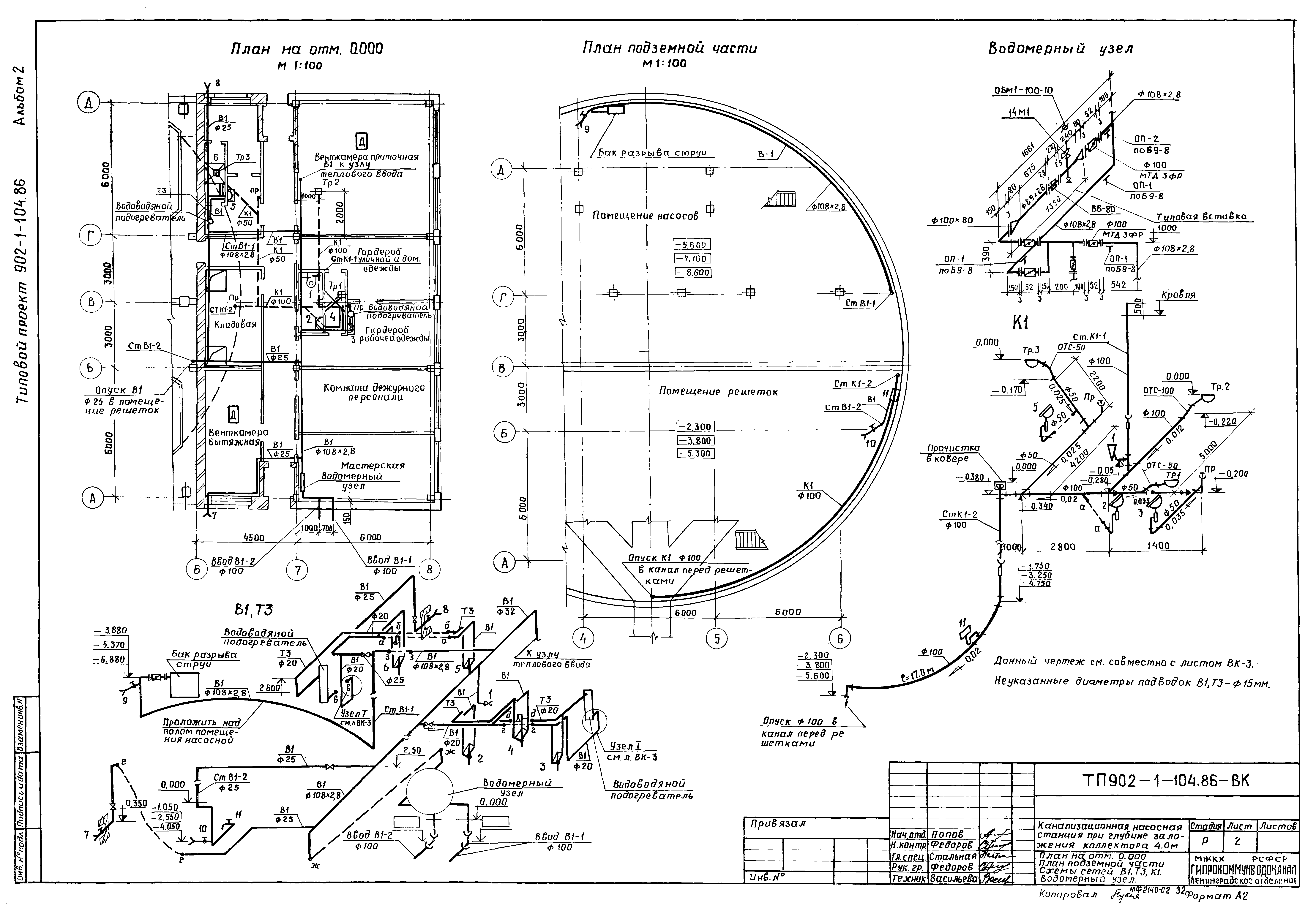
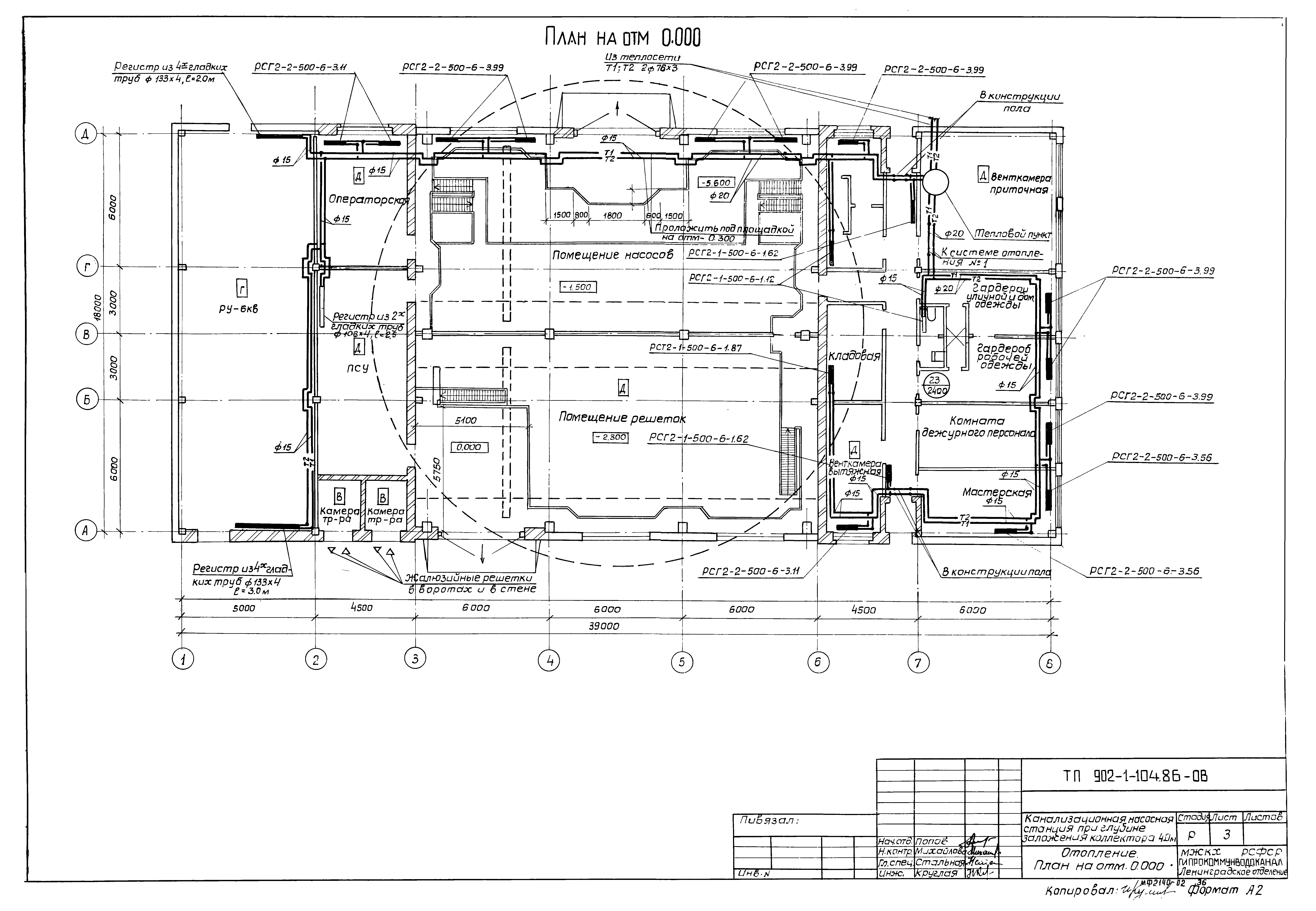
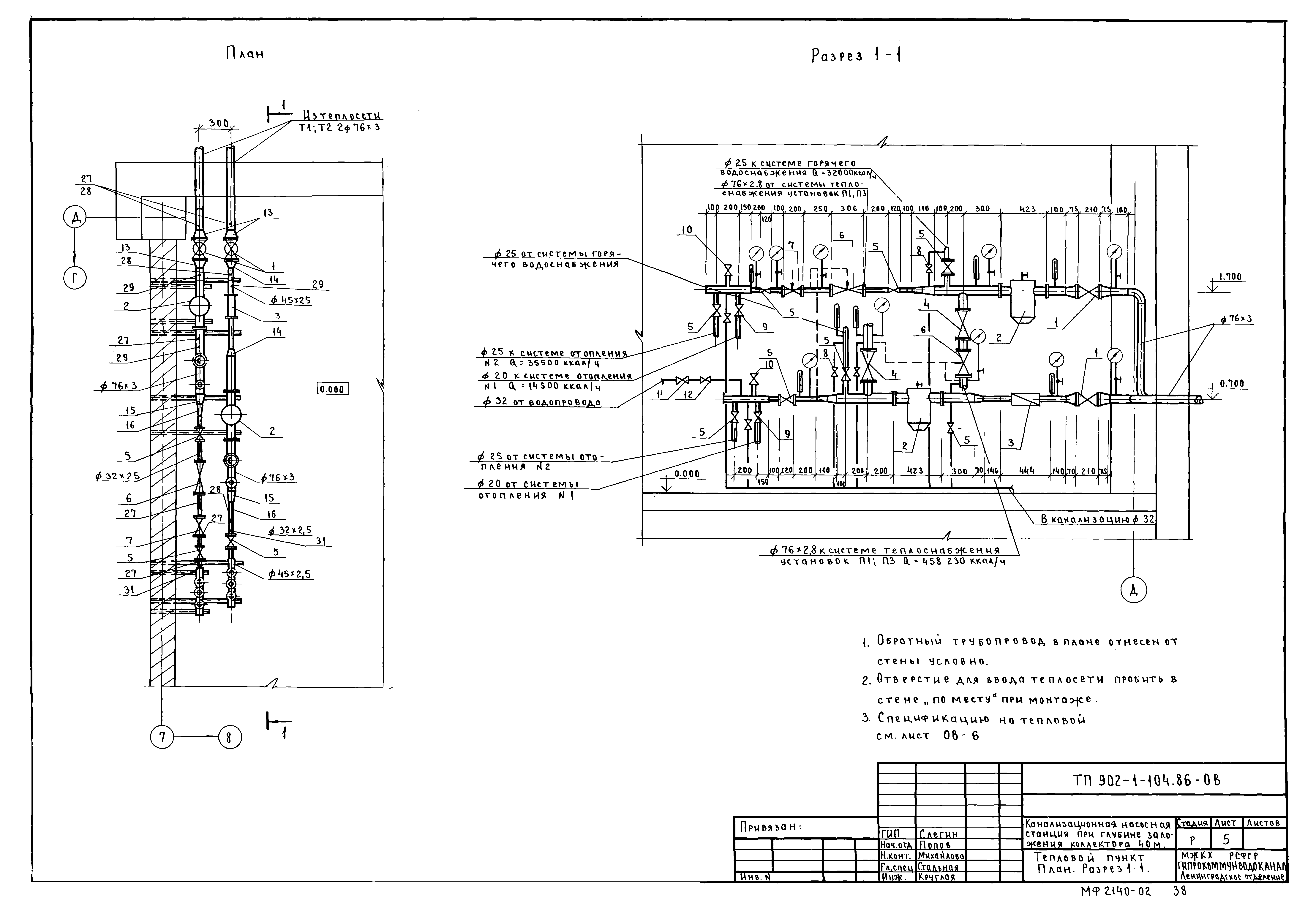
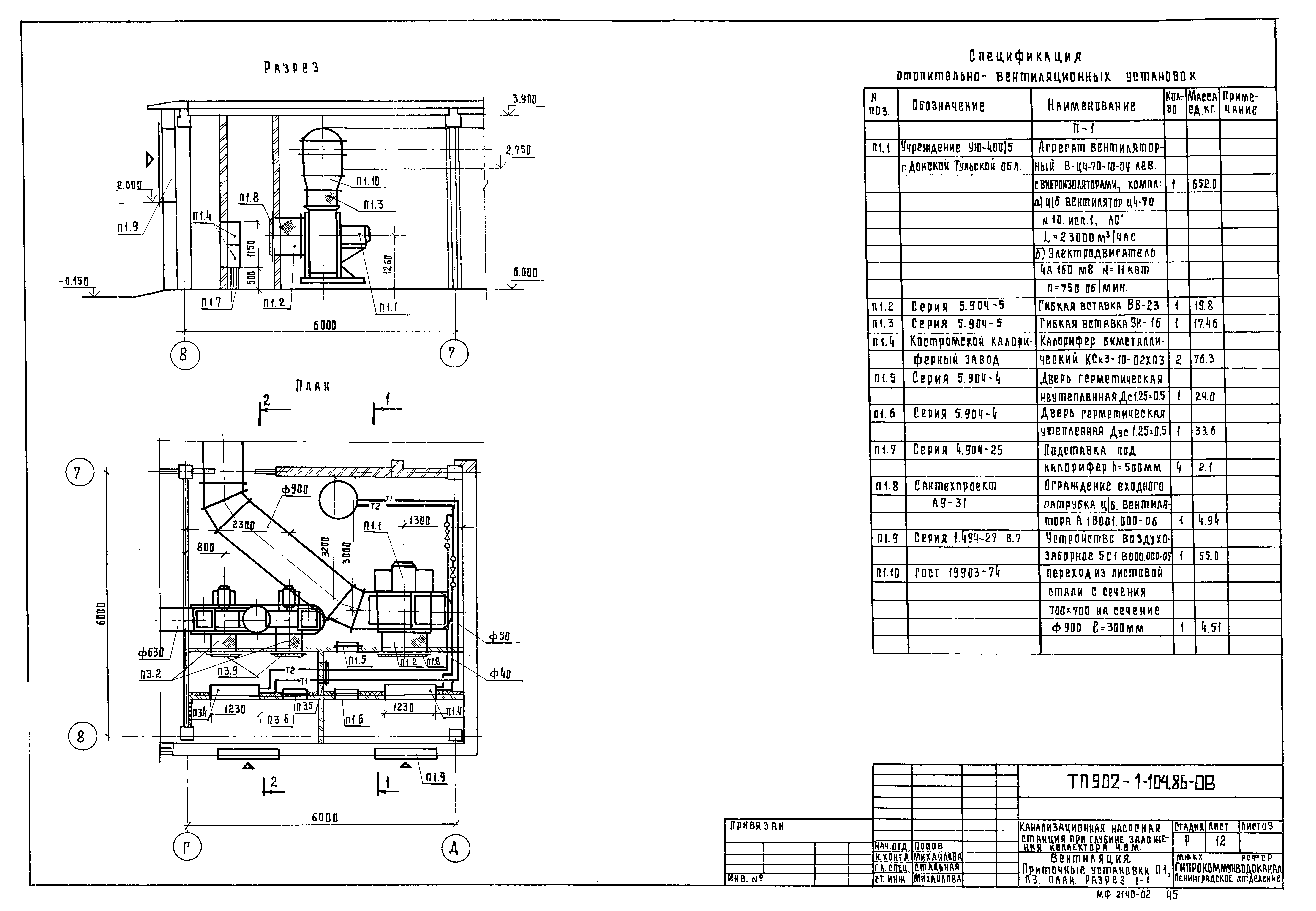
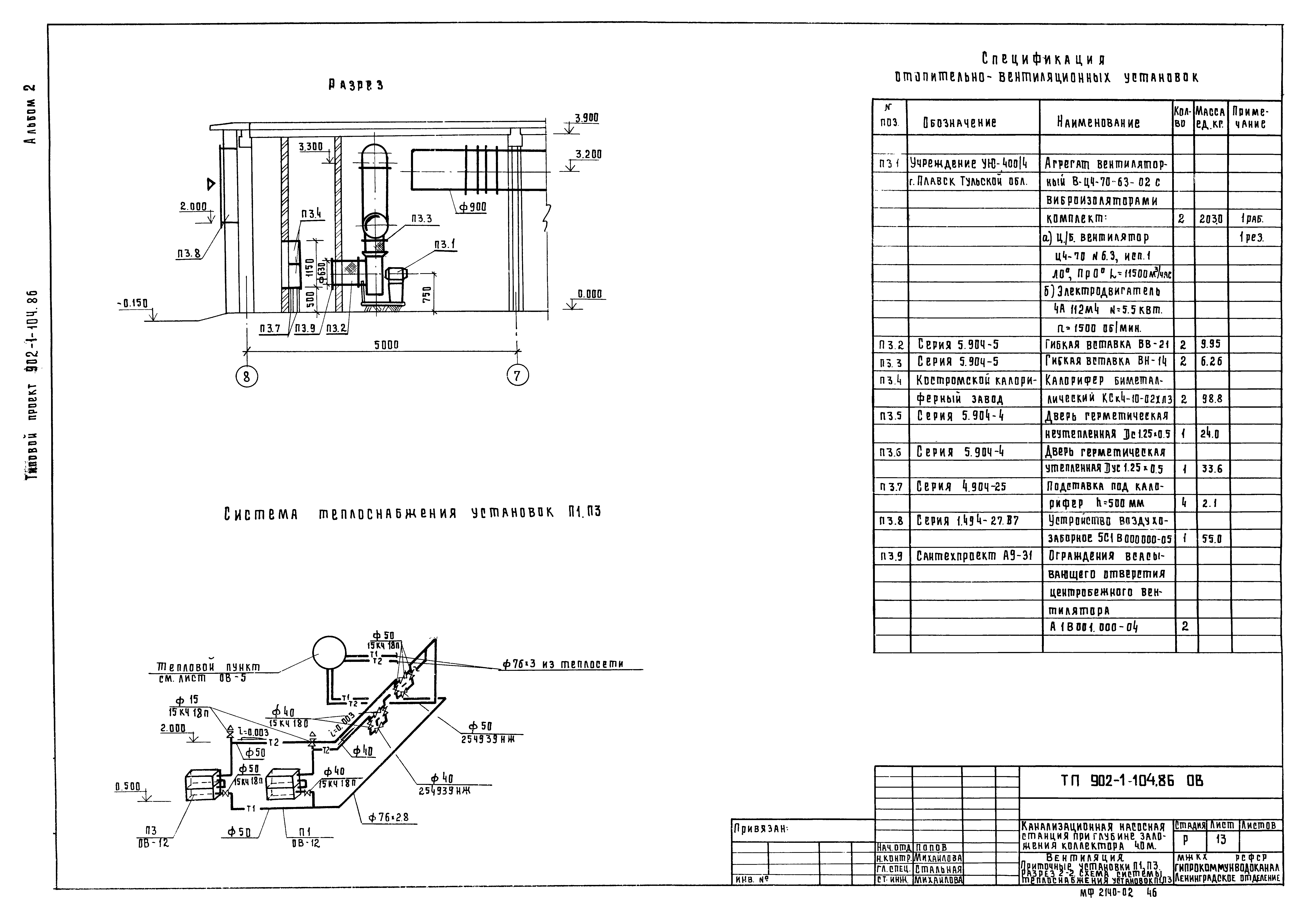
| Оглавление: | ТП 902-1-104.86 Содержание альбома ТП 902-1-104.86-ТХ Основной комплект марки ТХ ТП 902-1-104.86-ТХ Общие данные ТП 902-1-104.86-ТХ План на отм. 0.000 ТП 902-1-104.86-ТХ Система технологических трубопроводов. Планы на отм. -1.600 и -5.600 ТП 902-1-104.86-ТХ Система технологических трубопроводов. План на отм. -7.150. Установка дренажного насоса ТП 902-1-104.86-ТХ Система технологических трубопроводов. Разрез 1-1 ТП 902-1-104.86-ТХ Система технологических трубопроводов. Разрез 2-2 ТП 902-1-104.86-ТХ Система технологических трубопроводов. Разрез 3-3 ТП 902-1-104.86-ТХ Система технологических трубопроводов. Аксонометрическая схема. Узлы 1,2 ТП 902-1-104.86-ТХ Система трубопроводов технической воды. Планы на отм. - 1.600 и -5.600 ТП 902-1-104.86-ТХ Система трубопроводов технической воды. Планы на отм. - 8.050 ТП 902-1-104.86-ТХ Система трубопроводов технической воды. Аксонометрическая схема ТП 902-1-104.86-ТХ Система трубопроводов масла. Аксонометрическая схема и схема установки ТП 902-1-104.86-ТХ Система трубопроводов опорожнения и дренажных вод. Аксонометрические схемы ТП 902-1-104.86-ТХ Экспликация оборудования, арматуры и трубопроводов (начало) ТП 902-1-104.86-ТХ Экспликация оборудования, арматуры и трубопроводов (окончание) ТП 902-1-104.86-ТХ Механическая мастерская ТП 902-1-104.86-ТХ Установка транспортера скребкового ТСН-160А ТП 902-1-104.86-ТХ Установка насоса СДВ 2700/26,5 (ФВ2700/16.5) с электродвигателем ВАН 116/23-ВУЗ ТП 902-1-104.86-ТХН Основной комплект марки ТХН ТП 902-1-104.86-ТХН Щит шандора. Эскизный чертеж общего вида ТП 902-1-104.86-ТХН Затвор щитовой 2000х2000. Эскизный чертеж общего вида ТП 902-1-104.86-ТХН Рама направляющая для затвора щитового 2000х2000. Эскизный чертеж общего вида ТП 902-1-104.86-ТХН Затвор щитовой 1000х1000. Эскизный чертеж общего вида ТП 902-1-104.86-ТХН Рама направляющая для затвора щитового 1000х1000. Эскизный чертеж общего вида ТП 902-1-104.86-ТХН Установка бака для масла. Эскизный чертеж общего вида ТП 902-1-104.86-ТХН Фильтр масла. Эскизный чертеж общего вида ТП 902-1-104.86-ТХН Сортировочный стол. Эскизный чертеж общего вида ТП 902-1-104.86-ВК Основной комплект марки ВК ТП 902-1-104.86-ВК Общие данные ТП 902-1-104.86-ВК План на отм. 0.000. План подземной части. Схемы сетей В1;73;К1. Водомерный узел ТП 902-1-104.86-ВК Водоводяной подогреватель ТП 902-1-104.86-ОВ Основной комплект марки ОВ ТП 902-1-104.86-ОВ Общие данные (начало) ТП 902-1-104.86-ОВ Общие данные (окончание) ТП 902-1-104.86-ОВ Отопление. План на отм. 0.000 ТП 902-1-104.86-ОВ Схемы систем отопления ТП 902-1-104.86-ОВ Тепловой пункт. План, разрез 1-1 ТП 902-1-104.86-ОВ Тепловой пункт. Спецификация ТП 902-1-104.86-ОВ Вентиляция. План на отм. 0.000 ТП 902-1-104.86-ОВ Вентиляция. План на отм. - 5.600;-7.100;-8.600 ТП 902-1-104.86-ОВ Вентиляция. Разрез 1-1. Схемы систем В5;В8;В12 ТП 902-1-104.86-ОВ Вентиляция. Разрез 2-2 ТП 902-1-104.86-ОВ Вентиляция. Схемы систем П1,П2,П3,В1,В2,В3,В4,В9,В11 ТП 902-1-104.86-ОВ Вентиляция. Приточные установки П1,П3. План. Разрез 1-1 ТП 902-1-104.86-ОВ Вентиляция. Приточные установки П1,П3. Разрез 2-2. Схема системы теплоснабжения установок П1,П3 ТП 902-1-104.86-ОВ Вентиляция. Вытяжные установки В5,В8,В9,В12 ТП 902-1-104.86-ОВ Лючок с заглушкой. Чертеж общего вида ТП 902-1-104.86-ОВ Короб воздухосборный. Чертеж общего вида ТП 902-1-104.86-ОВ Зонт. Чертеж общего вида |
| Разработан: | Ленинградское отделение Гипрокоммунводоканала |
| Утверждён: | 27.10.1986 МЖКХ РСФСР (462) |


















































